Verkeersbesluit parkeerplaats opladen elektrische motorvoertuigen Suze Groeneweglaan

Zaaknummer: Z25-145107

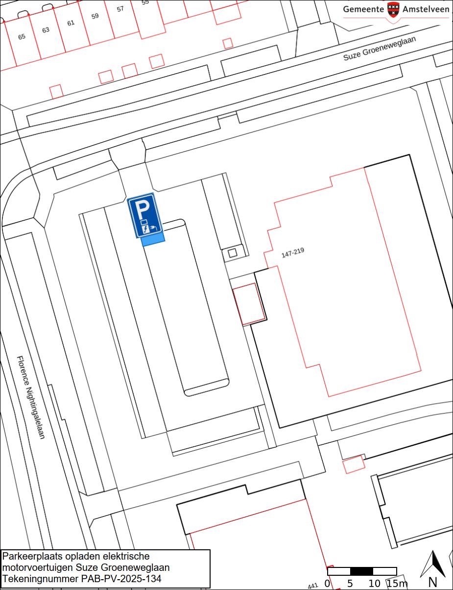
Burgemeester en wethouders van Amstelveen besluiten om in de Suze Groeneweglaan één parkeerplaats aan te wijzen als parkeerplaats voor het opladen van elektrische motorvoertuigen. De parkeerplaats mag alleen gebruikt worden voor het opladen van deze elektrische motorvoertuigen.

Dit gebeurt door het plaatsen van bord E8c van bijlage 1 van het Reglement verkeersregels en verkeerstekens 1990 (RVV 1990) met een onderbord waarop is aangegeven dat de maatregel alleen voor deze parkeerplaats geldt, zoals aangegeven op de bebordingstekening PAB-PV-2025-134.

Wettelijke grondslag

Het besluit is gebaseerd op:

  • de Wegenverkeerswet 1994 (WVW 1994);

  • het Reglement verkeersregels en verkeerstekens 1990;

  • het Besluit administratieve bepalingen inzake het wegverkeer (BABW).

Motivering

Het besluit strekt conform artikel 2 Wegenverkeerswet 1994 tot:

  • het zoveel mogelijk waarborgen van de vrijheid van het verkeer (lid 1d);

  • het voorkomen of beperken van door het verkeer veroorzaakte overlast, hinder of schade alsmede de gevolgen voor het milieu, bedoeld in de Wet milieubeheer (lid 2a);

  • het bevorderen van een doelmatig of zuinig energiegebruik (lid 3a).

 

Het besluit wordt als volgt gemotiveerd:

 

De gemeente Amstelveen stimuleert het elektrisch vervoer. Dit vervoer draagt bij aan het verbeteren van de luchtkwaliteit in de gemeente Amstelveen. Voor het opladen van elektrische motorvoertuigen is het noodzakelijk om een netwerk van oplaadpunten te creëren. In de omgeving wonen meerdere mensen met een elektrisch motorvoertuig, die geen parkeergelegenheid op eigen terrein hebben. De oplaadpaal bij deze locatie krijgt een dubbel aansluitpunt. Hierdoor kunnen er twee bij elkaar gelegen parkeerplaatsen als oplaadplaats voor elektrische motorvoertuigen worden ingericht en kunnen er per aansluitpunt gelijktijdig twee motorvoertuigen worden opgeladen. De locatie is getoetst aan de Beleidsregels oplaadinfrastructuur elektrische voertuigen 2020 van de gemeente. Ook is er getoetst aan de parkeerdruk. De parkeerdruk op deze locatie is op het drukst gemeten moment 55% (36 van de 65 parkeerplaatsen zijn bezet).

 

Overeenkomstig artikel 24 van het BABW is overleg gepleegd met een namens de korpschef van de regiopolitie Amsterdam-Amstelland gemandateerde specialist van het team Verkeersadvisering over het aanwijzen van dergelijke oplaadpunten. De specialist heeft daarbij aangegeven geen bezwaren te hebben tegen het bestemmen van bestaande parkeerplaatsen voor het opladen van elektrische motorvoertuigen.

Bevoegd gezag

Verkeersbesluiten worden genomen door burgemeester en wethouders voor zover zij betreffen het verkeer op de wegen, welke niet in beheer zijn bij het Rijk, de provincie of een waterschap (artikel 18, lid 1, onder d, WVW 1994). Het mandaatbesluit van burgemeester en wethouders is van toepassing. Er is ondermandaat verleend aan de junior adviseur parkeren en duurzame mobiliteit van de gemeente.

 

De Suze Groeneweglaan ligt binnen de bebouwde kom en is in beheer bij de gemeente Amstelveen.

Tekening

Amstelveen, 1 december 2025

Burgemeester en wethouders van de gemeente Amstelveen,

namens dezen,

H.R.M. Souwer

Junior adviseur parkeren en duurzame mobiliteit

 

 

 

 

Mogelijkheid tot het indienen van een bezwaarschrift

Tegen dit besluit kunnen belanghebbenden binnen zes weken na bekendmaking een bezwaarschrift indienen. Het bezwaarschrift moet worden ondertekend. Het bevat ten minste de naam en het adres van de indiener, de dagtekening, een omschrijving van het besluit waartegen het bezwaar is gericht en de gronden van het bezwaar. Zo mogelijk meldt u uw e-mailadres en het telefoonnummer waarop u overdag te bereiken bent.

Het bezwaarschrift richt u aan het College van burgemeester en wethouders van Amstelveen, t.a.v. Juridische Zaken, Postbus 4, 1180 BA Amstelveen.

Digitaal bezwaar maken is ook mogelijk. Dit kan via www.amstelveen.nl/bezwaarschrift. Hiervoor moet u wel over een elektronische handtekening (DigiD) beschikken.

Mogelijkheid tot het aanvragen van een voorlopige voorziening

Als u bezwaar maakt, geldt de beslissing nog wel. Wilt u dat het gemeentelijke besluit tijdens uw bezwaarprocedure tijdelijk wordt opgeschort? Dien dan een verzoek om voorlopige voorziening in bij de voorzieningenrechter van de rechtbank. Als de voorzieningenrechter uw verzoek toekent, is het besluit opgeschort.

Een verzoek dient u in bij de Voorzieningenrechter van de Rechtbank Amsterdam, Postbus 75850, 1070 AW Amsterdam. Aan het verzoek zijn kosten verbonden.

Naar boven