Aanwijzing parkeerplaats autodate Drie Kolommenplein

Zaaknummer: Z25-144085

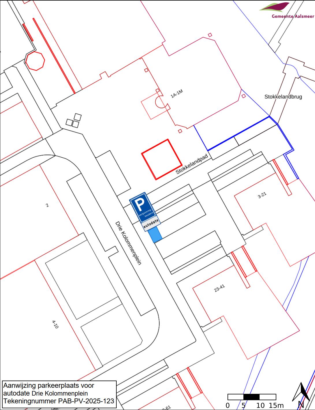
Burgemeester en wethouders van Aalsmeer besluiten om in de Drie Kolommenplein een parkeerplaats aan te wijzen als belanghebbendenplaats voor het parkeren door vergunninghouders voor autodate.

Dit gebeurt door het plaatsen van bord E9 van bijlage 1 van het Reglement verkeersregels en verkeerstekens 1990 (RVV 1990) met onderbord, zoals aangegeven op de bijgevoegde tekening PAB-PV-2025-123. Het bord E9 van genoemde bijlage wordt voorzien van het onderbord met het opschrift “autodate”.

De genoemde plaats wordt toegevoegd aan de lijst van autodateplaatsen in bijlage 2 van het Aanwijzingsbesluit parkeerbelastingen Amstelveen 2019. In deze bijlage zijn de plaatsen en gebieden opgenomen waar met een parkeervergunning mag worden geparkeerd.

Wettelijke grondslag

Het besluit is gebaseerd op:

  • de Wegenverkeerswet 1994 (WVW 1994);

  • het Reglement verkeersregels en verkeerstekens 1990 (RVV 1990);

  • het Besluit administratieve bepalingen inzake het wegverkeer (BABW);

Motivering

Het besluit strekt conform artikel 2 Wegenverkeerswet 1994 tot:

  • het voorkomen of beperken van door het verkeer veroorzaakte overlast, hinder of schade alsmede de gevolgen voor het milieu, bedoeld in de Wet milieubeheer, waaronder mede wordt begrepen het stimuleren van selectief autogebruik (lid 2a).

 

Het besluit wordt als volgt gemotiveerd:

Er is een verzoek ontvangen van Greenwheels om de betreffende plaats te bestemmen en in te richten voor autodate. Onder autodate of gedeeld autogebruik wordt het herhaald en opeenvolgend gezamenlijk gebruik van een motorvoertuig op grond van een overeenkomst tussen natuurlijke personen uit meer dan één huishouden en een aanbieder van autodate verstaan. Greenwheels heeft een deelautoformule waarbij verschillende deelnemers dezelfde auto na elkaar kunnen gebruiken. Greenwheels heeft aangegeven dat er behoefte is aan de gevraagde autodateplaats. De gemeente onderschrijft dit. De locatie is in overleg met de gemeente bepaald en is geschikt om als autodateplaats te worden aangewezen. De gemeente heeft daarbij de parkeerdruk ter plaatse als acceptabel beoordeeld. Autodate draagt bij aan een bewust en selectief autogebruik. De gemeente bevordert dit en heeft daarom in de Parkeerverordening Aalsmeer 2013 een regeling opgenomen die het aanwijzen van belanghebbendenplaatsen bestemd voor vergunninghouders voor autodate regelt.

Bevoegd gezag

Verkeersbesluiten worden genomen door burgemeester en wethouders voor zover zij betreffen het verkeer op de wegen, welke niet in beheer zijn bij het Rijk, de provincie of een waterschap (artikel 18, lid 1, onder d, WVW 1994). Burgemeester en wethouders van Aalsmeer hebben deze bevoegdheid bij besluit van 30 juli 2013 gemandateerd aan burgemeester en wethouders van Amstelveen. Voor Amstelveen is een mandaatbesluit van toepassing. Er is ondermandaat verleend aan de medewerker ontwerp en voorbereiding van de gemeente.

 

Over het besluit heeft overleg plaatsgevonden met de verkeersadviseur van de regiopolitie Amsterdam-Amstelland, die namens de korpschef optreedt (art. 24 BABW).

 

De Drie Kolommenplein ligt binnen de bebouwde kom en is in beheer bij de gemeente Aalsmeer.

 

 

 

 

Tekening

 

Amstelveen, 25 november 2025

Burgemeester en wethouders van de gemeente Aalsmeer,

namens dezen,

H.R.M. Souwer

Junior adviseur parkeren en duurzame mobiliteit

 

 

 

 

Mogelijkheid tot het indienen van een bezwaarschrift

Tegen dit besluit kunnen belanghebbenden binnen zes weken na bekendmaking een bezwaarschrift indienen. Het bezwaarschrift moet worden ondertekend. Het bevat ten minste de naam en het adres van de indiener, de dagtekening, een omschrijving van het besluit waartegen het bezwaar is gericht en de gronden van het bezwaar. Zo mogelijk meldt u uw e-mailadres en het telefoonnummer waarop u overdag te bereiken bent.

Het bezwaarschrift dient te worden gericht aan Burgemeester en wethouders van Aalsmeer, t.a.v. de Bezwaarschriftencommissie, Postbus 4, 1180 BA Amstelveen.

Digitaal bezwaar maken is ook mogelijk. Dit kan via www.aalsmeer.nl/bezwaarschrift Hiervoor moet u wel over een elektronische handtekening (DigiD) beschikken.

 

Mogelijkheid tot het aanvragen van een voorlopige voorziening

Als u bezwaar maakt, geldt de beslissing nog wel. Wilt u dat het gemeentelijke besluit tijdens uw bezwaarprocedure tijdelijk wordt opgeschort? Dien dan een verzoek om voorlopige voorziening in bij de voorzieningenrechter van de rechtbank. Als de voorzieningenrechter uw verzoek toekent, is het besluit opgeschort.

Een verzoek dient u in bij de Voorzieningenrechter van de Rechtbank Amsterdam, Postbus 75850, 1070 AW Amsterdam. Aan het verzoek zijn kosten verbonden.

 

Naar boven