U bekijkt een publicatie met

Toon versie van document

Omgevingsplan - Vierde wijzigingsronde

De gemeenteraad van Gemeente Meierijstad

 

  • a.

    gelet op artikel 2.4 in relatie tot artikel 2.8 Omgevingswet;

  • b.

    gelet op het feit dat het voornemen tot wijziging ter inzage heeft gelegen van [datum] tot en met [datum], waarbij een ieder een zienswijze kon indienen;

  • c.

    gelet op het feit dat er op 3 december 2025 een informatiebijeenkomst plaatsvond waar belangstellenden hun vragen konden stellen over deze wijzigingsronde;

  • d.

    gezien het feit dat er [aantal] zienswijze is ingediend op het ontwerpbesluit, die hebben geleid tot aanpassing van het omgevingsplan zoals blijkt uit de Nota van zienswijzen;

  • e.

    gezien het voorstel van het college van burgemeester en wethouders van [datum];

  • f.

    gelezen de tekstinhoud van ”Omgevingsplan gemeente Meierijstad” d.d. [datum].

Overwegende dat:

  • aan de Groothees 13 te Erp de functie wordt gewijzigd van agrarisch bedrijf met champignonkweek naar opslag en kleinschalige, niet-agrarische bedrijfsactiviteiten;

  • aan de Kraanmeer 29 te Erp de functie wordt gewijzigd van tuinbouwbedrijf naar statische opslag en zzp-activiteiten (agrarisch loonwerk en reparaties);

  • aan de Pastoor van Vroonhovenstraat 11 te Wijbosch de agrarische activiteiten worden beëindigd en de bestaande bedrijfswoning als burgerwoning wordt gebruikt alsmede een nieuwe burgerwoning wordt gebouwd; 

  • op de Putsteeg 8 in Schijndel een zorgboerderij aanwezig is op grond van een tijdelijke omgevingsvergunning waarvan de termijn bijna afloopt. Middels voorliggende wijziging van het Omgevingsplan wordt deze functie met enige uitbreiding permanent mogelijk gemaakt; 

  • aan de Espendonk ongenummerd in Sint-Oedenrode reeds een varkenshouderij, middels subsidieregeling, is gesaneerd en de bouw van één woning  mogelijk wordt gemaakt; 

  • aan de Weievenseweg 30, Jekschotstraat 39-41 en Lieshoutseweg ongenummerd te Sint-Oedenrode veehouderij wordt beëindigd op drie locaties , maar behoud van overige landbouw, en toevoeging van een woonfunctie;

  • ter plaatse van de Zwembadweg 43 in Sint-Oedenrode de varkenshouderij wordt gesaneerd en een deel van de bestaande bedrijfsbebouwing zal worden gebruikt voor statische opslag; 

  • aan de Dorshout 22 te Veghel twee woningen worden toegestaan in plaats van veehouderij en een bedrijfswoning;

  • aan de Dorshout 32 en 33 te Veghel twee woningen worden toegestaan in plaats van veehouderij en twee bedrijfswoningen;

  • aan de Grootdonkweg 4 te Veghel een boerderijsplitsing mogelijk gemaakt wordt en een beëindiging van de agrarische bedrijfsactiviteiten;

  • aan de Grootdonkweg 6 te Veghel de veehouderij wordt beëindiging en wordt splitsing boerderij tot twee woningen mogelijk gemaakt;

  • aan de Nieuwe Veldenweg 8 te Veghel wordt boerderijsplitsing mogelijk gemaakt en worden de agrarische bedrijfsactiviteiten beëindigd;

  • ter plaatse van de Putsteeg in Schijndel een woningbouwontwikkeling is voorzien van 62 woningen; 

  • ter plaatse van de Schootsestraat in Schijndel een woningbouwontwikkeling is voorzien van 73 woningen; 

  • Ter plaatse van de Het Hooghekke 5-7 in Schijndel een woningbouwontwikkeling is voorzien van maximaal 330 woningen; 

  • in Olland ten oosten van de Pastoor Smitsstraat en ten zuiden van de Roest, de gemeente Meierijstad een woningbouwontwikkeling voorziet van maximaal 21 woningen met bijbehorende voorzieningen; 

  • ter plaatse van het voormalige sportveld in Boskant ten westen van de Populierenlaan, de gemeente Meierijstad een woningbouwontwikkeling voorziet van maximaal 29 woningen met bijbehorende voorzieningen; 

  • de nationale wetgever heeft voorzien dat het eind 2023 geldende regime van welstand nog gekoppeld blijft aan het tijdelijke omgevingsplan, maar dat onze raad op 18 september 2025 heeft ingestemd met een door het college van burgemeester en wethouders voorgestelde actualisatie van het welstandsbeleid voor de korte termijn; 

  • in een recente hogerberoepszaak over oude aanlegvergunningen voor agrarische gronden in Sint-Oedenrode naar voren is gekomen dat de Rechtbank Oost-Brabant of de Afdeling bestuursrechtspraak van de Raad van State mogelijk in de formulering van enkele bestemmingsplanregels niet lezen dat het belang van agrarische exploitatie mee te wegen is bij het beoordelen van een aanvraag om omgevingsvergunning voor werken, geen bouwwerken zijnde, en werkzaamheden, terwijl wij als planregelgever met de agrarische bestemming van de betreffende gronden wel agrarische exploitatie als oogmerk hadden en hebben; 

 

Besluit het "Omgevingsplan gemeente Meierijstad" te wijzigen zoals aangegeven in artikel I en II.

Artikel I

"Omgevingsplan gemeente Meierijstad" opgenomen in Bijlage A wordt vastgesteld.

Artikel II

Dit besluit treedt in werking per PM

Aldus vastgesteld door Gemeente Meierijstad, DATUM

Diegenen die mogen ondertekenen

Niet getekend proef-exemplaar

Bijlage A Bijlage bij artikel I

A

Artikel 1.1 wordt op de aangegeven wijze gewijzigd:

Artikel 1.1 Begripsbepalingen

  • 1.

    Begripsbepalingen die, op de dag van de inwerkingtreding van de Omgevingswet, zijn opgenomen in de bijlage bij de Omgevingswet en in bijlage I bij het Besluit activiteiten leefomgeving, bijlage I bij het Besluit bouwwerken leefomgeving, bijlage I bij het Besluit kwaliteit leefomgeving, bijlage I bij het Omgevingsbesluit en bijlage I bij de Omgevingsregeling, zijn van toepassing op hoofdstuk 22 van dit omgevingsplan.

  • 2.

    Bijlage I bij dit omgevingsplan bevat begripsbepalingen voor de toepassing van hoofdstuk 22 van dit omgevingsplan.

  • 3.

    Bijlage II bij dit omgevingsplan bevat begripsbepalingen voor de toepassing van paragraaf 22.3.7.4 van dit omgevingsplan.

  • 4.

    Bijlage IV bij dit omgevingsplan bevat begripsbepalingen voor de toepassing van Afdeling 26.14 van dit omgevingsplan.

B

Artikel 22.7 wordt op de aangegeven wijze gewijzigd:

Artikel 22.7 Repressief welstand

  • 1.

    Het uiterlijk van de volgende bouwwerken mag niet in ernstige mate in strijd zijn met redelijke eisen van welstand, beoordeeld volgens de criteria van de welstandsnota, bedoeld in artikel 12a, eerste lid, van de Woningwet, zoals dat artikel tot de inwerkingtreding van de Omgevingswet gold:

    Het uiterlijk of de plaatsing van de volgende bouwwerken mag niet in ernstige mate in strijd zijn met redelijke eisen van welstand, beoordeeld volgens de criteria van de actuele versie van de Welstandsnota 2025:

    • a.

      een bestaand bouwwerk, met uitzondering van een tijdelijk bouwwerk dat geen seizoensgebonden bouwwerk is; en

    • b.

      een te bouwen bouwwerk waarvoor geen omgevingsvergunning voor een omgevingsplanactiviteit is vereist.

  • 2.

    Het bepaalde in afdeling 26.15 is eveneens van toepassing op het bepaalde in dit artikel.

  • 2.

    Het eerste lid is niet van toepassing als het gaat om een in het tijdelijke deel van dit omgevingsplan, bedoeld in artikel 22.1, onder a, van de Omgevingswet, aangewezen gebied of bouwwerk waarvoor geen redelijke eisen van welstand van toepassing zijn.

C

Artikel 22.29 wordt op de aangegeven wijze gewijzigd:

Artikel 22.29 Beoordelingsregels aanvraag binnenplanse omgevingsvergunning omgevingsplanactiviteit bouwwerken algemeen

  • 1.

    Voor zover een aanvraag om een omgevingsvergunning betrekking heeft op een bouwactiviteit en het in stand houden en gebruiken van het te bouwen bouwwerk, wordt de omgevingsvergunning alleen verleend als:

    • a.

      de activiteit niet in strijd is met de in dit omgevingsplan gestelde regels over het bouwen, in stand houden en gebruiken van bouwwerken, met uitzondering van paragraaf 22.2.4;

    • b.

      het uiterlijk of de plaatsing van het bouwwerk, met uitzondering van een tijdelijk bouwwerk dat geen seizoensgebonden bouwwerk is, zowel op zichzelf beschouwd als in verband met de omgeving of de te verwachten ontwikkeling daarvan, niet in strijd is met redelijke eisen van welstand, beoordeeld volgens de criteria van de welstandsnota, bedoeld in artikel 12a, eerste lid,actuele versie van de Woningwet, zoals dat artikel luidde voor de inwerkingtreding van de OmgevingswetWelstandsnota 2025 en het bepaalde in afdeling 26.15; en

    • c.

      de activiteit betrekking heeft op een bodemgevoelig gebouw op een bodemgevoelige locatie en:

      • 1.

        de toelaatbare kwaliteit van de bodem niet wordt overschreden; of

      • 2.

        bij overschrijding van de toelaatbare kwaliteit van de bodem: als aannemelijk is dat een sanerende of andere beschermende maatregelen wordt getroffen. Een sanerende of andere beschermende maatregel is in ieder geval een sanering overeenkomstig paragraaf 4.121 van het Besluit activiteiten leefomgeving.

  • 2.

    Het eerste lid, aanhef en onder b, is niet van toepassing als:

    • a.

      het gaat om een in het tijdelijke deel van dit omgevingsplan, bedoeld in artikel 22.1, onder a, van de Omgevingswet, aangewezen gebied of bouwwerk waarvoor geen redelijke eisen van welstand van toepassing zijn; of

    • b.

      het bevoegd gezag van oordeel is dat de omgevingsvergunning in afwijking van het eerste lid, aanhef en onder b, toch moet worden verleend.

D

Het opschrift van afdeling 23.1 wordt op de aangegeven wijze gewijzigd:

Afdeling 23.1 Locatie Langesteeg 14 te Sint-Oedenrode

E

Artikel 23.1 wordt op de aangegeven wijze gewijzigd:

Artikel 23.1 Toegestane bedrijfscategorie

In afwijking van het bepaalde in artikel 6.1. eerste lid onder a. en specifiek de daarbij horende ‘tabel bedrijven’ van de bestemmingsplannen “Buitengebied Sint-Oedenrode” en "Buitengebied Sint-Oedenrode, herziening 4" zoals onderdeel van het tijdelijk deel van dit omgevingsplan zoals bedoeld in artikel 22.1. onder a. van de Omgevingswet, geldt voor de locatie Langesteeg 14 Sint-Oedenrode het volgende met betrekking tot de Toegestane bedrijfscategorie:

 

Aanduiding

Adres

Huisnummer

Functie 

Bedrijfswoning

Opp. (m2)

‘Sb-17’

Langesteeg

14

vleeswaren en vleesconservenfabrieken, p.o. < 1.000 m²

1

530

 

Aanduiding

Adres

Huisnummer

Functie 

Bedrijfswoning

Opp. (m2)

‘Sb-17’

Langesteeg

14

vleeswaren en vleesconservenfabrieken, p.o. < 1.000 m²

1

530

F

Artikel 24.1 wordt op de aangegeven wijze gewijzigd:

Artikel 24.1 Voorrangsbepaling 

  • 1.

    In afwijking van het bepaalde in het tijdelijk deel van dit omgevingsplan zoals bedoeld in artikel 22.1. onder a. van de Omgevingswet, geldt voor de locatie Versantvoortstraat 2a Veghel het bepaalde in afdeling 24.2.

  • 2.

    In aanvulling op het bepaalde in het tijdelijk deel van dit omgevingsplan zoals bedoeld in artikel 22.1. onder a. van de Omgevingswet, geldt voor de locatie Oetelaarsestraat 33 Schijndel het bepaalde in afdeling 24.3 

  • 3.

    In afwijking van het bepaalde in het tijdelijk deel van dit omgevingsplan zoals bedoeld in artikel 22.1. onder a. van de Omgevingswet, geldt voor de locatie Boerdonksedijk 18 Erp het bepaalde in afdeling 24.4. 

  • 4.

    In aanvulling op het bepaalde in het tijdelijk deel van dit omgevingsplan zoals bedoeld in artikel 22.1. onder a. van de Omgevingswet, geldt voor de gebiedsaanwijzing ' verbod instandhouden aansluiting op het vuilwaterriool'  in Meierijstad het bepaalde in afdeling 24.5. 

  • 5.

    Het tijdelijk deel van dit omgevingsplan als bedoeld in artikel 22.1 onder a. van de Omgevingswet blijft voor het overige onverkort van toepassing, voor zover die regels niet in strijd zijn met het bepaalde in dit hoofdstuk. Bij strijdigheid tussen het tijdelijk deel van het omgevingsplan en dit hoofdstuk, geldt hetgeen bepaald in dit hoofdstuk. 

  • 6.

    Hoofdstuk 22 van het Omgevingsplan blijft onverkort van toepassing, voor zover die regels niet in strijd zijn met het bepaalde in dit hoofdstuk. Bij strijdigheid tussen het tijdelijk deel van het omgevingsplan en dit hoofdstuk, geldt hetgeen bepaald in dit hoofdstuk. 

G

Artikel 24.3 wordt op de aangegeven wijze gewijzigd:

Artikel 24.3 Oogmerken

Aan de regels van dit hoofdstuk wordt voldaan door degene die de activiteit verricht:

  • a.

    De de gebruiksmogelijkheden voor betreffende locaties;

  • b.

    De de bouwmogelijkheden voor betreffende locaties. 

H

Het opschrift van afdeling 24.2 wordt op de aangegeven wijze gewijzigd:

Afdeling 24.2 Locatie Versantvoortstraat 2a, te Veghel  

I

Artikel 24.4 wordt op de aangegeven wijze gewijzigd:

Artikel 24.4 Toepassingsbereik

Deze afdeling is van toepassing op het gebruiken en bouwen van bouwwerken en gebruiken van gronden gelegen binnen de Versantvoortstraat 2a in Veghel.  

J

Paragraaf 24.2.2 wordt op de aangegeven wijze gewijzigd:

Paragraaf 24.2.2 Regels over gebruik

Artikel 24.5 Verbod bedrijfsactiviteiten

In afwijking van het bepaalde in artikel 6 in samenhang met de binnen het werkingsgebied geldende bestemming en functieaanduidingen op de verbeelding van het bestemmingsplan “Buitengebied” (Buitengebied Veghel) zoals onderdeel van het tijdelijk deel van dit omgevingsplan zoals bedoeld in artikel 22.1., onder a., van de Omgevingswet, geldt voor de locatie Versantvoortstraat 2a in Veghel dat bedrijfsactiviteiten als bedoeld in artikel 1.22 van  het bestemmingsplan “Buitengebied” (Buitengebied Veghel), zijn verboden. 

Artikel 24.6 Woonactiviteiten

  • 1.

    In afwijking van het bepaalde in artikel 6 in samenhang met de binnen het werkingsgebied geldende bestemming en functieaanduidingen op de verbeelding van het bestemmingsplan “Buitengebied” (Buitengebied Veghel) zoals onderdeel van het tijdelijk deel van dit omgevingsplan zoals bedoeld in artikel 22.1., onder a., van de Omgevingswet, geldt voor de locatie Versantvoortstraat 2a in Veghel dat de activiteit wonen is toegestaan.  

  • 2.

    Voor gebruiksactiviteiten ten behoeve van de activiteit wonen op de locatie Versantvoortstraat 2a in Veghel is het bepaalde in artikel 26 van het bestemmingsplan “Buitengebied” (Buitengebied Veghel) en artikel 7 van het paraplubestemmingsplan “Harmonisatie van diverse regelingen – Laaghangend Fruit’fruit", zoals onderdeel van het tijdelijk deel van dit omgevingsplan zoals bedoeld in artikel 22.1., onder a., van de Omgevingswet van toepassing. 

  • 3.

    In aanvulling op het bepaalde in het eerste en tweede lid van dit artikel, gelden de volgende gebruiksregels op de locatie Versantvoorstraat 2a in Veghel: 

     

K

Artikel 24.7 wordt op de aangegeven wijze gewijzigd:

Artikel 24.7 Bouwen van bouwwerken

  • 1.

    Voor het bouwen van een bouwwerk wordt voldaan aan de regels uit paragraaf 24.2.2

  • 2.

    Voor het bouwen van bouwwerken is het bepaalde in artikel 26 van het bestemmingsplan “Buitengebied” (Buitengebied Veghel), en artikel 7 van het paraplubestemmingsplan “Harmonisatie van diverse regelingen – Laaghangend Fruit’fruit" zoals onderdeel van het tijdelijk deel van dit omgevingsplan zoals bedoeld in artikel 22.1., onder a., van de Omgevingswet van toepassing. 

L

Het opschrift van afdeling 24.3 wordt op de aangegeven wijze gewijzigd:

Afdeling 24.3 Locatie Oetelaarsestraat 33, te Schijndel

M

Artikel 24.8 wordt op de aangegeven wijze gewijzigd:

Artikel 24.8 Toepassingsbereik

Deze afdeling is van toepassing op het gebruiken van de gronden en het bouwen van bouwwerken gelegen binnen de Oetelaarsestraat 33 in Schijndel. 

N

Artikel 24.9 wordt op de aangegeven wijze gewijzigd:

Artikel 24.9 Woonactiviteiten, siertuin

In aanvulling op het bepaalde in artikel 4 in samenhang met de binnen het werkingsgebied geldende bestemming op de verbeelding van het bestemmingsplan “Landelijk gebied” (bestemmingsplan Schijndel) zoals onderdeel van het tijdelijk deel van dit omgevingsplan zoals bedoeld in artikel 22.1., onder a., van de Omgevingswet, geldt voor de locatie Oetelaarsestraat 33 in Schijndel dat eveneens de gronden mogen worden gebruikt voor woonactiviteiten, zijnde uitsluitend een siertuin. 

O

Artikel 24.10 wordt op de aangegeven wijze gewijzigd:

Artikel 24.10 Bouwen van bouwwerken

  • 1.

    Voor het bouwen van een bouwwerk wordt voldaan aan de regels uit paragraaf 24.3.2

  • 2.

    In afwijking van het bepaalde in artikel 26 van het bestemmingsplan “Landelijk gebied” (bestemmingsplan Schijndel) en artikel 7 van het paraplubestemmingsplan “Harmonisatie van diverse regelingen – Laaghangend Fruit’fruit" zoals onderdeel van het tijdelijk deel van dit omgevingsplan zoals bedoeld in artikel 22.1., onder a., van de Omgevingswet, in samenhang met de binnen het werkingsgebied geldende bestemming op de verbeelding, zijn bouwactiviteiten ten behoeve van de activiteit wonen binnen het werkingsgebied niet toegestaan. 

P

Het opschrift van afdeling 24.4 wordt op de aangegeven wijze gewijzigd:

Afdeling 24.4 Locatie Boerdonksedijk 18, te Erp

Q

Artikel 24.11 wordt op de aangegeven wijze gewijzigd:

Artikel 24.11 Toepassingsbereik

Deze afdeling is van toepassing op het bouwen en gebruiken van bouwwerken en het gebruiken van gronden gelegen binnen de Boerdonksedijk 18 in Erp.  

R

Paragraaf 24.4.2 wordt op de aangegeven wijze gewijzigd:

Paragraaf 24.4.2 Regels over gebruik

Artikel 24.12 Verbod bedrijfsactiviteiten

In afwijking van het bepaalde in artikel 3 in samenhang met de binnen het werkingsgebied geldende bestemming en functieaanduidingen op de verbeelding van het bestemmingsplan “Buitengebied” (Buitengebied Veghel) zoals onderdeel van het tijdelijk deel van dit omgevingsplan zoals bedoeld in artikel 22.1., onder a., van de Omgevingswet, geldt voor de locatie Boerdonksedijk 18 in Erp dat agrarische bedrijfsactiviteiten als bedoeld in artikel 1.6 en 1.10 van het bestemmingsplan “Buitengebied” (Buitengebied Veghel), zijn verboden.

Artikel 24.13 Agrarische activiteiten

In afwijking van het bepaalde in artikel 3 in samenhang met de binnen het werkingsgebied geldende bestemming en bouwvlak op de verbeelding van het bestemmingsplan “Buitengebied” (Buitengebied Veghel) zoals onderdeel van het tijdelijk deel van dit omgevingsplan zoals bedoeld in artikel 22.1. onder a. van de Omgevingswet, geldt voor het aangewezen werkingsgebied locatie Boerdonksedijk 18 Erp agrarisch grondgebruik dat uitsluitend de activiteit agrarisch grondgebruik als bedoeld in artikel 1.7 en artikel 3. is toegestaan. 

Artikel 24.14 Woonactiviteiten

  • 1.

    In afwijking van het bepaalde in artikel 3 in samenhang met de binnen het werkingsgebied geldende bestemming en functieaanduidingen op de verbeelding van het bestemmingsplan “Buitengebied” (Buitengebied Veghel) zoals onderdeel van het tijdelijk deel van dit omgevingsplan zoals bedoeld in artikel 22.1., onder a., van de Omgevingswet, geldt voor locatie Boerdonksedijk 18 Erp wonen dat de activiteit wonen is toegestaan. 

  • 2.

    Voor gebruiksactiviteiten ten behoeve van de activiteit wonen op de locatie Boerdonksedijk 18 in Erp is het bepaalde in artikel 26 van het bestemmingsplan “Buitengebied” (Buitengebied Veghel), en artikel 7 van het paraplubestemmingsplan “Harmonisatie van diverse regelingen – Laaghangend Fruit’fruit" zoals onderdeel van het tijdelijk deel van dit omgevingsplan zoals bedoeld in artikel 22.1., onder a., van de Omgevingswet van toepassing. 

  • 3.

    In aanvulling op het bepaalde in het eerste en tweede lid van dit artikel, gelden de volgende gebruiksregels op de locatie Boerdonksedijk 18 in Erp: 

    • a.

      Er er sprake is van strijdig gebruik met de activiteit wonen indien de milieuvergunningen voor agrarisch bedrijfsactiviteiten en/of meldingen als bedoeld in het Activiteitenbesluit milieubeheer niet zijn ingetrokken;

    • b.

      Er er sprake is van strijdig gebruik met de activiteit wonen indien de agrarische bedrijfsbebouwing, zijnde de sleufsilo van 140 m2, niet is gesloopt.  ;

    • c.

      Er er sprake is van strijdig gebruik met de activiteit wonen indien de landschappelijke inpassing, zoals aangeduid in Landschappelijke inpassing Boerdonksedijk 18 Erp, niet is gerealiseerd en duurzaam in stand wordt gehouden.;

    • d.

      Statische statische binnenopslag als bedoeld in artikel 1.52 van het paraplubestemmingsplan “Harmonisatie van diverse regelingen – Laaghangend Fruit’fruit" is in de bijbehorende bouwwerken toegestaan tot een maximum van 283 m2.

S

Artikel 24.15 wordt op de aangegeven wijze gewijzigd:

Artikel 24.15 Bouwen van bouwwerken

  • 1.

    Voor het bouwen van een bouwwerk wordt voldaan aan de regels uit paragraaf 24.4.2.

  • 2.

    Voor het bouwen van een bouwwerk is het bepaalde in artikel 26 van het bestemmingsplan “Buitengebied” (Buitengebied Veghel), en artikel 7 van het paraplubestemmingsplan “Harmonisatie van diverse regelingen – Laaghangend Fruit’fruit" zoals onderdeel van het tijdelijk deel van dit omgevingsplan zoals bedoeld in artikel 22.1., onder a., van de Omgevingswet van toepassing. 

  • 3.

    In aanvulling en afwijking van het bepaalde in het tweede lid is het bouwen van bijbehorende bouwwerken toegestaan tot een oppervlakte van maximaal 361 m2

T

Artikel 24.16 wordt op de aangegeven wijze gewijzigd:

Artikel 24.16 Overgangsrecht gebruik

  • 1.

    Het gebruik van grond en bouwwerken dat bestond op het tijdstip van inwerkingtreding van de wijziging van het omgevingsplan ten behoeve van Boerdonksedijk 18, Erp en hiermee in strijd is, mag worden voortgezet tot uiterlijk [datum]. 

  • 2.

    Het is verboden het met dit omgevingsplan strijdige gebruik, bedoeld in het bepaalde in het eerste lid, te veranderen of te laten veranderen in een ander met dit plan strijdig gebruik, tenzij door deze verandering de afwijking naar aard en omvang wordt verkleind. 

  • 3.

    Indien het gebruik, bedoeld in het bepaalde in het eerste lid, na het tijdstip van inwerkingtreding van de wijziging van het omgevingsplan ten behoeve van Boerdonksedijk 18, Erp voor een periode langer dan een jaar wordt onderbroken, is het verboden dit gebruik daarna te hervatten of te laten hervatten.

  • 4.

    Het bepaalde in het eerste lid is niet van toepassing op het gebruik dat reeds in strijd was met de regels van het bestemmingsplan “Buitengebied” (Buitengebied Veghel) zoals onderdeel van het tijdelijk deel van dit omgevingsplan zoals bedoeld in artikel 22.1., onder a., van de Omgevingswet , daaronder begrepen de overgangsbepalingen van dat plan. 

U

Het opschrift van afdeling 25.2 wordt op de aangegeven wijze gewijzigd:

Afdeling 25.2 Locatie Stuifzand ongenummerd te Veghel

V

Het opschrift van afdeling 25.3 wordt op de aangegeven wijze gewijzigd:

Afdeling 25.3 Locatie Houtsestraat 21 te Sint-Oedenrode

W

Artikel 25.16 wordt op de aangegeven wijze gewijzigd:

Artikel 25.16 Evenemententerrein

Uitsluitend binnen het werkingsgebied evenementenlocatie Molenheide is een evenement toegestaan, met dien verstande dat:

  • a.

    er maximaal één1 evenement per jaar is toegestaan;

  • b.

    de duur van het evenement maximaal vier4 aaneengesloten dagen is;

  • c.

    de opbouwperiode uiterlijk zes6 weken bedraagt;

  • d.

    de afbouwperiode uiterlijk twee2 weken bedraagt;

  • e.

    tijdens het onderdeel Business Event van het evenement het bezoekersaantal per dag niet meer mag bedragen dan 30.000;

  • f.

    tijdens het onderdeel Paaspop van het evenement het bezoekersaantal per dag niet meer mag bedragen dan 40.000;

  • g.

    uitsluitend ter plaatse van de aanduiding evenemententerrein het onderdeel van het evenement is toegestaan, zijnde het voor het publiek toegankelijke verrichting van vermaak in de vorm van muziek-, sport, spel, cultuur, tradities of soortgelijks;

  • h.

    het gebruik van de gronden voor het evenement uitsluitend is toegestaan conform de maatregelen zoals bepaald in een ecologisch werkprotocol zoals opgesteld voor dat jaar;

  • i.

    het tijdens het evenement betreden van NNB buiten de looproutes is verboden;

  • j.

    de maximale geluidbelasting op de gevel van geluidgevoelige bebouwing niet meer mag bedragen dan is aangegeven in het geldende "Evenementenbeleid Meierijstad";

  • k.

    het verboden is luide of versterkte muziek te draaien op:

    • 1.

      zaterdag van 01.00 uur  tot 14.30 uur;

    • 2.

      zondag van 02.00 uur tot 13.00 uur;

    • 3.

      maandag vanaf 01.00 uur;

  • l.

    horeca binnen de aanduiding evenemententerrein is toegestaan uitsluitend tijdens en verband houdende met een evenement met dien verstande dat er minimaal 10 meterm afstand is tussen de horecagelegenheid en een geurgevoelig object;

  • m.

    detailhandel binnen de aanduiding evenemententerrein is toegestaan uitsluitend toegestaan tijdens en verband houdende met een evenement;

  • n.

    sanitaire voorzieningen binnen de aanduiding evenemententerrein zijn toegestaan uitsluitend toegestaan tijdens en verband houdende met een evenement;

  • o.

    overige voorzieningen binnen de aanduiding evenemententerrein ten behoeve van de exploitatie van het evenement zijn toegestaan;

  • p.

    het gebruik van de gronden voor langdurig verblijf ten behoeve van het evenement is niet toegestaan binnen de bestemming 'Leiding – hoogspanningsverbinding' zoals bepaald in het bestemmingsplan “Landelijk Gebiedgebied”, zoals onderdeel van het tijdelijk deel van dit omgevingsplan zoals bedoeld in artikel 22.1., onder a., van de Omgevingswet.

X

Artikel 25.17 wordt op de aangegeven wijze gewijzigd:

Artikel 25.17 Kampeerterrein en camper/caravan opstelplaats

Uitsluitend ter plaatse van de aanduiding kampeerterrein is een tijdelijke camping toegestaan voor de bezoekers van het evenement. Hiervoor geldt het volgende:

  • a.

    de opbouwperiode bedraagt uiterlijk zes6 weken;

  • b.

    de afbouwperiode bedraagt uiterlijk twee2 weken;

  • c.

    de camping is van vrijdag vanaf 09.00 uur t/m maandagochtend  12.00 uur toegankelijk voor bezoekers;

  • d.

    sanitaire voorzieningen ten behoeve van de camping zijn toegestaan;

  • e.

    het is verboden luide of versterkte muziek te draaien op:

    • 1.

      zaterdag van 01.00 uur tot 14.30 uur;

    • 2.

      zondag van 02.00 uur tot 13.00 uur;

    • 3.

      maandag vanaf 01.00 uur;

  • f.

    voorzieningen ten behoeve van de exploitatie van een recreatief nachtverblijf zijn uitsluitend tijdens en verband houdende met een evenement toegestaan;

  • g.

    horeca is toegestaan uitsluitend tijdens en verband houdende met een evenement met dien verstande dat er minimaal 10 meterm afstand is tussen de horecagelegenheid en een geurgevoelig object;

  • h.

    detailhandel is uitsluitend toegestaan tijdens en verband houdende met een evenement;

  • i.

    Het gebruik van de gronden voor langdurig verblijf ten behoeve van het evenement is niet toegestaan binnen de bestemming 'Leiding – hoogspanningsverbinding' zoals bepaald in het bestemmingsplan “Landelijk Gebiedgebied”, zoals onderdeel van het tijdelijk deel van dit omgevingsplan zoals bedoeld in artikel 22.1., onder a., van de Omgevingswet.

Y

Artikel 25.18 wordt op de aangegeven wijze gewijzigd:

Artikel 25.18 Parkeerplaatsen

Uitsluitend ter plaatse van de aanduiding parkeerplaatsen is gedurende het evenement tijdelijk het parkeren van voertuigen toegestaan, hiervoor geldt het volgende:

  • a.

    ten tijde van het evenement dienen voldoende parkeervoorzieningen voor auto en fiets aanwezig te zijn en in stand te worden gehouden;

  • b.

    onder voldoende parkeervoorzieningen wordt verstaan het vereiste aantal parkeervoorzieningen zoals blijkt uit het mobiliteitsplan als onderdeel van de evenementenvergunning; 

  • c.

    de opbouwperiode bedraagt uiterlijk zes6 weken;

  • d.

    de afbouwperiode bedraagt uiterlijk twee2 weken;

  • e.

    parkeer- en verkeersvoorzieningen zijn toegestaan;

  • f.

    met parkeren samenhangende functies en activiteiten zijn toegestaan;

  • g.

    sanitaire voorzieningen zijn toegestaan.

Z

Artikel 25.19 wordt op de aangegeven wijze gewijzigd:

Artikel 25.19 Bouwen van bouwwerken

  • 1.

    Uitsluitend het bouwen van tijdelijke bouwwerken is toegestaan voor het gebruik zoals bepaald in paragraaf 25.4.2.

  • 2.

    Over de bestemming ‘Water’ binnen het werkingsgebied evenementenlocatie Molenheide is een  tijdelijke wandelbrug ten behoeve van de looproute tussen de aanduiding kampeerterrein en de aanduiding evenemententerrein toegestaan, onder de volgende voorwaarden:

    • a.

      De de brug  staat er maximaal 10 dagen;

    • b.

      De de brug is maximaal 13 meterm breed;

    • c.

      De de brug is maximaal 13 meterm lang;.

  • 3.

    Tijdelijke hekwerken mogen worden gebouwd rondom de hoogspanningsmasten op een afstand van minimaal 25 meter van de figuur 'hartlijn leiding – hoogspanningsverbinding' of binnen de bestemming 'Leiding – Hoogspanningsverbinding' zoals bepaald in het bestemmingsplan “Landelijk Gebiedgebied” zoals onderdeel van het tijdelijk deel van dit omgevingsplan zoals bedoeld in artikel 22.1., onder a., van de Omgevingswet mits deze zijn geaard;.

  • 4.

    Tijdelijke bouwwerken (geen gebouw zijnde) ter voorkoming van het betreden van het NNB buiten de looproutes zijn toegestaan.

AA

Het opschrift van afdeling 25.5 wordt op de aangegeven wijze gewijzigd:

Afdeling 25.5 Locatie Boerdonksedijk 36 te Erp

BB

Paragraaf 25.5.2 wordt op de aangegeven wijze gewijzigd:

Paragraaf 25.5.2 Regels over gebruik

Artikel 25.21 Verbod bedrijfsactiviteiten

In afwijking van het bepaalde in artikel 3 in samenhang met de binnen het werkingsgebied geldende bestemming en functieaanduidingen op de verbeelding van het bestemmingsplan “Buitengebied” (Buitengebied Veghel) zoals onderdeel van het tijdelijk deel van dit omgevingsplan zoals bedoeld in artikel 22.1., onder a., van de Omgevingswet, geldt voor de locatie Boerdonksedijk 36 Erp wonen dat bedrijfsactiviteiten als bedoeld in artikel 1.6 van  het bestemmingsplan “Buitengebied” (Buitengebied Veghel), zijn verboden.

Artikel 25.22 Agrarische activiteiten

Binnen de locatie Boerdonksedijk 36 Erp agrarisch is voor het gebruik van gronden voor agrarische doeleinden conform artikel 3.1 van bestemmingsplan “Buitengebied” (buitengebied Veghel), zoals onderdeel van het tijdelijk deel van dit omgevingsplan zoals bedoeld in artikel 22.1., onder a., van de Omgevingswet, van toepassing.

Artikel 25.23 Woonactiviteiten

  • 1.

    In afwijking van het bepaalde in artikel 3 in samenhang met de binnen het werkingsgebied geldende bestemming en functieaanduidingen op de verbeelding van het bestemmingsplan “Buitengebied” (buitengebied Veghel), zoals onderdeel van het tijdelijk deel van dit omgevingsplan zoals bedoeld in artikel 22.1., onder a., van de Omgevingswet, geldt voor de locatie Boerdonksedijk 36 Erp wonen, dat de activiteit wonen is toegestaan.

  • 2.

    Voor gebruiksactiviteiten ten behoeve van de activiteit wonen zijn artikel 26 van bestemmingsplan “Buitengebied” (buitengebied Veghel) en artikel 7 van bestemmingsplan “Harmonisatie van diverse regelingen ('laaghangend- Laaghangend fruit')”, zoals onderdeel van het tijdelijk deel van dit omgevingsplan zoals bedoeld in artikel 22.1., onder a., van de Omgevingswet, van toepassing;

  • 3.

    Er sprake is van strijdig gebruik met de activiteit wonen indien de landschappelijke inpassing, zoals aangeduid in de bijlage Landschappelijke inpassing Boerdonksedijk 36 Erp, niet binnen twee jaar na inwerkingtreding van dit omgevingsplan is gerealiseerd en duurzaam in stand wordt gehouden.

CC

Artikel 25.24 wordt op de aangegeven wijze gewijzigd:

Artikel 25.24 Bouwen van bouwwerken

  • 1.

    Voor het bouwen van een bouwwerk wordt voldaan aan de regels uit paragraaf 25.5.2.

  • 2.

    Voor het bouwen van bouwwerken is op locatie Boerdonksedijk 36 Erp wonen is het bepaalde in artikel 26 van bestemmingsplan “Buitengebied” (buitengebied Veghel) en artikel 7 van bestemmingsplan “Harmonisatie van diverse regelingen ('laaghangend- Laaghangend fruit')”, zoals onderdeel van het tijdelijk deel van dit omgevingsplan zoals bedoeld in artikel 22.1., onder a., van de Omgevingswet, van toepassing, met dien verstande dat:

    • a.

      In in afwijking van de genoemde regelingen er een totaal oppervlakte aan bijbehorende bouwwerken van 300 m2 opgericht mag worden;

    • b.

      Er er alleen gebouwd mag worden, indien alle op de inrichtingsschets opgenomen ‘te slopen bebouwing’ gesloopt is;

    • c.

      Indien indien de onder b genoemde ‘te slopen bebouwing’ niet binnen twee jaar na inwerkingtreding van dit omgevingsplan gesloopt is, wordt dit aangemerkt als zijnde strijdig met dit omgevingsplan.

  • 3.

    Voor het bouwen van bouwwerken is binnen de aanduiding locatie Boerdonksedijk 36 Erp agrarisch uitsluitend het bepaalde in artikel 3.2.6 van het bestemmingsplan “Buitengebied” (Buitengebied Veghel), zoals onderdeel van het tijdelijk deel van dit omgevingsplan zoals bedoeld in artikel 22.1., onder a., van de Omgevingswet, van toepassing.

DD

Het opschrift van afdeling 25.6 wordt op de aangegeven wijze gewijzigd:

Afdeling 25.6 Locatie Ollandseweg 139 te Sint-Oedenrode

EE

Paragraaf 25.6.2 wordt op de aangegeven wijze gewijzigd:

Paragraaf 25.6.2 Regels over gebruik

Artikel 25.26 Verbod bedrijfsactiviteiten

In afwijking van het bepaalde in artikel 5 in samenhang met de binnen het werkingsgebied aanwezige functieaanduidingen op de verbeelding van het bestemmingsplan “Buitengebied Sint-Oedenrode, herziening 2”, zoals onderdeel van het tijdelijk deel van dit omgevingsplan zoals bedoeld in artikel 22.1., onder a., van de Omgevingswet, geldt voor de locatie Ollandseweg 139 Sint-Oedenrode wonen dat bedrijfsactiviteiten als bedoeld in artikel 5.1 van het bestemmingsplan “Buitengebied Sint-Oedenrode, herziening 2”, zijn verboden.

Artikel 25.27 Agrarische activiteiten

Binnen de locatie Ollandseweg 139 Sint-Oedenrode agrarisch is het gebruik van gronden voor agrarische doeleinden conform artikel 1.1 van bestemmingsplan “Buitengebied Sint-Oedenrode, herziening 2”, zoals onderdeel van het tijdelijk deel van dit omgevingsplan zoals bedoeld in artikel 22.1., onder a., van de Omgevingswet, van toepassing.

Artikel 25.28 Woonactiviteiten

  • 1.

    In afwijking van het bepaalde in artikel 3 in samenhang met de binnen het werkingsgebied geldende bestemming en functieaanduidingen op de verbeelding van het bestemmingsplan “Buitengebied Sint-Oedenrode”, zoals onderdeel van het tijdelijk deel van dit omgevings- plan zoals bedoeld in artikel 22.1., onder a., van de Omgevingswet, geldt voor de locatie Ollandseweg 139 Sint-Oedenrode wonen, dat de activiteit wonen is toegestaan.

  • 2.

    Voor gebruiksactiviteiten ten behoeve van de activiteit wonen zijn de regels van artikel 20.1 van “Buitengebied Sint-Oedenrode, herziening 2” en artikel 7 van bestemmingsplan “Harmonisatie van diverse regelingen ('laaghangend- Laaghangend fruit')”, zoals onderdeel van het tijdelijk deel van dit omgevings- plan zoals bedoeld in artikel 22.1., onder a., van de Omgevingswet, van toepassing;.

  • 3.

    Er sprake is sprake van strijdig gebruik met de activiteit wonen indien de landschappelijke inpassing (inclusief de daarin opgenomen sloop van de aanwezige tunnelkassen), zoals aangeduid in de bijlage Landschappelijke inpassing Ollandseweg 139 Sint-Oedenrode, niet binnen twee jaar na inwerkingtreding van dit omgevingsplan is gerealiseerd en duurzaam in stand wordt gehouden.

FF

Artikel 25.29 wordt op de aangegeven wijze gewijzigd:

Artikel 25.29 Bouwen van bouwwerken

  • 1.

    Voor het bouwen van een bouwwerk wordt voldaan aan de regels uit paragraaf 25.6.2.

  • 2.

    Voor het bouwen van bouwwerken is op de locatie Ollandseweg 139 Sint-Oedenrode wonen is het bepaalde in artikel 20 van het bestemmingsplan “Buitengebied Sint-Oedenrode, herziening 2” en artikel 7 van het paraplubestemmingsplan “Harmonisatie van diverse regelingen – Laaghangend Fruit’fruit", zoals onderdeel van het tijdelijk deel van dit omgevingsplan zoals bedoeld in artikel 22.1., onder a., van de Omgevingswet, van toepassing, met dien verstande dat:

    • a.

      Er er maximaal 360 m2 aan bijbehorende bouwwerken opgericht mag worden;

    • b.

      Er er 288 m2 aan bijbehorende bouwwerken gebruikt mag worden voor statische opslag.

  • 3.

    Voor het bouwen van bouwwerken is op de locatie Ollandseweg 139 Sint-Oedenrode agrarisch is het bepaalde in artikel 3.2.9 van het bestemmingsplan “Buitengebied Sint-Oedenrode, herziening 2”, zoals onderdeel van het tijdelijk deel van dit omgevingsplan zoals bedoeld in artikel 22.1., onder a., van de Omgevingswet, van toepassing.

GG

Na hoofdstuk 25 wordt een hoofdstuk ingevoegd, luidende:

Hoofdstuk 26 Vierde wijzigingsronde

Afdeling 26.1 Algemeen

Artikel 26.1 Voorrangsbepaling
  • 1.

    In afwijking van het bepaalde in het tijdelijk deel van dit omgevingsplan zoals bedoeld in artikel 22.1, onder a, van de Omgevingswet, geldt voor de locatie Groothees 13 Erp, het bepaalde in afdeling 26.2.

  • 2.

    In afwijking van het bepaalde in het tijdelijk deel van dit omgevingsplan zoals bedoeld in artikel 22.1, onder a, van de Omgevingswet, geldt voor de locatie Kraanmeer 29 Erp, het bepaalde in afdeling 26.3.

  • 3.

    In afwijking van het bepaalde in het tijdelijk deel van dit omgevingsplan zoals bedoeld in artikel 22.1, onder a, van de Omgevingswet, geldt voor de locatie Pastoor van Vroonhovenstraat 11 Schijndel het bepaalde in afdeling 26.4.

  • 4.

    In afwijking van het bepaalde in het tijdelijk deel van dit omgevingsplan zoals bedoeld in artikel 22.1, onder a, van de Omgevingswet, geldt voor de locatie Putsteeg 8 Schijndel, het bepaalde in afdeling 26.5.

  • 5.

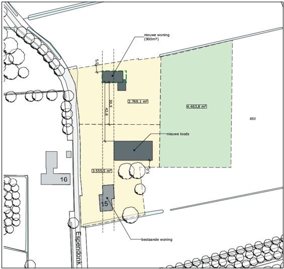
    In afwijking en aanvulling van het bepaalde in het tijdelijk deel van dit omgevingsplan zoals bedoeld in artikel 22.1, onder a, van de Omgevingswet, geldt voor de locatie Espendonk 15 Sint-Oedenrode, het bepaalde in afdeling 26.6.

  • 6.

    In afwijking van het bepaalde in het tijdelijk deel van dit omgevingsplan zoals bedoeld in artikel 22.1, onder a, van de Omgevingswet, geldt voor de locatie Weievenseweg 30, Jekschotseweg 39, Jekschotseweg 41, Lieshoutseweg ongenummerd Sint-Oedenrode, het bepaalde in afdeling 26.7.

  • 7.

    In afwijking van het bepaalde in het tijdelijk deel van dit omgevingsplan zoals bedoeld in artikel 22.1, onder a, van de Omgevingswet, geldt voor de locatie Zwembadweg 43 Sint-Oedenrode, het bepaalde in afdeling 26.8.

  • 8.

    In afwijking van het bepaalde in het tijdelijk deel van dit omgevingsplan zoals bedoeld in artikel 22.1, onder a, van de Omgevingswet, geldt voor de locatie Dorshout 22 Veghel, het bepaalde in afdeling 26.9.

  • 9.

    In afwijking van het bepaalde in het tijdelijk deel van dit omgevingsplan zoals bedoeld in artikel 22.1, onder a, van de Omgevingswet, geldt voor de locatie Dorshout 32 en 33 Veghel, het bepaalde in afdeling 26.10.

  • 10.

    In afwijking van het bepaalde in het tijdelijk deel van dit omgevingsplan zoals bedoeld in artikel 22.1, onder a, van de Omgevingswet, geldt voor de locatie Grootdonkweg 4 Veghel, het bepaalde in afdeling 26.11.

  • 11.

    In afwijking van het bepaalde in het tijdelijk deel van dit omgevingsplan zoals bedoeld in artikel 22.1, onder a, van de Omgevingswet, geldt voor de locatie Grootdonkweg 6 Veghel, het bepaalde in afdeling 26.12.

  • 12.

    In afwijking van het bepaalde in het tijdelijk deel van dit omgevingsplan zoals bedoeld in artikel 22.1, onder a, van de Omgevingswet, geldt voor de locatie Nieuwe Veldenweg 8 Veghel, het bepaalde in afdeling 26.13.

  • 13.

    In afwijking van het bepaalde in het tijdelijk deel van dit omgevingsplan zoals bedoeld in artikel 22.1, onder a, van de Omgevingswet, geldt voor het ontwikkelingsgebied woongebied De Locht Olland het bepaalde in afdeling 26.14 .

  • 14.

    In afwijking van het bepaalde in het tijdelijk deel van dit omgevingsplan zoals bedoeld in artikel 22.1, onder a, van de Omgevingswet, geldt voor het ontwikkelingsgebied woongebied Sportveld Boskant het bepaalde in afdeling 26.14.

  • 15.

    In afwijking van het bepaalde in het tijdelijk deel van dit omgevingsplan zoals bedoeld in artikel 22.1, onder a, van de Omgevingswet, geldt voor het ontwikkelingsgebied woongebied Putsteeg Schijndel het bepaalde in afdeling 26.14.

  • 16.

    In afwijking van het bepaalde in het tijdelijk deel van dit omgevingsplan zoals bedoeld in artikel 22.1, onder a, van de Omgevingswet, geldt voor het ontwikkelingsgebied woongebied Schootsestraat Schijndel het bepaalde in afdeling 26.14 .

  • 17.

    In afwijking van het bepaalde in het tijdelijk deel van dit omgevingsplan zoals bedoeld in artikel 22.1, onder a, van de Omgevingswet, geldt voor het ontwikkelingsgebied woongebied Het Hooghekke Schijndel het bepaalde in afdeling 26.14 .

  • 18.

    In aanvulling op het bepaalde in hoofdstuk 22, geldt voor de gebieden Buitengebied Sint-Oedenrode agrarisch met landschapswaarden en Buitengebied Sint-Oedenrode agrarisch met natuur- en landschapswaarden het bepaalde in afdeling 26.15.

  • 19.

    In aanvulling op het bepaalde in het tijdelijk deel van dit omgevingsplan zoals bedoeld in artikel 22.1, onder a, van de Omgevingswet, geldt voor de locaties welstand beeldbepalend of cultuurhistorisch waardevol pandwelstand beeldkwaliteitsplannenwelstand beschermd dorpsgezichtwelstand gemeentelijk monumentwelstand historisch centrumgebied en welstand rijksmonument het bepaalde in afdeling 26.16.

  • 20.

    Het tijdelijk deel van dit omgevingsplan als bedoeld in artikel 22.1, onder a, van de Omgevingswet blijft voor het overige onverkort van toepassing, voor zover die regels niet in strijd zijn met het bepaalde in dit hoofdstuk. Bij strijdigheid tussen het tijdelijk deel van het omgevingsplan en dit hoofdstuk, geldt hetgeen bepaald in dit hoofdstuk.

  • 21.

    Hoofdstuk 22 van het omgevingsplan blijft onverkort van toepassing, voor zover die regels niet in strijd zijn met het bepaalde in dit hoofdstuk. Bij strijdigheid tussen het tijdelijk deel van het omgevingsplan en dit hoofdstuk, geldt hetgeen bepaald in dit hoofdstuk. 

Artikel 26.2 Normadressaat

Aan de regels van dit hoofdstuk wordt voldaan door degene die de activiteit verricht.

Artikel 26.3 Oogmerk verbod gebruik gewasbeschermingsmiddelen

De regels in 26.4 zijn gesteld met het oog op:

  • a.

    het beschermen van een gezonde leefomgeving;

  • b.

    een goed woon- en leefklimaat;

  • c.

    het beschermen van kwaliteit van bodem, water en natuur.

Artikel 26.4 Verbod gebruik gewasbeschermingsmiddelen

Binnen de locatie verbod gewasbeschermingsmiddelen (spuitzone) is het verboden om chemische gewasbeschermingsmiddelen te gebruiken.

Afdeling 26.2 Locatie Groothees 13 te Erp

Paragraaf 26.2.1 Algemeen
Artikel 26.5 Toepassingsbereik

Deze afdeling gaat over het gebruiken van gronden en bouwwerken en het bouwen van bouwwerken gelegen binnen de locatie Groothees 13 Erp.

Artikel 26.6 Oogmerken

De regels in deze afdeling zijn gesteld met het oog op:

  • a.

    het tegengaan van ongewenste (agrarische) activiteiten;

  • b.

    het bieden van gebruiksmogelijkheden voor de betreffende locatie;

  • c.

    het bieden van bouwmogelijkheden voor betreffende locatie; 

  • d.

    het beschermen van een gezonde leefomgeving;

  • e.

    het beschermen en verbeteren van de ruimtelijke kwaliteit.

Paragraaf 26.2.2 Regels over gebruik
Artikel 26.7 Verbod agrarische bedrijfsactiviteiten

In afwijking van het bepaalde in artikel 4 in samenhang met de binnen het werkingsgebied geldende bestemming en functieaanduidingen op de verbeelding van het bestemmingsplan “Buitengebied” (Buitengebied Veghel) zoals onderdeel van het tijdelijk deel van dit omgevingsplan zoals bedoeld in artikel 22.1, onder a, van de Omgevingswet, geldt voor de locatie Groothees 13 Erp bedrijf dat (agrarische) bedrijfsactiviteiten als bedoeld in artikel 1.6  en 4 van het bestemmingsplan “Buitengebied” (buitengebied Veghel), zijn verboden.

Artikel 26.8 Agrarische activiteiten

Binnen de locatie Groothees 13 Erp agrarisch is het gebruik van gronden voor agrarische doeleinden conform artikel 1.7 in samenhang met artikel 4 van bestemmingsplan “Buitengebied” (Buitengebied Veghel), zoals onderdeel van het tijdelijk deel van dit omgevingsplan zoals bedoeld in artikel 22.1, onder a, van de Omgevingswet, van toepassing.

Artikel 26.9 Bedrijfsactiviteiten

In afwijking van het bepaalde in artikel 3 in samenhang met de binnen het werkingsgebied geldende bestemming en functieaanduidingen op de verbeelding van het bestemmingsplan “Buitengebied” (Buitengebied Veghel) zoals onderdeel van het tijdelijk deel van dit omgevingsplan zoals bedoeld in artikel 22.1, onder a, van de Omgevingswet, geldt voor de locatie Groothees 13 Erp bedrijf dat de activiteit 'Bedrijf' is toegestaan, zoals bedoeld in artikel 1.22 en artikel 5 van bestemmingsplan "Buitengebied" (Buitengebied Veghel) zoals onderdeel van het tijdelijk deel van dit omgevingsplan zoals bedoeld in artikel 22.1, onder a, van de Omgevingswet, met dien verstande dat:

  • a.

    binnen het werkingsgebied uitsluitend bedrijfsactiviteiten zijn toegestaan in de vorm van verhuur van bedrijfsbebouwing aan derden voor opslag en kleinschalige bedrijfsactiviteiten (milieucategorie 1 en 2 van de VNG-brochure "Bedrijven en milieuzonering");

  • b.

    indien de in de bijlage Te slopen bebouwing Groothees 13 Erp genoemde ‘te slopen bebouwing’ (circa 72 m2 bedrijfsbebouwing) niet binnen één jaar na inwerkingtreding van deze afdeling van dit omgevingsplan gesloopt is, wordt dit aangemerkt als zijnde strijdig met dit omgevingsplan;

  • c.

    indien de in de bijlage Landschappelijke inpassing Groothees 13 Erp genoemde ‘landschappelijke inpassing’ niet binnen één jaar na inwerkingtreding van deze afdeling van dit omgevingsplan gerealiseerd is en duurzaam in stand gehouden wordt, wordt dit aangemerkt als zijnde strijdig met dit omgevingsplan.

 

Paragraaf 26.2.3 Regels over bouwen
Artikel 26.10 Specifieke beoordelingsregels
  • 1.

    Bij het bouwen of veranderen, vernieuwen of in stand houden van een bouwwerk binnen de locatie Groothees 13 Erp wordt voldaan aan het bepaalde in afdeling 26.2.2 (gebruiken van gronden).

  • 2.

    Voor het bouwen van bouwwerken binnen de locatie Groothees 13 Erp agrarisch is het bepaalde in artikel 3.2.6 van bestemmingsplan “Buitengebied” (buitengebied Veghel) en  “Paraplubestemmingsplan archeologie" zoals onderdeel van het tijdelijk deel van dit omgevingsplan zoals bedoeld in artikel 22.1, onder a, van de Omgevingswet, van toepassing.

  • 3.

    Voor het bouwen van bouwwerken binnen de locatie Groothees 13 Erp bedrijf is het bepaalde in artikel 5 van bestemmingsplan “Buitengebied” (buitengebied Veghel), artikel 7 van bestemmingsplan “Harmonisatie van diverse regelingen - Laaghangend fruit”, “Parapluplan parkeren” en “Paraplubestemmingsplan archeologie" zoals onderdeel van het tijdelijk deel van dit omgevingsplan zoals bedoeld in artikel 22.1, onder a, van de Omgevingswet, van toepassing, met in achtneming van het bepaalde in artikel 26.1 eenentwintigste lid;

  • 4.

    In aanvulling en afwijking op het bepaalde in lid 3, wordt de omgevingsvergunning voor de omgevingsplanactiviteit bouwen, bedoeld in artikel 22.26, binnen de locatie Groothees 13 Erp bedrijf alleen verleend als:

    • a.

      er sprake is van maximaal 1 bedrijfswoning;

    • b.

      er maximaal 1.407 m2 aan bedrijfsgebouwen aanwezig is.

Afdeling 26.3 Locatie Kraanmeer 29 te Erp

Paragraaf 26.3.1 Algemeen
Artikel 26.11 Toepassingsbereik

Deze afdeling gaat over het gebruiken van gronden en bouwwerken en het bouwen van bouwwerken gelegen binnen de locatie Kraanmeer 29 Erp.

Artikel 26.12 Oogmerken

De regels in deze afdeling zijn gesteld met het oog op:

  • a.

    het tegengaan van ongewenste (agrarische) activiteiten;

  • b.

    het bieden van gebruiksmogelijkheden voor de betreffende locatie;

  • c.

    het bieden van bouwmogelijkheden voor de betreffende locatie; 

  • d.

    het beschermen van een gezonde leefomgeving;

  • e.

    het beschermen en verbeteren van de ruimtelijke kwaliteit.

Paragraaf 26.3.2 Regels over gebruik
Artikel 26.13 Verbod agrarische bedrijfsactiviteiten

In afwijking van het bepaalde in artikel 4 in samenhang met de binnen het werkingsgebied geldende bestemming en functieaanduidingen op de verbeelding van het bestemmingsplan “Buitengebied” (Buitengebied Veghel) zoals onderdeel van het tijdelijk deel van dit omgevingsplan zoals bedoeld in artikel 22.1, onder a, van de Omgevingswet, geldt voor de locatie Kraanmeer 29 Erp bedrijf dat (agrarische) bedrijfsactiviteiten als bedoeld in artikel 1.6  en 4 van het bestemmingsplan “Buitengebied” (Buitengebied Veghel), zijn verboden.

Artikel 26.14 Agrarische activiteiten

Binnen de locatie Kraanmeer 29 Erp agrarisch is het gebruik van gronden voor agrarische doeleinden conform artikel 1.7 in samenhang met artikel 3 van bestemmingsplan “Buitengebied” (Buitengebied Veghel), zoals onderdeel van het tijdelijk deel van dit omgevingsplan zoals bedoeld in artikel 22.1, onder a, van de Omgevingswet, toegestaan.

Artikel 26.15 Bedrijfsactiviteiten

In afwijking van het bepaalde in artikel 3 in samenhang met de binnen het werkingsgebied geldende bestemming en functieaanduidingen op de verbeelding van het bestemmingsplan “Buitengebied” (Buitengebied Veghel) zoals onderdeel van het tijdelijk deel van dit omgevingsplan zoals bedoeld in artikel 22.1, onder a, van de Omgevingswet, geldt voor de locatie Kraanmeer 29 Erp bedrijf dat de activiteit 'Bedrijf' is toegestaan, zoals bedoeld in artikel 1.22 en artikel 5 van bestemmingsplan "Buitengebied" (Buitengebied Veghel) zoals onderdeel van het tijdelijk deel van dit omgevingsplan zoals bedoeld in artikel 22.1, onder a, van de Omgevingswet, met dien verstande dat:

  • a.

    uitsluitend bedrijfsactiviteiten zijn toegestaan in de vorm van statische opslag (caravans en campers) en ZZP activiteiten (agrarisch loonwerk en reparatie);

  • b.

    indien de in de bijlage Te slopen bebouwing en verharding Kraanmeer 29 Erp genoemde ‘te slopen bebouwing’ (615 m2 bedrijfsbebouwing en 1.875 m2 erfverharding) niet binnen één jaar na inwerkingtreding van deze afdeling van dit omgevingsplan gesloopt is, wordt dit aangemerkt als zijnde strijdig met dit omgevingsplan;

  • c.

    indien de in de bijlage Landschappelijke inpassing Kraanmeer 29 Erp genoemde ‘landschappelijke inpassing’ niet binnen één jaar na inwerkingtreding van deze afdeling van dit omgevingsplan gerealiseerd is en duurzaam in stand gehouden wordt, wordt dit aangemerkt als zijnde strijdig met dit omgevingsplan.

Paragraaf 26.3.3 Regels over bouwen
Artikel 26.16 Specifieke beoordelingsregels
  • 1.

    Bij het bouwen of veranderen, vernieuwen of in stand houden van een bouwwerk binnen de locatie Kraanmeer 29 Erp wordt voldaan aan het bepaalde in afdeling 26.3.2 (gebruiken van gronden).

  • 2.

    Voor het bouwen van bouwwerken binnen de locatie Kraanmeer 29 Erp agrarisch is het bepaalde in artikel 3.2.6 van bestemmingsplan “Buitengebied” (Buitengebied Veghel) en “Paraplubestemmingsplan archeologie" zoals onderdeel van het tijdelijk deel van dit omgevingsplan zoals bedoeld in artikel 22.1, onder a, van de Omgevingswet, van toepassing.

  • 3.

    Voor het bouwen van bouwwerken binnen de locatie Kraanmeer 29 Erp bedrijf is het bepaalde in artikel 5 van bestemmingsplan “Buitengebied” (Buitengebied Veghel), artikel 7 van bestemmingsplan “Harmonisatie van diverse regelingen - Laaghangend fruit”, “Parapluplan parkeren” en “Paraplubestemmingsplan archeologie" zoals onderdeel van het tijdelijk deel van dit omgevingsplan zoals bedoeld in artikel 22.1, onder a, van de Omgevingswet, van toepassing, met in achtneming van het bepaalde in artikel 26.1 eenentwintigste lid.

  • 4.

    In aanvulling en afwijking op het bepaalde in lid 3,  wordt de omgevingsvergunning voor de omgevingsplanactiviteit bouwen, bedoeld in artikel 22.26, binnen de locatie Kraanmeer 29 Erp bedrijf alleen verleend als:

Afdeling 26.4 Locatie Pastoor van Vroonhovenstraat 11 te Schijndel

Paragraaf 26.4.1 Algemeen
Artikel 26.17 Toepassingsbereik

Deze afdeling gaat over het gebruiken van gronden en bouwwerken en het bouwen van bouwwerken gelegen binnen de locatie Pastoor van Vroonhovenstraat 11 Schijndel.

Artikel 26.18 Oogmerken

De regels in deze afdeling zijn gesteld met het oog op:

  • a.

    het tegengaan van ongewenste (agrarische) activiteiten;

  • b.

    het bieden van gebruiksmogelijkheden voor de betreffende locatie;

  • c.

    het bieden van bouwmogelijkheden voor betreffende locatie; 

  • d.

    het beschermen van een gezonde leefomgeving;

  • e.

    het beschermen en verbeteren van de ruimtelijke kwaliteit.

Paragraaf 26.4.2 Regels over gebruik
Artikel 26.19 Verbod agrarische bedrijfsactiviteiten

In afwijking van het bepaalde in artikel 4 in samenhang met de binnen het werkingsgebied geldende bestemming en functieaanduidingen op de verbeelding van het bestemmingsplan “Landelijk gebied” (Buitengebied Schijndel) zoals onderdeel van het tijdelijk deel van dit omgevingsplan zoals bedoeld in artikel 22.1, onder a, van de Omgevingswet, geldt voor de locatie Pastoor van Vroonhovenstraat 11 Schijndel dat (agrarische) bedrijfsactiviteiten als bedoeld in artikel 1.10  en artikel 4 van het bestemmingsplan “Landelijk gebied” (Buitengebied Schijndel), zijn verboden.

Artikel 26.20 Agrarische activiteiten
  • 1.

    Binnen de locatie Pastoor van Vroonhovenstraat 11 Schijndel agrarisch is het gebruik van gronden voor agrarische doeleinden conform artikel 1.12 en artikel 4 van bestemmingsplan “Landelijk gebied” (Buitengebied Schijndel), zoals onderdeel van het tijdelijk deel van dit omgevingsplan zoals bedoeld in artikel 22.1, onder a, van de Omgevingswet, toegestaan.

  • 2.

    Binnen de locatie Pastoor van Vroonhovenstraat 11 Schijndel beperkt agrarisch gebruik is, in afwijking van het bepaalde in artikel 1.12 en artikel 4 van bestemmingsplan “Landelijk gebied” (Buitengebied Schijndel), zoals onderdeel van het tijdelijk deel van dit omgevingsplan zoals bedoeld in artikel 22.1, onder a, van de Omgevingswet, uitsluitend het gebruik van gronden voor niet-bedrijfsmatige agrarische doeleinden toegestaan, uitsluitend in de vorm van permanent grasland, zijnde blijvend in gebruik als weide of hooiland, zonder omzetting naar akkerbouw of andere teelten.

Artikel 26.21 Woonactiviteiten

In afwijking van het bepaalde in artikel 4 in samenhang met de binnen het werkingsgebied geldende bestemming en functieaanduidingen op de verbeelding van het bestemmingsplan “Landelijk gebied” (Buitengebied Schijndel) zoals onderdeel van het tijdelijk deel van dit omgevingsplan zoals bedoeld in artikel 22.1, onder a, van de Omgevingswet, geldt voor de locatie Pastoor van Vroonhovenstraat 11 Schijndel wonen dat de activiteit wonen is toegestaan, zoals bedoeld in artikel 7 van het bestemmingsplan “Harmonisatie van diverse regelingen – Laaghangend fruit” zoals onderdeel van het tijdelijk deel van dit omgevingsplan zoals bedoeld in artikel 22.1, onder a, van de Omgevingswet, met dien verstande dat:

Artikel 26.22 Activiteiten voor groenvoorzieningen

Binnen de locatie locatie Pastoor van Vroonhovenstraat 11 Schijndel groen zijn activiteiten ten behoeve van groen toegestaan, waaronder wordt verstaan:

Paragraaf 26.4.3 Regels over bouwen
Artikel 26.23 Verbod bouwactiviteiten

Het is verboden gebouwen te bouwen ten behoeve van een activiteit als bedoeld in artikel 26.22 (groenvoorzieningen) binnen de locatie locatie Pastoor van Vroonhovenstraat 11 Schijndel groen.

Artikel 26.24 Specifieke beoordelingsregels
  • 1.

    Bij het bouwen of veranderen, vernieuwen of in stand houden van een bouwwerk binnen de locatie Pastoor van Vroonhovenstraat 11 Schijndel wordt voldaan aan het bepaalde in paragraaf 26.4.2.

  • 2.

    Voor het bouwen van bouwwerken binnen de locatie Pastoor van Vroonhovenstraat 11 Schijndel wonen is het bepaalde in artikel 26 van bestemmingsplan “Landelijk gebied” (Buitengebied Schijndel), artikel 7 van bestemmingsplan “Harmonisatie van diverse regelingen - Laaghangend fruit”, “Parapluplan parkeren” en “Paraplubestemmingsplan archeologie" zoals onderdeel van het tijdelijk deel van dit omgevingsplan zoals bedoeld in artikel 22.1, onder a, van de Omgevingswet, van toepassing, met in achtneming van het bepaalde in artikel 26.1 eenentwintigste lid;

  • 3.

    In aanvulling en afwijking op het bepaalde in het tweede lid, wordt de omgevingsvergunning voor de omgevingsplanactiviteit bouwen, bedoeld in artikel 22.26, alleen verleend als:

  • 4.

    Voor het bouwen van bouwwerken binnen de locatie Pastoor van Vroonhovenstraat 11 Schijndel agrarisch is het bepaalde in artikel 4 van bestemmingsplan “Landelijk gebied” (Buitengebied Schijndel),  “Paraplubestemmingsplan archeologie" zoals onderdeel van het tijdelijk deel van dit omgevingsplan zoals bedoeld in artikel 22.1, onder a, van de Omgevingswet, van toepassing.

Afdeling 26.5 Locatie Putsteeg 8 te Schijndel

Paragraaf 26.5.1 Algemeen
Artikel 26.25 Toepassingsbereik

Deze afdeling gaat over het gebruiken van gronden en bouwwerken en het bouwen van bouwwerken gelegen binnen de locatie locatie Putsteeg 8 Schijndel

Artikel 26.26 Oogmerken

 

De regels in deze afdeling zijn gesteld met het oog op:

  • a.

    het bieden van permanente gebruiksmogelijkheden voor de betreffende locatie; 

  • b.

    het bieden van bouwmogelijkheden voor betreffende locatie;

  • c.

    het beschermen en verbeteren van de ruimtelijke kwaliteit.

Paragraaf 26.5.2 Regels over gebruik
Artikel 26.27 Woonactiviteiten

 

In aanvulling op het bepaalde in artikel 26 in samenhang met de binnen het werkingsgebied geldende bestemming en functieaanduidingen op de verbeelding van het bestemmingsplan “Landelijk gebied” (Buitengebied Schijndel) en artikel 7 van het paraplubestemmingsplan “Harmonisatie van diverse regelingen – Laaghangend fruit” zoals onderdeel van het tijdelijk deel van dit omgevingsplan zoals bedoeld in artikel 22.1, onder a, van de Omgevingswet, geldt voor de locatie Putsteeg 8 Schijndel dat de activiteit 'Wonen' is toegestaan, zoals bedoeld in artikel 7 van het bestemmingsplan “Harmonisatie van diverse regelingen – Laaghangend fruit” zoals onderdeel van het tijdelijk deel van dit omgevingsplan zoals bedoeld in artikel 22.1, onder a, van de Omgevingswet, met dien verstande dat: 

  • a.

    tevens de opvang en begeleiding van maximaal 9 personen met een zorgbehoefte is toegestaan, waarbij maximaal 5 personen in de bestaande woonboerderij mogen worden gehuisvest en maximaal 4 personen in maximaal 3 separate zorgunits; 

  • b.

    de zorgunits, bedoeld onder a. niet als zelfstandige woonruimte mogen worden gebruikt en alleen tijdelijk mogen worden bewoond door personen met een zorgbehoefte, waarbij sprake dient te zijn van een functionele, organisatorische en ruimtelijke samenhang met de hoofdfunctie;

  • c.

    indien de in de bijlage Landschappelijke inpassing Putsteeg 8 Schijndel genoemde ‘landschappelijke inpassing’ niet binnen één jaar na inwerkingtreding van deze afdeling van dit omgevingsplan gerealiseerd is en duurzaam in stand gehouden wordt, wordt dit aangemerkt als zijnde strijdig met dit omgevingsplan. 

Paragraaf 26.5.3 Regels over bouwen
Artikel 26.28 Specifieke beoordelingsregels – bouwen van bouwwerken
  • 1.

    Bij het bouwen of veranderen, vernieuwen of in stand houden van een bouwwerk binnen de locatie locatie Putsteeg 8 Schijndel wordt voldaan aan het bepaalde in paragraaf 26.5.2 (gebruiken van gronden). 

  • 2.

    Voor het bouwen bouwwerken binnen de locatie locatie Putsteeg 8 Schijndel is het bepaalde in artikel 26 van het bestemmingsplan “Landelijk gebied” (Buitengebied Schijndel), artikel 7 van bestemmingsplan “Harmonisatie van diverse regelingen - Laaghangend fruit”, “Parapluplan parkeren” en “Paraplubestemmingsplan archeologie" zoals onderdeel van het tijdelijk deel van dit omgevingsplan zoals bedoeld in artikel 22.1, onder a, van de Omgevingswet, van toepassing, met in achtneming van het bepaalde in artikel 26.1 eenentwintigste lid. 

  • 3.

    In aanvulling en afwijking op het bepaalde in het tweede lid, wordt de omgevingsvergunning voor de omgevingsplanactiviteit bouwen, bedoeld in artikel 22.26, alleen verleend als: 

     

    • a.

      de inhoudsmaat van de bestaande woonboerderij maximaal 1822 m³ bedraagt; 

    • b.

      de gezamenlijke oppervlakte van bijbehorende bouwwerken niet meer dan 400 m2 bedraagt; 

    • c.

      de afstand tussen bijbehorende bouwwerken en het hoofdgebouw niet meer dan 30 meter bedraagt; 

    • d.

      binnen de onder b genoemde oppervlakte van bijbehorende bouwwerken maximaal 3 zorgunits mogen worden gerealiseerd. 

Afdeling 26.6 Locatie Espendonk ongenummerd te Sint-Oedenrode

Paragraaf 26.6.1 Algemeen
Artikel 26.29 Toepassingsbereik

Deze afdeling gaat over het gebruiken van gronden en bouwwerken en het bouwen van bouwwerken gelegen binnen de locatie locatie Espendonk 15 Sint-Oedenrode

Artikel 26.30 Oogmerken

 

De regels in deze afdeling zijn gesteld met het oog op: 

  • a.

    het bieden van gebruiksmogelijkheden voor de betreffende locatie; 

  • b.

    het bieden van bouwmogelijkheden voor betreffende locatie;  

  • c.

    het beschermen van een gezonde leefomgeving; 

  • d.

    het beschermen en verbeteren van de ruimtelijke kwaliteit.

Paragraaf 26.6.2 Regels over gebruik
Artikel 26.31 Woonactiviteiten

 

In aanvulling op het bepaalde in artikel 5 in samenhang met de binnen het werkingsgebied geldende bestemming en functieaanduidingen op de verbeelding van het bestemmingsplan “Ontwikkelplan sanering varkenshouderij” zoals onderdeel van het tijdelijk deel van dit omgevingsplan zoals bedoeld in artikel 22.1, onder a, van de Omgevingswet, geldt voor de locatie locatie Espendonk 15 Sint-Oedenrode dat de activiteit 'Wonen' is toegestaan, zoals bedoeld in artikel 7 van het bestemmingsplan “Harmonisatie van diverse regelingen – Laaghangend Fruit” zoals onderdeel van het tijdelijk deel van dit omgevingsplan zoals bedoeld in artikel 22.1, onder a, van de Omgevingswet, met dien verstande dat: 

  • a.

    indien de in de bijlage Landschappelijke inpassing Espendonk ongenummerd Sint-Oedenrode genoemde ‘landschappelijke inpassing’ niet binnen één jaar na inwerkingtreding van deze afdeling van dit omgevingsplan gerealiseerd is en duurzaam in stand gehouden wordt, dit wordt aangemerkt als zijnde strijdig met dit omgevingsplan. 

Paragraaf 26.6.3 Regels over bouwen
Artikel 26.32 Specifieke beoordelingsregels – Bouwen van een woning
  • 1.

    Bij het bouwen of veranderen, vernieuwen of in stand houden van een bouwwerk binnen de locatie locatie Espendonk 15 Sint-Oedenrode wordt voldaan aan het bepaalde in paragraaf 26.6.2 (gebruiken van gronden). 

  • 2.

    Voor het bouwen van een woning binnen de locatie Espendonk 15 Sint-Oedenrode is het bepaalde in artikel 7 van bestemmingsplan “Harmonisatie van diverse regelingen - Laaghangend fruit”, “Parapluplan parkeren” en “Paraplubestemmingsplan archeologie" zoals onderdeel van het tijdelijk deel van dit omgevingsplan zoals bedoeld in artikel 22.1, onder a, van de Omgevingswet, van toepassing, met in achtneming van het bepaalde in artikel 27.1 eenentwintigste lid

  • 3.

    In aanvulling en afwijking op het bepaalde in het tweede lid, wordt de omgevingsvergunning voor de omgevingsplanactiviteit bouwen, bedoeld in artikel 22.26, alleen verleend als: 

Afdeling 26.7 Locatie Weievenseweg 30, Jekschotseweg 39, Jekschotseweg 41 en Lieshoutseweg ongenummerd te Sint-Oedenrode

Paragraaf 26.7.1 Algemeen
Artikel 26.33 Toepassingsbereik

Deze afdeling gaat over het gebruiken van gronden en bouwwerken en het bouwen van bouwwerken gelegen binnen de locatie Weievenseweg 30, Jekschotseweg 39, Jekschotseweg 41, Lieshoutseweg ongenummerd Sint-Oedenrode.

Artikel 26.34 Oogmerken

De regels in deze afdeling zijn gesteld met het oog op:

  • a.

    het tegengaan van ongewenste (agrarische) activiteiten;

  • b.

    het bieden van gebruiksmogelijkheden voor de betreffende locatie;

  • c.

    het bieden van bouwmogelijkheden voor betreffende locatie; 

  • d.

    het beschermen van een gezonde leefomgeving;

  • e.

    het beschermen en verbeteren van de ruimtelijke kwaliteit.

Paragraaf 26.7.2 Regels over gebruik
Artikel 26.35 Verbod agrarische bedrijfsactiviteiten

In afwijking van het bepaalde in artikel 4 (Agrarisch met waarden - Landschapswaarden) in samenhang met de binnen het werkingsgebied geldende bestemming en functieaanduidingen op de verbeelding van het bestemmingsplan “Buitengebied Sint-Oedenrode, herziening 2” zoals onderdeel van het tijdelijk deel van dit omgevingsplan zoals bedoeld in artikel 22.1, onder a, van de Omgevingswet, geldt voor de locatie Weievenseweg 30 Sint-Oedenrode dat (agrarische) bedrijfsactiviteiten als bedoeld in artikel 1.9  in samenhang met artikel 4 van het bestemmingsplan “Buitengebied Sint-Oedenrode, herziening 2”, zijn verboden.

Artikel 26.36 Agrarische activiteiten
  • 1.

    Binnen de locatie Jekschotseweg 39 Sint-Oedenrode is het gebruik van gronden voor agrarische doeleinden conform artikel 4 van bestemmingsplan “Buitengebied Sint-Oedenrode, herziening 2” zoals onderdeel van het tijdelijk deel van dit omgevingsplan zoals bedoeld in artikel 22.1, onder a, van de Omgevingswet, van toepassing, met dien verstande dat het uitsluitend agrarisch grondgebruik als bedoeld in artikel 4.1 onder a, betreft.

  • 2.

    Binnen de locatie Jekschotseweg 41 Sint-Oedenrode is het gebruik van gronden voor agrarische doeleinden conform artikel 4 van bestemmingsplan “Buitengebied Sint-Oedenrode, herziening 2” zoals onderdeel van het tijdelijk deel van dit omgevingsplan zoals bedoeld in artikel 22.1, onder a, van de Omgevingswet, van toepassing, met dien verstande dat het niet toegestaan is om een agrarisch bedrijf in de vorm van een veehouderij uit te oefenen.

Artikel 26.37 Bedrijfsactiviteiten

Binnen de locatie Weievenseweg 30 Sint-Oedenrode is het gebruik van gronden voor agrarische doeleinden conform artikel 6 van bestemmingsplan “Buitengebied Sint-Oedenrode, herziening 2” zoals onderdeel van het tijdelijk deel van dit omgevingsplan zoals bedoeld in artikel 22.1, onder a, van de Omgevingswet, van toepassing, met dien verstande dat het een bedrijf als bedoeld in artikel 1.17 (agrarisch verwant bedrijf) betreft. Met dien verstande dat:

  • a.

    buitenopslag niet is toegestaan;

  • b.

    indien de in bijlage Te slopen bebouwing Weievenseweg 30 Sint-Oedenrode genoemde ‘te slopen bebouwing’ (circa 2.900 m2 bedrijfsbebouwing aan de Weievenseweg 30 Sint-Oedenrode) niet binnen één jaar na verlenen van de omgevingsvergunning voor de bouw van nieuwe bedrijfsbebouwing in artikel 26.39vijfde lid gesloopt is, dit wordt aangemerkt als zijnde strijdig met dit omgevingsplan;

  • c.

    indien de in bijlage Landschappelijke inpassing Weievenseweg 30 Sint-Oedenrode genoemde ‘landschappelijke inpassing’ niet binnen één jaar na ingebruikname van de nieuwe bedrijfsbebouwing gerealiseerd is en duurzaam in stand gehouden wordt, dit wordt aangemerkt als zijnde strijdig met dit omgevingsplan.

Artikel 26.38 Woonactiviteiten

In afwijking van het bepaalde in artikel 4 in samenhang met de binnen het werkingsgebied geldende bestemming en functieaanduidingen op de verbeelding van het bestemmingsplan “Sint-Oedenrode, herziening 2” zoals onderdeel van het tijdelijk deel van dit omgevingsplan zoals bedoeld in artikel 22.1, onder a, van de Omgevingswet, geldt voor de locatie Lieshoutseweg ongenummerd Sint-Oedenrode dat de activiteit 'Wonen' is toegestaan, zoals bedoeld in artikel 7 van het bestemmingsplan “Harmonisatie van diverse regelingen – Laaghangend Fruit” zoals onderdeel van het tijdelijk deel van dit omgevingsplan zoals bedoeld in artikel 22.1, onder a, van de Omgevingswet, met dien verstande dat:

  • a.

    indien alle aanwezige bebouwing op de locatie Jekschotseweg 39 Sint-Oedenrode (350 m2 bedrijfsbebouwing en de voormalige bedrijfswoning) niet binnen één jaar na verlenen van de omgevingsvergunning voor de woning in artikel 26.39vierde lid gesloopt is, wordt dit aangemerkt als zijnde strijdig met dit omgevingsplan;

  • b.

    indien de in bijlage Landschappelijke inpassing Lieshoutseweg ongenummerd genoemde ‘landschappelijke inpassing’ niet binnen één jaar na ingebruikname van de woning gerealiseerd is en duurzaam in stand gehouden wordt, wordt dit aangemerkt als zijnde strijdig met dit omgevingsplan.

Paragraaf 26.7.3 Regels over bouwen
Artikel 26.39 Specifieke beoordelingsregels

Afdeling 26.8 Locatie Zwembadweg 43 te Sint-Oedenrode

Paragraaf 26.8.1 Algemeen
Artikel 26.40 Toepassingsbereik

Deze afdeling gaat over het gebruiken van gronden en bouwwerken en het bouwen van bouwwerken gelegen binnen de locatie Zwembadweg 43 Sint-Oedenrode

Artikel 26.41 Oogmerken

De regels in deze afdeling zijn gesteld met het oog op: 

  • a.

    het tegengaan van ongewenste (agrarische) activiteiten; 

  • b.

    het bieden van gebruiksmogelijkheden voor de betreffende locatie; 

  • c.

    het bieden van bouwmogelijkheden voor betreffende locatie;  

  • d.

    het beschermen van een gezonde leefomgeving; 

  • e.

    het beschermen en verbeteren van de ruimtelijke kwaliteit.

Paragraaf 26.8.2 Regels over gebruik
Artikel 26.42 Verbod agrarische bedrijfsactiviteiten

In afwijking van het bepaalde in artikel 4 in samenhang met de binnen het werkingsgebied geldende bestemming en functieaanduidingen op de verbeelding van het bestemmingsplan “Buitengebied Sint-Oedenrode herziening 4” (Buitengebied Sint-Oedenrode) zoals onderdeel van het tijdelijk deel van dit omgevingsplan zoals bedoeld in artikel 22.1, onder a, van de Omgevingswet, geldt voor de locatie Zwembadweg 43 Sint-Oedenrode bedrijf dat agrarische bedrijfsactiviteiten als bedoeld in artikel 1.14 tot en met 1.23  en artikel 4 van het bestemmingsplan “Buitengebied Sint-Oedenrode herziening 4” (Buitengebied Sint-Oedenrode), zijn verboden. 

Artikel 26.43 Agrarische activiteiten

Binnen de locatie Zwembadweg 43 Sint-Oedenrode agrarisch is het gebruik van gronden voor agrarische doeleinden conform artikel 4 van bestemmingsplan “Buitengebied Sint-Oedenrode Herziening 4” (Buitengebied Sint-Oedenrode), zoals onderdeel van het tijdelijk deel van dit omgevingsplan zoals bedoeld in artikel 22.1, onder a, van de Omgevingswet, van toepassing. 

Artikel 26.44 Bedrijfsactiviteiten

In afwijking van het bepaalde in artikel 4 in samenhang met de binnen het werkingsgebied geldende bestemming en functieaanduidingen op de verbeelding van het bestemmingsplan “Buitengebied Sint-Oedenrode herziening 4” (Buitengebied Sint-Oedenrode) zoals onderdeel van het tijdelijk deel van dit omgevingsplan zoals bedoeld in artikel 22.1, onder a, van de Omgevingswet, geldt voor de locatie Zwembadweg 43 Sint-Oedenrode bedrijf dat niet-agrarische bedrijfsactiviteiten zijn toegestaan uitsluitend in de vorm van statische opslag, zoals bedoeld in artikel 1.172 en 6 van het bestemmingsplan “Buitengebied Sint-Oedenrode herziening 4” zoals onderdeel van het tijdelijk deel van dit omgevingsplan zoals bedoeld in artikel 22.1, onder a, van de Omgevingswet, met dien verstande dat: 

  • a.

    indien de in de bijlage Te slopen bebouwing Zwembadweg 43 Sint-Oedenrode genoemde ‘te slopen bebouwing’ niet binnen één jaar na inwerkingtreding van deze afdeling van dit omgevingsplan gesloopt is, dit wordt aangemerkt als zijnde strijdig met dit omgevingsplan;

  • b.

    indien de in de bijlage Landschappelijke inpassing Zwembadweg 43 Sint-Oedenrode genoemde ‘landschappelijke inpassing’ niet binnen één jaar na inwerkingtreding van deze afdeling van dit omgevingsplan gerealiseerd is en duurzaam in stand gehouden wordt, dit wordt aangemerkt als zijnde strijdig met dit omgevingsplan. 

Paragraaf 26.8.3 Regels over bouwen
Artikel 26.45 Specifieke beoordelingsregels
  • 1.

    Bij het bouwen of veranderen, vernieuwen of in stand houden van een bouwwerk binnen de locatie Zwembadweg 43 Sint-Oedenrode wordt voldaan aan het bepaalde in paragraaf 26.8.2 (gebruiken van gronden).

  • 2.

    Voor het bouwen van bouwwerken binnen de locatie Zwembadweg 43 Sint-Oedenrode bedrijf is het bepaalde in artikel 6 van bestemmingsplan “Buitengebied Sint-Oedenrode, herziening 4” (Buitengebied Sint-Oedenrode), artikel 9 van bestemmingsplan “Harmonisatie van diverse regelingen - Laaghangend fruit”, “Parapluplan parkeren” en “Paraplubestemmingsplan archeologie" zoals onderdeel van het tijdelijk deel van dit omgevingsplan zoals bedoeld in artikel 22.1, onder a, van de Omgevingswet, van toepassing, met in achtneming van het bepaalde in artikel 26.1 eenentwintigste lid. 

  • 3.

    In aanvulling en afwijking op het bepaalde in het tweede lid, wordt de omgevingsvergunning voor de omgevingsplanactiviteit bouwen, bedoeld in artikel 22.26, alleen verleend als: 

  • 4.

    Voor het bouwen van bouwwerken binnen de locatie Zwembadweg 43 Sint-Oedenrode agrarisch is het bepaalde in artikel 4 van bestemmingsplan “Buitengebied Sint-Oedenrode herziening 4” (Buitengebied Sint-Oedenrode) en “Paraplubestemmingsplan archeologie" zoals onderdeel van het tijdelijk deel van dit omgevingsplan zoals bedoeld in artikel 22.1, onder a, van de Omgevingswet, van toepassing. 

Afdeling 26.9 Locatie Dorshout 22 te Veghel

Paragraaf 26.9.1 Algemeen
Artikel 26.46 Toepassingsbereik

Deze afdeling gaat over het gebruiken van gronden en bouwwerken en het bouwen van bouwwerken gelegen binnen de locatie Dorshout 22 Veghel.

Artikel 26.47 Oogmerken

De regels in deze afdeling zijn gesteld met het oog op:

  • a.

    het tegengaan van ongewenste (agrarische) activiteiten;

  • b.

    het bieden van gebruiksmogelijkheden voor de betreffende locatie;

  • c.

    het bieden van bouwmogelijkheden voor betreffende locatie; 

  • d.

    het beschermen van een gezonde leefomgeving;

  • e.

    het beschermen en verbeteren van de ruimtelijke kwaliteit.

Paragraaf 26.9.2 Regels over gebruik
Artikel 26.48 Verbod agrarische bedrijfsactiviteiten

In afwijking van het bepaalde in artikel 4 (Agrarisch met waarden) in samenhang met de binnen het werkingsgebied geldende bestemming en functieaanduidingen op de verbeelding van het bestemmingsplan “Buitengebied” (Buitengebied Veghel) zoals onderdeel van het tijdelijk deel van dit omgevingsplan zoals bedoeld in artikel 22.1, onder a, van de Omgevingswet, geldt voor de locatie Dorshout 22 Veghel wonen dat (agrarische) bedrijfsactiviteiten als bedoeld in artikel 1.6 in samenhang met artikel 4 van het bestemmingsplan “Buitengebied” (Buitengebied Veghel), zijn verboden.

Artikel 26.49 Agrarische activiteiten

Binnen de locatie Dorshout 22 Veghel agrarisch is het gebruik van gronden voor agrarische doeleinden conform artikel 1.7 in samenhang met artikel 4 van bestemmingsplan “Buitengebied” (Buitengebied Veghel) zoals onderdeel van het tijdelijk deel van dit omgevingsplan zoals bedoeld in artikel 22.1, onder a, van de Omgevingswet, toegestaan.

Artikel 26.50 Woonactiviteiten

In afwijking van het bepaalde in artikel 4 in samenhang met de binnen het werkingsgebied geldende bestemming en functieaanduidingen op de verbeelding van het bestemmingsplan “Buitengebied” (Buitengebied Veghel) zoals onderdeel van het tijdelijk deel van dit omgevingsplan zoals bedoeld in artikel 22.1, onder a, van de Omgevingswet, geldt voor de locatie Dorshout 22 Veghel wonen dat de activiteit 'Wonen' is toegestaan, zoals bedoeld in artikel 7 van het bestemmingsplan “Harmonisatie van diverse regelingen – Laaghangend Fruit” zoals onderdeel van het tijdelijk deel van dit omgevingsplan zoals bedoeld in artikel 22.1, onder a, van de Omgevingswet, met dien verstande dat:

  • a.

    ter plaatse van de locatie Dorshout 22 Veghel bestaande woning het gebruik van bijgebouwen voor statische opslag (stalling) toegestaan is met een maximale omvang van 200 m2;

  • b.

    indien de in de bijlage genoemde ‘te slopen bebouwing’ (circa 477 m2) niet binnen twee jaar na inwerkingtreding van deze afdeling van het omgevingsplan gesloopt is, dit wordt aangemerkt als zijnde strijdig met dit omgevingsplan;

  • c.

    indien de in de bijlage Landschappelijke inpassing Dorshout 22 Veghel genoemde ‘landschappelijke inpassing’ niet binnen één jaar na oplevering van de woning als bedoeld in 26.51 vijfde lid. gerealiseerd is en duurzaam in stand gehouden wordt, dit wordt aangemerkt als zijnde strijdig met dit omgevingsplan.

Paragraaf 26.9.3 Regels over bouwen
Artikel 26.51 Specifieke beoordelingsregels
  • 1.

    Bij het bouwen of veranderen, vernieuwen of in stand houden van een bouwwerk binnen de locatie Dorshout 22 Veghel wordt voldaan aan het bepaalde in paragraaf 26.9.2 (gebruiken van gronden).

  • 2.

    Voor het bouwen van bouwwerken binnen de locatie Dorshout 22 Veghel agrarisch is het bepaalde in artikel 3.2.6 van bestemmingsplan “Buitengebied” (buitengebied Veghel) en  “Paraplubestemmingsplan archeologie" zoals onderdeel van het tijdelijk deel van dit omgevingsplan zoals bedoeld in artikel 22.1, onder a, van de Omgevingswet, van toepassing.

  • 3.

    Voor het bouwen van bouwwerken binnen de locatie Dorshout 22 Veghel wonen is het bepaalde in artikel 26 van bestemmingsplan “Buitengebied” (buitengebied Veghel), artikel 7 van bestemmingsplan “Harmonisatie van diverse regelingen - Laaghangend fruit”, “Parapluplan parkeren” en “Paraplubestemmingsplan archeologie" zoals onderdeel van het tijdelijk deel van dit omgevingsplan zoals bedoeld in artikel 22.1, onder a, van de Omgevingswet, van toepassing, met in achtneming van het bepaalde in artikel 26.1 eenentwintigste lid.

  • 4.

    In aanvulling en afwijking op het bepaalde in het derde lid, wordt de omgevingsvergunning voor de omgevingsplanactiviteit bouwen, bedoeld in artikel 22.26, binnen de locatie Dorshout 22 Veghel bestaande woning alleen verleend als:

    • a.

      er sprake is van maximaal 1 woning; 

    • b.

      er sprake is van maximaal 430 m2 aan bijbehorende bouwwerken, waarbij sprake is van maximaal 360 m2 aan bijbehorende bouwwerken (niet zijnde overkappingen) en maximaal 70 m2 aan overkappingen;

    • c.

      alle bebouwing en bouwwerken en verharding op de inrichtingsschets in de bijlage Te slopen bebouwing Dorshout 22 Veghel opgenomen ‘te slopen bebouwing’ gesloopt is.

  • 5.

    In aanvulling en afwijking op het bepaalde in het derde lid, wordt de omgevingsvergunning voor de omgevingsplanactiviteit bouwen, bedoeld in artikel 22.26, binnen de locatie Dorshout 22 Veghel nieuwe woning alleen verleend als:

    • a.

      er sprake is van maximaal 1 woning met een maximale inhoud van 1.000 m3;

    • b.

      alle bebouwing en bouwwerken en verharding op de inrichtingsschets in de bijlage Te slopen bebouwing Dorshout 22 Veghel opgenomen ‘te slopen bebouwing’ gesloopt is.

  • 6.

    Indien de in de bijlage Landschappelijke inpassing Dorshout 22 Veghel genoemde ‘landschappelijke inpassing’ niet binnen één jaar na oplevering van de woning als bedoeld onder het vijfde lid gerealiseerd is en duurzaam in stand gehouden wordt, wordt dit aangemerkt als zijnde strijdig met dit omgevingsplan.

Artikel 26.52 Vergunningsplicht sloop van karakteristieke bebouwing

Het is verboden ter plaatse van de locatie Dorshout 22 Veghel karakteristieke bebouwing zonder of in afwijking van een omgevingsvergunning, bouwwerken geheel of gedeeltelijk te slopen of te veranderen.

Artikel 26.53 Uitzonderingen vergunningsplicht sloop van karakteristieke bebouwing

Het verbod als bedoeld in artikel 26.52 is niet van toepassing op:

  • a.

    werkzaamheden die al in uitvoering zijn ten tijde van inwerkingtreding van deze afdeling van dit omgevingsplan;

  • b.

    werkzaamheden die het normale onderhoud betreffen;

  • c.

    werkzaamheden die mogen worden uitgevoerd krachtens een al verleende omgevingsvergunning.

Artikel 26.54 Beoordelingscriteria sloop van karakteristieke bebouwing

Het geheel of gedeeltelijk slopen van de in artikel 26.68 bedoelde bouwwerken is slechts toelaatbaar indien:

  • a.

    het delen van een bouwwerk betreft, die op zichzelf niet als karakteristiek vallen aan te merken en door sloop ervan geen aantasting plaatsvindt van de karakteristieke hoofdvorm;

  • b.

    het bouwwerk of delen van het bouwwerk niet te handhaven zijn vanwege de slechte bouwkundige staat;

  • c.

    er vooraf advies is ingewonnen bij de Adviescommissie omgevingskwaliteit Meierijstad.

Afdeling 26.10 Locatie Dorshout 32-33 te Veghel

Paragraaf 26.10.1 Algemeen
Artikel 26.55 Toepassingsbereik

Deze afdeling gaat over het gebruiken van gronden en bouwwerken en het bouwen van bouwwerken gelegen binnen de locatie Dorshout 32 en 33 Veghel.

Artikel 26.56 Oogmerken

De regels in deze afdeling zijn gesteld met het oog op:

  • a.

    het tegengaan van ongewenste (agrarische) activiteiten;

  • b.

    het bieden van gebruiksmogelijkheden voor de betreffende locatie;

  • c.

    het bieden van bouwmogelijkheden voor betreffende locatie; 

  • d.

    het beschermen van een gezonde leefomgeving;

  • e.

    het beschermen en verbeteren van de ruimtelijke kwaliteit.

Paragraaf 26.10.2 Regels over gebruik
Artikel 26.57 Verbod agrarische bedrijfsactiviteiten

In afwijking van het bepaalde in artikel 3 in samenhang met de binnen het werkingsgebied geldende bestemming en functieaanduidingen op de verbeelding van het bestemmingsplan “Buitengebied” (Buitengebied Veghel) zoals onderdeel van het tijdelijk deel van dit omgevingsplan zoals bedoeld in artikel 22.1, onder a, van de Omgevingswet, geldt voor de locatie Dorshout 32 en 33 wonen dat (agrarische) bedrijfsactiviteiten als bedoeld in artikel 1.6  en 3 van het bestemmingsplan “Buitengebied” (Buitengebied Veghel), zijn verboden.

Artikel 26.58 Agrarische activiteiten

Binnen de locatie Dorshout 32 en 33 Veghel agrarisch is het gebruik van gronden voor agrarische doeleinden conform artikel 1.7 in samenhang met artikel 3 van bestemmingsplan “Buitengebied” (Buitengebied Veghel), zoals onderdeel van het tijdelijk deel van dit omgevingsplan zoals bedoeld in artikel 22.1, onder a, van de Omgevingswet, van toepassing.

Artikel 26.59 Groenblauwe waarden

De gronden ter plaatse van de locatie Dorshout 32 en 33 Veghel groenblauwe waarden zijn behalve voor de daar voorkomende bestemming(en), mede bedoeld voor het behoud, herstel of duurzame ontwikkeling van het watersysteem en de ecologische en landschappelijke waarden en kenmerken.

Artikel 26.60 Woonactiviteiten

In afwijking van het bepaalde in artikel 3 in samenhang met de binnen het werkingsgebied geldende bestemming en functieaanduidingen op de verbeelding van het bestemmingsplan “Buitengebied” (Buitengebied Veghel) zoals onderdeel van het tijdelijk deel van dit omgevingsplan zoals bedoeld in artikel 22.1, onder a, van de Omgevingswet, geldt voor de locatie Dorshout 32 en 33 wonen dat de activiteit 'Wonen' is toegestaan, zoals bedoeld in artikel 7 van het bestemmingsplan “Harmonisatie van diverse regelingen – Laaghangend fruit” zoals onderdeel van het tijdelijk deel van dit omgevingsplan zoals bedoeld in artikel 22.1, onder a, van de Omgevingswet, met dien verstande dat:

  • a.

    indien de in de bijlage Te slopen bebouwing Dorshout 32 Veghel genoemde te slopen bebouwing en verharding niet binnen twee jaar na inwerkingtreding van deze afdeling van dit omgevingsplan gesloopt is, dit wordt aangemerkt als zijnde strijdig met dit omgevingsplan;

  • b.

    indien de in de bijlage Landschappelijke inpassing Dorshout 32 en 33 Veghel genoemde ‘landschappelijke inpassing’ niet binnen drie jaar na inwerkingtreding van deze afdeling van dit omgevingsplan gerealiseerd is en duurzaam in stand gehouden wordt, dit wordt aangemerkt als zijnde strijdig met dit omgevingsplan.

 

Paragraaf 26.10.3 Regels over bouwen
Artikel 26.61 Specifieke beoordelingsregels
  • 1.

    Bij het bouwen of veranderen, vernieuwen of in stand houden van een bouwwerk binnen de locatie Dorshout 32 en 33 Veghel wordt voldaan aan het bepaalde in paragraaf 26.10.2 (gebruiken van gronden).

  • 2.

    Voor het bouwen van bouwwerken binnen de locatie Dorshout 32 en 33 Veghel agrarisch is het bepaalde in artikel 3.2.6 van bestemmingsplan “Buitengebied” (Buitengebied Veghel) en  “Paraplubestemmingsplan archeologie" zoals onderdeel van het tijdelijk deel van dit omgevingsplan zoals bedoeld in artikel 22.1, onder a, van de Omgevingswet, van toepassing.

  • 3.

    Voor het bouwen van bouwwerken binnen de locatie Dorshout 32 en 33 wonen is het bepaalde in artikel 26 van bestemmingsplan “Buitengebied” (Buitengebied Veghel), artikel 7 van bestemmingsplan “Harmonisatie van diverse regelingen - Laaghangend fruit”, “Parapluplan parkeren” en “Paraplubestemmingsplan archeologie" zoals onderdeel van het tijdelijk deel van dit omgevingsplan zoals bedoeld in artikel 22.1, onder a, van de Omgevingswet, van toepassing, met in achtneming van het bepaalde in artikel 26.1 eenentwintigste lid.

  • 4.

    Binnen de locatie Dorshout 32 en 33 wonen is het verboden om ter plaatse van de locatie Dorshout 32 en 33 Veghel geluidzone industrie een geluidgevoelig gebouw als bedoeld in artikel 3.21 van het Besluit kwaliteit leefomgeving op te richten, tenzij is aangetoond dat kan worden voldaan aan de bij de geluidzone rond het industrieterrein vastgestelde hogere grenswaarde(n) dan wel de standaardwaarde.

  • 5.

    In aanvulling en afwijking op het bepaalde in het derde lid,  wordt de omgevingsvergunning voor de omgevingsplanactiviteit bouwen, bedoeld in artikel 22.26, binnen de locatie Dorshout 32 Veghel bouwvlak alleen verleend als:

    • a.

      er sprake is van maximaal 1 woning;

    • b.

      er maximaal 226 m2 aan bijbehorende bouwwerken bij de bestaande woning aanwezig is;

    • c.

      alle bebouwing en bouwwerken en verharding op de inrichtingsschets opgenomen in de bijlage Te slopen bebouwing Dorshout 32 Veghel gesloopt is.

  • 6.

    In aanvulling en afwijking op het bepaalde in het derde lid,  wordt de omgevingsvergunning voor de omgevingsplanactiviteit bouwen, bedoeld in artikel 22.26, binnen de locatie Dorshout 33 Veghel bouwvlak alleen verleend als:

    • a.

      er sprake is van maximaal 1 woning;

    • b.

      er maximaal 384 m2 aan bijbehorende bouwwerken bij de bestaande woning aanwezig is.

Afdeling 26.11 Locatie Grootdonkweg 4 te Veghel

Paragraaf 26.11.1 Algemeen
Artikel 26.62 Toepassingsbereik

Deze afdeling gaat over het gebruiken van gronden en bouwwerken en het bouwen van bouwwerken gelegen binnen de locatie Grootdonkweg 4 Veghel.

Artikel 26.63 Oogmerken

De regels in deze afdeling zijn gesteld met het oog op:

  • a.

    het tegengaan van ongewenste (agrarische) activiteiten;

  • b.

    het bieden van gebruiksmogelijkheden voor de betreffende locatie;

  • c.

    het bieden van bouwmogelijkheden voor betreffende locatie; 

  • d.

    het beschermen van een gezonde leefomgeving;

  • e.

    het beschermen en verbeteren van de ruimtelijke kwaliteit.

Paragraaf 26.11.2 Regels over gebruik
Artikel 26.64 Verbod agrarische bedrijfsactiviteiten

In afwijking van het bepaalde in artikel 4 in samenhang met de binnen het werkingsgebied geldende bestemming en functieaanduidingen op de verbeelding van het bestemmingsplan “Buitengebied” (Buitengebied Veghel) zoals onderdeel van het tijdelijk deel van dit omgevingsplan zoals bedoeld in artikel 22.1, onder a, van de Omgevingswet, geldt voor de locatie Grootdonkweg 4 Veghel wonen dat (agrarische) bedrijfsactiviteiten als bedoeld in artikel 1.6  en 4 van het bestemmingsplan “Buitengebied” (buitengebied Veghel), zijn verboden.

Artikel 26.65 Agrarische activiteiten

Binnen de locatie Grootdonkweg 4 Veghel agrarisch is het gebruik van gronden voor agrarische doeleinden conform artikel 1.7 in samenhang met artikel 4 van bestemmingsplan “Buitengebied” (Buitengebied Veghel), zoals onderdeel van het tijdelijk deel van dit omgevingsplan zoals bedoeld in artikel 22.1, onder a, van de Omgevingswet, van toepassing.

Artikel 26.66 Woonactiviteiten

In afwijking van het bepaalde in artikel 4 in samenhang met de binnen het werkingsgebied geldende bestemming en functieaanduidingen op de verbeelding van het bestemmingsplan “Buitengebied” (Buitengebied Veghel) zoals onderdeel van het tijdelijk deel van dit omgevingsplan zoals bedoeld in artikel 22.1, onder a, van de Omgevingswet, geldt voor de locatie Grootdonkweg 4 Veghel wonen dat de activiteit 'Wonen' is toegestaan, zoals bedoeld in artikel 7 van het bestemmingsplan “Harmonisatie van diverse regelingen – Laaghangend fruit” zoals onderdeel van het tijdelijk deel van dit omgevingsplan zoals bedoeld in artikel 22.1, onder a, van de Omgevingswet, met dien verstande dat:

  • a.

    ter plaatse van de locatie Grootdonkweg 4 Veghel bijgebouw het hobbymatig houden van dieren en statische opslag (stalling) toegestaan is;

  • b.

    indien de in de bijlage Landschappelijke inpassing Grootdonkweg 4 Veghel genoemde ‘te slopen bebouwing’ (circa 207 m2 bebouwing en circa 400 m2 verharding) niet binnen één jaar na inwerkingtreding van deze afdeling van dit omgevingsplan gesloopt is, dit wordt aangemerkt als zijnde strijdig met dit omgevingsplan;

  • c.

    indien de in de bijlage Landschappelijke inpassing Grootdonkweg 4 Veghel genoemde ‘landschappelijke inpassing’ niet binnen één jaar na inwerkingtreding van deze afdeling van dit omgevingsplan gerealiseerd is en duurzaam in stand gehouden wordt, dit wordt aangemerkt als zijnde strijdig met dit omgevingsplan.

Paragraaf 26.11.3 Regels over bouwen
Artikel 26.67 Specifieke beoordelingsregels
  • 1.

    Bij het bouwen of veranderen, vernieuwen of in stand houden van een bouwwerk binnen de locatie Grootdonkweg 4 Veghel wordt voldaan aan het bepaalde in paragraaf 26.11.2 (gebruiken van gronden).

  • 2.

    Voor het bouwen van bouwwerken binnen de locatie Grootdonkweg 4 Veghel agrarisch is het bepaalde in artikel 3.2.6 van bestemmingsplan “Buitengebied” (Buitengebied Veghel) en  “Paraplubestemmingsplan archeologie" zoals onderdeel van het tijdelijk deel van dit omgevingsplan zoals bedoeld in artikel 22.1, onder a, van de Omgevingswet, van toepassing.

  • 3.

    Voor het bouwen van bouwwerken binnen de locatie Grootdonkweg 4 Veghel wonen is het bepaalde in artikel 7 van bestemmingsplan “Harmonisatie van diverse regelingen - Laaghangend fruit”, “Parapluplan parkeren” en “Paraplubestemmingsplan archeologie" zoals onderdeel van het tijdelijk deel van dit omgevingsplan zoals bedoeld in artikel 22.1, onder a, van de Omgevingswet, van toepassing, met in achtneming van het bepaalde in artikel 26.1 eenentwintigste lid.

  • 4.

    In aanvulling en afwijking op het bepaalde in het derde lid,  wordt de omgevingsvergunning voor de omgevingsplanactiviteit bouwen, bedoeld in artikel 22.26, binnen de locatie Grootdonkweg 4 Veghel wonen alleen verleend als:

Artikel 26.68 Vergunningsplicht sloop van karakteristieke bebouwing

Het is verboden ter plaatse van de locatie Grootdonkweg 4 Veghel karakteristieke bebouwing zonder of in afwijking van een omgevingsvergunning, bouwwerken geheel of gedeeltelijk te slopen of te veranderen.

Artikel 26.69 Uitzonderingen vergunningsplicht sloop van karakteristieke bebouwing

Het verbod als bedoeld in artikel 26.68 is niet van toepassing op:

  • a.

    werkzaamheden die al in uitvoering zijn ten tijde van inwerkingtreding van deze afdeling van dit omgevingsplan;

  • b.

    werkzaamheden die het normale onderhoud betreffen;

  • c.

    werkzaamheden die mogen worden uitgevoerd krachtens een al verleende omgevingsvergunning.

Artikel 26.70 Beoordelingscriteria sloop van karakteristieke bebouwing

Het geheel of gedeeltelijk slopen van de in artikel 26.68 bedoelde bouwwerken is slechts toelaatbaar indien:

  • a.

    het delen van een bouwwerk betreft, die op zichzelf niet als karakteristiek vallen aan te merken en door sloop ervan geen aantasting plaatsvindt van de karakteristieke hoofdvorm;

  • b.

    het bouwwerk of delen van het bouwwerk niet te handhaven zijn vanwege de slechte bouwkundige staat;

  • c.

    er vooraf advies is ingewonnen bij de Adviescommissie omgevingskwaliteit Meierijstad.

Afdeling 26.12 Locatie Grootdonkweg 6 te Veghel

Paragraaf 26.12.1 Algemeen
Artikel 26.71 Toepassingsbereik

Deze afdeling gaat over het gebruiken van gronden en bouwwerken en het bouwen van bouwwerken gelegen binnen de locatie Grootdonkweg 6 Veghel.

Artikel 26.72 Oogmerken

De regels in deze afdeling zijn gesteld met het oog op:

  • a.

    het tegengaan van ongewenste (agrarische) activiteiten;

  • b.

    het bieden van gebruiksmogelijkheden voor de betreffende locatie;

  • c.

    het bieden van bouwmogelijkheden voor betreffende locatie; 

  • d.

    het beschermen van een gezonde leefomgeving;

  • e.

    het beschermen en verbeteren van de ruimtelijke kwaliteit.

Paragraaf 26.12.2 Regels over gebruik
Artikel 26.73 Verbod agrarische bedrijfsactiviteiten

In afwijking van het bepaalde in artikel 4 in samenhang met de binnen het werkingsgebied geldende bestemming en functieaanduidingen op de verbeelding van het bestemmingsplan “Buitengebied” (Buitengebied Veghel) zoals onderdeel van het tijdelijk deel van dit omgevingsplan zoals bedoeld in artikel 22.1, onder a, van de Omgevingswet, geldt voor de locatie Grootdonkweg 6 Veghel wonen dat (agrarische) bedrijfsactiviteiten als bedoeld in artikel 1.6  en 4 van het bestemmingsplan “Buitengebied” (Buitengebied Veghel), zijn verboden.

Artikel 26.74 Agrarische activiteiten

Binnen de locatie Grootdonkweg 6 Veghel agrarisch is het gebruik van gronden voor agrarische doeleinden conform artikel 1.7 in samenhang met artikel 4 van bestemmingsplan “Buitengebied” (Buitengebied Veghel), zoals onderdeel van het tijdelijk deel van dit omgevingsplan zoals bedoeld in artikel 22.1, onder a, van de Omgevingswet, van toepassing.

Artikel 26.75 Woonactiviteiten

In afwijking van het bepaalde in artikel 4 in samenhang met de binnen het werkingsgebied geldende bestemming en functieaanduidingen op de verbeelding van het bestemmingsplan “Buitengebied” (Buitengebied Veghel) zoals onderdeel van het tijdelijk deel van dit omgevingsplan zoals bedoeld in artikel 22.1, onder a, van de Omgevingswet, geldt voor de locatie Grootdonkweg 6 Veghel wonen dat de activiteit 'Wonen' is toegestaan, zoals bedoeld in artikel 7 van het bestemmingsplan “Harmonisatie van diverse regelingen – Laaghangend fruit” zoals onderdeel van het tijdelijk deel van dit omgevingsplan zoals bedoeld in artikel 22.1, onder a, van de Omgevingswet, met dien verstande dat:

  • a.

    ter plaatse van de locatie Grootdonkweg 6 Veghel B&B het toegestaan is om (een gedeelte van) de bebouwing te gebruiken voor het uitbaten van een 'Bed & breakfast', zoals bedoeld in artikel 7.7 van het bestemmingsplan “Harmonisatie van diverse regelingen – Laaghangend fruit”;

  • b.

    indien de op de locatie Grootdonkweg 6 Veghel te slopen bebouwing aanwezige bebouwing (circa 360 m2) niet binnen één jaar na inwerkingtreding van deze afdeling van dit omgevingsplan gesloopt is, dit wordt aangemerkt als zijnde strijdig met dit omgevingsplan;

  • c.

    indien de in de bijlage Landschappelijke inpassing Grootdonkweg 6 Veghel genoemde ‘landschappelijke inpassing’ niet binnen één jaar na inwerkingtreding van deze afdeling van dit omgevingsplan gerealiseerd is en duurzaam in stand gehouden wordt, dit wordt aangemerkt als zijnde strijdig met dit omgevingsplan.

Paragraaf 26.12.3 Regels over bouwen
Artikel 26.76 Specifieke beoordelingsregels
  • 1.

    Bij het bouwen of veranderen, vernieuwen of in stand houden van een bouwwerk binnen de locatie Grootdonkweg 6 Veghel wordt voldaan aan het bepaalde in paragraaf 26.12.2 (gebruiken van gronden).

  • 2.

    Voor het bouwen van bouwwerken binnen de locatie Grootdonkweg 6 Veghel agrarisch is het bepaalde in artikel 3.2.6 van bestemmingsplan “Buitengebied” (Buitengebied Veghel) en  “Paraplubestemmingsplan archeologie" zoals onderdeel van het tijdelijk deel van dit omgevingsplan zoals bedoeld in artikel 22.1, onder a, van de Omgevingswet, van toepassing.

  • 3.

    Voor het bouwen van bouwwerken binnen de locatie Grootdonkweg 6 Veghel wonen is het bepaalde in artikel 7 van bestemmingsplan “Harmonisatie van diverse regelingen - Laaghangend fruit”, “Parapluplan parkeren” en “Paraplubestemmingsplan archeologie" zoals onderdeel van het tijdelijk deel van dit omgevingsplan zoals bedoeld in artikel 22.1, onder a, van de Omgevingswet, van toepassing, met in achtneming van het bepaalde in artikel 26.1 eenentwintigste lid.

  • 4.

    In aanvulling en afwijking op het bepaalde in het derde lid,  wordt de omgevingsvergunning voor de omgevingsplanactiviteit bouwen, bedoeld in artikel 22.26, binnen de locatie Grootdonkweg 6 Veghel wonen alleen verleend als:

Artikel 26.77 Vergunningsplicht sloop van karakteristieke bebouwing

Het is verboden ter plaatse van de locatie Grootdonkweg 6 Veghel karakteristieke bebouwing zonder of in afwijking van een omgevingsvergunning, bouwwerken geheel of gedeeltelijk te slopen of te veranderen.

Artikel 26.78 Uitzonderingen vergunningsplicht sloop van karakteristieke bebouwing

Het verbod als bedoeld in artikel 26.77 is niet van toepassing op:

  • a.

    werkzaamheden die al in uitvoering zijn ten tijde van inwerkingtreding van deze afdeling van dit omgevingsplan;

  • b.

    werkzaamheden die het normale onderhoud betreffen;

  • c.

    werkzaamheden die mogen worden uitgevoerd krachtens een al verleende omgevingsvergunning.

Artikel 26.79 Beoordelingscriteria sloop van karakteristieke bebouwing

Het geheel of gedeeltelijk slopen van de in artikel 26.77 bedoelde bouwwerken is slechts toelaatbaar indien:

  • a.

    het delen van een bouwwerk betreft, die op zichzelf niet als karakteristiek vallen aan te merken en door sloop ervan geen aantasting plaatsvindt van de karakteristieke hoofdvorm;

  • b.

    het bouwwerk of delen van het bouwwerk niet te handhaven zijn vanwege de slechte bouwkundige staat;

  • c.

    er vooraf advies is ingewonnen bij de Adviescommissie omgevingskwaliteit Meierijstad.

Afdeling 26.13 Locatie Nieuwe Veldenweg 8 te Veghel

Paragraaf 26.13.1 Algemeen
Artikel 26.80 Toepassingsbereik

Deze afdeling gaat over het gebruiken van gronden en bouwwerken en het bouwen van bouwwerken gelegen binnen de locatie Nieuwe Veldenweg 8 Veghel

Artikel 26.81 Oogmerken

De regels in deze afdeling zijn gesteld met het oog op: 

  • a.

    het tegengaan van ongewenste (agrarische) activiteiten; 

  • b.

    het bieden van gebruiksmogelijkheden voor de betreffende locatie; 

  • c.

    het bieden van bouwmogelijkheden voor betreffende locatie;  

  • d.

    het beschermen van een gezonde leefomgeving; 

  • e.

    het beschermen en verbeteren van de ruimtelijke kwaliteit.

Paragraaf 26.13.2 Regels over gebruik
Artikel 26.82 Verbod agrarische bedrijfsactiviteiten

In afwijking van het bepaalde in artikel 3 in samenhang met de binnen het werkingsgebied geldende bestemming en functieaanduidingen op de verbeelding van het bestemmingsplan “Buitengebied” (Buitengebied Veghel), zoals onderdeel van het tijdelijk deel van dit omgevingsplan zoals bedoeld in artikel 22.1, onder a, van de Omgevingswet, geldt voor de locatie locatie Nieuwe Veldenweg 8 Veghel wonen dat agrarische bedrijfsactiviteiten als bedoeld in artikel 1.10 in samenhang met artikel 3 van het bestemmingsplan “Buitengebied” (Buitengebied Veghel), zijn verboden. 

Artikel 26.83 Agrarische activiteiten

Binnen de locatie Nieuwe Veldenweg 8 Veghel agrarisch is het gebruik van gronden voor agrarische doeleinden conform artikel artikel 1.7 in samenhang met artikel 4 van bestemmingsplan “Buitengebied” (Buitengebied Veghel), zoals onderdeel van het tijdelijk deel van dit omgevingsplan zoals bedoeld in artikel 22.1, onder a, van de Omgevingswet, van toepassing, met dien verstande dat veeteelt niet toegestaan is. 

Artikel 26.84 Woonactiviteiten

In afwijking van het bepaalde in artikel 3 in samenhang met de binnen het werkingsgebied geldende bestemming en functieaanduidingen op de verbeelding van het bestemmingsplan “Buitengebied” (Buitengebied Veghel) zoals onderdeel van het tijdelijk deel van dit omgevingsplan zoals bedoeld in artikel 22.1, onder a, van de Omgevingswet, geldt voor de locatie Nieuwe Veldenweg 8 Veghel wonen dat de activiteit 'Wonen' is toegestaan, zoals bedoeld in artikel 7 van het bestemmingsplan “Harmonisatie van diverse regelingen – Laaghangend fruit” zoals onderdeel van het tijdelijk deel van dit omgevingsplan zoals bedoeld in artikel 22.1, onder a, van de Omgevingswet, met dien verstande dat:

  • a.

    indien de in de bijlage Te slopen bebouwing Nieuwe Veldenweg 8 Veghel genoemde ‘te slopen bebouwing’ (circa 1.484 m2 bedrijfsbebouwing) niet binnen twee jaar na inwerkingtreding van deze afdeling van dit omgevingsplan gesloopt is, dit wordt aangemerkt als zijnde strijdig met dit omgevingsplan;

  • b.

    indien de in de bijlage Landschappelijke inpassing Nieuwe Veldenweg 8 Veghel genoemde ‘landschappelijke inpassing’ niet binnen twee jaar na inwerkingtreding van deze afdeling van dit omgevingsplan gerealiseerd is en duurzaam in stand gehouden wordt, dit wordt aangemerkt als zijnde strijdig met dit omgevingsplan.

Paragraaf 26.13.3 Regels over bouwen
Artikel 26.85 Specifieke beoordelingsregels
  • 1.

    Bij het bouwen of veranderen, vernieuwen of in stand houden van een bouwwerk binnen de locatie Nieuwe Veldenweg 8 Veghel wordt voldaan aan het bepaalde in paragraaf 26.13.2 (gebruiken van gronden).

  • 2.

    Voor het bouwen van bouwwerken binnen de locatie Nieuwe Veldenweg 8 Veghel agrarisch is het bepaalde in artikel 3.2.6 van bestemmingsplan “Buitengebied” (Buitengebied Veghel) en  “Paraplubestemmingsplan archeologie" zoals onderdeel van het tijdelijk deel van dit omgevingsplan zoals bedoeld in artikel 22.1, onder a, van de Omgevingswet, van toepassing.

  • 3.

    Voor het bouwen van bouwwerken binnen de locatie Nieuwe Veldenweg 8 Veghel wonen is het bepaalde in artikel 7 van bestemmingsplan “Harmonisatie van diverse regelingen - Laaghangend fruit”, “Parapluplan parkeren” en “Paraplubestemmingsplan archeologie" zoals onderdeel van het tijdelijk deel van dit omgevingsplan zoals bedoeld in artikel 22.1, onder a, van de Omgevingswet, van toepassing, met in achtneming van het bepaalde in artikel 26.1 eenentwintigste lid.

  • 4.

    In aanvulling en afwijking op het bepaalde in het derde lid,  wordt de omgevingsvergunning voor de omgevingsplanactiviteit bouwen, bedoeld in artikel 22.26, binnen de locatie Nieuwe Veldenweg 8 Veghel wonen alleen verleend als wordt voldaan aan de volgende randvoorwaarden:

Artikel 26.86 Maatwerkvoorschrift

Aan de omgevingsvergunning, bedoeld in artikel 26.85 vierde lid, kunnen voorschriften worden verbonden die nodig zijn met het oog op de beheersing van milieu- en gezondheidsrisico's vanwege bodemverontreiniging.

Artikel 26.87 Vergunningsplicht sloop van karakteristieke bebouwing

Het is verboden ter plaatse van de locatie Nieuwe Veldenweg 8 Veghel karakteristieke bebouwing zonder of in afwijking van een omgevingsvergunning, bouwwerken geheel of gedeeltelijk te slopen of te veranderen.

Artikel 26.88 Uitzonderingen vergunningsplicht sloop van karakteristieke bebouwing

Het verbod als bedoeld in artikel 26.87 is niet van toepassing op:

  • a.

    werkzaamheden die al in uitvoering zijn ten tijde van inwerkingtreding van deze afdeling van dit omgevingsplan;

  • b.

    werkzaamheden die het normale onderhoud betreffen;

  • c.

    werkzaamheden die mogen worden uitgevoerd krachtens een al verleende omgevingsvergunning.

Artikel 26.89 Beoordelingscriteria sloop van karakteristieke bebouwing

Het geheel of gedeeltelijk slopen van de in artikel 26.87 bedoelde bouwwerken is slechts toelaatbaar indien:

  • a.

    het delen van een bouwwerk betreft, die op zichzelf niet als karakteristiek vallen aan te merken en door sloop ervan geen aantasting plaatsvindt van de karakteristieke hoofdvorm;

  • b.

    het bouwwerk of delen van het bouwwerk niet te handhaven zijn vanwege de slechte bouwkundige staat;

  • c.

    er vooraf advies is ingewonnen bij de Adviescommissie omgevingskwaliteit Meierijstad.

Afdeling 26.14 Gebiedsontwikkelingen transformatie naar woongebieden

Paragraaf 26.14.1 Algemeen
Artikel 26.90 Toepassingsbereik
Artikel 26.91 Oogmerken

Voor activiteiten met betrekking tot de in artikel 26.90 genoemde (ontwikkelings)gebieden, gelden de volgende doelen:

  • a.

    het bieden van gebruiksmogelijkheden voor betreffende ontwikkelingsgebieden;

  • b.

    het bieden van bouwmogelijkheden voor betreffende ontwikkelingsgebieden;

  • c.

    het bieden van voldoende kwalitatieve woonruimte en voldoen aan het gemeentelijke woningbouwprogramma;

  • d.

    het beschermen van een gezonde leefomgeving;

  • e.

    het beschermen van natuurwaarden;

  • f.

    het beschermen en verbeteren van de ruimtelijke kwaliteit; 

  • g.

    het bevorderen van de toegankelijkheid van de openbare ruimte;

  • h.

    het realiseren en instandhouden van groenvoorzieningen;

  • i.

    het voorkomen van verkeershinder en overlast door parkeren.

Paragraaf 26.14.2 Regels over gebruik
Artikel 26.92 Woonactiviteiten
Artikel 26.93 Verbod Agrarische bedrijfsactiviteiten

In afwijking van het bepaalde in artikel 4 in samenhang met de binnen het werkingsgebied geldende bestemming en functieaanduidingen op de verbeelding van het bestemmingsplan “Landelijk gebied” (Buitengebied Schijndel) zoals onderdeel van het tijdelijk deel van dit omgevingsplan zoals bedoeld in artikel 22.1, onder a, van de Omgevingswet, geldt voor de locatie Putsteeg Schijndel agrarisch dat (agrarische) bedrijfsactiviteiten in de vorm van een veehouderij, intensieve veehouderij of grondgebonden veehouderij als bedoeld in artikel 1.76 en 4 van het bestemmingsplan “Landelijk gebied” (Buitengebied Schijndel), zijn verboden. 

Artikel 26.94 Activiteiten met betrekking tot groen

Binnen de locaties Putsteeg Schijndel groen en Schootsestraat Schijndel groen,  Het Hooghekke Schijndel groen,  Sportveld Boskant groen en De Locht Olland groen zijn activiteiten ten behoeve van groen toegestaan, waaronder wordt verstaan: 

  • a.

    groenvoorzieningen;  

  • b.

    gazons, bermen en beplanting;  

  • c.

    fiets- en voetpaden;  

  • d.

    buitenspeelactiviteiten;  

  • e.

    water en waterhuishoudkundige voorzieningen;  

  • f.

    nutsvoorzieningen;  

  • g.

    hondenuitlaatvoorzieningen.  

Artikel 26.95 Activiteiten met betrekking tot natuur en natuurontwikkeling

Binnen de locatie Het Hooghekke Schijndel natuur zijn activiteiten ten behoeve van natuur en natuurontwikkeling toegestaan, waaronder wordt verstaan: 

  • a.

    behoud, herstel en ontwikkeling van landschappelijke en natuurwaarden;

  • b.

    waaronder (natte) natuurparels; 

  • c.

    behoud, herstel en ontwikkeling van de biotopen van flora en fauna; 

  • d.

    het als zodanig instandhouden van de niet-beboste gedeelten; 

  • e.

    behoud en bescherming van aardkundige waarden; 

  • f.

    behoud, herstel en ontwikkeling van cultuurhistorische en landschappelijke waarden; 

  • g.

    water en waterhuishoudkundige doeleinden; 

  • h.

    extensief recreatief medegebruik; 

  • i.

    extensief agrarisch grondgebruik; 

  • j.

    behoud van het waterbergend vermogen van de gronden; 

  • k.

    een langzame verkeersverbinding uitsluitend ter plaatse van de locatie Het Hooghekke Schijndel langzaam verkeer

Artikel 26.96 Activiteiten met betrekking tot Verkeer

Binnen de locatie Het Hooghekke Schijndel verkeerHet Hooghekke Schijndel parkerenDe Locht Olland verkeer en Sportveld Boskant verkeerPutsteeg Schijndel ontsluitingSchootsestraat Schijndel ontsluiting zijn activiteiten ten behoeve van verkeer, verblijf en ontsluiting toegestaan, waaronder wordt verstaan: 

  • a.

    wegen en straten met hoofdzakelijk een verkeers- en verblijfsfunctie; 

  • b.

    voet- en fietspaden; 

  • c.

    parkeervoorzieningen;

  • d.

    in- en uitritten;

  • e.

    groenvoorzieningen, waaronder bermen en beplanting; 

  • f.

    straatmeubilair; 

  • g.

    speelvoorzieningen met uitzondering van een jongerenontmoetingsplaats; 

  • h.

    voorzieningen van algemeen nut; 

  • i.

    water en waterhuishoudkundige voorzieningen. 

Artikel 26.97 Voorwaardelijke verplichtingen
Paragraaf 26.14.3 Regels over bouwen
Subparagraaf 26.14.3.1 Algemene regels over bouwen

Artikel 26.98 Algemene verboden

Het is verboden gebouwen te bouwen ten behoeve van een activiteit als bedoeld in artikel 26.94 (groenvoorzieningen) of artikel 26.95 (natuurontwikkeling) of artikel 26.96 (verkeer) of parkeren binnen de locaties Putsteeg Schijndel groenSchootsestraat Schijndel groenSportveld Boskant groenDe Locht Olland groenHet Hooghekke Schijndel groenHet Hooghekke Schijndel natuur en Het Hooghekke Schijndel verkeerHet Hooghekke Schijndel parkerenPutsteeg Schijndel ontsluiting en Schootsestraat Schijndel ontsluitingPutsteeg Schijndel parkeren en Schootsestraat Schijndel parkeren.

Artikel 26.99 Algemene aanvraagvereisten omgevingsvergunning

Bij de aanvraag omgevingsvergunning voor het bouwen van een bouwwerk, als bedoeld in deze afdeling, worden in ieder geval de volgende gegevens en bescheiden verstrekt:  

  • a.

    een opgave van de bouwkosten;  

  • b.

    het beoogde en het huidige gebruik van het bouwwerk en de bijbehorende gronden waarop de aanvraag betrekking heeft;  

  • c.

    een situatietekening van de bestaande situering van de bebouwing en een situatietekening van de nieuwe situering van de bebouwing met daarop:  

    • 1.

      de afmetingen van het perceel en het bebouwd oppervlak;  

    • 2.

      de situering van het bouwwerk ten opzichte van de perceelsgrenzen en de wegzijde;  

    • 3.

      de wijze waarop de locatie wordt ontsloten;  

    • 4.

      de aangrenzende locaties en de daarop voorkomende bebouwing;  

    • 5.

      het beoogd gebruik van de gronden behorende bij het voorgenomen bouwwerk; 

  • d.

    de hoogte van het bouwwerk ten opzichte van het straatpeil en het aantal bouwlagen;  

  • e.

    overige gegevens en bescheiden die samenhangen met een eventueel benodigde toetsing aan dit omgevingsplan.

Artikel 26.100 Aanvullende aanvraagvereisten omgevingsvergunning voor gebouwen

Bij een aanvraag omgevingsvergunning voor het bouwen van een gebouw, worden, in aanvulling op het bepaalde in artikel 26.99 (algemene aanvraagvereisten omgevingsvergunning), de volgende gegevens en bescheiden verstrekt: 

  • a.

    een opgave van de bruto inhoud in m3 en de bruto-vloeroppervlakte in m2 van het deel van het bouwwerk waarop de aanvraag betrekking heeft;  

  • b.

    een opgave van het aantal parkeervoorzieningen op het eigen terrein inclusief maatvoeringen;  

  • c.

    bij de bouw van een woning, een opgave van de woningbouwcategorie bedoeld in artikel 26.103.

Subparagraaf 26.14.3.2 Algemene beoordelingsregels

Artikel 26.101 Algemene beoordelingsregels

De omgevingsvergunning voor de omgevingsplanactiviteit bouwen, bedoeld in artikel 22.26, wordt alleen verleend als:  

  • a.

    aan alle op die bouwactiviteit van toepassing zijnde regels uit deze afdeling van dit omgevingsplan wordt voldaan;  

  • b.

    aan alle op die bouwactiviteit van toepassing zijnde regels uit zoals bepaald in het bestemmingsplan “Harmonisatie van diverse regelingen - Laaghangend fruit”, “Parapluplan parkeren” en “Paraplubestemmingsplan archeologie" zoals onderdeel van het tijdelijk deel van dit omgevingsplan zoals bedoeld in artikel 22.1, onder a, van de Omgevingswet, wordt voldaan, met inachtneming van het bepaalde in artikel 26.1 lid 13 tot en met 17; 

  • c.

    of sprake is van onaanvaardbare afbreuk van de visuele kwaliteit van de fysieke leefomgeving als bedoeld in artikel 22.29, wordt beoordeeld volgens de criteria van de beleidsregels Beeldkwaliteitsplan Putsteeg ongBeeldkwaliteitsplan Schootsestraat ong en Beeldkwaliteitsplan Het Hooghekke ong voor zover van toepassing op de bouwactiviteit, als bedoeld in artikel 4.19 van de Omgevingswet.

Artikel 26.102 Maximum aantal woningen

  • 1.

    Het maximaal aantal woningen is het aantal als de op kaart weergegeven met de omgevingsnorm maximum aantal woningen

  • 2.

    Het toevoegen van meer woningen dan zoals bedoeld in lid 1 is zonder omgevingsvergunning niet toegestaan.

  • 3.

    De omgevingsvergunning als bedoeld in het tweede lid wordt alleen verleend als: 

Artikel 26.103 Beoordelingsregels omgevingsvergunning bouw van een woning, aanwijzing woningbouwcategorieën

  • 1.

    Een omgevingsvergunning voor de bouw van een woning binnen de locatie woongebied Putsteeg Schijndel wordt alleen verleend als met het maximaal te realiseren aantal woningen, zoals opgenomen met de omgevingsnorm maximum aantal woningen wordt voldaan aan de volgende categorisering: 

    • a.

      ten minste 31% (afgerond) van het aantal woningen is een sociale huurwoning;  

    • b.

      ten minste 13% (afgerond) van het aantal woningen is een sociale koopwoning;  

    • c.

      ten minste 32% (afgerond) van het aantal woningen, is een middeldure huurwoning dan wel sociale middeldure koopwoning. 

  • 2.

    Een omgevingsvergunning voor de bouw van een woning binnen de locatie woongebied Schootsestraat Schijndel wordt alleen verleend als met het maximaal te realiseren aantal woningen, zoals opgenomen met de omgevingsnorm maximum aantal woningen wordt voldaan aan de volgende categorisering: 

    • a.

      ten minste 30% (afgerond) van het aantal woningen is een sociale huurwoning;  

    • b.

      ten minste 14% (afgerond) van het aantal woningen is een sociale koopwoning; 

    • c.

      ten minste 33% (afgerond) van het aantal woningen, is een middeldure huurwoning dan wel sociale middeldure koopwoning. 

  • 3.

    Een omgevingsvergunning voor de bouw van een woning binnen de locatie woongebied Het Hooghekke Schijndel wordt alleen verleend als met het maximaal te realiseren aantal woningen, zoals opgenomen met de omgevingsnorm maximum aantal woningen wordt voldaan aan de volgende categorisering: 

    • a.

      ten minste 30% (afgerond) van het aantal woningen is een sociale huurwoning;  

    • b.

      ten minste 9% (afgerond) van het aantal woningen is een sociale koopwoning;  

    • c.

      ten minste 30% (afgerond) van het aantal woningen, is een middeldure huurwoning dan wel sociale middeldure koopwoning. 

  • 4.

    Een omgevingsvergunning voor de bouw van een woning binnen de locatie woongebied Sportveld Boskant wordt alleen verleend als met het maximaal te realiseren aantal woningen, zoals opgenomen met de omgevingsnorm maximum aantal woningen wordt voldaan aan de volgende categorisering: 

    • a.

      ten minste 55% (afgerond) van het aantal woningen is een sociale huurwoning;  

    • b.

      ten minste 31% (afgerond) van het aantal woningen is een sociale middeldure koopwoning.

  • 5.

    Een omgevingsvergunning voor de bouw van een woning binnen de locatie woongebied De Locht Olland wordt alleen verleend als met het maximaal te realiseren aantal woningen, zoals opgenomen met de omgevingsnorm maximum aantal woningen wordt voldaan aan de volgende categorisering: 

    • a.

      ten minste 42% (afgerond) van het aantal woningen is een sociale huurwoning;  

    • b.

      ten minste 38% (afgerond) van het aantal woningen is een sociale middeldure koopwoning.

  • 6.

    Het is verboden zonder omgevingsvergunning woningen te realiseren ten behoeve van het bouwen van een lager percentage van het aantal als sociale huur/koopwoning en/of middeldure huur/koopwoning zoals opgenomen in dit artikel. 

  • 7.

    De omgevingsvergunning bedoeld in lid 6 wordt alleen verleend als voldaan wordt aan de volgende voorwaarden: 

    • a.

      er is sprake van een doelmatige verkaveling in relatie tot het beoogde totale kwalitatieve woningbouwprogramma;  

    • b.

      er is sprake van een maatschappelijke behoefte; en 

    • c.

      met dien verstande dat er een onderbouwing wordt gegeven van het beoogde totale kwalitatieve woningbouwprogramma binnen de locatie. 

Subparagraaf 26.14.3.3 Specifieke beoordelingsregels hoofdgebouwen in de vorm van woningen bouwen

Artikel 26.104 Woningtypologie

Voor het bouwen van hoofdgebouwen in de vorm van woningen wordt gebouwd in overeenstemming met het op de kaart aangegeven woningtype: 

  • a.

    ter plaatse van Vrijstaand is een vrijstaande woning toegestaan;

  • b.

    ter plaatse van Twee-aan-een is een twee-aaneengebouwde woning toegestaan;  

  • c.

    ter plaatse van Aaneengebouwd  - aaneengebouwd is een aaneengebouwde woning toegestaan;

  • d.

    ter plaatse van Gestapeld zijn gestapelde woningen toegestaan;

  • e.

    ter plaatse van Aaneengebouwd - rug-aan-rug is een rug-aan-rugwoning toegestaan.

Artikel 26.105 Locaties waar woningen zijn toegestaan

  • 1.

    Hoofdgebouwen in de vorm van woningen zijn uitsluitend toegestaan binnen Putsteeg Schijndel bouwvlakSchootsestraat Schijndel bouwvlakHet Hooghekke Schijndel bouwvlakDe Locht Olland bouwvlak en Sportveld Boskant bouwvlak

  • 2.

    Voor het bouwen van een hoofdgebouw in de vorm van woningen binnen de locaties  Putsteeg Schijndel bouwvlakSchootsestraat Schijndel bouwvlak, geldt het volgende: 

    Maatvoeringseisen hoofdgebouwen Putsteeg en Schootsestraat

    Maatvoeringseisen hoofdgebouwen

    Vrijstaand

    Twee aaneengebouwd  

    Aaneengebouwd 

    Gestapeld 

    Rug aan rug

    Minimale afstand tot voorste bouwperceelsgrens  

    3 m

    3 m

    3 m, met dien verstande dat ter plaatse van de locatie Putsteeg Schijndel afstand voorste bouwperceelsgrens geen minimale afstand van toepassing is

    3 m

    3 m

    Maximale afstand tot voorste bouwperceelsgrens  

    8 m

    8 m

    6 m

    Niet van toepassing

    Niet van toepassing

    Minimale afstand tot zijdelingse perceelsgrens

    3 m aan beide zijden, met dien verstande dat ter plaatse van de locatie ‘Schootsestraat Schijndel afstand zijdelingse perceelgrens’ de afstand naar de  locatie ‘Groen’ gekeerde zijde nihil mag zijn

    3 m aan één zijde, met dien verstande dat de afstand tot de zijdelingse perceelsgrens grenzend aan openbaar gebied minimaal 1 m bedraagt 

    Niet van toepassing, met dien verstande dat de afstand tot de zijdelingse perceelsgrens grenzend aan openbaar gebied minimaal 1m bedraagt 

    Niet van toepassing, met dien verstande dat de afstand tot de zijdelingse perceelsgrens grenzend aan openbaar gebied minimaal 1 m bedraagt 

    Niet van toepassing, met dien verstande dat de afstand tot de zijdelingse perceelsgrens grenzend aan openbaar gebied minimaal 1 m bedraagt

    Minimale afstand tot overige perceelsgrenzen

    8 m

    8 m

    5 m

    3 m

    Niet van toepassing

    Maximale bouwdiepte  

    15 m

    12 m

    12 m

    35 m

    20 m

    Dakhelling

    30 – 60 graden 

    30 – 60 graden 

    30 – 60 graden 

    15 – 60  graden 

    15 – 60  graden 

    Hoofdgebouwen niet toegestaan

    Binnen de locatie Putsteeg Schijndel hoofdgebouw niet toegestaan

  • 3.

    Voor het bouwen van een hoofdgebouw in de vorm van woningen binnen de locatie Het Hooghekke Schijndel bouwvlak geldt het volgende: 

    Maatvoeringseisen hoofdgebouwen Het Hooghekke

    Maatvoeringseisen hoofdgebouwen

    Vrijstaand

    Twee aaneengebouwd

    Aaneengebouwd 

    Gestapeld 

    Minimale afstand tot voorste bouwperceelsgrens 

    1 m, met dien verstande dat de afstand tot de voorste bouwperceelsgrens voor zover het bouwperceel grenst aan de locatie Het Hooghekke Schijndel verkeer minimaal 2,5 m bedraagt en uitgezonderd bestaande gebouwen op kortere afstand tot de voorste bouwperceelsgrens waarvoor de bestaande afstand als minimum geldt

    1 m, met dien verstande dat de afstand tot de voorste bouwperceelsgrens voor zover het bouwperceel grenst aan de locatie Het Hooghekke Schijndel verkeer minimaal 2,5 m bedraagt en uitgezonderd bestaande gebouwen op kortere afstand tot de voorste bouwperceelsgrens waarvoor de bestaande afstand als minimum geldt

    1 m, met dien verstande dat de afstand tot de voorste bouwperceelsgrens voor zover het bouwperceel grenst aan het de locatie Het Hooghekke Schijndel verkeer minimaal 2,5 m bedraagt en uitgezonderd bestaande gebouwen op kortere afstand tot de voorste bouwperceelsgrens waarvoor de bestaande afstand als minimum geldt

    Niet van toepassing 

    Maximale afstand tot voorste bouwperceelsgrens  

    8 m

    8 m

    6 m

    Niet van toepassing

    Minimale afstand tot zijdelingse perceelsgrens 

    3 m aan beide zijden

    3 m aan één zijde, met dien verstande dat de afstand tot de zijdelingse perceelsgrens grenzend aan openbaar gebied minimaal 1m bedraagt 

    Niet van toepassing

    Niet van toepassing

    Maximale bouwdiepte

    15 m

    12 m

    12 m

    30 m

  • 4.

    In aanvulling op het bepaalde in lid 3 geldt binnen de locatie Het Hooghekke Schijndel verlichtingsplan dat voor het bouwen van woningen een verlichtingsplan dient te worden overgelegd, waaruit blijkt dat in voldoende mate rekening is gehouden met de ecologische waarden en kenmerken van het gebied en de omgeving en onevenredig negatieve effecten in de vorm van lichtuitstraling worden voorkomen. 

Artikel 26.106 Oriëntatie van de voorgevel van hoofdgebouwen

Artikel 26.107 Maximale goot- en bouwhoogte hoofdgebouwen

  • 1.

    De goothoogte van een hoofdgebouw bedraagt maximaal de hoogte van de op kaart weergeven Maximale goothoogte

  • 2.

    De maximale bouwhoogte van een hoofdgebouw bedraagt maximaal de hoogte van de op kaart weergeven Maximale bouwhoogte

Subparagraaf 26.14.3.4 Specifieke beoordelingsregels bijbehorende bouwwerken bij woningen

Artikel 26.108 Beoordelingsregels omgevingsvergunning bijbehorend bouwwerk

Een omgevingsvergunning voor de bouw van bijbehorende bouwwerken wordt alleen verleend als: 

Subparagraaf 26.14.3.5 Specifieke beoordelingsregels bouwwerken, geen gebouwen zijnde

Artikel 26.109 Beoordelingsregels omgevingsvergunning bouwwerken geen gebouw zijnde

Een omgevingsvergunning voor de bouw van bouwwerken, geen gebouw zijnde, wordt alleen verleend als:  

  • a.

    de maximale hoogte van een bouwwerk, geen gebouw zijnde, maximaal 3,3 m bedraagt; 

  • b.

    het bouwen van een bouwwerk, geen gebouw zijnde, binnen de locatie Putsteeg Schijndel wonen en Schootsestraat Schijndel wonen niet plaatsvindt binnen een afstand van minder dan 1 m tot de zijdelingse dan wel 1,5 m tot de achterste perceelsgrenzen van een bouwperceel, voor zover grenzend aan openbaar gebied; 

  • c.

    het bouwen van een bouwwerk, geen gebouw zijnde, binnen de afstanden zoals genoemd onder b. plaatsvindt, mits het bouwwerk, geen gebouw zijnde, niet leidt tot onaanvaardbare afbreuk van de visuele kwaliteit van de fysieke leefomgeving als bedoeld in artikel 26.101, hetgeen wordt beoordeeld volgens de criteria van de beleidsregels Beeldkwaliteitsplan Putsteeg ong dan wel Beeldkwaliteitsplan Schootsestraat ong bedoeld in artikel 4.19 van de Omgevingswet; 

  • d.

    verlichtingsarmaturen en vlaggenmasten niet hoger worden gebouwd dan 8 m;  

  • e.

    erf- en terreinafscheidingen niet hoger worden gebouwd dan 2 m;  

  • f.

    overige bouwwerken, geen gebouwen zijnde, niet hoger worden gebouwd dan 5 m.  

Artikel 26.110 Beoordelingsregels omgevingsvergunning bouwwerken geen gebouw zijnde, Natuur

Een omgevingsvergunning voor de bouw van bouwwerken, geen gebouw zijnde, binnen de locatie Het Hooghekke Schijndel natuur wordt alleen verleend als: 

  • a.

    erf- en terreinafscheidingen niet hoger worden gebouwd dan 1,5 m; 

  • b.

    overige bouwwerken, geen gebouwen zijnde, niet hoger worden gebouwd dan 3 m; 

  • c.

    bij de bouw van verlichtingsarmaturen wordt voldaan aan de regels ter plaatse van de locatie Het Hooghekke Schijndel verlichtingsplan

Afdeling 26.15 Actualisering van regels over uiterlijk en situering van bouwwerken (welstand)

Paragraaf 26.15.1 Algemeen
Artikel 26.111 Toepassingsbereik

Deze afdeling gaat over het gebruiken van gronden en bouwwerken en het bouwen van bouwwerken gelegen binnen de locaties welstand beeldbepalend of cultuurhistorisch waardevol pandwelstand beeldkwaliteitsplannenwelstand beschermd dorpsgezichtwelstand gemeentelijk monumentwelstand historisch centrumgebied en welstand rijksmonument en geldt in aanvulling op het bepaalde in artikel 22.7 en artikel 22.29.

Artikel 26.112 Oogmerken

De regels in deze afdeling zijn gesteld met het oog op: 

  • a.

    het beschermen en verbeteren van de ruimtelijke kwaliteit.

Artikel 26.113 Zorgplicht

Bij het bouwen van bouwwerken wordt er zorg voor gedragen dat: 

  • a.

    de vormgeving een logische samenhang heeft; 

  • b.

    gebruik en constructie de basis vormen van iedere vorm; 

  • c.

    het bouwwerk de omgeving niet ontkent, ook als het contrasteert; 

  • d.

    het bouwwerk aanvaardbaar en inpasbaar is in zijn omgeving en bij de toekomstige ontwikkeling van die omgeving; 

  • e.

    de kracht van het gebouw ontleend wordt aan zorgvuldig en consequent gebruik van verwijzingen en associaties; 

  • f.

    bij restauratie sprake is van herstel van elementen uit het verleden; bij nieuw- of verbouw in een bestaande (monumentale) omgeving moet duidelijk zijn wat authentiek is en wat nieuw; 

  • g.

    wordt voorkomen dat stijlen, vormen en detailleringen uit het verleden worden geïmiteerd; wel kan het ontwerp worden geïnspireerd door een bepaalde tijdsperiode; 

  • h.

    er een heldere structuur wordt aangebracht in het beeld, zonder dat het beeld versimpelt; 

  • i.

    het bouwwerk enige complexiteit in de compositie kent, ontstaan vanuit de stedenbouwkundige eisen en het programma van eisen; dit resulteert in een spanningsvolle maar heldere belevingswaarde; 

  • j.

    het bouwwerk een samenhangend stelsel van maatverhoudingen heeft dat beheerst wordt toegepast in ruimten, volumes en vlakverdelingen; 

  • k.

    wordt voorkomen dat een beeld van een verzameling losstaande, kleine bouwwerken ontstaat, maar grote bouwwerken kunnen worden geleed; 

  • l.

    de maatverhoudingen een sterke samenhang en hiërarchie vertonen; 

  • m.

    hellende daken een belangrijk element vormen in de totale compositie; voorkomen wordt dat grofschalige toevoegingen het beeld verstoren; 

  • n.

    materiaal, textuur, kleur en licht het karakter van het bouwwerk ondersteunen, alsook de ruimtelijke samenhang met de omgeving of de te verwachten ontwikkeling daarvan; 

  • o.

    materialen, kleuren en lichttoetreding leiden tot een samenhangend beeld; 

  • p.

    materialen en kleuren een ondersteunende functie hebben en niet alleen om de decoratieve werking worden toegepast.

Artikel 26.114 Aanwijzing welstandsgebieden

De gebiedsindeling van de actuele versie van de Welstandsnota 2025 onderscheidt:

Artikel 26.115 Tijdelijke adviesplicht omgevingskwaliteit
  • 1.

    Het college van burgemeester en wethouders verzoekt de Adviescommissie omgevingskwaliteit Meierijstad om advies over een aanvraag om of een ontwerpbesluit voor een omgevingsvergunning voor een omgevingsplanactiviteit bouwen.

  • 2.

    De Adviescommissie omgevingskwaliteit Meierijstad baseert haar in het eerste lid bedoelde advies op de actuele versie van de "Welstandsnota 2025".

  • 3.

    Het college van burgemeester en wethouders verzoekt de Adviescommissie omgevingskwaliteit Meierijstad om advies over een ontwerp voor een beeldkwaliteitsplan.

Afdeling 26.16 Agrarische aanlegactiviteiten buitengebied Sint-Oedenrode

Paragraaf 26.16.1 Algemeen
Artikel 26.116 Toepassingsbereik

Deze afdeling gaat over het gebruiken van gronden gelegen binnen de locaties met de bestemming 'Agrarisch met waarden – Landschapswaarden' (Buitengebied Sint-Oedenrode agrarisch met landschapswaarden) en 'Agrarisch met waarden – Natuur- en Landschapswaarden' (Buitengebied Sint-Oedenrode agrarisch met natuur- en landschapswaarden) op grond van het bestemmingsplan "Buitengebied Sint-Oedenrode", "Buitengebied Sint-Oedenrode, herziening 1"en "Buitengebied Sint-Oedenrode, herziening 4" zoals onderdeel van het tijdelijk deel van dit omgevingsplan zoals bedoeld in artikel 22.1, onder a, van de Omgevingswet.

Artikel 26.117 Oogmerken

Deze regels zijn gesteld met het oog op:

  • a.

    het beschermen van waarden van landschap;

  • b.

    het beschermen van waarden van natuur;

  • c.

    het betrekken van het belang van de bedrijfsmatige exploitatie van agrarische gronden.

Paragraaf 26.16.2 Regels over gebruik
Artikel 26.118 Omgevingsvergunning voor het uitvoeren van een werk, geen bouwwerk zijnde, of van werkzaamheden

In aanvulling op het bepaalde in artikel 4.6.1 en artikel 5.6.1 van het tijdelijke deel van dit omgevingsplan zoals bedoeld in artikel 22.1, onder a, van de Omgevingswet, geldt voor de bestemmingsvlakken 'Agrarisch met waarden – Landschapswaarden' (Buitengebied Sint-Oedenrode agrarisch met landschapswaarden) en 'Agrarisch met waarden – Natuur- en Landschapswaarden' (Buitengebied Sint-Oedenrode agrarisch met natuur- en landschapswaarden) volgens de bestemmingsplannen "Buitengebied Sint-Oedenrode" als moederplan met verbeelding en de daaropvolgende herzieningen "Buitengebied Sint-Oedenrode, herziening 3" en "Buitengebied Sint-Oedenrode, herziening 4", wordt ook het belang van agrarische exploitatie meegewogen bij de beoordeling van een aanvraag om omgevingsvergunning. 

HH

Het opschrift van hoofdstuk 26 wordt op de aangegeven wijze gewijzigd:

Hoofdstuk 26 27 SLOTBEPALINGEN

II

Het opschrift van artikel 26.1 wordt op de aangegeven wijze gewijzigd:

Artikel 26.1 27.1 (citeertitel)

JJ

Bijlage III wordt op de aangegeven wijze gewijzigd:

Bijlage III bij artikel 25.14 van dit omgevingsplan, begripsbepalingen

In paragraaf 25.4 van dit omgevingsplan wordt verstaan onder:

camping

terrein of plaats, geheel of gedeeltelijk ingericht, en blijkens die inrichting bestemd, om daarop tijdelijk gelegenheid te geven tot het plaatsen of geplaatst houden van kampeermiddelen en bijbehorende voorzieningen (zoals sanitaire voorzieningen enz.) ten behoeve van recreatief nachtverblijf specifiek voor bezoekers van het Evenement.evenement;

ecologisch werkprotocol

rapport gebaseerd op de quickscan flora en fauna en een aanvullend veldbezoek. In het ecologisch werkprotocol zijn de maatregelen opgenomen die genomen worden om overtredingen met betrekking tot beschermde plant- en diersoorten en beschermde natuurgebieden te voorkomen.;

evenement

een georganiseerde publieke gebeurtenis in de vorm van een voor het publiek toegankelijke verrichting van vermaak in de vorm van muzieksport, spel, cultuur, tradities of soortgelijks, ter plaatse van het werkingsgebied ‘Paaspop’ specifiek het vierdaagse evenement bestaande uit een eendaags Business Eventbusiness event en drie dagen Paaspop, met bijbehorende voorzieningen zoals camping en parkeerplaatsen.;

Evenementenbeleid Meierijstad

Evenementenbeleid Meierijstad Uitvoeringsnota 2023-2026 zoals vastgesteld door het college van B&W op 25 mei 2023. Indien dit beleid en/of de bijlagen worden gewijzigd door het bevoegd gezag, dient rekening gehouden te worden met deze wijziging.;

NNB

een netwerk van deels bestaande en deels nieuwe natuurgebieden die door ecologische verbindingszones met elkaar verbonden zijn zoals aangeduid in de provinciale Omgevingsverordening Noord-Brabant.

KK

Na bijlage III wordt een bijlage ingevoegd, luidende:

Bijlage IV bij afdeling 26.14van dit omgevingsplan, begripsbepalingen

maatschappelijke voorzieningen

het uitoefenen van activiteiten gericht op de ontmoeting en binding binnen de wijk, waar onder andere onder wordt verstaan het realiseren van een moestuin, pluktuin gezamenlijke kas, kleinschalige ontmoetingsruimte;

sociale huurwoning

huurwoning met een aanvangshuurprijs (huurprijs bij start aangaan huurovereenkomst) onder de grens, bedoeld in artikel 13, eerste lid, onder a, van de Wet op de huurtoeslag, welke voor tenminste 25 jaar na eerste ingebruikname van de woning in stand wordt gehouden als sociale huurwoning voor de doelgroep zijnde huishoudens met een inkomen tot maximaal de DAEB-norm;

middeldure huurwoning

huurwoning met een aanvangshuurprijs (huurprijs bij start aangaan huurovereenkomst) van ten minste het bedrag, bedoeld in artikel 13, eerste lid, onder a, van de Wet op de huurtoeslag, en ten hoogste een aanvangshuurprijs behorende bij 186 punten volgens het woningwaarderingsstelsel (WWS) welke voor tenminste 15 jaar na eerste ingebruikname van de woning in stand wordt gehouden als middeldure huurwoning;

sociale koopwoning

koopwoning met een koopprijs vrij op naam van ten hoogste de kostengrens tot 70% van de landelijke grens voor betaalbare koop, zoals jaarlijks door het ministerie vastgesteld op grond van het Programma Betaalbaar Wonen en welke voor tenminste 10 jaar na eerste ingebruikname van de woning in stand wordt gehouden als sociale koopwoning voor de doelgroep zijnde huishoudens met een inkomen tot maximaal 1,5 keer de DAEB-norm;

sociale middeldure koopwoning

koopwoning met een koopprijs vrij op naam van ten hoogste de kostengrens van 70% tot 100% van de landelijke grens voor betaalbare koop, zoals jaarlijks door het ministerie vastgesteld op grond van het Programma Betaalbaar Wonen.

LL

Bijlage IV wordt op de aangegeven wijze gewijzigd:

Bijlage IV V Overzicht Informatieobjecten

Aaneengebouwd

/join/id/regdata/gm1948/2025/d0b9aa26b6e842e2b5edef796c26813e/nld@2025‑11‑18;13222570

Buitengebied Sint-Oedenrode agrarisch met landschapswaarden

/join/id/regdata/gm1948/2025/a5ecd73cb93e476d8694a89a01facb83/nld@2025‑11‑18;13222570

Buitengebied Sint-Oedenrode agrarisch met natuur- en landschapswaarden

/join/id/regdata/gm1948/2025/186e58f612624aac9db87f6f31bc8d01/nld@2025‑11‑18;13222570

De Locht Olland bouwvlak

/join/id/regdata/gm1948/2025/bcbad6c7613d4727babefd899eb8bf27/nld@2025‑11‑18;13222570

De Locht Olland groen

/join/id/regdata/gm1948/2025/cb9ffc00ed1644349e43ca71427ddb1a/nld@2025‑11‑18;13222570

De Locht Olland verkeer

/join/id/regdata/gm1948/2025/3a22cbf0a5d74f8d847444590e85e23c/nld@2025‑11‑18;13222570

De Locht Olland wonen

/join/id/regdata/gm1948/2025/52c995a9d4eb47e190cd4c64f25dff7a/nld@2025‑11‑18;13222570

evenementenlocatie Molenheide

/join/id/regdata/gm1948/2025/f86d5e14149647deb6b1248a02cc3b4d/nld@2025‑09‑19;11222102

evenemententerrein

/join/id/regdata/gm1948/2025/a3e3b42ef36a4641994314e46156c5e7/nld@2025‑09‑19;11222102

Gestapeld

/join/id/regdata/gm1948/2025/146539f1036a4902ac9b7398599f3e59/nld@2025‑11‑18;13222570

Het Hooghekke Schijndel bouwvlak

/join/id/regdata/gm1948/2025/0c2b33a364b244c1adb7e38506ee6fc1/nld@2025‑11‑18;13222570

Het Hooghekke Schijndel groen

/join/id/regdata/gm1948/2025/fe1d1c2dfb55491dae23100d5899ccf8/nld@2025‑11‑18;13222570

Het Hooghekke Schijndel langzaam verkeer

/join/id/regdata/gm1948/2025/7b2298664ada4dea8a4ab8f0efd24cf1/nld@2025‑11‑18;13222570

Het Hooghekke Schijndel maatschappelijk

/join/id/regdata/gm1948/2025/974ed9bf6b934e0a8b47ccc09fd21d65/nld@2025‑11‑18;13222570

Het Hooghekke Schijndel natuur

/join/id/regdata/gm1948/2025/6e6569bc4cd24746ab6d0279a74eab9c/nld@2025‑11‑18;13222570

Het Hooghekke Schijndel parkeren

/join/id/regdata/gm1948/2025/77c6dff8a4f849258a09fe77e046ab6e/nld@2025‑11‑18;13222570

Het Hooghekke Schijndel verkeer

/join/id/regdata/gm1948/2025/76a4e45989f247aface755bef708e19c/nld@2025‑11‑18;13222570

Het Hooghekke Schijndel verlichtingsplan

/join/id/regdata/gm1948/2025/22ffd0802439415ab9b28c1ce46af449/nld@2025‑11‑18;13222570

Het Hooghekke Schijndel wonen

/join/id/regdata/gm1948/2025/43e87787bbaa428c80d63a5a8242da23/nld@2025‑11‑18;13222570

kampeerterrein

/join/id/regdata/gm1948/2025/cd882a4bf8f14d9a99aed18e37cb43d6/nld@2025‑09‑19;11222102

locatie agrarisch perceel in bos Stuifzand ongenummerd Veghel

/join/id/regdata/gm1948/2025/81e6de217d1e43348daa46ad236dd920/nld@2025‑09‑19;11222102

locatie Boerdonksedijk 18 Erp

/join/id/regdata/gm1948/2024/8db86928c01e438f995319d28a45a058/nld@2025‑04‑11;07501934

locatie Boerdonksedijk 18 Erp agrarisch grondgebruik

/join/id/regdata/gm1948/2025/3e2705d79d68474cbc1fc9683e990611/nld@2025‑04‑11;07501934

locatie Boerdonksedijk 18 Erp wonen

/join/id/regdata/gm1948/2024/cb3674d3607d4c27a1f70fbd39a9375a/nld@2025‑04‑11;07501934

locatie Boerdonksedijk 36 Erp

/join/id/regdata/gm1948/2025/621be5de53d04d40b2b097d91681504e/nld@2025‑09‑19;11222102

locatie Boerdonksedijk 36 Erp agrarisch

/join/id/regdata/gm1948/2025/4494d9e4840c46d4bac41ed923e1e1fb/nld@2025‑09‑19;11222102

locatie Boerdonksedijk 36 Erp wonen

/join/id/regdata/gm1948/2025/8a17e66960424089ab21dba2e0b1b15a/nld@2025‑09‑19;11222102

locatie Dorshout 22 Veghel

/join/id/regdata/gm1948/2025/7dc5b3e5baba453893ed9434bb3723b6/nld@2025‑11‑18;13222570

locatie Dorshout 22 Veghel agrarisch

/join/id/regdata/gm1948/2025/20f74c87cb844c50a51df61bdc1eec50/nld@2025‑11‑18;13222570

locatie Dorshout 22 Veghel bestaande woning

/join/id/regdata/gm1948/2025/b1813aba48ff4f7a86b531f002696930/nld@2025‑11‑18;13222570

locatie Dorshout 22 Veghel karakteristieke bebouwing

/join/id/regdata/gm1948/2025/13bfef9a4aa04f4abdb33b9c58adc43e/nld@2025‑11‑18;13222570

locatie Dorshout 22 Veghel nieuwe woning

/join/id/regdata/gm1948/2025/6fc080ff3597446cac1d02d289fe6b80/nld@2025‑11‑18;13222570

locatie Dorshout 22 Veghel wonen

/join/id/regdata/gm1948/2025/354b6a86486d4efebf84e09231516564/nld@2025‑11‑18;13222570

locatie Dorshout 32 en 33 Veghel

/join/id/regdata/gm1948/2025/ba72858d2e96432f8d7624cf3c3346b3/nld@2025‑11‑18;13222570

locatie Dorshout 32 en 33 Veghel agrarisch

/join/id/regdata/gm1948/2025/3777813cbee946949a72cc53f0f6f427/nld@2025‑11‑18;13222570

locatie Dorshout 32 en 33 Veghel geluidzone industrie

/join/id/regdata/gm1948/2025/0cc02bc984f04e2f898abf56565d7b10/nld@2025‑11‑18;13222570

locatie Dorshout 32 en 33 Veghel groenblauwe waarden

/join/id/regdata/gm1948/2025/45352f213e1546f19d247084229c6c56/nld@2025‑11‑18;13222570

locatie Dorshout 32 en 33 wonen

/join/id/regdata/gm1948/2025/f97d7614441547ad8fb6d4a58ae14b09/nld@2025‑11‑18;13222570

locatie Dorshout 32 Veghel bouwvlak

/join/id/regdata/gm1948/2025/84a3c27103ed4bbc8546c2540d27d1d8/nld@2025‑11‑18;13222570

locatie Dorshout 33 Veghel bouwvlak

/join/id/regdata/gm1948/2025/165cfebb44e6499dafbdd4239cbb3abc/nld@2025‑11‑18;13222570

locatie Espendonk 15 Sint-Oedenrode

/join/id/regdata/gm1948/2025/880d4956e89d40749442b8c40ef266a9/nld@2025‑11‑18;13222570

locatie Espendonk 15 Sint-Oedenrode bouwvlak

/join/id/regdata/gm1948/2025/737d8837fdd842f59062349c12e06f84/nld@2025‑11‑18;13222570

locatie Grootdonkweg 4 Veghel

/join/id/regdata/gm1948/2025/b3e29539b3694145bf140ff2b67a0289/nld@2025‑11‑18;13222570

locatie Grootdonkweg 4 Veghel agrarisch

/join/id/regdata/gm1948/2025/ddaaa2672ad1462abdefa4325c4f99f1/nld@2025‑11‑18;13222570

locatie Grootdonkweg 4 Veghel bijgebouw

/join/id/regdata/gm1948/2025/cf53b72edc474d27848c3eee84bb90af/nld@2025‑11‑18;13222570

locatie Grootdonkweg 4 Veghel bouwvlak 1

/join/id/regdata/gm1948/2025/63a438dc68ca46059e742cbc697fd349/nld@2025‑11‑18;13222570

locatie Grootdonkweg 4 Veghel karakteristieke bebouwing

/join/id/regdata/gm1948/2025/5991dc1bfe6e4404b133d5f27a857939/nld@2025‑11‑18;13222570

locatie Grootdonkweg 4 Veghel wonen

/join/id/regdata/gm1948/2025/3e0787eedcb34c8f839e496834f826b7/nld@2025‑11‑18;13222570

locatie Grootdonkweg 6 Veghel

/join/id/regdata/gm1948/2025/397de42fb503446c9ad3a55e6d86ae96/nld@2025‑11‑18;13222570

locatie Grootdonkweg 6 Veghel agrarisch

/join/id/regdata/gm1948/2025/d744ab958b9e47938ed7085612af7764/nld@2025‑11‑18;13222570

locatie Grootdonkweg 6 Veghel B&B

/join/id/regdata/gm1948/2025/0ca936d08b2343c88e8d7bda72dfbfe2/nld@2025‑11‑18;13222570

locatie Grootdonkweg 6 Veghel karakteristieke bebouwing

/join/id/regdata/gm1948/2025/9205b1b31f3443d7bea4dfa47ca220a0/nld@2025‑11‑18;13222570

locatie Grootdonkweg 6 Veghel nieuwe bijgebouwen

/join/id/regdata/gm1948/2025/7ff6ba562bc04c1a96c0a3972c1d96ba/nld@2025‑11‑18;13222570

locatie Grootdonkweg 6 Veghel te slopen bebouwing

/join/id/regdata/gm1948/2025/028774337daa4b90b727672408cfcc9d/nld@2025‑11‑18;13222570

locatie Grootdonkweg 6 Veghel wonen

/join/id/regdata/gm1948/2025/deb731cb86e842f1948ae7629a1c0d3d/nld@2025‑11‑18;13222570

locatie Groothees 13 Erp

/join/id/regdata/gm1948/2025/06e7e877c8ff426b8c039c259b8bd553/nld@2025‑11‑18;13222570

locatie Groothees 13 Erp agrarisch

/join/id/regdata/gm1948/2025/2ef314b0eaed4da58832d451b01e4d0e/nld@2025‑11‑18;13222570

locatie Groothees 13 Erp bedrijf

/join/id/regdata/gm1948/2025/cc6d3f05204146f8ad10469f7ffea789/nld@2025‑11‑18;13222570

locatie Houtsestraat 21 Sint-Oedenrode

/join/id/regdata/gm1948/2025/96b59ab36ea1406394ee031c0d772887/nld@2025‑09‑19;11222102

locatie Houtsestraat 21 Sint-Oedenrode agrarisch

/join/id/regdata/gm1948/2025/05a3468cfdcf4278bbad413196fd5375/nld@2025‑09‑19;11222102

locatie Houtsestraat 21 Sint-Oedenrode bijgebouwen

/join/id/regdata/gm1948/2025/24fd239710124c68aafa4debc74b9fe8/nld@2025‑09‑19;11222102

locatie Houtsestraat 21 Sint-Oedenrode bijgebouwen uitgesloten

/join/id/regdata/gm1948/2025/a0dc659d20a04d31b3214abbce4e8dd0/nld@2025‑09‑19;11222102

locatie Houtsestraat 21 Sint-Oedenrode bouwvlak

/join/id/regdata/gm1948/2025/a7d05e46dc0048438890f132099179b2/nld@2025‑09‑19;11222102

locatie Houtsestraat 21 Sint-Oedenrode wonen

/join/id/regdata/gm1948/2025/0b8dcc3a49b049079fdb5c14b7fc9be7/nld@2025‑09‑19;11222102

locatie Jekschotseweg 39 Sint-Oedenrode

/join/id/regdata/gm1948/2025/f3a6496ef56f4c1f9fafb919b7339026/nld@2025‑11‑18;13222570

locatie Jekschotseweg 41 Sint-Oedenrode

/join/id/regdata/gm1948/2025/f6817513d2b34ac7b8b596d8eb7b6ad2/nld@2025‑11‑18;13222570

locatie Kraanmeer 29 Erp

/join/id/regdata/gm1948/2025/9a135db7f467421b8f676dc9e965112d/nld@2025‑11‑18;13222570

locatie Kraanmeer 29 Erp agrarisch

/join/id/regdata/gm1948/2025/af4ddb4553c846e0a3fb9905fdbb1632/nld@2025‑11‑18;13222570

locatie Kraanmeer 29 Erp bedrijf

/join/id/regdata/gm1948/2025/868f022ca14b434c9e56d636d219bc25/nld@2025‑11‑18;13222570

locatie Kraanmeer 29 Erp statische opslag

/join/id/regdata/gm1948/2025/17ff21b092884731b804ec17e01b77d7/nld@2025‑11‑18;13222570

locatie Kraanmeer 29 Erp ZZP

/join/id/regdata/gm1948/2025/f3548a05e7e949a3b071d99db3aa99f3/nld@2025‑11‑18;13222570

locatie Langesteeg 14 Sint-Oedenrode

/join/id/regdata/gm1948/2024/a32ba8fae652447daff42543e1d9c05b/nld@2024‑09‑27;08174837

locatie Lieshoutseweg ongenummerd Sint-Oedenrode

/join/id/regdata/gm1948/2025/5397c66317f24d828638cf7b0d6e9957/nld@2025‑11‑18;13222570

locatie Lieshoutseweg ongenummerd Sint-Oedenrode bijgebouwen

/join/id/regdata/gm1948/2025/640c9c91f0954fbda3da387251885f24/nld@2025‑11‑18;13222570

locatie Lieshoutseweg ongenummerd Sint-Oedenrode bijgebouwen uitgesloten

/join/id/regdata/gm1948/2025/3dd851be4f3a4b388686e4f36550a092/nld@2025‑11‑18;13222570

locatie Lieshoutseweg ongenummerd Sint-Oedenrode bouwvlak

/join/id/regdata/gm1948/2025/347b7fcb4b7f4cfab41452f0cba3b12a/nld@2025‑11‑18;13222570

locatie Nieuwe Veldenweg 8 Veghel

/join/id/regdata/gm1948/2025/b53c024a35dc41d0b2be192fa148d1bc/nld@2025‑11‑18;13222570

locatie Nieuwe Veldenweg 8 Veghel agrarisch

/join/id/regdata/gm1948/2025/599eea315c284bcba28fd95bc8d870bf/nld@2025‑11‑18;13222570

locatie Nieuwe Veldenweg 8 Veghel bijgebouw

/join/id/regdata/gm1948/2025/b54f6a8ca12948ee9b5d1bffdc1ec51c/nld@2025‑11‑18;13222570

locatie Nieuwe Veldenweg 8 Veghel karakteristieke bebouwing

/join/id/regdata/gm1948/2025/2522619fd2944b16b72f3700a3bccae8/nld@2025‑11‑18;13222570

locatie Nieuwe Veldenweg 8 Veghel wonen

/join/id/regdata/gm1948/2025/e50d766bd8a6470390eba786e9dc0e37/nld@2025‑11‑18;13222570

locatie Oetelaarsestraat 33 Schijndel

/join/id/regdata/gm1948/2024/92e989bb3d1b49edbc035b1d0810e7da/nld@2025‑04‑11;07501934

locatie Ollandseweg 139 Sint-Oedenrode

/join/id/regdata/gm1948/2025/2f1a1ce55ac1467a9efee1eb07260600/nld@2025‑09‑19;11222102

locatie Ollandseweg 139 Sint-Oedenrode agrarisch

/join/id/regdata/gm1948/2025/123abeb194d44d31869b730febed31ee/nld@2025‑09‑19;11222102

locatie Ollandseweg 139 Sint-Oedenrode wonen

/join/id/regdata/gm1948/2025/67e3f6e316604a0db4b58b1303e30e9f/nld@2025‑09‑19;11222102

locatie Pastoor van Vroonhovenstraat 11 Schijndel

/join/id/regdata/gm1948/2025/b12808216d2b405fbac087d522bd3144/nld@2025‑11‑18;13222570

locatie Pastoor van Vroonhovenstraat 11 Schijndel agrarisch

/join/id/regdata/gm1948/2025/fcd27342433547fca20c54ee036ee7c8/nld@2025‑11‑18;13222570

locatie Pastoor van Vroonhovenstraat 11 Schijndel beperkt agrarisch gebruik

/join/id/regdata/gm1948/2025/34564b814ae3458f88ac4dcfa773f45f/nld@2025‑11‑18;13222570

locatie Pastoor van Vroonhovenstraat 11 Schijndel bouwvlak

/join/id/regdata/gm1948/2025/6ece3490830949b8bc3f658f9ad39374/nld@2025‑11‑18;13222570

locatie Pastoor van Vroonhovenstraat 11 Schijndel groen

/join/id/regdata/gm1948/2025/410a55edfbd645b5991e6a429918443e/nld@2025‑11‑18;13222570

locatie Pastoor van Vroonhovenstraat 11 Schijndel wonen

/join/id/regdata/gm1948/2025/acdcde20089548e5baa77c29a5dea8fd/nld@2025‑11‑18;13222570

locatie Putsteeg 8 Schijndel

/join/id/regdata/gm1948/2025/6c7d0541436f42058d8bd3ac48b7bdf2/nld@2025‑11‑18;13222570

locatie Versantvoortstraat 2a Veghel

/join/id/regdata/gm1948/2024/2242f57b75974511b0f69256abf74070/nld@2025‑04‑11;07501934

locatie Weievenseweg 30 Sint-Oedenrode

/join/id/regdata/gm1948/2025/ed5dc15622fb4b24aa7b7f8914d41687/nld@2025‑11‑18;13222570

locatie Weievenseweg 30, Jekschotseweg 39, Jekschotseweg 41, Lieshoutseweg ongenummerd Sint-Oedenrode

/join/id/regdata/gm1948/2025/7b786f2d4a024281b47d72aeefadd1c1/nld@2025‑11‑18;13222570

locatie Zwembadweg 43 Sint-Oedenrode

/join/id/regdata/gm1948/2025/87585957d65340bb8ab027ed662f038f/nld@2025‑11‑18;13222570

locatie Zwembadweg 43 Sint-Oedenrode agrarisch

/join/id/regdata/gm1948/2025/559acc1e338242079c36e81a741d0f83/nld@2025‑11‑18;13222570

locatie Zwembadweg 43 Sint-Oedenrode bedrijf

/join/id/regdata/gm1948/2025/d353e673c0894514ae294e9c36cce57a/nld@2025‑11‑18;13222570

locatie Zwembadweg 43 Sint-Oedenrode bouwvlak

/join/id/regdata/gm1948/2025/371b439544044198a9ee026c952d2e3b/nld@2025‑11‑18;13222570

Maximale bouwhoogte

/join/id/regdata/gm1948/2025/b601483248d54565bde389dacf6409d9/nld@2025‑11‑18;13222570

Maximale goothoogte

/join/id/regdata/gm1948/2025/32ac2179c254482fa735bb5a33e5cfe3/nld@2025‑11‑18;13222570

maximum aantal woningen

/join/id/regdata/gm1948/2025/b2edca3919a949a7afd5bc8ffa3f60ff/nld@2025‑11‑18;13222570

parkeerplaatsen

/join/id/regdata/gm1948/2025/9fb6a81b6cd24a4ba6bdcca52ce0f8c4/nld@2025‑09‑19;11222102

Putsteeg Schijndel afstand voorste bouwperceelsgrens

/join/id/regdata/gm1948/2025/3896aa1ef5ea44e5a35d67a0363b4548/nld@2025‑11‑18;13222570

Putsteeg Schijndel agrarisch

/join/id/regdata/gm1948/2025/6b59158941e842c491c5cca53e639903/nld@2025‑11‑18;13222570

Putsteeg Schijndel bouwvlak

/join/id/regdata/gm1948/2025/08936037b27f4bf9bed5e529ae4348b4/nld@2025‑11‑18;13222570

Putsteeg Schijndel groen

/join/id/regdata/gm1948/2025/d489dbcd37a84b70ba3cb35d0a7cb943/nld@2025‑11‑18;13222570

Putsteeg Schijndel hoofdgebouw niet toegestaan

/join/id/regdata/gm1948/2025/4984351acbd74fa995f61dd2efa503e8/nld@2025‑11‑18;13222570

Putsteeg Schijndel ontsluiting

/join/id/regdata/gm1948/2025/0bcb438a1e0640c1abbdbc93b1f31ad1/nld@2025‑11‑18;13222570

Putsteeg Schijndel parkeren

/join/id/regdata/gm1948/2025/c2c7da1b074e44f6bf52a1c209a94b77/nld@2025‑11‑18;13222570

Putsteeg Schijndel wonen

/join/id/regdata/gm1948/2025/a8f74498a8404329aff142932006eeea/nld@2025‑11‑18;13222570

Schootsestraat Schijndel afstand zijdelingse perceelgrens

/join/id/regdata/gm1948/2025/f3f2054df9db41ee89661cde313be991/nld@2025‑11‑18;13222570

Schootsestraat Schijndel bouwvlak

/join/id/regdata/gm1948/2025/c5e1318759924217bb60ce259d330f61/nld@2025‑11‑18;13222570

Schootsestraat Schijndel collectief bijgebouw

/join/id/regdata/gm1948/2025/9e10ac9efcd845238dc796b66972d93a/nld@2025‑11‑18;13222570

Schootsestraat Schijndel groen

/join/id/regdata/gm1948/2025/d4d13e3ab4b64c9fb1b9629383f3aa8e/nld@2025‑11‑18;13222570

Schootsestraat Schijndel ontsluiting

/join/id/regdata/gm1948/2025/3b7a621b18da4304a0ed3be09abf7490/nld@2025‑11‑18;13222570

Schootsestraat Schijndel parkeren

/join/id/regdata/gm1948/2025/1e9b47bd481d4d15b12054c05e6a7906/nld@2025‑11‑18;13222570

Schootsestraat Schijndel wonen

/join/id/regdata/gm1948/2025/a5c9bf0bdbe94cc990465e2e85ac6fcc/nld@2025‑11‑18;13222570

Schootsestraat Schijndel, bijbehorende bouwwerken niet toegestaan

/join/id/regdata/gm1948/2025/97353c644b894450bcda6e9a38e7f30f/nld@2025‑11‑18;13222570

Sportveld Boskant bouwvlak

/join/id/regdata/gm1948/2025/312c301865ce435bae2449ce59f8746e/nld@2025‑11‑18;13222570

Sportveld Boskant groen

/join/id/regdata/gm1948/2025/4016ae80b2924d15a7f0c5270971a15e/nld@2025‑11‑18;13222570

Sportveld Boskant verkeer

/join/id/regdata/gm1948/2025/1084a133c4fb4687a9dca5e98be4fe0f/nld@2025‑11‑18;13222570

Sportveld Boskant wonen

/join/id/regdata/gm1948/2025/5660ab71e6c14a19a8c6d1b1dcd10ad3/nld@2025‑11‑18;13222570

Twee-aan-een

/join/id/regdata/gm1948/2025/56674ff5227e4480ad0414609a3f1579/nld@2025‑11‑18;13222570

verbod gewasbeschermingsmiddelen

/join/id/regdata/gm1948/2025/68afbe14e21e4cf1ac4f815f34ec883d/nld@2025‑11‑18;13222570

verbod instandhouden aansluiting op het vuilwaterriool

/join/id/regdata/gm1948/2024/e7a4ac7533aa4ff5a88b3853d52d397b/nld@2025‑04‑11;07501934

/join/id/regdata/gm1948/2024/e7a4ac7533aa4ff5a88b3853d52d397b/nld@2025‑11‑18;13222570

Vrijstaand

/join/id/regdata/gm1948/2025/73d72443f23b4280a3f3e6c2fdf98e75/nld@2025‑11‑18;13222570

welstand beeldbepalend of cultuurhistorisch waardevol pand

/join/id/regdata/gm1948/2025/e2add04514984d1697bee16b9d4b06c5/nld@2025‑11‑18;13222570

welstand beeldkwaliteitsplannen

/join/id/regdata/gm1948/2025/189a6392874a4ce39a6aa0c538dd781a/nld@2025‑11‑18;13222570

welstand beschermd dorpsgezicht

/join/id/regdata/gm1948/2025/974992c43fbf4fd2ac465c5e1041c666/nld@2025‑11‑18;13222570

welstand gemeentelijk monument

/join/id/regdata/gm1948/2025/a144d78ec6a540d3827d17be0bcd40d9/nld@2025‑11‑18;13222570

welstand historisch centrumgebied

/join/id/regdata/gm1948/2025/ba0654dcb8d34110a3ba9af9ade607d8/nld@2025‑11‑18;13222570

welstand rijksmonument

/join/id/regdata/gm1948/2025/afc9283a9682465a89f0b8aff2dfbdf2/nld@2025‑11‑18;13222570

woongebied De Locht Olland

/join/id/regdata/gm1948/2025/eb6adb96f49b4502af6ecb98d482b533/nld@2025‑11‑18;13222570

woongebied Het Hooghekke Schijndel

/join/id/regdata/gm1948/2025/8fde50812d04450f86efa1212062c648/nld@2025‑11‑18;13222570

woongebied Putsteeg Schijndel

/join/id/regdata/gm1948/2025/d60d0cc834d5476d90b72b96110f7146/nld@2025‑11‑18;13222570

woongebied Schootsestraat Schijndel

/join/id/regdata/gm1948/2025/73507c2471534fc3815ac01f71aeaaf3/nld@2025‑11‑18;13222570

woongebied Sportveld Boskant

/join/id/regdata/gm1948/2025/0a1dd4f1f56c44e2bd003406cd50d7bc/nld@2025‑11‑18;13222570

MM

Bijlage V wordt op de aangegeven wijze gewijzigd:

Bijlage V VI Overzicht Documentenbijlagen

Landschappelijke inpassing Boerdonksedijk 18 Erp

/join/id/regdata/gm1948/2024/56ede17a83364887aa5b29767198bc82/nld@2025‑09‑19;11222102

Landschappelijke inpassing Versantvoortstraat 2a Veghel

/join/id/regdata/gm1948/2025/2a0da8f8cb3548a490e9a43f74541b34/nld@2025‑09‑19;11222102

Landschappelijke inpassing Boerdonksedijk 36 Erp

/join/id/regdata/gm1948/2025/7651379b413b4306af4c6bc477cdceaf/nld@2025‑09‑19;11222102

Landschappelijke inpassing Ollandseweg 139 Sint-Oedenrode

/join/id/regdata/gm1948/2025/a5ef97823e604cc1971e03a353001519/nld@2025‑09‑19;11222102

Landschappelijke inpassing Houtsestraat 21 Sint-Oedenrode

/join/id/regdata/gm1948/2025/bb8d4a7a993346b98349a0631d82d03e/nld@2025‑09‑19;11222102

Landschappelijke inpassing Boerdonksedijk 18 Erp

/join/id/regdata/gm1948/2024/56ede17a83364887aa5b29767198bc82/nld@2025‑09‑19;11222102

Landschappelijke inpassing Versantvoortstraat 2a Veghel

/join/id/regdata/gm1948/2025/2a0da8f8cb3548a490e9a43f74541b34/nld@2025‑09‑19;11222102

Landschappelijke inpassing Boerdonksedijk 36 Erp

/join/id/regdata/gm1948/2025/7651379b413b4306af4c6bc477cdceaf/nld@2025‑09‑19;11222102

Landschappelijke inpassing Ollandseweg 139 Sint-Oedenrode

/join/id/regdata/gm1948/2025/a5ef97823e604cc1971e03a353001519/nld@2025‑09‑19;11222102

Landschappelijke inpassing Houtsestraat 21 Sint-Oedenrode

/join/id/regdata/gm1948/2025/bb8d4a7a993346b98349a0631d82d03e/nld@2025‑09‑19;11222102

Landschappelijke inpassing Groothees 13 Erp

/join/id/regdata/gm1948/2025/7a499811acd04506a455ad68c0f0c7cb/nld@2025‑11‑18;13222570

Te slopen bebouwing Groothees 13 Erp

/join/id/regdata/gm1948/2025/fbad489de11243d488becb450f05818f/nld@2025‑11‑18;13222570

Landschappelijke inpassing Kraanmeer 29 Erp

/join/id/regdata/gm1948/2025/191a151b6b734b4591b9b5b74b4605c8/nld@2025‑11‑18;13222570

Te slopen bebouwing en verharding Kraanmeer 29 Erp

/join/id/regdata/gm1948/2025/9ed42b9814f74173b140befed9b4a644/nld@2025‑11‑18;13222570

Landschappelijke inpassing Pastoor van Vroonhovenstraat 11 Schijndel

/join/id/regdata/gm1948/2025/4d941ef95dfd4e9c947246e38169eadc/nld@2025‑11‑18;13222570

Te slopen bebouwing Pastoor van Vroonhovenstraat 11 Schijndel

/join/id/regdata/gm1948/2025/fa4449072451411487c6ff0f18fc6258/nld@2025‑11‑18;13222570

Landschappelijke inpassing Putsteeg 8 Schijndel

/join/id/regdata/gm1948/2025/ea2f96a289d840939a947518accfd83f/nld@2025‑11‑18;13222570

Landschappelijke inpassing Espendonk ongenummerd Sint-Oedenrode

/join/id/regdata/gm1948/2025/ef8a9b677a38435e967e550adaea572d/nld@2025‑11‑18;13222570

Landschappelijke inpassing Zwembadweg 43 Sint-Oedenrode

/join/id/regdata/gm1948/2025/faecd83c30ef43199786d3584084c767/nld@2025‑11‑18;13222570

Te slopen bebouwing Zwembadweg 43 Sint-Oedenrode

/join/id/regdata/gm1948/2025/581d62f707ac48bd907dc54449225150/nld@2025‑11‑18;13222570

Landschappelijke inpassing Dorshout 32 en 33 Veghel

/join/id/regdata/gm1948/2025/fad014cb71d14fc79ccf6277cf75d555/nld@2025‑11‑18;13222570

Te slopen bebouwing Dorshout 32 Veghel

/join/id/regdata/gm1948/2025/9b9092f603224fdbbd28a13426a054aa/nld@2025‑11‑18;13222570

Landschappelijke inpassing Grootdonkweg 4 Veghel

/join/id/regdata/gm1948/2025/f98f2a0b6c9c487d80a2972b2fa941ff/nld@2025‑11‑18;13222570

Landschappelijke inpassing Grootdonkweg 6 Veghel

/join/id/regdata/gm1948/2025/a22ccc196f93457bb74a16299ca809aa/nld@2025‑11‑18;13222570

Landschappelijke inpassing Dorshout 22 Veghel

/join/id/regdata/gm1948/2025/66bfdd69653f4de3895dab8150e0a3a1/nld@2025‑11‑18;13222570

Te slopen bebouwing Dorshout 22 Veghel

/join/id/regdata/gm1948/2025/b6307e16ab07433688099f0bb3dd0eae/nld@2025‑11‑18;13222570

Landschappelijke inpassing Putsteeg ong.

/join/id/regdata/gm1948/2025/b9333d3c5fbd4c759c3afae5c5e19c12/nld@2025‑11‑18;13222570

Landschappelijke inpassing Schootsestraat ong

/join/id/regdata/gm1948/2025/c1581daa65114fe8a854d32cc872b22f/nld@2025‑11‑18;13222570

Landschappelijke inpassing Het Hooghekke ong

/join/id/regdata/gm1948/2025/6828ce5dc94744d786032e0841a6ea88/nld@2025‑11‑18;13222570

Landschappelijke inpassing Locht Olland

/join/id/regdata/gm1948/2025/c3c8d1203c354530be385fac1e146bf4/nld@2025‑11‑18;13222570

Landschappelijke inpassing Sportveld Boskant

/join/id/regdata/gm1948/2025/ecdf35e495b54edba0fb55c6e67aef33/nld@2025‑11‑18;13222570

Landschappelijke inpassing Weievenseweg 30 Sint-Oedenrode

/join/id/regdata/gm1948/2025/83371b45a0f5458cb5d1500cc9c7a6ad/nld@2025‑11‑18;13222570

Landschappelijke inpassing Lieshoutseweg ongenummerd

/join/id/regdata/gm1948/2025/3745a003d1f1426ea588cb2e6515fab7/nld@2025‑11‑18;13222570

Te slopen bebouwing Weievenseweg 30 Sint-Oedenrode

/join/id/regdata/gm1948/2025/2586104f409f41198636464b75377fd5/nld@2025‑11‑18;13222570

Beeldkwaliteitsplan Putsteeg ong

/join/id/regdata/gm1948/2025/5234afbecd0d48289f150d1f1ad333db/nld@2025‑11‑18;13222570

Beeldkwaliteitsplan Schootsestraat ong

/join/id/regdata/gm1948/2025/db670007b042482dae8c72e55c6e1ba8/nld@2025‑11‑18;13222570

Beeldkwaliteitsplan Het Hooghekke ong

/join/id/regdata/gm1948/2025/7d23d476ca1c4985a9aec94a63590d3e/nld@2025‑11‑18;13222570

Orientatie voorgevels Putsteeg ong

/join/id/regdata/gm1948/2025/03161dee4f4e4e59b75200679cdc527d/nld@2025‑11‑18;13222570

Orientatie voorgevels Schootsestraat ong

/join/id/regdata/gm1948/2025/4269255c30a54e78918cec5665cb1624/nld@2025‑11‑18;13222570

Orientatie voorgevels Het Hooghekke ong

/join/id/regdata/gm1948/2025/2158a97414d34f40a3fdb6ced3961312/nld@2025‑11‑18;13222570

Landschappelijke inpassing Nieuwe Veldenweg 8 Veghel

/join/id/regdata/gm1948/2025/7b5db63eafb340438e4fdae0f96aeb86/nld@2025‑11‑18;13222570

Te slopen bebouwing Nieuwe Veldenweg 8 Veghel

/join/id/regdata/gm1948/2025/cb02b537ecc04829a65bda97a1d55995/nld@2025‑11‑18;13222570

I Overzicht Documentenbijlagen

Goede onderbouwing fysieke leefomgeving Groothees 13 Erp

/join/id/pubdata/gm1948/2025/10c81a93da994b378c5c615d9185a1b4/nld@2025‑11‑18;13222570

Goede onderbouwing fysieke leefomgeving Pastoor van Vroonhovenstraat 11

/join/id/pubdata/gm1948/2025/eee9a989878245e2a9f6bb8d94311157/nld@2025‑11‑18;13222570

Goede onderbouwing fysieke leefomgeving Putsteeg 8 Schijndel

/join/id/pubdata/gm1948/2025/c544bbc3b6f949149da4252545a73472/nld@2025‑11‑18;13222570

Goede onderbouwing fysieke leefomgeving Espendonk ong Sint-Oedenrode

/join/id/pubdata/gm1948/2025/8e13674eb4d544ef8837ae7601e1b1c5/nld@2025‑11‑18;13222570

Goede onderbouwing fysieke leefomgeving Zwembadweg 43 Sint-Oedenrode

/join/id/pubdata/gm1948/2025/92d588ea2e574fff8b0e583f50c95773/nld@2025‑11‑18;13222570

Welstandsnota 2025

/join/id/pubdata/gm1948/2025/3046a7c0daf34c52b0017acb4c49de63/nld@2025‑11‑18;13222570

Goede onderbouwing fysieke leefomgeving Kraanmeer 29 Erp

/join/id/pubdata/gm1948/2025/3b81fe463d7243e1bd146cff81e2c381/nld@2025‑11‑18;13222570

Goede onderbouwing fysieke leefomgeving Weievenseweg 30, Jekschotsestraat 39, Jekschotsestraat 41 en Lieshoutseweg ongenummerd Sint-Oedenrode

/join/id/pubdata/gm1948/2025/06ac7fad682c4a9e978efdd970dc7f1e/nld@2025‑11‑18;13222570

Goede onderbouwing fysieke leefomgeving Dorshout 22 Veghel

/join/id/pubdata/gm1948/2025/1a66d027144141d3a3f2ffcf6c623b7f/nld@2025‑11‑18;13222570

Goede onderbouwing fysieke leefomgeving Dorshout 32 en 33 Veghel

/join/id/pubdata/gm1948/2025/3b4843f5457346bda24ec6e0ab6881da/nld@2025‑11‑18;13222570

Goede onderbouwing fysieke leefomgeving Grootdonkweg 4 Veghel

/join/id/pubdata/gm1948/2025/07cdba7d105b4dfaa6c4eff4b07fa09b/nld@2025‑11‑18;13222570

Goede onderbouwing fysieke leefomgeving Grootdonkweg 6 Veghel

/join/id/pubdata/gm1948/2025/04313c08f7c3453cadd467b074ee1226/nld@2025‑11‑18;13222570

Goede onderbouwing fysieke leefomgeving Nieuwe Veldenweg 8 Veghel

/join/id/pubdata/gm1948/2025/24a0502fc05b45b2be879425e0bf9d0a/nld@2025‑11‑18;13222570

Goede onderbouwing fysieke leefomgeving Gebiedsontwikkeling Putsteeg ong Schijndel

/join/id/pubdata/gm1948/2025/31e864a1f9da40479ed390242894f4de/nld@2025‑11‑18;13222570

Goede onderbouwing fysieke leefomgeving Gebiedsontwikkeling Schootsestraat ong Schijndel

/join/id/pubdata/gm1948/2025/232c892af1e84615a33070fc1df266e7/nld@2025‑11‑18;13222570

Goede onderbouwing fysieke leefomgeving Gebiedsontwikkeling Het Hooghekke ong Schijndel

/join/id/pubdata/gm1948/2025/7dab31b97e914ec79d7e59525df5ef6f/nld@2025‑11‑18;13222570

Goede onderbouwing fysieke leefomgeving Gebiedsontwikkeling Locht Olland

/join/id/pubdata/gm1948/2025/a4e2c6eb8d01468e844c443b70dcfea4/nld@2025‑11‑18;13222570

Goede onderbouwing fysieke leefomgeving Gebiedsontwikkeling Sportveld Boskant

/join/id/pubdata/gm1948/2025/18b8ffdfc8a24b16bef21f55c62aef95/nld@2025‑11‑18;13222570

Motivering

1 Algemeen

In het tijdelijke deel van het omgevingsplan zijn onder andere alle bestemmingsplannen opgenomen die golden direct voor inwerkingtreding van de Omgevingswet. Deze zijn per 1 januari 2024 van rechtswege onderdeel van het tijdelijke deel van het omgevingsplan van de gemeente geworden.   

Voordat Meierijstad het omgevingsplan op grote schaal heeft herzien met gemeentelijke decentrale regels voor het gehele ambtsgebied, zijn er nog aanleidingen waarom het omgevingsplan op kleine onderdelen gewijzigd dient te worden. Daarom kan halfjaarlijks het omgevingsplan Meierijstad gewijzigd worden.  

Artikel 22.6, eerste lid, Omgevingswet bepaalt dat de bestaande ruimtelijke regels (het tijdelijk deel) in het omgevingsplan van rechtswege alleen ‘allen tegelijk’ kunnen vervallen. Het gevolg hiervan is dat het niet mogelijk is om regels uit een omgevingsplan van rechtswege (voor zover uit het ruimtelijk deel afkomstig) aan te passen of slechts een deel van de geldende regels op een locatie te laten vervallen. Als Meierijstad het omgevingsplan wil wijzigen, moet zij alle ruimtelijke regels voor de betrokken locatie opnieuw vaststellen en vastleggen in het nieuwe deel van het omgevingsplan.  

Een praktische oplossing om te voorkomen dat voor kleine wijzigingen het gehele ruimtelijke kader uit het tijdelijk deel vervangen dient te worden door nieuwe regels, werkt Meierijstad met voorrangsregels. Hiermee worden regels gesteld waarmee in afwijking of aanvulling van de regels uit het tijdelijke deel van het omgevingsplan, nieuwe bouw- of gebruiksmogelijkheden worden geboden. Dit geldt ook als het gaat om een specifieke locatie. De oude regels blijven zo in stand. Met hoofdstuk 26  (de vierde wijzigingsronde van Omgevingsplan Meierijstad) worden nieuwe regels toegevoegd om de wijzigingen op locatieniveau (via voorrangsregels) mogelijk te maken.

Nu bij het uitbreiden van het aantal tijdelijke hoofdstukken komt het moment om nadrukkelijker te letten op consequente formulering van bepalingen. Er wordt ook meer uniformiteit aangebracht in het gebruik van hoofd- dan wel kleine letters, en leestekens. Hiermee worden er ook in de hoofdstukken 23, 24 en 25 minieme aanpassingen gedaan. Die hebben geen enkele inhoudelijke consequentie voor wat er besloten is tijdens die eerdere wijzigingsronden.

2 Groothees 13 te Erp

Op de locatie Groothees 13 Erp is een agrarisch bedrijf gevestigd. De initiatiefnemer is voornemens de huidige agrarische functie te wijzigen in een bedrijfsfunctie. De agrarisch activiteiten in de vorm van een champignonkwekerij, welke nu de hoofdactiviteit vormen, worden afgebouwd. Het voornemen is de ruimten van de champignonkwekerij in gebruik te nemen voor kleinschalige bedrijfsactiviteiten en opslag. De (voormalige) champignoncellen worden verhuurd aan derden.

Als bijbehorende stukken bij deze motivering van het wijzigingsbesluit is de Goede onderbouwing fysieke leefomgeving Groothees 13 Erp gevoegd. De bijbehorende onderzoeken (op het besluit betrekking hebbende stukken) zijn raadpleegbaar via https://zaken.meierijstad.nl/o/dossier/19482967689

Een verbeelding van de oude en de nieuwe situatie is hier ingevoegd:

afbeelding binnen de regeling

3 Kraanmeer 29 te Erp

In het plangebied wordt een kleinschalig bedrijf voor statische opslag ontwikkeld. Hiervoor worden een bedrijfsgebouw van 309 m2 en 358 m2 behouden. De schuur van 309 m2 zal gebruikt worden voor de statische opslag van caravans en campers. De schuur van 358 m2 wordt behouden voor een kleinschalig bedrijf in de vorm van ZZP activiteiten van initiatiefnemer, de ZZP activiteiten bestaan voor circa 20 uur per week uit loonwerk voor andere agrarische bedrijven en uit reparatiewerkzaamheden van kleine landbouwmachines en werktuigen. Daarbij wordt een deel van deze loods privé gebruikt voor de opslag van een tractor, zitmaaier en ander onderhoudsgereedschappen voor de tuin en overblijvende landbouwgrond.



De overtollige bebouwing en verharding wordt gesloopt. In totaal wordt er met het initiatief 615 m2 aan bedrijfsbebouwing en 1.875 m2 aan erfverharding gesloopt. Daarbij wordt het bestemmingsvlak verkleind tot een bij de te behouden omvang passend vlak.



Als bijbehorende stukken bij deze motivering van het wijzigingsbesluit is de Goede onderbouwing fysieke leefomgeving Kraanmeer 29 Erp gevoegd. De bijbehorende onderzoeken (op het besluit betrekking hebbende stukken) zijn raadpleegbaar via https://zaken.meierijstad.nl/o/dossier/19482967689

Een verbeelding van de oude en de nieuwe situatie is hier ingevoegd:

afbeelding binnen de regeling

4 Pastoor van Vroonhovenstraat 11 te Schijndel

Aan de Pastoor van Vroonhovenstraat 11, in het buitengebied ten oosten van Schijndel en ten noorden van Wijbosch, is een kleinschalig agrarisch bedrijf gelegen.  Het geheel bestaat momenteel uit een bedrijfswoning, loods en rundveestal, omringd door agrarische productiegronden.  De beoogde herontwikkeling van Pastoor van Vroonhovenstraat 11 houdt het volgende in:  

  • beëindiging van het agrarisch bedrijf;  

  • sloop van de bedrijfsgebouwen en verwijderen van een deel van de verharding;  

  • omzetting van de bedrijfswoning naar burgerwoning met maximaal 300 m2 bijgebouwen;  

  • realisatie van één nieuwe woning en maximaal 150 m2 bijgebouwen;  

  • landschappelijke inpassing en kwaliteitsverbetering landschap en natuur.  

De eigenaren zijn voornemens de agrarische bedrijfsvoering definitief te beëindigen. Hierbij worden de milieutoestemmingen voor de veehouderij ingeleverd. De akkerbouwtak blijft als kleinschalige activiteiten, niet in een bedrijfsmatige omvang, bestaan. Gewenst is de bedrijfswoning te benutten als burgerwoning en een tweede woning toe te voegen. Het definitieve plan bestaat uit sloop van de gehele voormalige bedrijfsbebouwing inclusief daaraan gekoppelde garage. In plaats daarvoor worden 2 nieuwe bijgebouwen, beter passend bij de woningen, gerealiseerd. Een belangrijk resultaat van de herontwikkeling is dat de zichtlijnen naar het open coulissenlandschap richting het Wijboschbroek open gemaakt worden. Tevens ontstaat er kwaliteitswinst door de sloop van overtollige bebouwing, het verwijderen van verharding en de realisatie van natuur- en landschapselementen. Voor de toekomst bestaat de wens de bedrijfswoning, daterend uit de jaren ’70, uit te breiden. 

Daarnaast worden gronden rond en ten noorden van de woonfunctie ingezet voor kwaliteitsverbetering van het landschap (LIR). Aan de hand van de historische kenmerken en huidige landschapsstructuren wordt gezorgd voor een groene inrichting die voor een kwaliteitsbijdrage zorgt. Deze ontwikkeling draagt tevens bij aan het vergroten van de biodiversiteit in het gebied. 

Als bijbehorende stukken bij deze motivering van het wijzigingsbesluit is de Goede onderbouwing fysieke leefomgeving Pastoor van Vroonhovenstraat 11 gevoegd. De bijbehorende onderzoeken (op het besluit betrekking hebbende stukken) zijn raadpleegbaar via https://zaken.meierijstad.nl/o/dossier/19482967689

Een verbeelding van de oude en de nieuwe situatie is hier ingevoegd:

afbeelding binnen de regeling

5 Putsteeg 8 te Schijndel

De bewoners van Putsteeg 8 in Schijndel vangen al bijna 10 jaar een vijftal kinderen op die niet meer thuis kunnen wonen. Hierdoor bestaat dit gezin uit 10 personen (de ouders, 3 kinderen en de 5 kinderen die bij de familie wonen). De opvang gebeurt vanuit de stichting, de Stichting Woonboerderij Schijndel. Op het perceel is in de loop van de jaren een aantal gebouwen en bouwwerken verrezen ten dienste van de woonboerderij (overkapping fietsen, speeltoestellen, dierenverblijf), voor de verduurzaming van het pand (houthok en berging voor warmtepomp) of voor het ontwikkelen en beschermen van de flora en fauna (dierenverblijf, tuinkas, overkapping voor de bijenkasten). Naast bovenstaande zaken is er nog een aantal gewenste ontwikkelingen en deze zijn niet in overeenstemming met het tijdelijke deel van het Omgevingsplan. Medio 2015 is een tijdelijke omgevingsvergunning verleend voor een periode van 10 jaar voor het veranderen van de indeling van de boerderij, zodat in het bestaande volume een inhoud van 1.822 m3 gebruikt mag worden voor woondoeleinden en dan specifiek voor de opvang van de kinderen die niet meer thuis kunnen wonen. Nu worden bovenstaande strijdigheden opgenomen in het Omgevingsplan en daarmee permanent toegestaan. De gezamenlijke bebouwde oppervlakte van bijgebouwen mag volgens artikel 7.4 van "Harmonisatie van diverse regelingen – Laaghangend fruit” maximaal 150 m2 bedragen. Daarbij mag de goothoogte maximaal 3,3 meter bedragen en de bouwhoogte maximaal 6 meter en de afstand van vrijstaande bijgebouwen tot het hoofdgebouw bedraagt maximaal 15 meter. Op het perceel is reeds meer dan 150 m2 aan bijbehorende bouwwerken en de afstand is ook groter dan 15 meter, waarbij e.e.a. vergunningsvrij is opgericht. Verzocht wordt om een groter oppervlakte, 400 m2, aan toegestane gebouwen op het perceel buiten de oppervlakte van het hoofdgebouw. Deze 400 m2 zal gebruikt gaan worden als bijgebouwen bij de woning, bouwwerken voor het gebruik als technische ruimte, voor het gebruik voor de opslag, voor de plaatsing van de duurzame energievoorzieningen voor de doorstroomvoorziening voor de huisvesting van jong volwassenen in de leeftijd van 18 tot en met 23 jaar. 

Het perceel mag gebruik worden voor wonen en op het perceel mag één woning worden gerealiseerd. Een woonvoorziening, bedoeld in de vorm van een gelijkwaardige vorm van kamertraining, voor jong volwassenen in de leeftijd van 18 tot en met 23 jaar voldoet niet aan de definities van een woning en/of huishouden. Verzocht wordt om een gedeelte van de 400 m2 aan bebouwing te mogen gaan gebruiken voor de realisatie van een huisvestingvoorziening voor 3 of 4 jong volwassenen in de leeftijd van 18 tot en met 23 jaar. 

Als bijbehorende stukken bij deze motivering van het wijzigingsbesluit is de Goede onderbouwing fysieke leefomgeving Putsteeg 8 Schijndel gevoegd. De bijbehorende onderzoeken (op het besluit betrekking hebbende stukken) zijn raadpleegbaar via https://zaken.meierijstad.nl/o/dossier/19482967689

Een verbeelding van de oude en de nieuwe situatie is hier ingevoegd:

afbeelding binnen de regeling

6 Espendonk ong te Sint-Oedenrode

Tot enkele jaren terug werd op de locatie een varkenshouderij geëxploiteerd. De locatie kende een onderliggend agrarisch bouwvlak van + 10.800 m², waarvan + 3.268 m² bebouwd en + 600 m² verhard. Met de subsidieregeling ‘Sanering varkenshouderij’ is de varkenshouderij beëindigd en in november 2022 is het bestemmingsplan "Ontwikkelplan sanering varkenshouderij" door de gemeenteraad vastgesteld. Hierin is het bestemmingsvlak teruggebracht naar + 3.555 m² en omgezet naar ‘Wonen’. Hierbinnen is naast de bestaande woning een bijbehorend bouwwerk van 400 m² toegestaan voor inpandige stalling en opslag ten behoeve van een nevenactiviteit in de vorm van akkerbouwactiviteiten. De overige grond waarop de ruimte-voor-ruimtekavel komt heeft de functie ‘Agrarisch met waarden – Landschapswaarden’ behouden. Hier is alleen het bouwvlak afgehaald. 

Tijdens het planvormingsproces (Ontwikkelplan sanering varkenshouderij) werd gedacht dat met deelname aan de SRV-regeling het niet mogelijk was om ruimte-voor-ruimte woningen te realiseren. Nu achteraf blijkt dat dit wel mogelijk is is gevraagd om één ruimte-voor-ruimte kavel ten noorden van de bestaande functie ‘Wonen’ te realiseren.  Dit plan is conserverend van aard voor de gerealiseerde woonfunctie ter plaatse van Espendonk 15. Dit betekent dat de regels en de verbeelding zoals die nu gelden op de locatie niet wijzigen. 

Bij de bestaande woning blijft de mogelijkheid bestaan om 400 m² aan vrijstaande bijbehorende bouwwerken te realiseren voor de stalling en opslag ten behoeve van akkerbouwactiviteiten. In de toelichting van het ‘Ontwikkelplan sanering varkenshouderij’ staat op verschillende plekken genoemd dat initiatiefnemer naast de bestaande inrit/uitrit bij de woning graag een tweede inrit/uitrit op de Espendonk wil realiseren. Het gaat daarbij om een ontsluiting vanaf het bijgebouw op de Espendonk. Voor de realisatie van deze tweede inrit/uitrit is een omgevingsvergunning nodig. Deze is niet aangevraagd bij de gemeente en niet gerealiseerd. 

In het kader van dit planvoornemen ziet initiatiefnemer af van het voornemen om een tweede inrit/uitrit te realiseren voor de ontsluiting van het bijgebouw op de Espendonk. Wel is de eerder aangegeven erfverharding nodig om binnen het functievlak ‘Wonen’ te kunnen manoeuvreren en met de grotere machines en voertuigen via één ontsluiting het bijbehorende bouwwerk bereikbaar te houden. De gronden waarop de ruimte-voor-ruimte kavel komt heeft de bestemming/functie 'Agrarisch met waarden – Landschapswaarden’ en wordt sinds dat de bedrijfsgebouwen ter plaatse zijn gesloopt gebruikt voor de teelt van maïs. 

Als bijbehorende stukken bij deze motivering van het wijzigingsbesluit is de Goede onderbouwing fysieke leefomgeving Espendonk ong Sint-Oedenrode gevoegd. De bijbehorende onderzoeken (op het besluit betrekking hebbende stukken) zijn raadpleegbaar via https://zaken.meierijstad.nl/o/dossier/19482967689

Een verbeelding van de oude en de nieuwe situatie is hier ingevoegd:

afbeelding binnen de regeling

7 Weievenseweg 30, Jekschotsestraat 39 en 41, Lieshoutseweg ong. te Sint-Oedenrode

Het initiatief betreft een locatieoverstijgend plan voor een viertal locaties. Het plan betreft het opheffen van de veehouderijfunctie op een drietal locaties (Jekschotseweg 39, Jekschotseweg 41 en Weievenseweg 30 Sint-Oedenrode), het omzetten van de agrarische bedrijfsfunctie op de locatie Weievenseweg 30 naar een agrarisch verwante bedrijfsfunctie (landbouwmechanisatie- en handelsbedrijf) en het verplaatsen van de woning aan de Jekschotseweg 39 naar de locatie Lieshoutseweg ong., in combinatie met het opheffen van het agrarisch bouwvlak aan de Jekschotseweg 39. Hierna worden de functiewijzigingen op de verschillende locaties nader toegelicht.

Jekschotseweg 39

Op de locatie Jekschotseweg 39 is geen agrarisch bedrijf meer aanwezig. Op de locatie bevindt zich ‘slechts’ een (voormalige) agrarische bedrijfswoning met ca. 350 m2 aan voormalige agrarische bedrijfsgebouwen. Bewoning van de woning is echter onmogelijk gebleken. Omdat er geen agrarisch bedrijf meer is, is huisvesting van een persoon die binding heeft met het agrarisch bedrijf niet (meer) mogelijk. Op de locatie is sprake van een extreem slecht woon- en leefklimaat. Huisvesting van arbeidsmigranten, omzetting naar plattelandswoning of omzetten naar een woonfunctie is niet mogelijk. Dit heeft geresulteerd in een leegstaande, ‘onbruikbare’ woning. De (voormalige) agrarische bedrijfsbebouwing op de locatie Jekschotseweg 39 wordt gesaneerd, inclusief de bedrijfswoning en bijbehorende verharding. Het agrarisch bouwvlak wordt opgeheven en de vergunning voor het houden van zoogkoeien en jongvee wordt ingetrokken. Wat resteert is agrarische productiegrond. De woning wordt verplaatst naar de locatie Lieshoutseweg ongenummerd. Op die locatie past de woning ruimtelijk gezien beter en daar is sprake van een aanvaardbaar woon- en leefklimaat.

afbeelding binnen de regeling

Jekschotseweg 41

Op de locatie Jekschotseweg 41 zijn weinig veranderingen. Aangezien de melkveehouderij reeds is beëindigd wordt de mogelijkheid om vee op de locatie te houden opgeheven. De locatie blijft in gebruik voor het akkerbouwbedrijf. Alle akkerbouwactiviteiten worden op deze locatie geconcentreerd.

afbeelding binnen de regeling

Weievenseweg 30

Het initiatief betreft de omzetting van de veehouderijfunctie op de locatie Weievenseweg 30 naar een agrarisch verwante bedrijfsfunctie. Alle aanwezige agrarische bedrijfsbebouwing (ca. 2.900 m2) wordt gesloopt. Op de locatie vindt nieuwbouw plaats voor het landbouwmechanisatie- en handelsbedrijf van initiatiefnemers. De nieuwbouw bestaat uit een aantal verschillende bedrijfsruimtes. Door hier drie losse bouwmassa’s van te maken, in plaats van één grootschalig bedrijfsgebouw, oogt het geheel relatief kleinschalig en daarmee passend in de omgeving. Dit sluit ook aan bij het bestaande beeld; ook in de huidige situatie is sprake van verschillende

bouwmassa’s.

afbeelding binnen de regeling

Lieshoutseweg ongenummerd.

Op de locatie Lieshoutseweg ongenummerd, wordt een nieuwe woning gerealiseerd. Het betreft de ‘verplaatste’ (voormalige) agrarische bedrijfswoning, afkomstig van de locatie Jekschotseweg 39 (zie paragraaf 2.2.1), die wordt omgezet in een burgerwoning.

afbeelding binnen de regeling

Als bijbehorende stukken bij deze motivering van het wijzigingsbesluit is de Goede onderbouwing fysieke leefomgeving Weievenseweg 30, Jekschotsestraat 39, Jekschotsestraat 41 en Lieshoutseweg ongenummerd Sint-Oedenrode gevoegd. De bijbehorende onderzoeken (op het besluit betrekking hebbende stukken) zijn raadpleegbaar via https://zaken.meierijstad.nl/o/dossier/19482967689

8 Zwembadweg 43 te Sint-Oedenrode

Op de agrarische bedrijfslocatie Zwembadweg 43 Sint-Oedenrode is gedurende ruim 20 jaar een varkenshouderij geëxploiteerd. Het bedrijf beschikt over een milieuvergunning (OBM) voor het houden van 600 biggen, 188 zeugen en 2 beren. Binnen het projectgebied zijn een varkensstal en een machineberging aanwezig, met oppervlaktes van respectievelijk 881 m2 en 380 m2.  

Daarnaast is er een agrarische bedrijfswoning op het perceel aanwezig, waarin initiatiefnemer zelf woonachtig is. De bedrijfsbebouwing is gelegen binnen het ter plaatse aanwezige agrarisch bouwvlak met een oppervlakte van ca. 0,76 hectare. In de huidige situatie staat een gedeelte van de varkensstal leeg en wordt een gedeelte van de stal benut voor de stalling van caravans.  

Daar initiatiefnemer niet meer voornemens is deze intensieve veehouderijactiviteiten in de toekomst voort te zetten, wordt gekozen voor een definitieve beëindiging van de varkenshouderij en een wijziging van de functie van het perceel naar ‘Bedrijf’ ten behoeve van ‘statische opslag’. Hiervoor wordt aansluiting gezocht bij de wijzigingsbevoegdheid in artikel 4.7.12 (wijziging naar de Bedrijf ten behoeve van opslag) van het bestemmingsplan "Buitengebied Sint-Oedenrode, herziening 4". 

Als onderdeel van het plan worden 356 m2 aan varkensstallen gesloopt en wordt de milieuvergunning voor het houden van varkens ingetrokken. Van de resterende 905 m2 aan bedrijfsbebouwing wordt 805 m2 ingezet voor caravanstalling en 100 m2 als bijgebouw bij de bedrijfswoning.  

Daarnaast houdt initiatiefnemer in de huidige situatie hobbymatig reeds een aantal vrije-uitloop kippen (maximaal 250 stuks). De kippen worden gehuisvest in een zogenaamde mobiele ´kippenkar´ (bouwwerk, geen gebouw zijnde). De kar bestaat uit een binnenhok op wielen met aansluitend een kippenren in boogvorm met vrije uitloop. Het geheel is verrijdbaar over het perceel. De eieren die deze kippen leggen wil initiatiefnemer graag, eventueel aangevuld met andere kipproducten, rechtstreeks aan de particulier verkopen. Om hierin te voorzien wordt het middels voorliggend plan tevens mogelijk gemaakt om een eierautomaat met een maximale oppervlakte van 15 m2 binnen het project-gebied te mogen plaatsen. Tot slot wordt het initiatief op een goede wijze landschappelijk ingepast.

Als bijbehorende stukken bij deze motivering van het wijzigingsbesluit is de Goede onderbouwing fysieke leefomgeving Zwembadweg 43 Sint-Oedenrode gevoegd. De bijbehorende onderzoeken (op het besluit betrekking hebbende stukken) zijn raadpleegbaar via https://zaken.meierijstad.nl/o/dossier/19482967689

Een verbeelding van de oude en de nieuwe situatie is hier ingevoegd:

afbeelding binnen de regeling

9 Dorshout 22 te Veghel

Het doel van de initiatiefnemer is om de bestaande, beeldbepalende langgevelboerderij, met een beperkte uitbreiding van circa 40 m² in de vorm van een aanbouw, in gebruik te nemen als burgerwoning. Tevens is het voornemen om op de achterzijde van het erf een poolhouse (ook wel bijgebouw) te realiseren, met een oppervlakte van circa 120 m² en voorzien van een overkapping van 30 m². Daarnaast beoogt de initiatiefnemer de bouw van een bijgebouw, dat ingezet zal worden ten behoeve van statische opslag. Dit bijgebouw heeft een oppervlakte van circa 200 m², waaraan een carport wordt bevestigd van circa 40 m². Tot slot is het de wens van de initiatiefnemer om een woning te realiseren naast Dorshout nummer 20, ten oosten van het plangebied. Zoals eerder toegelicht, zullen ter plaatse van het plangebied verschillende maatregelen worden genomen om de landschappelijke kwaliteit te verbeteren. Tevens worden de voormalige bedrijfsopstallen worden gesloopt.

Als bijbehorende stukken bij deze motivering van het wijzigingsbesluit is de Goede onderbouwing fysieke leefomgeving Dorshout 22 Veghel gevoegd. De bijbehorende onderzoeken (op het besluit betrekking hebbende stukken) zijn raadpleegbaar via https://zaken.meierijstad.nl/o/dossier/19482967689

afbeelding binnen de regeling
afbeelding binnen de regeling

10 Dorshout 32-33 te Veghel

Het doel is om het agrarisch perceel te splitsen in twee percelen met een woonbestemming. Hiermee wordt het bestaande bouwvlak fors verkleind. De bedrijfswoningen blijven behouden en worden omgezet naar burgerwoning. De overtollige bebouwing en verharding wordt gesloopt en gesaneerd.

Dorshout 32

Het perceel aan de Dorshout 32 wordt voorzien van de functie wonen. Eén van de voormalige bedrijfsgebouwen is reeds in gebruik als atelier en zal in deze vorm behouden blijven als bijgebouw bij de woning. Rondom de locatie liggen nog akkerbouwgronden die door initiatiefnemers (hobbymatig bewerkt worden. Zolang zijn gezondheid het toelaat wil hij deze landbewerking zelf blijven doen. Initiatiefnemer zal deze werkzaamheden later voortzetten, wanneer deze niet meer door hemzelf

uitgevoerd kunnen worden. Door de kleinschaligheid, de beperkte inkomsten en het arbeidsextensieve karakter kan niet meer gesproken worden van een reëel agrarisch bedrijf op de locatie. Er is in dit kader echter wel behoefte aan een bijgebouw voor het stallen van de tractor en enkele machines evenals een aanhanger, gazonmaaier, (tuin)gereedschap etc. De voormalige authentieke kippenschuur wordt hiervoor gerestaureerd en oorspronkelijke staat hersteld. Daarnaast is gewenst om een carport te realiseren welke dient als garage voor de eigen auto's. De carport zal ter plaatse van de melkveestal gerealiseerd worden. Op de locatie worden de aanwezige melkveestal, voerplaten, mestopslag en overtollige erfverharding gesaneerd.

Dorshout 33

Het perceel aan de Dorshout 33 wordt eveneens voorzien van een woonbestemming. De eigenaar wenst het op dit perceel aanwezige bijgebouw te behouden voor stalling en opslag van zijn materialen en machines ten behoeve van het kleinschalige grondverzet bedrijf. Het bedrijf richt zich op alle vormen van grondverzet inclusief verhuur en sloopwerkzaamheden. Op de locatie aan de Dorshout vinden geen werkzaamheden plaats, deze worden elders bij derden uitgevoerd. Naast de opslag ten behoeve van het bedrijf wordt dit bijgebouw deels privé gebruikt als garage en opslag.

Als bijbehorende stukken bij deze motivering van het wijzigingsbesluit is de Goede onderbouwing fysieke leefomgeving Dorshout 32 en 33 Veghel gevoegd. De bijbehorende onderzoeken (op het besluit betrekking hebbende stukken) zijn raadpleegbaar via https://zaken.meierijstad.nl/o/dossier/19482967689

In navolgende afbeelding is de gewenste situatie weergeven.

afbeelding binnen de regeling

11 Grootdonkweg 4 te Veghel

Met de voorgenomen ontwikkeling wordt de bestaande langgevelboerderij (bedrijfswoning) omgezet naar een burgerwoning en gesplitst. De nieuwe woning (nr. 2) wordt gerealiseerd in het voormalige stalgedeelte van de boerderij. De voorgestelde splitsing is wenselijk en passend. Boerderijen van deze omvang zijn vaak te groot om door één gezin bewoond en onderhouden te worden. Door splitsing ontstaat een steviger basis voor het behoud van de boerderij. Dit draagt bij aan het behoud van het agrarisch-cultuurhistorisch erfgoed en voorkomt leegstand of verval.

Daarnaast omvat het plan de bouw van een nieuwe garage van 50 m2 (nr. 5), behorend bij de nieuwe woning. Een deel van de bestaande schuur (nr. 7) (60 m2) en de open veld-schuur/koeienstal (nr. 8) (346 m2) zullen worden behouden. De open veld-schuur/koeienstal wordt gebruikt voor het hobbymatig houden van koeien en statische opslag (stalling).

Als bijbehorende stukken bij deze motivering van het wijzigingsbesluit is de Goede onderbouwing fysieke leefomgeving Grootdonkweg 4 Veghel gevoegd. De bijbehorende onderzoeken (op het besluit betrekking hebbende stukken) zijn raadpleegbaar via https://zaken.meierijstad.nl/o/dossier/19482967689

In navolgende afbeelding is de gewenste situatie weergeven.

afbeelding binnen de regeling

12 Grootdonkweg 6 te Veghel

Hoofdgebouw

Met de voorgenomen ontwikkeling wordt de bestaande langgevelboerderij (bedrijfswoning) omgezet naar een burgerwoning en gesplitst. De nieuwe woning wordt gerealiseerd in het voormalige stalgedeelte van de boerderij. De voorgestelde splitsing is wenselijk en passend. Boerderijen van deze omvang zijn vaak te groot om door één gezin bewoond en onderhouden te worden. Door splitsing ontstaat een steviger basis voor het behoud van de boerderij. Dit draagt bij aan het behoud van het agrarisch erfgoed en voorkomt leegstand of verval. De splitsing vindt tevens op een logische wijze plaats, midden in het hoofdvolume van het gebouw. Daarbij wordt rekening gehouden met bestaande raam- en gevelindelingen. Er is een duidelijke scheiding tussen het voormalige stalgedeelte en het woonhuis, wat de splitsing ruimtelijk en architectonisch tot een logische keuze maakt.

Bijgebouwen

Daarnaast omvat het plan de inpassing van nieuwe bijgebouwen. Doordat de bestaande stal wordt geamoveerd, kunnen nieuwe bijgebouwen worden gepositioneerd. Iedere woning beschikt daarmee over één bijgebouw. Bij de noordelijke woning wordt het bijgebouw (gedeeltelijk) gebruikt voor de activiteit bed and breakfast (B&B). Hierbij wordt voldaan aan de voorwaarden uit het bestemmingsplan "Harmonisatie van diverse regelingen - Laaghangend fruit", vastgesteld op 27 januari 2021, met dien verstande dat de B&B wordt gerealiseerd in een te herbouwen ‘bestaand’ bijgebouw.

Beëindiging agrarische bedrijfsvoering

Tot slot zal de huidige agrarische bedrijfsvoering worden beëindigd. De vergunningen/meldingen die toezien op agrarische bedrijfsactiviteiten worden ingetrokken.

Als bijbehorende stukken bij deze motivering van het wijzigingsbesluit is de Goede onderbouwing fysieke leefomgeving Grootdonkweg 6 Veghel gevoegd. De bijbehorende onderzoeken (op het besluit betrekking hebbende stukken) zijn raadpleegbaar via https://zaken.meierijstad.nl/o/dossier/19482967689

In navolgende afbeelding is de gewenste situatie weergeven.

afbeelding binnen de regeling

13 Nieuwe Veldenweg 8 te Veghel

Met de voorgenomen ontwikkeling wordt de bestaande boerderij (bedrijfswoning) omgezet naar een burgerwoning en gesplitst. Het agrarisch bedrijf zal worden beëindigd. De aanwezige rundveestallen en overige agrarische bedrijfsgebouwen worden in het kader van de beëindiging geamoveerd. Een deel van de grond van het perceel wordt betrokken bij de tuin ten behoeve van de te splitsen woonboerderij met de functie wonen. De agrarische gronden, die geen onderdeel gaan uitmaken van de tuin, zullen in de toekomst worden gebruikt voor akkerbouw. De voorgestelde splitsing is wenselijk en passend. Boerderijen van deze omvang zijn vaak te groot om door één gezin bewoond en onderhouden te worden. Door splitsing ontstaat een steviger basis voor het behoud van de boerderij. Dit draagt bij aan het behoud van het agrarisch erfgoed en voorkomt leegstand of verval. De splitsing vindt tevens op een logische wijze plaats, midden in het hoofdvolume van het gebouw. Daarbij wordt rekening gehouden met bestaande raam- en gevelindelingen. Er is een duidelijke scheiding tussen het voormalige stalgedeelte en het woonhuis, wat de splitsing ruimtelijk en architectonisch tot een logische keuze maakt.

Tevens worden bijgebouwen en een overkapping ten behoeve van de woonfunctie toegevoegd. Voor de oostelijke woning (de woning die in het stalgedeelte na splitsing kan worden opgericht) betreft dit een bijgebouw met een standaardoppervlakte van maximaal 150 m2. Voor de westelijke woning (de om te zetten huidige bedrijfswoning) wordt ten noordwesten een nieuw bijgebouw gerealiseerd. Dit bijgebouw is iets groter dan het standaardmaximum. De reden hiervoor is dat dit bijgebouw een functie krijgt voor de stalling van materiaal en materieel ten behoeve van het beheer en onderhoud van de agrarische gronden die in eigendom blijven van de initiatiefnemers. Ook krijgt dit bijgebouw een functie als garage/berging en is het de bedoeling dat er een kleinschalig bedrijf aan huis gevestigd wordt, gericht op de reparatie van auto’s.

Om een goed woon- en leefklimaat te garanderen wordt voor een direct aangrenzende zone een spuitverbod ingesteld voor chemische gewasbeschermingsmiddelen.

Als bijbehorende stukken bij deze motivering van het wijzigingsbesluit is de Goede onderbouwing fysieke leefomgeving Nieuwe Veldenweg 8 Veghel gevoegd. De bijbehorende onderzoeken (op het besluit betrekking hebbende stukken) zijn raadpleegbaar via https://zaken.meierijstad.nl/o/dossier/19482967689

Onderstaand een verbeelding van het plangebied:

afbeelding binnen de regeling

14 Gebiedsontwikkeling Putsteeg ong. te Schijndel

Initiatiefnemer is voornemens een woningbouwplan te realiseren op de beoogde planlocatie aan de Putsteeg in Schijndel. In de gemeente Meierijstad is de situatie namelijk niet anders dan landelijk: er is een grote behoefte aan woningen. De planlocatie vloeit voort uit de geactualiseerde structuurvisie van Schijndel. De bouwsteen voor Schijndel richt zich vooral op de ruimtelijke kwaliteiten van Schijndel en hoe deze kwaliteiten ook in de toekomst met de gevraagde opgaven kunnen worden behouden. In de ruimtelijke bouwsteen zijn aan de westrand potentiële woningbouwlocaties in beeld waaronder de locatie Putsteeg, waarvoor de gemeente Meierijstad een plan van aanpak opstelt en nader onderzoek uitvoert om te kunnen gaan ontwikkelen om op deze manier aan haar taakstelling voldoen. De gemeente Meierijstad wil graag in de kern Schijndel blijven bouwen waardoor woningbouwontwikkeling aan de westrand een kansrijk alternatief is, mits de locatie ruimtelijk-stedenbouwkundig en milieutechnisch inpasbaar is. Ten aanzien van het planvoornemen is een beeldkwaliteitsplan opgesteld. Dit plan zal onderdeel gaan uitmaken van het omgevingsplan voor deze locatie. 

De ontwikkeling zal bestaan uit een divers woningbouwprogramma welke ruimte biedt voor circa 62 woningen. Deze worden onderverdeeld in de volgende segmenten: 

  • sociale huur: 19 woningen (afgerond 31%);

  • midden huur: 7 woningen (afgerond 11%);

  • goedkope koop: 8 woningen (afgerond 13%);

  • midden koop: 13 woningen (afgerond 21%);

  • dure koop: 15 woningen (afgerond 24%).

Met het planvoornemen worden in totaal 93 parkeerplaatsen gerealiseerd, waarvan 24 parkeerplaatsen op eigen terrein en 69 parkeerplaatsen in de openbare ruimte. 

Binnen de contouren van het projectgebied zal elk deelgebied zijn eigen unieke karakter vertonen. Soms wordt er verwezen naar een boerenerf, bestaande uit een woning en schuren, terwijl in andere gevallen de groenstructuur de positionering van de woningen bepaalt. Het projectgebied wordt ervaren als een daklandschap, waarin bescheiden zadeldaken tussen het groen geplaatst zijn. Op de voorgrond zijn knotwilgen te zien, terwijl populieren op een grotere afstand staan. Daartussen lijken de woningen op een natuurlijke wijze te zijn geplaatst, waardoor er een coulisselandschap ontstaat. Daarnaast zijn er ook hoge en lage boerenhagen aanwezig, die bijdragen aan het landelijke karakter van het gebied. 

Onderdeel van het planvoornemen is de beëindiging van de veehouderijactiviteiten op de adressen Putsteeg 6 en Putsteeg 75. Deze beëindiging is juridisch-planologisch relevant, omdat het bijdraagt aan het realiseren van een aanvaardbaar woon- en leefklimaat binnen het projectgebied. 

Als bijbehorende stukken bij deze motivering van het wijzigingsbesluit is de Goede onderbouwing fysieke leefomgeving Gebiedsontwikkeling Putsteeg ong Schijndel gevoegd. De bijbehorende onderzoeken (op het besluit betrekking hebbende stukken) zijn raadpleegbaar via https://zaken.meierijstad.nl/o/dossier/19482967689

Onderstaand een verbeelding van het plangebied:

afbeelding binnen de regeling

15 Gebiedsontwikkeling Schootsestraat ong. te Schijndel

Aan de westrand van Schijndel, ten zuiden van de kern Schijndel heeft de gemeente een concrete locatie voorzien, waar woningbouw afweeg-baar is. Het betreft een aantal gronden gelegen aan de Schootsestraat. Het projectgebied Schootsestraat bestaat uit één perceel waarmee de gebiedsontwikkellocatie ‘Schootsestraat’ een oppervlakte omvat van 33.526 m2. De Schootsestraat zelf is een straat die als belangrijke verbinding die tussen het centrum van Schijndel en het landelijk gebied in loopt.

Het huidige grondgebruik in het projectgebied bestaat grotendeels uit agrarische gronden die vooral worden gebruikt voor mais en een klein deel in het zuiden van planlocatie Schootsestraat voor agrarisch grasland. De bebouwing ten noorden van de locatie is geconcentreerd en behoort tot de kern van Schijndel. Het landelijke gebied waar de locatie in ligt bestaat voornamelijk uit agrarisch gras en mais. De bebouwing ligt voornamelijk aan de landwegen, die vaak voorzien zijn van laanbeplanting. Deze bebouwing bestaat voornamelijk uit vrijstaande woningen en boerderijen waarbij vaak ook stallen zijn gelegen.

Initiatiefnemer is voornemens een woningbouwplan te realiseren op de beoogde planlocatie aan de Schootsestraat in Schijndel. In de gemeente Meierijstad is de situatie namelijk niet anders dan landelijk: er is een grote behoefte aan woningen. De planlocatie vloeit voort uit de geactualiseerde structuurvisie van Schijndel. De bouwsteen voor Schijndel richt zich vooral op de ruimtelijke kwaliteiten van Schijndel en hoe deze kwaliteiten ook in de toekomst met de gevraagde opgaven kunnen

worden behouden. In de ruimtelijke bouwsteen zijn aan de westrand potentiële woningbouwlocaties in beeld waaronder de locatie Schootsestraat, waarvoor de gemeente Meierijstad een plan van aanpak opstelt en nader onderzoek uitvoert om te kunnen gaan ontwikkelen om op deze manier aan haar taakstelling voldoen. De gemeente Meierijstad wil graag in de kern Schijndel blijven bouwen waardoor woningbouwontwikkeling aan de westrand een kansrijk alternatief is, mits de locatie ruimtelijk-stedenbouwkundig en milieutechnisch inpasbaar is. 

De ontwikkeling zal bestaan uit een divers woningbouwprogramma welke ruimte biedt voor circa 73 woningen. Deze worden onderverdeeld in de volgende segmenten:

  • sociale huur: 22 woningen (afgerond 30%);

  • midden huur: 8 woningen (afgerond 11%);

  • goedkope koop: 10 woningen (afgerond 14%);

  • midden koop: 16 woningen (afgerond 22%);

  • dure koop: 17 woningen (afgerond 23%).

Met het planvoornemen worden in het totaal 107 parkeerplaatsen gerealiseerd. Hiervan zullen er 34 parkeerplaatsen op eigen terrein gefaciliteerd worden. In de openbare ruimte worden 73 parkeerplaatsen aangelegd.

Binnen de contouren van het projectgebied zal elk deelgebied zijn eigen unieke karakter vertonen. Soms wordt er verwezen naar een boerenerf, bestaande uit een woning en schuren, terwijl in andere gevallen de groenstructuur de positionering van de woningen bepaalt. Het projectgebied wordt ervaren als een daklandschap, waarin bescheiden zadeldaken tussen het groen geplaatst zijn. Op de voorgrond zijn knotwilgen te zien, terwijl populieren op een grotere afstand staan. Daartussen lijken de woningen op een natuurlijke wijze te zijn geplaatst, waardoor er een coulissenlandschap ontstaat. Daarnaast zijn er ook hoge en lage boerenhagen aanwezig, die bijdragen aan het landelijke karakter van het gebied.

Als bijbehorende stukken bij deze motivering van het wijzigingsbesluit is de Goede onderbouwing fysieke leefomgeving Gebiedsontwikkeling Schootsestraat ong Schijndel gevoegd. De bijbehorende onderzoeken (op het besluit betrekking hebbende stukken) zijn raadpleegbaar via https://zaken.meierijstad.nl/o/dossier/19482967689

Onderstaand een verbeelding van het plangebied:

afbeelding binnen de regeling

16 Gebiedsontwikkeling Het Hooghekke ong. te Schijndel

Het voornemen bestaat om op het perceel aan Het Hooghekke te Schijndel, in de gemeente Meierijstad, maximaal 330 nieuwe wooneenheden te realiseren. Het woningbouwproject bestaat uit de bouw van 88 rijwoningen, 6 hoekwoningen, 18 twee-onder-een-kapwoningen (in totaal 36 woningen), 43 vrijstaande woningen en 154 appartementen. Daarnaast zijn 3 wooneenheden nog nader te bepalen. In de bestaande boerderij zijn mogelijkheden voor het voorzien in een woonfunctie of maatschappelijke functie, bijvoorbeeld een buurt- en ontmoetingsplek (buurtschuur). 

Momenteel bevindt zich op de locatie een paardenhouderij, ‘Stal Vermulst’ met diverse bebouwingen, waaronder stallen, en weilanden voor het houden van paarden. De bestaande bebouwing dient voor het planvoornemen te worden gesloopt.

 Het project omvat een gevarieerd aanbod van woningen, te weten: 

  • 88 rijwoningen; 

  • 6 hoekwoningen; 

  • 18 twee-onder-een-kapwoningen (in het totaal 36 woningen); 

  • 43 vrijstaande woningen; 

  • 154 appartementen; 

  • 3 wooneenheden nader te bepalen. 

Verder zijn er in de bestaande boerderij mogelijkheden voor het voorzien in een woonfunctie of maatschappelijke functie, bijvoorbeeld een buurt- en ontmoetingsplek (buurtschuur) van circa 400 m2. 

Als bijbehorende stukken bij deze motivering van het wijzigingsbesluit is de Goede onderbouwing fysieke leefomgeving Gebiedsontwikkeling Het Hooghekke ong Schijndel gevoegd. De bijbehorende onderzoeken (op het besluit betrekking hebbende stukken) zijn raadpleegbaar via https://zaken.meierijstad.nl/o/dossier/19482967689

Onderstaand een verbeelding van het plangebied:

afbeelding binnen de regeling

17 Gebiedsontwikkeling Locht Olland

Gemeente Meierijstad is voornemens de locatie de Locht te ontwikkelen voor woningbouw. De locatie bevindt zich ten zuidoosten van de kern Olland. De voorgenomen ontwikkeling bestaat uit het toevoegen van 21 woningen aan de Locht ten zuidoosten van de kern Olland. Het woningbouwprogramma bestaat uit een mix van woningtypen: 

  • rijwoning (sociale huur)  3x;

  • rijwoning (goedkope koop) 3x;

  • hoekwoning met garage (dure koop) 2x;

  • rijwoning (middeldure koop) 5x;

  • rug-aan-rugwoning - 0-trede woning (sociale huur) 6x;

  • vrijstaand geschakeld (dure koop)  2x.

Een substantieel deel van de woningen bestaat uit sociale huurwoningen: 9 stuks. De Woonzorgvisie schrijft 30% voor; op de Locht wordt hier ruimschoots aan voldaan. De sociale huurwoningen worden door woningcorporatie Woonmeij gerealiseerd en geëxploiteerd. Daarnaast worden er 8 betaalbare (goedkoop en middelduur) koopwoningen gerealiseerd. 

Woningbouwontwikkeling duurt lang, terwijl de maatschappelijke behoefte erg groot is. Door met een modulaire bouwwijze te werken, wordt getracht de bouwperiode zo kort mogelijk te houden. De woningen worden zoveel mogelijk in de fabriek voorbereid, waardoor bouw op locaties korter duurt. Ook is de overlast op de bouwlocatie hierdoor doorgaans minder. 

De woningen worden één laag met kap, en krijgen een dorpse uitstraling. In de directe omgeving bevinden zich ook veel soorten gebouwen: twee-onder-een-kapper, vrijstaande woningen, boerderijen en agrarische bijgebouwen. Deze gebouwen stijgen niet boven de anderhalve verdieping uit. De nieuwe bebouwing sluit met één laag en kap goed aan op de omgeving en het beeld van het dorp. 

Alle woningen kijken uit op een groene omgeving. De woningen staan midden in een parkachtige ruimte. De sociale huurwoningen in het zuiden zijn zogenaamde rug-aan-rugwoningen. Deze woningen hebben ieder een (kleine) privéplek. Deze plek grenst direct aan de parkruimte. In het ontwerp van deze woningen is veel aandacht voor de (groene) erfafscheiding om de privacy te borgen. De woningen hebben een berging om o.a. fietsen te stallen. 

De meeste woningen worden voor de auto ontsloten via de Roest. De twee koopwoningen in het zuidoosten worden ontsloten via de Pastoor Smitsstraat. Tussen deze twee ontsluitingen ligt een pad dat de 6 rug-aan-rug-woningen ontsluit, voor voetgangers en fietsers. Deze route is ook geschikt voor calamiteitenverkeer (maar dus niet voor doorgaand autoverkeer). 

Parkeren gebeurt overwegend in clusters. Alleen de hoek-koopwoningen en de dure koopwoningen hebben parkeerplaatsen op eigen terrein.  

Ten behoeve van de waterhuishouding wordt een wadi tussen de sociale huur rijwoningen en het meest rechterblokje rug-aan-rugwoningen aangelegd. Het hemelwater afkomstig van het toekomstig verhard oppervlak wordt geborgen in deze wadi. Daarnaast wordt de bestaande zaksloot achter de woningen aan de Pastoor Smitsstraat uitgebreid. Bij een potentiële overstort watert de wadi af op de A-watergang ten noordoosten van de locatie. De wadi en sloot voorzien in de noodzakelijke waterbergingseis. Wandelaars kunnen ook naar en over het onverharde pad de Locht lopen. 

Als bijbehorende stukken bij deze motivering van het wijzigingsbesluit is de Goede onderbouwing fysieke leefomgeving Gebiedsontwikkeling Locht Olland gevoegd. De bijbehorende onderzoeken (op het besluit betrekking hebbende stukken) zijn raadpleegbaar via https://zaken.meierijstad.nl/o/dossier/19482967689

Onderstaand een verbeelding van het plangebied:

afbeelding binnen de regeling

18 Gebiedsontwikkeling Sportveld Boskant

Gemeente Meierijstad is voornemens de locatie van het voormalige sportveld in Boskant te ontwikkelen voor woningbouw. De locatie bevindt zich aan de noordzijde van de kern Boskant. De te ontwikkelen percelen worden begrensd door: 

  • het onverharde pad de Eikenstraat in het noorden; 

  • de buurt Kremselen in het oosten; 

  • woonperceel Populierenlaan in het zuiden; 

  • Populierenlaan in het westen, met aan de overzijde een woning. 

Het plan bestaat uit het toevoegen van 29 woningen. Het woningbouwprogramma bestaat uit 16 sociale huurwoningen, 9 middeldure koopwoningen en 4 koopwoningen in de vrije sector. De randen van het plangebied krijgen voldoende groene ruimte, waardoor als het ware een ‘groene kamer’ ontstaat. In het middengebied komen vervolgens de vier clusters van steeds 4 geschakelde rug-aan-rugwoningen. Deze staan op een speelse manier in het groen.  Centraal in het midden is ruimte gemaakt voor een grotere parkeerkoffer. De twee parkeerkoffers kunnen uiteraard met de auto worden bereikt. Tussen deze twee auto-ontsluitingen vormt een verbreed wandelpad de ontsluiting van de 16 woningen in het groen. Alleen hulpdiensten kunnen – in geval van nood – gebruik maken van deze verbinding. Wandelpaden zorgen voor een goede verbinding van de kern van Boskant richting het buitengebied.  In het meest zuidelijke deel, langs de Populierenlaan, komen rijwoningen en tweekappers. Deze oriënteren zich op  de Populierenlaan. Ten behoeve van de waterhuishouding wordt een wadi in het noorden van het plangebied aangelegd. Het hemelwater afkomstig van het toekomstig verhard oppervlak wordt geborgen in deze wadi. De wadi voorziet in de noodzakelijke waterbergingseis. De meest zuidelijke twee-onder-een-kapwoningen dienen waterberging op eigen terrein te realiseren. 

Als bijbehorende stukken bij deze motivering van het wijzigingsbesluit is de Goede onderbouwing fysieke leefomgeving Gebiedsontwikkeling Sportveld Boskant gevoegd. De bijbehorende onderzoeken (op het besluit betrekking hebbende stukken) zijn raadpleegbaar via https://zaken.meierijstad.nl/o/dossier/19482967689

Onderstaand een verbeelding van het plangebied:

afbeelding binnen de regeling

19 Welstand

Actualisering van het welstandsbeleid op de korte termijn 

Vooruitlopend op een definitieve regeling over de ruimtelijke bouwactiviteit, de betekenis van omgevingskwaliteit en de advisering door de Adviescommissie omgevingskwaliteit Meierijstad, heeft Meierijstad haar welstandsbeleid geactualiseerd voor de korte termijn (gemeentelijk zaaknummer 2693390). Deze actualisering geven we doorwerking in het tijdelijke omgevingsplan. Hiervoor worden vijf artikelen gewijzigd of toegevoegd. Bij de nieuwe planregels hebben het college en de raad, ieder voor zover bevoegd, de "Welstandsnota 2025" vastgesteld als beleidsregel. Het op 20 mei 2025 door het college uitgebrachte raadsvoorstel en de Welstandsnota 2025 bieden de nadere onderbouwing van dit onderdeel van de vierde wijzigingsronde van het omgevingsplan. 

Artikel 22.29 van het tijdelijke omgevingsplan maakt deel uit van de zogenoemde bruidsschat. Hiermee heeft de rijksoverheid het regime van welstand zoals dat in onze gemeente bestond op het moment dat de Omgevingswet in werking trad, in stand gelaten. In dit artikel wordt de verwijzing naar de welstandscriteria geactualiseerd. 

Artikel 26.113 introduceert een zorgplicht voor ruimtelijke kwaliteit bij het bouwen van bouwwerken. Zoals is toegelicht in hoofdstuk 1 van de Welstandsnota 2025 vervangt deze zorgplicht de algemene welstandscriteria van de "Welstandsnota Meierijstad 2018". Hiermee is, nu voor de korte termijn, geen inhoudelijke wijziging beoogd. 

Artikel 22.7 van het tijdelijke omgevingsplan maakt deel uit van de zogenoemde bruidsschat. Hiermee heeft de rijksoverheid de zogenoemde repressieve welstand, dat wil zeggen welstand via toezicht en handhaving, in stand gelaten. Hoewel ook artikel 13a juncto 12, eerste lid, van de Woningwet tot en met 2023 zich net als dit artikel 22.7 voor repressieve welstand beperkte tot het welstandsaspect van uiterlijk, heeft de raad met het amenderen van paragraaf 3.5 van de "Welstandsnota Meierijstad 2018" op 5 juli 2018 laten blijken belang te hechten aan voldoende effectieve regels voor repressieve welstand. Uit jurisprudentie (ECLI:NL:RBOBR:2025:1580) kunnen we afleiden dat de beperking tot het aspect van uiterlijk, en dus niet het meenemen van het aspect plaatsing of situering, afbreuk doet aan de effectiviteit. Daarom wordt het artikel 22.7 aangevuld. 

Volgens het gekozen casco van het definitieve omgevingsplan krijgen gebiedsaanwijzingen een plek in hoofdstuk 4, waarna in hoofdstuk 5 normen worden gesteld. Dat is nog in voorbereiding, ook als het gaat om omgevingskwaliteit zoals aspecten van welstand. Om toch al in het tijdelijke omgevingsplan op de digitale kaart van het Omgevingsloket het geactualiseerde welstandsbeleid te tonen, worden met artikel 26.114 en het overzicht informatieobjecten de welstandszones opgenomen. 

Het nieuwe artikel 26.115 dat in het tijdelijke omgevingsplan de adviesplicht voor het college bij de Adviescommissie omgevingskwaliteit Meierijstad regelt, was evenals de wijzigingen van de artikelen 22.7 en 22.29 genoemd in hoofdstuk 1 van de "Welstandsnota 2025". 

De "Welstandsnota 2025" en de intrekking van een aantal beeldkwaliteitsplannen waarover het college besloot op 20 mei en de raad op 18 september 2025, treden in werking tegelijk met de inwerkingtreding van deze vierde wijzigingsronde. 

20 Agrarische aanlegactiviteiten Sint-Oedenrode

Voor drie locaties in het landelijk gebied van de voormalige gemeente Sint-Oedenrode zijn in 2004-2005 na de ruilverkaveling omgevingsvergunningen aangevraagd voor egalisaties, aanpassingen van sloten en aanleg van drainage op agrarische gronden bestemd als 'Agrarisch met waarden – Landschapswaarden' en 'Agrarisch met waarden – Natuur- en Landschapswaarden'. Bij de beoordeling van die aanvragen moet het bevoegd gezag afwegen of geen onevenredige afbreuk wordt gedaan aan de te beschermen waarden. Over de verleende vergunningen is jarenlang geprocedeerd doordat enkele natuur- en milieuorganisaties zich hiertegen verzetten. In recente (hoger) beroepszaken speelde de vraag of het bevoegd gezag bij zijn afweging ook het belang van agrarische exploitatie mag meenemen (gemeentelijk zaaknummer 2198517 en bij de Afdeling bestuursrechtspraak van de Raad van State 202205473/1/R2). Het college van burgemeester en wethouders stelde zich op het standpunt dat na de ruilverkaveling met het bestemmingsplan onderscheid is gemaakt tussen enerzijds gronden met de hoogste waarden die bestemmingen bos, natuur en water kregen, en anderzijds gronden met minder hoge waarden die agrarische bestemmingen kregen waarin nog wel die waarden beschermd zijn. Bij deze laatste gronden bestaat het oogmerk van agrarische exploitatie. Om tegen te gaan dat nog discussie ontstaat over de betekenis van de huidige bestemmingsplanregels, worden deze regels nog in het tijdelijke omgevingsplan aangevuld. Hiermee wordt bereikt dat het bevoegd gezag niet alleen beoordeelt of een aangevraagde omgevingsvergunning werken of werkzaamheden geen onevenredige afbreuk doet aan de te beschermen waarden van landschap of natuur, maar ook meeweegt het agrarische belang bij die activiteit. 

21 Spuitzones

Volgens vaste rechtspraak is tussen enerzijds agrarische gronden waarop chemische gewasbeschermingsmiddelen (kunnen) worden gebruikt en anderzijds gevoelige functies zoals wonen en tuin, een afstand van ten minste 50 m nodig. Hoewel zulke middelen op zich toegelaten zijn in Nederland, zijn in het toelatingsproces de effecten van cumulatie door langjarige blootstelling en door een mix van verschillende middelen onvoldoende onderzocht en beoordeeld. Deze rechtspraak kan betekenen dat op een locatie waar woningen worden ontwikkeld, binnen die planlocatie een zone van 50 m aangehouden moet worden als spuitzone. De bedoelde rechtspraak kan ook reden geven om buiten de percelen waar de gevoelige functies zijn geprojecteerd, een spuitverbod op te leggen. In de eerste variant zijn er consequenties voor de verkaveling en de baten van de ontwikkeling. In de tweede variant zijn er consequenties in termen van nadeelcompensatie en lasten bij de ontwikkeling. In deze vierde wijzigingsronde is een spuitverbod opgenomen dat voor verschillende locatie- of gebiedsontwikkelingen toegepast kan worden. Er is gekozen voor een spuitverbod en niet voor een vergunningplicht. Niet alleen zou het lastig zijn om de beoordelingsregels uit te werken waar aanvragen aan getoetst moeten worden, ook zou de bestuursrechter in een vergunningplicht mogelijk onvoldoende bescherming van een goed woon- en leefklimaat zien in vergelijking met een verbod. Dat laatste betekent dan weer een juridisch risico voor de woningbouwontwikkeling. De gezondheidsrisico's van spuiten en drift doen zich vooral voor bij chemische of synthetische middelen, en het verbod is dan ook niet gericht op de middelen die wel bij biologische of biodynamische teelt toegelaten zijn.

Naar boven