U bekijkt een publicatie met

Toon versie van document

Ontwerp wijzigingsbesluit geur- en spuitzonering Plakse Weide

Het/De gemeenteraad van Gemeente Duiven

gelezen de tekstinhoud van ”Omgevingsplan gemeente Duiven” d.d. DATUM

Overwegende dat:

Besluit;

Artikel I

"Omgevingsplan gemeente Duiven" opgenomen in Bijlage A wordt vastgesteld.

Artikel II

Van de terinzagelegging, de termijn voor terinzagelegging en de mogelijkheid om te reageren wordt kennis gegeven in het gemeenteblad en lokale huis-aan-huisbladen.

Aldus vastgesteld door Gemeente Duiven, DATUM

Diegenen die mogen ondertekenen

Niet getekend proef-exemplaar

Bijlage A Bijlage bij artikel I

A

Artikel 1.1 wordt op de aangegeven wijze gewijzigd:

Artikel 1.1 Begripsbepalingen

  • 1.

    Begripsbepalingen die zijn opgenomen in de bijlage bij de Omgevingswet en in bijlage I bij het Besluit activiteiten leefomgeving, bijlage I bij het Besluit bouwwerken leefomgeving, bijlage I bij het Besluit kwaliteit leefomgeving, bijlage I bij het Omgevingsbesluit en bijlage I bij de Omgevingsregeling, zijn van toepassing op dit omgevingsplan met uitzondering van hoofdstuk 22.

  • 3 2.

    Begripsbepalingen opgenomen in bijlage III zijn van toepassing op het wijzigingsplan Centerpoort-Noord II welke is opgenomen in titel 20.1.

    Bijlage III bij dit omgevingsplan bevat begripsbepalingen voor de toepassing van hoofdstuk 20 van dit omgevingsplan. 

  • 1 3.

    Begripsbepalingen die, op de dag van de inwerkingtreding van de Omgevingswet, zijn opgenomen in de bijlage bij de Omgevingswet en in bijlage I bij het Besluit activiteiten leefomgeving, bijlage I bij het Besluit bouwwerken leefomgeving, bijlage I bij het Besluit kwaliteit leefomgeving, bijlage I bij het Omgevingsbesluit en bijlage I bij de Omgevingsregeling, zijn van toepassing op hoofdstuk 22 van dit omgevingsplan.

  • 2 4.

    Bijlage II bij dit omgevingsplan bevat begripsbepalingen voor de toepassing van hoofdstuk 22 van dit omgevingsplan.

B

Artikel 1.4 wordt op de aangegeven wijze gewijzigd:

Artikel 1.4 Geometrische begrenzing

  • 1.

    De regels in dit omgevingsplan gelden voor het gehele grondgebied van de gemeente Duiven, tenzij nadrukkelijk anders is bepaald in dit omgevingsplan.

  • 2.

    Bijlage I bij dit omgevingsplan bevat een overzicht van alle geografische informatieobjecten voor de toepassing van dit omgevingsplan.

  • 3.

    De regels uit paragraaf 22.3.6.2 over 'Geur houden van landbouwhuisdieren en paarden en pony’s voor het berijden in een dierenverblijf' gelden op locatie Ambtsgebied Gemeente Duiven (- veehouderij Laarstraat 20).

C

Het opschrift van hoofdstuk 3 wordt op de aangegeven wijze gewijzigd:

Hoofdstuk 3 Programma’s met programmatische aanpak

D

Het opschrift van hoofdstuk 6 wordt op de aangegeven wijze gewijzigd:

Hoofdstuk 6 Algemene regels over activiteiten

E

Het opschrift van hoofdstuk 8 wordt op de aangegeven wijze gewijzigd:

Hoofdstuk 8 Ruimtelijke bouwactiviteiten Bouwactiviteiten

F

Hoofdstuk 10 wordt geplaatst na hoofdstuk 8. Hoofdstuk 10 wordt op de aangegeven wijze gewijzigd:

Hoofdstuk 10 9 Milieubelastende activiteiten

[Gereserveerd]

G

Na hoofdstuk 10 wordt een hoofdstuk ingevoegd, luidende:

Hoofdstuk 10 Sloopactiviteiten

[Gereserveerd]

H

Hoofdstuk 9 wordt geplaatst na hoofdstuk 10. Hoofdstuk 9 wordt op de aangegeven wijze gewijzigd:

Hoofdstuk 9 11 Activiteiten met betrekking tot werken, geen bouwwerken zijnde, of werkzaamheden en sloopactiviteiten 

[Gereserveerd]

I

Het opschrift van hoofdstuk 11 wordt op de aangegeven wijze gewijzigd:

Hoofdstuk 11 12 Activiteiten met betrekking tot cultureel erfgoed

J

Het opschrift van hoofdstuk 12 wordt op de aangegeven wijze gewijzigd:

Hoofdstuk 12 13 Activiteiten in openbaar toegankelijk gebied

K

Het opschrift van hoofdstuk 13 wordt op de aangegeven wijze gewijzigd:

Hoofdstuk 13 14 Overige activiteiten

L

Het opschrift van hoofdstuk 14 wordt op de aangegeven wijze gewijzigd:

Hoofdstuk 14 15 Beheer en onderhoud

M

Het opschrift van hoofdstuk 15 wordt op de aangegeven wijze gewijzigd:

Hoofdstuk 15 16 Financiële bepalingen

N

Het opschrift van hoofdstuk 16 wordt op de aangegeven wijze gewijzigd:

Hoofdstuk 16 17 Procesregels

O

Het opschrift van hoofdstuk 17 wordt op de aangegeven wijze gewijzigd:

Hoofdstuk 17 18 Handhaving

P

Het opschrift van hoofdstuk 18 wordt op de aangegeven wijze gewijzigd:

Hoofdstuk 18 19 Monitoring en informatie

Q

Artikel 20.74 wordt op de aangegeven wijze gewijzigd:

Artikel 20.74 Algemene regels: geluidwaarden geluidveroorzakende activiteit

Bij het uitoefenen van geluidveroorzakende activiteiten in de zone geluidruimte bedrijventerrein - zone geluid verruimd Centerpoort-Noord II geldt dat wordt voldaan aan de volgende regels:

  • a.

    het langtijdgemiddelde beoordelingsniveau LAr, LT van geluidveroorzakende activiteiten moet voldoen aan de waarden zoals opgenomen in tabel 20.74.1. De waarden gelden op de tabel aangegeven afstand van de grens van de locatie waar de activiteit wordt verricht, tenzij in dit artikel anders is bepaald. 

  • b.

    het maximale beoordelingsniveau van geluidveroorzakende activiteiten moet voldoen aan de waarden zoals opgenomen in tabel 20.74.2. De waarden gelden op de gevel van een geluidgevoelig gebouw. 

  • c.

    bij de toepassing van dit artikel wordt geen rekening gehouden met het effect van bebouwing die aanwezig is in het gebied tussen de grens van de locatie waar de activiteit wordt verricht en de afstand waar de waarde geldt.

  • d.

    de in dit artikel gegeven geluidwaarden gelden op een hoogte van 5, 10 en 30 meter boven het plaatselijk maaiveld. Als voor een activiteit op een andere hoogte een hogere geluidsbelasting optreedt, gelden de waarden ook op de voor de activiteit maatgevende rekenhoogte. 

  • e.

    de in dit artikel gegeven geluidwaarden gelden niet voor situaties die niet representatief zijn voor de activiteit. 

Tabel 20.74.1

Ligging activiteit

Waar de norm geldt 

07.00 - 19.00 uur

19.00 - 23.00 uur

23.00 - 07.00 uur

Binnen de zone geluidruimte bedrijventerrein - zone geluid verruimd Centerpoort-Noord II 

100 m vanaf de grens van de activiteitlocatie

50 dB(A)

45 dB(A)

40 dB(A)

Voor zover de afstand van 100 meter vanaf de grens van de activiteitlocatie tot buiten de zone geluidruimte bedrijventerrein - zone geluid verruimd Centerpoort-Noord II komt, geldt de afstand tot de grens van de zone verruimd of, als die afstand minder is dan 50 meter, geldt een afstand van 50 meter

Tot grens zone geluidruimte bedrijventerrein - zone geluid verruimd Centerpoort-Noord II of 50 meter

50 dB(A)

45 dB(A)

40 dB(A)

 
Tabel 20.74.2

Ligging activiteit

Waar de norm geldt

Geluidsoort

07.00 - 19.00 uur

19.00 - 23.00 uur

23.00 - 07.00 uur

Binnen de zone geluidruimte bedrijventerrein - zone geluid verruimd Centerpoort-Noord II

op de gevel van geluidgevoelig gebouw

Maximaal geluidniveau LAmax veroorzaakt door aandrijfgeluid van transportmiddelen

-

70 dB(A)

70 dB(A)

Maximaal geluidniveau LAmax veroorzaakt door andere piekgeluiden   

-

65 dB(A)

65 dB(A)

 

 
Tabel 20.74.1

Ligging activiteit

Waar de norm geldt 

07.00 - 19.00 uur

19.00 - 23.00 uur

23.00 - 07.00 uur

Binnen de zone geluidruimte bedrijventerrein - zone geluid verruimd Centerpoort-Noord II 

100 m vanaf de grens van de activiteitlocatie

50 dB(A)

45 dB(A)

40 dB(A)

Voor zover de afstand van 100 meter vanaf de grens van de activiteitlocatie tot buiten de zone geluidruimte bedrijventerrein - zone geluid verruimd Centerpoort-Noord II komt, geldt de afstand tot de grens van de zone verruimd of, als die afstand minder is dan 50 meter, geldt een afstand van 50 meter

Tot grens zone geluidruimte bedrijventerrein - zone geluid verruimd Centerpoort-Noord II of 50 meter

50 dB(A)

45 dB(A)

40 dB(A)

Tabel 20.74.2

Ligging activiteit

Waar de norm geldt

Geluidsoort

07.00 - 19.00 uur

19.00 - 23.00 uur

23.00 - 07.00 uur

Binnen de zone geluidruimte bedrijventerrein - zone geluid verruimd Centerpoort-Noord II

op de gevel van geluidgevoelig gebouw

Maximaal geluidniveau LAmax veroorzaakt door aandrijfgeluid van transportmiddelen

-

70 dB(A)

70 dB(A)

Maximaal geluidniveau LAmax veroorzaakt door andere piekgeluiden   

-

65 dB(A)

65 dB(A)

 

R

Artikel 20.76 wordt op de aangegeven wijze gewijzigd:

Artikel 20.76 Beoordelingsregels: binnenplanse afwijking

De omgevingsvergunning als bedoeld in artikel 20.75 wordt alleen verleend als:

  • a.

    de geluidwaarden maximaal 5 dB hoger zijn dan de waarden in artikel 20.74;

  • b.

    de geluidwaarden niet leiden tot een overschrijding van de waarden voor geluidgevoelige ruimten binnen geluidgevoelige gebouwen in tabel 20.76.1;

  • c.

    het bepaalde onder b is niet van toepassing op aanwezige geluidgevoelige gebouwen, als:

    • 1.

      maatregelen aan de gevel om voor dat gebouw te voldoen aan de waarden, bedoeld in tabel 20.76.1, leiden tot zwaarwegende bezwaren van bouwkundige aard;

    • 2.

      de eigenaar weigert mee te werken aan het onderzoek naar het geluid in zijn gebouw door activiteiten en onderzoek naar de noodzakelijke geluidwerende maatregelen; of

    • 3.

      de eigenaar weigert geluidwerende maatregelen te laten aanbrengen.

Tabel 20.76.1

 

07.00 - 19.00 uur

19.00 - 23.00 uur

23.00 - 07.00 uur

Langtijdgemiddelde beoordelingsniveau LAr,LT als gevolg van activiteiten

35 dB(A)

30 dB(A)

25 dB(A)

Maximaal geluidniveau LAmax veroorzaakt door aandrijfgeluid van transportmiddelen

-

55 dB(A)

55 dB(A)

Maximaal geluidniveau LAmax veroorzaakt door andere piekgeluiden   

-

45 dB(A)

45 dB(A)

 
Tabel 20.76.1

 

07.00 - 19.00 uur

19.00 - 23.00 uur

23.00 - 07.00 uur

Langtijdgemiddelde beoordelingsniveau LAr,LT als gevolg van activiteiten

35 dB(A)

30 dB(A)

25 dB(A)

Maximaal geluidniveau LAmax veroorzaakt door aandrijfgeluid van transportmiddelen

-

55 dB(A)

55 dB(A)

Maximaal geluidniveau LAmax veroorzaakt door andere piekgeluiden   

-

45 dB(A)

45 dB(A)

S

Artikel 20.79 wordt op de aangegeven wijze gewijzigd:

Artikel 20.79 Algemene regels: trillingveroorzakende activiteit

Bij het uitoefenen van een trillingveroorzakende activiteit in het gebied Ontwikkelgebied Centerpoort-Noord II geldt dat wordt voldaan aan de volgende regels:

  • a.

    bij het verrichten van een trillingveroorzakende activiteit geldt dat voldaan wordt aan de normen voor toelaatbare continue trillingen als gevolg van die activiteit zoals opgenomen in onderstaande tabel 20.79.1;

  • b.

    bij het verrichten van een trillingveroorzakende activiteit geldt dat voldaan wordt aan de normen voor toelaatbare herhaald voorkomende trillingen als gevolg van die activiteit zoals opgenomen in onderstaande tabel 20.79.2;

  • c.

    op een locatie waar dit omgevingsplan of een omgevingsvergunning voor een omgevingsplanactiviteit het bouwen van een trillinggevoelig gebouw toelaat, zijn de normen pas van toepassing als het gebouw is gerealiseerd.

Tabel 20.79.1

Trillingsoort

07.00 - 23.00 uur

23.00 - 07.00 uur

A1 onderste norm voor trillingsterkte Vmax

0,1

0,1

A2 bovenste norm voor trillingsterkte Vmax

0,4

0,2

A3 norm voor trillingsterkte Vper

0,05

0,05

 
Tabel 20.79.2

Trillingsoort

07.00 - 23.00 uur

23.00 - 07.00 uur

A1 onderste norm voor trillingsterkte Vmax

0,2

0,2

A2 bovenste norm voor trillingsterkte Vmax

0,8

0,4

A3 norm voor trillingsterkte Vper

0,1

0,1

 
Tabel 20.79.1

Trillingsoort

07.00 - 23.00 uur

23.00 - 07.00 uur

A1 onderste norm voor trillingsterkte Vmax

0,1

0,1

A2 bovenste norm voor trillingsterkte Vmax

0,4

0,2

A3 norm voor trillingsterkte Vper

0,05

0,05

Tabel 20.79.2

Trillingsoort

07.00 - 23.00 uur

23.00 - 07.00 uur

A1 onderste norm voor trillingsterkte Vmax

0,2

0,2

A2 bovenste norm voor trillingsterkte Vmax

0,8

0,4

A3 norm voor trillingsterkte Vper

0,1

0,1

T

Artikel 20.81 wordt op de aangegeven wijze gewijzigd:

Artikel 20.81 Algemene regels: geurveroorzakende activiteit

Bij het uitoefenen van een geurveroorzakende activiteit in een zone voor geur geldt dat wordt voldaan aan de volgende regels:

  • a.

    bij het verrichten van een activiteit binnen de zone geurruimte bedrijventerrein - zone geur verruimd Centerpoort-Noord IIis de toelaatbare geur niet meer dan de waarden in tabel 20.81.1. De waarden gelden op de in de tabel aangegeven afstand van de grens van de locatie waar de activiteit wordt verricht, tenzij in dit artikel anders is bepaald;

  • b.

    bij de toepassing van dit artikel wordt geen rekening gehouden met het effect van bebouwing die aanwezig is in het gebied buiten de grens van de locatie waar de activiteit wordt verricht;

  • c.

    de in dit artikel gegeven geurwaarden gelden op een hoogte van 1,5 meter boven het plaatselijk maaiveld. Als voor een activiteit op een andere hoogte een hogere geurbelasting optreedt gelden de waarden ook op de voor de activiteit maatgevende rekenhoogte;

  • d.

    de in de artikel gegeven geurwaarden gelden niet voor situaties die niet representatief zijn voor de activiteit. 

Tabel 20.81.1

Werkingsgebied

Waar de norm geldt

Als 98 percentiel

Als 99,9 percentiel

Binnen de zone geurruimte bedrijventerrein - zone geur verruimd Centerpoort-Noord II 

100 m vanaf de grens van de activiteitlocatie

0,5 ouE/m3 

2  ouE/m3 

Voor zover de afstand van 100 meter vanaf de grens van de activiteitlocatie tot buiten de zone geurruimte bedrijventerrein - zone geur verruimd Centerpoort-Noord II komt, geldt de afstand tot de grens van de zone verruimd of, als die afstand minder is dan 50 meter, geldt een afstand van 50 meter. 

Tot grens zone geurruimte bedrijventerrein - zone geur verruimd Centerpoort-Noord II of 50 meter

0,5 ouE/m3

2  ouE/m3 

 
Tabel 20.81.1

Werkingsgebied

Waar de norm geldt

Als 98 percentiel

Als 99,9 percentiel

Binnen de zone geurruimte bedrijventerrein - zone geur verruimd Centerpoort-Noord II 

100 m vanaf de grens van de activiteitlocatie

0,5 ouE/m3 

2  ouE/m3 

Voor zover de afstand van 100 meter vanaf de grens van de activiteitlocatie tot buiten de zone geurruimte bedrijventerrein - zone geur verruimd Centerpoort-Noord II komt, geldt de afstand tot de grens van de zone verruimd of, als die afstand minder is dan 50 meter, geldt een afstand van 50 meter. 

Tot grens zone geurruimte bedrijventerrein - zone geur verruimd Centerpoort-Noord II of 50 meter

0,5 ouE/m3

2  ouE/m3 

U

Na titel 20.1 wordt een titel ingevoegd, luidende:

Titel 20.2 Geur- en spuitzonering Plakse Weide

Afdeling 20.2.1 Algemeen

Artikel 20.88 Toepassingsbereik titel 20.2
  • 1.

    De regels in titel 20.2 zijn van toepassing op milieubelastende activiteiten in verband met geur van landbouwhuisdieren en paarden en pony's voor het berijden in een dierenverblijf en het gebruik van gewasbeschermingsmiddelen bij het telen van gewassen in de openlucht. 

  • 2.

    De regels in deze titel gelden op de locatie besluitgebied - Geur- en spuitzonering Plakse Weide, tenzij elders in deze titel is bepaald dat de regel slechts in een gedeelte van dat gebied van toepassing is. 

Artikel 20.89 Aanwijzing en geometrische begrenzing besluitgebied 'Geur en spuitzonering Plakse Weide'

Er is een besluitgebied - Geur- en spuitzonering Plakse Weide

Artikel 20.90 Doelen / Oogmerken

Binnen het besluitgebied - Geur- en spuitzonering Plakse Weide gelden de volgende doelen:

  • a.

    een veilige en gezonde fysieke leefomgeving en het waarborgen van een aanvaardbaar woon- en leefklimaat, onder andere als het gaat om geur door agrarische activiteiten en het gebruiken van gewasbeschermingsmiddelen bij het telen van gewassen in de openlucht;

  • b.

    het waarborgen van een aantrekkelijk ruimtelijk-economisch vestigingsklimaat, waaronder het bieden van voldoende fysieke- en milieuruimte voor milieubelastende (agrarische) bedrijven en andere activiteiten, anders dan wonen; en

  • c.

    het beschermen van het milieu, waaronder het beschermen van de luchtkwaliteit en de (ecologische) kwaliteit van bodem- en watersystemen, ten aanzien van het gebruiken van gewasbeschermingsmiddelen bij het telen van gewassen in de openlucht.

Artikel 20.91 Voorrangsbepaling
  • 1.

    De regels in deze titel gaan – voor zover de regels daarmee in strijd zijn – vóór op de regels in artikel 3 van het bestemmingsplan "Buitengebied 2013", waarvan de geometrisch bepaalde planobjecten zijn vervat in het GML-bestand NL.IMRO.0226.BPBuitengebied-VS02,  dat onderdeel vormt van het tijdelijke deel van het omgevingsplan als bedoeld in artikel 4.6 eerste lid onder g van de Invoeringswet Omgevingswet.

  • 2.

    In aanvulling op het eerste lid, gaan de regels in deze titel – voor zover de regels daarmee in strijd zijn – ook vóór op de regels in artikel 3 van het bestemmingsplan ''Reparatieplan Buitengebied 2013'', waarvan de geometrisch bepaalde planobjecten zijn vervat in het GML-bestand NL.IMRO.0226.BPBUITENGEBIED011-VS01, dat onderdeel vormt van het tijdelijke deel van het omgevingsplan als bedoeld in artikel 4.6 eerste lid onder g van de Invoeringswet Omgevingswet.

Afdeling 20.2.2 Milieubelastende activiteiten - Geur- en spuitzonering Plakse Weide

Paragraaf 20.2.2.1 Geur
Subparagraaf 20.2.2.1.1 Algemene bepalingen

Artikel 20.92 Toepassingsbereik paragraaf 20.2.2.1

  • 1.

    Deze paragraaf is van toepassing op de geur door een activiteit, anders dan wonen, op een geurgevoelig gebouw. 

  • 2.

    Deze paragraaf is niet van toepassing op een geurgevoelig gebouw dat is toegelaten voor een duur van minder dan tien jaar.

  • 3.

    Artikel 22.41, tweede lid, is van overeenkomstige toepassing op deze paragraaf.

Artikel 20.93 Waar waarden gelden en tot waar afstanden gelden

De waarden en de afstanden, als bedoeld in subparagraaf 20.2.2.1.2, voor de geur door een activiteit op de locatie veehouderij - Laarstraat 20, op een geurgevoelig gebouw gelden: 

  • a.

    als het gaat om een geurgevoelig gebouw: op of tot de gevel;

  • b.

    als het gaat om een nieuw te bouwen geurgevoelig gebouw: op of tot de locatie waar een gevel mag komen; en

  • c.

    in afwijking van de onderdelen a en b, als het gaat om een woonwagen, tot de begrenzing van de locatie voor het plaatsen van die woonwagen.

Subparagraaf 20.2.2.1.2 Geur door het houden van landbouwhuisdieren of paarden en pony's voor het berijden in een dierenverblijf

Artikel 20.94 Toepassingsbereik subparagraaf 20.2.2.1.2

  • 1.

    Deze subparagraaf is van toepassing op de geur op een geurgevoelig gebouw door het, in een dierenverblijf, houden van: 

    • a.

      landbouwhuisdieren; of 

    • b.

      paarden en pony's die gehouden worden voor het berijden. 

  • 2.

    Deze subparagraaf is niet van toepassing op het houden van minder dan 10 schapen, 5 paarden en pony’s, 10 geiten, 25 stuks pluimvee, 25 konijnen en 10 overige landbouwhuisdieren.

Artikel 20.95 Vanaf waar afstanden gelden

Een afstand als bedoeld in deze subparagraaf geldt vanaf het emissiepunt van een dierenverblijf, bedoeld in artikel 4.806, tweede lid, van het Besluit activiteiten leefomgeving, op de locatie veehouderij - Laarstraat 20.  

Artikel 20.96 Landbouwhuisdieren met geuremissiefactor: waarden voor geur op een geurgevoelig gebouw

  • 1.

    Bij het houden van landbouwhuisdieren met geuremissiefactor, op de locatie veehouderij - Laarstraat 20, is de geur op een geurgevoelig gebouw door de activiteit niet hoger dan de waarde, bedoeld in tabel 20.2.1. 

    Tabel 20.2.1 - Waarde voor geur ouE/m3 als 98-percentiel door het houden van landbouwhuisdieren met geuremissiefactor op een geurgevoelig gebouw

    Geurgevoelig gebouw

    Waarde 

    binnen de bebouwingscontour geur 

    3,0 ouE/m3

    buiten de bebouwingscontour geur 

    14,0 ouE/m3

     

  • 2.

    In afwijking van het eerste lid, is bij het houden van landbouwhuisdieren met geuremissiefactor, op de locatie veehouderij - Laarstraat 20, de geur op een geurgevoelig gebouw, binnen de bebouwingscontour geur, niet hoger dan ter plaatse is aangegeven met geurnorm - Plakse Weide fase II

  • 3.

    In afwijking van het eerste lid, is bij het houden van landbouwhuisdieren met geuremissiefactor, op de locatie veehouderij - Laarstraat 20, de geur door de activiteit op een geurgevoelig gebouw binnen dan wel buiten de bebouwingscontour, niet hoger dan de waarde op de coördinaten, zoals genoemd in tabel 20.2.2. 

    Tabel 20.2.2 - Waarde voor geur ouE/m3 als 98-percentiel door het houden van landbouwhuisdieren met geuremissiefactor op een geurgevoelig gebouw - specifieke coördinaten

    Adres

    X-coördinaat

    Y-coördinaat

    Waarde

    Laarstraat 10

    199.825

    440.174

    10,0

    Plaksestraat 6

    199.793

    440.022

    4,3

    Roodwilligenstraat 1

    199.773

    440.660

    2,7

    Achtersteweide 12-14

    199.617

    440.467

    2,7

    Rijksweg nabij nr. 70

    199.654

    439.858

    1,9

    Roodwilligenstraat 1B

    199.866

    440.671

    2,9

    Laarstraat 1 

    199.951

    440.514

    5,8

  • 4.

    Op het berekenen van geur, als bedoeld in het eerstetweede en derde lid, is artikel 6.14 van de Omgevingsregeling van toepassing. 

Artikel 20.97 Landbouwhuisdieren zonder geuremissiefactor of paarden en pony's voor het berijden: afstand tot een geurgevoelig gebouw

Bij het houden van landbouwhuisdieren zonder geuremissiefactor of paarden en pony's die gehouden worden voor het berijden, op de locatie veehouderij - Laarstraat 20, bedraagt de afstand tot een geurgevoelig gebouw tenminste de afstand, bedoeld in tabel 20.2.2.  

Tabel 20.2.2 - Afstand tot een geurgevoelig gebouw - bij geur door het houden van landbouwhuisdieren zonder geuremissiefactor of paarden en pony's voor het berijden

Geurgevoelig gebouw

Afstand

binnen de bebouwingscontour geur 

50 m

buiten de bebouwingscontour geur 

50 m 

Artikel 20.98 Landbouwhuisdieren of paarden en pony's voor het berijden: afstand vanaf de gevel dierenverblijf tot een geurgevoelig gebouw 

  • 1.

    Onverminderd artikel 20.96 en artikel 20.97, bedraagt de afstand, bij het houden van landbouwhuisdieren of paarden en pony's die worden gehouden voor het berijden, tot een geurgevoelig gebouw ten minste de afstand, bedoeld in tabel 20.2.3. 

    Tabel 20.2.3 - Afstand gevel dierenverblijf tot een geurgevoelig gebouw - bij geur door het houden van landbouwhuisdieren of paarden en pony's die gehouden worden voor het berijden

    Geurgevoelig gebouw

    Afstand

    binnen de bebouwingscontour geur 

    50 m

    buiten de bebouwingscontour geur 

    25 m

  • 2.

    In afwijking van artikel 20.95, geldt de afstand, bedoeld in het eerste lid van dit artikel, vanaf de gevel van een dierenverblijf. 

Paragraaf 20.2.2.2 Spuitzonering
Artikel 20.99 Toepassingsbereik paragraaf 20.2.2.2

Deze paragraaf is van toepassing op het gebruiken van gewasbeschermingsmiddelen bij het telen van gewassen in de openlucht, als bedoeld in artikel 3.208 van het Besluit activiteiten leefomgeving. 

Artikel 20.100 Verbod gebruik van gewasbeschermingsmiddelen
  • 1.

    Het is verboden om op de locatie spuitvrije zone Plakse Weide gewasbeschermingsmiddelen te gebruiken bij het telen van gewassen in de openlucht.

  • 2.

    Het eerste lid is niet van toepassing als het gaat om Skal-gecertificeerde teelten, tenzij daarbij paraffineoliën worden gebruikt. 

Artikel 20.101 Overgangsbepaling uit artikel 23.1 en 23.3 niet van toepassing 

Het overgangsrecht over bestaande gebruiksrechten, als bedoeld in artikel 23.1 en artikel 23.3, is niet van toepassing op de regels over spuitzonering in deze paragraaf, binnen de locatie spuitvrije zone Plakse Weide 

V

Hoofdstuk 19 wordt geplaatst na hoofdstuk 20. Hoofdstuk 19 wordt op de aangegeven wijze gewijzigd:

Hoofdstuk 19 21 Gereserveerd TAM-omgevingsplannen GERESERVEERD

[Gereserveerd]

W

Hoofdstuk 21 wordt op de aangegeven wijze gewijzigd:

Hoofdstuk 21 GERESERVEERD

[Gereserveerd]

[Vervallen]

X

Artikel 22.7 wordt op de aangegeven wijze gewijzigd:

Artikel 22.7 Repressief welstand

  • 1.

    Het uiterlijk van de volgende bouwwerken mag niet in ernstige mate in strijd zijn met redelijke eisen van welstand, beoordeeld volgens de criteria van de welstandsnota, bedoeld in artikel 12a, eerste lid, van de Woningwet, zoals dat artikel tot de inwerkingtreding van de Omgevingswet gold:

    • a.

      een bestaand bouwwerk, met uitzondering van een tijdelijk bouwwerk dat geen seizoensgebonden bouwwerk is; en

    • b.

      een te bouwen bouwwerk waarvoor geen omgevingsvergunning voor een omgevingsplanactiviteit is vereist.

  • 2.

    Het eerste lid is niet van toepassing als het gaat om een in het tijdelijke deel van dit omgevingsplan, bedoeld in artikel 22.1, onder a, van de Omgevingswet, aangewezen gebied of bouwwerk waarvoor geen redelijke eisen van welstand van toepassing  zijn.

Y

Hoofdstuk 23 wordt op de aangegeven wijze gewijzigd:

Hoofdstuk 23 OVERGANGSRECHT Overgangsrecht

Afdeling 23.1 Overgangsbepaling Overgangsrecht

[Gereserveerd]

Paragraaf 23.1.1 Overgangsrecht bij vervallen bestemmingsplannen
Artikel 23.5 Herziening van het omgevingsplan

Indien binnen een periode van vijf jaar na de inwerkingtreding van dit omgevingsplan een herziening van dit plan plaatsvindt, wordt bij de herziening rekening gehouden met de bestaande rechten en verplichtingen zoals genoemd in de vorige artikelen. De herziening zal gericht zijn op het borgen van een rechtmatige overgang van de oude situatie naar de nieuwe regelgeving.

Artikel 23.6 Tijdelijke regelingen

Voor bouwwerken, gebruiksrechten of andere handelingen die zich tijdens de overgangsperiode in een situatie bevinden die niet direct voldoet aan de bepalingen van dit omgevingsplan, kunnen tijdelijke afwijkingen worden toegestaan. Een tijdelijke afwijking kan maximaal 5 jaar duren, waarna het omgevingsplan volledig van toepassing wordt.

Afdeling 23.2 Overgangsrecht voormalige rijksregels (bruidsschat)

[Gereserveerd]

Afdeling 23.3 Overgangsrecht bij bestemmingsplannen

[Red: Artikel 23.1 verplaatst van paragraaf 23.1.1 naar afdeling 23.3. ]

Artikel 23.1 Bestaande rechten en verplichtingen

Voor zover de regels in dit omgevingsplan afwijken van de geldende bepalingen in de onderliggende bestemmingsplannen, blijven de rechten en verplichtingen die voortvloeien uit de betreffende bestemmingsplannen, zoals verleende vergunningen en vastgestelde gebruiksmogelijkheden, van kracht totdat het omgevingsplan wordt herzien of er een nieuwe omgevingsvergunning wordt verleend, tenzij anders bepaald in dit omgevingsplan.

Bestaande rechten en verplichtingen die op basis van de bepalingen van de geldende bestemmingsplannen zijn toegestaan, maar niet voldoen aan de regels in dit omgevingsplan, mogen worden voortgezet. Bij wijziging van bestaande rechten en verplichtingen dient te worden voldaan aan de regels van dit omgevingsplan. 

[Red: Artikel 23.2 verplaatst van paragraaf 23.1.1 naar afdeling 23.3. ]

Artikel 23.2 Bestaande bouwwerken

Bouwwerken die rechtmatig zijn opgericht en voldoen aan de bepalingen van de geldende bestemmingsplannen, maar niet voldoen aan de regels in dit omgevingsplan, worden geacht rechtmatig te zijn en mogen, behoudens de bepalingen van artikel 2.1 van de Omgevingswet (over het verbod op strijdige activiteiten), in stand blijvenworden gehouden. Wijzigingen aan bestaande bouwwerken zijn toegestaan, mits deze geen strijdigheid veroorzaken met dit omgevingsplan. 

[Red: Artikel 23.3 verplaatst van paragraaf 23.1.1 naar afdeling 23.3. ]

Artikel 23.3 Bestaande gebruiksrechten
  • 1.

    Het gebruik van onroerende zaken, zoals toegestaan onder de geldende bestemmingsplannen, wordt geacht een rechtmatig gebruik te zijn,mag worden voortgezet zolang het gebruik niet verandert of wordt gewijzigd, of tenzij het omgevingsplan bepaalt dat dit gebruik niet langer toegestaan is. Bij wijziging van het gebruik dient te worden voldaan aan de regels van dit omgevingsplan.

  • 2.

    Als het gebruik, bedoeld in het eerste lid, voor een periode langer dan één jaar aaneengesloten wordt onderbroken, is het verboden dit gebruik daarna te hervatten of te laten hervatten. 

[Red: Artikel 23.4 verplaatst van paragraaf 23.1.1 naar afdeling 23.3. ]

Artikel 23.4 Lopende procedures

Vergunningaanvragen die opvoor het moment van inwerkingtredingde wijziging van dit omgevingsplan reeds in behandeling zijn, worden verder behandeld conformvolgens de regels  die golden op het moment van de aanvraag, tenzij de aanvraag op dat moment nog niet is afgerond.  

Z

Bijlage I wordt op de aangegeven wijze gewijzigd:

Bijlage I Overzicht Informatieobjecten

Ambtsgebied Gemeente Duiven (- veehouderij Laarstraat 20)

/join/id/regdata/gm0226/2025/cbde1a9178854cdc8f8c2cc13e75f16f/nld@2025‑11‑06;11105025

bebouwingscontour geur 

/join/id/regdata/gm0226/2025/0b7bf89c600a4de1b5b513c319782b7c/nld@2025‑11‑06;11105025

bedrijventerrein Centerpoort-Noord II

/join/id/regdata/gm0226/2024/773ae603bc80476f84d95612903d203f/nld@2025‑06‑24;10084881

besluitgebied - Centerpoort-Noord II

/join/id/regdata/gm0226/2024/8a84f9bfd2014f61886885212b9888d5/nld@2025‑06‑24;10084881

besluitgebied - Geur- en spuitzonering Plakse Weide

/join/id/regdata/gm0226/2025/c0d13f67aadc4dd9b7d19fa70d4a0e21/nld@2025‑11‑06;11105025

functie - bedrijventerrein Centerpoort-Noord II

/join/id/regdata/gm0226/2024/e5c78910f07a41a2a508f97c7bd4446e/nld@2025‑06‑24;10084881

functie - groen Centerpoort-Noord II

/join/id/regdata/gm0226/2024/b002928e5fc7430c8b1ee36d140dfcdd/nld@2025‑06‑24;10084881

functie - verkeer Centerpoort-Noord II

/join/id/regdata/gm0226/2024/ac2bf4bd30584ecc8885347c6ebf0613/nld@2025‑06‑24;10084881

geluidruimte bedrijventerrein - zone 4geluid verruimd Centerpoort-Noord II

/join/id/regdata/gm0226/2024/f4544b4ee2934b29ac80cdd07d8a3b96/nld@2025‑06‑24;10084881

/join/id/regdata/gm0226/2024/f4544b4ee2934b29ac80cdd07d8a3b96/nld@2025‑11‑06;11105025

geurnorm - Plakse Weide fase II

/join/id/regdata/gm0226/2025/1c5f1bddbdf2485b816f195f8f2fa14c/nld@2025‑11‑06;11105025

geurruimte bedrijventerrein - zone 3geur verruimd Centerpoort-Noord II

/join/id/regdata/gm0226/2024/a8b72e13889f4ef69d3d1ab1cfa8aaf5/nld@2025‑06‑24;10084881

/join/id/regdata/gm0226/2024/a8b72e13889f4ef69d3d1ab1cfa8aaf5/nld@2025‑11‑06;11105025

groen Centerpoort-Noord II

/join/id/regdata/gm0226/2024/4922e42e40fb45468574eee8196d3651/nld@2025‑06‑24;10084881

Waardengebied - archeologische vindplaats

/join/id/regdata/gm0226/2024/3bc758dea4cb4ede95542d700fe258b7/nld@2025‑06‑24;10084881

locatie waardengebied - archeologische vindplaats Centerpoort-Noord II

/join/id/regdata/gm0226/2024/3bc758dea4cb4ede95542d700fe258b7/nld@2025‑11‑06;11105025

Ontwikkelgebied Centerpoort-Noord II

/join/id/regdata/gm0226/2024/afa1d720add6408bb9ae348e93881c95/nld@2025‑06‑24;10084881

spuitvrije zone Plakse Weide 

/join/id/regdata/gm0226/2025/6359ee27ba4b4bee9881fb61c169a42b/nld@2025‑11‑06;11105025

veehouderij - Laarstraat 20

/join/id/regdata/gm0226/2025/d361be0339e44efea58013557986a1af/nld@2025‑11‑06;11105025

verkeer Centerpoort-Noord II

/join/id/regdata/gm0226/2024/cdb87337fa9241b397d6ba90b6ed84de/nld@2025‑06‑24;10084881

tankstation

/join/id/regdata/gm0226/2024/19ea7fc7e0324fa4b87d3f68ab209ab8/nld@2025‑06‑24;10084881

verkooppunt motorbrandstoffen zonder LPG/LNG Centerpoort- Noord II

/join/id/regdata/gm0226/2024/19ea7fc7e0324fa4b87d3f68ab209ab8/nld@2025‑11‑06;11105025

vulpunt waterstof

/join/id/regdata/gm0226/2024/6392a90459074a5fb8d757c0ad9ca2a1/nld@2025‑06‑24;10084881

vulpunt waterstof Centerpoort-Noord II

/join/id/regdata/gm0226/2024/6392a90459074a5fb8d757c0ad9ca2a1/nld@2025‑11‑06;11105025

waardengebied - archeologische vindplaats Centerpoort-Noord II

/join/id/regdata/gm0226/2024/4602555339b64654ac7ab35ec42d0d73/nld@2025‑06‑24;10084881

waterberging

/join/id/regdata/gm0226/2024/a548d559625843738c58053f1496f2c1/nld@2025‑06‑24;10084881

waterberging Centerpoort-Noord II

/join/id/regdata/gm0226/2024/a548d559625843738c58053f1496f2c1/nld@2025‑11‑06;11105025

AA

Het opschrift van bijlage II wordt op de aangegeven wijze gewijzigd:

Bijlage II BIJ ARTIKEL 1.1, TWEEDEVIERDE LID, VAN DIT OMGEVINGSPLAN, BEGRIPSBEPALINGEN

BB

Bijlage III wordt op de aangegeven wijze gewijzigd:

Bijlage III Begripsbepalingen Centerpoort-Noord IIwijzigingsplannen

Archeologisch onderzoek

Onderzoek verricht door of namens een bedrijf dat beschikt over het in artikel 1, eerste lid, van de Erfgoedwet, bedoelde certificaat.

ASVV

Deze afkorting staat voor Aanbevelingen Stedelijke Verkeersvoorzieningen en betreft een uitgave van de CROW.

Bebouwing

Eén of meer gebouwen en/of bouwwerken geen gebouw zijnde. 

Bebouwingspercentage

De gezamenlijke oppervlakte van gebouwen op een bouwperceel, in procenten van de oppervlakte van dat bouwperceel.

Bedrijf

Een onderneming gericht op het bedrijfsmatig produceren, bewerken, herstellen, installeren of inzamelen van goederen evenals verhuur, opslag en distributie van goeden en het bedrijfsmatig verlenen van diensten dan wel internetverkoop, zelfstandige kantoren en aan huis verbonden beroepen daaronder niet begrepen.

Bedrijfsactiviteit

Een activiteit gericht op het produceren, bewerken, herstellen, installeren of inzamelen van goederen en ook verhuur, opslag en distributie van goederen. 

Bedrijfsgebouw

Een gebouw dat dient voor de uitoefening van een bedrijfsactiviteit.

Beoordelingsregel

Regel op grond van artikel 5.21, eerste lid, onder a, van de Omgevingswet. Burgemeester en wethouders toetsen een omgevingsvergunningaanvraag aan deze regel.

Bijbehorend bouwwerk

Uitbreiding van een hoofdgebouw of functioneel met een zich op hetzelfde perceel bevindend hoofdgebouw verbonden, daar al dan niet tegen aangebouwd gebouw, of ander bouwwerk, met een dak (Invoeringsbesluit Omgevingswet)

Bodemingreep

 

Grondwerkzaamheden, waartoe onder meer worden gerekend:

  • a.

    het afgraven van grond waaronder ook wordt begrepen het verwijderen van bestaande funderingen en het graven of vergraven, verruimen of dempen van sloten, vijvers en andere wateren en het aanleggen van drainage;

  • b.

    woelen, mengen, diepploegen, egaliseren en ontginnen van gronden;

  • c.

    het verlagen van het waterpeil;

  • d.

    het tot stand brengen en / of in exploitatie brengen van boor- en pompputten;

  • e.

    het uitvoeren van hei- en / of boorwerken en / of indrijven van scherpe voorwerpen in de bodem;

  • f.

    het aanleggen van bos of boomgaard, of het rooien van bos of boomgaard waarbij stobben worden verwijderd;

  • g.

    het aanleggen, verbreden of verharden van wegen, voet-, ruiter- of rijwielpaden, banen of parkeergelegenheden en het aanleggen van andere oppervlakteverhardingen;

  • h.

    het aanleggen van nieuwe en / of het vervangen en / of uitbreiden van bestaande (ondergrondse) transport-, energie-, riool- of telecommunicatieleidingen en daarmee verband houdende constructies, installaties of apparatuur.

Bouwen

Het plaatsen, oprichten, vernieuwen of veranderen en het vergroten van een bouwwerk.

CROW

Oorspronkelijke afkorting van 'Centrum voor Regelgeving en Onderzoek in de Grond-, Water- en Wegenbouw en de Verkeerstechniek, non-profit kennispartner voor (decentrale) overheden, aannemers en adviesbureaus.

Detailhandel

Het bedrijfsmatig te koop aanbieden, waaronder begrepen de uitstalling ten verkoop, het verkopen en/of leveren van goederen aan personen die die goederen kopen voor gebruik, verbruik of aanwending anders dan in de uitoefening van een beroeps- of bedrijfsactiviteit.

Duurzaam bedrijventerrein

Een duurzaam bedrijventerrein betekent dat het terrein op weg is om klimaatneutraal en circulair te worden. Het terrein is een groen werklandschap met veel aandacht voor biodiversiteit en klimaatadaptatie. De bedrijven op het terrein ondernemen duurzaam.

Eigen terrein 

Het terrein en/of bouwwerk dat de aanvrager in eigendom of in gebruik heeft en waarover hij duurzaam kan beschikken en die bij het te realiseren (bouw)plan en/of het bouwwerk horen.

Functie

Een onderscheidend kenmerk van een locatie waaruit blijkt voor welke activiteiten de locatie bedoeld of geschikt is; functie in de zin van artikel 4.2 van de Omgevingswet; in het tijdelijk deel van het omgevingsplan: bestemming.

Gebouw

Een bouwwerk dat een voor mensen toegankelijke, overdekte, geheel of gedeeltelijk met wanden omsloten ruimte vormt.

Geluidbelasting Lden

Geluidbelasting of andere geluidwaarde op een plaats en door een bron over alle perioden van 07.00 tot 19.00 uur, van 19.00 tot 23.00 uur en van 23.00 tot 07.00 uur van een jaar als omschreven in bijlage I, onder 1, bij de richtlijn omgevingslawaai.

Geluidbelasting Lnight

Geluidbelasting of andere geluidwaarde op een plaats en door een bron over alle perioden van 23.00 tot 07.00 uur van een jaar als omschreven in bijlage I, onder 2, bij de richtlijn omgevingslawaai.

Geluidluwe gevel

Gevel die ten opzichte van de andere gevels van een geluidgevoelig gebouw relatief weinig wordt belast door geluid.

Geluidveroorzakende activiteit

Een activiteit als bedoeld in de afdelingen 3.3 tot en met 3.11 van het Besluit activiteiten leefomgeving of als het gaat om andere activiteiten, meerdere activiteiten die worden verricht op dezelfde locatie en die rechtstreeks met elkaar samenhangen en met elkaar in technisch verband staan of elkaar functioneel ondersteunen, die binnen een bedrijfslocatie wordt uitgevoerd en die geluid genereert.

Geluidwerende maatregel

Fysieke maatregel aan een gebouw die de geluidwering van de uitwendige scheidingsconstructie verhoogt.

Hoofdgebouw

Gebouw, of bouwkundig en functioneel te onderscheiden gedeelte daarvan, dat noodzakelijk is voor het verrichten van andere activiteiten dan bouwactiviteiten die op grond van het omgevingsplan of een omgevingsvergunning voor een omgevingsplanactiviteit op het perceel zijn toegestaan en, als meer gebouwen op het perceel aanwezig zijn, gelet op die toegestane activiteiten het belangrijkst is (Besluit bouwwerken leefomgeving).

Kunstwerk

Een (civiel) kunstwerk is, in bouwkundige zin, een door mensenhanden gemaakt, meestal niet voor bewoning bestemd bouwwerk.

Langtijdgemiddelde beoordelingsniveau: (LAr,LT)

Het gemiddelde van de afwisselende niveaus van het ter plaatse optredende geluid, gemeten in een bepaalde periode en vastgesteld en beoordeeld volgens de bij ministeriële regeling gestelde regels.

Lichte horeca

Een bedrijf of inrichting gericht op de verkoop van al dan niet voor consumptie ter plaatse bereide kleine etenswaren, het verstrekken van alcoholvrije dranken en/of het verstrekken van consumptie-ijs, al dan niet in combinatie met andere diensten, zoals een fastfoodrestaurant, cafetaria, snackbar, shoarmazaken, lunchroom, koffie-theehuis of ijssalon.

Materialenpaspoort

Een materialenpaspoort is een (digitaal) document met informatie over welke materialen bij de bouw gebruikt zijn, in welke hoeveelheden en de wijze van montage van de materialen. 

Maximaal geluidsniveau LAmax

Maximaal geluidsniveau gemeten in de meterstand «F» of «fast» als vastgesteld en beoordeeld volgens de bij ministeriële regeling gestelde regels.

Omgevingsvergunning

De omgevingsvergunning zoals bedoeld in artikel 5.1 van de Omgevingswet, voor activiteiten die geregeld worden in het omgevingsplan.

Ondergeschikte bouwdelen

Ondergeschikte delen aan een gebouw zoals trappen, bordessen, funderingen, kelderingangen, overstekende daken, goten, luifels, balkons, balkonhekken, schoorstenen, liftopbouwen en andere ondergeschikte dakopbouwen.

Ondergeschikte detailhandel 

Detailhandel als activiteit die in ruimtelijk, functioneel en inkomenswervend opzicht duidelijk gerelateerd is, maar ondergeschikt is aan de op de ingevolge het omgevingsplan toegestane hoofdfunctie.

Regionaal bedrijventerrein

Een bedrijventerrein met een overwegende kavelgrootte > 0,5 ha en/of een aantoonbaar regionale werkgelegenheidsfunctie.

Straatpeil 

 

  • a.

    Voor een gebouw waarvan de hoofdtoegang direct aan de weg grenst: de hoogte van de kruin van de weg ter plaatse van die hoofdtoegang; en 

  • b.

    Voor andere gebouwen en bouwwerken, geen gebouwen zijnde: de gemiddelde hoogte van het aansluitende afgewerkte maaiveld.

  • c.

    Voor een bouwwerk waarvan de hoofdtoegang niet direct aan de weg grenst: de hoogte van het aansluitende afgewerkte terrein, waarbij plaatselijke, niet bij het verdere verloop van het terrein passende ophogingen of verdiepingen aan de voet van het bouwwerk, anders dan noodzakelijk voor de bouw daarvan, buiten beschouwing blijven.

  • d.

    Indien in of op het water wordt gebouwd: de hoogte van het terrein ter plaatse van het meest nabijgelegen punt waar het water grenst aan het vaste land.

Verhard oppervlak

Een oppervlak waarop ofwel een bouwwerk ofwel niet-waterdoorlatende verharding aanwezig is. Denk hierbij bijvoorbeeld aan asfalt of andere terreinverharding waardoor het (hemel)water dat hierop terechtkomt niet de grond in kan trekken.

Verkooppunt voor motorbrandstoffen zonder LPG/LNG

Een inrichting die bedoeld is voor het verkopen en verstrekken van brandstoffen aan voertuigen met uitzondering van LPG en LNG, en die daarnaast voorzieningen omvat zoals ondergeschikte detailhandel, een carwash en lichte horeca.

Vulpunt voor waterstof

Een vulpunt voor waterstof bestaande uit een installatie of infrastructuur die is bestemd voor het vullen van opslagtanks met waterstofgas.

Windwokkel

Een Savonius verticale-as apparaat voor het opwekken van elektrisch of thermisch vermogen uit wind.

Skal-gecertificeerde teelten

Bij biologische teelt is het gebruik van chemisch-synthetische gewasbeschermingsmiddelen verboden. Het Skal-certificaat wordt uitgegeven aan biologische teelten en garandeert dat er wordt voldaan aan de wettelijke voorschriften. Alleen specifieke middelen, die op de Skal Inputlijst staan, mogen worden gebruikt als biologische alternatieven voor gewasbescherming. Deze middelen bestaan uit stoffen die in de Verordening (EU) 2021/1165 Bijlage I, of diens rechtsopvolger, zijn toegestaan.

CC

De volgende sectie wordt op de aangegeven wijze gewijzigd:

Artikel 22.2 Overgangsrecht: gemeentelijke monumenten en voorbeschermde gemeentelijke monumenten

Bijlage I bij het Bbl bevat de begrippen «gemeentelijk monument» en «voorbeschermd gemeentelijk monument». Deze begrippen gelden op grond van artikel 1.1eerstederde lid, van dit omgevingsplan ook voor dit plan. Deze begrippen worden gebruikt in de artikelen 22.28, eerste en tweede lid, 22.38, 22.287, 22.288, 22.290 tot en met 22.293 en 22.295.

De begripsomschrijvingen van bovengenoemde begrippen zijn toegesneden op de wijze waarop de bescherming van monumenten en archeologische monumenten op gemeentelijk niveau via het toekennen van een beschermde status en daardoor het van toepassing worden van bepaalde regels onder het nieuwe recht van de Omgevingswet vorm krijgt. Dit gebeurt door aan het monument of archeologisch monument in dit omgevingsplan de functie-aanduiding gemeentelijk monument te geven en, als het gaat om een voorbeschermd monument of archeologisch monument, door het voor de locatie van het monument of archeologisch monument toevoegen van een voorbeschermingsregel aan dit omgevingsplan via een voorbereidingsbesluit vanwege het voornemen om aan dat monument of archeologisch monument in dit omgevingsplan de functie-aanduiding gemeentelijk monument te geven.

Daarmee zouden buiten de reikwijdte van bovengenoemde begrippen vallen monumenten en archeologische monumenten op gemeentelijk niveau die onder het voor de Omgevingswet geldende recht als gemeentelijk monument of archeologisch monument zijn aangewezen op grond van een gemeentelijke verordening of een voorbeschermde status hebben verkregen op grond van een zodanige verordening, en waaraan nog niet direct bij de inwerkingtreding van de Omgevingswet in dit omgevingsplan de functie-aanduiding gemeentelijk monument is gegeven of waarvoor op dat moment in het omgevingsplan nog geen voorbeschermingsregel is opgenomen. In de praktijk werden onder het voormalige recht onder de begrippen «gemeentelijk monument» en «voorbeschermd gemeentelijk monument» dergelijke monumenten en archeologische monumenten verstaan (hierna samen te noemen: gemeentelijke monumenten «oude stijl»).

Dit gevolg, dat niet is beoogd, kan zich voordoen tot het bij koninklijk besluit te bepalen tijdstip waarop gemeenten over een omgevingsplan moeten beschikken dat voldoet aan alle eisen van de Omgevingswet. Uiteraard moeten de hier bedoelde gemeentelijke monumenten «oude stijl» gedurende deze overgangsfase wel adequaat worden beschermd. Dit is het geval zolang deze in dit omgevingsplan nog niet zijn voorzien van de functie-aanduiding gemeentelijk monument in het omgevingsplan of, voor zover het gaat om voorbeschermde monumenten of archeologische monumenten, ter zake een voorbeschermingsregel in dit omgevingsplan is opgenomen. Daarbij wordt er voor zover het gaat om voorbeschermde monumenten en archeologische monumenten op gewezen dat die onder de Omgevingswet niet per se eerst via een door een voorbereidingsbesluit toe te voegen voorbeschermingsregel aan het omgevingsplan hoeven te worden omgezet naar een voorbeschermd gemeentelijk monument in de zin van de begripsomschrijving uit bijlage I bij het Bbl. Afhankelijk van het tijdsverloop van de procedure tot aanwijzing op grond van de gemeentelijke verordening en van de procedure om tot vaststelling van een nieuw omgevingsplan te komen, kan er voor deze voorbeschermde monumenten en archeologische monumenten ook voor worden gekozen om deze direct, dus zonder hiervoor eerst een voorbeschermingsregel aan het omgevingsplan toe te voegen, in het nieuwe deel van het omgevingsplan de functie-aanduiding gemeentelijk monument te geven. Dit zal zich met name voordoen als de procedure tot aanwijzing op grond van de gemeentelijke verordening gedurende hetzelfde tijdvak gaande is als de procedure tot vaststelling van het omgevingsplan. In dat geval kan het zo zijn dat die procedure tot aanwijzing voldoende voorziet in de benodigde voorbescherming en hoeft die voorbescherming niet afzonderlijk met voorbeschermingsregels in het omgevingsplan te worden gecreëerd.

Voor zover het gaat om de continuering van de gelding van de gemeentelijke verordeningen zelf en een eventueel daarin opgenomen vergunningplicht wordt in de bescherming van de hier bedoelde gemeentelijke monumenten «oude stijl» al voorzien door de artikelen 22.4 en 22.8 van de Omgevingswet, zoals die artikelen bij de Invoeringswet Omgevingswet worden toegevoegd. Maar voor een adequate bescherming van deze gemeentelijke monumenten «oude stijl» is ook vereist dat de onderdelen van de artikelen 22.28, 22.38, 22.276, 22.277, 22.279 tot en met 22.282 en 22.284 die betrekking hebben op gemeentelijke monumenten en voorbeschermde gemeentelijke monumenten in overeenstemming met de daarvoor geldende begripsomschrijvingen, ook op deze gemeentelijke monumenten «oude stijl» van toepassing zijn. Artikel 22.2 van dit omgevingsplan voorziet hierin. Daarbij is het uiteraard zo dat als bij voorbeschermde monumenten en archeologische monumenten de uitkomst van de procedure tot aanwijzing op grond van de gemeentelijke verordening is dat wordt afgezien van de aanwijzing, op dat moment de voorbescherming vervalt en niet langer sprake is van een «monument of archeologisch monument waarop die verordening van overeenkomstige toepassing is» als bedoeld in artikel 22.2, eerste lid. Het van toepassing zijn van dit artikel op de hier bedoelde gemeentelijke monumenten «oude stijl» kan dus niet alleen worden beëindigd doordat gedurende de overgangsfase daaraan in het omgevingsplan de functie-aanduiding gemeentelijk monument wordt gegeven of ter zake in het omgevingsplan een voorbeschermingsregel wordt opgenomen (de situaties beschreven in artikel 22.2, tweede lid), waardoor de desbetreffende monumenten en archeologische monumenten rechtstreeks onder de begrippen gemeentelijk monument en voorbeschermd gemeentelijk monument komen te vallen, maar ook doordat de procedure tot aanwijzing op grond van de gemeentelijke verordening uiteindelijk niet tot een aanwijzing leidt.

DD

De volgende sectie wordt op de aangegeven wijze gewijzigd:

Artikel 22.83 lid 1

Deze paragraaf is van toepassing op de trillingen door een activiteit, in een trillinggevoelige ruimte van een trillinggevoelig gebouw. Dit artikel geldt alleen voor activiteiten die ook onder het algemene toepassingsbereik van deze afdeling voor milieubelastende activiteiten, bedoeld in artikel 22.41 vallen. Dat algemene toepassingsbereik probeert het oude begrip Wet milieubeheer-inrichting grotendeels te dekken. Zie daarover meer in de toelichting bij artikel 22.41. De trillingvoorschriften van het voormalige Activiteitenbesluit milieubeheer waren alleen van toepassing op deze Wet milieubeheer-inrichtingen. Deze paragraaf is alleen van toepassing op activiteiten die trillingen in een frequentie van 1 tot 80 Hz veroorzaken. Dat bleek onder het Activiteitenbesluit milieubeheer impliciet door de verwijzing naar normwaarden in de Meet- en beoordelingsrichtlijn B «Hinder voor personen» van de Stichting Bouwresearch.

De trillingparagraaf uit het voormalige Activiteitenbesluit milieubeheer was niet van toepassing op vergunningplichtige inrichtingen. Deze paragraaf van dit omgevingsplan is wel van toepassing op vergunningplichtige milieubelastende activiteiten. Voor vergunningplichtige milieubelastende activiteiten werden voor de inwerkingtreding van de Omgevingswet, soms trillingnormen of andere voorschriften ter beperking van trillinghinder opgenomen in de omgevingsvergunning voor milieubelastende activiteiten. Deze bestaande vergunningvoorschriften blijven op grond van artikel 4.13 van de Invoeringswet Omgevingswet gelden en hebben op grond van artikel 22.1, tweede lid van dit omgevingsplan voorrang op de regels voor trillingen in deze paragraaf van dit omgevingsplan.

Onder het voormalige Activiteitenbesluit milieubeheer werd bij de bescherming tegen trillinghinder verwezen naar de begrippen «geluidgevoelige ruimten» en «verblijfsruimten», bedoeld in de voormalige Wet geluidhinder. Het Bkl bevat eigen begrippen «trillinggevoelige gebouwen» en «trillinggevoelige ruimten». Deze gelden op grond van artikel 1.1eerstederde lid, van dit omgevingsplan.

Overigens is het begrip trillinggevoelige ruimte in het Bkl wel anders gedefinieerd dan een geluidgevoelige ruimte in de voormalige Wet geluidhinder en het voormalige Activiteitenbesluit milieubeheer. Zo heeft de oude regelgeving het over een keuken van ten minste 11 m2. Die ondergrens van 11 m2 vervalt. Een trillinggevoelige ruimte wordt gedefinieerd als een verblijfsruimte of verblijfsgebied van een aangewezen gebruiksfunctie. In de praktijk kunnen dus kleine verschillen optreden. Als dit bij toepassing van de omgevingsplanregels van rijkswege in een concreet geval een probleem oplevert, dan kan dit opgelost worden met maatwerkvoorschriften.

EE

Het volgende opschrift wordt op de aangegeven wijze gewijzigd:

Bijlage II BIJ ARTIKEL 1.1, TWEEDEVIERDE LID, VAN DIT OMGEVINGSPLAN, BEGRIPSBEPALINGEN

Motivering

1 Inleiding

1.1 Aanleiding

Op de locatie Plakse Weide in Duiven is de realisatie van maximaal 300 woningen beoogd. Om deze ontwikkeling juridisch-planologisch mogelijk te maken is op 20 september 2024 het bestemmingsplan ‘Plakse Weide’ vastgesteld door de gemeenteraad. Met de inwerkingtreding van de Omgevingswet, per 1 januari 2024, maakt het bestemmingsplan van rechtswege onderdeel uit van het omgevingsplan van de gemeente Duiven [1]. Afbeelding 1 geeft de verbeelding van het vastgestelde bestemmingplan weer, zoals zichtbaar op het Omgevingswetloket.

Het vastgestelde bestemmingsplan maakt de bouw van in totaal maximaal 300 woningen mogelijk, uitgesplitst in twee fasen. Voor de 180-200 woningen, die onderdeel uitmaken van fase I, is in het bestemmingsplan een woonbestemming opgenomen met bijbehorende gebruiks- en bouwregels. Voor de overige woningen, die onderdeel uitmaken van fase II, is de bestemming ‘Groen’ opgenomen met een wijzigingsbevoegdheid naar ‘Wonen’/ ‘Verkeer – verblijfsgebied’. Via deze wijzigingsbevoegdheid kan, na een afzonderlijke procedure, de realisatie van de woningen in fase II (alsnog) mogelijk gemaakt worden.

Het is thans gewenst om twee aspecten uit de wijzigingsbevoegdheid, namelijk de onderwerpen geur- en spuitzonering [2], verder uit te werken dan wel anders te regelen. Hiervoor is een omgevingsplanwijziging voorbereid. De motivering bij deze wijziging ligt voor u. 

[1] Op basis van artikel 4.6 eerste lid onder g van de Invoeringswet Omgevingswet.

[2] Ook ten aanzien van fase I van de woningbouwontwikkeling Plakse Weide is de nadere uitwerking van het onderwerp spuitzonering noodzakelijk, zie verdere toelichting in hoofdstuk 2.

Afbeelding 1: verbeelding bestemmingsplan ‘Plakse Weide’
afbeelding binnen de regeling Bron: Omgevingswetloket, regels op de kaart

 

1.2 Ligging en begrenzing besluitgebied

Het besluitgebied voor deze omgevingsplanwijziging bestaat uit de optelsom van de afzonderlijke inhoudelijke werkingsgebieden [1], namelijk voor de onderwerpen geur- en spuitzonering.  

 

  • a.

    geur: 

    • 1.

      Voor een varkenshouderij aan de noordoostzijde van het plangebied van Plakse Weide, die als normadressant [2] geldt voor de nieuwe geurregels in deze omgevingsplanwijziging, is het werkingsgebied ‘veehouderij - Laarstraat 20’ opgenomen. 

    • 2.

      Op de gronden van Plakse Weide fase II, waarvoor in het bestemmingsplan ‘Plakse Weide’ de groenbestemming met wijzigingsbevoegdheid is opgenomen, gaat een hogere geurnorm gelden voor de betreffende veehouderij. Dit gebied is gelegen ter plaatse van de huidige >3,0 ouE/m3 geurcontour van de veehouderij. In het gebied gaat een geurnorm gelden van 3,5 tot en met 5,5 ouE/m3, oplopend in stapjes van 0,5.

    • 3.

      Voor een juiste werking van de nieuwe geurregels in deze omgevingsplanwijziging, is het nodig om een ‘bebouwingscontour geur’ aan te wijzen. Deze bebouwingscontour geur is gebaseerd op alle geurgevoelige gebouwen binnen de bebouwde kom, die binnen de invloedssfeer van de betreffende veehouderij liggen. Het gaat dan om het plangebied van Plakse Weide en een gedeelte van de bestaande woonkern van Duiven. 

  • b.

    Spuitzonering: het werkingsgebied betreft een 50 m – uitwaartse spuitvrije zone vanaf Plakse Weide in de naastgelegen gronden met een agrarische bestemming op basis van het bestemmingsplan ‘Buitengebied 2013’ / ‘Reparatieplan Buitengebied 2013’. Ter plaatse van fase I loopt deze uitwaartse spuitvrije zone vanaf de grens van de woonbestemming uit het vastgestelde bestemmingsplan, en ter plaatse van fase II vanaf de grens van de woonvlakken zoals opgenomen in het stedenbouwkundige verkavelingsplan . 

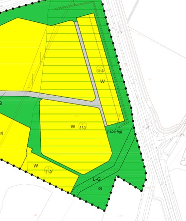
Afbeelding 2 geeft de begrenzing van het besluitgebied van deze omgevingsplanwijziging op kaart weer. Afbeelding 3 geeft de in het stedenbouwkundig verkavelingsplan opgenomen woonvlakken weer.

Afbeelding 2: verbeelding besluitgebied omgevingsplanwijziging ‘Geur- en spuitzonering Plakse Weide’
afbeelding binnen de regeling Bron: KuiperCompagnons

 

Afbeelding 3: woonvlakken (geel) uit het stedenbouwkundig verkavelingsplan van Plakse Weide
afbeelding binnen de regeling Bron: KuiperCompagnons

[1] 'werkingsgebied' is een term die veel in het omgevingsplan wordt gebruikt. Het geeft de begrenzing aan van een gebied waar een specifieke regel geldt. De gemeente Duiven noemt dit in de regels ook wel 'locatie'. De locatie is (technisch) altijd gekoppeld aan de regels die daar gelden.

[2] 'normadressant' is een juridische term die in het omgevingsplan veel gebruikt wordt. De normadressant is de persoon of organisatie die verantwoordelijk is voor de naleving van de regels die in het plan staan. 

1.3 Leeswijzer

Deze motivering bij de omgevingsplanwijziging bestaat uit vijf hoofdstukken. Na dit eerste inleidende hoofdstuk wordt in hoofdstuk 2 nader ingegaan op de planbeschrijving en de specifieke onderdelen die worden gewijzigd in het omgevingsplan. Vervolgens worden in hoofdstuk 3 de relevante (milieu)thema’s nader toegelicht. In hoofdstuk 4 wordt ingegaan op de uitvoerbaarheid van het plan en tot slot wordt in hoofdstuk 5 een integrale afweging gegeven ten aanzien van de vraag of sprake is van een ‘evenwichtige toedeling van functies aan locaties’ (ETFAL). 

De motivering volgt de standaardopbouw zoals deze binnen de gemeente Duiven wordt gehanteerd, maar behandelt wel minder onderwerpen dan gebruikelijk. Dit komt omdat de omgevingsplanwijziging alleen de twee specifieke onderwerpen ‘geur- en spuitzonering’ behelst. 

2 Planbeschrijving

2.1 Huidige (juridisch-planologische) situatie

2.1.1 Bestemmingsplan Plakse Weide (vastgesteld 20 september 2024)

De wijzigingsbevoegdheid bij de bestemming ‘Groen’ – artikel 3.3 in het vastgestelde bestemmingsplan ‘Plakse Weide’ [1] – biedt aan burgemeester en wethouders de mogelijkheid om ter plaatse van het wijzigingsgebied (c.q. Plakse Weide fase II) de bestemming te wijzigen in de bestemmingen ‘Wonen’ en ‘Verkeer - Verblijfsgebied’. Er is gewerkt met een wijzigingsbevoegdheid (en niet met rechtstreekse woon- en verkeersbestemmingen) omdat uit onderzoek bleek dat de >3,0 ouE/m3 geurcontour, vanwege een nabijgelegen varkenshouderij (Laarstraat 20), over dit gedeelte van Plakse Weide ligt. Binnen deze geurcontour is woningbouw namelijk niet zondermeer mogelijk. 

Deze wijzigingsbevoegdheid is gekoppeld aan diverse randvoorwaarden om een aanvaardbaar woon- en leefklimaat te garanderen, onder andere voor wat betreft de onderwerpen geur en spuitzonering: 

 

  • a.

    artikel 3.3, onder sub e: ‘’ter plaatse van op te richten woningen is ten tijde van de verlening van de omgevingsvergunning voor de realisatie van de woning(en) sprake van een aanvaardbaar woon- en leefklimaat, gelet op de geurbelasting door omliggende veehouderijen’’;

  • b.

    artikel 3.3, onder sub f: ‘’de gebruiksmogelijkheden van omliggende veehouderijen worden niet in onevenredige mate aangetast of belemmerd door op te richten woningen’’; en 

  • c.

    artikel 3.3, onder sub j: ‘’op de gronden met de functieaanduiding 'specifieke vorm van groen - spuitzone' mag een omgevingsvergunning voor een gevoelige functie voor gewasbeschermingsmiddelen pas worden verleend als is aangetoond dat een aanvaardbaar verblijfsklimaat voor de betreffende gevoelige functies is gegarandeerd. Van een aanvaardbaar verblijfsklimaat is sprake indien op basis van een planologisch besluit het gebruik van chemische gewasbeschermingsmiddelen op agrarische percelen in een zone van 50 meter rond de gevoelige functies voor gewasbeschermingsmiddelen is uitgesloten en er ten tijde van het verlenen van de omgevingsvergunning geen gewasbeschermingsmiddelen worden toegepast’’.

Bron: bestemmingsplan ‘Plakse Weide’, 2024. Artikel 3.3 (bestemming ‘groen’ – wijzigingsbevoegdheid, ter plaatse van de aanduiding ‘wetgevingszone – wijzigingsgebied’).

De functieaanduiding ‘specifieke vorm van groen – spuitzone’ komt niet alleen voor ter plaatse van Plakse Weide fase II (c.q. het wijzigingsgebied), maar ook ter plaatse van Plakse Weide fase I. Een soortgelijke bepaling is daarom opgenomen in artikel 11.2 van het bestemmingsplan ‘Plakse Weide’:                

Artikel 11.2 Algemene gebruiksregels - spuitzones

 

  • a.

    Op de gronden gelegen binnen de functieaanduiding 'specifieke vorm van groen - spuitzone' zijn gevoelige functies voor gewasbeschermingsmiddelen niet toegestaan.

  • b.

    Burgemeester en wethouders kunnen bij omgevingsvergunning afwijken van het bepaalde in artikel 11.2 sub a voor het toestaan van gevoelige functies voor gewasbeschermingsmiddelen mits een aanvaardbaar verblijfsklimaat is gegarandeerd voor de desbetreffende gevoelige functies voor gewasbeschermingsmiddelen. Van een aanvaardbaar verblijfsklimaat is sprake indien op basis van een planologisch besluit het gebruik van chemische gewasbeschermingsmiddelen op agrarische percelen in een zone van 50 meter rond de gevoelige functies voor gewasbeschermingsmiddelen is uitgesloten en er ten tijde van het verlenen van de omgevingsvergunning geen chemische gewasbeschermingsmiddelen worden toegepast.

Bron: bestemmingsplan ‘Plakse Weide’, 2024. Artikel 11.2 (algemene gebruiksregels – spuitzones, ter plaatse van de aanduiding ‘specifieke vorm van groen – spuitzone’). 

[1] Vastgesteld op 20 september 2024. 

2.1.2 Bestemmingsplan Buitengebied 2013 (vastgesteld 1 juni 2015) en reparatieplan Buitengebied 2013 (vastgesteld 20 november 2018)

Ter plaatse van de bestaande varkenshouderij aan de Laarstraat 20, waarvoor met deze omgevingsplanwijziging de geurregels worden aangepast, geldt op basis van de bestemmingsplannen ‘Buitengebied 2013’[1] en ‘Reparatieplan Buitengebied 2013’[2] de bestemming ‘Agrarisch’ met een functieaanduiding ‘intensieve veehouderij’ ter plaatse van het bouwvlak. Deze bestemming geeft, in combinatie met de regels uit de voormalige Wet geurhinder en veehouderij (nu hoofdstuk 22 van het omgevingsplan, zie ook hierna) regels voor geur als gevolg van het houden van varkens.

In een zone van 50 meter rondom het plangebied van Plakse Weide – zowel fase I, als fase II – liggen eveneens gronden waar op basis van de bestemmingsplannen ‘Buitengebied 2013’ en ‘Reparatieplan Buitengebied 2013’ de bestemming ‘Agrarisch’ geldt. Op basis van de gebruiksregels bij deze bestemming is het telen van gewassen in de openlucht toegestaan. En bij reguliere teelt van gewassen kunnen bepaalde chemische gewasbeschermingsmiddelen worden gebruikt. Afbeelding 4 geeft de verbeelding van het bestemmingsplan weer.

[1] Vastgesteld op 1 juni 2015.

[2] Vastgesteld op 20 november 2018. 

Afbeelding 4: verbeelding bestemmingsplan ‘Buitengebied 2013’
afbeelding binnen de regeling Bron: Omgevingswetloket, regels op de kaart

 

2.1.3 Hoofdstuk 22 van het omgevingsplan

In hoofdstuk 22, specifiek in de paragrafen 22.3.6.1 [1] en 22.3.6.2 [2], van het omgevingsplan staan de, voor deze omgevingsplanwijziging, relevante oude rijksregels over geur uit het voormalige Activiteitenbesluit milieubeheer en de voormalige Wet geurhinder en veehouderij (Wgv). Het gaat dan bijvoorbeeld over waarden voor geur door een activiteit op een geurgevoelig object en/of afstanden tot een geurgevoelig object [3]. 

Deze omgevingsplanwijziging voorziet in een inhoudelijke wijziging van de in hoofdstuk 22 gestelde ‘waarden voor geur’. Omdat bij een wijziging van het omgevingsplan moet worden voldaan aan de eisen van de Omgevingswet en de instructieregels uit het Besluit kwaliteit leefomgeving (Bkl), is het noodzakelijk om een aantal regels uit hoofdstuk 22 te laten vervallen ter plaatse van de  betreffende veehouderij (zie paragraaf 2.2.2), en daarvoor in de plaats nieuwe regels op te nemen in de planregeling. 

[1] Paragraaf met ‘Algemene bepalingen’. 

[2] Paragraaf met regels over ‘Geur houden van landbouwhuisdieren en paarden en pony’s voor het berijden in een dierenverblijf’. 

[3] Met het oog op het beperken van geurhinder bij het houden van landbouwhuisdieren (met/zonder geuremissiefactor). 

Achtergrondinformatie - hoofdstuk 22 van het omgevingsplan

Met de inwerkingtreding van de Omgevingswet (1 januari 2024) zijn veel rijksregels, die in onder meer het Activiteitenbesluit, Besluit omgevingsrecht, Bouwbesluit, Wet geurhinder en veehouderij en de Wet geluidhinder waren geregeld, verhuisd naar gemeenten. Het gaat dan vooral om regels over onderwerpen die qua uitwerking een sterk lokaal karakter hebben. De gemeenten bepalen voortaan hoe ze die onderwerpen regelen. Zij zullen dit echter niet direct bij inwerkingtreding zelf al hebben verwerkt in hun omgevingsplan. Gemeenten hebben namelijk tot 2032 de tijd om te werken aan hun ‘omgevingsplan nieuwe stijl’. Dit is de zogenoemde transitieperiode.

Om ervoor te zorgen dat er in de tussentijd geen regelhiaat zou ontstaan, zijn (bij iedere gemeente) deze vervallen rijksregels op 1 januari 2024 automatisch onderdeel geworden van het omgevingsplan. Net zoals de bestemmingsplannen automatisch onderdeel zijn geworden van het omgevingsplan. De vervallen rijksregels worden de ‘bruidsschat’ genoemd en staan in hoofdstuk 1 (begripsbepalingen) en hoofdstuk 22 (inhoudelijke regels) van het omgevingsplan. 

Bron: KuiperCompagnons 

2.1.4 Verordening geurhinder en veehouderij gemeente Duiven 2008 (vastgesteld 26 mei 2008)

De Wet geurhinder en veehouderij (Wgv) gaf gemeenten de mogelijkheid om de standaardwaarden en/of afstanden uit die wet aan te passen middels vaststelling van een lokale ‘Verordening geurhinder en veehouderijen’. Ook de gemeente Duiven heeft zo’n lokale geurverordening vastgesteld op 26 mei 2008. Met de inwerkingtreding van de Omgevingswet maakt de verordening, net als de bestemmingsplannen, onderdeel uit van het omgevingsplan van de gemeente Duiven[1] en gaat tevens vóór op de bepalingen in paragraaf 22.3.6.2 [2].

De geurverordening heeft voor enkele specifieke gebieden – namelijk Loostraat 40/42, Loostraat 34 en Onder de Toren –  (in afwijking van artikel 3, lid 1, Wgv) de waarde voor geur, door het houden van landbouwhuisdieren met geuremissiefactor, op een geurgevoelig object verruimd naar 6 ouE/m3 (in plaats van 3 ouE/m3) voor zover deze objecten zich in deze specifieke gebieden bevinden. Deze bepaling is dus niet van toepassing op het plangebied van Plakse Weide. 

Verder heeft de geurverordening (in afwijking van artikel 4, lid 1, Wgv) voor de bebouwde kom van Duiven, bij het houden van landbouwhuisdieren zonder geuremissiefactor, een aangepaste afstandseis van 50 m (in plaats van 100 m) tot een geurgevoelig object vastgelegd. Deze afstandseis geldt ook voor het plangebied Plakse Weide, aangezien dit onderdeel uitmaakt van de bebouwde kom van Duiven (ook al ten tijde van het vaststellen van de geurverordening). 

[1] Op basis van artikel 4.6 eerste lid onder e van de Invoeringswet Omgevingswet.

[2] Op grond van artikel 22.1, eerste lid, van het omgevingsplan, gelden die andere waarden en/of afstanden uit de lokale geurverordening in plaats van de waarden of afstanden in paragraaf 22.3.6.2. van het omgevingsplan. 

2.1.5 TAM voorbereidingsbesluit “Spuitzones Duiven” (vastgesteld op 9 september 2025)

Burgemeester en wethouders van de gemeente Duiven hebben op 9 september 2025 een TAM-voorbereidingsbesluit genomen voor drie locaties in Duiven: gronden grenzend aan het plangebied Ploen Noord, plangebied Plakse Weide en plangebied Biezenkampen. Het voorbereidingsbesluit is in werking getreden op 18 september 2025 [1].

Op grond van artikel 4.14 van de Omgevingswet kan de gemeenteraad voor een locatie een voorbereidingsbesluit nemen. De gemeenteraad kan deze bevoegdheid delegeren aan het college van burgemeester en wethouders [2]. De gemeenteraad van Duiven heeft op 12 november 2024 deze bevoegdheid gedelegeerd aan het college. Een voorbereidingsbesluit bevat regels, de zogenoemde voorbeschermingsregels. Dat zijn regels die activiteiten moeten voorkomen die in het omgevingsplan nu nog zijn toegestaan, maar die met de in voorbereiding zijnde wijziging van het omgevingsplan niet meer of alleen onder voorwaarden zijn toegestaan. Het besluit is digitaal ontsloten met gebruik van de Tijdelijke Alternatieve Maatregel via IMRO (TAM). Met toepassing van de TAM kan het voorbereidingsbesluit via dezelfde wijze ontsloten worden als vóór de inwerkingtreding van de Omgevingswet.

De gemeente Duiven streeft naar een goede balans tussen wonen en agrarische bedrijfsvoering waarbij er sprake is van een evenwichtige toedeling van functies aan locaties waarmee een goede kwaliteit van de fysieke leefomgeving wordt bereikt. Met een voorbereidingsbesluit voorkomt de gemeente snel dat er intensiveringen van ontwikkelingen plaatsvinden in het werkgebiedsgebied die de gezondheid van (toekomstige) omwonenden kunnen schaden. 

Het college heeft daarom besloten om een voorbereidingsbesluit te nemen voor de gronden die als besluitgebied zijn vastgelegd in het gml-bestand NL.IMRO.0226.TAMVBSPTZN- VS01. Deze locaties zijn afgebeeld in afbeelding 5 en 6. Hierbij zijn voorbeschermingsregels opgenomen in het besluit, die bepalen dat het binnen het werkingsgebied van het voorbereidingsbesluit verboden is gewasbeschermingsmiddelen te gebruiken in de open lucht, en het bestaand gebruik te wijzigen naar een andere vorm van agrarisch grondgebruik waarbij gewasbeschermingsmiddelen worden gebruikt in de open lucht. Het voorbereidingsbesluit stelt ook de regels van de onderliggende bestemmingsplannen, voor zover die in strijd zijn met de genoemde voorbeschermingsregels, buiten toepassing. In het geval van Plakse Weide gaat het om de bestemmingsplannen "Buitengebied 2013" en "Reparatieplan Buitengebied 2013". 

Het college heeft in het besluit ook verklaard dat er wijzigingen op het omgevingsplan worden voorbereid voor de desbetreffende locaties. Voor de locatie bij Plakse Weide is dit opgenomen in de voorliggende omgevingsplanwijziging. 

Afbeelding 5: werkingsgebieden TAM-voorbereidingsbesluit Spuitzones Duiven
afbeelding binnen de regeling Bron: Omgevingswetloket, Regels op de kaart

 

Afbeelding 6: werkingsgebieden bij Plakse Weide uit TAM-voorbereidingsbesluit Spuitzones Duiven
afbeelding binnen de regeling Bron: Omgevingswetloket, Regels op de kaart

[1] Tegen een voorbereidingsbesluit staat geen bezwaar of beroep open.

[2] Dit staat in artikel 4.14, lid 5, Omgevingswet.

2.1.6 Vergunning Laarstraat 20 (verleend 2 november 2010)

De varkenshouderij aan Laarstraat 20 beschikt over een vergunning voor de inrichting, waarin specifieke (maximale) geurwaarden zijn opgenomen vanuit het bedrijf op een aantal omliggende (bestaande) woningen. Deze zijn als volgt (in  ouE/m3 als 98-percentiel door het houden van landbouwhuisdieren met geuremissiefactor op een geurgevoelig gebouw):

Deze vergunde waarden zijn lager dan de maximaal toegestane norm van 14 ouE/m3 buiten de bebouwingscontour geur. Omdat het niet de bedoeling is om de varkenshouderij aan de Laarstraat 20 meer (of minder) geurruimte te geven met deze omgevingsplanwijziging, zijn deze specifieke waarden concreet vastgelegd in deze omgevingsplanwijziging. 

2.2 Juridische kaders

2.2.1 Juridisch kader vergunning binnenplanse omgevingsplanactiviteit ‘bouwwerken’

In artikel 22.26 van het omgevingsplan is een vergunningplicht opgenomen voor de omgevingsplanactiviteit ‘bouwwerken’. Voor verlening van deze omgevingsvergunning moet de activiteit voldoen aan de regels van het omgevingsplan (zie beoordelingsregels in artikel 22.29).

Als een bouwactiviteit in strijd is met het omgevingsplan, kan de vergunning toch binnenplans worden verleend. Dit geldt als de omgevingsplanactiviteit bouwwerken niet in strijd is met de regels van de wijzigingsbevoegdheid of uitwerkingsplicht in het bestemmingsplan c.q. het omgevingsplan van rechtswege. Dit regelt artikel 22.32, lid 1, van het omgevingsplan[1].

Zoals eerder benoemd is voor de realisatie van Plakse Weide fase II een wijzigingsbevoegdheid opgenomen in het bestemmingsplan, als onderdeel van de groenbestemming. Op basis van artikel 22.32 in het omgevingsplan kan de realisatie van de woningen in fase II dus (alsnog) mogelijk worden gemaakt, met een binnenplanse vergunning (OPA). Dat is de reden dat de voorliggende omgevingsplanwijziging niet de bestemmingen ‘Wonen’ en ‘Verkeer – Verblijfgebied’ toevoegt, zoals met een (oud) wijzigingsplan het geval was geweest.  

Naast de beoordelingsregels uit de wijzigingsbevoegdheid zelf, moet ook worden beoordeeld of het bouwplan vanuit het oogpunt van een evenwichtige toedeling van functies aan locaties (ETFAL) aanvaardbaar is. Bovendien moet het bouwplan voldoen aan de instructieregels, instructies en voorbereidingsbesluiten (artikel 22.32, lid 2, van het omgevingsplan).

[1] Burgemeester en wethouders hebben hierbij beslissingsruimte. Zij zijn dus niet verplicht tot het verlenen van de vergunning.

2.2.2 Juridisch kader ten aanzien van het onderwerp ‘geur’

Aan de noordoostzijde van het plangebied van Plakse Weide, aan de Laarstraat 20, is een varkenshouderij gevestigd. Bij dit bedrijf is geurhinder relevant. In 2023 is door het bureau De Roever geuronderzoek uitgevoerd naar het betreffende bedrijf, in het kader van het bestemmingsplan ‘Plakse Weide’ dat toen nog in voorbereiding was. Dit geuronderzoek is opgenomen als Bijlage 1 - Notitie Geurbelasting Laarstraat 20, De Roever (2023) bij deze motivering. 

Toentertijd was de grondslag nog de Wet geurhinder en veehouderij (Wgv). Onder de Omgevingswet gelden de instructieregels uit het Besluit kwaliteit leefomgeving (Bkl). De relevante instructieregels ten aanzien van geur staan in de paragrafen 5.1.4.6.1 [1] en 5.1.4.6.3 [2] van het Bkl. De standaardwaarden en afstanden volgens de Wgv [3] zijn inhoudelijk vergelijkbaar met die in het Bkl, ware het niet dat de oude term ‘geurgevoelig object’ is gewijzigd naar ‘geurgevoelig gebouw’ [4] en dat de oude term ‘binnen bebouwde kom’ is gewijzigd naar het aanwijzen van een ‘bebouwingscontour geur’ in het omgevingsplan [5]. 

Artikel 5.92 van het Bkl bepaalt dat in een omgevingsplan rekening wordt gehouden met de geur door activiteiten op geurgevoelige gebouwen. Deze centrale instructieregel stelt dat een omgevingsplan erin moet voorzien dat de geur door een activiteit op geurgevoelige gebouwen aanvaardbaar is. Dit betekent dat de gemeente geurregels moet opnemen in deze omgevingsplanwijziging ten aanzien van de betreffende veehouderij, en daarbij moet beoordelen of deze regels [6] in het omgevingsplan leiden tot een aanvaardbaar hinderniveau voor de woningen in Plakse Weide fase II. De gemeente bepaalt zelf welke mate van geurhinder ze aanvaardbaar vindt, maar is daarbij wel gebonden aan de instructieregels in het Bkl.

Voor landbouwhuisdieren met geuremissiefactor [7] geeft artikel 5.106, lid 1, van het Bkl aan wanneer wordt voldaan aan de bepaling dat geur door deze activiteit op geurgevoelige gebouwen aanvaardbaar is. Bij deze casus is dat namelijk het geval als in de omgevingsplanwijziging toepassing wordt gegeven aan artikel 5.109 van het Bkl én aan artikel 5.116 van het Bkl: 

 

  • a.

    Op basis van artikel 5.109 van het Bkl stelt de gemeente een ‘waarde voor toelaatbare geur’ op geurgevoelige gebouwen door het houden van landbouwhuisdieren met geuremissiefactor vast. De gemeente wijst in het omgevingsplan een ‘bebouwingscontour geur’ aan waar die waarde geldt. Er wordt in ieder geval voldaan aan de bepaling dat geur door de activiteit aanvaardbaar is, als wordt voldaan aan de standaardwaarde (5.109, lid 1, Bkl). Voor een geurgevoelig gebouw gelegen binnen de bebouwingscontour geur en binnen een concentratiegebied[8] bedraagt deze standaardwaarde 3,0 ouE/m3. Het omgevingsplan kan ook een lagere of hogere waarde bevatten dan de standaardwaarde, mits die waarde niet hoger is dan de grenswaarde (5.109, lid 2, Bkl). Deze grenswaarde bedraagt voor een geurgevoelig gebouw gelegen binnen de bebouwingscontour geur en binnen een concentratiegebied 14,0 ouE/m3. Als de gemeente ervoor kiest om een hogere waarde op te nemen dan de standaardwaarde, dan moet zij dat wel motiveren. 

  • b.

    Op basis van artikel 5.116 van het Bkl stelt de gemeente een ‘minimale afstand vanaf de gevel van een dierenverblijf’ tot geurgevoelige gebouwen vast. Voor geurgevoelige gebouwen binnen de bebouwingscontour geur wordt in ieder geval voldaan aan de bepaling dat geur door de activiteit aanvaardbaar is, als de minimale afstand 50 meter betreft.

Tot slot betekent ‘het rekening houden met de geur door activiteiten op geurgevoelige gebouwen’ (artikel 5.92, lid 1, Bkl) dat de gemeente ook cumulatie van geur zoveel mogelijk moet voorkómen. Onder de Wgv hoefde hier nog geen rekening mee gehouden te worden. En dus staan in hoofdstuk 22 van het omgevingsplan alleen individuele normen voor de geurbelasting, en geen regels voor cumulatie.

[1] Paragraaf met ‘Algemene bepalingen’.

[2] Paragraaf met instructieregels over ‘Geur door het houden van landbouwhuisdieren in een dierenverblijf’.

[3] Deze regels zijn in het kader van de transitieperiode in hoofdstuk 22 van het omgevingsplan beland. 

[4] Als bedoeld in artikel 5.91 van het Bkl.

[5] Op basis van artikel 5.97 van het Bkl.

[6] Dit kunnen regels zijn over waarden voor geur door het houden van landbouwhuisdieren op geurgevoelige gebouwen, afstanden tot geurgevoelig gebouwen en/of gebruiksregels met het oog op een evenwichtige toedeling van functies aan locaties (ETFAL). 

[7] De veehouderij aan de Laarstraat 20 betreft een varkenshouderij en varkens horen tot de categorie ‘landbouwhuisdieren met geuremissiefactor’. 

[8] Een concentratiegebied is in ieder geval gebied I en gebied II, als bedoeld in bijlage I bij de Meststoffenwet (artikel 5.108, lid 1, Bkl). Het grondgebied van de gemeente Duiven valt onder concentratiegebied I zoals opgenomen in bijlage I bij de Meststoffenwet. 

2.2.3 Juridisch kader ten aanzien van het onderwerp ‘spuitzonering’

Bij het telen van gewassen in de openlucht [1] worden regelmatig meststoffen en gewasbeschermingsmiddelen toegepast. Gewasbeschermingsmiddelen worden gebruikt voor het beschermen van planten en gewassen, bijvoorbeeld door het bestrijden van schimmels, insecten en onkruid. 

Bij het bespuiten van gewassen met gewasbeschermingsmiddelen ontstaat er spuitnevel, ook wel drift genoemd. Afhankelijk van de spuitmethode en de windkracht kunnen de gewasbeschermingsmiddelen zich ook verspreiden over de omgeving. Zo kan de spuitnevel neerslaan op woningen en tuinen van omwonenden van een agrarisch bedrijf, waardoor zij ook in bepaalde mate in aanraking komen met gewasbeschermingsmiddelen. Of de nevel kan bijvoorbeeld in de sloot waaien tijdens het spuiten, waardoor oppervlaktewater vervuild raakt [2]. Hiervan kunnen mensen, planten en dieren schadelijke effecten ondervinden. Afbeelding 7 verbeeldt dit. 

Afbeelding 7: manieren waarop gewasbeschermingsmiddelen bij omwonenden terecht kunnen komen
afbeelding binnen de regeling Bron: Pouderoyen Tonnaer 

De regels over de toelating van gewasbeschermingsmiddelen staan in Verordening (EG) 1107/2009. In deze Verordening staat onder andere dat lidstaten op basis van het voorzorgsbeginsel maatregelen kunnen treffen als er onzekerheid bestaat over de risico’s voor mens, dier of milieu (artikel 1, lid 4, Verordening (EG) 1107/2009). De regels uit de Europese verordeningen EG 1107/2009 en EG 528/2012 zijn omgezet in de Wet gewasbeschermingsmiddelen en biociden (Wgb). De Wgb bevat regels over de toelating van gewasbeschermingsmiddelen en gebruiksvoorschriften. 

In de Wgb is geen grondslag opgenomen voor gemeenten om regels te stellen over het gebruik van gewasbeschermingsmiddelen. De grondslag voor het stellen van regels over het gebruik van gewasbeschermingsmiddelen door gemeente volgt uit de Omgevingswet. Daarbij is van belang dat de Omgevingswet niet van toepassing is op onderwerpen met betrekking tot de fysieke leefomgeving of onderdelen daarvan die bij of krachtens een andere wet uitputtend zijn geregeld. De Wgb is niet uitputtend bedoeld. Dit blijkt onder meer uit het feit dat het Rijk regels heeft gesteld over het gebruik van gewasbeschermingsmiddelen in het Besluit activiteiten leefomgeving.

De Omgevingswet gaat over de fysieke leefomgeving en activiteiten die gevolgen hebben of kunnen hebben voor deze fysieke leefomgeving. Daaronder worden ook de gevolgen voor de mens begrepen (art.1.2, lid 1, Omgevingswet). Eén van de maatschappelijke doelen van de wet is het bereiken en in stand houden van een veilige en gezonde fysieke leefomgeving en een goede omgevingskwaliteit (art. 1.3 aanhef en onder a, van de Omgevingswet). In het omgevingsplan kunnen met het oog op deze doelen regels worden gesteld over activiteiten die gevolgen hebben voor de fysieke leefomgeving (art. 4.1, Omgevingswet). Het omgevingsplan moet in ieder geval de regels bevatten die nodig zijn met het oog op een evenwichtige toedeling van functies aan locaties, ETFAL (art. 4.2, Ow). 

Achtergrondinformatie - (chemische) gewasbeschermingsmiddelen en gezondheidseffecten 

‘’Er is steeds meer wetenschappelijk bewijs dat er mogelijke gezondheidseffecten door het spuiten van gewasbeschermingsmiddelen optreden. Met name bij langdurige en herhaalde blootstelling. Diverse nationale en internationale onderzoeken, waaronder die van het RIVM en de Gezondheidsraad, geven aanwijzingen dat gewasbeschermingsmiddelen een negatief effect kunnen hebben op de gezondheid. […] Acute vergiftigingen komen weinig voor. De zorgen om gezondheidseffecten gaat met name over effecten door langdurige blootstelling aan lage concentraties. Deze effecten zijn lastig vast te stellen, vooral omdat het lastig is om over langere periode de blootstelling te bepalen en ziekteverschijnselen zich vaak pas later voordoen.

Toch is er bij een breed scala aan aandoeningen een positieve associatie aangetoond met de blootstelling aan gewasbeschermingsmiddelen. Deze bevindingen worden in wisselende mate ondersteund door de uitkomsten van dierexperimenteel en mechanistisch onderzoek. Het gaat hierbij onder andere over neurodegeneratieve ziekten zoals Parkinson, Alzheimer en ALS en cognitieve effecten bij jonge kinderen. Ook zijn er gezondheidseffecten gevonden in de vorm van verschillende vormen van kanker, luchtweg-, voortplantings-, ontwikkelings- en stofwisselingsziekten, aangeboren afwijkingen en immuniteitsproblemen. Bovenstaande bevindingen komen voornamelijk uit internationale onderzoeken.’’ (p. 11-12). 

Bron: ‘Analyse en advies verbod gewasbeschermingsmiddelen woningbouw Plakse Weide’ – Pouderoyen Tonnaer (2025).

Vanwege het belang van een ETFAL moet het omgevingsplan voorzien in een aanvaardbaar woon- en leefklimaat. In dat kader moet een afweging worden gemaakt tussen het zoveel mogelijk beperken van de risico’s voor de gezondheid van omwonenden én het voorkomen dat het betreffende agrarische bedrijf dusdanig wordt beperkt in zijn bedrijfsvoering. Daarbij moet bovendien rekening worden gehouden met de beginselen van milieubeleid (artikel 2.4, Ow), waaronder het voorzorgsbeginsel. Dit beginsel houdt in dat, als er aanwijzingen zijn dat een activiteit ernstige of onomkeerbare schade aan de gezondheid of het milieu kan veroorzaken, het bevoegd gezag maatregelen moet treffen. 

Gemeenten hebben bovendien een taak bij het beschermen van kwetsbare groepen tegen blootstelling aan gewasbeschermingsmiddelen. De Richtlijn duurzaam gebruik pesticiden (2009/128/EG) verplicht landen om kwetsbare groepen te beschermen tegen schade door chemische gewasbeschermingsmiddelen (art. 12 lid 1, onder a). Kwetsbare groepen zijn: zwangere vrouwen, vrouwen die borstvoeding geven, ongeboren kinderen, zuigelingen, kinderen en ouderen, alsmede werknemers en bewoners die gedurende langere tijd blootstaan aan hoge doses pesticiden (art. 3, punt 14 van Verordening (EG) 1107/2009). De verantwoordelijkheid voor de uitvoering van deze bepaling heeft het Rijk bij gemeenten gelegd. Volgens het Rijk kunnen gemeenten, aanvullend op de risicobeoordeling van middelen, “in nieuw op te stellen bestemmingsplannen [Wet ruimtelijke ordening, red.] regels opstellen die bijdragen aan het verminderen van het risico op blootstelling”. (Bron: Geactualiseerd Nederlands actieplan duurzaam gebruik gewasbeschermingsmiddelen 2022 t/m 2025, p. 19.). 

De Afdeling bestuursrechtspraak van de Raad van State heeft in diverse uitspraken[3] geoordeeld dat bij het toelaten van gevoelige functies, zoals woningen inclusief tuinen, nabij agrarische percelen rekening moet worden gehouden met de risico’s van gewasbeschermingsmiddelen. De uitspraak van het gerechtshof ’s-Hertogenbosch van 22 juli 2025 (ECLI:NL:GHSHE:2025:2043) is voor gemeenten in het bijzonder van belang. Het Hof gaat hier uitgebreid in op de hiaten in de risicobeoordeling en de link met de ziekte van Parkinson en ontwikkelingsstoornissen bij kinderen: “Er is in dit geval namelijk sprake van een situatie waarin gedurende de toelatingsprocedure voor de te gebruiken gewasbeschermingsmiddelen geen onderzoek is verricht naar risico’s op neurodegeneratieve ziektes die op latere leeftijd optreden, zoals de ziekte van Parkinson en risico’s op ontwikkelingsstoornissen voor jonge en ongeboren kinderen. De te gebruiken middelen leveren echter wel een potentieel gevaar op voor het ontstaan van deze aandoeningen.” Verder concludeert het Hof dat artikel 12(a) van de Richtlijn duurzaam gebruik pesticiden, die vraagt om bescherming van kwetsbare groepen tegen blootstelling aan gewasbeschermingsmiddelen, in Nederland niet volledig is geïmplementeerd (overweging 3.43). De uitvoering van artikel 12(a) van deze richtlijn is een taak is die door het Rijk bij gemeenten is gelegd (Geactualiseerd Nederlands actieplan duurzaam gebruik gewasbeschermingsmiddelen 2022 t/m 2025, p. 19.)

Er gelden op dit moment nog géén wettelijke bepalingen over minimaal aan te houden afstanden. Uit jurisprudentie blijkt echter dat de Raad van State een afstand van 50 meter [4] tussen gevoelige functies [5] en agrarische percelen waar (chemische) gewasbeschermingsmiddelen mogen worden gebruikt [6], als uitgangspunt hanteert. Dat komt er op neer dat – wanneer deze richtafstand in acht wordt genomen – dit in ieder geval voldoende is om (voor wat betreft dit aspect) te spreken van een aanvaardbaar woon- en leefklimaat. 

[1] Deze activiteit is genoemd in artikel 3.208 van het Besluit activiteiten leefomgeving (Bal). 

[2] In dit kader zijn in paragraaf 4.64 van het Bal regels opgenomen over het gebruik van gewasbeschermingsmiddelen langs oppervlaktewaterlichamen. 

[3] o.a. ABRvS 14 april 2010, ECLI:NL:RVS:2010:BM0956; ABRvS 23 mei 2012, ECLI:NL:RVS:2012:BW6697; ABRvS 24 februari 2016, ECLI:NL:RVS:2016:530. 

[4] De 50 meter afstand is geen wetenschappelijke onderbouwde afstand, maar een afstand die als aanvaardbaar is aangemerkt.

[5] Gevoelige functies (voor gewasbeschermingsmiddelen) zijn plekken waar mensen langdurig kunnen verblijven. Het gaat dan bijvoorbeeld ook over kinderdagverblijven, kantoren, sportvelden, kampeerterreinen/recreatieverblijf, etc. 

[6] Hierbij moet worden uitgegaan van de maximale planologische mogelijkheden op een perceel, ook als het telen van gewassen in de openlucht (met gebruik van gewasbeschermingsmiddelen) niet plaatsvindt maar wel is toegestaan op basis van het omgevingsplan. 

2.3 Toekomstige situatie

2.3.1 Algemeen

Het beoogde doel van deze omgevingsplanwijziging – die regels toevoegt als titel 20.2 van het omgevingsplan van de gemeente Duiven – is om een nadere invulling te geven aan de wijzigingsbevoegdheid (artikel 3.3) en afwijkingsmogelijkheid (artikel 11.2) in het geldende bestemmingsplan ‘Plakse Weide’ uit 2024, om zo de woningen ter plaatse van Plakse Weide te kunnen vergunnen en bouwen. Deze omgevingsplanwijziging neemt de bestemming ‘Groen’ ter plaatse van Plakse Weide fase II c.q. het wijzigingsgebied niet weg en bestemt de gronden dus ook niet als ‘Wonen’ en/of ‘Verkeer – Verblijfsgebied’. Het onderliggende bestemmingsplan blijft, als onderdeel van het omgevingsplan van rechtswege, dus gewoon gelden. 

Voor wat betreft de wijzigingen ten opzichte van de bestemming ‘Agrarisch’ uit de bestemmingsplannen ‘Buitengebied 2013’ en ‘Reparatieplan Buitengebied 2013’, is met een voorrangsregel [1] bepaald dat de nieuwe regels – op de aangewezen gronden in dit besluitgebied – vóór gaan op deze onderliggende bestemmingplannen. De bestemming ‘Agrarisch’ blijft voor het overige, als onderdeel van het omgevingsplan van rechtswege, gewoon gelden. Het komt erop neer dat de varkenshouderij aan de Laarstaat 20 gewoon positief bestemd blijft, maar dat de geurregels worden gewijzigd (de normen voor het bedrijf worden niet verruimd,  maar de norm voor de  geurbelasting voor / op de toekomstige woningen wordt verruimd). Dit is gedaan met inachtnemering van de rechten van het agrarische bedrijf. Voor de bestaande woningen in Duiven vindt géén wijziging van de  geurregels / geurbelasting plaats. Voorts komt het erop neer dat het gebruik voor chemische gewasbeschermingsmiddelen binnen de aangewezen zone in de agrarische bestemming niet meer mogelijk is.  

[1] 'voorrangsregel' is een juridische term die in het omgevingsplan veel wordt gebruikt. Deze regels bepalen vaak dat bepaalde regels vóór gaan op regels over hetzelfde onderwerp die in een ander plan staan. Het verdere gedeelte van het 'oude' plan blijven dan gelden. 

2.3.2 Planregeling ten aanzien van het onderwerp ‘geur’

In de voorliggende planregeling (titel 20.2 van het omgevingsplan) ten aanzien van het onderwerp geur is een ‘bebouwingscontour geur’ aangewezen. Deze bebouwingscontour geur is gebaseerd op alle geurgevoelige gebouwen binnen de bebouwde kom, die binnen de invloedssfeer van de betreffende veehouderij aan de Laarstraat 20 liggen. Het gaat dan om het plangebied van Plakse Weide en een gedeelte van de bestaande woonkern van Duiven. Dit is gedaan om aan instructieregel 5.97 van het Bkl te kunnen voldoen, waarin is aangegeven dat een omgevingsplan een bebouwingscontour geur moet aanwijzen, in combinatie met instructieregel 5.109 Bkl, waarin de (standaard- en grens)waarden voor geur van landbouwhuisdieren met geuremissiefactor zijn gegeven. De standaardwaarden voor geur door het houden van landbouwhuisdieren met geuremissiefactor – voor binnen én buiten de bebouwingscontour geur – moeten blijven gelden op de bestaande woningen[1], voor zover het gaat om de betreffende veehouderij aan de Laarstaat 20. Overigens zijn specifieke geurwaarden op omliggende woningen vergund in de vergunning uit 2010 (zie ook subparagraaf 2.1.6), welke waarden specifiek zijn vastgelegd in dit omgevingsplan. 

Vervolgens is voor het gebied Plakse Weide fase II, waarvoor in het bestemmingsplan ‘Plakse Weide’ de groenbestemming met wijzigingsbevoegdheid is opgenomen, een hogere geurnorm vastgelegd voor de nieuwe woningen als gevolg van de veehouderij aan de Laarstraat 20. In de planregeling is voor het gebied een omgevingsnorm opgenomen met waarden van 3,5 tot en met 5,5 ouE/m3, oplopend in stapjes van 0,5. Hiermee wordt voor Plakse Weide fase II ‘de ‘waarde voor geur’ verhoogd ten opzichte van de standaardwaarde voor ‘binnen de bebouwingscontour’ uit het Bkl: van 3,0 ouE/mnaar (maximaal) 5,5 ouE/m3

Deze waarden zijn berekend in het geuronderzoek van De Roever (2023) [2]. Op afbeelding 8 zijn de specifieke geurcontouren verbeeld. Te zien is dat de geurbelasting van 5,5 ouE/m3 is berekend ter plaatse van het meest oostelijke bouwvlak in het plangebied. Ter plaatse van de overige bouwvlakken is de geurbelasting lager. 

Afbeelding 8: emissiepunten, toetspunten en geurcontouren rondom het agrarische bedrijf aan de Laarstraat 20
afbeelding binnen de regeling Bron: De Roever, 2023

In deze opgenomen ‘waarden voor geur’ in de planregeling, die voor wat betreft Plakse Weide fase II dus afwijkt van de standaardwaarde uit het Bkl, is rekening gehouden met de effecten van cumulatie van geur. Uit het onderzoek van De Roever blijkt namelijk dat de achtergrondbelasting (c.q. cumulatie van geur) van maximaal 4,5 ouE/m3, lager is dan de voorgrondbelasting (c.q. individuele belasting van de betreffende veehouderij) van maximaal 5,5 ouE/m3. Deze achtergrondbelasting is overigens niet opgenomen op afbeelding 8, maar desgewenst wel te raadplegen op de kaart die als bijlage III bij het rapport van De Roever is opgenomen (Bijlage 1 - Notitie Geurbelasting Laarstraat 20, De Roever (2023)). Uit het onderzoek van De Roever blijkt dat de feitelijke geuruitstoot niet wijzigt en daarmee de achtergrondbelasting ook niet. De achtergrondbelasting is acceptabel; er is sprake van geur door één dominante veehouderij - Laarstraat 20 - waardoor cumulatie van geur geen grote rol speelt. In paragraaf 3.1 wordt ook nader ingegaan op het onderdeel 'cumulatie'. 

Het rapport ‘’Onderzoek geurhinder veehouderijen – Plakse Weide Duiven’’ van De Roever (2023) geeft de inhoudelijke motivering voor het verhogen van de ‘waarde voor geur’. Hierop wordt in paragraaf 3.1 verder ingegaan; het volledige rapport is terug te vinden in Bijlage 1 - Notitie Geurbelasting Laarstraat 20, De Roever (2023) bij deze motivering. 

Verder is in de planregels bepaald dat binnen de ‘bebouwingscontour geur’ (inclusief het plangebied van Plakse Weide) een minimale afstand van 50 meter vanaf de gevel van een dierenverblijf tot geurgevoelige gebouwen moet worden aangehouden. Dit betreft geen verruiming ten opzichte van de opgenomen afstand in artikel 5.116 van het Bkl.  

[1] Anders zou er ineens geen geurnorm meer gelden op de bestaande woningen in de invloedssfeer van de betreffende veehouderij. 

[2] Het gaat hierbij om de voorgrondbelasting. De voorgrondbelasting is de geurbelasting als gevolg van één individueel bedrijf.

2.3.3 Wijzigen werkingssfeer van regels uit hoofdstuk 22

Zoals eerder benoemd in paragraaf 2.1.3 van deze motivering, is het met het oog op de planregeling ten aanzien van het onderwerp ‘geur’ noodzakelijk om een aantal regels uit de paragrafen 22.3.6.1 en 22.3.6.2 van het omgevingsplan te laten vervallen voor de varkenshouderij aan de Laarstraat 20.  

Hoewel deze omgevingsplanwijziging inhoudelijk niks wijzigt in het omgevingsplan van rechtswege [1] aan de regels over het houden van landbouwhuisdieren zonder geuremissiefactor en aan de waarden en afstanden die gelden buiten de bebouwingscontour geur, en alle regels daarover dus niet ‘nodig’ zijn voor deze casus, zijn de bepalingen hierover wel opgenomen in de voorliggende planregeling (titel 20.2 van het omgevingsplan). Dat heeft ermee te maken dat het technisch complex is om slechts een deel van de regeling in paragraaf 22.3.6.2 te laten vervallen ter plaatse van de betreffende veehouderij. Dit heeft te maken met het gegeven dat regels voor landbouwhuisdieren zónder en mét geuremissiefactor, en regels over binnen/buiten de bebouwde kom, in hoofdstuk 22 vaak in één artikel zijn geregeld. Bovendien zitten in de hoofdstuk 22-artikelen vele interne verwijzingen naar andere artikelen, die niet meer zouden kloppen als één of enkele artikel(en) eruit worden gehaald. 

Dat betekent al met al dat met deze omgevingsplanwijziging de werkingssfeer van de volledige regeling in paragraaf 22.3.6.2 wordt aangepast, waarbij het werkingsgebied van de betreffende veehouderij aan de Laarstraat 20 uit de werkingssfeer van deze artikelen in hoofdstuk 22 wordt geknipt. Het gaat om de volgende regels uit hoofdstuk 22 van het omgevingsplan van de gemeente Duiven:

 

  • a.

    artikel 22.96 (toepassingsbereik);

  • b.

    artikel 22.97 (vanaf waar afstanden gelden); 

  • c.

    artikel 22.98 (met geuremissiefactor – waarden voor geur);

  • d.

    artikel 22.99 (met geuremissiefactor – eerbiedigende werking bij waarden); 

  • e.

    artikel 22.100 (met geuremissiefactor – afstand tot bijzondere geurgevoelige objecten); 

  • f.

    artikel 22.101 (zonder geuremissiefactor – afstand) [2];

  • g.

    artikel 22.102 (zonder geuremissiefactor – eerbiedigende werking bij afstanden); 

  • h.

    artikel 22.103 (met/zonder geuremissiefactor – afstand vanaf de gevel dierenverblijf); 

  • i.

    artikel 22.104 (met geuremissiefactor – eerbiedigende werking bij afstanden vanaf de gevel); en

  • j.

    Artikel 22.105 (zonder geuremissiefactor – eerbiedigende werking bij afstanden vanaf de gevel).

Door het vervallen van de volledige regeling in paragraaf 22.3.6.2 voor de betreffende veehouderij, zijn de algemene bepalingen uit paragraaf 22.3.6.1 automatisch ook niet meer van toepassing in dit gebied. Om deze reden hoeft de werkingssfeer van deze artikelen niet aangepast te worden. Wel zijn enkele bepalingen uit paragraaf 22.3.6.1 (‘algemene bepalingen’) opnieuw geregeld in voorliggende titel, conform de instructieregels uit het Bkl. Het gaat om:

 

  • a.

    artikel 22.90 (toepassingsbereik); en 

  • b.

    artikel 22.92 (waar waarden en tot waar afstanden gelden). 



[1] Ten aanzien van geurregels over het houden van landbouwhuisdieren betreft dit de lokale geurverordening en de regels uit paragraaf 22.3.6.2, waarbij geldt dat de geurverordening vóór gaat op de regels uit paragraaf 22.3.6.2.

[2] In de planregeling (titel 20.2) is een aangepaste afstandseis opgenomen, conform de (voorheen geldende) lokale geurverordening van de gemeente Duiven. 

2.3.4 Planregeling ten aanzien van het onderwerp ‘spuitzonering’

In het vastgestelde bestemmingsplan ‘Plakse Weide’ is de woonbestemming (fase I) en de wijzigingsbevoegdheid (fase II) direct grenzend aan of op korte afstand van de agrarische bestemming opgenomen. Om toch aan de afstand van 50 meter te voldoen – het uitgangspunt uit de jurisprudentie – is in het bestemmingsplan een inwaartse 50 m-zone ingetekend: vanaf de agrarische bestemming het plangebied in. Deze zone heeft de aanduiding ‘specifieke vorm van groen – spuitzone’. In deze inwaartse zone kan pas toepassing worden gegeven aan de gebruiks- en bouwmogelijkheden[1] als op basis van een planologisch besluit het gebruik van chemische gewasbeschermingsmiddelen op agrarische percelen in een zone van 50 meter rond de gevoelige functies is uitgesloten. 

In de voorliggende omgevingsplanwijziging (titel 20.2 van het omgevingsplan) wordt de 50 m–zone uitwaarts c.q. ‘aan de andere kant’ vastgelegd, namelijk ter plaatse van de agrarische gronden. Dit werkingsgebied heet de ‘spuitvrije zone’. Ter plaatse van fase I loopt deze zone vanaf de grens van de woonbestemming, en ter plaatse van fase II vanaf de grens van de woonvlakken uit de stedenbouwkundige verkaveling. In deze uitwaartse zone wordt het gebruik van gewasbeschermingsmiddelen bij het telen van gewassen in de openlucht uitgesloten. Het verbod is niet van toepassing op Skal-gecertificeerde teelten [2], tenzij daarbij paraffineoliën worden gebruikt. Hiermee worden de gebruiksmogelijkheden van de agrarische bestemming (op basis van de bestemmingsplannen ‘Buitengebied 2013’ en ‘Reparatieplan Buitengebied 2013’) in het betreffende werkingsgebied beperkt. Zo kan alsnog toepassing worden gegeven aan de gebruiks- en bouwmogelijkheden aan de 50 m-zone aan de binnenzijde van Plakse Weide (inwaartse zone). 

Bij dit verbod is het in het gemeentelijke omgevingsplan in artikelen 23.1 en 23.3 opgenomen overgangsrecht, dat bepaalt dat legaal gebruik op grond van het voorgaande planologisch regime mag worden voortgezet, expliciet uitgesloten. Het is immers de bedoeling dat de mogelijkheden voor het gebruiken van chemische gewasbeschermingsmiddelen direct na vaststelling van deze omgevingsplanwijziging worden weggenomen [3], zodat de woningbouwontwikkeling op een gezonde wijze kan plaatsvinden. 

Het rapport ‘’Notitie Spuitzone Plakse Weide’’ van Pouderoyen Tonnaer (2025) geeft de inhoudelijke motivering voor het intekenen van de uitwaartse 50m-zone c.q. spuitvrije zone, en gaat daarbij ook in op de resterende gebruiksmogelijkheden van de betreffende agrarische percelen. Hierop wordt in paragraaf 3.2 verder ingegaan, het volledige rapport is terug te vinden in Bijlage 2 - Notitie Spuitzone Plakse Weide, Pouderoyen Tonnaer (2025) bij deze motivering. 

[1] Uit de woonbestemming voor wat betreft fase I, en uit de wijzigingsbevoegdheid voor wat betreft fase II. 

[2] Bij biologische teelt is het gebruik van chemisch-synthetische gewasbeschermingsmiddelen verboden. Het Skal-certificaat wordt uitgegeven aan biologische teelten en garandeert dat er wordt voldaan aan de wettelijke voorschriften. Alleen specifieke middelen, die op de Skal Inputlijst staan, mogen worden gebruikt als biologische alternatieven voor gewasbescherming. Deze middelen bestaan uit stoffen die in de Verordening (EU) 2021/1165 Bijlage I, of diens rechtsopvolger, zijn toegestaan.

[3] De gemeente Duiven heeft reeds een voorbereidingsbesluit genomen, waardoor een verbod is ingesteld op toekomstig gebruik van chemische gewasbeschermingsmiddelen op de agrarische gronden in het werkingsgebied. Met de voorliggende omgevingsplanwijziging worden deze voorbeschermingsregels bekrachtigd. Zie ook subparagraaf 2.1.5 van deze motivering.

3 Thema's fysieke leefomgeving

3.1 Geur

Het aspect ‘geur’ is onder de Omgevingswet geregeld vanuit het oogpunt om (ernstige) hinder voor omwonenden van de betreffende activiteit te voorkómen. Geurhinder of een te hoge geurbelasting (op geurgevoelige gebouwen) is, wat gezondheid betreft, op indirecte wijze gekoppeld, namelijk via de impact op stress/welbevinden van personen. 

Algemeen biedt het Bkl de mogelijkheid om andere ‘waarden voor geur’ (immissienormen) en ‘afstandseisen’ vast te stellen als dat voor de realisatie van een maatschappelijke doel nodig is, in dit geval de (urgente) behoefte aan woningbouw in de kern van Duiven. Alles overwegend moet er wel een aanvaardbaar woon- en leefklimaat kunnen worden bereikt. 

De GGD hanteert als advieswaarde voor de voorgrondbelasting een richtwaarde van 2,0 ouE/men een bovenwaarde van 5,0 ouE/m3, zowel voor concentratiegebieden als niet-concentratiegebieden[1]. Met de opgenomen ‘waarden voor geur’ van 3,5 tot maximaal 5,5 ouE/m3 kan worden geconcludeerd dat ter plaatse van Plakse Weide fase II een behoorlijk hoog hinderniveau wordt toegestaan [2]. Gezien de afwijkingsmogelijkheden in het Bkl is er echter geen aanwijzing dat deze waarde vanuit gezondheidskundig oogpunt op voorhand niet acceptabel is. 

Er zijn verschillende aspecten die hierbij relevant zijn: 

 

  • a.

    cumulatie van geur: zoals eerder benoemd blijkt uit het onderzoek van De Roever dat de achtergrondbelasting (c.q. cumulatie van geur) van maximaal 4,5 ouE/m3, lager is dan de voorgrondbelasting (c.q. individuele belasting) van maximaal 5,5 ouE/m3. Dit komt doordat ter plaatse van het plangebied sprake is van geurhinder door één dominante veehouderij en er nauwelijks sprake is van cumulatie van meerdere veehouderijen of andere geur veroorzakende activiteiten. Voor wat betreft de achtergrondbelasting wordt voldaan aan de GGD-advieswaarde van 5,0 ouE/m3.

  • b.

    afstandseis: 

    • 1.

      er geldt een afstandseis met het oog op het aspect geur, volgend uit artikel 5.116 van het Bkl. Deze is de voorliggende planregeling geborgd. Dit is de gevel-gevel afstandseis van 50 m. Aan deze afstandseis wordt ruimschoots voldaan.

    • 2.

      er geldt tevens een GGD-advieswaarde van 250 m. Deze afstandseis geldt met het oog op hogere concentraties fijn stof, endotoxinen en markers voor de v-MRSA bacterie. Gesteld kan worden dat, vanuit andere overwegingen dan geur, sprake is van een aanvaardbaar woon- en leefklimaat er plaatse van Plakse Weide. De meest oostelijke bouwvlakken binnen het plangebied bevinden zich namelijk op circa 240 m afstand, wat bijna overeenkomt met de GGD-advieswaarde [3]. 

  • c.

    belemmering veehouderij: uit het onderzoek van De Roever blijkt dat de beoogde woningbouwontwikkeling geen (extra) belemmering betekent voor de exploitatie van de betreffende veehouderij. Bestaande woningen aan de Achterste Weide en gebruiksmogelijkheden van de buitenruimten van die woningen maken verdere uitbreiding van de veehouderij onmogelijk.

Tot slot heeft de gemeente, door de vaststelling van een lokale geurverordening op basis van de Wgv, in het verleden (2008) voor andere woningbouwlocaties ook een hogere waarde (6,0 ouE/m3) als aanvaardbaar beoordeeld. 

[1] De GGD maakt geen onderscheid tussen wel/niet concentratiegebied, omdat dit niet gezondheidskundig is onderbouwd. 

[2] De geurbelasting van 5,5 ouE/mgeldt dus overigens wel alleen aan de oostkant van het plangebied. De geurbelasting neemt richting het westen verder af. 

[3] Dit advies is niet wetenschappelijk onderbouwd, maar wordt door de GGD gehanteerd om het gezondheidsaspect mee te wegen in de besluitvorming. 

3.2 Spuitzonering

3.2.1 Huidige gebruiksmogelijkheden gewasbeschermingsmiddelen 

Bij een ruimtelijke ontwikkeling van nieuwe gevoelige functies – in dit geval woningen – nabij landbouwgronden, is het van belang om te weten wat de maximale gebruiksmogelijkheden [1] van de agrarische percelen zijn op basis van het omgevingsplan. Op basis van artikel 3.1 in de bestemmingsplannen ‘Buitengebied 2013’ en ‘Reparatieplan Buitengebied 2013’ zijn er geen belemmeringen om op de agrarische percelen gewassen te telen in de openlucht en daarbij gewasbeschermingsmiddelen te gebruiken. Immers, binnen de bestemming ‘Agrarisch’ is het gebruik van gronden voor de uitoefening van een grondgebonden agrarisch bedrijf rechtstreeks toegestaan [2]. Er zijn daarbij geen specifieke gebruiks- of verbodsbepalingen opgenomen inzake het gebruiken van gewasbeschermingsmiddelen. Afbeelding 9 geeft een overzicht van de maximaal planologische mogelijkheden op de relevante percelen, op basis van het bestemmingsplan ‘Buitengebied 2013’. 

Afbeelding 9: overzicht maximaal planologische mogelijkheden van de aanwezige percelen in het bestemmingsplan “Buitengebied 2013”
afbeelding binnen de regeling Bron: Pouderoyen Tonnaer (2025)
3.2.2 Andere beperkende omstandigheden

Op basis van de regels in paragraaf 4.64 van het Besluit activiteiten leefomgeving (Bal) gelden wel al beperkende regels voor het gebruik van gewasbeschermingsmiddelen ten aanzien van oppervlaktewaterlichamen. Het oogmerk hierbij is het voorkómen of beperken van verontreinigen van een oppervlaktewaterlichaam en het beschermend van de gezondheid. De regels uit het Bal hebben een rechtstreekse werking. Met andere woorden: hier moet sowieso (door de teler) aan worden voldaan. Wanneer gewasbeschermingsmiddelen worden toegepast bij de teelt van gewassen, moet door de teler langs het oppervlaktewater al een teeltvrije/spuitvrije zone worden aangehouden. Deze zone varieert van 50 cm tot 5 meter en is afhankelijk van het type gewas en spuittechniek. Twee van de vijf kadastrale percelen grenzen aan een watergang (Duivense Wetering). 

Verder is al een aantal bestaande woningen aanwezig in de nabijheid van de agrarische percelen, waardoor op basis van de zorgplicht al een bepaalde afstand aangehouden zou moeten worden. Deze zorgplicht is echter algemeen geformuleerd en er is geen generieke of landelijke regelgeving die die afstand verder inkleedt. 

3.2.3 Impact van de beperkingen in het algemeen 

In rapport ‘Het perspectief van biologische landbouw’[3] wordt ten aanzien van de gewasopbrengsten bij biologisch akkerbouw opgemerkt dat het niet kunnen gebruiken van gewasbeschermingsmiddelen, naast dat het gebruik van kunstmest is uitgesloten, de grootste invloed heeft op de verminderde opbrengst van de oogst. Het rapport meldt dat voor de biologische granen en aardappelen er een opbrengstverschil is van -20 tot -40% bij biologische landbouw (ten opzichte van de conventionele landbouw). 

Dit betekent dat het opleggen van een ‘spuitvrije zone’ op de agrarische gronden een substantiële impact heeft op de bedrijfsmogelijkheden van de agrariër. 

3.2.4 Impact per perceel

In het rapport van Pouderoyen Tonnaer Bijlage 2 - Notitie Spuitzone Plakse Weide, Pouderoyen Tonnaer (2025) is nader ingegaan op de impact van het invoeren van de spuitvrije zone per perceel c.q. grondeigenaar. Hieronder volgt een samenvatting. 

 

  • a.

    Perceel ‘sectie G 615’: door de verkoop en ontwikkeling van de naastgelegen gronden, blijft een geïsoleerd gelegen perceel over waaraan, gezien de relatief kleine(re) oppervlakte van 1,50 ha, in agrarische zin een beperkte betekenis kan worden toegekend. De nieuwe spuitvrije zone beslaat circa 66% van dit perceel. Op het perceel gelden echter nu al beperkingen op basis van de zorgplicht ten aanzien van de feitelijk aanwezige omliggende woningen, maar zekerheidshalve wordt de situatie worst-case benaderd. Feitelijk wordt beoordeeld dat het realistisch is dat op het hele perceel geen gewasbeschermingsmiddelen kunnen worden gebruikt en dat hierdoor verminderde gewasopbrengsten voor het hele perceel van toepassing zullen zijn en doorwerken in de agrarische waarde. Gelet op de ligging van de grond kan aan de gronden een (zekere) verwachtingswaarde worden toegekend die uitstijgt boven de waarde bij voortgezet agrarisch gebruik. Er is evenwel een geringe mate van inkomensschade aannemelijk. 

  • b.

    Perceel ‘sectie G 580’: van de agrarisch bestemde gronden op dit perceel komt circa 50% binnen de spuitvrije zone te liggen. Evenals bij perceel G 615 is het in praktische zin niet efficiënt om op een deel van het perceel wel, en op een deel geen gewasbeschermingsmiddelen te gebruiken. Ook ten aanzien van de waarde kan dezelfde conclusie getrokken worden: dat deze vooral gerelateerd dient te worden aan de verwachting dat de grond zijn hoogste waarde ontleent aan een andere dan de agrarische aanwending.

  • c.

    Perceel ‘sectie G 529’: het perceel wordt momenteel niet agrarisch geëxploiteerd en wordt in de registratie gewaspercelen al jaren lang opgegeven als grasland. Deze omstandigheid rechtvaardigt de conclusie dat er geen sprake zal zijn van inkomensschade. Ten aanzien van de waarde (en mogelijke waardevermindering) kan dezelfde conclusie worden getrokken als bij de percelen G 615 en 580: dat deze vooral gerelateerd dient te worden aan de verwachting dat de grond zijn hoogste waarde ontleend aan een andere dan de agrarische aanwending. 

  • d.

    Perceel ‘sectie I:

    • 1.

      Nummer 192: dit perceel is in bezit van de gemeente Duiven en kent de bestemming “Natuur”. Gebruik van gewasbeschermingsmiddelen is hierop gelet niet aan de orde en niet aannemelijk.

    • 2.

      nummer 187: dit perceel is in bezit van Waterschap Rijn en IJssel en wordt gebruikt als werk- en onderhoudsstrook ten behoeve van watergang die daar loopt. Er zijn ten aanzien van dit perceel derhalve geen negatieve effecten te verwachten als gevolg van de voorgenomen spuitzonering.

    • 3.

      nummer 393: dit perceel wordt al jarenlang als grasland geëxploiteerd. De oppervlakte van de spuitvrije zone is tevens zeer gering in verhouding tot het gehele perceel. Het geringe oppervlakte in combinatie met het gegeven dat er sprake is van (blijvend) grasland, waarbij over het algemeen in beperkte(re) mate noodzaak bestaat tot het gebruik van gewasbeschermingsmiddelen dan bij andere teelten, leidt tot de conclusie dat er noch nog sprake zal zijn van een waardevermindering van het betreffende perceel noch dat er sprake zal zijn van inkomensschade.

[1] Ook al vindt dit gebruik feitelijk niet plaats. 

[2] Artikel 3 ‘Agrarisch’, lid 3.1, van Bestemmingsplan “Buitengebied 2013” en Bestemmingsplan ‘’Reparatieplan Buitengebied 2013’. 

[3] Rapport 1417, mei 2023, Wageningen University & research’

4 Uitvoerbaarheid

4.1 Maatschappelijke uitvoerbaarheid

De realisatie van maximaal 300 nieuwe woningen ter plaatse van Plakse Weide voorziet in een maatschappelijke behoefte, namelijk de vraag naar nieuwe woningen in Duiven. De beoogde woningbouwontwikkeling was in het vastgestelde bestemmingsplan al voorzien en, voor wat betreft fase II, via een wijzigingsbevoegdheid reeds opgenomen. De voorliggende omgevingsplanwijziging regelt :

 

  • a.

    een verhoging van de geurnorm ter plaatse van de woningbouwlocatie fase II, waarbij de betreffende varkenshouderij niet in diens belangen en mogelijkheden wordt geschaad, en de hogere norm voor wat betreft een woon- en leefklimaat en gezondheid als aanvaardbaar wordt beoordeeld; en 

  • b.

    in het ‘aan de andere kant’ regelen van de spuitvrije zone, waarbij er door het opleggen van de spuitvrije zone redelijkerwijs alleen nog maar teelten mogelijk zijn waar geen chemische gewasbeschermingsmiddelen worden toegepast. Gezien de beperkte omvang van de percelen en de beperkte gevolgen voor de grondeigenaren van deze regeling, wordt dit als aanvaardbaar beoordeeld. 

In hoofdstuk 5 van deze motivering wordt nader ingegaan op de belangenafweging die hierbij aan de orde is. Geconcludeerd kan worden dat sprake is van een aanvaardbare situatie. 

4.2 Financiële uitvoerbaarheid

Het verhalen van kosten is aan de orde indien de wijziging van het omgevingsplan een nieuwe (gebieds-) ontwikkeling mogelijk maakt met daarin kostenverhaalplichtige activiteiten. Die activiteiten zijn aangegeven in artikel 8.13 van het Omgevingsbesluit. In dat geval dient het kostenverhaal te worden verzekerd, ofwel via regels over kostenverhaal in het omgevingsplan, ofwel anderszins (bijvoorbeeld via een anterieure overeenkomst).

In het geval van de voorliggende omgevingsplanwijziging worden geen kostenverhaalsplichtige activiteiten zoals bedoeld in artikel 8.13 Omgevingsbesluit mogelijk gemaakt. Het verhalen van kosten is dan ook niet aan de orde.

In het rapport van Pouderoyen Tonnaer Bijlage 2 - Notitie Spuitzone Plakse Weide, Pouderoyen Tonnaer (2025) zijn inschattingen gegeven van de eventuele bedragen inzake de inkomens- en/of vermogensschade. Dit betreft een absolute worst-case inschatting en dit zal in de praktijk nog nader onderzocht moeten worden als dat aan de orde komt, waarbij onder meer het normaal maatschappelijk risico meegenomen wordt. In de grondexploitatie van de ontwikkeling is wel ruimte gereserveerd voor het compenseren van deze schade, waardoor de financiële uitvoerbaarheid geborgd is. 

4.3 Participatie en overleg

Bij de vaststelling van een omgevingsplanwijziging moet worden aangegeven hoe burgers, bedrijven, maatschappelijke organisaties en andere bestuursorganen bij de voorbereiding daarvan zijn betrokken, en wat de resultaten daarvan zijn. Daarbij moet ook worden aangegeven op welke wijze de gemeente zijn eigen participatiebeleid heeft ingevuld (artikel 10.2 Omgevingsbesluit). In de Omgevingswet zijn geen inhoudelijke kaders opgenomen over hoe deze participatie moet worden vormgegeven.

Het voorliggende plan betreft een technische wijziging op het bestemmingsplan Plakse Weide. Voor dit bestemmingsplan heeft in het verleden een uitgebreid participatietraject plaatsgevonden, waarbij belanghebbenden, omwonenden en grondeigenaren zijn geïnformeerd en betrokken bij de planvorming. In dat kader hebben de ontwikkelaar en de eigenaar van de gronden en de aangrenzende veehouderij meermaals en gedurende langere tijd overleg gevoerd. 

Tijdens deze gesprekken zijn verschillende ontwikkelopties besproken, gericht op een zorgvuldige ruimtelijke inpassing en het afstemmen van wederzijdse belangen. Voor een nadere beschrijving van dit traject wordt verwezen naar de toelichting bij het bestemmingsplan Plakse Weide.

Om te voorkomen dat het gebruik van gewasbeschermingsmiddelen verder toeneemt, heeft de gemeente op 9 september 2025 een voorbereidingsbesluit genomen voor meerdere agrarische percelen in de gemeente. In het kader van dit besluit is met belanghebbenden gesproken over het voornemen en de mogelijke gevolgen van de beoogde ontwikkeling. De opgehaalde aandachtspunten zijn, waar relevant, betrokken bij de verdere planuitwerking.

Daarnaast wordt, conform de wettelijke procedure, nog de mogelijkheid geboden tot het indienen van zienswijzen op het ontwerp omgevingsplan.

4.4 Procedure

4.4.1 Vooraankondiging

Volgens artikel 16.29 van de Omgevingswet is op PM Datum een vooraankondiging van het wijzigingen van het omgevingsplan gedaan.

4.4.2 Overlegpartners

Voor het bestemmingsplan "Plakse Weide" heeft in het verleden een uitgebreid participatietraject plaatsgevonden, inclusief overleg en afstemming met diverse vooroverlegpartners. Vooroverleg heeft over de voorliggende omgevingsplanwijziging niet meer afzonderlijk plaatsgevonden, omdat het slechts om een technische aanpassing gaat van het al eerder vastgestelde bestemmingsplan “Plakse Weide”.

4.4.3 Terinzagelegging ontwerp

Voor het wijzigen van het omgevingsplan moet de uniforme openbare voorbereidingsprocedure (afdeling 3.4 Awb) worden gevolgd. Dat betekent onder andere dat de ontwerp-omgevingsplanwijziging en de bijbehorende stukken gedurende zes weken ter inzage wordt gelegd (artikel 3:11 Awb). Binnen deze termijn kan iedereen schriftelijk of mondeling zienswijzen op het ontwerp inbrengen. Na verwerking van ingebrachte zienswijzen kan de gemeenteraad een besluit tot vaststelling van de omgevingsplanwijziging nemen.

Het ontwerp van deze omgevingsplanwijziging heeft van [datum] tot en met [datum] – oftewel gedurende zes weken - ter inzage gelegen. Gedurende deze periode zijn X zienswijzen op het ontwerp ingebracht. [PM beschrijving ingebrachte zienswijzen + reactie + wijzigingen in het ontwerp / verwijzing naar zienswijzennota]

4.4.4 Vaststelling en beroep

Het college van burgemeester en wethouders ontvangt het definitieve besluit voor wijziging van het omgevingsplan met de beantwoording van de eventueel naar voren gebrachte zienswijzen en eventuele ambtshalve wijzigingen en correcties en accordeert dit. 

De gemeenteraad ontvangt het raadsvoorstel voor het vaststellen van de omgevingsplanwijziging met daarbij de eventuele nota van beantwoording van zienswijzen. De raad stelt uiteindelijk de omgevingsplanwijziging met in acht neming van de eventuele zienswijzen vast. Het vastgestelde besluit tot wijziging van het omgevingsplan wordt bekend gemaakt in het gemeenteblad en gepubliceerd op het Digitaal Stelsel Omgevingswet (DSO).

Na de vaststelling kunnen belanghebbenden gedurende zes weken na bekendmaking beroep instellen bij de Afdeling Bestuursrechtspraak van de Raad van State in eerste en enige aanleg. 

5 Evenwichtige toedeling van functies aan locaties

5.1 Kader

Voor de wijziging van het omgevingsplan geldt dat de regels erin moeten voorzien dat er sprake is van een evenwichtige toedeling van functies aan locaties (ETFAL). Dit volgt uit artikel 4.2, lid 2, van de Omgevingswet. Dit vereiste is in feite een voortzetting van het criterium van een goede ruimtelijke ordening uit de Wet ruimtelijke ordening, maar dan in de bredere strekking van de fysieke leefomgeving. Het zorgen voor een evenwichtige toedeling van functies aan locaties wordt in het omgevingsplan bereikt door activiteiten onderling evenwichtig over locaties te reguleren. Afdeling 5.1 van het Bkl bevat instructieregels over verschillende (milieu)aspecten voor het omgevingsplan, met het oog op ETFAL. 

5.2 Afweging

5.2.1 Geurregels

 

Bij het veranderen van de regels over geur, door het houden van landbouwhuisdieren met geuremissiefactor, spelen de volgende belangen waartussen een afweging moet worden gemaakt:

 

  • a.

    het belang van woningbouwontwikkeling gezien de woningbouwopgave en het belang van toekomstige bewoners bij een gezonde en veilige leefomgeving; 

  • b.

    het belang van agrariërs om hun gronden optimaal te kunnen benutten voor het uitoefenen van agrarische activiteiten.

In het geval van de onderhavige omgevingsplanwijziging is sprake van het verruimen van de geurnormen op de woningbouwlocatie Plakse Weide fase II. De feitelijke geurwaarden die het bedrijf kent (en die als zodanig zijn vergund) worden niet verruimd. Omdat er nauwelijks sprake is van cumulatie van geur door meerdere veehouderijen en de afstand van de toekomstige woningen tot de veehouderij bijna overeenkomt met de GGD-advieswaarde van 250 m, wordt het woon- en leefklimaat als aanvaardbaar beschouwd. De betreffende veehouderij wordt door de beoogde woningbouwontwikkeling niet belemmerd.  

Dit is in paragraaf 3.1 van deze motivering reeds nader toegelicht. 

Verder geldt dat het belang van de woningbouwontwikkeling op deze locatie zeer groot is. Verwezen wordt naar paragraaf 3.1.3. ("Ladder voor Duurzame Verstedelijking (artikel 3.1.6 Bro") uit het vastgestelde bestemmingsplan 'Plakse Weide'. Daar bovenop kan nog het volgende worden gesteld. In de gemeentelijke Woonvisie geeft de gemeente Duiven het volgende aan: "We willen de woningbouw versnellen om aan de behoefte te voldoen en tot 2025 520 woningen bouwen, tot 2030 in totaal 900 woningen en tot 2040 in totaal 1.200 woningen. We hebben daarvoor zowel de al bekende inbreidingslocaties als meerdere uitbreidingslocaties nodig. We willen de juiste woningen realiseren rekening houdend met de geconstateerde woningbehoefte en met doorstroming uit de bestaande voorraad. De grootste opgave ligt in de kern Duiven”. Plakse Weide draagt (stevig) bij aan deze ambitie, juist omdat de behoefte aan woningbouw in de kern van Duiven urgent is.

5.2.2 Spuitzonering

Bij opleggen van een spuitvrije zone op agrarische gronden spelen de volgende belangen waartussen een afweging moet worden gemaakt:

 

  • a.

    het belang van woningbouwontwikkeling gezien de woningbouwopgave en het belang van toekomstige bewoners bij een gezonde en veilige leefomgeving; en 

  • b.

    het belang van de teler om landbouwgronden maximaal te kunnen benutten voor het telen van gewassen met het oog op het behalen van maximale gewasopbrengsten, en het belang van de grondeigenaar (in meeste gevallen is dit ook de teler, maar niet altijd) ten aanzien van beperkte gebruiksmogelijkheden en eventuele waardedaling van de grond;

Het woningbouwbelang in Duiven (zie ook subparagraaf 5.2.1) en het belang van de gezondheid van bewoners in Plakse Weide, waarbij de resultaten van steeds meer onderzoeken wijzen op een verband tussen het gebruiken van chemische gewasbeschermingsmiddelen op korte afstand van locaties waar mensen langdurig (kunnen) verblijven en ernstige impact op de gezondheid; prevaleert boven het landbouwbelang en het belang van agrarisch gebruik van gewasbeschermingsmiddelen op de omliggende percelen waar voor een deel een spuitvrije zone wordt gesitueerd. Dit vanwege de beperkte omvang van de percelen en de beperkte gevolgen voor de grondeigenaren van deze regeling. 

Daarbij komt dat met het stellen van deze regels, de gemeente Duiven invulling geeft aan de ‘Richtlijn duurzaam gebruik pesticiden’, waarin EU-lidstaten worden verplicht om kwetsbare groepen te beschermen tegen schade door gewasbeschermingsmiddelen. Een recente uitspraak in ’s-Hertogenbosch onderstreept dit, zoals nader is toegelicht in paragraaf 2.2.3 van deze motivering. 

I Overzicht Documentenbijlagen

Bijlage 1 - Notitie Geurbelasting Laarstraat 20, De Roever (2023)

/join/id/pubdata/gm0226/2025/81f7e8c16bae4a6086ecde40675bf493/nld@2025‑11‑06;11105025

Bijlage 2 - Notitie Spuitzone Plakse Weide, Pouderoyen Tonnaer (2025)

/join/id/pubdata/gm0226/2025/79fd05cb3f45419fb3bb9374bb75c1ae/nld@2025‑11‑06;11105025

Naar boven