Uitvoeringsbesluit aanwijzing vuurwerkvrije zones jaarwisseling Helmond 2025

Het college van burgemeester en wethouders van de gemeente Helmond,

 

overwegende dat,

  • het aanwijzen van vuurwerkvrije zones de beleving en de veiligheid van de jaarwisseling kan verbeteren;

  • locaties als ziekenhuizen, dierenparken en verzorgingstehuizen kwetsbaar zijn en grote hinder ondervinden van het afsteken van consumentenvuurwerk tijdens de jaarwisseling in de directe omgeving;

  • met het aanwijzen als vuurwerkvrije zone in de directe omgeving van deze locaties tijdens de jaarwisseling geen consumentenvuurwerk afgestoken mag worden, waardoor gevaar, schade of overlast voorkomen kan worden;

  • de aanwijzing als vuurwerkvrije zone geldt van 31 december 2025 vanaf 18.00 uur tot 1 januari 2026 02.00 uur;

  • buiten de hiervoor genoemde tijden er al een algeheel landelijk verbod geldt op het ontsteken van vuurwerk.

Gelet op artikel 2.6.3 van de Algemene plaatselijke verordening Helmond 2020;

 

BESLUIT:

  • 1.

    De volgende locaties aan te wijzen als vuurwerkvrije zones als bedoeld in artikel 2.6.3 van de Algemene plaatselijke verordening Helmond 2020 overeenkomstig de in de bijlagen toegevoegde tekeningen:

    • -

      Zorgcentrum Savant de Eeuwsels (bijlage 1);

    • -

      Elkerliek Ziekenhuis (bijlage 2);

    • -

      Dierenpark Warande (bijlage 2);

    • -

      Dierenpark De Rippert (bijlage 3);

    • -

      Dierenpark Hortensiapark (bijlage 4);

    • -

      Zorgcentrum Rivierenhof (bijlage 5);

    • -

      Zorgcentrum Pannehoeve (bijlage 6);

    • -

      Zorgcentrum Alphonsus (bijlage 7);

    • -

      Zorgcentrum Keyserinnedael (bijlage 8).

  • 2.

    Dit besluit treedt in werking na bekendmaking en geldt van 31 december 2025 vanaf 18.00 uur tot 1 januari 2026 02.00 uur en vervalt daarna van rechtswege.

Helmond, 23 september 2025.

mr. S.C.C.M. Potters

burgemeester

E.P.H. Knoop, MSc

gemeentesecretaris

Bezwaar en verzoek om voorlopige voorziening

 

Bent u het niet eens met ons besluit? Dan kunt u hiertegen bezwaar maken. Stuur ons dan een bezwaarschrift binnen 6 weken na de verzenddatum van deze brief.

 

Een bezwaarschrift moet ondertekend zijn en bevat verder:

 

  • Uw naam en adres

  • De datum waarop uw bezwaarschrift is geschreven

  • Met welk besluit u het niet eens bent

  • De argumenten waarom u het niet eens bent met dit besluit.

Stuur uw bezwaarschrift aan het college van burgemeester en wethouders van Helmond, postbus 950, 5700 AZ Helmond. U kunt uw bezwaarschrift ook digitaal indienen via www.helmond.nl/bezwaar .

 

Zorgt u ervoor dat u het bezwaarschrift indient binnen zes weken na de dag van verzending van dit besluit.

 

Daarmee voorkomt u dat wij uw bezwaarschrift niet meer kunnen behandelen.

 

Wilt u voorkomen dat het besluit op korte termijn wordt uitgevoerd? Dien dan ook een verzoek om een voorlopige voorziening in bij de voorzieningenrechter. Een verzoek daartoe richt u aan: De voorzieningenrechter, sector bestuursrecht, postbus 90215, 5200 MA ’s-Hertogenbosch. U kunt uw verzoekschrift ook digitaal indienen via http://loket.rechtspraak.nl/bestuursrecht . Daarvoor moet u wel beschikken over een elektronische handtekening ( DigiD ).

 

Heeft u vragen over het indienen van een (digitaal) bezwaarschrift of een voorlopige voorziening? Kijk dan op de site van de gemeente Helmond, www.helmond.nl/bezwaar .

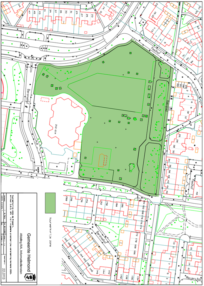
Bijlage 1 Zorgcentrum Savant de Eeuwsels

 

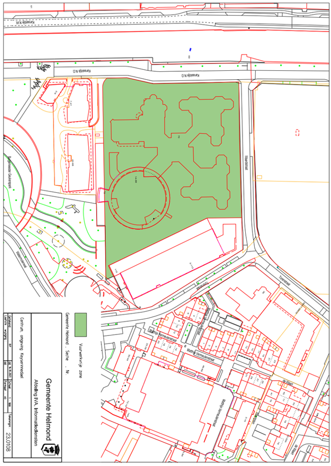
Bijlage 2 Elkerliek Ziekenhuis en dierenpark Warande

 

Bijlage 3 Dierenpark De Rippert

 

Bijlage 4 Dierenpark Hortensiapark

 

Bijlage 5 Zorgcentrum Rivierenhof

 

Bijlage 6 Zorgcentrum Pannehoeve

 

Bijlage 7 Zorgcentrum Alphonsus

 

Bijlage 8 Zorgcentrum Keyserinnedael

 

Naar boven