Verkeersbesluit voor een tijdelijke parkeersituatie rondom gebouwen ‘Kensington’ en ‘Notting Hill’ aan Hyde Park te Hoofddorp

XS-25102910.1534

Gelet op het volgende:

  • Op grond van artikel 15, eerste lid, van de Wegenverkeerswet 1994 moet een verkeersbesluit worden genomen voor de plaatsing of verwijdering van de in artikel 12 van het Besluit administratieve bepalingen inzake het wegverkeer genoemde verkeerstekens, alsmede voor onderborden voor zover daardoor een gebod of verbod ontstaat of wordt gewijzigd.

  • Op grond van artikel 15, tweede lid, van de Wegenverkeerswet 1994 moet een verkeersbesluit worden genomen indien de maatregelen leiden tot een beperking of uitbreiding van het aantal categorieën weggebruikers dat van een weg of weggedeelte gebruik kan maken.

  • De Algemene wet bestuursrecht (AWB) vereist zorgvuldigheid en belangenafweging bij de totstandkoming van besluiten, waaronder verkeersbesluiten. Artikel 3:2 van de AWB schrijft voor dat het bestuursorgaan de nodige kennis omtrent de relevante feiten en de af te wegen belangen vergaart. Naast de belangenafweging bepaalt artikel 3:4 van de AWB dat de voor een of meer belanghebbenden nadelige gevolgen niet onevenredig mogen zijn in verhouding tot de met het besluit te dienen doelen.

  • Artikel 21 van het BABW bevat voorschriften omtrent de motivering van verkeersbesluiten. Het verkeersbesluit moet in ieder geval weergeven welke doelstelling of doelstellingen met het verkeersbesluit worden beoogd. Daarbij moet worden aangegeven welke van de in artikel 2, eerste en tweede lid van de Wegenverkeerswet 1994 genoemde belangen ten grondslag liggen aan het besluit. Indien tevens andere van die belangen in het geding zijn, wordt voorts aangegeven op welke wijze de belangen tegen elkaar zijn afgewogen.

  • Artikel 2 van de Wegenverkeerswet noemt de volgende doelen:

    • 1.

      In eerste instantie:

    • a.

      het verzekeren van de veiligheid op de weg;

    • b.

      het beschermen van weggebruikers en passagiers;

    • c.

      het in stand houden van de weg en het waarborgen van de bruikbaarheid daarvan;

    • d.

      het zoveel mogelijk waarborgen van de vrijheid van het verkeer.

    • 2.

      In tweede instantie ook voor:

    • a.

      het voorkomen of beperken van door het verkeer veroorzaakte overlast, hinder of schade alsmede de gevolgen voor het milieu, bedoeld in de Wet milieubeheer;

    • b.

      het voorkomen of beperken van door het verkeer veroorzaakte aantasting van het karakter of van de functie van objecten of gebieden.

  • Overeenkomstig artikel 24 van het Besluit administratieve bepalingen inzake het wegverkeer (BABW) dient overleg te worden gevoerd met de korpschef van de Nationale Politie.

  • De vermelde wegen zijn in eigendom, beheer en onderhoud van de gemeente Haarlemmermeer.

  • Krachtens artikel 18, lid 1 onder d, van de Wegenverkeerswet 1994 worden verkeersbesluiten genomen door het college van B&W. In het Mandaat-, machtiging en volmachtbesluit Haarlemmermeer 2024 is de bevoegdheid tot het nemen en intrekken van verkeersbesluiten een ondermandaat verleend aan de cluster- en teammanagers van de cluster B&O (Beheer & Onderhoud). De maatregelen vallen onder dit ondermandaat.

Overwegingen en motivatie

In voormalig kantorengebied Beukenhorst-West, tussen station Hoofddorp en het stadspark, wordt de nieuwe stadswijk Hyde Park gebouwd. Hier worden de komende jaren ongeveer 3.800 woningen, kantoren, voorzieningen en horeca gebouwd. Een aantal bestaande kantoren, een hotel en woningen zijn onderdeel van de nieuwe wijk. Deze nieuwe stadswijk draagt bij aan de grote vraag naar meer woningen in Haarlemmermeer en omgeving. De restaurants, cafés, winkels en faciliteiten in de nieuwe wijk zorgen voor meer gezelligheid in Stadscentrum Hoofddorp.

Hyde Park wordt in fases gebouwd. Op 23 maart 2021 zijn de gemeente Haarlemmermeer en Hyde Park Hoofddorp BV een overeenkomst aangegaan voor tijdelijke ingebruikname van de openbare ruimte. Met deze tijdelijke ingebruikname komt een deel van de openbare ruimte te vervallen. Voor deze aanpassing van de openbare ruimte en de duur van deze aanpassing worden tijdelijke verkeersmaatregelen genomen. Indien deze tijdelijke maatregelen langer in beslag nemen dan 4 maanden wordt daarvoor een verkeersbesluit genomen.

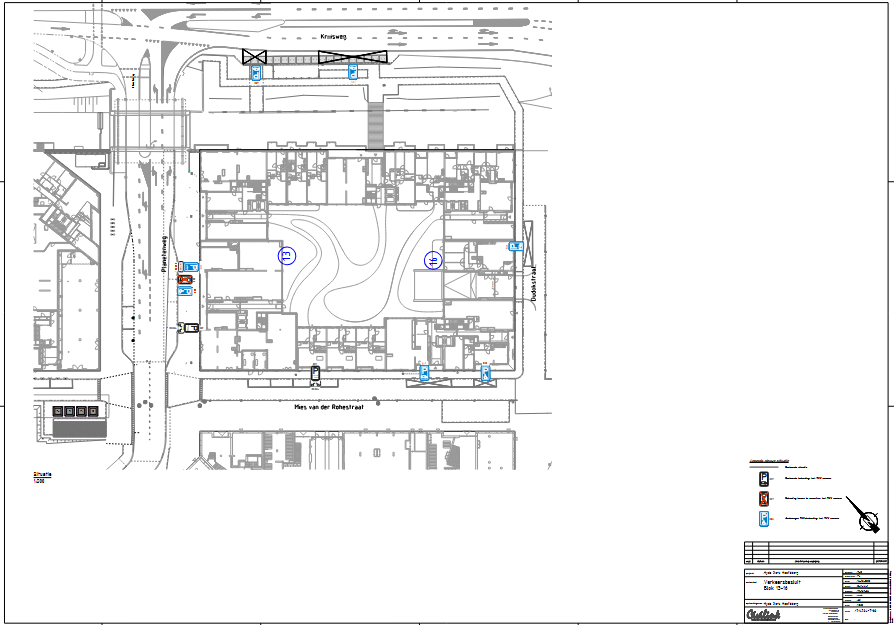
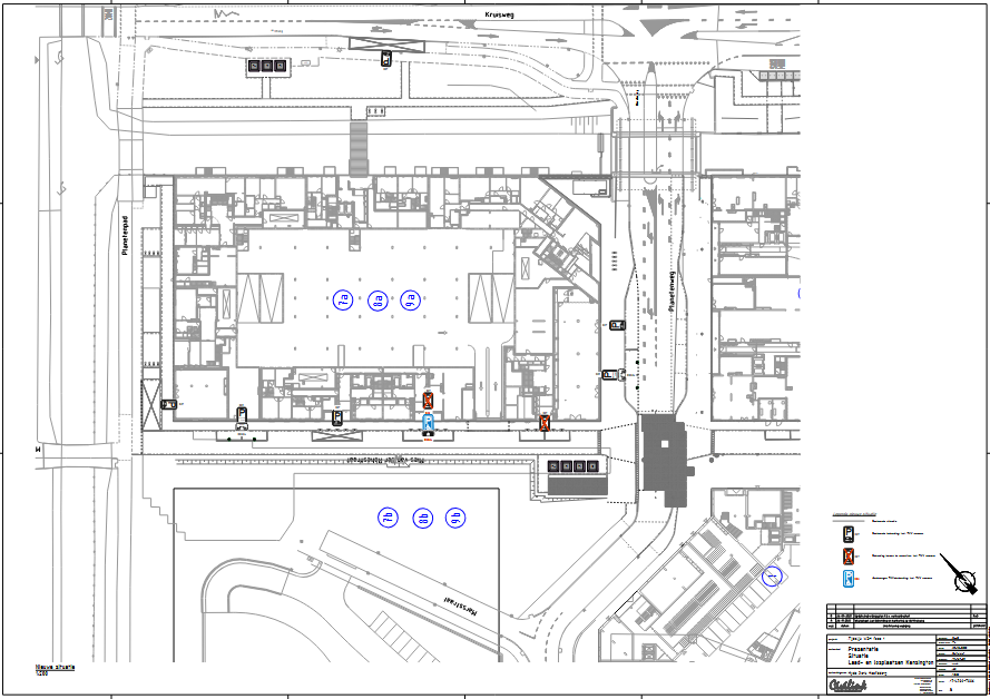
Op 21-12-2023 (kenmerk X.2023.07567) is een verkeersbesluit genomen voor het aanwijzen van laad- en losplaatsen rondom het gebouw ‘Kensington’. Dat is het bouwblok tussen de Kruisweg, de Planetenweg (tegenwoordig Niemeyerstraat) en het Planetenpad. Het ging toen om het aanwijzen van 6 laad- en losplaatsen.

Inmiddels is de openbare ruimte gewijzigd waarbij het gebouw ‘Kensington’ is opgeleverd, maar waarbij de openbare ruimte nog niet de definitieve inrichting heeft. Hierdoor is het niet meer nodig om 6 laad- en losplaatsen te behouden, en is er behoefte aan parkeerplaatsen voor minder validen. Voor het gebouw ‘Kensington’ worden daarom 2 van de 6 laad- en losplaatsen ingetrokken en worden 2 gehandicaptenparkeerplaatsen aangewezen.

Naast gebouw ‘Kensington’ is ook gebouw ‘Notting Hill’ volop in aanbouw. Dit is het bouwblok naast ‘Kensington’, tevens gelegen aan de Kruisweg. Ook hiervoor worden laad- en losplaatsen gerealiseerd om de vele te verwachten besteldiensten te faciliteren in de openbare ruimte. Indien we dit niet doen, dan zullen de voertuigen van onder meer supermarkten, kledingwinkels en postorderbedrijven naar verwachting hinderlijk en gevaarlijk in de openbare ruimte worden stilgezet en dat willen we voorkomen.

In dit geval verwachten we met 4 laad- en losplaatsen te voldoen aan de behoefte, waarbij deze plekken ook gebruikt kunnen worden door verhuiswagens. Omdat ook van dit gebouw al woningen bewoond zijn is ook hier behoefte aan parkeerplaatsen voor minder validen. Vooralsnog worden daarom 2 gehandicaptenparkeerplaats gerealiseerd. Daarnaast is er een huisarts gevestigd in het gebouw ‘Notting Hill’. Deze huisarts heeft 1 spoedplek nodig waarin wij willen voorzien.

De openbare ruimte kan nog niet de definitieve inrichting krijgen omdat er nog gebouwd wordt aan andere bouwblokken. De openbare ruimte krijgt daarom voorlopig wederom een tijdelijke inrichting waardoor de laad- en losplaatsen en de gehandicaptenparkeerplaatsen op een later moment mogelijk opnieuw verlegd worden. Tegen die tijd zal dan opnieuw een verkeersbesluit worden genomen.

Met deze maatregelen wordt vooral beoogd de leefbaarheid voor de (toekomstige) bewoners te kunnen garanderen. Maar daarnaast wordt daarmee ook de verkeersveiligheid en de bereikbaarheid gegarandeerd omdat besteldiensten dan niet hinderlijk en gevaarlijk in de weg zullen staan.

Maatregelen (bebording en belijning)

De volgende maatregelen worden getroffen:

  • 1.

    Het intrekken van een tweetal gelegenheden bestemd voor het onmiddellijk laden en lossen van goederen rondom het gebouw ‘Kensington’, in de Mies van der Rohestraat in Hyde Park te Hoofddorp, door het verwijderen van borden E7 RVV 1990;

     

  • 2.

    Het aanwijzen van een viertal gelegenheden bestemd voor het onmiddellijk laden en lossen van goederen rondom het gebouw ‘Notting Hill’, in de Mies van der Rohestraat, in de Dudokstraat en aan de Kruisweg in Hyde Park te Hoofddorp, door het plaatsen van borden E7 RVV 1990;

     

  • 3.

    Het aanduiden van een viertal algemene gehandicaptenparkeerplaatsen nabij de gebouwen ‘Kensington’ en ‘Notting Hill’, in de Mies van der Rohestraat en in de Niemeyerstraat in Hyde Park te Hoofddorp, door het plaatsen van borden E6 RVV 1990;

     

  • 4.

    Het aanduiden van een gereserveerde parkeerplaats op kenteken voor een arts nabij het gebouw ‘Notting Hill’, in de Niemeyerstraat in Hyde Park te Hoofddorp, door het plaatsen van bord E8 RVV 1990 waarop het symbool van een personenauto staat en door het aanbrengen van onderbord OB309 waarop het bijbehorende kenteken wordt aangegeven.

De verkeersmaatregelen staan aangegeven op de bij dit besluit behorende tekeningen met de nummers 1714709-T006 en 1714704-T182.

Motivering Wegenverkeerswet 1994 (Wvw 1994):

Motivatie van de maatregel geschiedt uit het oogpunt van:

  • artikel 2, lid 1a van de Wegenverkeerswet (Wvw) 1994, het verzekeren van de veiligheid op de weg;

  • artikel 2, lid 1b van de Wegenverkeerswet (Wvw) 1994, het beschermen van weggebruikers en passagiers;

  • artikel 2, lid 1c van de Wegenverkeerswet (Wvw) 1994, het in stand houden van de weg en het waarborgen van de bruikbaarheid daarvan;

  • artikel 2, lid 1d van de Wegenverkeerswet (Wvw) 1994, het zoveel mogelijk waarborgen van de vrijheid van het verkeer;

  • artikel 2, lid 2a van de Wegenverkeerswet (Wvw) 1994, het voorkomen of beperken van door het verkeer veroorzaakte overlast, hinder of schade alsmede de gevolgen voor het milieu, bedoeld in de Wet milieubeheer;

  • artikel 2, lid 2b van de Wegenverkeerswet (Wvw) 1994, het voorkomen of beperken van door het verkeer veroorzaakte aantasting van het karakter of van de functie van objecten of gebieden.

Door de maatregelen worden geen van de belangen genoemd in artikel 2 van de Wegenverkeerswet 1994 onevenredig geschaad.

Belangenafweging

Bewoners

De maatregelen zijn in het belang van bewoners. Door het aanwijzen van specifieke locaties voor laden en lossen en gehandicaptenparkeerplaatsen blijft de openbare ruimte overzichtelijk en daarmee (verkeers)veilig.

Bedrijven

De maatregelen zijn in het belang van bedrijven. Door het aanwijzen van specifieke locaties voor laden en lossen blijft de openbare ruimte overzichtelijk en kunnen de bedrijven veilig hun goederen laden en lossen.

(Doorgaand) gemotoriseerd verkeer

De maatregelen hebben geen gevolgen voor doorgaand gemotoriseerd verkeer omdat de laad- en losplaatsen aan de Kruisweg en de Niemeyerstraat buiten de rijbaan in een haven worden aangelegd. De maatregelen zijn in het belang van gemotoriseerd verkeer met een bestemming omdat besteldiensten hun voertuigen niet hinderlijk in de weg zullen stilzetten.

Parkeerders

De maatregelen hebben geen gevolgen voor parkeerders. De laad- en losplaatsen en de gehandicaptenparkeerplaatsen gaan namelijk niet ten koste van parkeerplaatsen omdat er een parkeerverbodzone is ingesteld. Parkeren vindt voornamelijk op eigen terrein in de parkeergarages van de gebouwen ‘Kensington’ en ‘Notting Hill’ plaats, maar in deze tijdelijke inrichting van de openbare ruimte worden ook een aantal openbare parkeerplaatsen gerealiseerd.

Langzaam verkeer

De maatregelen zijn in het belang van langzaam verkeer. Door het aanwijzen van specifieke locaties voor laden en lossen blijft de openbare ruimte overzichtelijk, toegankelijk en daarmee (verkeers)veilig.

Landbouwverkeer

De maatregelen hebben geen gevolgen voor landbouwverkeer.

Openbaar vervoer

De maatregelen hebben geen gevolgen voor openbaar vervoer.

Nood- en hulpdiensten

De maatregelen zijn in het belang van nood- en hulpdiensten omdat besteldiensten hun voertuigen niet hinderlijk in de weg zullen stilzetten. De bereikbaarheid blijft hierdoor gegarandeerd.

Algemeen belang

De maatregelen garanderen de verkeersveiligheid, de bereikbaarheid en de leefbaarheid. Dit is in het algemeen belang.

Afweging

Alles afwegende zijn burgemeester en wethouders van mening dat de maatregelen in het algemeen belang zijn en in het bijzonder in het belang van bewoners, bedrijven, langzaam verkeer en de nood- en hulpdiensten. Er worden geen belangen onevenredig geschaad.

Voorbereiding en overleg

Omdat de maatregelen ten goede komen aan zowel de verkeersveiligheid, de bereikbaarheid als de leefbaarheid, heeft er geen uitgebreid participatietraject plaatsgevonden. De omwonenden worden geïnformeerd over de maatregelen en geattendeerd op de projectwebsite. Om de rechtstreeks bij het verkeersbesluit betrokken belangen goed af te kunnen wegen verdient het de aanbeveling om, vooral bij complexe en omstreden maatregelen, een voorbereidingsprocedure te volgen. Hier is vanaf gezien omdat de maatregelen geen complexe maatregelen betreffen en de belangen voldoende in beeld zijn. Overleg met de Nationale Politie heeft plaatsgevonden in de Werkgroep Verkeer, waarin de door de korpschef gemachtigde medewerker verkeersadvisering, alsmede de Brandweer en Connexxion, vertegenwoordigd zijn. Op 28-10-2025 is dit besluit behandeld in de werkgroep. De leden van de Werkgroep Verkeer gaan akkoord met de voorgestelde maatregelen.

Publicatie

Het besluit wordt gepubliceerd in het digitale Gemeenteblad van Haarlemmermeer.

Besluiten

In overeenstemming met de tekeningen met de nummers 1714709-T006 en 1714704-T182, die een onderdeel zijn van dit besluit, wordt besloten tot de volgende verkeersmaatregelen:

  • 1.

    Het intrekken van een tweetal gelegenheden bestemd voor het onmiddellijk laden en lossen van goederen rondom het gebouw ‘Kensington’, in de Mies van der Rohestraat in Hyde Park te Hoofddorp, door het verwijderen van borden conform model E7 uit bijlage I van het Reglement Verkeersregels en Verkeerstekens (RVV) 1990;

 

  • 2.

    Het aanwijzen van een viertal gelegenheden bestemd voor het onmiddellijk laden en lossen van goederen rondom het gebouw ‘Notting Hill’, in de Mies van der Rohestraat, in de Dudokstraat en aan de Kruisweg in Hyde Park te Hoofddorp, door het plaatsen van borden conform model E7 uit bijlage I van het RVV 1990;

  • 3.

    Het aanduiden van een viertal algemene gehandicaptenparkeerplaatsen nabij de gebouwen ‘Kensington’ en ‘Notting Hill’, in de Mies van der Rohestraat en in de Niemeyerstraat in Hyde Park te Hoofddorp, door het plaatsen van borden conform model E6 uit bijlage I van het RVV 1990;

  • 4.

    Het aanduiden van een gereserveerde parkeerplaats op kenteken voor een arts nabij het gebouw ‘Notting Hill’, in de Niemeyerstraat in Hyde Park te Hoofddorp, door het plaatsen van bord conform model E8 uit bijlage I van het RVV 1990 waarop het symbool van een personenauto staat en door het aanbrengen van onderbord OB309 waarop het bijbehorende kenteken wordt aangegeven;

Burgemeester en Wethouders van Haarlemmermeer

namens dezen,

de gemeentesecretaris,

voor deze,

de teammanager Contract en Uitvoering a.i.,

R.M. Kruithof-Kamphuis

Terinzagelegging

Het besluit wordt gepubliceerd in het digitale Gemeenteblad van Haarlemmermeer (overheid.nl). Het besluit en de tekening waarop de maatregelen staan aangegeven, liggen gedurende zes weken vanaf de publicatiedatum voor een ieder na een telefonische afspraak ter inzage op werkdagen van 9.00 tot 17.00 uur in het Informatiecentrum van het raadhuis, Taurusavenue 100 in Hoofddorp.

Bezwaar

Op grond van de Algemene wet bestuursrecht kan iedereen wiens belang rechtstreeks bij een besluit is betrokken, binnen zes weken na publicatie van dit besluit een met redenen omkleed bezwaarschrift indienen bij het college van Burgemeester en Wethouders van Haarlemmermeer, het cluster Juridische Zaken van het team Ondersteuning, Postbus 250, 2130 AG Hoofddorp. Het indienen van een bezwaarschrift schorst de werking van dit besluit niet. Gelijktijdig met of na het indienen van een bezwaarschrift kan een verzoek om een voorlopige voorziening worden gericht aan de voorzieningenrechter van de Rechtbank Noord-Holland, p/a Arrondissementsrechtbank Haarlem, sector Bestuursrecht Postbus 1621, 2003 BR Haarlem. Een dergelijk verzoek kan pas worden gedaan als het bezwaarschrift is ingediend en onverwijlde spoed, gelet op het betrokken belang, dat vereist. Voor de behandeling van het verzoek wordt een bedrag aan griffierecht geheven.

Naar boven