Tijdelijk besluit van de burgemeester van de gemeente Roosendaal houdende regels omtrent cameratoezicht ‘Aanwijzingsbesluit flexibel cameratoezicht Parklaan 2025’

De burgemeester van de gemeente Roosendaal,

 

gelet op:

  • de artikelen 2:77 van de Algemene plaatselijke verordening en 151c van de Gemeentewet;

  • zoals afgestemd met de lokale driehoek;

 

overwegende dat:

de burgemeester, indien dat in het belang van de handhaving van de openbare orde noodzakelijk is, bevoegd is om op basis van artikel 2:77 van de APV en artikel 151c van de Gemeentewet voor een bepaalde duur cameratoezicht in te zetten;

 

de belangen van openbare veiligheid en het voorkomen van wanordelijkheden en strafbare feiten in het onderhavige geval zwaarder wegen dan het individuele belang van de burgers;

 

uit een bestuurlijke rapportage van de politie van 8 oktober 2025 blijkt dat er in de periode van 1 januari 2024 tot en met 31 december 2024 in totaal 128 incidenten hebben plaatsgevonden aan de Parklaan, veelal te maken met overlast door alcohol/drugs in de openbare ruimte en overlast van daklozen;

 

uit een bestuurlijke rapportage van de politie van 8 oktober 2025 blijkt dat in de periode van 1 januari 2025 tot 8 oktober 2025 in totaal 88 incidenten hebben plaatsgevonden, veelal te maken met overlast door alcohol/drugs in de openbare ruimte en overlast van daklozen;

 

uit een bestuurlijke rapportage van de politie van 8 oktober 2025 verder blijkt dat het Oude Centrum, in de nabijheid van het aanwezige treinstation, een aantrekkelijk gebied is voor daklozen en gebruikers van verdovende middelen en dat deze aanwezigheid zorgt voor diverse incidenten en overlast waarbij de overlast zich verspreidt over de omgeving van de Parklaan;

 

uit een bestuurlijke rapportage van de politie van 8 oktober 2025 verder blijkt dat bewoners in de omgeving van de Parklaan in gesprekken met de wijkagent hebben aangegeven zich niet veilig te voelen in het gebied door drugsgebruik, diefstallen, afvaldumpingen en overlast van daklozen. Daarnaast gaven zij aan dat er regelmatig in het park wordt geslapen door personen waardoor zij zich onveilig voelen;

 

uit een sfeerrapportage van gemeentelijke ambtenaren van 17 september 2025 naar aanleiding van een bewonersbijeenkomst blijkt dat het veiligheidsgevoel van bewoners en bezoekers van de omgeving van de Parklaan en de Brugstraat al geruime tijd onder druk staat;

 

uit een sfeerrapportage van 17 september 2025 verder blijkt dat bewoners van diverse panden in de Brugstraat structureel overlast veroorzaken welke zich ook verspreidt in de richting van de Parklaan. De overlast ziet met name op alcohol/drugsgebruik, geluidsoverlast, dumpen van afval, verkeersoverlast, het plegen van vernielingen en signalen van prostitutie;

 

uit een sfeerrapportage van 17 september 2025 verder blijkt dat ondernemers in de Brugstraat aangeven dat bepaalde individuen andere overlastgevende individuen aantrekken en dat sprake is van overlast van daklozen die in portalen van diverse panden of op terrassen van horeca ondernemers verblijven. Daarnaast geven zij aan overlast te ervaren van alcohol/drugsgebruik en pogingen tot diefstal en dat dit alles leidt tot gevoelens van onveiligheid bij ondernemers, medewerkers en bezoekers van deze bedrijven;

 

uit een sfeerrapportage van 24 september 2025 van gemeentelijke toezichthouders blijkt dat in de periode van 1 januari 2025 tot en met 24 september 2025 in totaal 149 incidenten zijn geregistreerd waarbij de aard van de registraties is gelegen in overlast door daklozen, alcohol/drugsgebruik, verloedering van panden, parkeerproblematiek en signalen van ondermijning waardoor sprake is van gevoelens van onveiligheid bij omwonenden en bezoekers in de omgeving van de Parklaan;

 

uit een sfeerrapportage van 24 september 2025 verder blijkt dat het aantal registraties van overlast de grootste categorie, namelijk ruim 40%, van het totaal aantal registraties vormt. Deze overlastmeldingen zijn met name gericht op specifieke locaties van de Parklaan, Brugstraat, Admiraal Lonckestraat en de Lyceumlaan;

 

uit een gemeentelijke analyse van 1 oktober 2025, die is gemaakt op basis van registraties van gemeentelijke toezichthouders, meldingen van inwoners, gesprekken met professionals en resultaten uit de tweejaarlijkse bewonersenquête, blijkt dat in de wijk Kalsdonk waar de Parklaan onderdeel van uitmaakt, met name sprake is van registraties van overlast door verwarde personen, overlast van daklozen, alcohol- en drugsoverlast en vernielingen van eigendommen;

 

uit een gemeentelijke analyse van 1 oktober 2025 verder blijkt dat de tweejaarlijkse bewonersenquête heeft uitgewezen dat het veiligheidsgevoel in de wijk Kalsdonk de afgelopen jaren aanzienlijk is gedaald. In 2021 lag dit cijfer nog boven de 6, terwijl dit in 2023 is teruggelopen naar een 4.8. Dit betekent dat inwoners zich aantoonbaar onveiliger voelen in de wijk dan enkele jaren geleden;

 

diverse professionals van de gemeente alsmede de coördinator van het buurtpreventieteam in het aan te wijzen gebied laten weten dat bewoners zich regelmatig melden met gevoelens van onveiligheid in de omgeving van de Parklaan;

 

op basis van uitgebreide analyses de wijk Kalsdonk is toegewezen aan het focusgebied in het kader van het Nationaal Programma Roosendaal, hetgeen het gevolg is van het feit dat de veiligheid en leefbaarheid in de gehele wijk ernstig onder druk staan;

 

cameratoezicht als onderdeel van een breder pakket aan maatregelen wordt ingezet. Nu de wijk Kalsdonk onderdeel uitmaakt van het focusgebied in het Nationaal Programma Roosendaal, zal namelijk voor de duur van 20 jaar intensief ingezet worden op het verbeteren van de leefbaarheid en veiligheid van dit focusgebied;

 

de tot nu toe genomen maatregelen, waaronder veelvuldige controles en handhaving door politie en gemeentelijke toezichthouders bij onder meer een specifiek overlast gevend pand aan de Brugstraat, aanpassingen in de openbare ruimte, een ingesteld verbod tot het nuttigen van alcohol in de openbare ruimte, niet het gewenste effect hebben gehad;

 

de niet-aflatende inzet van het buurtpreventieteam in de Parklaan weliswaar heeft geleid tot een verhoogde paraatheid bij bewoners en een betere informatiesturing voor politie en gemeentelijke toezichthouders, maar niet tot een afname van de ervaren overlast;

 

bewoners zich hierdoor niet veilig voelen in hun eigen straat of buurt en dit tot vermindering van woongenot en vermindering van het veiligheidsgevoel in de openbare ruimte leidt;

 

de situatie zoals hierboven is weergegeven niet alleen zeer onwenselijk is, maar ook de integriteit van het lokale bestuur aantast;

 

de inzet van cameratoezicht de handhaving van de openbare orde en veiligheid en gerichte aansturing vanuit het actief bekijken van beelden bevordert en daarmee zal bijdragen aan het de-escaleren van overlast en het gericht optreden tegen bovengenoemde overlast en incidenten;

 

het cameratoezicht in het hierna genoemde gebied gelet op het voorgaande voldoet aan de eisen die artikel 151c van de Gemeentewet stelt aan het inzetten van cameratoezicht waaronder proportionaliteit, subsidiariteit en kenbaarheid.

 

BESLUIT:

Artikel 1 Gebieden en gebruik camera’s

  • 1.

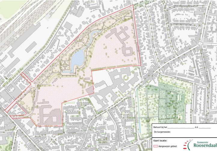
    In het gebied, zoals aangegeven op de als bijlage 1 bijgevoegde kaart, flexibel cameratoezicht in te zetten;

  • 2.

    Dat het genoemde probleem niet met minder vergaande maatregelen dan cameratoezicht opgelost/beheerst kan worden en dat deze maatregel in verhouding staat tot de geconstateerde overlast/criminaliteit;

  • 3.

    Dat beelden die zijn opgenomen worden bekeken als er calamiteiten en/of incidenten hebben plaatsgevonden;

  • 4.

    Dat de beelden worden bekeken door daartoe bevoegde personen;

  • 5.

    Dat de beelden 24 uur per dag opgenomen worden en maximaal 28 dagen bewaard blijven;

  • 6.

    Dat de beelden op aangewezen momenten live uitgekeken worden en indien nodig ook op andere momenten zoals na signalen.

Artikel 2. Slotbepalingen

  • 1.

    Dit aanwijzingsbesluit treedt in werking op 5 november 2025 en vervalt op 1 april 2027;

  • 2.

    Dit besluit kan worden aangehaald als ‘Aanwijzingsbesluit flexibel cameratoezicht Parklaan 2025’.

Aldus vastgesteld door de burgemeester van Roosendaal op 31 oktober 2025,

De burgemeester,

M. Buijs

Bezwaar

Op grond van de Algemene wet bestuursrecht kunnen belanghebbenden gedurende zes weken na de

datum van de bekendmaking van dit besluit schriftelijk bezwaar maken bij de burgemeester. Hiervoor dient een bezwaarschrift te worden ingediend dat naam en adres, dagtekening, kenmerk of omschrijving van het besluit en de gronden van het bezwaar moet bevatten. Het bezwaarschrift kan worden gestuurd naar: postbus 5000, 4700 KA Roosendaal. Als tijdig bezwaar is gemaakt, kan aan de voorzieningenrechter van de rechtbank Zeeland West-Brabant te Breda, postbus 90006, 4800 PA BREDA, worden verzocht om, met betrekking tot dit besluit, een voorlopige voorziening te treffen.

Bijlage 1: Aan te wijzen gebied cameratoezicht Parklaan 2025

Naar boven