Verordening Bedrijveninvesteringszone 20 bedrijventerreinen Venlo 2026 – 2030

De raad van de gemeente Venlo;

gelezen het voorstel van het college van 6 mei 2025, registratienummer 440039;

gelet op de Wet op de Bedrijveninvesteringszones;

gezien de Uitvoeringsovereenkomst gesloten met de Stichting Parkmanagement Venlo;

 

besluit vast te stellen:

de navolgende

 

Verordening Bedrijveninvesteringszone 20 bedrijventerreinen Venlo 2026 - 2030

Hoofdstuk I Algemene bepalingen

Artikel 1 Begripsomschrijvingen

In deze verordening wordt verstaan onder:

  • -

    Bedrijveninvesteringszone: de op de bij deze verordening behorende kaarten aangewezen gebieden in de gemeente waarbinnen de BIZ-bijdrage wordt geheven. De aangewezen gebieden betreffen de navolgende bedrijventerreinen:

    • 01

      Ariënsstraat

    • 02

      Bedrijventerrein Noorderpoort

    • 03

      Belfeld Bolenberg

    • 04

      Emmaplein e.o.

    • 05

      Erkenkamp

    • 06

      Geloërveld

    • 07

      Greenport Business Park

    • 08

      Hagerhof

    • 09

      Kaldenkerkerweg-Oost

    • 10

      Kaldenkerkerweg-West

    • 11

      Keulse Barriere

    • 12

      Pannenberg

    • 13

      Spikweien

    • 14

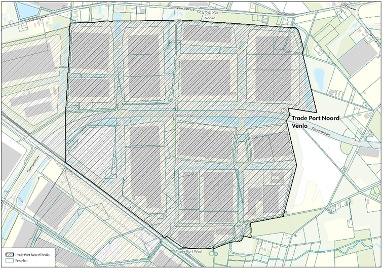
      Trade Port Noord

    • 15

      Trade Port Oost

    • 16

      Trade Port West

    • 17

      Ubroek

    • 18

      Venlo Trade Port

    • 19

      Windhond

    • 20

      Witveldweg

  • -

    BIZ: Bedrijveninvesteringszone;

  • -

    BIZ-subsidie: de op basis van de verordening en de Wet te verlenen subsidie voor de Bedrijveninvesteringszone;

  • -

    College: College van burgemeester en Wethouders van de gemeente;

  • -

    Perceptiekosten: kosten voor heffing en invordering van de BIZ-bijdragen door de gemeente;

  • -

    Stichting: Stichting Parkmanagement Venlo, als bedoeld in artikel 7 van de Wet ;

  • -

    Uitvoeringsovereenkomst: tussen de gemeente en de Stichting Parkmanagement gesloten overeenkomst als bedoeld in artikel 7, derde lid, van de Wet;

  • -

    Wet : Wet op de Bedrijveninvesteringszones.

Hoofdstuk II Belastingbepalingen

Artikel 2 Belastbaar feit en aard van de belasting

  • 1.

    Onder de naam ‘BIZ-bijdrage’ wordt jaarlijks een directe belasting geheven ter zake van binnen de Bedrijveninvesteringszone gelegen onroerende zaken die op grond van artikel 220a GemeenteWet niet in hoofdzaak tot woning dienen.

  • 2.

    De BIZ-bijdrage wordt geheven ter bestrijding van de kosten die zijn verbonden aan activiteiten in de openbare ruimte en op internet, die zijn gericht op het bevorderen van de leefbaarheid of de veiligheid in de Bedrijveninvesteringszone of de ruimtelijke kwaliteit of de economische ontwikkeling van de Bedrijveninvesteringszone.

Artikel 3 Voorwerp van de belasting

  • 1.

    Voorwerp van de belasting is een onroerende zaak.

  • 2.

    Als onroerende zaak wordt aangemerkt de onroerende zaak, bedoeld in hoofdstuk III van de Wet waardering onroerende zaken.

Artikel 4 Belastingplicht

  • 1.

    De BIZ-bijdrage wordt geheven van de gebruiker, zijnde degene die bij het begin van het kalenderjaar al dan niet krachtens eigendom, bezit, beperkt recht of persoonlijk recht een in de Bedrijveninvesteringszone gelegen onroerende zaak gebruikt.

  • 2.

    Voor de toepassing van dit artikel wordt:

    • a.

      gebruik door degene aan wie een deel van een onroerende zaak in gebruik is gegeven, aangemerkt als gebruik door degene die dat deel in gebruik heeft gegeven; degene die het deel in gebruik heeft gegeven, is bevoegd de BIZ-bijdrage als zodanig te verhalen op degene aan wie dat deel in gebruik is gegeven;

    • b.

      het ter beschikking stellen van een onroerende zaak voor volgtijdig gebruik aangemerkt als gebruik door degene die die onroerende zaak ter beschikking heeft gesteld; degene die de onroerende zaak ter beschikking heeft gesteld is bevoegd de BIZ bijdrage als zodanig te verhalen op degene aan wie die onroerende zaak ter beschikking is gesteld.

  • 3.

    Indien een onroerende zaak bij het begin van het kalenderjaar geen gebruiker kent, wordt de van de gebruiker te heffen BIZ-bijdrage geheven van de eigenaar.

Artikel 5 Maatstaf van heffing

  • 1.

    De BIZ-bijdrage wordt geheven naar de op de voet van hoofdstuk IV van de Wet waardering onroerende zaken voor de onroerende zaak vastgestelde waarde zoals deze geldt voor het kalenderjaar.

  • 2.

    Indien met betrekking tot de onroerende zaak geen waarde is vastgesteld op de voet van hoofdstuk IV van de Wet waardering onroerende zaken wordt de heffingsmaatstaf van de onroerende zaak bepaald met toepassing van artikel 6, alsmede met overeenkomstige toepassing van het bepaalde bij of krachtens de artikelen 17, 18 en 20, tweede lid, van de Wet waardering onroerende zaken.

Artikel 6 Vrijstellingen

  • 1.

    In afwijking in zoverre van artikel 5 wordt bij de bepaling van de heffingsmaatstaf buiten aanmerking gelaten, voor zover dit niet al is gebeurd bij de bepaling van de in dat artikel bedoelde waarde, de waarde van:

    • a.

      voor de land- of bosbouw bedrijfsmatig geëxploiteerde cultuurgrond, daaronder mede begrepen de open grond, alsmede de ondergrond van glasopstanden, die bedrijfsmatig aangewend wordt voor de kweek of teelt van gewassen, zonder daarbij de ondergrond als voedingsbodem te gebruiken;

    • b.

      glasopstanden, die bedrijfsmatig worden aangewend voor de kweek of teelt van gewassen, voor zover de ondergrond daarvan bestaat uit de in onderdeel a bedoelde grond;

    • c.

      onroerende zaken die in hoofdzaak zijn bestemd voor de openbare eredienst of voor het houden van openbare bezinningssamenkomsten van levensbeschouwelijke aard, een en ander met uitzondering van delen van zodanige onroerende zaken die dienen als woning;

    • d.

      één of meer onroerende zaken die deel uitmaken van een op de voet van de NatuurschoonWet 1928 aangewezen landgoed dat voldoet aan de voorwaarden genoemd in artikel 8 van het Rangschikkingsbesluit NatuurschoonWet 1928, met uitzondering van de daarop voorkomende gebouwde eigendommen;

    • e.

      natuurterreinen, waaronder mede worden verstaan duinen, heidevelden, zandverstuivingen, moerassen en plassen, die door rechtspersonen met volledige rechtsbevoegdheid welke zich uitsluitend of nagenoeg uitsluitend het behoud van natuurschoon ten doel stellen, beheerd worden;

    • f.

      openbare land- en waterwegen en banen voor openbaar vervoer per rail, een en ander met inbegrip van kunstwerken;

    • g.

      waterverdedigings- en waterbeheersingswerken die worden beheerd door organen, instellingen of diensten van publiekrechtelijke rechtspersonen, met uitzondering van de delen van zodanige werken die dienen als woning;

    • h.

      werken die zijn bestemd voor de zuivering van riool- en ander afvalwater en die worden beheerd door organen, instellingen of diensten van publiekrechtelijke rechtspersonen, met uitzondering van de delen van zodanige werken die dienen als woning;

    • i.

      werktuigen die van een onroerende zaak kunnen worden afgescheiden zonder dat beschadiging van betekenis aan die werktuigen wordt toegebracht en die niet op zichzelf als gebouwde eigendommen zijn aan te merken;

    • j.

      onroerende zaken voor zover die bestemd en in gebruik zijn voor de publieke dienst van de gemeente;

    • k.

      straatmeubilair, waaronder begrepen alle zodanige gebouwde eigendommen - niet zijnde gebouwen - welke zijn geplaatst voor het belang van het publiek, ten dienste van het verkeer of ter verfraaiing van de gemeente, zoals lichtmasten, verkeersinstallaties, standbeelden, monumenten, fonteinen, banken, abri's, hekken en palen;

    • l.

      plantsoenen, parken en waterpartijen, die bij de gemeente in beheer zijn of waarvan de gemeente het genot heeft krachtens eigendom, bezit of beperkt recht, met uitzondering van delen van zodanige onroerende zaken die dienen als woning ;

    • m.

      begraafplaatsen, urnentuinen en crematoria, met uitzondering van delen van zodanige onroerende zaken die dienen als woning;

    • n.

      onroerende zaken voor zover die bestemd en in gebruik zijn voor het geven van onderwijs;

    • o.

      onroerende zaken die worden beheerd door een vereniging of Stichting die geen onderneming drijft, voor zover die objecten bestemd en in gebruik zijn voor het geven van onderwijs, voor club- en buurthuiswerk, voor de beoefening van sport of voor andere activiteiten van sociale aard;

    • p.

      onroerende zaken voor zover die bestemd en in gebruik zijn voor de publieke dienst ter zake van brandweerzorg, rampenbeheersing, crisisbeheersing, geneeskundige hulpverlening in de regio en de handhaving van de openbare orde en veiligheid.

    • q.

      onroerende zaken voor zover die bestemd en in gebruik zijn voor elektriciteitsvoorziening (trafo’s) en telecommunicatie(zendmasten).

  • 2.

    In afwijking in zoverre van artikel 5 wordt bij de bepaling van de heffingsmaatstaf voor de BIZ-bijdrage van de gebruiker buiten aanmerking gelaten de waarde van gedeelten van het belastingobject die in hoofdzaak tot woning dienen dan wel in hoofdzaak dienstbaar zijn aan woondoeleinden.

Artikel 7 Tarief BIZ-bijdrage

  • 1.

    Het tarief van de jaarlijkse BIZ-bijdrage bedraagt voor het jaar 2026 voor de gebruiker bij een waarde van:

    • -

      Niet meer dan € 35.000: € 165,00 aan BIZ-bijdrage per belastingobject

    • -

      Meer dan € 35.000: € 330,00 aan BIZ-bijdrage per belastingobject

  • 2.

    De BIZ-bijdrage zal vanaf 2027 jaarlijks worden geïndexeerd op basis van het CPI inflatiecijfer met een maximum van 3%.

  • 3.

    In het geval van twee of meer belastingobjecten of delen daarvan die direct naast of boven elkaar zijn gelegen en die door één gebruiker wordt gebruikt voor hetzelfde doel, zullen deze belastingobjecten en/of delen daarvan voor de toepassing van het eerste lid als één belastingobject worden aangemerkt.

Artikel 8 Wijze van heffing

De BIZ-bijdrage wordt jaarlijks bij wege van aanslag geheven.

Artikel 9 Termijnen van betaling

  • 1.

    In afwijking van artikel 9, eerste lid, van de Invorderingswet 1990 moet een aanslag worden betaald in twee gelijke termijnen, waarvan de eerste vervalt op de laatste dag van de maand volgend op de maand die in de dagtekening van het aanslagbiljet is vermeld en de tweede termijn een maand later.

  • 2.

    In afwijking van het eerste lid geldt, in geval het totaalbedrag van de op één aanslagbiljet verenigde aanslagen, of als het aanslagbiljet maar één aanslag bevat en het bedrag daarvan niet hoger is dan € 20.000,- en zolang de verschuldigde bedragen door middel van automatische incasso kunnen worden afgeschreven, dat de aanslagen moeten worden betaald in zoveel gelijke termijnen als er na de maand van dagtekening van het aanslagbiljet nog niet geëindigde maanden in het kalenderjaar overblijven, met dien verstande dat het aantal termijnen ten minste vier en ten hoogste tien bedraagt.

  • 3.

    Betaling van de termijnen zoals bedoeld in de leden 1 en 2 is mogelijk via automatische incasso, mits wordt voldaan aan de voorwaarden van de Uitvoeringsregeling automatische incasso van de Belastingsamenwerking Gemeenten en Waterschappen (BsGW).

  • 4.

    De Algemene termijnenwet is niet van toepassing op de in voorgaande leden gestelde termijnen.

Artikel 10 Looptijd belastingheffing

De BIZ-bijdrage wordt ingesteld voor een periode van vijf jaar.

Artikel 11 Kwijtschelding

Bij de verordening van de BIZ-bijdrage wordt geen kwijtschelding verleend.

Hoofdstuk III Subsidiebepalingen

Artikel 12 Buiten toepassing algemene subsidieverordening

Op de subsidie op grond van deze verordening is de Algemene Subsidieverordening van de gemeente Venlo niet van toepassing.

Artikel 13 Aanwijzing Stichting

De Stichting Parkmanagement Venlo wordt aangewezen als de Stichting als bedoeld in artikel 7 van de Wet , waarmee een overeenkomst als bedoeld in artikel 4:36 van de Algemene Wet bestuursrecht is gesloten, waarin is bepaald dat de activiteiten waarvoor de subsidie wordt verstrekt verplicht moeten worden verricht.

Artikel 14 Subsidieverlening

  • 1.

    De subsidie wordt jaarlijks door het College verleend aan de Stichting Parkmanagement Venlo voor de uitvoering van de activiteiten die zijn opgenomen in de Uitvoeringsovereenkomst. De subsidie wordt verleend op een daartoe gedane aanvraag, die vergezeld moet gaan van de in de Uitvoeringsovereenkomst genoemde stukken.

  • 2.

    De subsidie wordt bepaald op de jaarlijks ontvangen BIZ-bijdragen verminderd met de Perceptiekosten voor de heffing en invordering van de BIZ-bijdragen. De door de gemeente in mindering te brengen Perceptiekosten bedragen 4% van de BIZ-subsidie.

Artikel 15 Subsidieverplichtingen

Naast de in artikel 4:37 van de Algemene Wet bestuursrecht genoemde verplichtingen kunnen aan de Stichting Parkmanagement Venlo ook andere doelgebonden verplichtingen worden opgelegd. Deze verplichtingen zijn opgenomen in de met de Stichting Parkmanagement Venlo gesloten Uitvoeringsovereenkomst.

Artikel 16 Subsidievaststelling

  • 1.

    De Stichting Parkmanagement Venlo is verplicht om voor 1 juni van elk jaar, na afloop van het subsidiejaar de in de Uitvoeringsovereenkomst opgenomen stukken te overleggen.

  • 2.

    De BIZ-subsidie wordt vastgesteld uiterlijk 18 weken na ontvangst van de in het voorgaande lid genoemde stukken.

Artikel 17 Melding van relevante wijzigingen

De Stichting Parkmanagement Venlo stelt het College zo spoedig mogelijk schriftelijk op de hoogte van:

  • -

    meer dan ondergeschikte veranderingen in haar financiële situatie,

  • -

    een wijziging van de statuten,

  • -

    verandering of beëindiging van activiteiten.

Hoofdstuk IV Slotbepalingen

Artikel 18 Inwerkingtreding

  • 1.

    Deze verordening treedt in werking met ingang van de achtste dag nadat het College heeft bekendgemaakt dat van voldoende steun als bedoeld in artikel 4 van de Wet is gebleken.

  • 2.

    De datum van ingang van de heffing is 1 januari 2026.

Artikel 19 Intrekken oude verordening en overgangsrecht

De Verordening bedrijveninvesteringszones 20 bedrijventerreinen Venlo 2021 wordt ingetrokken op de datum van ingang van de heffing, bedoeld in artikel 18, tweede lid, met dien verstande dat zij van toepassing blijft op belastbare feiten die zich voor die datum hebben voorgedaan.

Artikel 20 Citeertitel

Deze verordening wordt aangehaald als: Verordening Bedrijveninvesteringszone 20 bedrijventerreinen Venlo 2026 – 2030.

Aldus vastgesteld in de openbare raadsvergadering van 11 juni 2025.

De griffier, de voorzitter

Etienne Franken, Antoin Scholten

Bijlage 1 behorende bij de Verordening Bedrijveninvesteringszone 20 bedrijventerreinen Venlo 2026 – 2030

Als aangewezen gebied, bedoeld in artikel 1 van de Verordening Bedrijveninvesteringszone 20 bedrijventerreinen Venlo 2026 - 2030 geldt het op de volgende pagina’s opgenomen kaarten binnen de omlijning gelegen gedeelten.

  • 01

    Ariënsstraat

  • 02

    Bedrijventerrein Noorderpoort

  • 03

    Belfeld Bolenberg

  • 04

    Emmaplein e.o.

  • 05

    Erkenkamp

  • 06

    Geloërveld

  • 07

    Greenport Business Park

  • 08

    Hagerhof

  • 09

    Kaldenkerkerweg-Oost

  • 10

    Kaldenkerkerweg-West

  • 11

    Keulse Barrière

  • 12

    Pannenberg

  • 13

    Spikweien

  • 14

    Trade Port Noord

  • 15

    Trade Port Oost

  • 16

    Trade Port West

  • 17

    Ubroek

  • 18

    Venlo Trade Port

  • 19

    Windhond

  • 20

    Witveldweg

 

  • 01

    Ariënsstraat

  • 02

    Bedrijventerrein Noorderpoort

  • 03

    Belfeld Bolenberg

  • 04

    Emmaplein e.o.

  • 05

    Erkenkamp

  • 06

    Geloërveld

  • 07

    Greenport Business Park

  • 08

    Hagerhof

  • 09

    Kaldenkerkerweg-Oost

  • 10

    Kaldenkerkerweg-West

  • 11

    Keulse Barrière

  • 12

    Pannenberg

  • 13

    Spikweien

  • 14

    Trade Port Noord

  • 15

    Trade Port Oost

  • 16

    Trade Port West

  • 17

    Ubroek

  • 18

    Venlo Trade Port

  • 19

    Windhond

  • 20

    Witveldweg

 

Behoort bij Raadsbesluit van 11 juni 2025

 

Naar boven