Aanwijzingsbesluit gebieden waar honden zonder aanlijning mogen lopen

Burgemeester en wethouders van de gemeente Roosendaal;

 

gelet op artikel 2:57, lid 2 van de Algemene plaatselijke verordening;

 

overwegende dat:

  • -

    het gewenst is plaatsen aan te wijzen waar het wel mogelijk is de hond los te laten lopen (dat wil zeggen: zonder aanlijning) zonder dat voor de omgeving overmatige hinder- dan wel overlast wordt veroorzaakt;

 

BESLUITEN

vast te stellen het Aanwijzingsbesluit gebieden waar honden zonder aanlijning mogen lopen.

 

1.

De plaatsen, zoals aangegeven op de bij dit besluit behorende en als zodanig gewaarmerkte situatietekeningen, bestaande uit:

  • -

    Hondenspeelplaats Bovendonk (bijlage 1);

  • -

    Hondenspeelplaats Bredaseweg (bijlage 2);

  • -

    Hondenspeelplaats Druivenberg (bijlage 3);

  • -

    Hondenspeelplaats Gerard ter Borchstraat (bijlage 4);

  • -

    Hondenspeelplaats Heerma State (bijlage 5);

  • -

    Hondenspeelplaats Heilig Hartplein (bijlage 6);

  • -

    Hondenspeelplaats Laan van Europa (bijlage 7);

  • -

    Hondenspeelplaats Lavadijk (bijlage 8);

  • -

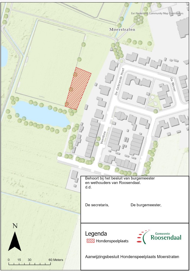
    Hondenspeelplaats Moerstraten (bijlage 9);

  • -

    Hondenspeelplaats Nispenseweg Nispen (bijlage 10);

  • -

    Hondenspeelplaats Nispenseweg Vierhoevenstraat (bijlage 11)

  • -

    Hondenspeelplaats Norbartlaan (bijlage 12)

  • -

    Hondenspeelplaats Runningstraat (bijlage 13)

  • -

    Hondenspeelplaats Waterstraat Wouw (bijlage 14)

  • -

    Hondenspeelplaats Wildertsedreef (bijlage 15)

  • -

    Hondenspeelplaats Willem Dreesweg (bijlage 16)

aan te wijzen als plaatsen waar het toegestaan is honden los te laten lopen (hondenspeelplaatsen).

 

2.

Met inachtneming van artikel 2:58, Verontreiniging door honden, van de Algemene plaatselijke verordening. Dit houdt in dat de eigenaar of houder van een hond ook in de onder lid 1 aangewezen plaatsen een deugdelijk opruimmiddel bij zich dient te hebben en uitwerpselen direct opruimt.

 

3.

Het aanwijzingsbesluit gebieden waar honden zonder aanlijning mogen lopen, vastgesteld op 24 oktober 2017, wordt ingetrokken.

 

4.

Dit besluit treedt in werking op de derde dag na bekendmaking in het Gemeenteblad.

 

 

Aldus besloten door burgemeester en wethouders van Roosendaal op 20 oktober 2025,

de secretaris, de burgemeester,

Bijlage 1  

Bijlage 2  

Bijlage 3  

Bijlage 4  

Bijlage 5  

Bijlage 6  

Bijlage 7  

Bijlage 8  

Bijlage 9  

Bijlage 10  

Bijlage 11  

Bijlage 12  

Bijlage 13  

Bijlage 14  

Bijlage 15  

Bijlage 16  

Naar boven