Bekendmaking voorgenomen ruiling van onroerende zaken ten behoeve van de gebiedsontwikkeling van de Staat en woningbouwontwikkeling van de gemeente (Oosterterpweg respectievelijk Dorsmolen te Wieringerwerf)
Burgemeester en wethouders van de gemeente Hollands Kroon maken bekend dat:
de gemeente Hollands Kroon en de Staat der Nederlanden voornemens zijn om de hieronder vermelde onroerende zaken met elkaar te ruilen. De voorgenomen ruiling vindt plaats in het kader van de afstemming tussen de gebiedsontwikkeling van de Staat en de woningbouwontwikkeling van de gemeente in Wieringerwerf.
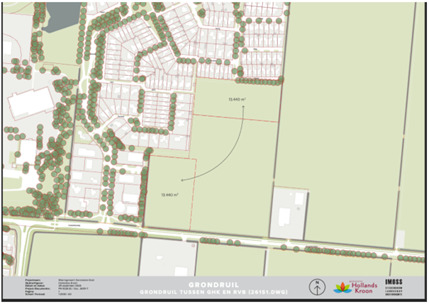
Kadastraal bekend: Gemeente Wieringermeer, sectie I, nummer 2659 (gedeeltelijk)
-
Oppervlakte: circa 13.440 m²
Perceel 2
-
In eigendom van: de gemeente Hollands Kroon
-
Ligging: Dorsmolen (ongenummerd), Wieringerwerf
-
Kadastraal bekend: Gemeente Wieringermeer, sectie I, nummer 4670 (gedeeltelijk)
-
Oppervlakte: circa 13.440 m²
Projectdoel
De gemeente Hollands Kroon beoogt op perceel 1 de woningbouwontwikkeling in Wieringerwerf te versnellen, als onderdeel van het gemeentelijke plan om circa 500 woningen versneld te realiseren.
Voor de Staat der Nederlanden vormt perceel 2 onderdeel van een bredere gebiedsontwikkeling waarin eveneens woningbouw wordt voorzien.
De gemeente en de Staat hebben hiervoor reeds een samenwerkingsovereenkomst gesloten en zetten met deze grondruil een eerste stap in de verdere uitvoering daarvan.
De ruil is noodzakelijk om beide ontwikkelingen ruimtelijk en planmatig goed op elkaar af te stemmen en gezamenlijk tot uitvoering te brengen.
Rol van de gemeente Hollands Kroon
De gemeente zal het door haar te verkrijgen perceel inzetten voor de versnelde woningbouwontwikkeling in Wieringerwerf.
Serieuze gegadigden
Op grond van recente jurisprudentie is de gemeente gehouden om bij de verkoop, ruil of ingebruikgeving van onroerende zaken in beginsel een transparante selectieprocedure te volgen. Een dergelijke procedure kan achterwege blijven indien bij voorbaat vaststaat of redelijkerwijs mag worden aangenomen dat, op grond van objectieve, toetsbare en redelijke criteria, slechts één serieuze gegadigde in aanmerking komt.
Enige serieuze gegadigde
De gemeente Hollands Kroon is van oordeel dat uitsluitend de Staat der Nederlanden als serieuze gegadigde in aanmerking komt voor deze ruiling.
De gemeente en de Staat hebben een samenwerkingsovereenkomst gesloten gericht op een meerjarige gebiedsontwikkeling in het gebied nabij de Dorsmolen en de Oosterterpweg te Wieringerwerf. Daarnaast heeft de gemeente de ambitie om versneld 500 woningen te realiseren.
Om deze ontwikkelingen op elkaar af te stemmen en gezamenlijk te realiseren, is een grondruil tussen de gemeente en de Staat noodzakelijk en logisch.
Bedenkingen
Potentiële serieuze gegadigden die bezwaar tegen dit voornemen hebben dienen – op straffe van rechtsverwerking – uiterlijk op 7 november 2025 om 12:00 uur een (civielrechtelijk) kort geding tegen dit voornemen aanhangig te hebben gemaakt bij de voorzieningenrechter van de rechtbank Alkmaar door middel van betekening van de dagvaarding bij een gerechtsdeurwaarder of advocaat, en een digitaal afschrift van de dagvaarding te verzenden aan vastgoedengrondzaken@hollandskroon.nl Blijven bedenkingen uit, dan is de gemeente vrij om (verder) gevolg te geven aan haar voornemen tot verkoop van bovengenoemde percelen.
Met deze publicatie geeft de gemeente uitvoering aan het arrest van de Hoge Raad van 26 november 2021 (ECLI:NL:HR:2021:1778).
De hier aangeboden pdf-bestanden van het Staatsblad, Staatscourant, Tractatenblad, provinciaal blad, gemeenteblad, waterschapsblad en blad gemeenschappelijke regeling vormen de formele bekendmakingen in de zin van de Bekendmakingswet en de Rijkswet goedkeuring en bekendmaking verdragen voor zover ze na 1 juli 2009 zijn uitgegeven. Voor pdf-publicaties van vóór deze datum geldt dat alleen de in papieren vorm uitgegeven bladen formele status hebben; de hier aangeboden elektronische versies daarvan worden bij wijze van service aangeboden.