Voornemen tot de verkoop door de gemeente Baarn van het gedeeltelijke perceel Plataanlaan 1 (voormalige Boemeranglocatie)
Objectinformatie
Adres: Plataanlaan 1, 3741WE Baarn
Percelen: BAA01-K-1588 Gemeente Baarn, sectie K nummer 1730 (eigendom van de gemeente Baarn)
De koop betreft in totaal circa 70 m2
Voornemen tot verkoop van grond
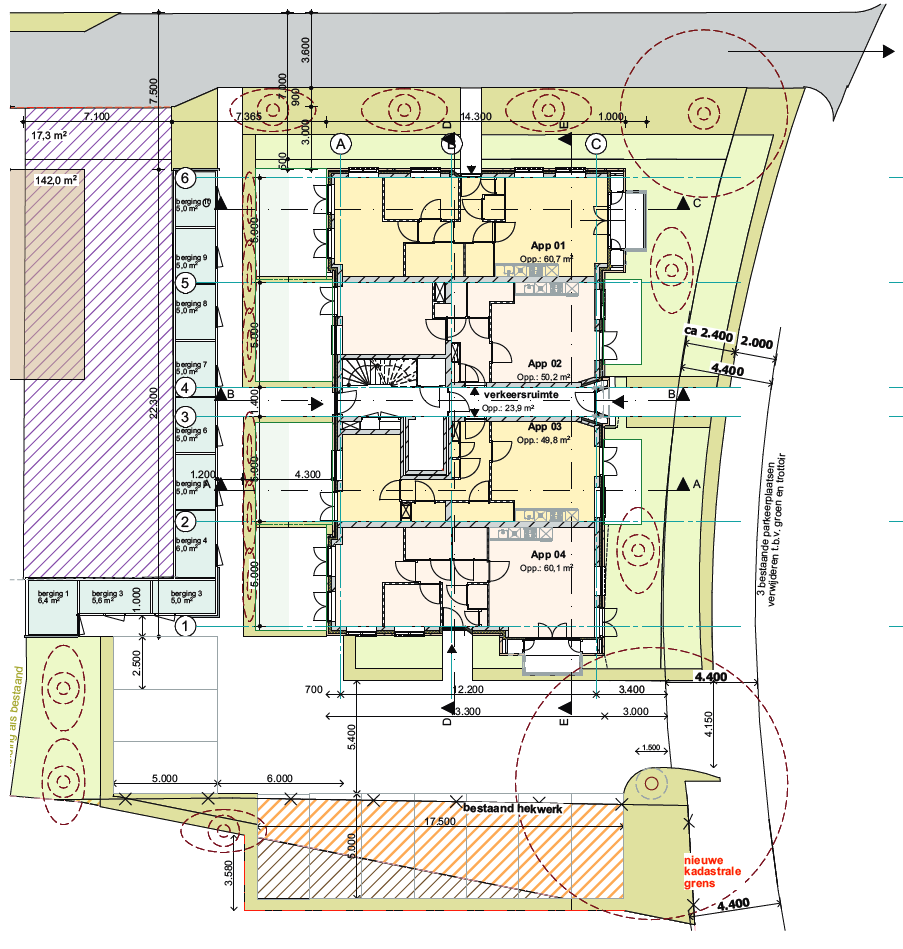
De gemeente Baarn is voornemens bovengenoemde perceel gedeeltelijk onderhands te verkopen aan eigenaar van Eemnesserweg 56 om zodoende de bouw van een nieuw appartementengebouw van 10 appartementen op die locatie mogelijk te maken. Op 21-12-2023 heeft er al een publicatie plaatsgevonden voor de verkoop van het perceel Gemeente Baarn, sectie K, nummer 1588, maar ondertussen is gebleken dat de perceelgrenzen niet overeenkomen met de feitelijke inrichting, waardoor ook de verkoop van een deel van perceel nummer 1730 nodig is voor de realisatie van het appartementengebouw. De voorgenomen verkoop is verbeeld op onderstaande afbeelding.
Eigenaar van het perceel Eemnesserweg 56 is de enige serieuze gegadigde voor de aankoop van de grond
Naar het oordeel van de gemeente is de eigenaar van het perceel Eemnesserweg 56 de enige serieuze gegadigde, op grond van objectieve, redelijke en toetsbare criteria, die in aanmerking komt voor koop van de betreffende grond.
De gemeente heeft het voornemen om op de locatie Plantaanlaan 1 (de voormalige Boemeranglocatie) een appartementengebouw met 10 huurappartementen te laten realiseren. Zie onderstaande afbeelding. Het appartementengebouw zal voor wat betreft volume, bouwhoogte en uitstraling passen in het beeld van de Plataanlaan. Om het gewenste appartementengebouw te realiseren met alle benodigde ruimte voor parkeren, buitenruimte, waterberging en herplant is het ook noodzakelijk om een deel van het perceel Eemnesserweg 56 bij de ontwikkeling te betrekken. Door de verwevenheid van de bestaande grondeigendommen van de gegadigden met het te realiseren plan zijn er geen andere serieuze gegadigden voor de koop van de grond.
Niet eens met het voornemen tot verkoop
Bent u het oneens met de voorgenomen verkoop, dan dient u binnen 20 dagen na dagtekening van deze publicatie een kort geding bij de rechtbank Midden-Nederland aanhangig te maken. Indien u een kort geding aanspant, verzoeken wij u ons dit binnen voornoemde termijn van 20 dagen schriftelijk mede te delen, bij voorkeur door het opsturen van de conceptdagvaarding, aan jurre.bosman@baarn.nl t.a.v. de heer J. Bosman, projectleider afdeling OR&O.
Als binnen de opgegeven termijn geen kort geding tegen de gemeente aanhangig is gemaakt, zal de gemeente overgaan tot de voorgenomen de grondverkoop. Er liggen verder geen stukken ter inzage.
De hier aangeboden pdf-bestanden van het Staatsblad, Staatscourant, Tractatenblad, provinciaal blad, gemeenteblad, waterschapsblad en blad gemeenschappelijke regeling vormen de formele bekendmakingen in de zin van de Bekendmakingswet en de Rijkswet goedkeuring en bekendmaking verdragen voor zover ze na 1 juli 2009 zijn uitgegeven. Voor pdf-publicaties van vóór deze datum geldt dat alleen de in papieren vorm uitgegeven bladen formele status hebben; de hier aangeboden elektronische versies daarvan worden bij wijze van service aangeboden.