Kennisgeving huisnummerbesluit Hendricus de Goedeweg 42 te Middenbeemster

Burgemeester en wethouders van de gemeente Purmerend,

gelet op artikel 6 van de Wet basisregistratie adressen en gebouwen, artikel 149 van de Gemeentewet en de Verordening naamgeving en nummering (adressen) Purmerend,

hebben op 2 oktober 2025 met besluitnummer 864591 het volgende besloten:

  • 1.

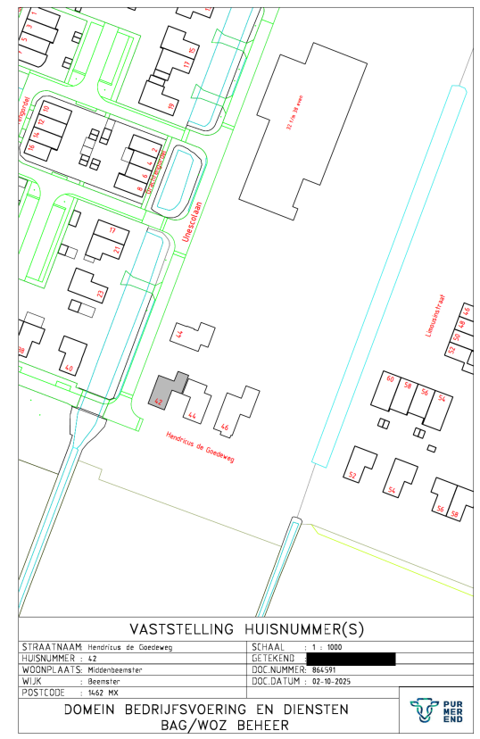
    Betreffende het project het oprichten van een woning, over te gaan tot vaststelling van de volgende nummeraanduiding:

     

    Vaststellen:

     

    • Hendricus de Goedeweg 42 te Middenbeemster

Aldus vastgesteld op 2 oktober 2025,

de teammanager GEO

Bent u het niet eens met dit besluit?

Dan kunt u bezwaar maken. Als u dat van plan bent, neemt u dan eerst telefonisch contact met ons op. Misschien komen we samen tot een oplossing. Komen we er niet uit, dan kunt u binnen zes weken na de dag waarop het besluit is verzonden een bezwaarschrift indienen.

U kunt dat digitaal doen, dan heeft u een DigiD nodig. Of u schrijft een brief naar het team Juridische Zaken, Postbus 15, 1440 AA te Purmerend. Voor meer informatie zie: www.purmerend.nl/bezwaar.

In uw bezwaarschrift moet het volgende staan:

  • -

    uw naam, adres, telefoonnummer en/of e-mailadres;

  • -

    een duidelijke omschrijving van dit besluit;

  • -

    de reden waarom u bezwaar maakt;

  • -

    de datum en uw handtekening.

Dient iemand anders namens u een bezwaarschrift in? Stuurt u dan een volmacht mee. Op www.purmerend.nl/bezwaar vindt u een voorbeeld.

Naar boven