Besluit van burgemeester en wethouders van de gemeente Amstelveen tot vaststelling van de beleidsregels aanvragen en afgifte parkeervergunningen Amstelveen 2025

Zaaknummer: Z25-109880

 

Burgemeester en wethouders van de gemeente Amstelveen;

gelezen het advies van afdeling Openbare Ruimte en Vastgoed;

gelet op artikel 4, lid 9 tot en met 14, artikel 5 en artikel 9 lid 2 van de Parkeerverordening Amstelveen 2013;

besluiten vast te stellen de:

Beleidsregels aanvragen en afgifte parkeervergunningen Amstelveen 2025

Doel beleidsregels

Binnen de gemeente Amstelveen bestaan een groot aantal parkeervergunningen voor specifieke doelgroepen. Zonder regels over bijvoorbeeld het maximumaantal vergunningen kan een goede verdeling van de beschikbare parkeerruimte over de verschillende doelgroepen in gevaar komen. Om deze reden wordt het wenselijk geacht om het aanvragen en verstrekken van de verschillende soorten parkeervergunningen nader uit te werken. Door deze beleidsregels worden regels gesteld aan het verstrekken en afgeven van parkeervergunningen.

Hoofdstuk 1 Algemene regels met betrekking tot de aanvraag

Artikel 1.1 De aanvraag

  • 1.

    Een aanvraag langs elektronische weg wordt gedaan met gebruikmaking van het elektronisch formulier dat op datum van indiening van de aanvraag beschikbaar is gesteld door het college van Burgemeester en Wethouders.

  • 2.

    Naast een elektronische aanvraag kan een vergunning fysiek worden aangevraagd door een afspraak te maken bij de balie parkeren

  • 3.

    Een aanvraag die niet aan de criteria voor het aanvragen voldoet wordt buiten behandeling gesteld.

  • 4.

    Een onvolledige aanvraag wordt tijdelijk buiten behandeling gesteld. De aanvrager wordt alsdan in de gelegenheid gesteld om binnen 2 dagen de bestaande aanvraag aan te vullen.

  • 5.

    In afwijking van lid 1.1 onder 1 geldt dat een autodatevergunning schriftelijk wordt aangevraagd.

Artikel 1.2 Gelijkstelling met eigenaar/houder

  • 1.

    Met de eigenaar of houder van een motorvoertuig als bedoeld in de Parkeerverordening Amstelveen 2013 wordt gelijkgesteld degene die op grond van een huurovereenkomst of een leasecontract kan aantonen dat hij het exclusieve gebruik heeft van dat motorvoertuig, met dien verstande dat een dergelijke overeenkomst nog ten minste drie maanden geldig is.

  • 2.

    In afwijking van het eerste lid kan een huurovereenkomst of een leasecontract bij gedeeld autogebruik vervangen worden door een Verklaring autodelen. Er dient dan aan de volgende voorwaarden te worden voldaan:

    • Er dient een ingevulde Verklaring autodelen van de gemeente Amstelveen te worden overgelegd;

    • de auto staat op naam van één van de gebruikers van de te delen auto;

    • het kentekenbewijs van de te delen auto dient te worden overgelegd;

    • de aanvrager staat ingeschreven in de Basisregistratie personen op een adres in het betaald parkeergebied in Amstelveen

    • als één van de gebruikers van de deelauto in een andere gemeente in de Basisregistratie personen als bewoner staat ingeschreven op een adres waar betaald parkeren geldt, dient deze gebruiker een bewijs van een geldige parkeervergunning van die gemeente te overleggen.

  • 3.

    De vergunning wordt verleend voor de duur van de overeenkomst, maar niet langer dan voor één jaar.

  • 4.

    Indien de overeenkomst afloopt binnen een jaar nadat de vergunning is verleend en een nieuwe overeenkomst wordt aangegaan wordt de duur van de vergunning op aanvraag gewijzigd tot ten hoogste één jaar te rekenen vanaf de datum van verlening van de eerste vergunning. Het voorgaande lid is van overeenkomstige toepassing.

Artikel 1.3 Wijziging kenteken

In het geval van een kentekenwijziging wijzigt de vergunninghouder via het ELoket zelf het kenteken, de wijziging is direct actief. Een kentekenwijziging kan ook plaatsvinden door een afspraak te maken op het raadhuis of door een e-mail te sturen naar de postbus parkeren (parkeren@amstelveen.nl) (indien het kenteken op de eigen naam staat of als hij/zij kan aantonen dat hij/zij berijder is). De geldigheidsduur van de vergunning wijzigt niet.

Artikel 1.4 Tijdelijke vergunning voor vervangend voertuig bij reparatie

Indien in verband met reparatie tijdelijk niet over het motorvoertuig, waarvoor de vergunning op kenteken is afgegeven, kan worden beschikt en de vergunninghouder voor die periode tijdelijk een leenauto ter beschikking staat, kan voor de periode dat dit motorvoertuig wordt geleend de vergunning op aanvraag worden gewijzigd, in die zin dat het kenteken van het voertuig in reparatie wordt vervangen door het kenteken van de leenauto.

Het kenteken kan worden gewijzigd door in te loggen op www.mijn2park.nl met een e-mailadres en een zelfgekozen wachtwoord. De wijziging geldt voor een aaneengesloten periode van maximaal zeven dagen. Per kalenderjaar kan vijf keer een wijziging worden doorgevoerd.

Artikel 1.5 Digitaal parkeerrecht GPK.

Onder digitaal parkeerrecht GPK-systeem wordt bedoeld het systeem waarmee de houder van een gehandicaptenparkeerkaart via een app of via een klantcontactcentrum een digitaal parkeerrecht kan aanmaken en beëindigen.

Hoofdstuk 2 Adressen vergunninggebieden

Artikel 2.1 De aanvraag

  • 1.

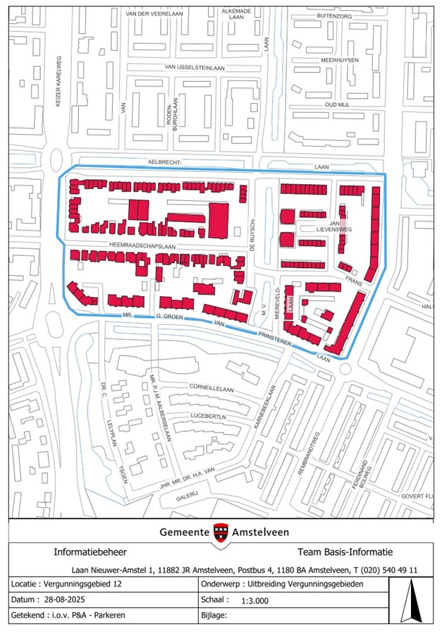
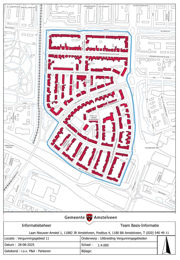
    Deze beleidsregels verstaan onder vergunninggebieden de in het Aanwijzingsbesluit parkeerbelastingen Amstelveen aangewezen gebieden 1-west, 1-oost, 2, 3, 10, 11, 12, 13, 14, 15, 16, 17, 19, 20, 21 (opgenomen in 20), 30, 33 en 40.

  • 2.

    Op de bij dit besluit behorende tekeningen is in rode kleur aangegeven welke adressen er voor de toepassing van deze beleidsregels tot welke vergunninghoudergebieden worden gerekend en voor dat gebied een vergunning kunnen aanvragen.

Artikel 2.2 Vergunningverlening

Bij de verlening van bewoners- of ondernemersvergunningen wordt het volgende in acht genomen:

Bij gebouwen waarbij contractueel is vastgelegd dat parkeren op eigen terrein moet worden gerealiseerd, worden er, indien er betaald parkeren geldt of wordt ingevoerd, geen bewoners- of ondernemersvergunningen verstrekt. Indien ook bezoekersparkeren op eigen terrein moet worden gerealiseerd, worden ook geen bezoekersvergunningen verstrekt.

Hoofdstuk 3 Voorschriften met betrekking tot de bewonersvergunning

Artikel 3.1 Geldigheid gebied

  • 1.

    De bewonersvergunning wordt verleend voor het vergunninggebied waarin de eigenaar of houder van het motorvoertuig woont/ingeschreven staat.

  • 2.

    In afwijking hiervan wordt de bewonersvergunning voor de eigenaar of houder die in gebied 1-oost woont/ingeschreven staat zowel voor gebied 1-west als gebied 1-oost en gebied 2 verleend.

  • 3.

    Een bewonersvergunning vermeldt één kenteken.

Artikel 3.2 Activeren kenteken/mantelzorg

  • 1.

    De bewonersvergunning is slechts geldig voor het motorvoertuig met het kenteken dat actief is.

  • 2.

    In afwijking hiervan geldt dat een ten behoeve van mantelzorg verleende bewonersvergunning als bedoeld in artikel 4, lid 1 onder 3 van de Parkeerverordening Amstelveen 2013 maximaal twee kentekens kan vermelden.

  • 3.

    De bewonersvergunning ten behoeve van mantelzorg als bedoeld in artikel 4, lid 1 onder 3 van de Parkeerverordening Amstelveen 2013 wordt door de bewoner of zijn of haar wettelijke vertegenwoordiger aangevraagd.

Artikel 3.3 Aantal vergunningen/wachtlijst

  • 1.

    Een eerste bewonersvergunning wordt altijd verstrekt indien er recht is op een bewonersvergunning.

  • 2.

    Een voor de aanvrager gereserveerde gehandicaptenparkeerplaats op kenteken bij de woning telt mee als eerste bewonersvergunning voor het vergunninggebied waarin de bewoner woonachtig is.

  • 3.

    De tweede bewonersvergunning wordt slechts verleend indien het maximum aantal beschikbare vergunningen nog niet bereikt is.

  • 4.

    Bij een overschrijding als bedoeld in het voorgaande lid worden aanvragen voor een tweede bewonersvergunning op volgorde van binnenkomst op een wachtlijst geplaatst, met dien verstande dat aanvragen van bewoners die niet beschikken over eigen parkeergelegenheid bij hun woning boven de aanvragen van bewoners met eigen parkeergelegenheid worden geplaatst. Dit betreft ook locaties/gebouwen met eigen parkeergelegenheid maar waarvoor extra betaald moet worden.

  • 5.

    Onder eigen parkeergelegenheid wordt dan verstaan:

    • een garage of carport behorende bij de woning;

    • een oprit behorende bij de woning, al dan niet ingericht als parkeerplaats;

    • een parkeerplaats op eigen terrein behorende bij de woning;

    • een garagebox (gehuurd of in eigendom) binnen een straal van 100 meter van de hoofdingang van de woning of flat waarin betrokkene woont;

    • een bij het appartement behorende garageplaats in de parkeergarage behorende bij het appartementencomplex waarin aanvrager woont.

    • Voor de vraag of er sprake is van een garage bij de woning is de omgevingsplankaart bepalend. Het gestelde lijdt uitzondering wanneer de garage in overeenstemming met het omgevingsplan voor andere doeleinden wordt gebruikt en de aanvrager dat gebruik kan aantonen.

Artikel 3.4 Bedrijf aan huis

Een bewoner die op een adres in een vergunninggebied woont en daar tevens een bedrijf aan huis heeft wordt aangemerkt als een bewoner. Het hebben van een bedrijf aan huis geeft daarnaast geen recht op een ondernemersvergunning.

Artikel 3.5 Verhuisvergunning

  • 1.

    Indien een inwoner van de gemeente vanuit een gebied zonder betaald parkeren of een inwoner van een andere gemeente verhuist naar een gebied binnen de gemeente met betaald parkeren, kan deze inwoner een verhuisvergunning aanvragen:

    • De verhuisvergunning wordt verleend voor maximaal vier maanden.

    • De verhuisvergunning wordt omgezet in een bewonersvergunning na inschrijving op het adres waar de verhuisvergunning voor is afgegeven en indien de inschrijving binnen de geldigheidsduur van de verhuisvergunning is gerealiseerd.

    • Indien er een bewonersvergunning afgegeven is voor het gebied waar vergunninghouder stond ingeschreven vervalt deze bewonersvergunning bij omzetting van de verhuisvergunning naar de bewonersvergunning.

    • Een verhuisvergunning vermeldt één kenteken.

    • Er wordt maximaal voor 2 kentekens een verhuisvergunning verstrekt

  • 2.

    Wanneer de vergunninghouder verhuist binnen het gebied waarvoor de bewonersvergunning is verleend en de geldigheidsduur van de vergunning nog niet is verstreken, blijft de geldigheidsduur van de vergunning onveranderd.

  • 3.

    Indien de vergunninghouder verhuist naar een ander gebied dan waarvoor de vergunning is verleend en de geldigheidsduur nog niet is verstreken, kan de vergunninghouder een verhuisvergunning aanvragen welke wordt omgezet in een bewonersvergunning na inschrijving op het nieuwe adres. De vergunning voor het gebied waar vergunninghouder stond ingeschreven vervalt daarmee. Zonder verhuisvergunning wordt de bestaande vergunning na inschrijving op het nieuwe adres binnen 2 weken omgezet naar het nieuwe adres.

Hoofdstuk 4 Voorschriften met betrekking tot de ondernemersvergunning

Artikel 4.1 Inschrijving Kamer van Koophandel/BIG-register

De onderneming dient te zijn ingeschreven bij de Kamer van Koophandel of voor medische beroepen in het BIG-register.

Artikel 4.2 Geldigheid gebied

  • 1.

    De ondernemersvergunning wordt verleend voor het vergunninggebied waarin de onderneming is gevestigd op basis van het vestigingsnummer zoals vermeld op de inschrijving bij de Kamer van Koophandel.

  • 2.

    Voor de vergunninggebieden 1-Oost en 40 worden geen ondernemersvergunningen verleend.

Artikel 4.3 Aantal vergunningen

  • 1.

    Het aantal te verlenen ondernemersvergunningen wordt bepaald door het aantal werknemers dat op het vestigingsadres werkzaam is. De gegevens van de Kamer van Koophandel en in het BIG-register zijn bepalend.

  • 2.

    Er is altijd recht op tenminste 1 ondernemersvergunning, behalve als het een bedrijf aan huis betreft. Indien er meer dan 1 werknemer werkzaam is op de betreffende locatie worden maximaal 3 ondernemingsvergunningen verstrekt, tenzij er een wachtlijst is voor het betreffende gebied.

  • 3.

    Bij meer dan tien medewerkers per eenheid van tien werknemers kan één extra ondernemersvergunning worden aangevraagd, tenzij er een wachtlijst is. Dit betekent dat zonder wachtlijst bij 1-19 werknemers een recht bestaat op maximaal 3 vergunningen, bij 20-29 werknemers maximaal 4 vergunningen, bij 30-39 werknemers maximaal 5 vergunningen, en zo verder.

  • 4.

    Aan een onderneming zonder personeel wordt maximaal 1 ondernemersvergunning verleend. De gegevens van de Kamer van Koophandel en in het BIG-register zijn bepalend.

  • 5.

    Voor het bepalen van het maximumaantal vergunningen per onderneming worden de aanvragen van ondernemersvergunningen en dienstverlenersvergunningen bij elkaar opgeteld. Hierop wordt het aantal parkeerplaatsen van de eigen parkeergelegenheid in mindering gebracht. Onder eigen parkeergelegenheid wordt dan verstaan:

    • een garage of carport behorende bij het bedrijf;

    • een oprit behorende bij het bedrijf, al dan niet ingericht als parkeerplaats;

    • een parkeerplaats op eigen terrein behorende bij het bedrijf;

    • een garage of parkeerplaats (gehuurd of in eigendom) binnen een straal van 100 meter van de hoofdingang van de onderneming waarin het bedrijf gevestigd is;

    • een bij de onderneming behorende garageplaats in de parkeergarage behorende bij het ondernemingscomplex waarin betrokkene gevestigd is;

    • Voor de vraag of er sprake is van een garage bij de onderneming is de omgevingsplankaart bepalend. Het gestelde lijdt uitzondering wanneer de garage in overeenstemming met het omgevingsplan voor andere doeleinden wordt gebruikt en de aanvrager dat gebruik kan aantonen.

  • 6.

    Wachtlijst

    • a.

      De tweede ondernemingsvergunning wordt slechts verleend indien het maximum aantal beschikbare vergunningen niet bereikt is.

    • b.

      Bij een overschrijding als bedoeld in het voorgaande lid worden aanvragen voor een tweede ondernemersvergunning op volgorde van binnenkomst op een wachtlijst geplaatst, met dien verstande dat aanvragen van ondernemers die niet beschikken over eigen parkeergelegenheid bij hun onderneming boven de aanvragen van ondernemers met eigen parkeergelegenheid worden geplaatst. Dit betreft ook locaties/gebouwen met eigen parkeergelegenheid maar waarvoor extra betaald moet worden.

    • c.

      Onder eigen parkeergelegenheid wordt dan verstaan:

      • een garage of carport behorende bij het bedrijf;

      • een oprit behorende bij het bedrijf, al dan niet ingericht als parkeerplaats;

      • een parkeerplaats op eigen terrein behorende bij het bedrijf;

      • een garage of parkeerplaats (gehuurd of in eigendom) binnen een straal van 100 meter van de hoofdingang van de onderneming waarin het bedrijf gevestigd is;

      • een bij de onderneming behorende garageplaats in de parkeergarage behorende bij het ondernemingscomplex waarin betrokkene gevestigd is;

      • Voor de vraag of er sprake is van een garage bij de onderneming is de omgevingsplankaart bepalend. Het gestelde lijdt uitzondering wanneer de garage in overeenstemming met het omgevingsplan voor andere doeleinden wordt gebruikt en de aanvrager dat gebruik kan aantonen.

  • 7.

    Maatschappelijke vergunning

In specifieke, bijzondere of onvoorziene omstandigheden kan het college besluiten van de beleidsregel met betrekking tot het aantal te verstrekken ondernemingsvergunningen zoals aangegeven in artikel 4.3 af te wijken. Hierbij zijn de onderstaande gezichtspunten van toepassing:

  • Het betreft een niet-commerciële onderneming/instelling zonder winstoogmerk

  • De onderneming/instelling is belast met een specifieke wettelijke of maatschappelijke taak zoals politie, scholen en aan scholen gelieerde instellingen, zorg- en gemeentelijke instellingen;

  • De instelling/onderneming moet over mobiliteitsmaatregelen beschikken om het autogebruik van de medewerkers terug te dringen.

Artikel 4.4 Activeren kenteken

  • 1.

    Een ondernemersvergunning vermeldt één kenteken.

  • 2.

    De ondernemersvergunning is slechts geldig voor het motorvoertuig met het kenteken dat actief is.

Hoofdstuk 5 Voorschriften met betrekking tot de dienstverlenersvergunning

Artikel 5.1 Wie komen in aanmerking?

  • 1.

    De dienstverlenersvergunning kan worden verleend:

    • wanneer de aanvrager aantoont dienstverlenende werkzaamheden uit te voeren waardoor het noodzakelijk is dat het parkeerrecht in 1 of meerdere betaald parkeergebieden van Amstelveen geldig moet zijn.

  • 2.

    De dienstverlener dient te zijn ingeschreven bij de Kamer van Koophandel of voor medische beroepen uitsluitend zorgverleners ingeschreven in het BIG-register.

  • 3.

    Van loodgietersbedrijven, installatiebedrijven, bouwbedrijven, stoffeerders en schoonmaak- en onderhoudsbedrijven, overheidsinstanties, nutsbedrijven, makelaars, deurwaarders en vaste standhouders op de markt wordt aangenomen dat aan het voorschrift in artikel 1, lid 1, wordt voldaan.

  • 4.

    De dienstverlenersvergunning wordt op naam van het bedrijf, de instantie, de instelling of zelfstandig werkend arts of andere zorgverlener gesteld.

Artikel 5.2 Duur vergunning

  • 1.

    Er kan een jaarvergunning worden verleend wanneer de werkzaamheden, waarvoor de vergunning wordt gevraagd, zich regelmatig voordoen. De vergunning is in dat geval geldig in alle vergunninggebieden.

  • 2.

    Bij werkzaamheden met een tijdelijk karakter die korter dan een jaar duren kan een vergunning worden afgegeven voor een dag, een week of een maand, afhankelijk van de duur van de werkzaamheden. De vergunning is geldig in alle vergunninggebieden.

  • 3.

    De aanvrager dient bewijsstukken te overleggen waaruit de opdracht, startdatum en de duur van de werkzaamheden blijkt.

Artikel 5.3 Aantal vergunningen

  • 1.

    Het aantal te verlenen dienstverlenersvergunningen wordt bepaald door het aantal werknemers dat op het vestigingsadres werkzaam is. De gegevens van de Kamer van Koophandel en in het BIG-register zijn bepalend.

  • 2.

    Er is altijd recht op tenminste 1 dienstverlenersvergunning. Indien er meer dan 1 werknemer werkzaam is op de betreffende locatie worden maximaal 3 dienstverlenersvergunningen verstrekt.

  • 3.

    Daarboven kan bij meer dan tien medewerkers per eenheid van tien werknemers één extra dienstverlenersvergunning worden aangevraagd. Dit betekent dat bij 1-19 werknemers een recht bestaat op maximaal 3 vergunningen en bij een parkeerdruk lager dan 85% bij 20-29 werknemers maximaal 4 vergunningen, bij 30-39 werknemers maximaal 5 vergunningen, en zo verder.

  • 4.

    Aan ondernemingen zonder personeel wordt maximaal 1 dienstverlenersvergunning verleend. De gegevens van de Kamer van Koophandel en in het BIG-register zijn bepalend.

  • 5.

    Voor het bepalen van het maximumaantal vergunningen per onderneming worden de aanvragen van ondernemersvergunningen en dienstverlenersvergunningen bij elkaar opgeteld.

Artikel 5.4 Activeren kenteken

  • 1.

    Een dienstverleningsvergunning vermeldt één kenteken.

  • 2.

    De dienstverlenersvergunning is slechts geldig voor het motorvoertuig met het kenteken dat actief is.

Hoofdstuk 6 Voorschriften met betrekking tot de bezoekersvergunning

Artikel 6.1 Geldigheid gebied

  • 1.

    Er wordt alleen voor de vergunninggebieden 1-west, 1-oost, 2, 3, 10, 11, 12, 13, 14, 15, 16, 19, 20 en 33 een bezoekersvergunning verleend.

  • 2.

    De bezoekersvergunning wordt verleend voor het vergunninggebied waarin de bewoner als zodanig staat ingeschreven.

  • 3.

    In afwijking van lid 2 kan aan de bewoner die in vergunninggebied 1-oost woont en in bezit is van een bezoekersvergunning voor 1-oost op aanvraag een bezoekersvergunning worden verleend die zowel geldig is voor vergunninggebied 1-oost als voor vergunninggebied 1-west en vergunninggebied 2.

  • 4.

    Bij een bezoekersvergunning hoort één parkeerpas. De parkeerpas is alleen geldig als de bezoekersvergunning geactiveerd is. De parkeerpas geldt alleen voor het vergunninggebied waarvoor de bezoekersvergunning is verleend.

  • 5.

    Onder een bezoekersvergunning wordt verstaan het online saldo aan parkeeruren (in euro’s) dat staat geregistreerd in de centrale computer. Gebruikmaking van het online saldo geschiedt door aanmelding via het internet, of door middel van het telefonisch aanmelden van een kenteken. Aanmelden van een kenteken door gebruik te maken van de parkeerpas via een parkeerautomaat gaat niet ten laste van het online saldo.

  • 6.

    Bij de bezoekersvergunning voor vergunninggebied 1-west, 2, 3, 10, 11, 12, 13, 14, 15, 16, 19, 20 of 33 kan er maximaal een tweede parkeerpas worden aangevraagd.

  • 7.

    Bij de bezoekersvergunning voor vergunninggebied 1-oost worden twee parkeerpassen verstrekt die alleen geldig zijn voor het vergunninggebied 1-oost.

  • 8.

    In afwijking van lid 4 geldt dat bij de bezoekersvergunning voor vergunninggebied 1-oost daarnaast op aanvraag maximaal twee parkeerpassen kunnen worden verleend die geldig zijn voor het vergunninggebied 1-west en het vergunninggebied 2.

Hoofdstuk 7 Voorschriften met betrekking tot de autodatevergunning

Artikel 7.1 Autodatevergunning

Onder autodate of gedeeld autogebruik wordt het herhaald en opeenvolgend gezamenlijk gebruik van een motorvoertuig op grond van een overeenkomst tussen natuurlijke personen uit meer dan één huishouden en een aanbieder van autodate verstaan.

  • 1.

    Een autodatevergunning wordt schriftelijk en ondertekend aangevraagd door de directie, het bestuur van de autodate-onderneming of bij overlegging van een machtiging de gemachtigde.

  • 2.

    De autodatevergunning wordt op bedrijfsnaam gesteld.

  • 3.

    Een autodatevergunning kan alleen worden aangevraagd voor een voor autodate aangewezen vergunninghouderplaats.

  • 4.

    Indien de vergunning wordt aangevraagd voor een plaats die niet als vergunninghouderplaats voor autodate is ingericht en aangewezen nemen burgemeester en wethouders deze aanvraag niet eerder in behandeling dan nadat de plaats als vergunninghouderplaats voor autodate is aangewezen.

  • 5.

    Voor een voor autodate aangewezen vergunninghouderplaats wordt ten hoogste één parkeervergunning verstrekt.

  • 6.

    De parkeervergunning vermeldt de autodateplaats waarvoor de vergunning is verleend.

  • 7.

    Burgemeester en Wethouders kunnen ontheffing verlenen van de verplichting dat de vergunning tijdens het parkeren in het motorvoertuig aanwezig dient te zijn indien het motorvoertuig voor autodate als zodanig voldoende herkenbaar is.

Hoofdstuk 8 Voorschriften met betrekking tot de parkeervergunning gehandicapten

Artikel 8.1 Parkeervergunning gehandicapten

  • 1.

    Een parkeervergunning gehandicapten kan worden verleend aan de aanvrager die beschikt over een geldige aan hem persoonlijk toegekende gehandicaptenparkeerkaart als bedoeld in artikel 1, aanhef en onder w. van de Parkeerverordening Amstelveen 2013.

  • 2.

    De vergunning wordt voor ten hoogste één motorvoertuig verleend, vermeldt het kenteken van dat motorvoertuig en is alleen geldig indien de in het eerste lid genoemde gehandicaptenparkeerkaart tijdens het parkeren van buitenaf met verloopdatum duidelijk zicht- en leesbaar in het motorvoertuig waarvoor de vergunning is verleend aanwezig is.

  • 3.

    De parkeervergunning gehandicapten is strikt persoonlijk en niet overdraagbaar.

  • 4.

    Indien aan de aanvrager een gehandicaptenparkeerkaart met de hoofdletter B is toegekend vermeldt de parkeervergunning gehandicapten het kenteken van het motorvoertuig dat de aanvrager bestuurt.

  • 5.

    Indien aan de aanvrager een gehandicaptenparkeerkaart met de hoofdletter P is toegekend vermeldt de parkeervergunning gehandicapten het kenteken van het motorvoertuig waarmee de aanvrager wordt vervoerd.

  • 6.

    De parkeervergunning gehandicapten wordt voor ten hoogste één jaar verleend of, wanneer de geldigheidsduur van de gehandicaptenparkeerkaart binnen dat jaar verstrijkt, tot het einde van deze geldigheidsduur.

  • 7.

    Wanneer aan de aanvrager binnen een jaar nadat de vergunning is verleend een nieuwe gehandicaptenparkeerkaart wordt verstrekt dient een nieuwe vergunning te worden aangevraagd.

  • 8.

    Bij de aanvraag dienen een kopie van de volledige gehandicaptenparkeerkaart, een kopie van het kentekenbewijs van het motorvoertuig waarvoor de vergunning wordt gevraagd en een legitimatie te worden overgelegd.

  • 9.

    De parkeervergunning gehandicapten is geldig voor alle parkeerapparatuurplaatsen en belanghebbendenplaatsen in de gemeente.

Artikel 8.2 Digitale GPK

De houder van een gehandicaptenparkeerkaart krijgt in afwijking van hetgeen elders in deze beleidsregels is bepaald, uitsluitend vrijstelling van het betalen van parkeerbelasting, indien de houder van de gehandicaptenparkeerkaart zich heeft aangemeld in het digitaal parkeerrecht GPK-systeem, zoals bedoeld in artikel 1.6. Het tonen van de papieren gehandicaptenparkeerkaart kan hier niets aan afdoen en geeft niet alsnog recht op vrijstelling van het betalen van parkeerbelasting.

Hoofdstuk 9 Voorschriften met betrekking tot de patiënten vergunning

Artikel 9.1 Patiënten vergunning

  • 1.

    Een patiënten vergunning kan worden verleend aan een medische praktijk met behandelkamers gevestigd in het vergunninggebied 1-west, 2, 3, 10, 11, 12, 13, 14, 15, 16, 17, 19, 20, 30 en 33.

  • 2.

    De zorgverlener van de medische praktijk die de patiënten vergunning aanvraagt dient te zijn ingeschreven in het BIG-register.

  • 3.

    De vergunning wordt verleend voor het vergunninggebied waarin de praktijk is gevestigd.

  • 4.

    Onder een patiënten vergunning wordt verstaan het online saldo aan parkeeruren (in euro’s) dat staat geregistreerd in de centrale computer. Gebruikmaking van het online saldo geschiedt door aanmelding via het internet, of door middel van het telefonisch aanmelden van een kenteken.

  • 5.

    De patiënten vergunning geeft recht op het gelijktijdig parkeren met drie motorvoertuigen in het vergunninggebied waarvoor de parkeervergunning geldt.

  • 6.

    Per behandelkamer wordt 1 patiënten vergunning verleend. De aanwezigheid van één behandelkamer wordt verondersteld. De aanwezigheid van meer behandelkamers dient door de aanvrager te worden aangetoond.

  • 7.

    In afwijking van lid 1 en lid 6 geldt voor tandartspraktijken dat de patiënten vergunning gekoppeld wordt aan behandelstoelen. Per behandelstoel wordt 1 patiënten vergunning verleend. De aanwezigheid van één behandelstoel wordt verondersteld. De aanwezigheid van meer behandelstoelen dient door de aanvrager te worden aangetoond.

  • 8.

    De geldigheidsduur van de parkeerpassen loopt gelijktijdig af met de geldigheidsduur van de patiënten vergunning.

Hoofdstuk 10 Voorschriften met betrekking tot de kerkdienstvergunning

Artikel 10.1 Kerkdienstvergunning

  • 1.

    Een kerkdienstvergunning wordt verleend voor het vergunninggebied waarin een geloofsgemeenschap diensten houdt.

  • 2.

    Onder een kerkdienstvergunning wordt verstaan het online saldo aan parkeeruren (in Euro’s) dat staat geregistreerd in de centrale computer. Gebruikmaking van het online saldo geschiedt door aanmelding via het internet van een kenteken. Maximaal 50 kenteken per vergunning.

  • 3.

    De kerkdienstvergunning is uitsluitend geldig in het vergunninggebied waarvoor de kerkdienstvergunning is verleend.

Hoofdstuk 11 Verlies/diefstal/beschadiging

Artikel 11.1 Vervanging bij verlies/diefstal/beschadiging

  • 1.

    Bij verlies, diefstal of beschadiging van een parkeerpas kan op aanvraag een vervangende pas beschikbaar worden gesteld.

  • 2.

    De oorspronkelijke parkeerpas wordt ongeldig gemaakt.

Hoofdstuk 12 Hardheidsclausule

Artikel 12.1 Hardheidsclausule

Het college is bevoegd, in gevallen waarin de toepassing van deze beleidsregels naar hun oordeel tot een bijzondere hardheid leidt, ten gunste van de aanvrager af te wijken van het bepaalde in deze beleidsregels.

Hoofdstuk 13 Inwerkingtreding, overgangs- en slotbepalingen

Artikel 13.1 Inwerkingtreding

  • 1.

    Deze beleidsregels treden in werking op de dag na bekendmaking.

  • 2.

    Op dat tijdstip worden de Beleidsregels afgifte parkeervergunningen Amstelveen 2022, vastgesteld bij besluit d.d. 23 augustus 2022 en bekendgemaakt op 27 augustus 2022, ingetrokken, met dien verstande dat zij van toepassing blijven op vergunningen die voor dat tijdstip zijn verleend en nog niet zijn verstreken.

Artikel 13.2 Citeertitel

Deze beleidsregels worden aangehaald als: Beleidsregels aanvragen en afgifte parkeervergunningen van de gemeente Amstelveen 2025

 

Bijlagen: Vergunninggebieden

 

Aldus vastgesteld in de vergadering van 9 september 2025.

De secretaris,

Bert Winthorst

De voorzitter,

Tjapko Poppens

Bijlage 1 vergunninggebieden

 

Naar boven