Kennisgeving voornemen tot uitgifte in erfpacht van perceel grond perceeluitbreiding) Anton Waldorpstraat, Charles Leickertstraat, Derkinderenstraat, Marius Bauerplantsoen te Amsterdam
Voornemen tot uitgifte in erfpacht van een perceel grond ten behoeve van de uitbreiding van een bestaand erfpachtrecht
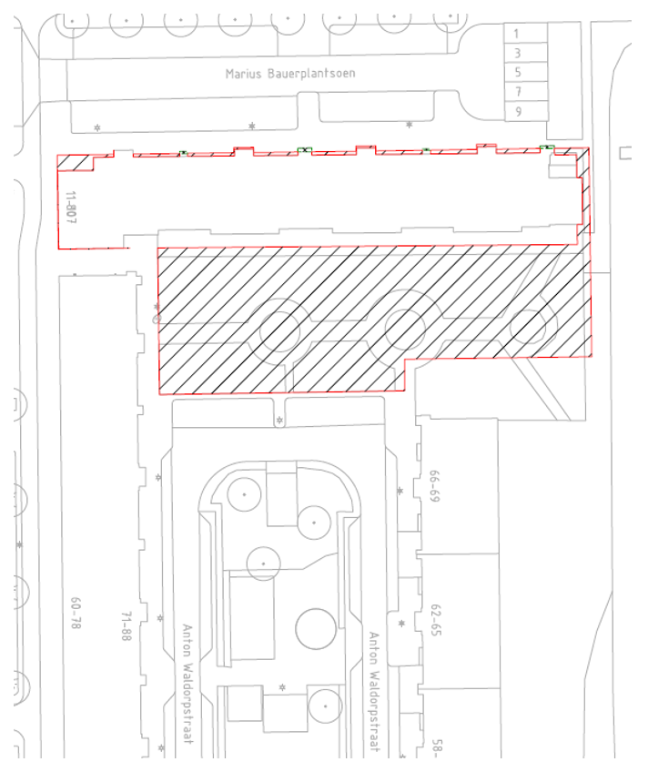
Adres: Anton Waldorpstraat 2 tot en met 48 en 52 tot en met 88 (even nummers) en 1 tot en met 89 (oneven nummers), Charles Leickertstraat 6 tot en met 44 (even nummers) en 1 tot en met 19 (oneven nummers), Derkinderenstraat 46 tot en met 56 en 60 tot en met 80 (even nummers), Marius Bauerplantsoen 3 tot en met 185 (oneven nummers), te Amsterdam
Uit te geven perceel: gemeente Sloten (N.H.), sectie D, nummer 12741(gedeeltelijk)
Perceelgrootte uitbreiding: circa 1.769 m2
Dossiernummer: EW266/1
Kenmerk: 2025-7656
De gemeente Amsterdam is voornemens voormeld perceel grond in erfpacht uit te geven ten behoeve van de uitbreiding van een bestaand erfpachtrecht.
Vermelde uitbreiding van het erfpachtperceel zal voor ruim 90% gebruikt worden als tuin
Een uitbreiding van de tuin is vereist in het kader van Rainproof-eisen. Het regenwater moet op eigen terrein worden gebufferd en afgevoerd. Dit is niet mogelijk op het beperkte dakoppervlak.
Een klein deel is bedoeld voor de bouwkundige aanpassing van het gebouw. Het gebouw wordt volledig gestript tot het casco en gerenoveerd en opgetopt.
Het in erfpacht uit te geven perceel staat op onderstaande kaarten aangegeven met enkele lijn arcering.
De gemeente is van mening dat voor voormelde uitgifte in erfpacht slechts één serieuze gegadigde in aanmerking komt, op grond van de navolgende objectieve, toetsbare en redelijke criteria:
(voor wat betreft de tuinuitbreiding):
–
percelen met de bestemming ‘tuin’ worden door de gemeente niet separaat in erfpacht uitgegeven;
–
het in erfpacht uit te geven perceel grenst aan het erfpachtperceel waarvoor de tuinuitbreiding wordt aangevraagd en zal met dat perceel worden samengevoegd;
–
het in erfpacht uit te geven perceel kan niet door derden separaat worden ontwikkeld;
(voor wat betreft de perceeluitbreiding)
–
het in erfpacht uit te geven perceel grenst aan het erfpachtperceel waarvoor uitbreiding wordt gevraagd en waarop de herontwikkeling wordt gerealiseerd;
–
het in erfpacht uit te geven perceel zal met het bestaande erfpachtperceel worden samengevoegd;
–
het in erfpacht uit te geven perceel kan niet door derden separaat worden ontwikkeld;
–
het betreft een uitbreiding van een bestaand erfpachtrecht, waarbij de beoogde uitbreiding een aanpassing van het gebouw betreft en aantoonbaar een optimalisatie oplevert van de gehele kavel binnen het bestaande erfpachtrecht;
Kort geding en vervaltermijn
Eenieder, die van mening is, dat hij of zij ook voor de uitgifte van vermeld perceel in aanmerking komt, dient uiterlijk 20 kalenderdagen na de publicatiedatum van het voornemen tot uitgifte in het Gemeenteblad een gerechtelijke procedure in kort geding aanhangig te hebben gemaakt met betrekking tot de voorgenomen uitgifte in erfpacht bij de afdeling privaatrecht van de rechtbank Amsterdam.
De termijn van 20 kalenderdagen is een vervaltermijn. Indien niet binnen deze termijn een kort geding aanhangig is gemaakt kunnen er geen aanspraken jegens de gemeente Amsterdam ter zake van de uitgifte in erfpacht van vermeld perceel worden gemaakt.
De hier aangeboden pdf-bestanden van het Staatsblad, Staatscourant, Tractatenblad, provinciaal blad, gemeenteblad, waterschapsblad en blad gemeenschappelijke regeling vormen de formele bekendmakingen in de zin van de Bekendmakingswet en de Rijkswet goedkeuring en bekendmaking verdragen voor zover ze na 1 juli 2009 zijn uitgegeven. Voor pdf-publicaties van vóór deze datum geldt dat alleen de in papieren vorm uitgegeven bladen formele status hebben; de hier aangeboden elektronische versies daarvan worden bij wijze van service aangeboden.