Gemeenteblad van Wijdemeren
| Datum publicatie | Organisatie | Jaargang en nummer | Rubriek |
|---|---|---|---|
| Wijdemeren | Gemeenteblad 2025, 418009 | verkeersbesluit of -mededeling |
Zoals vergunningen, bouwplannen en lokale regelgeving.
Adressen en contactpersonen van overheidsorganisaties.
U bent hier:
| Datum publicatie | Organisatie | Jaargang en nummer | Rubriek |
|---|---|---|---|
| Wijdemeren | Gemeenteblad 2025, 418009 | verkeersbesluit of -mededeling |
Onderwerp: verkeersbesluit aanwijzen voetgangersoversteekplaatsen (VOP) Tjalk te Loosdrecht
Medewerker Fysiek Domein, Beleid & Ontwikkeling
artikel 15, WVW 1994, geschiedt de plaatsing of verwijdering van de bij algemene maatregel van bestuur aangewezen verkeerstekens die een gebod of verbod inhouden, krachtens een verkeersbesluit.
artikel 12 sub a BABW is er een verkeersbesluit nodig voor het instellen van een VOP als bedoeld in artikel 49 lid 2 van het RVV 1990, middels het aanbrengen van zebramarkering.
artikel 18, eerste lid, onder d, van de WVW 1994, het bepaalde in het RVV 1990 en het BABW en daartoe gemandateerd krachtens door het college van burgemeester en wethouders verleende mandaat in de Mandaatregeling Wijdemeren 2022 (Gemeenteblad 2022, 265123 en zoals nadien gewijzigd).
• dat de in dit verkeersbesluit opgenomen maatregel, gelet op artikel 2 van de WVW 1994, strekt tot:
het verzekeren van de veiligheid op de weg en
het beschermen van weggebruikers en passagiers;
• dat op grond van vaste jurisprudentie (ABRvS 2 juli 2014, ECLI:NL:RVS:2014:2422) als uitgangspunt geldt dat het treffen van verkeersmaatregelen als een normale maatschappelijke ontwikkeling moet worden beschouwd waarmee een ieder kan worden geconfronteerd en waarmee de nadelige gevolgen in beginsel voor rekening van de daardoor getroffenen mogen worden gelaten;
• dat in de periode 2022/2023 aan de Tjalk te Loosdrecht een aantal woningen zijn gebouwd, genaamd ‘Het Schippershof’;
• dat dit nieuwbouwproject gebouwd is als een hofje dat aansluit op de Tjalk;
• dat de Tjalk is gecategoriseerd als een gebiedsontsluitingsweg (GOW) binnen de bebouwde kom met ter plaatse een maximumsnelheid van 50 km/u;
• dat op een GOW de verblijfsfunctie ondergeschikt is aan de verkeersfunctie;
• dat de Tjalk onderdeel is van een busroute en aan weerszijden van de rijbaan met borden E2 van bijllage 1 van het RVV 1990 een verbod stil te staan is ingesteld;
• dat één van de inrichtingskenmerken van een GOW binnen de bebouwde is, dat het oversteken door langzaam verkeer geconcentreerd plaatsvindt bij kruispunten;
• dat voor de bewoners aan Het Schippershof en de bewoners aan de noordzijde van de Tjalk de dagelijkse voorzieningen, zoals een supermarkt, zijn gesitueerd aan de overzijde (ten zuiden) van de Tjalk;
• dat in de afgelopen jaren bij de gemeente opmerkingen zijn binnengekomen waarbij zorgen zijn geuit over de oversteekbaarheid van de Tjalk, met name van en naar de woningen aan Het Schippershof;
• dat het van belang is dat de woonwijk aan de noordzijde van de Tjalk op een verkeersveilige manier verbonden wordt met de voorzieningen aan de zuidzijde van de Tjalk;
• dat deze geuite zorgen zich toespitsen op het gevoel van onveiligheid bij het als voetganger oversteken van de Tjalk;
• dat in het belang van een goede en verkeersveilige oversteekbaarheid het gewenst is om op de Tjalk, nabij Het Schippershof, een voetgangersoversteekplaats (VOP) aan te leggen zodat het oversteken geconcentreerd plaatsvindt waarbij de VOP als attentiepunt geldt voor naderende bestuurders;
• dat door de markeringen van een VOP en de bijbehorende verkeersborden overstekende voetgangers beter zichtbaar zijn voor naderende bestuurders;
• dat een herkenbare oversteekplaats helpt bij het ordenen van het verkeer en er voor zorgt dat zowel voetgangers als bestuurders herkenbaar gedrag vertonen;
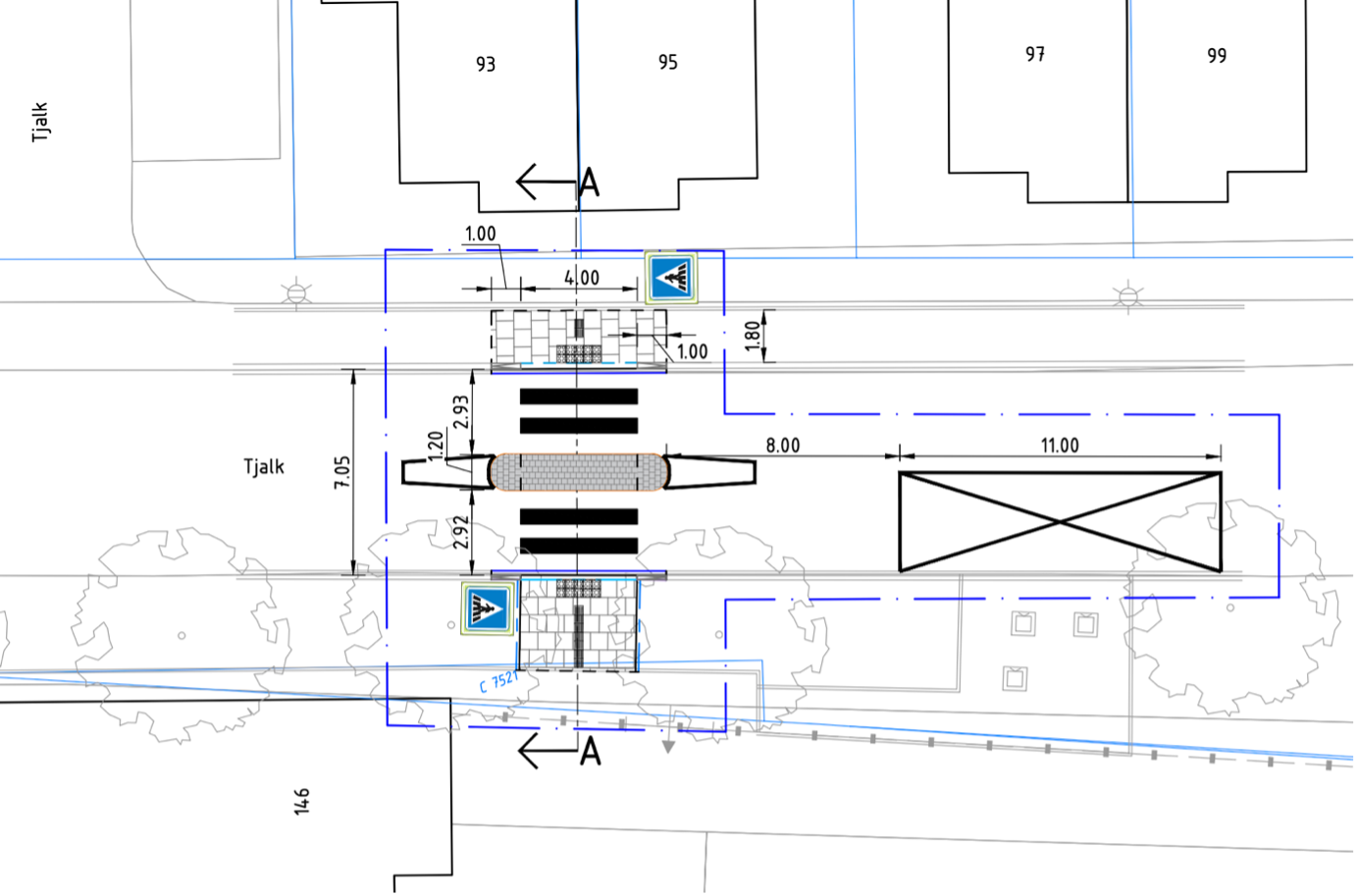
• dat op grond van vorenstaande overwegingen een VOP wordt aangelegd op de Tjalk te Loosdrechts, nabij no. 93/95;
• dat de VOP’s worden aangelegd door middel van het aanbrengen van zebramarkering en het aan weerszijden daarvan plaatsen van borden L2 van bijlage 1 van het RVV 1990;
• dat daarmee de bereikbaarheid en herkenbaarheid van de VOP is gegarandeerd;
• dat in deze VOP op de wegas een tussensteunpunt met overrijdbare middengeleider is aangelegd waarmee overstekende voetgangers in de gelegenheid worden gesteld om telkens maar één rijstrook te hoeven oversteken en daarbij slechts bestuurders vanuit één richting hoeven te verwachten;
• dat gelet op artikel 2 van de WVW 1994 het zoveel mogelijk waarborgen van de vrijheid van het verkeer in het geding komt bij het treffen van deze verkeersmaatregel, immers bestuurders worden met deze maatregel verplicht om overstekende voetgangers voor te laten gaan en moeten wachten tot hun rijbaan vrij is, alvorens door te rijden;
• dat gelet op voorgaande overwegingen het zoveel mogelijk waarborgen van de vrijheid van het verkeer van ondergeschikt belang wordt geacht;
• dat de in dit verkeersbesluit genoemde maatregelen leiden niet tot een toename van de geluidsbelasting afkomstig van het wegverkeerslawaai, zoals bedoeld in artikel 21a van het BABW, op geluidsgevoelige gebouwen;
• dat de in dit verkeersbesluit genoemde weg een weg is als bedoeld in artikel 18 lid 1 sub d van de WVW 1994 en in beheer is bij de gemeente Wijdemeren;
• dat conform artikel 24 van het BABW, overleg is gepleegd met de politie. De politie heeft positief geadviseerd over dit verkeersbesluit.
I. tot het aanwijzen van een voetgangersoversteekplaats (VOP) op de Tjalk te Loosdrecht ter hoogte van de no.’s 93/95, door middel van het aanbrengen van zebramarkering als omschreven in hoofdstuk IV, paragraaf 2, ten 9e Uitvoeringsvoorschriften BABW;
Een en ander overeenkomstig de bij dit besluit behorende situatieschets;
II. Dit verkeersbesluit bekend te maken in de plaatselijke kranten Weekblad Wijdemeren en De NieuwsSter;
III. Dit verkeersbesluit op de gebruikelijke wijze te publiceren in het digitaal Gemeenteblad.
Dit besluit treedt in werking na bekendmaking in het Gemeenteblad.
Bezwaar indienen en aanvragen voorlopige voorziening
Tegen dit besluit staat conform artikel 20 van de Wegenverkeerswet juncto artikel 7:1, lid 1 juncto artikel 6:4, lid 1 van de Algemene Wet Bestuursrecht gedurende zes weken na de bekendmaking van dit besluit, voor belanghebbenden de mogelijkheid open om bezwaar in te dienen bij het college van burgemeester en wethouders van Wijdemeren. Het bezwaarschrift moet de naam en het adres vermelden van degene die bezwaar maakt, zijn ondertekend en de datum vermelden waarop het is opgesteld. In het bezwaarschrift moet ook worden aangegeven tegen welk besluit bezwaar wordt gemaakt en waarom het bezwaar wordt gemaakt. Door het indienen van het bezwaarschrift wordt dit besluit niet opgeschort. Bij een spoedeisend belang kan degene die een bezwaarschrift heeft ingediend een voorlopige voorziening aanvragen bij de Voorzieningenrechter van de rechtbank Midden-Nederland, afdeling Bestuursrecht, o.v.v. voorlopige voorzieningen (postbus 16005, 3500 DA Utrecht. Bij het indienen van een verzoek om voorlopige voorziening moeten griffierechten worden betaald.
Kopieer de link naar uw clipboard
https://zoek.officielebekendmakingen.nl/gmb-2025-418009.html
De hier aangeboden pdf-bestanden van het Staatsblad, Staatscourant, Tractatenblad, provinciaal blad, gemeenteblad, waterschapsblad en blad gemeenschappelijke regeling vormen de formele bekendmakingen in de zin van de Bekendmakingswet en de Rijkswet goedkeuring en bekendmaking verdragen voor zover ze na 1 juli 2009 zijn uitgegeven. Voor pdf-publicaties van vóór deze datum geldt dat alleen de in papieren vorm uitgegeven bladen formele status hebben; de hier aangeboden elektronische versies daarvan worden bij wijze van service aangeboden.