U bekijkt een publicatie met

Toon versie van document

Ontwerp Wijziging Omgevingsplan gemeente Arnhem - Bartok Park Noord - 0004

De gemeenteraad van Gemeente Arnhem

gelezen de tekstinhoud van ”Omgevingsplan gemeente Arnhem” d.d. [datum collegevoorstel vaststelling wijzigingsbesluit] 

Besluit;

Artikel I

De wijzigingen van "Omgevingsplan gemeente Arnhem" opgenomen in Bijlage A wordt vastgesteld.

Artikel II

Dit besluit treedt in werking per [Juridisch werkend vanaf (Aanlevering)]

Artikel III (Gereserveerd)

Dit artikel is gereserveerd voor eventueel door dit besluit te vervallen onderdelen van het tijdelijk deel Omgevingsplan. Die worden aangegeven in dit besluit met de bijbehorende pons, het gebied waar het tijdelijk deel Omgevingsplan niet meer van toepassing is.

Aldus vastgesteld door Gemeente Arnhem, [datum raadsbesluit] 

Diegenen die mogen ondertekenen

Niet getekend ontwerp-exemplaar

Bijlage A Bijlage bij artikel I

A

Hoofdstuk 10 wordt op de aangegeven wijze gewijzigd:

Hoofdstuk 10 Gereserveerd Activiteiten met betrekking tot transformatiegebieden 

[Gereserveerd]

Afdeling 10.1 Algemene bepalingen 

Paragraaf 10.1.1 Aanwijzing transformatiegebieden 
Artikel 10.1 Toepassingsbereik 

Dit hoofdstuk is van toepassing op de locatie Transformatiegebieden Arnhem.

Artikel 10.2 Voorrangsbepaling transformatiegebieden 

De regels in het tijdelijk deel omgevingsplan en bruidsschat die in strijd zijn met dit hoofdstuk zijn niet van toepassing binnen transformatiegebieden. De regels in afdeling 22.2, met uitzondering van paragraaf 22.2.7.3, en afdeling 22.3 zijn niet van toepassing voor zover die regels in strijd zijn met regels in dit hoofdstuk.

Artikel 10.3 Transformatiegebied Bartok Park Zuid 

De locatie ‘Transformatiegebied Bartok Park Zuid ’ is aangewezen als transformatiegebied, waarbij het gebied wordt getransformeerd naar een woongebied met een openbare fietsenstalling.

Artikel 10.4 Transformatiegebied Bartok Park Noord

De locatie 'Transformatiegebied Bartok Park Noord' is aangewezen als ontwikkelgebied, waarbij het gebied wordt getransformeerd naar een gemengd gebied met mogelijkheden tot een woonfunctie, culturele functie en tuinfunctie. 

Paragraaf 10.1.2 Aanwijzingen in fysieke leefomgeving in transformatiegebieden
Subparagraaf 10.1.2.1 Functies

Artikel 10.5 Functie wonen transformatiegebied

Er is een functie Wonen tranformatiegebied.

Artikel 10.6 Functie verblijfsgebied transformatiegebied

Er is een functie Verblijfsgebied transformatiegebied.

Artikel 10.7 Functie nutsvoorziening transformatiegebied

Er is een functie Nutsvoorziening transformatiegebied.

Artikel 10.8 Functie tuin transformatiegebied

Er is een functie Tuin transformatiegebied.

Subparagraaf 10.1.2.2 Waarden

Subsubparagraaf 10.1.2.2.1 Beschermd stadsgezicht Binnenstad en singels transformatiegebied

Artikel 10.9 Waarde gemeentelijk beschermd stadsgezicht Binnenstad en Singels transformatiegebied

Er is een waarde Gemeentelijk beschermd stadsgezicht Binnenstad en Singels transformatiegebied.

Artikel 10.10 Toepassingsbereik

Deze subparagraaf is van toepassing op het verrichten van activiteiten binnen de locatie Gemeentelijk beschermd stadsgezicht Binnenstad en Singels transformatiegebied

Artikel 10.11 Oogmerk

Deze regels uit deze subparagraaf zijn gesteld met het oog op:

  • a.

    Het beschermen van het beschermde stadsgezicht Binnenstad en singels

Artikel 10.12 Maatwerkvoorschrift

Een maatwerkvoorschrift kan worden gesteld over de bouwactiviteiten binnen een Gemeentelijk beschermd stadsgezicht Binnenstad en Singels transformatiegebied.

Afdeling 10.2 Standaardbepalingen in transformatiegebieden

Paragraaf 10.2.1 Algemeen
Artikel 10.13 Toepassingsbereik

Deze afdeling is van toepassing op het verrichten van activiteiten binnen Transformatiegebieden Arnhem.

Paragraaf 10.2.2 Gebruiksactiviteiten
Subparagraaf 10.2.2.1 Algemene bepalingen

Artikel 10.14 Algemene regels over gebruiksactiviteiten binnen transformatiegebieden

  • 1.

    Deze paragraaf is van toepassing op gebruiksactiviteiten binnen een transformatiegebied.

  • 2.

    Het gebruik van gronden en bouwwerken voor andere gebruiksactiviteiten dan die zijn geregeld in hoofdstuk 10 zijn verboden. 

  • 3.

    De volgende activiteiten zijn toegestaan:

    • a.

      groen- en watervoorzieningen

    • b.

      overige voorzieningen en bijbehorende activiteiten, die qua aard, oppervlakte en ruimtelijke uitstraling ondergeschikt zijn aan de hoofdactiviteit, zoals nutsvoorzieningen, fitnessvoorzieningen en kinderopvang ten behoeve van de hoofdactiviteit. Hieronder worden geen ondergeschikte horeca, niet zijnde bedrijfskantines, en detailhandel verstaan

Subparagraaf 10.2.2.2 Gebruiksactiviteit cultuur

Artikel 10.15 Toepassingsbereik gebruiksactiviteit cultuur  

Deze subparagraaf is van toepassing op het exploiteren van culturele functies, zoals expositieruimten, ateliers, muziek- en kunstonderwijs en naar de aard daarmee gelijk te stellen voorzieningen, met uitzondering van musea, muziektheaters, bioscopen en naar aard vergelijkbare voorzieningen,  in transformatiegebieden.

Artikel 10.16 Algemene regels: locaties voor culturele functies exploiteren toegestaan 

Binnen transformatiegebieden is het exploiteren van culturele functies uitsluitend toegestaan ter plaatse van de locatie activiteit Cultuur transformatiegebied - toegestaan

Subparagraaf 10.2.2.3 Gebruiksactiviteit nutsvoorziening

Artikel 10.17 Toepassingsbereik

  • 1.

    Deze subparagraaf is van toepassing op de het gebruiken van een nutsvoorziening binnen transformatiegebieden. 

  • 2.

    Deze subparagraaf is niet toepassing op ondergeschikte nutsvoorzieningen bedoeld in derde lid van artikel 10.14

Artikel 10.18 Algemene regels: locaties voor nutsvoorziening toegestaan 

Binnen transformatiegebieden is het gebruik van nutsvoorzieningen uitsluitend toegestaan ter plaatse van de locatie activiteit Nutsvoorziening transformatiegebied - toegestaan.

Subparagraaf 10.2.2.4 Gebruiksactiviteit tuin

Artikel 10.19 Toepassingsbereik gebruiksactiviteit tuin

  • 1.

    Deze paragraaf is van toepassing op het gebruiken van een tuin binnen transformatiegebieden.  

  • 2.

    Deze subparagraaf is niet toepassing op het gebruik als tuin bedoeld in derde lid van artikel 10.11. 

Artikel 10.20 Algemene regels: locaties voor tuin gebruiken toegestaan 

Binnen transformatiegebieden is het gebruik als tuin uitsluitend toegestaan ter plaatse van de locatie activiteit Tuin transformatiegebied - toegestaan

Subparagraaf 10.2.2.5 Gebruiksactiviteit verblijfsgebied

Artikel 10.21 Toepassingsbereik gebruiksactiviteit verblijfsgebied

Deze subparagraaf is van toepassing op de activiteiten verrichten binnen de functie Verblijfsgebied transformatiegebied op de locatie functie Verblijfsgebied tranformatiegebied.

Artikel 10.22 Algemene regels: locaties voor verblijfsgebied toegestaan 

Binnen transformatiegebieden zijn activiteiten binnen de functie Verblijfsgebied transformatiegebied toegestaan indien het gaat om aanleg, bouw, gebruik en instandhouding van de volgende voorzieningen:

  • a.

    ten behoeve van bestemmingsverkeer en verblijfsfuncties;

  • b.

    aanleg, beheer, onderhoud en gebruik van fiets- en wandelpaden, straatmeubilair en speelvoorzieningen;

  • c.

    voorzieningen voor het openbaar vervoer, zoals busstations;

  • d.

    terrassen;

  • e.

    nutsvoorzieningen;

  • f.

    onderdoorgangen, alsmede toegangen tot ondergrondse voorzieningen ten behoeve van direct aangrenzende functies en activiteiten.

Subparagraaf 10.2.2.6 Gebruiksactiviteit wonen

Artikel 10.23 Toepassingsbereik gebruiksactiviteit wonen

Deze subparagraaf is van toepassing op de locatie Wonen tranformatiegebied.

Artikel 10.24 Algemene regels: locaties voor garagebox toegestaan 

Binnen transformatiegebieden is het gebruik van een garagebox ten behoeve van het stallen van vervoersmiddelen of de opslag van goederen toegestaan ter plaatse van de locatie activiteit Garagebox gebruiken transformatiegebied - toegestaan

Artikel 10.25 Algemene regels: locaties voor wonen toegestaan 

Binnen transformatiegebieden is wonen uitsluitend toegestaan ter plaatse van de locatie activiteit Wonen transformatiegebied - toegestaan.

Artikel 10.26 Algemene regels: wonen 

Voor wonen gelden de volgende regels:

  • a.

    beroep aan huis is toegestaan, waaronder mede begrepen bed and breakfast, mits:

    • 1.

      dit maximaal 33% van het vloeroppervlakte van de woning betreft; en

    • 2.

      dit door de bewoner wordt uitgeoefend; en

    • 3.

      dit geen onevenredige aantasting van het woon- en leefklimaat ter plaatse of een onevenredige parkeerdruk tot gevolg heeft; en

    • 4.

      het geen detailhandel, internetverkoop hiervan uitgezonderd, prostitutie of horeca betreft.

  • b.

    onder wonen wordt niet begrepen:

    • 1.

      bewoning van woonwagens of woonschepen;

    • 2.

      het bewonen, of laten bewonen, van een kamergewijze bewoning door meer dan één persoon per 18 m2 gebruiksoppervlakte;

    • 3.

      het verschaffen van kortdurend verblijf van maximaal 3 maanden, te vergelijken met logies, al dan niet als onderdeel van de arbeidsvoorwaarden aan werknemers in een kamergewijze bewoning;

    • 4.

      het gebruik van bijgebouwen als onzelfstandige wooneenheid in een kamergewijze bewoning.

Artikel 10.27 Woning splitsen - vergunningplicht

Het is verboden om zonder omgevingsvergunning een (gedeelte) van een gebouw te splitsen naar twee of meerdere zelfstandige woningen.

Artikel 10.28 Woning splitsen - beoordelingsregels

Een omgevingsvergunning als bedoeld in artikel 10.27 mag alleen worden verleend op de locatie activiteit Woning splitsen kernwinkelgebied transformatiegebied - vergunningplicht indien: 

  • a.

    de gebruiksoppervlakte van de bestaande woning gelijk is aan of groter is dan 110 m2; en

  • b.

    de gebruiksoppervlakte van elke zelfstandige woning die als gevolg van splitsing ontstaat niet kleiner is dan 50 m2; en

  • c.

    de gesplitste woningen over een bergingsruimte met een oppervlakte van ten minste 5 m2 per woning; en

  • d.

    de gesplitste woningen beschikken over een buitenruimte.

Artikel 10.29 Woning verkameren - vergunningplicht

  • 1.

    Het is verboden om zonder omgevingsvergunning een (gedeelte) van een gebouw te verkameren (vanaf drie onzelfstandige wooneenheden).

  • 2.

    Het verbod, als bedoeld het eerste lid geldt niet indien sprake is van verkameren door een hospita.

Artikel 10.30 Woning verkameren - beoordelingsregels

Een omgevingsvergunning als bedoeld in artikel 10.29 mag alleen worden verleend indien op de locatie activiteit Verkamering transformatiegebied - vergunningplicht

  • a.

    de gebruiksoppervlakte van de bestaande woning gelijk is aan of groter is dan 110 m2; en

  • b.

    het gebouw niet opgedeeld wordt in meer dan één onzelfstandige wooneenheid per 18 m2 gebruiksoppervlakte; en

  • c.

    het verkamerde gebouw minimaal beschikt over een bergingsruimte met een oppervlakte van ten minste 3 m2 ten behoeve van de stalling van fietsen, afvalcontainer(s) of afvalzakken. Vanaf 4 onzelfstandige wooneenheden geldt als aanvullende eis dat 1 m2 bergingsruimte per wooneenheid wordt toegevoegd.

Paragraaf 10.2.3 Bouwactiviteiten
Artikel 10.31 Algemene regels over bouwen 
  • 1.

    Deze paragraaf is van toepassing op het bouwen, verbouwen en in stand houden van gebouwen ter plaatse van transformatiegebieden. 

  • 2.

    Bouwwerken mogen uitsluitend worden opgericht, voor zover deze passen binnen de functies dan wel activiteiten zoals omschreven in deze regels.

  • 3.

    Het bouwen, verbouwen en instand houden van andere bouwwerken dan die zijn geregeld in hoofdstuk 10 zijn verboden. 

Artikel 10.32 Algemene bouwregel: bouwvlak
  • 1.

    Het bouwen van hoofdgebouwen is uitsluitend toegestaan binnen het Bouwvlak tranformatiegebieden

  • 2.

    In afwijking van het eerste lid is het toegestaan om buiten het bouwvlak te bouwen indien 

    • a.

      de overschrijding van het bouwvlak niet meer bedraagt dan 2 m, de activiteitengrens niet wordt overschreden en het de bouw betreft van erkers, luifels, balkons, keldergaten (koekoeken) of galerijen;

    • b.

      het de bouw van volledig beneden peil gelegen bouwwerken betreft, mits:

      • 1.

        een diepte van 6 m niet wordt overschreden;

      • 2.

        het maaiveld wordt afgewerkt op een wijze die past binnen de activiteit en de ter plaatse geldende waarden;

      • 3.

        geen onevenredige toename van de parkeerdruk plaatsvindt;

      • 4.

        de activiteitengrens niet wordt overschreden.

Artikel 10.33 Algemene bouwregel: bouwen conform maatvoering
  • 1.

    Ter plaatse van de locatie omgevingsnorm Maximum bouwhoogte transformatiegebied bedraagt de maximum bouwhoogte niet meer dan aangegeven met de omgevingsnorm Maximum bouwhoogte transformatiegebieden.

  • 2.

    Ter plaatse van het werkingsgebied omgevingsnorm Maximum goothoogte transformatiegebied bedraagt de maximum goothoogte niet meer dan aangegeven met de Maximum goothoogte transformatiegebieden

  • 3.

    Afwijken van het bepaalde in het eerste lid is toegestaan indien:

    • a.

      de afwijking niet meer bedraagt dan 10% van de in de regels vastgelegde maten en een onevenredig afbreuk wordt gedaan aan het straat- en bebouwingsbeeld, de privacy van omwonenden en de gebruiksmogelijkheden van de aangrenzende gronden;

    • b.

      Ten behoeve van het oprichten van hekwerken op platte daken voor het gebruik als dakterras indien: 

      • 1.

        de hoogte niet meer bedraagt dan 1 meter boven de aangegeven maximum bouwhoogte;

      • 2.

        dit passend is in het bebouwingsbeeld van de omringende bebouwing en

      • 3.

        de belangen van omwonenden met betrekking tot privacy, uitzicht en bezonning niet onevenredig worden geschaad.

Artikel 10.34 Algemene regel: vergunningvrij bouwen

Het bouwen, verbouwen en in stand houden van bouwwerken conform paragraaf 22.2.7.2 en paragraaf 22.2.7.3 is toegestaan. 

Paragraaf 10.2.4 Gebouw of activiteit met parkeerbehoefte toevoegen
Artikel 10.35 Toepassingsbereik

Deze paragraaf is van toepassing binnen transformatiegebieden en gaat over het: 

  • a.

    bouwen van een gebouw met een parkeerbehoefte;

  • b.

    het wijzigen van gebruik van gronden en/of bouwwerken waarvoor een omgevingsvergunning is benodigd. 

Artikel 10.36 Gebouw of activiteit met parkeerbehoefte toevoegen
  • 1.

    Er moet gelet op de omvang of de bestemming van het gebouw in voldoende mate worden voorzien in ruimte voor het parkeren of stallen van auto's in, op of onder het gebouw, dan wel op of onder het onbebouwde terrein dat bij dat gebouw behoort. 

  • 2.

    De onder het eerste lid bedoelde ruimte voor het parkeren van personenauto's moet afmetingen hebben die zijn afgestemd op gangbare personenauto's. 

  • 3.

    Aan het bepaalde in het eerste lid wordt geacht te zijn voldaan indien de ruimte voor parkeren of stallen voldoet aan de in de 'Beleidsregels Parkeren van de gemeente Arnhem' daartoe opgenomen normen.

Artikel 10.37 Laden en lossen

Indien de bestemming van een gebouw aanleiding geeft tot een te verwachten behoefte aan ruimte voor het laden en lossen van goederen, dient, onverminderd het bepaalde elders in de regels van dit plan, in deze behoefte in voldoende mate zijn voorzien aan, in, of onder het gebouw, dan wel op of onder het onbebouwde terrein dat bij dat gebouw behoort.

Artikel 10.38 Specifieke bepaling strijdig gebruik 

Tot een strijdig gebruik van gronden en bouwwerken wordt in elk geval gerekend het gebruiken of laten gebruiken van gronden of bouwwerken waarbij niet in voldoende mate ruimte is aangebracht en in stand wordt gehouden op eigen terrein overeenkomstig de beleidsregels zoals die golden op het tijdstip van indiening van de aanvraag om een omgevingsvergunning.

Artikel 10.39 Beleidsregels
  • 1.

    Burgemeester en wethouders passen deze regels toe met inachtneming van de door hen vastgestelde beleidsregels met betrekking tot het parkeren, zoals die gelden op het tijdstip van indiening van de aanvraag om een omgevingsvergunning. 

  • 2.

    Indien deze beleidsregels gedurende de planperiode worden gewijzigd, wordt rekening gehouden met de wijziging. 

Artikel 10.40 Afwijkbevoegdheid

Burgemeester en wethouders kunnen bij een omgevingsvergunning afwijken van het bepaalde in artikel 10.36 en artikel 10.37 indien:

  • a.

    indien het voldoen aan hetgeen in bovengenoemde artikelen door bijzondere omstandigheden op overwegende bezwaren stuit, of

  • b.

    voor zover op andere wijze in de benodigde parkeer- of stallingsruimte zoals bedoeld in artikel 10.36 dan wel laad- of losruimte zoals bedoeld in artikel 10.37 wordt voorzien.

Artikel 10.41 Voorwaarden voor afwijken

Een omgevingsvergunning kan worden verleend indien  geen onevenredige aantasting plaatsvindt van: 

  • a.

    de parkeersituatie in de openbare ruimte;

  • b.

    de woon- en leefsituatie

Paragraaf 10.2.5 In stand houden 
Subparagraaf 10.2.5.1 Algemene bepalingen 

Artikel 10.42 Toepassingsbereik 

Deze paragraaf is van toepassing op het in in stand houden in transformatiegebieden. 

Subparagraaf 10.2.5.2 Natuurinclusief en klimaatadaptief bouwen 

Artikel 10.43 Toepassingsbereik 

Deze subparagraaf gaat over het in stand houden van maatregelen in het kader van natuurinclusief en klimaatadaptief bouwen. 

Artikel 10.44 Afwijken instandhoudingsverplichting klimaatadaptief en natuurinclusief bouwen - vergunningplicht 

Het is verboden om zonder een omgevingsvergunning een bouwwerk te gebruiken zonder de vereiste klimaatadaptieve en natuurinclusieve maatregelen in het kader van de vergunningverlening aan te brengen en in stand te houden.

Artikel 10.45 Afwijken instandhoudingsverplichting klimaatadaptief en natuurinclusief bouwen - beoordelingsregels  - beoordelingsregels 

De omgevingsvergunning bedoeld in artikel 10.44 kan worden verleend indien indien op andere wijze kan worden voorzien in het treffen van voldoende klimaatadaptieve en natuurinclusieve maatregelen zoals opgenomen in de Beleidsregels Klimaatadaptief en Natuurinclusief bouwen. 

Artikel 10.46 Afwijken instandhoudingsverplichting klimaatadaptief en natuurinclusief bouwen - bijzondere aanvraagvereisten 

Bij de aanvraag om een omgevingsvergunning voor het afwijken van de  instandhoudingsverplichting klimaatadaptief en natuurinclusief bouwen worden de volgende gegevens en bescheiden ingediend:

  • a.

    een ingevuld format van het Puntensysteem Klimaatadaptief en Natuurinclusief Bouwen Gemeente Arnhem

  • b.

    voor zover noodzakelijk voor de beoordeling van de klimaatadaptieve en natuurinclusieve maatregelen, tekeningen van:

    • 1.

      alle gevels van het bouwwerk; 

    • 2.

      het dakaanzicht. 

Paragraaf 10.2.6 Overige activiteiten
Subparagraaf 10.2.6.1 Algemeen 

Artikel 10.47 Toepassingsbereik

Deze paragraaf is van toepassing op het verrichten van overige activiteiten binnen transformatiegebieden. 

Subparagraaf 10.2.6.2 Het verrichten van activiteiten in een tuin

Artikel 10.48 Toepassingsbereik

Deze subparagraaf is van toepassing op het verrichten van activiteiten op de locatie Tuin transformatiegebied zijnde het aanbrengen van oppervlakteverhardingen. 

Artikel 10.49 Algemene regels: Activiteiten verrichten in een tuin

Op de locatie Tuin transformatiegebied is het aanbrengen van ondergeschikte oppervlakte aan noodzakelijke en functionele verharding toegestaan. 

Artikel 10.50 Activiteiten verrichten in een tuin - vergunningplicht 

Het is verboden om zonder vergunning activiteiten in een Tuin transformatiegebied te verrichten zijnde het aanbrengen van oppervlakteverhardingen in afwijking van het bepaalde in 10.49

Artikel 10.51 Activiteiten verrichten in een tuin - beoordelingsregels 

Een omgevingsvergunning als bedoeld onder 10.50 kan worden verleend indien geen onevenredige afbreuk wordt gedaan aan de cultuurhistorische waarde of de waardevolle groenelementen binnen de tuin.

Afdeling 10.3 Transformatiegebied Bartok Park Zuid

Paragraaf 10.3.1 Gebruiksactiviteiten Bartok Park Zuid
Artikel 10.52 Toepassingsbereik

Deze paragraaf is van toepassing op het verrichten van gebruiksactiviteiten op de locatie Transformatiegebied Bartok Park Zuid .

Artikel 10.53 Transformatiegebied Bartok Park Zuid – algemene regels over gebruiksactiviteiten 

Met het oog op een evenwichtige toedeling van functies aan locaties worden alleen de volgende activiteiten verricht:

  • a.

    wonen, bedoeld in 10.2.2.6;

  • b.

    verblijfsgebied, bedoeld in 10.2.2.5;

  • c.

    exploiteren van een openbare fietsenstalling, bedoeld in 10.54;

  • d.

    het gebruiken van een nutsvoorziening, bedoeld in 10.2.2.3

Artikel 10.54 Gebruiksactiviteiten openbare fietsenstalling - toegestaan 

Het gebruik van een openbare fietstelstalling is toegestaan voor zover dat plaatsvindt ter plaatse van de locatie activiteit Openbare fietsenstalling gebruiken Bartok Park Zuid - toegestaan

Artikel 10.55 Overgangsrecht gebruik 
  • 1.

    Het gebruik van grond en bouwwerken dat bestond op het tijdstip van inwerkingtreding van afdeling 10.3 en hiermee in strijd is, mag worden voortgezet.

  • 2.

    Het is verboden het met het omgevingsplan strijdige gebruik, bedoeld in het lid  te veranderen of te laten veranderen in een ander met dat plan strijdig gebruik, tenzij door deze verandering de afwijking naar aard en omvang wordt verkleind.

  • 3.

    Indien het gebruik, bedoeld in het eerste lid na de inwerkingtreding van het plan voor een periode langer dan een jaar wordt onderbroken, is het verboden dit gebruik daarna te hervatten of te laten hervatten.

  • 4.

    Het bepaalde in het eerste lid is niet van toepassing op het gebruik dat reeds in strijd was met het voorheen geldende bestemmingsplan, daaronder begrepen de overgangsbepalingen van dat plan.

Paragraaf 10.3.2 Bouwactiviteiten Bartok Park Zuid
Artikel 10.56 Toepassingsbereik bouwactiviteiten Transformatiegebied Bartok Park Zuid

Deze paragraaf is van toepassing op het bouwen, verbouwen en in stand houden van gebouwen op de locatie Transformatiegebied Bartok Park Zuid 

Artikel 10.57 Hoofdgebouw bouwen – vergunningplicht 

Het is verboden om zonder omgevingsvergunning een hoofdgebouw te bouwen of te verbouwen. 

Artikel 10.58 Hoofdgebouw bouwen – beoordelingsregels 

De omgevingsvergunning als bedoeld in artikel 10.72 wordt alleen verleend indien het aangevraagde bouwwerk: 

  • a.

    past binnen de functie/activiteit, bedoeld in artikel 10.31;

  • b.

    voldoet aan de bepalingen ten aanzien van het bouwvlak, bedoeld in artikel 10.32;

  • c.

    voldoet aan de bepalingen ten aanzien van de maatvoeringen, bedoeld in artikel 10.33;

  • d.

    voorziet in voldoende klimaatadaptieve en natuurinclusieve maatregelen zoals bedoeld in artikel 10.62

  • e.

    voldoet aan het bepaalde in 22.29. 

Artikel 10.59 Bijbehorend bouwwerk bouwen – vergunningplicht 
  • 1.

    Het is verboden om zonder omgevingsvergunning een bijbehorend bouwwerk te bouwen of te verbouwen. 

  • 2.

    Het bepaalde in het eerste lid geldt niet als er sprake is van vergunningsvrij bouwen conform 10.34.

Artikel 10.60 Bijbehorend bouwen – beoordelingsregels 
  • 1.

    De omgevingsvergunning als bedoeld in artikel 10.59 wordt alleen verleend indien het aangevraagde bouwwerk:

    • a.

      past binnen de functie/activiteit, bedoeld in artikel 10.31;

    • b.

      wordt gebouwd binnen de locatie Bouwvlak tranformatiegebieden of activiteit Bijbehorende bouwwerken bouwen Bartok Park Zuid - vergunningplicht;

    • c.

      voldoet aan de bepalingen ten aanzien van de maatvoeringen, bedoeld in artikel 10.33;

    • d.

      binnen een bouwvlak wordt gebouwd waar de figuur ‘Historische rooilijn 1940'’ geldt zoals bedoeld in het kaartje in het tweede lid, dat de naar het openbaar gebied gekeerde gevel van een gebouw op de gevellijn gebouwd moet worden;

    • e.

      voorziet in voldoende klimaatadaptieve en natuurinclusieve maatregelen zoals bedoeld in artikel 10.62

  • 2.
    afbeelding binnen de regeling
    Historische rooilijnen binnen het gemeentelijk beschermd stadsgezicht Binnenstad en Singels NL.IMRO.0202.886-0301
Artikel 10.61 Bouwen – bijzondere aanvraagvereisten 

Bij de aanvraag om een omgevingsvergunning voor het bouwen, verbouwen of in stand houden van een gebouw worden de volgende gegevens en bescheiden ingediend:

  • a.

    de gegevens en bescheiden bedoeld in 22.35;

  • b.

    een ingevuld format van het Puntensysteem Klimaatadaptief en Natuurinclusief Bouwen Gemeente Arnhem

  • c.

    voor zover noodzakelijk voor de beoordeling van de klimaatadaptieve en natuurinclusieve maatregelen, tekeningen van:

    • 1.

      alle gevels van het bouwwerk; 

    • 2.

      het dakaanzicht. 

Artikel 10.62 Beoordelingsregel klimaatadaptief en natuurinclusief bouwen, groene inrichting en voldoende waterberging 
  • 1.

    Bij de aanvraag om een omgevingsvergunning moet worden aangetoond dat voldoende klimaatadaptieve en natuurinclusieve maatregelen worden getroffen. 

  • 2.

    Aan het bepaalde onder a wordt geacht te zijn voldaan indien door de genomen maatregelen voldoende punten worden gehaald zoals opgenomen in de beleidsregels 'Beleidsregels Klimaatadaptief en Natuurinclusief Bouwen' en het bijbehorende 'Puntensysteem Klimaatadaptief en Natuurinclusief bouwen'. 

  • 3.

    Burgemeester en wethouders passen deze regels toe met inachtneming van de door hen vastgestelde beleidsregels met betrekking tot het natuurinclusief en klimaatadaptief bouwen, zoals die gelden op het tijdstip van indiening van de aanvraag om een omgevingsvergunning.   

  • 4.

    Indien deze beleidsregels gedurende de planperiode worden gewijzigd, wordt rekening gehouden met de wijziging. 

  • 5.

    In aanvulling op het bepaalde in het tweede lid geldt dat voor het bouwen van het hoofdgebouw; 

    • a.

      Een waterberging op eigen terrein wordt voorzien;

    • b.

      indien het dakoppervlak in het projectgebied voorzien wordt van groene daken, zoals weergegeven in navolgende afbeelding 8.1, met een afwijkingsmogelijkheid van 10%;

    • c.

      de aanleg en instandhouding van minimaal twee bomen in de 2e grootte binnen één jaar na ingebruikname van de bouwwerken in het plangebied.

    afbeelding binnen de regeling
Artikel 10.63 Algemene regels: bouwen in verblijfsgebied transformatiegebied 

Binnen het transformatiegebied Bartok Park Zuid is het toegestaan op de locatie Verblijfsgebied transformatiegebied te bouwen indien het bouwwerk: 

  • a.

    past binnen de functie/activiteit, bedoeld in artikel 10.31;

  • b.

    de bouwhoogte maximaal 5 meter hoog is. 

Artikel 10.64 Overgangsrecht bouwwerken
  • 1.

    Een bouwwerk dat op het tijdstip van inwerkingtreding van afdeling 10.3 aanwezig of in uitvoering is, dan wel gebouwd kan worden krachtens een omgevingsvergunning voor het bouwen, en afwijkt van het plan, mag, mits deze afwijking naar aard en omvang niet wordt vergroot, 

    • a.

      gedeeltelijk worden vernieuwd of veranderd;

    • b.

      na het teniet gaan ten gevolge van een calamiteit geheel worden vernieuwd of veranderd, mits de aanvraag van de omgevingsvergunning voor het bouwen wordt gedaan binnen twee jaar na de dag waarop het bouwwerk is teniet gegaan.

  • 2.

    Het bevoegd gezag kan eenmalig in afwijking van het eerste lid de inhoud van een bouwwerk als bedoeld in het eerste lid vergroten met maximaal 10%.

  • 3.

    Het bepaalde in het eerste lid is niet van toepassing op bouwwerken die weliswaar bestaan op het tijdstip van inwerkingtreding van afdeling 10.3, maar zijn gebouwd zonder vergunning en in strijd met het daarvoor geldende plan, daaronder begrepen de overgangsbepaling van dat plan.

Afdeling 10.4 Transformatiegebied Bartok Park Noord 

Paragraaf 10.4.1 Gebruiksactiviteiten Bartok Park Noord
Subparagraaf 10.4.1.1 Algemeen

Artikel 10.65 Toepassingsbereik

Deze paragraaf is van toepassing op het verrichten van gebruiksactiviteiten op de locatie Transformatiegebied Bartok Park Noord.

Artikel 10.66 Transformatiegebied Bartok Park Noord – algemene regels over gebruiksactiviteiten 

Met het oog op een evenwichtige toedeling van functies aan locaties worden alleen de volgende activiteiten verricht: 

Subparagraaf 10.4.1.2 Gebruiksactiviteit wonen

Artikel 10.67 Locaties wonen – vergunningplicht

Het is verboden om zonder omgevingsvergunning op locatie activiteit Wonen Bartok Park Noord - vergunningplicht een gebouw te gebruiken voor wonen.

Artikel 10.68 Wonen – beoordelingsregels 

 

De omgevingsvergunning bedoeld in 10.67 wordt alleen verleend als geluidsonderzoek aantoont dat het geluid dat afkomstig is van milieubelastende activiteiten op het moment van de aanvraag om omgevingsvergunning, ter plaatse van de gevel van de woning niet meer bedraagt dan 50 dB(A) etmaalwaarde, resulterend in een langtijdgemiddeld beoordelingsniveau van: 

  • a.

    50 dB(A) in de dagperiode van 7.00 uur - 19.00 uur; 

  • b.

    45 dB(A) in de avondperiode van 19.00 uur - 23.00 uur; en 

  • c.

    40 dB(A) in de nachtperiode van 23.00 uur - 7.00 uur. 

Artikel 10.69 Wonen – aanvraagvereisten

Bij de aanvraag om een omgevingsvergunning wonen bedoeld in 10.67 worden de volgende gegevens en bescheiden ingediend:

  • a.

    een akoestisch onderzoek. 

Artikel 10.70 Overgangsrecht gebruik

  • 1.

    Het gebruik van grond en bouwwerken dat bestond op het tijdstip van inwerkingtreding van afdeling 10.4 en hiermee in strijd is, mag worden voortgezet. 

  • 2.

    Het is verboden het met het omgevingsplan strijdige gebruik, bedoeld in het lid te veranderen of te laten veranderen in een ander met dat plan strijdig gebruik, tenzij door deze verandering de afwijking naar aard en omvang wordt verkleind. 

  • 3.

    Indien het gebruik, bedoeld in het eerste lid na de inwerkingtreding van het plan voor een periode langer dan een jaar wordt onderbroken, is het verboden dit gebruik daarna te hervatten of te laten hervatten. 

  • 4.

    Het bepaalde in het eerste lid is niet van toepassing op het gebruik dat reeds in strijd was met het voorheen geldende bestemmingsplan, daaronder begrepen de overgangsbepalingen van dat plan. 

Paragraaf 10.4.2 Bouwactiviteiten Bartok Park Noord 
Artikel 10.71 Toepassingsbereik bouwactiviteiten Transformatiegebied Bartok Park Noord

Deze paragraaf is van toepassing op het bouwen, verbouwen en in stand houden van gebouwen op de locatie Transformatiegebied Bartok Park Noord

Artikel 10.72 Hoofdgebouw bouwen – vergunningplicht 

Het is verboden om zonder omgevingsvergunning een hoofdgebouw te bouwen of te verbouwen. 

Artikel 10.73 Hoofdgebouw bouwen – beoordelingsregels 

De omgevingsvergunning als bedoeld in artikel 10.72 wordt alleen verleend indien het aangevraagde bouwwerk: 

  • a.

    past binnen de functie/activiteit, bedoeld in artikel 10.31;

  • b.

    voldoet aan de bepalingen ten aanzien van het bouwvlak, bedoeld in artikel 10.32;

  • c.

    voldoet aan de bepalingen ten aanzien van de maatvoeringen, bedoeld in artikel 10.33;

  • d.

    voorziet in voldoende klimaatadaptieve en natuurinclusieve maatregelen zoals bedoeld in artikel 10.62

  • e.

    voldoet aan het bepaalde in 22.29. 

Artikel 10.74 Bijbehorend bouwwerk bouwen – vergunningplicht 
  • 1.

    Het is verboden om zonder omgevingsvergunning een bijbehorend bouwwerk te bouwen of te verbouwen. 

  • 2.

    Het bepaalde in het eerste lid geldt niet als er sprake is van vergunningsvrij bouwen conform 10.34.

Artikel 10.75 Bijbehorend bouwen – beoordelingsregels 
  • 1.

    De omgevingsvergunning als bedoeld in artikel 10.59 wordt alleen verleend indien het aangevraagde bouwwerk:

  • 2.

    Voor bouwen geldt dat: 

    • a.

      uitbreiding van de hoofdbebouwing, tot een maximumbouwhoogte gelijk aan de hoogte van de begane-grondbouwlaag van de hoofdbebouwing, vermeerderd met maximaal 40 cm ten behoeve van isolatie of afschot; 

    • b.

      andere bijbehorende bouwwerken, met een maximumbouwhoogte gelijk aan de goothoogte van het hoofdgebouw, waarbij de goothoogte van vrijstaande bouwwerken niet meer mag bedragen dan de hoogte van de begane-grondbouwlaag van de hoofdbebouwing; 

    • c.

      bouwwerken geen gebouwen zijnde worden gebouwd, passend binnen de activiteit, met een maximumbouwhoogte van 3 m. 

  • 3.

    Waarbij geldt dat de oppervlakte van het totaal van deze bebouwing per bouwperceel de in onderstaand schema opgenomen maten niet overschrijdt. 

    Tabel 10 

    oppervlakte gebied met de locatie ' activiteit Bijbehorende bouwwerken Bartok Park Noord - vergunningplicht ' per bouwperceel 

    maximale oppervlakte bouwwerken 

    < 90 m2 

    50% van de oppervlakte van het gebied met de gebiedsaanduiding 'bijbehorende bouwwerken' per bouwperceel met een minimum van 20 m2 

    90-150 m2 

    45 m2 

    150-300 m2 

    55 m2 

    300-500 m2 

    65 m2 

    500-1000 m2 

    75 m2 

    Tabel oppervlakte bijbehorende bouwwerken 
Artikel 10.76 Beoordelingsregel klimaatadaptief en natuurinclusief bouwen, groene inrichting en voldoende waterberging 
  • 1.

    Bij de aanvraag om een omgevingsvergunning moet worden aangetoond dat voldoende klimaatadaptieve en natuurinclusieve maatregelen worden getroffen.

  • 2.

    Aan het bepaalde onder a wordt geacht te zijn voldaan indien door de genomen maatregelen voldoende punten worden gehaald zoals opgenomen in de beleidsregels 'Beleidsregels Klimaatadaptief en Natuurinclusief Bouwen' en het bijbehorende 'Puntensysteem Klimaatadaptief en Natuurinclusief bouwen'.

  • 3.

    Burgemeester en wethouders passen deze regels toe met inachtneming van de door hen vastgestelde beleidsregels met betrekking tot het natuurinclusief en klimaatadaptief bouwen, zoals die gelden op het tijdstip van indiening van de aanvraag om een omgevingsvergunning.

  • 4.

    Indien deze beleidsregels gedurende de planperiode worden gewijzigd, wordt rekening gehouden met de wijziging. 

  • 5.

    In aanvulling op het bepaalde in het tweede lid geldt dat voor het bouwen van het hoofdgebouw; 

    • a.

      Een waterberging op eigen terrein wordt voorzien;

    • b.

      indien het dakoppervlak in het projectgebied voorzien wordt van groene daken, zoals weergegeven in navolgende afbeelding 8.1, met een afwijkingsmogelijkheid van 10%; 

    afbeelding binnen de regeling
Artikel 10.77 Overgangsrecht bouwwerken 
  • 1.

    Een bouwwerk dat op het tijdstip van inwerkingtreding van afdeling 10.4 aanwezig of in uitvoering is, dan wel gebouwd kan worden krachtens een omgevingsvergunning voor het bouwen, en afwijkt van het plan, mag, mits deze afwijking naar aard en omvang niet wordt vergroot, 

    • a.

      gedeeltelijk worden vernieuwd of veranderd; 

    • b.

      na het teniet gaan ten gevolge van een calamiteit geheel worden vernieuwd of veranderd, mits de aanvraag van de omgevingsvergunning voor het bouwen wordt gedaan binnen twee jaar na de dag waarop het bouwwerk is teniet gegaan. 

  • 2.

    Het bevoegd gezag kan eenmalig in afwijking van het eerste lid de inhoud van een bouwwerk als bedoeld in het eerste lid vergroten met maximaal 10%. 

  • 3.

    Het bepaalde in het eerste lid is niet van toepassing op bouwwerken die weliswaar bestaan op het tijdstip van inwerkingtreding van afdeling 10.4, maar zijn gebouwd zonder vergunning en in strijd met het daarvoor geldende plan, daaronder begrepen de overgangsbepaling van dat plan. 

B

Bijlage I wordt op de aangegeven wijze gewijzigd:

Bijlage I Overzicht Informatieobjecten

Archeologie - Bodemverstoring opgehoogd

/join/id/regdata/gm0202/2024/16589af5b7ad4b9eb94f14bbb0224b78/nld@2025‑04‑17;10232600

Archeologie - Bodemverstoring vergraven/afgegraven

/join/id/regdata/gm0202/2024/81ec5d31bc7f425a937051815c84f4af/nld@2025‑04‑17;10232600

Archeologie - Waardevol gebied (gemeentelijk archeologische monument)

/join/id/regdata/gm0202/2024/1cc5cff00d954326a5688dc2ae7b963c/nld@2025‑04‑17;10232600

activiteit Bijbehorende bouwwerken Bartok Park Noord - vergunningplicht

/join/id/regdata/gm0202/2025/ce3daadca61e48a5aab56f667118db08/nld@2025‑09‑10;11423271

activiteit Bijbehorende bouwwerken bouwen Bartok Park Zuid - vergunningplicht

/join/id/regdata/gm0202/2025/ca87f3764339432a9e07e9b812b0627b/nld@2025‑09‑10;11423271

activiteit Cultuur transformatiegebied - toegestaan

/join/id/regdata/gm0202/2025/bf82c71e244c4a30af049e3e635d4d1c/nld@2025‑09‑10;11423271

activiteit Garagebox gebruiken transformatiegebied - toegestaan

/join/id/regdata/gm0202/2025/05c7cfc4fc5245898313798d3454d04e/nld@2025‑09‑10;11423271

activiteit Nutsvoorziening transformatiegebied - toegestaan

/join/id/regdata/gm0202/2025/e01ab69296da434e8585c1883b9d4d60/nld@2025‑09‑10;11423271

activiteit Openbare fietsenstalling gebruiken Bartok Park Zuid - toegestaan

/join/id/regdata/gm0202/2025/1692f3ec4d3f47f5b23a7c1d04ac741f/nld@2025‑09‑10;11423271

activiteit Tuin transformatiegebied - toegestaan

/join/id/regdata/gm0202/2025/73d84327ef8046db9e8195f12480dffe/nld@2025‑09‑10;11423271

activiteit Verkamering transformatiegebied - vergunningplicht

/join/id/regdata/gm0202/2025/88cc1e2b63494824b6793883c21f9fc6/nld@2025‑09‑10;11423271

activiteit Wonen Bartok Park Noord - vergunningplicht

/join/id/regdata/gm0202/2025/21250e7c012d4061b949e70a0f03dddf/nld@2025‑09‑10;11423271

activiteit Wonen transformatiegebied - toegestaan

/join/id/regdata/gm0202/2025/d132b9fc5206414eab14e9f2871e16d7/nld@2025‑09‑10;11423271

activiteit Woning splitsen kernwinkelgebied transformatiegebied - vergunningplicht

/join/id/regdata/gm0202/2025/7c492a60e5e14a01beecff7d97b5210a/nld@2025‑09‑10;11423271

Archeologie - Hoge verwachting

/join/id/regdata/gm0202/2024/9bec80fb59ab4fc58c81f7e84499b66b/nld@2025‑04‑17;10232600

Archeologie - Lage verwachting

/join/id/regdata/gm0202/2024/a2982723d6fc4964b5ba7a85fe79c50b/nld@2025‑04‑17;10232600

Archeologie - Middelhoge verwachting

/join/id/regdata/gm0202/2024/f0c45b05c4154ed9806b50856dc6f549/nld@2025‑04‑17;10232600

waarde Archeologie - bodemverstoring opgehoogd

/join/id/regdata/gm0202/2024/6efcf5009f904b82bf82491f74a2958b/nld@2025‑04‑17;10232600

waarde Archeologie - bodemverstoring vergraven/afgegraven

/join/id/regdata/gm0202/2024/4e514938bcaa473daaff86a6e30eb826/nld@2025‑04‑17;10232600

Archeologie - Overige gebieden - opgehoogd terrein

/join/id/regdata/gm0202/2024/16589af5b7ad4b9eb94f14bbb0224b78/nld@2025‑09‑10;11423271

Archeologie - Overige gebieden - vergraven/afgegraven

/join/id/regdata/gm0202/2024/81ec5d31bc7f425a937051815c84f4af/nld@2025‑09‑10;11423271

Archeologie - Waardevol gebied

/join/id/regdata/gm0202/2024/9a2e41f4cca34b0db24b547573e1b4a3/nld@2025‑04‑17;10232600

Archeologie - Waardevol gebied (begraafplaats)

/join/id/regdata/gm0202/2024/378528ba65524d638a8656188d3e3ea0/nld@2025‑04‑17;10232600

Archeologie - Waardevol gebied (gemeentelijk beschermd)

/join/id/regdata/gm0202/2024/1cc5cff00d954326a5688dc2ae7b963c/nld@2025‑09‑10;11423271

Archeologie - Waardevol gebied (rijksbeschermd, UNESCO)

/join/id/regdata/gm0202/2024/1fc6d89dbceb4bc2b438172b77345373/nld@2025‑04‑17;10232600

Archeologie - Waardevol gebied (rijksbeschermd)

/join/id/regdata/gm0202/2024/9c8e77c30c3c447ea746e84ac4a684d7/nld@2025‑04‑17;10232600

waarde Archeologie - waardevol gebied (gemeentelijk archeologische monument)

/join/id/regdata/gm0202/2024/98e88b096f2d4beda22e5845ca4e8c74/nld@2025‑04‑17;10232600

Bouwvlak tranformatiegebieden

/join/id/regdata/gm0202/2025/3337889dd57642079b2e158f5b59d7e1/nld@2025‑09‑10;11423271

functie Verblijfsgebied tranformatiegebied

/join/id/regdata/gm0202/2025/3f90cef97fcf41babe6606e7472af535/nld@2025‑09‑10;11423271

Gemeentelijk beschermd stadsgezicht Binnenstad en Singels transformatiegebied

/join/id/regdata/gm0202/2025/299f4863a5444216b8098cba4e27a901/nld@2025‑09‑10;11423271

Geomorfologie - Leemlagen > 1,5 m

/join/id/regdata/gm0202/2024/dddfdcf678f344ea93197f92994cdb3e/nld@2025‑04‑17;10232600

Geomorfologie - Leemlagen > 3,0 m

/join/id/regdata/gm0202/2024/3ebd3bf18e4243a9adca462d4014572a/nld@2025‑04‑17;10232600

Geomorfologie - Leemlagen > 4,0 m

/join/id/regdata/gm0202/2024/ee78d41327d14286af1b2d0744f12072/nld@2025‑04‑17;10232600

Maximum bouwhoogte transformatiegebieden

/join/id/regdata/gm0202/2025/496c844503e546d4bcfe4e3dd6d3563e/nld@2025‑09‑10;11423271

Maximum goothoogte transformatiegebieden

/join/id/regdata/gm0202/2025/86b675eb5e104c3ba9c635d7b2195d8f/nld@2025‑09‑10;11423271

Nutsvoorziening transformatiegebied

/join/id/regdata/gm0202/2025/99fb510395984f4a8748b10ac188b868/nld@2025‑09‑10;11423271

omgevingsnorm Maximum bouwhoogte transformatiegebied

/join/id/regdata/gm0202/2025/b960ac5e0c0e4c8680fe8539eb8c960a/nld@2025‑09‑10;11423271

omgevingsnorm Maximum goothoogte transformatiegebied

/join/id/regdata/gm0202/2025/5ed3e5ccdcab4b78b4d13f9ea25fa4f3/nld@2025‑09‑10;11423271

Transformatiegebied Bartok Park Noord

/join/id/regdata/gm0202/2025/d1d51568ca9d44a48c70d240883a0d1a/nld@2025‑09‑10;11423271

Transformatiegebied Bartok Park Zuid 

/join/id/regdata/gm0202/2025/498d8a49455049deb261b9d7db6c94f3/nld@2025‑09‑10;11423271

Transformatiegebieden Arnhem

/join/id/regdata/gm0202/2025/21ef47b335914cfcbe469299d6187e2b/nld@2025‑09‑10;11423271

Tuin transformatiegebied

/join/id/regdata/gm0202/2025/05d9d7064b5c4ae49f879c35757a5142/nld@2025‑09‑10;11423271

Verblijfsgebied transformatiegebied

/join/id/regdata/gm0202/2025/27251246b7654475a3938cfcabc58ef2/nld@2025‑09‑10;11423271

waarde Archeologie - hoge verwachting

/join/id/regdata/gm0202/2024/9e4f91a463174d9a9d30c359cc0b7a2c/nld@2025‑04‑17;10232600

waarde Archeologie - lage verwachting

/join/id/regdata/gm0202/2024/9fcba801164d40e88ac71d2c4f741f0e/nld@2025‑04‑17;10232600

waarde Archeologie - middelhoge verwachting

/join/id/regdata/gm0202/2024/ec0554d2b8d7401ab3ad6afcc56a441e/nld@2025‑04‑17;10232600

waarde Archeologie - overige gebieden - opgehoogd terrein

/join/id/regdata/gm0202/2024/6efcf5009f904b82bf82491f74a2958b/nld@2025‑09‑10;11423271

waarde Archeologie - overige gebieden - vergraven/afgegraven

/join/id/regdata/gm0202/2024/4e514938bcaa473daaff86a6e30eb826/nld@2025‑09‑10;11423271

waarde Archeologie - waardevol gebied

/join/id/regdata/gm0202/2024/ec77b177f9bf4d5bb7439e93f32a2d9b/nld@2025‑04‑17;10232600

waarde Archeologie - waardevol gebied (begraafplaats)

/join/id/regdata/gm0202/2024/d2585260ebdb449a9dcf1e7f62a04451/nld@2025‑04‑17;10232600

waarde Archeologie - waardevol gebied (gemeentelijk beschermd)

/join/id/regdata/gm0202/2024/98e88b096f2d4beda22e5845ca4e8c74/nld@2025‑09‑10;11423271

waarde Archeologie - waardevol gebied (rijksbeschermd, UNESCO)

/join/id/regdata/gm0202/2024/f17e7682c7584376b126504d72222c18/nld@2025‑04‑17;10232600

waarde Archeologie - waardevol gebied (rijksbeschermd)

/join/id/regdata/gm0202/2024/75610a2893154054bf0edba39ec4ace0/nld@2025‑04‑17;10232600

waarde Geomorfologie - leemlagen >1,5m

/join/id/regdata/gm0202/2024/5821124b38734e38b94a30ce98123862/nld@2025‑04‑17;10232600

waarde Geomorfologie - leemlagen >3,0m

/join/id/regdata/gm0202/2024/a5fed0cb12bc4b05840ed56e4ca3d102/nld@2025‑04‑17;10232600

waarde Geomorfologie - leemlagen >4,0m

/join/id/regdata/gm0202/2024/5191ff2ef8174e66a10743abf14b774a/nld@2025‑04‑17;10232600

Wonen tranformatiegebied

/join/id/regdata/gm0202/2025/4c712b6eafc54859b552c0d9f3ad5a14/nld@2025‑09‑10;11423271

C

Bijlage III wordt op de aangegeven wijze gewijzigd:

Bijlage III Bij artikel 1.1, derde lid, van dit omgevingsplan, begripsbepalingen

Archeologisch deskundige 

Een door burgemeester en wethouders als zodanig aangewezen archeoloog die voldoet aan de door en krachtens de Erfgoedwet gestelde kwalificaties en eisen. 

Archeologisch onderzoek 

Onderzoek verricht door een dienst, bedrijf of instelling, gecertificeerd volgens de BRL 4000 en daarmee in het bezit van de voor archeologisch onderzoek noodzakelijke certificaten, werkend volgens de Kwaliteitsnorm voor de Nederlandse Archeologie. Archeologisch onderzoek resulteert in een rapportage, in het geval van gravend onderzoek volgens de uitgangspunten van een onderliggend Programma van eisen. 

Archeologische verwachting 

De aan een gebied toegekende archeologische verwachting in verband met de kans op het voorkomen van archeologische relicten in dat gebied. 

Archeologische waarde

De aan een gebied toegekende waarde in verband met de in dat gebied voorkomende archeologische relicten. 

Historische begraafplaats 

Een besloten gebied waar menselijke resten van overleden personen zijn bijgezet en die niet meer als zodanig in gebruik is. 

Specifieke archeologische verwachting

De aan een gebied toegekende archeologische verwachting in verband met de kans op het voorkomen van archeologische relicten in dat gebied, specifiek relicten uit de Tweede Wereldoorlog, prehistorische akkercomplexen, het kanaal De Grift en de Romeinse Rijksgrens of Limeszone. 

Tijdelijk deel omgevingsplan

Het tijdelijke deel van het omgevingsplan bestaat uit: 

  • ruimtelijke regels uit bestemmingplannen en het exploitatieplan; 

  • rijksregels over activiteiten (aangeduid als bruidsschat) opgenomen in hoofdstuk 22. 

Toestemmingsvrij 

Een activiteit waarbij geen melding, informatie of een vergunning nodig is. 

Archeologisch deskundige 

Een door burgemeester en wethouders als zodanig aangewezen archeoloog die voldoet aan de door en krachtens de Erfgoedwet gestelde kwalificaties en eisen. 

Archeologisch onderzoek 

Onderzoek verricht door een dienst, bedrijf of instelling, gecertificeerd volgens de BRL 4000 en daarmee in het bezit van de voor archeologisch onderzoek noodzakelijke certificaten, werkend volgens de Kwaliteitsnorm voor de Nederlandse Archeologie. Archeologisch onderzoek resulteert in een rapportage, in het geval van gravend onderzoek volgens de uitgangspunten van een onderliggend Programma van eisen. 

Archeologische verwachting 

De aan een gebied toegekende archeologische verwachting in verband met de kans op het voorkomen van archeologische relicten in dat gebied. 

Archeologische waarde

De aan een gebied toegekende waarde in verband met de in dat gebied voorkomende archeologische relicten. 

Bebouwingspercentage

Het in procenten uitgedrukte deel van een werkingsgebied dat maximaal mag worden bebouwd.

Bed and breakfast

Overnachtingsaccomodatie gericht op het bieden van de mogelijkheid tot een kortdurend verblijf met het serveren van een ontbijt in een woning, gedreven door de bewoner van die woning.

Bedrijf

Een onderneming of gedeelte van een onderneming, die een organisatorisch zelfstandige eenheid vormt en is gericht op de productie of de afzet van goederen of de verlening van diensten, hieronder begrepen ondernemingen of gedeelten van ondernemingen, die door of vanwege de overheid worden geleid.

Bedrijfsactiviteit

Een activiteit gericht op

 

  • a.

    het produceren, bewerken, herstellen, installeren of inzamelen van goederen;

  • b.

    verhuur, opslag en distributie van goederen;

  • c.

    bouwnijverheid, hoveniersbedrijven of daarmee vergelijkbare bedrijven;

  • d.

    onderzoek en ingenieursbedrijven; 

  • e.

    groothandel.

Beleidsregels Parkeren van de gemeente Arnhem

De 'Beleidsregels Parkeren Arnhem 2022', dan wel zoals deze regels komen te luiden na wijziging van deze regels.

Beroep aan huis

Een (para)medisch, juridisch, administratief, therapeutisch, verzorgend, ontwerptechnisch, kunstzinnig of daarmee gelijk te stellen beroep of bedrijf dat in een woning, inclusief bijbehorende bouwwerken, wordt uitgeoefend.

Bestaand(e)

 

  • a.

    bij bouwwerken: legale bouwwerken die aanwezig of in uitvoering zijn op het tijdstip van de ter visie legging van het ontwerp van hoofdstuk [22h] van dit omgevingsplan en bouwwerken die mogen worden gebouwd krachtens een vergunning;

  • b.

    bij gebruik: legaal gebruik van grond en opstallen zoals aanwezig tijdens de inwerkingtreding van het hoofdstuk [22h] van dit omgevingsplan dat na de inwerkingtreding van het plan niet langer onderbroken is dan een jaar.

Bijgebouw

Een zelfstandig bouwwerk dat niet in directe verbinding staat met het hoofdgebouw. Het bijgebouw wordt via een aparte toegangsdeur bereikt en kan tegen een hoofdgebouw worden aangebouwd. Voorbeelden van een bijgebouw zijn een garage of een schuur.

Bijzondere woonvorm

Een woonvorm waar bewoners nagenoeg zelfstandig wonen met (voorzieningen voor) verzorging en begeleiding (ook 24-uurs begeleiding) en daar niet verblijven met het doel om therapeutisch behandeld te worden. 

Creatieve/Culturele functies

Expositieruimten, ateliers, muziek- en kunstonderwijs en naar de aard daarmee gelijk te stellen voorzieningen, met uitzondering van musea, muziektheaters, bioscopen en naar aard vergelijkbare voorzieningen. 

Cultuurhistorische waarde

De kenmerken van het gebruik dat de mens in de loop van de geschiedenis van grond en gebouwen heeft gemaakt, zoals dat onder meer tot uitdrukking komt in de beplanting, de stedenbouwkundig structuur en/of de architectuur.

Detailhandel

Het bedrijfsmatig te koop aanbieden, waaronder begrepen het uitstallen ten verkoop, het verkopen of leveren van goederen aan diegenen die deze goederen kopen voor gebruik, verbruik of aanwending anders dan in de uitoefening van: een beroeps- of bedrijfsactiviteit. Onder detailhandel wordt niet begrepen:

  • dienstverlening door een horecabedrijf, 

  • internetverkoop en bezorgservices, 

  • tankstations,

  • bezorgdiensten zoals dark stores.

Duurzaamheidsvoorzieningen

Maatregelen genomen in het kader van natuurinclusief bouwen, zonnepanelen, warmtepompen en vergelijkbare voorzieningen in het kader van duurzaamheid. 

Galerij

Een overdekte gang langs de buitenkant van een hoofdgebouw. 

Gebruiksoppervlakte

De vloeroppervlakte binnen de bouwmuren bepaald volgens NEN 2580 met dien verstande dat daarbij aangebouwde bergingen, garages en andere niet voor bewoning geschikte ruimtes niet worden meegeteld.

Historische begraafplaats 

Een besloten gebied waar menselijke resten van overleden personen zijn bijgezet en die niet meer als zodanig in gebruik is. 

Horeca - 1

Horecabedrijf gericht op het verstrekken van etenswaren, niet zijnde maaltijden, en het schenken van (zwak-alcoholische) dranken, met openingstijden overwegend tijdens de dagperiode, zoals lunchrooms, broodjeszaken, koffiezaken, juicebars en ijssalons. 

Horeca - 2

Horecabedrijf gericht op het overwegend via counterverkoop verstrekken van etenswaren, zoals fastfood, niet zijnde maaltijden, en (zwak-alcoholische) dranken met openingstijden tijden dag- en avondperiode, zoals cafetaria's, snackbars, grill-rooms, shoarmaroom, pizzeria, fastfood restaurants en afhaalcentra. 

Horeca - 3

Horecabedrijf gericht op het serveren van maaltijden en dranken in een restaurant-setting met openingstijden tijdens de namiddag en vroege avond, zoals restaurants, bistro, fastcasual concepten, grand-cafés en café-restaurants. 

Horeca - 4

Horecabedrijf gericht op het verstrekken van (niet)-alcoholische drank als hoofdfunctie met daaraan ondersteunend het verstrekken van etenswaren met openingstijden zowel tijdens de dag- als avond- en nachtperiode, zoals cafés, cocktail-bars, wijnbars en shisha-lounges. 

Horeca - 5

Horecabedrijf gericht op het verstrekken van dranken en eventueel etenswaren in combinatie met (live) entertainment of harde/elektronisch versterkte muziek, met openingstijden tijdens de avond- en nachtperiode, zoals discotheken, (nacht)clubs en andere uitgaansconcepten. 

Horeca - 6

Horecabedrijf gericht op het bieden van nachtverblijf met openingstijden in de regel dagrond, al dan niet met een nachtportier of een onbemande receptie, zoals hotels, bed and breakfast met meer dan 4 slaapplaatsen, hostels en pensions. 

Huishouden

Eén of meer personen die op hetzelfde adres wonen en een economisch-consumptieve eenheid vormen, met de intentie om zelfstandig, bestendig, voor onbepaalde tijd, in gezinsverband of in een met een gezinsverband vergelijkbaar samenlevingsverband te wonen. 

Internetverkoop

Detailhandel zonder showroom, waarvan de handel voornamelijk via internet en andere media verloopt. 

Kamergewijze bewoning 

Een gebouw waarin zich 3 of meer onzelfstandige wooneenheden bevinden. 

Nutsvoorziening

Voorziening ten behoeve van het openbare nut, zoals zoals transformatorhuisjes, gasreduceerstations, schakelhuisjes, duikers, bemalingsinstallaties, gemaalgebouwtjes, telefooncellen, voorzieningen ten behoeve van ondergrondse afvalinzameling en apparatuur voor telecommunicatie. 

Onderbouw

Een gedeelte van een gebouw, dat wordt afgedekt door een vloer, waarvan de bovenkant minder dan 1,20 meter boven peil is gelegen. 

Ondergeschikte horeca 

Een horecavoorziening welke dient ter ondersteuning van de hoofdactiviteit en daar onderdeel van uitmaakt, waarbij de horecavoorziening qua oppervlakte, aard en ruimtelijke uitstraling ondergeschikt is aan de hoofdactiviteit, de horecavoorziening uitsluitend te bereiken is via de entree van de hoofdactiviteit en de openingstijden van de horecavoorziening niet afwijken van de openingstijden van de hoofdactiviteit, zoals een kantine of restaurant/café. 

Onzelfstandige wooneenheid 

Een onzelfstandig gedeelte van een gebouw bedoeld voor de huisvesting van één huishouden. Kenmerkend voor de wooneenheid is het gezamenlijk gebruik (met andere wooneenheden) van een toiletruimte, badruimte en/of een keuken. Een wooneenheid kan uit meerdere ruimten bestaan.

Pand

De kleinste bij de totstandkoming functioneel en bouwkundig- constructief zelfstandige eenheid die direct en duurzaam met de aarde is verbonden en betreedbaar en afsluitbaar is. 

Peil

 

  • a.

    voor een gebouw, waarvan de hoofdtoegang onmiddellijk aan een weg of pad grenst: de hoogte van die weg of dat pad ter plaatse van de hoofdtoegang; 

  • b.

    voor een gebouw, waarvan de hoofdtoegang niet direct aan de weg grenst: de hoogte van het afgewerkte terrein ter plaatse van de hoofdtoegang bij voltooiing van de bouw; 

  • c.

    voor een ander bouwwerk: de hoogte van het afgewerkte terrein ter plaatse bij voltooiing van de bouw. 

  • d.

    voor zover als zodanig aangegeven in de omgevingplanregels: Normaal Amsterdams Peil (N.A.P.) 

Seksinrichting

Een voor publiek toegankelijke, besloten ruimte (hieronder wordt mede begrepen een voer- of vaartuig) waarin bedrijfsmatig, of in omvang alsof zij bedrijfsmatig was, seksuele handelingen worden verricht, of vertoningen van pornografische aard plaatsvinden. 

Onder seksinrichtingen wordt in elk geval verstaan een (raam)prostitutiebedrijf, een seksclub, een privé-huis, een erotische massagesalon, een seksbioscoop, een seksautomatenhal, een sekstheater of parenclub, al dan niet in combinatie met elkaar. 

Specifieke archeologische verwachting

De aan een gebied toegekende archeologische verwachting in verband met de kans op het voorkomen van archeologische relicten in dat gebied, specifiek relicten uit de Tweede Wereldoorlog, prehistorische akkercomplexen, het kanaal De Grift en de Romeinse Rijksgrens of Limeszone. 

Tijdelijk deel omgevingsplan

Het tijdelijke deel van het omgevingsplan bestaat uit: 

  • ruimtelijke regels uit bestemmingplannen en het exploitatieplan; 

  • rijksregels over activiteiten (aangeduid als bruidsschat) opgenomen in hoofdstuk 22. 

Toestemmingsvrij 

Een activiteit waarbij geen melding, informatie of een vergunning nodig is. 

Vegetatiedak waterberging

Een dakbedekking waarop een laag is aangebracht die hoofdzakelijk bestaat uit aarde, levende planten, zoals sedum, mos of vergelijkbare vegetatie. Een vegetatiedak is minimaal 10 cm dik en heeft een minimale waterbergingscapaciteit van 40mm. 

Verkamering

Het gebruiken van een (gedeelte van een) gebouw waar wonen is toegestaan voor kamergewijze bewoning. Hieronder wordt tevens verstaan het toevoegen van onzelfstandige wooneenheden aan bestaande gevallen van kamergewijze bewoning. 

Vestigingsbeleid

Het beleid neergelegd in de nota 'van Rood naar Groen' (vastgesteld 26 juni 2000). 

Wijk

Wijk, zoals gehanteerd wordt in de indeling van het Centraal Bureau voor de Statistiek. 

Wonen

Activiteit inhoudende de bewoning van een woonruimte. Onder wonen wordt ook begrepen bijzondere woonvormen.

Woning

Een complex van ruimten, bedoeld voor de huisvesting van één huishouden, een bijzondere woonvorm of een kamerverhuurbedrijf kamergewijze bewoning.

Woningsplitsing

Het bouwkundig en/ of functioneel splitsen van één woning of (een gedeelte van een) gebouw waar wonen is toegestaan tot twee of meer zelfstandige woningen.

Woonwagen

Voor bewoning bestemd gebouw dat is geplaatst op een standplaats en in zijn geheel of in delen kan worden verplaatst.

Zelfstandige woning

Een zelfstandig (gedeelte van een) gebouw, dat dient voor de huisvesting van één huishouden. Kenmerkend voor de woning is de aanwezigheid van eigen voorzieningen, waaronder minimaal een toiletruimte, badruimte en een keuken met kooktoestel.

D

De volgende sectie wordt op de aangegeven wijze gewijzigd:

4 Ontwikkelingen en tijdreizen 

Nieuwe ruimtelijke ontwikkelingen en andere aanpassingen, onder andere vanwege de transitie naar één omgevingsplan, komen te landen in het omgevingsplan. In de loop der tijd zullen vele wijzigingen plaatsvinden. Om eerdere versies van het omgevingsplan te zien, is ‘tijdreizen’ mogelijk. Via het Omgevingsloket (regels op de kaart) kunnen oude versies geraadpleegd worden. 

Hieronder is een overzicht opgenomen met alle wijzigingen van het omgevingsplan.  

Overzicht wijzigingen van het omgevingsplan. 

Omschrijving gebied 

Wijziging 

Datum 

Link publicatie 

Bartok Park Noord 

  Transformeren Bartok Park Noord naar wonen

 

 

Bartok Park Zuid 

  Transformeren Bartok Park Zuid naar wonen

 

 

Ambtsgebied Arnhem 

Thematische wijziging archeologie en leemlagen 

Datum vaststelling plan   16‑04‑2025

xxx  https://zoek.officielebekendmakingen.nl/gmb-2025-174865.html

Ambtsgebied Arnhem 

Technisch in beheer nemen bruidsschat 

31‑01‑2024 

http://lokaleregelgeving.overheid.nl/CVDR696216 

Gemeente Arnhem 

 Deze tabel wordt aangevuld met datum vaststelling en een link publicatie op het moment dat het volgende wijzigingsbesluit is genomen. 

E

Na sectie ' Voorrangsregels leemlagen' wordt een sectie ingevoegd, luidende:

Artikel 10.61 Bouwen – bijzondere aanvraagvereisten 

Zie voor het format de gemeentelijke website van de gemeente Arnhem, https://arnhem.bestuurlijkeinformatie.nl/Reports/Item/26473435-606d-4df0-8ffc-9e1c4ce1afbd 

F

De volgende sectie wordt op de aangegeven wijze gewijzigd:

Artikel 22.28 Inperkingen artikel 22.27 vanwege cultureel erfgoed

Artikel 22.28 bevat uitzonderingen en aanvullende randvoorwaarden voor de in artikel 22.27 aangewezen gevallen. Gevolg is dat, als uitzondering op de uitzondering, de vergunningplicht uit artikel 22.26 toch blijft gelden voor die gevallen (als niet aan de aanvullende randvoorwaarden wordt voldaan). Deze systematiek is overgenomen uit de artikelen 4a en 5, vierde lid, van bijlage II bij het voormalige Besluit omgevingsrecht. De vergunningvrije mogelijkheden zijn in het kader van de bescherming van cultureel erfgoed beperkt in geval van (voor)beschermde monumenten en archeologische monumenten en rijksbeschermde stads- en dorpsgezichten. Artikel 22.28, vierde lid, is een voortzetting van artikel 5, vierde lid, van bijlage II bij het voormalige Besluit omgevingsrecht, waarbij op basis van de jurisprudentie één wijziging is aangebracht. Artikel 22.28, vierde lid, aanhef, verklaart als hoofdregel de op grond van artikel 22.27, aanhef en onder a en b, van dit omgevingsplan bestaande mogelijkheden om een bijbehorend bouwwerk of een bouwwerk voor recreatief nachtverblijf te bouwen zonder de op grond van artikel 22.26 van dit omgevingsplan vereiste omgevingsvergunning voor een bouwactiviteit buiten toepassing, als er op de locatie van het bouwwerk regels gelden als bedoeld in artikel 22.2222.22 [vervallen] van dit omgevingsplan over het verrichten van archeologisch onderzoek in het kader van een aanvraag om een omgevingsvergunning voor een bouwactiviteit. In artikel 22.28, vierde lid, onder a, is de al onder het Besluit omgevingsrecht bestaande uitzondering op deze hoofdregel opgenomen dat deze niet geldt als de oppervlakte van het bouwwerk minder dan 50 m2 bedraagt. Op basis van de jurisprudentie is aan de regeling in dit omgevingsplan een subonderdeel toegevoegd (artikel 22.28, vierde lid, onder b). Per saldo leidt dit nieuwe subonderdeel ertoe dat de vergunningvrije bouwmogelijkheden voor een bijbehorend bouwwerk en een bouwwerk voor recreatief nachtverblijf op grond van artikel 22.27, aanhef en onder a en b, van dit omgevingsplan in een groter aantal gevallen van toepassing blijven, ook al gelden er op de locatie van het bouwwerk regels als bedoeld in artikel 22.2222.22 [vervallen] van dit omgevingsplan over het verrichten van archeologisch onderzoek in het kader van een aanvraag om een omgevingsvergunning voor een bouwactiviteit. Het nieuwe subonderdeel regelt namelijk dat die vergunningvrije bouwmogelijkheden in dat geval ook van toepassing blijven als het tijdelijke deel van het omgevingsplan, bedoeld in artikel 22.1, onder a, van de Omgevingswet, een verbod bevat om zonder omgevingsvergunning grondwerkzaamheden te verrichten die nodig zijn voor het verrichten van de bouwactiviteit en daarop regels als bedoeld in artikel 22.2222.22 [vervallen] van dit omgevingsplan over het verrichten van archeologisch onderzoek in het kader van een aanvraag om een omgevingsvergunning voor het uitvoeren van een werk, geen bouwwerk zijnde, of een werkzaamheid, van toepassing zijn. Op het moment dat sprake is van een dergelijk verbod met daarop betrekking hebbende regels over het verrichten van archeologisch onderzoek, is er geen reden om de desbetreffende vergunningvrije gevallen uit artikel 22.27 te beperken. In dat geval is de bescherming van de archeologische waarden op de locatie voldoende verzekerd. De uitzondering op de vergunningplicht uit artikel 22.26 kan dan blijven gelden. De toevoeging van dit nieuwe subonderdeel is een uitvloeisel van de uitspraak van de Afdeling bestuursrechtspraak van de Raad van State met nummer ECLI:NL:RVS:2014:2066. Bij deze uitspraak heeft de Afdeling kort samengevat geoordeeld dat het bestaan van een vergunningplicht voor een bouwactiviteit een eventuele vergunningplicht voor het uitvoeren van grondwerkzaamheden die nodig zijn voor het verrichten van de bouwactiviteit onverlet laat. Om die reden is het niet langer meer nodig om de bescherming van archeologische waarden die gevolgen kunnen ondervinden van grondwerkzaamheden in het kader van een bouwactiviteit, te laten plaatsvinden via regels die betrekking hebben op die bouwactiviteit. Het zijn twee zelfstandige kaders. In de voormalige planologische regelingen die onderdeel uitmaken van het tijdelijke deel van het omgevingsplan, bedoeld in artikel 22.1, onder a, van de Omgevingswet, is dit uiteraard nog niet tot uitdrukking gebracht. Om die reden gebeurt dit nu in het nieuwe subonderdeel. Het is aan gemeenten om dit bij het vaststellen van het omgevingsplan verder te regelen en de regels die met het oog op de bescherming van archeologische waarden op een locatie worden gesteld aan het bouwen en het uitvoeren van grondwerkzaamheden in onderlinge samenhang te bezien en desgewenst aan te passen.

In aanvulling op de toelichting op artikel 2.30 van het Bbl (bij het Invoeringsbesluit Omgevingswet oorspronkelijk genummerd als artikel 2.15g) wordt hieronder ingegaan op de instructieregels en instructies die in ieder geval in acht genomen moeten worden bij het in het omgevingsplan aanpassen van de artikelen 22.26 en 22.27 van dit omgevingsplan en de in dit artikel (22.28) opgenomen uitzonderingen daarop voor cultureel erfgoed.

Bij aanpassing van het omgevingsplan moet de gemeente de instructieregels en instructies van de provincie en het Rijk in acht nemen. Bij dit onderwerp gaat het dan in ieder geval om de instructieregels uit het Bkl over het behoud van cultureel erfgoed (artikel 5.130) en werelderfgoed (artikel 5.131), de provinciale instructieregels over werelderfgoed (op grond van artikel 7.4, derde lid, van het Bkl) en de instructies ter bescherming van rijksbeschermde stads- en dorpsgezichten, bedoeld in artikel 2.34, vierde lid, van de Omgevingswet (in samenhang met artikel 4.35 van de Invoeringswet Omgevingswet).

Voor omgevingsplanactiviteiten in, aan of op via het omgevingsplan (voor)beschermde monumenten of archeologische monumenten zal het daarbij vooral draaien om de vraag of de activiteit van invloed kan zijn op de monumentale waarden. De omgevingsplanactiviteit met betrekking tot een bouwwerk valt hier immers één op één samen met de omgevingsplanactiviteit met betrekking tot een (gemeentelijk of provinciaal) beschermd monument of archeologisch monument. Als een gemeente niet tot een vergunningvrijregime per locatie wil overgaan, ligt een vergelijkbaar regime als opgenomen in artikel 13.11 van het Bal, waarin de vergunningvrije gevallen voor de rijksmonumentenactiviteit zijn aangewezen, voor de hand. In de omgeving van – bij – (voor)beschermde monumenten is in ieder geval relevant de instructieregel in artikel 5.130, tweede lid, onder d, onder 1°, van het Bkl, dat de aantasting van de omgeving van deze monumenten moet worden voorkomen voor zover deze daardoor zouden worden ontsierd of beschadigd. De mogelijkheden om binnen een rijksbeschermd stads- of dorpsgezicht meer omgevingsplanactiviteiten vergunningvrij te maken, worden enerzijds specifiek begrensd door het niveau van bescherming dat ten tijde van de aanwijzing als beschermd gezicht op grond van de Monumentenwet 1988 of de instructie op grond van artikel 2.34, vierde lid, van de Omgevingswet voldoende beschermend werd geacht. Anderzijds vormt de generieke instructieregel in artikel 5.130, tweede lid, onder d, onder 2°, van het Bkl in algemene zin een ondergrens. Deze instructieregel bepaalt dat aantasting van het karakter van beschermde stads- en dorpsgezichten (ongeacht op welk overheidsniveau deze zijn beschermd) moet worden voorkomen. Hoewel in de artikelsgewijze toelichting bij artikel 5.130 van het Bkl is opgemerkt dat het tweede lid, onder d, onder 2°, zich in eerste instantie richt op stads- en dorpsgezichten (en cultuurlandschappen) die op initiatief van de gemeente zelf worden beschermd, is de bepaling uitdrukkelijk ook van toepassing op rijksbeschermde stads- en dorpsgezichten. Dit is ook nodig, omdat veel aanwijzingen als rijksbeschermd stads- of dorpsgezicht inmiddels zo’n vijftig jaar oud zijn en de meeste nog op het oude stelsel zijn geënt, waarin van rechtswege een bouwvergunningplicht gold. Daardoor zijn die als instructie aangemerkte oude aanwijzingen in de praktijk niet altijd leesbaar als een actuele en gedetailleerde instructie als bedoeld in artikel 2.34 van de Omgevingswet. De instructieregel in artikel 5.130, eerste lid, van het Bkl verplicht de gemeente in zo’n geval de karakteristieken van het beschermde gezicht aanvullend te analyseren en te betrekken bij de vraag of er ruimte is voor aanvullende vergunningvrije omgevingsplanactiviteiten. Het ligt niet voor de hand dat er op gemeentelijk niveau generiek veel meer vergunningvrij zal kunnen worden verklaard. Voornoemde instructieregel voor beschermde stads- en dorpsgezichten geldt overigens ook voor eventuele via het omgevingsplan beschermde cultuurlandschappen, iets wat met name in het buitengebied aan de orde zou kunnen zijn.

In het licht van het voorgaande wordt ook nog gewezen op het – ook rechtstreeks de gemeenten bindende – verdrag van Granada. Op basis van artikel 4 van dat verdrag moet het beschermingsregime zo ingericht worden dat het bevoegd gezag ter voorkoming van ontsiering, vernieling of afbraak van beschermd cultureel erfgoed in een passende controle en goedkeuringsprocedure in kennis wordt gesteld van alle plannen tot het slopen of wijzigen («afbraak of verandering») van een (voor)beschermd monument of aantasting van de omgeving van zo’n monument, of waardoor een beschermd gezicht of cultuurlandschap geheel dan wel gedeeltelijk wordt aangetast als gevolg van de sloop van bestaande gebouwen, de bouw van nieuwe gebouwen, of belangrijke veranderingen waardoor het karakter van het gezicht of cultuurlandschap zou worden aangetast. Artikel 14, eerste lid, van dit verdrag vraagt verder in de verschillende stadia van besluitvorming te zorgen voor passende structuren voor informatie, overleg en samenwerking tussen de centrale overheid, de regionale en lokale overheden, culturele instellingen en verenigingen en het publiek (participatie).

In de meeste gevallen zal een preventieve toets aan het omgevingsplan in de vorm van een vergunningplicht met het oog op bovenstaande overwegingen wenselijk blijven. De hoeveelheid activiteiten in, aan, op en bij beschermde monumenten en archeologische monumenten en in beschermde stads- en dorpsgezichten die in een gebied vergunningvrij zullen kunnen worden na aanpassing van het omgevingsplan zal naar verwachting dus ook niet veel afwijken van de mogelijkheden die voor de inwerkingtreding van de Omgevingswet landelijk in het voormalige Besluit omgevingsrecht waren opgenomen.

Aanvulling

Lid 4 van dit artikel is komen te vervallen. De inhoud van dit artikel is verwerkt in het omgevingsplan onder de archeologische regels. 

G

De volgende sectie wordt op de aangegeven wijze gewijzigd:

Artikel 22.303 Voorschriften over archeologische monumentenzorg

Dit artikel is een voortzetting van de regeling in artikel 2.22, tweede lid, van de voormalige Wet algemene bepalingen omgevingsrecht en artikel 5.2 van het voormalige Besluit omgevingsrecht.

[Vervallen]

Motivering

1 Inleiding

1.1 Wat is een omgevingsplan

Een omgevingsplan bestaat uit regels en gaat vergezeld van deze motivering. Iedere regel heeft een zogenaamd 'werkingsgebied'. Dit werkingsgebied geeft aan waar in de gemeente een bepaalde regel geldt. Het omgevingsplan bevat regels die te maken hebben met de fysieke leefomgeving. Het gaat dan bijvoorbeeld om regels over bouwen (waar, hoe hoog, welke materialen) of het gebruik van gronden (wonen, detailhandel, groen). Maar het kunnen ook regels zijn over monumenten, water of gezondheid, veiligheid et cetera. Het omgevingsplan richt zich op het goed functioneren, beheren en beschermen van onze stad en ons buitengebied. 

Juridisch-inhoudelijk is dit plan een wijziging van het omgevingsplan. Dat betekent dat het plan voldoet aan de eisen die de Omgevingswet stelt. 

1.2 Waarom een wijziging van het omgevingsplan?

In 2007 is de gehele locatie van het Bartok Park door de gemeente verkocht aan projectontwikkelaar Synchroon. Door diverse omstandigheden is een ontwikkeld plan voor de locatie door de jaren heen nooit gerealiseerd. In 2019 heeft Synchroon in overleg met de gemeente een nieuw plan ontwikkeld, waarbij de winkels in de plint zijn vervangen door een openbare fietsenstalling en waarbij het parkeren voor de woningen buiten de kavel wordt opgelost. Het college heeft in december 2019 ingestemd met het nieuwe plan. Op 21 juli 2021 heeft de raad ingestemd met de financiering van de publieke fietsenstalling als onderdeel van Hub Rozet.

Het plan voor de locatie Bartok Park bestaat uit twee delen: Bartok Park Zuid en Bartok Park Noord. Deze tweedeling komt voort uit het feit dat het plan gefaseerd uitgevoerd moet kunnen worden en er meer tijd nodig is om te bepalen wat de beste invulling is voor Bartok Park Noord. Bartok Park Noord zal met voorliggend plan een gemengde functie krijgen, waarbij wonen, maatschappelijke (in het kader van cultuur) activiteiten en een invulling met openbare ruimte zijn toegestaan. Het programma voor Bartok Park Zuid wordt in een separate wijziging van het omgevingsplan verder uitgewerkt.

De voorgenomen ontwikkeling is strijdig met het vigerende planologische regime, het tijdelijke deel van het omgevingsplan en het bestemmingsplan "Binnenstad en Singels". Middels deze wijziging van het omgevingsplan wordt de beoogde herontwikkeling van het projectgebied planologisch mogelijk gemaakt. 

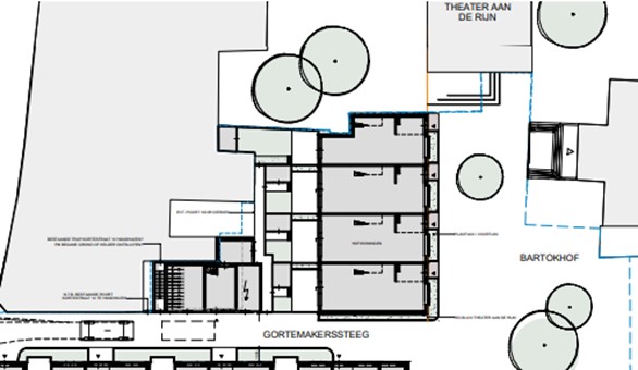
1.3 Waar geldt deze wijziging van het omgevingsplan?

Het projectgebied betreft een inbreidingslocatie en is gelegen binnen het centrum van Arnhem in het Rozetkwartier. De locatie wordt aan de west-, oost, en noordzijde begrensd door bestaande bebouwing. Aan de zuidzijde grenst het projectgebied in de huidige situatie aan een parkje waar in de toekomst de voorgenomen woningbouwontwikkeling van het plan Bartok Park Zuid.

Navolgende afbeeldingen geven globaal de ligging en begrenzing van het projectgebied weer.

afbeelding binnen de regeling
Afbeelding 1.1: Globale ligging van het projectgebied Bron: PDOK-viewer
afbeelding binnen de regeling
Afbeelding 1.2: Globale begrenzing van het projectgebied Bron: PDOK-viewer

Het uitgangspunt voor de begrenzing van het projectgebied is om alleen die gronden mee te nemen waar de regels gewijzigd moeten worden om de voorgenomen ontwikkeling mogelijk te maken. Overige gronden die nabij het projectgebied liggen, maar waarvoor geen nieuwe regels hoeven te gelden, zijn daarom niet meegenomen.

Op navolgende afbeelding is een uitsnede van het vigerende bestemmingsplan 'Binnenstad en Singels', als onderdeel van het omgevingsplan gemeente Arnhem, weergegeven. Hierbij is de ligging van het projectgebied globaal zichtbaar gemaakt met een rode stippellijn. Het gehele projectgebied is gelegen binnen de bestemming 'Centrumdoeleinden - Nader uit te werken'.

afbeelding binnen de regeling
Afbeelding 1.3: Uitsnede van het vigerende bestemmingsplan 'Binnenstad en Singels' als onderdeel van het omgevingsplan gemeente Arnhem (Bron: Omgevingsloket - Regels op de kaart)

1.4 Wat wijzigt dit besluit?

1.4.1 Vervallen onderdelen

De wijziging van het Omgevingsplan 'Bartok Park Noord' is een algehele herziening van de geldende plannen, voor zover van toepassing op dit projectgebied. Onderstaand overzicht geeft weer welk tijdelijk deel van het omgevingsplan (deels) komt te vervallen. Het betreft hierbij een enkel bestemmingsplan. De datum van vaststelling is ook weergegeven.

 

Plannaam

Datum van vaststelling

Bestemmingsplan Binnenstad en Singels

27‑10‑2005

 

1.4.2 Toegevoegde onderdelen

Voorliggende wijziging van het omgevingsplan vervangt bovenstaande bestemmingsplannen en zal worden toegevoegd als nieuw onderdeel in hoofdstuk 10 in het Omgevingsplan van de gemeente Arnhem.

2 Beschrijving bestaande situatie

2.1 Inleiding

In dit hoofdstuk wordt eerst ingegaan op de historische ontwikkeling van het gebied. Daarna volgt een beschrijving van de huidige ruimtelijke en functionele structuur in en om het projectgebied. 

2.2 Historische ontwikkeling

De binnenstad is het oudste deel van Arnhem en tevens het deel waar de gemeente een belangrijk deel van haar identiteit aan ontleent. Arnhem ontstond aan de St. Jansbeek en kreeg in 1233 stadsrechten. Vanuit een bescheiden handelsknooppunt op een kruising van landwegen en de Jansbeek groeit Arnhem vanaf de vroege middeleeuwen uit tot een omwalde vestingstad waar de kerkelijke, rechterlijke en bestuurlijke macht zich vestigt. Een landmark voor Arnhem en omgeving wordt gevormd door de 15e-eeuwse Eusebiuskerk. De middeleeuwse stad is nog steeds herkenbaar in het bestaande stratenpatroon en de daarmee samenhangende stegen, brandgangen en binnentuinen.

19e eeuw

Arnhem houdt tot ongeveer 1829 haar middeleeuwse karakter en omvang. Vanaf die tijd worden de vestingwerken gesloopt om plaats te maken voor groene singels, volgens een plan van Stadsbouwmeester Heuvelink uit 1853. Met de Rijnkade vormden de singels een fraaie wandelroute rond de stad, die vergezichten bood op de stuwwallen ten noorden van de stad en over de Rijn met uiterwaarden. Aan de singels en Rijnkade werden statige panden gebouwd. De toepassing van roomwitte kleuren en specifiek materiaalgebruik verwijzen hierbij naar de term Arnhems Blond.

19e-eeuwse bouwontwikkelingen zijn ook sterk aanwezig in de middeleeuwse stad zoals de fraai versierde gevels van winkelpanden. De singels met hun parken, fonteinen en herenhuizen rondom de middeleeuwse stad laten zien hoe Arnhem zich na het slopen van de vestingwerken heeft ontwikkeld tot woonstad voor welgestelden.

Slag om Arnhem en wederopbouw

Tijdens de slag om Arnhem is met name het zuidelijk deel van de binnenstad zwaar getroffen. De wederopbouw leidde tot een sterk contrast in maat en schaal ten opzichte van de middeleeuwse binnenstad. De wederopbouwperiode is ook nog goed zichtbaar door verschillende karakteristieke bebouwing uit de jaren vijftig en zestig.

Recente ontwikkelingen

In de binnenstad hebben de afgelopen jaren verschillende ruimtelijke ingrepen plaatsgevonden. Een belangrijke stedenbouwkundige verandering is het bebouwen van het naoorlogse Kerkplein met een  filmtheater en appartementen. Ook de transformatie en revitalisatie van de zuidelijke binnenstad met de komst van Rozet hebben een grote en positieve impact gehad op de binnenstad. Het Rozetkwartier behoort dan ook officieel tot historische binnenstad van Arnhem. Door de oorlog en de wederopbouw is de grens tussen het oude en het nieuwe nergens zo zichtbaar als in dit deel van de stad. Daarnaast is de afgelopen jaren fors geïnvesteerd in de openbare ruimte en is de St. Jansbeek weer gedeeltelijk bovengronds gehaald. Door al deze ingrepen is de breuklijn op de overgang tussen de middeleeuwse stad en de zuidelijke binnenstad nagenoeg geheeld.

2.3 Ruimtelijke en functionele structuur

De locatie van het projectgebied is gelegen in het Rozetkwartier, gelegen aan de rand van de historische binnenstad van Arnhem. Het projectgebied is in de bestaande situatie een braakliggend terrein in de stad ter plaatse van het bestaande binnenplein achter het parkje. Nadere toelichting over de ruimtelijke en functionele structuur wordt verstrekt in paragraaf 5.2.1.

3 Beschrijving van de ontwikkeling

3.1 Inleiding

In de voorgaande hoofdstukken is ingegaan op de bestaande situatie. Dit hoofdstuk beschrijft de ruimtelijke opzet voor de ontwikkeling en hoe deze programmatisch wordt vormgegeven.

3.2 Ruimtelijke opzet en structuur

3.2.1 Ruimtelijke aspecten

Door Bedaux De Brouwer Architecten is in augustus 2022 een ontwerpboek opgesteld met een voorstel voor een mogelijke ruimtelijke opzet van de toekomstige situatie qua inrichting en bebouwing ter plaatse van het projectgebied (zie Bijlage 1). Het projectgebied wordt hierbij omgeven door het Bartokplein, de Gortemakersstreeg en bestaande bebouwing.

Een mogelijke ruimtelijke opzet van de toekomstige situatie is ten behoeve van de activiteit 'wonen' met de realisatie van woningen aan het Bartokplein. Deze woningen maken de aansluiting tussen de oude binnenstad en het nieuwe stadsblok (de ontwikkeling ter plaatse van 'Bartok Park Zuid') en pogen het maaiveld zoveel mogelijk te activeren. De woningen vormen een ensemble van vier woningen. Verder bevatten de woningen een terras, tuin en buitenberging.

Navolgende afbeelding laat een situatieschets zien van de mogelijke ruimtelijke opzet in de toekomstige situatie. 

afbeelding binnen de regeling
Afbeelding 3.1: Mogelijke ruimtelijke opzet toekomstige situatie Bron: Bedaux De Brouwer Architecten, 2022

 

Een andere mogelijke ruimtelijke opzet van de toekomstige situatie zal bestaan uit de realisatie voor een maatschappelijke activiteit ten behoeve van cultuur. Onder culturele voorzieningen vallen: expositieruimten, ateliers, muziek- en kunstonderwijs en naar de aard daarmee gelijk te stellen voorzieningen, met uitzondering van musea, muziektheaters, bioscopen en naar aard vergelijkbare voorzieningen. Een precieze uitwerking van een maatschappelijke activiteit inclusief de bebouwing en inrichting hiervan wordt in een nader stadium uitgewerkt.  

Daarnaast is het mogelijk dat het projectgebied naast het wonen en een maatschappelijke activiteit, een invulling met openbare ruimte krijgt in de toekomstige situatie.

3.2.2 Verkeer en parkeren

Het projectgebied van Bartok Park Noord maakt onderdeel uit van het Rozetkwartier in de binnenstad van Arnhem. In de toekomstige situatie zal het Rozetkwartier als een echte mobiliteitshub ('Hub Rozet') fungeren waar verschillende verkeersmodaliteiten samenkomen. Het projectgebied zal in de toekomst vallen binnen het voetgangersgebied van de binnenstad. Dat betekent dat de bereikbaarheid voornamelijk te voet of per fiets (aan de hand) plaatsvindt. Nabij het projectgebied is op loopafstand (circa 50 meter) een bushalte (openbaar vervoer) en de Rozetparkeergarage (auto) aanwezig die door gebruikers van het projectgebied aangewend kunnen worden om het projectgebied te bereiken. Een nadere uitwerking van het mobiliteitsaspect is opgenomen in paragraaf 5.3.

3.2.3 Duurzaamheid en klimaat

De ruimtelijke opzet voor de voorgenomen ontwikkeling met betrekking tot duurzaamheid en klimaat is nader toegelicht in paragraaf 5.7.

3.3 Programma

De planontwikkeling maakt in het projectgebied ruimte voor een gemengde functie met de mogelijke activiteiten ten behoeve van 'wonen', 'maatschappelijk' (in relatie tot cultuur) en een invulling met openbare ruimte. Hierbij kunnen als eerste mogelijkheid woningen inclusief bijbehorende buitenruimte worden gerealiseerd. In de woondeal 2.0 is Bartok Park aangeduid als een van de lopende projecten waarbij het niet “haalbaar, mogelijk of wenselijk” was om de eis van twee derde betaalbaar op te leggen.

Als tweede mogelijkheid kan ter plaatse van het projectgebied in een maatschappelijke activiteit worden voorzien, waarbij de verdere uitwerking gerelateerd is aan een culturele voorziening. Een derde mogelijkheid is dat het projectgebied wordt ingericht als openbare ruimte.  

4 Visie en beleid op locatie

4.1 Rijksbeleid

4.1.1 Nationale omgevingsvisie (NOVI)

Op 11 september 2020 is de Nationale Omgevingsvisie (NOVI) vastgesteld. De NOVI biedt een langetermijnperspectief op de ontwikkeling van de leefomgeving in Nederland tot 2050. Met de NOVI geeft het kabinet richting aan de grote opgaven die het aanzien van Nederland de komende dertig jaar ingrijpend zullen veranderen. Denk aan het bouwen van nieuwe woningen, ruimte voor opwekking van duurzame energie, aanpassing aan een veranderend klimaat, ontwikkeling van een circulaire economie en omschakeling naar kringlooplandbouw. Alles met zorg voor een gezonde bodem, schoon water, behoud van biodiversiteit en een aantrekkelijke leefomgeving.

In de NOVI zijn deze maatschappelijke opgaven samengevat in vier prioriteiten:

  • ruimte voor klimaatadaptatie en energietransitie

  • duurzaam economisch groeipotentieel

  • sterke en gezonde steden en regio's

  • toekomstbestendige ontwikkeling van het landelijk gebied.



Om de beleidskeuzes op een heldere en voorspelbare manier te maken, hanteert de NOVI drie afwegingsprincipes, die helpen bij het afwegen en prioriteren van de verschillende belangen en opgaven: 

1. Combinaties van functies gaan voor enkelvoudige functies;

2. Kenmerken en identiteit van een gebied staan centraal; 

3. Afwentelen wordt voorkomen

Toetsing van het initiatief aan het Rijksbeleid 

Het betreft een project waarbij geen nationale belangen in het geding zijn. Er is geen sprake van enige belemmering met betrekking tot de prioriteiten zoals verwoord in de NOVI. Het planvoornemen speelt in op de eerste drie prioriteiten met betrekking tot de maatschappelijke opgaven. Het NOVI vormt geen belemmering  voor de in deze wijziging van het Omgevingsplan opgenomen herontwikkeling. 

4.1.2 Ladder voor duurzame verstedelijking

Algemeen

De Ladder voor duurzame verstedelijking is als instructieregel in het Besluit kwaliteit leefomgeving (artikel 5.129g) opgenomen. Doel van de Ladder voor duurzame verstedelijking is een evenwichtige toedeling van functies aan locaties door een optimale benutting van de ruimte in stedelijke gebieden. Hierbij geldt een motiveringsvereiste voor het bevoegd gezag als nieuwe stedelijke ontwikkelingen planologisch mogelijk worden gemaakt.

Situatie projectgebied

De provincie Gelderland stuurt op een gezonde regionale woningbouwprogrammering. Hierbij is de provincie opgebouwd in regio's. Arnhem valt binnen de regio Arnhem-Nijmegen en deze regio vormt ook het verzorgingsgebied van de woningbouwontwikkelingen in Arnhem. Er zijn afspraken gemaakt met de Regio Arnhem Nijmegen over de groei van de woningvoorraad (dus: aantallen nieuwbouw) en over de 'kwaliteiten', zoals het aandeel huur- en betaalbare woningen. Dit is vertaald naar subregio's.

De mogelijk te realiseren woningen binnen project Bartok Park Noord vallen binnen de regionale afspraken. In de Woondeal 2.0 die is gesloten met de gemeenten in de woningmarktregio, de provincie Gelderland en het Rijk, is het project opgenomen aangeduid als een lopend woningbouwproject. Hiermee wordt aangetoond dat het project van belang is voor een deel van de regionale productie.

Toetsing van het initiatief aan de Ladder voor duurzame verstedelijking

Er is geen ondergrens bepaald voor wat een 'stedelijke ontwikkeling' is. Op basis van jurisprudentie blijkt dat de vraag of sprake is van een stedelijke ontwikkeling wordt bepaald door de aard en omgang van die ontwikkeling, in relatie tot de omgeving. Voor wonen geldt, dat voor woningbouwlocaties vanaf twaalf woningen sprake is van een stedelijke ontwikkeling die Ladderplichtig is. Voor overige functies geldt dat bij een uitbreiding van 500 m2 in beginsel sprake is van een stedelijke ontwikkeling.

In voorliggend geval is sprake van een gebiedsontwikkeling die voorziet in het toepassen van een gemengde functie, waarbij wonen, maatschappelijke activiteiten (gerelateerd aan cultuur) en een invulling met openbare ruimte zijn toegestaan. In een later stadium wordt bepaald welke activiteit het meest passend is en nader uitgewerkt wordt. Het projectgebied heeft een grootte kleiner dan 500 m2. Er is dus geen sprake van een nieuwe stedelijke ontwikkeling, waardoor een verdere toetsing aan de Ladder voor duurzame verstedelijking niet benodigd is.

Conclusie

Het plan hoeft niet getoetst te worden aan de principes van de Ladder voor duurzame verstedelijking.

4.2 Provinciaal beleid

4.2.1 Omgevingsvisie Gaaf Gelderland

De provinciale Omgevingsvisie Gaaf Gelderland 2018 gaat over het beleid van de provincie voor de fysieke leefomgeving en geeft richting op de strategische hoofdlijnen van het beleid voor wat betreft ruimte, natuur, water, milieu en verkeer en vervoer. De provincie Gelderland legt in de omgevingsvisie de focus op een duurzaam, verbonden en een economisch krachtig Gelderland. Daarin wordt geïnvesteerd, waardoor meerwaarde ontstaat. Dit gebeurt door zeven met elkaar samenhangende ambities na te streven voor een schoon, gezond, veilig en welvarend Gelderland.

Daarnaast wordt de provinciale Omgevingsverordening Gelderland als instrument ingezet om de doorwerking van dit beleid uit de Omgevingsvisie af te dwingen. De werking van de verordening beperkt zich tot die onderdelen van het beleid waarvoor de inzet van algemene regels noodzakelijk is om provinciale belangen veilig te stellen of om uitvoering te geven aan wettelijke verplichtingen.

Toetsing van het initiatief aan de omgevingsvisie

Het planvoornemen voorziet in het toepassen van een gemengde functie, waarbij wonen, maatschappelijke activiteiten (gerelateerd aan cultuur) en een invulling met openbare ruimte zijn toegestaan. In een later stadium wordt bepaald welke activiteit het meest passend is en nader uitgewerkt wordt. Voor de mogelijke woonactiviteit wordt een viertal woningen gerealiseerd. Zie paragraaf 3.3 voor de verdere uitwerking van het woonprogramma. Het betreft een binnenstedelijke herontwikkeling die bijdraagt aan de speerpunten 'innovatie en economische structuurversterking' en 'sociaal economische vitaliteit en verstedelijking'. Geconcludeerd wordt dat het initiatief in overeenstemming is met de Omgevingsvisie Gaaf Gelderland.

4.2.2 Omgevingsverordening

Algemeen

De Omgevingsverordening Gelderland wordt ingezet voor die onderwerpen waarvoor de provincie eraan hecht dat de doorwerking van het beleid van de Omgevingsvisie juridisch gewaarborgd is. De inzet van de verordening als juridisch instrument om de doorwerking van het provinciaal beleid af te dwingen is beperkt tot die onderdelen van het beleid waarvoor de inzet van algemene regels noodzakelijk is om provinciale belangen veilig te stellen of om uitvoering te geven aan wettelijke verplichtingen. De verordening voorziet ten opzichte van de Omgevingsvisie niet in nieuw beleid en is daarmee dus beleidsneutraal.

De Omgevingsverordening richt zich net zo breed als de Omgevingsvisie op de fysieke leefomgeving in de provincie Gelderland. Dit betekent dat vrijwel alle regels die betrekking hebben op de fysieke leefomgeving opgenomen zijn in de Omgevingsverordening. Het gaat hierbij om regels op het gebied van ruimtelijke ordening, milieu, water, mobiliteit en bodem.

Relevante artikelen

Deze wijziging van het Omgevingsplan voorziet in een binnenstedelijke ontwikkeling waarbij woningen worden gerealiseerd. Hierdoor zijn met name de onderstaande artikelen uit hoofdstuk 5 (instructieregels omgevingsplan) relevant.

Artikel 5.44 (beschermen landschap Gelderse streken: Veluwe)

Voor zover een omgevingsplan van toepassing is op locaties binnen de Gelderse streek Veluwe wordt bij een nieuwe activiteit of ontwikkeling rekening gehouden met de voor die streek vastgestelde kernkwaliteiten en ontwikkeldoelen van het landschap als bedoeld in de bijlage 'Kernkwaliteiten en ontwikkeldoelen landschap van de Gelderse streek Veluwe'.

Toetsing van het initiatief aan artikel 5.44 van de Omgevingsverordening

Bovenstaande artikel is opgenomen met het oog op de instandhouding en versterking van de landschappelijke diversiteit en kwaliteiten. Het accent ligt hier op het buitengebied. Het planvoornemen bevindt zich in het bestaand stedelijk gebied (binnenstad Arnhem) waar de landschapswaarden en kernkwaliteiten van de Veluwe niet meer aanwezig zijn. 

Artikel 5.64 (doorwerking regionale woonagenda)

1. Een omgevingsplan laat nieuwe woningen alleen toe als die ontwikkeling past binnen de regionale woonagenda.

2. Als een ontwikkeling niet past binnen de regionale woonagenda, kan een omgevingsplan vooruitlopend op de eerstvolgende actualisatie van de regionale woonagenda die ontwikkeling toch toelaten als:

a. de gemeentebesturen in de regio in de gelegenheid zijn gesteld een zienswijze daarover naar voren te brengen; en

b. Gedeputeerde Staten met deze ontwikkeling instemmen.

Toetsing van het initiatief aan artikel 5.64 van de Omgevingsverordening 

Uit onderzoek blijkt dat er zowel in de regio Arnhem Nijmegen als in de subregio Arnhem nog veel behoefte is aan nieuwe woningen. Vooral in de grote steden is de behoefte aan woningen groot. Voor de subregio is behoefte voor de periode 2017-2027 naar een netto toevoeging van circa 13.500 te realiseren woningen zoals opgenomen in de Subregionale Woonagenda. In dit aantal zit nieuwbouw, maar ook woningen die worden gerealiseerd in bijvoorbeeld bestaande leegstaande panden (transformatie). Het aantal wordt niet gezien als hard maximum. Om de twee jaar wordt dit aantal geactualiseerd naar aanleiding van de meest recente provinciale huishoudens- en bevolkingsprognose.

Het planvoornemen voorziet in het toepassen van een gemengde functie, waarbij wonen, maatschappelijke activiteiten (gerelateerd aan cultuur) en een invulling met openbare ruimte zijn toegestaan. In een later stadium wordt bepaald welke activiteit het meest passend is en nader uitgewerkt wordt. Voor de mogelijke woonactiviteit wordt voorzien in het toevoegen van vier woningen en dit past binnen de plancapaciteit, zoals binnen de subregio is afgestemd.

Artikel 5.85 (klimaatadaptatie)

1. Voor zover een omgevingsplan een nieuwe activiteit of ontwikkeling toelaat, bevat de toelichting op het omgevingsplan een beschrijving van de maatregelen of voorzieningen die worden getroffen om de risico's van klimaatverandering te voorkomen of te beperken en de afweging die daarbij is gemaakt.

2.In de beschrijving worden in ieder geval de volgende aspecten betrokken:

a. waterveiligheid;

b. wateroverlast;

c. droogte; en

d. hitte.

3. De beschrijving wordt opgesteld na overleg met in ieder geval het dagelijks bestuur van het waterschap waar de activiteit wordt verricht of de ontwikkeling plaatsvindt.

Toetsing van het initiatief aan artikel 5.85 van de Omgevingsverordening

Voor een uitwerking van het klimaatadaptatie wordt verwezen naar paragraaf 5.7 van deze motivering.

Toetsing van het initiatief aan de Omgevingsverordening Gelderland

De voorgenomen ontwikkeling is in overeenstemming met de Omgevingsverordening Gelderland.

4.3 Gemeentelijk beleid

4.3.1     Omgevingsvisie

Algemeen 

De wereld om ons heen verandert continu. Ontwikkelingen, zoals de groei van het aantal inwoners en het aantal huishoudens, energietransitie, veranderende economie, klimaatverandering, druk op de natuur en digitalisering hebben een grote invloed op onze fysieke leefomgeving. Onze eisen op het gebied van woonklimaat en gezondheid van mens en dier veranderen ook. Niet alles kan overal zonder de kwaliteit van de stad onrecht aan te doen. We moeten schaarse ruimte goed benutten, prioriteiten stellen en een weloverwogen ruimtelijke koers varen.

Om plannen en initiatieven goed op elkaar af te stemmen heeft de gemeente een omgevingsvisie opgesteld. Een omgevingsvisie schets een beeld voor de fysieke leefomgeving op de langere termijn. In Arnhem hebben we een visie met de blik op 2040. Deze visie beschrijft hoe we keuzes maken in het ruimtegebruik.

Afwegingen maken

De druk op de fysieke leefomgeving vraagt om scherpe en integrale keuzes. In de omgevingsvisie is daarom een aantal afwegingsprincipes opgesteld om bij te dragen aan een aantrekkelijke, duurzame gezonde en sociale stad en dat we slim en klimaatadaptief met onze ruimte omgaan. Dit betekent niet dat overal hetzelfde moet gebeuren. Wel dat we dezelfde afwegingsprincipes hanteren. 

De Arnhemse identiteit versterken

Bij ruimtelijke keuzes staan de kwaliteiten en identiteit van onze stad, wijken en landschappen voorop. Bij de bouw en herinrichting zijn het behoud en de versterking van groenstructuur en cultuurhistorische waarden daarom belangrijke voorwaarden.

Duurzaam en gezond ontwikkelen

Voorwaarde voor de groei van de stad is dat natuurwaarden toenemen, klimaat maatregelen een plek krijgen en dat een groene leefomgeving bijdraagt aan het welbevinden van mens en dier. Daarnaast draagt een goed en groen ingerichte leefomgeving bij aan het voorkomen van gezondheidsklachten. Dit betekent dat we bij nieuwe woningen ruimte maken voor groen en natuur, voor ontmoeten en spelen, voor klimaatmaatregelen en duurzame mobiliteit. De clustering van bedrijven en opleidingen op het gebied van energietransitie levert innovatiekracht op en een slag naar een circulaire en duurzame economie.

Wijken versterken waarin iedereen mee kan doen

Een voorwaarde voor de groei is dat Arnhem vitaler, veiliger en socialer wordt. Alle Arnhemmers moeten beter worden van de groei van de stad. Dit betekent aandacht in de wijken voor woningen voor álle doelgroepen en voor levensloopbestendige wijken met voldoende werkgelegenheid. Bij groei van woon-, winkel- of bedrijfsruimte moeten tegelijk functies worden toegevoegd die bijdragen aan de sociale samenhang en leefbaarheid in de wijk. 

Slim omgaan met ruimtegebruik

Ruimte is schaars en moet dus efficiënt gebruikt worden. Dit betekent dat we nieuwe woningen en kantoren zoveel mogelijk bouwen op plekken die goed bereikbaar zijn met het openbaar vervoer en in de nabijheid van veel voorzieningen. Daar gaan we de hoogte in. We mengen functies en houden ook rekening met ontwikkelingen onder de grond, zoals kabels en leidingen, grondwater en bodemkwaliteit.

Overkoepelende thema's 

In de Omgevingsvisie Arnhem 2040 werken we deze keuzes integraal uit in zes overkoepelende thema's: ruimtelijke kwaliteit, gezonde leefomgeving, economische vitaliteit, woningbouw en -transformatie, bereikbaarheid en schone mobiliteit en tenslotte energietransitie. 

Een aantrekkelijk Arnhem 

Om de ruimtelijke kwaliteit van onze stad te behouden en te versterken, gaan we de komende jaren flink aan de slag met het verder zichtbaar en meer beleefbaar maken van Arnhem als groene, creatieve en vrije stad.

Een groene, gezonde en veilige stad

Het Arnhems groen draagt bij aan de fysieke en mentale gezondheid van onze inwoners. De groene ruimte nodigt uit tot bewegen en sporten. Daarnaast heeft groen een sociale functie: mensen ontmoeten elkaar. Het bevordert de psychische gezondheid en de veiligheid en beperkt het gevoel van eenzaamheid (onder andere bij ouderen). De komende jaren gaan we veel woningen in de stad bijbouwen. Hiermee sparen we het groen en de natuur buiten de stad, maar we moeten ook zorgen dat er ín de stad voldoende groen aanwezig blijft. Bij de verstedelijkingsopgave is een klimaatbestendige, schone, biodiverse, veilige en gezonde leefomgeving belangrijk. Ontwikkelen van toegankelijk en aantrekkelijk groen in de nabije omgeving is een cruciaal uitgangspunt.

Een vitale stad 

Arnhem wil een veerkrachtige stad zijn. Een duurzame en dynamische economie is cruciaal in relatie tot de andere uitdagingen die de stad kent. Zoals het welzijn van haar inwoners, onze mobiliteit en bereikbaarheid, de woningbouw en ruimtelijke kwaliteit en de energietransitie. De aanwezigheid van banen, innovaties en investeringen is een impuls voor de ontwikkeling van de welvarendheid van de stad. De werklocaties in Arnhem spelen daarin een cruciale rol. Onder werklocaties verstaan we naast de bedrijventerreinen en kantorenlocaties ook andere delen van de stad waar gewerkt wordt. Zoals de binnenstad en woonwijken. Daarom investeren we de komende jaren in economische kracht, in nieuwe bedrijvigheid, in toekomstbestendige werklocaties en in sterke wijken met voldoende werkgelegenheid en een hoog voorzieningenniveau. Een sterk energiecluster is daarbij ons vlaggenschip.

Een stad waar het goed wonen is

Om de beschikbaarheid en betaalbaarheid van woningen in Arnhem op peil te houden, moeten er meer woningen worden gerealiseerd de komende jaren. Dit geldt voor alle soorten woningen en voor alle doelgroepen: aantrekkelijke levensloopbestendige woningen voor ouderen, woningen voor kleine huishoudens, sociale woningbouw in goedkoop en betaalbaar segment, de categorie middenhuur en het hogere segment. Om tot een inclusieve en vitale stad te komen, streven we onder meer naar een goede mix van allerlei typen woningen en woonmilieus in sociale huur, vrijesectorhuur en koop. Dit in combinatie met de daarbij passende voorzieningen. 

Ruimte voor schone mobiliteit 

Voor de ontwikkeling van Arnhem is schone en actieve mobiliteit een belangrijke voorwaarde. Om extra druk op de ruimte door autoverkeer te voorkomen, geven we de komende jaren ruim baan aan lopen, fietsen en openbaar vervoer. De Trolleybus is onze grote trots. Deze duurzame manier van verplaatsen is goed voor de gezondheid en de luchtkwaliteit, zorgt voor minder lawaai en vraagt om minder ruimte. Daarnaast zetten we in op bereikbaarheid en toegankelijkheid voor iedereen.

Een stad met nieuwe energie 

Een klimaatneutraal en duurzaam Arnhem, dat is waar we naartoe willen. Een groene en gezonde stad met schone lucht, waarin het ook voor onze kinderen en kleinkinderen goed wonen is. Een stad met een schone economie die niet meer draait op kolen, olie en gas, maar op schone energiebronnen als zon en wind. Om daar te komen, zetten we de komende jaren vol in op de energietransitie: de strategie om Arnhem in 2050 onafhankelijk te laten zijn van fossiele brandstoffen.

Gebiedsuitwerkingen

In de omgevingsvisie is een uitwerking van deze koers opgenomen voor vijf deelgebieden: Arnhem Centrum, Arnhem West, Arnhem Oost, Arnhem Zuid en Arnhem Noord. Dit zijn deelgebieden waar relatief veel opgaven tegelijk spelen. In de komende jaren zal juist in die delen van de stad veel veranderen en zijn belangrijke keuzes te maken. Dit doet natuurlijk niets af aan het belang en de kwaliteiten van andere deelgebieden van Arnhem.

Arnhem Centrum

Gebiedskansen:

Toekomstbestendige binnenstad

De mix aan functies in de binnenstad (wonen, werken, recreëren) vragen om keuzes en integrale plannen voor straten en/of gebieden. Door te versnellen en aan te haken op transformaties houden we de binnenstad in beweging, in de juiste richting met voldoende kwaliteit. De coronapandemie heeft ons duidelijk gemaakt dat we rekening moeten houden met de behoefte aan flexibiliteit in de binnenstad om veranderingen in de tijd en ontwikkelingen in de maatschappij op te vangen. Hierin is het van belang om samen met onze partners in de binnenstad op te trekken. 

Van belang is dat de binnenstad mee kan ademen met de bewegingen die er zijn en te zorgen dat de binnenstad voldoende flexibel en wendbaar is om verschillende scenario's op te vangen. Het compacter maken van het winkelhart van de binnenstad speelt een belangrijke rol. We zetten in op een krachtig winkelhart waarbij de detailhandel elkaar versterkt en winkels niet te verspreid van elkaar komen te liggen. Ook willen we de binnenstad versterken als plek om te wonen en werken met ruimte voor de creatieve sector. Daarnaast is het van belang om de binnenstad te verbinden met bijzondere voorzieningen en gebieden rondom de binnenstad.

De potentie van de verdiepingen boven de winkels voor aantrekkelijke woningen wordt nog onvoldoende benut. Het toevoegen van meer woningen in het winkelgebied zorgt niet alleen voor een betere benutting van de schaarse ruimte in onze stad, maar zorgt ook voor meer levendigheid en sociale veiligheid in het centrum buiten de werk- en winkeltijden. Ook op andere plekken in de binnenstad is er potentie om woningen toe te voegen. Het toevoegen van wonen vraagt ook om andere maatschappelijke functies in de nabijheid, zoals huisarts, tandarts en sportschool. 

Ontspanning en vergroening

Verdichten betekent tegelijkertijd vergroenen en de openbare ruimte transformeren naar een aantrekkelijk en veilig verblijfsgebied van de voetganger. We zetten in op plekken die uitnodigen tot verblijf en ontmoeting en gaan verloedering van plekken tegen. We zorgen voor meer groen en luwtegebieden in en rond het centrum als contrast met het drukke stedelijk leven. Goede verbindingen van het centrum naar de groene omgeving zijn essentieel en zorgen voor verkoeling tijdens warme dagen. 

Verbinden van de binnenstad met de rest van de stad en andersom 

Op steenworp afstand van de binnenstad liggen verrassende stadswijken en fraaie parken zoals Sonsbeek en Stadsblokken Meinerswijk. Deze nabijheid biedt kansen om de attractiewaarde van de (binnen)stad te verhogen door combinatiebezoeken met bijvoorbeeld het Modekwartier, het Spijkerkwartier of een wandeling door onze fraaie stadsparken. Door het gebrek aan logische en aantrekkelijke routes en de barrièrewerking van de rivier, de spoorweg, de centrumring met Willemstunnel en de opritten van de twee bruggen, is het lastig bezoekers aan de binnenstad te verleiden tot een combinatiebezoek.

De binnenstad via aantrekkelijke routes beter verbinden met interessante plekken buiten het centrum is dan ook een belangrijke opgave. 

Gebieden met een eigen identiteit

Sommige delen van de binnenstad staan aan de vooravond van een verandering. De Arnhemse kernwaarden groen, creatief en vrij spelen een rol bij deze veranderingen, gericht op meer wonen, werken en creatieve functies.

Gebiedskansen oostelijk van het centrum

Nu de zuidelijke binnenstad haar voltooiing nadert, gaan we de komende jaren aan de slag met het verder ontwikkelen van het oostelijk deel. In het Bestuurskwartier, dat is het gebied met onder meer het Gerechtshof en het Openbaar Ministerie, ontwikkelen we een gemengd werk- en woonmilieu dat aansluit op de binnenstad. In dit gebied vinden we een concentratie van bestuur en van WOII-memorials. Door deze te verbinden met de binnenstad ontstaat een sterke identiteit. Daarnaast pakken we het gebied rondom de Schouwburg aan, waarbij we verschillende culturele functies samenvoegen. We onderzoeken ook of we wonen en maatschappelijke functies kunnen clusteren en tegelijkertijd het stadsklimaat en de openbare ruimte kunnen verbeteren door onveilige of verloederde plekken aan te pakken. Er liggen kansen om de ontwikkelingen in het oosten van de binnenstad beter te verbinden met het winkelhart maar ook met de Singel en het Coberco-terrein. Ook zijn er kansen om de relatie met Stadsblokken en Meinerswijk te verbeteren.

Gebiedskansen Centrum West

Met Centrum West bedoelen we het gebied tussen Museum Arnhem en de binnenstad en tussen station Arnhem Centraal en de Rijn. We willen Centrum West transformeren naar een Kunstkwartier: een aantrekkelijke wijk met een eigen identiteit, waar creatieve energie, kunst en cultuur samen met wonen, (flex)werken en maatschappelijke instellingen een dynamische mix vormen. Daarbij is de inzet om het gebied beter te verbinden met de binnenstad, Arnhem Centraal en het unieke landschap van de rivier en de stuwwalhelling. De focus ligt op aantrekkelijke fiets en wandelverbindingen. Er gebeurt van alles voor cultuur en landschap: het museum is uitgebreid, een deel van de museumtuin wordt een openbaar wandelpark en het museumpark op de helling wordt heringericht. De wijk Coehoorn krijgt een nieuw gezicht, er komt een snelfietsroute en we vergroenen langs de Oude Kraan. De Blauwe Golven worden opgeknapt met nieuwe parkeerplaatsen, een skatepark en groen langs de randen. En de fontein daar gaat weer spuiten. We benutten de rijke historie en het unieke landschap en kansen voor klimaatopgaven. We vergroten de leefbaarheid en levendigheid van het gebied. 

Arnhem CS

De status van Arnhem Centraal Station als ICE-station maakt deze locatie het Utrecht Centraal Station van het oosten. De directe omgeving van het station is de toplocatie voor kantoren in Oost Nederland. Ook hotels en andere verblijfsvoorzieningen versterken de stationsomgeving. De opgave is om in dit gebied een passend aanbod voor kantoren te realiseren die aansluit bij de vraag naar kantoorruimte. Uitgangspunt is om deze positie in de komende jaren te versterken door bestaande kantoorruimte te behouden en nieuwe toe te voegen.

Ambitie-agenda:

  • We ondersteunen de detailhandel, horeca en cultuur bij het herstel na de coronapandemie en het versterken van de aantrekkelijkheid van de binnenstad. Publieksaantrekkende functies in het gebied blijven welkom om te zorgen dat de Binnenstad the place to meet van Oost-Nederland blijft.

  • Bij nieuwe ontwikkelingen zorgen we voor solide gebouwen of stedenbouwkundige concepten die makkelijk transformeerbaar zijn en een openbare ruimte die daarop in kan spelen. Daarmee maak je de stad wendbaar bij toekomstige ontwikkelingen en trends, maar het vraagt ook om zorgvuldig te kijken naar welke functies in een gebied nodig en wenselijk zijn en daarop te sturen. Een nieuwe stedelijke ontwikkeling gaat gepaard met het toevoegen van groene, bij voorkeur, rustige buitenruimte. We dragen ook in het centrum bij aan een sterke de groenstructuur van de stad.

  • We zorgen voor een veilige openbare ruimte, die uitnodigt tot het verblijven en ontmoeten en door de inrichting verloedering en onveiligheid tegengaat.

    We maken optimaal gebruik van de schaarse ruimte in en rondom het centrum door een slimme verdichtingsstrategie. We wijzen plekken rond of nabij het Centraal Station aan waar ruimte gegeven wordt aan nieuwe werklocaties, al dan niet in combinatie met wonen.

  • We stellen nieuwe kaders op voor het centrum, de centrumschil en de omliggende wijken, die een verdichting van de stad mogelijk maken, in harmonie met de stedenbouwkundige, cultuurhistorische en landschappelijke waarden.

  • We dragen ook in het centrum bij aan het versterken van de groenstructuur van de stad. 

  • We realiseren schaduwroutes in de binnenstad. 

  • We faciliteren het organiserend vermogen van de binnenstad.

  • Door in te zetten op duurzame vormen van mobiliteit, verminderen we de rol van automobiliteit in en rondom het centrum. Dit komt de leefbaarheid ten goede en kan op termijn de barrière werking van de centrumring opheffen. Ook houden we de binnenstad zo bereikbaar en toegankelijk.

  • We stellen Parkeerbeleid op waarbij het betaald parkeren gebied wordt uitgebreid en waarbij we lagere parkeernormen willen gaan hanteren voor woningbouw. We kijken naar de mogelijkheden om de autoparkeereis te laten vervallen in het centrum ten gunste van hoogwaardige inpandige fietsstalmogelijkheden. Dit beleid is echter nog niet vastgesteld. Hierbij houden we rekening met de mindervalide Arnhemmers en bezoekers. Fietsparkeren gebeurt vooral inpandig. Het doel is om de druk op de openbare ruimte te verminderen.

  • We laten de maatschappelijke functies in het centrum meegroeien met de demografische ontwikkeling van het gebied.



Toetsing van het initiatief aan de Omgevingsvisie

Het (her)ontwikkelen van het Bartok Park Noord past binnen diverse gebiedskansen van Arnhem Centrum en sluit aan bij de ambitie-agenda. Het planvoornemen voorziet in het toepassen van een gemengde functie, waarbij wonen, maatschappelijke activiteiten (gerelateerd aan cultuur) en een invulling met openbare ruimte zijn toegestaan. In een later stadium wordt bepaald welke activiteit het meest passend is en nader uitgewerkt wordt. Voor de mogelijke woonactiviteit worden vier woningen gerealiseerd. De planontwikkeling draagt namelijk bij aan een toekomstbestendige binnenstad doordat er toegekomen wordt aan de huidige vraag naar woningen, een maatschappelijk activiteit (ten aanzien van cultuur) of een invulling met openbare ruimte.

Met het voorgenomen plan wordt bijgedragen aan de verdichtingsstrategie van het centrumgebied, het verminderen van de rol van automobiliteit in en richting het Rozetkwartier en het vergroten van de capaciteit voor inpandig fietsparkeren. Bij het uitwerken van het plan is voldoende rekening gehouden met de gebiedskansen en ambitie-agenda voor het Arnhem Centrum. Al met al heeft het voorgenomen plan een positieve uitwerking op de binnenstad, de nabij omgeving en de stad Arnhem als geheel en voldoet het voornemen daarmee aan de ambities uit de Omgevingsvisie.

4.3.2 Woonbeleid

In 'De Arnhemse Woonprincipes 2025' en het Plan van Aanpak: Woningbouwontwikkeling is opgenomen welke strategische koers we volgen die er zorg voor moet dragen dat Arnhem ook in de toekomst een aantrekkelijke woonstad blijft waar het voor iedereen aantrekkelijk is om te wonen.

Het Plan van Aanpak: Woningbouwontwikkeling bevat de marsroute over hoe we de komende jaren de woningbouw vorm willen geven. Om beschikbaarheid en betaalbaarheid van woningen in Arnhem op peil te houden moeten er de komende jaren meer woningen worden gerealiseerd . Dit geldt voor alle soorten woningen en voor alle doelgroepen: aantrekkelijke levensloopbestendige woningen voor ouderen, woningen voor kleine huishoudens, sociale woningbouw in goedkoop en betaalbaar segment, de middenhuurcategorie en het hogere segment. In het Plan van Aanpak is opgenomen dat over de projecten heen minimaal 30% aan sociale corporatiehuur gerealiseerd dient te worden.

De onderstaande vier pijlers vormen de hoofddoelen van de Arnhemse Woonprincipes:

1. Duurzaam betaalbaar: hierbij zorgen we dat er voor elk inkomen voldoende passende sociale en betaalbare woningen beschikbaar zijn. Daarbij sturen we niet alleen op aantallen, maar streven we ook naar een goede prijskwaliteit en op de duurzaamheid van woningen in de nieuwbouw en in de bestaande woningvoorraad.

2. Levensloopgeschikt wonen: door meer levensloopgeschikte woningen aan de voorraad toe te voegen én bestaande woningen aan te passen of op te plussen, kunnen we mensen, gezond of beperkt, in verschillende levensfases van hun leven, een passende woonplek blijven bieden in Arnhem.

3. Aantrekkelijke woonstad: Arnhem heeft door zijn centrale ligging een bijzondere ruimtelijke en groene kwaliteit. Met de binnenstad, de Rijn en stadsparken in combinatie met wonen, leren, werken en verblijven maakt het de stad vitaler. Arnhem wil een aantrekkelijke woonstad zijn en blijven voor haar huidige inwoners, maar wil ook meer studenten en midden- en hogere inkomens aan zich binden door het bieden van aantrekkelijke, levendige of bijzondere woonmilieus.

4. Wijken met identiteit: Elke wijk heeft zijn eigen herkenbare identiteit die recht doet aan de beleving van haar inwoners. Met deze variëteit wil de stad inzetten op een duurzame woon- en leefomgeving waar bewoners trots zijn op hun wijk, waar ze zich thuis en ook zelf verantwoordelijk voor voelen. Dat palet van eigen identiteit en karakters van wijken draagt bij aan de aantrekkingskracht van Arnhem als woonstad.

Wonen, Welzijn en Zorg

Er ligt op het gebied van Wonen, Welzijn en Zorg een stevige fysieke huisvestingsopgave. Door meer levensloopgeschikte woningen aan de voorraad toe te voegen én bestaande woningen preventief aan te passen of op te plussen, kunnen we mensen, gezond of beperkt, in verschillende levensfases van hun leven, een passende woonplek blijven bieden. We faciliteren het (langer) zelfstandig wonen, door in de directe of nabije woonomgeving mogelijkheden te scheppen dat arrangementen van (thuis)zorg, begeleiding, ondersteuning of andere vormen van dienstverlening en welzijnsvoorzieningen kunnen worden geboden.

Toetsing van het initiatief aan de Arnhemse Woonprincipes 2025 en Plan van Aanpak: Woningbouwontwikkeling

In voorliggend planvoornemen wordt voorzien in het toepassen van een gemengde functie, waarbij wonen, maatschappelijke activiteiten (gerelateerd aan cultuur) en een invulling met openbare ruimte zijn toegestaan. In een later stadium wordt bepaald welke activiteit het meest passend is en nader uitgewerkt wordt. Voor de mogelijke woonactiviteit wordt een viertal woningen gerealiseerd.

Indien voor deze uitwerking gekozen wordt, past het plan binnen de plancapaciteit, zoals binnen de subregio Arnhem en omgeving is afgestemd. Zie paragraaf 3.3 voor de verdere uitwerking van het woonprogramma. In de woondeal 2.0 is Bartok Park aangeduid als een van de lopende projecten waarbij het niet “haalbaar, mogelijk of wenselijk” was om de eis van twee derde betaalbaar op te leggen. Er wordt gestreefd naar een goede prijskwaliteit en een hoge mate van duurzaamheid bij de nieuwe woningen te realiseren, waarmee aan de eerste pijler en aan het Plan van Aanpak: Woningbouwontwikkeling wordt voldaan. De te realiseren woningen (vier woningen) zijn daarnaast geschikt voor meerdere levensfases, waarmee aan de tweede pijler wordt voldaan. Als laatste draagt het voornemen bij aan het creëren van een aantrekkelijke woonstad. De voorgenomen ontwikkeling zorgt voor een impuls voornamelijk op het gebied van wonen en verblijven in het zuidelijke gedeelte van de binnenstad. Hiermee wordt aan de derde pijler van het woonbeleid voldaan.

4.3.3 Verkeers- en mobiliteitsbeleid

Op 19 maart 2025 is het Duurzaam Mobiliteitsplan vastgesteld. De ambitie is een leefbare, gezonde en groene stad ook op het gebied van mobiliteit. Het plan gaat uit van het versterken van de alternatieven voor het individuele autogebruik, verlagen van de snelheid om de verkeersveiligheid te verbeteren en het uitbreiden van betaald parkeren rond het centrum en in de omgeving van woningbouwontwikkelingen. Daarnaast zijn het een aantal beleidsplannen al eerder vastgesteld welk zijn opgenomen in het Duurzaam Mobiliteitsplan.

Fiets

De 'Accentnota Fiets, Fietsambitie 2019-2024' (vastgesteld in januari 2020) bevat de Arnhemse fietsambitie voor de periode 2019-2024, met een doorkijk naar 2030. De nota is de start van een nieuwe aanpak waarin fietsvriendelijkheid centraal staat en meer tempo wordt gemaakt met uitvoering. Op basis van hoe de stad zich ontwikkelt en de betekenis van de fiets in de stad van de toekomst, wordt bepaald wat er nodig is om bewoners en forenzen te overtuigen om meer met de fiets te gaan. Daarin is de substantiële verbetering van de Arnhemse fietsinfrastructuur belangrijk, door de aanleg van meer stedelijke doorfietsroutes. De Accentnota sluit aan bij de uitgangspunten van de nieuwe regionale fietsambitie 'Samenwerkingsagenda fiets, regio Arnhem Nijmegen'.

De doelen van deze fietsambitie zijn:

  • meer fietsgebruik;

  • betere ontsluiting van stedelijke bestemmingen voor alle inwoners van de stad;

  • de binnenstad beter bereikbaar en aantrekkelijker maken voor fiets;

  • schone lucht en verminderen van CO2 uitstoot;

  • inspelen op de trend van toenemende stedelijke verdichting en urbanisatie;

  • het verduurzamen en toekomstvast maken van het stedelijk vervoersnetwerk;

  • het beïnvloeden van duurzaam stedelijk verplaatsingsgedrag.



Daarnaast heeft de gemeenteraad het Fietsparkeerplan Binnenstad vastgesteld, waarin verschillende grote fietsenstallingen zijn opgenomen. Daaronder ook de fietsenstalling Rozet, geprojecteerd op het gebied Bartok Park. Hier is een stalling voorzien van 550 tot 650 plekken.

Openbaar vervoer

In december 2018 zijn door de gemeenteraad het HOV-Actieplan en de Stadsnetten-visie vastgesteld. Deze twee beleidsdocumenten voor het openbaar vervoer hebben tot doel om de aantrekkelijkheid en concurrentiekracht van het stedelijk en regionaal OV te vergroten. Om daarmee de bereikbaarheid en economische aantrekkelijkheid van de regio en de steden te verbeteren. Het openbaar vervoer wordt toekomstvast door een kwaliteitsslag met als maatregelen:

  • een netwerk van Hoogwaardig Openbaar Vervoer;

  • een mobiliteit te bieden voor iedereen;

  • een emissieloos openbaar vervoer door middel van Trolley 2.0.



Toetsing van het initiatief aan het verkeers- en mobiliteitsbeleid

Het planvoornemen voorziet in het toepassen van een gemengde functie, waarbij wonen, maatschappelijke activiteiten (gerelateerd aan cultuur) en een invulling met openbare ruimte zijn toegestaan. In een later stadium wordt bepaald welke activiteit het meest passend is en nader uitgewerkt wordt. Zie paragraaf 3.2.2 voor de ruimtelijke opzet en structuur van het aspect verkeer en parkeren ten aanzien van de voorgenomen ontwikkeling in het projectgebied.

Autoparkeren voor eventuele toekomstige bewoners is voorzien in de nabijgelegen parkeergarage Rozet (circa 150 meter afstand). Conform het huidige gemeentelijke parkeerbeleid is het onder voorwaarden toegestaan dat het parkeren buiten de eigen plot wordt opgelost. Bij de aanvraag van de omgevingsvergunning moet worden aangetoond hoe de parkeeropgave conform de dan geldende parkeernorm wordt opgelost. Hierbij garandeert de gemeente Arnhem namelijk tot minimaal eind december 2036 de beschikbaarheid van het aantal bewonersabonnementen in de parkeergarage Rozet (of vervangende nieuwbouw in de nabije omgeving tot 500 meter) dat op moment van aanvraag omgevingsvergunning geldende beleid benodigd is, tot een maximum van het aantal woningen/adressen binnen de voorgenomen ontwikkeling,  uitgaande van één bewonersabonnement per adres. Daarnaast zullen de adressen van de nieuwe woningen worden uitgesloten van een parkeervergunning. Deze uitsluiting van een parkeervergunning zal worden opgenomen in de gemeentelijke regelgeving (thans Uitwerkingsbesluit Parkeren).

4.3.4 Duurzaamheidsbeleid

New Energy made in Arnhem

Het gemeentelijke beleid op het gebied van duurzaamheid is vastgelegd in het Programmaplan New energy made in Arnhem 2020-2030 (op 29 januari 2020 vastgesteld door de gemeenteraad) en De Arnhemse Aanpak van de wijkgerichte Energietransitie (op 15 april 2019 vastgesteld door de gemeenteraad).

Transitievisie Warmte

In de Transitievisie Warmte (vastgesteld door de gemeenteraad op 17 februari 2022) is vastgelegd dat alleen lage temperatuur verwarming (LT – 35 – 50 graden Celsius) of zeer lage temperatuur verwarming is toegestaan als warmtevoorziening voor nieuwbouw. De beschikbare midden en hoge temperatuur bronnen zijn nodig om de bestaande stad van het gas af te krijgen.

Circulaire economie 

De Visie circulaire economie Arnhem is op 3 november 2020 door de gemeenteraad vastgesteld. Voor nieuwbouwplannen is minimaal 25% toepassen van circulaire bouwmaterialen in projecten opgenomen. Hoe dit wordt toegepast, is aan de ontwikkelaar.

Strategie klimaatadaptatie

In de strategie klimaatadaptatie zijn ambities benoemd om Arnhem klimaatbestendiger te maken. Belangrijk uitgangspunt is dat het klimaatbestendig maken van Arnhem wordt meegenomen in alle ruimtelijke plannen. Voor ontwikkelingen is van belang:

  • het oppervlakte verharding tot een minimum te beperken;

  • hemelwater van gebouwen af te koppelen;

  • de openbare ruimte dusdanig in te richten zodat zware buien zo min mogelijk overlast veroorzaken;

  • de bebouwing in deze velden heeft een zodanige verkaveling dat de ontwikkeling geen effect heeft op de verkoelende winden naar de stad;

  • er wordt een balans gezocht tussen verdichten (toename bebouwing en verharding) en groen/blauwe inrichting zodat de gevoelstemperatuur aangenaam blijft;

  • de ontwikkeling niet mag leiden tot een verslechtering op het gebied van hittestress.



Toetsing van het initiatief aan het duurzaamheidsbeleid

In paragraaf 5.7 wordt nader stilgestaan bij het aspect duurzaamheid en is terug te lezen dat er binnen de ontwikkeling op verschillende manieren invulling wordt gegeven aan ambities rondom duurzaamheid.

5 Omgevingsaspecten

5.1 Inleiding

De regels in het omgevingsplan moeten leiden tot een evenwichtige toedeling van functies aan locaties. Dit staat in artikel 4.2, eerste lid, Omgevingswet. Hierbij moet rekening worden gehouden met alle betrokken belangen. Het omgevingsplan dient te voldoen aan de instructieregels uit het Besluit kwaliteit leefomgeving (Bkl) en aan het gemeentelijk beleid.

In dit hoofdstuk worden de verschillende milieu- en omgevingsaspecten onderbouwd.

5.2 Stedenbouwkundige aspecten

5.2.1 Verhouding tot de omgeving

Het projectgebied is gelegen in het Rozetkwartier gelegen aan de rand van de historische binnenstad van Arnhem. Het Rozetkwartier heeft mede voor de transformatie en revitalisatie van de zuidelijke binnenstad gezorgd. De stedelijke context bestaat voornamelijk uit diverse volumes, voortkomend uit diverse ontwikkelingen in de afgelopen jaren (Cultureel Centrum Rozet, Holiday Inn Hotel en Albert Heijn met appartementen). Het projectgebied ter plaatse van het Bartok Park is in de bestaande situatie een braakliggend terrein dat met hekken is afgeschermd van de openbare ruimte. De ontwikkeling van het projectgebied draagt bij aan het activeren van het aan te leggen Bartokplein en de nieuwe stegen. De schaal en maat van de nieuwbouw is afgestemd op de omliggende bebouwing.

5.2.2 Beeldkwaliteit

De Arnhemse Welstandsnota is in 2015 vastgesteld. Arnhem is een aantrekkelijke stad om te wonen en te verblijven. Het uiterlijk van de stad draagt daar aan bij. De gemeente wil dat zo houden. Vanuit het oogpunt dat nieuwe bouwwerken in zijn algemeenheid moeten passen in hun omgeving vormt de bestaande stad het referentie- en inspiratiekader. Voor de meest voorkomende bouwwerken zijn in deze nota gebiedsgerichte criteria opgenomen. Deze criteria zijn per gebied ('géén toets', 'lichte toets' en 'zware toets') anders. Hierna is een kaart met de onderverdeling van de gebieden opgenomen. Het projectgebied is globaal weergegeven met een rode omlijning.

afbeelding binnen de regeling
Afbeelding 5.1: Welstandskaart 2015 Bron: Welstandsnota 2015

Gebied met zware welstandstoets

Een zware toets geldt alleen voor die delen van de stad waar de kwaliteiten voor een belangrijk deel bepaald worden door aspecten die alleen met welstandsregels gestuurd kunnen worden, zoals de architectuur en het materiaalgebruik. Het gaat om gebieden met bijzondere cultuurhistorische waarde die een formele beschermde status hebben als rijks- of gemeentelijk beschermd stads- en dorpsgezicht. Een voorbeeld hiervan is de oude Arnhemse binnenstad.

Voor dit welstandsniveau gelden alle ‘traditionele’ welstandsregels. De regels zijn bedoeld om de bijzondere en karakteristieke kenmerken te behouden. Ze gelden voor alle gevels die zichtbaar zijn vanaf het openbaar gebied. Uitgangspunt is dat bij aanpassingen de bestaande gevelindeling, materiaalgebruik en detailleringen worden gerespecteerd. Wanneer het om een gemeentelijk- of rijksmonument gaat dan gelden de standaard criteria niet maar wordt altijd maatwerk geleverd. De excessenregeling en beperkingen met betrekking tot reclame zijn ook in deze gebieden van toepassing.

Gelet op de welstandskaart kent de locatie van het projectgebied een zware welstandstoets.

Toets in omgevingsplan 

Voor de voorgenomen ontwikkeling in het projectgebied is ten aanzien van het Voorlopig Ontwerp (VO) een positief advies gegeven door het Advies Kwaliteitsteam Binnenstad Zuid Arnhem (Q-team).

5.2.3 Privacy

Het projectgebied is gelegen in de binnenstad van Arnhem. De afstand en de tussengelegen infrastructuur maken dat in een stedelijke omgeving van de binnenstad de privacy van omwonenden en van toekomstige gebruikers van het projectgebied niet onevenredig wordt geschaad. 

5.3 Mobiliteit

5.3.1 Verkeer en parkeren

Op 19 maart 2025 is het Duurzaam Mobiliteitsplan vastgesteld. De ambitie is een leefbare, gezonde en groene stad ook op het gebied van mobiliteit. Het plan gaat uit van het versterken van de alternatieven voor het individuele autogebruik, verlagen van de snelheid om de verkeersveiligheid te verbeteren en het uitbreiden van betaald parkeren rond het centrum en in de omgeving van woningbouwontwikkelingen. Daarnaast zijn het een aantal beleidsplannen al eerder vastgesteld welk zijn opgenomen in het Duurzaam Mobiliteitsplan.

Fiets

De 'Accentnota Fiets, Fietsambitie 2019-2024' (vastgesteld in januari 2020) bevat de Arnhemse fietsambitie voor de periode 2019-2024, met een doorkijk naar 2030. De nota is de start van een nieuwe aanpak waarin fietsvriendelijkheid centraal staat en meer tempo wordt gemaakt met uitvoering. Op basis van hoe de stad zich ontwikkelt en de betekenis van de fiets in de stad van de toekomst, wordt bepaald wat er nodig is om bewoners en forenzen te overtuigen om meer met de fiets te gaan. Daarin is de substantiële verbetering van de Arnhemse fietsinfrastructuur belangrijk, door de aanleg van meer stedelijke doorfietsroutes. De Accentnota sluit aan bij de uitgangspunten van de nieuwe regionale fietsambitie 'Samenwerkingsagenda fiets, regio Arnhem Nijmegen'.

De doelen van deze fietsambitie zijn:

  • meer fietsgebruik;

  • betere ontsluiting van stedelijke bestemmingen voor alle inwoners van de stad;

  • de binnenstad beter bereikbaar en aantrekkelijker maken voor fiets;

  • schone lucht en verminderen van CO2 uitstoot;

  • inspelen op de trend van toenemende stedelijke verdichting en urbanisatie;

  • het verduurzamen en toekomstvast maken van het stedelijk vervoersnetwerk;

  • het beïnvloeden van duurzaam stedelijk verplaatsingsgedrag.



Daarnaast heeft de gemeenteraad het Fietsparkeerplan Binnenstad vastgesteld, waarin verschillende grote fietsenstallingen zijn opgenomen. Daaronder ook de fietsenstalling Rozet, geprojecteerd op het gebied Bartok Park. Hier is een stalling voorzien van 550 tot 650 plekken.

Openbaar vervoer

In december 2018 zijn door de gemeenteraad het HOV-Actieplan en de Stadsnetten-visie vastgesteld. Deze twee beleidsdocumenten voor het openbaar vervoer hebben tot doel om de aantrekkelijkheid en concurrentiekracht van het stedelijk en regionaal OV te vergroten. Om daarmee de bereikbaarheid en economische aantrekkelijkheid van de regio en de steden te verbeteren. Het openbaar vervoer wordt toekomstvast door een kwaliteitsslag met als maatregelen:

  • een netwerk van Hoogwaardig Openbaar Vervoer;

  • een mobiliteit te bieden voor iedereen;

  • een emissieloos openbaar vervoer door middel van Trolley 2.0.



Situatie projectgebied

Het projectgebied en de directe omgeving (Bartokplein en de stegen) gaan onderdeel uitmaken van het voetgangersgebied van de binnenstad. Dat betekent dat het gebied niet per auto is en de fiets alleen aan de hand meegevoerd kan worden. De omgeving van het projectgebied kent een goede bereikbaarheid te voet, per fiets en per openbaar vervoer. Autoparkeren voor bewoners en gebruikers vindt plaats in de nabijgelegen parkeergarage Rozet (circa 150 meter afstand) en fietsparkeren voor bewoners/gebruikers moet binnen de plot gerealiseerd worden. Voor bezoekers is het fietsparkeren voorzien in de publieke fietsenstalling in Bartok Park Zuid. Het Rozetkwartier kent een goede infrastructurele verbinding met de binnenstad en naar overige richtingen van Arnhem. Dit geldt voor voetgangers, fietsers, openbaar vervoer en automobilisten. Daarnaast voorziet de voorgenomen ontwikkeling in een sluitende parkeerbalans, voor zowel de auto als de fiets. Op deze wijze sluit de ontwikkeling aan op het verkeers- en mobiliteitsbeleid van Arnhem. De ontwikkeling laat daardoor een positieve uitwerking zien op het gebied van mobiliteit in en rondom het projectgebied.

Geconcludeerd wordt dat het aspect mobiliteit ten aanzien van verkeer en parkeren geen belemmering vormt voor het planvoornemen.

5.4 Milieu

5.4.1 Geluid

Besluit kwaliteit leefomgeving

In het Besluit kwaliteit leefomgeving zijn in afdeling 3.5 regels opgenomen voor het geluid door wegen, spoorwegen en industrieterreinen. Er moet akoestisch onderzoek verricht worden wanneer geluidgevoelige gebouwen geheel of gedeeltelijk binnen een geluidaandachtsgebied komen te liggen. Er wordt daarbij gewerkt met een standwaarde en grenswaarde. Voor rijkswegen en provinciale wegen, gemeente- en waterschapswegen, hoofd- en lokale spoorwegen en industrieterreinen gelden ieder eigen standaard- en grenswaarden volgens het Bkl.

De standaardwaarden hebben als doel geluidhinder te voorkomen en te beperken tot aanvaardbare geluidniveaus. Maar ook voor het aspect geluid geldt dat wordt gekeken naar een evenwichtige toedeling van functies aan locaties. De aanvaardbaarheid van zowel geluidbelasting als geluidhinder is afhankelijk van de planologische context; in een woonwijk worden andere geluidniveaus aangetroffen en verwacht dan in een bruisend stadscentrum. Een overschrijding van de standaardwaarden kan daarmee door het bevoegd gezag acceptabel worden geacht en hoeft geen obstakel te zijn. Wel geldt dat in het Bkl grenswaarden zijn opgenomen waarboven er doorgaans geen aanvaardbaar geluidniveau kan bestaan. Bij een geluidbelasting boven deze grenswaarde is de ontwikkeling niet zonder meer mogelijk.

Beleidsplan Geluid

Het beleidsplan Geluid heeft tot doel geluidsnormen voor nieuwe situaties af te stemmen op de aard en de functie van een gebied. Hierdoor kan beter rekening gehouden worden met ontwikkelingen en verwachting van de gebruikers van een gebied. In het centrum en dichtbij goed openbaar vervoer wil de gemeente Arnhem veel functies mogelijk maken. Als gebieden intensiever gebruikt worden neemt de kans op geluidhinder ook toe. Andere gebieden zoals de parken worden juist gewaardeerd om hun relatieve rust. Deze uitgangspunten hebben geleid tot een gebiedsgerichte invulling van geluidskwaliteiten binnen Arnhem. Naarmate de geluidbelasting hoger is neemt het belang van een zorgvuldige invulling van de totale leefomgevingskwaliteit toe.

Vanwege de dominante woonfunctie in de stadswijken is de na te streven milieubelasting laag. Alleen aan de randen van de stadswijken, waar deze grenzen aan verkeerswegen, wordt een hogere geluidsbelasting toegestaan (-1, onrustig (48 db tot 53 dB) tot –2, zeer onrustig (53 dB tot 58 dB)).

Hinder

In het kader van bedrijven en milieuzonering dienen de effecten van inrichtingen op hun omgeving (gevoelige bestemmingen, waaronder eventueel nieuw te ontwikkelen woningen) in beeld gebracht te worden. Voorbeelden van hinder zijn geluid, geur, stof of gevaar. In de VNG-publicatie 'Bedrijven en milieuzonering 2009' is een lijst van inrichtingen opgenomen waarbij de inrichtingen op grond van de hinder die zij veroorzaken, zijn opgedeeld in 6 categorieën. Hierbij wordt er vanuit gegaan dat een inrichting uit categorie 1 relatief weinig hinder veroorzaakt en een inrichting uit categorie 6 bijzonder veel hinder veroorzaakt.

In de Omgevingswet wordt niet langer gewerkt met de term inrichting en wordt gesproken over milieubelastende activiteiten. Omdat in voorliggende situatie het gemeentebrede omgevingsplan nog gereed is en daarmee de bestemmingsplannen nog onderdeel uitmaken van omgevingsplan, is het kader van de VNG-publicatie nog wel relevant.

Situatie projectgebied

De voorgenomen ontwikkeling voorziet in nieuwe bebouwing dat woonfuncties omvat en daarom vormen het geluidgevoelige gebouwen. Het projectgebied is gelegen aan de rand van de binnenstad van Arnhem op korte afstand van een horecagelegenheid, namelijk "Konijnenvoer" en culturele functie: "Theater aan de Rijn". Het projectgebied ligt niet binnen de geluidaandachtsgebieden van de verschillende type wegen. De omliggende wegen hebben een verkeersintensiteit van lager dan 1.500 motorvoertuigen per etmaal. Hierdoor is een akoestisch onderzoek naar wegverkeerslawaai niet benodigd.

Het voornemen is om ter plaatse van het projectgebied een viertal gebouwen te plaatsen, de bestemming hiervoor is nog open. Afhankelijk van de resultaten van onderhavig onderzoek kan hiervoor een beslissing worden genomen. Voorkeur is om hier de bestemming 'wonen' toe te passen, indien dit niet mogelijk is wil men hier bedrijven met een lagere milieucategorie toelaten.

Indien het projectgebied een maatschappelijke functie krijgt, dient te worden onderzocht of er sprake is van een evenwichtige toedeling van functies aan locaties. Hiervoor dient de maximaal planologische geluidbelasting te worden getoetst ter plaatse van bestaande woningen. Om het geluidsniveau ter plaatse van de voorgenomen ontwikkeling inzichtelijk te maken is door Cauberg Huygen een akoestisch onderzoek ten aanzien van het omgevingsgeluid uitgevoerd. De volledige rapportage hiervan is opgenomen als Bijlage 2 bij deze motivering. Hieronder is de samenvatting van het onderzoek opgenomen:

Beoordeling woningen

De activiteiten van Theater van Rijn en Konijnenvoer zorgen voor (forse) overschrijdingen bij de nieuwe woningen. De overschrijdingen worden veroorzaakt door:

  • het laden en lossen in de dagperiode bij bar de Groen;

  • het gebruik van het terras van bar de Groen in de avondperiode;

  • het gebruik van de foyer als horecagelegenheid in de avond- en nachtperiode;

  • het laden en lossen in de dag- en nachtperiode (laden in de nachtperiode is maatgevende bron);

  • en het terras in de avondperiode.



Met dergelijke hoge geluidbelasting dienen er maatregelen te worden getroffen aan de bron, overdrachtsgebied of ontvanger. Een andere mogelijkheid is om de gevel als niet-geluidgevoelige gevel in het omgevingsplan op te nemen. Een niet-geluidgevoelige gevel is een gevel die na een belangenafweging in het omgevingsplan de aanduiding 'niet-geluidgevoelig' krijgt. Een niet-geluidgevoelige gevel kan alleen worden toegepast als het onvermijdelijk is. Dat kan bij zwaarwegende economische belangen of zwaarwegende andere maatschappelijke belangen. En waar het ook niet mogelijk is om maatregelen te nemen.

Beoordeling bedrijvigheid

Bij een theoretische invulling van het plangebied, waarbij muziekgeluid aanwezig is, is de hoogst berekende geluidbelasting 48 dB(A) (inclusief strafcorrectie) in zowel de dag- als avondperiode. Hiermee wordt niet voldaan aan de normstelling van 45 dB(A) in de avondperiode. In de dagperiode wordt wel voldaan aan de gestelde eis. Aan de eis van 55 dB(A) etmaalwaarde conform het gemeentelijk beleid wordt voldaan. Aangezien het gebouw nog niet gereed is kan men met maatregelen voldoen aan de gestelde grenswaardes. Geadviseerd wordt om bij het ontwerp van het gebouw rekening te houden met de mogelijke invulling van het gebouw.

5.4.2 Lucht

De Europese richtlijnen voor luchtkwaliteit zijn geïmplementeerd in het Besluit kwaliteit leefomgeving. Het doel van deze wetgeving is het beschermen van mens en milieu tegen de negatieve effecten van luchtverontreiniging. De wet is primair gericht op het voorkomen van negatieve effecten op de gezondheid van de mens. Daarnaast zijn er voor de stoffen zwaveldioxide en stikstofoxiden ook normen opgenomen ter bescherming van ecosystemen.

Voor het toetsen van ruimtelijke plannen zijn de volgende omgevingswaarden het meest relevant:

  • PM10 (fijnstof)

    • de jaargemiddelde concentratie van 40 pg PM10/m3 mag niet worden overschreden;

    • de 24 uursgemiddelde concentratie van 50 pg PM10/m3 mag niet vaker dan 35 keer per jaar worden overschreden.

  • NO2 (stikstofdioxide)

    • de jaargemiddelde concentratie van 40 pg NO2/m3 mag niet worden overschreden;

    • de uurgemiddelde concentratie van 200 pg NO2/m3 mag niet vaker dan 18 keer per jaar worden overschreden.



Voor de overige stoffen worden in Nederland geen overschrijdingen gerapporteerd.

In de artikelen 5.53 en 5.54 van het Besluit kwaliteit leefomgeving is bepaald wanneer activiteiten 'niet in betekenende mate' (NIBM) bijdragen aan de verslechtering van de luchtkwaliteit. In deze situaties is toetsing aan de omgevingswaarden niet noodzakelijk.

Situatie projectgebied

De voorgenomen ontwikkeling voorziet in het toepassen van een gemengde functie, waarbij wonen,  maatschappelijke activiteiten (gerelateerd aan cultuur) en een invulling met openbare ruimte zijn toegestaan. In een later stadium wordt bepaald welke activiteit het meest passend is en nader uitgewerkt wordt. Het plan draagt daarom 'niet in betekenende mate' (NIBM) bij aan de verslechtering van de luchtkwaliteit. Raadpleging van de achtergrondconcentraties uit de Atlas Leefomgeving heeft aangetoond dat er geen sprake is van (dreigende) overschrijdingen van de omgevingswaarden uit het Bkl. De blootstelling aan luchtverontreiniging is hierdoor beperkt en leidt niet tot onaanvaardbare gezondheidsrisico's. Op basis hiervan vormt het plan op het gebied van luchtkwaliteit geen belemmering.

5.4.3 Omgevingsveiligheid

Landelijk gebied

Omgevingsveiligheid gaat om de risico's van het gebruik en transport van gevaarlijke stoffen, de veiligheid van inrichtingen en de veiligheid van nieuwe, zich snel ontwikkelende technologieën. Onder omgevingsveiligheid vallen ook de risico's door luchthavens en windturbines. In paragraaf 5.1.2.1 van het Besluit kwaliteit leefomgeving zijn de algemene bepalingen met betrekking tot het waarborgen van de veiligheid opgenomen. Hieruit volgt dat in een omgevingsplan voor risico's van branden, rampen en crises, rekening wordt gehouden met het voorkomen, beperken en bestrijden daarvan, de mogelijkheden voor personen om zich daarbij in veiligheid te brengen en de geneeskundige hulpverlening. Voor zowel de handelingen met gevaarlijke stoffen bij bedrijven als het transport van gevaarlijke stoffen zijn drie aspecten van belang, het plaatsgebonden risico (PR), aandachtsgebieden en het groepsrisico (GR).

Gemeentelijk beleid

Het beleidsplan externe veiligheid van de gemeente Arnhem beschrijft de mate van gewenste externe veiligheid in Arnhem. Uitgangspunt hierbij zijn de landelijke normen voor het plaatsgebonden risico en het groepsrisico. In een groot gedeelte van de stad streven we naar het niet doen toenemen van de risico's. Op sommige plekken in de stad, op bedrijventerreinen voor zware industrie en de volgens het structuurplan stedelijke zone accepteren we een hoger risico dan op andere plaatsen. Wel moet daar extra aandacht zijn voor de beschikbare mogelijkheden voor rampenbestrijding, de zelfredzaamheid van mensen en de hulpverlening.

Situatie projectgebied

De voorgenomen ontwikkeling voorziet in het toepassen van een gemengde functie, waarbij wonen, maatschappelijke activiteiten (gerelateerd aan cultuur) en een invulling met openbare ruimte zijn toegestaan. In een later stadium wordt bepaald welke activiteit het meest passend is en nader uitgewerkt wordt.

Het projectgebied ligt niet binnen de invloedsferen van risicobronnen welke in kaart zijn gebracht in het kader van omgevingsveiligheid. Een verdere toetsing of onderzoek naar omgevingsveiligheid is dan ook niet noodzakelijk.

5.4.4 Bodem

Voor deze ontwikkellocatie is getoetst of de bodemkwaliteit (inclusief grondwater) de gewenste ruimtelijke ontwikkelingen toelaat. Ook is getoetst of een eventuele bodemverontreiniging gevolgen heeft voor de financiële uitvoerbaarheid van de ontwikkeling.

Als toetskader wordt gebruik gemaakt van de volgende bodemregelgeving:

  • Besluit kwaliteit leefomgeving;

  • Beleidsnota bodem 2012, Provincie Gelderland, gemeente Arnhem en gemeente Nijmegen, 1 december 2012;

  • Nota Bodembeheer, september 2011



Situatie projectgebied

Om de bodemkwaliteit ter plaatse van de voorgenomen ontwikkeling inzichtelijk te maken is door Infrasoil een verkennend bodemonderzoek uitgevoerd. De volledige rapportage hiervan is opgenomen als Bijlage 4 bij deze motivering. Hieronder is de samenvatting van het onderzoek opgenomen:

Het doel van dit bodemonderzoek is het, conform de NEN 5740-systematiek, bepalen van de kwaliteitsklasse voor de landbodem en grond en of deze geschikt is voor de bodemfunctieklasse (landbouw en natuur/wonen/industrie). Aanvullend is de locatie conform de NEN 5707 op het voorkomen van asbest in de bodem onderzocht.

Op basis van het bodemonderzoek zijn de onderstaande resultaten bekend geworden. 

  • Tijdens het vooronderzoek is naar voren gekomen dat de locatie al ver vóór 1900 in gebruik was als bebouwing van stadcentrum Arnhem. In eerder uitgevoerde bodemonderzoeken zijn sterk verhoogde gehaltes aangetroffen aan met name lood en zink, die vermoedelijk verband houden met puin/koolresten in de stedelijke ophooglaag. Op 13 mei 2009 heeft de gemeente Arnhem de locatie Weverstraat/Kortestraat beschikt als ernstig niet spoedeisend (Kenmerk 2008‑12‑01788/2071.51.01). 

  • Tijdens het veldwerk zijn er veel bijmengingen waargenomen welke kunnen duiden op een bodemverontreiniging. De bijmengingen betreffen voornamelijk brokken baksteen, puin en brokken beton. Één boring is op 0,8 m-mv gestaakt op een muur/ funderingsresten. 

  • Alle grondmengmonsters in het onderzoek uit 2024 voldoen aan de eis voor een bodemgevoelige locatie, zijnde klasse wonen of industrie.

  • In het grondwater is geen verontreinging van betekenis aangetroffen.

  • Aangezien de locatie, door het voorkomen van bijmengingen, verdacht is op asbest zijn 5 asbestanalyses opgevoerd. Uit de resultaten blijkt dat er geen asbest aanwezig is.

  • Het rapport verklaart de lagere concentraties aan zware metalen (die afwijken van de resultaten van eerder onderzoek) door de tussentijdse oplevering   "schoon van slooppuin" van het terrein, waarbij de stedelijke ophooglaag ook deels is 'uitgeriekt'. Van de gevolgde onderzoeksopzet (NEN 5740/5707 VED-HE-NL, paragraaf 5.6) is men echter afgeweken door mengmonsters samen te stellen van een groter aantal monsters dan conform de NEN. 

  • De resultaten laten zien dat de bodemkwaliteit mogelijk wel verbeterd is, maar het rapport kan (door de afwijkende bemonstering) niet gezien worden als vervanging van de eerder uitgevoerde onderzoeken waarbij sterk verhoogde gehalten werden aangetroffen.



Een deel van het projectgebied (ter plaatse van Bartok Park Noord) is beschikt als sterk verontreinigd. Hier zijn sanerende maatregelen nodig om het terrein geschikt te maken voor de beoogde functies. In de ontwikkeling is rekening gehouden met saneringskosten.

Conclusie

Een deel van het projectgebied (ter plaatse van Bartok Park Noord) is beschikt als sterk verontreinigd. Hier zijn sanerende maatregelen nodig om het terrein geschikt te maken voor de beoogde functies. De niet beschikte delen van het projectgebied zijn van voldoende kwaliteit voor de beoogde functies. In de ontwikkeling is rekening gehouden met saneringskosten.

5.4.5 Water

Rijksbeleid

De nationale belangen en de strategische keuzes voor het thema Water zijn vastgelegd in de Nationale Omgevingsvisie. De uitwerking hiervan heeft een plek gekregen in het Nationaal Water programma 2022-2027. Het plan geeft een overzicht van de ontwikkelingen binnen het waterdomein en legt nieuw ontwikkeld beleid vast. De belangrijkste ambities richten zich op schoon, veilig en voldoende water dat klimaatadaptief en toekomstbestendig is. De Nationale Adaptatie Strategie (2016) is het overkoepelende beleid voor klimaatadaptatie en het klimaatadaptief maken van Nederland is water één van de belangrijkste thema’s en het thema komt terug in de onderwerpen waterveiligheid, wateroverlast en droogte. In het Deltaplan Ruimtelijke Adaptatie staan de processen en maatregelen beschreven die moeten zorgen dat Nederland in 2050 uiteindelijk klimaatbestendig en waterrobuust ingericht is. Daarnaast is het belang van water als (mede)ordenend principe in de kamerbrief “Water & Bodem sturend” uit 2022 nog eens bevestigd.

In de Omgevingswet zijn onder meer de gemeentelijke watertaken opgenomen: de zorgplicht voor hemelwater indien de eigenaar van het terrein het hemelwater in alle redelijkheid niet op eigen terrein kan verwerken en de regierol van gemeenten bij de grondwaterzorgplicht.

Beleid waterschap en gemeente

De verantwoordelijkheid voor het stedelijk waterbeheer in het centrum van Arnhem ligt bij het Waterschap Rijn en IJssel. Relevant beleid voor de gemeente Arnhem is de Waterschapsverordening en de legger van het Waterschap.

  • Het waterbeleid van de gemeente Arnhem is vastgelegd in de volgende beleidsplannen;

  • Gemeentelijk RioleringsPlan; dit plan richt zich op een verbetering van de kwaliteit van het rioleringsstelsel, op de vermindering van de vuiluitworp naar het oppervlaktewater, de bodem en het grondwater, op het voorkomen van overlast en op het vasthouden van schoon hemelwater in stedelijk gebied;

  • Aanpak wateroverlast Arnhem-Noord (2015). Het plan heeft tot doel om Arnhem en vooral Arnhem-Noord, beter bestendig te maken tegen zware regenbuien. Hiervoor worden tijdens werkzaamheden in de openbare ruimte maatregelen genomen die wateroverlast verminderen dan wel beperken. Over alle plannen in de openbare ruimte wordt een waterscan gelegd.

  • Strategie klimaatadaptatie 2020-2030. In deze 'Strategie Klimaatadaptatie Arnhem' geven we aan hoe en wat we de komende tien jaar, tot 2030, gaan doen om onze stad klimaatbestendiger te maken. Waar we dit kunnen doen door klimaatadaptatie te combineren met vergroenen doen we dat. Waar we werken aan de stad nemen we klimaatadaptatie mee. En we doen het samen; iedereen is nodig voor een succesvolle aanpak: bewoners, bedrijven, organisaties en instellingen en natuurlijk de overheid.



Resumé

Uitgangspunt in het huidige beleid van gemeente, waterschap, provincie en het rijk is dat planontwikkeling moet aansluiten bij een duurzaam integraal waterbeheer. Dit betekent dat:

  • negatieve verstoring van de grondwaterstanden en –stromingen niet toegestaan zijn om grondwateroverlast en/of verdroging op de locatie en het boven- en benedenstrooms gelegen gebied te voorkomen;

  • maatregelen getroffen moeten worden ter voorkoming van (grond)watervervuiling;

  • bij nieuwbouw het regenwater binnen het projectgebied afgekoppeld moet worden van de riolering en worden verwerkt op eigen terrein;

  • voldoende oppervlaktewater aanwezig is met voldoende obstakel vrije ruimte om dit water doelmatig te kunnen onderhouden en op de goede locatie;

  • het verhard oppervlak zoveel mogelijk beperkt wordt;

  • het gebruik van uitloogbare materialen en chemische bestrijdingsmiddelen niet is toegestaan;

  • ontwikkelingen moeten bijdragen aan het verminderen of beperken van wateroverlast;



Situatie projectgebied

Hemelwater

Ten aanzien van de waterhuishoudkundige analyse voor de toekomstige situatie in het projectgebied is door BOOT een 'weging van het waterbelang inclusief klimaatthema's' opgesteld. De rapportage is bijgevoegd als Bijlage 3. Het doel hiervan is om zo de belangen van het watersysteem in de planvorming te borgen en invulling te geven aan een duurzame waterhuishouding. Hierbij is het projectgebied samengevoegd met het projectgebied van de nabijgelegen planontwikkeling Bartok Park Zuid, waardoor er één groter projectgebied voor deze onderzoeksrapportage is gehanteerd.

Doordat in de toekomstige situatie de verharding in het projectgebied toeneemt, dient een watercompensatie gerealiseerd te worden. Vanuit het Waterschap Rijn en IJssel geldt dat over de toename van verhard oppervlak (met meer dan 500 m²) 80 mm berging gerealiseerd dient te worden. Vanuit de gemeente Arnhem dient over het totaal toekomstig verhard oppervlak binnen het projectgebied 40 mm berging gerealiseerd te worden. Op basis hiervan is onderstaande berging benodigd voor de ontwikkelingen binnen het projectgebied: 

  • Waterschap Rijn en IJssel: 1.580 m² * 80 mm = 126 m³

  • Gemeente Arnhem: 2.937 m² * 40 mm = 117 m³



Op basis van de benodigde berging wordt, wanneer voldaan wordt aan de eisen van het Waterschap Rijn en IJssel, ook voldaan aan de eisen vanuit de gemeente Arnhem. Daarom dient 126 m³ berging binnen het projectgebied gerealiseerd te worden.

Ten aanzien van de wateropgave op eigen terrein in het projectgebied zijn op dit moment nog geen exacte oplossingen voor het ontwerp te beschrijven. Hiervoor wordt nog een infiltratieonderzoek uitgevoerd in week 25/26 van 2025 (ter plaatse van het toekomstige nabijgelegen openbare gebied). Na afronding van het infiltratieverzoek zullen de resultaten van het onderzoek in deze weging van het waterbelang verwerkt worden.

Uitgangspunt van de watercompensatie is dat de verharding op uitgeefbaar terrein zoveel mogelijk op uitgeefbaar terrein gecompenseerd wordt en plaatselijk kan infiltreren. Op het uitgeefbaar terrein is het voornemen om de waterberging te realiseren in de vorm van groen-blauwdaken en infiltratiekratten. Mogelijkheden naar het hergebruiken van hemelwater worden nog verkend.

Voor de openbare ruimte is het uitgangspunt dat indien mogelijk het hemelwater opgevangen, geborgen en kan infiltreren met behulp van infiltratieputten. Middels het infiltratieonderzoek dient te worden aangetoond of infiltratie mogelijk is op de locatie. De uiteindelijke vormgeving van de waterbergende voorzieningen wordt daarom pas beschreven in de vast te stellen weging van het waterbelang.

Ten aanzien van de waterberging op eigen terrein is een voorwaardelijke verplichting opgenomen in de regels van voorliggend TAM-omgevingsplan.

In verband met de afwezigheid van leem- of kleilagen in de diepere ondergrond zal, indien infiltratie mogelijk is, het water infiltreren naar de diepere ondergrond.

Waterkering

Er liggen geen waterkeringen met betreffende beschermingszone nabij het projectgebied.

Waterketen

Betreft het vuilwaterafvoer wordt aangesloten op het gemeentelijk riool. De uitwerking ten aanzien van het vuilwater is ook opgenomen in Bijlage 3.

5.4.6 Geur

Geurhinder van industriële bedrijven

Het beleidsplan Geur uit 2010 gaat in op geur afkomstig van industriële bedrijven waarvoor de gemeente Arnhem het bevoegde gezag is. Milieubeleid kan een positieve bijdrage leveren aan maatschappelijke thema's als gezondheid, veiligheid, leefbaarheid, duurzaamheid en ruimtelijke kwaliteit. Geur is een milieuaspect dat een belangrijke bijdrage levert aan de leefbaarheid. Het geurbeleid van de gemeente Arnhem sluit, voor zover dat mogelijk is, aan op het geurbeleid van de provincie Gelderland. Het doel van het geurbeleid is dat inwoners van Arnhem nu en in de toekomst niet worden blootgesteld aan geuroverlast door industriële bedrijven.

Situatie projectgebied

Het projectgebied ligt niet binnen de invloedsferen van industriële/agrarische bedrijvigheid of (geurbelastende) horeca, ter hoogte van het projectgebied is geen sprake van geurhinder.

5.4.7 Ontplofbare Oorlogsresten

Tijdens de Tweede Wereldoorlog hebben er oorlogshandelingen plaatsgevonden in Arnhem. Gezien het voorgaande is de kans aanwezig dat er zich binnen het besluitgebied nog niet-gesprongen explosieven bevinden. Bij de aanlegwerkzaamheden c.q. grondroerende activiteiten is er een risico dat op resten van explosieven wordt gestuit. Dit aspect verdient om die reden nadere aandacht.

Situatie projectgebied

Tijdens WOII is gevochten in en rondom Arnhem. Daardoor liggen er op sommige plekken nog (restanten van) conventionele explosieven in de grond. Tijdens grondroerende werkzaamheden (o.a. graven, heien) kunnen die alsnog ontploffen, waardoor dit een risico vormt voor de (arbo)veiligheid. Daarom is door Bombs Away een vooronderzoek ontplofbare oorlogsresten (OO) uitgevoerd voor het projectgebied. De volledige rapportage hiervan is opgenomen als Bijlage 5 bij deze motivering. Hieronder is de samenvatting van het onderzoek opgenomen:

Op basis van de geraadpleegde primaire en secundaire bronnen, de beoordeling en evaluatie van de indicaties en contra-indicaties is vastgesteld dat het onderzoeksgebied ter plaatse van het 'Bartokplein' te Arnhem (Gelderland) getroffen is door oorlogshandelingen tijdens de Tweede Wereldoorlog, waardoor OO in de bodem kunnen zijn achtergebleven. Het gaat om de volgende indicaties:

  • Grondgevechten

  • Artilleriebeschietingen

Waar tijdens de Tweede Wereldoorlog nog gebouwen stonden, is een groot deel van het onderzoeksgebied naoorlogs platgegooid. Hierop werd het Bartokplein aangelegd. Een deel van het terrein bleef ook tot 2012 braak liggen. Hier kwam een parkje en het kunstwerk Feestaardvarken te liggen. Welke bodemingrepen naoorlogs hebben plaatsgevonden, is op basis van de geraadpleegde gegevens onbekend.

Het advies van het onderzoek luidt als volgt:

Omdat het gehele onderzoeksgebied verdacht is op OO, is het onmogelijk de werkzaamheden te verplaatsen buiten dit verdachte gebied (binnen de grenzen van het onderzoeksgebied). Voor de voorgenomen bouwwerkzaamheden wordt geadviseerd om een risicoanalyse OO te laten uitvoeren. Naoorlogs werden er werkzaamheden uitgevoerd binnen het onderzoeksgebied. Of en tot welke diepte de grond hierbij geroerd werd, is onbekend. In een risicoanalyse kan hierover passend advies worden gegeven.

5.4.8 Trillingen

Trillingen 

De meet- en beoordelingsrichtlijn voor trillingen van Stichting Bouwresearch Rotterdam (SBR-richtlijn) vormt de basis voor het bepalen van trillingen. Het beoordelingskader voor trillinghinder door activiteiten is overgenomen uit deze richtlijn. Dit beoordelingskader staat in het Besluit kwaliteit leefomgeving (Bkl). De richtlijn hanteert afhankelijk van de functie streefwaarden voor trillingen ter voorkoming van hinder.

Situatie projectgebied

Het projectgebied ligt niet binnen de invloedsferen van functies en/of activiteiten die trillingen veroorzaken. Ter hoogte van het projectgebied is geen sprake van trillingshinder. 

5.4.9 M.e.r.-beoordeling

De wetgeving over de milieueffectrapportage (m.e.r) is opgenomen in afdeling 16.4 van de Omgevingswet en in hoofdstuk 11 en bijlage V bij het Omgevingsbesluit. Daarin is bepaald dat het bevoegd gezag bij de voorbereiding van een plan of programma een milieueffectrapport opstelt, als dat plan of programma het kader vormt voor te nemen besluiten voor projecten die zijn aangewezen in artikel 16.43 van de Omgevingswet. Onder een plan of programma, als bedoeld in artikel 2, onder a, van de SMB-richtlijn (EU-richtlijn voor strategische milieubeoordeling), wordt in ieder geval verstaan een omgevingsvisie, programma, omgevingsplan en voorkeursbeslissing. Voor de plannen en programma's waarvoor een plan-milieueffectrapport moet worden opgesteld is in de Omgevingswet een generieke aanwijzing opgenomen. Hiervoor is aansluiting gezocht bij de SMB-richtlijn. In Bijlage V bij het Omgevingsbesluit staan de aangewezen categorieën van projecten waarvoor een m.e.r.-procedure verplicht is.

Voor plannen en programma's die betrekking hebben op kleine gebieden op lokaal niveau en/of kleine wijzigingen heeft de Omgevingswet de plan-m.e.r.-beoordeling geïntroduceerd. Voor deze ontwikkelingen is een plan-m.e.r. alleen verplicht als voor de activiteit aanzienlijke milieugevolgen worden verwacht. Een plan-m.e.r.-beoordeling is ook van toepassing op plannen of programma's die een kader vormen voor m.e.r.-(beoordelings)plichtige projecten en besluiten die niet in het Omgevingsbesluit zijn genoemd.

De plan-m.e.r.-beoordeling betreft een toets om na te gaan of sprake is van een plan met grote milieugevolgen. Deze toets dient plaats te vinden aan de hand van de criteria van Bijlage III, van de EU-richtlijn m.e.r. De hoofdcriteria waaraan moet worden getoetst zijn: kenmerken van het project, plaats van het project en kenmerken van het potentiële effect.  

Situatie projectgebied

Onderhavig plan betreft ter plaatse van het Bartok Park Noord het toepassen van een gemengde functie, waarbij wonen, maatschappelijke activiteiten (gerelateerd aan cultuur) en een invulling met openbare ruimte zijn toegestaan. In een later stadium wordt bepaald welke activiteit het meest passend is en nader uitgewerkt wordt. Het plan kan worden gekwalificeerd als de wijziging van een stedelijk ontwikkelingsproject met inbegrip van de bouw van winkelcentra en de aanleg van parkeerterreinen als genoemd in onderdeel J11 van de bijlage van het Omgevingsbesluit. Voor dit type project gelden geen drempelwaarden voor een m.e.r.-plicht, maar geldt wel dat bij de aanleg, wijziging of uitbreiding van een dergelijk project sprake is van een m.e.r.-beoordelingsplicht.

Daarom is voor de ontwikkeling een m.e.r.-beoordeling uitgevoerd. Hieruit volgt dat er geen sprake is van bijzondere omstandigheden ten aanzien van de kenmerken en locatie van het plan, die zouden kunnen leiden tot belangrijke nadelige gevolgen voor het milieu. Voor de meeste beoordeelde milieuaspecten geldt dat er geen effect optreedt. Uitsluitend voor wat betreft natuur (soortenbescherming) en mogelijk geluid zijn er mogelijk negatieve milieueffecten, maar die zijn zeer gering en niet als een belangrijk negatief milieueffect te kwalificeren. De conclusie is dan ook dat belangrijke nadelige milieugevolgen zijn uitgesloten. Het volgen van een m.e.r.-procedure is daarom niet nodig.

5.5 Natuur, groen en bomen

5.5.1 Soorten- en gebiedsbescherming 

Omgevingswet

Soortenbescherming

Bij ruimtelijke ontwikkelingen moet rekening gehouden worden met de aanwezige natuurwaarden in en om het besluitgebied. De Omgevingswet beschermt bepaalde plant- en diersoorten. Het gaat hoofdzakelijk om soorten van Europees belang die onder de reikwijdte van de Vogel- en Habitatrichtlijn vallen. Daarnaast betreft het bepaalde soorten van nationaal belang. In principe zijn provincies verantwoordelijk voor de bescherming van soorten (artikel 2.18, lid 1, sub f). Echter kunnen ook andere overheden actief beleid voeren. Zo is het vaststellen van een programma voor soortenbescherming een mogelijkheid.

Soortenbescherming is in de Omgevingswet vooral gericht op het reguleren van flora-en fauna-activiteiten. Een flora en fauna-activiteit is een activiteit met mogelijke gevolgen voor van nature in het wild levende dieren of planten. Door deze brede formulering van een flora-en fauna-activiteit is het bij activiteiten in de fysieke leefomgeving nodig om te controleren of:

1. er soorten aanwezig zijn;

2. welke soorten dat zijn.

Voordat een flora en fauna-activiteit mag worden verricht, moet gecontroleerd worden of er aanwijzingen zijn dat op die plek of in de directe nabijheid bepaalde beschermde soorten of habitats voorkomen. Als er aanwijzingen zijn dat deze aanwezig zijn, dan is het verplicht om na te gaan of nadelige gevolgen voor die dieren of planten uit te sluiten zijn. Als nadelige gevolgen niet uitgesloten kunnen worden, moet degene die de activiteit verricht alle passende preventieve maatregelen treffen om nadelige gevolgen voor dier- en plantensoorten te voorkomen. Voor schadelijke handelingen geldt in de meeste gevallen een vergunningplicht. In een aantal gevallen is echter ook sprake van een vrijstelling.

Gebiedsbescherming

De bescherming van natuurgebieden is tweeledig; het Rijk is verantwoordelijk voor de bescherming van Natura 2000-gebieden en de bescherming van het Natuurnetwerk Nederland (NNN) is een verantwoordelijkheid van de provincies.

Een Natura 2000-gebied is een beschermd natuurgebied van Europees belang. Bescherming van deze gebieden is nodig voor het behoud van de biodiversiteit (soortenrijkdom) en om te voldoen aan de verplichtingen van de Vogelrichtlijn en Habitatrichtlijn. Nieuwe ontwikkelingen (activiteiten) die - afzonderlijk of in combinatie met andere plannen of projecten - significant negatieve gevolgen kunnen hebben op een Natura 2000-gebied, zijn onder de Omgevingswet gedefinieerd als 'Natura 2000-activiteit'. Deze kunnen zowel binnen als buiten een Natura 2000-gebied plaatsvinden. In de meeste gevallen vindt de activiteit echter plaats buiten een Natura 2000-gebied. Ook dan kan een activiteit effect hebben op het Natura 2000-gebied. Dit wordt ook wel de 'externe werking van een Natura 2000-gebied' genoemd. Als het effect significant kan zijn, is in veel gevallen een omgevingsvergunning voor een Natura 2000-activiteit nodig.

Het Natuurnetwerk Nederland (NNN) is verankerd in de omgevingsverordening van de provincies. Daarin zijn de wezenlijke kenmerken en waarden van NNN-gebieden vastgelegd en zijn regels gesteld in het belang van de bescherming, instandhouding, verbetering en ontwikkeling van de kenmerken en waarden van NNN-gebieden.

Situatie projectgebied

Soortenbescherming

Cobra Groeninzicht heeft voor het planvoornemen een quickscan natuur uitgevoerd naar de aanwezigheid van beschermde soorten. De volledige rapportage hiervan is opgenomen als Bijlage 6 bij deze motivering. Een samenvatting van de onderzoeksresultaten wat betreft de voorkomende soorten, de mogelijke overtredingen van verbodsbepalingen en de mogelijke vervolgstappen, ontheffingsaanvragen en/of vergunningsaanvragen worden in onderstaande tabel weergegeven.

afbeelding binnen de regeling
Tabel 1: Overzicht conclusie en vervolgstappen quickscan natuur Bron: Cobra Groeninzicht

Daarnaast wordt er met deze wijziging van het omgevingsplan voldaan aan de regels ten aanzien van natuurinclusief bouwen. Er worden in het ontwerp van de toekomstige bebouwing in het projectgebied maatregelen opgenomen ten behoeve van insecten, de gierzwaluw en de huismus.

Activiteitenplan huismus

In navolging op de quickscan natuur is door Cobra Groeninzicht een activiteitenplan voor de huismus opgesteld. De volledige rapportage hiervan is opgenomen als Bijlage 7. Binnen de effectbeoordeling is bepaald dat ten gunste van de huismus diverse voorzorgsmaatregelen getroffen moeten worden in het projectgebied en ter plaatse van de nabijgelegen planontwikkeling Bartok Park Zuid. De voorzorgsmaatregelen bestaan uit tijdelijke vervangende schuilplekken, tijdelijke vervangende zandige plekken en tijdelijke voederplaatsen. Daarnaast wordt het noodzakelijk geacht dat tijdens de bouwwerkzaamheden de huismus moet worden bijgevoerd (tijdens het broedseizoen).

In de toekomstige situatie is het beplanten van plantvakken en daken een belangrijke maatregel. De bergingen in het projectgebied worden voorzien van grassen en sedum. Op het aangrenzende openbare pleintje komt ruimte voor heesters en enkele bomen. Tussen de beplanting worden eveneens zandige plekken voor huismussen aangelegd. Verder worden de gevels van de bebouwing in het projectgebied  voorzien van inheemse gevelbeplanting (vlakken van wintergroene klimplantsoorten) en extra nestlocaties door middel van huismuskasten.

Door het treffen van soortspecifieke en algemene maatregelen wordt de kans op indirecte negatieve effecten op nestplaatsen van huismus tot een minimum beperkt. De planning, werkwijze, het ontwerp en de inrichting van de openbare ruimte zijn namelijk ten gunste van huismussen bepaald. Door het tijdig aanbieden van tijdelijke schuil- en foerageerplekken, neemt de kwaliteit van het leefgebied van huismussen niet af. De leefwijze van huismus is sterk afgestemd op het leven in de omgeving van mensen. Tijdens de werkzaamheden zijn alle oorspronkelijke nestlocaties beschikbaar. Met de werkzaamheden is daarom geen sprake van negatieve effecten op de staat van instandhouding van huismus.

Gebiedsbescherming

Natura 2000-gebieden 

De voorgenomen ontwikkelingen hebben geen directe invloed op natuurwaarden in Natura 2000-gebieden in de omgeving. Het projectgebied is geen onderdeel van een Natura 2000-gebied. Het dichtstbijzijnde Natura 2000-gebied ligt namelijk circa 2,0 km van het projectgebied af. Maar indirecte invloed als gevolg van stikstofdepositie is niet op voorhand uit te sluiten. Bovendien is het verplicht om voor activiteiten zoals voorgenomen een stikstofberekening uit te laten voeren met de AERIUS-rekentool. Die toont aan of er wel of geen meldings- of vergunningsplichtige stikstofdepositie is op omliggende Natura 2000-gebieden met stikstofgevoelige habitats.

SAB heeft middels een AERIUS-berekening onderzocht of als gevolg van het planvoornemen sprake zal zijn van stikstofdepostitie op nabij gelegen Natura 2000-gebieden. De rapportage hiervan is opgenomen als Bijlage 8 bij deze motivering.

Uit de berekening volgt dat het plan geen significant effect veroorzaakt op de stikstofgevoelige Natura 2000-gebieden in de omgeving. De berekende stikstofdepositie voldoet zowel voor de gebruiks- als aanlegfase aan de grenswaarde van afgerond 0,00 mol/ha/jaar. Op basis van de resultaten kunnen daarom significante negatieve effecten op voorhand worden uitgesloten. Hierbij wordt wel uitgegaan van gebruik van deels elektrisch materieel in de aanlegfase. Dit geldt enkel voor de werktuigen waarvan deze voldoende beschikbaar zijn in Nederland, waarmee deze inzet te beschouwen is als een reële en aannemelijke prognose van het materiaal.

5.5.2 Groen

Groenvisie 2017-2035

De Groenvisie gaat over het Groen-blauw raamwerk, de stedelijke hoofdgroenstructuur, vertaald in doelen, ambities en ontwikkelopgaven. Dit Groen-blauw raamwerk van de stad bepaalt het gezicht van de stad en de aantrekkelijkheid van uiteenlopende woon- en recreatiemilieus. Het gaat daarbij om de waarden vanuit landschap, cultuurhistorie, ecologie, water en recreatief gebruik op gemeente en op particuliere terreinen.

Aan groen heeft belangrijke  waarden en kwaliteiten voor een leefbare stad. Zo ook het Arnhemse groen. Daarbij valt te denken aan gezondheid, klimaat (verminderen van hitte en van wateroverlast), milieu (verbeteren luchtkwaliteit), stadslandbouw, dierenwelzijn, toerisme en sport en bewegen. Het groen biedt ruimte voor een gezonde, leefbare, aantrekkelijke en daarmee ook toekomstbestendige woon- en werkomgeving.

De Groenvisie legt niet alleen het Groen-blauw raamwerk vast, dus de stedelijke hoofdgroenstructuur, maar geeft ook richting aan het belang van groen in de wijken, zodat initiatieven de waarden van het groen (landschap, biodiversiteit, gezondheid, waterbuffering, koelte) niet aantasten maar juist versterken. Zij vormt daarmee een basis voor de vertaling naar de (planologische) bescherming van waardevolle gebieden en waardevolle bomen in de omgevingsplannen.

Er wordt ingezet op het versterken van de natuurwaarden in het Groen-blauw netwerk en het stedelijke gebied. Bij de realisatie van (nieuw) bouw bestaan er veel kansen voor de vergroting van de biodiversiteit in de stad: de natuurinclusieve stad. Voor het plangebied zetten we in op typische soorten van de gebouwde omgeving: o.a. vleermuizen, gierzwaluw en huismus.

In de Groenvisie zijn de Arnhemse regels groencompensatie 2017 opgenomen. Uitgangspunt blijft dat de totale groenbalans in de stad neutraal moet blijven of toeneemt. Moet er toch groen verdwijnen, dan wordt dat gecompenseerd. Eerst kwantitatief, dan kwalitatief en als laatste financieel. Bij financiële compensatie wordt de waarde van het groen en de boomopstanden gestort in het Groenfonds.

Het provinciale beleid met betrekking tot groencompensatie heeft betrekking op bos binnen het Gelderse Natuurnetwerk. Daar waar de provinciale compensatieregels gelden treden de gemeentelijke terug.

Situatie projectgebied

De voorgenomen ontwikkeling voorziet in het toepassen van een gemengde functie, waarbij wonen, maatschappelijke activiteiten (gerelateerd aan cultuur) en een invulling met openbare ruimte zijn toegestaan. In een later stadium wordt bepaald welke activiteit het meest passend is en nader uitgewerkt wordt.

Het projectgebied is volgens de Groenvisie gelegen in het groengebied 'Stadskern'. Dit gebied omvat het centrum van Arnhem met De Singels. Belangrijk voor de Stadskern is het behouden en versterken van de historische kern van Arnhem, die als compact stedelijk weefsel, begrensd wordt door de groene singel. De waarden landschap en cultuurhistorie zijn het belangrijkste en stellen kaders aan gebruik. Met de voorgenomen ontwikkeling wordt de historische kern van Arnhem versterkt ter plaatse van het projectgebied door de realisatie van de uit te werken bebouwing in het kader van de nader te bepalen activiteit. Er wordt bijgedragen aan de opgaven 'natuurvriendelijke stad' en 'groen gezonde stad' door het versterken van het leefgebied van doelsoorten, zoals de huismus (zie paragraaf 5.5.1) en de toepassing van diverse groenelementen bij het de toekomstige bebouwing en inrichting van het projectgebied (zie paragraaf 5.7.2).

Het aspect groen hangt samen met de aspecten water, klimaatadaptatie en natuurinclusiviteit. Een verdere toelichting hierover is te vinden in de paragrafen 5.4.5, 5.7.1 en 5.7.2.

Situatie projectgebied

De voorgenomen ontwikkeling voorziet in het toepassen van een gemengde functie, waarbij wonen, maatschappelijke activiteiten (gerelateerd aan cultuur) en een invulling met openbare ruimte zijn toegestaan. In een later stadium wordt bepaald welke activiteit het meest passend is en nader uitgewerkt wordt.

Het projectgebied is volgens de Groenvisie gelegen in het groengebied 'Stadskern'. Dit gebied omvat het centrum van Arnhem met De Singels. Belangrijk voor de Stadskern is het behouden en versterken van de historische kern van Arnhem, die als compact stedelijk weefsel, begrensd wordt door de groene singel. De waarden landschap en cultuurhistorie zijn het belangrijkste en stellen kaders aan gebruik. Met de voorgenomen ontwikkeling wordt de historische kern van Arnhem versterkt ter plaatse van het projectgebied door de realisatie van de uit te werken bebouwing in het kader van de nader te bepalen activiteit. Er wordt bijgedragen aan de opgaven 'natuurvriendelijke stad' en 'groen gezonde stad' door het versterken van het leefgebied van doelsoorten, zoals de huismus (zie paragraaf 5.5.1) en de toepassing van diverse groenelementen bij het de toekomstige bebouwing en inrichting van het projectgebied (zie paragraaf 5.7.2).

Het aspect groen hangt samen met de aspecten water, klimaatadaptatie en natuurinclusiviteit. Een verdere toelichting hierover is te vinden in de paragrafen 5.4.5, 5.7.1 en 5.7.2.

5.5.3 Bomen

Bomenplan 2020

Het Bomenplan kent vier pijlers:

1. Vergroten groenmassa

Bij vaststellen van het bomenbeleid heeft de raad besloten dat het kroonvolume, de bladmassa van onze bomen, met minimaal 5% moet toenemen. In wijken met hitte-eilanden (rode en oranje gebieden op de hitte attentiekaart) streven we naar een toename van het kroonvolume met 10%. Dit gaan we doen door behouden van bestaande bomen, het aanplanten van extra bomen en het verbeteren van groeiplaatsomstandigheden.

2. Beschermen bomen

Groeiplaatsen van bomen worden (fysiek) beschermd. Bomen moeten beter worden beschermd op bouwlocaties en bij de uitvoering van werken. Bij evenementen worden er boombescherming afspraken gemaakt met de organisatie. 

Het beleid wordt juridisch geborgd in de APV en het omgevingsplan. Waardevolle particuliere bomen en buitengewone gemeentebomen genieten extra bescherming.

3. Duurzaam toekomstbestendig bomenbestand

Groeiplaatsen voor bomen worden optimaal ingericht met voldoende boven- en ondergrondse groeiruimte. Het handboek bomen 2018 van het Norm Instituut Bomen wordt hierbij gehanteerd. We willen veel variatie en diversiteit. Zowel inheemse als niet inheemse soorten worden toegepast. Geen monoculturen om ziekten en plagen te voorkomen. 

4. Bomen krijgen bij planontwikkeling meer gewicht. 

Door gebruik te maken van een BoomAfwegingsrapportage (BAR) worden keuzes omtrent bomen zorgvuldig integraal afgewogen. Boominclusief ontwerpen (zoals rekening houden met de reeds aanwezige bomen en bomen vanaf het begin intekenen in de plannen, met hun volwassen kroondiameter en ondergrondse groeiplaats) is uitgangspunt.

Situatie projectgebied

Voor de voorgenomen ontwikkeling in het projectgebied wordt een nieuwe invulling gegeven aan een inbreidingslocatie waar in de bestaande situatie geen bomen aanwezig zijn. Met het planvoornemen kunnen dan ook geen bomen beschermd worden en komen bomen ook niet in het geding. Gezien de verwachte toekomstige bebouwing (ten aanzien van wonen of maatschappelijke activiteiten) en de beschikbare ruimte in het projectgebied, worden nieuwe bomen niet aannemelijk geacht. In het kader van een bomenbalans wordt het aantal bomen in het projectgebied in de toekomstige situatie dan ook niet verminderd ten opzichte van de bestaande situatie. Overigens is in de planontwikkeling van Bartok Park Zuid, grenzend aan het projectgebied, wel ruimte voor bomen (mogelijk via herplanting). Hierdoor zijn in de toekomstige situatie bomen aanwezig in de nabije omgeving van het projectgebied.

5.6 Archeologie, cultuurhistorie en landschap

5.6.1 Cultureel erfgoed

Rijksbeleid

Door ondertekening van het verdrag van Valletta (1992) heeft Nederland zich verplicht om bij ruimtelijke planvorming nadrukkelijk rekening te houden met het niet-zichtbare deel van cultuurhistorisch erfgoed, te weten de archeologische waarden. In de Omgevingswet is geregeld hoe met in de grond aanwezige dan wel te verwachten archeologische waarden moet worden omgegaan. Het uitgangspunt is dat de beschermingsniveaus zoals die in de eerdere wetten en regelingen golden, worden gehandhaafd. Het streven is om deze belangen tijdig bij het plan te betrekken. Bij ingrepen waarbij de ondergrond wordt geroerd, dient te worden aangetoond dat de eventueel aanwezige archeologische waarden niet worden aangetast.

In het Bkl staat in artikel 5.130. dat in een omgevingsplan rekening wordt gehouden met het belang van het behoud van cultureel erfgoed met inbegrip van bekende of aantoonbaar te verwachten archeologische monumenten.  

Provinciaal beleid

'Beleef het mee!' (2017-2020)

In juli 2016 is het Beleidsprogramma Cultuur en Erfgoed 2017 - 2020 'Beleef het mee!' vastgesteld. In dit programma ligt het accent op de beleving van mensen. Daarnaast zoekt de provincie de balans tussen de maatschappelijke, economische en intrinsieke waarde van cultuur en erfgoed. Cultureel ondernemerschap blijft onverminderd van belang en komt terug in de economische waarde van cultuur en erfgoed. Voor wat betreft erfgoed krijgt vooral het functioneel gebruik ervan aandacht. Daarnaast zoekt de provincie nieuwe manieren van samenwerking waardoor de uitvoeringskwaliteit van restauraties en archeologie wordt vergroot.

Situatie plangebied

Raadpleging van de cultuurhistorische Kansenkaart Arnhem laat zien dat geen specifieke cultuurhistorische waarden worden aangetast met het voorgenomen plan. Het projectgebied bevat geen bebouwing met monumentale waarden en bevindt zich tevens niet binnen een beschermd stadsgezicht. Met de ontwikkeling wordt aansluiting gezocht bij de wijk en wordt rekening gehouden met erfgoed, waardoor deze niet zal leiden tot een verstoring van het stadsbeeld. 

5.6.2 Archeologie

Gemeentelijk beleid

Archeologische verwachtingenkaart

Archeologie is een integraal onderdeel van het erfgoedbeleid en als zodanig opgenomen in de erfgoednota. In de nota wordt voortgeborduurd op de uitgangspunten van het Verdrag van Malta. Behoud van archeologische waarden is het uitgangspunt en als dat niet mogelijk is, volgt veiligstelling door archeologisch onderzoek. Om permanente aandacht voor deze vorm van erfgoed te krijgen, is ingezet op constante voorlichting en educatie. Sinds 2008 beschikt de gemeente over een archeologische verwachtingenkaart voor heel Arnhem. De verwachtingenkaart geeft al in een vroeg stadium van planvorming globaal inzicht in de mate waarin archeologische resten in een gebied aangetroffen kunnen worden.

Conform de Erfgoedverordening geldt afhankelijk van de oppervlakte en diepte van grondroerende werkzaamheden archeologisch onderzoek uitgevoerd moet worden. Gebieden die reeds onderzocht zijn en/of zijn vrijgegeven, zijn vrijgesteld van onderzoek. Aan het archeologische beleid dat in de verordening is verankerd, ligt de archeologische maatregelenkaart als basis.

Situatie projectgebied

Op basis van het geldende Omgevingsplan van de gemeente Arnhem is voor de locatie van het projectgebied de gebiedsaanwijzing 'Archeologie - Waardevol gebied' opgenomen. Deze archeologische gebiedsaanwijzing is gebaseerd op de archeologische verwachtingenkaart, welke door de raad is vastgesteld. Om deze reden is ter plaatse van het projectgebied is door BAAC een archeologisch bureauonderzoek uitgevoerd. Deze rapportage is toegevoegd als Bijlage 9. De conclusies van het archeologisch bureauonderzoek sluiten aan bij de huidige archeologische gebiedsaanwijzing van het projectgebied.

5.6.3 Rijksmonumenten

Binnen het projectgebied bevinden zich geen rijksmonumenten. Nabij ten oosten van het projectgebied bevinden zich een viertal rijksmonumenten gelegen aan Weverstraat 39, 39-1, 39-4 en 40b. Het planvoornemen tast geenszins de cultuurhistorische waarden van dit monument of andere rijksmonumenten op grotere afstand aan.

5.6.4 Gemeentelijke monumenten

Binnen het projectgebied bevinden zich geen gemeentelijke monumenten. Nabij ten noorden van het  projectgebied bevindt zich een gemeentelijk monument gelegen aan de Rijnstraat 42. Dit gemeentelijk monument betreft het Theater a/d Rijn. Het planvoornemen tast geenszins de cultuurhistorische waarden van dit monument of andere gemeentelijke monumenten op grotere afstand aan.

5.6.5 Beschermde stadsgezichten

Een beschermd stadsgezicht is een gebied met een bijzonder historisch karakter. Het is een erkenning van de bijzondere kwaliteit van de wijk. In Arnhem zijn zowel rijksbeschermde stadsgezichten als gemeentelijke stadsgezichten.

Het projectgebied is gelegen binnen de oude historische binnenstad als gemeentelijk beschermd stadsgezicht. Het planvoornemen tast geenszins de oude historische binnenstad (ter plaatse van Weverstraat/Kleine Oord/Papegaaigang) aan. Daarnaast wordt met de stedenbouwkundige aspecten (zie paragraaf 5.2) rekening gehouden met de cultuurhistorische waarden van de oude historische binnenstad.

5.6.6 Landschap

De provincie spant zich in voor een compact en hoogwaardig stelsel van onderling verbonden natuurgebieden en behoud en versterking van de kwaliteit van het landschap. Het Gelders Natuurnetwerk (GNN) en de Groene Ontwikkelingszone (GO) worden beschermd tegen aantasting van de kernkwaliteiten: dat zijn de natuurwaarden, de potentiële waarden en de omgevingscondities. Het GNN is een samenhangend netwerk van bestaande en te ontwikkelen natuur van internationaal, nationaal en provinciaal belang. Het uitgangspunt is dat in het GNN geen nieuwe initiatieven plaatsvinden, behalve ontwikkelingen van een groot algemeen of provinciaal belang of waarvoor geen alternatieven bestaan. In de GO is ruimte voor economische ontwikkeling in combinatie met een (substantiële) versterking van de samenhang tussen aangrenzende en inliggende natuurgebieden. De ecologische verbindingszones maken deel uit van de GO, evenals de weidevogelgebieden en de rustgebieden voor winterganzen. De provincie treft maatregelen vanwege de bescherming, de instandhouding of het herstel van biotopen, leefgebieden, een gunstige staat van instandhouding en het Natuurnetwerk Nederland. De provincie beschermt de achttien Natura 2000 gebieden die in het GNN liggen. Verder richt het beleid zich op behoud van de basiskwaliteit van landschappen in Gelderland. Voor de landschappen van bovenregionale waarde geldt een beschermingsregiem met kernkwaliteiten en met een juridisch vangnet in de verordening, zodat de provincie in gesprek kan komen indien het provinciaal belang in het geding raakt.

Het projectgebied is niet gelegen binnen het GNN of een Natura 2000-gebied. In de provinciale omgevingsverordening is het wel gelegen binnen de gebiedsaanwijzing Gelderse streek 'Veluwe', dit heeft echter hoofdzakelijk betrekking op het buitengebied en overgangsgebieden tussen het buitengebied en het stedelijk gebied, in voorliggend geval is hiervan geen sprake.

5.7 Duurzaamheid, klimaatadaptatie en energie

5.7.1 Strategie klimaatadaptatie

Door het veranderende klimaat neemt de kans op overstromingen, wateroverlast, hitte en droogte toe. Daardoor ontstaan risico's voor de veiligheid, gezondheid en economie. In de Strategie Klimaatadaptatie Arnhem 2020-2030 'Groen, Slim en Samen' wordt inzicht gegeven wat gedaan moet worden om de stad in de komende 10 jaar klimaatbestendiger te maken.

De verdichtingsopgave combineren met klimaatadaptatie

Arnhem kent een grote verdichtingsopgave; de komende jaren zullen er veel woningen bijgebouwd worden. Naast wonen, vragen ook werken en mobiliteit (met name fiets en OV) om (verharde) ruimte in onze stad. De verdichtingsopgave staat daarom op gespannen voet met opgaven op het gebied van klimaatadaptatie. Verdichting vraagt om meer bebouwing en meer verharding terwijl voor klimaatadaptatie juist meer groen en onverharde ruimte nodig is. De meest uitdagende ambitie is daarom om beide opgaven op een slimme manier te combineren.

Dit is alleen mogelijk door de verdichting zeer zorgvuldig uit te voeren en strenge voorwaarden te stellen aan uitbreiding en aanpassing van de bebouwing en de bijbehorende buitenruimte. Daarbij is overigens ook het binnenmilieu belangrijk. Behalve om integrale en innovatieve plannen vraagt dit om compenserende maatregelen op, aan en in de directe omgeving van de bebouwing. Bijvoorbeeld door vergroening, materiaalkeuze, verkoeling en opslag / hergebruik van hemelwater.

Speerpunten zijn:

  • Schade en overlast door extreme buien zoveel mogelijk voorkomen, dit betekent (zie verder bij paragraaf 5.4.5 ten aanzien van het aspect water):

    • Bij nieuwbouw koppelen we al het regenwater af.

    • Bij renovatie koppelen we maximaal af; de haalbaarheid beoordelen we per geval; hierbij geldt dat minimaal 40 mm op eigen terrein moet worden verwerkt.

    • We koppelen 90% van alle openbare ruimte af hierbij nemen we als uitgangspunt een bui van 40 mm die ter plaatse verwerkt moet kunnen worden.

    • We voorkomen toename van wateroverlast bij toename bebouwing en/of verharding.

  • Negatieve effecten door droogte tegengaan

    • Schade aan beplanting tegen gaan.

    • Waterkwaliteit in droge perioden op acceptabel te houden ter voorkoming blauwalg en botulisme.

    • Duurzaam hergebruik (regen)water.

  • Negatieve effecten van hitte tegengaan. Op de hitte attentiekaart van Arnhem zijn de uitgangspunten vastgesteld: 

    • Rode gebieden: hier gaan we de gevoelstemperatuur, de manier waarop de temperatuur wordt ervaren, verbeteren.

    • Oranje en Gele gebieden: dit zijn gebieden waar het belangrijk is dat de gevoelstemperatuur niet verslechterd.

    • Blauwe gebieden: we willen de blauwe gebieden als bronnen van koelte in stand houden, dus beschermen, en stimuleren dat koele winden de stad in kunnen stromen.



Situatie projectgebied

Arnhem kent ten opzichte van andere steden met vergelijkbare grootte een relatief gunstig stadsklimaat door de ligging aan de grote rivieren, het vele groen in en rond de stad en de groene hellingen van de Veluwezoom.

Ten aanzien van klimaatadaptatie voor de toekomstige situatie in het projectgebied is door BOOT een 'weging van het waterbelang inclusief klimaatthema's' opgesteld. De rapportage is bijgevoegd als Bijlage 3. Het doel hiervan is om zo de belangen van klimaatadaptatie in de planvorming te borgen. Het klimaateffect wateroverlast is nader uitgewerkt in paragraaf 5.4.5.

Hitte

Wat betreft klimaatadaptatie is hitte een belangrijk klimaateffect binnen het projectgebied, gezien de ligging in de binnenstad van Arnhem. De ambitie is om het lokale stadsklimaat in deze gebieden te verbeteren en verdere opwarming tegen te gaan. De klimaatbestendigheidsambitie is voor wat betreft hitte in de stad vertaald naar aanbevelingen voor specifieke gebieden. Op de Hitte-attentiekaart van de gemeente Arnhem ligt het projectgebied in het rode aandachtsgebied. Dit is in navolgende afbeelding weergegeven.

afbeelding binnen de regeling
Afbeelding 5.3: Uitsnede Hitte Attentiekaart met globale aanduiding projectgebied (gele lijn) Bron: Gemeente Arnhem

Geadviseerd wordt binnen het projectgebied maatregelen door te voeren aan de hand van de hitteladder van koeling door OSKA (Overleg Standaarden klimaatadaptatie): 

  • Koele omgeving; zorgen voor een verkoelende omgeving (bijvoorbeeld met bomen of groen dak);

  • Warmte weren (bijvoorbeeld met screens of zonwering);

  • Passief koelen; (bijvoorbeeld met nachtventilatie);

  • Actief koelen; (bijvoorbeeld met warmtepomp).



Naar verwachting wordt binnen het projectgebied met het schetsontwerp voor het te realiseren stadsblok en bijbehorende openbare ruimte voldaan aan de richtlijnen voor het tegengaan van hittestress. Dit komt voort uit het gebruik van groene daken, groene gevels, geveltuinen, schaduw creërende bomen, creëren van een koelteplek en grotendeels voldoen aan de 3‑30‑300 richtlijn.

Droogte

Door meer groen en wateropslag in de stad aan te leggen wordt meer water vastgehouden waardoor het langer duurt voor droogte tot problemen gaat leiden, dit geldt ook voor het projectgebied dat gelegen is in de binnenstad van Arnhem. Zodoende helpen de maatregelen die zijn geformuleerd om wateroverlast (paragraaf 5.4.5) en hitte (paragraaf 5.7.1) tegen te gaan ook om de gevolgen van droogte te verminderen. De gevoeligheid voor inklinking in de bodem zijn globaal verkend en lijken voor Arnhem relatief klein. De gevolgen van droogte laten zich in Arnhem het best bestrijden door het hemelwater langer vast te houden zodat dit beschikbaar blijft in droge perioden. Daarnaast wordt aangeraden om inheemse soorten aan te planten die goed tegen droogte kunnen en die niet veel water verdampen. Ook kan worden gedacht aan regentonnen om het hemelwater te gebruiken.

Overstromingen

Op kaarten van de Klimaateffectatlas is te zien dat het zuiden van het projectgebied een extreem kleine kans en een kleine kans heeft op overstromingen. Bij een extreem kleine kans is de waterdiepte in het zuiden van het projectgebied ongeveer 1 tot 1,5 meter. Bij een kleine kans is de waterdiepte ongeveer 0,5 meter.

Voor de ontwikkeling in het projectgebied betekent dit dat de strategie is om de schade te beperken en te schuilen binnenshuis. Voor het te realiseren stadsblok is het mogelijk om op een hogere verdieping te schuilen. Om de schade te beperken heeft het de voorkeur om geen technische ruimte op de begane grond te voorzien.

5.7.2 Natuurinclusief en klimaatadaptief bouwen

Door de natuur in de stad een ruime plek te geven in bouwprojecten ontstaat een aantrekkelijke, gezonde en toekomstbestendige leefomgeving voor mens en dier. Om dit te bereiken dient natuurinclusief en klimaatadaptief gebouwd te worden.  Voor woningbouwontwikkelingen is een puntensysteem in het leven geroepen. Per woning dienen punten behaald te worden met natuurinclusieve maatregelen. Voor sociale woningbouw zijn dat 3 punten per woning en voor het middensegment zijn dat 6 punten per woning.

Situatie projectgebied

Voor bouwprojecten in de gemeente Arnhem is het wenselijk om klimaatadaptief en natuurinclusief te bouwen. Dit komt ook de biodiversiteit ter plaatse van het projectgebied en van de binnenstad van Arnhem ten goede. Om de mate van klimaatadaptief en natuurinclusief bouwen te toetsen heeft de gemeente Arnhem een puntensysteem ontwikkeld. Met het ontwerp van de te realiseren woningen (indien 'wonen' in het projectgebied gerealiseerd wordt) is op meerdere manieren rekening gehouden met natuurinclusief en klimaatadaptief bouwen. Zo wordt gebruik gemaakt van diverse beplanting (sedum, grassen en heesters) in de tuinen van de woningen. Daarnaast worden op de woningen meerdere nestkasten, geveltuinen en groene gevels verwerkt.

Ten aanzien van groene daken ter plaatse van de toekomstige bebouwing in het projectgebied is een voorwaardelijke verplichting opgenomen in de regels van voorliggende wijziging van het Omgevingsplan.

De mate van natuurinclusief en klimaatadaptief bouwen is verder toegelicht in Bijlage 1 en Bijlage 3.

5.7.3 Circulair bouwen

In de door Arnhem ondertekende woondeal Arnhem-Nijmegen 2.0 van 2023 staat: 'Verduurzamen en toekomstbestendig maken van de bouwsector en vermindering van bouwkosten, doordat circulair en conceptueel bouwen de norm is bij woningbouw. Zo dragen we bij aan de reductie van 55% tot 60% CO2-uitstoot (Paris-proof), 50% primaire grondstoffen en 50% uitstoot van stikstof in 2030.

Partijen werken in nauwe samenwerking met de woningcorporaties en de werkorganisaties Citydeal conceptueel en circulair bouwen en Cirkelstad aan een regionaal programma 'Circulair en conceptueel bouwen'. Dit programma bevat concrete 'bouwstenen' die bijdragen aan het versnellen en opschalen van de transitie naar circulair en conceptueel bouwen.

De regio spant zich in om in 2025 minimaal 25% en in 2030 minimaal 50% van het aantal woningen industrieel te laten bouwen. En om in 2025 minimaal 25% en in 2030 minimaal 50% minder primaire grondstoffen in projecten te gebruiken. Deze verschuiving leidt onder meer tot een betere betaalbaarheid, kortere bouwtijd, minder stikstofuitstoot op de bouwplaats en een betere milieuprestatie.'

De gemeente Arnhem heeft de circulair bouwdoelstellingen uit de woondeal overgenomen in verschillende door de gemeenteraad vastgestelde documenten: 

  • Visie Circulaire Economie Arnhem, november 2020

  • Omgevingsvisie Arnhem 2040 (vastgesteld door de gemeenteraad 6 december 2023)

  • De Arnhemse Woonvisie (vastgesteld door de gemeenteraad maart 2024)



Situatie projectgebied

Er wordt bewust met materiaal omgegaan. Daarom worden er zo veel mogelijk duurzame bouwmaterialen toegepast en is het materiaalgebruik efficiënt. Doel is zo min mogelijk vervuilende materialen te gebruiken, of materialen uit uitputtelijke bronnen. Circulair materiaal gebruik is het streven. Binnen de kaders van de uitwerking ten aanzien van de toekomstige situatie (wonen, maatschappelijke activiteiten of een invulling met openbare ruimte) wordt bij de realisatie gebruik gemaakt van circulaire bouwmaterialen.

Op deze manier is in de toekomst herleidbaar welke materialen in het plan zijn verwerkt.

5.7.4 Energievisie

Het gemeentelijke beleid op het gebied van energie is vastgelegd in het 'Programmaplan New energy made in Arnhem 2020 - 2030' (vastgesteld door de gemeenteraad op 29 januari 2020).

Arnhem wil een actieve regierol innemen bij de energietransitie in de wijken. De uitgangspunten en aanpak zijn vastgesteld in 'De Arnhemse aanpak van de wijkgerichte energietransitie' (vastgesteld op 17 april 2019). Twee belangrijke uitgangspunten uit dit beleidskader voor deze ontwikkeling zijn:

  • De Trias Energetica is leidend: minder energie verbruiken, meer duurzaam opwekken;

  • De meest duurzame warmtebron heeft de voorkeur: minder duurzame bronnen zijn tijdelijk en decentrale bronnen gaan voor.



In de Transitievisie Warmte (vastgesteld door de gemeenteraad op 17 februari 2022) is vastgelegd dat alleen lage temperatuur verwarming (LT – 35 – 50 graden Celsius) of zeer lage temperatuur verwarming is toegestaan als warmtevoorziening voor nieuwbouw. De beschikbare midden en hoge temperatuur bronnen zijn nodig om de bestaande stad van het gas af te krijgen.

Energievisie 

Vanuit het programma NemiA 2020-2030 is het verplicht een energievisie op te stellen bij een ontwikkeling van 50 woningequivalenten of meer. Met behulp van een energievisie kan een geschikte combinatie van energieconcepten gekozen worden. De energievisie brengt verschillende energieopties voor het besluit-gebied in beeld en beschrijft de consequenties daarvan. De keuze voor het energieconcept heeft ruimtelijke consequenties. Er komen meer of minder inpandige installatieruimtes per woning en collectief, wat medebepalend is voor het bouwvolume. Daarom dient de energievisie als input voor het stedenbouwkundig plan. Afhankelijk van de situatie dient de ontwikkelaar dan wel de gemeente de energievisie op te (laten) stellen. De ambitie is om installaties en voorzieningen die noodzakelijk zijn voor de energievoorziening van de ontwikkeling én het gebied er omheen ((wijk)trafo's, warmtepompen, etc.) zoveel mogelijk in de bebouwing te integreren.

Netcongestie

Netcongestie blijft in de voorzienbare toekomst een factor om rekening mee te houden. Duurzaam netbewust bouwen, in combinatie met een reeks maatregelen die de netbeheerders nemen, zorgen ervoor dat er meer kans is dat de geplande woningbouw door kan gaan als gepland. Daarom is duurzaam netbewust bouwen een randvoorwaarde voor de haalbaarheid van (gebieds)ontwikkelingen. Netbewust bouwen is nog niet exact gedefinieerd en genormeerd. De Rijksoverheid werkt hier aan. 

Bij netbewust bouwen geldt de trias energetica als basis:

  • Reduceer de vraag (van energie en vermogen)

  • Efficiënte omzetting van warmte (lage temperatuur, voorkeur bodem over lucht)

  • Afstemmen vraag en aanbod (gebouwniveau: Energie Management Systeem)

  • Opslag en buffering (o.a. warm tapwater en warmte)

  • Afstemmen vraag en aanbod (extern, bv groepscontracten, gebruiksbeperkende contracten)



Ontwikkeling als vliegwiel voor energietransitie bestaande stad

In de Transitievisie Warmte (vastgesteld door de gemeenteraad op 17 februari 2022) is de doelstelling opgenomen om bij elke ontwikkeling de mogelijkheden te onderzoeken om een deel van de omliggende gebouwde omgeving tevens van het aardgas af te halen. Het doel is om het momentum van de ruimtelijke ontwikkeling te benutten om de energietransitie van de bestaande stad te stimuleren, vooruitlopend op de integrale benadering vanuit de omgevingswet.

Ruimte bieden voor Arnhemse innovaties

In het programma NemiA 2020-2030 is ook aandacht voor energie innovaties. Bij (gebieds) ontwikkelingen wordt gevraagd om, waar mogelijk, (Arnhemse) innovatieve bedrijven mee te laten denken en mee te doen.

Situatie projectgebied

Het doel is dat binnen het projectgebied de voorgenomen ontwikkeling een gezond, comfortabel en toekomstbestendig plan is en blijft. Goede ventilatie brengt frisse lucht zonder tocht. De te realiseren bebouwing (ten aanzien van wonen, maatschappelijke activiteiten of een invulling met openbare ruimte) dient een duurzaam gebouw te zijn met een bijbehorende MPG-score. De bebouwing wordt minimaal BENG (bijna-energieneutrale gebouwen, energieprestatie eisen die waaraan alle nieuwbouw dient te voldoen). De gehele bebouwing wordt gasloos opgeleverd.

5.8 Gezondheid

De Omgevingswet zet in op het realiseren van een gezonde en veilige fysieke leefomgeving. Daarmee heeft het thema gezondheid een centrale rol bij nieuwe ruimtelijke ontwikkelingen. Gezondheid is een breed thema waarbij gedacht kan worden aan diverse thema's en aspecten die zich richten op de bescherming van de gezondheid van inwoners. Te denken valt aan aspecten als geluid, geur en luchtkwaliteit. In voorliggende situatie geldt dat uit uitgevoerde onderzoeken volgt dat de locatie van het projectgebied Bartok Park Zuid een dusdanig milieukwaliteitsniveau heeft dat de gezondheid van toekomstige bewoners niet in het geding komt.

Een ander belangrijk aspect vanuit gezondheid is het bevorderen en stimuleren van de gezondheid van inwoners. Het aspect groen speelt daarbinnen onder meer een belangrijke rol. Zo draagt groen bij aan het realiseren van een positieve mentale gezondheid van mensen, nodigt groen uit tot bewegen en ontmoeten en heeft groen een verkoelende werking. Doordat in voorliggende ontwikkeling ter plaatse van de nieuwe bebouwing groenvoorzieningen worden toegevoegd en vanuit de locatie openbare groene ruimtes op loopafstand bereikbaar zijn, wordt ook een positieve bijdrage geleverd aan het stimuleren van de gezondheid. 

5.9 Kabels, leidingen, obstakelbeheergebieden en privaatrechtelijke belemmeringen

In het projectgebied zijn geen ondergrondse hoge druk aardgasleidingen en hoogspanningslijnen aanwezig. Een verdere toetsing of onderzoek naar kabels, leidingen, obstakelbeheergebieden en privaatrechtelijke belemmeringen is dan ook niet noodzakelijk voor de voorgenomen ontwikkeling.

6 Uitleg van de regels

6.1 Wat is een omgevingsplan?

6.2.1 Algemeen

In het omgevingsplan legt de gemeente vast welke functies waar mogelijk zijn en welke activiteiten binnen die functies ontplooid kunnen worden. Het gaat niet alleen om het gebruik van de grond, maar ook over de bouwmogelijkheden. De regels in het omgevingsplan gelden voor iedereen, dus voor inwoners, bedrijven, maatschappelijke instanties en de gemeente Arnhem zelf.

In Hoofdstuk 2 zijn we ingegaan op de opgaven voor het projectgebied en de strategie die we voeren om onze doelen te bereiken. In dit hoofdstuk leggen we uit hoe de regels in dit omgevingsplan bijdragen aan het verwezenlijken van die doelen. De regels in dit omgevingsplan zijn gebiedsgericht. Dat betekent dat regels per locatie kunnen verschillen en uitsluitend gelezen kunnen worden in combinatie met de digitale plankaart. 

6.2 Wat regelt dit omgevingsplan?

6.2.1 Algemeen

In het omgevingsplan legt de gemeente vast welke functies waar mogelijk zijn en welke activiteiten binnen die functies ontplooid kunnen worden. Het gaat niet alleen om het gebruik van de grond, maar ook over de bouwmogelijkheden. De regels in het omgevingsplan gelden voor iedereen, dus voor inwoners, bedrijven, maatschappelijke instanties en de gemeente Arnhem zelf.

In Hoofdstuk 2 zijn we ingegaan op de opgaven voor het projectgebied en de strategie die we voeren om onze doelen te bereiken. In dit hoofdstuk leggen we uit hoe de regels in dit omgevingsplan bijdragen aan het verwezenlijken van die doelen. De regels in dit omgevingsplan zijn gebiedsgericht. Dat betekent dat regels per locatie kunnen verschillen en uitsluitend gelezen kunnen worden in combinatie met de digitale plankaart. 

6.2.2 Focus van dit omgevingsplan

Dit omgevingsplan maakt een woningbouwontwikkeling op de locatie ter plaatse van het Bartok Park Zuid mogelijk. In Hoofdstuk 3 is de ontwikkeling omschreven. In Hoofdstuk 4 is het relevante beleid getoetst en in Hoofdstuk 5 zijn de milieu- en omgevingsaspecten toegelicht. In dit hoofdstuk wordt aangegeven hoe de verschillende aspecten worden vastgelegd in dit omgevingsplan.

Mogelijk maken van woonfuncties

Het omgevingsplan voorziet in het toevoegen van de activiteit voor het projectgebied waar mogelijk woningbouw is voorzien. Daarnaast geldt de omgevingsplanactiviteit woningsplitsing en de omgevingsplanactiviteit verkamering. Door middel van deze laag wordt regelen we dat nadat de woningen gebouwd zijn er altijd een vergunning nodig is voor het splitsen van de woningen of het door drie personen kamergewijs bewonen. Dit is een vertaling van het Facetplan woningsplitsing en verkamering.

Mogelijk maken culturele activiteiten

Het omgevingsplan voorziet in het toevoegen van mogelijke culturele activiteiten voor het projectgebied.

Mogelijk maken openbare ruimte

Het omgevingsplan voorziet in het toevoegen van een mogelijke invulling met openbare ruimte voor het projectgebied.

Het stellen van aanvullende bouwregels voor de nieuwbouw 

Bij het bouwen van de nader uit te werken bebouwing in het projectgebied dient te worden voldaan aan de bouwregels. Naast de in de plankaart opgenomen maatvoeringen dienen ten aanzien van het uiterlijk van nieuwbouw specifieke maatregelen te worden getroffen voor klimaatadaptief en natuurinclusief bouwen.

6.2.3 Functies en activiteiten

Net zoals nu bij bestemmingsplannen, is ook de digitale versie van het omgevingsplan straks leidend. Omdat het omgevingsplan veel meer regels omvat dan het huidige bestemmingsplan is de huidige systematiek met bestemmingen ontoereikend om de veelheid aan regelingen op een gebruiksvriendelijke manier te ontsluiten. In de systematiek van het omgevingsplan wordt daarom niet langer de bestemming centraal gesteld maar de activiteiten die je wil verrichten op een bepaald adres. Door je locatie te koppelen aan de gewenste activiteit: bijvoorbeeld 'bouwen' laat het digitale omgevingsplan straks uitsluitend de regels zien die op die locatie gelden voor die activiteit.

De activiteiten (bouwen, slopen, kappen, horeca uitbaten et cetera) zijn gekoppeld aan functies. Het gaat hier om duidelijk herkenbare hoofdfuncties die voorkomen in de stad en dominant zijn in een bepaald gebied.

De voormalige bestemmingen zoals Groen, Kantoor of Verkeer noemen we nu functies. Het gaat hier om duidelijk herkenbare hoofdfuncties die voorkomen in de stad en dominant zijn in een bepaald gebied. Onder deze functies hangen de zogenaamde activiteiten. Dit zijn de verschillende meer gedetailleerde gebruiks- en bouwmogelijkheden binnen die functie. Deze nieuwe manier van raadpleging betekent dat de regels in dit omgevingsplan niet langer gekoppeld zijn aan bestemmingen, maar aan functies en activiteiten.

6.3 Opbouw van het omgevingsplan

Dit plan is een wijziging van het Omgevingsplan en is gebaseerd op de nieuwe systematiek van het Omgevingsplan zoals die vorm heeft gekregen onder de Omgevingswet. Groot verschil met de bestemmingsplannen is dat in het Omgevingsplan de plankaart met bestemmingen niet langer centraal staan. Reden is dat er zoveel regels in het Omgevingsplan samenkomen dat een heldere en leesbare plankaart met legenda niet meer mogelijk is.

Functies

Onder de Omgevingswet wordt niet langer gesproken over bestemmen, maar over het toedelen van functies aan locaties. Dit doen we in Arnhem door onderscheid te maken in de verschillende functionele gebieden die Arnhem rijk is. Het gebiedstype wordt bepaald door de dominante functie in een bepaald gebied. Zo vallen woningen bijvoorbeeld onder de functie Woongebied, winkelcentra onder de functie Centrumgebied, straten en pleinen onder de functie Openbaar gebied. De functies hebben vooral een structurerende werking en maken de plankaart (verbeelding) leesbaar. De planologische rechten en verplichtingen volgen uit de op de verbeelding aangegeven activiteiten en de met die activiteiten corresponderende planregels.

Activiteiten

De regels ten aanzien van de bouw- en gebruiksmogelijkheden die voorheen onderdeel uitmaakten van een bestemming hebben we uitgesplitst in verschillende activiteiten (onder andere bouwen, wonen, aanleggen). Iedere activiteit heeft daarmee een eigen regeling met werkingsgebied. Op een locatie kunnen verschillende activiteiten van toepassing zijn: bouwen, wonen, detailhandel et cetera. Dit betekent dat je in dit Omgevingsplan per adres uitsluitend de regels ziet die op dat gebied van toepassing zijn. In tegenstelling tot de functies gaat onder de inhoud van de regels die onder een activiteit vallen een rechtstreeks juridische werking uit.

Waarden

In dit omgevingsplan vervallen de termen dubbelbestemming en gebiedsaanduiding. Hieronder vielen voorheen de objecten en gebieden die nadere bescherming nodig hebben (denk aan een monument of een archeologisch waardevol gebied). In het omgevingsplan noemen we deze objecten en gebieden 'Waarden'. Van deze 'Waarden' gaat vaak een bepaalde beperking uit, bijvoorbeeld een instandhoudings of onderzoeksverplichting of een verbod.

6.4 Opzet van de regels

Wij mogen in een omgevingsplan zelf bepalen op welke manier we het omgevingsplan opbouwen en verbeelden.

Het juridisch bindend gedeelte van het omgevingsplan bestaat uit planregels en bijbehorende plankaart waarop de functies en activiteiten zijn aangegeven. Deze plankaart kan zowel digitaal als analoog worden verbeeld. De plankaart en de planregels dienen in samenhang te worden bekeken.

De regels zijn onderverdeeld in 10 hoofdstukken:

1. Inleidende regels (begripsbepalingen en wijze van meten);

2. Functies;

3. Waarden;

4. Activiteiten;

5.Bouwen; 

6. Maatwerkvoorschriften;

7. Omgevingsnormen;

8. Omgevingsplanactiviteiten;

9. Algemene regels;

10. Overgangsregels.

6.4.1 Inleidende regels

Hoofdstuk 1 bevat de Inleidende regels van het omgevingsplan bevat de inleidende regels. Deze regels gelden voor het gehele projectgebied en bevatten:

1. Artikel 1 'Begrippen':

In dit artikel zijn definities van de in de regels gebruikte begrippen opgenomen, voor een eenduidige interpretatie van deze begrippen.

2. Artikel 2 'Wijze van meten': 

Dit artikel geeft onder meer bepalingen waar mag worden gebouwd en hoe voorkomende eisen betreffende de maatvoering begrepen moeten worden. 

6.4.2 Functies

Hoofdstuk 2 bevat de regels over de 'functies'. Per functie wordt het doeleinde van de betreffende functie aangegeven en welke activiteiten en functies ter plaatse zijn toegestaan. Het aangeven van de functies op de verbeelding geeft een duidelijk beeld van de indeling van de stad. Hierbij sluiten we aan bij de legenda van de Standaard vergelijkbare bestemmingsplannen 2012.

6.4.3 Waarden

Hoofdstuk 3 bevat regels over 'waarden'. Deze regels moeten in samenhang worden gelezen met Hoofdstuk 4 Activiteiten, Hoofdstuk 5 Bouwen, Hoofdstuk 10 Omgevingsplanactiviteiten en Hoofdstuk 11 Algemene regels.

6.4.4 Activiteiten

Hoofdstuk 4 bevat de regels over de Activiteiten. De activiteitenregels moeten in samenhang worden gelezen met de verbeelding. Op de verbeelding staat aangegeven welke activiteit waar is toegestaan.

6.4.5 Bouwen

Hoofdstuk 5 bevat de regels over Bouwen. Op de verbeelding zijn bouwhoogten en soms bebouwingspercentages aangegeven. Als er geen percentages zijn aangegeven, mag het hele bouwvlak worden bebouwd. De aangegeven bouwhoogte wordt gemeten vanaf peil tot het hoogste punt (exclusief ondergeschikte elementen zoals een schoorsteen, liftopbouw en dergelijke). Uitgangspunt is dat alleen gebouwd mag worden binnen de bouwgrenzen. In 12 zijn de Algemene bouwregels opgenomen zoals de verplichting tot het bouwen binnen het bouwvlak en de uitleg van het bebouwingspercentage. Deze regel is van toepassing op het gehele projectgebied. De overige regels zijn locatiespecifiek.

6.4.6 Maatwerkvoorschriften

Hoofdstuk 7 bevat de mogelijkheid om maatwerkvoorschriften te stellen.

6.4.7 Omgevingsnormen

Hoofdstuk 9 bevat Omgevingsnormen. Dit betreffen maatvoeringen die niet via de Algemene bouwregels geregeld worden.

6.4.8 Omgevingsplananctiviteiten

Hoofdstuk 10 bevat Omgevingsplanactiviteiten. Hier zijn regels opgenomen om binnenplans af te wijken. 

6.4.9 Algemene regels

Hoofdstuk 11 bevat de Algemene regels. Deze regels gelden voor het gehele projectgebied. Dit hoofdstuk is opgebouwd uit:

1. Artikel 25 Anti-dubbeltelregel. Deze regel bepaalt dat er niet twee keer voor eenzelfde locatie een bouwplan kan worden ingediend.

2. Artikel 29 Overige regels. In dit artikel zijn de regels over parkeren uit het 'Facetplan Parkeren' opgenomen.

3. Artikel 27 Strijdige activiteiten. Hierin is aangegeven welke functies in ieder geval in strijd zijn met het bestemmingsplan.

6.4.10 Overgangs- en slotregels

In Hoofdstuk 12 staan de Overgangs- en slotregels. In de overgangsbepalingen is aangegeven wat de juridische consequenties zijn van bestaande situaties die in strijd zijn met dit Omgevingsplan. 

6.5 Functies

6.5.1 Gemengd - Gemengd gebied

Wat is het doel van deze functie?

De functie Gemengd - Gemengd gebied omvat de delen in de binnenstad waar we streven naar een beperkte mate van functiemenging, passend bij de luwte die we in dat gebied wenselijk vinden.

Waar geldt deze functie?

Deze functie geldt ter plaatse van het gehele projectgebied.

Welke activiteiten zijn er binnen deze functie mogelijk?

Binnen de functie Gemengd - Gemengd gebied zijn een woonactiviteit, een maatschappelijk-culturele activiteit of een invulling met openbare ruimte toegestaan. Op de digitale plankaart is exact te zien welke activiteit is toegestaan. 

6.5.2 Tuin

Wat is het doel van deze functie?

De functie 'Tuin' is gericht op het behoud van aanwezige binnentuinen en groenvoorzieningen ten behoeve van aangrenzende functies in het projectgebied.

Waar geldt deze functie?

Deze functie geldt ter plaatse van de stroken grond ten zuiden en ten oosten grenzend aan de nieuwe uit te werken bebouwing.  

Welke activiteiten zijn er binnen deze functie mogelijk?

Om het groene karakter te bewaren kunnen in deze functie geen gebouwen worden opgericht. 

6.6 Waarden

6.6.1 Waarde - Gemeentelijk beschermd stadsgezicht

Wat is het doel van deze waarde? 

In de binnenstad van Arnhem is sprake van een waardevol historisch stadsbeeld dat van algemeen belang is voor de gemeente Arnhem door zijn schoonheid, cultuurhistorie en markante eigen karakter. Om deze kwaliteiten te beschermen is een groot deel van de binnenstad aangewezen als gemeentelijk Beschermd Stadsgezicht. Het gaat specifiek om de volgende waarden:

Een in gave staat verkerende historische nederzettingsstructuur

Een uit de middeleeuwen daterend stratenpatroon met daarbinnen stegen, brandgangen, osendrops, verkavelingstructuren en rooilijnen met mogelijk nog elementen uit de préstedelijke fase van Arnhem. De middeleeuwse parcelering is vooral traceerbaar aan de hand van de vele historische kelders in het gebied. Binnen de in oorsprong middeleeuwse structuur zijn ook de jongere ontwikkelingen van belang zoals de 19e-eeuwse monumentale winkelgevels.

Een nog in gave staat bewaarde 19e-eeuws singelprofiel dat bestaat uit de singelparken, begeleidende rijbanen en de singelwanden.

Binnen de middeleeuwse kern zijn ook structuren uit de wederopbouwperiode aanwezig zoals de Looierstraat en het Gele Rijdersplein. Deze structuur is deels terug te vinden in aanleg, stratenpatroon, verkavelingen en rooilijnen. De wederopbouwperiode van Arnhem vormt daarmee een wezenlijk onderdeel van de ontwikkelingsgeschiedenis van de stad.

De situering en aard van de bebouwing in relatie tot deze structuren

In de middeleeuwse binnenstad merendeels zeer compacte bebouwing, bestaande uit panden met van oudsher gecombineerde functies (wonen en werken), veelal met op de middeleeuwen terug gaande oorsprong. Voorts winkelpanden en diverse panden met bijzondere functies, deze laatste vaak op prominente locaties, zoals kerkgebouwen, het stadhuis, het voormalige postkantoor aan het Jansplein.

Langs het ruim aangelegde singelgebied is een groot aantal in rijen gesitueerde grote voorname herenhuizen aanwezig, afgewisseld door forse gebouwen met bijzondere functies (openbare gebouwen, culturele instellingen, horeca, zakenpanden, vaak op prominente locaties, zoals Musis en het Stadstheater).

In het wederopbouwgebied van de Looierstraat en het Gele Rijdersplein zijn er overwegend zakenpanden (winkels, kantoren) met bovenwoningen in functionalistische of traditionele trant, vaak als grote bouwprojecten op brede ruime kavels gerealiseerd. Als belangrijk stedenbouwkundig accent binnen dit wederopbouwgebied bevindt zich de woontoren op de hoek van de Looierstraat en het Velperplein.

Karakteristieke bebouwing

Veelal zeer waardevolle en beschermingswaardige bebouwing van verschillende typen, stijlen en ouderdom.

Waardevolle groenelementen en -structuren

Zoals parkstructuren met monumentale bomen en waterpartijen in het singelgebied, binnenstadstuinen en restanten daarvan en individuele groenelementen in het binnenstadsgebied.

Waar geldt deze waarde? 

Deze waarde geldt voor de middeleeuwse binnenstad inclusief de markt en de direct aangrenzende bebouwing alsmede de 19e -eeuwse singels.

Welke activiteiten zijn er binnen deze waarde mogelijk?

De waarde gemeentelijk beschermd stadsgezicht is altijd gekoppeld aan een gebruiksfunctie. De (bouw)activiteiten die binnen deze functie zijn toegestaan, kunnen in principe worden ontplooid maar er gelden voor sommige activiteiten wel extra regels zoals het verplicht bouwen in de rooilijn of het handhaven van een karakteristiek dak. Ook is het niet zomaar toegestaan een gebouw in het beschermd stadsgezicht te slopen. Dit kan alleen als de sloop en beoogde nieuwbouw passen binnen het karakteristieke stadsbeeld. Dit kan per locatie verschillen maar kan bijvoorbeeld gaan om een 19e-eeuwse gevelopbouw met hoge ramen of juist om bebouwing met typische elementen uit de wederopbouw.

6.7 Handhaving

Het bestemmingsplan is bindend voor overheid en burger. Het omgevingsplan biedt het juridisch kader waaruit de bouw- en gebruiksmogelijkheden per locatie kunnen worden afgeleid. Tegelijkertijd kan de gemeente naleving van het bestemmingsplan afdwingen door handhavend op te treden tegen strijdig gebruik en/ of illegale bebouwing.

De raad bepaalt ieder jaar in de begroting waar de handhavingsprioriteiten liggen. Op grond van de hoofddoelstelling uit het gemeentelijke  'Handhavingsplan Fysieke Leefomgeving 2011-2014'': 'het zorgdragen voor een aantrekkelijke, leefbare en veilige leefomgeving' is onze inzet gericht op het toezicht en de handhaving van de regels die betrekking hebben op de bescherming van de veiligheid en kwaliteit van de leefomgeving. Handhaving is daarbij geen doel op zich, maar een van de instrumenten om een leefbare en veilige leefomgeving te creëren. Door toe te zien op de naleving van regelgeving wordt een bijdrage geleverd aan de verschillende doelen van de gemeente op het gebied van de veiligheid en leefbaarheid.

De gemeente is in beginsel verplicht om te handhaven. De gemeente mag wel prioriteiten stellen, maar als er een handhavingsverzoek wordt ingediend dan moet de gemeente handhaven. De gemeente kan alleen in bijzondere gevallen van handhaving afzien, als de handhaving onevenredig is. Bijvoorbeeld als vaststaat dat de overtreding op heel korte termijn gelegaliseerd wordt.  

7 Financiële haalbaarheid

7.1 Financieel economische haalbaarheid

De gronden ter plaatse van het projectgebied Bartok Park Zuid zijn in 2007 door de gemeente verkocht aan projectontwikkelaar Synchroon. Overeengekomen is dat de gemeente de gronden ter plaatse van het projectgebied aankoopt van Sychroon, hiervoor is een koopcontract gesloten. Hierdoor wordt de voorgenomen ontwikkeling dus gerealiseerd op gronden die in eigendom zijn van de gemeente. Het is niet nodig om kostenverhaal regels op te nemen in het omgevingsplan.

7.2 Kostenverhaal

Afdeling 13.6 van de Omgevingswet gaat in over het kostenverhaal bij activiteiten en activiteiten vanwege gebruikswijzigingen. Daarin is bepaald dat het niet is toegestaan om aangewezen bouw- of gebruiksactiviteiten te verrichten zonder het kostenverhaal geregeld te hebben. Het kostenverhaal kan daarbij zowel via privaatrechtelijke weg met een overeenkomst als via publiekrechtelijke weg met regels in het omgevingsplan worden vastgelegd.

8 Voorbereiding en participatie

8.1 Participatie

Op grond van artikel 10.2 van het Omgevingsbesluit wordt bij het vaststellen van een omgevingsplan aangegeven hoe burgers, bedrijven, maatschappelijke organisaties en bestuursorganen bij de voorbereiding zijn betrokken en wat de resultaten daarvan zijn. Daarbij moet worden aangegeven op welke wijze invulling is gegeven aan het toepassen van eventueel gemeentelijk participatiebeleid.'

Er is gedurende het ontwikkelproces (2019 t/m 2022) met een groot aantal partijen gesproken cq. hebben de gelegenheid gehad hun inbreng te leveren, zoals diverse instanties, belangenorganisaties, omliggende bedrijven/voorzieningen en omwonenden van het projectgebied. De participatie heeft vorm gekregen door middel van meerdere (digitale) plenaire informatiebijeenkomsten. Daarnaast hebben er ook individuele gesprekken geweest tussen de ontwikkelaar en/of gemeente Arnhem en het nabijgelegen Theater aan de Rijn en het toenmalige Collectie De Groen. De verslaglegging van de verschillende informatiebijeenkomsten zijn vastgelegd in Bijlage 10.

De belangrijkste onderwerpen die gedurende het participatietraject centraal stonden en besproken zijn tijdens de plenaire informatiebijeenkomsten en individuele gespreken waren:

  • Hoogte en volume van het gebouw (stadsblok);

  • Inrichting van het Bartokplein (achtergelegen binnenpleintje);

  • Aantal en typen woningen;

  • Autoparkeren voor bewoners;

  • Expeditieverkeer van het theater en Collectie De Groen;

  • Geluidbelasting op bestaande en nieuwe woningen;

  • Openbare fietsenstalling;

  • Aandacht voor klimaatadaptatie (hitte en groen);

  • Ontsluiting voetgangers via stegenstructuur.



De opbrengst van het participatietraject is zo veel mogelijk verwerkt in de planuitwerking van de voorgenomen ontwikkeling in het projectgebied.

8.2 Vooroverleg

In het kader van vooroverleg is de wijziging van het Omgevingsplan aan de volgende partijen voorgelegd:

Waterschap Rijn en IJssel

PM Uitwerking

Veiligheids- en gezondheidsregio Gelderland-Midden

PM Uitwerking

Provincie Gelderland

PM Uitwerking

8.3 Terinzagelegging (ontwerp-omgevingsplan)

Het ontwerp-omgevingsplan zal te zijner tijd voor een periode van zes weken voor een ieder ter inzage liggen. Een ieder kan in deze periode zienswijzen indienen. In deze paragraaf of in een bijlage bij dit omgevingsplan zullen de binnengekomen zienswijzen worden samengevat en van een antwoord worden voorzien.

Naar boven