Burgemeester en wethouders van de gemeente Zaanstad;
Gelet op artikel 2 van de Verordening naamgeving en nummering (adressen) Zaanstad (vindplaats gemeenteblad overheid.nl Lokale wet- en regelgeving)
B E S L U I T E N:
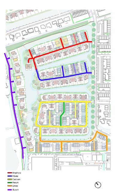
De volgende straatnamen vast te stellen voor vijf geplande straten in Krommenie. Deze straten worden aangelegd in het projectplan ‘Eilanden van Hain’, gelegen in het gebied van het voormalige Provily Sportpark, zoals aangegeven op onderstaande plattegrond.
Bezwaar
Als u belanghebbende bent bij het besluit, kunt u binnen zes weken na de dag van bekendmaking daarvan een bezwaarschrift indienen bij het college van burgemeester en wethouders van Zaanstad, Postbus 2000, 1500 GA Zaandam. U kunt ook digitaal uw bezwaarschrift indienen via de website www.zaanstad.nl. U heeft daarvoor DigiD of eHerkenning nodig.
Vermeld in uw bezwaarschrift altijd de datum, uw naam, adres, handtekening en de reden(en) waarom u bezwaar maakt. Stuur ook een kopie van dit besluit mee en vermeld het referentienummer/kenmerk van dit besluit. Dient iemand anders namens u een bezwaarschrift in, stuur dan een machtiging mee. Verder verzoeken wij u om uw telefoonnummer in het bezwaarschrift te vermelden.
Het indienen van een bezwaarschrift schort de werking van dit besluit niet op. In spoedgevallen kan tijdens de bezwaarschriftprocedure een voorlopige voorziening worden gevraagd aan de voorzieningenrechter van de Rechtbank Noord-Holland, Sector Bestuursrecht, postbus 1621, 2003 BR Haarlem. U kunt ook digitaal het verzoekschrift indienen bij de genoemde rechtbank via de website www.rechtspraak.nl. Voor het behandelen van een verzoek worden griffiekosten in rekening gebracht.
Voor meer informatie over het maken van bezwaar kunt u de brochure 'Bezwaar en beroep tegen een beslissing van de overheid’ downloaden van de website www.rijksoverheid.nl. Voor algemene informatie over procedures kunt u ook bellen met de rijksoverheid op telefoonnummer 1400 (lokaal tarief).
Aldus vastgesteld in de vergadering van het college van burgemeester en wethouders van de gemeente Zaanstad op 26 augustus 2025.
De hier aangeboden pdf-bestanden van het Staatsblad, Staatscourant, Tractatenblad, provinciaal blad, gemeenteblad, waterschapsblad en blad gemeenschappelijke regeling vormen de formele bekendmakingen in de zin van de Bekendmakingswet en de Rijkswet goedkeuring en bekendmaking verdragen voor zover ze na 1 juli 2009 zijn uitgegeven. Voor pdf-publicaties van vóór deze datum geldt dat alleen de in papieren vorm uitgegeven bladen formele status hebben; de hier aangeboden elektronische versies daarvan worden bij wijze van service aangeboden.