Gemeenteblad van Oldebroek
| Datum publicatie | Organisatie | Jaargang en nummer | Rubriek |
|---|---|---|---|
| Oldebroek | Gemeenteblad 2025, 363954 | verkeersbesluit of -mededeling |
Zoals vergunningen, bouwplannen en lokale regelgeving.
Adressen en contactpersonen van overheidsorganisaties.
U bent hier:
| Datum publicatie | Organisatie | Jaargang en nummer | Rubriek |
|---|---|---|---|
| Oldebroek | Gemeenteblad 2025, 363954 | verkeersbesluit of -mededeling |
Verkeersbesluit gereserveerde parkeerplaatsen voor opladen elektrische en hybride voertuigen op twee parkeerplaatsen
De beleidsmedewerker, meneer J. van Oss, namens teammanager Leefomgeving, meneer J. van Dijk, namens burgemeester en wethouders van de gemeente Oldebroek,
Krachtens het besluit van burgemeester en wethouders van de gemeente Oldebroek van 11 juli 2023 en het besluit van teammanager Leefomgeving van 13 juli 2023 bevoegd tot het nemen van onderstaand besluit;
Gelet op de Wegenwet, de Wegenverkeerswet 1994 (hierna: WVW 1994), het Reglement Verkeersregels en Verkeerstekens 1990 (hierna: RVV 1990), het Besluit Administratieve Bepalingen inzake het Wegverkeer (hierna: BABW) en de Uitvoeringsvoorschriften van het Besluit Administratieve Bepalingen inzake het Wegverkeer (hierna: Uitvoeringsvoorschriften BABW),
Overwegingen ten aanzien van het besluit
dat de Zuiderzeestraatweg, Noordsingel, Berberisstraat en van Pallandtlaan gelegen zijn binnen de bebouwde kom van Oldebroek en Wezep;
dat deze weg in beheer is bij de gemeente Oldebroek;
dat de Zuiderzeestraatweg, Noordsingel, Berberisstraat en van Pallandtlaan wegen zijn als bedoeld in artikel 1, lid 1 onder b van de WVW 1994;
dat gelet op bovengenoemd artikel het college van burgemeester en wethouders van Oldebroek bevoegd is verkeersbesluiten te nemen voor deze weg;
dat de wegencategorisering van de gemeente Oldebroek is opgenomen is het gemeentelijk verkeers- en vervoersplan;
dat deze categorisering aansluit op de categorisering, zoals bedoeld in het landelijk beleid Duurzaam Veilig;
dat de Zuiderzeestraatweg, Noordsingel, Berberisstraat en van Pallandtlaan zijn gecategoriseerd als erftoegangsweg binnen de bebouwde kom en de weg daarmee deel uitmaakt van het verblijfsgebied;
dat de verkeersfunctie in een verblijfsgebied ondergeschikt is aan de verblijfsfunctie;
dat in de ‘laadvisie gemeente Oldebroek’ de ambities en plaatsingsvoorwaarden zijn vastgelegd;
dat er voldoende parkeerruimte overblijft als er twee gereserveerde parkeerplaatsen voor het opladen van elektrische auto’s bestemd worden;
dat elektrisch aangedreven auto’s in opkomst zijn en er in Nederland begin 2023 meer dan 500.000 elektrische en hybride auto’s zijn geregistreerd;
dat de gemeente Oldebroek aan Vattenfall een concessie heeft verleend voor het realiseren, exploiteren en beheren van laadpalen;
dat op 28-1-2025 een verzamelverkeersbesluit is genomen voor laadpaallocaties voor de komende 3 jaar;
dat ten gevolge van nieuwbouw en/of het herinrichten van de straat enkele wijzigingen en/of aanvullingen op dit besluit zijn gewenst;
dat de laadpalen voor deze doelgroepen zijn bestemd:
dat een laadpaal twee aansluitingen voor elektrische voertuigen kent;
dat om een optimale benutting van een openbaar laadpunt te waarborgen het wenselijk is om nabij het oplaadpunt twee parkeerplaatsen te reserveren ten behoeve van het opladen van elektrische voertuigen;
dat dit gerealiseerd kan worden door middel van het plaatsen van het verkeersbord model E8c van bijlage 1 van het RVV 1990 met een onderbord dat aanduidt dat het verkeersbord van toepassing is op twee parkeervakken;
dat de twee parkeervakken alleen door elektrische voertuigen gebruikt kunnen worden;
dat het exclusief parkeren voor elektrische auto’s slechts is toegestaan met als doel de auto op te laden, zodat het oplaadpunt voor meerdere gebruikers beschikbaar is;
dat dit gebruik geregeld is in artikel 24, lid 1, sub d ten 2e van het RVV 1990, namelijk “de bestuurder mag zijn voertuig niet parkeren op een parkeergelegenheid op een andere wijze of met een ander doel dan op het bord of op het onderbord is aangegeven”;
dat gelet op artikel 12 van het BABW voor het plaatsen van het verkeersbord E8c – met het betreffende onderbord – van bijlage 1 van het RVV 1990 een verkeersbesluit is vereist;
dat gelet op artikel 2 van de WVW 1994 de verkeersmaatregel strekt tot het in stand houden van de weg en het waarborgen van de bruikbaarheid daarvan;
dat gelet op artikel 2 van de WVW 1994 de verkeersmaatregel voorts strekt tot het voorkomen of beperken van door het verkeer veroorzaakte overlast, hinder of schade alsmede de gevolgen voor het milieu, bedoeld in de Wet milieubeheer;
dat gelet op artikel 2 van de WVW 1994 het zoveel mogelijk waarborgen van de vrijheid van het verkeer in het geding komt bij het treffen van deze verkeersmaatregel;
dat gelet op voorgaande overwegingen het zo veel mogelijk waarborgen van de vrijheid van het verkeer van ondergeschikt belang wordt geacht;
dat gelet op artikel 24 van het BABW overleg is gevoerd met de gemandateerde van de politie;
dat de politie heeft ingestemd met de hierna genoemde verkeersmaatregel.
- in te trekken het op 28 januari genomen besluit inzake het reserveren van twee parkeerplaatsen ten behoeve van elektrische voertuigen aan de Zuiderzeestraatweg, nabij de Plus.
- door middel van het plaatsen van het verkeersbord E8c van bijlage 1 van het RVV 1990 met een onderbord met pijlen, waaruit blijkt dat het bord voor twee parkeerplaatsen van toepassing is, aan de Zuiderzeestraatweg in Oldebroek, nabij de oude brandweerkazerne, een tweetal parkeerplaatsen te reserveren ten behoeve van het opladen van elektrische voertuigen, zoals aangegeven op bijgaande situatietekening.
- in te trekken het op 28 januari genomen besluit inzake het reserveren van twee parkeerplaatsen ten behoeve van elektrische voertuigen aan de Berberisstraat, nabij Hazelaarstraat 1.
- door middel van het plaatsen van het verkeersbord E8c van bijlage 1 van het RVV 1990 met een onderbord met pijlen, waaruit blijkt dat het bord voor twee parkeerplaatsen van toepassing is, aan de Berberisstraat in Wezep, nabij huisnummer 3, een tweetal parkeerplaatsen te reserveren ten behoeve van het opladen van elektrische voertuigen, zoals aangegeven op bijgaande situatietekening.
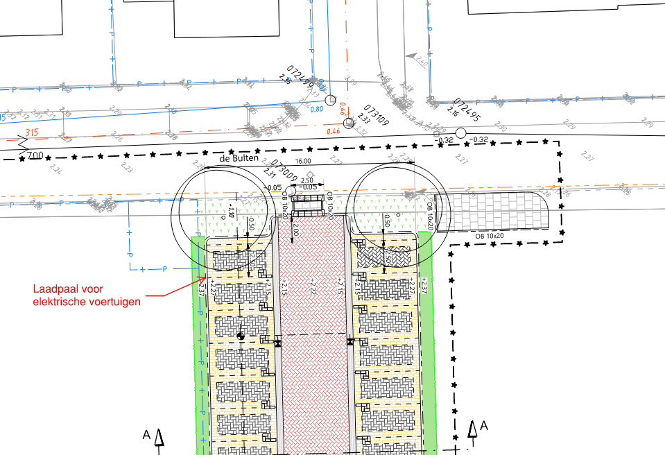
- door middel van het plaatsen van het verkeersbord E8c van bijlage 1 van het RVV 1990 met een onderbord met pijlen, waaruit blijkt dat het bord voor twee parkeerplaatsen van toepassing is, aan de Noordsingel in Wezep, nabij De Bulten 67, een tweetal parkeerplaatsen te reserveren ten behoeve van het opladen van elektrische voertuigen, zoals aangegeven op bijgaande situatietekening.
- door middel van het plaatsen van het verkeersbord E8c van bijlage 1 van het RVV 1990 met een onderbord met pijlen, waaruit blijkt dat het bord voor twee parkeerplaatsen van toepassing is, aan de Van Pallandtlaan in Wezep, nabij Van Limburg Stirumlaan 18, een tweetal parkeerplaatsen te reserveren ten behoeve van het opladen van elektrische voertuigen, zoals aangegeven op bijgaande situatietekening.
Dit besluit treedt in werking na bekenmaking in het gemeenteblad.
Bent u het niet eens met het besluit? Neemt u dan eerst telefonisch contact met ons op via 0525 63 82 00. We nemen dan samen met u ons besluit door. Komen we er niet uit, dan kunt u een bezwaarschrift indienen.
Wilt u weten hoe u een bezwaarschrift indient? Kijkt u dan op www.oldebroek.nl/bezwaar
U kunt uw bezwaarschrift op 2 manieren indienen: • Digitaal. Op www.oldebroek.nl/bezwaar. U heeft hiervoor een DigiD-inlogcode nodig. • Per post. Stuurt u uw bezwaarschrift naar:
College van burgemeester en wethouders van Oldebroek Raadhuisplein 1 8096CP Oldebroek
U kunt binnen 6 weken na de verzenddatum van dit besluit laten weten dat u het niet eens bent het besluit. Stuurt u het bezwaarschrift niet op tijd? Dan kan het zijn dat uw bezwaar niet wordt behandeld.
Wat schrijft u in uw bezwaarschriftIn het bezwaarschrift zet u:
• Uw naam, adres en telefoonnummer • Een duidelijke omschrijving van het besluit waartegen u bezwaar maakt • De reden waarom u bezwaar maakt • De datum en uw handtekening
Stuur ook een kopie van deze brief met uw bezwaarschrift mee.
Maakt u namens iemand anders bezwaar? Stuur dan een volmacht mee.
Voorlopige voorzieningAls u een bezwaarschrift opstuurt, dan heeft dit geen schorsende werking. Dat betekent dat het besluit blijft gelden zolang uw bezwaarschrift in behandeling is. Het kan zijn dat u dit niet wilt. Bijvoorbeeld omdat het besluit onherstelbare gevolgen voor u heeft. Dan kunt u een verzoek om een voorlopige voorziening indienen. U doet dat door een brief te sturen, met een kopie van uw bezwaarschrift, naar de Voorzieningenrechter van de Rechtbank Gelderland, sector Bestuursrecht, postbus 9030, 6800 EM Arnhem. Let op! U betaalt administratiekosten (griffierechten) als u de rechter vraagt om een voorlopige voorziening. Op www.rechtspraak.nl leest u hier meer over.
Kopieer de link naar uw clipboard
https://zoek.officielebekendmakingen.nl/gmb-2025-363954.html
De hier aangeboden pdf-bestanden van het Staatsblad, Staatscourant, Tractatenblad, provinciaal blad, gemeenteblad, waterschapsblad en blad gemeenschappelijke regeling vormen de formele bekendmakingen in de zin van de Bekendmakingswet en de Rijkswet goedkeuring en bekendmaking verdragen voor zover ze na 1 juli 2009 zijn uitgegeven. Voor pdf-publicaties van vóór deze datum geldt dat alleen de in papieren vorm uitgegeven bladen formele status hebben; de hier aangeboden elektronische versies daarvan worden bij wijze van service aangeboden.