Beeldkwaliteitsplan Steenwijk Zuid Oost

De raad van de gemeente Steenwijkerland;

 

gelezen het voorstel van burgemeester en wethouders van 31-10-2023, nummer 2023-RAAD-00075;

 

besluit:

 

  • 1.

    Het Beeldkwaliteitsplan Steenwijk Zuid Oost, vast te stellen.

  • 2.

    Dit beeldkwaliteitsplan voor deze specifieke locatie aan te merken als welstandsnota.

Steenwijk Zuidoost Beeldkwaliteitplan Betap Crilux

 

1. Inleiding

1.1 Introductie

Dit beeldkwaliteitplan heeft betrekking op het voormalige terrein van de tapijtfabriek Betap Crilux. Voor deze woonwijk Steenwijk Zuidoost fase I is een bestemmingsplan opgesteld. In het bestemmingsplan zijn (bouw)regels opgesteld waar de toekomstige bebouwing voor dit ontwikkelingsgebied aan moet voldoen. Ten aanzien van de welstandscriteria (hoofdstuk 3) geldt dat in alle gevallen de (bouw)-regels uit het bestemmingsplan leidend zijn.

 

De welstandscriteria zijn opgesteld ten behoeve van het uiterlijk en de onderlinge samenhang van de bebouwing. Via deze criteria wordt er gestuurd op ruimtelijke kwaliteit. Deze welstandsbeoordeling vindt normaliter plaats aan de hand van criteria uit de gemeentelijke Welstandsnota. Deze beoordeling is gekoppeld aan bepaalde gebieden en hun kenmerken. Voor deze nieuwe ontwikkeling zijn nieuwe uitgangspunten (criteria) ontwikkeld, passend bij de uitgangspunten voor dit gebied.

 

Dit beeldkwaliteitplan geeft opdrachtgevers, ontwerpers en bouwers, vooraf informatie waaraan bouwplannen moeten voldoen en beoogt een inspiratiebron te zijn om een hoge kwaliteit te realiseren.

 

1.2 Wettelijke kader

De gemeente Steenwijkerland wil zorgvuldig omgaan met de bebouwing in de gemeente. Zij wil ook de bouwers, woningcorporaties en ontwikkelaars inspireren en stimuleren zorgvuldig om te gaan met nieuwbouw. Dit beeldkwaliteitplan biedt de bouwers en aanvragers van een bouwaanvraag inzicht en verheldering over de beoordeling van (zijn of haar) bouwplannen. Dit beeldkwaliteitsplan moet ook worden gezien als de welstandsnota voor dit gebied. De criteria waaraan getoetst wordt zijn opgenomen in hoofdstuk 3 van dit beeldkwaliteitplan.

 

Daarnaast is het welstandsbeleid verder uitgewerkt in gebiedsgerichte welstandscriteria. Naast de gebiedsgericht criteria kunnen ook specifieke criteria gelden, die in een beeldkwaliteitplan worden opgenomen. Voor Steenwijk Zuidoost fase I is een beeldkwaliteitsplan opgesteld waaraan de bouwplannen worden getoetst. In de welstandsnota in het algemeen en dit beeldkwaliteitplan in het bijzonder wordt beschreven hoe de gemeente om wil gaan met de gebouwde omgeving en op welke aspecten en criteria de welstandscommissie zich daarbij baseert. Als laatste, maar zeker niet als minste, biedt de welstandsnota voor de welstandscommissie een beoordelingskader.

 

Dit beeldkwaliteitplan fungeert derhalve als gebiedsgericht welstandskader voor dit specifieke plangebied, en vervangt daarmee voor dit gedeelte de welstandsnota. Voor de overige aspecten (algemene criteria, reclamecriteria etc.) zijn ook de criteria opgenomen in dit beeldkwaliteitplan.

 

1.3 Werkwijze

Initiatiefnemers kunnen met kennisneming van de regels van het bestemmingsplan en beeldkwaliteitsplan een bouwplan ontwerpen. In gemeente Steenwijkerland wordt gewerkt met een gecombineerde welstands- en monumentencommissie. Voor de welstandsadvisering maakt de gemeente Steenwijkerland gebruik van Het Oversticht, een adviesorganisatie voor ruimtelijke kwaliteit. Deze onafhankelijke commissie van deskundigen brengt advies uit aan burgemeester en wethouders. Het gaat dan vooral om bouwplannen. Bij de welstandsadvisering gaat het om de vraag of het uiterlijk of de plaatsing van een bouwwerk, waarvoor een aanvraag voor een omgevingsvergunning is ingediend, wel of niet in strijd is met redelijke eisen van welstand en de welstandscriteria in dit beeldkwaliteitplan.

2. Stedenbouwkundig plan

2.1 Concept

In Steenwijk Zuidoost wordt het landschap verweven met het woongebied. Groene lijnen dringen vanuit het omliggende landschap het woongebied binnen. Het zijn groen-, wadi- of ontsluitingsstructuren, of combinaties daarvan. De oorspronkelijke agrarische ondergrond vormt de basis voor de structuur, een 'transitielandschap' dat verbonden wordt met de omgeving en ook waarde heeft voor de omgeving, waar gewoond en gerecreëerd wordt in een groene en dorpse setting. Om deze transitie goed vorm te kunnen geven, ligt het voor de hand om een raamwerk vorm te geven dat gebaseerd is op de oorspronkelijke ondergrond die doorschemert in de nieuwe structuur, en tegelijk worden er nieuwe elementen aan toegevoegd. Zo worden de houtwal, grondwal en bestaande bomen opgenomen in de nieuwe stedenbouwkundige structuur. Er wordt ingezet op een afwisselend landschappelijk casco, de structuren variëren in type (bijv. wadi of bomenlaan), in beplanting en in gebruik. Er wordt voldoende ruimte gereserveerd voor spelen en ontmoeting.

 

2.2 Ambities

De ruimtelijke ambities voor Steenwijk Zuidoost bestaat uit vier focus-thema's: verbonden structuren, landschappelijk en natuurinclusief, water en waterberging en programma. Het wordt een nieuwe wijk waar alle structuren goed verbonden zijn met elkaar en de omgeving. Waar fietsroutes zijn verbonden met de omgeving, waar het landschappelijk raamwerk van de nieuwe wijk ecologisch is verbonden met het omliggend landschap en waar verschillende structuren samenvallen in één ruimte (o.a. groen, spelen, waterretentie)

 

Waar natuurinclusiviteit centraal staat op alle niveaus. Op stedenbouwkundige schaal, in de openbare ruimte en rond de woningen. Overal in het landschappelijke en groenblauwe raamwerk is natuurinclusiviteit terug te vinden, met rijke beplanting en voorzieningen voor fauna. Waterretentie en klimaatadaptatie komen samen in een robuust systeem dat hemelwater opvangt, vasthoudt en vertraagd afvoert. Zo kunnen piekbuien opgevangen worden en blijft overlast bij hevige neerslag beperkt, maar wordt ook droogte en hittestress tegengegaan. Een stelsel van wadi's en een watergang maken een verbonden systeem.

 

Bouwen voor de relevante doelgroepen is het devies voor Steenwijk Zuidoost. Daarbij gaat het om diverse doelgroepen zoals jongeren, starters, eenpersoonshuishoudens, senioren, etc. Maar het gaat ook om betaalbaarheid, met een bereikbare woning voor iedereen. In de nieuwe wijk komen specifieke typologieën voor de doelgroepen.

 

2.3 Stedenbouwkundig plan

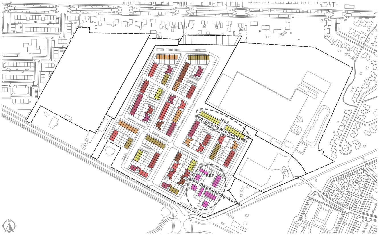
De landschappelijke structuren scheiden verschillende bouwstroken van elkaar. Zo ontstaat een kleinschalig en intiem woongebied, waar korte zichtlijnen op bebouwing worden afgewisseld met lange zichtlijnen op het landschap in de richting van de stuwwal. Binnen het raamwerk wordt een informele en ontspannen woonsfeer ontwikkeld, met een afwisseling van rijenwoningen en twee-onder-één-kapwoningen. Er komen in principe geen appartementen in Fase 1. Woningen bij de grondwal, aan het water of in de bosrand krijgen een bijzonder landschappelijk-typologisch karakter, en aan de Meppelerweg komt een 'erf' vergelijkbaar met de oorspronkelijke bebouwing aan deze oude uitvalsweg.

 

De bebouwing bestaat uit bouwblokken van diverse grootte en vorm. Binnen een bouwblok is een variatie in woningtypen, maar zodanig dat het straatbeeld een eenheid vertoont. Dit betekend dat aan weerszijden van een straat rijwoningen en twee-ondereen-kap woningen voor komen. Variatie wordt verder bereikt door verschillen aan te brengen in gevelindeling en kleurgebruik van de gevels.

 

3. Criteria

Om te komen tot een beeldkwaliteit voor Steenwijk Zuidoost met een 'natuurinclusieve, herkenbare en landschappelijke identiteit' als uitgangspunt, is voor de bebouwing een aantal welstandscriteria geformuleerd. De welstandscriteria betreffen architectuur in het algemeen, massa, materiaal-/ kleurgebruik, daken, erfscheidingen, voortuinen, natuurinclusieve maatregelen en duurzaamheid in het bijzonder. Deze welstandscriteria zijn middelen waarmee de sfeer gerealiseerd kan worden. De welstandscriteria beschrijven de voorgestane variatie als een keuzepalet waaruit gekozen kan worden.

 

3 .1 Bebouwingskorrel

De variatie is niet per woning (pandsgewijs), niet per blok en niet per straat. De variatie is per 'gebouw' (2 twee-onder-één-kapwoningen = samen 1 gebouw- 1 rijtje woningen = samen 1 gebouw). Deze bebouwingskorrel wordt toegepast om een dorps, ontspannen, landschappelijk en informele sfeer te creëren. Binnen één gebouw is één samenhangende architectuur en\of één kleur /materiaalpalet toegepast. Het is belangrijk dat de gebouwen die naast elkaar staan niet hetzelfde zijn. Er zijn twee uitzonderingen voor de bebouwingskorrel. Het erf wordt als één geheel gezien en moeten allemaal hetzelfde uiterlijk krijgen, dit geldt ook voor de bebouwing aan het hof.

 

Criteria:

 

  • De variatie is niet per woning (pandsgewijs), niet per blok en niet per straat. De variatie is per ‘gebouw’ (2 twee-onder-één-kapwoningen = samen 1 gebouw - 1 rijtje woningen = samen 1 gebouw).

  • Binnen één gebouw: één samenhangende architectuursignatuur en/of één kleur / materiaalpalet, en afwijkend van het buurgebouw.

  • Het erf en het hof als één bebouwingskorrel ontwerpen.

 

 

3.2 Algemene welstandsregels

Afwijken van de welstandsregels

Afwijken op inhoudelijke gronden

Het college van burgemeester en wethouders kan op inhoudelijke grond afwijken van de welstandsregels indien zij tot het oordeel komt dat de van toepassing zijnde welstandsregels niet juist zijn geïnterpreteerd, of dat naar het oordeel van het college niet de juiste welstandsregels zijn toegepast.

 

Voordat het besluit tot het verlenen van de omgevingsvergunning wordt genomen, maar binnen de daarvoor geldige afhandelingstermijn, wordt een second-opinion gevraagd bij een (andere) onafhankelijke adviescommissie. Deze second-opinion speelt een zware rol bij de verdere oordeelsvorming van het college van burgemeester en wethouders. Indien het college van burgemeester en wethouders op inhoudelijke grond afwijkt van het welstandsregels wordt dit in de beslissing op de aanvraag van de omgevingsvergunning gemotiveerd.

Afwijken om andere redenen

Het college van burgemeester en wethouders heeft volgens artikel 2.10 lid 1 d Wabo de mogelijkheid om bij strijd van een bouwplan met de welstandsregels, toch een omgevingsvergunning te verlenen indien het college van oordeel is dat daarvoor andere redenen zijn, bijvoorbeeld van economische of maatschappelijke aard. Deze afwijking wordt in de beslissing op de aanvraag van de omgevingsvergunning gemotiveerd.

Welstandsregels voor excessen

Voorkomende gevallen

Er is sprake van een exces als een bouwwerk niet voldoet aan met één of meerdere van de volgende welstandsregels:

 

  • a.

    een bouwwerk sluit zich visueel of fysiek af voor zijn omgeving;

  • b.

    een ingreep in een bestaand bouwwerk ontkent of vernietigt architectonische bijzonderheden van het bestaande bouwwerk;

  • c.

    een bouwwerk doorbreekt doet een te grove inbreuk op wat in de omgeving gebruikelijk is (zie daarvoor de gebiedsgerichte regels);

  • d.

    een bouwwerk is uitgevoerd glimmende of spiegelende materialen of materialen die niet zijn bedoeld als bouwmaterialen;

  • e.

    een bouwwerk is uitgevoerd in felle of fluorescerende kleuren;

  • f.

    het bouwwerk heeft door verwaarlozing en verval een negatieve invloed op de omgeving.

Bebouwingskorrel

Identiteit: dorps, informeel, landelijk, herkenbaar

 

3.3 Massa en positie

In Steenwijk Zuidoost komen twee-onder-één-kapwoningen, rijenwoningen, seniorenwoningen en beneden bovenwoningen. De woningen bestaan in principe uit twee lagen met een kap, incidenteel 1 laag met kap (bijv. seniorenwoningen). Alle rijenwoningen hebben een langskap met af en toe een accent aan de voorzijde. In het geval van twee-onder-één-kapwoningen dient er voor of naast de woning voldoende ruimte tot de voorzijde van de kavel te zijn voor 2 auto's naast of achter elkaar (afhankelijk van de breedte en diepte van de kavel).

 

Ten behoeve van een (groene) voortuin staat de voorzijde van de woning relatief ver vanaf de openbare ruimte: de rooilijn ligt op minimaal 2,00 meter en maximaal op 4,00 meter. Aan- en uitbouwen zoals kleine uitbouwen, erkers, veranda's en/of loggia's zorgen voor een verrijking van de gevels. De erker, een luifel bij de voordeur, een gemetselde plantenbak, doorlopende tuinmuur: alles draagt bij aan de geleidelijke overgang tussen binnen en buiten en tussen privé en openbaar. De toe te passen elementen worden zorgvuldig vormgegeven en komen op allerlei manieren tot uiting. Zijgevels die naar het openbaar gebied gericht zijn, zijn onderdeel van de totaalarchitectuur. Als er zo'n zijgevel is (kapwoningen, half-vrijstaande woningen), kan hier de woningentree komen en in ieder geval komen er gevelopeningen in de zijgevel.

 

Criteria:

 

  • De bouwmassa mag niet de maximale bouwvolume uit het bestemmingsplan overschrijden.

  • Rooilijn voorzijde minimaal 2,00 meter en maximaal 4,00 meter.

  • Volumes verrijkt met kleine uitbouwen, erkers, veranda’s en/of loggia’s.

  • Erker of uitbouw mogelijk aan voor- en zijkant woning. Maximaal één bouwlaag,maximaal 1,50 meter uit de gevel (met uitzondering van een garage).

  • Aan- of uitbouwen maken onderdeel uit van de hoofdmassa, erkers zijn ‘toevoeging’

  • Zijgevel is onderdeel van totale architectuur, met woningentrees en gevelopeningen

  • Op de hoeken tweezijdige oriëntatie toepassen.

  • Voor het ‘erf’ is alzijdige oriëntatie verplicht. Dit betekent dat er geen dichte gevelszijn toegestaan.

 

Oriëntatie woningen

 

3.4 Architectuur

De identiteit van Steenwijk Zuidoost fase I is dorps, ontspannen en landelijk. In de architectuur vormen massa, compositie, materialen, kapvorm en richting op een evenwichtige wijze een onlosmakelijk en samenhangend geheel. De architectuur zal meer een horizontale uitstraling hebben dan dat deze verticaal is. De architectuur is niet zo dat alle woningen hetzelfde zijn, maar ook niet dat alle woningen verschillend zijn (geen pandsgewijze variatie). Dit geldt in ieder geval voor rijenwoningen, waar voorkomen dient te worden dat in één blok alle woningen exact gelijk zijn. Ofwel: in een rijtje woningen (van 4 woningen of meer) dient minimaal één duidelijke 'afwijking' (verbijzondering) te worden aangebracht. De variatie in de architectuur wordt bereikt door te wisselen in de ritmiek of detaillering van de gevel, de toepassing van verschillende kleuren of materialen, toevoegingen (erkers, uitbouwen) en accenten zoals dwarskappen of een verhoogde dakgoot. Tegelijk laat een hele gevel- of straatwand zich lezen als één samenhangende architectuur.

 

Criteria:

 

  • Niet een uitgesproken kenmerkende stijl.

  • Bij rijenwoningen (4 woningen of meer) minimaal één verbijzondering.

  • Niet alle woningen hetzelfde, niet alle woningen verschillend (geen pandsgewijze variatie).

  • Variatie in architectuur en tegelijk één samenhangende architectuur voor een gevel-of straatwand.

  • Toevoegingen aan voorgevel afstemmen op architectuur: erkers, luifels, overstekken,veranda’s, schermen, pergola’s, terrassen.

 

Architectonische korrel

 

3.5 Het 'boerenerf'

Aan de rand van Betap-Crilux komt een 'boerenerf': een grotere kavel die om een samenhangende oplossing vraagt ten aanzien van de bebouwing en de openbare ruimte direct eromheen. Dit is een oplossing die zowel ruimtelijk als qua gebruik een bijzonder woonmilieu oplevert.

 

Een boerenerf is een (erf)-ensemble van meerdere woongebouwen (een woongebouw is een 2^1-kapwoning of een rij woningen) die in samenhang rond een gedeelde openbare ruimte zijn geplaatst; het erf als een soort hofje tussen boerderij- en schuur-achtige gebouwen. De bewoners wonen dus met de voordeur aan een gezamenlijk erf. Het erf-ensemble bestaat uit een collectief erf (openbaar), woningen en private tuinen. Het erf is de belangrijkste gezamenlijke buitenruimte van een erf-ensemble. Dit wordt bereikt door het erf vorm te geven als een gezamenlijk voorplein of hof voor de omwonenden. Daarom is het van belang dat het erf een collectieve inrichting krijgt en niet versnipperd wordt tot individuele voortuinen. Het erf moet een aangename verblijfs- en ontmoetingsruimte worden. Gewaakt moet worden dat het geen parkeerplaats wordt. Om dat te bereiken dient het parkeren op een integrale manier vormgegeven te worden met de erven. Bijvoorbeeld door een samenhang in materialisering, door een kapschuur die meedoet in het ensemble van woonvolumes of een parkeerpocket verscholen op het boerenerf (zoveel mogelijk uit het zicht).

Bebouwingskorrel

De bebouwingskorrel is die van het erf als geheel (architectonische eenheid, als één geheel ontworpen). Dit betekent echter niet dat alle bebouwing op het erf exact dezelfde uitstraling hoeft te krijgen. Een rijwoning kan als 'schuur' worden ontworpen, een vrijstaande woning als 'voorhuis'. Zo ontstaat er een samenhangend ensemble.

Positie

In principe liggen alle woningen direct aan een gezamenlijk erf en zijn er geen voortuinen. Verblijfsruimtes aan de voorkant voor de rijwoningen kunnen in de massa opgenomen worden. Bij de grotere woningen is er wel een kleine voor- of zijtuin mogelijk, zoals deze op oorspronkelijke boerenerven soms te zien is. deze hebben geen erfafscheiding of zijn voorzien van lage haag of een laag hekwerk(0,7m)

Variatie en ritmiek

De architectonische eenheid is het erf, er zal goed gekeken moeten worden naar de relatie van de bebouwing tot elkaar en de openbare ruimte. De 'rijwoningen' op het erf moeten als één bouwvolume ontworpen worden. De bebouwing moet op elkaar aansluiten maar toch enigszins verschillen zodat er een natuurlijke harmonie ontstaat.

Kleur en materiaal

Het gevelmateriaal moet binnen een bouwvolume hetzelfde zijn (aaneengesloten rijwoningen hebben dezelfde materialisering). Toe te passen gevelmateriaal is baksteen in een kleurstelling van bruin tot geelbruin. Er mag ook voor een (deels) houten gevel gekozen worden met een rustieke uitstraling. Over het algemeen geldt dat alle kleuren onverzadigd zijn: een vergrijsd of 'gedekt' kleurpalet. Er mogen geen harde of felle kleuren voorkomen, accenten en draaiende delen uitgezonderd.

Dak - kapvorm en materiaal

De woningen op het erf worden gekenmerkt door een lage goothoogte en een dominant dakvlak. Aan de voorzijde zijn rijenwoningen maximaal 1,5 laag hoog (4,5m) met een langskap. Tweekappers zijn ook maximaal 1,5 laag met een kap. De kappen kunnen wat steiler zijn waardoor drie verdiepingen (dus ook in de kap) gerealiseerd kunnen worden. Voor de kapvorm van de twee-onder-één-kapwoningen is meer vrijheid. Zo is een schildkap of een langskap met wolfseind goed denkbaar. Platte daken zijn uitgesloten. De daken kunnen uitgevoerd worden met dakpannen, met riet of met hout en/of houten shingles.

Aan-, bijgebouwen en garages

Losse bijgebouwen, garages en schuren zijn mogelijk maar niet gewenst. Toch aanwezig moeten ze zo ver mogelijk achter op de kavel geplaatst worden en zoveel als mogelijk mee doen in het architectonische ontwerp. Ook kan er gekozen worden voor een gezamenlijke schuur/opslag. Bij aanbouwen en garages moet goed gelet worden dat deze zoveel mogelijk opgaan in de bouwmassa.

Parkeren eigen terrein

De parkeerplaatsen op eigen terrein moeten zoveel mogelijk uit het zicht geplaatst worden. Een gezamenlijke parkeerschuur behoort ook tot de mogelijkheden.

 

Criteria:

 

  • Samenhangend gebouw-ensemble rond collectief erf (hofje) met boerderij- enschuur-achtige gebouwen

  • Niet alle bebouwing op het erf krijgt exact dezelfde uitstraling

  • Het gevelmateriaal moet binnen een bouwvolume hetzelfde zijn

  • Toe te passen gevelmateriaal is baksteen (in een kleurstelling van bruin tot geelbruin) of hout

  • Toegepaste kleuren zijn ‘onverzadigd’ in een vergrijsd of ‘gedekt’ kleurpalet. Er mogen geen harde of felle kleuren voorkomen.

  • Gezamenlijk parkeren integraal vormgegeven en zoveel mogelijk uit zicht

  • (Groot) dakvlak met lage goot, geen platte daken toegestaan,

  • Geen individuele voortuinen (bij rijwoningen)

  • Geen erfscheidingen aan voorzijde

  • Erfscheidingen aan achterzijde uitvoeren als haag (passend in boerenerf-gedachte),bijvoorbeeld 1,2 m. en niet hoger dan 2,0 m.

 

 

3.6 Materiaal en kleurgebruik

Voor de gevels vormt baksteen het hoofdmateriaal. Variatie wordt aangebracht door het toepassen van verschillende baksteenkleuren, metselverbanden of voegwerk. Hierbij kan gedacht worden aan rollagen, verspringende lagen of een trasraam. Aanleiding voor wijzigingen in baksteenkleur, metselverband of voegwerk is een ontmoeting van bouwdelen of een beëindiging hiervan. De kap bestaat uit antraciete (zwarte) dakpannen.

 

De kleur van het metselwerk varieert doorgaans van geel tot bruin. Keimwerk in wit kan als accent in het gevelbeeld worden gebruikt. Hiervoor is een kleurpalet samengesteld. Hierin is een spectrum gegeven van verschillende baksteenkleuren. Toe te passen kleuren moeten zoveel mogelijk binnen dit spectrum vallen.

 

Criteria:

 

  • Hoofdmateriaal gevel: baksteen, aangevuld met keimwerk.

  • Variatie door verschillende baksteenkleuren, metselverbanden, voegwerk, trasraam.

  • De kleur van het metselwerk varieert doorgaans van geel tot bruin. Toe te passen kleuren moeten zoveel mogelijk binnen het gegeven spectrum vallen (zie volgende pagina).

  • Keimwerk in wit kan als accent in het gevelbeeld worden gebruikt.

  • Dak wordt afgedekt met antraciete (zwarte) dakpannen.

  • Hout wordt toegepast als ondergeschikt materiaal, kozijnen en dak beëindigingen(evt. als decoratief element).

 

 

3.7 Daken, dakvorm

Er komen langskappen met gedraaide kappen/dwarskappen als accent. Het dak heeft een hellingshoek van circa 40-50 graden. De uitkragende dakrand wordt uitgevoerd in de vorm van een overstek en komt zowel in de langsgevels als de kopgevels. De overstek varieert tussen de 0,2 en 0,70 m. Het dak is afgedekt met mat zwarte (antraciet) dakpannen. De kap kan voorzien worden van een dakkapel, die aan de voorzijde ondergeschikt is aan de kap. Platte daken komen alleen voor op kleine bouwmassa's zoals bergingen, garages of serres.

 

Criteria:

 

  • Materiaal: mat antraciete (zwarte) dakpannen (niet geglazuurd)

  • Het dakvlak heeft waar mogelijk een overstek tussen de 0,20 en 0,70 m.

  • De kaphelling van het dak is tussen 40° en 50°

  • Dakkapel voorzijde ondergeschikt aan de kap

  • De nok van het dak loopt parallel aan de langste zijde van het volume.

  • Incidenteel is een gedraaide kap (dwarskap) toegestaan

 

 

3.8 Regels voor bebouwing

Dakkapel

Ik wil een dakkapel bouwen

Mijn hoofdgebouw staat in een naoorlogs uitbreidingsgebied

 

Mijn dakkapel wordt geplaatst op het voordakvlak

Een dakkapel op het voordakvlak voldoet altijd aan redelijke eisen van welstand, als bij het bouwen van deze dakkapel wordt voldaan aan de welstandsregels voor vormgeving en kleur- en materiaalgebruik.

 

Vormgeving

 

  • een dakkapel is een ondergeschikte toevoeging in het voordakvlak

  • een dakkapel staat minimaal 0,60 meter of minimaal 2 dakpannen uit deonder-, boven- en zijrand van het dakvlak;

  • meerdere dakkapellen op hetzelfde dakvlak van dezelfde woning staanuitsluitend naast elkaar en staan met de boven- en onderkant op dezelfdehoogte;

  • meerdere dakkapellen op hetzelfde dakvlak binnen een blok, rij of complexstaan bij voorkeur met de boven- en onderkant op dezelfde hoogte;

  • de hoogte van een dakkapel bedraagt niet meer dan 1,50 mete

Kleur- en materiaalgebruik

 

  • het kleur- en materiaalgebruik van een dakkapel sluit bij voorkeur aan bij het kleuren materiaalgebruik zoals bij het gebouw, de rij of het complex toegepast zijn, waarbij:

    • het kleurgebruik van een dakkapel in ieder geval geen felle of fluorescerendekleuren kent;

    • het materiaalgebruik van een dakkapel in ieder geval niet uit glimmende of spiegelende materialen, met uitzondering van glas in kozijnen en ramen aan de voorzijde van de dakkapel, en/of materialen die specifiek bedoeld zijn voor industriëlebebouwing, zoals bijvoorbeeld damwandprofielplaat, bestaat;

  • meerdere dakkapellen op hetzelfde dakvlak binnen een blok, rij of complex staan bijvoorkeur met de boven- en onderkant op dezelfde hoogte;

  • minimaal 50% van het oppervlak van de voorkant van een dakkapel bestaat uit glas

 

 

Mijn dakkapel wordt geplaatst op het zijdakvlak

Een dakkapel op het zijdakvlak voldoet altijd aan redelijke eisen van welstand, als bij het bouwen van deze dakkapel wordt voldaan aan de welstandsregels voor vormgeving en kleur- en materiaalgebruik.

 

Vormgeving

 

  • een dakkapel is een ondergeschikte toevoeging in het zijdakvlak;

  • een dakkapel staat minimaal 0,60 meter of minimaal 2 dakpannen uit de onder-, boven- en zijrand van het dakvlak;

  • meerdere dakkapellen op hetzelfde dakvlak van dezelfde woning staan uitsluitend naast elkaar en staan met de boven- en onderkant op dezelfde hoogte;

  • meerdere dakkapellen in hetzelfde dakvlak staan uitsluitend naast elkaar en staan met de boven- en onderkant op dezelfde hoogte;

  • de hoogte van een dakkapel bedraagt niet meer dan 1,50 meter.

Kleur- en materiaalgebruik

 

  • het kleur- en materiaalgebruik van een dakkapel sluit bij voorkeur aan bijhet kleur- en materiaalgebruik zoals bij het gebouw, de rij of het complextoegepast zijn, waarbij:

    • het kleurgebruik van een dakkapel in ieder geval geen felle offluorescerende kleuren kent;

    • het materiaalgebruik van een dakkapel in ieder geval niet uitglimmende of spiegelende materialen, met uitzondering van glas inkozijnen en ramen aan de voorzijde van de dakkapel, en/of materialendie specifiek bedoeld zijn voor industriële bebouwing, zoals bijvoorbeeld damwandprofielplaat, bestaat;

  • meerdere dakkapellen op hetzelfde dakvlak binnen een blok, rij of complex staan bijvoorkeur met de boven- en onderkant op dezelfde hoogte;

  • minimaal 50% van het oppervlak van de voorkant van een dakkapel bestaat uit glas.

 

 

Mijn dakkapel wordt geplaatst op het achterdakvlak

Een dakkapel op het achterdakvlak voldoet altijd aan redelijke eisen van welstand, als bij het bouwen van deze dakkapel wordt voldaan aan de welstandsregels voor vormgeving en kleur- en materiaalgebruik.

 

Vormgeving

 

  • een dakkapel staat minimaal 0,60 meter of minimaal 2 dakpannen uit de onder-,boven- en zijrand van het dakvlak;

  • meerdere dakkapellen op hetzelfde dakvlak van dezelfde woning staan uitsluitendnaast elkaar en staan met de boven- en onderkant op dezelfde hoogte;

  • meerdere dakkapellen op hetzelfde dakvlak binnen een blok, rij of complex staan bijvoorkeur met de boven- en onderkant op dezelfde hoogte;

  • de hoogte van een dakkapel bedraagt niet meer dan 1,75 meter.

Kleur- en materiaalgebruik

 

  • het kleur- en materiaalgebruik van een dakkapel sluit bij voorkeur aan bij het kleuren materiaalgebruik zoals bij het gebouw, de rij of het complex toegepast zijn, waarbij:

    • het kleurgebruik van een dakkapel in ieder geval geen felle of fluorescerendekleuren kent;

    • het materiaalgebruik van een dakkapel in ieder geval niet uit glimmende of spiegelende materialen, met uitzondering van glas in kozijnen en ramen aan de voorzijde van de dakkapel, en/of materialen die specifiek bedoeld zijn voor industriëlebebouwing, zoals bijvoorbeeld damwandprofielplaat, bestaat.

 

Aan- of uitbouw

Ik wil een aan- of uitbouw bouwen

Mijn hoofdgebouw staat in een naoorlogs uitbreidingsgebied

 

Een aan- of uitbouw van een hoofdgebouw voldoet altijd aan redelijke eisen van welstand, als bij het bouwen van deze aan- of uitbouw wordt voldaan aan de welstandsregels voor kleur- en materiaalgebruik. In het bestemmingsplan zijn regels opgenomen die de positie en de afmetingen van een aan- of uitbouw bepalen.

 

Kleur- en materiaalgebruik

 

  • het kleur- en materiaalgebruik van een aan- of uitbouw sluit bij voorkeur aan bij het kleur- en materiaalgebruik zoals bij het gebouw, de rij of het complex toegepast zijn,waarbij:

    • het kleurgebruik van een aan- of uitbouw geen felle of fluorescerende kleurenkent;

    • het materiaalgebruik van een aan- of uitbouw niet uit glimmende of spiegelendematerialen, met uitzondering van glas in kozijnen, ramen en deuren, en/of materialen die specifiek bedoeld zijn voor industriële bebouwing, zoals bijvoorbeelddamwandprofielplaat, bestaat.

  • minimaal 50% van het oppervlak van de voorkant van een aan- of uitbouw bestaatuit glas.

 

Overkapping

Ik wil een overkapping aan mijn hoofdgebouw bouwen

Mijn hoofdgebouw staat in een naoorlogs uitbreidingsgebied

 

Een overkapping aan een hoofdgebouw voldoet altijd aan redelijke eisen van welstand, als bij het bouwen van deze overkapping wordt voldaan aan de welstandsregels voor kleur- en materiaalgebruik. In het bestemmingsplan zijn regels opgenomen die de positie en de afmetingen van een aan- of uitbouw bepalen.

 

Kleur- en materiaalgebruik

 

  • het kleur- en materiaalgebruik van een overkapping aan het hoofdgebouw sluit bijvoorkeur aan bij het kleur- en materiaalgebruik zoals bij het gebouw, de rij of hetcomplex toegepast zijn, waarbij:

    • het kleurgebruik van een overkapping geen felle of fluorescerende kleuren kent;

    • het materiaalgebruik van een overkapping niet uit glimmende of spiegelende materialen, met uitzondering van glas in kozijnen, ramen en deuren, en/of materialen die specifiek bedoeld zijn voor industriële bebouwing, zoals bijvoorbeelddamwandprofielplaat, bestaat.

 

Bijgebouw of overkapping

Ik wil een vrijstaand bijgebouw of overkapping bouwen

Mijn vrijstaande bijgebouw of overkapping staat in een naoorlogs uitbreidingsgebied

 

Een vrijstaand bijgebouw of overkapping bij een hoofdgebouw voldoet altijd aan redelijke eisen van welstand, als bij het bouwen van dit gebouw wordt voldaan aan de welstandsregels voor kleur- en materiaalgebruik. In het bestemmingsplan zijn regels opgenomen die de positie en de afmetingen van een vrijstaand bijgebouw of overkapping bepalen.

 

Kleur- en materiaalgebruik

 

  • het materiaalgebruik van een vrijstaand bijgebouw of overkapping bestaat niet uitglimmende of spiegelende materialen, met uitzondering van glas in kozijnen, ramenen deuren, en/of materialen die specifiek bedoeld zijn voor industriële bebouwing,zoals bijvoorbeeld damwandprofielplaat;

  • het kleurgebruik van een vrijstaand bijgebouw of overkapping kent geen felle offluorescerende kleuren.

 

Erf af scheiding

Ik wil een erfafscheiding plaatsen

Mijn perceel ligt in een naoorlogs uitbreidingsgebied

 

Een erfafscheiding voldoet altijd aan redelijke eisen van welstand, als bij het bouwen van deze erfafscheiding wordt voldaan aan de welstandsregels voor kleur- en materiaalgebruik. In het bestemmingsplan zijn regels opgenomen die de positie en de afmetingen van een erfafscheiding bepalen.

 

Kleur- en materiaalgebruik

 

  • het materiaalgebruik van een erfafscheiding bestaat niet uit glimmende of spiegelende materialen en/of materialen die specifiek bedoeld zijn voor industriële bebouwing, zoals bijvoorbeeld damwandprofielplaat;

  • het kleurgebruik van een erfafscheiding kent geen felle of fluorescerende kleuren.

 

Gevelindeling

Ik wil de gevelindeling wijzigen

Mijn hoofdgebouw staat in een naoorlogs uitbreidingsgebied

 

Een wijziging van de gevel van een hoofdgebouw voldoet altijd aan redelijke eisen van welstand, als bij het wijzigen van de gevelindeling wordt voldaan aan de welstandsregels voor kleur- en materiaalgebruik.

 

Kleur- en materiaalgebruik

 

  • het kleur- en materiaalgebruik van een gevelwijziging sluit bij voorkeur aan bij het kleur- en materiaalgebruik zoals bij het gebouw, de rij of het complex toegepast zijn,waarbij:

    • het kleurgebruik van een van een gevelwijziging geen felle of fluorescerende kleuren kent;

    • het materiaalgebruik van een gevelwijziging niet uit glimmende of spiegelendematerialen, met uitzondering van glas in kozijnen, ramen en deuren, en/of materialen die specifiek bedoeld zijn voor industriële bebouwing, zoals bijvoorbeelddamwandprofielplaat, bestaat.

 

Rolluik

Ik wil een Rolluik plaatsen

Mijn hoofdgebouw staat in een naoorlogs uitbreidingsgebied

 

Het plaatsen van een rolluik aan een hoofdgebouw dat is bestemd bedrijf, bedrijventerrein, centrum, detailhandel, gemengd, horeca, kantoor, maatschappelijk of sport voldoet altijd aan redelijke eisen van welstand, als bij het plaatsen van het rolluik wordt voldaan aan de welstandsregels voor kleur- en materiaalgebruik.

 

Kleur- en materiaalgebruik

 

  • het kleur- en materiaalgebruik van een rolluik sluit bij voorkeur aan bij het kleur- enmateriaalgebruik zoals bij het gebouw, de rij of het complex toegepast zijn, waarbij:

    • het kleurgebruik van een rolluik kent geen felle of fluorescerende kleuren.

    • het materiaalgebruik van een rolluik niet uit glimmende of spiegelende materialen of materialen die specifiek zijn bedoeld voor industriële bebouwing, zoals bijvoorbeeld damwandprofielplaat, bestaat.

  • minimaal 75% van het oppervlak van een rolluik transparant is.

 

Reclame-uiting

Mijn gebouw is bestemd als wonen

Een reclame-uiting bij een beroep en/of bedrijf aan huis in de bestemming wonen voldoet altijd aan redelijke eisen van welstand, als bij het plaatsen van deze reclameuiting wordt voldaan aan de welstandsregels voor hoofdvorm en vormgeving.

 

Hoofdvorm

 

  • een reclame-uiting kan op de volgende wijze worden geplaatst:

    • vlak op de naar de weg gekeerde gevel;

    • op de aan de weg gelegen zijde van het perceel;

  • het maximum aantal reclame-uitingen bedraagt twee: één reclame-uiting vlak op denaar de weg gekeerde gevel en één reclame-uiting op de aan de weg gelegen zijdevan het perceel.

Vormgeving

 

  • het maximum aantal reclame-uitingen bedraagt twee: één reclame-uiting vlak op denaar de weg gekeerde gevel en één reclame-uiting op de aan de weg gelegen zijdevan het perceel.

  • de afmeting van een reclame-uiting vlak op de naar de weg gekeerde gevel bedraagtmaximaal 0,20 meter hoog en 0,30 meter breed;

  • de afmeting van een reclame-uiting op de aan de weg gelegen zijde van het perceelbedraagt maximaal 1,00 meter hoog en 0,30 meter breed;

  • een reclame-uiting in de vorm van een lichtkrant en/of het toepassen van verlichtingis niet toegestaan.

 

 

Mijn terrein is bestemd als groen of verkeer

Een reclame-uiting op terreinen met de bestemmingen groen of verkeer voldoet altijd aan redelijke eisen van welstand, als bij het plaatsen van deze reclame-uiting wordt voldaan aan de welstandsregels voor hoofdvorm en.

 

Kleur- en materiaalgebruik

 

  • een reclame-uiting kan op de volgende wijze worden geplaatst:

    • als een vrijstaand reclamezuil of -bord;

    • als een reclamebord aan een lichtmast.

Vormgeving

 

  • de afmeting van een reclamezuil of -bord bedraagt maximaal 2,50 meterhoog en 1,00 meter breed;

  • de afmeting van een reclamebord aan een lichtmast bedraagt maximaal 0,80 meterhoog en 0,80 meter breed.

 

 

Bedrijfsgebouw

Een bedrijfsgebouw voldoet altijd aan redelijke eisen van welstand, als bij het bouwen van dit bedrijfsgebouw wordt voldaan aan de welstandsregels voor hoofdvorm en kleuren materiaalgebruik. In het bestemmingsplan zijn regels opgenomen die de positie en de afmetingen van een hoofdgebouw bepalen.

 

Hoofdvorm

 

  • een bedrijfsgebouw heeft een eenvoudige hoofdvorm;

  • kantoren, showrooms en entrees vormen een accent.

Vormgeving

 

  • het materiaalgebruik van een bedrijfsgebouw bestaat niet uit glimmende of spiegelende materialen, met uitzondering van glas in kozijnen, ramen en deuren;

  • het kleurgebruik van een bedrijfsgebouw kent geen felle of fluorescerende kleuren.

 

3.9 Duurzame energie

Om het contrast met pv-panelen zo klein mogelijk te maken worden alle daken uitgevoerd in zwarte of antraciet pannen. Zonnepanelen kunnen worden toegepast in 'all black', het is niet toegestaan om een aluminium omlijsting te plaatsen. De positie van de zonnepanelen mag niet willekeurig geplaatst worden. De panelen zo veel mogelijk geïntegreerd in het ontwerp. Bijvoorbeeld door het ritme van panelen mee te laten doen in het ritme van ramen en andere elementen in de voorgevel en het dak. Warmtepompen zo min mogelijk in het zicht plaatsen.

 

Criteria:

 

  • All black zonnepanelen, geen aluminium omlijsting

  • Geen ‘willekeurige’ positie van zonnepanelen,

  • Warmtepompen zo min mogelijk in het zicht

 

 

3.10 Klimaatadaptatie en hittestress

Hemelwater dat afstroomt van (verharde) private oppervlakten zoals daken en tuinen wordt afgekoppeld van het gemengde openbare rioleringsstelsel. Het afstromend water kan herbruikt worden (circulariteit), afwateren richting een groenzone en waterdoorlatende verharding om daar te infiltreren. Het op grotere schaal afkoppelen van regenpijpen ontlast het rioolstelsel. Dit principe is het meest interessant om toe te passen bij het realiseren van een waterbergende (groen)voorziening. Een regenton is wellicht de meest eenvoudige manier om hemelwater op te vangen. Deze vorm van waterberging is eenvoudig te koppelen aan de bestaande regenpijp. Het opgevangen water kan worden hergebruikt voor het bewateren van de tuin of voor schoonmaakwerkzaamheden. Een regenwaterschutting is een zeer platte variant van de regenton en kan worden gebruikt als erfafscheiding. Het voordeel hiervan is dat het relatief weinig ruimte in beslag neemt.

 

Aanbevelingen:

 

  • Afkoppelen van regenpijpen ontlast het rioolstelsel.

  • Hemelwater opvangen voor waterberging.

  • Afstromend water herbruiken (circulariteit) of afwateren naar groenzones

 

Afkoppelen hemelwater van privaat domein:

Regenton/ bovengrondse waterberging:

 

3.11 Natuurinclusieve maatregelen

Door natuurinclusief te bouwen wordt niet alleen bijgedragen aan de waterhuishouding van het plan maar de toepassing van groene daken of gevels heeft tevens een verkoelend effect. Daarnaast zijn deze ook zeer geschikt voor de leefomgeving van insecten en vogels. Het ontwikkelen van mens- en milieuvriendelijke woonmilieus biedt kansen om meer te vergroenen en verhardingen in de private en openbare ruimte tegen te gaan. Bewoners kunnen betrokken worden bij het ontwerp, de aanleg en het onderhoud van het groen. Zo ontstaat er gevoel van eigenaarschap en bewustwording.

In basis komt het erop neer dat er gezorgd wordt voor nestgelegenheid en voedsel. Dit kan door op slimme plekken extra groen toe te voegen of in de woningen nestgelegenheden te bouwen. De insteek is dit te doen voor soorten die nu al in de directe omgeving leven zoals de gewone dwergvleermuis, gierzwaluw, huismus, zwarte roodstaart, egel, wilde bijen en vlinders. Dit soort maatregelen dienen meegenomen te worden bij de ontwikkeling, aangezien ze voor het behoud van deze soorten cruciaal zijn. Andere maatregelen van natuurinclusief bouwen zijn groene gevels (bijvoorbeeld als kopgevel) en groene daken (in overleg met gemeente en ecogroen nader te bepalen). Dit zijn toepassingen die zowel voor de waterhuishouding als voor vogels en insecten van toegevoegde waarde zijn.

 

Natuurinclusief bouwen en ontwerpen gebruikt onder meer de mogelijkheden van daken en gevels. Groene daken zorgen voor een geringere opwarming van het dakoppervlak, ze houden regenwater vast en hebben een positief effect op biodiversiteit. Extensieve groendaken werken verkoelend in de zomer en werken als een extra deken in de winter. Op groendaken wordt het regenwater opgeslagen in planten en in het substraat. Ook is het mogelijk om een dunne laag kratten aan te brengen onder de vegetatie voor extra ruimte voor het bergen van hemelwater. Door verdamping verdwijnt een gedeelte van het water weer terug in de atmosfeer. Bij het streven naar een hoge biodiversiteit is het belangrijk om waar mogelijk platte en licht hellende daken van een groen dak te voorzien en vooral te werken met inheems plantmateriaal (in overleg met gemeente en ecogroen nader te bepalen). Op dergelijke daken zijn plantensoorten van droge, zandige, voedselarme en zonnige omstandigheden het best op hun plaats en leiden tot een verhoging van de biodiversiteit. Sedumdaken met vetplanten als muurpeper, tripmadam en wit vetkruid zijn kant en klaar te koop en kunnen worden verrijkt door lage inheemse planten van droge en voedselarme omstandigheden bij te zaaien. Ook zijn lokale inheemse zaadmengsels beschikbaar om groene daken mee te creëren (Eco groen, 2022).

Groendaken kunnen gecombineerd worden met zonnepanelen. Het rendement van de panelen is zelfs hoger door de lagere temperatuur van het dak. Daarnaast draagt een groen dak bij aan de levensduur van de dakbedekking.

 

Begroeide gevels kunnen ontstaan door klimplanten die zich hechten aan het geveloppervlak. Er zijn echter ook klimplanten die klimhulp nodig hebben. Architectuur, plantsoort en oriëntatie van de gevel hangen daarom sterk samen. Naar gelang de soort kan worden gekozen voor een ruw hechtoppervlak, een raster of kabels. Een groene gevel vormt als het ware een extra laag op de gebouwschil en biedt schuilplaatsen voor vogels, insecten en kleine zoogdieren. Sommige vogels kunnen hier zelfs hun nest bouwen en bij andere vogels kan het groen goed gecombineerd worden met nestvoorzieningen. Daarbij vangt gevelbeplanting veel fijnstof af.

Voor een geveltuin is een strook van circa 60 centimeter breed al genoeg om planten te

laten uit groeien. Door een geveltuin te beplanten met (inheemse) vaste nectarplanten, lage en hoge besdragende en/of dichte heesters en klimplanten wordt een geschikt biotoop aangelegd voor insecten en vogels (Eco groen, 2022). Een groene gevel kan ook als ladder dienen om naar een hoger gelegen groendak te kunnen migreren. Kabels of een pergola constructie kunnen de klimplanten ook horizontaal laten groeien en zo voor schaduw zorgen. Ook draagt dit bij aan het groene karakter van een woonbuurt.

 

Onze bebouwde omgeving bood voorheen nog ruimte voor vogels en vleermuizen om te nestelen; in de spouw van gebouwen of onder de dakpannen. Dit was echter niet de intentie en slechts een gevolg van kieren en gaten die per ongeluk ontstonden. De hedendaagse architectuur is dermate afgedicht en haast steriel, waardoor bewust natuurinclusief ontwerpen een must is geworden. Nestelgelegenheid voor vogels en vleermuizen is nodig, zodat zij zich kunnen vestigen in een verstedelijkte omgeving waar natuurlijke nestvoorzieningen niet beschikbaar zijn. Er zijn talloze manieren om in nestelvoorzieningen te voorzien, waarbij ingebouwde varianten bestaan en varianten die op iedere gevel achteraf kunnen worden toegevoegd. Naast voldoende voedsel is beschutting rondom de nestplaats van groot belang. Bij het plaatsen van de voorzieningen is het van belang dat deze niet te warm worden in de zomerzon. Verblijfplaatsen dienen daarom noord of oost gericht te zijn, of in de schaduw van bomen of een overhangende dakgoot te vallen. De verblijfplaatsen bevinden zich bij voorkeur minimaal op drie meter hoogte, dienen een vrije aanvliegroute en vliegruimte te hebben en de locatie dient vrij van direct kunstlicht, vrij van verstoring en buiten bereik van predatoren te zijn. Variatie in hangrichting is aan te bevelen, zodat vleermuizen afhankelijk van het weer een geschikte verblijfplaats kunnen vinden. Gedurende het jaar gebruiken vleermuizen diverse verblijfplaatsen met verschillende functies. Het is aan te raden deze functies terug te brengen in de woonwijk door variatie in de maatregelen toe te passen. Kleine vleermuiskasten kunnen dienen als zomer- en paarverblijfplaats, terwijl grote kasten ook de functie van kraamverblijfplaats kunnen vervullen. Voor een woonwijk met de grootte van Betap Crilux volstaat een aantal van vier tot zes kraamkasten. Daarnaast kunnen in elk woningblok ruimtes voor zomer- en paarverblijven gecreëerd worden (Eco groen, 2022).

 

Bijenhotels en andere nestplekken voor insecten zijn belangrijk, omdat er een groot deel van ons verharde en verstedelijkte landschap geen ruimte biedt voor insecten. Idealiter worden dergelijke nestelvoorzieningen geïntegreerd in de bebouwing. Insecten zitten graag in kleine openingen. Er zijn ook insecten die afhankelijk zijn van specifieke bodemtypen om holen in te graven of om materiaal te oogsten als nestmateriaal; de metselbij bijvoorbeeld. Aandacht voor een diversiteit aan inheemse insecten is van belang, omdat dit nodig is voor een evenwichtig systeem. Een monocultuur aan honingbijen levert weliswaar honing, maar mag geen vervanging zijn van het rijke insectenleven dat van nature voor zou komen.

 

Op verschillende manieren kunnen tuinen een rol spelen in het vergroten van de biodiversiteit in een woonwijk:

 

  • Aanplant van bomen (afhankelijk van de grootte van de tuin) zorgt voor verkoeling en schaduw in de tuin. Ook vangen zij fijnstof en geluid weg.

  • Door ook inheemse plantensoorten en nectarplanten aan te planten, 'rommelhoekjes' met takken (snoeihout), boomstammen en dode bladeren en plantenresten te creëren worden vogels, insecten, amfibieën, egels en andere kleine zoogdieren aangetrokken naar de tuin.

  • Het plaatsen van een insectenhotel, vlinderkasten en bijenstenen bevordert de variatie aan insecten.

  • Open water in de vorm van een vijver of op kleinere schaal een waterschaal trekt vogels, amfibieën en libellen aan (Eco groen, 2022).

 

Aanbevelingen (gewenst niet verplicht):

 

  • Nest- en broedvoorzieningen, afgestemd op doelsoorten (vogels, vleermuizen, egels, etc.)

  • De wens is nadrukkelijk om nestelvoorziening zoveel mogelijk te integreren in degebouwen, al moet hierbij wel worden gelet op de onderhoudsvriendelijkheid vandergelijke voorzieningen.

  • Aandacht voor een diversiteit aan inheemse insecten is van belang, omdat dit nodigis voor een evenwichtig systeem.

  • Beschutting rondom de nestplaats van groot belang (nader worden bepaald).

  • Mogelijkheid voor insecten- en wormenhotels in privétuinen.

  • Voorzieningen aan gevels voor klimmende beplanting

  • Op de platte daken van aanbouwen en bergingen kunnen groene daken (sedum)

  • Toepassing van verschillende soorten in een haag draagt eveneens bij aan de biodiversiteit.

  • Verblijfplaatsen dienen noord of oost gericht te zijn.

Groene daken

Verticale en hangende begroeiing

Nestgelegenheid voor insecten

Nestgelegenheid voor vogels, vleermuizen (kleine zoogdieren)

3.12 Groene voortuinen

 

De voortuinen zorgen voor verbinding met de groene aanliggende buitenruimtes. Deze zones zijn beeldbepalend voor het straatbeeld. Toevoegingen aan voorgevel zoals: erkers, luifels, overstekken, veranda's, schermen, pergola's, terrassen maken de identiteit voor de wijk. Dit zal er ook voor zorgen dat de voortuin een aangename plek wordt om in te verblijven.

 

Daarnaast kan de overgangszone tussen de woning en het trottoir in veel gevallen worden vergroend om op deze manier hemelwater lokaal te laten infiltreren. Door enkele tegels langs de gevel te verwijderen kunnen geveltuinen worden gecreëerd. De geveltuin dient vooral ter vergroening van het straatbeeld en om bewoners meer te betrekken bij 'hun straat'. De geveltuin heeft een sociale functie in de straat. In de geveltuin wordt hoofdzakelijk het regenwater dat op de tuinen zelf valt geïnfiltreerd, mogelijk bijkomstig ook het water van de daken. Daarnaast, bij het gebruik van opgaande beplanting of klimplanten, heeft de geveltuin een (beperkt) verkoelend effect in de zomer, zowel op de woning als in de straat. Met diverse bloemrijke beplanting kunnen de geveltuinen (zelfs in zeer smalle straten) bijdragen aan het verhogen van de biodiversiteit.

 

Criteria:

 

  • Voortuinen zorgen voor verbinding met groene aanliggende buitenruimtes.

  • Toevoegingen aan voorgevels: erkers, luifels, overstekken, veranda’s, schermen, pergola’s, terrassen.

  • Vergroening voortuinen.

  • Bijdragen leveren aan het verhogen van de biodiversiteit

 

Streef beeld groene voortuinen en geveltuinen

Principe voortuinen - architectuur, inrichting en toevoegingen

 

3.13 Erf scheidingen overgang openbaar privé

Erfafscheidingen kunnen vergunningsvrij gerealiseerd worden met uitzondering voor hoekwoningen. Om niettemin een zekere kwaliteitsambitie te bereiken zijn er in dit beeldkwaliteitplan enkele aanvullende criteria gegeven voor erfafscheidingen. Bij de Welstandstoetsing van de aanvraag van de omgevingsvergunning wordt de uitstraling van erfafscheidingen meegenomen.

 

Overal waar een privé-tuin direct grenst aan een (semi-)openbare ruimte wordt een meeontworpen en te realiseren erfafscheiding verplicht gesteld. Waar een zij- of achterkant van een tuin grenst aan het openbaar gebied, komt een erfafscheiding van 1,80 meter hoog (achter de voorgevelrooilijn). In deze hoge erfscheiding kunnen bergingen, poorten, carports, garages, etc. opgenomen worden.

Erfafscheidingen die aan achterpaden grenzen (tot 5 meter vanaf openbaar gebied) hoeven hier niet aan te voldoen.

 

Erfafscheidingen dienen in samenhang met de bebouwing ontworpen te worden. De erfafscheidingen kunnen dan bestaan uit metselwerk (laag muurtje), hekken of hagen of combinaties daarvan (bijvoorbeeld een muurtje met een hek er bovenop of een hekje met een haag erachter). Voor de hagen is een groenblijvende of bladhoudende boerenhaag, beukenhaag of gemengde haag gewenst. Een hek kan begroeid worden met hedera of een andere klimmende plant. Ook kunnen er plantenbakken worden toegepast, geïntegreerd met de bebouwing of in de gevel.

 

Als er in de voortuin een erfafscheiding wordt toegepast (voor de voorgevelrooilijn), is deze min. 0,40 meter en max. 1 meter hoog. Dit kan een muurtje zijn, eventueel in combinatie met een hekwerk of een haag (ook max. 1 meter hoog).

 

Criteria:

 

  • De erfscheidingen (overgang privé-openbaar) worden uitgevoerd als groene hogehagen (gemengde hagen).

  • Volwassen beplanting toepassen (hagen, struwelen, klimmende beplanting).

  • Blinde, gesloten muren en dichte houten schermen worden nadrukkelijk uitgesloten.

  • Hagen: groenblijvende of bladhoudende boerenhaag/beukenhaag.

  • Voldoende privacy te bieden.

  • Eventuele erfafscheiding voorzijde en deels achterzijde: min. 0,40 meter en max. 1meter hoog.

 

Erfscheidingen

Ecologisch waardevolle haag

Een groene erfgrens is niet alleen prettig om naar te kijken maar biedt ook verkoeling in de tui. Daarnaast biedt deze vorm van erfafscheiding betere condities voor fauna ten opzichte van een reguliere schutting. Insecten vinden hier hun toevlucht en ook vogels kunnen schuilen in de dikke hagen. Met name diepte en ondoordringbaarheid zijn voor de natuur erg welkom. Toepassing van verschillende soorten in een haag draagt eveneens bij aan de biodiversiteit. Er kan echter ook gekozen worden voor een groenblijvende of bladhoudende haag, deze keuze kan bijdragen aan de beleving en privacy.

 

 

 

3.14 Samenvatting

Bebouwingskorrel

 

  • De variatie is niet per woning (pandsgewijs), niet per blok en niet per straat. De variatie is per ‘gebouw’ (2 twee-onder-één-kapwoningen = samen 1 gebouw - 1 rijtje woningen = samen 1 gebouw).

  • Binnen één gebouw: één samenhangende architectuursignatuur en/of één kleur /materiaalpalet, en afwijkend van het buurgebouw.

  • Het Erf en het hof als één bebouwingskorrel ontwerpen.

Massa en positie

 

  • De bouwmassa mag niet de maximale bouwvolume uit het bestemmingsplan overschrijden.

  • Rooilijn voorzijde minimaal 2,00 meter en maximaal 4,00 meter.

  • Volumes deels verrijkt met kleine uitbouwen, erkers, veranda's en/of loggia's.

  • Erker of uitbouw mogelijk aan voor- en zijkant woning. Maximaal één bouwlaag, maximaal 1,50 meter uit de gevel (met uitzondering van een garage).

  • Aan- of uitbouwen maken onderdeel uit van de hoofdmassa, erkers zijn 'toevoeging'

  • Zijgevel is onderdeel van totale architectuur, met woningentrees en gevelopeningen

  • Op de hoeken tweezijdige oriëntatie toepassen.

  • Voor het 'erf' is alzijdige oriëntatie verplicht. Dit betekent dat er geen dichte gevels zijn toegestaan.

Architectuur

 

  • Niet een uitgesproken kenmerkende stijl.

  • Bij rijenwoningen (4 woningen of meer) minimaal één verbijzondering.

  • Niet alle woningen hetzelfde, niet alle woningen verschillend (geen pandsgewijze variatie).

  • Variatie in architectuur en tegelijk één samenhangende architectuur voor een gevel- of straatwand.

  • Toevoegingen aan voorgevel afstemmen op architectuur: erkers, luifels, overstekken, veranda's, schermen, pergola's, terrassen.

Het boerenerf

 

  • Samenhangend gebouw-ensemble rond collectief erf (hofje) met boerderij- en schuur-achtige gebouwen

  • Niet alle bebouwing op het erf krijgt exact dezelfde uitstraling

  • Het gevelmateriaal moet binnen een bouwvolume hetzelfde zijn

  • Toe te passen gevelmateriaal is baksteen (in een kleurstelling van bruin tot geelbruin) of hout

  • Toegepaste kleuren zijn ‘onverzadigd’ in een vergrijsd of ‘gedekt’ kleurpalet. Er mogen geen harde of felle kleuren voorkomen.

  • Gezamenlijk parkeren integraal vormgegeven en zoveel mogelijk uit zicht

  • (Groot) dakvlak met lage goot, geen platte daken toegestaan,

  • Geen individuele voortuinen (bij rijwoningen)

  • Geen erfscheidingen aan voorzijde

  • Erfscheidingen aan achterzijde uitvoeren als haag (passend in boerenerf-gedachte), bijvoorbeeld 1,2 m. en niet hoger dan 2,0 m.

Materiaal en kleurgebruik

 

  • Hoofdmateriaal gevel: baksteen, aangevuld met keimwerk.

  • Variatie door verschillende baksteenkleuren, metselverbanden, voegwerk, trasraam.

  • De kleur van het metselwerk varieert doorgaans van geel tot bruin. Toe te passen kleuren moeten zoveel mogelijk binnen het gegeven spectrum vallen (zie volgende pagina).

  • Keimwerk in wit kan als accent in het gevelbeeld worden gebruikt.

  • Dak wordt afgedekt met antraciete (zwarte) dakpannen.

  • Hout wordt toegepast als ondergeschikt materiaal, kozijnen en dak beëindigingen (evt. als decoratief element).

Daken, dakvorm

 

  • Materiaal: mat antraciete (zwarte) dakpannen (niet geglazuurd)

  • Het dakvlak heeft waar mogelijk een overstek tussen de 0,20 en 0,70 m.

  • De kaphelling van het dak is tussen 40° en 50°

  • Dakkapel voorzijde ondergeschikt aan de kap

  • De nok van het dak loopt parallel aan de langste zijde van het volume.

  • Incidenteel is een gedraaide kap (dwarskap) toegestaan

Duurzame energie

 

  • All black zonnepanelen, geen aluminium omlijsting

  • Geen 'willekeurige' positie van zonnepanelen,

  • Warmtepompen zo min mogelijk in het zicht

Klimaatadaptatie en hittestress

 

  • Afkoppelen van regenpijpen ontlast het rioolstelsel.

  • Hemelwater opvangen voor waterberging.

  • Afstromend water herbruiken (circulariteit) of afwateren naar groenzones

Natuurinclusieve aanbevelingen (gewenst niet verplicht)

 

  • Nest- en broedvoorzieningen, afgestemd op doelsoorten (vogels, vleermuizen, egels, etc.)

  • De wens is nadrukkelijk om nestelvoorziening zoveel mogelijk te integreren in de gebouwen, al moet hierbij wel worden gelet op de onderhoudsvriendelijkheid van dergelijke voorzieningen (in overleg met gemeente en ecogroen nader te bepalen).

  • Aandacht voor een diversiteit aan inheemse insecten is van belang, omdat dit nodig is voor een evenwichtig systeem.

  • Indien nestplaatsen worden toegepast is beschutting van groot belang.

  • Mogelijkheid voor insecten- en wormenhotels in privétuinen.

  • Voorzieningen aan gevels voor klimmende beplanting

  • Op de platte daken van aanbouwen en bergingen worden groene daken (sedum)toegepast

  • Toepassen van verschillende soorten in een haag draagt eveneens bij aan de biodiversiteit.

  • Verblijfplaatsen dienen noord of oost gericht te zijn.

Aldus vastgesteld in de openbare raadsvergadering van 19 december 2023,

De raad voornoemd,

De griffier,

A. Ten Hoff

de voorzitter,

J.H. Bats

Naar boven