Gemeenteblad van Waalwijk
| Datum publicatie | Organisatie | Jaargang en nummer | Rubriek | Datum ondertekening |
|---|---|---|---|---|
| Waalwijk | Gemeenteblad 2025, 356680 | ruimtelijk plan of omgevingsdocument |
Zoals vergunningen, bouwplannen en lokale regelgeving.
Adressen en contactpersonen van overheidsorganisaties.
U bent hier:
| Datum publicatie | Organisatie | Jaargang en nummer | Rubriek | Datum ondertekening |
|---|---|---|---|---|
| Waalwijk | Gemeenteblad 2025, 356680 | ruimtelijk plan of omgevingsdocument |
in te stemmen met de Ontwerp-omgevingsvisie gemeente Waalwijk en de bijbehorende milieueffectrapportage zoals is opgenomen in Bijlage A;
de Ontwerp-omgevingsvisie gemeente Waalwijk met de bijbehorende milieueffectrapportage ter inzage te leggen voor het indienen van zienswijzen. Van de terinzagelegging, de termijn voor terinzagelegging en de mogelijkheid om te reageren wordt kennis gegeven in het gemeenteblad en het Weekblad Waalwijk.
de raad over de ontwerp-omgevingsvisie en de bijbehorende milieueffectrapportage en de terinzagelegging te informeren via een raadsinformatiebrief.
Aldus besloten tijdens de collegevergadering van 12 augustus 2025.
Burgemeester en wethouders gemeente Waalwijk,
De secretaris, De burgemeester,
Michel Tromp Sacha Ausems

Het is belangrijk goed voorbereid te zijn op de toekomst. Daarom maken we een omgevingsvisie. Hierin denken we na over hoe we willen dat onze gemeente er in de toekomst uitziet en welke keuzes we daarvoor moeten maken. De gemeente Waalwijk staat de komende jaren voor verschillende vraagstukken. Het gaat onder meer over de vraag naar passende en betaalbare woningen, het verbeteren van het openbaar vervoer en maatschappelijke voorzieningen, zorgen voor levendige centra, het toekomstbestendig maken van de economie en het klimaatadaptief maken van de leefomgeving. Al deze vraagstukken hebben te maken met hoe we onze leefomgeving gebruiken. Het zijn complexe vraagstukken waar vaak niet één panklare oplossing voor is.
Om goede keuzes te maken voor de toekomst van de gemeente Waalwijk moeten we bedenken: "Wat voor gemeente willen we zijn?". Dat doet de gemeente niet alleen, maar samen met inwoners, ondernemers, (maatschappelijke) partners en andere overheden. Met een gezamenlijk beeld kunnen plannen worden gemaakt voor de toekomst van de gemeente Waalwijk.
De omgevingsvisie van de gemeente Waalwijk beschrijft de visie op de fysieke leefomgeving op de lange termijn (richting 2050). Het is daarom een visie op hoofdlijnen. Dit neemt niet weg dat we duidelijke ambities uitspreken en heldere keuzes maken. De fysieke leefomgeving is de ruimte waar we wonen, werken, leren en ontspannen. Het gaat om heel veel onderwerpen. Denk bijvoorbeeld aan wonen, mobiliteit, recreatie, natuur en landschap, bedrijvigheid en maatschappelijke voorzieningen, maar ook onderwerpen als duurzaamheid, veiligheid en gezondheid zijn onderdeel van de fysieke leefomgeving. In de omgevingsvisie leggen we nadrukkelijk de verbinding tussen de fysieke leefomgeving en de sociale leefomgeving (zie figuur 1). De manier waarop we onze stad, dorpen en buitengebied (de fysieke leefomgeving) gebruiken is geworteld in de manier waarop we met elkaar als gemeenschap samenleven (onze sociale leefomgeving). Zo komt de vraag naar een mantelzorgwoning voort uit de vergrijzing en de manier waarop onze ouderenzorg is georganiseerd. Het is daarom van belang om in de omgevingsvisie de sociale en fysieke leefomgeving in samenhang te bekijken.
De gemeenteraad heeft de opdracht gegeven om gelijktijdig met het opstellen van de omgevingsvisie een strategische visie te ontwikkelen voor de gemeente Waalwijk. De strategische visie is een kapstok en een fundament waarin de lange lijnen voor de toekomst van de gemeente zijn geschetst. Het is een strategische visie waar keuzes die gemaakt moeten worden voor de toekomst van onze gemeente aan kunnen worden opgehangen. De koers voor de strategische visie is in februari 2025 vastgesteld door de gemeenteraad.
De omgevingsvisie werkt de keuzes uit de strategische visie verder uit voor de fysieke leefomgeving, met ambities die het fijne leven in de gemeente Waalwijk versterken. Hierbij is het belangrijk om de verschillende thema’s in samenhang met elkaar af te wegen. We maken heldere keuzes over wat wel of geen prioriteit heeft en wat waar kan. Op deze manier is het straks duidelijk of nieuwe ruimtelijke ontwikkelingen voldoende bijdragen aan de lange termijn doelen van de omgevingsvisie.
De omgevingsvisie geeft richting en inspireert. Het maakt duidelijk waar we voor staan en waar we naartoe willen. Dit helpt ons om samen te werken aan een gelukkige, gezonde en veilige leefomgeving voor inwoners van de gemeente Waalwijk.
Op 1 januari 2024 is de Omgevingswet in werking getreden. Deze wet bundelt verschillende wetten en regels voor onder meer ruimtelijke ordening, bouwen, natuur, water en milieu. De Omgevingswet gaat over de fysieke leefomgeving en activiteiten die hierop gevolgen (kunnen) hebben. De fysieke leefomgeving is zoals gezegd een breed begrip en omvat in ieder geval bouwwerken, infrastructuur, bodem- en watersystemen, lucht, landschappen, natuur en erfgoed. Daarbij bepaalt de wet nadrukkelijk dat gevolgen voor de fysieke leefomgeving ook gevolgen voor de mens zijn; het gaat dus ook over onderwerpen als welzijn, gezondheid en veiligheid.
De Omgevingswet is gericht op het in onderlinge samenhang ‘bereiken en in stand houden van een veilige en gezonde fysieke leefomgeving en een goede omgevingskwaliteit’ (artikel 1.3a Omgevingswet). Hier gaat het om het beschermen van de kwaliteiten. Anderzijds is de wet ook gericht op het ‘doelmatig beheren, gebruiken en ontwikkelen van de fysieke leefomgeving’ (artikel 1.3b Omgevingswet). Ontwikkelingen moeten dus bijdragen aan het versterken van de kwaliteit van onze fysieke leefomgeving.
Een belangrijk uitgangspunt is om de fysieke leefomgeving integraal te benaderen. Integraal of samenhangend werken gaat over het kijken naar de samenhang tussen verschillende onderwerpen en het afwegen van verschillende perspectieven en belangen. Dit betekent dat we kijken naar het grotere plaatje en daarna een afweging maken. Een open blik en samenwerken zijn belangrijk bij deze manier van werken. De bundeling van wetgeving zorgt voor inzichtelijkere regels. Daarbij moet de wet zorgen voor snellere besluitvorming en meer ruimte bieden voor lokaal maatwerk. Het idee daarachter is om meer ruimte te bieden aan initiatieven volgens het principe van ‘ja mits’ in plaats van ‘nee tenzij’. Dit vraagt om een andere denk- en werkwijze van ons als gemeente, andere overheden, burgers en bedrijven.
De Omgevingswet kent een aantal ‘kerninstrumenten’ waarmee overheden de doelen van de wet in de praktijk kunnen brengen. Eén van de verplichte instrumenten voor gemeenten is de omgevingsvisie. De Omgevingswet bepaalt dat iedere gemeente voor het gehele eigen grondgebied een omgevingsvisie moet hebben. De visie is zelfbindend voor de gemeente en bevat geen regels voor burgers, bedrijven of andere overheden. De omgevingsvisie wordt juridisch vertaald in het omgevingsplan. Het omgevingsplan bevat wel regels voor burgers, bedrijven of andere overheden. Gemeenten kunnen ervoor kiezen om aanvullend op de omgevingsvisie te werken met programma’s. Een programma geeft aan hoe gemeenten de omgevingsvisie of onderdelen daarvan wil realiseren. Het bevat concrete maatregelen voor bescherming, beheer, gebruik en ontwikkeling van de leefomgeving. Het programma kan gericht zijn op een beleidsthema (bijv. groen), gebied of project (bijv. het centrum) of een milieuwaarde (veiligheidsplan). De verschillende instrumenten van de Omgevingswet worden toegelicht in hoofdstuk 6.4 Operationalisering in Omgevingswet-instrumenten.
De kwaliteiten en opgaven van de gemeente Waalwijk
Sinds 2023 hebben we diverse stads- en dorpsgesprekken gevoerd over de toekomst van onze gemeente. Deze gesprekken hebben we als basis gebruikt voor het gesprek over deze omgevingsvisie. Na de zomer van 2024 zijn we met verschillende partijen in gesprek gegaan over de kwaliteiten en opgaven in de gemeente. Omdat dit onderdeel ook relevant is voor de strategische visie (zie paragraaf 1.3.2), zijn we samen opgetrokken. We hebben inwoners gevraagd hoe zij de gemeente Waalwijk zien. Aan welke kenmerken inwoners denken en waar de gemeente de komende jaren mee aan de slag moet gaan. Op de markt in Waspik, Sprang-Capelle en Waalwijk zijn we hierover met mensen in gesprek gegaan. Daarnaast hebben we een online enquête uitgezet met vragen over de kwaliteiten van en opgaven voor de gemeente. We hebben hierover ook gesprekken gevoerd binnen het gemeentehuis met de ambtelijke organisatie, college en raad en er is een uitvoerige analyse van de beleidsstukken gedaan. Op basis van deze inbreng hebben we vier verschillende ontwikkelrichtingen opgesteld.
De koers van de gemeente Waalwijk
In oktober 2024 zijn we in gesprek gegaan over de koers van de gemeente. Deze gesprekken hebben we, aan de hand van de genoemde vier ontwikkelrichtingen, gevoerd tijdens bijeenkomsten in alle kernen en voor onze partners. Daarnaast hebben we met een online enquête gepeild hoe mensen tegen bepaalde keuzes over de ontwikkelrichtingen aankijken. We zijn hierover ook weer in gesprek gegaan met ambtenaren, college en raad om te horen hoe zij tegen de ontwikkelrichtingen aankijken.
Op basis van deze gesprekken is één koers voor de gemeente Waalwijk opgesteld. Dit is verwerkt in het koersdocument omgevingsvisie Waalwijk. In het koersdocument wordt het gezamenlijke toekomstbeeld neergezet met keuzes op hoofdlijnen. Het laat zien hoe we willen dat de gemeente er in 2050 uitziet en hoe we hier samen wonen, werken, leren en ontspannen. Het is onze stip op de horizon. Het koersdocument is daarmee het vertrekpunt voor de omgevingsvisie. De gemeenteraad heeft het koersdocument vastgesteld in februari 2025.
De omgevingsvisie van de gemeente Waalwijk
In april 2025 zijn we over de omgevingsvisie in gesprek gegaan met inwoners, organisaties, bedrijven en verenigingen. Tijdens bijeenkomsten hebben we gesproken over de ambities en doelen die in de omgevingsvisie zijn opgenomen. Per gebied hebben we gesproken over de ambities en konden mensen aangeven op welke ambitie meer of minder ingezet zou moeten worden (zie hoofdstuk 5 voor de gebieden). Er zijn bijeenkomsten georganiseerd in Waspik, Sprang-Capelle en Waalwijk. In het gemeentehuis was een bijeenkomst voor de diverse partners van de gemeente Waalwijk. Daarnaast was er een online vragenlijst uitgezet waarbij mensen konden aangeven welke ambitie ze in welk gebied belangrijk vinden.
In bijlage II beschrijven we wat de resultaten van het participatietraject zijn.
De onderlinge samenhang tussen de strategische visie en de omgevingsvisie is sterk. We zien de strategische visie zoals gezegd als sturend verhaal, als kapstok, richtinggevend bij beleids- en besluitvorming, op hoog abstractieniveau. De omgevingsvisie benut dit verhaal in het uitwerken van een koers voor de fysieke leefomgeving. Het is de fysieke vertaling van de strategische opgaven. Voor het sociaal domein zijn de strategische aspecten verder uitgewerkt in de koers sociaal domein en het programma Samen Redzaam (het bijbehorende implementatieplan). Deze verbindingen willen we daar waar mogelijk zo goed mogelijk benutten door integraal samen te werken, zodat het fysieke en het sociale domein elkaar kunnen versterken. Verder is relevant dat er een Economische Verkenning is gemaakt. De uitgangspunten uit deze verkenning zijn ook meegenomen in de omgevingsvisie.
In een milieueffectrapportage (mer) worden de milieueffecten in beeld gebracht van de ontwikkelingen en ambities die in de omgevingsvisie zijn beschreven. De mer biedt daarmee een onderbouwde basis voor de besluitvorming en zorgt ervoor dat de gemeente in haar keuzes volwaardig rekening houdt met de effecten van haar beleid op het milieu en de omgeving.
De mer bevat een foto van de leefomgeving. Hierin wordt de huidige staat binnen de gemeente, de autonome ontwikkeling en het huidige beleid beschreven. Daarnaast bevat de mer een beoordeling van de alternatieven (de ontwikkelrichtingen) en van het voorkeursalternatief (de conceptontwerp-omgevingsvisie).
De wettelijke grondslag voor de milieueffectrapportage is opgenomen in afdeling 16.4 van de Ow. Een mer moet opgesteld worden indien de omgevingsvisie het kader vormt voor mer-(beoordelings-)plichtige projecten of als ontwikkelingen zijn opgenomen in de omgevingsvisie die mogelijk significante gevolgen hebben voor Natura 2000-gebieden waarvoor een passende beoordeling moet worden gemaakt (Ow artikel 16.36). Voor de omgevingsvisie van de gemeente Waalwijk zijn beide gevallen niet op voorhand uit te sluiten. Naar verwachting zal de omgevingsvisie het kader vormen voor mer-(beoordelings-)plichtige projecten. Het gaat bijvoorbeeld om ontwikkelingen die kunnen worden aangemerkt als stedelijk ontwikkelingsproject (categorie J11 uit bijlage V van het Omgevingsbesluit). Verder liggen er ook Natura 2000-gebieden in en naast de gemeente Waalwijk, waar een passende beoordeling voor nodig is.
De resultaten van de milieueffectrapportage worden beschreven in paragraaf 6.7 Samenhang milieueffectrapportage.
De omgevingsvisie moet een integrale visie voor de lange termijn voor de fysieke leefomgeving van de hele gemeente zijn. Daarmee raakt het aan veel beleid waar de gemeente mee werkt. In de omgevingsvisie hebben we de strategische beleidsuitspraken uit het betreffende beleid overgenomen. Met actualisaties van de omgevingsvisie kan stap voor stap steeds meer beleid geïntegreerd worden.
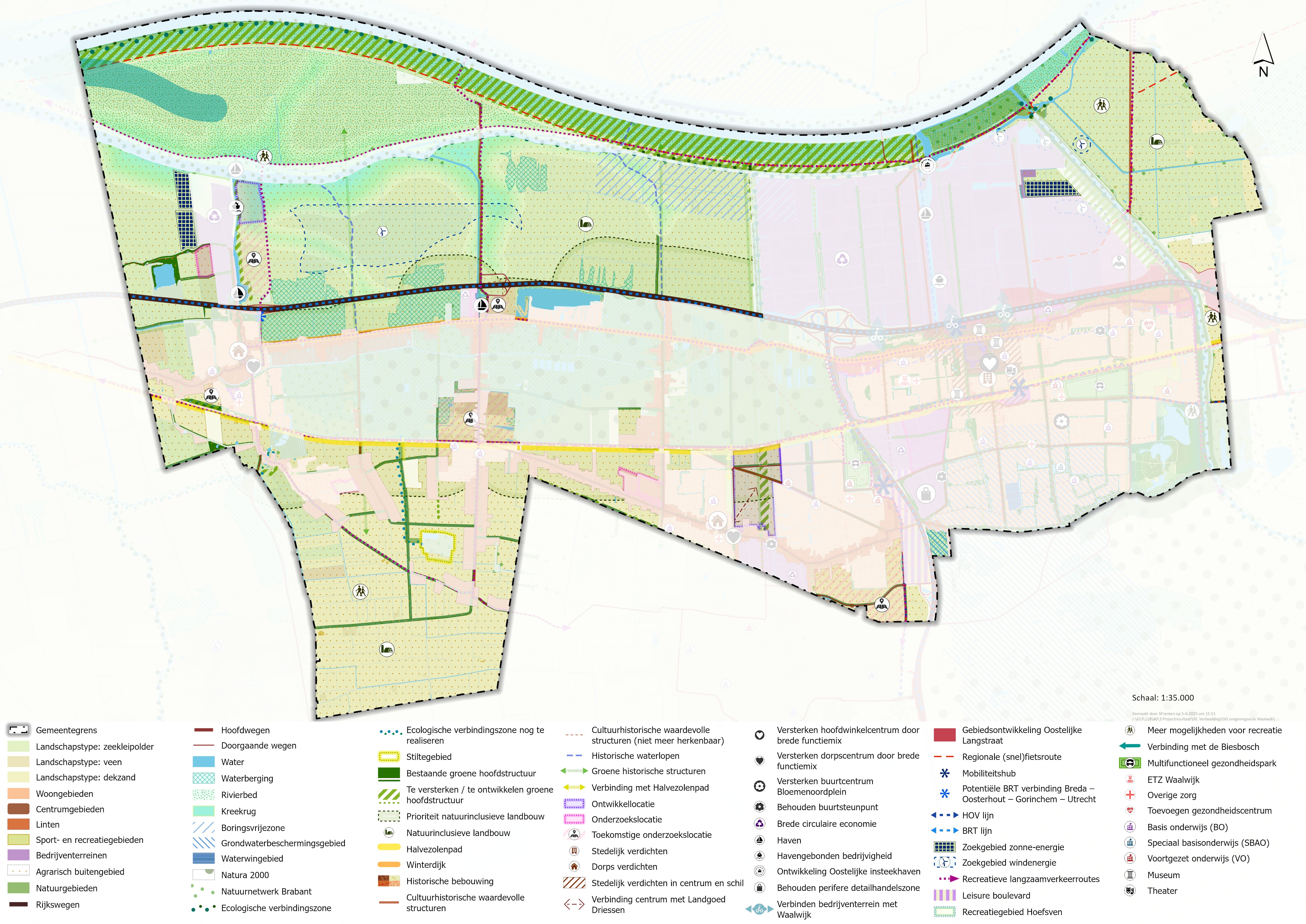
Hoofdstuk 2 omvat een beschrijving van de identiteit van de gemeente Waalwijk vanuit historisch en geografisch perspectief. Ook hebben we in dit hoofdstuk de opgaven voor de toekomst benoemd. Dit hoofdstuk vormt het vertrekpunt voor de toekomst. In hoofdstuk 3 is de koers voor 2050 beschreven. Dit is de stip op de horizon waar we op koersen. In hoofdstuk 4 hebben we die visie thematisch uitgewerkt. Hier worden de belangrijkste ambities per thema of onderwerp beschreven. In dit hoofdstuk staat de omgevingsvisiekaart. Op deze kaart zijn de voornaamste ambities, kansen en uitdagingen voor onze gemeente weergegeven. In hoofdstuk 5 hebben we de langetermijnvisie uitwerkt voor de verschillende deelgebieden. Dit is belangrijk als opmaat voor het omgevingsplan. Hoofdstuk 6 geeft een toelichting op de manier waarop we de ambities uit de omgevingsvisie kunnen realiseren. We beschrijven de doorwerking in andere Omgevingswetinstrumenten en de wijze waarop de omgevingsvisie wordt gemonitord en geactualiseerd. Verder zijn in dit hoofdstuk de programma’s opgenomen waar we aan werken.
Om te bepalen wie we nu zijn en waar we in de toekomst willen zijn, moeten we eerst goed weten waar we vandaan komen. Daarom wordt in dit hoofdstuk ingegaan op de historische ontwikkeling van de gemeente Waalwijk en de gemeente vandaag de dag, ook in zijn regionale context. Dit geeft inzicht in het karakter van de gemeente en de bijzondere kwaliteiten. Daarnaast kijken we naar de opgaven en uitdagingen die op de gemeente afkomen. Als gemeente opereren we niet in een vacuüm. Daarom kijken we ook naar de nationale, provinciale en regionale context. Deze elementen vormen het fundament waarop de omgevingsvisie is gebouwd.
De eerste vaste bewoners
Onze gemeente is ontstaan in het gebied De Langstraat. In dit gebied lagen de kernen Baardwijk, Waalwijk, Besoijen, Sprang, Capelle, Vrijhoeve, Nieuwe Vaart, Waspik boven en Waspik beneden. De Langstraat maakte eeuwenlang deel uit van een groot veengebied. Het Oude Maasje stroomde ten noorden van dit veengebied en de hoger gelegen zandgronden vormden een zuidelijke grens. De hoger gelegen oeverwallen langs de rivieren waren van oudsher aantrekkelijke plekken voor mensen om zich te vestigen. Vanuit de woonplaatsen langs de Maas is men in de 11e eeuw begonnen het zuidelijk gelegen veengebied te ontginnen door sloten parallel aan elkaar te graven, zodat het water weg kon stromen. De ontgonnen veengronden waren in eerste instantie geschikt voor akkerbouw, maar door de ontwatering ging het veen oxideren waarbij veen afgebroken werd (inklinkt). Hierdoor kwam het maaiveld steeds lager te liggen. Om het gebied waar mensen woonden te beschermen, werden kades aangelegd tegen het overstromingswater vanuit de rivier en tegen water uit aangrenzende veenontginningen. Deze kades werden zijdwenden en achterkades of zeines genoemd. Als het bouwland te laag kwam te liggen, ontgon men een nieuw stuk veen en werd het oude akkerland gebruikt als wei- en hooiland.
Na verloop van tijd kwam het bouwland op grote afstand van het dorp te liggen en werd het dorp verplaatst. De ontginningen en de bewoningslinten verschoven zo op in zuidelijke richting. Voor de afvoer van het veen werd gebruik gemaakt van vaarten die naast al bestaande zijdewende in noordelijke richting naar de Maas werden gegraven. Na de vervening kwamen de ontveende gronden alsnog ter beschikking aan de Langstraat-dorpen. Deze periode vormde de basis voor de landschappelijke structuur van de gemeente. In het landschap zijn duidelijk lijnen te zien van noord naar zuid door de ontginningen en de lijnen van De Langstraat van west naar oost (zie figuur 2).

Bescherming tegen het water
Rond 1270 maakte De Langstraat deel uit van de Grote of Zuidhollandse Waard. Deze waard was voorzien van een grote dijkring. De huidige Meerdijk was daar een deel van. Als gevolg van de doorgaande stijging van de zeespiegel, de ontginning (en daardoor daling van het maaiveld) en de turfwinning nam de invloed van de zee in de Grote Waard steeds meer toe. Bij de Sint Elisabethsvloeden in 1421 overstroomde grote delen van de Grote Waard en ontstond een groot verdronken gebied met een afwisseling van vertakte getijdegeulen die onder invloed van eb en vloed stonden. Hierbij werden de oorspronkelijke dorpen, die iets noordelijker lagen dan de huidige, zwaar beschadigd. Als reactie op de watersnood werd in het midden van de 15e eeuw de Winterdijk aangelegd direct ten noorden van het bewoningslint. Achter deze dijk konden de beschadigde dorpen zich weer langzaam opbouwen en zo ontstond er een lintbebouwing: de huidige Grotestraat. Deze nieuwe as is dus iets zuidelijker gelegen dan de oorspronkelijke lintbebouwing.
Ook de zuidkant van Waalwijk had last van hoog water dat vanuit ’s-Hertogenbosch kwam. Als gevolg hiervan zijn in de 17e eeuw onder andere het Galgenwiel en Hoefsven ontstaan. Om de waterafvoer richting de Maas beter te kunnen reguleren, is tussen 1766 en 1795 de Baardwijkse Overlaat aangelegd. Het grote inundatiegebied van de Baardwijkse Overlaat is gelegen tussen ’s-Hertogenbosch en Doeveren. Ter hoogte van Doeveren mondde de overlaat uit in het Oude Maasje. Het systeem van dijken en sluizen werd ook ingezet voor militaire inundaties. Pas met het graven van het Afwateringskanaal van 's-Hertogenbosch naar Drongelen tussen 1907 en 1911 verloor de overlaat zijn militaire functie. De Langstraat fungeerde binnen de militaire Zuiderwaterlinie als inundatiegebied. Hier hebben enkele verdedigingswerken gestaan, zoals de batterij ten noorden van Capelle, een aantal batterijen ten zuiden van Capelle en het retranchement bij Waspik.
Waalwijk als centrum voor leer en schoenen
Als gevolg van toenemende veeteelt in de streek groeide vanaf het begin van de 19e eeuw de leer- en schoenenindustrie. Waar het voorheen om kleinschalige leerlooierijen en schoenenmakers ging, ontstonden in deze periode schoenfabrieken en industriële leerlooierijen die hun stempel op de handel en ontwikkeling van Waalwijk hebben gedrukt. Er werden nieuwe kerken gebouwd en de gemeente Waalwijk, Besoijen en Baardwijk werden samengevoegd. Bevorderlijk voor deze groei was ook de aanleg van de spoorlijn tussen ’s-Hertogenbosch en Lage Zwaluwe, het Halvezolenlijntje. In deze periode werden ook de haaks op de Grotestraat liggende dammen en mijnen, waar de fabrieksarbeiders woonden, aangelegd. Daar bouwden de rijkere bewoners de eerste tweelaagse huizen in Waalwijk.
Na de bloeiperiode van de leer- en schoenenindustrie in de 19e en vroege 20e eeuw onderging Waalwijk aanzienlijke veranderingen. De stad, ooit het centrum van de Nederlandse schoen- en lederwarenproductie, zag deze industrie in de loop van de 20e eeuw geleidelijk afnemen door globalisering en concurrentie uit lagelonenlanden. Desondanks bleef de erfenis van deze industrie een belangrijke rol spelen in de lokale cultuur en economie.
Samen de gemeente Waalwijk
Aan het begin van de 20ste eeuw werden in de provincie Noord-Brabant diverse gemeenten samengevoegd. Zo ontstond uit de gemeenten Baardwijk, Besoijen en Waalwijk in 1922 de nieuwe gemeente Waalwijk en een jaar later werden Capelle, Vrijhoeve en Sprang samengevoegd tot de gemeente Sprang-Capelle. De huidige gemeente Waalwijk met de kernen Waspik boven, Waspik beneden, Sprang-Capelle en Waalwijk is in 1997 gevormd.
De gemeente Waalwijk ligt in het noorden van de provincie Noord-Brabant, tussen Tilburg (19 km) in het zuiden, Breda (29 km) in het westen, het rivierengebied in het noorden en ’s-Hertogenbosch in het oosten (22 km). Gemeente Waalwijk is onderdeel van regio Hart van Brabant. Daarin werkt de gemeente samen met Dongen, Gilze en Rijen, Goirle, Heusden, Hilvarenbeek, Loon op Zand, Oisterwijk, Tilburg, Alphen-Chaam en Baarle-Nassau. Deze regionale samenwerking is in ontwikkeling.
Gemeenten, waterschappen en provincie werken steeds meer op een groter schaalniveau samen aan (strategische) opgaven in de fysieke leefomgeving. De gemeente Waalwijk neemt deel aan de Stedelijke Regio Breda – Tilburg (SRBT) en de Stedelijke Regio ’s-Hertogenbosch (SRSHR). In de SRBT zitten naast de gemeenten uit Hart van Brabant ook de gemeente Altena, Breda, Drimmelen, Etten-Leur, Geertruidenberg, Moerdijk, Oosterhout en Zundert. Daarnaast zijn ook de provincie Noord-Brabant en de waterschappen Brabantse Delta, De Dommel, Rivierenland en Aa en Maas betrokken bij deze regionale samenwerking. Gezamenlijk wordt gewerkt aan programma’s en projecten in het fysiek domein en op economisch vlak.
De regio Midden-Brabant heeft diverse belangrijke nationale oost-west georiënteerde hoofdinfrastructuurassen met de A59, A58, Bergsche Maas, Wilhelminakanaal en de spoorlijn Breda-Eindhoven. De gemeente Waalwijk ligt zelf niet (meer) aan een spoorlijn. Via verschillende modaliteiten (weg, water en spoor) verbinden deze hoofdinfrastructuurassen de regio met de internationale ontwikkelingsassen voor logistieke en kennisgerichte activiteiten. De logistieke ontwikkelingsas loopt vanuit de randstad via Mainport Rotterdam door het westen van Brabant naar Vlaamse Ruit.
De kennisgerichte ontwikkelingsas gaat vanuit de Randstad door het oosten van Brabant via Brainport Eindhoven richting het Ruhr- en Rijngebied. De ligging van Midden-Brabant wordt daarom ook wel gesymboliseerd als een hashtag (#) (zie figuur 3).
De gemeente Waalwijk is een typische middelgrote gemeente. We zijn een belangrijk werkgelegenheidscentrum en hebben een bovenlokaal aanbod aan voorzieningen, zoals een regionaal gezondheidscentrum, theater, sportaccommodaties en (woon)winkels. We zien dat deze voorzieningen enerzijds door opschaling en centralisatie en anderzijds door verdunning van huishoudens, vragen om voldoende ‘massa’ (genoeg mensen). Tegelijkertijd hebben we te maken met opgaven waar meer middelgrote gemeenten mee kampen, zoals de duurzame mobiliteitstransitie en stedelijke (sociale) problematiek. Gezamenlijk met andere middelgrote steden zien we kansen om een rol te spelen in de verstedelijkingsopgave van Noord-Brabant. De gemeente Waalwijk is daarom onderdeel van samenwerkingsverband Midstad. Een samenwerking met andere middelgrote gemeenten in Noord-Brabant. Structureel overleg met provincie en andere middelgrote steden is daarbij van belang.

“Waalwijk, waar we elkaar nog kennen. Een gemeente met meer dan 50.000 inwoners. Waar we houden van aanpakken. Het is er goed wonen, veilig opgroeien, leren, ondernemen en werken.” - Dienstverleningsvisie 2021 gemeente Waalwijk (het inwoneraantal is aangepast naar de situatie op 1 januari 2024)
De bovenstaande tekst beschrijft de identiteit van de gemeente Waalwijk. Dit is de identiteit waar mensen zich in herkennen, maar nog wel wat algemeen. Het scherp hebben van de identiteit is belangrijk voor het opstellen van de omgevingsvisie, omdat die identiteit relatief stabiel is en dus een stevige basis biedt voor een langetermijnvisie. Vanuit de identiteit kunnen we toekomstbestendig keuzes maken die passen bij het karakter van de gemeente Waalwijk. De identiteit bestaat uit meerdere kernkwaliteiten. Dat zijn de kenmerken waar we als gemeente trots op zijn en die samen het verhaal vertellen over wat Waalwijk voor een gemeente is.
Onze kernkwaliteiten zijn:
1. een veelzijdig landschap;
2. een levendige samenleving en
3. een sterke economie.
In de volgende subparagrafen beschrijven we wat die kernkwaliteiten betekenen.
De gemeente Waalwijk ligt op een uniek grens- en overgangsgebied. De Bergsche Maas en het rivierenlandschap in het noorden en de Brabantse zandgronden in het zuiden zorgen voor een bijzonder landschap met verschillende bodemtypes. Tussen de noordelijke kleigrond en de zuidelijke zandgrond is een veenlandschap ontstaan. Het overgangsgebied tussen het rivierengebied en de zandgronden loopt van Ossendrecht naar Maashees en wordt de ‘Naad van Brabant’ genoemd (zie figuur 4). De gemeente Waalwijk ligt in een grensgebied van klei-, zand- en veengrond. Dit gebied wordt gekenmerkt door bijzonder kwelwater dat hier omhoog komt. Dit zorgt voor specifieke natuurtypes, zoals de afwisseling tussen open en dichtbegroeide gebieden en natte en droge gebieden, wat zorgt voor een veelzijdig landschap.
Het bijzondere aan het bodemprofiel in de gemeente is het feit dat verschillende bodemsoorten op elkaar liggen, namelijk klei-op-veen-op-zand. Dit maakt het een aardkundig waardevol gebied en hierdoor kan de historische ontwikkeling goed afgelezen worden. De veengronden zijn ontstaan door de agrarische veenontginning, het kleipakket verwijst naar de Sint Elisabethsvloed en het getijdengebied wat hierdoor is ontstaan. Uiteindelijk werd het gebied hierdoor bij uitstek geschikt als hooiland. Dit werd gebruikt om de runderen op te laten grazen. Deze runderen werden weer gebruikt voor de leerindustrie. De lijnstructuur van de bodemsoort (de oost-west lijnen) en de vaarten door de ontgingen (de noord-zuid lijnen) zijn nog steeds zichtbaar in ons landschap.

Het samenspel tussen bodem en water heeft gezorgd voor een uniek natuurgebied in onze gemeente: De Westelijke Langstraat. Dit beschermd natuurgebied ligt tussen Waspik en Waalwijk. De verschillende bodemlagen zorgen voor een uniek en nat ecosysteem. Sloten, vennen, graslanden, moerassen en veen wisselen elkaar af. In de Westelijke Langstraat leven de Grote en Kleine Modderkruiper. De Grote Modderkruiper is een zeldzame vissoort. Daarnaast groeien op verschillende plekken autochtone bomen en struiken, zoals de zwarte els en Gelderse roos. Deze plantensoorten zijn directe nakomelingen van de planten die zich hier na de ijstijd spontaan hebben gevestigd en zich uit lokaal plantmateriaal hebben vermeerderd. Deze planten zijn daarmee vanuit cultuurhistorie en ecologie van groot belang, omdat ze ons landschappelijk erfgoed uitdragen en bijdragen aan de biodiversiteit. In het zuidoosten ligt Waalwijk tegen natuurgebied de Loonse- en Drunense Duinen en Leemkuilen dat één van de grootste stuifzandgebieden van West-Europa is.
Onze gemeente ligt in streek De Langstraat. “De Langhe Straet”, zoals het vroeger heette, was oorspronkelijk een dijk door een moerassig landschap tussen het Oude Maasje en de hoger gelegen Brabantse zandgronden. Deze dijk staat nu bekend als de Winterdijk. Aan deze dijk vestigden zich begin vorige eeuw de eerste inwoners. Door opkomend water is deze dijk met de bebouwing steeds opgeschoven. De oost-westlijnen die daardoor in het landschap zijn ontstaan zijn nog steeds herkenbaar. Van noord naar zuid zijn de waterlopen zichtbare structuren. Door de noord-zuid en oost-west structuur van lijnen ontstonden hiertussen vlakken. Op strategische plekken ontstonden punten, zoals havens. Deze structuur van lijnen, vlakken en punten is kenmerkend voor De Langstraat. De Langstraat ontwikkelde zich tot hét centrum voor de schoen- en lederindustrie. Tegenwoordig zijn in het gebied veel historische elementen zichtbaar die naar deze periode verwijzen, zoals voormalige spoorlijn Halvezolenlijn wat tegenwoordig een wandel- en fietspad is (het Halvezolenpad) en verschillende gebouwen. De gemeente is tegenwoordig onderdeel van Noord-Brabant, maar in het verleden behoorde een groot deel van de huidige gemeente
Waalwijk tot Holland. De Hollanders waren niet katholiek zoals de Brabanders, maar protestant. Dit heeft tot een lange religieuze strijd geleid. De verschillende kerken in onze gemeente maken deze historie zichtbaar. Tegenwoordig heeft deze strijd plaatsgemaakt voor een gemeenschapsgevoel en zijn de religieuze gebouwen belangrijke ontmoetingsplekken.
De gemeente kent een levendige afwisseling van de hechte dorpen Waspik en Sprang-Capelle en de actieve stad Waalwijk. Waalwijk wordt gezien als een stad met een dorps karakter en Waspik en Sprang-Capelle worden omschreven als ‘ons kent ons’. De samenleving is gevarieerd met verschillende leeftijden, achtergronden, religies en culturen. De gemeente kent een rijk verenigingsleven en door het jaar heen worden veel evenementen georganiseerd.
In elke kern zijn de basisvoorzieningen op orde. Onze jongste inwoners kunnen in hun eigen woonplaats naar school en voortgezet onderwijs kan op alle niveaus in de gemeente worden gevolgd. Voor een middelgrote stad als Waalwijk zijn er veel culturele voorzieningen, zoals Theater De Leest en het Schoenenkwartier.
Daarnaast heeft de gemeente Waalwijk een groot sportaanbod op hoog niveau. RKC Waalwijk is een voetbalclub op professioneel niveau en HV Tachos een handbalvereniging op het hoogste niveau. Elke kern heeft een binnensportaccommodatie en sportvelden. Waalwijk heeft een grote diversiteit aan vecht- en verdedigingsporten en elke kern heeft één of meerdere eigen voetbalclub(s). Voor de zwembaden geldt dat zowel het binnenbad Olympia als buitenbad Zidewinde een regionale functie heeft.
In de gemeente Waalwijk heerst een sterke werkmentaliteit. Onze mensen weten van aanpakken. Gemeente Waalwijk heeft een snelgroeiende economie en we zijn één van de gemeenten in Nederland met de meeste banen per inwoner. Het is echt een werkgelegenheidsgemeente. Onze sterke economie is vooral te danken aan de logistiek en groothandel en een brede basis in de maakindustrie. De bruto toegevoegde waarde van de Waalwijkse economie bedroeg in 2023 ongeveer € 3,3 miljard, wat een toename van 28% was ten opzichte van 2014. Deze groei is nauw verbonden met de sterke banengroei in dezelfde periode. De belangrijkste sectoren die bijdragen aan deze economische waarde zijn de industrie, logistiek (vervoer en opslag) en (groot)handel. De sector ‘logistiek en groothandel’ kent de afgelopen 10 jaar de sterkste groei in aantal banen, namelijk zo’n 60%, met in totaal ruim 9.500 banen (bron: Economische Verkenning gemeente Waalwijk). De identiteit van onze gemeente is nauw verbonden met de economische geschiedenis, met name door het Schoenenkwartier en de lederwarenindustrie. Het midden- en kleinbedrijf is sterk aanwezig in Waspik, Sprang-Capelle en Waalwijk. Bijna de helft van de banen in de gemeente Waalwijk (48%) is te vinden in het midden- en kleinbedrijf (MKB), dat bestaat uit 476 vestigingen. Dit onderstreept de positie van Waalwijk als MKB-gemeente.
De centrale ligging van de gemeente heeft er mede voor gezorgd dat we zijn uitgegroeid tot de hotspot van Nederland op logistiek gebied. In de gemeente zijn veel (grote) logistieke distributiecentra en transportbedrijven gevestigd. Via de havens worden goederen op internationaal niveau van A naar B gebracht en de A59 en N261 zijn belangrijke transportaders. Waalwijk staat op de kaart als logistieke schakel tussen Rotterdam, Antwerpen en het Europese achterland.
Naast logistiek heeft de gemeente Waalwijk een aantal sterke sectoren die al decennialang geworteld zijn in onze gemeente. Piet Klerkx opende in 1928 zijn eerste meubelzaak in Waalwijk. Mandemakers is in Waalwijk uitgegroeid tot keukengigant en Van Mossel Automotive Group is uitgegroeid tot een van de grootste automotive bedrijven in Europa. Zij zijn nog steeds sterk verbonden met onze gemeente met hoofdkantoren en opleidingscentra. De schoen- en lederindustrie die de gemeente in de 19e eeuw op de kaart zetten is nog steeds present. Onze gemeente huisvest de hoofdkantoren van verschillende nationale en internationale schoen- en ledermerken.
Figuur 5 laat de huidige kwaliteiten van de gemeente Waalwijk zien.
1. Veelzijdig landschap:
Bijzondere combinatie van landschappen klei, veen en zand.
Uniek natuurgebied Westelijke Langstraat.
Rijke historie met De Langstraat als ruggengraat.
2. Diverse samenleving:
Diversiteit in inwoners en evenementen/festiviteiten.
Toegankelijke voorzieningen voor alle leeftijden.
Groot sportaanbod in alle kernen.
3. Sterke economie:
(Intern)nationale logistieke hotspot.
Sterke sectoren met langdurige geschiedenis in de gemeente.
Gemeente van aanpakken: hoge werkgelegenheid en sterke MKB.

Uit de vorige paragraaf blijkt dat we veel kwaliteiten bezitten die het waard zijn om te behouden. Tegelijkertijd komen opgaven op ons af die om aandacht vragen en waar we richting de toekomst mee aan de slag moeten. Trends en ontwikkelingen kunnen de bestaande kwaliteiten onder druk zetten of juist een kans bieden om kwaliteit toe te voegen. Daar waar meerdere ontwikkelingen samenkomen kunnen ook dilemma’s of koppelkansen aan het licht komen. Kortom: alles waar we in de volgende hoofdstukken een antwoord op moeten formuleren. In de strategische visie zijn drie strategische lijnen ontwikkeld die sturing moeten geven in het aanpakken van de opgaven (zie figuur 6).
De drie strategische lijnen zijn:
1. Sturen op Brede Welvaart. Bijdragen aan de gemeenschap komt centraal te staan in alles wat we doen en de keuzes die we maken. Dat doen we voor én met de gemeenschap. Bijvoorbeeld door samenwerking tussen het onderwijs, het bedrijfsleven en de gemeente. 2.
2. Bouwen aan een verbonden samenleving. Binnen de gemeente Waalwijk bestaan hechte gemeenschappen. Die zetten we (nog meer) in hun kracht, door ecosystemen als de basis te nemen in alles wat we doen. Onder andere door inwoners, ondernemers, maatschappelijke partners en gemeenschappen met elkaar te verbinden.
Brede Welvaart is hierin als overkoepelende kapstok omarmd. Bij de omgevingsvisie wordt deze lijn doorgetrokken en wordt Brede Welvaart ook als kader en sturingsinstrument gebruikt bij de verdere uitwerking van de opgaven die zich voordoen in de fysieke leefomgeving.
Brede Welvaart gaat in essentie over het welzijn van mensen. Het is een maatstaf voor alles dat mensen van waarde vinden. Naast materiële welvaart gaat het ook om zaken als gezondheid, onderwijs, milieu en leefomgeving, sociale cohesie, persoonlijke ontplooiing en veiligheid. Het gaat zowel om de kwaliteit van leven in het ‘hier en nu’, als om de effecten van onze manier van leven op het welzijn van mensen op andere plekken en voor toekomstige generaties.

Een gezonde bodem en voldoende en schoon water zijn belangrijk voor een veilig leven. We lopen steeds meer tegen de grenzen van ons bodem- en watersysteem aan. We moeten daarom beter rekening houden met ons water en onze bodem door ‘water en bodem sturend’ te werken. Hierbij is het bodem- en watersysteem sturend in onze keuzes, zoals voor plekken die we nodig hebben voor het opslaan van water of het verhogen van het waterpeil. De bodem moet een sturende factor zijn in de keuze voor nieuwe geschikte bouwlocaties en de wijze waarop we zo’n ontwikkeling vervolgens inpassen. Er kunnen met het realiseren van een nieuwe ontwikkeling namelijk ook kansen benut worden die ten gunste komen aan de kwaliteit van het water, de bodem en de landschappelijke inrichting.
We moeten ervoor zorgen dat we met het gebruik van het land de bodem minder uitputten. De biodiversiteit in de bodem - het bodemleven – is een onmisbaar onderdeel voor een goed functionerende, gezonde bodem. Het is de drijvende kracht achter veel belangrijke bodemprocessen en heeft daarmee een belangrijke rol in het functioneren van het hele ecosysteem. Het bodemleven is de basis van natuurinclusieve landbouw. Een levende bodem vormt de basis voor de biodiversiteit boven de grond.
De mens is onderdeel van de natuur. Voor een gezond leven op een leefbare planeet hebben we de natuur nodig, maar het groen en de natuur in de gemeente worden beïnvloed door klimaatverandering en zijn momenteel eenzijdig. Natuurgebied Westelijke Langstraat en de naastgelegen Loonse en Drunense Duinen en Leemkuilen staan onder druk. Door in te zetten op een samenhangend netwerk van diverse groengebieden met een hoge biodiversiteit kunnen extremen, zoals hitte of wateroverlast, beter opgevangen worden. Ook is het behoud van biodiversiteit van belang voor onze voedselvoorziening. Daarnaast draagt meer groen bij aan de gezondheid van onze inwoners. Het is een opgave om het groen zowel kwantitatief als kwalitatief te verbeteren. Dit is nodig binnen het bestaande groen en de gebieden met weinig biodiversiteit, zoals bedrijventerreinen en agrarische gronden. Hier liggen kansen op het gebied van erfgoed, bijvoorbeeld door historische groenstructuren en landschapselementen te herstellen.
Klimaatverandering, met steeds meer extremen in weersomstandigheden, vraagt om aanpassing van onze leefomgeving. Door de ligging aan de Bergsche Maas is de gemeente kwetsbaar voor overstromingen. In de kernen is veel verharding aanwezig en met name op grote delen van de bedrijventerreinen is weinig groen. Het buitengebied bestaat grotendeels uit agrarische gronden, waar water vaak niet goed kan worden vastgehouden en de biodiversiteit laag is. Om de gezondheid van de inwoners en de leefomgeving beter te beschermen is het nodig om de gemeente klimaatadaptief in te richten, zowel in de openbare ruimte als op particuliere gronden. Dat kan door meer ruimte te geven aan water, minder verharding toe te passen en meer groen te creëren. Samen met de samenleving werken we aan het groen inrichten van percelen ten behoeve van klimaatadaptatie wat bijdraagt aan een fijne en aantrekkelijke omgeving.
Door klimaatverandering warmt de aarde op. Dat komt mede door het gebruik van fossiele brandstoffen. We moeten de omslag maken naar duurzame energie. Dat betekent dat we de energievraag moeten beperken en daarna energiebronnen optimaal willen benutten. Het vormgeven van dit nieuwe energiesysteem gaat over opwekken, opslaan en transporteren. Dat vraagt om een andere inrichting van onze onder- en bovengrond, verduurzamen van onze gebouwen en bewuster omgaan met energie. We moeten hierin keuzes maken die bijdragen aan de welvaart en welzijn van onze huidige en toekomstige generaties.
Een omslag naar duurzame mobiliteit vraagt niet alleen wat van de inrichting, maar ook om een gedragsverandering.De bevolking van de gemeente Waalwijk blijft tot 2040 groeien. In 2040 zijn er iets meer dan 56.500 inwoners. Het aantal eenpersoonshuishoudens, zowel bij jongeren als ouderen, neemt toe. Hierdoor neemt ook de vraag naar woningen toe. Er moeten de komende tijd meer woningen bijkomen die aansluiten op de behoefte van de inwoners. Van belang is dat we woningen bouwen die bijdragen aan een evenwichtige bevolkingsopbouw in de toekomst. Het is een opgave om te kijken wat daarvoor de meest geschikte locaties zijn, dichtbij voorzieningen en met een goede bereikbaarheid. We willen dat onze gemeente een fijne en aantrekkelijke plek blijft met woningen voor alle doelgroepen, van starters, jonge gezinnen, alleenstaanden, mensen wiens kinderen het huis uit zijn tot senioren.
Daarnaast is het van belang dat het groeien van het aantal inwoners niet alleen iets betekent voor het aantal woningen of de bereikbaarheid, maar ook voor het voorzieningenniveau, zoals sport, cultuur, onderwijs, huisartsenzorg en andere vormen van zorg en ondersteuning. Het is van belang dat we hier oog voor hebben bij de fysieke ontwikkelingen en daarbij de verbinding maken met het sociaal domein. De gemeente Waalwijk heeft, net als de rest van Nederland, te maken met vergrijzing. Vooral het aantal inwoners van 75 of ouder gaat fors groeien de komende 10 jaar, van iets meer dan 5.200 naar ruim 7.300 inwoners in 2040. De zorgvraag zal daarmee toenemen. Door nationaal beleid is het uitgangspunt dat ouderen langer zelfstandig thuis wonen. Dat heeft een effect op onze zorg en vraagt meer van inwoners die mantelzorg verlenen. Niet alle huidige woningen zijn voldoende levensloopbestendig en moeten aangepast worden zodat ouderen prettig in hun eigen huis kunnen wonen.
We streven naar een leefomgeving die gericht is op ontmoeten en die toegankelijk is, zodat ouderen, jongeren en alle inwoners veel meer in verbinding kunnen leven. Ouderen, met name alleenstaanden, zijn kwetsbaarder voor eenzaamheid. Het is belangrijk dat zij elkaar en andere mensen kunnen ontmoeten. Aan deze doelstelling wordt onder andere gewerkt vanuit het programma Samen Redzaam. Ook in dat programma maken we de verbinding met de fysieke en sociale leefomgeving die gezond en gelukkig ouder worden stimuleert en faciliteert. De openbare ruimte is op sommige plekken nog onvoldoende ingericht voor ouderen, doordat deze slecht toegankelijk is en koele plekken of rustplekken ontbreken. We willen werken aan een openbare ruimte waar al onze inwoners zich welkom voelen en waar bewegen, spelen en ontmoeten in een gezonde en groene omgeving mogelijk is.
De komende jaren is het een opgave om onze leefomgeving, woningen en maatschappelijke voorzieningen beter in te richten op de vergrijzende bevolking. Tegelijkertijd mogen we onze andere inwoners niet uit het oog verliezen. Ook voor jongeren kan de openbare ruimte aantrekkelijker ingericht worden en ontmoeten meer worden gestimuleerd met voorzieningen die aansluiten bij hun wensen en behoeften. In de gemeente werken veel internationale medewerkers. Zij en hun gezin maken gebruik van zorg, woningen en onderwijs. Het is onze opgave om samen met inwoners te werken aan hun redzaamheid en toe te werken naar sociale en fysieke gezondheid en zingeving. Als gemeente willen we bijdragen aan een gezond en gelukkig leven voor alle inwoners. Samen met de Koers Sociaal Domein werken we aan samenredzaamheid door het versterken van de veerkracht van de gemeenschap en van al onze inwoners.
Veel inwoners van de gemeente maken dagelijks gebruik van de auto. Met de auto is Waalwijk goed te bereiken en is men binnen een half uur in ‘s-Hertogenbosch, Tilburg of Breda, maar dit systeem loopt tegen grenzen aan. Er ontstaan vaak knelpunten op de A59 en N261 en dit zorgt voor overlast (files, geluidsoverlast en slechtere luchtkwaliteit). Robuust en frequent openbaar vervoer wordt gemist, waardoor veel mensen terugvallen op de auto. Gezien de woningbouwopgave en vergrijzing is het van belang een robuust openbaar vervoernetwerk te hebben, zodat de druk op de wegen en openbare ruimte niet toeneemt. De gemeente, de regio en de provincie Noord-Brabant onderschrijven gezamenlijk de ambitie voor de realisatie van een BusRapidTransit-verbinding Tilburg – Efteling – Waalwijk – ’s-Hertogenbosch, een snelle regionale buslijn. Partijen werken samen om de haalbaarheid in kaart te brengen met als doel hoogwaardig openbaar vervoer over deze as te realiseren. Naast een robuust OV-systeem dient er aandacht te zijn voor goede en veilige fiets- en wandelroutes, zowel recreatief als functioneel. Een omslag naar duurzame mobiliteit vraagt niet alleen wat van de inrichting, maar ook om een gedragsverandering.
De gemeente Waalwijk heeft zoals gezegd een robuuste economie, met de havens, lokale MKB en kleine en grote familiebedrijven, agrarische bedrijven, de logistiek en groothandel en het woonwinkelcluster. De economie blijft aantrekken. De vraag van bedrijven naar ruimte blijft dan ook aanwezig. Dit kan echter niet overal ingepast worden, omdat andere opgaven ook ruimte vragen, zoals waterveiligheid, woningbouw en klimaatadaptatie. Voor de groei van onze economie is energie randvoorwaardelijk; zonder de toevoer van energie kunnen bedrijven niet uitbreiden. Waalwijk wil het karakter als werkgelegenheidsgemeente behouden, maar wil ook een economie die bijdraagt aan Brede Welvaart voor de gemeente en een klimaatneutrale en duurzame economie. Onze economie moet bijdragen aan het welzijn van onze inwoners, zowel materieel als immaterieel. Ondernemingen bevorderen de Brede Welvaart bijvoorbeeld door het bieden van werkgelegenheid, bijdragen aan de mobiliteitsopgave en de klimaatdoelen, het verbinden van ondernemers met onderwijs of de zorg. De vraag is hoe hierin een balans gevonden kan worden. Hierin dient een integrale afweging te worden gemaakt.
Het winkelgebied van Waalwijk heeft te maken met concurrentie van onder andere online winkels en grotere steden in de regio zoals ’s-Hertogenbosch, Tilburg en Breda. Het centrum van Waalwijk kampt met leegstand en inwoners geven aan dat het centrum daardoor minder aantrekkelijk is. Als gemeente werken we al op verschillende manieren aan het aantrekkelijk houden van ons centrum en het geven van een nieuwe invulling aan ruimte die leeg staat, zoals met het Masterplan Binnenstad en de herontwikkeling van winkelcentrum De Els. In de dorpen is het noodzakelijk om de voorzieningen te behouden, omdat deze bijdragen aan de leefbaarheid. Het is van belang om de winkelgebieden te transformeren naar winkel- en verblijfsgebieden waarmee ook ingezet kan worden op vergroening, ontmoeting en uitdragen van (cultuur-) historie.
Figuur 7 laat de opgaven zien waar de gemeente Waalwijk voor staat.
Deze bestaan uit:
1.Omgeving en landschap:
Water en bodem zijn sturend.
Zorgen voor een gezonde leefomgeving met biodiverse natuur en groene kernen.
Werken aan een duurzame en klimaatadaptieve gemeente.
2. Samenleving:
3. Economie:
Omslag naar een duurzame en circulaire economie.
Een economie die bijdraagt aan Brede Welvaart.
Inzetten op levendige centra.

Als gemeente opereren we niet in een vacuüm. We dienen rekening te houden met ons bestaand beleid en regionale afspraken. Deze integreren we in de omgevingsvisie. Daarnaast is de omgevingsvisie onder de Omgevingswet een verplicht instrument voor het Rijk, provincies en gemeenten. Als gemeente dienen we rekening te houden met de ambities en uitgangspunten uit de omgevingsvisies van hogere overheden. Op lokaal, regionaal, provinciaal en nationaal niveau liggen grote uitdagingen op het gebied van economie, samenleving, omgeving en landschap die vragen om een integrale benadering. Deze uitdagingen zijn soms tegelijkertijd kansen.
In het kader van de invoering van de Omgevingswet heeft het Rijk de Nationale Omgevingsvisie (NOVI) opgesteld. In de nationale omgevingsvisie geeft het Rijk een langetermijnvisie aan voor de toekomstige ontwikkelingen van de leefomgeving in Nederland. In Nederland staan we voor urgente maatschappelijke opgaven die zowel lokaal als regionaal, nationaal en internationaal gelden, zoals klimaatverandering, de energietransitie, circulaire economie, bereikbaarheid en woningbouw. De NOVI biedt perspectief om voort te bouwen op bestaande landschappen en historische steden.
In de NOVI zijn vier prioriteiten opgesteld:
ruimte voor klimaatadaptatie en energietransitie;
duurzaam economisch groeipotentieel;
sterke en gezonde steden en regio's;
toekomstbestendige ontwikkeling van het landelijk gebied.
Binnen de NOVI worden drie afwegingsprincipes gehanteerd om te komen tot weloverwogen beleidskeuzes. Die zouden moeten helpen bij het afwegen en prioriteren van verschillende belangen en opgaven:
combinaties van functies gaan voor enkelvoudige functies;
kenmerken en identiteit van een gebied staan centraal;
afwentelen wordt voorkomen.
Naast de NOVI werkt de rijksoverheid aan een Nota Ruimte. Deze moet 2026 gereed zijn. Totdat de nieuwe Nota Ruimte klaar is, geldt de NOVI als beleid. Momenteel ligt er het voorontwerp van de Nota Ruimte. Het voorontwerp Nota Ruimte is een ruimtelijke visie op heel Nederland en is de uitwerking van de NOVI. Het biedt een overzicht van de nieuwe richtingen, ruimtelijke beelden en keuzes voor nu, straks en later. Het gaat om de keuzes die al zijn gemaakt en ingezet in verschillende nationale programma’s, keuzes die aanvullend nodig zijn en nog gemaakt moeten worden in de (ontwerp) Nota Ruimte en keuzes die in de Nota Ruimte geagendeerd worden voor later.
Het voorontwerp is een tweede tussenstap om via een ontwerp Nota Ruimte tot een definitieve nieuwe Nota Ruimte te komen. Het voorontwerp bouwt voort op de contourennotitie Nota Ruimte uit oktober 2023.
In het voorontwerp worden nationale keuzes gemaakt in drie samenhangende bewegingen richting 2050. Die drie samenhangende keuzes zijn:
1. Beweging naar een nieuw evenwicht tussen landbouw en natuur
Nederland werkt aan een toekomstbestendige landbouw en tegelijk aan het herstel van de biodiversiteit. Het is van belang te zorgen voor een economisch sterke landbouw met voldoende verdienvermogen. Ook de natuur vraagt om versterking. Daarom wordt gestreefd naar een hersteld water- en bodemsysteem (inclusief bodemleven) als basis voor toekomstbestendige landbouw en natuur.
2. Beweging naar een klimaatneutrale en circulaire samenleving
In Nederland moeten grote aanpassingen gedaan worden aan bestaande energie- en mobiliteitsnetwerken om in de toekomst te garanderen dat we genoeg schone energie opwekken en om ons vervoer te verduurzamen. Onze samenleving moet circulair worden. Dit alles vergt naar verwachting meer ruimte in binnensteden, op bedrijventerreinen en in het buitengebied. Op lokaal niveau wordt ingezet op besparen en lokaal gebruiken. Op regionaal niveau zullen vraag en aanbod zo goed mogelijk met elkaar verbonden worden door een systeem van knooppunten en netwerken en plekken voor verwerking van hergebruik van grondstoffen. Op nationaal niveau worden een beperkt aantal clusters en corridors geselecteerd voor energie en mobiliteit met een belangrijke rol in de transities rond energie, mobiliteit en circulariteit. De beschikbaarheid van drinkwater en zoetwater staat steeds meer onder druk, terwijl klimaatverandering leidt tot meer weersextremen met periodes van wateroverlast en grote droogte. Daarom wordt water en bodem sturend als principe genomen bij ruimtelijke keuzes en de inrichting van gebieden.
3. Beweging naar sterke steden, dorpen en regio’s in heel Nederland
Er is een grote vraag naar meer ruimte om te wonen, werken en ontspannen. Tegelijk moet de bestaande gebouwde omgeving toekomstbestendig worden gemaakt. De grootstedelijke kracht van de Randstad wordt versterkt met de daaromheen gelegen Bandstad: de regio’s in het noorden, oosten en zuiden. Deze regio’s krijgen een grotere rol in de verstedelijkingsopgaven. Onmisbaar hiervoor is een visie op economische ontwikkeling van de diverse regio’s in (inter-)nationaal verband.
In het voorontwerp wordt de Brabantse Stedenrij genoemd als potentieel verstedelijkingsgebied (zie figuur 8). Dit is het gebied rondom en tussen de steden Breda, Tilburg, ’s-Hertogenbosch en Eindhoven met Veldhoven. Het Rijk ziet hier kansen voor verstedelijking om het zwaartepunt van de drukbevolkte Randstad af te halen. Verstedelijking van de Brabantse Stedenrij betekent een groei van inwoners, voorzieningen en economie. De gemeente Waalwijk ligt nabij een groot aantal van deze steden en kan mogelijk profiteren van deze verstedelijking.

Algemeen
De Brabantse omgevingsvisie is een samenhangende visie op de fysieke leefomgeving van provincie Noord-Brabant. De omgevingsvisie bevat de belangrijkste ambities voor de fysieke leefomgeving voor de komende jaren. Dat gaat om ambities op gebied van de energietransitie, een ‘klimaatproof’ Brabant, Brabant als slimme netwerkstad en een concurrerende, duurzame economie. Als basisopgave voor de komende jaren werkt de provincie aan veiligheid, gezondheid en omgevingskwaliteit.
Werken aan veiligheid, gezondheid en omgevingskwaliteit
De komende jaren werkt de provincie, van een aanvaardbare leefomgevingskwaliteit in 2030, toe naar goede leefomgevingskwaliteit in 2050 waarbij op alle aspecten beter dan het wettelijke minimumniveau wordt gescoord. Een gezonde leefomgeving gaat bijvoorbeeld om het stimuleren van bewegen en meer groen. Twee aandachtspunten zijn het behouden van de kwaliteit van ons grondwater bestemd voor menselijke consumptie en het verbeteren van de luchtkwaliteit. Een veilige leefomgeving gaat om het terugbrengen van risico’s en voorbereid zijn op calamiteiten. Aandacht gaat uit naar de veiligheid rondom het vervoer van gevaarlijke stoffen. Waterveiligheid vanwege klimaatverandering wordt besproken bij ‘werken aan een klimaatproof Brabant’. Een goede omgevingskwaliteit gaat om het werken aan alle opgaven vanuit het verbeteren van landschappelijke en stedelijke kwaliteiten, waarbij bijvoorbeeld rekening moet worden gehouden met natuurlijke, cultuurhistorische en aardkundige dragers en structuren.
Werken aan de Brabantse energietransitie
In 2050 wil de provincie 100% duurzame energie, grotendeels afkomstig uit Noord-Brabant. Als tussendoel stelt de provincie in 2030 ten minste 50% reductie van broeikasgassen ten opzichte van de uitstoot in 1990 en ten minste 50% duurzame energie. De provincie:
Werkt samen met de regio’s vanuit de regionale energiestrategie aan deze opgave.
Sluit aan bij de Nationale Energieagenda.
Wentelt de opgaven in beginsel niet af op onze omgeving (of andere provincies).
Verbindt de energieopgave met zoveel mogelijk andere maatschappelijke opgaven.
Gaat uit van meervoudig en zorgvuldig ruimtegebruik.
Wil alleen onder voorwaarden energieopwekking in het Natuurnetwerk Brabant.
Houdt rekening met de ondergrond.
Werken aan een klimaatproof Brabant
In 2050 is Brabant is klimaatbestendig en waterrobuust ingericht. Sinds 2020 handelt Brabant al klimaatbestendig en waterrobuust. In 2030 wil de provincie de eerste grote gebiedsopgaven daartoe gerealiseerd hebben. De provincie werkt aan:
Een klimaatbestendige en waterrobuuste inrichting.
De herontwikkeling van het beeklandschap.
Het ondersteunen van de ontwikkeling van nieuwe teelten en teeltsystemen.
Een robuust aantrekkelijk rivierenlandschap bij Maas en Merwede.
Werken aan de slimme netwerkstad
In 2050 functioneert het stedelijk netwerk van Brabant als één samenhangend duurzaam en concurrerend netwerk van steden en dorpen als onderdeel van de Noordwest-Europese metropool. Brabant kenmerkt zich dan door een sterke sociale cohesie, een excellent en duurzaam woon-, leef- en vestigingsklimaat met een comfortabel, betrouwbaar en multimodaal verkeers- en vervoersysteem en een uitstekende (digitale) infrastructuur. Voor 2030 streeft de provincie naar samenwerking met Brabantse partijen aan de transformatie van het bestaand bebouwd gebied van Brabant. Ondersteund door de digitale ontwikkelingen wil de provincie belangrijke stappen zetten in de richting het woon-, leef- en vestigingsklimaat in 2050 met een comfortabel, betrouwbaar en multimodaal verkeers- en vervoersysteem. Het doel is dat bewoners uit alle lagen van de bevolking zich verbonden voelen met hun omgeving en met elkaar, doordat zij meedenken en meedoen aan de veranderingen in hun omgeving.
De provincie werkt aan:
Werken aan een concurrerende, duurzame economie
In 2050 is Brabant een top kennis- en innovatieregio in Europa. Het doel is dat producten, materialen en grondstoffen op alle onderdelen van de Brabantse economie in verregaande mate worden hergebruikt. Niet- hernieuwbare hulpbronnen worden behouden. Het streven naar waarde voor mens, natuur en economie gaan hand in hand. De Brabantse economie is verregaand circulair. In 2030 werkt de provincie aan een circulaire economie door duurzamer om te gaan met de beschikbare grondstoffen en natuurlijke bronnen. Samen met maatschappelijke partners wordt het gebruik van niet vernieuwbare grondstoffen (mineraal, fossiel en metalen) verminderd volgens de landelijke afspraken met 50%.
De provincie werkt aan:
Innovatie voor een circulaire economie.
Digitalisering.
Een aantrekkelijk vestigingsklimaat.
Agrofood.
Oog voor sociale impact.
Het goede voorbeeld.
Werken aan de Brabantse energietransitie
In 2050 wil de provincie 100% duurzame energie, grotendeels afkomstig uit Noord-Brabant. Als tussendoel stelt de provincie in 2030 ten minste 50% reductie van broeikasgassen ten opzichte van de uitstoot in 1990 en ten minste 50% duurzame energie.
De provincie:
Werkt samen met de regio’s vanuit de regionale energiestrategie aan deze opgave.
Sluit aan bij de Nationale Energieagenda.
Wentelt de opgaven in beginsel niet af op onze omgeving (of andere provincies).
Verbindt de energieopgave met zoveel mogelijk andere maatschappelijke opgaven.
Gaat uit van meervoudig en zorgvuldig ruimtegebruik.
Wil alleen onder voorwaarden energieopwekking in het Natuurnetwerk Brabant.
Houdt rekening met de ondergrond.
De Stedelijke regio Breda-Tilburg (SRBT) sluit aan bij de leefwereld van onze inwoners. Het is vanuit het Daily Urban System (DUS) een logische en passende schaal om opgaven in de fysieke leefomgeving op te pakken. Het Daily Urban System verwijst naar het dagelijkse functionele gebied van mensen Het is eigenlijk het gebied of regio waar mensen in hun dagelijks leven in wonen, werken en leven. De SRTBT is bovendien een schaal die door Rijk en provincie worden gezien als een geschikte gesprekspartner; een strategisch samenwerkingsverband.
Om invulling te geven aan de regionale invulling van grote opgaven in de fysieke leefomgeving is de Ontwikkelstrategie SRBT vastgesteld. Het doel van de Ontwikkelstrategie SRBT is: leven, wonen en werken in een groene, gezonde en inclusieve stedelijke regio en het vergroten van die Brede Welvaart in een goede verdeling over stad en land.
Het verdelen van meer Brede Welvaart als een goed mozaïek over stad en land kan alleen door:
de kwaliteit van water, landschap en natuur te benutten en te versterken;
de economie toekomstbestendig te maken;
het vestigingsklimaat voor wonen en werken te verbeteren;
de ruimtelijke kwaliteit te verhogen;
samen gericht te investeren in de - voor de regio extra grote – mobiliteitstransitie.
De visie voor de stedelijke regio Breda - Tilburg is opgebouwd vanuit vijf ontwikkelprincipes:
1. Bodem- en watersystemen zijn sturend bij ruimtelijke ontwikkelingen; robuustheid van de ondergrond is leidend.
2. We realiseren, faciliteren en stimuleren interactiemilieus en innovatie; economische innovatie en verstedelijking gaan hand in hand.
3. De juiste woning op de juiste plek; werk-met-werk-maken voor een duurzame woningvoorraad.
4. Versnellen mobiliteitstransitie en vergroten nabijheid; meer mobiliteitsgelijkheid.
5. Groen en voorzieningen groeien mee met verstedelijking; verstedelijking bevordert gezondheid in SRBT.
Deze vijf ontwikkelprincipes zijn onlosmakelijk met elkaar verbonden. Ze vormen in samenhang het ambitiepakket en de beleidsinhoudelijke basis voor de strategieën en de uitwerkingen die daaruit voortkomen.
In het regionaal verband Hart van Brabant werkt de gemeente samen met regiogemeenten aan de kernagenda. In de agenda zijn de gezamenlijke opgaven en activiteiten opgesteld voor het sociaal, fysieke en economische domein. Deze kernagenda loopt tot de gemeenteraadverkiezingen van 2026. Daarna wordt een nieuwe kernagenda opgesteld. Deze zal naar verwachting minder uitvoering worden dan de huidige.
1. We bepalen de gezamenlijke inzet van de Hart van Brabantgemeenten voor de regionale omgevingsagenda (ROA).
2. Energietransitie en klimaatadaptatie: we willen in 2030 de CO₂ uitstoot met 49% verminderd hebben en in 2050 energieneutraal zijn. Dit doen we onder andere door het huidige energieverbruik terug te brengen (20% volgens REKS 1.0) en op alternatieve wijze energie op te wekken (1TWh volgens REKS 1.0). In 2050 willen we onze regio klimaatbestendig en waterrobuust hebben ingericht.
3. Grondstoffen: we werken aan een optimale afvalscheiding, verhogen de kwaliteit van de ingezamelde afvalstromen en dragen hiermee bij aan een hoogwaardige recycling. Hiermee leveren we een bijdrage aan een circulaire economie en voorkomen we dat waardevolle grondstoffen worden
verbrand.
4. Ontwikkeling stedelijke regio’s: alle gemeenten in Midden-Brabant hebben een stevige woningbouwopgave. Deze opgaven willen de gemeenten combineren met een kwaliteitsverbetering van de leefomgeving, op het vlak van leefbaarheid, gezondheid en vitaliteit.
5. Woningbouw: alle gemeenten in de regio hebben een forse woningbouwopgave.
6. Bedrijventerreinen: het ontwikkelen van bedrijventerreinen om ruimte te bieden aan bestaande bedrijven en nieuwe ruimtevragers.
7. We onderschrijven de ambities uit de Regionale Mobiliteitsagenda 2021 en zijn erop gericht de regio leefbaar en bereikbaar te houden voor de inwoner en forens, van de vervoerder tot aan de bezoeker aan onze regio. We werken aan duurzamere vormen van vervoer en dragen bij aan de
reductie van CO₂ (50% reductie in 2030 ten opzichte van 1990 en CO₂-neutraal in 2050).
8. In het landelijk gebied is de druk toegenomen en streven we naar een evenwichtige balans van functies, kwaliteiten en ontwikkelingen.
De regionale omgevingsagenda (ROA) en regionale investeringsagenda (RIA) zijn aan de kernagenda gekoppeld. De ROA maakt inzichtelijk hoe acties gezamenlijk bijdragen aan het bereiken van de ambities. De RIA koppelt publieke en private partijen aan elkaar voor het aanpakken van de opgaven.
Om te zorgen dat de gemeente Waalwijk ook in 2050 een prettige gemeente is om te wonen, werken, verblijven en leren willen we in ieder geval de kwaliteiten die we al hebben (paragraaf 2.4 Identiteit en kernkwaliteiten) behouden en versterken. Tegelijk willen we ook kwaliteiten toevoegen en moeten we inspelen op de trends en ontwikkelingen die op ons afkomen (paragraaf 2.5 Opgaven voor de toekomst).
De omgevingsvisie vormt de nadere uitwerking van de strategische visie voor de fysieke leefomgeving. Het uitgangspunt van de koers van de strategische visie is dat de gemeente Waalwijk bouwt aan de bruggen van de toekomst via drie integrale, strategische lijnen:
1. Sturen op Brede Welvaart,
2. Bouwen aan een verbonden samenleving, en
3. Benutten van de kracht van verscheidenheid.
De drie strategische lijnen staan niet op zichzelf, maar hangen met elkaar samen en versterken elkaar. Dit geldt ook voor de doelen en uitgangspunten in de verschillende thema’s in hoofdstuk 4. Gezamenlijk dragen de doelen op die thema’s bij aan een duurzame balans tussen onze natuurlijke omgeving, onze gemeenschap en onze economie en daarmee aan de Brede Welvaart van onze samenleving. Voor een gezonde en veilige toekomst is het belangrijk dat we de verschillende componenten in samenhang bekijken, dat we bruggen bouwen tussen de verschillende thema’s. De natuurlijke omgeving en netwerken zijn randvoorwaardelijk voor ontwikkelingen in onze economie en woningvoorraad en de kwaliteit van het leven van onze inwoners.
In 2050 is Waalwijk een gemeente waarin Waspik, Sprang-Capelle en Waalwijk in eigenheid verbonden zijn. We delen een rijke geschiedenis en de ligging in het diverse landschap, maar de kernen hebben ook hun eigen karakter. We omarmen deze diversiteit en versterken de kwaliteiten van elke kern. We kijken naar de kernen op zichzelf, maar ook naar de verbindingen onderling. Een goede verbinding is daarbij essentieel. Brede Welvaart is onze algemene onderlegger. Dus alle ontwikkelingen in onze gemeente dragen bij aan het welzijn van onze inwoners, zowel materieel als immaterieel. Onze kwaliteiten, zoals het prachtige landschap, natuur en erfgoed zijn nog altijd onze parels. Het gebied De Langstraat, waar onze gemeente onderdeel van is, vertelt het verhaal van onze gezamenlijke geschiedenis. De Westelijke Langstraat is een bijzonder natuurgebied dat onze kernen letterlijk met elkaar verbindt. De kernen zelf zijn aantrekkelijke en aangename groene leefomgevingen voor mens, plant en dier. Onze gemeente is een krachtig ecosysteem, met natuurlijk groen en een robuuste groenblauwe dooradering. We hebben keuzes gemaakt om onze kwaliteiten te koesteren, te beschermen, uit te dragen en te versterken.
Door woningen te bouwen waar behoefte aan is en niet meer van hetzelfde, hebben we in 2050 een evenwichtige woningvoorraad. Die kentering in het beleid hebben we rond 2025 ingezet. We zagen namelijk dat na 2030 ons inwoneraantal niet toenam door natuurlijke bevolkingsgroei (meer geboortes dan sterfte), maar doordat mensen van buiten de gemeente hier kwamen wonen. We hebben deze groei benut als vliegwiel om ook andere ambities te realiseren. De groei in aantallen is geen doel op zich, maar moet bijdragen aan het welzijn, oftewel de Brede Welvaart van onze inwoners, ondernemers, werknemers, organisaties, verenigingen en bezoekers. Daarbij is het van belang dat we op alle fronten meegroeien, zodat het voorzieningenniveau passend blijft bij de behoefte. Door de groei voornamelijk binnenstedelijk op te vangen, hebben we onze groene identiteit weten te behouden.
In 2050 werken we volgens een sociale, coöperatieve aanpak als het gaat om zorg, maatschappelijke voorzieningen en onderwijs. Inwoners en organisaties werken samen met de gemeente. Dat is ook de essentie van Samen Redzaam. De sociale en fysieke leefomgeving versterken elkaar op dit punt. Onze economie draagt hieraan bij. Onze economie bestaat nu uit een rijk palet aan sectoren die sterke wortels hebben in de gemeente. Doordat we in 2025 zijn gestart met Brede Welvaart als algemene onderlegger, hebben we toen de basis kunnen leggen voor het welzijn van onze toekomstige generaties.
Tot 2050 hebben we flink geïnvesteerd in duurzame mobiliteit. Ons mobiliteitssysteem was en blijft een randvoorwaarde voor andere ontwikkelingen. In alle kernen hebben we de bodem (inclusief het bodemleven), het groen en water kwalitatief en kwantitatief verbeterd, zodat we klimaatbestendig zijn en profiteren van een hoge biodiversiteit. Ook dit draagt bij aan de Brede Welvaart, gezondheid en het welbevinden. Figuur 9 laat zien hoe de gemeente Waalwijk er in 2050 uit kan zien.

Twee hoofdkeuzes, vier ontwikkelrichtingen
Uit de inventarisatie en analyse van bestaand beleid en gesprekken met raad, college, de ambtelijke organisatie en de samenleving blijkt dat Waalwijk veel kwaliteiten heeft om trots op te zijn. Tegelijkertijd spelen trends, ontwikkelingen en opgaven die de kwaliteiten in gevaar kunnen brengen. Er is al veel beleid en op veel terreinen wijzen de neuzen dezelfde kant op. Tegelijkertijd zijn er ook grote verschillen in de overtuigingen van mensen hoe problemen moeten worden opgelost.
Met behulp van ontwikkelrichtingen zijn de verschillen in beeld gebracht en is onderzocht wat de gevolgen zijn voor de omgeving. Er zijn vier ontwikkelrichtingen opgesteld, op basis van twee hoofdkeuzes: de mate van groei en de invulling aan deze groeiopgave. Zetten we in op de geplande groei van 7.500 extra inwoners of zien we kansen voor een schaalsprong, van niet alleen meer mensen (25.000 extra inwoners) maar ook een groei van de economie? Zetten we de lijn van ons bestaande beleid voort of gaan we op een nog vernieuwender manier te werk?
Naar één ontwikkelrichting: het gesprek over de toekomst van de gemeente Waalwijk
De vier ontwikkelrichtingen hebben we vervolgens gebruikt om met elkaar in gesprek te gaan over de toekomst van de gemeente Waalwijk, intern (raad, college en ambtelijk), maar ook met de samenleving. Inwoners, organisaties en experts hebben meegedacht en hun ideeën en voorkeuren voor de toekomstige ontwikkeling van de gemeente aangegeven (zie participatieverslag, bijlage II). Op veel vlakken is een voorkeur uitgesproken voor vernieuwender beleid. Er werd gezien dat gematigde groei kan helpen om ook andere ambities te realiseren. Hierbij werd gevraagd om eerst te investeren in de meest urgente zaken, zoals mobiliteit en verblijfsklimaat. Deze inzichten hebben geholpen bij het opstellen van de koers voor de gemeente Waalwijk in 2050.
In hoofdstuk 3 De koers voor de toekomst van de gemeente Waalwijk, hebben we de kern van onze visie op de toekomst van de gemeente bepaald.
Die hebben we uitgewerkt in figuur 10 met daarin:
De drie strategische kernambities in het midden. Deze zijn het uitgangspunt in alles wat we doen.
De doelen uit de omgevingsvisie in de groene ring daaromheen. Als deze in balans zijn, is sprake van een duurzame omgeving, die bijdraagt aan de strategische kernambities.
In de ‘buitenring’ de negen ambities of thema’s. Een thema draagt niet uitsluitend bij aan één van de doelen, maar kan aan meerdere doelen bijdragen.
Soms zal een thema wel meer raakvlakken hebben met het ene doel dan met het andere. In figuur 22 heeft de buitenring daarom een startpositie, maar kan die als het ware flexibel draaien rondom de binnenring van de doelen. Voor Samen leven, samen bewegen is een passend woonaanbod en vitale kernen van belang, maar ook een gezonde omgeving waarin water- en bodem de basis zijn en we biodiverse en beleefbare natuur en groen hebben waar onze inwoners elkaar kunnen ontmoeten, bewegen en spelen.

In deze omgevingsvisie worden talrijke ambities en doelen beschreven. In nieuwe ontwikkelingen komen alle ruimteclaims en financiële consequenties om ze daadwerkelijk te realiseren samen. In omvangrijke ontwikkelingen kunnen de ambities soms letterlijk gestapeld worden, door bijvoorbeeld een gebouwde parkeervoorziening te realiseren of een grote daktuin aan te leggen. We gaan daarom zoveel mogelijk op zoek naar combinaties van ambities en meervoudig ruimtegebruik. In kleinere projecten of ontwikkelingen is dat soms niet mogelijk. Dit vraagt per project om maatwerk om tot een zo optimaal mogelijk resultaat te komen, waarbij alle belangen integraal afgewogen worden en we zoveel mogelijk werken aan een bijdrage aan al onze ambities.
Een gezonde en toekomstbestendige leefomgeving is de voorwaarde voor Brede Welvaart, sterke gemeenschappen en de kracht van verscheidenheid. Door zorgvuldig om te gaan met onze natuurlijke systemen, zoals water, bodem en groen, dragen we bij aan de kwaliteit van leven van alle inwoners. Een klimaatbestendige en natuurrijke omgeving versterkt niet alleen de gezondheid, veiligheid en het welzijn van onze inwoners, maar biedt ook ruimte voor ontspanning, bewegen en ontmoeting.
Daarnaast brengt een duurzame inrichting van onze leefomgeving mensen samen. Groene en waterrijke plekken nodigen uit tot contact, versterken de sociale samenhang en maken wijken en kernen prettiger, sociaal veiliger en leefbaarder. Door in te zetten op een veerkrachtig landschap benutten we de diversiteit binnen onze gemeente: van stedelijke dynamiek tot rustige, natuurrijke gebieden.
De leefomgeving moet duurzaam en toekomstbestendig zijn. Door hernieuwbare energie te benutten, klimaatadaptieve maatregelen toe te passen en circulair om te gaan met grondstoffen, verkleinen we onze ecologische voetafdruk en versterken we de veerkracht van onze gemeente. Zo werken we aan Brede Welvaart voor onze inwoners nu en voor toekomstige generaties.
Inleiding
De gemeente Waalwijk ligt op de grens van het rivierengebied in het noorden en de zandgronden in het zuiden. Daardoor is in onze gemeente zowel klei-, zand- als veengrond te vinden. In het noorden bestaat de bodem uit klei, mede door de rivieren Bergsche Maas en Oude Maasje. Dit loopt over in veengronden rondom de Westelijke Langstraat waar natte en droge gebieden elkaar afwisselen. In het zuiden hebben we drogere zandgronden. In de toekomst willen we deze verschillende bodemtypes en het watersysteem sturend laten in onze keuzes. We zullen de mogelijkheden beter moeten benutten door het historische landschap en het watersysteem mee te nemen, door beter gebruik te maken van de ruimte en ons beter bestand te maken tegen klimaatverandering.
Water en bodem sturend
Ons water- en bodemsysteem is de basis waarop we leven. Het is belangrijk de capaciteit van ons water- en bodemsysteem als uitgangspunt te nemen. Dat betekent dat bij toekomstige nieuwe ontwikkelingen het water- en bodemsysteem sturend is in onze keuzes. In eerste instantie in de keuze voor nieuwe geschikte bouwlocaties. Wanneer vanwege een zwaarwegend maatschappelijk belang een ontwikkeling op een locatie nodig is die niet optimaal is vanuit het perspectief van het water- en/of bodemsysteem, dan zijn water en bodem sturend voor de wijze waarop we een ontwikkeling vervolgens inpassen. Er kunnen met de wijze van inpassen namelijk ook juist kansen benut worden, die ten gunste komen aan de kwaliteit van het water, de bodem, ecologie en de landschappelijke inrichting. Hiermee voorkomen we verzakking en wateroverlast. Risico’s signaleren we vroegtijdig. Hierbij hanteren we volgende uitgangspunten:
1. Niet afwentelen: we nemen in deze tijd en binnen ons grondgebied verantwoordelijkheid voor een gezond water- en bodemsysteem. We schuiven gevolgen niet af op toekomstige generaties, andere gebieden of functies.
2. Voorbereiden op extremen: door klimaatveranderingen zullen we vaker te maken hebben met extreme weersituaties. We bereiden ons hierop voor door bij de inrichting van onze leefomgeving rekening te houden met extreme neerslag, periodes van hitte en droogte.
3. Water en bodem integraal aanpakken: we kijken in samenhang naar wateroverlast, droogte en de bodem door te werken aan een betere sponswerking van de bodem en bodemleven waardoor kwaliteit van water en de bodem verbetert.
4. Werken aan meerlaagsveiligheid: werken aan onze veiligheid stopt niet bij de dijken en keringen. We richten de leefomgeving in zodat er ruimte is om wateroverlast op te vangen en schade te beperken.
5. Bodemverstoring beperken: we voeren zo min mogelijk grondbewerking uit en dekken de bodem zo min mogelijk af met kunstmatige materialen. Nieuwe verontreiniging staan we niet toe.
6. We herstellen ecosysteemprocessen door ze opnieuw te introduceren en ze te integreren in de inrichting en het beheer van onze leefomgeving.
7. Historische elementen in het landschap benutten we voor het oplossen van klimaatvraagstukken. Bijvoorbeeld door het herstellen van historische waterlopen.
Beschermen van het watersysteem voor gezonde natuurgebieden
Onze gemeente heeft direct te maken met de invloed van twee Natura 2000-gebieden, te weten: Westelijke Langstraat en Loonse en Drunense Duinen en Leemkuilen. Om de doelen voor deze twee natuurgebieden te bereiken heeft de provincie Noord-Brabant de Aanpak Landelijk Gebied (ALG) vastgesteld en werken we regionaal samen met gebiedspartners die te maken hebben met deze twee gebieden in een zogenoemde Groenblauwe Gebiedsgerichte Aanpak (GGA).
De ALG richt zich op:
De uitvoering van opgaven in de GGA-gebieden. Hier is het herstel van de stikstofgevoelige Natura 2000-gebieden het meest noodzakelijk.
Versterking van de uitvoeringskracht om de wettelijke doelen voor natuur, water en bodem te realiseren.
Keuzes en prioriteiten stellen door keuzes te maken in uitvoeringsprojecten.
In het kader van de ALG wordt binnen de GGA’s gekeken naar het treffen van concrete maatregelen die bijdragen aan natuurherstel. Belangrijk daarbij is dat maatregelen geen onevenredige effecten met zich meebrengen voor inwoners van onze gemeente, met name in het stedelijk gebied. In GGA Westelijke Langstraat werken we aan een hogere en stabiele waterstand, waardoor er meer schoon kwelwater in het gebied blijft. Hierdoor wijzigen de omstandigheden bij landbouwgrond, woningen en wegen doordat de ontwateringsdiepte kan wijzigen.
In GGA Loonse en Drunense Duinen en Leemkuilen wordt onder andere gewerkt aan vernatting van het gebied en het verbeteren van de waterkwaliteit. Bij de Loonse en Drunense Duinen en Leemkuilen is er via het grondwater een link naar het (grond)waterbeheer van de gemeente Waalwijk, zoals watergangen van Meerdijk en Zanddonk die water ontvangen uit de surfvijver via een pomp. Als de waterstand in de surfvijver te ver daalt (meestal in de zomer), mag er niet meer worden gepompt, omdat dit nadelige gevolgen heeft voor de Drunense Duinen.
Voor beide GGA-gebieden hanteren we een minimale ontwateringsdiepte zodat de veiligheid van woningen en wegen gewaarborgd blijft. We werken aan een gezamenlijke aanpak door samen de beste oplossing te vinden voor een stabiele waterstand.
Zie voor een nadere toelichting van de GGA’s paragraaf 4.2.3 Biodiverse en beleefbare natuur en groen, subparagraaf Waardevolle natuurgebieden beschermen.
Schoon en veilig water
Schoon water uit de kraan voelt vanzelfsprekend, maar dat is het zeker niet. De vraag naar drinkwater neemt toe en hiermee kunnen mogelijk tekorten ontstaan. We beschermen daarom ons waterwingebied. Wij kijken verder dan de plek waar het water de gemeentegrens passeert. Als er door ons handelen een vervolgeffect te verwachten is buiten de gemeentegrens, dan nemen we dit mee in onze overwegingen. Andersom zorgen we dat we goed op de hoogte blijven van plannen die bovenstrooms van Waalwijk plaatsvinden en effect kunnen hebben op de waterhuishouding in onze gemeente. Deze afspraken staan in het Integraal Waterplan Waalwijk 2025-2027.
Infiltreren is ons uitgangspunt. Hierbij benutten we de zandgronden zo goed als mogelijk. Wanneer we een reconstructie of herontwikkeling uitvoeren, infiltreren we zoveel mogelijk zodat we het grondwater zo goed mogelijk aanvullen. Tevens stimuleren we infiltratie bij de particuliere terreinen. Negatieve effecten van hogere waterstanden op gebouwen (zoals ondergelopen kelders of aantasting van funderingen) willen we zoveel mogelijk voorkomen. Waar infiltreren niet mogelijk is, voeren we het regenwater vertraagd af. Daarnaast nemen we de drinkwaterbelangen en de weging van het waterbelang mee in de toetsing van initiatieven.
In het Integraal Waterplan Waalwijk 2025-2027 beschrijven we onze aanpak voor het doelmatig scheiden van waterstromen (vuilwater en hemelwater) bij rioolvervanging. Tijdens zo’n rioolvervanging koppelen we zo veel mogelijk regenwater af van het gemengd rioolstelsel. Daardoor ontstaat er meer ruimte in het riool voor het vuilwater en het restant van aangesloten regenwater. Het effect van deze aanpak is dat riool overstorten minder vaak en een kleinere hoeveelheid rioolwater op onze watergangen lozen. Dit komt de kwaliteit van het oppervlaktewater ten goede. Het uiteindelijke doel is om het overstorten geheel te voorkomen. Bovendien beperken we de hoeveelheid (afval)water dat naar de centrale rioolwaterzuiveringsinrichting moet worden getransporteerd.
Droge voeten door meer ruimte te bieden aan het water
De ligging aan de Bergsche Maas maakt ons kwetsbaar voor overstromingen. Waterschap Brabantse Delta, de provincie Noord-Brabant en bewoners hebben daarom de afgelopen jaren geïnvesteerd in het veilig maken van de Overdiepse Polder. Er is meer ruimte gemaakt voor het water. Op die manier worden de risico’s op overstroming beperkt. Bij extreem hoge waterstanden kan de Bergsche Maas namelijk een deel van het overtollige water kwijt in deze polder. We blijven in het overstromingsgebied van de Bergsche Maas (waaronder de Overdiepse polder) tot 2050 samenwerken aan integraal riviermanagement en dijkverbetering.
In onze gebouwde omgeving maken we ook meer ruimte voor water. Bijvoorbeeld door het vervangen van tegels door groen. We werken aan het kwantitatief en kwalitatief verbeteren van het groen en water zodat we klimaatbestendig zijn en profiteren van een hoge biodiversiteit. Dit draagt bij aan de Brede Welvaart doordat het de gezondheid en het welbevinden van onze inwoners verhoogt. Zij leven hierdoor in een veilige omgeving waar hitte, droogte en wateroverlast worden beperkt.
Slim omgaan met de ondergrond
Het wordt steeds drukker in de ondergrond door de energietransitie en klimaatadaptatie. Waar mogelijk zullen gemengde rioolsystemen vervangen worden door gescheiden stelsels waarbij vuil water en regenwater apart worden afgevoerd. Dat vraagt om meer ruimte in de ondergrond. We kijken hoe we slim deze verschillende opgaven kunnen combineren zodat het onder en boven de grond veilig is. Klimaatbestendig werken is het uitgangspunt. Dat geldt zowel voor de keuze waar we ingrepen doen in de ondergrond als voor de manier waarop we dat doen.
We kijken per gebied waar we het regenwater kunnen infiltreren en hoe we een hemelwaterstructuur kunnen aanleggen om zoveel als mogelijk af te koppelen. Dit beschrijven we in paragraaf 4.2.4 Duurzaam en klimaatrobuust.
Middels inrichting en beheer gaan we bodemprocessen beter benutten om extra koolstof vast te leggen en we brengen alternatieven voor koolstofvastlegging in beeld (bijvoorbeeld met drasland en biochar).
Nieuwe taken vragen om nieuw beleid
Met de inwerkingtreding van de Omgevingswet zijn nieuwe taken naar de gemeente gekomen waar nog geen beleid voor is. Het gaat bijvoorbeeld om graven in sterk verontreinigde grond en voormalige stortplaatsen. Ook zijn er diverse thema’s die gerelateerd zijn aan bodem waarover nog keuzes gemaakt moeten worden (zoals bijvoorbeeld ontplofbare oorlogsresten, vitale bodems en bodemenergie).
Samenvatting speerpunten
Wij nemen het water- en bodemsysteem als uitgangspunt bij ruimtelijke ontwikkelingen om verzakking en wateroverlast te voorkomen en de natuurlijke balans te behouden.
Wij anticiperen op extreme weersomstandigheden zoals hitte, droogte en hevige neerslag door water en bodem integraal aan te pakken en de sponswerking van de bodem te verbeteren.
Wij werken regionaal samen met onder andere de provincie, waterschappen en natuurorganisaties aan een Groenblauwe Gebiedsgerichte Aanpak (GGA). Voor beide GGA-gebieden streven we naar de beste oplossing voor het behouden van de gebieden, deze te versterken tegen verdroging en vervuiling en te zorgen voor een stabiele waterstand t.b.v. de natuur, maar we hanteren daarbij een minimale ontwateringsdiepte zodat de veiligheid van woningen en wegen gewaarborgd blijft.
Wij bevorderen infiltratie en beperken wateroverlast. Bij overstromingsrisico’s maken wij ruimte voor water, zoals in de Overdiepse Polder.
Wij beschermen de drinkwatervoorziening door infiltratie te stimuleren, waterverbruik te verminderen en de kwaliteit van waterlopen te verbeteren, zoals vastgelegd in het Integraal Waterplan Waalwijk 2025-2027.
Wij streven ernaar dat hemelwater zo veel mogelijk wordt verwerkt op het perceel waar het valt en wordt geïnfiltreerd in de bodem.
Wij benutten de ondergrond efficiënt voor waterberging, energievoorziening en klimaatadaptatie en vervangen gemengde rioolsystemen door gescheiden systemen.
Wij versterken de biodiversiteit (in de bodem en boven de grond) en zorgen voor meer groen en water in de stedelijke omgeving om hittestress en wateroverlast te verminderen en de leefbaarheid te vergroten.
Wij ontwikkelen nieuw beleid voor taken zoals bodemverontreiniging, ontplofbare oorlogsresten en bodemenergie en bepalen of dit in de omgevingsvisie of een uitvoeringsprogramma wordt opgenomen.
We stimuleren de eigenaar om tegels te vervangen door groen en om hemelwater af te koppelen van de riolering en op eigen perceel te verwerken.
Wij stellen duidelijke normen voor waterberging (60 mm bij nieuwbouw) en drooglegging (70 cm) en verankeren deze eisen in beleid en regelgeving.
|
Inleiding
Voor onze inwoners willen we de beleving van groen dichterbij brengen, want dat draagt bij aan de fysieke en mentale gezondheid van onze inwoners. Groen versterkt ons immuunsysteem, levert een prettig uitzicht op, faciliteert rust, ontspanning en positieve emoties. Een groene leefomgeving stimuleert de fysieke, cognitieve, sociale en emotionele ontwikkeling. Het stimuleert dat mensen naar buiten gaan en daar spelen, bewegen, elkaar ontmoeten (wat sociale interactie bevordert en eenzaamheid tegengaat), de natuur beleven en zich prettig en veilig voelen. Dit draagt bij aan Brede Welvaart.
De mens is onlosmakelijk verbonden met de natuur en heeft deze nodig om te bestaan. De natuur voorziet ons van zuurstof, voedsel, water, een stabiel klimaat en talloze andere levensnoodzakelijke elementen. Tegelijkertijd heeft de natuur de mens niet nodig om te overleven; zij functioneert zelfstandig en in balans, indien er geen menselijke tussenkomst is. Dit besef onderstreept het belang van zorg en respect voor onze natuurlijke omgeving.
In onze gemeente willen we toe naar een basis waarbij mensen en natuur samenleven en sprake is van voldoende biodiversiteit, in zowel natuurgebieden, het buitengebied als in (hoog)stedelijk gebied. Zo kan onze gemeente uitgroeien tot een krachtig ecosysteem met natuurlijk groen en een robuuste groenblauwe dooradering. Dit komt niet alleen de natuur ten goede, maar ook de leefbaarheid en gezondheid van onze inwoners.
Waardevolle natuurgebieden beschermen
De beschermde natuurgebieden in en rond de gemeente Waalwijk, zoals de Westelijke Langstraat, de Loonse en Drunense Duinen en Leemkuilen en het Eendennest blijven we beschermen. Dat doen we samen met de provincie en andere gebiedspartners in de Groenblauwe Gebiedsgerichte Aanpak (GGA) door de randzones rondom Natura 2000-gebieden te herstellen en versterken en door de gebieden van Natuurnetwerk Brabant te verbinden. De aan te pakken opgaven zijn onder andere het tegengaan van versnippering van natuur, stikstofreductie en het verbeteren van de natuurkwaliteit.
Via een Groenblauwe Gebiedsgerichte Aanpak (GGA) voor ‘Westelijke Langstraat’ en ‘Loonse en Drunense Duinen en Leemkuilen’ werken we regionaal samen aan een integrale opgave voor deze Natura 2000-gebieden. Dat betekent invulling geven aan de wettelijke opgaven voor natuur en water en tegelijk werken aan een goed landbouwperspectief, de woningbouwopgave en de energietransitie. De provincie Noord-Brabant is trekker van deze samenwerking. Daarnaast werken we samen met gebiedspartners, zoals Waterschap Brabantse Delta, Staatsbosbeheer, ZLTO Langstraat, Agrarische Natuurvereniging Slagenland en gemeente Loon op Zand. Gezamenlijk werken we aan de volgende opgaven:
Natuurherstel van het Natura 2000-gebied.
Afronden NatuurNetwerk Brabant.
Optimaliseren van de waterhuishouding en het herstel van natuurlijke kwelstromen.
Verbeteren van de waterkwaliteit en behalen van de KaderRichtlijnWater-doelen.
Cultuurhistorch waardevol landschap behouden (slagenlandschap).
Perspectief voor de blijvende boeren in de overgangszones om te kunnen blijven boeren, in evenwicht met de omgeving.
Als gemeente geven we al op verschillende manieren invulling aan de opgaven van de GGA. In Landgoed Driessen maken we ruimte voor infiltratie zodat het kwelwater in het Labbegat uitkomt. Daarnaast zetten we ons als gemeente samen met het waterschap in voor het realiseren van schoon oppervlaktewater. Dit blijven we op lange termijn doen door doelmatig hemelwater af te koppelen van de riolering. Dit is vastgelegd in het Integraal Waterplan Waalwijk 2025-2027.
De omslag naar duurzame vormen van landbouw moeten we als eerste maken met de agrariërs rondom de Westelijke Langstraat. Als gemeente staan we positief tegenover agrariërs die hun grond willen inzetten voor een andere functie die de natuurwaarde van de Westelijke Langstraat verhoogt, zoals natuurbeheer. We faciliteren en stimuleren de mogelijkheden om agrariërs hiervoor te vergoeden in samenwerking met de provincie (groene en blauwe diensten), zoals met de Stimuleringsregeling Landschap (Stila).
De natuurwaarden in de Westelijke Langstraat en Loonse en Drunense Duinen en Leemkuilen staat onder druk van toenemende recreatie. We willen deze gebieden ontzien. Dat doen we door andere gebieden aantrekkelijk en geschikter te maken om te recreëren, zoals de Overdiepse Polder en de zandgronden in het zuidelijke deel van de gemeente. Hier liggen kansen voor kleinschalige recreatie als verbreding van de landbouw. Een goede (fiets-)verbinding tussen deze gebieden en de kernen is daarbij van belang. In Het Hoefsven werken we met een zonering om de natuur te beschermen. In het noorden is ruimte voor actieve recreatie en tegen de Loonse Drunense Duinen juist rust en natuur. Ook het stedelijk gebied en de woonwijken zelf gaan we meer geschikt maken om de functie van groene verblijfsruimte te vervullen. Hierdoor wordt het dichter bij huis mogelijk om te recreëren en tot rust te komen in een groene omgeving.
In de gemeente beschikken we over waardevolle groengebieden (dit is onderdeel van de groene hoofdstructuur van de gemeente) die we willen beschermen om hun ecologische waarden, maar waar we ook mogelijkheden blijven zien voor het beleven van het groen en de natuur door de mens. Dat zijn onder andere het Wandelpark, Hoefsvengebied, De Vest, Halvezolenpark, de Muzenkamer, het Groene Venster en Sprangse Duin. Per gebied dient een goede afweging te worden gemaakt over de balans tussen beschermen en toevoegen van groen en beleven door de mens. Naast de waardevolle groengebieden, bestaat de groene hoofdstructuur uit lijnvormige elementen. Dit zijn alle gemeentelijke bomenrijen, bomenlanen, hagen en andere groenvakken in de als groene hoofdstructuur aangemerkte straten en wegen. Onderscheid wordt gemaakt tussen bestaande groene hoofdstructuur en te ontwikkelen of (verder) te versterken groene hoofdstructuur (zie figuur 11).
Ecologische verbindingszones
Ecologische verbindingszones (EVZ’s) zijn essentieel voor het behoud en herstel van biodiversiteit. Ze zorgen ervoor dat dieren en planten zich veilig kunnen verplaatsen tussen natuurgebieden, wat bijdraagt aan gezonde ecosystemen. In de gemeente Waalwijk zijn al diverse EVZ’s gerealiseerd, waaronder langs de Bergsche Maas, de Sprangsche Sloot en het Afwateringskanaal. Deze zones versterken de natuurlijke leefomgeving en verhogen de ecologische waarde van onze gemeente.
Om de biodiversiteit verder te ondersteunen, werken we samen met de provincie Noord-Brabant aan de ontwikkeling van nieuwe verbindingszones. Belangrijke projecten zijn de verbinding tussen de Westelijke Langstraat en natuurgebied Eendennest, evenals een corridor naar ’s-Gravenmoer. Deze uitbreidingen zorgen voor een robuuster netwerk, waarin flora en fauna beter beschermd blijven. Door het behouden en uitbreiden van EVZ’s versterken we de natuur én de leefbaarheid in onze gemeente.

Verhogen van de kwantiteit en kwaliteit van het groen
Niet alleen in het buitengebied, maar ook in de kernen verbeteren we het groen, zowel kwantitatief als kwalitatief. Kwantitatief betekent dat we meer groen aanleggen. Het liefst zien we groen in alle straten, want iedereen heeft recht op groen. We maken ook meer verbindingen met het buitengebied. Door nieuwe woningen vooral binnenstedelijk te bouwen, behouden we het landschappelijke groen in het buitengebied. Daarnaast draagt meer groen bij aan een klimaatbestendige leefomgeving, wat de nadelige klimaateffecten, zoals hitte-, droogte- en wateroverlast vermindert en de gezondheid van de leefomgeving verhoogt. Kwalitatief zorgen we met keuzes over bijvoorbeeld beplanting en ecologisch beheer voor het verhogen van de biodiversiteit.
Door op verschillende vlakken aan groenverbetering te werken zorgen we dat de gemeente kan uitgroeien tot een krachtig ecosysteem met natuurlijk groen en een robuuste groenblauwe dooradering. We stimuleren onze inwoners en bedrijven om te vergroenen. Daarnaast werken we met groennormen per project en niet per gebied. Zo zorgen we dat er overal voldoende groen aanwezig is.
De groennormen zijn opgesteld ter behoud en versterking van het groen en de biodiversiteit. Deze zijn vastgelegd in de Richtlijn Groen en Biodiversiteit. De normen zijn afhankelijk van het type gebied en/of het type project. De normen betreffen minimale eisen tot 2030. We werken aan een toename van het groen in de woonomgeving met 10% en vergroten van de biodiversiteit met 5% in 2030 ten opzichte van 2019. Iedere inwoner moet binnen 300 meter toegang hebben tot een groenvoorziening. In 2019 zijn klimaatstresstesten uitgevoerd die inzicht gaven in gebieden die onvoldoende klimaatbestendig waren. We blijven ons inzetten om de urgente gebieden klimaatbestendig te maken.
De stresstest moet elke zes jaar geactualiseerd worden. Deze zullen we dus komende tijd gaan vernieuwen. Mochten hier zaken uit naar voren komen, dan zullen we deze acties meenemen en hier in toekomstige planvorming rekening mee houden.
Voor de periode na 2030 wordt gestreefd naar een verdere toename van groen en biodiversiteit. In 2050 heeft de gemeente een groene woonomgeving met in elke straat bomen (er is een bedekking door boomkronen van minimaal 30%). We hebben voor mens en dier aantrekkelijke parken en alle gebouwen hebben klimplanten en dakgroen. Er is een zichtbaar hoge biodiversiteit, wat betekent dat inwoners dagelijks meermaals in aanraking komen met verschillende soorten wilde kruiden en wilde dieren als vogels en insecten.
Grote bomen dragen in hogere mate dan kleine bomen bij aan klimaatadaptatie en zijn belangrijk voor de biodiversiteit. Ze bieden meer schaduw en verkoeling, kunnen meer fijnstof afvangen en water en CO₂ opnemen en zijn goed voor de biodiversiteit omdat er meer dieren in een grote boom kunnen leven. Oude en volwassen bomen behouden we daarom zoveel mogelijk. Hierbij hanteren we een vergunningsplicht voor kappen van in beleid aangewezen bomen. Waar behoud niet mogelijk is zorgen we voor herplanting door te werken met een herplantplicht voor het kappen van (vergunningsplichte) bomen. Voor het duurzaam behoud van bomen moet worden gewerkt volgens het Handboek Bomen (van het Norminstituut Bomen). Dat geldt zowel voor het bestaande openbaar gebied als ontwikkelingsgebieden die in de toekomst openbaar worden.
Daarnaast draagt meer groen bij aan een klimaatbestendige leefomgeving, wat de nadelige klimaateffecten, zoals hitte-, droogte- en wateroverlast, vermindert en de gezondheid van de leefomgeving verhoogt.
Groen is om ons heen
De beleving van groen brengen we niet alleen dichterbij de inwoners door meer groen toe te voegen. We communiceren ook duidelijk over het groen en trekken samen met partners op. We maken ons groen meer beleefbaar, door natuurwaarde toe te voegen, ook in de woonstraten.
In de communicatie maken we helder wat we als gemeente doen in het groen en waarom. Soms zijn natuurinclusieve maatregelen, zoals maaibeleid of bepaald onderhoud, niet duidelijk. Dit willen we beter uitleggen. Zo weten inwoners wat we doen en waarom we dit doen en kunnen we hen inspireren om zelf aan de slag te gaan met groen.
Werken aan een omgeving die functioneert als één groen en krachtig ecosysteem kan de gemeente namelijk niet alleen. Daarvoor zijn veel investeringen nodig, in zowel de aanleg als het beheer. Samenwerking met inwoners, organisaties en bedrijven is daarom essentieel. We stimuleren duurzame en biodiverse keuzes, zoals met het NK tegelwippen of tips voor vergroening.
Met natuureducatie zorgen we voor meer begrip over en draagvlak voor natuurinclusieve maatregelen én maken we de natuur direct meer beleefbaar. Natuureducatie heeft zowel in recreatiegebieden als in de reguliere woonstraten toegevoegde waarde. Ook dicht bij huis, in de woonstraten, zetten we in op vernatuurlijking en creëren hier begrip voor. Mensen waren gewend om wilde planten als onkruid te zien en deze te willen bestrijden. Nu maken we in inrichting en beheer juist bewust plaats in onze woonomgeving voor deze wilde planten en voor de daarbij horende wilde dieren, zoals vogels en insecten. We leren inwoners met een andere blik naar stadsnatuur te kijken, zodat zij gaan ervaren dat zij deel uitmaken van het stedelijk ecosysteem en zodat zij wilde kruiden, wilde dieren en ook natuurlijke processen positief gaan beleven en waarderen.
Samenvatting speerpunten
Wij zorgen voor meer groen in de leefomgeving, omdat dit bijdraagt aan gezondheid, ontspanning, sociale interactie en biodiversiteit.
Wij behouden en versterken natuurgebieden zoals de Westelijke Langstraat, Loonse en Drunense en Duinen en Leemkuilen en het Eendennest, in samenwerking met partners zoals de provincie en waterschappen, onder andere via de Groenblauwe Gebiedsgerichte Aanpak.
Wij versterken de biodiversiteit door bestaande en nieuwe ecologische verbindingszones aan te leggen, zoals tussen de Westelijke Langstraat en het Eendennest.
Wij ondersteunen agrariërs bij de transitie naar duurzame vormen van landbouw en onderzoeken vergoedingsmogelijkheden voor natuurbeheer.
Wij maken recreatie mogelijk zonder natuurgebieden te overbelasten, door alternatieve recreatiegebieden aantrekkelijker te maken.
Wij verhogen de kwaliteit en kwantiteit van groen in kernen en wijken en hanteren duidelijke groennormen bij herinrichting en nieuwbouw.
Wij werken aan een klimaatbestendige gemeente door groen en wateroppervlak te vergroten, bomen te behouden en hittestress en wateroverlast te verminderen.
Wij informeren en inspireren inwoners om zelf bij te dragen aan vergroening door educatie, communicatie en initiatieven zoals het NK tegelwippen.
Wij zetten in op vernatuurlijking, ook in de woonstraten, om natuurbeleving dicht bij huis te brengen.
Inleiding
De gemeente Waalwijk zet zich in voor een duurzame toekomst met schone energie, een klimaatrobuuste en biodiverse leefomgeving en een verantwoorde consumptie en productie. We stimuleren hernieuwbare energie, versterken natuur en waterbeheer en bevorderen circulaire economie. Zo werken we samen aan een veerkrachtige, groene en leefbare gemeente voor huidige en toekomstige generaties.
Energie
In 2050 is de gemeente Waalwijk klimaatneutraal en klimaatbestendig. Concreet betekent dit dat we ernaar streven dat onze CO₂-uitstoot in 2030 met 49% is beperkt ten opzichte van het niveau van 1990 en in 2050 onze CO₂-uitstoot nagenoeg nul is of dat de nog aanwezige uitstoot is gecompenseerd.
REKS
Het terugbrengen van onze CO₂-uitstoot doen we op verschillende manieren. Met de regio Hart van Brabant werken we aan de Regionale Energie- en Klimaatstrategie Hart van Brabant. Dat doen we op de volgende manieren:
1. We besparen energie door gebouwen energiezuinig te maken. Bijvoorbeeld door te isoleren, eventueel middels dak- en gevelgroen. Zo gaat geen kostbare warmte en energie verloren.
2. We wekken duurzame energie op zodat we minder afhankelijk zijn van fossiele brandstoffen. Dat doen we door energie op te wekken uit wind en zon.
3. We verwarmen duurzaam door gebruik te maken van restwarmte uit de industrie, het water of bodemwarmte.
4. We passen onze omgeving aan zodat de gevolgen van klimaatverandering beter worden opvangen. Dat combineren we met de opwekking van energie.
5. Samen moeten we de omslag naar een klimaatneutraal en klimaatbestendig Waalwijk maken. Inwoners, organisaties en bedrijven mogen meedenken en we zorgen dat iedereen kan meeprofiteren.
Energie besparen
In de gebouwde omgeving werken we aan het verhogen van het energielabel. Dit energielabel laat zien hoe energiezuinig een woning is. Hoe hoger het label, hoe minder energie verloren gaat. Tot 2030 zorgen we dat alle gemeentelijke gebouwen een energielabel hebben van tenminste C. Dat doen we onder andere door het beter isoleren van onze gebouwen.
We staan positief tegenover ontwikkelingen van particuliere woningeigenaren om hun woning te verduurzamen. Samen met woningcorporaties gaan we in gesprek over het verduurzamen van hun woningen en met bedrijven kijken we welke stappen zij kunnen zetten. We werken samen met het Regionale Energieloket. Bij hen kunnen onze inwoners terecht voor vragen over het verduurzamen van hun woning.
Als gemeente stellen we de komende tijd beleid op om het toekomstige duurzame energiesysteem van de gemeente vorm te kunnen geven. We houden rekening met beschikbare energiebronnen, het verwachte energieverbruik tot 2050 en mogelijke besparingen en de provinciale en landelijke aanpak. Het beleid (wellicht in de vorm van een programma onder de Omgevingswet) zal worden opgebouwd uit een aantal onderdelen: het (verplichte) warmteprogramma, een visie op het energiesysteem van de toekomst en de grootschalig opwek met als tijdshorizon 2050.
Er wordt op nationaal niveau gewerkt aan een Wet gemeentelijke instrumenten warmtetransitie. Deze wet voegt aan de Omgevingswet, de Gaswet en de Warmtewet instrumenten toe waardoor gemeenten (lokale) regels kunnen opstellen om de warmtetransitie in de gebouwde omgeving van aardgas naar duurzame alternatieven tot uitvoering te brengen. In 2050 moeten alle woningen, scholen, winkels, kantoren en andere gebouwen goed geïsoleerd zijn en is aardgas niet langer de standaard om gebouwen mee te verwarmen. Elke gemeente moet een warmteprogramma (voorheen: transitievisie warmte) opstellen waarin de aanpak van het isoleren en aardgasvrij maken van de gebouwde omgeving wordt beschreven.
Opwekken en transporteren van duurzame energie
In 2030 wekken we de helft van onze behoefte aan elektriciteit zelf op. Op twee locaties maken we ruimte voor grootschalige opwekking van windenergie: één bij bedrijventerrein Haven 8-Oost en het Ecopark in Waalwijk (met de werknaam Windpark Haven-Ecopark), en één in het polderlandschap ten noordoosten van Waspik en ten noordwesten van Sprang-Capelle (met de werknaam Windpark Buitenpolders). Daarnaast zijn locaties aangewezen voor de realisatie van zonneparken, in totaal maximaal 15 hectare, verdeeld over tenminste twee parken van maximaal 10 hectare. Zonneparken op (particuliere) gronden zijn niet wenselijk, met uitzondering van de in de beleidsvisie GODE aangewezen middelgrote zonnevelden.
Daarnaast wekken we zelf energie op met zonnepanelen op de meeste daken van het gemeentelijk vastgoed. En stimuleren we zonnepanelen op de bedrijfsdaken van gebouwen op de bedrijventerreinen. In veel gevallen stellen we dit zelfs verplicht bij de verkoop van bedrijfspercelen.
De energiehubs liggen bij grootschalige opweklocaties (zoals windmolenparken) en voorzien in opslag, overslag en distributie van energie (zowel warmte als elektriciteit uit zon en wind). Deze hubs koppelen we aan (groot)verbruikers, aan laadpleinen voor elektrisch rijden en aan gebiedsopgaven.
Daarnaast moet de capaciteit van ons stroomnet worden uitgebreid om te voldoen aan de toenemende energievraag, die de komende jaren door elektrificatie verder zal toenemen. Hiervoor moeten in de hele gemeente nieuwe hoogspannings- en middenspanningsstations en elektriciteitshuisjes (transformatorhuisjes) worden geplaatst. We onderzoeken hoe deze zorgvuldig ingepast kunnen worden, rekening houdend met de bodem, (groene) beeldkwaliteit en veiligheid. De aanleg van de energie-infrastructuur is een taak van de netbeheerder. Als gemeente willen we dit maximaal faciliteren om netcongestie en belemmeringen van andere ontwikkelingen te voorkomen.
We wijzen specifieke ruimtes aan die bijdragen aan de energietransitie. Bovengronds doen we dat in de vorm van zoekgebieden voor opwek, ruimte reserveringen voor energyhubs op bedrijventerreinen of door in wijken in te zetten op collectieve voorzieningen, zoals energie- en warmteopslag. Ondergronds definiëren we ‘hoofdroutes’ voor energieopslag en -transport, zoals langs de Halvezolenlijn.
Hoewel kleine windmolens geen grote bijdrage leveren aan de algehele energietransitie kunnen ze wel een lokale bijdrage leveren aan het energieneutraal maken van individuele (agrarische) bedrijven in het landelijk gebied. Een kleine windmolen is een wenselijke ontwikkeling als deze bijdraagt aan lokale verduurzaming, geen onevenredige afbreuk doet aan de ruimtelijke kwaliteit en de leefomgeving er geen onevenredige hinder van heeft. De voorwaarden voor de ontwikkeling van kleine windmolens zijn uitgewerkt in de beleidsnotitie kleine windmolens.
Duurzaam verwarmen
De gemeente is in het Klimaatakkoord aangewezen als regisseur van de warmtetransitie. In 2021 heeft de gemeente een Transitievisie Warmte opgesteld. Om woningen aardgasvrij te kunnen maken, moeten deze goed zijn geïsoleerd (minimaal label B). In Waalwijk is de isolatie van ongeveer 70% van de woningen nog onvoldoende. We kiezen er daarom voor om ons eerst te richten op het besparen op het gebruik van aardgas door middel van het isoleren van de woningen. Daarom kiezen we ervoor om voorlopig nog niet op grootschalige wijze woningen en gebouwen aardgasvrij te maken. Uiteindelijk zullen er wijken aangewezen worden die van het gas afgaan. Dat is nu nog niet gedaan.
Investeringen dragen we samen en samen profiteren we
De omslag naar duurzame energie vraagt om veel investeringen. We vinden het belangrijk dat iedereen kan meedoen en kan bijdragen naar vermogen. Op dit moment zien we hiervoor de meeste potentie bij grotere bedrijven. Inwoners kunnen bijdragen naar vermogen. Zowel in de verduurzaming van de warmtevoorziening (‘van het gas af’) als voor de opwek van duurzame elektriciteit door middel van windmolens en zonnepanelen. Als gemeente willen wij daarbij de ruimte geven aan lokale en regionale initiatieven van inwoners en bedrijven onder de voorwaarde dat de lokale gemeenschap en bewoners in de buurt van het windpark of zonneveld voor tenminste 50% mede-eigenaar zijn.
We zorgen dat iedereen kan meeprofiteren van de omslag naar een duurzame gemeente. Bijvoorbeeld doordat energiekosten lager worden door het isoleren van woningen. Of doordat straten prettiger en leefbaarder worden door klimaatadaptatie.
Klimaatrobuust en biodivers
Het klimaat verandert. We hebben vaker te maken met extremen, zoals periodes met hoge temperaturen, met weinig neerslag of juist heel veel. Onze omgeving passen we aan zodat we deze gevolgen beter kunnen opvangen. Dat doen we door te vergroenen en vernatuurlijken (zie paragraaf 4.2.3 Biodiverse en beleefbare natuur en groen) en door ‘water en bodem sturend’ te werken (zie paragraaf 4.2.2 Water en bodem als basis). Daarnaast maken we slimme combinaties met het opwekken van energie. Bijvoorbeeld door de opwekking van windenergie te combineren met bossen of door zonnevelden te combineren met wateropvang en het verhogen van de biodiversiteit. Het uitgangspunt is dat geen enkel (nieuw) dakoppervlak onbenut blijft voor een (drie-, vier-) dubbelfunctie. Dit passen we zorgvuldig in, rekening houdend met de bodem, (groene) beeldkwaliteit, ondergrond en veiligheid.
In de visie Duurzaam Waalwijk staat dat we in 2050 60% van het totaal verhard oppervlak afgekoppeld hebben en door middel van infiltratie of vertraagde afvoer naar oppervlaktewater verwerken. Momenteel is circa 10% afgekoppeld. Tijdens het afkoppelen zorgen we voor passende maatregelen in kwetsbare gebieden zoals grondwaterbeschermings-gebieden. Zo beschermen we ook de kwaliteit van het grondwater en voeden we de grondwatervoorraad. Dat is van belang om onze drinkwatervoorziening in stand te houden.
Perceeleigenaren, zoals gemeente, burgers en bedrijven, hebben een eigen verantwoordelijkheid voor het hemelwater dat op hun eigen terrein valt. Dit is vastgelegd in artikel 2.16 van de Omgevingswet.
Om de omgeving klimaatadaptief te maken werken we aan de volgende zaken:
1. Hemelwater wordt zoveel mogelijk verwerkt op het perceel waar het valt.
2. Bij bestaande verharding stimuleren we de eigenaar om tegels te vervangen door groen en om hemelwater af te koppelen van de riolering en op eigen perceel te verwerken.
3. Hemelwater wordt bij voorkeur geïnfiltreerd in de bodem.
4. 60mm neerslag willen we (op termijn) lokaal kunnen verwerken zonder schade aan gebouwen.
Het is steeds vaker langdurig droog. Deze droogte kunnen we bestrijden door water vast te houden waar het valt. Om hittestress te verminderen combineren we groen en water op een slimme manier: in de ideale vorm (bij voldoende ruimte) met meer bomen die schaduw geven in combinatie met waterberging. Zowel ondergronds als bovengronds zoeken we ruimte voor water.
Voor de openbare ruimte van de gemeente Waalwijk dient er bij nieuwbouw minimaal 60 mm waterberging aangelegd te worden. Bij reconstructies van bestaand gebied streven we ook naar 60 mm en hanteren we 20 mm als ondergrens. In uitzonderlijke situaties kan het zelfs voorkomen dat aanleg van een hemelwaterstructuur niet op doelmatige wijze realiseerbaar is. Dat kan komen door ruimtegebrek, een hoge grondwaterstand of niet verlegbare (hoofdtracés van) kabels en leidingen. Bij afwijking van 60 mm is er altijd overleg met het waterschap. Daarnaast is het uitgangpunt een droogleggingseis van 70 cm voor bebouwing en wegen. Dit is noodzakelijk vanwege de over het algemeen hoge grondwaterstanden.
Recente ervaringen hebben ons geleerd dat er in het bestaande stedelijk gebied vaak veel kabels en leidingen in de ondergrond aanwezig zijn, dat de energietransitie om extra ondergrondse ruimte vraagt, dat bomen (en hun wortels) de ruimte nodig hebben en dat bepaalde wijken en straten weinig openbare ruimte hebben. Er zal daarom altijd een afweging komen van belangen.
Bij nieuwbouw en inbreidingslocaties streven we naar voldoende open ruimte tussen bebouwing. Daarmee behouden wij voldoende ruimte voor de diverse functies die de buitenruimte dient te vervullen. Tevens voorkomt de open ruimte het hitte-eilandeffect en biedt deze open ruimte dankzij een groenblauwe invulling en windstroming een verkoelende zone.
Duurzame consumptie en productie
In 2050 functioneert Waalwijk volledig circulair, met een schoon en slim transportsysteem. We hebben een gezonde leefomgeving gecreëerd en maatschappelijk verantwoord ondernemen verder versterkt. Afval bestaat niet meer: we voorkomen voedselverspilling en het ontstaan van groenafval bij beheeringrepen. We zorgen dat alle materialen en gebouwen in gesloten kringlopen blijven. Afval wordt hergebruikt als grondstof voor nieuwe toepassingen, waarbij recycling en hergebruik grotendeels lokaal of regionaal plaatsvinden. Dit stimuleert de economie, creëert sociale werkgelegenheid en vergroot het bewustzijn rondom circulariteit.
Daarnaast maken we gebruik van duurzame vervoersoplossingen zonder fossiele brandstoffen, waardoor mobiliteit schoon en efficiënt is.
Samenvatting speerpunten
Wij stimuleren het isoleren van gebouwen en het verbeteren van energielabels om energieverlies te voorkomen en de CO₂-uitstoot te verlagen. Gemeentelijke gebouwen krijgen minimaal label C.
Wij stimuleren de opwek van duurzame energie door meer zonnepanelen op daken te plaatsen. Daarnaast realiseren we grootschalige windparken bij Haven 8-Oost en de Buitenpolders.
Wij gebruiken rest-, bodem- en waterwarmte om gebouwen duurzamer te verwarmen en bereiden wijken voor op een toekomst zonder aardgas.
Wij versterken het stroomnet door nieuwe hoogspannings- en transformatorstations te plaatsen, zodat we kunnen voldoen aan de groeiende energievraag.
Samen werken we aan vergroenen en passen we onze omgeving aan om klimaatverandering op te vangen. Ook door bossen te combineren met windenergie en zonnevelden met wateropvang en biodiversiteit.
Samen zorgen we voor beter waterbeheer door regenwater lokaal op te vangen, verhard oppervlak te vergroenen en/of af te koppelen en meer ruimte te maken voor waterberging.
Wij stimuleren het verduurzamen van woningen door duidelijke kaders.
Wij betrekken inwoners en bedrijven actief bij de energietransitie en zorgen ervoor dat zij financieel kunnen meeprofiteren van duurzame projecten.
Wij streven naar een circulair Waalwijk door afval te voorkomen en anders te hergebruiken, voedselverspilling te verminderen en materialen in gesloten kringlopen te houden.
Wij stimuleren schoon vervoer door fossielvrije mobiliteit te bevorderen en slimme transportoplossingen te ontwikkelen.
Wij werken aan een duurzame toekomst met een duidelijk energieprogramma en langetermijnvisie om Waalwijk in 2050 volledig klimaatneutraal en circulair te maken.

Een goed bereikbare, gezonde en leefbare gemeente draagt direct bij aan Brede Welvaart, sterke gemeenschappen en de kracht van verscheidenheid. Door te zorgen voor slimme en duurzame mobiliteit, bevorderen we de toegankelijkheid van voorzieningen en ontmoetingsplekken. Dit versterkt de leefkwaliteit voor alle inwoners van onze gemeente.
Gezondheid is meer dan alleen gezondheidsbescherming en zorg. Het gaat ook om een omgeving met de nabijheid van groen en natuur, die beweging stimuleert, sociale verbindingen versterkt, (sociaal) veilig is en kansen biedt voor iedereen. Een inclusieve en gezonde samenleving ontstaat wanneer mensen elkaar makkelijk kunnen ontmoeten, actief kunnen zijn en toegang hebben tot passende voorzieningen. Zo ontstaan sterke gemeenschappen.
Daarnaast is een gevarieerd en toekomstbestendig woonaanbod essentieel voor vitale kernen. Door in te spelen op de woonwensen van jong en oud, creëren we buurten waar mensen zich thuis voelen en waar ruimte is voor groei en verandering. De verscheidenheid van onze gemeente wordt gevierd door het unieke karakter van elke kern te benutten.
Inleiding
Goede bereikbaarheid is belangrijk voor het leven van onze inwoners en mensen die naar onze gemeente komen om te werken of recreëren. Het stelt mensen in staat hun sociale contacten, werk, studie of voorzieningen te bereiken. Het zorgt letterlijk voor verbinding. We willen ons mobiliteitssysteem zo inrichten dat het bijdraagt aan de fysieke en sociale gezondheid van mensen, veilig is en negatieve effecten op de leefomgeving en het milieu beperkt. Op die manier dragen we bij aan Brede Welvaart.
De basis van onze mobiliteit
Aan de basis van ons mobiliteitssysteem staan de vijf ambities uit onze Mobiliteitsvisie Waalwijk 2030. De vijf ambities zijn:
schoon, stil en gezond;
veilig;
inclusief: voor iedereen een mobiliteitsoplossing;
robuust en betrouwbaar;
slim en efficiënt.
In de omgevingsvisie geven we invulling aan deze ambities, doelen en opgaven. Dat doen we ook voor de periode na 2030.
STOMP
Het beperken van het ruimtegebruik voor mobiliteit kan in onze gemeente een sleutel zijn voor andere opgaven. Dat kan echter alleen als we concrete stappen zetten in de mobiliteitstransitie, omdat nu de auto veel plaats in beslag neemt. Lopen, fietsen en openbaar vervoer moeten een volwaardig alternatief vormen voor de auto. Hier werken we aan door de komende jaren actief werk te maken van het STOMP-principe. Bij het STOMP-principe geven we voorrang aan verschillende manieren van transport op de volgende manier:
1. op de eerste plaats bieden we ruimte aan stappen (lopen);
2. daarna aan trappen (fietsen);
3. vervolgens aan openbaar vervoer;
4. dan aan Mobility as a Service (multimodale mobiliteit);
5. en als laatste aan de privéauto.
Het STOMP-principe moet de basis vormen voor hoe we in de toekomst willen omgaan met mobiliteit. Daarom hebben we de visie op mobiliteit opgebouwd aan de hand van dit principe.
Stappen (lopen) en trappen (fietsen)
We vinden het belangrijk dat iedereen makkelijk en veilig kan lopen of gebruik kan maken van de fiets in onze gemeente. Beweging is goed voor de fysieke en mentale gezondheid. Daarnaast komen mensen elkaar eerder tegen op straat, wat de sociale cohesie vergroot. Wandelen en fietsen hebben een kleine milieuvoetafdruk, kosten weinig ruimte en zijn een duurzaam vervoersmiddel. Het heeft beperkte invloed op geluid en luchtkwaliteit. Als meer mensen wandelen en fietsen en daarmee de auto laten staan, zorgt dit voor minder geluidsoverlast, luchtvervuiling, uitstoot van stikstof en minder ruimteclaim voor rijbanen en parkeerplaatsen. Dat is goed voor de gezondheid van onze inwoners en de natuur. Hiermee dragen we bij aan een schoon, stil en gezond vervoerssysteem en Brede Welvaart.
We stimuleren lopen en fietsen door op verschillende wijzen in te zetten op verbetering van de infrastructuur voor wandelaars en fietsers. Een veilige, prettige en efficiënte infrastructuur voor wandelaars en fietsers is een voorwaarde om wandelen en fietsen aantrekkelijker te maken dan de keuze voor de auto. Maar daarnaast is er meer nodig. Een groene inrichting maakt deze infrastructuur aantrekkelijker en biedt verkoeling en beschutting aan zijn gebruikers. Dit maakt ons mobiliteitssysteem veilig en inclusief.
In de centra hebben we veel aandacht voor lopen. We zorgen voor goede fietsparkeervoorzieningen aan de randen zodat het aantrekkelijk is om het centrum verder lopend te bezoeken.
In de rest van de gemeente verbeteren we de fietsinfrastructuur door in te zetten op de hoofdverbindingen die onderdeel zijn van het (regionale) hoofdnetwerk of hier direct mee in verbinding staan (de zogenaamde ‘feeders’). Deze hoofdverbindingen zijn routes waar mensen snel, veilig en prettig kunnen fietsen. We richten deze verbindingen groen in. Dit maakt het aantrekkelijk om te fietsen doordat mensen bijvoorbeeld tussen de bomen in de schaduw kunnen fietsen. Hiermee creëren we niet alleen hoofdverbindingen voor mensen, maar ook voor de natuur. In onze parkeernormen passen we fietsparkeernormen toe, zodat altijd voldoende en kwalitatief goede fietsparkeervoorzieningen beschikbaar zijn. Dat is een belangrijke voorwaarde om fietsgebruik te stimuleren. We stimuleren autoluwe recreatiegebieden, zoals Het Hoefsven. Hiermee beperken we de overlast op natuur en beperken we omgevingshinder die de mogelijkheid tot ontspanning in de weg staat.
Waalwijk zet in op een inclusieve openbare ruimte die voor iedereen toegankelijk is en uitnodigt tot ontmoeten. We zorgen voor obstakelvrije paden zonder drempels of hinderlijke objecten, zodat mensen met een beperking zich vrij kunnen verplaatsen. Langs hoofdroutes staan bankjes die comfort bieden aan ouderen, terwijl invalideparkeerplaatsen dichtbij voorzieningen mobiliteit ondersteunen. Dit maakt ons mobiliteitssysteem veilig en inclusief. Daarnaast maken we speelplekken en waar mogelijk straten kindvriendelijk, zodat jong en oud zich veilig en prettig voelen in onze gemeente. De openbare ruimte gaat meer fungeren als een speellandschap.
Openbaar vervoer
Het mobiliteitssysteem van de toekomst is multimodaal, ketengericht en beschikbaar voor iedereen. Het is belangrijk dat iedereen uit elke kern gebruik kan maken van robuust, betrouwbaar en betaalbaar openbaar vervoer. We kijken samen met de regio en provincie naar de gehele verplaatsingsketen, waarbij we in navolging van de provincie mobiliteitsoplossingen van halte tot halte faciliteren, vanuit onze rol als gemeentelijke overheid. Een voorbeeld kan zijn flexibele mobiliteitsdiensten. Zo is er voor iedereen een mobiliteitsoplossing al dan niet individueel dan wel gedeeld met openbaar vervoer.
We waarderen het huidige OV-netwerk stapsgewijs op naar een hoogwaardig OV-netwerk (HOV) en aanvullend realiseren we een Bus Rapid Transit-lijn (BRT) over de A59 en de N261 (zie figuur 13). De BRT is een snelle regionale busverbinding naar Tilburg en ’s-Hertogenbosch. Deze buslijn heeft bij voorkeur een eigen rijstrook, waardoor men ook in de spits snel van A naar B kan. Hierdoor is het een snelle, frequente en betrouwbare vervoerskeuze. Langs de BRT-knooppunten realiseren we twee grotere mobiliteitshubs, namelijk Noorder Allee en Taxandriaweg. De Taxandriaweg is de komende jaren nog niet haalbaar, daarom zetten we nu in op een BRT-halte langs de noordelijke randweg van het GOL. Deze mobiliteitshubs zijn levendige plekken met een hoogwaardige verblijfskwaliteit. Hier komen verschillende mobiliteiten samen, zoals een halte waar ook voldoende fietsenstallingen en mogelijkheden voor deelvervoer zijn. We hebben specifiek aandacht voor het aansluiten van openbaar vervoer in de kernen op de BRT, bijvoorbeeld door de dienstregeling goed op elkaar te laten aansluiten. Dat is belangrijk zodat iedereen in onze gemeente prettig gebruik kan maken van de BRT. Hiervoor werken we samen met de regio en de provincie. Daarnaast hebben we aandacht voor mensen die werken op bedrijventerrein Haven. Hier gaan dagelijks veel mensen naartoe met de auto, mede door de beperkte OV-bereikbaarheid. We zorgen voor een veilige en aangename fietsverbinding tussen bedrijventerrein Haven en het BRT-knooppunt aan de Taxandriaweg en kijken naar mogelijkheden voor deelvervoer bij de BRT-halte en op het bedrijventerrein zelf.

Naast de BRT hebben we in onze gemeente ook een Hoogwaardig Openbaar Vervoers-lijn (HOV). Deze bus deelt de komende jaren de weg met auto’s en andere vervoersmiddelen. Deze lijn heeft meer haltes dan de BRT en kan daardoor wel op meerdere plekken in de kern Waalwijk komen. Op termijn heeft, voor de doorontwikkeling van het totale OV-netwerk, vrijliggende businfrastructuur de voorkeur. We verplaatsen het busstation aan het Vredesplein naar een mobiliteitshub aan de Noorder Parallelweg-Ambriosiusweg, omdat een multimodale overstap op Vredesplein onvoldoende kan worden gefaciliteerd. Daarnaast worden busroutes in tijd verkort. De mobiliteitshub aan de Noorder Allee, nabij de N261, is een hub waar alle OV-verbindingen die Waalwijk aandoen samenkomen.
De robuustheid van ons openbaarvervoersysteem willen we positief beïnvloeden door te werken aan de kostendekkingsgraad. Als we het gebruik van openbaar vervoer willen stimuleren moeten we werken aan haltes op prettige fietsafstand met goede fietsparkeervoorzieningen, voldoende ritfrequentie en aantrekkelijke tarieven. Dit kunnen we als gemeente niet alleen realiseren en daarom blijven we hierover in gesprek met onze partners.
We blijven ons inzetten voor een goede regionale bereikbaarheid van onze gemeente met openbaar vervoer. Onze ambitie voor de langere termijn is een verbinding tussen Breda - Oosterhout - Waalwijk - ’s-Hertogenbosch (zie groene lijn in figuur 14). Op dit moment zijn er onvoldoende reizigers en daarmee draagvlak voor deze verbinding. Op regionaal niveau is men momenteel bezig met het verbeteren van de lijn Breda – Oosterhout – Gorinchem – Utrecht (zie blauw lijn in figuur 14). Dit willen we als aanleiding gebruiken om de verbinding met Waalwijk te blijven adresseren.

Multimodale mobiliteit (mobility as a service)
Het mobiliteitssysteem van de toekomst is multimodaal, ketengericht en beschikbaar voor iedereen. Multimodaal betekent dat mensen van meerdere transportmiddelen gebruik maken om van A naar B te gaan. Bijvoorbeeld door te fietsen naar de bushalte, met de bus naar een andere plaats te gaan en het laatste stukje naar hun bestemming met deelvervoer af te leggen. We weten dat met name dat laatste deel van de reis (‘last mile’) bepalend is in hun keuze voor een vervoersmiddel. Deelvervoer zorgt voor een prettig laatste deel van de reis. We creëren mobiliteitshubs, inclusief een (breed) aanbod van deelmobiliteit. Deelmobiliteit willen we stimuleren en vanuit deze ambitie staan we open voor initiatieven en pilots.
Privé vervoer
Auto
Veel mensen in de gemeente maken dagelijks gebruik van de auto. Automobilisten ervaren echter vaker knelpunten, zoals drukte op de weg. Er is sprake van geluidsoverlast en luchtvervuiling. Het is essentieel om mensen een passend alternatief te bieden voor de auto. Daarmee kunnen we het autogebruik niet verder laten groeien. Er liggen kansen voor het efficiënter inrichten van de openbare ruimte, bijvoorbeeld door parkeren op afstand of te clusteren. Hierdoor komt ruimte vrij voor ontmoeting, spelen, vergroening en klimaatadaptief inrichten of andere opgaven, zoals de energietransitie.
In 2024 is de Parkeervisie vastgesteld. Deze stimuleert een mobiliteitstransitie van personenauto’s naar langzaam verkeer en openbaar vervoer. Onze parkeernormen sluiten hierop aan. We stimuleren meervoudig ruimtegebruik. Overdag kan een parkeerplaats gebruikt worden door mensen die werken in kantoren in de omgeving en ’s avonds door mensen die sporten in diezelfde omgeving. Zo maken we slim gebruik van de ruimte. Daarnaast voegen we niet meer parkeerplaatsen toe dan nodig. Door het efficiënter gebruik van de beschikbare parkeerruimte en het beperken van de automobiliteit zijn er minder parkeerplaatsen in- en rond het centrum nodig. De vrijkomende ruimte kan ingezet worden voor de ontwikkeling van meer woonruimte of groenoppervlak en de verbetering van de kwaliteit van de leefomgeving, bijvoorbeeld met ruimte voor ontmoeten en bewegen.
Goederenvervoer
Op onze bedrijventerreinen zitten vele logistieke bedrijven. Deze maken niet alleen gebruik van routes over weg, maar ook van de ligging aan het water. Onze havens zijn daarmee belangrijke transportknooppunten voor goederen. De komende jaren zetten we ons in voor de elektrificatie van onze haven op bedrijventerrein Haven. Dit wordt de eerste elektrische binnenhaven van Europa. Door het creëren van mobiliteits-hubs, inclusief een (breed) aanbod van deelmobiliteit en deze nieuwe (slimme) haven, verbeteren we de bereikbaarheid van de gemeente en de bedrijventerreinen, voor zowel personen als goederen.
Verkeersstructuur
We bekijken onze verkeersstructuur opnieuw. Het doel is een duidelijk herkenbare verkeersstructuur, goede bereikbaarheid voor alle mobiliteiten met daarbij passende en veilige inrichting van de wegprofielen en verbeteren van de lucht- en geluidskwaliteit. Deze verkeersstructuur vormt de basis om de ambities geformuleerd in deze visie te kunnen realiseren. We willen wandelen, fietsen en gebruik van openbaar vervoer aantrekkelijker maken dan de auto. Dit kan ertoe leiden dat het soms langer duurt om ergens met de auto te komen of dat je langer moet lopen naar een parkeerplaats.
We zorgen dat de huidige infrastructuur beter wordt benut waardoor de interne en externe bereikbaarheid van de gemeente verbetert. Door middel van data kunnen we de schaarse ruimte zo efficiënt mogelijk benutten en reizigers stimuleren om een zo slim en efficiënt mogelijke reis af te leggen. Dat doen we bijvoorbeeld door te werken met verkeersregelinstallaties waarmee we de doorstroming kunnen verbeteren.
Het is belangrijk dat alle verplaatsingen in Waalwijk veilig zijn. We werken bij de verbetering van de (verkeers-)veiligheid zoveel mogelijk risicogestuurd om zo mogelijk toekomstige ongevallen te voorkomen. Straten en kruispunten met hoge risicoprofielen passen we aan. Sommige plekken zijn op papier niet verkeersonveilig, maar worden toch zo ervaren. Daarnaast hebben we oog voor de sociale veiligheid op straat. Om verkeersonveilig gedrag te verminderen, verhogen we onze inzet op de verkeerseducatie van specifieke doelgroepen, zoals leerlingen en senioren. In het verkeersstructuurplan maken we inzichtelijk wat voor welke modaliteit belangrijke routes zijn en waar knelpunten zitten die aangepakt moeten worden om de verkeersstructuur te versterken en tegelijkertijd de verkeersveiligheid te verbeteren.
We stimuleren de transitie naar elektrisch vervoer, zowel van elektrische auto’s, vrachtwagens, fietsen en andere rijwielen. Dat doen we door te werken aan een laadvisie. In heel Nederland hebben we te maken met netcongestie. Daarom is het belangrijk nauw samen te werken met de netbeheerders in het stimuleren van elektrisch vervoer.
Gebiedsontwikkeling Oostelijke Langstraat
De A59 is een belangrijke verkeersader in onze gemeente. Samen met onze partners werken we aan het verbeteren van de omgeving rondom de A59 in het kader van de Gebiedsontwikkeling Oostelijke Langstraat (GOL). We verbeteren de veiligheid rondom gevaarlijke op- en afritten en zorgen voor een betere doorstroming van het verkeer op de A59. Naast verkeer kijken we ook naar het behoud van natuur, meer mogelijkheden voor recreatie, toerisme en economische activiteiten en een betere leefbaarheid in de kernen. In Waalwijk komen twee nieuwe op- en afritten, namelijk bij de Baardwijkse Overlaat en bij het Drongelse Kanaal, met een nieuwe verbinding naar het bedrijventerrein Haven. Hierdoor verbetert de bereikbaarheid van het bedrijventerrein en neemt de overlast op het woongebied af. Daarnaast verbeteren we de snelfietsroute van Waalwijk naar Drunen over de Spoorbrug. Deze snelfietsroute F59 verbindt Waalwijk regionaal met Drunen, Vlijmen en ’s-Hertogenbosch. Er komt een vrijliggend fietspad langs de A59 ter hoogte van Drunen. Deze route willen we doortrekken van oost naar west, richting Waspik over de Halvezolenlijn.
Samenvatting speerpunten
Wij maken werk van STOMP: wandelen, fietsen en openbaar vervoer staan bij ons op één.
We zetten in op een risico gestuurde verkeersveiligheid en richten onze wegen vanuit dit principe in.
Wij stimuleren lopen in het centrum door een aantrekkelijk wandelgebied te creëren.
Wij zorgen in de gehele gemeente voor toegankelijke en aantrekkelijke wandel- en fietsroutes waar het veilig en prettig wandelen en fietsen is.
Wij maken ons openbaar vervoer robuust, betrouwbaar en betaalbaar. Wij faciliteren BRT- en HOV-lijnen en investeren in mobiliteitshubs. Hier benutten wij koppelkansen met andere ontwikkelingen zoals woningbouw en voorzieningen. Met name in het centrum van Waalwijk onderzoeken wij waar we kunnen verdichten door nabij voorzieningen en OV woningen te realiseren.
Wij faciliteren het vergroten van het aanbod van deelauto’s.
We verminderen waar mogelijk het ruimtegebruik en -beslag van de auto. Deze ruimte gebruiken wij voor vergroening, klimaatadaptatie, energietransitie, mobiliteitstransitie, ontmoeting en beweging.
Wij verbeteren de doorstroming voor auto’s en vrachtverkeer op de hoofdwegen met af- en opritten, door realisatie van de GOL.
We zetten ons richting 2050 in voor een BRT Breda – Oosterhout – Waalwijk.
Inleiding
In de gemeente Waalwijk geloven we in een nieuwe benadering van zorg en welzijn: slimmer, dichterbij en vooral samen. De kracht van onze gemeente zit in onze inwoners zelf. We zetten ons in voor een leefomgeving met nabijheid van groen en natuur, die gezond leven stimuleert en risico's beperkt. Sporten, bewegen en buiten verblijven moet voor al onze inwoners bereikbaar zijn. Bij ruimtelijke ontwikkelingen nemen we gezondheid vroegtijdig mee als belangrijk criterium, met specifieke aandacht voor luchtkwaliteit, geluid, licht, geur, nabijheid van groen, bewegen, ontmoeten, water en riolering en omgevingsveiligheid. We kijken zowel naar gezondheidsbescherming (zoals voorkomen van geluidsoverlast) en gezondheidsbevordering (zoals stimuleren van beweging en sociale cohesie).
Zorg is dichtbij en doen we samen
De gemeentelijke bijdrage aan een gezond en gelukkig leven gaan we slimmer, dichterbij en samen organiseren met onze professionele partners en vooral samen met onze inwoners. Als gemeente willen we daar actief aan bijdragen, met onze inzet gericht op bestaanszekerheid, publieke (mentale) gezondheid, gelijke kansen en zorg en veiligheid.
Steeds meer inwoners doen een beroep op het sociaal domein en kosten nemen toe. Toch is de hulp die geboden wordt niet altijd effectief. Met de Koersbepaling Sociaal Domein is een aanpak gekozen die aansluit bij de ontwikkelingen en past bij de gemeente Waalwijk. De uitgangspunten waar we voor staan, zijn:
1. Bestaanszekerheid op orde
Sommige mensen ervaren zorgen over hun bestaanszekerheid. Ze hebben geen woning, dreigen uit huis gezet te worden of ze begeven zich in een onveilige situatie. Als gemeente ondersteunen we onze inwoners en gezinnen waarbij we zoveel mogelijk zorgen dat inwoners de zekerheid hebben van een dak boven hun hoofd, voldoende inkomen, afwezigheid van schulden en opgroeien in een veilige omgeving. Vanuit de omgevingsvisie en Omgevingswet kunnen we niet op al deze zaken sturen. Wel kunnen we zorgen voor voldoende passende woningen, zorgen voor voldoende mogelijkheden voor beschermd wonen en kunnen we onze leefomgeving veilig maken. Zie voor onze aanpak voor passende en voldoende woningen paragraaf 4.3.4 Passend woonaanbod voor vitale kernen.
2. Publieke (mentale) gezondheid
Als gemeente willen we zorgen voor een omgeving waar mensen elkaar tegenkomen, de sociale cohesie hoog is en mensen zorgdragen voor elkaar. Dat doen we door laagdrempelige, collectieve voorzieningen te creëren. In het sociaal domein wordt met voorzieningen de voorzieningen in het kader van de Jeugdwet, de Participatiewet en de Wet maatschappelijke ondersteuning (Wmo) bedoeld. Dit kunnen we vertalen naar de omgevingsvisie door te zorgen dat de fysieke plekken waar mensen deze hulp ontvangen, bereikbaar en toegankelijk zijn en dicht bij de inwoner zelf. Hierin richten we ons als gemeente op (kwetsbare) groepen in de samenleving. We organiseren ondersteuning vanuit de wijk. Hierbij starten we met de meest kwetsbare wijken, om dit uiteindelijk uit te breiden naar alle wijken in onze gemeente.
Verhogen van de (mentale) gezondheid versterken we ook vanuit het fysieke domein. Onze openbare ruimte richten wij zo in dat in alle buurten prettige verblijfs- en ontmoetingsplekken hebben, met zoveel mogelijk groen, waar sociaal contact en buiten bewegen worden gestimuleerd. Middels zelfbeheer in de vorm van adoptiegroen, stadslandbouw en/of gemeenschapstuinen faciliteren wij prettige verblijfsomgevingen, waar bewoners elkaar ontmoeten en zelf automatisch de hulp bieden en vinden die nodig is.
3. Gelijke kansen
De leefomstandigheden van inwoners zelf en de leefomstandigheden in de wijken, willen we verbeteren. Ten aanzien van de leefomgeving heeft iedereen recht op een gezonde, groene, klimaatbestendige en bereikbare leefomgeving. Vanuit het programma Kansrijke start dragen we zorg voor de eerste 1000 levensdagen van onze jongste inwoners. Die dagen zijn cruciaal voor een kind om een goede start te kunnen maken. Door in te zetten op een groene leefomgeving met voldoende speel- en beweegruimte streven we naar het verkleinen van de kansenongelijkheid tussen inwoners en verbeteren we de sociale omstandigheden van (kwetsbare) wijken. Dit is gericht op de gemeenschap.
4. Dichtbij
Ondersteuning vanuit het sociaal domein bieden we vanuit de eigen buurt of wijk. Daar leggen we de basis. Alleen als het op lokaal niveau niet mogelijk is, organiseren we samenwerking naar grotere verbanden. We verbinden partners en beleidsterreinen met elkaar om zo te werken aan een integrale samenwerking.
Veranderende bevolking met veranderende behoeften
Onze bevolking vergrijst en steeds meer mensen hebben passende zorg nodig. Het Rijksbeleid gaat uit van zo lang mogelijk zelfstandig thuiswonen. Voor senioren die bekwaam en zelfstandig zijn is dit een mooi uitgangspunt waarbij ze zo lang mogelijk in hun vertrouwde omgeving kunnen wonen. We zien echter steeds vaker situaties waarin dit zorgt voor knelpunten. De thuiszorg staat onder druk, ouderen krijgen soms te laat passende hulp en geschikte seniorenwoningen zijn vaak weinig beschikbaar of te prijzig. Het Rijksbeleid blijft het uitgangspunt voor onze ouderen waarvoor dit geschikt is. Dit vraagt niettemin om aanpassingen in onze leefomgeving waarmee we dit faciliteren. Denk aan een toegankelijke openbare ruimte zonder obstakels en met bankjes, gratis voorzieningen waar mensen elkaar kunnen ontmoeten zoals in de bibliotheek of in een park en dagelijkse voorzieningen op loopafstand. Voor ouderen die ondersteuning nodig hebben willen we eerder klaarstaan. We zetten in op woongemeenschappen waar mensen met een zorgvraag samen kunnen leven. Op die manier kan (thuis)zorg makkelijk worden verleend en kunnen bewoners elkaar helpen. De woongemeenschappen zien we het liefst in de centra, dichtbij voorzieningen en openbaar vervoer. Daarnaast biedt het faciliteren van gemeenschapstuinen in de buurt en het zelfbeheer daarvan uitkomst. Jong en oud komen daarbij samen en kunnen elkaar steunen en verblijden.
Waalwijk mist momenteel voldoende voorzieningen voor jongeren, waardoor zij vaak uitwijken naar omliggende steden of tot overlast gevend gedrag vervallen. Het tekort aan voorzieningen beperkt hun mogelijkheden om lokaal samen te komen, zich te ontwikkelen en vrijetijdsbesteding te vinden. Investeren in (groene) ontmoetingsplekken, sport- en culturele activiteiten is essentieel om jongeren een aantrekkelijke en levendige omgeving te bieden, waarin zij zich thuis voelen en positief betrokken blijven bij de gemeente.
Regie over eigen gezondheid / positieve gezondheid
We vinden het belangrijk dat mensen zelf kunnen bepalen hoe ze omgaan met hun gezondheid en daar eigen keuzes in kunnen maken. Als gemeente helpen we onze inwoners, door het maken van gezonde keuzes makkelijker te maken. Onderdeel hiervan is bevordering van gezondheid door preventie. We kijken welke maatregelen nodig zijn om de gezondheid van onze inwoners te beschermen en te bevorderen, dit onder andere door een voor verblijf en ontmoeting aantrekkelijke buitenruimte te faciliteren. Ook door uitvoering te geven aan het Gezond- en Actief Leven Akkoord en in het kader van het Integraal Zorgakkoord en de Landelijke Hervormingsagenda Jeugd.
Onze leefomgeving moet het maken van gezonde keuzes stimuleren. Het moet voor inwoners gemakkelijk zijn om te kiezen voor lopen of fietsen. Barrières die dat belemmeren moeten weggenomen worden. Sport, spelen, binnen en buiten verblijven en ontmoeten moet voor iedereen in de eigen wijk mogelijk zijn. Zo stimuleren we de fysieke en mentale gezondheid. Bij ruimtelijke projecten hebben we aandacht voor het stimuleren van de gezondheid in brede zin. Onze leefomgeving is sociaal en fysiek veilig.
We leggen de focus op positieve gezondheid en veerkracht. We benadrukken niet de beperkingen, maar juist het vermogen van de inwoners. Hierin hebben we oog voor ieders plek in de samenleving en we kijken hiermee breder dan alleen het individu. We pakken dit aan door in te zetten op preventie en het verhogen van de samenredzaamheid van onze inwoners.
Sporten als gezonde basis voor iedereen
In het gezondheidsbeleid Go Healthy en de bijbehorende campagne vragen we aandacht voor gezondheid, geven we inwoners praktische tips en organiseren we leuke activiteiten die gezondheid bevorderen. We leggen de focus op het stimuleren van een gezonde leefstijl en een gezonde omgeving voor onze inwoners.
Een gezonde leefstijl bevorderen we door:
1. Het stimuleren van sport en beweging
Waalwijk is een aantrekkelijke, sportieve gemeente, waarin zoveel mogelijk inwoners vitaal in beweging zijn. Daarbij zijn vitale sportverenigingen en goede, toekomstgerichte accommodaties van belang. Om dit te realiseren werken we samen met partners binnen de sectoren sport, onderwijs, kinderopvang, welzijn, zorg en cultuur. De ambitie is dat iedere inwoner een leven lang plezier kan beleven aan sporten en bewegen. Inclusief sporten en bewegen is vanzelfsprekend. Belemmeringen in de fysieke leefomgeving nemen we weg. We zorgen dat meer kinderen voldoen aan de beweegrichtlijnen en dat daarmee de motorische vaardigheden toenemen. Dit is van belang voor het ontwikkelen van een actieve leefstijl. Daarnaast is de ambitie om alle typen aanbieders van sport en bewegen toekomstbestendig te maken, zodat sport en bewegen voor iedereen toegankelijk en bereikbaar blijft. Voor een breed, aantrekkelijk en veilig aanbod van sport- en beweegactiviteiten zijn financieel en organisatorisch gezonde aanbieders nodig, die oog hebben voor veranderende behoeften. Tot slot willen we de gemeente voorzien van een functionele, goede en duurzame sportinfrastructuur. De exploitatie van sportaccommodaties wordt sterk verbeterd, de openbare ruimte wordt beweegvriendelijk ingericht en alle sportaccommodaties zijn straks duurzaam.
Sporten en bewegen vindt steeds meer in de openbare ruimte plaats. Ook de doelen vanuit onze Sportnota en de nieuwe koers Sociaal domein maken dat we dit willen faciliteren. We sluiten hierbij aan bij het Speelruimteplan 2019. We doen dit langs de lijn ‘de stad als speelveld’. Elke 1.000 meter komt een beweegvoorziening voor 12-plussers, gespreid over de stad komen enkele bovenwijkse voorzieningen, we geven ruim baan aan fietsers en voetgangers en waar mogelijk stellen we sportvelden open. We zien hierbij ook kansen voor de ‘Urban sports & culture’ in de openbare ruimte. In de openbare ruimte zorgen we voor informele speelmogelijkheden, waardoor ook kinderen jonger dan 12 jaar binnen 300 meter van hun huis buiten kunnen spelen.
2. Voorkomen van alcohol- en drugsgebruik onder jongeren
Hier zetten we met name op in met campagnes en voorlichting voor zowel jongeren als ouders. Ook door prettige verblijfs- en ontmoetingsplaatsen in de buitenruimte te faciliteren, waar sociale controle aanwezig is en aan jongeren alternatieve, positieve afleiding wordt geboden, voorkomen we alcohol- en drugsgebruik. Binnenlocaties zoals buurthuizen kunnen een soortgelijke functie vervullen, als daar bewust en actief op wordt gestuurd.
3. Creëren van een rookvrije omgeving voor kinderen
Rookvrij opgroeien is belangrijk voor de gezondheid. Daarom willen we de omgeving van kinderen rookvrij maken. Hier willen we onze inwoners met voorlichting op wijzen. Sport- en schoolomgevingen zijn al rookvrij. Daarnaast richten we de openbare ruimte zo in dat deze een gezond alternatief biedt om mentaal te kunnen ontspannen, zonder noodzaak tot verslavende middelen. Prikkelarme plekken zoals (autovrije, stille) groenparken zijn daarbij cruciaal.
Een gezonde omgeving bevorderen we door:
4. Meer oog hebben voor gezondheidsbeleid in de leefomgeving en meer aandacht besteden aan gezondheid bij ruimtelijke projecten
Bij ieder nieuw project in de fysieke leefomgeving staan wij bewust stil bij de wijze waarop we aspecten omtrent fysieke en mentale gezondheid aan de buitenruimte kunnen toevoegen. Gezondheid wordt als volwaardig thema, naast duurzaamheid, klimaatbestendigheid, biodiversiteit en mobiliteit, meegenomen in de planvorming. In elke wijk streven we naar voldoende groen, de nabijheid van natuur en een prikkelarme locatie zonder omgevingshinder (geluid, stank, luchtkwaliteit, licht, bewegingen, hittestress, wateroverlast), waar men zich even kan terugtrekken om te bewegen of tot rust en bezinning te komen en zo te ontstressen en weer op te laden. Groene parken en zelfbeheer in gemeenschapstuinen bieden mogelijkheid om dit te bereiken.
Risico’s van buitenaf beperken we
Als gemeente willen we bijdragen aan een gezond en gelukkig leven voor onze inwoners. Een schone, veilige en gezonde leefomgeving staat daarbij centraal. We zorgen – zoals hiervoor aangegeven - dat gezondheidsschade door milieufactoren (zoals geluid en lucht), binnen onze mogelijkheden, zoveel mogelijk wordt beperkt. We houden daarbij ook rekening met nieuwe risico’s door klimaatverandering, zoals hitte en wateroverlast.
We werken aan een gezonde fysieke leefomgeving voor iedereen die in de gemeente Waalwijk woont, werkt of verblijft.
Dat doen we door in te zetten op twee doelen.
1. De gemeente Waalwijk heeft de basis op orde door te voldoen aan wet- en regelgeving op het gebied van een gezonde fysieke leefomgeving.
2. Waalwijk wil waar mogelijk en nodig gebruik maken van de beleidsruimte op het gebied van de fysieke leefomgeving om gezondheidswinst te boeken.
De uitgangspunten zijn beschermen en bevorderen van gezondheid. We zorgen dat gezondheid vroegtijdig en in samenhang met andere onderwerpen wordt meegenomen in ruimtelijke projecten. We zetten onze rol als gemeente slim in om bij het stimuleren en regelen van een gezonde fysieke leefomgeving het grootste effect te kunnen bereiken met onze beperkte invloed en middelen. De leefomgeving wordt gezond gemaakt door te werken aan een prikkelarme, milieuvriendelijke, schonere, klimaatvriendelijke, beweegvriendelijke, inclusieve en gedragsvriendelijke leefomgeving.
De omgevingsvisie moet rekening houden met de milieubeginselen uit de Omgevingswet:
voorzorg (bedrijven en overheden moeten maatregelen nemen wanneer aannemelijk is dat negatieve gevolgen voor milieu en gezondheid kunnen optreden);
preventief handelen;
bronbestrijding (wanneer gevolgen zijn);
de vervuiler betaalt.
Lucht
Schone lucht is belangrijk voor een gezond leven. In de gemeente is te zien dat, met name rondom de regionale- en hoofdwegen en bebouwde gebieden, sprake is van een mindere luchtkwaliteit dan in de rest van de gemeente. Sommige groepen mensen zijn gevoeliger voor luchtvervuiling. Bijvoorbeeld kinderen en ouderen. Functies voor deze kwetsbare groepen worden daarom bij voorkeur niet nabij drukke wegen gerealiseerd.
De meeste uitstoot in de gemeente komt van houtstook en mobiliteit (zie figuur 15 en 16). Inzet van bewoners is belangrijk om deze uitstoot (verder) terug te dringen door bijvoorbeeld minder hout te stoken en meer de fiets of het OV te gebruiken in plaats van de auto. Naast aanpak van de oorzaken kan ook vermindering van de nadelige effecten worden toegepast, door een groene inrichting van straatprofiel, daken en gevels in te zetten als fijnstof afvang en luchtfilter. Als gemeente willen we onze bewoners en ondernemers bewust maken en stimuleren om een steentje bij te dragen aan het verbeteren van de luchtkwaliteit binnen de gemeente.


In 2020 heeft de gemeente Waalwijk zich aangesloten bij het Schone Lucht Akkoord (SLA). Het doel van het SLA is om de uitstoot van fijnstof en stikstofdioxide door wegverkeer, mobiele werktuigen, landbouw, scheepvaart, industrie en huishoudens te verminderen. Op deze manier wil het SLA 50% gezondheidswinst realiseren in 2030 ten opzichte van 2016. Als deelnemer van het SLA spant de gemeente zich in voor een permanente verbetering van de luchtkwaliteit ter verbetering van de gezondheid. Hierbij wordt toegewerkt naar de aangescherpte EU-normen voor stikstofdioxide en fijnstof in 2030. Na 2030 zal Waalwijk zich inzetten om de luchtkwaliteit te blijven verbeteren richting de WHO-advieswaarden.
Geluid
De gemeente Waalwijk kent een hoge geluidbelasting. Gemeente Waalwijk wordt doorkruist door provinciale- en rijkswegen, zoals de A59. De gebieden om deze wegen worden hierdoor beïnvloed. Voor deze gebieden moet worden voldaan aan de hiervoor gestelde landelijke en provinciale normen. Andere gebieden waar veel geluid geproduceerd wordt zijn de bedrijventerreinen, de N261 en gemeentelijke hoofdontsluitingswegen (zie figuur 17).

Voor een aantal gebieden rondom de provinciale en rijkswegen geldt dat het benoemde akoestische gebiedstype hierop overwegend wel van toepassing is, maar dat een deel van het gebied beïnvloed wordt door een luidruchtige geluidbron zoals een snelweg (A59), Provincialeweg (N261) of een industrieterrein (Haven). Deze geluidbronnen hebben geluidaandachtsgebieden, waarop geluidregels als omgevingswaarden van toepassing zijn. Het is het gebied waarbinnen het geluid door die geluidbron hoger kan zijn dan de standaardwaarde. De omvang van de geluidaandachtsgebieden is afhankelijk van de bron (lokale wegen hebben bijvoorbeeld een geluidaandachtsgebied dat is gebaseerd op vaste afstanden). Omdat in deze gebieden een hoger geluidniveau heerst dan in het overige deel van een gebied, wordt voorgesteld om voor dat deel ook hogere waarden vast te kunnen stellen voor milieubelastende activiteiten. Rond deze geluidbronnen is daarom een overgangszone gelegd, waarbinnen afgeweken kan worden van de waarde voor het gebied waarin de geluidgevoelige bestemming ligt.
Geluidhinder proberen we zoveel mogelijk te beperken. Dat doen we door gebiedsgericht te beoordelen wat een acceptabele geluidsbelasting is. Hierbij wordt in ieder geval voldaan aan de grenswaarden uit het Besluit kwaliteit leefomgeving. In gemengde gebieden zal een balans gevonden moeten worden tussen geluidproducerende bedrijvigheid (inclusief onze sportverenigingen) en een gezonde leefomgeving voor onze inwoners. In centrumgebieden is bijvoorbeeld een hogere geluidsbelasting te verwachten dan in woonwijken of het buitengebied. Door geluidproducerende bedrijvigheid (waar mogelijk) te concentreren op bedrijventerreinen met afstand tot gevoelige functies zoals woningen en scholen, wordt geluidsoverlast beperkt. Een groene inrichting, zoals een bosplantsoen, kan worden ingezet als geluidsdemper.
Per deelgebied streven we volgende geluidsambitie na:
Woongebieden: In de woongebieden streven we naar rustig woongebied. Bij woongebieden die grenzen aan sport- en recreatiegebieden staan we incidenteel festiviteiten en meer geluid toe. Dit betreft het geluid dat uitstraalt van de andere gebiedssoort (bijvoorbeeld sportvelden).
Centrumgebieden: In de centrumgebieden is sprake van functiemenging met wonen en geluid activiteiten (supermarkt, evenementen, horeca). Hier streven we naar reuring.
Linten: De linten zijn een gemengd gebied met wonen, voorzieningen en kleinschalige bedrijfsactiviteiten. Hier staan we meer geluidsactiviteiten toe, passend bij de diversiteit aan kleinschalige bedrijfsactiviteiten.
Sport en recreatiegebieden: In deze gebieden handhaven we sporten en aanverwante activiteiten. Hier staan we meer geluid toe dan in de woonwijken.
Bedrijventerreinen: Er is een onderscheid te maken in gebieden ten noorden- en ten zuiden van de A59:
Ten zuiden van de A59: De ambitie is gericht op behoudend ten opzichte van ontwikkelingen. Op bedrijventerreinen wordt meer geluid toegestaan dan in centrumgebieden (en daarmee woongebieden). Hier staan we geen milieucategorie hoger dan 3.2 toe.
Ten noorden van de A59: De ambitie is gericht op nieuwe ontwikkelingen. Voor deze bedrijven maken we onderscheid tussen industrieterrein en bedrijventerrein. Wij handhaven een gezoneerd industrieterrein (alle bedrijven samen). Op bedrijventerreinen wordt meer geluid toegestaan dan in centrumgebieden (en daarmee woongebieden). Hier worden de zwaardere bedrijven toegestaan, dus ook met een hogere categorie dan 3.2.
Agrarisch buitengebied en natuurgebieden: voor beide gebieden streven we eenzelfde soort geluidkarakter na. Hier staan we een geluidniveau toe wat vergelijkbaar is met de woongebieden. Ten noorden van de A59 zien we ruimte voor agrarische aanverwante activiteiten, natuur en recreatie. Ten zuiden van de A59 zien we ruimte voor meer functiemenging met natuur. We werken met een bandbreedte, als soort gemengd gebied.
In 2026 hebben we in de gemeente alle basis-geluidemissies bepaald. Als daar situaties uitkomen waar sprake is van een dreigende overschrijding van de grenswaarden zullen we een verplicht programma geluid opstellen waarin maatregelen worden opgenomen.
Licht
Licht biedt (een gevoel van) veiligheid en geeft de mogelijkheid om dingen te ondernemen als het donker is. Constant te veel licht is niet goed, want mensen en dieren hebben het donker nodig voor een gezond bioritme. De kaart hieronder (figuur 18) laat zien dat met name in de bebouwde gebieden en het havengebied van Waalwijk ’s nachts veel licht te zien is. Wij willen daarom aansluiten bij het actieplan lichthinder van de Provincie Noord-Brabant. Het motto van dit actieplan is “donker waar het kan, licht waar het moet”. Aan de hand van dit actieplan willen we lichtvervuiling gaan beperken. Doelstelling van het actieplan is om voor 2030 ernstige lichthinder te verminderen en de verstoring van Natura 2000-gebieden in ieder geval niet te laten stijgen ten opzichte van 2020. Hiervoor maken we gebruik van de zone-indeling uit de Richtlijn Lichthinder.

Er dient meer draagvlak te komen voor het beperken van lichtvervuiling, bijvoorbeeld met een actieve beperking van openbare verlichting in het buitengebied. Dit is soms een uitdaging, omdat mensen bij minder licht in een gebied vaak een minder veilig gevoel ervaren. De komende jaren werken we aan een concrete uitwerking met maatregelen. Voor lichtregels sluiten we aan bij de rijksregels van het Besluit activiteiten leefomgeving.
Geur
In het agrarische gebied en bij bedrijven en industrie kunnen geuren geproduceerd worden die als hinderlijk ervaren kunnen worden (zie figuur 19). Geurhinder proberen we zo veel mogelijk te beperken. Bij de aanwezigheid van geur veroorzakende bedrijven en activiteiten is het echter onvermijdelijk dat er van tijd tot tijd een zekere mate van geurhinder optreedt. De mate van overlast is mede afhankelijk van de weersomstandigheden. Zo zal in het buitengebied van tijd tot tijd een mestgeur of in de stadscentra bijvoorbeeld afzuiging van horeca of andere voedselproducerende bedrijven te ruiken zijn. Er wordt daarom gebiedsgericht bepaald wat een acceptabel geurhinderniveau is. Bij deze beoordeling is de geurbeleving (de hedonische waarde) een belangrijk criterium. Bovendien is de verwachting dat geuremissies afnemen door (verplichte) toepassing van de best beschikbare technieken.

Omgevingsveiligheid
De meeste milieubelastende activiteiten in de gemeente vinden plaats in de havens en industriegebieden. Daarnaast loopt door de gemeente nog een hogedrukgasleiding en is de A59 onderdeel van het basisnet (zie figuur 20).
In de gemeente zijn twee Sevesobedrijven. Dit zijn bedrijven waar men gevaarlijke stoffen produceert, verwerkt, behandelt of opslaat, bijvoorbeeld raffinaderijen, petrochemische ondernemingen en chemische fabrieken. Beide bedrijven zitten in de haven van Waalwijk.

Het uitgangspunt is een balans te vinden tussen een veilige leefomgeving voor inwoners en voldoende kansen bieden aan bedrijven vanuit een economisch en sociaal perspectief. Daarom wordt in de Beleidsvisie externe veiligheid een onderscheid gemaakt tussen verschillende gebieden. In gebieden waar meer kwetsbare gebouwen zijn, zoals woningen en scholen, staan we geen nieuwe risicovolle inrichtingen toe. Samen met de Omgevingsdienst Midden- en West-Brabant werken we de komende tijd aan nieuw beleid voor externe veiligheid, waarbij we ook rekening houden met de energietransitie en de landbouwtransitie.
Water
De wijze waarop wij ons watersysteem inrichten, is van enorme invloed op onze kwaliteit van leven en onze gezondheid. Riolering heeft meer bijgedragen aan de volksgezondheid dan de medische wetenschap, zo wordt wel gezegd, omdat een goed afvalwatersysteem de verspreiding van ziektes voorkomt en zorgt voor een schone leefomgeving. Daarmee is water een essentiële drager om onze ambities waar te maken. Het voorkomen van riool overstorten of water op straat vanuit gemengde riolering bij extreme buien willen we daarom beperken. We moeten er dus voor zorgen dat het rioleringssysteem goed blijft functioneren.
Water heeft daardoor sterke raakvlakken met andere beleidsthema’s zoals klimaatadaptatie, stedelijke ontwikkeling en volksgezondheid. Dit vraagt om een integrale benadering vanaf het prille begin van een initiatief, zodat we optimaal gebruik maken van de samenhang tussen groen, water en gezondheid. De uitdagingen zoals klimaatverandering vragen om gezamenlijke verantwoordelijkheid en innovatieve oplossingen.
Samenvatting speerpunten
We zorgen dat de basis op orde is door verbeteren van de luchtkwaliteit, beperken geluidsoverlast en lichthinder en zorgen voor een schone, klimaatbestendige gemeente.
We stimuleren gezond gedrag door het integreren van gezondheidsbeleid in ruimtelijke projecten, stimuleren van sport en bewegen in een aantrekkelijke omgeving en het stimuleren van duurzame mobiliteit zoals fietsen en lopen.
We richten buurten in met toegankelijke en aantrekkelijke ontmoetingsplekken zowel binnen (buurthuis) als buiten (groenpark) en stimuleren sociaal contact, elkaar helpen en beweging. Ondersteuning is dichtbij en laagdrempelig beschikbaar.
We verbeteren de fysieke leefomgeving in kwetsbare wijken.
We stimuleren initiatieven zoals woongemeenschappen en maken de openbare ruimte toegankelijk, zodat ouderen langer zelfstandig kunnen wonen met passende ondersteuning.
We investeren in sport- en cultuurvoorzieningen, zodat jongeren zich betrokken voelen bij Waalwijk en minder vervallen in ongewenst gedrag. We balanceren economische activiteiten met veiligheid en duurzaamheid, minimaliseren risico’s van bedrijven en verbeteren het waterbeheer voor een gezonde toekomst.
Inleiding
Onze gemeente moet een thuis zijn voor onze inwoners. De gemeente staat voor een belangrijke woningbouwopgave waarin we streven naar geschikte en betaalbare woningen voor alle inwoners, nu en in de toekomst. Met de vergrijzing en een veranderende bevolkingssamenstelling passen we ons woningaanbod aan. Het unieke karakter van Waspik, Sprang-Capelle en Waalwijk versterken we door woningen te bouwen die bijdragen aan krachtige gemeenschappen.
Een passende woning voor nu en in de toekomst
We vinden het belangrijk dat mensen in de gemeente een geschikte en betaalbare woning kunnen vinden in een gezonde en prettige omgeving. Daarom hanteren we bij ontwikkelingen de verdeling 30% sociale huur, 40% betaalbare koop of huur en 30% in het dure segment. We houden hierbij rekening met de behoefte nu, maar ook met de bevolkingsopbouw in de toekomst. In 2024 bestond meer dan 75% van de woningvoorraad uit eengezinswoningen. Dat terwijl ongeveer 60% van de huishoudens bestond uit één of twee personen. De verwachting is dat in de gemeente het aantal huishoudens blijft groeien. Het aantal huishoudens neemt naar verhouding sneller toe dan het aantal inwoners, doordat de gemiddelde huishoudensgrootte daalt. Mede doordat mensen gemiddeld ouder worden en door de vergrijzing neemt het aantal alleenstaanden toe. We willen bouwen voor een evenwichtige bevolkingsopbouw in de toekomst en zetten daarom in op meer woningen die geschikt zijn voor één- of tweepersoonshuishoudens.
Door de vergrijzing zal het aantal senioren relatief gezien flink stijgen. Bij alle nieuwbouwontwikkelingen bekijken we daarom de mogelijkheid van het ontwikkelen van levensloopgeschikte woningen voor senioren. Hiervoor zien we extra kansen in de centra van de kernen. Dit is dichtbij voorzieningen en openbaar vervoer. Tegelijkertijd zoeken veel jonge mensen een woning. We zetten ook in op woonvormen waar jongeren en ouderen samen kunnen wonen. Zo pakken we de woningnood voor deze twee groepen aan en faciliteren we een sociale woonomgeving waar mensen naar elkaar omkijken en elkaar kunnen helpen.
In het aanpakken van de woningbouwopgave werken we samen met Rijk, provincie en de gemeenten in onze regio. We volgen daarin de Woondeal van de Stedelijke Regio Breda – Tilburg, waarin de belangrijkste opgaven zijn afgesproken met provincie en Rijk. We leggen meer nadruk op de bestaande woningvoorraad. Hierbij focussen we op het verduurzamen van de woningvoorraad, het optimaal benutten van de voorraad (bijvoorbeeld door woningsplitsing te blijven faciliteren, mogelijkheden van optoppen te verkennen of hospitawonen) en kijken we hoe bestaande woningen beter afgestemd kunnen worden op de bewoners. Daarnaast zetten we in op een vraaggericht, flexibel planaanbod met ruimte voor nieuwe en tijdelijke woonvormen, zoals collectieve woonvormen en zelfvoorzienend wonen.
Op regionaal niveau werken we samen met de Stedelijke regio Breda -Tilburg. In de woondeal zijn afspraken gemaakt om in regionaal verband de woningbouwopgave op te pakken en geschikte woningen te bouwen. Per gemeente zorgen we dat bij nieuwe, zachte plannen 30% sociale huur wordt gerealiseerd en 40% middeldure huur en/of betaalbare koop. Bij kleine plannen kan hiervan afgeweken worden, mits dat gecompenseerd wordt (bijvoorbeeld via een vereveningsfonds). Door ook in te zetten op middeldure en dure woningen willen we doorstroming op gang brengen.
We zorgen dat er voldoende mogelijkheden zijn voor aandachtsgroepen, zoals dak- en thuislozen, sociaal urgenten en dreigend daklozen, uitstroom uit intramurale situaties, statushouders, studenten, internationale medewerkers en woonwagenbewoners. Enerzijds doen we dit door regionaal afspraken te maken over de huisvesting van aandachtsgroepen (dit wordt met de Wet versterking regie volkshuisvesting ook verplicht) en die vast te leggen in een urgentieregeling in de Huisvestingsverordeningen van alle gemeenten. Anderzijds spelen we hier ook op in door in de nieuwbouwprogrammering 30% sociale huur aan te houden.
We werken aan een uitbreiding van het aantal woonwagenstandplaatsen. We hebben aandacht voor de huisvesting van internationale medewerkers. Op nationaal niveau is de rijksoverheid bezig met het verbeteren van hun positie. Het is bijvoorbeeld verplicht om het arbeidscontract en het huurcontract los van elkaar aan te bieden bij woningverhuur aan internationale medewerkers. Hierdoor komen internationale medewerkers niet direct op straat te staan als ze hun baan verliezen. De afgelopen jaren hebben we als gemeente veel initiatieven voor kamerverhuur gefaciliteerd. Tegelijkertijd zien we dat het grote aantal internationale medewerkers in onze gemeente ook gevolgen heeft voor de inzet van de gemeente, met name op het gebied van welzijn, maar ook als het gaat om toezicht en handhaving en onze basisregistraties. We willen voorkomen dat we als gemeente uiteindelijk meer kamerverhuurlocaties faciliteren dan passend is bij de behoefte binnen de gemeente. De inzet die we doen, willen we zoveel als mogelijk richten op internationale medewerkers die in de gemeente Waalwijk werken en verblijven. Daarom is besloten om de mogelijkheden voor kamerverhuur in twee stappen verder in te perken.
De eerste stap is gericht op het niet verder toestaan van nieuwe locaties voor grootschalige kamerverhuur. Deze stap is reeds afgerond. De tweede stap richt zich op het verder inperken van de mogelijkheden voor kleinschalige kamerverhuur. Op korte termijn wordt ook deze inperking gerealiseerd.
De komende tijd werken we - in lijn met de Wet Versterking Regie Volkshuisvesting - aan het Volkshuisvestingsprogramma. Hierin komen de Woonvisie, woonzorgvisie en het woningbouwprogramma samen.
Bouwen om te versterken
In de periode 2024 tot en met 2030 voegen we minimaal 2.010 woningen toe aan de woningmarkt. Dit is gebaseerd op de afspraken in de SRBT Woondeal en de provinciale bevolkings- en woningbouwprognose uit 2023. Ook na 2030 voegen we woningen toe aan de woningmarkt. De afspraken hierover worden de komende jaren gemaakt. In dat samenwerkingsverband zetten we in op het versnellen van woningbouw met Landgoed Driessen Fase 2 en kansrijke locaties in het centrum van Waalwijk, zoals de Els.
Om onze waardevolle landschappen te behouden, lossen we de woningbouwopgave voor de periode na 2030 zoveel mogelijk binnenstedelijk op. We kijken juist naar de plekken die nu al bebouwd zijn. Zo voorkomen we dat we het groen in de bebouwde kom moeten opofferen. Sterker nog, het doel is te verdichten en te vergroenen tegelijkertijd. Dit kan door gebouwen te transformeren naar een woonfunctie en te zoeken naar mogelijkheden voor optoppen, woningdelen en woningsplitsen. Met sloop-nieuwbouw kunnen we op bepaalde locaties meer woningen realiseren, bijvoorbeeld door hoger te bouwen in en rondom het centrum. Hierbij kijken we ook actief naar bestaande wijken en mogelijkheden voor herstructurering. Inbreiding gaat hierbij voor uitbreiding, waarbij we werken aan verdichten en vergroenen. Bestaande bebouwing wordt vergroend waar dat kan, bijvoorbeeld met klimplanten of groene daken. Nieuwe woningen hebben bij voorkeur een multifunctioneel dak (naast groen is ook waterberging of energieopwekking mogelijk op het dak, geen dakoppervlak blijft onbenut). We zorgen voor voldoende grondgebonden groen op straat zodat we bijdragen aan onze klimaat- en biodiversiteitsdoelen en ruimte bieden voor ontmoeten, spelen en bewegen in het groen.
We zetten in op natuurinclusieve en energieneutrale nieuwe woonomgevingen. Hierbij houden we oog voor de betaalbaarheid en haalbaarheid. We bekijken per project, via een integrale afweging, wat het meest optimale resultaat kan zijn. Daarnaast hebben we aandacht voor sociale woonomgevingen. Nieuwe woonomgevingen moeten de sociale structuren versterken, bijvoorbeeld met gemeenschappelijke plekken en door de openbare ruimte in te richten gericht op ontmoeting, spelen en bewegen in het groen. We werken hiermee aan een verbonden samenleving. Daarnaast versterken we de kracht van verscheidenheid door de eigenheid van Waspik, Sprang-Capelle en Waalwijk te onderschrijven. Nieuwe woonomgevingen moeten passen bij het stedelijk en sociale weefsel van een omgeving. Een goede relatie met landschap en erfgoed is daarbij belangrijk. In Waspik en Sprang-Capelle bouwen we om de leefbaarheid te behouden en te versterken. Dat doen we in een dorpse schaal, zodat het qua bouwhoogte en dichtheid aansluit bij het dorpse karakter. Hier voegen we woningen toe die daaraan bijdragen. In het centrum van Waalwijk en de aansluitende wijken zetten we in op duurzame verstedelijking. Dit betekent dat we op transformatielocaties woningen toevoegen. We zien ook kansen voor optoppen en herstructureringslocaties. Dat doen we in combinatie met het verbeteren van de kwaliteit van de leefomgeving en met oog voor de kwaliteit van leven van inwoners zodat het bijdraagt aan Brede Welvaart. Door in te zetten op verstedelijking kan Waalwijk voldoende draagvlak creëren voor een fatsoenlijk voorzieningenniveau van zowel commerciële en maatschappelijke voorzieningen en mobiliteit, wat ook is afgestemd op de regionale vraag en aanbod. Deze verstedelijking wordt mede mogelijk doordat we op bepaalde plekken hoger bouwen en we de parkeernorm slimmer gaan toepassen. Bij woningen voor senioren of starters zijn vaak minder parkeerplaatsen nodig dan bij eengezinswoningen. Het parkeerbeleid 2025 ondersteunt dit.
Bij het toevoegen van nieuwe woningen maken we onderscheid in functiewisseling, woningsplitsing en nieuwbouw op zogenaamde inbreidingslocaties. In alle gevallen is het toevoegen van nieuwe woningen denkbaar onder een aantal voorwaarden. Belangrijk uitgangspunt is dat woningen passen in de bestaande stedenbouwkundige (lint)bebouwingsstructuur, wat betekent dat ze georiënteerd zijn op en zichtbaar zijn vanaf de openbare weg. In zeer uitzonderlijke gevallen zou een uitzondering gemaakt kunnen worden om een woning toe te staan die niet direct aan de openbare weg ligt. Er moet dan sprake zijn van een plan dat zelf een positieve bijdrage levert aan de ruimtelijke kwaliteit, bijvoorbeeld in het geval van een monument.
In het hoofdgebouw en aangebouwde bijgebouwen van woningen zijn de functionele mogelijkheden gelijk. In vrijstaande bijgebouwen zijn alleen ondergeschikte woonfuncties toegestaan. Dat betekent dat een vrijstaand bijgebouw alleen gebruikt mag worden voor functies die niet direct ten dienste staan van de woonfunctie zoals een garage, berging, praktijkruimte, en enkel op de begane grond. Wij willen namelijk voorkomen dat een vrijstaand bijgebouw (op een achtererf) een zelfstandige permanente woonruimte gaat vormen. Dit is anders voor tijdelijke bewoning van vrijstaande bijgebouwen bij een woning. Tijdelijk zijn in vrijstaande bijgebouwen onder voorwaarden onzelfstandige woningen toegestaan in de vorm van mantelzorg en pre-mantelzorg. We onderzoeken de mogelijkheden en voorwaarden voor tijdelijk wonen zonder zorgcomponent op achterterreinen.
De basis van het provinciale verstedelijkingsbeleid is dat woningen binnen het stedelijk gebied worden gerealiseerd waar ook de voorzieningen aanwezig zijn, zoals winkels, theaters, sportfaciliteiten, medische faciliteiten en zorgvoorzieningen. Het beleid voor buitenstedelijk bouwen is gericht op zorgvuldig ruimtegebruik en het tegengaan van verdere verstening en verrommeling van het landelijk gebied. Er wordt terughoudend omgegaan met het verspreid toevoegen van nieuwe woningen. Bovendien staat een steeds verder toenemende woonfunctie op gespannen voet met het bieden van ontwikkelingsmogelijkheden aan de agrarische sector. Daarom geldt als basisregel dat in landelijk gebied geen toename van het aantal woningen mogelijk is en dat het gebruik voor permanente bewoning van (bedrijfs-)gebouwen of recreatiewoningen is uitgesloten. Afhankelijk wonen, mantelzorg (of een bijgebouw behorende bij de woning), blijft mogelijk omdat hierbij geen sprake is van een zelfstandige woonfunctie.
Buitenstedelijk bouwen in de vorm van een, of enkele, individuele woning(en) is alleen voorstelbaar als dit zorgt voor een versterking van omgevingskwaliteit en dit in verhouding staat tot de ontwikkeling van de gewenste woning(en). Voor het toevoegen van woningen in het landelijk gebied is het belangrijk dat dit een bijdrage levert aan het versterken van de omgevingskwaliteit, het terugdringen van emissie van milieuhinderlijke stoffen of dat sprake is van de verbetering van het woon-leefklimaat en kwaliteit van het landschap. De provinciale verordening biedt in ieder geval onder voorwaarden ruimte voor kleinschalige collectieve woonvormen op een bestaand bouwperceel of de ontwikkeling van een landgoed.
Mocht een locatie aan de rand van een kern geschikt zijn voor een omvangrijkere, planmatige uitbreiding, dan blijft het mogelijk de realisatie ervan te onderzoeken als hiervoor een zwaarwegend maatschappelijk belang is. Voorwaarde hierbij is dat we daarmee ook andere opgaven kunnen aanpakken en kwaliteiten kunnen toevoegen. Bijvoorbeeld door een inpassing van de ontwikkeling die ten gunste komen aan de kwaliteit van het water, de bodem, ecologie en de landschappelijke inrichting. Zoals het versterken van aanwezige of verdwenen landschappelijke en historische structuren en toevoegen van kwalitatief hoogwaardig groen en blauw.
Wonen is een gezamenlijke opgave
Wonen is een regionale opgave. Verschillende partijen moeten samenwerken om te voorkomen dat woningbouwplannen elkaar in de weg zitten. We versterken onze regionale samenwerking en vernieuwen regionale bouwafspraken met de Stedelijke regio Breda - Tilburg. Daarnaast werken we met ontwikkelaars en woningcorporaties om onze ambities te realiseren.
We beschouwen de woonopgave integraal en nemen vroegtijdig opgaven als netcongestie en drinkwatervoorzieningen mee in het planproces.
Samenvatting speerpunten
We realiseren meer woningen voor één- en tweepersoonshuishoudens, passend bij de groeiende groep alleenstaanden en de veranderende bevolkingssamenstelling.
We zorgen voor voldoende betaalbare en passende woningen. We hanteren bij nieuwbouwprojecten de verdeling van 30% sociale huur, 40% betaalbare koop of huur en 30% duurdere woningen, om doorstroming en diversiteit te bevorderen.
We realiseren woningen zoveel mogelijk binnen bestaand stedelijk gebied door herstructurering, optoppen en transformatie, waarbij we vergroening en leef-kwaliteit vooropstellen. Naast grondgebonden groen bieden dak- en gevelgroen mogelijkheden bij bestaande en nieuwe bouw.
We zetten in op het optimaal benutten van de bestaande woningvoorraad door te zoeken naar mogelijkheden voor optoppen, woningdelen en woningsplitsen. Daarnaast onderzoeken we geschikte locaties voor tweedelijns bebouwing, bieden we ruimte voor het transformeren van gebouwen naar een woonfunctie en bieden we ruimte voor innovatieve woonvormen, zoals zelfvoorzienend wonen en collectieve woonconcepten.
We werken intensief samen met de provincie, de Stedelijke Regio Breda-Tilburg en woningcorporaties om de woningbouwopgave te versnellen en af te stemmen op de regionale behoeften. Monitoring is daarbij van belang.
We realiseren levensloopbestendige woningen voor senioren in de centra van de kernen, dichtbij voorzieningen en openbaar vervoer.
We zorgen voor voldoende huisvesting voor sociaal urgenten, statushouders, studenten, internationale medewerkers en woonwagenbewoners en breiden het aantal woonwagenstandplaatsen uit.
We stimuleren woonvormen waarin jongeren en ouderen samen kunnen wonen, zodat we de woningnood aanpakken en sociale cohesie versterken.
We zetten in op verduurzaming van bestaande woningen en bouwen energieneutraal en natuurinclusief, met oog voor betaalbaarheid en sociale structuren door gemeenschappelijke ruimtes en openbare groene plekken te integreren.
We werken aan een Volkshuisvestingsprogramma waarin we flexibel inspelen op toekomstige woonbehoeften en ontwikkelingen.
We streven in het landelijk gebied naar zorgvuldig ruimtegebruik, het tegengaan van verdere verstening en verrommeling van het landelijk gebied. In het landelijk gebied moet de fysieke tegenprestatie gericht op het versterken van de omgevingskwaliteit in verhouding staan tot de ontwikkeling van een woning.

Een sterke gemeenschap en Brede Welvaart beginnen bij een omgeving waarin iedereen de kans krijgt om zich te ontwikkelen, anderen te ontmoeten en deel te nemen aan het maatschappelijk leven. Toegankelijke en diverse voorzieningen in onze kernen zorgen ervoor dat jong en oud zich thuis voelen en kunnen meedoen.
Een duurzame en sociale economie speelt hierin een cruciale rol. Door ondernemerschap te stimuleren dat bijdraagt aan de gemeenschap, versterken we niet alleen de lokale economie, maar ook de sociale samenhang en werkgelegenheid. Lokale bedrijven en initiatieven vormen de ruggengraat van een bloeiende samenleving waar iedereen profiteert.
Daarnaast geven cultuur en erfgoed identiteit aan onze gemeente. Door deze te behouden en beleefbaar te maken voor recreanten van binnen en buiten de gemeente, creëren we inspirerende plekken voor ontspanning en ontmoeting. Zo bouwen we aan een gemeente waarin iedereen zich verbonden, thuis en veilig voelt, waar mensen zorgdragen voor hun omgeving en waarin ruimte is voor zowel traditie als vernieuwing.
Inleiding
De gemeente Waalwijk streeft naar een breed en evenwichtig aanbod van commerciële en maatschappelijke voorzieningen in alle kernen, voor alle leeftijden. Commerciële voorzieningen versterken de economie en levendigheid, terwijl maatschappelijke voorzieningen bijdragen aan welzijn en sociale samenhang. Door beide te verbinden en af te stemmen op de behoeften van inwoners, blijft Waalwijk een dynamische en inclusieve gemeente. Iedereen moet kunnen profiteren van een toegankelijk en toekomstbestendig voorzieningenniveau.
Voorzieningen die bijdragen aan ons welzijn
Ontmoeten is een belangrijk onderdeel binnen de sociale basis van het programma Samen Redzaam. Ontmoeten draagt in belangrijke mate bij aan de gezondheid en het geluksgevoel van onze inwoners. Om dit voor de hele gemeente optimaal in te richten worden ontwikkelingen zoveel mogelijk aangesloten bij bestaande voorzieningen en functies. We hebben aandacht voor de sociale structuur van de gemeente door inwoners en onze partners te betrekken bij het behouden en creëren van fijne plekken.
Compacte levendige centra
Onze centra met voorzieningen zijn plekken waar onze inwoners samenkomen en die de kernen levendig maken. We werken aan compacte, levendige centra in alle kernen. Hierbij trekken we op met het programma Samen Redzaam en zorgen we voor verbinding en versterking van de samenhang tussen het sociale en het fysieke domein. Door de bestaande centra compact te houden zitten voorzieningen dichtbij elkaar, treffen mensen elkaar makkelijker en neemt de levendigheid toe. De openbare ruimte richten we in met bijvoorbeeld bankjes, speelmogelijkheden en groen. Zo worden dit fijne plekken om te verblijven voor alle leeftijden.
Sinds 2017 zijn we als gemeente al actief bezig om onze centra een bredere functie te geven. Waar dit voorheen plekken waren voor winkels en horeca (kopen) zien we nu en in de toekomst meer mogelijkheden voor samenzijn en beleven (verblijven). Bijvoorbeeld met cultuur, vrijetijdsvoorzieningen, werkplekken, zoals een kantoor of flexwerkplek, cultuur of kleinschalige kennisintensieve (maak)industrie en ambachten. Deze functies moeten de levendigheid van het centrum versterken en mogen geen negatieve effecten hebben op de leefbaarheid. Dit beleid willen we vasthouden en uitbouwen, waarbij we het karakter van elk centrum willen versterken.
Waalwijk-centrum is het economische, culturele en sociale hart van de gemeente en directe omgeving. Het centrum van Waalwijk gaan we de volgende jaren versterken. Dat doen we door het gebied te verdichten waardoor het draagvlak toeneemt voor een compleet en gevarieerd winkel- en voorzieningenaanbod. Daarnaast maken we het gebied aantrekkelijker door het kerncircuit compacter te maken, een aantal centrumentrees toe te voegen als markering van het centrum, de publiekstrekkers (zoals supermarkten) te verplaatsten naar de stadsentree en meer ruimte te bieden aan werken, zoals kantoren of ambachten. We verbeteren de verblijfskwaliteit met meer aandacht voor verblijven en ontmoeten. Daarnaast versterken we het thema schoenen, leer en mode, zodat het centrum een sterk profiel krijgt. De openbare ruimte maken we aantrekkelijker en klimaatadaptiever met meer ruimte voor groen en water.
Waspik onderscheidt zich door zijn landelijke karakter. De kern kent een sterke gemeenschapszin en is lokaal georiënteerd. In de kleinste kern van de gemeente wordt het behoud van een zo compleet mogelijk aanbod aan frequente benodigdheden voor de lokale inwoners nagestreefd. Kleinschalige ambachtelijke bedrijven en lokaal ondernemerschap worden gestimuleerd, zodat de dorpsgemeenschap zijn eigenheid behoudt.
Ook Sprang-Capelle heeft een sterke dorpsgemeenschap. De kern vormt een schakel tussen de dynamiek van Waalwijk en de rust van het buitengebied. Het centrum van Vrijhoeve biedt een aantrekkelijk aanbod van dagelijkse voorzieningen voor de inwoners van Sprang-Capelle en Landgoed Driessen. We richten ons daarom op een combinatie van moderne voorzieningen en behoud van het lokale karakter. De compacte opzet van het centrum wordt versterkt met verbeterde ontmoetingsplekken en voorzieningen die inspelen op een diverse bevolkingssamenstelling. Er is ruimte voor kleinschalige bedrijvigheid, waarmee Sprang-Capelle de unieke identiteit verder kan ontwikkelen.
Zie voor een nadere toelichting paragraaf 5.3 Centrumgebieden.
Voor de kleine kernen wordt er op dit moment in het verband van de Stedelijke regio Breda – Tilburg een dorpenstrategie ontwikkeld. Hierin wordt onderzocht welke voorzieningen per grootte van een dorp dienen te behoren tot de basisvoorzieningen. Deze dorpenstrategie kunnen we gaan gebruiken bij het concreet maken van de ambitie die basis op orde te houden of te krijgen.
Naast het versterken van de verschillende centra hebben we ook aandacht voor het buurtcentrum Bloemenoordplein De solitaire supermarkten, onder meer gevestigd in Laageinde, Zanddonk en aan de Van der Duinstraat, zien we als buurtsteunpunten zijn een belangrijke aanvulling op de huidige structuur. Een deel van bedrijventerrein Zanddonk en een zone direct ten westen van de N261 zien we als onderdeel van de regionale leisureboulevard. Hier stimuleren we vrijetijdsvoorzieningen en detailhandel, passend binnen deze regionale leisureboulevard, een as, die zich uitstrekt van De Beekse Bergen via de Efteling naar Waalwijk, met als doel het aantrekken van toerisme en het stimuleren van economische groei.
Brede, toegankelijke voorzieningen dichtbij inwoners in de wijken
In de wijken zetten we in op toegankelijke en vitale maatschappelijke voorzieningen. We werken aan een nauwe samenwerking tussen sport, onderwijs en verenigingen. Mogelijkheden voor functiemenging stimuleren we, zoals een multifunctionele accommodatie waar onderwijs, kinderopvang, sport en verenigingen samen gebruik van maken. We bieden inwoners en sociaal ondernemers in de gemeente de mogelijkheid om zelf actief bij te dragen aan het behoud van goede voorzieningen in de wijk.
Zorg organiseren we waar mogelijk op wijkniveau, dicht bij onze inwoners. We streven in elke wijk naar een gezondheidscentrum, met een huisarts, tandarts en apotheek. Dit sluit aan bij onze Koers Sociaal Domein waarbij we voor onze inwoners maatschappelijke en sociale voorzieningen organiseren als onderdeel van de sociale basis.
Gemeenten hebben niet direct invloed op de vestiging van huisartsenpraktijken/ gezondheidscentra omdat dit ‘commerciële’ voorzieningen zijn, maar we zoeken wel de samenwerking met directe partijen zoals de Zorgverzekeraars en de regionale huisartsenorganisaties (PrimaCura).
De gezondheidsvoorzieningen liggen centraal in de wijk, zodat het voor inwoners makkelijk te fiets of lopend bereikbaar is. In Waalwijk Oost ontbreekt een gezondheidsvoorziening op dit moment omdat alle voorzieningen die er waren zich hebben gevestigd in het gezondheidscentrum aan de Coubertinlaan in de wijk Bloemenoord. Als gemeente zetten we ons in door verzoeken van huisartspraktijken, apothekers, tandartspraktijken en fysiotherapeuten met prioriteit op te pakken en het vestigen in de wijken zonder gezondheidsvoorziening te stimuleren. Daarnaast willen we op een centrale plek in de gemeente een regionale zorgfunctie behouden voor onder andere poliklinische- en revalidatiezorg. Met het nieuwbouwplan Florissant aan de Kasteellaan in Waalwijk wordt hierin voor de lange termijn voorzien.
De gemeente Waalwijk is er voor alle leeftijden. We verbeteren de voorzieningen voor jongeren. In alle kernen kijken we of we samen met bijvoorbeeld sport of culturele en sociale verenigingen meer kunnen organiseren. We doen dat samen met de jongeren; zij weten immers het beste waar ze behoefte aan hebben. Daarnaast werken we aan de toegankelijkheid van onze voorzieningen voor ouderen en minder validen. Bij nieuwe ontwikkelingen houden we hier rekening mee bij de inrichting van de openbare ruimte.
Onderwijs
De gemeente Waalwijk heeft een gevarieerd onderwijsaanbod (basisonderwijs, speciaal basisonderwijs en voortgezet onderwijs). In het Meerjaren Investerings Programma onderwijshuisvesting 2022-2025 (MIP) zijn de kaders bepaald waarbinnen de gemeente Waalwijk, samen met de schoolbesturen die actief zijn in de gemeente, investeert in de onderwijshuisvesting. De beleidsambities in het MIP spitsen zich toe op duurzame en gezonde schoolgebouwen en samenwerking tussen onderwijs en kinderopvang. Bij nieuwbouw van een school is de gemeente bereid om te investeren in extra m² voor een kindvoorziening, wanneer de kosten voor de niet-onderwijscapaciteit (kapitaallasten/exploitatielasten) met huuropbrengsten worden gecompenseerd. De kinderopvangorganisatie moet in dit geval bereid zijn om een langjarige huurovereenkomst aan te gaan. Partners in het kindcentrum maken (multi)functioneel gebruik van elkaars ruimten.
In onze gemeente hebben we te maken met een ‘brain drain’: een deel van de jongeren trekt weg naar de grotere steden om vervolgonderwijs te volgen en gaat vervolgens in andere gemeenten wonen en werken. We willen deze groep graag vasthouden. Daarvoor verbeteren we onze ‘kleefkracht’. We zetten onder andere in op een breder leeraanbod dat aansluit bij de kwalitatieve capaciteitsvraag vanuit ons lokale bedrijfsleven en willen we het regionale onderwijsaanbod (MBO-HBO-WO) meer ‘naar binnen halen’. We gaan werken aan een actieve verbinding tussen bedrijven en opleidingen, bijvoorbeeld in de vorm van stageplaatsen. Om dit te bewerkstelligen, werken we samen met het bedrijfsleven en onderwijs. Een andere manier waarop we jongeren willen binden aan onze gemeente is door te investeren in robuust en betrouwbaar openbaar vervoer. Daardoor kunnen jongeren in onze gemeente blijven wonen en in een andere gemeente onderwijs volgen. De kans is dan groter dat ze na hun opleiding een baan zoeken in onze gemeente.
Samenvatting speerpunten
We zorgen voor een evenwichtige verdeling van commerciële en maatschappelijke voorzieningen in alle kernen, zodat alle inwoners hiervan kunnen profiteren.
We creëren en behouden ontmoetingsplekken die bijdragen aan welzijn en sociale samenhang door inwoners en partners actief te betrekken bij de inrichting van de openbare ruimte.
We versterken de centra door voorzieningen te concentreren, functies te combineren en aantrekkelijke verblijfsruimtes te realiseren met groen, bankjes en speelmogelijkheden.
We zetten in op een mix van detailhandel, horeca, cultuur, werkplekken en ambachten om de levendigheid van de centra te vergroten, zonder negatieve impact op de leefbaarheid.
We ontwikkelen Waalwijk-centrum als economisch, cultureel en sociaal hart, versterken de dorpskarakters van Waspik en Sprang-Capelle en ondersteunen lokaal ondernemerschap.
We stimuleren functiemenging, zoals multifunctionele accommodaties waarin onderwijs, kinderopvang, sport en verenigingen samenkomen en ondersteunen inwonersinitiatieven voor het behoud van voorzieningen.
We realiseren gezondheidscentra per wijk, waarin huisartsen, tandartsen, apotheken en fysiotherapeuten samenwerken, we hebben daarbij extra aandacht voor Waalwijk Oost.
We investeren in activiteiten voor jongeren in samenwerking met sport- en cultuurverenigingen en zorgen voor toegankelijke voorzieningen voor ouderen en mindervaliden in alle kernen.
We halen meer regionale onderwijsvoorzieningen naar Waalwijk, stimuleren stageplaatsen en samenwerkingen met bedrijven en zetten in op een leeraanbod dat aansluit bij de arbeidsmarkt.
We verbeteren het openbaar vervoer en zorgen voor betrouwbare verbindingen zodat jongeren in Waalwijk kunnen blijven wonen en tegelijkertijd toegang hebben tot onderwijs in andere steden.
Inleiding
Economie is meer dan alleen productie, bedrijven en diensten. Het draagt in sterke mate bij aan het welzijn van onze inwoners. Het hebben van een baan biedt niet alleen inkomen en zelfstandigheid, maar ook zingeving en sociale verbinding. Waalwijk heeft een sterke economische positie als logistieke toplocatie met hoogwaardige industrie, sterke midden- en kleinbedrijven (MKB) en een opkomende leisuresector. Deze motor van bedrijvigheid en werkgelegenheid levert een belangrijke bijdrage aan de regio.
Uit de Economische Verkenning blijkt dat een kwaliteitsslag nodig is om toekomstbestendig te zijn. De gemeente Waalwijk kan zijn sleutelpositie behouden door te investeren in innovatie, waarbij automatisering en robotisering leiden tot productiviteitsgroei en een diverse mix aan banen. Diversificatie biedt kansen voor verdere economische groei in sectoren zoals hightech en leisure, en versterkt de verbinding met Brainport Eindhoven. Daarnaast willen we dat bedrijven en bedrijventerreinen meer bijdragen aan Brede Welvaart door samen in te zetten op duurzaamheid, energie, circulariteit en bereikbaarheid.
Door deze transitie gericht aan te pakken, kan de gemeente Waalwijk niet alleen zijn sterke economische positie behouden, maar ook bijdragen aan de economie van morgen en Brede Welvaart voor onze inwoners, werknemers en werkgevers.
Een brede kijk op onze economie
Onze economie staat niet op zichzelf maar kan, en moet, meer bijdragen aan de samenleving. Naast het genereren van materiële welvaart moet de economie beter bijdragen aan het welzijn van onze inwoners. Bijvoorbeeld op het gebied van gezondheid, onderwijs, milieu en duurzaamheid, leefomgeving, sociale cohesie, persoonlijke ontplooiing, zingeving en veiligheid. Dit principe van Brede Welvaart is leidend in de (economische) keuzes die we maken. Dat betekent dat we een bredere afweging maken in welke soort economie van toegevoegde waarde is in Waalwijk en waar dat gewenst is.
De gemeente Waalwijk streeft ernaar om in 2050 klimaatneutraal te zijn en de bedrijventerreinen dienen hier een substantiële bijdrage aan te leveren. In 2050 hebben we een circulaire economie met schone en slimme vervoerswijzen. Onze bedrijventerreinen richten we daarom slim in. We benutten eerst de beschikbare ruimte optimaal voordat we gaan uitbreiden.
Diversificatie en innovatie gaan hand in hand
De logistieke sector is een belangrijke pijler van onze economie. We zien echter dat deze sector op sommige vlakken zorgt voor knelpunten, bijvoorbeeld als het gaat om de afhankelijkheid van internationale medewerkers en verkeersbewegingen. We willen daarom onze economie verbreden met kennisintensieve (maak)industrie (waaronder High Tech Systemen en Materialen, kortweg HTSM) en ambachten. In de gemeente Waalwijk wonen relatief veel mensen die praktisch zijn opgeleid. We bieden onze inwoners graag werk dichtbij huis, zodat we de potentie van onze inwoners lokaal kunnen inzetten. Historisch gezien stond de gemeente bekend om leer- en schoenenindustrie. Met deze verbreding van onze economie brengen we deze maaksectoren op een moderne manier terug.
Ook richten we ons op de ontwikkeling van de circulaire economie. Dit betekent het minimaliseren van afval en het hergebruiken van grondstoffen, wat leidt tot een duurzamer economisch systeem. Dit vraagt om aanzienlijke veranderingen in productieprocessen, consumptiepatronen en logistieke ketens. Volgens scenariostudies uit Ruimte voor circulaire economie (2023) van het Planbureau voor de Leefomgeving (PBL) heeft de transitie naar een circulaire economie belangrijke ruimtelijke implicaties. Er is bijvoorbeeld meer ruimte nodig voor recyclingfaciliteiten, circulaire hubs en hergebruikcentra. De PBL-scenario's laten zien dat de ruimtelijke inrichting sterk afhankelijk is van de mate waarin consumenten en producenten betrokken zijn bij de transitie, en van de schaal waarop kringlopen worden georganiseerd. De omvang van de ruimtevraag van een circulaire economie in 2050 ligt in de toekomstbeelden tussen het huidige ruimtegebruik van economische activiteiten en 40% extra. Dit benadrukt de noodzaak voor proactief ruimtelijk beleid om de benodigde infrastructuur en locaties tijdig te plannen en te ontwikkelen. Op onze bedrijventerreinen sturen we op de transitie naar een circulaire economie. Hiervoor is vaak meer ruimte nodig, bijvoorbeeld voor de opslag van goederen. We spannen ons in voor effectief ruimtegebruik en een balans tussen lusten en lasten.
We zorgen voor een aantrekkelijk vestigingsklimaat en een goede balans met de leefomgeving door onze bedrijventerreinen slimmer en efficiënter in te richten. We maken een duidelijker onderscheid in het economisch profiel van elk bedrijventerrein. De terreinen zelf richten we duurzaam en groen in met een prettige verblijfskwaliteit. Waar dat mogelijk is kijken we - net als bij het wonen - of we kunnen verdichten, bijvoorbeeld door compacter te bouwen. Zo kunnen soms het kantoor of de parkeerplaatsen op het dak. Overlast naar de omgeving beperken we door bedrijven met een zwaardere milieucategorie te concentreren op afstand van gevoelige functies, zoals woonwijken. Daarnaast verbeteren we de bereikbaarheid van de bedrijventerreinen zowel voor de auto, fiets, openbaar vervoer en over water.
In de logistiek werken veel buitenlandse werknemers. We maken afspraken in een convenant met bedrijven over de ondersteuning van internationale medewerkers en vragen bedrijven om een financiële bijdrage. Daarmee verlagen we de maatschappelijke lasten en zorgen we voor betere ondersteuning en integratie van internationale medewerkers.
Agrarische sector
Onze agrarische sector is een belangrijk onderdeel van onze economie en is mede bepalend voor de beleving van ons buitengebied. Als gemeente zijn we zuinig op ons buitengebied, vanwege de leefbaarheid, als uitloopgebied vanuit de kernen en vanwege de aanwezige unieke landschappelijke en cultuurhistorische waarden. Door de verschillende bodemtypen (zand, klei, veen) is er veel vruchtbare landbouwgrond. Dit geldt met name voor de kleigronden. Tegelijkertijd zien we grote opgaven met een ruimtelijke impact, zoals de omslag naar een duurzame landbouw, verbreding van functies (stoppende boeren en boeren die verbreding zoeken), klimaatadaptatie en energievoorziening. In overleg met grondeigenaren zetten we in op zuinig ruimtegebruik en klimaatadaptatie. Daarnaast maken we samen met agrariërs de omslag naar duurzame en economisch rendabele landbouw, verbrede landbouw en landschapsbeheer (groene en blauwe diensten). Onder duurzame landbouw zien we vormen van landbouw die passen binnen een duurzame ontwikkeling en die toekomstbestendig zijn, zowel in ecologisch, economisch als sociaal opzicht. Natuurinclusieve landbouw is daar een voorbeeld van. We houden hierbij rekening met de verschillende bodemtypen in de gemeente. Met agrariërs rondom de Westelijke Langstraat moeten we als eerst de omslag maken naar duurzame vormen van landbouw om de belasting op de natuur te beperken en het bodemleven te bevorderen. Hier werken we volgens de Groenblauwe Gebiedsgerichte Aanpak (GGA) (zie paragraaf 4.2.3, Biodiverse en beleefbare natuur en groen, subparagraaf Waardevolle natuurgebieden beschermen).
Agrarische bedrijven
Hoofdlijn van beleid is dat de landbouw één van de belangrijkste sociale economische dragers voor het buitengebied van de gemeente Waalwijk is. De landbouw is daarnaast ook bepalend voor de structuur, en in mindere mate, beheer van het landschap. Ontwikkelmogelijkheden van agrarische bedrijven zijn afhankelijk van de bedrijfsvorm, het gebied, voorkomende waarden in het gebied en de ter plaatste geldende milieuaspecten.
We onderscheiden de volgende bedrijfsvormen en hoofdlijnen van beleid:
1. Grondgebonden agrarisch bedrijf
Hoofdlijn van beleid is voldoende ontwikkelingsruimte voor duurzame bedrijfsvormen en tegelijk aantasting van landschap- natuur en cultuurhistorische waarden te voorkomen.
2. Agrarische paardenhouderijen
Hoofdlijn van beleid is dat de ontwikkelingen in de paardenhouderijsector een positieve bijdrage kan leveren aan de ontwikkeling van de grondgebonden agrarische bedrijven, verbrede landbouw en extensieve recreatie. De breedte van de sector, zowel bedrijfsmatig als hobbymatig, biedt mogelijkheden. Ongecontroleerde groei leidt echter tot landschappelijke verrommeling, aantasting van de natuur en conflicten met andere vormen van recreatie.
Onder een agrarische paardenhouderij wordt verstaan een bedrijf waarbij het geheel of in overwegende mate gaat om het voortbrengen van producten door middel van het houden van paarden. Er moet altijd sprake zijn van een bepaalde mate van grondgebondenheid. Voorbeelden zijn fok- en opfokbedrijven, hengsten- of merriehouderij en paardenmelkerij. Hoofdlijn van beleid is voldoende ontwikkelruimte geven en tegelijk aantasting van landschaps- natuur en cultuurhistorische waarden proberen te voorkomen, in het bijzonder de landschappelijke inpassing van agrarische paardenhouderijen.
3. Intensieve veehouderij
Intensieve veehouderij zijn zogenoemde niet-grondgebonden veehouderijen of gebouw-gebonden veehouderijen. Dit betekent dat ze niet zelf landbouwgrond hebben waar ze het voer voor de dieren verbouwen.
Hoofdlijn van beleid is de toename van de intensieve veehouderij te voorkomen en een omschakeling naar duurzame bedrijfsvormen te stimuleren.
4. Glastuinbouw
Glastuinbouw is een niet-grondgebonden agrarisch bedrijf waarin de productie geheel of in overwegende mate plaatsvindt in kassen of permanent aanwezige tunnels.
Hoofdlijn van beleid is concentratie van glastuinbouw in daarvoor aangewezen gebied en een beperking van de toename in de niet-concentratiegebieden. In de gemeente is het gebied aan weerszijden van de Wendelnesseweg in Sprang Capelle aangewezen voor de concentratie van glastuinbouw. Dit beoogde concentratiegebied is nooit tot volledige ontwikkeling gekomen. Daarom gaan we de toekomst van dit gebied onderzoeken.
5. Overig niet-grondgebonden bedrijf
Niet-grondgebonden bedrijf, niet zijnde een intensieve veehouderij of glastuinbouw, zoals champignonkwekerij, witlofkwekerij, containerteelt.
Hoofdlijn van beleid is de overige niet-grondgebonden bedrijven een bepaalde mate van ontwikkelruimte te bieden, maar beperkter in vergelijking met grondgebonden bedrijven en ruimer ten opzichte van intensieve veehouderij en glastuinbouwbedrijven. Deze hoofdlijn van beleid is gebaseerd op het uitgangspunt de ontwikkeling van de grondgebonden landbouw te stimuleren.
6. Gemengde bedrijven
Indien een bedrijfsvoering bestaat uit twee of meer agrarische bedrijfsvormen is de hoofdactiviteit bepalend. Indien de verschillende agrarische bedrijfsvormen ongeveer even groot zijn, is een maatwerkoplossing nodig.
Niet- agrarische bedrijven/-voorzieningen
Hoofdlijn van beleid voor bestaande niet-agrarische bedrijven/- voorzieningen zijn de uitbreidingsmogelijkheden beperken en nieuwvestiging voorkomen. Dit om het buitengebied zo veel mogelijk geschikt te houden voor (grondgebonden) agrarische bedrijven.
Hieronder verstaan we in ieder geval:
agrarisch-technisch hulpbedrijf;
agrarisch verwant bedrijf;
productiegerichte paardenhouderij;
recreatiebedrijf/-voorziening;
sportvoorziening;
ambachtelijke en dienstverlenende bedrijven, horecabedrijf;
overige niet-buitengebied gebonden bedrijven/-voorzieningen.
Vrijetijdseconomie
De vrijetijdseconomie is een opkomende economische sector in de gemeente Waalwijk. We spelen in op kansen om dit te versterken. In paragraaf 4.4.4 Beleefbare cultuur en erfgoed en plekken voor ontspanning en recreatie beschrijven we onze ambitie voor de vrijetijdseconomie in de gemeente.
Samenvatting speerpunten
We stimuleren een economie die niet alleen groei genereert, maar ook bijdraagt aan welzijn, sociale cohesie en duurzaamheid voor onze inwoners.
We investeren in automatisering, robotisering en circulaire economie om productiviteit te verhogen en onze economie te verbreden met hightech industrie en leisure.
We richten bedrijventerreinen efficiënt in, verdichten waar mogelijk en vergroenen de omgeving om zowel vestigingsklimaat als leef-kwaliteit te verbeteren.
We zorgen voor minder afhankelijkheid van internationale werknemers en zetten in op een breder economisch profiel, inclusief kennisintensieve maakindustrie en ambachten.
We faciliteren de transitie naar een circulaire economie door ruimte te reserveren voor recycling, hergebruikcentra en circulaire hubs, terwijl we efficiënt omgaan met bedrijventerreinen.
We maken afspraken met bedrijven over financiële bijdragen en ondersteuning voor internationale werknemers om hun integratie en welzijn te bevorderen.
We zorgen ervoor dat uitbreiding van bedrijventerreinen zorgvuldig wordt afgewogen, met oog voor ecologische waarde en ruimtelijke kwaliteit.
We faciliteren agrariërs in de transitie naar duurzamere vormen van landbouw met aandacht voor klimaatadaptatie en bodemkwaliteit en -leven.
We zetten in op betere infrastructuur voor auto, fiets, openbaar vervoer en waterwegen om onze bedrijventerreinen optimaal toegankelijk te maken.
We verbinden onderwijs en bedrijfsleven om talent in Waalwijk te behouden, stageplaatsen te creëren en beter aan te sluiten op de arbeidsmarkt.
Inleiding
De gemeente Waalwijk wil cultuur en erfgoed tot leven brengen en toegankelijk maken voor iedereen. Historische plekken en culturele schatten worden niet alleen behouden, maar ook versterkt en vernieuwd, zodat ze uitnodigen tot ontdekking en beleving. Door erfgoed te verweven met recreatie en ontspanning ontstaan inspirerende ontmoetingsplekken die verbinden en verrijken. Dit draagt bij aan een sterke identiteit en verhoogt de leefkwaliteit voor inwoners en bezoekers.
Verenigingsleven en cultuur
We zijn trots op het rijke verenigingsleven en vele culturele instellingen. Dit zijn organisaties die door en voor inwoners gedraaid worden. Als gemeente blijven we dit stimuleren en vinden we het belangrijk dat inwoners en organisaties hier samen met de gemeente aan werken en de verbinding met elkaar weten te leggen. Als gemeente zorgen wij voor de voorzieningen waar verenigingen en culturele instellingen hun activiteiten kunnen organiseren. Dat kan een buurthuis zijn, bibliotheek of sporthal. We zorgen dat dit laagdrempelig is, zowel voor de verenigingen en instellingen als voor onze inwoners om deel te nemen. De voorzieningen zitten op een centrale plek in de dorpen en de wijken van Waalwijk. De gebouwen zijn multi-inzetbaar. We vinden het belangrijk dat ze voor meerdere organisaties geschikt zijn om gebruik van te maken. Hierdoor weten verenigingen, instellen en organisaties elkaar te vinden en neemt het gebruik toe, wat het gebouw rendabeler maakt en ook de leefbaarheid vergroot doordat er altijd wat te doen is.
De verbinding tussen onze scholen, sportverenigingen, culturele instellingen en het bedrijfsleven willen we versterken. De kinderen van onze gemeente komen hierdoor op jonge leeftijd in contact met sport en cultuur in onze gemeente. Het draagt bij aan hun ontwikkeling, versterkt sociale structuren en maakt ze hopelijk enthousiast om zich bij een club aan te sluiten. Het versterken van de verbinding met het bedrijfsleven vinden we belangrijk, omdat we op die manier bijdragen aan Brede Welvaart. Bedrijven kunnen zich bijvoorbeeld inzetten als sponsor of meedoen aan een evenement door kennis te delen over hun bedrijfstak.
Daarnaast leggen we duidelijk de verbinding met het sociaal domein. Inwoners die op andere vlakken een steuntje in de rug nodig hebben zijn extra gebaat bij verenigingen, instellingen en organisaties. Deelname aan een club kan een belangrijke bijdrage leveren aan positieve gezondheid. Het draagt bij aan een betekentisvol leven en versterkt de sociale verbinding met anderen. We vinden het daarom belangrijk dat verenigingen, instellingen en organisaties in alle dorpen en wijken actief zijn.
Beleefbaar erfgoed dat verbindt
Ons erfgoed vertelt de geschiedenis van onze gemeente. Dat gaat om de bijzondere gebouwen, oude structuren en het landschap dat al eeuwenlang gezichtsbepalend is en karakter geeft aan onze gemeente. Onze gemeente is ontstaan langs verschillende lijnen. Van noord naar zuid is dat terug te zien in de verschillende landschapstypen die ontstaan zijn door de verschillende ondergronden van klei, veen en zand. Van oost naar west lopen de historische lijnen van de Halvezolenlijn en de Winterdijk. We vinden het belangrijk om ons waardevol erfgoed te behouden en door te kunnen geven aan de volgende generaties. Dat doen we door bijzondere elementen te beschermen en bij ontwikkelingen beter zichtbaar en beleefbaar te maken. Dat geldt niet alleen voor de gebouwen, maar ook voor de omliggende aspecten zoals wegenstructuren, omliggende gebouwen, wijken en de positie in de maatschappij. In het gemeentelijk omgevingsplan beschermen we de rijksbeschermde stads- en dorpsgezichten. We houden daarbij rekening met het gehele gebied eromheen, zodat ook zichtlijnen en openheid rondom het erfgoed beschermd wordt. De beleving van het bijzondere karakter reikt namelijk vaak verder dan het begrensde gebied.
Het gebied rondom de Westelijke Langstraat – met het karakteristieke lint van bebouwing langs dijken en in dorpskernen, de omliggende polders en de Naad van Brabant – vraagt om een integrale benadering. Samen met verschillende partijen, zoals boeren, burgers, beheerders van landgoederen en overheden, zetten we ons in voor het behouden van dit waardevolle landschap met natuur met unieke kwel en de bijzondere cultuurhistorie van het historische traject van Besoijen via Capelle en Waspik naar Raamsdonk.
Door het beschermen van ons erfgoed versterken we onze identiteit en ontstaat een gevoel van verbondenheid met een plek waardoor mensen zich thuis voelen. We willen het verhaal van onze gemeente duidelijker uitdragen. Hiermee voegen we kwaliteit toe en dragen we hopelijk bij aan het gevoel van één gemeente. Dit gaat bijvoorbeeld om het verhaal van de schoen- en lederindustrie, wat beleefbaar is in onze openbare ruimte in alle kernen. Ons erfgoed benutten we nadrukkelijk als plekken voor ontmoeting. In alle ontwikkelingen houden we daarom rekening met de aanwezige cultuurhistorische waarden.
Gebouwd erfgoed, zoals leegstaande kerken of oude fabriekspanden, wordt soms niet meer gebruikt. Deze bijzondere gebouwen horen bij het verhaal van onze gemeente en willen we graag behouden, ook al kan dat soms niet in de originele vorm. Daarom houden we ons erfgoed levendig door ruimte te bieden aan vernieuwende functies. Daarnaast gebruiken we ons erfgoed als leidraad bij ontwikkelingen. Als gemeente maken we gebruik van transformatiekaders (per initiatief) als vroegtijdig onderdeel van het ontwerpproces. Dat geldt zowel voor ons materiële als immateriële erfgoed in de kernen en in het landschap.
Proef en ervaar Waalwijk
In de kern van Waalwijk zetten we in op verstedelijking met meer woningen en voorzieningen. De kwaliteit van Waalwijk verhogen we door ons cultuuraanbod te versterken en de stad aantrekkelijk te maken. Daarmee krijgt Waalwijk een aantrekkingskracht voor de hele gemeente en omliggende regio. Inwoners, culturele instellingen, de verenigingen en stichtingen spelen daarin een belangrijke rol. We bieden ruimte om met cultuur te innoveren en experimenteren.
In onze Cultuurnota zien we twee manieren om de stad Waalwijk te versterken met cultuur: de ‘Stad als Podium’ en de ‘Stad als Proeflokaal’. We willen de stad aantrekkelijker maken door de ‘Stad als Podium’ te gebruiken. Met de culturele instellingen, de verenigingen en stichtingen heeft het podium vaste bespelers. Verder willen we dat het podium regelmatig wordt gebruikt door een aantal gastspelers van elders. We kleden de openbare ruimte aan en we gebruiken hiervoor het thema ‘schoenen en leer’. Met ‘de Stad als Proeflokaal’ gebruiken we de intrinsieke, creatieve kracht van cultuur om te innoveren en te experimenteren in het sociaal domein, in de wijken en in het onderwijs. Hiermee willen we inwoners activeren, zorgen voor meer verbinding in de wijken en willen we de ontwikkeling stimuleren van onze jongste inwoners.
Versterken van de vrijetijdseconomie
De identiteit van Waalwijk is nauw verbonden met de economische geschiedenis, met name door het Schoenenkwartier en de lederwarenindustrie. Dit erfgoed biedt kansen om sterker in te zetten op ‘destinatiemarketing’ door het verhaal van Waalwijk als centrum van de schoenenindustrie verder te vertellen en te verbinden met andere sectoren. Hiermee zetten we Waalwijk als toeristische bestemming beter op de kaart. Dit kan niet alleen de toeristische aantrekkingskracht vergroten, maar ook bijdragen aan een versterkte economische positionering.
Uit de Economische Verkenning (2025) blijkt dat de vrijetijdseconomie (leisure) een opkomende economische sector in de gemeente Waalwijk is. We spelen in op kansen om dit te versterken. De nabijheid van grote toeristische attracties, zoals de Efteling, Nationaal Park Loonse en Drunense Duinen en Leemkuilen, vestingstad Heusden, grote steden Breda, ’s-Hertogenbosch en Tilburg en tot op zekere hoogte de Biesbosch, bieden kansen. Deze attracties versterken het vestigingsklimaat, trekken bezoekers naar de regio en bieden mogelijkheden voor lokale ondernemers om te profiteren van toeristische voorzieningen en diensten. We zorgen voor een vrijetijdsaanbod, dat onderscheidend en aanvullend is ten opzichte van vrijetijdsaanbod in de regio. Onze ligging in De Langstraat, het verleden van schoen en leer en bijzondere landschappen zijn onze bijzondere troeven. De komende jaren willen we dat het aantal bezoekers, overnachtingen en bestedingen groeit. Hiervoor zijn accommodaties nodig die onderscheidend en/of aanvullend zijn op de regio. Daarnaast investeren we in goede recreatieve verbindingen voor de wandel- en fietsknooppunten door de gehele gemeenten heen, langs beleefbare cultuur, erfgoed en voorzieningen.
Het is belangrijk dat de druk op huidige natuurrecreatiegebieden, zoals de Westelijke Langstraat en Loonse en Drunense Duinen en Leemkuilen, niet toeneemt. Dit biedt mogelijkheden voor het intensiveren van recreatie voor onze inwoners in bestaande recreatiegebieden. Met oog op de verstedelijkingsopgave in Waalwijk zal hier ook de vraag naar recreatiegebieden toenemen. Het Hoefsvengebied is hiervoor geschikt, aangezien dit aan de stad Waalwijk grenst. Hier werken we aan een nieuw profiel met drie zones waardoor een betere balans ontstaat tussen natuur en recreatie. Een zone voor voorzieningen, een zone voorzieningen en natuur en een zone alleen voor natuur. De huidige kleinschalige evenementen blijven we toestaan. Grotere evenementen of risico-evenementen zijn niet wenselijk in verband met overlast en de ligging tegen natuur.
Daarnaast zien we kansen voor meer recreatie in andere delen van het landelijke gebied van de gemeente, zoals de Overdiepse Polder, Baardwijkse Overlaat en de zandgronden in het zuidelijke deel van de gemeente. Hier liggen kansen voor het realiseren van een jaarrond begaanbare wandelstructuur van Waalwijk tot Waspik. We zorgen voor goede (fiets-)verbindingen naar deze gebieden vanuit de kernen in de gemeente.
Samenvatting speerpunten
We behouden, beschermen, versterken en vernieuwen historische plekken en culturele schatten, zodat inwoners en bezoekers ze actief kunnen beleven.
We bieden voorzieningen zoals buurthuizen, bibliotheken en sporthallen die toegankelijk en multifunctioneel inzetbaar zijn, zodat ze optimaal gebruikt worden.
We brengen culturele instellingen, onderwijs en bedrijfsleven bij elkaar om sport, cultuur en talentontwikkeling te versterken en bij te dragen aan Brede Welvaart.
We benutten verenigingen en culturele organisaties om sociale cohesie te bevorderen en inwoners die extra steun nodig hebben actief te betrekken.
We zorgen ervoor dat historische gebouwen, structuren en landschappen behouden blijven, wijzen hiervoor ook nieuwe ‘monumenten’ aan, en zorgen dat ze beter zichtbaar worden in de openbare ruimte.
We geven monumentale panden, zoals kerken en oude fabriekspanden een nieuwe functie, zodat ze hun historische waarde behouden en een bijdrage leveren aan de gemeenschap.
We zetten in op verstedelijking met meer woningen en voorzieningen, versterken het cultuuraanbod en benutten de stad als podium en proeflokaal voor innovatie en experiment.
We benutten het Schoenenkwartier en ons leerverleden als kernverhaal om Waalwijk toeristisch sterker te positioneren en economische kansen te vergroten. Hierbij streven we naar meer bezoekers, overnachtingen en bestedingen.
We zorgen voor betere recreatieve verbindingen, nieuwe wandel- en fietsroutes en een evenwicht tussen natuurbehoud en recreatie in gebieden zoals het Hoefsvengebied.
We ontwikkelen recreatiemogelijkheden in landelijke gebieden zoals de Overdiepse Polder en de Baardwijkse Overlaat, zonder extra druk op bestaande natuurrecreatiegebieden.

In de afgelopen paragrafen zijn de ambities en gewenste ontwikkelingen voor de gemeente Waalwijk toegelicht in tekst, beeld en kaartmateriaal. Hieruit hebben we de belangrijkste ontwikkelingen getoond op de omgevingsvisiekaart die hieronder te zien is in figuur 24. Deze kaart moet worden gezien als visiekaart en niet als omgevingsplankaart. Een omgevingsvisie is namelijk niet juridisch bindend voor de burger. Wel laat de kaart goed zien wat onze ambities zijn voor het behoud en de ontwikkeling van de gemeente Waalwijk. Deze kaart vormt de basis voor de gebiedsgerichte uitwerking die in het volgende hoofdstuk is opgenomen.
Globale schetsmatige visiekaart
De globale schetsmatige visiekaart vormt het ruimtelijke raamwerk van de omgevingsvisie waarop de strategische keuzes voor de gemeente Waalwijk in beeld zijn gebracht. De globale visiekaart is weergegeven in figuur 23.
Visiekaart
In de in figuur 24 opgenomen visiekaart wordt onderscheid gemaakt in drie verschillende legendatypen als het gaat om locaties waar een transformatie (op termijn) wordt voorzien. Per deelgebied wordt apart aangegeven of er sprake is van een transformatie-locatie en zo ja, onder welke van de drie legendatypen deze valt.
We onderscheiden daarbij:
1. Ontwikkellocaties (huidige grotere ontwikkelingen in voorbereiding, nog niet vastgesteld)
2. Onderzoekslocaties (korte tot middellange termijn)
3. Toekomstige onderzoekslocaties (lange termijn)
Ontwikkellocaties
Voor de op de visiekaart aangegeven ontwikkellocaties zijn al plannen in voorbereiding en heeft er voor de beoogde ontwikkeling al participatie plaatsgevonden. Het planproces is voor deze gebiedsontwikkelingen echter nog niet zo ver dat het al tot de status van een vastgesteld omgevingsplan heeft geleid, maar de verwachting is dat deze ontwikkelingen op korte termijn gerealiseerd kunnen worden. Onder korte termijn verstaan we een periode van 0 tot 5 jaar.
Kleinere ontwikkelingen op kavelniveau en plannen die de volledige juridisch-planologische procedure al doorlopen hebben en zijn vastgesteld, zijn niet opgenomen in deze omgevingsvisie.
Onderzoekslocaties
Voor de in de visiekaart opgenomen onderzoekslocaties is een transformatie op de korte of middellange termijn voorstelbaar, maar is de planvorming voor deze gebiedsontwikkelingen nog niet opgestart. Onder korte termijn verstaan we een periode van 0 tot 5 jaar. Onder middellange termijn verstaan we 5 tot 10 jaar.
Toekomstige onderzoekslocaties
Bij de afweging over de ontwikkeling van nieuwe functies in het landelijk gebied is het niet alleen belangrijk om te kijken naar welke functies en activiteiten wenselijk zijn, maar ook naar de aanwezige en historische (omliggende) waarden en de omgeving van een gebied. Daarnaast zorgen nieuwe functies en activiteiten voor nieuwe effecten in de (verre) omgeving. Om zo min mogelijk inbreuk te maken op het landelijk gebied en te streven naar meervoudig ruimtegebruik hanteren we het uitgangspunt dat inbreiden voor uitbreiden gaat. Echter willen we door de oogharen heen ook een doorkijk geven naar mogelijke locaties, waar een transformatie van het gebied voorstelbaar wordt geacht op de langere termijn (over ca. 10 jaar). Een ontwikkeling op kortere termijn overwegen we alleen indien dit vanwege een zwaarwegend maatschappelijk belang nodig is.


Hoofdstuk 4 beschrijft per thema onze visie en doelen voor de toekomst. Deze ambities zullen ergens binnen de gemeente een plaats krijgen. Waar en hoe dit in de praktijk precies uitwerkt, hangt af van de plek binnen de gemeente. Zo zullen onze ambities voor de circulaire economie vooral terechtkomen op onze bedrijventerreinen, terwijl in de woonwijken meer nadruk komt te liggen op een passende woning voor iedereen en aantrekkelijke woongebieden. In deze omgevingsvisie hebben we de gemeente daarom opgedeeld in verschillende gebieden.
We onderscheiden de volgende deelgebieden binnen de gemeente Waalwijk:

In dit hoofdstuk beschrijven we wat de thematische ambities uit hoofdstuk 4 voor deze deelgebieden van de gemeente betekenen. Dit zijn vooral ‘typen’ gebieden, die zijn samengesteld uit verschillende kleinere gebieden met vergelijkbare kenmerken en functies. Zo bestaat het gebied ‘woongebieden’ uit allerlei verschillende wijken en buurten, die ook weer hun eigen karakteristieken hebben. Wat ze alle gemeen hebben, is dat ze in hoofdzaak een woonfunctie hebben.
We kiezen voor deze indeling in typen gebieden, vanuit de gedachte dat we in die gebieden op eenzelfde manier willen sturen om onze visie en doelen te bereiken. Verschillen en accenten binnen een gebied zullen we waar dat relevant is ook benoemen.
Per deelgebied gaat dit hoofdstuk in op de volgende onderdelen:
Huidige situatie: deze paragraaf beschrijft beknopt het karakter van het deelgebied. Dat zijn bijvoorbeeld de ruimtelijke kenmerken en kwaliteiten van het gebied. Algemeen uitgangspunt is dat ontwikkelingen bijdragen aan of aansluiten bij het karakter van het gebied waar ze plaatsvinden. Deze gebiedsbeschrijving vormt daarvoor de basis.
Gebiedsgerichte koers: onder koers geven we de visie en richting aan voor het desbetreffende deelgebied. Dit is de ruimtelijke vertaling van het thematische hoofdstuk.
Ontwikkellocaties, onderzoekslocaties en toekomstige onderzoekslocaties: deze paragraaf beschrijft de stedenbouwkundige randvoorwaarden als het gaat om locaties waar een transformatie (op termijn) wordt voorzien.
Afwegingskader: Het afwegingskader is een beeldende weergave van de koers van de gemeente. Het afwegingskader omvat de negen belangrijkste ambities van de omgevingsvisie. Op gemeenteniveau wordt ervan uitgegaan dat alle ambities even belangrijk zijn. Niet alle ambities passen echter in alle gebieden in gelijke mate. Per deelgebied kan die balans dus anders zijn.
In dit hoofdstuk is op vier plekken een verdieping biodiversiteit opgenomen. De verdieping biodiversiteit gaat nader in op de ambities van de gemeente Waalwijk ten aanzien van het vergroten van de biodiversiteit in de gemeente.
Het vormt een verdiepingsslag van de ambities en koers die in de omgevingsvisie staan beschreven, uitgesplitst voor de verschillende deelgebieden binnen de gemeente:
Bebouwde gebieden: Woongebieden, Centrumgebieden, Linten en Bedrijventerreinen.
Deze ambities op het gebied van de biodiversiteit vormen het uitgangspunt voor toekomstige keuzes en kunnen worden vertaald in toekomstige beheerplannen, projecten en (uitvoerings)programma’s.
Hierbij wordt de nadruk gelegd op delen van de gemeente die niet binnen de (beschermde) natuurgebieden vallen, omdat er voor de beschermde natuurgebieden al beleid is: Natura 2000-gebieden en Natuurnetwerk Brabant.

Afwegingskader
Het afwegingskader werkt als volgt. Iedere as vertegenwoordigt een ambitie en bestaat uit vijf punten (zie figuur 26). Als het bolletje in het midden staat (plek drie) betekent dit dat het ambitieniveau gelijk is aan het gemiddelde van de omgevingsvisie. Meer punten (meer naar buiten) betekent dat de ambitie in het betreffende gebied meer nadruk krijgt dan gemiddeld. Minder punten (meer naar binnen) betekent dus dat de ambitie in dit gebied minder belangrijk is dan gemiddeld. Deze puntenverdeling is relatief, namelijk ten opzichte van de andere deelgebieden. Een lager puntenaantal voor één thema betekent dus een minder grote inzet op het betreffende aspect in het betreffende deelgebied dan in andere deelgebieden. Daarbij hebben we als regel aangehouden dat als er één schuifje omhoog ging, er ergens anders een schuifje omlaag moest.
We hebben hieronder per type deelgebied de afwijkingen ten opzichte van het gemiddelde toegelicht en als een plusje een minnetje opheft waardoor het resultaat op drie blijft staan. We gebruiken het afwegingskader onder andere bij het ontwikkelen van nieuw beleid, het opstellen van het omgevingsplan en het toetsen van nieuwe (buitenplanse) initiatieven. Het afwegingskader maakt namelijk in een oogopslag duidelijk welke ontwikkelrichting wenselijk is.
Hoe we tot de afwegingskaders zijn gekomen
Een afweging maken per gebied
In het afwegingskader laten we op visuele manier zien op welke ambities we meer willen inzetten en welke ambities minder inzet behoeven. Samen met onze partners, inwoners, ambtelijke organisatie en het bestuur hebben we per gebied nagedacht over de verschillende ambities.
Het afwegingskader was een hulpmiddel om de ambities ten opzichte van elkaar te plaatsen. Per gebied waren 27 punten te verdelen (3 is het gemiddelde per ambitie en er zijn 9 ambities). Mensen konden tijdens de bijeenkomsten de schuifjes gezamenlijk plaatsen op de positie die zij gepast vonden voor dat gebied. Doordat mensen moesten uitkomen op 27 punten ontstonden interessante discussies over de positie van de ambities ten opzichte van elkaar en vooral de argumenten hiervoor. Niet alle ambities kunnen namelijk maximaal scoren.
Inwoners en onze partners hebben meegedacht en hun ideeën en voorkeuren voor de verschillende gebieden in de gemeente aangegeven (zie participatieverslag, bijlage II). De afwegingskaders in dit hoofdstuk zijn het resultaat van de enquêteresultaten en gesprekken die we hebben gevoerd met inwoners, onze partners, de ambtelijke organisaties en het bestuur.
De gemeente Waalwijk bestaat uit verschillende woongebieden. Van historische boerderijen, na-oorlogse woonwijken tot moderne huizen in Landgoed Driessen.
In onze gemeente maken we onderscheid in verschillende woongebieden:
vooroorlogse woongebieden;
naoorlogse woongebieden met stroken- en blokverkaveling;
naoorlogse parkachtige woongebieden;
woonerven;
thematische woongebieden.
Vooroorlogse woongebieden
Het aantal vooroorlogse planmatige woongebieden is beperkt in de gemeente. Dit gaat om het gebied rondom de Putstraat en het westelijke deel van de Antoniusparochie. Verspreid over de gemeente komen wel individuele vooroorlogse gebouwen voor. Deze maken deel uit van de lintstructuren en zijn daarom opgenomen in het deelgebied Linten in paragraaf 5.4.
Naoorlogse gebieden met stroken- en blokverkaveling
Onder de naoorlogse woongebieden verstaan we de woningen gebouwd in de periode na de Tweede Wereldoorlog tot halverwege de jaren ’70. In deze periode waren in een korte tijd veel woningen nodig. De gebieden met een stroken- en blokverkaveling bestaan uit eenvoudige woningen in regelmatige blokken. De woningen zijn vaak twee lagen en hebben een kap. In deze gebieden is sociale woningbouw vaak geclusterd. De openbare ruimte is functioneel ingericht, met brede straten en weinig informele ontmoetingsplekken. Veel van deze wijken vragen om herstructurering en verduurzaming, zowel qua woningkwaliteit als qua openbare ruimte. Voorbeelden van deze woongebieden zijn het oostelijke deel van Antoniusparochie en Laageinde.
Naoorlogse parkachtige woongebieden
In de naoorlogse periode zijn ook parkachtige woongebieden gebouwd. Deze bestaan uit vrijstaande woningen en twee-onder-een-kappers. Deze gebouwen verschillen onderling meer van elkaar in stijl en vorm. In deze gebieden is veel groen, zoals bomenrijen of plantsoenen. Kenmerkend is het open en ruim opgezette karakter met veel aandacht voor de relatie tussen wonen en groen. Dit draagt bij aan een prettige leefomgeving, maar vraagt tegelijkertijd om zorgvuldig beheer en versterking van de biodiversiteit. Voorbeeld van dit woongebied zijn de straten rondom het oude Mollercollege.
Woonerven
Als een reactie op de stroken- en blokverkaveling zijn woonerven ontwikkeld. Deze gebieden uit de jaren '70 en '80 zijn kleinschaliger opgebouwd in de vorm van hofjes en erven. Woonblokken zijn vaak niet gericht op de straat, maar op een privétuin. De ruime groenstructuren zijn kenmerkend voor de wijken. Er is een duidelijk onderscheid tussen hoofdwegen, woonstraten en autovrije zones. Door de compacte en intieme opzet zijn woonerven sociaal veilige woonmilieus, maar er is tegelijkertijd aandacht nodig voor parkeren en mobiliteitsstromen.
Thematische woongebieden
Eind jaren ’80 was de woningnood achter de rug. Vanaf deze periode wordt meer marktconform gebouwd. Deze nieuwe woongebieden krijgen een duidelijk eigen karakter mee. Per woonwijk ontstonden daardoor verschillende stijlen. De grootste recentelijke uitbreiding in onze gemeente is Landgoed Driessen. Hier is een mix van woningtypen te vinden, van sociale huur tot luxe vrijstaande woningen, met een afwisselende ruimtelijke opzet. De thema’s binnen deze wijken zijn vaak gebaseerd op historische referenties, landschappelijke elementen of architectonische stijlen. Voorbeelden van thematische woongebieden zijn Meerdijk, De Hoef, in Waspik de buurt rondom de Watersnip, Goudplevier en Leeuwerik. De vraag naar passende woningen is hoog. Daarnaast verandert onze bevolkingssamenstelling en daarmee onze woonwensen. We willen zorgvuldig omgaan met ons landschap. Nieuwe woningen bouwen we het liefst in de bestaande kernen, in de buurt van voorzieningen. Dit draagt bij aan een compacte en duurzame ontwikkeling van onze stad en dorpen, waarbij gebruik wordt gemaakt van bestaande infrastructuur en sociale netwerken. Door verdichting met woningen komen er meer mensen te wonen in hetzelfde gebied. Daarnaast is meer ruimte nodig voor biodiversiteit, klimaatadaptatie en energievoorzieningen. De uitdaging daarbij is om de leefbaarheid te behouden en te versterken door goede combinaties te maken zodat extra bebouwing niet ten koste gaat van groen, speelruimte en sociale cohesie.
De structurele veranderingen in de samenleving, met name de bevolkingssamenstelling maar ook klimaatverandering, zorgen ervoor dat het nodig is de bestaande woongebieden waar nodig te herstructureren. Bij herstructurering ligt de nadruk op kwaliteit in plaats van kwantiteit, met bijzondere aandacht voor speciale doelgroepen. Kwaliteit van wonen is: variatie, keuzevrijheid en een prettige woonomgeving. Herstructureren betekent het aanpassen van de woningvoorraad en aanpassen van het openbaar gebied.
In de woongebieden van Waalwijk, Sprang-Capelle en Waspik voegen we woningen toe zodat iedereen nu en in de toekomst fijn kan wonen. Dat doen we op verschillende manieren:
In de aansluitende wijken rondom het centrum van Waalwijk zetten we in op verstedelijking door stedelijk te verdichten. Dit betekent dat we vrijkomende locaties die geschikt zijn voor woningbouw kunnen benutten voor woningen. Dat doen we in combinatie met het verbeteren van de kwaliteit van de leefomgeving en met oog voor de kwaliteit van leven van inwoners. We zetten in op vergroenen en minder verharding om hittestress en wateroverlast tegen te gaan. Als zich in andere woonwijken kansen voordoen, zetten we ook dan in op passende verdichting.
We ronden Landgoed Driessen fase I af. Zie paragraaf 5.2.3.
We zetten in op het behouden en versterken van de leefbaarheid in Waspik en Sprang-Capelle door mogelijkheden te bieden voor woningbouw en transformatie. Bijvoorbeeld in Waspik aan de driehoek: Irenestraat, Prins Bernhardstraat, Julianastraat (hierna: Oranjehoek) zie paragraaf 5.2.3. Dat doen we met precisie-ingrepen waarbij we zowel kwaliteit toevoegen als verdichten, met behoud van het dorpse karakter. We voegen woningtypen toe die nu minder te vinden zijn in de dorpen. Bijvoorbeeld appartementen voor jongeren of levensloopbestendige woningen voor senioren. Dit doen we in combinatie met het versterken van de kwaliteit en de leefbaarheid, bijvoorbeeld door de openbare ruimte te verbeteren of draagvlak voor voorzieningen te vergroten.
In de bestaande kernen maken we kleinschalige projecten mogelijk gericht op urgente doelgroepen, zoals voor jongeren, de uitstroom uit beschermd wonen en maatschappelijke opvang of woningen voor spoedzoekers. Daarnaast bieden we ruimte aan collectieve woonvormen.
We onderzoeken de mogelijkheden voor woningsplitsing en tijdelijk wonen op achterterreinen onder voorwaarden.
In de strategische visie is de ambitie uitgesproken om jongeren en jonge gezinnen die uit Waalwijk zijn vertrokken te verleiden om terug te komen naar Waalwijk. Mede door het realiseren van kwalitatieve en onderscheidende woonmilieus, passend bij de behoeftes van deze doelgroep, vergroten we de aantrekkingskracht en ‘kleefkracht’ van de kernen.
Sporten, spelen en ontmoeten moet voor al onze inwoners in hun nabije omgeving mogelijk zijn. In de kernen willen we dat er iedere 1.000 meter een beweegvoorziening voor 12-plussers is, zoals een skatebaan of voetbalveld. Gespreid over de gemeente zorgen we voor enkele bovenwijkse voorzieningen. Het Halvezolenpad en de ruimte die daaraan ligt, wordt een langgerekt (stads)park over de gehele lengte van de gemeente en verbindt de verschillende kernen. De openbare ruimte in de woongebieden is toegankelijk, veilig, schoon en nodigt uit tot bewegen. De openbare ruimte kent informele speelmogelijkheden, waardoor ook kinderen jonger dan 12 jaar binnen 300 meter van hun huis buiten kunnen spelen.
Zorg en ondersteuning organiseren we dichtbij onze inwoners vanuit de wijken en buurten. Maatschappelijke voorzieningen moeten toegankelijk zijn en in elk dorp en waar mogelijk in elke wijk aanwezig zijn. In Waalwijk-Oost ontbreekt op dit moment een gezondheidscentrum. Hier streven we naar het toevoegen van een gezondheidscentrum.
De winkelcentra en solitaire supermarkten zijn belangrijk voor de leefbaarheid van de wijken. Dagelijkse voorzieningen zijn hierdoor dichtbij onze inwoners. Hier kunnen ze gemakkelijk te voet of fietsend heen, wat bijdraagt aan hun zelfstandigheid. Dat is zeker met het oog op vergrijzing belangrijk. Bij het wijkwinkelcentrum Bloemenoordplein is behoefte aan versterking van het aanbod en modernisering. Dit gaan we versterken met behoud van het lokaalverzorgende karakter. De solitaire supermarkten, onder meer gevestigd in Laageinde, Zanddonk en aan de Van der Duinstraat, zien we als buurtsteunpunten en blijven op die manier bestaan.
We bieden mogelijkheden voor het uitoefenen van een beroep of bedrijf aan huis en Bed & Breakfast. Hierbij is het van belang dat de woonfunctie het belangrijkste blijft met oog voor de omgeving. Bedrijven die vanwege hun aard, schaal en omvang niet goed passen in een woonomgeving zien we liever in het centrum of op de bedrijventerreinen.
We bevorderen de leefbaarheid door in de woonwijken de maximumsnelheid te verlagen naar 30 km/uur. Woonwijken met goede fiets- en wandelvoorzieningen verbinden we met de centra en andere voorzieningen, bijvoorbeeld sport en scholen. We verbeteren de fiets- en wandelvoorzieningen in wijken waar dit niet op de orde is.
De duurzaamheidsambities voor nieuw te ontwikkelen gebieden zijn hoger dan voor bestaande woongebieden. In nieuwe gebieden moeten gebouwen en woningen gebouwd worden met circulaire bouwmaterialen, met voldoende inpandige ruimte voor energiesysteem (warmte en koeling en opslag) en zongericht verkavelen. Hiervoor is voldoende ruimte nodig in de ondergrond voor het transport van elektra, koude en warmte. In bestaande woonwijken stimuleren we huiseigenaren en woningcorporaties om hun vastgoed te verduurzamen.
Bestaande groenstructuren in de woongebieden zijn belangrijk om te behouden met het oog op een gezonde en prettige leefomgeving, klimaatadaptatie en biodiversiteit. We werken, naast behoud, aan een toename van het groen in de woonomgeving met 10% en het vergroten van de biodiversiteit met 5% in 2030 ten opzichte van 2019. In 2050 heeft de gemeente een groene woonomgeving met in elke straat bomen (er is een bedekking door boomkronen van minimaal 30%), aantrekkelijke parken, hebben alle gebouwen klimplanten en dakgroen en is er een zichtbaar hoge biodiversiteit, wat betekent dat inwoners dagelijks meermaals in aanmerking komen met verschillende soorten wilde kruiden en wilde dieren als vogels en insecten.
Het Wandelpark, Hoefsvengebied, De Vest, Halvezolenpark, de Muzenkamer, het Groene Venster en de Sprangse Duin zijn belangrijke groene oases. Inwoners van alle leeftijden kunnen hier rust en ontspanning vinden, elkaar centraal ontmoeten, spelen, bewegen en sporten en/of cultuur ervaren in een natuurlijke omgeving. Het groenoppervlak wordt hier behouden en beschermd. De herkenbaarheid en identiteit van het gebied met zijn cultuurhistorische-, gebruiks- en belevingswaarde worden verder versterkt. Bij ontwikkelingen in de nabije omgeving van het gebied wordt zorgvuldig afgewogen welke (negatieve) effecten deze op het gebied kunnen hebben en wordt een oplossing gezocht die het duurzaam voortbestaan van het gebied en zijn diverse waarden zeker stelt.
In het deelgebied woongebieden voorzien we de volgende ontwikkellocaties:
Ontwikkellocaties
Waalwijk
De grootste nieuwbouwwijk van Waalwijk ligt tussen de provinciale weg N261 en de kernen Sprang en Vrijhoeve. Aan de noordzijde scheidt het Halvezolen (fiets)pad de wijk van het natuurgebied de Westelijke Langstraat.
Op dit moment staan in de wijk zo’n 1.900 woningen van verschillende typen en in verschillende prijsklassen. Er zijn zowel huur- als koopwoningen aanwezig. Deze mix van woningen is kenmerkend voor Landgoed Driessen en wordt door veel inwoners gewaardeerd. Datzelfde geldt voor het groen dat vanuit het natuurgebied doorloopt tot diep in de wijk. Doelstelling is om de eerste fase van de wijk de komende jaren door separate ontwikkelingen op meerdere verschillende locaties af te ronden, in lijn met de al aanwezige groene en blauwe karakteristieken en de kenmerkende variatie in het woningaanbod.
Ook het inrichten van een centrale ontmoetingsplek voor Landgoed Driessen maakt hier onderdeel van uit. Natuur en cultuur komen er in een park samen en er zal ruimte zijn om te ontmoeten en te spelen.
Waspik
Ontwikkeling Oranjehoek bestaat uit de driehoek Irenestraat, Prins Bernhardstraat en Julianastraat. Bij herontwikkeling van deze locatie dient de maat en schaal van de nieuwbouw aan te sluiten bij de bestaande bebouwing in de omgeving en het dorpse karakter. Een beperkte vergroting van de bouwhoogte is mogelijk, mits hiervoor een stedenbouwkundige aanleiding is en deze op een verantwoorde wijze ingepast wordt.
De directe nabijheid van het aanwezige parkachtig groen aan zowel de voorzijde als de achterzijde van de bestaande bebouwing wordt in de planvorming benut ten behoeve van de woonkwaliteit. Waar mogelijk wordt deze kwaliteit beter beleefbaar gemaakt en versterkt.
In de woongebieden zetten we op de volgende manier in op de negen ambities:
Water en bodem als basis
In bestaand woongebied spelen water- en bodemfactoren een minder grote rol aangezien het gebied bebouwd is. Bij uitbreidingen zijn deze echter wel van belang. Bij nieuwe ontwikkelingen dienen beide thema’s vroegtijdig meegenomen te worden in de ontwikkeling. Daarbij streven we naar zorgvuldig ruimtegebruik en meerwaardecreatie.
Biodiverse en beleefbare natuur en groen
Een groene woonomgeving is belangrijk voor de gezondheid van onze inwoners.
Duurzaam en klimaatrobuust
Het groen moet met name klimaatadaptief zijn. In versteende woonwijken nemen we samen met inwoners maatregelen voor betere infiltratie van regenwater en het tegengaan van hittestress. Daarnaast zijn maatregelen tegen de hitte voorstelbaar, zoals lichte materialen voor gebouwen en zonwering. Op die manier draagt het bij aan de gezondheid van onze inwoners.
Goede bereikbaarheid
Goede bereikbaarheid vraagt extra inzet in de woonwijken. Hierbij dienen we aandacht te hebben voor het verschil tussen Waalwijk en de dorpen. Met name in de dorpen is het belang van goed openbaar vervoer belangrijk. In alle woonwijken willen we de ruimte van de auto op termijn terugdringen zodat meer ruimte ontstaat voor betere en veilige wandel- en fietsroutes. Verkeersveiligheid is een belangrijk aandachtspunt in de woonwijken.
Samen zijn we gezond
Gezondheid heeft prioriteit in de omgeving waar mensen wonen. Hier is veel winst te behalen door een groene en klimaatadaptieve omgeving.
Passend woonaanbod voor vitale kernen
Wonen is de primaire functie van onze woongebieden. Hier zetten we in op passend woonaanbod waarmee we de vitaliteit van onze kernen ondersteunen, bijvoorbeeld door in te zetten op gemengde wijken.
Brede voorzieningen voor alle leeftijden in alle kernen
In de woonwijken is het van belang dat maatschappelijke functies, zoals scholen en zorg, nabij zijn. We zetten in op multifunctioneel gebruik van gebouwen en stimuleren inwoners om met initiatieven te komen.
Een economie die bijdraagt aan de gemeenschap
De woongebieden zijn geen focusgebied voor onze economie. Wel zien we ruimte voor passende, kleinschalige aan huis gebonden bedrijvigheid.
Beleefbare cultuur en erfgoed en plekken voor ontspanning en recreatie
In de woonwijken zetten we niet extra in op beleefbare cultuur of erfgoed. Bij herontwikkelingen streven we naar het behoud van erfgoed en kijken we naar kansen om historische structuren zichtbaar te maken. Ruimte voor ontspanning zien we op straat- en buurtniveau in het groen.
De inzet op de negen ambities is visueel weergegeven in figuur 27. Op figuur 28 is de uitsnede van de visiekaart voor de woongebieden te zien.


In onze gemeente hebben we drie centrumgebieden: het centrum van Waalwijk, Sprang-Capelle en Waspik. Het centrum van Waalwijk heeft als hoofdwinkelcentrum een belangrijke functie voor de gehele gemeente en omliggende kernen. De centra van Waspik en Sprang-Capelle worden vooral gebruikt door dorpsbewoners. Het centrum van Waalwijk heeft daarmee een ander karakter dan de centra van Waspik en Sprang-Capelle.
Uitdagingen voor de centra zijn het omgaan met het verdwijnen van winkels en voorzieningen waardoor leegstand ontstaat. De functie van de centra verandert van een plek waar mensen komen om dingen te kopen, naar plekken waar mensen komen om samen te zijn. Dit vraagt om een andere inrichting van de openbare ruimte, die meer gericht is op ontmoeting en verblijven. We zoeken naar mogelijkheden om groen en water toe te voegen. Dit draagt bij aan het klimaatadaptieve vermogen van de centra en zorgt voor een prettige uitstraling. In de toekomst zien we graag dat mensen het centrum lopend of met de fiets bezoeken. Dit vraagt om een andere inrichting van onze centra en goede routes vanuit de kernen naar de centra toe.
Centrum Waalwijk
Het centrum van Waalwijk bestaat uit het gebied tussen de Wilhelminastraat, Taxandriaweg, Meester van Coothstraat en Noorder Parallelweg. Hierbinnen liggen twee hoofdwegen waarlangs veel winkels en bedrijven gevestigd zijn. Dit zijn de Stationsstraat en Grotestraat-West. Deze hoofdstraten komen uit op het centrale plein van het centrum: Raadhuisplein/Markt. Dit is de ‘huiskamer’ van de stad met horeca en maatschappelijk-culturele voorzieningen. Aan de Grotestraat is winkelcentrum De Els te vinden. Dit gebied wordt herontwikkeld tot een nieuw centrumgebied dat complementair is aan het kerncircuit Stationsstraat-Raadhuisplein/Markt/Grotestraat-West. Hier is ruimte voor boodschappen doen, winkelen, recreëren en wonen.
Het centrum biedt ruimte aan meerdere gemeentebrede voorzieningen, zoals het Schoenenkwartier, de bibliotheek, theater De Leest en de wekelijkse warenmarkt. Daarnaast is het gebied cultuurhistorisch waardevol met meerdere historische gebouwen, zoals kerk Sint Jan de Doper, het raadhuis en historische panden. Verder zijn in het centrum meerdere autoparkeerterreinen aanwezig en dient het ook als woongebied.
Binnen het centrum van Waalwijk zijn een aantal deelgebieden te onderscheiden:
Raadhuisplein/Markt: huiskamer van de stad
Door de aantrekkelijke historische bebouwing en de aanwezigheid van diverse horecazaken en terrassen heeft het Raadhuisplein/de Markt een cruciale positie voor de identiteit en de ontmoetingsfunctie van het centrum. Het hoog houden van de verblijfs- en belevingswaarde van het plein heeft prioriteit. Het gebruik van dit plein als evenementenlocatie draagt bij aan de functie als huiskamer van de stad en de gemeente. De evenementen op het plein dienen goed te worden afgestemd met de diverse gebruikers aan het plein. Een verdere uitbreiding van het horeca-aanbod aan het plein is gewenst, passend bij deze evenementenfunctie.
Structuurversterking: herontwikkeling De Els
De ruimtelijke en functionele structuur en de ruimtelijke kwaliteit van het centrum willen we verbeteren (zie figuur 29). Daarom moet het kernwinkelcircuit De Els op de schop (zie figuur 30). Alleen verfraaiing is onvoldoende. Daarom zetten we in op het volgende:
We willen de structuur versterken met een intuïtiever circuit (zoals eenvoudige looproutes) én het toevoegen van trekkracht met winkels die veel mensen trekken, zodat er in het circuit zo veel mogelijk passanten komen. Dit kan door bestaande en extra publiekstrekkers (derde supermarkt) op een goede manier in te passen en de randvoorwaarden daarvoor op orde te brengen (bijvoorbeeld met een hoog bezoekgemak met goed parkeren, bereikbaarheid, etc.). Zo werken we aan de ambitie om de positie van Waalwijk-centrum te versterken als locatie voor frequente aankopen.
Met de herontwikkeling van De Els ligt de kans een tweede, complementaire verblijfslocatie toe te voegen aan het centrum. Rond het vrij te maken pand van de oude jongensschool wordt een gebied ontwikkeld met een ruimtelijk aantrekkelijke verblijfskwaliteit. Met de inpassing van de bibliotheek wordt er hopelijk een maatschappelijke functie toegevoegd aan dit deel van het Kerncircuit. Dit zorgt ervoor dat dit gebied geen monofunctionele retaillocatie wordt. De bibliotheek op deze locatie draagt sterk bij aan de ambitie voor het centrum als plek om te ontmoeten en verblijven.
Couleur locale: Grotestraat-west
Het westelijk deel van de Grotestraat (tussen De Els en Meester van Coothstraat) is nu en in de toekomst een publieke straat. Zo blijven de historische structuur en de identiteit van het centrum, met de Grotestraat als belangrijk onderdeel, behouden. Het wensbeeld is een aantrekkelijk profiel van lokale ondernemers, die zelf doelgericht publiek aantrekken én kunnen profiteren van de nabijheid van grote trekkers en grote bronpunten (De Els en Taxandriaweg). Dankzij de meer kleinschalige, historische panden beleeft de bezoeker hier de lokale identiteit van Waalwijk. Hier zal ruimte worden geboden aan verkleuring, waarbij er ruimte is voor bijvoorbeeld detailhandel, kantoren en lichte kleinschalige bedrijvigheid. Er is geen ruimte om te verkleuren naar wonen op de begane grond. Het toevoegen van woningen in de plint is niet gewenst, omdat dit ten koste gaat van de publieke uitstraling als centrumstraat en van de levendigheid in dit gebied. De Grotestraat-west biedt een duidelijk alternatief milieu voor het Kerncircuit.
Gemengde centrummilieus: ademruimte
De overgangsgebieden in het zuidelijk deel van de Stationsstraat en de Grotestraat-oost/Hooisteeg vormen een aantrekkelijk vestigingsmilieu voor een diversiteit aan (niet)publieke bedrijven en een goed woon- en werkmilieu in de luwte van het centrum. Deze gebieden worden ook daarop ingericht. Bezoekersaantallen zoals in het Kerncircuit en Couleur Locale zijn hier niet het doel. De flexibiliteit in bestemmingen en de flinke commerciële ruimte in dit gebied zorgen hier voor de ademruimte voor het centrumgebied; deze gebieden bewegen mee met de vraag. De extra inwoners die in het centrum komen wonen, creëren bijvoorbeeld ook een andere vraag naar lokale voorzieningen, van fitness tot zorg en werkplekken. In de komende jaren, waarin de herontwikkeling van De Els flinke dynamiek zal creëren, is die ademruimte erg belangrijk (zoals) in de Stationsstraat tussen Margrietstraat en Julianastraat).


Centrum Sprang-Capelle
Het centrum van Sprang-Capelle is geconcentreerd langs beide zijden van de Raadhuisstraat. Aan het Raadhuisplein zijn meerdere voorzieningen te vinden. De commerciële en maatschappelijke voorzieningen zijn geconcentreerd rondom twee centrale parkeerterreinen. Hier wordt wekelijks de markt gehouden. Boven deze voorzieningen zijn woningen. Het voorzieningengebied van het centrum is met name gericht op het dorp en op Landgoed Driessen.
Centrum Waspik
Het centrum van Waspik ligt in Waspik-noord. De meeste voorzieningen zijn hier geconcentreerd rondom het Dorpsplein. Aan zowel de noord- als zuidzijde van het plein staat een historische kerk. De Hervormde kerk in het noorden stamt uit de 15e eeuw. Aan de zuidkant van het plein staat de rooms-katholieke Sint-Bartholomeus- en Barbarakerk uit de 19e eeuw. Het centrale plein doet dienst als parkeerplaats en als wekelijkse locatie voor de warenmarkt.
Uitdagingen voor de centra zijn het omgaan met het verdwijnen van winkels en voorzieningen waardoor leegstand ontstaat. Hierdoor verandert de functie van de centra van een plek waar mensen komen om dingen te kopen, naar plekken waar mensen komen om samen te zijn. Dit vraagt om een andere inrichting van de openbare ruimte, die meer gericht is op ontmoeting en verblijven. We zoeken naar mogelijkheden om groen en water toe te voegen. Dit draagt bij aan het klimaatadaptieve vermogen van de centra en zorgt voor een prettige uitstraling. In de toekomst zien we graag dat mensen het centrum lopend of met de fiets bezoeken. Dit vraagt om een andere inrichting van onze centra en goede routes vanuit de kernen naar de centra toe.
Het centrum van Waalwijk is het meest publieke en representatieve gebied van de gemeente. Hier komen mensen om te winkelen, te verblijven en te recreëren, door bijvoorbeeld een restaurant te bezoeken of naar het theater te gaan. De ruimtelijke structuur bestaat uit lange cultuurhistorische oost-west en noord-zuid lijnen met daartussen de binnengebieden (Wandelpark, De Els en het Unnaplein) die elk een eigen karakter hebben. In de binnengebieden ligt de opgave om deze karakters te versterken. Met een fijnmazig en groen wandelnetwerk worden de binnengebieden aan elkaar verbonden. Daarnaast willen we het centrum versterken door het de komende jaren stedelijk te verdichten en hiermee de levendigheid te verhogen. We voegen betaalbare woningen toe die geschikt zijn voor jongeren, starters en senioren. Daarnaast zien we kansen voor luxere appartementen die aansluiten bij de stedelijke sfeer. We maken een omslag van het centrum als monofunctionele winkelbestemming naar een aangename omgeving waar winkelen, ontmoeten en beleven samenkomen. Het centrum moet de groene huiskamer van de stad worden. Daarnaast bieden we ruimte voor kleinschalige bedrijvigheid. In het centrum bieden we ruimte aan jonge creatieve start-ups in nijverheid. Dit versterkt het verhaal van ambachten, zoals schoenen en leer. Omdat veel inwoners en bezoekers hier komen willen we hier een bijzondere en hoogwaardige ruimtelijke kwaliteit bieden. Dat doen we door te investeren in de openbare ruimte met prettige en groene straten en pleinen. Herkenbare centrum-entrees zorgen voor een mooi welkom in het gebied. Onze cultuurhistorisch waardevolle ruimtelijke structuur en beeldkwaliteit gaan we beschermen en versterken. Zie figuur 31 voor de visiekaart van het Stedenbouwkundig Masterplan voor het stadscentrum van Waalwijk.
In het centrum van Waalwijk blijven we inzetten op een compact kerncircuit. In dit overzichtelijke gebied kan het overgrote deel van het toekomstige winkelprogramma worden ingepast, evenals een groot deel van het overige publieke programma. Bij grote nieuwe of te verplaatsen publieksaantrekkende functies wordt gepoogd deze in dit gebied in te passen. Door passanten hier te bundelen blijft er een goed vestigingsmilieu aanwezig voor alle typen winkels.
In de centra van Sprang-Capelle en Waspik verhogen we de leefbaarheid door de verblijfskwaliteit te verbeteren, bijvoorbeeld door prettige ontmoetingsplekken en meer groen en water. We streven naar het concentreren van voorzieningen en gaan daarnaast dorps verdichten, bijvoorbeeld door leegstaande gebouwen te transformeren. Door verdichting komen mensen elkaar gemakkelijker tegen, wat de sociale cohesie verhoogt. In de dorpscentra streven we naar een functiemix met winkels, horeca, maatschappelijke voorzieningen en kleinschalige bedrijven. Zo worden de centra een bruisend hart van elk dorp. Aantrekkelijke dorpscentra met diverse voorzieningen bieden tevens kansen voor het versterken van de recreatie in de gemeente.
In alle centra willen we langzaam verkeer stimuleren. Dat doen we met prettige wandel- en fietsroutes naar de centra en voldoende fietsparkeerplaatsen. In het centrum van Waalwijk werken we aan een straatbeeld dat minder gedomineerd wordt door de auto, met parkeren aan de randen van het centrum. Door het versterken van het openbaar vervoer aan de Noorder Parallelweg wordt het centrum van Waalwijk een belangrijke bestemming.
In Landgoed Driessen komen geen commerciële voorzieningen. Hiermee behouden we de vitaliteit van het centrum van Sprang-Capelle. We zorgen voor prettige langzaam verkeerroutes vanuit Landgoed Driessen naar het centrum.
In het deelgebied centrumgebieden voorzien we de volgende onderzoekslocatie:
Onderzoekslocatie
Waalwijk
De ambitie is om de ruimtelijke en functionele barrière van de A59 zoveel mogelijk te verzachten en het deel over de breedte van het centrum direct ten zuiden van de snelweg bij het stedelijke interactiemilieu van het stadscentrum te betrekken. Daarbij past het toevoegen van bebouwing op de parkeerruimte ten westen van het stadhuis. Direct ten zuiden van de snelweg zal de ontwikkeling onderdeel uitmaken van de snelwegzone. Het zal dus een invulling dienen te krijgen die in bouwvorm, representatieve uitstraling en functie past bij deze dynamische en beeldbepalende structuur. Vertaald naar bouwvolumes resulteert dit in een liggend bouwmassa, waarin bijvoorbeeld de parkeeropgave een plek kan krijgen, met daarboven enkele blokvormige volumes, die gezamenlijk met de al aanwezige bebouwing in deze zone een herkenbare markering vormen van het centrumgebied.
Direct ten noorden van de Winterdijk grenst de ontwikkeling aan de relatief rustigere en cultuurhistorisch waardevolle structuur van de Winterdijk. Hier is een overgang naar de groene kwaliteit van de Winterdijk en het kleinschaligere karakter van de bebouwing aan de Grotestraat gewenst. Het ligt dan ook voor de hand eventuele woonfuncties (grotendeels) aan de zuidzijde te situeren.

In de centrumgebieden zetten we op de volgende manier in op de negen ambities:
Water en bodem als basis
In de centra spelen water- en bodemfactoren een minder grote rol, aangezien het gebied bebouwd is. Bij nieuwe ontwikkelingen dienen beide thema’s wel vroegtijdig meegenomen te worden in de ontwikkeling. Daarbij streven we naar zorgvuldig ruimtegebruik en meerwaardecreatie.
Biodiverse en beleefbare natuur en groen
Voor aantrekkelijke centra is een prettige groene verblijfskwaliteit van belang.
Duurzaam en klimaatrobuust
De centrumgebieden worden de komende jaren intensief gebruikt, doordat we hier willen verdichten. Het is belangrijk om voldoende ruimte te bieden aan klimaatadaptatie voor de leefbaarheid. Daarnaast vraagt de energietransitie om meer ruimte voor de toevoer van energie. Vanwege het hoge aantal gebruikers dient hier extra rekening mee te worden gehouden.
Goede bereikbaarheid
Goede bereikbaarheid is belangrijk voor de aantrekkelijkheid van het centrum. In de centra willen we meer ruimte bieden aan lopen en fietsen om bezoekers te stimuleren het centrum lopend of met de fiets te bezoeken. Dit vraagt om een andere inrichting van onze centra en goede routes vanuit de kernen naar de centra toe. Dat vraagt om extra inzet.
Samen zijn we gezond
In de centrumgebieden zetten we in op levendigheid. Hierbij accepteren we dat in dit gebied meer reuring en dynamiek toegestaan is, mogelijk met wat meer geluid.
Passend woonaanbod voor vitale kernen
In de centrumgebieden willen we verdichten, waardoor woningen dichtbij voorzieningen komen. We bouwen voor diverse doelgroepen en houden rekening met woningen die ook geschikt zijn voor senioren. Een ontwikkeling gebruiken we als koppelkans om kwaliteit toe te voegen aan de openbare ruimte van het centrum.
Brede voorzieningen voor alle leeftijden in alle kernen
In Waspik en Sprang-Capelle zien we ruimte voor een breed scala aan voorzieningen, zowel commercieel als maatschappelijk. In Waalwijk zien we liever een spreiding van maatschappelijke voorzieningen in de wijken.
Een economie die bijdraagt aan de gemeenschap
De centrumgebieden zijn hoofdgebieden voor winkels, horeca en dienstverlening. Andere soorten bedrijven zien we liever op de bedrijventerreinen.
Beleefbare cultuur en erfgoed en plekken voor ontspanning en recreatie
Beleefbare cultuur en erfgoed geven identiteit aan de centrumgebieden en dragen bij aan een prettige verblijfsomgeving. We versterken onze cultuur en erfgoed in de centra door huiskamers en ontmoetingsplekken voor inwoners en bezoekers.
De inzet op de negen ambities is visueel weergegeven in figuur 32. Op figuur 33 is de uitsnede van de visiekaart voor de centrumgebieden te zien.


De stad en dorpen binnen onze gemeente zijn ontstaan langs (bebouwings)linten. Deze linten vormen een historische en ruimtelijke drager van de ontwikkeling en hebben een belangrijke waarde binnen het landschap. Ze versterken de landschappelijke structuren door hun noord-zuid en oost-west ligging en verbinden stedelijke en landelijke gebieden. Kenmerkend voor de linten is de afwisseling tussen woningen en andere functies, zoals bedrijven en maatschappelijke voorzieningen. De bebouwing varieert in stijl en bouwperiode, wat zorgt voor een divers en herkenbaar karakter.
Binnen onze gemeente maken we onderscheid tussen twee typen linten:
Stedelijke linten – gelegen binnen de kern Waalwijk, Sprang Capelle en Waspik en aangemerkt als bestaande stedelijk gebied, zoals aangewezen door de provincie.
Landelijke linten – gelegen in het buitengebied van Waalwijk, Sprang Capelle en Waspik, al dan niet aangemerkt als stedelijk gebied door de provincie maar sterker verweven met het omliggende landschap. Het gaat dan in ieder geval om de Winterdijk, Wendelnesseweg- west- en oost, Willem van Gentsvaart, Waspiksedijk, Hogevaart en (delen van) Nieuwevaart Sprang Capelle. In Waspik gaat het in ieder geval om (delen van) ’t Vaartje, Schotse Hooglandersstraat, Vrouwkensvaartsestraat en Benedenkerkstraat.
Ondanks de verschillen in de linten delen beide linttypen uitdagingen op het gebied van functiemenging, mobiliteit en ruimtelijke kwaliteit.
Stedelijke linten
De stedelijke linten kenmerken zich door een compacte bebouwing en een stenig karakter. De gebouwen staan dicht op elkaar in smalle straten, waardoor de ruimtelijke structuur vaak gesloten is. In deze linten zien we vaker herhaling van woningtypen en een hoge mate van functiemenging: wonen, werken en verkeer komen hier samen.
Veel van de stedelijke linten herbergen bijzondere elementen zoals cultuurhistorisch erfgoed. Ook vinden we hier de historische dam- en mijnwoningen, die ooit werden verhuurd aan schoenmakers en looiersknechten. Deze kleine woningen stonden achter grotere panden langs de doorgaande straten.
Door de beperkte ruimte en de intensieve functiemenging ontstaan knelpunten, zoals:
De aanwezigheid van bedrijven die uit hun jasje zijn gegroeid en niet langer passen binnen een woonomgeving.
Verkeersdruk door een combinatie van auto’s, fietsers en vrachtverkeer in smalle straten.
De uitdaging om nieuwe woningbouw zorgvuldig in te passen zonder de historische en ruimtelijke waarden van de linten te verliezen.
Een belangrijke opgave is het zorgvuldig transformeren van deze linten, waarbij functiewisselingen – bijvoorbeeld van bedrijvigheid naar wonen – in balans worden gebracht met de historische structuur en verkeersveiligheid.
Landelijke linten
De landelijke linten hebben een opener, groener karakter. Hier wisselen individuele woningen af met agrarische en andere functies. De linten worden vaak begeleid door bomenrijen en bieden vrij zicht op het omliggende landschap. De ruimtelijke structuur is minder dicht, waardoor de overgang naar het buitengebied meer geleidelijk verloopt.
Net als bij de stedelijke linten, vinden we hier een mix van functies, zoals wonen en werken. Sommige bedrijven, die ooit kleinschalig begonnen, zijn door de jaren heen gegroeid en passen niet langer binnen de landelijke lintomgeving. Dit leidt tot ruimtelijke en functionele uitdagingen, zoals:
De noodzaak om grootschalige bedrijven te verplaatsen naar bedrijventerreinen om overlast voor de woonomgeving te verminderen.
Het behoud van het karakter van de linten bij functiewijzigingen, waarbij wonen direct aan het lint wordt gesitueerd en niet in tweede lijn.
Waarborgen van de verkeersveiligheid. De smalle linten worden intensief gebruikt door verschillende verkeersdeelnemers, waaronder fietsers, landbouwverkeer en vrachtwagens.
Het behoud en de versterking van de landelijke linten vragen om een zorgvuldige aanpak, waarbij ruimtelijke kwaliteit en verkeersveiligheid worden gewaarborgd.
In de linten zetten we in op het behoud en de versterking van cultuurhistorisch waardevolle ruimtelijke structuren en beeldkwaliteit. In de landelijke linten zijn bijvoorbeeld de doorkijkjes naar het landschap belangrijk voor de kwaliteit.
Elementen die essentieel zijn om te behouden, wijzen we aan als beschermde stads- en dorpsgezichten of als nieuw erfgoed. Bij nieuwe ontwikkelingen onderzoeken we of we de cultuurhistorische waarden kunnen versterken, zoals het terugbrengen van groen of zichtlijnen. De hoofdlijnen van de ruimtelijke en functionele beleidskeuzes uit de beleidsnotitie Gemengd Gebeid worden hierbij gehanteerd. Deze staan in figuur 34 en 35.
We behouden het groen in de linten en waar mogelijk versterken we het.
Het versterken van de woonfunctie in stedelijke linten doen we met name door de bestaande bebouwing beter te benutten, bijvoorbeeld door woningsplitsing.
Een bijzonder stedelijk lint is de Winterdijk in Waalwijk. Voorop staat het behoud en beter zichtbaar maken van de Winterdijk als cultuurhistorisch element in de stad. Ook herstel van het profiel van de dijk wordt nagestreefd op de plekken waar bijna tot op de dijk is gebouwd en waar de dijk volledig is verdwenen. Tevens zetten we met dit cultuurhistorisch en landschappelijk herstel in op het toegankelijk en beleefbaar maken van de Winterdijk.
We versterken de kwaliteit van de Winterdijk. We beogen deze terug te brengen op plaatsen waar de Winterdijk is onderbroken, in ieder geval bij bedrijventerrein Laageinde. Onlosmakelijk verbonden met de geschiedenis van Waalwijk zijn de stegen tussen de Grotestraat en de Winterdijk (dammen). We streven naar het herstellen, weer openbaar maken en/ of beter benutten van bestaande stegen.
Tussen de Winterdijk en Grotestraat, ter hoogte van het centrum van Waalwijk, kan gedacht worden aan het realiseren van nieuwe stegen, die bijdragen aan een compact, kleinschalig en verkeersluw dwaalgebied rond het centrum. De stegen vormen daarbij geen onderdeel van het winkelcircuit. De functies in de stegen kunnen hier wel ondersteunend aan zijn, zoals wonen, culturele en/of artistieke of dienstverlenende functies, mits dit naar aard, schaal, omvang en verkeersaantrekkende werking zich verhoudt tot het kleinschalige gebied. Uitbreiden van het winkelaanbod is niet wenselijk.
Het versterken van de woonfunctie in landelijk linten doen we met name door bij het vervallen van een bedrijfsfunctie de bedrijfswoning om te vormen tot burgerwoning.
Nieuwe woningen dienen te passen in de bestaande stedenbouwkundige (lint)bebouwingsstructuur. Dat betekent dat ze voldoende georiënteerd zijn op, en zichtbaar zijn vanaf, de openbare weg. Een opzet waarbij woningen achter elkaar zijn gesitueerd of georiënteerd/gelegen zijn op achterterreinen past niet vanzelfsprekend binnen de bestaande stedenbouwkundige structuur van de lintbebouwing. Bovendien kan dit leiden tot een niet acceptabel woonklimaat en kan het ten koste gaan van de rust en privacy in de (aangrenzende) buitenruimten.
In specifieke gevallen zou een uitzondering gemaakt kunnen worden om één of meerdere woningen toe te staan die niet direct aan de openbare weg ligt of liggen. Er moet dan sprake zijn van een plan dat zelf een positieve bijdrage levert aan de ruimtelijke kwaliteit en past in de huidige en cultuurhistorische context van de plek, bijvoorbeeld bij een monument. Zo kunnen bijvoorbeeld verdwenen dammen en mijnen een inspiratie zijn voor de wijze waarop mogelijke ontwikkelingen ingepast worden langs de Grotestraat en Winterdijk. Een andere uitzondering zou gemaakt kunnen worden ingeval sprake is van een bedrijf met zwaardere (milieu)hinderlijke bedrijfsactiviteiten dan doorgaans zijn toegestaan in het lint.
Functioneel willen we de woonfunctie versterken, maar houden we ook ruimte voor passende kleinschalige voorzieningen en bedrijven als kweekkas voor ondernemers. Bedrijven die niet meer passend zijn nabij woningen, faciliteren we om te verhuizen naar een bedrijventerrein als zich een kans voordoet. Uitgangspunt is dat het bouwperceel van een bedrijf aan de openbare weg ligt met, indien van toepassing, de bedrijfswoning aan de straat. Over het algemeen zijn lichte vormen van bedrijvigheid toegestaan op plaatsen waar nu al een bedrijf of voorziening aanwezig is. Lichte bedrijvigheid met enige verkeersaantrekkende werking is alleen mogelijk langs verzamelwegen en met een nadere afweging, onder andere voor de parkeer-/en rangeersituatie.
Bijzondere aandacht hebben we voor Waalwijk als onderdeel van de regionale Leisure-boulevard. Dit houdt in dat de gemeente zich sterker op het toeristisch-recreatief vlak wil ontwikkelen, om zo onderdeel te worden van een dagje uit of meerdaagsverblijf in de regio, met o.a. Efteling en de Beekse Bergen. Dit kan met het realiseren van leisure-functies in de zone direct ten westen van de N261, dat grofweg afgebakend wordt door de Noorder Allee, Tilburgseweg, Bevrijdingsweg en de N261. Deze zone is goed zichtbaar en bereikbaar voor bezoekers. Zeker als er ter hoogte van de Noorder Allee een mobiliteitshub gerealiseerd kan worden. Wanneer bestaande leisure-functies in de gemeente zich op minder aantrekkelijke of geschikte locaties bevinden, onderzoeken we of verplaatsing naar deze zone mogelijk is. Daarmee kan tevens ontwikkelruimte binnen de kern ontstaan. Voor de ruimtelijke inpassing van een Leisure-boulevard en het daarbij benutten van de aanwezige potentie wordt verwezen naar paragraaf 5.4.3.
Voor het glastuinbouwgebied aan de Wendelnesseweg gaan we onderzoeken of dit gebied nog een duurzame toekomst heeft als doorgroeigebied voor glastuinbouw. Dit gebied is nog steeds niet volledig in gebruik na de oprichting in 2002. Ontwikkelingen in dit gebied dienen de kwaliteiten van het lint te verbeteren en de omliggende (potentiële) natuurwaarden te versterken. Zo blijven de linten beschikbaar voor kleinschalige (startende) bedrijven die zich goed verenigen met de omliggende woningen.
Voor de leefbaarheid en verkeersveiligheid van de linten in de bebouwde gebieden is het nodig dat de maximumsnelheid teruggaat naar 30 km/uur. Daarbij is het nodig om het aantal verkeersbewegingen van auto’s en vrachtverkeer terug te brengen en deze een minder dominante positie te geven in het straatbeeld.


In het deelgebied Linten voorzien we de volgende onderzoekslocaties:
Onderzoekslocaties
Waalwijk
Achter de lintbebouwing aan het Westeinde ligt een relatief groot onbebouwd gebied, dat uit meerdere individuele percelen bestaat. Vanuit het principe dat inbreiding voor uitbreiding gaat, is het voorstelbaar dat er woningbouwontwikkeling plaatsvindt. Voor een goede stedenbouwkundige inpassing is het noodzakelijk een potentiële ontwikkellocatie die uit meerdere smalle percelen bestaat, in één integraal en samenhangend plan te ontwerpen. Het woonmilieu dat gerealiseerd kan worden, zal bestaan uit een mix aan woningtypes, waarbij het overgrote deel van de bebouwing uitgevoerd wordt in maximaal 2 bouwlagen met een kap. Op stedenbouwkundig relevante en daarvoor geschikte plekken kan een incidenteel hoogteaccent voorstelbaar zijn.
Achter de lintbebouwing aan het Hoogeinde ligt een relatief groot onbebouwd gebied, dat uit meerdere individuele percelen bestaat. Vanuit het principe dat inbreiding voor uitbreiding gaat, is het voorstelbaar dat er woningbouwontwikkeling plaatsvindt. Voor een goede stedenbouwkundige inpassing is het noodzakelijk een potentiële ontwikkellocatie die uit meerdere smalle percelen bestaat, in één integraal en samenhangend plan te ontwerpen. Het woonmilieu dat gerealiseerd kan worden, zal bestaan uit een mix aan woningtypes, waarbij het overgrote deel van de bebouwing uitgevoerd wordt in maximaal 2 bouwlagen met een kap. Op stedenbouwkundig relevante en daarvoor geschikte plekken kan een incidenteel hoogteaccent voorstelbaar zijn.
Bijzondere aandacht hebben we voor Waalwijk als onderdeel van de regionale Leisure-boulevard. Dit houdt in dat de gemeente zich sterker op het toeristisch-recreatief vlak wil ontwikkelen, om zo onderdeel te worden van een dagje uit of meerdaags verblijf in de regio met o.a. Efteling en de Beekse Bergen.
Dit kan met het realiseren van leisure-functies in de zone direct ten westen van de N261, dat grofweg afgebakend wordt door de Noorder Allee, Tilburgseweg, Bevrijdingsweg en de N261. Deze zone is goed zichtbaar en bereikbaar voor bezoekers. Zeker als er ter hoogte van de Noorder Allee een mobiliteitshub gerealiseerd kan worden. De ligging direct aan de N261 betekent dat bouwontwikkelingen die hier plaatsvinden een kans vormen om deze een herkenbaar en representatief ‘visitekaartje’ voor de gemeente Waalwijk te laten zijn. Een randvoorwaarde is daarom nadrukkelijk het realiseren van een hoge ruimtelijke kwaliteit. Deze ambitie ligt op alle schaalniveaus: van het stedenbouwkundig concept, tot de inrichting van de buitenruimte en de architectonische uitstraling. Zowel ten noorden als ten zuiden van dit gebied bevinden zich brede groene zones langs de N261.
Het uitgangspunt is om deze groene karakteristieken te behouden en te gebruiken als ruimtelijke kwaliteit voor mogelijke ontwikkelingen. Aanvullend op de concentratie van leisure-functies aan de N261 is in ondergeschikte vorm ook een toevoeging van wonen aan de Tilburgseweg voorstelbaar. De leisure-functies vormen daarbij de ruimtelijke en functionele buffer tussen de N261 en het wonen, zodat een goede woonkwaliteit geboden kan worden.
Sprang-Capelle
Zidewinde
In het gebied Omgeving Julianalaan Sprang-Capelle, ook wel Zidewinde genaamd, liggen drie belangrijke sociaal maatschappelijke voorzieningen:
Daarnaast is er nog sprake van een petanque vereniging en ligt ook het gebouw van de Heemkundekring in het gebied. Het SCC, de sporthal en het zwembad hebben een belangrijke functie voor de gemeenschap. Deze drie voorzieningen functioneren prima los van elkaar, maar er is weinig synergie tussen de voorzieningen. Dit zouden we op termijn graag willen verbeteren.
In de linten zetten we op de volgende manier in op de negen ambities:
Water en bodem als basis
In de linten spelen water- en bodemfactoren een minder grote rol aangezien het gebied grotendeels bebouwd is. Bij uitbreidingen zijn deze factoren echter wel van belang. Bij nieuwe ontwikkelingen dienen beide thema’s vroegtijdig meegenomen te worden in de ontwikkeling. Daarbij streven we naar zorgvuldig ruimtegebruik en meerwaardecreatie.
Biodiverse en beleefbare natuur en groen
We zien geen extra inzet op biodiverse en beleefbare natuur en groen in de linten maar benutten kansen voor verbetering waar deze ontstaan.
Duurzaam en klimaatrobuust
We zien geen extra inzet op duurzaam en klimaatrobuust in de linten maar benutten kansen voor verbetering waar deze ontstaan.
Goede bereikbaarheid
Goede en veilige bereikbaarheid, ook voor fietsers en wandelaars, is belangrijk, aangezien de linten vaak belangrijke hoofdroutes tussen de kernen zijn. Daarbij moet het evenwicht gezocht worden om de linten leefbaar en veilig te houden. Het verminderen van de hoeveel vrachtverkeer is daarbij belangrijk.
Samen zijn we gezond
Verspreid over de linten zitten bedrijven. Dit hoort bij het gemengde karakter van de linten. Als gemeente zetten we niet extra in op deze ambitie in de linten.
Passend woonaanbod voor vitale kernen
We zien geen extra inzet op passend woonaanbod voor vitale kernen in de linten. Kansen ten aanzien van het beter benutten van bestaande bebouwing of transformeren van oude bedrijfspanden benutten in combinatie met het verbeteren van de kwaliteit.
Brede voorzieningen voor alle leeftijden in alle kernen
Aan de linten zitten van oudsher voorzieningen. We zien de linten niet als het gebied waar we dit willen bevorderen maar we willen het gemengde karakter wel behouden.
Een economie die bijdraagt aan de gemeenschap
De linten zijn van oudsher plekken waar bedrijven zijn gevestigd. We willen ruimte blijven bieden aan kleinschalige bedrijven, mits ze geen overmatige overlast veroorzaken op de woonfunctie.
Beleefbare cultuur en erfgoed en plekken voor ontspanning en recreatie
De linten hebben een historische oorsprong en waren de lijnen waarlangs onze dorpen en stad zijn ontstaan. Het beschermen van deze cultuurhistorie is belangrijk. Daarnaast willen we de natuurhistorische structuren langs de linten verder versterken en hiermee ook een bijdrage leveren aan een biodiverse en klimaatadaptieve omgeving. We zien daarvoor alleen geen extra inzet.
De inzet op de negen ambities is visueel weergegeven in figuur 36. Op figuur 37 is de uitsnede van de visiekaart voor linten te zien.


De bedrijventerreinen in de gemeente Waalwijk vormen een essentieel onderdeel van de lokale en regionale economie. Met strategisch gelegen terreinen biedt Waalwijk ruimte aan een breed scala aan bedrijven, variërend van logistiek en productie tot perifere detailhandel en dienstverlening. Deze bedrijventerreinen kenmerken zich door een mix van grootschalige distributiecentra, kleinschalige werkplaatsen en kantoorruimtes, vaak met een goede aansluiting op belangrijke infrastructuren zoals de A59, de N261 en de Bergsche Maas.
Het bedrijventerrein Haven, bestaande uit de delen Haven I tot en met VI en Haven Zeven en Haven Acht, vormt een belangrijk economisch knooppunt binnen Waalwijk. Strategisch gelegen langs de Bergsche Maas aan de A59 en aan het knooppunt met de N261 is dit bedrijventerrein uitgegroeid tot een werkgebied met een regionale functie. De ligging aan de Bergsche Maas biedt het terrein ook directe toegang tot binnenvaartverbindingen, wat het aantrekkelijk maakt voor logistieke en industriële bedrijven die afhankelijk zijn van watertransport. De nabijheid van de Maas faciliteert efficiënte goederenstromen en versterkt de positie van Waalwijk als logistieke hub. Het bedrijventerrein wordt aan de oostkant tot aan het Drongelens kanaal uitgebreid met het vastgestelde plan Haven 8 oost afronding. Hier komt ruimte voor zeer grootschalige logistieke bedrijven, aansluitend op het bestaande bedrijventerrein Haven, met daarbij een groen-blauw robuust ecologisch raamwerk en een landschappelijke inpassing van het gebied.
In Waspik liggen de bedrijventerreinen Maasoever en Scharlo. Deze terreinen zijn voornamelijk bestemd voor middelgrote en kleine ondernemingen. De strategische ligging, naast de A59 en aan het Oude Maasje, maak het terrein aantrekkelijk voor bedrijven die profiteren van zowel weg- als waterverbindingen.
Van Andelstraat is een prominente locatie ten zuiden van de A59, grenzend aan het woongebied. Van Andelstraat kenmerkt zich door diverse autobedrijven alsmede horeca op de knoop tussen de A59 en N261.
Cartografenweg ligt direct langs de Midden-Brabantweg (N261), wat zorgt voor een uitstekende zichtlocatie en bereikbaarheid. Het gebied herbergt een verscheidenheid aan bedrijven, waaronder kantoorruimtes en productiehallen.
Zanddonk is een modern bedrijventerrein ten zuiden van de A59 en ten oosten van de N261. Dit is een terrein met een grote diversiteit aan functies: bedrijven, kantoren, perifere detailhandel, dienstverlening, voorzieningen, wonen, sport en leisure. Het terrein biedt huisvesting aan diverse bedrijven, variërend van logistiek en distributie tot productie en dienstverlening. Tevens is op Zanddonk de meubelboulevard gevestigd.
Voor bedrijventerrein Eerste Zeine beogen we al langere tijd een transformatie van een bedrijventerrein naar een gemengd gebied met bijvoorbeeld woon/werk-combinaties en voorzieningen.
Bedrijventerrein Laageinde, gelegen in het noorden van Waalwijk, heeft een rijke geschiedenis die teruggaat tot de leernijverheid. Het gebied wordt gekenmerkt door een langgerekte lintbebouwing. De bedrijven in Laageinde variëren van kleine ondernemingen tot middelgrote bedrijven, actief in sectoren zoals detailhandel, dienstverlening en lichte industrie. De strategische ligging nabij het centrum van Waalwijk en de goede bereikbaarheid maken het een aantrekkelijke locatie voor ondernemers.
In Sprang-Capelle liggen bedrijventerrein Nederveenweg en Berkhaag. Nederveenweg ligt nabij de A59, maar is niet geschikt voor grootschalige en/of zwaardere bedrijvigheid. Verkeer van de A59 moet namelijk door de smalle straat van de dorpskern Capelle om het bedrijventerrein te bereiken.
Bedrijventerrein Berkhaag is ingesloten tussen het lint Van der de Duinstraat/Raadhuisstraat in Sprang Capelle en bedrijventerrein de Kets in Kaatsheuvel, dat behoort bij de gemeente Loon op Zand. Berkhaag bestaat uit een combinatie van wonen/ werken. Hierdoor is er een goede ruimtelijke inpassing tussen de lintbebouwing en het resterende deel van het bedrijventerrein met daarachter de Kets.
De bedrijventerreinen in Waalwijk zijn economisch cruciaal, maar staan de komende jaren voor ruimtelijke uitdagingen. Herstructurering en modernisering van oudere terreinen zijn nodig, met de nadruk op infrastructuur, milieumaatregelen en verduurzaming. Duurzaamheid en energietransitie vragen om circulaire bedrijfsmodellen en slimme oplossingen voor energieopwekking, -opslag en -verbruik, gezien de netcongestie. Netbeheerders zetten alle zeilen bij om hun energie-infrastructuur uit te breiden, maar dit gaat niet snel genoeg. Daarom zullen we moeten zoeken naar slimme en gezamenlijke oplossingen voor het bij elkaar brengen van opwek, opslag en verbruik van energie. Dit kost ruimte en forse investeringen en vraagt om energieplanologie. Daarnaast zal veel aandacht moeten komen voor het beperken van de energievraag in bestaande en nieuwe bedrijfsprocessen.
Op verscheidene bedrijventerreinen zijn bedrijfswoningen aanwezig. Niet op alle bedrijventerreinen zijn bedrijfswoningen gewenst. Uitsluitend op (delen van) Berkhaag, Laageinde, Nederveenweg en Zanddonk zijn bedrijfswoningen gewenst om combinaties wonen/werken mogelijk te maken. Op de bedrijventerreinen ten noorden van de A59 zijn bedrijfswoningen ongewenst.
Bereikbaarheid en infrastructuur blijven ook een aandachtspunt, met toenemende verkeersdruk en de noodzaak voor betere ontsluiting en mobiliteitsoplossingen. De overlast op de woonomgeving moeten we in het kader van gezondheid beperken. Het uitplaatsen van zware bedrijvigheid uit de woonkernen naar de bedrijventerreinen is een opgave. Door deze uitdagingen aan te pakken, blijft Waalwijk een aantrekkelijke en toekomstbestendige vestigingslocatie.
Waalwijk zet in op brede circulaire bedrijventerreinen die duurzaam bijdragen aan Brede Welvaart. We stimuleren hergebruik van grondstoffen, samenwerking in energieoplossingen en circulaire productie. De koers is bestaande bedrijventerreinen herstructureren en verduurzamen en geplande nieuwe terreinen ontwikkelen met gedeelde voorzieningen, efficiënte logistiek en hergebruik van materialen. In het kader van Brede Welvaart en zorgvuldig ruimtegebruik (inbreiding voor uitbreiding) dagen we bedrijven en/of ontwikkelaars uit om gezonde voorzieningen te combineren op hun terrein (zoals wandelpaden of sportvoorzieningen voor eigen medewerkers). Bedrijven krijgen ondersteuning bij deze transitie, zodat we afval verminderen, werkgelegenheid creëren en innovatie stimuleren. Door slim ruimtegebruik en duurzame bedrijfsvoering versterken we zowel de economie als de leefbaarheid.
Voor bedrijven gelegen aan de A59 en N261 streven we naar een hoge kwaliteit. Het zijn de economische visitekaartjes van Waalwijk. We zetten in op een representatieve en groene uitstraling, hoogwaardige infrastructuur en een goed bereikbaar en toegankelijk vestigingsklimaat. Hiermee creëren we een aantrekkelijke omgeving voor bedrijven en werknemers. Daarnaast stimuleren we een gevarieerd aanbod van bedrijven, zodat Waalwijk een dynamische en toekomstbestendige economische regio blijft.
De ambitie is om uiteindelijk de ruimtelijke en functionele barrière van de A59 zoveel mogelijk te verzachten en het deel over de breedte van het centrum direct ten noorden van de snelweg bij het stedelijke interactiemilieu van het stadscentrum te betrekken. Daarbij past een verhoging van de huidige aanwezige bedrijfspanden direct ten noorden van de A59 en het toepassen van enkele hoogteaccenten. Deze worden als zelfstandige accenten toegepast en vormen individueel en gezamenlijk een herkenbare markering van het centrumgebied ten zuiden van de snelweg.
Op de bedrijventerreinen willen we slimmer omgaan met de beschikbaar ruimte door in te zetten op meervoudig ruimtegebruik en door het juiste bedrijf op de juiste plaatst te situeren. Ook het combineren van verschillende typen bedrijvigheid op een locatie behoort daarbij tot de mogelijkheden. Dat betekent dat we de bedrijventerreinen als geheel moeten benaderen en met alle partijen regelmatig afstemming moeten hebben over hun plannen, bijvoorbeeld wat betreft verduurzaming en wat daarvoor nodig is. Dat betekent ook dat onderzocht moet worden of enkele bedrijven ten zuiden van de A59 in de toekomst bereid zijn om te verplaatsen naar de bedrijventerrein Haven of Maasoever-Scharlo.
Op de reguliere bedrijventerreinen blijft de focus op lokale en regionale bedrijvigheid. We vinden het belangrijke dat kleine en middelgrote bedrijven in onze gemeente een plek moeten kunnen vinden en kunnen doorgroeien.
Op alle bedrijventerreinen investeren we samen met de bedrijven in het verbeteren van de omgevingskwaliteit door te vergroenen en meer ruimte te bieden aan water. Hier liggen kansen voor het verhogen van de biodiversiteit en het creëren van een prettige omgeving voor werknemers.
Tenzij anders aangegeven zijn op de bedrijventerreinen zelfstandige detailhandel, maatschappelijke voorzieningen en zelfstandige horeca niet toegestaan.
Samen met de gemeente Heusden en ’s-Hertogenbosch, het waterschap Aa en Maas, de provincie en het Rijk verbeteren we de verkeerssituatie rondom op- en afritten en de doorstroming van het verkeer op de A59. Hiermee wordt het bedrijventerrein Haven beter bereikbaar en beperken we overlast voor de omgeving.
Op de Taxandriaweg komt een mobiliteitshub voor de Bus Rapid Transit (BRT). Deze halte is beoogd voor de gebruikers van het centrum en het bedrijventerrein Haven. De afstanden naar het bedrijventerrein zijn soms te groot om te lopen. Daarom onderzoeken we de mogelijkheden voor de ‘last mile’ oplossing, zodat het laatste deel van de reis goed aansluit. Omdat een snelweghalte op korte termijn niet haalbaar is, werken we aan een HOV-halte op bedrijventerrein Haven. Deze kunnen we realiseren in het kader van de Gebiedsontwikkeling Oostelijke Langstraat. Daarnaast is het van belang dat de verbinding met Haven en het gebied ten zuiden van de A59 beter verbonden wordt voor de fiets. Verkeersveiligheid is daarbij essentieel.
Wonen in bedrijfswoningen is alleen gewenst in bedrijfswoningen ten zuiden van de A59. Ten noorden van de A59 zijn (nieuwe) bedrijfswoningen niet gewenst. Bestaande (tijdelijke) woningen kennen een termijn of een uitsterfconstructie in het omgevingsplan.
Bedrijventerreinen Haven in Waalwijk en Maasoever in Waspik zijn geschikt voor zwaardere bedrijvigheid, omdat ze verder af liggen van gevoelige functies. Daarnaast zijn deze aantrekkelijk voor havengebonden bedrijvigheid. Dit soort bedrijven geven we hier voorrang.
De omslag naar een circulaire en duurzame economie is een belangrijke opgave de komende jaren. Hiervoor is voldoende ruimte nodig. Bedrijventerrein Haven breiden we aan de oostzijde uit. Aan de noordzijde voorzien we een nieuwe Waalwijkse binnenhaven ten behoeve van het aanmeren van grotere klasse V-schepen. Wind en zon zorgen daarbij niet alleen voor energie voor de terminal, maar ook voor het laden van elektrische binnenvaartschepen en elektrische trucks. De ontwikkeling van de nieuwe binnenhaven zal namelijk niet alleen de overslagcapaciteit van goederen vergroten, maar ook die van Waalwijk voor logistiek. De keerzijde is dat het vrachtverkeer op bedrijventerrein Haven zal toenemen. Naast ingrepen om de doorstroming van het verkeer te verbeteren, zal ook iets moeten worden gedaan aan de uitstoot van de vrachtwagens. Hiervoor wordt nadrukkelijk gekeken naar het gebruiken van elektrische trucks voor de nieuwe binnenhaven.
Bedrijventerrein Haven is het enige bedrijventerrein waar mogelijkheden zijn voor grootschalige logistiek (meer dan 5 ha.).
De verdere ontwikkeling van bedrijventerrein Haven is een belangrijk project binnen de bredere economische, maatschappelijke en ruimtelijke strategie van de gemeente. Doel is het creëren van een economisch en ruimtelijk sterk bedrijventerrein dat bijdraagt aan Brede Welvaart in de gemeente en regio, maatschappelijk rendement genereert en dan met name met name op de geprioriteerde Brede Welvaart-thema’s mobiliteit, kleefkracht en een aantrekkelijk verblijfsklimaat. Voor de verder ontwikkeling en uitgifte van bedrijventerrein Haven wordt Brede Welvaart als principe gehanteerd. Zie ook paragraaf 5.5.3.
Ten westen van bedrijventerrein Scharlo wordt voorzien in een uitbreiding van het bedrijventerrein dat aansluit op het bestaande bedrijventerrein Scharlo. Dit betekent dat er wordt voorzien in de ontwikkeling van een kleinschalig bedrijventerrein voor het midden-en kleinbedrijf en er is ieder geval ruimte voor een elektriciteits-distributiebedrijf. Ten oosten van Maasoever-Scharlo wordt een uitbreiding voorzien die geschikt is voor havengebonden bedrijvigheid. Op zowel bedrijventerrein Maasoever als Scharlo zien we geen ruimte voor grootschalige logistiek. Zie ook paragraaf 5.8.2.
Van Andelstraat kan door haar ligging op de knoop A59-N261 gelden als hét visitekaartje van de bedrijventerreinen in Waalwijk. De locatie vormt namelijk ook de hoofdentree van Waalwijk (vanuit Tilburg) en de verbinding naar attractiepark de Efteling vanaf de A59. Er is voor dit bedrijventerrein geen directe aanleiding om veranderingen aan te brengen aan de huidige invulling van het terrein. Van Andelstraat is vooral gericht op handel in auto’s, in combinatie met bedrijfsactiviteiten (garagebedrijven). De bestaande horeca is een goede aanvulling, gelet op de ligging aan de knoop. Het toepassen van functiemenging wordt niet gezien als toegevoegde meerwaarde. Bezoekers van de Efteling die reizen via de A59 zullen de afslag naar de N261 als de Eftelingafslag ervaren, wat kansen biedt om een ruimtelijk onderscheidend beeld te realiseren en te ondersteunen.
Het bedrijventerrein aan de Cartografenweg wordt ook richting de toekomst gezien als kantoorlocatie en terrein voor groothandelsbedrijven. We willen het terrein meer benutten als zichtlocatie. De kavels blijven kleinschalig en de bedrijven dienen als buffer tussen de N261 en het achterliggende woongebied. Herstructurering in deze zou betekenen dat we meer variatie in hoogte toestaan en stimulering van goede architectuur.
Bedrijventerrein Zanddonk zien we als een kansrijk schakelpunt voor werken, voorzieningen en wonen. Dit is nu al een terrein met een grote diversiteit aan functies: bedrijven, kantoren, perifere detailhandel, dienstverlening, voorzieningen, wonen, sport en leisure. Op dit terrein liggen kansen om de zonering en menging van functies verder te versterken, mits passend in combinatie met de andere functies. De wijze waarop is nog in onderzoek. De meeste kansen daarvoor doen zich voor in de noordoosthoek van dit terrein. Zie ook paragraaf 5.5.3. Daarbij zijn al wel een aantal uitgangspunten voor het gehele terrein in beeld, zoals het stimuleren van verplaatsing van zwaardere bedrijven, zo mogelijk naar de bedrijventerreinen ten noorden van de A59. Leisure op Zanddonk willen we zo veel mogelijk rond de rotonde aan de Prof. Kamerlingh Onnesweg concentreren. Perifere detailhandel concentreren we ten zuiden van de Prof. Kamerlingh Onnesweg. Op bedrijventerrein Zanddonk zien we geen ruimte voor grootschalige logistiek. Zie ook paragraaf 5.5.3
Gezien de ligging van de Eerste Zeine tussen de woonwijken blijven we inzetten op een transformatie naar een gemengd gebied en stimuleren we de uitplaatsing van (milieu)hinderlijke bedrijven en een verbreding van het aangrenzende Halvezolenpark. Het aangrenzende Halvezolenpark biedt namelijk een extra kwaliteit. Eerste Zeine moet een meer open, groen en milieuvriendelijk karakter krijgen en kan op termijn een aantrekkelijk woon-werkgebied worden. Zie ook paragraaf 5.5.3.
Bedrijventerrein Laageinde kent net als de Cartografenweg een kwaliteit als zichtlocatie langs de A59. De Winterdijk, die als groene kwaliteit tussen de binnenstad en de A59 in ligt, is hier gedeeltelijk verdwenen. Het terugbrengen van de Winterdijk dient als leidraad voor de herstructurering van dit bedrijventerrein. Daarbij zien we het Laageinde geschikt voor kleinschalige bedrijven en kantoorlocatie gericht op de A59 en mogelijk een woonfunctie aan de zuidzijde, als overgang naar het kleinschaliger karakter van het woongebied aan de Winterdijk. Als ruimtelijk concept voor dit woon-werkgebied kan de opzet van de westelijk gelegen strook met kantoren gehanteerd worden met enkele solitaire bouwblokken in een groene buitenruimte. De herstelde Winterdijk dient weer een beeldbepalend element te vormen in deze nieuwe groene ruimte. Grotendeels passen de huidig gevestigde bedrijven niet in dit beeld, waardoor transformatie een wenselijke vorm van herstructurering is. Zie ook paragraaf 5.5.3
Het bedrijventerrein aan de Nederveenweg in Sprang-Capelle kan op termijn getransformeerd worden naar wonen en recreatie. Gestreefd wordt naar lichte bedrijvigheid en het versterken van de recreatieve functie van de jachthaven. Hierbij kan gedacht worden aan kleinschalige horeca en/of water gerelateerde recreatie. Deze ontwikkeling kan leiden tot een bijzondere woon- en recreatieplek waar mogelijk ook een uitbreiding van de jachthaven deel van uitmaakt. Dit gebied staat in verbinding met het Oude Maasje en de Bergsche Maas. Zie ook paragraaf 5.5.3
Op het bedrijventerrein Berkhaag streven we naar behoud van de huidige combinatie lichte bedrijvigheid tegen de woongebieden en binnen andere deelgebieden wat zwaardere bedrijvigheid. Zelfstandige detailhandel en zelfstandige horeca worden niet toegestaan. Maatschappelijke voorzieningen en dienstverlening is toegestaan, indien de voorziening van belang is voor de lokale verzorgingsstructuur.
Ten aanzien van bedrijfswoningen houden we vast aan de huidige beleidslijn dat niet op alle bedrijventerreinen bedrijfswoningen gewenst zijn. Uitsluitend op (delen van) Berkhaag, Laageinde, Nederveenweg en Zanddonk zijn bedrijfswoningen gewenst om combinaties wonen/werken mogelijk te maken. Op de bedrijventerreinen ten noorden van de A59 zijn permanente (bedrijfs)woningen ongewenst.
In het deelgebied Bedrijventerreinen voorzien we de volgende onderzoekslocaties en toekomstige onderzoekslocatie:
Onderzoekslocaties
Waalwijk
De noordoosthoek van bedrijventerrein Zanddonk zien we als een onderzoekslocatie met kansen als startpunt voor transformatie naar een meer stedelijk en gemengd karakter. De wijze waarop dit gerealiseerd kan worden, is nog in onderzoek. We onderzoeken op welke wijze we werken, voorzieningen en wonen kunnen zoneren en mengen in combinatie met het verbeteren van de kwaliteit van de leefomgeving.
Daarbij zijn naast de visie en uitgangspunten genoemd in paragraaf 5.5.2 specifiek voor de noordoosthoek een aantal aanvullende uitgangspunten in beeld:
Verbeteren van de routes voor snelverkeer en langzaam verkeer door het ontwikkelingsgebied en de verbindingen daarvan met de omringende gebieden.
Realiseren van representatief vormgegeven randen met ruimtelijke kwaliteit van het gebied aan het Halvezolenpad en de Bachlaan.
Op stedenbouwkundig relevante en geschikte plekken zijn hoogteaccenten voorstelbaar.
Gezien de ligging van de Eerste Zeine tussen woonwijken en in de nabijheid van het centrum, blijven we inzetten op een transformatie naar een gemengd gebied met een stedelijk karakter, waar het toevoegen van woningen onderdeel van uitmaakt. We stimuleren daarvoor de uitplaatsing van (milieu)hinderlijke bedrijven. Herontwikkeling kan daardoor gepaard gaan met het verbeteren van de ruimtelijke kwaliteit. Hierbij biedt het aangrenzende Halvezolenpark aanleiding het groene karakter ervan te benutten als (woon)kwaliteit en te versterken door een verbreding van deze groene zone. De Eerste Zeine zal zo een meer open, groen en aantrekkelijk karakter krijgen.
Op het kruispunt van de Sint Antoniusstraat met de Noorder Parallelweg is ter plaatse van het voormalig slachthuisterrein een ontwikkeling vergund, waarbij een verdichting met een accent in bouwhoogte mogelijk is gemaakt. Dit hoogteaccent dient als markering van de toegang naar het centrumgebied via de Stationsstraat. Ontwikkelingen ten oosten van deze plek zullen in bouwhoogte lager zijn dan het vergunde complex, om de stedenbouwkundige markering duidelijk herkenbaar te houden.
Belangrijk onderdeel van ontwikkelingen in dit gebied is de gewenste inpassing van een mobiliteitshub als locatie waar OV (bus), gedeelde mobiliteit en eigen mobiliteit samenkomen. De locatie is gekoppeld aan een OV-route over de Noorder Parallelweg en de fiets- en voetgangersverbindingen richting het centrum. Door de centrale ligging, de goede bereikbaarheid en de potentiële groene kwaliteiten kan het gebied op termijn een aantrekkelijk woon-werkgebied worden.
Bedrijventerrein Laageinde kent een kwaliteit als zichtlocatie langs de A59. De Winterdijk, die als groene structuur tussen de binnenstad en de A59 in ligt, is hier gedeeltelijk verdwenen. Het terugbrengen van de Winterdijk dient als leidraad voor de herstructurering van dit bedrijventerrein. Daarbij zien we het Laageinde geschikt voor kleinschalige bedrijven en kantoorlocatie gericht op de A59 en mogelijk een woonfunctie aan de zuidzijde, als overgang naar het kleinschaliger karakter van het woongebied aan de Winterdijk. Als ruimtelijk concept voor dit woon-werkgebied kan de opzet van de westelijk gelegen strook kantoren gehanteerd worden: enkele solitaire bouwblokken in een groene buitenruimte. De herstelde Winterdijk dient weer een beeldbepalend element te vormen in deze nieuwe groene ruimte. Grotendeels past de huidig gevestigde grootschalige, zware bedrijvigheid niet in dit beeld, waardoor transformatie een wenselijke vorm van herstructurering is.
Sprang-Capelle
De bedrijven aan de haven van Capelle kunnen op termijn getransformeerd worden naar wonen en recreatie. Deze ontwikkeling kan leiden tot een bijzondere woon- en recreatieplek, waar de kwaliteit van wonen en verblijven aan een dorpse haven benut kan worden. De al aanwezige karakteristieke woon- en werkbebouwing aan het zuidwestelijke deel van Haven is de inspiratie voor de kwaliteit en uitstraling van een nieuwe ontwikkeling.
Toekomstige onderzoekslocatie
Waalwijk
In de zuidoosthoek van Haven 8 oost afronding, tegen de natuurstrook langs het Drongelens kanaal, wordt een verdere afronding van het bedrijventerrein beoogd. Dit deel heeft op dit moment een bestemming groen. Daarbij beogen we in ieder geval:
Toevoegen van maatschappelijke meerwaarde.
Toevoegen ruimtelijke kwaliteit door in ieder geval zorgvuldig en meervoudig ruimtegebruik en in te zetten op intensiever ruimtegebruik.
Bevorderen van het leef- en werkklimaat van de directe werkomgeving, zoals het tegengaan van hittestress, schaduwplekken en groen/waterberging.
Op de bedrijventerreinen zetten we op de volgende manier in op de negen ambities:
Water en bodem als basis
Op de bedrijventerreinen spelen water- en bodemfactoren een minder grote rol aangezien het gebied grotendeels bebouwd is. Bij nieuwe ontwikkelingen dienen beide thema’s wel vroegtijdig meegenomen te worden in de ontwikkeling. Daarbij streven we naar zorgvuldig ruimtegebruik en meerwaardecreatie.
Bij uitbreidingen is het principe van water en bodem als basis echter wel van belang om te beoordelen of de beoogde uitbreidingslocatie richting de toekomst de meest geschikte plek is vanuit de ondergrond bezien.
Biodiverse en beleefbare natuur en groen
Op de terreinen is de potentie om te vergroenen en een bijdrage te leveren aan een groen netwerk voor biodiversiteit, bijvoorbeeld met bomenlanen voor vleermuizen of dak- en gevelgroen.
Duurzaam en klimaatrobuust
Duurzaam en klimaatrobuust is belangrijk op de bedrijventerreinen. Hier willen we ons met bedrijven inzetten voor energieverduurzaming, het aanpakken van netcongestie en zorgen voor een klimaatadaptieve omgeving.
Goede bereikbaarheid
Goede bereikbaarheid is belangrijk voor het vestigingsklimaat en daarom willen we hier extra op inzetten. We werken aan de omslag naar duurzame mobiliteit, bijvoorbeeld met meer elektrisch vervoer. Daarnaast zetten we in op betere ontsluiting van de bedrijventerreinen (met name Haven) met het OV en voor fietsers.
Samen zijn we gezond
Een gezonde en veilige werkomgeving is essentieel voor de mensen die werken op de bedrijventerreinen. Het combineren van kleinschalige ondergeschikte sportvoorzieningen voor eigen werknemers op bedrijfslocaties of het aanleggen van wandelpaden kan bijdragen aan de gezondheid van medewerkers. Daarnaast zetten we ons in om ondermijning tegen te gaan en zorgen we op die manier voor een veilige omgeving.
Passend woonaanbod voor vitale kernen
Passend woonaanbod voor vitale kernen heeft geen focus op de bedrijventerreinen.
Brede voorzieningen voor alle leeftijden in alle kernen
Op de bedrijventerreinen ten noorden van de A59 zien we geen ruimte voor voorzieningen, met uitzondering van sportvoorzieningen voor eigen werknemers. Op de bedrijventerreinen ten zuiden van de A59 zien we dit enkel op Zanddonk in de vorm van leisure (geconcentreerd aan de N261) en op de Nederveenweg in de vorm van watergebonden recreatie.
Op alle bedrijventerreinen is het belangrijk dat wordt ingezet op onderwijs, zoals door het bevorderen van stageplekken.
Een economie die bijdraagt aan de gemeenschap
De bedrijventerreinen zijn bij uitstek de plekken voor onze economie en we dienen als gemeente zorg te dragen voor voldoende ruimte voor de bestaande bedrijvigheid. We stimuleren circulariteit, digitalisering en robotisering bij ondernemingen. Bij uitbreidingen van bedrijventerreinen hebben we oog voor het juiste bedrijf op de juiste plek met in achtneming van de uitgiftevoorwaarden Brede Welvaart.
Beleefbare cultuur en erfgoed en plekken voor ontspanning en recreatie
Beleefbare cultuur en erfgoed en plekken voor ontspanning en recreatie heeft geen focus op de bedrijventerreinen. Bij het uitbreiden van bedrijventerrein Maasoever-Scharlo dient aandacht besteed te worden aan de verkeersveiligheid en landschappelijke inpassing t.b.v. een aantrekkelijke recreatieve fietsroute richting het water.
De inzet op de negen ambities is visueel weergegeven in figuur 38. Op figuur 39 is de uitsnede van de visiekaart voor de bedrijventerreinen te zien.


Inrichting van de openbare ruimte
In de bebouwde gebieden is een groene inrichting van de openbare ruimte van groot belang voor de biodiversiteit, waarbij het groen zoveel mogelijk onderling verbonden is. Dat betekent dat bij het inrichten van bestaande en nieuwe stedelijke gebieden steeds bekeken wordt of verharding echt nodig is, of dat een plek ook een groene inrichting kan krijgen (of eventueel halfverharding). Het betekent ook dat niet alleen naar infrastructurele (verkeers)verbindingen wordt gekeken, maar ook naar het verkrijgen van aaneengesloten groenstructuren, die doorlopen naar omliggende (buiten)gebieden. Daarbij kan het gaan om bomenlanen, groensingels, kruidenrijke graslandjes / bermen / gazons, watergangen met flauwe natuurvriendelijke oevers, wadi’s met flauwe taluds, etc. Onderbrekingen en barrières dienen zoveel mogelijk te worden voorkomen of te worden gemitigeerd (verzacht), bijvoorbeeld door toepassing van een amfibieëngoot of een faunapijp onder een weg door. Primair is het ontwikkelen en aanvullen van de gemeentelijke groene hoofdstructuur van belang. Aanvullend kunnen ook de overige delen van de openbare ruimte, dieper de stedelijke gebieden in, verder worden ontwikkeld.
Bij de inrichting van de openbare ruimte is toepassing van gebiedseigen (inheemse) soorten beplanting belangrijk, omdat die relatief veel insecten (en daarmee voedsel voor grotere dieren als vogels en vleermuizen) aantrekken. Bij voorkeur gaat het om beplanting met bloemen, zaden, bessen/fruit en noten. Variatie en overgangen zijn ook belangrijk: kruidenrijk gras, ruigte, struweel(hagen) en bomen. Het ophangen van nestkasten voor vogels en vleermuizen en plaatsen van insecten-/bijenhotels in de openbare ruimte zorgt voor nestgelegenheid en rust- en verblijfplaatsen. Vooral voor vleermuizen is het van belang terughoudend te zijn met verlichting waar dat kan en deze bij voorkeur naar beneden te richten.
Bij de ontwikkeling van bedrijventerrein Haven 8 Oost (tussen het bestaande bedrijventerrein Haven 8 West en het Afwateringskanaal ’s-Hertogenbosch-Drongelen) wordt langs de zuidwestzijde van het Afwateringskanaal een ecologische verbindingszone ontwikkeld. Deze zone sluit aan op het Natuurnetwerk Brabant (NNB) langs het Afwateringskanaal dat een verbinding vormt tussen de Bergsche Maas en de Loonse en Drunense Duinen (zie paragraaf 4.2.3 Biodiverse en beleefbare natuur en groen). De natuurontwikkeling bij het nieuwe bedrijventerrein sluit qua natuurtypen bij voorkeur aan op het NNB, met vochtig hooiland, kruiden- en faunarijk grasland en moeras en met amfibieënpoelen langs het kanaal. Langs de randen van de bebouwing kan de landschappelijke inpassing bestaan uit een opgaande beplanting van bijvoorbeeld gewone es, gladde iep, zomereik en zwarte els, met een zoomvegetatie van eenstijlige meidoorn, gewone vlier en wilde kardinaalsmuts. Het is verder van belang rekening te houden met de aanwezigheid van de patrijs in het gebied, onder meer door het ontwikkelen van ruigtevegetaties (zie ook de verdieping biodiversiteit voor het agrarisch buitengebied in paragraaf 5.8.5). De aantallen patrijzen gaan op veel plekken in Nederland achteruit, maar de soort komt hier nog vrij veel voor.
Beheer van de openbare ruimte
Ook natuurvriendelijk beheer van de openbare ruimte is belangrijk voor het vergroten van de biodiversiteit in de bebouwde gebieden. Voor bijvoorbeeld egels zijn rommelhoekjes met bladeren en takken van belang. Dat betekent dat blad in het najaar en de winter op sommige plekken blijft liggen, zodat schuilgelegenheid ontstaat. Een natuurvriendelijk maaibeheer, waarbij minder vaak wordt gemaaid en niet alles tegelijk, zorgt ervoor dat meer kruiden zich kunnen ontwikkelen, er steeds leefgebied is voor bijvoorbeeld dagvlinders als bruin blauwtje en icarusblauwtje en er altijd schuilgelegenheid is voor amfibieën en kleine zoogdieren. Vanzelfsprekend is het voor de biodiversiteit essentieel dat geen chemische onkruidverdelgers worden gebruikt in het beheer.
Openbare ruimte: voorlichting aan bewoners en ondernemers
Bij het minder intensief maaien van (een deel van de) bermen en gazons is het belangrijk bewoners en ondernemers te informeren waarom dit gebeurt. Veel mensen zijn gewend aan korte gazons met weinig kruiden en vinden meer natuurlijke bermen er ‘rommelig’ uitzien. Voorlichting helpt om mensen enthousiast te krijgen voor meer natuurlijke bermen, met een grotere variatie aan (bloeiende) kruiden die bijdragen aan de biodiversiteit.
Inrichting van private tuinen en terreinen
Ook voor tuinen en andere private terreinen geldt dat een zoveel mogelijk groene inrichting, met weinig verharding en gebiedseigen (onbespoten) planten met bloemen, zaden, bessen/fruit en/of noten en het niet gebruiken van chemische onkruidverdelgers bijdraagt aan de biodiversiteit. Dat geldt ook voor rommelhoekjes en vijvers met flauwe oevers met vegetatie (voor amfibieën het liefst zonder vis). Het toepassen van hagen in plaats van schuttingen of andere harde erfafscheidingen zorgt ervoor dat kleine dieren als egels tuinen en andere private terreinen in en uit kunnen.
In de bebouwingslinten die in het buitengebied liggen, is de relatie met het omliggende landschap het sterkst. Op de erven in de linten kunnen veelal dezelfde maatregelen getroffen worden als op de erven in het agrarisch buitengebied (zie hoofdstuk 3). Daarbij kunnen oude landschapselementen worden hersteld, die aansluiten op landschapselementen en -structuren die horen bij de deelgebieden waar het lint doorheen loopt, zoals rijen knotwilgen of elzensingels.
Beheer van private tuinen en terreinen
Voor het onderhoud aan tuinen en andere private terreinen geldt net als in de openbare ruimte dat het goed is gazons niet te vaak te maaien en het maaisel af te voeren. Dan komen er meer bloemen in het gazon. Het laten liggen van blad in het najaar en de winter in de borders zorgt voor voedsel voor vogels en schuilplekken voor kleine zoogdieren.
Natuurinclusieve bebouwing
Klimplanten tegen gevels (groene gevels), groene daken en neststenen/-kasten/-pannen voor vogels (zoals huismus, huiszwaluw en gierzwaluw) en vleermuizen (zoals gewone dwergvleermuis en laatvlieger) of behoud van oude muren of muren met mortel (bijv. voor muurleeuwenbek) maken ook de bebouwing natuurinclusief. In de centrumgebieden zijn de mogelijkheden voor een groene inrichting soms beperkt. Daar is het ontwikkelen van gevelgroen en daktuinen extra belangrijk.
Voorlichting en participatie
Voorlichting aan en participatie door bewoners en ondernemers is van belang om ze te enthousiasmeren om tuinen / private terreinen en bebouwing natuurvriendelijk in te richten en te beheren. Voorbeelden daarvan zijn inspiratie en informatie bieden aan bewoners en ondernemers via de gemeentelijke website en social media, het aanbieden van laagdrempelige adviezen voor de inrichting en het beheer van (bedrijfs)tuinen of subsidie. Het ondersteunen van lokale initiatieven die bijdragen aan het verhogen van de biodiversiteit in het stedelijk gebied is daarbij ook belangrijk. Op dit moment is er een regeling voor tegemoetkoming in onderhoudskosten voor waardevolle / grote bomen en het Tuinrangers-project is in 2025 gestart, waarin tuineigenaren een gratis tuinadvies kunnen aanvragen.
In de gemeente hebben we verschillende sport- en recreatiegebieden. Dit zijn plekken waar onze inwoners en bezoekers komen om te ontspannen en sporten. Voor wat betreft sportvoorzieningen kennen we een onderscheid in binnensport en buitensport. Voor de verschillende binnen- en buitensportverenigingen zie figuur 40.
De sportvoorzieningen worden onder andere ook gebruikt door het (basis)onderwijs. Daarnaast is er door een goede verdeling van gymzalen over de gemeente ook volop ruimte voor kleinere sportfaciliteiten.
In Waalwijk en Sprang-Capelle hebben we twee grote sportgebieden met sportvoorzieningen. In Waalwijk is sportpark Olympia de plek waar veel sportvoorzieningen te vinden zijn. Hier zijn het stadion van RKC Waalwijk, sporthal De Zeine, een atletiekbaan en verschillende sportvelden geconcentreerd. Aan sportpark Olympia liggen twee middelbare scholen en het gezondheidscentrum Olympiapark. Ook worden er maatschappelijke activiteiten georganiseerd, wat bijdraagt aan de leefbaarheid van de omgeving.
Op sportpark De Gaard in Landgoed Driessen liggen sportvelden en is topsporthal De Slagen aanwezig. Hier zijn ook andere sport- en gezondheid gerelateerde voorzieningen, zoals een sportschool en fysiotherapie. Aan het sportpark ligt tevens een middelbare school. In de directe nabijheid ligt de gezondheidsvoorziening het Koetshuis.
Verspreid over de gemeente liggen direct aan – of in de omgeving van het Halvezolenpad verder de volgende sportvelden: Sportpark Elzenhage in Waspik, Sportpark de Lindenheuvel, sportpark Mandemakers van voetbalvereniging S.V. Capelle in Sprang-Capelle en sportpark Van Wijlen van voetbalvereniging SSC’55 in Sprang-Capelle. Hierdoor kunnen inwoners dichtbij hun woonplaats sporten. Deze lokale sportvoorzieningen zijn belangrijk voor het stimuleren van een actieve en gezonde levensstijl en versterken de sociale cohesie in de dorpen.
Recreatiegebied Het Hoefsven ligt aan de rand van Waalwijk en grenst aan de Loonse en Drunense Duinen en Leemkuilen. Hier zijn verschillende voorzieningen zoals een surfvijver, hertenkamp, speeltuin en overdekt zwembad Olympia grenst aan het gebied. Daarnaast is het een waardevol natuurgebied, grenzend aan de Loonse en Drunense Duinen met mogelijkheden voor rust en ontspanning. De groei van de stad Waalwijk vraagt om het verbeteren van de mogelijkheden en kwaliteit van Het Hoefsven. In Het Hoefsven zijn historische wielen zichtbaar zoals het Galgenwiel. Wielen zijn natuurlijke, vaak ronde, waterplassen meestal gelegen langs dijken, die zijn ontstaan bij een dijkdoorbraak.
Door bevolkingsgroei en toenemend binnenlands toerisme raken populaire natuurgebieden overbelast, waardoor het een uitdaging is om de balans te vinden tussen recreatief gebruik en natuurbehoud. Tegelijkertijd is de verdeling van de schaarse ruimte een belangrijk vraagstuk. De behoefte aan woningen, landbouw, infrastructuur en recreatie concurreren met elkaar, waardoor het noodzakelijk is om slimme ruimtelijke keuzes te maken. Hierbij speelt het versterken van bestaande recreatiegebieden en het ontwikkelen van nieuwe recreatieve verbindingen een belangrijke rol. Daarnaast speelt de toegankelijkheid en bereikbaarheid van recreatiegebieden een grote rol. Goede fiets- en wandelroutes zijn essentieel om recreatie voor iedereen bereikbaar te houden. Door het verbeteren van recreatieve netwerken, zoals fiets- en wandelknooppunten, kunnen inwoners en bezoekers op een duurzame manier genieten van de natuur en sportieve activiteiten.

Het Halvezolenpad vormt de drager voor (het verbinden van) de sport-, speel- en ontmoetingsplekken in onze gemeente, aangezien de sportterreinen hier nu al direct aan of in de nabijheid liggen. Dit willen we verder versterken. Het Halvezolenpad en de ruimte die daaraan ligt, wordt een langgerekt (stads)park over de gehele lengte van de gemeente en verbindt tevens de verschillende kernen. Dit benadrukt de historische oost-west lijnen in onze gemeente en hiermee versterken we de verbondenheid van de kernen.
De sportparken De Gaard en sportpark Olympia zijn belangrijke plekken waar sport en gezondheid samenkomen. De komende jaren willen we dit profiel versterken door integraal naar gezondheid te kijken. Bijvoorbeeld door meer gezondheid gerelateerde voorzieningen aan te trekken en aandacht te besteden aan gezonde voeding en mentale gezondheid. De verbinding met de middelbare scholen willen we versterken. Tijdens schooltijd kunnen scholieren sporten op de sportvelden, maar ook na schooltijd willen we het sportpark openstellen voor jeugd om te sporten en bewegen. De sportverenigingen hebben hier het initiatief opgepakt om een visie uit te gaan werken voor een meer continue sportboulevard op een beter toegankelijk en groener ingericht sportpark. De ambitie is de verschillende sportverenigingen met elkaar te verbinden en mogelijkheid te creëren om elkaars faciliteiten te kunnen benutten.
Waspik krijgt een nieuwe sporthal met voorzieningen en beachvolleybalvelden nabij het Halvezolenpad.
Op het voormalige terrein van R.K.V. The Whiteboys gaan we onderzoeken hoe de sportvelden ontwikkeld kunnen worden naar een passend dorps woonmilieu met een diversiteit aan woningtypes. Zie hiervoor paragraaf 5.7.3.
Het Hoefsvengebied, ook bekend als ’t Lido’, is een waardevol en natuurlijk overgangsgebied naar Natura 2000-gebied Loonse en Drunense Duinen en Leemkuilen. We streven ernaar dat Het Hoefsven een gebied wordt en blijft voor alle Waalwijkers door in te zetten op een inclusieve en diverse omgeving waar recreatie, sport en natuur samenkomen. Dit willen we bereiken aan de hand van een zonering die bijdraagt aan de verschillende behoeften van bezoekers. Een cluster voor voorzieningen in het noorden. Meer extensieve recreatie (voorzieningen en natuur) in het midden van het gebied, en ruimte voor natuur en natuurbeleving in het zuiden. Het is van belang dat de ruimte en rust worden gewaarborgd bij toekomstige ontwikkelingen. De huidige evenementen blijven we toestaan. Grotere evenementen of risico-evenementen zijn niet wenselijk in verband met overlast en natuur.
We versterken de potentie van de ligging aan het water. Daarbij kan gedacht worden aan het verbeteren van de verblijfskwaliteit en mogelijk het uitbreiden van de jachthaven bij Capelle en het aantrekkelijk maken met meerdere vormen van (watergerichte) recreatie.
De recreatieve potentie van de Overdiepse Polder willen we verder versterken. Hier liggen diverse cultuurhistorische elementen uit de Tweede Wereldoorlog. Daarnaast laat dit gebied zien, hoe op een bijzondere manier ruimte wordt geboden aan het water. Het is een heerlijk weids gebied om uit te waaien en van het landschap te genieten. Daarnaast is dit onze poort tot De Biesbosch. We zien hier kansen voor het versterken van de waterrecreatie.
We realiseren een samenhangend recreatief netwerk van fiets- en wandelroutes. Dit netwerk bestaat uit routes die noord-zuid gericht zijn en routes die oost-west gericht zijn. In dit recreatieve rasternetwerk is het mogelijk kleinere ‘rondjes’ te maken. De noord-zuid routes verbinden daarbij de hogere zandgronden (incl. de Efteling en de Loonse en Drunense Duinen) met het rivierengebied. Deze verbindingen liggen ten oosten van de kern Waalwijk (langs het Afwateringskanaal-Valkenvoortweg), ten westen van de kern Waalwijk (snelfietsroute N261-Meidoornweg), centraal in de gemeente (Veerweg-Wendelnesseweg-Nieuwevaart) en ter hoogte van Waspik (Polanenweg-kernen Waspik-Engelseweg). De oost-west gerichte routes volgen het water, de cultuurhistorische structuur van de Winterdijk en het Halvezolenpad. Belangrijk voor ieder recreatiegebied is een goede aansluiting op zowel het voorgestelde recreatieve netwerk, als het nog fijnmazigere wandel- en fietsknooppuntennetwerk. Hier liggen kansen voor de beleving van cultuur- en natuurhistorie.
In het deelgebied Sport- en recreatiegebieden voorzien we de volgende onderzoekslocatie:
Onderzoekslocaties
Waspik
Onderzocht gaat worden hoe de sportvelden ontwikkeld kunnen worden naar een passend dorps woonmilieu met een diversiteit aan woningtypen, waarbij het overgrote deel van de bebouwing uitgevoerd wordt in maximaal 2 bouwlagen met een kap. Op stedenbouwkundig relevante en geschikte plekken zijn incidentele hoogteaccenten voorstelbaar. Om tot een kwalitatief goede dorpsrand te komen, zal aandacht besteed moeten worden aan de landschappelijke vormgeving van de nieuwe overgang naar het buitengebied.
Op de sport- en recreatiegebieden zetten we op de volgende manier in op de negen ambities:
Water en bodem als basis
We zetten niet extra in op water en bodem als basis in deze gebieden. Bij nieuwe ontwikkelingen dienen beide thema’s wel vroegtijdig meegenomen te worden in de ontwikkeling. Daarbij streven we naar zorgvuldig ruimtegebruik en meerwaardecreatie.
Biodiverse en beleefbare natuur en groen
Biodiverse en beleefbare natuur en groen zijn belangrijk om de recreatiegebieden aantrekkelijk te houden en te maken. Het zorgt voor een natuurlijke omgeving waar mensen tot rust kunnen komen en ontspannen. Ook bij de sportvelden draagt groen bij aan de gezondheid van de gebruikers.
Duurzaam en klimaatrobuust
We zetten niet extra in op duurzaam en klimaatrobuust. Met biodivers groen verhogen we het klimaatadaptieve vermogen.
Goede bereikbaarheid
De bereikbaarheid van de sport- en recreatiegebieden is belangrijk, zodat onze inwoners en bezoekers aangenaam en veilig naar deze gebieden toe kunnen. We zetten extra in op routes voor voetgangers en fietsers en hebben ook aandacht voor de toegankelijkheid voor mindervaliden. Het Halvezolenpad vormt hierin de drager voor (het verbinden van) de sport-, speel- en ontmoetingsplekken in onze gemeente.
Samen zijn we gezond
De sport- en recreatiegebieden zijn bij uitstek bedoeld om de mentale en fysieke gezondheid van onze inwoners te verhogen. Samen met sportclubs en verenigingen zorgen we voor een brede programmering op de sportvelden met extra aandacht voor jongeren. We zetten daarom extra in op deze ambitie.
Passend woonaanbod voor vitale kernen
We bieden geen ruimte voor wonen in de sport- en recreatiegebieden.
Brede voorzieningen voor alle leeftijden in alle kernen
Sport en recreatie moet vanuit alle kernen toegankelijk zijn. Daarnaast zien we kansen om andere gezondheid gerelateerde voorzieningen te koppelen aan de sport- en recreatiegebieden en zo te werken aan een brede programmering.
Een economie die bijdraagt aan de gemeenschap
Economische activiteiten moeten ondersteunend zijn aan de sportieve en recreatieve functie. We zien wel kansen om dit te versterken met kleinschalige horeca en watersport.
Beleefbare cultuur en erfgoed en plekken voor ontspanning en recreatie
De sport- en recreatiegebieden zijn de plekken waar we recreatie en ontspanning willen bevorderen. We zetten in op aantrekkelijke gebieden die goed met elkaar verbonden zijn via het Halvezolenpad. De recreatieve potentie van de Overdiepse Polder willen we verder versterken vanwege de diverse cultuurhistorische elementen uit de Tweede Wereldoorlog.
De inzet op de negen ambities is visueel weergegeven in figuur 41. Op figuur 42 is de uitsnede van de visiekaart voor de sport- en recreatiegebieden te zien.


Recreatiegebied
Recreatiegebied Het Hoefsven bestaat uit bos, lanen, grasvelden en grotere en kleinere waterpartijen. Het gebied is niet alleen aantrekkelijk om te recreëren, maar het herbergt ook verschillende natuurwaarden. Het zuidelijk deel valt onder het Natuurnetwerk Brabant, maar in deze omgevingsvisie valt het hele Hoefsvengebied binnen het deelgebied ‘Sport- en recreatiegebieden’. Aan de zuidkant grenst Het Hoefsven aan Natura 2000-gebied Loonse en Drunense Duinen en Leemkuilen, waarvan alleen een heel smal randje binnen de gemeentegrens van Waalwijk valt. Er leven onder meer dassen (die een burcht hebben op Begraafplaats Bloemendaal), rode eekhoorns, egels, verschillende soorten vleermuizen, kleine watersalamanders, veldkrekels, verschillende dagvlinders, ijsvogels en andere vogels.
Er zijn kansen om het gebied nog aantrekkelijker te maken voor deze en andere soorten, zonder dat dit ten koste hoeft te gaan van de recreatieve aantrekkelijkheid, zeker in de minder intensief gebruikte delen.
Maatregelen kunnen bestaan uit:
het creëren van geleidelijke/natuurlijke overgangen tussen bos en veld, met zoomvegetaties (kruiden/ruigte) en mantelvegetaties (struiken) langs de bosranden;
het ontwikkelen van bloemrijke graslanden (met een minder intensief maaibeheer);
het sturen op natuurlijk bos met een gevarieerde soortensamenstelling, maar waaruit uitheemse soorten worden verwijderd tenzij deze een meerwaarde bieden voor veel verschillende soorten (vaak komen er veel minder insecten en andere soorten voor in uitheemse beplanting);
het behouden en uitbreiden van natuurvriendelijke oevers langs de waterpartijen met flauwe taluds;
het aanleggen van één of meerdere amfibieënpoelen voor onder meer kamsalamander die voorkomt in het gebied rond Lange Wiel aan de oostzijde van het Afwateringskanaal.
Langs de watergang aan de zuidkant van Meerdijk is al een ijsvogelwand aangelegd. Onderzocht kan worden of er in ’t Hoefsvengebied of het aangrenzende Afwateringskanaal mogelijkheden zijn om een tweede nestwand te realiseren.
Sportgebieden
De sportterreinen in de gemeente zijn veelal omzoomd met een opgaande singelbeplanting, lanen en soms watergangen. Deze kunnen van belang zijn voor planten en dieren als leefgebied en - vooral als deze structuren verbonden zijn met vergelijkbare structuren in de omgeving - als verbindingszone (zoals de westrand van het Mandemakers Sportpark van S.V. Capelle). Voor de biodiversiteit is variatie in beplanting en het toepassen van gebiedseigen soorten van belang. Waar voldoende ruimte is, kunnen natuurvriendelijke oevers langs watergangen worden gerealiseerd (zoals al het geval is bij sportpark De Gaard in Sprang-Capelle). Dat geldt ook voor geleidelijke overgangen langs de randen van de singels. Bovendien kan een natuurlijke ondergroei onder bomenlanen meerwaarde bieden. Nestkasten voor vogels en vleermuizen in singels en lanen zorgen voor extra nestgelegenheid. Club- en andere gebouwen kunnen natuurinclusief worden gemaakt, met bijvoorbeeld groene gevels en/of daken.
Het landelijk gebied, oftewel agrarisch buitengebied, is waardevol en veelzijdig, zowel wat betreft waarden als natuur, cultuurhistorie en landschap, als de diversiteit aan functies zoals landbouw, wonen, werken en recreatie.
Een groot deel van het buitengebied in de gemeente wordt agrarisch gebruikt. Per landschapstype in de gemeente ziet het agrarisch gebruik er anders uit. Het noorden van de gemeente bestaat uit vruchtbare kleigrond. Hier is sprake van grootschaligere landbouw. Het gebied is open, met weinig bomen en bossages. Het middengebied bestaat uit veengrond. Hier wisselen open en gesloten gebieden elkaar af. Dit gebied is een stuk natter. Slootjes en waterwegen lopen langs percelen. Er is meer beslotenheid met bosjes, bossages en bomen. Het zuidelijk deel bestaat uit zandgrond. Hier zijn meer kleinere kavels met agrarisch gebruik.
Een deel van het agrarisch buitengebied heeft hoge cultuurhistorische waarden. Hier is het slagenlandschap met strokenpercelering nog goed zichtbaar, zoals in De Langstraat. Rondom de binnenpolder van Capelle is het veenontginnings-landschap zichtbaar met bossen en eendenkooi De Dulver. Op een aantal plaatsen zijn historische wielen en heulen zichtbaar. Heulen zijn schuiven in de dijk die het water enerzijds vasthouden, maar anderzijds ook de mogelijkheid bieden om - bij hoogwater – overtollig water af te voeren. Wielen zijn natuurlijke, vaak ronde, waterplassen vaak gelegen langs dijken, die zijn ontstaan bij een dijkdoorbraak.
In het buitengebied onderscheiden we verschillende waarden:
Natuurwaarden, waaronder we verstaan:
Erfgoedwaarden, waaronder we verstaan:
Landschapswaarden, waaronder we verstaan:
Naast agrarisch gebruik zijn in het agrarisch buitengebied voormalige agrarische bedrijfslocaties die nieuwe (vaak recreatieve) functies hebben. Daarnaast komen agrarisch gerelateerde bedrijven, nevenactiviteiten bij agrarische bedrijven en woningen (hoofdzakelijk in de bebouwingsconcentraties) voor.
Op basis van de provinciale omgevingsverordening dienen woningen zoveel mogelijk binnen het stedelijk gebied te worden gerealiseerd. Nieuwe woningen in het landelijk gebied zijn in beginsel niet toegestaan. Dit past ook in het algemene uitgangspunt van het tegengaan van verdere verstening van het buitengebied en het tegengaan van niet aan het buitengebied gebonden functies. Bewoning van het landelijk gebied in bestaande burgerwoningen, al dan niet door beëindiging van agrarische bedrijven, is wel voorstelbaar.
Het agrarisch buitengebied van Waalwijk staat voor grote ruimtelijke opgaven door stikstof, natuur, water, klimaat en de landbouwtransitie. De aanwezigheid en nabijheid van stikstofgevoelige Natura 2000-gebieden vraagt om een betere balans tussen landbouw en natuur en een betere bodemkwaliteit (inclusief bodemleven). Klimaatverandering beïnvloedt het waterbeheer, waardoor er uitdagingen ontstaan rond droogte, waterkwaliteit en wateroverlast. Tegelijkertijd is de landbouwtransitie in volle gang, waarbij gezocht wordt naar duurzame en toekomstbestendige oplossingen. Daarvoor kan een andere ruimtelijke inrichting op gebiedsniveau nodig zijn. In de schil rond beschermde natuurgebieden is extra aandacht nodig voor emissiereductie en natuur inclusieve ontwikkelingen. De gemeente Waalwijk moet daarbij de balans bewaren tussen natuur, landbouw en klimaatbestendigheid.
Gelet op de grote ruimtelijke opgaven is het beleid voor het landelijk gebied volop in beweging op het gebied van klimaat-, natuur- en wateropgaven, maar ook op het gebied van energie, woningbouw en sociale samenhang. Op Rijksniveau wordt gewerkt aan de aanpak Ruimte voor Landbouw en Natuur (RLN). In uitwerking daarop wordt op provinciaal niveau gewerkt aan de Aanpak Landelijk Gebied (ALG). Daarnaast lopen onder andere de volgende (provinciale) beleidstrajecten welke invloed gaan hebben op ons buitengebied:
Kader Richtlijn Water (KRW);
Brabantse Ontwikkelaanpak Stikstof (BOS);
Groenblauwe Gebiedsgerichte Aanpak (GGA) (hierover meer in paragraaf 5.9 Natuurgebieden);
Programma Overgangsgebieden rondom Natura 2000-gebieden;
Brabantse Bossenstrategie.
Om ook in de toekomst een buitengebied te hebben waar mensen gezond en veilig kunnen werken, wonen en recreëren, is het van belang voor onze natuur, landschap, landbouw en gezondheid om hier helder beleid op te formuleren. Echter zijn we hierin ook afhankelijk van het beleid van de hogere overheden welke binnen afzienbare tijd wordt verwacht vanwege de urgentie van verschillende vraagstukken. Aan de hand daarvan gaan we, samen met (keten)partners, zoals de agrarische sector, in gesprek om te komen tot duurzaam beleid voor het buitengebied dat bijdraagt aan de benodigde landbouwtransitie. Tot die tijd houden we vast aan het huidige beleid voor het buitengebied, waarbij in aanvulling daarop in ieder geval de hierna volgende punten worden beoogd.
In het gehele agrarische gebied streven we naar duurzame landbouw. Dat betekent vormen van landbouw die passen binnen een duurzame ontwikkeling en die toekomstbestendig zijn, zowel in ecologisch, economisch, als sociaal opzicht.
We willen het type ondergrond meer laten meewegen in de keuze waar een functie in het buitengebied gewenst is.
Daarnaast zien we hier kansen voor het toegankelijker maken van agrarisch gebied voor met name kleinschalige extensieve recreatie op bestaande percelen langs het daarvoor aangewezen recreatieve-routenetwerk. Recreatie kan op die manier een alternatief verdienmodel zijn voor agrariërs. Door recreatie te stimuleren en de cultuurhistorie in het buitengebied beleefbaar te maken, versterken we de band met het landschap en vergroten we de waardering voor ons erfgoed. We zien kansen in het verbeteren van de wandel- en fietsroutes langs historische structuren en het plaatsen van informatieborden.
In de Overdiepse Polder zijn de afgelopen jaren veel maatregelen getroffen om het gebied water robuust en veilig te maken in combinatie met agrarisch gebruik. Deze combinatie van gebruik voor waterveiligheid en agrarisch gebruik staat in dit gebied voorop.
De natuur van de Westelijke Langstraat is kwetsbaar. In de schil rondom deze natuur willen we de komende jaren zorgen voor een buffer om de natuur te beschermen. Met agrariërs in en rondom het gebied maken we de omslag naar duurzame en economisch rendabele landbouw. We behouden daarom zo veel mogelijk het aandeel agrarische grond in en rondom dit gebied en onderzoeken met onder andere de agrariërs en de provincie in het kader van de GGA de mogelijkheden van deze overgangsgebieden.
Veel gewassen zijn afhankelijk van (kruis)bestuiving, essentieel voor onze voedselvoorziening. Door de biodiversiteit te verhogen, beschermen we bestuivers zoals bijen en vlinders, wat bijdraagt aan duurzame landbouw en voedselzekerheid.
Het is belangrijk het groene karakter van het buitengebied te behouden. We gaan verstening tegen door bebouwing te concentreren.
Bij de afweging over de ontwikkeling van nieuwe functies in het landelijk gebied is het niet alleen belangrijk om te kijken naar welke functies en activiteiten wenselijk zijn, maar ook naar de aanwezige en historische (omliggende) waarden en de omgeving van een gebied. Daarnaast zorgen nieuwe functies en activiteiten voor nieuwe effecten in de (verre) omgeving. Om zo min mogelijk inbreuk te maken op het landelijk gebied en te streven naar meervoudig ruimtegebruik, hanteren we het uitgangspunt dat inbreiden voor uitbreiden gaat. Een ontwikkeling op kortere termijn overwegen we alleen indien dit vanwege een zwaarwegend maatschappelijk belang nodig is. Zie ook paragraaf 5.8.3.
Verspreid over het buitengebied zijn zowel burgerwoningen als bedrijfswoningen aanwezig. Voor een deel zijn deze geclusterd in de bebouwingsconcentraties. Om te voorkomen dat het buitengebied verder versteent, is het niet zonder meer mogelijk om nieuwe woningen in het landelijk gebied te realiseren. In het geval dat er sprake is van een versterking van de omgevingskwaliteit, het terugdringen van emissie van milieuhinderlijke stoffen of dat sprake is van de verbetering van het woon-leefklimaat, is het toevoegen van een woning voorstelbaar. Hiervan kan sprake zijn door bijvoorbeeld de sloop van bebouwing, de aanleg van natuur en bos, groenblauwe dooradering en behoud of herstel van cultuurhistorische waarden en kenmerken. Voor het toevoegen van een woning kan in die gevallen gedacht worden aan:
De ontwikkeling van een landgoed.
Een ontwikkeling die tot doel heeft de cultuurhistorische waarden en kenmerken te behouden of herstellen van een rijks- of gemeentelijk monument.
De ontwikkeling van een woning op een passende locatie waarbij de omvang van de fysieke tegenprestatie gericht op het versterken van de omgevingskwaliteit in verhouding staat tot de tegenprestatie van een voormalige ruimte voor ruimte kavel.
Het verder verruimen van de mogelijkheden voor (intensieve) veehouderijen (met uitzondering van de bestaande uitbreidingsmogelijkheden) zien we als ongewenst.
Nieuwvestiging van veehouderijen is onwenselijk om verdere verstening van het buitengebied tegen te gaan. Verplaatsing van veehouderijen van ongeschikte locaties (wanneer bijvoorbeeld sprake is op overlast bij nabijgelegen woningen of dichtbij kwetsbare natuurgebieden) naar geschikte locaties is maatwerk.
Mestverwerking is enkel toegestaan ten behoeve van het agrarische bedrijf zelf.
In het deelgebied Agrarisch buitengebied voorzien we de volgende ontwikkellocaties, onderzoekslocaties en toekomstige onderzoekslocaties:
Ontwikkellocaties
Waalwijk
Landgoed Driessen fase II
Terwijl de woningen in de eerste fase nog ontwikkeld en gebouwd worden, treffen we al voorbereidingen voor de tweede fase van Landgoed Driessen: het gebied tussen de Sprangse Sloot en de Bernhardstraat. In november 2024 stelde de gemeenteraad de uitgangspunten voor de planvorming van fase II vast. Voor een volledig inzicht in het ruimtelijk en functioneel beoogde eindresultaat wordt verwezen naar dit document.
In de basis is er geen reden om de eerder bepaalde ruimtelijke hoofdopzet in fase II los te laten. Gewijzigde inzichten en ambities op het gebied van bijvoorbeeld duurzaamheid en woningbouwprogramma en veranderde marktomstandigheden kunnen redenen zijn om anders vorm te geven aan de beeldspraak van een landgoed, die aan het begin van de ontwikkeling gekozen is als stedenbouwkundige en landschappelijke basis.
Kerkvaartse Haven (ten oosten van Maasoever)
De oostelijke kering van de Kerkvaartse Haven is verstevigd, maar daardoor is de haven smaller geworden. Om de haven toegankelijk en toekomstbestendig te maken voor binnenvaartschepen is een verbreding van de haven wenselijk. Gelijktijdig met de verbreding van de Kerkvaartse haven willen wij (een deel van) de agrarische gronden ontwikkelen voor watergebonden bulk bedrijven. Zowel de ontsluiting via het water als via de weg maakt dit een geschikte locatie voor bedrijventerreinontwikkeling. Onderdeel van het toevoegen van ruimte voor bedrijvigheid is de goede landschappelijke inpassing ervan.
Onderzoekslocaties
Waspik
Ten westen van Maasoever-Scharlo
Ten westen van het bedrijventerrein Maasoever/Scharlo wordt de ontwikkeling van een bedrijventerrein voorzien dat aansluit op de bestaande bedrijventerreinen Maasoever en Scharlo. Daarnaast is er op termijn een middenspanningsstation nodig in de omgeving van Waalwijk. In december 2023 is voor dit gebied het ‘ontwerpbestemmingsplan bedrijventerrein Maasoever-Scharlo’ gepubliceerd. Het bestemmingsplan is nog niet vastgesteld. Om die reden is ten westen van de uitbreiding een onderzoekslocatie aangewezen.
Toekomstige onderzoekslocaties
Sprang-Capelle
Sprang-Zuid
Ten westen van de Tilburgseweg, tussen de kernen Sprang en Kaatsheuvel, ligt een overwegend open, agrarisch gebied. Het vormt nu de voornamelijk onbebouwde ruimtelijke buffer tussen de beide kernen.
Op termijn is een transformatie voorstelbaar op basis van een integraal en samenhangend plan. Te zijner tijd dient bepaald te worden in welke vorm en met welke functie(s) een eventuele invulling gerealiseerd zou kunnen worden.
Capelsche Haven oost
Aangezien dit gebied in verbinding staat met het Oude Maasje en de Bergsche Maas, kan mogelijk in aanvulling op de transformatie aan de westzijde van de haven (zie ook paragraaf 5.3.3), ook een uitbreiding van de jachthaven richting het oosten deel uitmaken van een gebiedsontwikkeling.
Onderzocht kan worden of in het gebied tussen de huidige jachthaven en de Spranckelaar een ontwikkeling plaats kan vinden waarbij de kwaliteit van wonen aan een dorpse haven en het stimuleren van watergebonden recreatie gecombineerd kan worden. Het toevoegen van zelfstandige horeca is daarbij denkbaar, als dit de watergebonden recreatie versterkt.
Willem van Gentsvaart-Poolsestraat & Glas-Nat
Ten zuiden van het Halvezolenpad kan de locatie in de hoek Willem van Gentsvaart-Poolsestraat in de toekomst mogelijk ontwikkeld worden naar een passend dorps woonmilieu met een diversiteit aan woningtypen. Hierbij zal het overgrote deel van de bebouwing uitgevoerd worden in maximaal 2 bouwlagen met een kap.
Op stedenbouwkundig relevante en geschikte plekken zijn incidentele hoogteaccenten voorstelbaar. Om tot een kwalitatief goede dorpsrand te komen, zal aandacht besteed moeten worden aan de landschappelijke vormgeving van een nieuwe overgang naar het buitengebied.
Ten noorden van het Halvezolenpad ligt het kassengebied ‘Glasnat’. Momenteel is dit gebied aan weerzijden (Wendelnesseweg-oost en Wendelnesseweg-west) functioneel als kassengebied. Door de ligging van het gebied midden in Natura 2000-gebied Westelijke Langstraat wordt op termijn een andere invulling van dit kassengebied voorstelbaar geacht. Het proces en de resultaten uit het Groenblauwe Gebiedsgerichte Aanpak (GGA) traject Westelijke Langstraat maken onderdeel uit van een eventuele transformatie van dit gebied.
In de planvorming hiervoor dienen de cultuurhistorisch waardevolle karakteristieken van de lintstructuur en de natuurwaarden van het aangrenzende Natura 2000-gebied Westelijke Langstraat betrokken en afgewogen te worden. Daarbij is natuurontwikkeling, kleinschalige extensieve recreatie, in combinatie met het toevoegen van wonen in de opzet van bijvoorbeeld een landgoed ruimtelijk voorstelbaar.
Waspik
Marijkelaan/Benedenkerkstraat
Mogelijk toekomstige ontwikkelingen zullen gerealiseerd worden in een passend dorps woonmilieu met een diversiteit aan woningtypen, waarbij het overgrote deel van de bebouwing uitgevoerd wordt in maximaal 2 bouwlagen met een kap. Op stedenbouwkundig relevante en geschikte plekken zijn incidentele hoogteaccenten voorstelbaar. Om tot een kwalitatief goede dorpsrand te komen, zal aandacht besteed moeten worden aan de landschappelijke vormgeving van een nieuwe overgang naar het buitengebied.
Kerkvaartse Haven (ten oosten van Scharlo)
Het gebied ten oosten van de Kerkvaart (ten zuiden van de ontwikkellocatie Kerkvaartse Haven) heeft op de lange termijn de potentie voor watergebonden activiteiten. Onderdeel van het toevoegen van eventuele watergebonden activiteiten is een goede landschappelijke inpassing. Afhankelijk van de watergebonden activiteiten is afstemming benodigd met de regio.
In het agrarisch buitengebied zetten we op de volgende manier in op de negen ambities:
Water en bodem als basis
We sturen op duurzame vormen van landbouw, waarbij we het water- en bodemsysteem als basis nemen voor het gebruik van het land. Daarbij streven we naar zorgvuldig ruimtegebruik en meerwaardecreatie.
Biodiverse en beleefbare natuur en groen
Een hoge biodiversiteit is van belang voor de bestuiving van gewassen en de gezondheid van de grond. We zetten in op het verhogen van de biodiversiteit (inclusief bodemleven) door middel van duurzamere vormen van landbouw.
Duurzaam en klimaatrobuust
Duurzame en klimaatrobuuste bedrijfsvoering is van belang voor een gezonde en toekomstbestendige agrarische sector. We stimuleren een duurzame bedrijfsvoering en brengen hiermee de stikstofuitstoot en overlast van bestrijdingsmiddelen omlaag. De opwek van duurzame energie vindt bij voorkeur plaats op bedrijfsdaken. We streven naar het verminderen van verstening en verharding in het buitengebied en bedrijfslocaties worden landschappelijk ingepast.
Goede bereikbaarheid
Goede bereikbaarheid heeft geen extra focus.
Samen zijn we gezond
Door middel van biodiverse natuur willen we de gezondheid van het agrarisch buitengebied stimuleren. Het buitengebied blijft daarmee een groene long en uitloopgebied vanuit de kernen. We zetten hoog in op het terugdringen van de effecten door bestrijdingsmiddelen en stikstof.
Passend woonaanbod voor vitale kernen
Nieuwe woningen in het buitengebied zijn in beginsel niet toegestaan. Bewoning van het buitengebied in bestaande burgerwoningen al dan niet door beëindiging van agrarische bedrijven is wel voorstelbaar.
Brede voorzieningen voor alle leeftijden in alle kernen
Brede voorzieningen voor alle leeftijden in alle kernen heeft hier geen focus.
Een economie die bijdraagt aan de gemeenschap
Agrarische bedrijven met bijbehorende nevenactiviteiten zijn belangrijk voor de economisch positie van het buitengebied. We ondersteunen concepten die bijdragen aan de verbinding met het buitengebied, zoals zorgboerderijen of een Herenboerenconcept.
Beleefbare cultuur en erfgoed en plekken voor ontspanning en recreatie
In het agrarisch buitengebied zijn verschillende waarden aanwezig, zoals natuurwaarden, erfgoedwaarden en landschapswaarden. Veel historische elementen zijn nog zichtbaar, zoals het slagenlandschap en bijzondere Rijksmonumenten. Onze ambitie is om deze te behouden en te versterken. Agrariërs hebben een belangrijke rol als landschapsbeheerder. Om het buitengebied meer beleefbaar te maken zetten we in op het versterken van recreatieve assen en kleinschalige en/of watergebonden recreatie. Daarnaast zien we kansen voor een verbreding van de bedrijfsvoering van agrariërs met bedrijvigheid die aansluit bij het agrarisch karakter, zoals zorgboerderijen, kaasmakerijen of boerderijcampings.
De inzet op de negen ambities is visueel weergegeven in figuur 43. Op figuur 44 is de uitsnede van de visiekaart voor de sport- en recreatiegebieden te zien.


Natuur onder druk
In het agrarisch buitengebied is de biodiversiteit de laatste decennia sterk achteruit gegaan. De monoculturen van Engels raaigras, maïs of andere gewassen, in combinatie met een hoge stikstofbelasting, gewasbeschermingsmiddelen en lage waterstanden zorgen ervoor dat de aantallen plantensoorten, insecten, amfibieën, kleine zoogdieren en weidevogels veel lager zijn dan vroeger. Ook akkervogels als patrijs hebben het heel moeilijk door de afname van insecten en het verdwijnen van ruige hoekjes en kleine landschapselementen als struwelen / hagen.
Transitie naar een natuurinclusieve landbouw
Om verdere afname van populaties tegen te gaan en ervoor te zorgen dat deze weer gaan groeien, is een transitie naar een duurzame, natuurinclusieve landbouw noodzakelijk. Het is daarom belangrijk agrariërs te stimuleren deze omslag te maken, met behoud van een rendabele bedrijfsvoering (zoals bijvoorbeeld aan de overzijde van de Maas gebeurt in het project PARTRIDGE). Hierin spelen (ook) het Rijk, de provincie en het waterschap een belangrijke rol. Samen kan gezocht worden naar koppelkansen en verdienmodellen, bijvoorbeeld combinaties met natuur- en landschapsbeheer, klimaatadaptatie en recreatie.
Belangrijke maatregelen zijn onder meer het terugdringen van de stikstofbelasting en het terugdringen van (schadelijke) gewasbeschermingsmiddelen. Vooral in weidegebieden is daarnaast het verhogen van grondwaterstanden een belangrijke maatregel, onder meer voor weidevogels, in combinatie met het ontwikkelen van kruidenrijke graslanden (waar minder / later en gefaseerd gemaaid wordt). In akkerbouwgebieden zijn kruidenrijke akker(randen) waardevol. Andere maatregelen om de biodiversiteit te verhogen zijn het creëren van natuurvriendelijke oevers (met flauwe taluds) en het instellen van een ecologisch maaibeheer bij wegbermen en dijktaluds.
Voor akkervogels als patrijzen (die het hele jaar in hetzelfde gebied verblijven) is het belangrijk dat de omstandigheden tijdens alle seizoenen goed zijn. Daarom zijn verschillende zaken van belang voor deze soort, zoals:
het bieden van nest- en schuilgelegenheid onder dekking van ruige grasachtige vegetaties, bijvoorbeeld langs hagen en in sloottaluds, bermen en overhoekjes (aangepast maaibeheer);
het creëren van kruidenrijke akkerranden en/of kruidenrijk grasland (‘bloemenblok’) voor insecten (voedsel);
het laten staan van winterstoppels voor dekking en voedsel.
Ook soorten als haas, wezel, veldleeuwerik, gele kwikstaart en diverse bijen en vlinders profiteren van deze maatregelen.
Natuurvriendelijke erven
Erven in het agrarisch buitengebied kunnen ook waardevol zijn voor dieren. Karakteristieke soorten zijn bijvoorbeeld steenuil, kerkuil, spreeuw, boerenzwaluw, huiszwaluw en ringmus. Erven en de directe omgeving kunnen geschikt gemaakt worden door onder meer de volgende maatregelen:
het plaatsen van nestkasten;
het ontwikkelen van kruiden- en insectenrijke weides en ruigtehoekjes;
het plaatsen van knotwilgen, hagen en/of hoogstamboomgaarden;
het stimuleren van natuurinclusieve landbouw en het terugdringen van insecticiden;
het toepassen van speciale drinkwaterbakken voor vee (om verdrinking van steenuilen te voorkomen).
Voorlichting aan en participatie door bewoners en ondernemers
Net als in de bebouwde gebieden (zie paragraaf 5.6) is in het agrarisch buitengebied voorlichting aan en participatie door bewoners en ondernemers (inclusief agrariërs) belangrijk. Deze kan gericht zijn op het natuurvriendelijk inrichten van het (agrarische) land en watergangen, waarvoor in de gemeente Waalwijk op dit moment subsidie te krijgen is vanuit de Stimuleringsregeling Landschap (Stila) (zie hier voor meer informatie). Die heeft als doel om landschapsontwikkeling door boeren en burgers in het buitengebied van Brabant te stimuleren. Naast een vergoeding voor aanleg en beheer kan, afhankelijk van de thema’s die in een gebied zijn opengesteld, ook een vergoeding worden verstrekt voor de omvorming van landbouwgrond naar een nieuw landschapselement.
Ook in de toekomst blijft het waardevol om bewoners en ondernemers te stimuleren om de biodiversiteit in het agrarisch landschap en op de erven te vergroten.
Drie subgebieden
Binnen het agrarisch buitengebied maken we op basis van de ondergrond (bodem en water) en de daarmee samenhangende landschapstypen onderscheid in een drietal subgebieden:
het zeekleilandschap (ongeveer het gebied ten noorden van de A59);
het dekzandlandschap (ongeveer het gebied ten zuiden van het Halvezolenpad);
het veenlandschap (ongeveer het gebied tussen de A59 en het Halvezolenpad).
Hieronder wordt specifiek ingegaan op deze drie subgebieden.
Zeekleilandschap
De zeekleigronden liggen grotendeels tussen de Maas en de A59, een klein oppervlak ligt net ten zuiden langs de A59 (bij Waspik). Het zijn zeer open gebieden die vooral bestaan uit weides en akkers. Van oorsprong waren dit zeer natte weidegebieden met een smalle strokenverkaveling, die vooral als hooiland in gebruik waren. Door ruilverkavelingen in de vorige eeuw, schaalvergroting en het verlagen van de grondwaterstanden is het agrarisch gebruik geïntensiveerd, gericht op akkerbouw en melkveehouderijen. Door deze ontwikkelingen is de biodiversiteit sterk achteruitgegaan.
Om de biodiversiteit te herstellen kan aangesloten worden bij bovengenoemde maatregelen. Vanuit landschappelijk oogpunt is het daarbij van belang de openheid in stand te houden.

In het zeekleigebied bevinden de meeste natuurwaarden zich langs de noordrand van het Oude Maasje en in de Gansooiensche Uiterwaard langs de Bergsche Maas. Deze gebieden zijn onderdeel van het Natuurnetwerk Brabant en liggen daarom in het deelgebied ‘natuurgebieden’ en niet in het deelgebied ‘agrarisch buitengebied’. Het grootste deel van de uiterwaarden langs de Bergsche Maas (Overdiepsche Uiterwaard, Capelsche Uiterwaard en delen van de Gansooiensche Uiterwaard) zijn echter in agrarisch gebruik. Bezien op het schaalniveau van de gemeente als geheel en ook op bovenlokaal schaalniveau zou natuurontwikkeling in de uiterwaarden een zeer belangrijke toevoeging zijn in het ecologisch netwerk. Daarmee ontstaat een belangrijke droge verbinding tussen de Biesbosch ten westen van de gemeente en de uiterwaarden van de Maas ten oosten van de gemeente (zie de groene pijl op de kaart figuur 44). Binnen Waalwijk worden bovendien het Oude Maasje, de Gansooiensche Uiterwaard en de ecologische verbindingen langs de Sprangsche Sloot naar Natura 2000-gebied De Langstraat en langs het Afwateringskanaal ’s-Hertogenbosch-Drongelen naar de Loonse en Drunense Duinen onderling verbonden. Natuurontwikkeling kan bestaan uit droge en natte natuur met hooilanden, moerasland, verschillende typen wateren en eventueel wilgen- of meidoornstruweel. Agrarisch natuurbeheer kan ook bijdragen. Van een dergelijke ontwikkeling profiteren veel moeras-, riet- en waterplanten en -vogels (plus bijvoorbeeld oeverzwaluw en ijsvogel), amfibieën, vissen, dagvlinders als icarusblauwtje, bruin blauwtje en Koninginnepage en zoogdieren als bever, otter, hermelijn en wezel. Natuurontwikkeling in de uiterwaarden draagt bovendien bij aan de landschappelijke en recreatieve belevingswaarde langs de doorgaande fietsroute over de dijk langs de Bergsche Maas.
Dekzandlandschap
De dekzandgronden liggen vooral direct ten westen en oosten van de kern Waalwijk en ten zuiden van het Halvezolenpad. Het zijn deels vrij droge oude bouwlanden (oude ontginningen, ten westen en oosten van de kern Waalwijk) en deels vrij natte jonge ontginningsgronden (ten zuiden van het Halvezolenpad). Ze bestaan hoofdzakelijk uit leemarm en zwak lemig dekzand. De verkaveling is strookvormig of blokvormig en de perceelscheidingen bestaan uit sloten. Het landgebruik bestaat hoofdzakelijk uit akkerbouw, maar er is ook grasland aanwezig en een enkele boomkwekerij. De oude bouwlanden ten westen van Waalwijk (ten noorden van het Halvezolenpad) zijn onderdeel van het deelgebied ‘natuurgebieden’ (zie paragraaf 5.9.4) en worden hier buiten beschouwing gelaten.
Er is weinig opgaande begroeiing aanwezig op de jonge ontginningsgronden. Sommige wegen hebben een laanbeplanting (vaak van zomereiken of populieren). Het agrarisch gebruik op de percelen is intensief, waardoor de biodiversiteit niet hoog is.
Ook voor het dekzandlandschap geldt dat veel van de hierboven voor het agrarisch buitengebied genoemde maatregelen genomen kunnen worden om de biodiversiteit te herstellen, zoals de transitie naar een natuurinclusieve landbouw en het toepassen van natuurvriendelijke oevers. In de open gebieden komen weidevogels als de kievit voor, waarvoor het van belang is dat grasland niet te vaak en niet te vroeg wordt gemaaid, dat de waterpeilen hoog zijn en dat er kruidenrijke delen zijn in en langs weides en akkers. In de randen en de in de delen die minder open zijn en die niet van belang zijn voor weidevogels kunnen houtwallen, heggen, struwelen en de ondergroei van bomenlanen worden hersteld dan wel toegevoegd.
Veenlandschap
De veengronden liggen ten westen van de kern Waalwijk, tussen de zeekleigronden en de dekzandgronden. Het gebied is een ontgonnen laagveenvlakte en een restant van een oud slagenlandschap. Het is een nat gebied met hoge (grond)waterstanden. De kavels zijn lang en smal en begrensd door sloten en/of elzenhagen. In het veengebied liggen trilvenen, schrale soortenrijke graslanden, zeggenmoerassen en plaatselijk vochtige heide. Ook zijn er petgaten en wielen (poelen als gevolg van vroegere dijkdoorbraken) aanwezig (zie hier voor meer informatie). De veengronden vallen vrijwel geheel onder Natura 2000-gebied De Langestraat en/of het Natuurnetwerk Brabant en vallen daarom onder het deelgebied 'natuurgebieden' (zie paragraaf 5.9.4).
Het grootste beschermde natuurgebied in onze gemeente is de Westelijke Langstraat. Dit gebied is op Europees niveau beschermd met de Natura 2000 status. De Westelijke Langstraat is een bijzonder en waardevol landschap met rijke natuur en cultuurhistorie. Dit gebied, gelegen in de overgangszone van het rivierengebied naar het Brabantse zandgebied, herbergt een bijzondere hydrologische situatie. Een deel van de Europees beschermde natuur rondom de Westelijke Langstraat heeft een beschermde status op nationaal (NNN) of provinciaal (NNB) niveau, zoals de Binnenbijster en De Vest.
Het Natuur Netwerk Brabant (NNB) hangt samen met het Natuur Netwerk Nederland (NNN) en met het Europese net van natuurgebieden (Natura 2000).
Het NNB bestaat uit:
Bestaande natuur- en bosgebieden.
Gerealiseerde nieuwe natuur. Dit zijn gronden die met subsidie uit het Natuurbeheerplan zijn gerealiseerd als nieuwe natuur en waar de landbouwfunctie of een andere niet-natuurbestemming is verdwenen.
Nog niet gerealiseerde nieuwe natuur. Dit zijn meestal agrarische gronden die in het Natuurbeheerplan zijn aangewezen als nieuwe natuur, maar waar de gewenste natuurfunctie nog niet is gerealiseerd. De oude functie of bestemming is nog aanwezig.
Ecologische verbindingszones (EVZ).
Enkele voorbeelden van NNB zijn:
De rivieren Bergsche Maas en Oudje Maasje evenals het Afwateringskanaal.
Het Eendennest, dat ook is aangewezen als stiltegebied.
EVZ de Sprangse Sloot en EVZ Drongelens kanaal.
Ten Zuiden van Waalwijk grenst recreatiegebied Het Hoefsven aan het Natura 2000-gebied Loonse en Drunense Duinen en Leemkuilen. Gezien de ligging van Het Hoefsven tegen het Natura 2000-gebied aan wordt er gestreefd naar zonering. De zone die grenst aan de Loonse en Drunense Duinen doet recht aan- én is aanvullend aan de richtlijnen die horen bij het Natura 2000-gebied. Zie hiervoor paragraaf 5.7.2.
Op een aantal plaatsen in de gemeente zijn historische wielen en heulen zichtbaar. Heulen zijn schuiven in de dijk die het water enerzijds vasthouden, maar anderzijds ook de mogelijkheid bieden om - bij hoogwater – overtollig water af te voeren. Wielen zijn natuurlijke, vaak ronde, waterplassen vaak gelegen langs dijken, die zijn ontstaan bij een dijkdoorbraak. Wielen zijn onder andere zichtbaar bij De Vest en het Labbegat.
De grootste uitdaging voor de komende jaren is het toevoegen van biodiversiteit en het robuuster maken van de Natura 2000-gebieden en de omliggende natuur. Hier zullen de komende jaren maatregelen getroffen moeten worden. Natuurversterking en het terugdringen van stikstofuitstoot zijn noodzakelijk om kwetsbare ecosystemen te beschermen, maar kan ook zorgen voor beperkingen op andere ontwikkelingen, zoals bedrijvigheid, mobiliteit en woningbouw. Tegelijkertijd spelen klimaatadaptatie en waterbeheer een rol, met aandacht voor vernatting en droogtebestrijding.
Verdroging en stikstofuitstoot tasten de natuur in de Westelijke Langstraat aan. Als gemeente werken we samen met de provincie Noord-Brabant, Waterschap Brabantse Delta en Staatsbosbeheer aan het tegengaan van de achteruitgang, door de komende jaren nieuwe natuur te ontwikkelen en bestaande natuur en landschap te behouden en te herstellen. Dat doen we in het kader van de Groenblauwe Gebiedsgerichte Aanpak (GGA) Westelijke Langstraat. Eén van de maatregelen is een hogere en stabiele waterstand, waardoor er meer schoon kwelwater in het gebied blijft. Hierdoor wijzigen de omstandigheden bij woningen. De gemeente heeft een loketfunctie en volgt daarom deze ontwikkelingen kritisch. Zie hiervoor ook paragraaf 4.2.3 Biodiverse en beleefbare natuur en groen, subparagraaf Waardevolle natuurgebieden beschermen.
De Loonsen en Drunense Duinen en Leemkuilen zijn via het grondwater gelinkt aan het (grond)waterbeheer van de gemeente Waalwijk. Via het Beheerplan Loonse en Drunense Duinen en Leemkuilen is de provincie bezig met vernatting en verbeteren van de waterkwaliteit in de Loonse en Drunense Duinen en Leemkuilen. In het kader van de Groenblauwe Gebiedsgerichte Aanpak (GGA) Loonse en Drunense Duinen is door Royal Haskoning DHV een verdiepend rapport (in februari 2025) opgesteld op basis van een Landschapsecologische systeemanalyse (LESA) waarbij de mogelijke effecten voor het natuurgebied van verschillende maatregelen zijn onderzocht. De maatregelen op het stedelijk gebied zijn daarbij niet onderzocht. De effecten op het stedelijk gebied van te nemen maatregelen dienen onderzocht te worden alvorens deze worden uitgevoerd. Maatregelen kunnen namelijk ook effect hebben op het (grond)water beheer van onze gemeente en op het drinkwaterwingebied in onze gemeente.
Samen met de provincie en waterschap werken we aan een robuust groenblauw netwerk wat natuurgebieden met elkaar verbindt. Zo werken we aan het realiseren van de verbinding vanuit de Westelijke Langstraat naar het Eendennest.
Natuurgebied De Vest dient als stapsteen tussen de 's Gravenmoerse Vaart en de binnenpolder van Capelle. Tevens is het gebied een historische verwijzing, omdat op die plek een militair verdedigingswerk heeft gelegen. De puntvormige aarden wallen verwijzen daarnaar. Een ander natuurgebied is de omgeving van De Zandput ten westen van het bedrijventerrein Scharlo-Maasoever (een deel hiervan is NNN). Voor beide gebieden is behoud van huidige natuurfunctie en kwaliteit het uitgangspunt. Waar en wanneer mogelijk willen we dit versterken.
In de natuurgebieden zetten we op de volgende manier in op de negen ambities:
Water en bodem als basis
Water en bodem zijn randvoorwaardelijk voor gezonde natuurgebieden. We zetten hoog in op een gezond water- en bodemsysteem, maar houden daarbij ook rekening met de mogelijke effecten op de omgeving.
Biodiverse en beleefbare natuur en groen
Biodiverse natuur en groen zijn uitermate belangrijk voor het voortbestaan van natuurgebieden. De ecologische natuurwaarden zijn belangrijker dan natuurbeleving.
Duurzaam en klimaatrobuust
We zetten in op gezonde natuur door te werken aan een duurzaam en klimaatrobuust natuurlijk systeem. Dat hangt nauw samen met een hoge biodiversiteit (inclusief bodemleven). Het terugbrengen van inheemse beplanting verhoogt de biodiversiteit en het klimaatadaptieve vermogen.
Goede bereikbaarheid
Goede bereikbaarheid, met name voor wandelen en fietsen, is van belang voor de beleefbaarheid van de natuurgebieden. De ecologische natuurwaarden zijn echter belangrijker dan bereikbaarheid.
Samen zijn we gezond
Gezonde natuurgebieden dragen bij aan een gezonde leefomgeving voor de gehele gemeente. In de natuur zijn vermindert het stressniveau, zet aan tot bewegen en zorgt voor een gevoel van rust. Het is belangrijk om hierbij te letten op een juiste balans tussen gebruik door mensen en rust voor de natuur zelf.
Passend woonaanbod voor vitale kernen
We zetten niet in op een passend woonaanbod voor vitale kernen in de natuurgebieden. De natuurgebieden willen we beschermen en hier staan we geen woningbouw toe.
Brede voorzieningen voor alle leeftijden in alle kernen
We zetten niet in op brede voorzieningen voor alle leeftijden in alle kernen in de natuurgebieden.
Een economie die bijdraagt aan de gemeenschap
Ruimte voor economische activiteiten is met name in de vorm van kleinschalige activiteiten of als verdienmodel in de vorm van landschapsbeheer.
Beleefbare cultuur en erfgoed en plekken voor ontspanning en recreatie
Het beleven van natuur draagt bij aan de gezondheid van mensen en bevordert draagvlak voor natuurbehoud. Recreatie mag niet tot overlast lijden voor de natuur. Hiervoor bieden we binnen de gemeente alternatieven in de recreatiegebieden. De ecologische natuurwaarden zijn belangrijker dan natuurbeleving.
De inzet op de negen ambities is visueel weergegeven in figuur 46. Op figuur 47 is de uitsnede van de visiekaart voor de sport- en recreatiegebieden te zien.


Beschermde natuurgebieden: Natura 2000 en Natuurnetwerk Brabant
Er liggen verschillende beschermde natuurgebieden in de gemeente die onderdeel zijn van het Natuurnetwerk Brabant. De belangrijkste zijn:
De Langstraat (grotendeels Natura 2000-gebied);
Bergsche Maas (water);
Gansooiensche Uiterwaard (deels);
Oude Maasje (water);
de noordoever van het Oude Maasje;
Lange Wiel;
de zuidrand van Het Hoefsven;
De Veste;
Het Eendennest.
De zuidoostzijde van de gemeente grenst bovendien aan Natura 2000-gebied Loonse en Drunense Duinen en Leemkuilen.
Ecologische verbindingszones
Daarnaast zijn er enkele ecologische verbindingszones (gerealiseerd of in ontwikkeling) tussen de verschillende natuurgebieden die onderdeel zijn van het Natuurnetwerk Brabant:
Afwateringskanaal ’s-Hertogenbosch-Drongelen en oevers (tussen de Bergsche Maas en de Loonse en Drunense Duinen);
Sprangsche Sloot en oevers (tussen het Oude Maasje en De Langstraat);
’s-Gravenmoersche Vaart (tussen de Donge en De Veste);
ecologische verbinding tussen De Langstraat en Het Eendennest.
Beheer gericht op specifieke natuurdoelen
De beschermde natuurgebieden en de ecologische verbindingszones worden beheerd door verschillende terreinbeherende organisaties, op basis van beheerplannen/-visies die zijn gericht op het in stand houden en ontwikkelen van specifieke natuurwaarden (soorten en habitats). In de omgevingsvisie wordt hierop aangesloten.
In dit hoofdstuk beschrijven we hoe we de visie willen operationaliseren. Als gemeente staan we hiervoor niet alleen zelf ‘aan de lat’. Samen met onze inwoners, ondernemers, maatschappelijke organisaties en partners gaan we aan de slag.
In dit hoofdstuk beschrijven we verder de doorwerking van de omgevingsvisie in de andere Omgevingswet-instrumenten. Daarnaast geven we aan hoe we als gemeente de uitvoering van onze gestelde ambities in de visie gaan monitoren en hoe we omgaan met het actualiseren van de visie.
Het uitgangspunt van de Omgevingswet is ontwikkelingen mogelijk maken en tegelijkertijd de kwaliteit van de leefomgeving te waarborgen. Met de omgevingsvisie laten we inhoudelijk op hoofdlijnen zien hoe we in de gemeente Waalwijk initiatieven willen ondersteunen waarmee tegelijkertijd een bijdrage wordt geleverd aan de kwaliteit van de leefomgeving. Met deze visie als onderlegger gaan we daarmee concreet aan de slag. De concrete uitwerking van de omgevingsvisie hangt ook af van de rol die de gemeente aanneemt. We hebben als overheid diverse rollen en sturingsfilosofieën tot onze beschikking.
Rollen
Er zijn vier benaderingen van sturing (zie figuur 48). In elk van de vier benaderingen gaat het om overheidssturing, in die zin dat de overheid doelen formuleert en die probeert te realiseren in interactie met de omgeving. De aanduidingen in de kwadranten geven accenten aan in de rolopvatting en geen scheidingen. Zo wil de ‘Netwerkende Overheid’ ook prestaties leveren en ook zorgvuldig en duidelijk de kaders stellen net als de ‘Rechtmatige Overheid’.

Het is niet zo dat de ene rol beter is dan de andere. Het gaat erom dat de gemeente in staat is om alle rollen te kunnen vervullen. En weet welke rol bij welke opgave en context het best passend is. De rolneming kan per fase van een initiatief veranderen. In essentie gaat het dus om het zijn van een wendbare organisatie.
We hebben als gemeente hoge ambities om de democratie van onderaf beter te faciliteren, meer gebiedsgericht en van buiten naar binnen te werken. De 'netwerkende' en 'responsieve' overheid passen goed in de geest van de Omgevingswet. Hierbij staat 'van buiten naar binnen werken' centraal en draagt de samenleving initiatieven aan. Dat is voor ons een belangrijke leidraad. We zetten daarom in op alliantievorming, het zoeken naar partners om gezamenlijke doelen of belangen te behalen. We leggen ook verbindingen tussen verschillende actoren in de samenleving, ook als we zelf niet in de lead zijn. Door te bouwen aan een verbonden samenleving faciliteren we dat eenieder zelf en met elkaar werkt aan een betere samenleving en leefomgeving. Dit doen we met een relatiegerichte houding en we moedigen actief burgerschap aan, zoals met onze pilot Burgerbegroting waarbij inwoners zelf meedenken en beslissen over wat er gebeurt in hun leefomgeving door gezamenlijk te bepalen hoe een deel van het geld van de gemeente wordt besteed. De ontwikkeling naar een meer netwerkende en responsieve overheid is een organisatorische opgave. In Waalwijk hebben we de rol als “presterende overheid” sterk ontwikkeld, maar de rollen waarin de gemeente meer voorwaarden scheppend en faciliterend werkt vragen om ontwikkeling van de organisatie. Deze ontwikkeling wordt al ingezet met de strategische visie, Samen Redzaam en de interne organisatiekoers.
Dit neemt niet weg dat het belangrijk is te benoemen dat we op verschillende thema's en/of gebieden verschillende sturingsfilosofieën (rolneming en instrumentarium) nodig zullen hebben om het gewenste resultaat te behalen. Op onderdelen zal er dus een andere sturingsfilosofie gekozen kunnen worden. We werken dit verder uit bij concrete projecten.
De sturingsfilosofie gaat overigens niet alleen over de rolneming van de gemeente ten opzichte van de samenleving maar ook over de rolneming van de raad ten opzichte van het college.
De gemeente werkt aan een vernieuwd proces voor het verlenen van vergunningen. Alle initiatieven en vraagstukken met betrekking tot wijzigingen in de leefomgeving komen daarbij via één kanaal de gemeentelijke organisatie in. Voor initiatieven die niet voldoen aan de regelgeving wordt een aangepast planproces ontwikkeld.
Het totale planproces bestaat op hoofdlijnen uit vier onderdelen:
1. Het type plan.
De impact van een initiatief is leidend voor het proces dat doorlopen dient te worden.
2. De producten die t.b.v. het plan opgesteld worden.
Een initiatief wordt in fases uitgewerkt, waarbij het benodigde product uit elke fase duidelijk beschreven wordt. Inhoudelijk zijn de fases gebaseerd op de volgorde:
beeldvorming (inventarisatie en analyse);
verkenning (ruimtelijk-functionele studie);
definitie (visie en plan).
Het opstellen van de producten ligt met name bij de initiatiefnemer. Dit wordt in het nader uit te werken proces en bijbehorende productbeschrijving nog explicieter gemaakt.
3. De overlegstructuur waarin de producten beoordeeld worden.
De verantwoordelijkheid voor de beoordeling van het plan in de verschillende fases ligt bij de ambtelijke organisatie. Hiervoor wordt een regelmatige overlegstructuur voorgesteld die aansluit bij de fase waarin de planvorming zich bevindt en het product dat daarbij hoort. Om overzicht te krijgen stellen we een integraal ambtelijk document op dat in elke fase als toetsingskader gebruikt wordt.
4. De organisatiestructuur die nodig is voor een doelbewust en voortvarend proces.
Tot slot stellen we een organisatiestructuur voor die faciliteert dat de voorgaande 3 inhoudelijke onderdelen geordend doorlopen worden. We beschrijven wie, in welke rol, op welk moment betrokken is in het proces.
Zodra het voorgaande proces uitgewerkt en operationeel is, zal het de spelregels vormen van het gezamenlijk met initiatiefnemers en overige belanghebbenden te doorlopen proces om tot een integraal afgewogen eindresultaat en voortvarende realisatie te komen.
De Omgevingswet voorziet in een zestal Omgevingswet-instrumenten waarvan de omgevingsvisie en de omgevingsprogramma’s de belangrijkste beleidsmatige instrumenten zijn. De omgevingsvisie heeft een duidelijke relatie met deze overige Omgevingswet-instrumenten.
De Omgevingswet gaat namelijk uit van beleidsontwikkeling op basis van de beleidscyclus (zie figuur 49). De verschillende instrumenten worden in samenhang ontwikkeld en actief gemonitord en aangescherpt. De omgevingsvisie vormt de eerste stap in deze cyclus en is een dynamisch document dat we als gemeente samen met betrokkenen blijven aanscherpen.

Belangrijk is de bepaling in de Omgevingswet dat een gemeente één omgevingsplan kent. We hebben in deze omgevingsvisie de kernkwaliteiten (hoofdstuk 2) en beleidsprioriteiten van de gemeente Waalwijk als geheel (hoofdstuk 4) en per deelgebied (hoofdstuk 5) opgenomen. Deze kunnen in het omgevingsplan verder juridisch uitgewerkt worden.
Voor het omgevingsplan volgen we de beleidscyclus. Het opstellen van regels over activiteiten in de fysieke leefomgeving is geen doel op zich maar vloeit voort uit de toekomstambities en daarvoor benodigde maatregelen die we met elkaar formuleren. Vanuit de beleidscyclus bezien is er daarom eerst een beleidsmatige en/of juridische basis nodig, voordat we nieuwe regels in het omgevingsplan opnemen.
Als een initiatief niet blijkt te passen in het omgevingsplan dan moet worden beoordeeld of hiervan kan worden afgeweken. Voor de beoordeling daarvan kunnen we terugvallen op de omgevingsvisie.
De omgevingsvisie stelt ambities voor de toekomst en formuleert hiervoor het strategisch beleid aan de hand van kaders en richtlijnen. Gewenste verdere uitwerking van het strategisch beleid kan op tactisch/ operationeel niveau plaatsvinden via het (vrijwillige/onverplichte) omgevingsprogramma. De integrale afweging vindt op hoofdlijnen plaats in de omgevingsvisie. In de programma’s wordt daarop voortgeborduurd en worden de lijnen voor de uitvoering uitgezet. Het omgevingsprogramma is een flexibel instrument dat de gemeente kan toepassen in verschillende fasen van de beleidscyclus. Een omgevingsprogramma heeft verschillende kenmerken en is zelfbindend. Het wordt vastgesteld door het college. Omgevingsprogramma’s kunnen gebiedsgericht of thematisch van aard zijn. Momenteel beoogt de gemeente te werken aan de volgende omgevingsprogramma’s:
De Omgevingswet biedt de mogelijkheid om in het omgevingsplan voor de gehele gemeente omgevingswaarden vast te leggen. Bijvoorbeeld ten aanzien van de uitstoot van schadelijke stoffen, de productie van geluid of andere vormen van hinder of mogelijke overlast. Als die vastgelegde omgevingswaarden niet gehaald worden, is een omgevingsprogramma verplicht. Het is wenselijk in de omgevingsvisie al aan te geven als dit aan de orde is. Vooralsnog zien wij echter geen noodzaak om omgevingswaarden te stellen. Mocht in de toekomst blijken dat bepaalde ‘doelen’ niet worden gehaald dan kunnen we alsnog overwegen om in het omgevingsplan omgevingswaarden vast te stellen en deze te koppelen aan een omgevingsprogramma. Dit is ook een aspect wat aan bod komt bij de monitoring en evaluatie van deze eerste omgevingsvisie.
De omgevingsvisie gaat uit van realisatie van initiatieven door eenieder die in de gemeente Waalwijk woont, werkt of recreëert of er op een andere manier bij betrokken is. Als gemeente stimuleren en ondersteunen (leveren van kennis, zorgen voor verbinding) we initiatieven die bijdragen aan Brede Welvaart, de beleidskeuzes per thema en de gebiedsprioriteiten in de omgevingsvisie. De gezamenlijk gestelde waarden zijn de basis geweest voor het beschrijven van de beleidsdoelstellingen uit deze visie en voor het formuleren van gebiedsgerichte uitgangspunten. In de uitvoering geven we daadwerkelijk vorm aan de gestelde ambities in de praktijk.
De omgevingsvisie wordt uitgevoerd door de verdere uitwerking in het omgevingsplan en programma’s, maar is op zichzelf ook een instrument voor het toetsen van nieuwe ontwikkelingen, zoals bij een vergunningaanvraag voor een plan dat niet past binnen de regels van het omgevingsplan: een Buitenplanse Omgevings Plan Activiteit, kortweg BOPA genoemd. Hierbij hanteren we als gemeente de ‘Ja, mits - benadering’ uit de Omgevingswet. Het is van belang daarbij de balans tussen borgen van kwaliteiten en ruimte te bieden voor ontwikkelingen inzichtelijk te maken. De volgende beginselen uit de Omgevingswet en afwegingsprincipes uit de Nationale Omgevings Visie (NOVI) zijn nuttige algemene kaders.
Milieubeginselen Omgevingswet en Afwegingsprincipes NOVI:
het voorzorgsbeginsel;
het beginsel van preventief handelen;
het beginsel dat milieuaantastingen bij voorrang aan de bron bestreden moeten worden;
het beginsel dat de vervuiler betaalt;
combinaties van functies gaan voor enkelvoudige functies;
kenmerken en identiteit van een gebied staan centraal en;
afwenteling wordt voorkomen.
Aanvullend op deze algemene kaders bieden het integrale afwegingskader en de afwegingskaders voor de deelgebieden uit de omgevingsvisie inhoudelijke en gebiedsgerichte richting. Ze geven richting voor initiatieven en voor de nadere uitwerking in programma’s en het omgevingsplan. De kaders geven ook richting bij de toetsing van de wenselijkheid van een nieuwe ontwikkeling.
De ontwikkelingen in de gemeente Waalwijk staan natuurlijk niet op zichzelf. Ook in de regio vinden allerlei ontwikkelingen plaats die van invloed kunnen zijn op onze gemeente. Daarom hebben we actief contact met buurgemeenten, de provincie Noord-Brabant en ketenpartners en nemen we deel aan verschillende regionale samenwerkingsverbanden. In hoofdstuk 2.6 is gereflecteerd op een aantal belangrijke visies van onze partners. Samen met die partners blijven we werk maken van belangrijke regionale opgaven. Alle aangrenzende gemeenten waren uitgenodigd om deel te nemen aan ketenpartnersessies tijdens de totstandkoming van deze omgevingsvisie. Daarnaast hebben ze allemaal een uitnodiging gekregen om te reageren op de omgevingsvisie tijdens de inzageperiode.
In januari 2025 is door de gemeenteraad van Waalwijk de Nota grondbeleid 2025-2030 vastgesteld. Met het grondbeleid willen we sturing geven aan toekomstige ontwikkelingen, we willen het gewenste stimuleren en het ongewenste tegengaan zodat de maatschappelijke doelstellingen en ambities kunnen worden gerealiseerd. Als gemeente kunnen we kiezen voor actief of faciliterend grondbeleid of een samenwerkingsmodel. Voor de gemeente Waalwijk zijn alle vormen van grondbeleid (actief, passief of een mengvorm) in principe aanvaardbaar, omdat ze allemaal kunnen bijdragen aan het algemeen belang. De feitelijke keuze voor een specifieke vorm van grondbeleid is afhankelijk van de situatie. Het primaire doel van de gemeente bij een ontwikkeling is om hiermee in maatschappelijke zin waarde toe te voegen. Het maatschappelijke rendement van een ontwikkeling speelt daarmee ook een grote rol in de keuze van het grondbeleid van de gemeente. Daarnaast wordt ook gekeken naar het financiële rendement van de ontwikkeling.
Onze Nota grondbeleid is opgesteld voor de termijn 2025 – 2030. We actualiseren deze voor het verlopen van deze termijn.
De gemeente Waalwijk heeft in de omgevingsvisie ambities en opgaven opgenomen waarvoor investeringen nodig zijn. De financiële uitvoerbaarheid hiervan is dynamisch en voortdurend aan verandering onderhevig. Enerzijds is dit omdat nog niet alle ambities zijn uitgewerkt. Anderzijds is dit het geval, omdat er in de loop der tijd vaak ook projecten afvallen en/of nieuwe projecten bijkomen. Ook de daadwerkelijke kosten en opbrengsten van projecten kunnen veranderen op basis van prijsontwikkelingen en aangescherpte eisen en regelgeving. Het is dan ook belangrijk om de financiële uitvoerbaarheid - op basis van dit soort nieuwe inzichten en projecten - periodiek te evalueren, te actualiseren en waar nodig bij te stellen. Op projectniveau maakt de financiële uitvoerbaarheid deel uit van het omgevingsplan.
Inleiding
Bij de keuze voor faciliterend grondbeleid wordt het noodzakelijk om kostenverhaal toe te passen. Dit betekent dat de gemeente de kosten die gepaard gaan met ruimtelijke ontwikkelingen kan verhalen op de ontwikkelaar. Hierover is veel wettelijk vastgelegd, waardoor er slechts beperkte ruimte is voor beleidsmatige keuzes. De Omgevingswet biedt daarnaast de mogelijkheid om van de ontwikkelaar een financiële bijdrage te vragen voor aanvullende gemeentelijke voorzieningen.
De afspraken met betrekking tot het kostenverhaal, als zijnde de financiële bijdrage, kunnen worden vastgelegd in een anterieure overeenkomst of door middel van de wettelijke kostenverhaalsbeschikking.
Kostenverhaal
De Omgevingswet verplicht tot kostenverhaal bij aangewezen bouwplannen. Als een omgevingsplan of een omgevingsvergunning voor een buitenplanse omgevingsplanactiviteit een in het Omgevingsbesluit aangewezen bouwplan of functieverandering mogelijk maakt en er verhaalbare kosten zijn, moeten die kosten in beginsel verhaald worden. Het kostenverhaal betreft alleen de kosten die op de kostensoortenlijst (bijlage IV van het Omgevingsbesluit) staan.
Daartoe worden in het omgevingsplan kostenverhaalregels opgenomen of in de omgevingsvergunning voor een buitenplanse omgevingsactiviteit (BOPA) kostenverhaalvoorschriften gesteld.
Wanneer het kostenverhaal anderszins verzekerd is, hoeft de gemeente geen kostenverhaalregels vast te stellen. Het kostenverhaal is anderszins verzekerd wanneer er voor alle aangewezen activiteiten in het potentiële kostenverhaalsgebied een anterieure overeenkomst is afgesloten en de kosten door de initiatiefnemer zijn voldaan, ofwel er voldoende zekerheid is dat de kosten worden voldaan.
Onder de Omgevingswet zijn twee systemen mogelijk om het kostenverhaal te verzekeren, namelijk kostenverhaal met en zonder tijdvak. Het systeem van kostenverhaal met tijdvak is vergelijkbaar met het systeem van kostenverhaal uit de Wro, ofwel het voormalige exploitatieplan. De plannen hebben dan een duidelijk eindbeeld, een fasering en een einddatum. Daardoor is het goed mogelijk om de kosten en opbrengsten van de gebiedsontwikkeling vooraf te berekenen.
Maar er is ook een nieuw systeem voor kostenverhaal toegevoegd. Dit heet kostenverhaal zonder tijdvak. Dit systeem is bestemd voor organische gebiedsontwikkeling. Dus voor plannen zonder een duidelijk eindbeeld, zonder fasering en zonder einddatum. Het gaat om plannen met globale functieaanduidingen die op verschillende manieren kunnen worden uitgewerkt.
Financiële bijdrage
Onder de Omgevingswet zijn naast het kostenverhaal een tweetal financiële bijdragen mogelijk, namelijk op grond van artikel 13.22 (via overeenkomst) en artikel 13.23 van de Omgevingswet (kostenverhaalsbeschikking). Beide vormen van financiële bijdragen maken geen onderdeel uit van het kostenverhaal zoals is beschreven in de vorige paragraaf.
Financiële bijdrage via kostenverhaalsbeschikking
Artikel 13.23 van de Omgevingswet biedt de mogelijkheid om een financiële bijdrage af te dwingen via een kostenverhaalsbeschikking. Het heeft de voorkeur om de financiële bijdrage via een overeenkomst (zie ‘Financiële bijdrage via overeenkomst’) te regelen. Mocht dit onverhoopt niet lukken, dan kan indien het omgevingsplan een regeling van de financiële bijdrage bevat, de financiële bijdrage worden opgelegd middels de kostenverhaalsbeschikking. Deze bijdrage wordt dus niet geheven als er een overeenkomst met de initiatiefnemer over kostenverhaal is gesloten.
Voor de financiële bijdrage via de kostenverhaalsbeschikking gelden een aantal eisen:
De bijdrage wordt alleen geheven bij in de wet aangewezen activiteiten. Dit zijn dezelfde activiteiten als waarvoor kostenverhaal mogelijk is.
Er is een grondslag in het omgevingsplan.
De bijdrage wordt geheven voor en besteed aan aangewezen categorieën ontwikkelingen ter verbetering van de kwaliteit van de fysieke leefomgeving. Deze categorieën zijn aangewezen in het omgevingsbesluit.
De afdwingbare financiële bijdrage kan slechts worden verhaald als tussen de bouwactiviteit van een initiatiefnemer en de ontwikkeling waarvoor een financiële bijdrage verhaald wordt een functionele samenhang bestaat.
Het is voor gemeenten geen verplichting om een afdwingbare financiële bijdrage op te nemen in het omgevingsplan, maar een bevoegdheid. Het omgevingsplan bepaalt voor welke ontwikkelingen een financiële bijdrage wordt verhaald en welke activiteiten die moeten betalen. De maatregelen voor deze ontwikkelingen worden in het omgevingsplan concreet uitgewerkt. Het omgevingsplan bepaalt de plaats, de aard, de omvang en de realisatietermijn van de ontwikkeling. Het omgevingsplan legt bijvoorbeeld de locatie voor de ontwikkeling voor verbetering van de fysieke leefomgeving vast. Het omgevingsplan stelt ook regels over de financiële bijdragen voor de bouwactiviteiten.
Financiële bijdrage via overeenkomst
Artikel 13.22 van de Omgevingswet biedt de mogelijkheid om een overeenkomst te sluiten over financiële bijdragen voor ontwikkelingen van een gebied. Dit is mogelijk bij een wijziging van het omgevingsplan, een omgevingsvergunning voor een buitenplanse omgevingsplanactiviteit of een projectbesluit. Een financiële bijdrage gebiedsontwikkeling is een financiële bijdrage aan kosten van ontwikkelingen die niet onder kostenverhaal vallen, maar wel bijdragen aan de kwaliteit van een gebied. Deze mogelijkheid is overgenomen uit de Wro. De financiële bijdrage kan niet alleen gevraagd worden bij de voor kostenverhaal aangewezen activiteiten, maar ook bij het toelaten van enkele andere aangewezen activiteiten. Vereist is een grondslag in een omgevingsvisie of een programma. Binnen de gemeente Waalwijk vragen wij de volgende financiële bijdragen via overeenkomst:
Bijdrage ruimtelijke kwaliteit
Vanuit de wens om de kwaliteit van het landschap en de kernen een impuls te geven wordt het van belang geacht om een ‘Reserve ruimtelijke kwaliteit’ te hebben teneinde ‘rode’ projecten te laten bijdragen aan ‘groene’ projecten op het gebied van onder andere natuur, landschap en cultuurhistorie. Op deze wijze betaalt ‘rood voor groen’.
Voor een nieuwe ruimtelijke ontwikkeling buiten bestaand stedelijk gebied is een bijdrage nodig voor kwaliteitsverbetering van het landschap op basis van de provinciale omgevingsverordening. We werken daarbij volgens regionale werkafspraken kwaliteitsverbetering landschap Hart van Brabant’ (zie kader). Er is geen bijdrage nodig indien het plan op zichzelf voorziet in een verbetering van de kwaliteit van het landschap. De hoogte van de bijdrage wordt berekend aan de hand van de bestemmingswinst en hangt af van de oppervlakte van het perceel waarvoor de bestemming uiteindelijk wordt gewijzigd. Een percentage van 20% van het verschil tussen de nieuwe en de oude bestemmingswaarde moet worden geïnvesteerd in een kwaliteitsverbetering in de fysieke leefomgeving. Bij planmatige stedelijke ontwikkeling, zoals bedrijventerreinen, woongebieden en sportterreinen wordt uitgegaan van een minimumbijdrage per m2 uit te geven grond. De minimumbijdrage is 1% van de uitgifteprijs, de gemeente heeft de keuze om een hogere bijdrage te vragen. Het besteden van de bijdrage voor ruimtelijke kwaliteit kan in het plan zelf, in de omgeving of als fondsbijdrage.
Op basis van deze omgevingsvisie passen we voor nieuwe ruimtelijke ontwikkelingen in bestaand stedelijk gebied vergelijkbare werkafspraken toe. Zowel voor interne projecten als externe initiatieven. Met dien verstande dat de bijdrage gekoppeld aan een ruimtelijke ontwikkeling in het bestaand stedelijk gebied niet alleen besteed kan worden aan verbetering van de kwaliteit van natuur, landschap en/of cultuurhistorie maar ook aan andere kwaliteitsverbeteringen in de fysieke leefomgeving. Bovendien is geen bijdrage nodig indien het plan op zichzelf voorziet in een evenredige maatschappelijke en/of landschappelijke bijdrage aan de fysieke leefomgeving, bijvoorbeeld de opheffing van een milieuhygiënisch knelpunt en/of sociale woningbouw.
De fondsbijdragen voor kwaliteitsverbetering worden gestort in een ‘Reserve kwaliteit fysieke leefomgeving’. Fondsbijdragen worden besteed aan projecten van het uitvoeringsprogramma die leiden tot een kwaliteitsverbetering voor de fysieke leefomgeving. Daarbij geldt voor de bijdragen die gedaan zijn op basis van de provinciale Verordening Ruimte dat ook voldaan moet worden aan de regionale werkafspraken.
Werkafspraken kwaliteitsverbetering landschap Hart van Brabant
Deze werkafspraken geven aan hoe de gemeenten in de regio Hart van Brabant toepassing geven aan artikel 5.11 lid 2b van de Omgevingsverordening (OV). Deze werkafspraken bieden:
een helder kader voor de gemeenten, en wel zodanig dat vooraf duidelijk is dat dit de instemming heeft van de provincie;
duidelijkheid aan initiatiefnemers van ruimtelijke plannen over hoe de gemeenten de regels inzake kwaliteitsverbetering toepassen;
duidelijkheid over hoe de regels inzake kwaliteitsverbetering in de praktijk worden geëffectueerd en over het feit dat dit in overeenstemming is met de bedoeling van de Omgevingsverordening.
Het is hierbij de bedoeling dat de afspraken direct helderheid bieden voor het grootste gedeelte van de buitenstedelijke ruimtelijke ontwikkelingen. Is er een kwaliteitsverbetering van het landschap nodig of niet?
Indien een kwaliteitsverbetering nodig is leert de ervaring ook dat een beperkt deel van de buitenstedelijke ruimtelijke ontwikkelingen niet eenvoudig in dergelijke afspraken is op te nemen, door de unieke omstandigheden die verbonden zijn aan de ontwikkeling. In dergelijke gevallen blijft landschappelijke kwaliteitsverbetering noodzakelijk, maar over de wijze waarop kunnen via maatwerk afspraken worden gemaakt op basis van artikel 5.11 lid 2a OV. Het is van belang om ook het volgende op te merken: deze afspraken zeggen niets over de wenselijkheid van een bepaalde ruimtelijke ontwikkeling. De afweging over de wenselijkheid van ruimtelijke ontwikkelingen wordt gemaakt in besluitvormingsprocessen op basis van de Omgevingswet. Het is aan het bevoegd gezag om hier een besluit over te nemen. Alleen indien het bevoegd gezag besluit mee te werken aan een bepaalde ruimtelijke ontwikkeling komen de Werkafspraken kwaliteitsverbetering landschap in beeld en dan slechts alleen voor het antwoord op de vraag of en welke kwaliteitsverbetering nodig is.
Vereveningsfonds sociale woningbouw
Vereveningsfonds sociale woningbouwWe hebben met de regio Hart van Brabant afspraken gemaakt omtrent sociale woningbouw. Van het totale woningbouwprogramma dient 30% te bestaan uit sociale huurwoningen. Dit is vastgelegd in de regionale woondeal. Vanwege de vele eisen/voorwaarden omtrent (de toewijzing van) sociale huurwoningen is het realiseren van deze sociale woningen binnen kleine woningbouwontwikkelingen ruimtelijk niet in alle gevallen haalbaar. Om onze betaalbaarheidsdoelen te realiseren kunnen we een vereveningsfonds sociale woningbouw inrichten. Om toepassing te kunnen geven aan een vereveningsfonds sociale huurwoningen moet bestuurlijk worden besloten dat de inzet van dit instrument wenselijk wordt geacht en moet beleidsmatig de werking van een fonds goed worden verankerd in gemeentelijk beleid. Dit zou vorm moeten krijgen in het ruimtelijk en volkshuisvestelijk beleid van de gemeente; daarnaast zou een vermelding over de werking van het fonds moeten worden opgenomen.
Een milieueffectrapportage (mer; het proces) is bedoeld om het milieubelang volwaardig en vroegtijdig in de besluitvormingsprocedures een plaats te geven. Dit geldt ook bij het opstellen van de omgevingsvisie. Onder milieubelang worden alle thema’s verstaan die relateren aan milieu, zoals luchtkwaliteit, water, bodem, biodiversiteit, geluid, energie, klimaat, landschap en gezondheid. Een Milieueffectrapport (MER; het product) brengt op voorgeschreven wijze de milieugevolgen van een plan, visie of project in beeld voordat het besluit wordt genomen of het plan wordt vastgesteld. Zo kan het bevoegd gezag de milieugevolgen bij haar afwegingen betrekken en krijgt het milieubelang een volwaardige plaats in de besluitvorming over projecten, plannen en visies met mogelijk aanzienlijke gevolgen voor het milieu. Hieronder zijn de resultaten van de MER voor de omgevingsvisie voor de gemeente Waalwijk weergegeven.
De beoordeling van het ontwerp van de omgevingsvisie van Waalwijk is in grote lijnen positief. De visie laat zien dat de gemeente een duidelijke en ambitieuze koers inzet richting een duurzame, klimaatbestendige en sociaal sterke toekomst. Er zijn sterke inhoudelijke uitgangspunten geformuleerd, zoals het centraal stellen van water en bodem bij ruimtelijke keuzes, het stimuleren van natuurinclusieve landbouw, het verduurzamen van mobiliteit en bebouwing, en het versterken van de sociaal-maatschappelijke structuur. Wel is het van belang dat de vertaling van deze visie naar concrete, meetbare en uitvoerbare beleidsmaatregelen wordt versterkt om het doelbereik daadwerkelijk te realiseren.
Op het gebied van water en bodem zijn de uitgangspunten goed gekozen, maar blijven sommige aspecten nog onzeker. Zo is de actuele bodemdaling niet precies in beeld, terwijl de verwachte toekomstige daling vooral buiten de bebouwde kom plaatsvindt. Binnenstedelijke woningbouw en natuurinclusieve landbouw kunnen dit risico beperken, maar zonder duidelijke maatregelen en meer kennis over het gebruik van de ondergrond blijven er risico’s bestaan. De aanpak van waterhuishouding is breed, maar de samenhang met bodemgebruik vraagt nog om verdieping. Ook zijn de effecten van grootschalige graafwerkzaamheden niet volledig in kaart gebracht.
Wat betreft gezondheid en leefomgeving wordt erkend dat de groei van bevolking en economie leidt tot meer geluid, geur en luchtverontreiniging. De visie benoemt dit wel, maar de uitgewerkte maatregelen zijn beperkt, zeker gezien het feit dat de huidige situatie al kwetsbaar is. Verdere concretisering is nodig om te garanderen dat de leefomgeving gezond blijft, vooral in dichtbebouwde gebieden.
Het onderdeel wonen is goed uitgewerkt, met aandacht voor zowel de kwantitatieve als kwalitatieve woningvraag. De keuze voor binnenstedelijke verdichting is logisch om het buitengebied te sparen, maar de fysieke ruimte is schaars. Verdichting kan druk zetten op groen, infrastructuur en sociale draagkracht. Uitzonderingen op het verdichtingsbeleid zijn denkbaar, maar moeten zorgvuldig worden afgewogen om ongewenste verstedelijking te voorkomen.
Op het thema duurzaamheid en klimaatadaptatie zijn de ambities helder. De visie stelt duidelijke doelen voor energiebesparing en opwekking, en ook de aanpak van droogte is overtuigend. Hittestress wordt wel benoemd, maar het is onzeker of de voorgestelde maatregelen voldoende effect sorteren, zeker als bebouwing toeneemt. De integrale benadering van duurzame mobiliteit, vergroening en hergebruik van ruimte is veelbelovend, mits deze gepaard gaat met stevige regie en investeringen.
In het kader van mobiliteit is er sprake van een omslag naar duurzaam vervoer, met goede voornemens voor lopen, fietsen en openbaar vervoer. Toch blijft de OV-structuur kwetsbaar, met name in kernen Waspik en Sprang-Capelle. Zonder goede verbindingen blijft de auto dominant, wat de verduurzaming van mobiliteit belemmert.
Ook economische ontwikkeling en erfgoed komen ruim aan bod. De inzet op circulaire economie, innovatie en het benutten van historisch erfgoed zijn sterke punten. De koppeling tussen onderwijs en bedrijfsleven en het scheppen van ruimte voor kennisintensieve bedrijven dragen bij aan een toekomstbestendige economie. Het zichtbaar maken van Waalwijks geschiedenis is waardevol, maar in de praktijk lastig, vooral in combinatie met natuur- en recreatiedoelen.
Bij de passende beoordeling zijn Natura 2000-gebieden een belangrijk aandachtspunt. Stikstofdepositie vormt het grootste risico, vooral bij nieuwe ontwikkelingen dicht bij kwetsbare natuurgebieden zoals De Langstraat en de Biesbosch. Toch wordt, dankzij maatregelen zoals verduurzaming van mobiliteit en landbouw, op gemeenteniveau een netto afname van stikstofemissies verwacht. In gevallen waarin landbouwgrond plaatsmaakt voor woningbouw, kan via intern salderen zelfs stikstofwinst geboekt worden. Structurele toename van stikstof op specifieke locaties blijft echter een aandachtspunt dat juridisch moet worden onderbouwd met tools als de AERIUS Calculator.
Daarnaast zijn er effecten op doelsoorten buiten Natura 2000-grenzen, zoals de meervleermuis en ganzensoorten. Voor de meervleermuis, die verblijft in gebouwen tot 25 km van Natura 2000-gebieden, is het belangrijk verblijfplaatsen in kaart te brengen en bij renovaties natuurinclusief bouwen toe te passen. Voor ganzen die landbouwgrond gebruiken als foerageergebied is het verlies door woningbouw beperkt, gezien de kleinschaligheid en de beschikbaarheid van alternatieve gebieden.
Verstoringsfactoren, zoals geluid, licht en trillingen zijn vooral relevant tot een afstand van 1,5 kilometer, wat vooral gevolgen kan hebben voor De Langstraat en de Loonse en Drunense Duinen en Leemkuilen. Mogelijke bronnen zijn bouwactiviteiten, toegenomen recreatie, infrastructuur zoals de BRT-lijn, of nieuwe verlichting. Door tijdige afstemming en mitigerende maatregelen kunnen deze effecten beheerst worden.
De beoordeling van de effecten is in figuur 50 overzichtelijk weergegeven, evenals de mate waarin de doelen worden bereikt in figuur 51. Hieruit blijkt dat er een goede basis ligt, maar dat op onderdelen de uitwerking en uitvoerbaarheid verbetering vraagt. De figuren laten onder meer zien dat het ontwerp op hoofdlijnen positieve effecten heeft, maar ook dat de mate van doelbereik wisselt per thema en afhankelijk is van de mate waarin concrete maatregelen volgen.


Met de omgevingsvisie hebben we als gemeente een koers en een integraal afwegingskader voor de inrichting van onze fysieke leefomgeving. We beschouwen de omgevingsvisie, en in het verlengende daarvan alle Omgevingswet-instrumenten, als levende documenten. De wereld verandert continu en daarom moeten we dus ook regelmatig onze instrumenten herijken. Liggen we nog op koers, zijn er nieuwe ontwikkelingen waar we rekening mee moeten houden, halen we onze ambities wel met onze huidige aanpak? Met een monitoringssysteem houden we als gemeente zicht op de voortgang van onze koers. Het gebruikmaken van meetbare indicatoren is een logische stap bij de verdere aanscherping van de omgevingsvisie. Dit vraagt om beschikbaarheid, analyse en toepassing van de juiste informatie (datagedreven werken).
Er is geen wettelijke actualiseringstermijn meer zoals dat bij de structuurvisie en bestemmingsplannen wel altijd het geval was. Op enig moment zullen we tot de conclusie komen dat een bepaald thema toch nog onvoldoende is uitgewerkt of dat de situatie voor een gebied dusdanig is veranderd dat herziening van de visie nodig is. We kiezen als gemeente voor een actualiseringscyclus van eens per jaar, met ingang van 2027, om de omgevingsvisie voldoende scherp en bij de tijd te houden. We kiezen voor deze korte cyclus omdat de Omgevingswet en bijbehorende instrumenten nieuw zijn. Op termijn bekijken we of we de tijdsdoorloop van de cyclus verlengen. Een actualisatie verloopt altijd via de wettelijk voorgeschreven procedure, waarbij de gemeenteraad het besluit over de vaststelling van de geactualiseerde versie neemt.
De evaluatie en herijking van de omgevingsvisie wordt onderdeel van de gemeentebrede beleidscyclus in het zogenaamde beleidshuis. Evaluatie en herijking vindt dan plaats in samenhang met de strategische visie en Samen Redzaam (horizontale afstemming). Onderdeel van deze cyclus is ook betere afstemming tussen visie – sectoraal beleid – en uitvoering (verticale afstemming). Door het toepassen van deze cyclus werken we meer integraal aan de grote opgaven.
Deze eerste omgevingsvisie voor de gemeente Waalwijk zet een eerste stap richting volledige strategische beleidsintegratie. Het uiteindelijke doel is dat de omgevingsvisie dé centrale plek wordt voor al het strategisch ruimtelijk beleid. Dat betekent dat er vanaf nu naar wordt gestreefd zo min mogelijk thematische of gebiedsgerichte visies als losstaand beleid vast te stellen en visies daar waar mogelijk te integreren in (voor zover het de fysieke leefomgeving betreft) de omgevingsvisie. Om die beleidsintegratie te realiseren beschouwen we de omgevingsvisie als een ‘levend’ document dat continu aangescherpt en aangevuld wordt. Als eerste stap hebben we een verdieping op het thema biodiversiteit opgesteld op basis van de uitgangspunten van de omgevingsvisie en deze verdieping vervolgens geïntegreerd in de omgevingsvisie.
Vanzelfsprekend gaan we als gemeente wel verder met het uitwerken van bepaalde thema’s parallel aan de omgevingsvisie. Dit wordt dan niet opgenomen in losstaande beleidsstukken, maar integraal meegenomen in een herziening van deze omgevingsvisie. Via programma’s werken we bijvoorbeeld aan de uitwerking van een bepaald thema, een specifieke gebiedsuitwerking of anderszins. De strategische uitspraken van een verdiepingsslag, de zogenoemde ‘haakjes’, moeten uiteindelijk weer landen in de omgevingsvisie en vanwege eventuele juridische consequenties verwerkt worden in het omgevingsplan.
In deze eerste versie van de omgevingsvisie hebben we alle ruimtelijke thema’s en de verschillende (bestaande) beleidstrajecten en ontwikkelingen met elkaar verbonden. In de eerstvolgende actualisatie van de omgevingsvisie zetten we een volgende stap in het integreren van nieuw strategisch ruimtelijk beleid en de aangegeven thematische/gebiedsgerichte programma’s.
/join/id/regdata/gm0867/2025/b5cc9f6a66ee42c6963e3dccefcf5cf9/nld@2025‑08‑12;10175769
/join/id/regdata/gm0867/2025/9a12e405b3c84b9e9d41aa8cdfe478fa/nld@2025‑08‑12;10175769
/join/id/regdata/gm0867/2025/6d38ded315ce4ee2a0d32115f8322ee2/nld@2025‑08‑12;10175769
/join/id/regdata/gm0867/2025/7c4f105bae814f8588685da9e60507f9/nld@2025‑08‑12;10175769
/join/id/regdata/gm0867/2025/fc58d7ac9d894edeaa69c84024acd202/nld@2025‑08‑12;10175769
/join/id/regdata/gm0867/2025/086e77111c7b4bbea7f929ba8a624fb0/nld@2025‑08‑12;10175769
/join/id/regdata/gm0867/2025/c70725879022428d9f39598b79a3b117/nld@2025‑08‑12;10175769
/join/id/regdata/gm0867/2025/58fa3676ab4d41fbbe76858d499cc60a/nld@2025‑08‑12;10175769
/join/id/regdata/gm0867/2025/4669e68fd28142d183631aed1fa8fb90/nld@2025‑08‑12;10175769
/join/id/regdata/gm0867/2025/3e76c027330e4983a994e6714a1afbd4/nld@2025‑08‑12;10175769
/join/id/regdata/gm0867/2025/288aec7f07ad4ba49c5676239a4c48e8/nld@2025‑08‑12;10175769
Kopieer de link naar uw clipboard
https://zoek.officielebekendmakingen.nl/gmb-2025-356680.html
De hier aangeboden pdf-bestanden van het Staatsblad, Staatscourant, Tractatenblad, provinciaal blad, gemeenteblad, waterschapsblad en blad gemeenschappelijke regeling vormen de formele bekendmakingen in de zin van de Bekendmakingswet en de Rijkswet goedkeuring en bekendmaking verdragen voor zover ze na 1 juli 2009 zijn uitgegeven. Voor pdf-publicaties van vóór deze datum geldt dat alleen de in papieren vorm uitgegeven bladen formele status hebben; de hier aangeboden elektronische versies daarvan worden bij wijze van service aangeboden.