Verkeersbesluit voor het aanwijzen van parkeerplaatsen ten behoeve van het opladen van elektrische voertuigen aan Poelhof 24 te Monnickendam

IT21.08062021

gelet op:

  • artikel 15, eerste lid, van de Wegenverkeerswet 1994 (hierna: WVW 1994);

  • artikel 18, eerste lid, onder d van de WVW 1994 waarin is verwoord dat het college van burgemeester en wethouders het bevoegd gezag is voor het nemen van een verkeersbesluit en dat deze bevoegdheid op 12 mei 2017 is gemandateerd aan het afdelingshoofd van de afdeling Openbare Werken;

  • artikel 12 onder a van het Besluit Administratieve Bepaling inzake het Wegverkeer (hierna: BABW);

  • artikel 21 BABW;

  • artikel 24 onder a van het BABW dat overeenkomstig dit artikel overleg gevoerd is met en instemming is verkregen van de gemandateerde van de korpschef van de nationale politie.

overwegende dat:

  • het stimuleren van elektrische mobiliteit tot een van de actiepunten behoort in het kader van duurzaamheid van de gemeente Waterland;

  • voor elektrische mobiliteit een openbaar netwerk van laadpalen noodzakelijk is;

  • een oplaadpunt onder meer gerealiseerd kan worden door de inrichting van twee openbare parkeerplaatsen;

  • per laadpaal maximaal twee elektrische voertuigen gelijktijdig kunnen worden opgeladen;

  • de laadpaal door iedere inwoner en bezoeker met een elektrisch voertuig gebruikt kan worden;

  • het nodig is om de betreffende parkeerplaatsen middels een verkeersbesluit aan te wijzen als een parkeerplaats die als specifiek doel heeft het opladen van elektrische voertuigen;

  • de gebruiker zich moet houden aan de eventuele aanwezige parkeerregulering;

  • wegens toename van het aantal elektrische voertuigen en lange realisatietijd van laadinfrastructuur tijdig ingespeeld moet worden op de groeiende behoefte aan laadinfrastructuur;

  • parkeerplaatsen bij laadpalen alleen door elektrische voertuigen voor het laden gebruikt kunnen worden en dat de hoeveelheid parkeerruimte in de wijk voor niet-elektrische voertuigen of voertuigen die niet laden daardoor afneemt;

  • parkeerdruk en verlies aan parkeergelegenheid wordt meegenomen in de keuze voor een locatie, maar het belang van het ontwikkelen van een dekkend openbaar oplaadnetwerk binnen de wijk zwaarder weegt;

  • de genoemde locatie centraal gelegen ligt en past tussen andere locaties voor het opladen van elektrische voortuigen;

  • de hierna genoemde openbare parkeerplaatsen in beheer zijn van en gelegen zijn binnen de gemeente Waterland.

BESLUITEN:

  • 1.

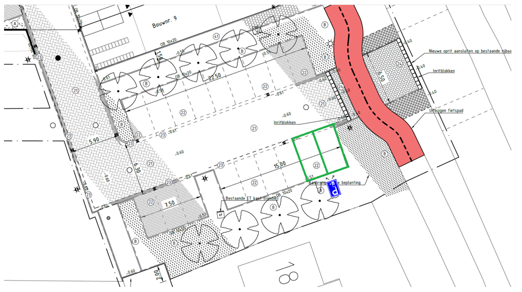
    Op onderstaande locatie* twee parkeerplaatsen aan te wijzen als parkeerplaatsen t.b.v. het opladen van elektrische voertuigen:

    • Monnickendam, parkeerplaatsen ter hoogte van Poelhof 24

  • 2.

    Dit besluit kenbaar te maken aan de weggebruikers middels plaatsing van verkeersbord model E8c met daarbij ook pijlen naar links- en rechtsonder, zoals op OB504;

  • 3.

    Dit besluit kan worden aangehaald als het besluit “aanwijzen parkeerplaatsen thv Poelhof 24 t.b.v. het opladen van elektrische voertuigen”.

* (zie bijlage bij verkeersbesluit incl. locaties op luchtfoto)

Dit besluit wordt op de gebruikelijke wijze gepubliceerd in het Gemeenteblad via https://www.officielebekendmakingen.nl/gemeenteblad.

Monnickendam, 20 juni 2025

Namens burgemeester en wethouders van de gemeente Waterland,

S. Veenstra

Teammanager Realisatie

C.C. Politie Zaanstreek-Waterland, BOA’s

Bijlage bij het verkeersbesluit IT21.08062021 aanwijzen van 2 parkeerplaatsen t.b.v. het opladen van elektrische voertuigen.

Locatie laadpaal Monnickendam, op de parkeerplaatsen ter hoogte van Poelhof 24.

Naar boven