Publicatie voorgenomen opstalrecht ten behoeve van realisatie Windpark De Pals Bladel
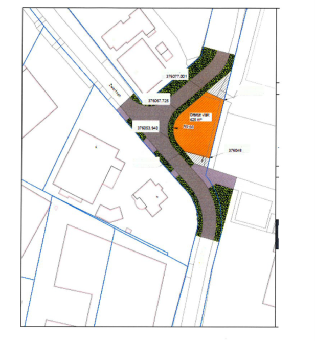
Het college van burgemeester en wethouders van de gemeente Bladel (hierna: het college) maakt hierbij bekend dat het voornemens is om een overeenkomst te sluiten waarbij een opstalrecht gevestigd wordt ten behoeve van de realisatie van Windpark de Pals Bladel. Het gaat om het perceel kadastraal bekend gemeente Hoogeloon, sectie C, nummer 6216 gedeeltelijk (het recht van opstal wordt gevestigd op het oranje gearceerde terrein).
Het college is van mening dat hierbij geen mededingingsruimte door middel van een openbare selectieprocedure hoeft te worden geboden, omdat slechts één gegadigde in aanmerking komt voor deze transacties. De motivering hiervoor is als volgt:
Faciliteren gewenste ontwikkeling
De vestiging van het opstalrecht vindt plaats vanwege de komst van een inkoopstation, als onderdeel van de grotere ontwikkeling ‘Windpark De Pals’. Gemeente Bladel is alleen bereid medewerking te verlenen aan de vestiging van dit recht, vanwege deze ontwikkeling. Alleen Windpark De Pals B.V. is in staat en van plan om deze ontwikkeling te realiseren.
Eén serieuze gegadigde
Op grond hiervan kan de betreffende partij worden aangemerkt als de enige serieuze gegadigde.
Vervaltermijn reactie – Kort Geding
Eenieder die meent dat hij, met inachtneming van voornoemde criteria, als een serieuze gegadigde ook voor de betreffende grondtransacties in aanmerking komt, kan binnen 20 kalenderdagen na de dag van publicatie van deze aankondiging een kort geding tegen het voorgenomen besluit van het college van burgemeester en wethouders aanhangig te maken bij de Rechtbank Oost- Brabant Leeghwaterlaan 8, 5223 BS ’s-Hertogenbosch. Het instellen van een kort geding geschiedt door middel van een tijdige betekening van een dagvaarding door een deurwaarder.
Bij gebreke van een tijdig kort geding vervalt het recht tegen het voornoemde in rechte op te komen en/of daarop enige vordering tot schadevergoeding of welke andere aanspraak dan ook te baseren, althans heeft u, uw rechten daarop verwerkt.
De hier aangeboden pdf-bestanden van het Staatsblad, Staatscourant, Tractatenblad, provinciaal blad, gemeenteblad, waterschapsblad en blad gemeenschappelijke regeling vormen de formele bekendmakingen in de zin van de Bekendmakingswet en de Rijkswet goedkeuring en bekendmaking verdragen voor zover ze na 1 juli 2009 zijn uitgegeven. Voor pdf-publicaties van vóór deze datum geldt dat alleen de in papieren vorm uitgegeven bladen formele status hebben; de hier aangeboden elektronische versies daarvan worden bij wijze van service aangeboden.