Nadere en beleidsregels terrassen gemeente Apeldoorn 2025

 

Hoofdstuk 1. Inleiding

Apeldoorn groeit, want veel mensen willen hier wonen, werken en recreëren. Daarom maken we Apeldoorn nog groener én nog meer stad. Een stad met allure, geschiedenis en moderne, inspirerende architectuur. Met een afwisseling van hoog- en laagbouw, uitstekende voorzieningen en goed bereikbaar. Met een stadshart dat verandert in een groene huiskamer waarin je de Veluwe letterlijk voelt. Een echt stadspark.

 

Goede horeca en terrassen zijn belangrijke functies voor onze gemeente, want de vele terrassen die de gemeente Apeldoorn rijk is, zorgen voor een bruisende en levendige sfeer, zijn een belangrijke plek voor ontmoeting en ontspanning en horen bij een gastvrije gemeente als Apeldoorn. Deze nadere en beleidsregels zijn daarom een bouwsteen voor het verder verbeteren van onze gemeente en binnenstad.

 

Tegelijkertijd staan deze terrassen meestal in de openbare ruimte, die ook bedoeld is voor andere doeleinden. Het doel van deze nadere en beleidsregels is daarom om zowel ondernemers als omwonenden duidelijkheid te bieden over de regels omtrent terrassen. Een goede afweging tussen de mogelijkheden voor terrassen en ander gebruik in de openbare ruimte is hierbij leidend. Regels die door de gemeente aan de exploitatie van een terras worden verbonden, zijn daarom alleen opgenomen als ze in ieder geval vanuit openbare orde, openbare veiligheid, een goed woon- en leefklimaat, volksgezondheid of bescherming van het milieu door de gemeente als noodzakelijk worden geacht. Er wordt terughoudend omgegaan met regels omtrent soort/type terrasmeubilair. Daarbij is er vertrouwen dat ondernemers voldoende belang hechten aan de basiskwaliteit van het terras.

 

In 2003 zijn de huidige nadere regels voor de gehele gemeente Apeldoorn vastgesteld. In de jaren 2019-2022 zijn in de gemeente Apeldoorn mogelijkheden voor de terrassen verruimd, in eerste instantie om het bezoek aan terrassen en horeca te kunnen laten verlopen volgens de geldende coronamaatregelen, daarna om ondernemers de mogelijkheid te bieden gederfde inkomsten goed te maken. Per oktober 2022 zijn deze verruimde mogelijkheden voor terrassen afgelopen. Daarnaast zijn de eilandterrassen momenteel voor onbepaalde tijd vergund, iets wat volgens de huidige jurisprudentie niet meer kan Op basis van de Europese Dienstenrichtlijn zijn deze vergunningen schaars. We gaan daarom de regelgeving actualiseren.

 

De grondslag van deze nadere regels is artikel 2:28, zesde lid, van de APV. De regels zijn een uitwerking van hetgeen is bepaald in artikel 2:28, eerste tot en met vijfde lid, van de APV. De uitwerking van de schaarse vergunningen is gebaseerd op artikel 1:8, vierde lid, van de APV.

 

Gebiedsindeling

De regels opgesteld in “Nadere en beleidsregels terrassen gemeente Apeldoorn 2025” gelden voor alle terrassen in de gehele gemeente Apeldoorn. Voor bepaalde regels is in de regelgeving onderscheid gemaakt naar type gebied in de binnenstad van Apeldoorn: de drie pleinen Raadhuisplein, Leienplein en Caterplein (inclusief Hoofdstraat tussen Caterplein en Paul Krugerstraat en Beekpark) en overige binnenstad (zie kaarten in de bijlage).

 

In het buitengebied van Apeldoorn zijn relatief veel terrassen op eigen grond, bijvoorbeeld bij vakantieparken. Sommige nadere- of beleidsregels gelden niet voor die terrassen, zoals regels over gevelterrassen. Andere regels, bijvoorbeeld over sluitingstijden, zijn voor álle terrassen geldend, maar kunnen wel verschillen per type gebied. Artikelen en/of regels die voor alle terrassen (dus zowel op eigen grond als gemeentegrond) gelden, zijn aangeduid met het symbool: ∞

Hoofdstuk 2. Algemene bepalingen

Artikel 1. Begripsbepalingen ∞

In dit stuk wordt verstaan onder:

  • 1.

    APV: Algemene Plaatselijke Verordening Apeldoorn 2014

  • 2.

    Binnenstad Apeldoorn: het gebied in het centrum van Apeldoorn dat volgens de Centraal Bureau voor de Statistiek (CBS) buurtindeling onder de buurt binnenstad valt.

  • 3.

    Buren: gebruikers (ondernemer) en eigenaren van aangrenzende panden.

  • 4.

    Eilandterras: een los van de gevel gelegen terras, voor of in de directe nabijheid (er is sprake van een directe loop en geen doorkruising van een ander terras) van de openbare inrichting met ten minste 3,5 meter afstand tussen het eilandterras en de gevel.

  • 5.

    Evenement: een elke voor publiek toegankelijke verrichting van vermaak (zie artikel 2:24 van de APV).

  • 6.

    Gevelterras: terras dat direct tegen de buitengevel van de openbare inrichting is geplaatst.

  • 7.

    Openbare inrichting: hieronder wordt verstaan een hotel, restaurant, pension, café, cafetaria, snackbar, discotheek, buurthuis of clubhuis of elke andere voor het publiek toegankelijke, besloten ruimte waarin bedrijfsmatig of in een omvang alsof zij bedrijfsmatig was, logies worden verstrekt of dranken worden geschonken of spijzen voor directe consumptie ter plaatse worden bereid of verstrekt.

  • 8.

    Terras: een buiten het pand van de openbare inrichting liggend deel waar sta- of zitgelegenheid kan worden geboden en waar tegen vergoeding dranken kunnen worden geschonken of spijzen voor directe consumptie ter plaatse kunnen worden bereid of verstrekt.

  • 9.

    Terrasmeubilair: verplaatsbare attributen voor de inrichting van een terras, waaronder:

    • Stoelen, krukken, banken

    • (Sta)tafels

    • Parasols (geen partytenten)

    • Terrasschermen en -schotten

    • Verplaatsbare biertaps/servicestations

    • Uitstallingen: reclameborden, plantenbakken en alle overige objecten die op het terras geplaatst zijn ten dienste van het terras en/of het overige deel van de inrichting.

      • i.

        Vaste/niet verplaatsbare elementen, zoals luifels, zonneschermen en parasols die zijn verankerd in de grond of de gevel vallen niet onder het terrasmeubilair.

  • 10.

    Terrasvergunning: zowel een vergunning voor een gevelterras als voor eilandterras.

  • 11.

    Winterterras: Een terras dat in de periode van november tot en met februari wordt geëxploiteerd en waarvoor een beperktere opstelling geldt ter waarborging van de kwaliteit van de openbare ruimte

  • 12.

    Zomerterras: Een terras dat in de periode van maart tot en met oktober wordt geëxploiteerd en waarvoor een ruimere opstelling is toegestaan binnen de vergunde grenzen.

Hoofdstuk 3. Beleidsregels (bestuursorgaan burgemeester)

Artikel 2. Sluitingstijden ∞

  • 1.

    Op basis van artikel 2:29 van de APV is de burgemeester gemachtigd om voor de terrassen in de gemeente Apeldoorn afwijkende sluitingstijden vast te stellen. De sluitingstijden gelden voor de gehele gemeente, maar voor het uitgaansgebied en openbare inrichtingen met een ontheffing gelden afwijkende sluitingstijden. Voor de terrassen in Apeldoorn gelden de volgende sluitingstijden:

     

    Tabel 1 Sluitingstijden terrassen in de gemeente Apeldoorn

    Sluitingstijden horeca:

    Sluitingstijden terrassen maart tot en met oktober

    Sluitingstijden terrassen november tot en met februari

    Gehele gemeente

    Ma - vr: 01.00 uur – 06:00 uur

    Za - zo: 02.00 uur – 06:00 uur

    00.00 uur* - 06:00 uur

    23.00 uur - 06:00 uur

    Uitgaansgebied Apeldoorn (zie artikel 2, lid 2)

    Ma - vr: 01.00 uur – 06:00 uur

    Za - zo: 02.00 uur – 06:00 uur

    01.00 uur - 06:00 uur

    01:00 uur - 06:00 uur

    Openbare inrichtingen met ontheffing (zie artikel 2, lid 3)

    Ma – zo: 04.00 uur – 06:00 uur

    03.00 uur - 06:00 uur

    03.00 uur - 06:00 uur

    *= op zondagen is de sluitingstijd het hele jaar door 23:00 uur.

  • 2.

    Voor deze nadere- en beleidsregels omvat het uitgaansgebied binnenstad Apeldoorn de locaties zoals die vastgelegd zijn in figuur 1. Dat bestaat uit de volgende deelgebieden:

    • a.

      de driehoek Kapelstraat, Paul Krugerstraat, Van Kinsbergenstraat, Nieuwstraat, Beekpark, Caterplein, Hoofdstraat Noord en Cultuurplein (zie hoofdstuk 6 bijlage kaarten, kaart 1);

    • b.

      het Raadhuisplein en omgeving: Markstraat, Marktplein, Markthof, Deventerstraat KPN hof en Beekstraat (zie hoofdstuk 6 bijlage kaarten, kaart 2);

    • c.

      het Leienplein (zie hoofdstuk 6 bijlage kaarten, kaart 3);

  • 3.

    Voor openbare inrichtingen die een ontheffing hebben (ex art. 2:29 lid 4 van de APV), gelden latere sluitingstijden van de terrassen.

     

    Figuur 1: uitgaansgebied gemeente Apeldoorn

    Zie hoofdstuk 6 bijlage kaarten, kaart 1 tot en met 4 voor een nadere duiding van deze gebieden.

Artikel 3. Terrasvergunningsplicht en verschil tussen terrassen ∞

  • 1.

    Alle terrassen, zoals bedoeld in artikel 1 lid 8, binnen de bebouwde kom van de gemeente zijn vergunningplichtig. Op basis van artikel 2:228A van de APV geldt de vergunningplicht niet voor terrassen buiten de bebouwde kom en para-commerciële terrassen, zoals bij zorginstellingen en sportverenigingen, maar het terras moet daarbij wel als lokaliteit op de alcoholwetvergunning staan.

  • 2.

    Een vergunning is persoonsgebonden en dient per openbare inrichting aangevraagd te worden.

  • 3.

    Er wordt onderscheid gemaakt tussen vergunningen voor terrassen op eigen grond, een gevelterras niet op eigen grond en een eilandterras niet op eigen grond. De vergunning kan voor meerdere type terrassen tegelijk worden aangevraagd (gebundelde aanvraag).

  • 4.

    Een aanvraag voor een terrasvergunning wordt ingediend op een digitaal aanvraagformulier dat via de gemeentelijke website verkrijgbaar is.

  • 5.

    Bij de aanvraag dient, door middel van een plattegrond, inzicht gegeven te worden in de precieze situatie van het terras ten opzichte van de openbare inrichting en de directe omgeving en het aantal aangevraagde vierkante meters.

Artikel 4. Voorbehoud verlening, gedeeltelijk vervallen of herzien terrasvergunning ∞

  • 1.

    De vergunning kan, conform artikel 1:8 en 2:28 van de APV, worden geweigerd.

  • 2.

    De vergunning kan, conform artikel 1:6 van de APV, worden gewijzigd of ingetrokken.

  • 3.

    Een vergunning wordt, conform artikel 2:28B van de APV, verleend onder voorschrift dat het terras, indien noodzakelijk, (tijdelijk) niet mag worden geplaatst dan wel moet worden verwijderd in het geval van werkzaamheden van gemeentewege. In het geval van een herinrichting van de straat, gebiedsontwikkeling of ander gebruik van de openbare ruimte kan de terrasvergunning worden herzien en eventueel (deels) worden ingetrokken. Er zal dan in samenspraak tussen het bevoegd bestuursorgaan en ondernemer worden gekeken naar een mogelijk (tijdelijke) alternatieve locatie voor het terras. Indien er geen geschikte alternatieve locatie beschikbaar is, brengen wij voor de periode waarin het terras feitelijk niet geplaatst kan worden, geen precariobelasting in rekening.

Artikel 5. Aanvraag en duur terrasvergunning gevelterrassen en terrassen op eigen grond ∞

  • 1.

    Vergunningen voor gevelterrassen en terrassen op eigen grond worden verleend voor onbepaalde tijd.

  • 2.

    De aanvragen van een terrasvergunning worden getoetst aan de APV en deze nadere regels.

Artikel 6. Eilandterrasvergunningen

  • 1.

    Er geldt een overgangstermijn voor het vergunningstelsel van eilandterrassen.

  • 2.

    De overgangstermijn bedraagt acht jaar met ingang van de datum van inwerkingtredingsdatum van dit besluit .Deze termijn is gebaseerd op een onderzoek naar de gemaakte kosten en de terugverdientijd (bijlage ‘Onderzoek naar overgang van vergunningen voor onbepaalde naar bepaalde tijd’).

  • 3.

    Gedurende de overgangstermijn is de beschikbare ruimte voor eilandterrassen van de pleinen in de binnenstad vastgelegd in kaarten 5, 6, 7 en 8 in hoofdstuk 6.

  • 4.

    Gedurende de overgangstermijn zoals bedoeld in lid 2 zal het bevoegd bestuursorgaan, in overleg met de ondernemers, de verdeelsystematiek voor eilandterrasvergunningen opstellen, waaronder regels over:

    • a.

      de wijze van bekendmaking en verdeling van de beschikbare ruimte voor eilandterrassen;

    • b.

      de vergunningsduur van een eilandterrasvergunning.

  • 5.

    Na de overgangstermijn, zoals bedoeld in lid 1 en 2, komen alle vigerende vergunningen met betrekking tot een eilandterras te vervallen en worden nieuwe aanvragen behandeld volgens het nieuwe vergunningstelsel, zoals benoemd in lid 4.

  • 6.

    Nieuwe aanvragen voor terrasvergunningen voor eilandterrassen tijdens de overgangsperiode worden getoetst op veiligheid (artikel 8), datum van indiening en beschikbare ruimte, en gelden tot aan de inwerkingtreding van het nieuwe vergunningstelsel, of worden getoetst aan het nieuwe vergunningstelsel (zoals bedoeld in lid 4) indien dat stelsel is vastgesteld en in werking is getreden. Bij faillissement of beëindiging van een horecaonderneming met een eilandterras, kan beschikbaar gekomen eilandterrasruimte tot 1 (één) jaar na faillissement of beëindiging niet ingevuld worden door bestaande horecaondernemingen op het plein. Een nieuwe ondernemer die zich in het vrij gekomen pand vestigt kan wel het eilandterras exploiteren.

  • 7.

    Indien alle horeca ondernemers op een plein in gezamenlijkheid tot een aangepaste verdeling komen voor de beschikbare ruimte voor een eilandterras gedurende de overgangstermijn, dan kunnen de vergunningen, na akkoord van het bevoegde bestuursorgaan, tussentijds gewijzigd worden, waarbij de dan resterende duur van de vergunning in stand blijft.

  • 8.

    Op basis van artikel 2:28, lid 2 van de APV kan er sprake zijn van een zomer- en winterterras. Indien hier sprake van is, kan het zomerterras van maart tot en met oktober staan. Het winterterras kan staan van november tot en met februari. Er dient bij het winterterras wel rekening te worden gehouden met bestaande rechten van andere gebruikers, waardoor er tijdelijk sprake kan zijn van minder terrasruimte.

Artikel 7. Maatwerk

  • 1.

    De burgemeester kan een maatwerkvergunning verlenen voor situaties waarin de beleidsregels niet toereikend zijn of wanneer, omwille van moverende redenen, afwijking van deze beleidsregels gewenst is.

  • 2.

    Voor een maatwerkvergunning is altijd advies nodig van de veiligheidsdiensten, de gemeentelijke afdelingen verkeer, stedenbouw, ontwerp openbare ruimte, wijkbeheer en de Omgevingsdienst.

  • 3.

    In de maatwerkvergunning wordt aangegeven hoe met de adviezen zoals in lid 2 benoemd staat wordt omgegaan en, indien relevant, welke mitigerende maatregelen worden getroffen.

  • 4.

    Een maatwerkvergunning wordt verleend voor de duur van maximaal vijf jaar.

Hoofdstuk 4. Nadere regels (college van burgemeester en wethouders)

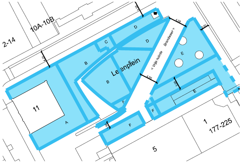
Artikel 8. Veiligheid ∞

  • 1.

    In verband met een veilige en onbelemmerde doorgang van de hulpdiensten moet er te allen tijde een vrije doorgang van minimaal 3,5 meter breed en 4,20 meter hoog zijn op de straten of de pleinen.

  • 2.

    In het geval van een separaat voetpad of stoep moet er voor voetgangers en mindervaliden op het voetpad een vrije ruimte van minimaal 2 meter breed aanwezig zijn.

  • 3.

    De in- en uitgangen en nooduitgangen moeten te allen tijde vrijgehouden worden. Hiervan moet direct gebruik gemaakt kunnen worden door zowel de bezoekers als door de hulpdiensten. De inrichting en het gebruik van het terras is dusdanig dat de vluchtwegen vrijgehouden zijn.

  • 4.

    Brandkranen moeten vrij toegankelijk zijn voor hulpdiensten.

  • 5.

    Als het terras in de binnenstad is gevestigd dan mag het terrasmeubilair niet over de goot worden geplaatst in verband met het gebruik van de goot als geleidelijn door blinden en slechtzienden.

Artikel 9. Afmeting en locatie gevelterrassen

  • 1.

    De breedte van de afmeting van het gevelterras is maximaal gelijk aan de breedte van de gevel van de openbare inrichting.

  • 2.

    Indien de omvang van het terras niet blijkt uit de overgang naar een andere soort of kleur verharding, bestaat de markering van het terras uit roestvaste (RVS) punaises of uit ander gelijkwaardig materiaal, conform materialen van de gemeente Apeldoorn. Het terrasmeubilair bevindt zich altijd binnen de vergunde afmeting. Het plaatsen van terrasmeubilair buiten deze markering is dus niet toegestaan

     

    Figuur 2: afmetingen en locatie gevelterrassen

     

    Stap 1 in het bepalen van de afmetingen van een gevelterras

     

    Stap 2 in het bepalen van de afmetingen van een gevelterras

     

    Stap 3 in het bepalen van de afmetingen van een gevelterras

     

    Stap 4 in het bepalen van de afmetingen van een gevelterras

Artikel 10. Uitgebreide gevelterrassen

  • 1.

    Het is mogelijk om de toegestane breedte van het gevelterras uit te breiden tot maximaal de gehele breedte van de gevel van het buurpand (zie figuur 3 voorbeeld 1 bij pand 4 en 5). Indien vanuit twee kanten geïnteresseerden zijn voor het gevelterras van het buurpand, kunnen beide geïnteresseerden het terras uitbreiden tot maximaal 50 procent van de gevelbreedte van het buurpand (zie figuur 3, voorbeeld 1, pand 5, 6 en 7), tenzij in overleg met de drie partijen over een andere verdeling overeenstemming wordt gevonden. De toestemming van de huidige gebruikers en eigenaren van de buurpanden moet schriftelijk worden vastgelegd. Ook voor de uitgebreide gevelterrassen dient, conform de regels in hoofdstuk 3, een terrasvergunning te worden aangevraagd.

  • 2.

    Een uitgebreid gevelterras zoals in lid 1 is bedoeld, mag ook worden verbreed naar de gevel van de buren van de buren (zie figuur 3 voorbeeld 1 pand 3, 4 en 5), mits een aaneengesloten gevelterras blijft bestaan (zie figuur 3 voorbeeld 2 pand 5 6 en 7 waar dit niet mogelijk is). Voor dit verder uitgebreide gevelterras moet schriftelijke toestemming zijn verleend door de huidige gebruikers en eigenaren van de panden waarvoor het gevelterras wordt geplaatst en dient er, conform de regels in hoofdstuk 3, een terrasvergunning te worden aangevraagd.

     

    Figuur 3 Illustratie gebruik gevelruimte buren

  • 3.

    De vergunninghouder moet te allen tijde schriftelijke toestemming kunnen overleggen van de huidige gebruikers en eigenaren van de panden waarvoor met toepassing van lid 1 en 2 een uitgebreid gevelterras is geplaatst.

  • 4.

    Gebruikers en eigenaren van panden waarvoor met toepassing van lid 1 en 2 een uitgebreid gevelterras is geplaatst hebben het recht om hun eerder verleende schriftelijke goedkeuring voor uitbreiding van het gevelterras, zoals bedoeld in lid 1 en 2, in te trekken.

  • 5.

    In het geval van nieuwe gebruikers in of eigenaren van een van de panden zoals bedoeld in lid 1 en 2, hebben betreffende nieuwe gebruikers of eigenaren de mogelijkheid om de toegestane verruiming buiten de gevelbreedte van de betreffende openbare inrichting in te trekken. Op grond van artikel 1:6 van de APV wordt vervolgens de terrasvergunning gewijzigd.

  • 6.

    Indien het terras wordt uitgebreid langs de gevel van het buurpand(en) dienen de in- en uitgangen en nooduitgangen te allen tijde vrijgehouden te worden, zoals bedoeld in artikel 8 lid 3.

  • 7.

    Het terrasmeubilair dat op een uitgebreid gevelterras zoals bedoeld in lid 1 en 2 wordt geplaatst, moet altijd verplaatsbaar zijn en mag niet verankerd worden.

Artikel 11. Geluid ∞

  • 1.

    Elektronisch versterkte muziek op de terrassen is alleen toestaan indien er voldaan kan worden aan de geldende wettelijke kaders en regelgeving voor geluid, zoals opgenomen in de Omgevingswet en het Omgevingsplan. De ondernemer dient dit door middel van een akoestisch onderzoek aan te tonen dat versterkte muziek op het terras voldoet aan de geluidsregelgeving en dient hiervoor ontheffing aan te vragen.

  • 2.

    Ten alle tijden dient een openbare inrichting zich te houden aan de wettelijke kaders en regelgeving voor geluid, zoals opgenomen in de Omgevingswet en het Omgevingsplan. Bij het niet naleven van de regels is het mogelijk dat er handhavend wordt opgetreden.

Artikel 12. Terrasmeubilair

  • 1.

    De stoelen en tafels die gebruikt worden op het terras dienen een deugdelijke en eenduidige uitstraling te hebben en te passen bij de uitstraling van de omgeving.

  • 2.

    De opslag van meubilair in de openbare ruimte is verboden. Het terrasmeubilair blijft na sluitingstijd op zijn plek staan of wordt binnen in de openbare inrichting opgeslagen. Het opstapelen/opruimen van terrasmeubilair op het terras of tegen de gevel is niet toegestaan. Indien het terras meer dan een week (bijvoorbeeld wegens langdurige sluiting of seizoensstop), niet wordt geëxploiteerd, moet al het terrasmeubilair, zoals benoemd in artikel 1 lid 9, zijn verwijderd door de exploitant van het terras.

  • 3.

    Tijdens sluitingstijden van het terras moeten parasols en andere zonwering worden ingeklapt.

  • 4.

    Voor omgevingsvergunningplichtige elementen (zoals verankerde terrasschermen, terrasdoeken en parasols aan muur of ondergrond) dient een omgevingsvergunning aangevraagd te worden. Deze elementen hoeven niet verwijderd te worden als het terras niet geëxploiteerd wordt, zoals benoemd in lid 2. Artikel 13 lid 1 onder a blijft onverminderd van kracht (terrasschermen dienen demontabel te zijn). Parasols dienen eveneens demontabel te zijn. ∞

  • 5.

    Al het terrasmeubilair dient binnen de afmetingen van het terras geplaatst te worden. Parasols mogen in uitgeklapte toestand dus ook niet de grenzen van het terras overschrijden. Hierbij is het parasoldoek en niet de voet van de parasol doorslaggevend (zie figuur 4).

  • 6.

    Partytenten en vergelijkbare objecten zijn niet toegestaan op een terras.

  • 7.

    Scheerlijnen die nodig zijn voor terrasdoeken dienen ten allertijden goed zichtbaar te zijn en vast gemaakt te worden aan stormankers.

  • 8.

    Het terrasmeubilair dient op aanwijzing van het college verwijderd te worden voor een evenement. Data van evenementen worden door de gemeente zo spoedig als mogelijk, doch uiterlijk twee weken van tevoren, schriftelijk kenbaar gemaakt aan betreffende vergunninghouders.

     

    Figuur 4 Illustratie terraselementen binnen grens terras

Artikel 13. Terrasschermen

  • 1.

    De volgende eisen worden gesteld aan terrasschermen:

    • a.

      Terrasschermen aan een gevel dienen demontabel te zijn, zodanig dat deze binnen een halve dag opgeruimd kunnen worden.

    • b.

      Vrijstaande terrasschermen en afschotten dienen altijd direct te verplaatsen en te verwijderen te zijn.

    • c.

      Terrasschermen moeten vanaf de grond transparant zijn.

    • d.

      Terrasschermen mogen maximaal 2,0 meter hoog zijn.

    • e.

      In afwijking van lid a tot en met d mogen terrasafscheidingen aan de zijkant van gevelterrassen ook bestaan uit afscheidingen die bestaan uit vast groen (hagen en dergelijke). Dit is alleen toegestaan indien de situatie ter plaatse hier geschikt voor is. Daarbij is positief advies van ten minste de gemeentelijke afdelingen ontwerp openbare ruimte en wijkbeheer en de veiligheidsdiensten nodig. Het beheer van het groen wordt gedaan door de ondernemer.

    • f.

      Dranghekken en soortgelijke hekken en afscheidings(bouw)materialen, zijn niet toegestaan als terrasafscheiding.

    • g.

      Bij gevelterrassen zijn terrasafscheidingen alleen toegestaan aan de zijkant van het terras. De voorkant van het terras moet open zijn, dit om te voorkomen dat er bouwwerken ontstaan. Dit betekent dat het ook niet afgezet mag worden met andere elementen, zoals bijvoorbeeld bloembakken of linten. In bijzondere gevallen kan een terrasafscheiding aan de voorkant van een gevelterras toegestaan worden, bijvoorbeeld in het geval van windhinder (vanaf windniveau C), specifieke ligging van het terras ten opzichte van openbare inrichting of veiligheidsoverwegingen.In de Hoofdstraat (tussen Caterplein en Paul Krugerstraat) en in de Kapelstraat, zijn vanuit veiligheidsoogpunt, wél terrasafscheidingen van maximaal 1,5 meter hoog aan de voorkant toegestaan.

    • h.

      Op en rondom eilandterrassen zijn terrasschermen niet toegestaan. Plantenbakken zijn wel toegestaan mits;

      • i.

        De bakken niet hoger dan 80 cm zijn;

      • ii.

        De bakken niet langer zijn dan 2 meter;

      • iii.

        Er minimaal 1 meter ruimte tussen de bakken zit;

      • iv.

        De beplanting (inclusief bakken) maximaal 1,20 meter hoog is;

      • v.

        Er sprake is van natuurlijke beplanting.

  • 2.

    Ten aanzien van de regels benoemd in artikel 13 lid 1 a tot en met d geldt voor bestaande terrasvergunningen een overgangstermijn van vijf jaar. Dit geeft ondernemers de mogelijkheid om de investeringen die ze hebben gedaan in de terrasschermen terug te verdienen. Aanvragen voor nieuwe terrassen met terrasschermen worden getoetst aan deze nadere regels.

Artikel 14. Terrasverwarming ∞

  • 1.

    We stimuleren duurzame vormen van terrasverwarming. Het doel is terrasverwarming op fossiele brandstoffen af te bouwen. Voor bestaande terrassen gaat een overgangstermijn van vijf jaar gelden, voordat er een verbod op terrasverwarming op fossiele brandstoffen inwerking treedt. Bij nieuwe vergunningaanvragen voor terrassen is het per direct verboden om terrasverwarming op fossiele brandstoffen te gebruiken.

Hoofdstuk 5. Slotbepalingen

Artikel 15. Leges en precario ∞

  • 1.

    Voor de afhandeling van de aanvraag is leges verschuldigd. Dit wordt verder bepaald in de legesverordening van de gemeente Apeldoorn.

  • 2.

    Een precariobelasting dient te worden betaald als het terras op gemeentegrond wordt geplaatst. In het geval het terras op particuliere grond wordt geplaatst is de ondernemer geen precariobelasting verschuldigd. Vanwege de afhandeling van de vergunningaanvraag is dan wel leges verschuldigd.

Artikel 16. Citeertitel en inwerkingtreding ∞

  • 1.

    Deze regels treden in werking met ingang van de dag na bekendmaking en vervangen de “Nadere regels gebruik terrassen gemeente Apeldoorn 2019”.

  • 2.

    Deze regels worden aangehaald als “Nadere en beleidsregels terrassen gemeente Apeldoorn 2025”.

Aldus besloten door de burgemeester van Apeldoorn op 18 juli 2025.

de burgemeester

Aldus besloten door het college van burgemeester en wethouders op 18 juli 2025.

Het college voornoemd,

De secretaris,

de burgemeester,

Hoofdstuk 6. Bijlage kaarten

 

Kaart 1 Uitgaansgebied deel 1: de driehoek Kapelstraat, Paul Krugerstraat, Van Kinsbergenstraat, Nieuwstraat, Beekpark, Caterplein, Hoofdstraat Noord en Cultuurplein

 

 

Kaart 2 Uitgaansgebied deel 2: Raadhuisplein

 

 

Kaart 3 Uitgaansgebied deel 3: Leienplein

 

 

Kaart 4 Gebiedsafbakening Caterplein e.o.

 

 

Kaart 5 Ruimte voor eilandterrassen gedurende overgangsperiode Raadhuisplein (zomerterras)

 

 

Kaart 6 Ruimte voor eilandterrassen gedurende overgangsperiode Raadhuisplein (winterterras)

 

 

Kaart 7 Ruimte voor eilandterrassen gedurende overgangsperiode Leienplein.

 

 

Kaart 8 Ruimte voor eilandterrassen gedurende overgangsperiode Caterplein

 

Het gaat in dit geval om het eilandterras in het midden van de kaart

 

 

Hoofdstuk 7. Bijlage toelichting

H. 2. Algemene bepalingen

 

Artikel 1. Begripsbepalingen

Onder lid 9 is het begrip terrasmeubilair gedefinieerd met voorbeelden van attributen die bij de inrichting van een terras horen. Terrasmeubilair bestaat altijd uit verplaatsbare attributen. Vaste elementen, zoals luifels en zonneschermen die zijn verankerd in de grond of aan de gevel, zijn omgevingsvergunningsplichtige elementen en hierdoor niet behorende tot het terrasmeubilair. Partytenten en vergelijkbare objecten zijn vanuit een ordelijk straatbeeld niet toegestaan.

 

H. 3 Burgemeesters bevoegdheden (beleidsregels)

 

Artikel 2. Sluitingstijden

De sluitingstijden voor terrassen zijn gedifferentieerd naar gebied. De sluitingstijden gelden voor de gehele gemeente, maar er zijn afwijkende sluitingstijden voor het uitgaansgebied in de binnenstad (zie hoofdstuk 6 bijlage kaarten, kaart 1 tot en met 3) en de openbare inrichtingen die een ontheffing op de sluitingstijden hebben op en rond het Caterplein (als onderdeel van het uitgaansgebied, zie kaart 4 uit hoofdstuk 6 bijlage kaarten).

 

Apeldoorn wil ruime openingstijden geven aan de terrassen. De ondernemers kunnen dan in belangrijke mate zelf bepalen, mede op basis van het weer, tot hoe laat het terras open blijft. Omdat terrassen vooral in de warmere maanden worden gebruikt, worden voor de maanden maart tot en met oktober latere sluitingstijden toegestaan dan in de maanden november tot en met februari. Voor het uitgaansgebied in de binnenstad gelden andere, ruimere tijden, omdat zij een stedelijke functie hebben.

 

In dit stuk wordt niet een apart categorie gehanteerd voor het cameratoezichtgebied dat in de binnenstad van Apeldoorn bestaat. Het cameratoezichtgebied bestaat (zie https://www.apeldoorn.nl/veiligheid) uit het Caterplein, Hoofdstraat, Nieuwstraat, Beekpark, Kapelstraat, Van Kinsbergenstraat en de Stationstunnel. Dit gebied komt niet overeen met die in deze regels beoogde gebieden. Zo valt bijvoorbeeld het Leienplein buiten het cameratoezichtgebied. Op de Stationstunnel na, vallen de overige gebieden van het cameratoezichtgebieden binnen de grenzen van het uitgaansgebied zoals dat in dit stuk is afgebakend.

 

Het uitgaansgebied in de binnenstad (zie hoofdstuk 6 bijlage kaarten, kaart 1 tot en met 3) heeft een latere sluitingstijd dan de rest van de gemeente. Het Caterplein heeft een uniek karakter binnen het uitgaansgebied. Horeca in dit ‘stap’-cluster is doorgaans later geopend dan de rest van het uitgaansgebied. Voor openbare inrichtingen die een ontheffing (ex art. 2:29 lid 3 van de APV) hebben om tot 04.00 uur open te zijn, wordt het derhalve mogelijk gemaakt het terras tot 03.00 uur geopend te houden.

 

In het Veldhuisgebied wordt gewerkt aan het realiseren van het Lerende District. In dit gebied ontstaat een combinatie van onderwijs, werken, wonen en dienstverlening. Voor de levendigheid zal deze locatie op termijn ook onder de openingstijden van het ‘uitgaansgebied’ kunnen vallen. Om dit te realiseren, zullen deze nadere en beleidsregels voor deze locatie te zijner tijd aangepast dienen te worden.

 

Artikel 3. Terrasvergunningsplicht en verschil tussen terrassen

De vergunningsplicht geldt niet voor terrassen bij zorginstellingen, sportverenigingen en terrassen bij horecaondernemingen die gelegen zijn buiten de bebouwde kom, als bedoeld in artikel 1:1 van de APV. Een belangrijke reden voor het instellen van een vergunningstelsel is gelegen in het feit dat een ongehinderde doorgang van hulpdiensten gewaarborgd dient te zijn en dat veiligheid en openbare orde gewaarborgd dient te zijn. Door de ruimte bij genoemde soorten horecaondernemingen is daar, ook zonder vergunningstelsel, voldoende sprake van.

 

De vergunningsduur verschilt per type terras: gevelterrassen niet op eigen grond en terrassen op eigen grond (artikel 5 lid 1) en eilandterrassen niet op eigen grond (artikel 6). Voor elk soort terras is een aparte vergunning nodig, die wel gebundeld aangevraagd kan worden.

 

Artikel 4. Voorbehoud verlening, gedeeltelijk vervallen of herzien terrasvergunning

In bepaalde situaties is het noodzakelijk om een terras, al dan niet tijdelijk, geheel of gedeeltelijk te verplaatsen dan wel te verwijderen (zoals werkzaamheden). Ook in het geval van herinrichting van de openbare ruimte worden terrasvergunningen opnieuw bekeken. Indien er geen geschikt alternatief gevonden wordt, zal er ook geen precario betaald hoeven te worden. Dit om ondernemers niet onnodig te belasten in situaties waarin het gebruik van de vergunde locatie niet mogelijk is en er geen vervangende plek beschikbaar is. We sluiten hierbij aan op de bestaande situatie.

 

Artikel 5. Aanvraag en duur terrasvergunning gevelterrassen en terrassen op eigen grond

Vergunningen voor gevelterrassen en terrassen op eigen grond worden voor onbepaalde tijd verleend, enerzijds omdat er zich zelden wijzigingen in de feitelijke situatie voordoen en anderzijds omdat de alcohol- en alcoholvrijevergunning ook een onbepaalde duur kent. Er dient een nieuwe vergunning aangevraagd te worden indien een nieuwe alcoholvergunning aangevraagd moet worden of als er veranderingen zijn met betrekking tot het terras. Dit kan bijvoorbeeld zijn als er sprake is van een wijziging in de exploitatie of het beheer van de openbare inrichting of een wijziging in de afmetingen en/of situering van het terras. Een belangrijke reden voor de vergunningplicht van terrassen is dat de ongehinderde doorgang van hulpdiensten, de veiligheid en de openbare orde gewaarborgd dienen te zijn. Hiervoor zijn bij de aanvraag van een terrasvergunning ook gedetailleerde tekeningen benodigd, met situering en afmeting van het terras.

 

Artikel 6. Eilandterrasvergunningen

Terrasvergunningen voor eilandterrassen vallen conform de Europese Dienstenrichtlijn onder schaarse vergunningen. Het is een schaarse vergunning omdat meerdere partijen in aanmerking kunnen komen voor het gebruik van de terrasruimte die qua fysieke ruimte beperkt is. Schaarse vergunningen mogen niet voor onbepaalde tijd verleend worden, aangezien nieuwe toetreders kans moeten kunnen maken op deze vergunning. Voor het omzetten van deze vergunningen naar bepaalde tijd en het ingaan van de nieuwe regels voor het verdelen van eilandterrassen dient een redelijke overgangsperiode in acht genomen te worden, zodat ondernemers een redelijke termijn hebben om zich aan te passen.

 

Daarbij gaat het niet alleen om de gelden die geïnvesteerd zijn in de terrassen, maar in de gehele openbare lokaliteit. Het terras is immers verantwoordelijk voor een behoorlijk deel van de exploitatie. Gezien de recente grote investeringen in de horeca in Apeldoorn is er gekozen om deze gedurende acht jaar terug te kunnen verdienen door de ondernemer. Deze termijn is gebaseerd op een onderzoek naar de gemaakte kosten en de terugverdientijd daarvan (zie bijlage ‘Onderzoek naar overgang van vergunningen voor onbepaalde naar bepaalde tijd’),

 

Het bevoegde bestuursorgaan zal, samen met de ondernemers, binnen deze acht jaar de nieuwe regels voor eilandterrassen vaststellen. In de bijlage ‘Onderzoek naar overgang van vergunningen voor onbepaalde naar bepaalde tijd’ is een aanzet gedaan voor enkele mogelijkheden.

 

Bij faillissement of beëindiging van een horecaonderneming met een eilandterras, kan beschikbaar gekomen terrasruimte tot 1 jaar na faillissement of beëindiging niet ingevuld worden door andere horecaondernemingen op het plein. De reden daarachter is dat er ruimte moet zijn om een nieuwe exploitant te vinden voor eventuele opvolging. Als de terrasruimte direct verdeeld is onder andere horecaondernemingen, dan heeft dit veel effect op de verkoopbaarheid.

 

Bij de vergunningverlening kan er een onderscheid worden gemaakt tussen een zomer- en een winterterras. Dit onderscheid is bijvoorbeeld aanwezig op het Raadhuisplein, een centraal plein in de binnenstad met een sterke economische waarde. In het zomerseizoen van maart tot en met oktober is een ruimer terras toegestaan. In de winterperiode van november tot en met februari zijn de terrassen kleiner van omvang. Er dient bij het winterterras wel rekening te worden gehouden met bestaande rechten van andere gebruikers (zoals bijvoorbeeld de oliebollenkraam op het Raadhuisplein met een permanente vergunning voor een aantal maanden), waardoor er tijdelijk sprake kan zijn van minder terrasruimte.

 

Artikel 7. Maatwerk

Er kunnen zich situaties voordoen waarin de beleidsregels niet voorzien of toereikend zijn, of een ongewenste situatie creëren vanwege specifieke lokale omstandigheden. Voor dit soort gevallen is het mogelijk een maatwerkvergunning te verlenen. Een brede afweging dient te worden gemaakt voor dergelijk maatwerk. Daarom is altijd een positief advies nodig van de veiligheidsdiensten, de gemeentelijke afdelingen verkeer, stedenbouw, ontwerp openbare ruimte en wijkbeheer en de Omgevingsdienst. In de maatwerkvergunning wordt vervolgens aangegeven hoe met de adviezen is omgegaan en, indien nodig, welke mitigerende maatregelen worden getroffen. Maatwerk is alleen door de burgemeester toe te passen en niet op aanvraag van ondernemers, bijvoorbeeld nadat een eerdere vergunning is geweigerd. Het betreft een uitzonderlijke bevoegdheid, die de burgemeester zorgvuldig moet afwegen (zie artikel 7, lid 2). Dit voorkomt dat de bevoegdheid willekeurig wordt ingezet.

 

Omdat sprake is van een afwijkende situatie, wordt een maatwerkvergunning verleend voor de duur van maximaal vijf jaar. Dit waarborgt dat in ieder geval elke vijf jaar de maatwerkvergunning opnieuw wordt beoordeeld. Een kortere termijn is uiteraard ook mogelijk, maar er zal dan gemotiveerd moeten worden waarom de termijn korter is

 

H. 4 Collegebevoegdheden

 

Artikel 8. Veiligheid

De onbelemmerde doorgang van hulpdiensten is nodig om alle locaties in de gemeente veilig kunnen bereiken met een brandweervoertuig en andere noodhulpvoertuigen. De benodigde ruimte is voor brandweervoertuigen het grootst, waardoor deze minimale eisen zoals opgesteld door de brandweer als norm worden genomen (waaronder ‘Handreiking bluswatervoorziening en bereikbaarheid’ van Brandweer Nederland en het door de VNOG voor de binnenstad van Apeldoorn opgestelde ‘Brandweerroutes en opstelruimte binnenstad Versie 1’). Indien deze vrije ruimte in het geding komt, kan het bevoegd gezag besluiten de vergunning niet te verlenen of de aanvraag gedeeltelijk af te wijzen, of in overleg met de indiener de aanvraag wijzigen.

 

Indien het terras wordt geplaatst op de openbare weg of de stoep, moet er altijd voldoende ruimte overblijven zodat voetgangers, rolstoelgebruikers, fietsers en gemotoriseerd verkeer elkaar veilig kunnen passeren. Twee passerende rolstoelgebruikers hebben minimaal 1,80 meter nodig, een kleine extra marge is nodig om bijvoorbeeld niet tegen de muur aan te schuren. Daarom is een minimale ongehinderde doorgang van 2 meter op het separate voetpad gewenst, conform de actuele voorschriften uit de ‘Aanbevelingen voor Verkeersvoorzieningen Binnen de Bebouwde Kom’ ASVV 2021 (artikel 14.1.1). Indien het terras op de stoep wordt geplaatst, wordt de vrije doorgang voor voetgangers gemeten vanaf de stoeprand tot het begin van het terras. Dit om te voorkomen dat voetgangers zich op de rijbaan moeten begeven bij gebrek aan ruimte. Indien geen stoep aanwezig is, dan is bovenstaande norm van 3,5 meter vrije doorgang van toepassing. Dit wordt gemeten vanaf de rand van het terras tot het eerstvolgende obstakel dat een vrije doorgang belemmert.

 

Het terrasmeubilair mag in de binnenstad niet over de goot worden geplaatst. Blinden en slechtzienden maken vaak gebruik van de goot als geleidelijn.

 

Artikel 9. Afmeting en locatie gevelterrassen

Voor de breedte van een gevelterras geldt de maximale gevelbreedte van de openbare inrichting. De afmetingen van het terras zijn zichtbaar door onderscheid in de verharding (soort/kleur) of dient door middel van punaises in de ondergrond gemarkeerd te worden, zodat toezicht en handhaving praktisch in één oogopslag kan gebeuren.

 

Artikel 10. Uitgebreide gevelterrassen

Een openbare inrichting mag het gevelterras uitbreiden tot maximaal de gehele gevelbreedte van de gevel van de buren aan beide zijden, mits er toestemming is van de buren. Indien er vanuit twee zijden interesse is voor een terras voor de gevel van de buren, dan mogen beide openbare inrichtingen het terras uitbreiden tot maximaal 50 procent van de gevelbreedte van de buren, tenzij in overeenstemming met alle partijen tot een andere verdeling besloten wordt. Dit wordt ook vastgelegd in de vergunning. De schriftelijke toestemming van de buren kan altijd weer worden ingetrokken.

 

Artikel 11. Geluid

In artikel 4:6 lid 1 van de APV is opgenomen dat het verboden is om buiten een inrichting op zodanige wijze toestellen of geluidsapparaten in werking te hebben of handelingen te verrichten waardoor voor een omwonende of voor de omgeving geluidhinder wordt veroorzaakt.

 

Daarnaast staat in het Besluit kwaliteit leefomgeving (BKL) opgenomen dat stemgeluid geen onderdeel meer is van de toetsing van het geluidsniveau. Als dat echter vermengd wordt met versterkte (achtergrond)muziek, dan moet het wel meegenomen worden. We staan daarom slechts achtergrondmuziek toe, indien de ondernemer aan kan tonen dat voldaan wordt aan de geldende wet- en regelgeving omtrent geluid. De ondernemers dient dit, door middel van een akoestisch onderzoek, aan te tonen en hier een ontheffing voor aan te vragen.

 

Ten alle tijden dient een openbare inrichting zich te houden aan de wettelijke kaders en regelgeving voor geluid, zoals opgenomen in de Omgevingswet en in het Omgevingsplan (middels de Bruidsschat). Indien de situatie er toe aanleiding geeft, kan een geluidsoverschrijding in een uiterste situatie zelfs er toe leiden dat er handhavend moet worden opgetreden.

 

Artikel 12. Terrasmeubilair

De vergunninghouder heeft net als de gemeente belang bij een verzorgde uitstraling van het terras. De vergunninghouder is verantwoordelijk voor de uitstraling en het onderhoud van het terras. De vergunninghouder bepaalt zelf het soort meubilair, maar dit dient eenduidig en deugdelijk te zijn en bij de aard en uitstraling van de openbare inrichting te passen. Op deze manier kunnen ondernemers, al dan niet in gezamenlijkheid met andere horecaondernemers in de buurt, zich onderscheiden van overige openbare inrichtingen met een eigen identiteit en sfeer. Voor de opslag van terrasmeubilair gelden specifieke regels, zodat de uitstraling en kwaliteit van de openbare ruimte gewaarborgd blijft. Voor verankerde elementen op het terras dient een omgevingsvergunning aangevraagd te worden.

 

Op aanwijzing van het college dient het terras verwijderd worden in verband met evenementen. In het kader van crowd management en het vrijhouden van de openbare ruimte voor de doorstroom kan het college dit opleggen. Uit diverse veiligheidsrapportages komt het verwijderen van het terras naar voren als een noodzakelijke maatregel om de veiligheid bij evenementen te garanderen. Data van evenementen worden door de gemeente zo spoedig als mogelijk, doch uiterlijk twee weken van tevoren, schriftelijk kenbaar gemaakt aan betreffende vergunninghouders

 

Artikel 13. Terrasschermen

Omwille van de vergroeningsambities die de gemeente Apeldoorn heeft voor de binnenstad, kunnen ook vaste groene afscheidingen worden toegestaan, mits dit is afgestemd met de betrokken gemeentelijke diensten.

 

De gemeente Apeldoorn streeft in het ‘Beleidskader voor Natuur Inclusief- en Klimaat Adaptief ontwikkelen en bouwen’ (NIKA) op het vlak van windhinder bij verblijfsplekken kwaliteitsklasse A (conform NEN 8100:2006) na. Dit houdt in dat het aantal uren per jaar waarop een hardere windsnelheid van 5 m/s (windkracht 3 Beaufort) wordt overschreven kleiner is dan 2,5%. Vanaf kwaliteitsklasse C is sprake van een slechte situatie. Vanaf die kwaliteitsklasse wordt een uitzondering gemaakt voor het plaatsen van terrasschermen aan de voorzijde, om zo de verblijfskwaliteit te verbeteren. Ook bij een specifieke ligging van het terras ten opzichte van de openbare inrichting kan er gekozen worden om een andere zijde dan de voorkant open te laten,.

 

In de gebieden Hoofdstraat Noord (tussen het Caterplein en de Paul Krugerstraat) en de Kapelstraat zijn terrasschermen aan de voorkant wel mogelijk. Dit op advies van de politie om de drukte die er kan zijn op de uitgaansavonden beheersbaar te houden. Het gaat hier om terrasafschermingen van maximaal 1,5 meter hoog, niet zijnde dranghekken of soortgelijke hekken of bouwmaterialen.

 

Rondom de eilandterrassen zijn terrasschermen niet toegestaan, maar plantenbakken wel. Om er voor te zorgen dat er een open karakter blijft op de pleinen, zijn er regels aan de plantenbakken opgenomen.

 

Artikel 14. Terrasverwarming

De gemeente Apeldoorn streeft naar een duurzamere wereld waarin het gebruik van fossiele brandstoffen wordt beperkt. Het doel is terrasverwarming op fossiele brandstoffen binnen vijf jaar af te bouwen. De gemeente Apeldoorn vindt het wenselijk dat wordt overgestapt op andere vormen van terrasverwarming, bijvoorbeeld middels elektrisch verwarmde (zit)kussens en dekens. We voeren daarom voor bestaande terrassen een overgangstermijn in van vijf jaar na vaststelling van dit document voor terrasverwarming op fossiele brandstoffen. Bij nieuwe vergunningaanvragen voor terrassen geldt direct een verbod voor terrasverwarming op fossiele brandstof. We gaan, in overleg met de horeca, bekijken wat juridisch nodig is om dit in te voeren.

 

H. 5. Slotbepalingen

 

Artikel 15. Leges en precario

Voor de afhandeling van terrasvergunningaanvragen zijn leges verschuldigd. Voor terrassen die op gemeentegrond worden geplaatst is tevens precariobelasting verschuldigd. De hoogte van de precariobelasting wordt bepaald door het aantal vierkante meters. Hoe meer vierkante meters, hoe hoger de precariobelasting.

 

Artikel 16. Citeertitel en inwerkintreding

De citeertitel geeft aan onder welke benaming deze nadere regels kunnen worden aangehaald. Het vermelde jaartal geeft het jaar van vaststelling aan, niet de geldigheidsduur. Deze is in beginsel onbeperkt vanaf de datum van inwerkingtreding.

 

Verleende terrasvergunningen blijven geldig, zover het geen eilandterrassen betreft. Voor de gewijzigde regels ten aanzien van terrasschermen geldt een overgangsperiode van vijf jaar, zodat bestaande ondernemers de tijd hebben om, waar nodig, aanpassingen door te voeren om aan aanvullende voorwaarden te kunnen voldoen. Aanvragen voor nieuwe terrassen worden getoetst aan deze nadere regels.

Naar boven