Aanwijzingsbesluit deelautoplaatsen Gouda 2025

Het college van burgemeester en wethouders van Gouda;

 

Gelezen het voorstel van 15 juli 2025,

 

Overwegend dat:

  • -

    de huidige bezetting van circa 28 (is boven het landelijke gemiddelde) aanleiding geeft om het aanbod van deelauto’s te vergroten;

  • -

    de effectiviteit van een deelauto-concept neemt toe als de beschikbaarheid en het gemakt voor de gebruikers geoptimaliseerd is;

  • -

    autodelen draagt bij aan het beperken van door het privé-autoverkeer veroorzaakte overlast en de nadelige gevolgen hiervan voor het milieu en stedelijke omgeving;

  • -

    autodelen kan het autobezit terug dringen en maakt automobiliteit mogelijk voor hen die zich geen eigen auto kunnen of willen permitteren;

  • -

    gemeente Gouda in het verkeerscirculatieplan, Beleidskader deelvervoer en in het wijkmobiliteitsplan Binnenstad heeft aangegeven het systeem van deelauto’s te ondersteunen;

Gelet op:

 

  • -

    gelet op artikel 160 van de Gemeentewet, en de artikelen 3 lid 1b en 20 van de Parkeerverordening Gouda 2024;

besluit:

Artikel 1 besluit

Aan te wijzen de locaties waar uitsluitend vergunninghouders met een deelauto-parkeervergunning, zoals bedoeld in artikel 20 van de Parkeerverordening Gouda 2024, mogen parkeren.

Artikel 2 werkingstijden

Op parkeerplaatsen aangeduid met bord E9 met de onderborden “deelauto” of “deelauto’s”, gelden de volgende tijden:

 

Maandag t/m zondag 00:00 – 23:59

Artikel 3 locaties “deelauto”

Parkeerplaatsen aangeduid met bord E9 en onderbord(en) “deelauto” of “deelauto’s” mogen uitsluitend gebruikt worden door voertuigen van de vergunninghouder. De aangewezen deelautovakken binnen de gemeente Gouda zullen worden aangegeven met straatverf die voldoet aan de landelijke richtlijn.

 

Op de bijlage bij dit besluit zijn de locaties van de parkeerplaatsen aangegeven. Deze zijn als volgt:

  • 1.

    Vogelplein 12

  • 2.

    Raam 2

  • 3.

    Nieuwe veerstal 1

  • 4.

    De La Reylaan 35

  • 5.

    Schouwburgplein

  • 6.

    Vossenburchkade (oost)

  • 7.

    Vossenburchkade (West)

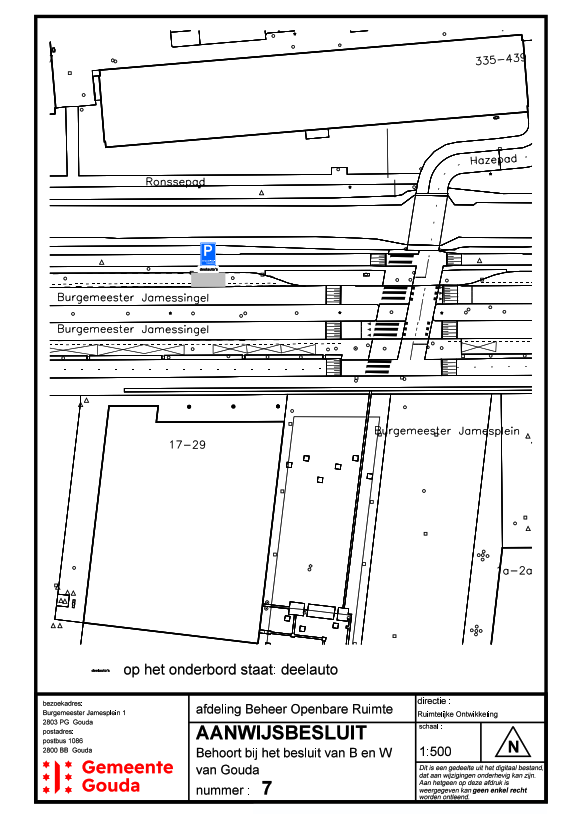
  • 8.

    Burgemeester Jamessingel 25

  • 9.

    Buchestraat 14

  • 10.

    Wilhelmina van Pruisenlaan 172

  • 11.

    Graaf Florisweg 131

  • 12.

    Willem Barentszlaan

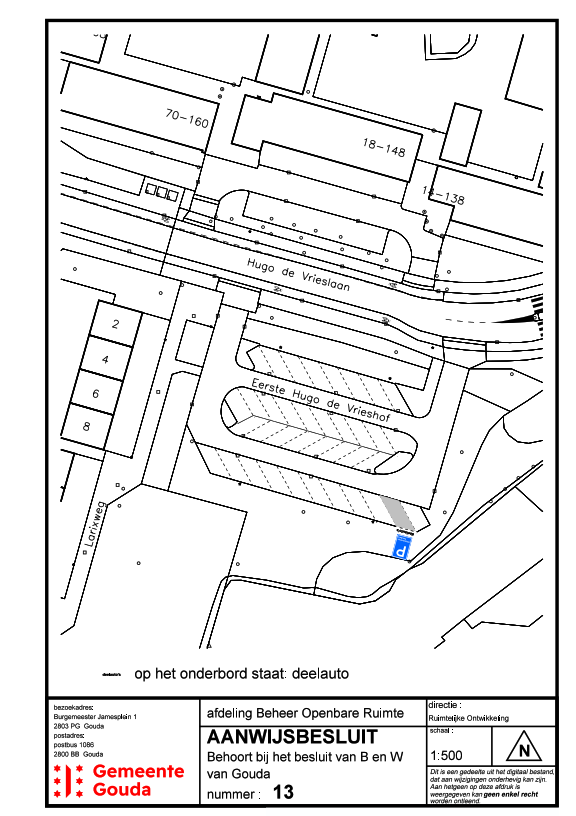
  • 13.

    Eerste Hugo de Vrieshof

  • 14.

    Windhoek 12

  • 15.

    Hemeenskerkstraat 18

  • 16.

    Groen van Prinstersingel 40

  • 17.

    Sluismeesterslag 1

  • 18.

    Stationsplein

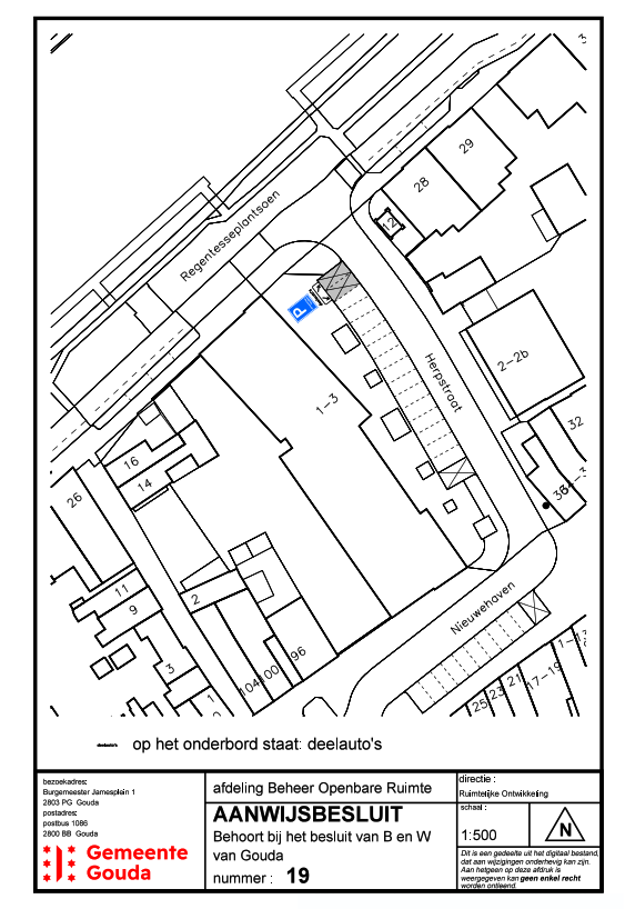
  • 19.

    Herpstraat

  • 20.

    Koepoort (uitbreiding)

  • 21.

    Raam 88

  • 22.

    Raam/Bogen

  • 23.

    Jacob van Lennepkade 2

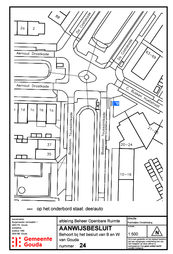
  • 24.

    Bosboom Toussaintkade 22

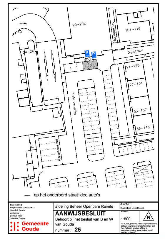
  • 25.

    Klein Amerika (uitbreiding)

  • 26.

    Willensplein (station Goverwelle)

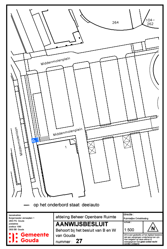
  • 27.

    Middenmolenplein

  • 28.

    Van Hogendorpplein 2

  • 29.

    Tiende Heesterhof 5

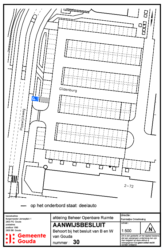
  • 30.

    Gildenbrug 136

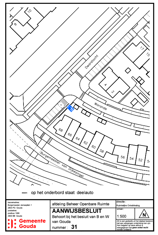
  • 31.

    Dwarstocht

  • 32.

    Nicolien Brouwerlaan

  • 33.

    Erasmusplein 2

  • 34.

    Herenstraat 97

  • 35.

    Da Costakade 63

  • 36.

    Schouwburgplein (oost)

  • 37.

    Houtmansgracht 5

  • 38.

    Albert Plesmanplein 19

  • 39.

    Jahon Den Haenstraat 61

  • 40.

    Dreef (ter hoogte van Bleulandpad)

  • 41.

    Bosranklaan 39

Artikel 4  

Bij inwerkingtreding van dit besluit vervallen alle eerdere besluiten waarbij locaties waarop uitsluitend vergunninghouders met een parkeervergunning “deelauto” mogen parkeren, met dien verstande dat zij van toepassing blijven op de belastbare en strafbare feiten die zich tijdens hun werkingsperiode hebben voorgedaan;

Artikel 5 inwerkingtreding

Dit besluit treedt in werking op de eerste dag na bekendmaking.

Aldus besloten in de vergadering van 15 juli 2025.

Burgemeester en wethouders van Gouda,

de secretaris,

drs R.C. Bakker

de burgemeester,

mr drs P. Verhoeve

Bijlage 1 Locaties van de parkeerplaatsen

 

Naar boven