Gemeenteblad van Zoetermeer
| Datum publicatie | Organisatie | Jaargang en nummer | Rubriek | Datum ondertekening |
|---|---|---|---|---|
| Zoetermeer | Gemeenteblad 2025, 324729 | ruimtelijk plan of omgevingsdocument |
Zoals vergunningen, bouwplannen en lokale regelgeving.
Adressen en contactpersonen van overheidsorganisaties.
U bent hier:
| Datum publicatie | Organisatie | Jaargang en nummer | Rubriek | Datum ondertekening |
|---|---|---|---|---|
| Zoetermeer | Gemeenteblad 2025, 324729 | ruimtelijk plan of omgevingsdocument |
Het college van burgemeester en wethouders van de gemeente Zoetermeer gelezen het voorstel van burgemeester en wethouders d.d. 15 juli 2025, nr. 2025-079686;
Gelet op:
artikelen 3.4, 5.8 Omgevingswet en 4:81 Algemene wet bestuursrecht;
de binnengekomen zienswijzen en de beantwoording daarvan;
dat de beleidsregels in hoofdstuk 4 en hoofdstuk 5 gaan over de bevoegdheid tot het verlenen van bopa’s zoals bedoeld in artikel 5.8 Omgevingswet;
dat de beleidsregel in hoofdstuk 5, voor zover die gaat over het uiterlijk van bouwwerken, zoals bedoeld in artikel 4.19 Omgevingswet, door de gemeenteraad op 14 juli 2025 is vastgesteld;
Besluit;
Het 'Omgevingsprogramma gemeente Zoetermeer Gebied Entree' en de beleidsregels opgenomen in hoofdstuk 4 'Ontwikkeling van Entree tot levendige stadswijk' en hoofdstuk 5 'Beeldkwaliteitsplan' en Bijlage III Beeldkwaliteitsplan, zoals opgenomen in bijlage A vast te stellen;
Het 'Omgevingsprogramma gemeente Zoetermeer Gebied Entree' en de beleidsregels als bedoeld in artikel 1 treden in werking op de dag na bekendmaking van het vaststellingsbesluit. Aldus besloten door het college van burgemeester en wethouders van de gemeente Zoetermeer d.d. 15 juli 2025.
Het Entreegebied wordt de rode loper naar het hart van Zoetermeer! Met trots presenteren we het Omgevingsprogramma Entree, waarin we onze gezamenlijke visie op de toekomst van dit unieke gebied vastleggen. Dit programma bundelt alle belangrijke plannen, zoals de ontwikkelvisie en het beeldkwaliteitsplan, en vormt daarmee de basis voor een sterke, samenhangende herontwikkeling. In dit Omgevingsprogramma brengen we niet alleen onze ambities in kaart, maar leggen we ook de spelregels vast om deze ambities waar te maken. Het biedt een helder kader voor de ruimtelijke, sociale en economische vernieuwingen die we nastreven. Door de koppeling tussen beleid en uitvoering wordt het een praktisch en bruikbaar document voor iedereen die betrokken is bij de ontwikkeling van Entree: van beleidsmakers en ontwikkelaars tot bewoners en ondernemers.
Met deze aanpak zorgen we voor een evenwichtige en toekomstbestendige ontwikkeling. Denk aan hoogwaardige architectuur, een levendig gebied en een dynamische mix van wonen, werken en verblijven. Dit programma biedt de handvatten om het gebied niet alleen te laten voldoen aan onze verwachtingen, maar deze zelfs te overtreffen.
Ik nodig u van harte uit om verder te lezen en samen met ons te bouwen aan een krachtig, aantrekkelijk en vernieuwend Entreegebied. De rode loper ligt uit, laten we er samen overheen lopen!
Jan Iedema
Wethouder
Zoetermeer groeit en werkt zelfbewust aan een nieuwe schaalsprong: van groeikern naar volwassen stad. Onderdeel van deze ontwikkeling is de gebiedstransformatie Omgevingsprogramma gemeente Zoetermeer gebied Entree: de realisatie van een nieuwe stadswijk met allure, midden in de bestaande stad. De gemeente Zoetermeer gebruikt de huidige verstedelijkingsopgave met een inzet op vooral binnenstedelijke verdichting om een stedelijke kwaliteitssprong te maken en voegt nieuwe onderscheidende stedelijke leefmilieus toe aan de woningvoorraad.
In 2019 heeft de gemeenteraad van Zoetermeer hiervoor het Masterplan De Entree ("Masterplan") vastgesteld. Dit Masterplan is uitgewerkt in het Project Uitwerkingskader Entree (“PUK”) dat in februari 2021 is vastgesteld door de gemeenteraad. In navolging van het PUK is in februari 2022 het (ontwerp)bestemmingsplan Entree Midden, inclusief Plan-MER en exploitatieplan, ter inzage gelegd. Diverse ontwikkelingen daarna hebben ertoe geleid dat er in juni 2023 een pas op de plaats moest worden gemaakt en het plan voor Entree moest worden herzien. Het (ontwerp-)bestemmingsplan moest wezenlijk aangepast worden. Met het oog op de inwerkingtreding van de Omgevingswet per 1 januari 2024 was de tijd te kort om deze wijzigingen nog onder het oude recht te verwerken. Hiermee is de doorstart en ontwikkeling van Entree onder de Omgevingswet komen te vallen.
Zowel de Ruimtelijke Strategie Zoetermeer 2040 en het gemeentebreede Omgevingsplan Zoetermeer zijn nog volop in ontwikkeling. Tegelijkertijd gaat de ontwikkeling van Entree voortvarend door en kan niet gewacht worden op de definitieve uitwerking van deze instrumenten. De gemeente zet daarom in op een vrijwillig Omgevingsprogramma Entree.
In het Omgevingsprogramma Entree is het beleidskader voor de ontwikkeling van Entree opgenomen. De eerder in het Masterplan van 2019 opgenomen visie en ambities voor het gebied zijn leidend voor de verdere uitwerking geweest. Met de Ontwikkelvisie en het Beeldkwaliteitsplan Entree en de verbijzondering van het beleid op het gebied van geluid en parkeren wordt een overkoepelend toetsingskader geboden voor de uitwerking van de bouwplannen per plot. Deze beleidsstukken zijn belangrijke bouwstenen van het Omgevingsprogramma Entree, maar zullen hier pas deel uit van maken, nadat de raad hierover besloten heeft. Dit besluit is in Q3 2025 voorzien. Vervolgens kan het college het definitieve Omgevingsprogramma Entree inclusief deze beleidsstukken integraal vaststellen.
Het Omgevingsprogramma is zoals hiervoor aangegeven een vrijwillig programma, dat wil zeggen dat een gemeente niet verplicht is voor een gebied een programma op te stellen. De inhoud van een vrijwillig Omgevingsprogramma is daarnaast vormvrij. Dat betekent dat de Omgevingswet weinig eisen aan de opzet en inhoud van een programma stelt. De gemeente zet het Omgevingsprogramma in om sturing te geven aan de ontwikkelingen in Entree. Het betreft dus een gebiedsprogramma. De ambities, zoals vastgesteld in het Masterplan, vormen de basis. Het Omgevingsprogramma beschrijft de overkoepelende beleidsambities uit deze documenten en een vertaling daarvan in beleidsregels. Deze beleidsregels worden toegepast bij de ontwikkeling van bouwplannen en vergunningverlening per plot en bieden daarmee de handvaten om de leefomgeving te beschermen, te beheren, te gebruiken en te ontwikkelen. De beleidsstukken die aan dit Omgevingsprogramma Entree ten grondslag liggen worden straks na vaststelling als een integrale bijlage toegevoegd. In de teksten van het Omgevingsprogramma worden de hoofdzaken benoemd en kort toegelicht. Wilt u meer (achtergrond) informatie of nadere duiding dan kunt u dit vinden in de bijlagen.
In de bijlagen vindt u de volgende beleidsdocumenten:
Een milieueffectrapportage (mer) is een procedure die wordt gevolgd bij de besluitvorming over projecten die mogelijk nadelige effecten kunnen hebben op het milieu. Het doel van de procedure is om de milieueffecten van een project in kaart te brengen en te beoordelen, zodat deze in de bestuurlijke besluitvorming kunnen worden meegewogen. Tegelijk met het ontwerp-Omgevingsprogramma wordt een ontwerp Plan-Mer ter inzage gelegd. De uitkomsten hiervan zijn verwerkt in het Omgevingsprogramma. Een samenvatting en conclusie van het Plan-Mer staat in hoofdstuk 6. In bijlage IV vindt u een samenvatting van het Plan-Mer, het volledige Plan-Mer is te vinden op de website Entree Zoetermeer.
Doordat het onderliggende planologische regime (d.w.z. de vigerende bestemmingen en bouwmogelijkheden in Entree) niet zal veranderen door het vaststellen van een Omgevingsprogramma, zijn aanvragen om omgevingsvergunningen nodig om de ontwikkelingen in Entree juridisch mogelijk te maken. Die aanvragen die dan ingediend worden door de grondeigenaren en/of ontwikkelaars worden bopa’s genoemd; een afkorting voor buitenplanse omgevingsplanactiviteit.
De gemeente heeft beslissingsruimte om wel of niet mee te werken aan een vergunningaanvraag. De gemeente maakt dan een afweging tussen het belang van de aanvrager bij de vergunning en het algemeen belang. Om vooraf duidelijkheid te geven hoe de gemeente met deze beslisruimte omgaat, stelt zij beleidsregels vast. Beleidsregels gelden alleen voor de gemeente en geven regels over het gebruik van een bevoegdheid (in dit geval wanneer een omgevingsvergunning wel of niet wordt verleend). In hoofdstuk 3 wordt dit verder toegelicht.
Het projectgebied Entree is ongeveer 45 hectare groot en bestaat globaal uit het gebied rondom de Afrikaweg, gelegen tussen het stadscentrum van Zoetermeer in het noorden en de snelweg A12 in het zuiden. Ten oosten wordt Entree begrensd door de Boerhaavelaan en de woonwijk Driemanspolder en ten westen door de Bredewater en de woonwijk Meerzicht. Het gebied bestaat nu voornamelijk uit kantoren die voor een groot deel leeg staan of een tijdelijke programmatische invulling hebben, infrastructuur en braakliggende grond. Dwars door het plangebied loopt de Afrikaweg die Zoetermeer ontsluit vanaf de A12.

De gebiedsontwikkeling Entree is verdeeld in Entree Midden en Entreepoort, met een eigen ruimtelijk kader en ontwikkeltraject. Entree Midden betreft het gebied tussen het station en de binnenstad en wordt opgebouwd uit stedelijke blokken gelegen langs de Afrikaweg. Entreepoort vormt de feitelijke entree van het gebied vanaf en direct naast station en zal in nauwe samenhang worden ontwikkeld met de vernieuwing daarvan. Entreepoort voorziet in een levendig gebied als ontvangstruimte van de reiziger in Zoetermeer en kent een andere opzet en schaal dan de stedelijke blokken in Entree Midden.
Het Omgevingsprogramma wordt vastgesteld met de uitgebreide procedure van de Algemene wet bestuursrecht. Dat betekent dat eerst een ontwerp-Omgevingsprogramma ter inzage is gelegd, gecombineerd met het ontwerp van de Plan-MER. Deze documenten met alle relevante bijlagen hebben van 28 maart 2025 tot en met 10 april 2025 ter inzage gelegen. In hoofdstuk 9 van dit Omgevingsprogramma Entree wordt hierop uitgebreider ingegaan en op het vaststellingsproces.
In dat hoofdstuk wordt ook een korte toelichting gegeven van het proces van de zienswijzen op het (ontwerp)bestemmingsplan Entree Midden en ontwerp Plan-MER Entree Midden dat eerder heeft plaatsgevonden. De beantwoording van die zienswijzen zijn in te zien op de gemeentelijke website Entree Zoetermeer. Op die website staat ook het eindverslag van de participatie die gedurende Q2/Q3 2024 heeft plaatsgevonden.
In het gebied fungeert de infrastructuur momenteel als ruimtelijk ordenend principe: respectievelijk Boerhaavelaan en Bredewater vormen de harde grens tussen de woonwijken Driemanspolder, Meerzicht en de kantoorwijk aan weerszijden langs de Afrikaweg. De Afrikaweg splijt het gebied in tweeën doordat ze letterlijk boven op het maaiveld ligt. De weg vormt hierdoor een sterke barrière die in het plangebied slechts op drie plaatsen voor de voetganger en fietser oversteekbaar is middels twee voetganger/fiets tunnels en één onderdoorgang onder het viaduct Afrikaweg. Entree is nu een monofunctioneel gebied. Gedateerde kantoorpanden, die gedeeltelijk leegstaan en gedeeltelijk tijdelijk in gebruik zijn genomen, braakliggende (parkeer)terreinen en een grote anonieme openbare ruimte vormen een onaantrekkelijk niemandsland dat een barrière vormt tussen de omringende wijken en een kwalitatief volwaardige verbinding tussen het station en centrum in de weg staat.
Entree is een belangrijke schakel voor de stad Zoetermeer: het is de toegangspoort tussen snelweg en station enerzijds en de binnenstad anderzijds. Een kwalitatieve verbinding ontbreekt op dit moment, zeker voor de voetganger en fietser is de route erg gefragmenteerd. Ook op de schaal van de stad en het omringende landschap is Entree een onmisbare schakel in het versterken en verbinden van de groenstructuren en langzaam verkeersroutes die nu onvoldoende wordt benut.
Zoetermeer heeft de ambitie om met Entree een levendige stadswijk te maken. Een levendige stadswijk waarbij gezondheid, duurzame mobiliteit en toekomstbestendigheid belangrijke waarden zijn. Dit kan alleen worden bereikt met een gebiedsgerichte integrale aanpak. Het vertrekpunt van deze gebiedsgerichte aanpak is het formuleren van een aantal eigenschappen geweest, die de identiteit en de eigenheid van het gebied bepaalt. In het Masterplan staan vijf eigenschappen die de identiteit van Entree bepalen benoemd: Uitnodigend, Actief, Verbindend, Vernieuwend en Gezond.

Programmatisch levert Entree een duidelijke bijdrage aan het tekort van woningen in Zoetermeer en de regio. Het totale programma voor Entree zal tussen de 6.750 en 7.250 nieuwe woningen bedragen in een hoog stedelijk gebied voor verschillende doelgroepen met de bijbehorende voorzieningen en eveneens een aantal stedelijke voorzieningen die een groter gebied bedienen. De na te streven functiemix zorgt voor de nodige dynamiek, maar maakt de ruimtelijke organisatie en het ontwerp uitdagend. In paragraaf 3.1 en paragraaf 4.7 en in de bijlage II leest u meer over het programma voor Entree.
Zoetermeer ontwikkelt zich op verschillende schaalniveaus. Dit vindt plaats door middel van (gebieds-)programma’s. Op regionaal en stedelijk schaalniveau wordt er gewerkt aan de vertaling van het Programma Zoetermeer 2040 in de vorm van een ruimtelijk strategische agenda (Ruimtelijke Strategie Zoetermeer 2040) en voor Binnenstad en Meerzicht zijn er gebiedsprogramma’s opgestart. Tevens biedt het ‘Programma Woningbouw als Aanjager’ een belangrijke bouwsteen voor Entree. Het Omgevingsprogramma is afgestemd en in overeenstemming met dit beleid (dat deels ook nog in ontwikkeling is).
Ruimtelijk Strategische agenda Zoetermeer 2040
Entree raakt een aantal gebiedoverstijgende thema’s, zoals het gekozen verdichtingsmodel (de introductie van de stadstraat), mobiliteit, programmering en bouwhoogte. De keuzes die voor Entree worden gemaakt sluiten aan bij de thema’s en keuzes uit de Ruimtelijke Strategie Zoetermeer 2040.
Programma Woningbouw als aanjager
Zoetermeer heeft tussen 2024 en 2040 10.375 nieuwe woningen nodig en heeft plannen voor 16.000 woningen. Zonder de forse bijdrage van Entree kunnen deze doelen niet worden gehaald. Het programma benoemt doelgroepen als jongeren, huishoudens die afhankelijk zijn van sociale huur, stedelijke huishoudens, gezinnen en senioren. Elk van deze doelgroepen zal in Entree bediend worden.
Visie Binnenstad 2040 en Gebiedsprogramma Binnenstad
De ambitie van het Gebiedsprogramma Binnenstad is het doorontwikkelen van een levendige, gezonde en aantrekkelijke binnenstad met een goede verblijfs- en woonkwaliteit. Met de ontwikkeling van Entree is hiermee rekening gehouden, er zal worden gezorgd dat de twee ontwikkelingen elkaar versterken en niet elkaar beconcurreren.
Gebiedsprogramma Meerzicht
Het gebiedsprogramma Meerzicht richt zich vooral op sociaal - maatschappelijke aspecten en is een wijkontwikkelingsopgave. Het verbeteren van de buurten, het verduurzamen van de flats en woningen, het zorgen voor doorstroming door toevoegen van woningen zijn belangrijke onderdelen van het programma.
Om de gebiedsontwikkeling Entree mogelijk te maken is het noodzakelijk om op onderdelen aanpassingen door te voeren ten opzichte van eerdere besluitvorming over Entree zelf of van huidig gemeentebreed beleid. Dat is enerzijds het gevolg van het wegvallen van de kantoorbehoefte dat invloed heeft op de programmering, de eerder ingediende zienswijzen en het voorlopig advies van de Commissie mer op het ontwerp-bestemmingsplan. Anderzijds is dit een gevolg van voortschrijdend inzicht en een nadere uitwerking in de Ontwikkelvisie en het Omgevingsprogramma. De wijzigingen hebben in hoofdlijnen betrekking op de volgende onderdelen:
De wijzigingen hebben in hoofdlijnen betrekking op de volgende onderdelen:
Programma.
Stedenbouwkundige principes/ Openbare ruimte.
Mobiliteit, in het bijzonder parkeren.
Geluid.
Het Entreegebied transformeert tot een nieuwe en levendige stadswijk, waar gezondheid, duurzame mobiliteit en toekomstbestendigheid belangrijke waarden zijn. Een belangrijk kenmerk hiervan is de menging van functies. Een mix van wonen, werken en voorzieningen in een hoge kwaliteit. Op 8 juli 2024 heeft de gemeenteraad een belangrijk besluit genomen over de (her)programmering van Entree ten opzichte van het PUK. De wijzigingen hebben betrekking op de uitgangspunten van het aantal woningen, verdeling van de woningsegmenten, de gemiddelde grootte van de woningen in het woonprogramma en de bandbreedte van de niet-woonfuncties, waaronder een forse neerwaartse bijstelling het kantoorprogramma.
In Entree worden tussen de 6.750 en 7.250 nieuwe woningen gerealiseerd, inclusief de woningen in het project Terra Nova (ontwikkellocatie Entree - Oost 7). Daarnaast komen er kantoren, bedrijven (zoals retail en kleine kantoorunits) en maatschappelijke voorzieningen. Uit de diverse onderzoeken blijkt dat voor de ondergrens van het aantal woningen minimaal 6.750 kan worden gehanteerd. Dit wordt dan ook als minimaal aantal voor de gebiedsontwikkeling aangehouden.

De totale omvang van het programma in Entree wordt enerzijds bepaald door de maximale dichtheid en maximale hoogtes waarbij nog een kwalitatief hoogwaardige woonomgeving is te realiseren en anderzijds door mogelijke beperkingen vanuit milieueffecten (met name geluid, verkeer en luchtkwaliteit). Stedenbouwkundig is het totale programma maximaal gesteld op circa 735.000 m2 bvo. Binnen de plangrenzen van Entree is ook een aantal bestaande gebouwen opgenomen. Deze behoren echter niet tot de ontwikkellocaties.
Het programma voor Entree is nieuw, adaptief, en flexibel. Het programma wordt over een periode van tenminste 10 – 15 jaar gerealiseerd en bevat daarom op de verschillende onderdelen bandbreedtes, zodat Entree in de komende jaren met verschillende (markt-)omstandigheden kan groeien naar het uiteindelijke eindbeeld.
Door adaptieve gebiedsontwikkeling met vooraf afspraken over het binnen bandbreedtes kunnen aanpassen van het programma (qua inhoud, fasering en snelheid van realiseren) zullen de partijen de continuïteit in de voortgang van de gebiedsontwikkeling voldoende moeten kunnen waarborgen. De bandbreedtes zijn zo gekozen dat zij voldoende flexibiliteit houden op de verschillende programmaonderdelen maar tegelijk ook zorgen dat het totale programma in balans blijft. En dat dit in de toekomst ruimte biedt om nieuwe wensen, ideeën te kunnen opnemen. In paragraaf 4.7 wordt dit onderdeel verder uitgewerkt.
De ontwikkeling van Entree gaat uit van twee deelgebieden: Entreepoort en Entree Midden. Voor beide delen zijn er spelregels opgesteld voor een verdere uitwerking. Deze spelregels hebben onder andere betrekking op de ruimtelijke uitwerking, zoals de hoogtes van de gebouwen, maar ook op de verdeling van het niet- wonen programma.
Zowel op basis van de zienswijzen op het ontwerp-bestemmingsplan Entree als voortschrijdend inzicht zijn de maximale hoogtes voor de bebouwing van Entree naar beneden bijgesteld. Deze zijn in de nieuwe spelregels (middels een spelregelkaart) opgenomen. Daarnaast wordt er voor wat betreft het niet-wonen programma uitgegaan van een zonering. Daarbij worden commerciële functies geclusterd rondom een aantal knooppunten in het gebied, de plek waar vanwege de kruising van verbindingen de meeste mensen zullen samenkomen. Dit is het geval rondom het station en het kruispunt halverwege het plangebied, ter hoogte van de Centrumstraat van Entree.
Het voorlopig toetsingsadvies van de Commissie mer heeft ertoe geleid dat het profiel van de ruggengraat van Entree, de stadsstraat Afrikaweg, is gewijzigd. Daarbij is uitgegaan van het maximaliseren van het verblijfsklimaat in de stadsstraat. De verblijfsgebieden, in de vorm van brede trottoirs en fietspaden voor het langzaam verkeer zijn daartoe vergroot en de geplande ventwegen langs de Afrikaweg zijn komen te vervallen. Dit geeft de kans een kwalitatieve entree voor de stad te maken: hier kom je thuis in Zoetermeer en in Entree, waar verblijf, ontmoeting en levendigheid voorop staat. De auto-ontsluitingsstructuur van het gebied is daarbij verschoven naar de buitenzijde van het plangebied; een logische keuze vanuit het perspectief het langzaam verkeer het primaat te geven aan de hoofdstructuur.
Entree wordt ontwikkeld vanuit de hoofdprinicipes van duurzame mobiliteit. Er wordt meer ruimte gemaakt voor voetgangers en fietsers, onder andere door lagere snelheden voor het autoverkeer, betere oversteekbaarheid van wegen, het parkeren zoveel mogelijk te beperken en op te lossen op eigen terrein in de bouwblokken en herinrichting van de openbare ruimte. Maar ook door de infrastructuur voor de auto's in lijn te brengen met het gebruik, dus geen grootschalige overcapaciteit aanleggen.
Voor Entree is een verbijzondering van ten opzichte van het vigerende beleid uit 2019 opgesteld: De Nota maatwerk parkeernormen en uitvoeringsregels Entree (bijlage VI). Deze nota is bedoeld om uiteindelijk toe te groeien naar het ambitiescenario waarbinnen lagere parkeernormen gelden voor zowel auto's als fietsen ten opzichte van de Nota parkeerbeleid van 2019 en er meer ingezet wordt op deelmobiliteit.
De volgende onderdelen van het geactualiseerde parkeerbeleid zijn van belang:
Zoetermeer draagt middels haar parkeernormenbeleid bij aan de duurzame verstedelijkingsopgave. In de komende jaren worden in Zoetermeer duizenden woningen aan de woningvoorraad toegevoegd. Bij al deze woningen dient de parkeerbehoefte van auto en fiets gebiedsgericht gefaciliteerd te worden.
Zoetermeer zet in op duurzame mobiliteit hetgeen enerzijds betekent dat nieuwe mobiliteitsconcepten (zoals deelauto’s en deelfietsen) mogelijk worden gemaakt en anderzijds ook parkeervoorzieningen voor de fiets voldoende en ruimtelijk goed worden ingepast bij nieuwe gebouwen en transformaties van bestaande gebouwen.
Zoetermeer borgt het economisch vestigings- en winkelklimaat, wat ertoe leidt dat nieuwe bedrijven over voldoende parkeermogelijkheden beschikken en bezoekers in voldoende mate worden gefaciliteerd in het snel en eenvoudig vinden van een geschikte parkeerplaats.
Deze nota vormt een nadere uitwerking van de Beleidsnota Parkeerbeleid 2019. Het geactualiseerde parkeerbeleid zoals beschreven in de Beleidsnota Parkeerbeleid 2019 blijft het vertrekpunt vormen voor de Nota maatwerk parkeernormen en uitvoeringsregels Entree.
Hieronder zijn de belangrijkste verschillen tussen de Nota parkeerbeleid van 2019 en de Nota Maatwerk Parkeernormen en Uitvoeringsregels Entree toegelicht (bijlage VI).
Parkeren auto’s
Als gevolg van de verbijzondering van het vigerende beleid is dat een keuzemogelijkheid is geïntroduceerd voor de indiener van een bouwplan. De parkeernorm ligt dan 0,1 tot 0,2 lager dan bij het normscenario en daarbinnen is het aandeel bezoek iets afgenomen (0,15 naar 0,1). Het ambitiescenario sluit ook beter aan bij de ruimtelijke en programmatische ambitie van Entree. De indiener moet bij indiening van de Bopa aangeven of volledig van het normscenario of volledig van het ambitiescenario gebruik te maken. Een combinatie van de twee is niet mogelijk.
Parkeren fietsen
De fietsparkeernorm blijft van bezoekers en bewoners samen voor de fietsparkeerplaatsen (fpp) gelijk. Alleen wordt de verdeling meer in lijn gebracht met de praktijk. Bij een fietsparkeernorm van bijvoorbeeld 5,0 fpp/woning is in de huidige nota (2019) opgedeeld in 4 fpp voor bewoners en 1 fpp voor bezoekers. Dan wordt voor de parkeernormennota van Entree 2025 bij 5,0 fpp/woning: 4,5 fpp voor bewoners en 0,5 fpp voor bezoekers. Het totale aantal benodigde fietsplekken verandert niet, maar de verschuiving betekent wel dat meer inpandige fietsparkeerplaatsen gerealiseerd moeten worden.
Laden/ lossen
Entree maakt gebruik van de mogelijkheid in de bestaande parkeernormennota (2019) om het laden en lossen te laten plaatsvinden in de openbare ruimte. Ruimtelijk en programmatisch is het inpandig oplossen niet mogelijk. In het buitenruimte ontwerp van Entree wordt ruimte voor deze logistieke functie expliciet aangegeven, daarmee wordt voorkomen dat laden en lossen op locaties buiten Entree wordt opgevangen. In de Ontwikkelvisie zijn ontwerpprincipes hiervoor opgenomen.
De “Nota Maatwerk Parkeernormen en Uitvoeringsregels Entree” (bijlage VI) is verder zoveel mogelijk gelijk gehouden aan de huidige beleidsregels parkeernormen 2019. Wel zijn er op basis van de huidige inzichten enkele omissies voor het dagelijks gebruikt verbeterd.
Entree is gesitueerd in een geluidaandachtsgebied vanwege de ligging direct naast de A12 en de doorgaande Afrikaweg in het plangebied. In het Besluit kwaliteit leefomgeving (“Bkl”) zijn voorwaarden voor het realiseren van geluidgevoelige gebouwen in een geluidaandachtsgebied opgenomen. In de basis wordt uitgegaan wordt van een stelsel van standaardwaarden en grenswaarden. Vanaf 1 januari 2024 geldt het ‘Afwegingskader geluid (weg, rail en industrie) tussen standaardwaarde en grenswaarde (Omgevingswet), hierna te noemen: Afwegingskader geluid Zoetermeer. Het afwegingskader bevat de voorwaarden waarmee, als nadere invulling van de wettelijke voorwaarden volgens het Bkl, een overschrijding van de standaardwaarden kan worden toegestaan. Als die mogelijkheden zijn uitgeput, fungeert het Geluidkader Entree als laatste mogelijkheid om ontwikkelingen mogelijk te maken.
Voor delen van het plangebied Entree geldt dat sprake is van overschrijdingen van de grenswaarden volgens Bkl 5.78u t/m 5.78y. Het geluid dat afkomstig van de A12 is zorgt ervoor dat gebruik gemaakt moet worden van de mogelijkheid om alsnog meer geluid toe te staan dan de grenswaarden (op grond van Bkl artikel 5.78aa). De gemeente heeft in de motivering voor afwijken van grenswaarden voor de gebiedsontwikkeling van Entree, gemotiveerd dat sprake is van zwaarwegende belangen. Deze motivatie is te vinden op de website van Entree Zoetermeer. Bovendien is het niet mogelijk gebleken om het geluid tot de grenswaarde terug te brengen met maatregelen. In het Geluidkader Entree wordt aangegeven hoe, ondanks de grenswaardeoverschrijding door de A12, alsnog een aanvaardbaar woon- en leefklimaat kan worden gerealiseerd.
Het Geluidkader Entree heeft betrekking op nieuwe geluidgevoelige gebouwen in het Entreegebied waar niet aan de standaardwaarden kan worden voldaan. Het vertrekpunt is dus voldoen aan de standaardwaarden uit het Bkl. Als hieraan niet kan worden voldaan, komen de grenswaarden en het Afwegingskader geluid Zoetermeer in beeld. Pas als hier, goed gemotiveerd en onderbouwd, niet aan kan worden voldaan, komt het Geluidkader Entree in beeld. De afweging tot toepassing hiervan vindt plaats in overleg met het college op het niveau van het bouwplan. Het gebruiken van het Geluidkader Entree biedt mogelijkheden – met daarbinnen alternatieven en afwijkingen – om af te kunnen wijken van grenswaarden in het Bkl of het Afwegingskader geluid Zoetermeer. Deze mogelijkheden zijn echter niet onbegrensd en dienen onderbouwd gemotiveerd te worden. Het is een extra stap die mogelijk wordt gemaakt om door middel van compensatie (op andere onderdelen) toch de ontwikkeling mogelijk te maken binnen een vooraf gesteld kader. Deze mogelijkheid is een afwijkingsmogelijkheid die als daarvan gebruik van wordt gemaakt, gemotiveerd en onderbouwd moet worden. De afweging tot toepassing hiervan vindt plaats in overleg met het college op het niveau van het bouwplan. In het volgende schema is in hoofdlijnen aangegeven welke stappen moeten worden doorlopen om te beoordelen of een plan voor het aspect geluid uitvoerbaar is. Voor een uitgebreide toelichting op het geluidkader en de toepassing daarvan wordt verwezen naar bijlage V.

Het Omgevingsprogramma Entree loopt in tijd vooruit op het omgevingsplan voor geheel Zoetermeer, voor meer informatie zie hoofdstuk 10. Met voorliggend omgevingsprogramma voor Entree wordt een nieuw beleidskader vastgesteld dat sturing geeft aan de ontwikkeling van Entree tot een nieuwe, levendige en duurzame stadswijk met de daarbij benodigde voorzieningen. Om dit vorm te geven en te zorgen dat de aanvragen van de vergunningen voldoen aan de doelstelling en ambities voor Entree wordt gebruik gemaakt van beleidsregels die hieraan invulling geven.
Beleid opgenomen in een programma is in beginsel zelfbindend :het bindt alleen de overheid die het heeft vastgesteld. Voor beleidsregels is dat anders. Beleidsregels zijn regels over het gebruik van een bevoegdheid door een bestuursorgaan (hierna: gemeente). Burgers kunnen dan ook bij het bij het bestuursorgaan en de rechter een beroep doen op beleidsregels.
Het bestuursorgaan kan alleen van de beleidsregel afwijken als dat voor een of meer belanghebbenden gevolgen zou hebben die wegens bijzondere omstandigheden onevenredig zijn in verhouding tot de met de beleidsregel te dienen doelen.
Met beleidsregels is het niet mogelijk om rechtstreeks verplichtingen aan burgers of bedrijven op te leggen.
Beleidsregels zijn bedoeld voor de gemeente en kunnen gaan over:
de afweging van belangen (een beleidsregel kan gaan over de inhoud van de belangenafweging en over de manier waarop die afweging tot stand moet komen);
de vaststelling van feiten (een beleidsregel kan de wijze bepalen waarop de gemeente de feiten vaststelt die nodig zijn om een besluit te nemen); of
de uitleg van wettelijke voorschriften (een beleidsregel kan uitleg geven over de begrippen en wettelijke criteria in wettelijke voorschriften).
Daar waar sprake is van beleidsregels in dit programma is dat duidelijk aangegeven in een kader.
De Ontwikkelvisie Entree beschrijft het doel om binnen het plangebied Entree een levendige stadswijk te realiseren, waar gezondheid, duurzame mobiliteit en toekomstbestendigheid belangrijke waarden zijn. Entree is een belangrijke schakel voor de stad: als nieuwe toegangspoort tussen snelweg en station enerzijds en de binnenstad anderzijds. De gebiedsontwikkeling Entree is verdeeld in Entree Midden en Entreepoort.
Initiatieven worden getoetst aan de Ontwikkelvisie Entree. Daartoe zijn beleidsregels opgesteld. Een aantal daarvan geldt voor het hele plangebied, dus ongeacht of een initiatief in Entree Midden of Entreepoort ligt. Deze beleidsregels zien toe op:
Deze beleidsregels zien toe op:
De beleidsregels die in aanvulling daarop specifiek gelden voor Entree Midden en Entreepoort zijn opgenomen in de paragraven 4.4.1 Entree Midden en 4.4.2 Entreepoort.
De Ontwikkelvisie vormt één van de kaders waarbinnen de ontwikkeling van Entree plaatsvindt. Met andere woorden: zowel de ontwikkeling van de stedelijke blokken binnen het plangebied als de openbare ruimte worden getoetst aan de essenties en doelen, uitgewerkt in ontwerpprincipes, die in de Ontwikkelvisie Entree zijn beschreven.
Een belangrijk onderdeel van het Omgevingsprogramma Entree zijn de beleidsregels (zie 3.2 Beleidsregels). Aan de hand van de beleidsregels toetst de gemeente Zoetermeer of de aankomende bouwplannen en ontwerpen passen in en bijdragen aan de doelen en ambities voor Entree.
De beleidsregels in dit hoofdstuk zijn gebaseerd op de essenties, doelen en ontwerpprincipes die in de Ontwikkelvisie Entree staan beschreven. Niet alle ontwerpprincipes uit de ontwikkelvisie zijn doorvertaald in beleidsregels. De keuze is gemaakt om de ontwerpprincipes die in grote mate bepalend zijn voor de ontwikkeling van Entree door te vertalen naar een specifieke beleidsregel. Hierbij is vooral gekeken naar de kwantificeerbare onderdelen, zoals hoogten, rooilijnen, die op de spelregelkaart zijn opgenomen, aangevuld met andere onderdelen. Essentieel blijft dat een plan en ontwerp in zijn geheel dient te voldoen aan de Ontwikkelvisie Entree. Dus ook als er geen specifieke beleidsregel in het omgevingsprogramma is opgenomen, zal een initiatiefnemer aantoonbaar moeten maken dat aan de kaders van de Ontwikkelvisie Entree wordt voldaan. Dat uitgangspunt is in de volgende beleidsregel vertaald.
Samengevat wordt dit in de volgende beleidsregel vertaald. |
Entree wordt ontwikkeld volgens en binnen de kaders van de Ontwikkelvisie Entree. Als voor specifieke onderwerpen beleidsregels zijn opgenomen zijn deze leidend, voor overige thema’s zal de planontwikkeling getoetst worden aan de essenties en doelen van de Ontwikkelvisie Entree. |
Binnen dit Omgevingsprogramma zijn diverse specifieke beleidsregels opgenomen. Naast deze specifieke regels per thema/ onderwerp is ook in een algemene beleidsregel voorzien die invulling geeft aan de benodigde flexibiliteit en adaptieve karakter van het Omgevingsprogramma en de langjarige planontwikkeling in Entree. In een langdurig planproces is het goed voorstelbaar dat inzichten wijzigen, naar aanleiding van uitwerking van de stedelijke blokken, of omdat (externe) omstandigheden wijzigen (wettelijke normen, materialen e.d.). Ook kan het voorkomen dat een initiatiefnemer meent dat met toepassing van andere ontwerpprincipes een vergelijkbare of verbeterde invulling van de essenties en doelen worden bereikt die voor Entree worden beoogd. Ook kunnen ondergeschikte bouwdelen en klimaatmaatregelen op het dak ervoor zorgen dat de toegestane hoogte in beperkte mate wordt overschreden.
Het ruimtelijk concept van Entree is opgebouwd uit zeven essenties. Deze zeven essenties zijn de structuurdragers van het plan, en vormende komende periode een leidraad bij de stapsgewijze ontwikkeling van de nieuwe wijk.
De zeven essenties zijn als volgt:
De nieuwe stadsentree: Entree vormt straks voor vele reizigers het eerste beeld van Zoetermeer: een wijk met stedelijke allure. Met de hoogbouw langs de A12 als eerste blikvangers en een attractief stationsplein als ontvangstruimte van de wijk en de stad. Met de voortzetting van bebouwing met hoogteaccenten langs de Afrikaweg wordt Entree met de binnenstad verbonden. De Afrikaweg zelf wordt daarbij getransformeerd tot een stadsstraat, waarmee je thuiskomt in Zoetermeer. De wijk krijgt een karakter dat echt stedelijk van aard is en tegelijkertijd heeft het de kwaliteiten van een groene en duurzame leefomgeving. De combinatie van een stadse bebouwingsdichtheid, mix van functies (wonen, werken en voorzieningen) met hedendaags stedelijk groen in de openbare ruimte, binnenhoven, daken en gevels, toont het Zoetermeer van de 21ste eeuw.
Verbindende schakel: Entree is op zo’n manier gesitueerd dat het een verbindende schakel vormt tussen de omliggende wijken in álle windrichtingen: het creëert een fijnmazig weefsel dat de wijken Meerzicht, Driemanspolder, de Binnenstad en Rokkeveen met elkaar verbindt. De stadsstraat Afrikaweg wordt voorzien van riante trottoirs, fietspaden en vrije busbanen. Vanaf de omliggende wijken worden de bestaande fiets- en voetgangersroutes opgepakt en aangesloten op de stadsstraat. Een tweetal aantrekkelijk en veilig vormgegeven oversteekplaatsen op het niveau van de stadsstraat heffen de huidige barrièrewerking van de Afrikaweg op.
Menselijke maat en schaal: Entree Midden is opgebouwd uit samengestelde stedelijke blokken met groene, ruime binnentuinen, die betreedbaar zijn voor bewoners en bezoekers. In de stedelijke blokken bevindt zich een grote mix aan functies: wonen, werken en voorzieningen. De diversiteit in programma komt gedeeltelijk tot uiting in de pandwijze opzet, waardoor de grote stedelijke blokken opgedeeld worden in volumes in een herkenbare maat en schaal. Hoogteaccenten worden voorzien van een eigen onderbouw waardoor het eigenlijke hoogteaccent iets terug ligt vanaf de openbare ruimte. In de plint zullen diverse stedelijke voorzieningen worden ingepast, zoals winkels, horeca en bedrijfsruimten.
Levendige stadsstraat: De Afrikaweg vormt de ruggengraat van Entree en wordt getransformeerd naar een levendige en uitnodigende stadsstraat. De straat wordt begeleid door robuuste bomenrijen over de gehele lengte van de stadsstraat. Tussen de straatwanden biedt het royale profiel ruimte voor zowel verblijven als bewegen. Een gemengd plintprogramma zorgt voor de gewenste levendigheid op straat en een gevarieerd straatbeeld. De bestaande wijkcentra van Meerzicht en Driemanspolder worden via de Centrumstraat dwars door Entree met elkaar verbonden. De kruising van de Centrumstraat en de stadsstraat vormt een stedelijk ankerpunt als kerngebied voor de stedelijke voorzieningen in het gebied. Een tweede ankerpunt bevindt zich rondom het nieuwe stationsplein van station Zoetermeer.
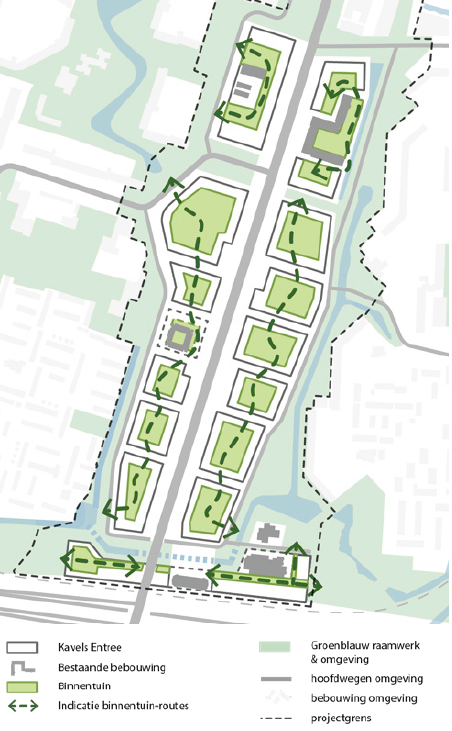
Robuuste groen-blauw raamwerk: Primair onderdeel van dit raamwerk is de 'Groene Kraag', een parkzone die nieuwe stedelijke blokken van Entree omkadert en tevens de bestaande wijken Meerzicht en Driemanspolder met langzaamverkeers-routes verbindt. In dit gebied staan de natuurlijke stad en natuurbeleving centraal. De Afrikaweg vormt als groene stadsstraat met laanbomen, ruime plantvakken en groene bermen een robuuste groene verbinding. Ook de tussenstraten worden groen ingerichte voetgangersdomeinen. Het raamwerk loopt ook verder door in het plan door groen ingerichte binnentuinen, balkons, daktuinen en groene stoepen. Waar mogelijk dragen open waterstructuren met ecologische oevers bij aan de creëren van ecologisch waardevolle plekken met aantrekkelijke verblijfskwaliteit.
Gezonde en toekomstbestendige leefomgeving: Het integreren van en rekening houden met klimaatadaptatie, biodiversiteit en gezondheid in het ontwerp is de routekaart naar het creëren van een gezonde wijk. Hierbij kan het Entreegebied worden beschouwd als één stedelijk organisme, waarbij de stedelijke blokken, de binnentuinen, infrastructuur en openbare ruimte nauw met elkaar verweven zijn en functioneren als één systeem. Belangrijke basis zijn de recreatief-ecologische groenstructuren. De openbare ruimte en de stedelijke blokken worden klimaatadaptief ontworpen. Daarnaast wordt bij het ontwerp van Entree ingezet op een mobiliteitstransitie waarin de voetganger en de fietser centraal worden gesteld, het gebruik van de (deel)fiets, het openbaar vervoer en deelauto gestimuleerd worden en het gebruik van de auto wordt ontmoedigd. Een aantrekkelijke openbare ruimte zorgt voor uitnodiging tot een gezond leven waarin bewegen en sporten mogelijk zijn.
Gelaagde stad: Entree komt gefaseerd, stapsgewijs tot stand. Daarbij begint Entree niet vanaf nul door de bestaande gebouwen en functies. Hierdoor worden als vanzelf nieuwe lagen toegevoegd die zullen voortbouwen op het lokale karakter en de Zoetermeerse identiteit: het DNA van Zoetermeer. Het gesloten stedelijk blok vormt het model voor de bebouwing langs de Afrikaweg. Ook in de verkeerskundige opzet wordt een nieuwe laag toegevoegd, waarbij het verhoogde dijklichaam van de Afrikaweg, als onderdeel van de Zoetermeerse hoofdstructuur (de zogenaamde H-structuur) intact blijft en wordt gecombineerd met gebruik door andere modaliteiten. Op blokniveau wordt ruimte voor innovatie en experiment geboden.
Een uitgebreidere toelichting op deze essenties is te vinden in hoofdstuk 3 van de Ontwikkelvisie Entree (bijlage II).
De ambitie om van Entree een levendige stadswijk te maken waarin gezondheid, duurzame mobiliteit en toekomstbestendigheid belangrijke waarden zijn, kan alleen worden bereikt met een gebiedsgerichte integrale aanpak. Maar in een langdurige gebiedsontwikkeling van deze omvang is het ook van belang om duidelijkheid te bieden door een helder kader. Dit kader moet robuust zijn om de kwaliteit ook langjarig te borgen, maar voldoende flexibel om toekomstvast te zijn. De belangrijkste kaders (de minimale basis) zijn vastgeklikt door hier beleidsregels voor te formuleren. Deze vormen samen met de uitvoerig beschreven doelen, essenties en uitwerkingen in principes in de ontwikkelvisie een solide basis. Tegelijkertijd blijft maatwerk mogelijk. Niet alles is in detail vastgelegd in de beleidsregels. Dit is een bewuste keuze en geeft flexibiliteit op verschillende thema’s die aankomende jaren nog volop in ontwikkeling zullen zijn (zoals duurzaamheid, maar ook de programmatische invulling van het gebied).
Ook is afwijking van de beleidsregels mogelijk. De kaders waarbinnen dit mogelijk is, zijn of al uitgewerkt in de ontwikkelvisie of moeten – als dat niet zo is – per geval gemotiveerd worden. Uitgangspunt is en blijft dat afwijking uitsluitend mogelijk is als dit passend is bij de doelstelling van Entree zoals hiervoor beschreven.
Om te komen tot deze belangrijke waarden én een levendige stadswijk te maken gaat het Omgevingsprogramma uit van een integrale aanpak op de volgende onderdelen:
De Spelregelkaart voor Entree geeft een overzicht van de belangrijkste ontwerpprincipes op schaal van de wijk. Hierin is het stedenbouwkundig concept voor Entree zichtbaar. Het biedt een ruimtelijk kader voor de ontwikkeling van de nieuwe wijk. Om de gewenste stedelijkheid met hoge kwaliteit en levendigheid te bieden is hiervoor een compact eigentijds stedenbouwkundig concept ontwikkeld. Het bestaat uit duidelijk herkenbare stedelijk blokken die afgewisseld of gecombineerd kunnen worden met bestaande, getransformeerde (kantoor-)panden. Elk stedelijk blok is op zo’n manier uitgewerkt dat het ruimtelijk en programmatisch aansluit op zijn omgeving, zoals het hoogteverschil dat ontstaat door de ligging tegen het bestaande dijklichaam van de Afrikaweg, maar ook de omliggende bebouwing. Elk blok is samengesteld uit panden variërend in breedte en hoogte, aflopend van de Afrikaweg naar de omliggende straten.
In de volgende afbeelding is de spelregelkaart weergegeven. In de Ontwikkelvisie Entree (bijlage II) paragraaf 4.2. is meer te lezen over de Spelregelkaart.

De gebiedsontwikkeling Entree is verdeeld in twee deelgebieden, Entree Midden en Entreepoort (dit is het gebied dat tussen de spoorlijn en de wegen Bredewater en Boerhaavelaan). Deze twee gebieden hebben elk hun eigen ontwikkeltraject, met ook elk hun eigen tijdpad. Entreepoort vormt een apart onderdeel van Entree met een andere opzet en schaal dan de stedelijke blokken aan de stadsstraat in Entree Midden. Tegelijkertijd is er sprake van een belangrijke ruimtelijke samenhang.
Een van de belangrijke pijlers voor het stedenbouwkundige concept van deze levendige stadswijk is het stedelijk blok. De belangrijkste principes voor het stedelijk blok in Entree Midden zijn:
De ingangen van de gebouwen liggen in de straatwanden van elk blok.
De pandsgewijze opbouw van het stedelijk blok.
De aflopende bouwhoogte vanaf de stadsstraat naar de omliggende wijken.
De toegankelijke binnentuinen.
De variatie in bouwhoogte waardoor er licht en lucht in elk blok wordt gecreëerd.
De menselijke maat in de beleving van de stad op ooghoogte.
Hieronder is een overzicht opgenomen van de principes waarvoor beleidsregels worden vastgesteld. Wilt u meer lezen over de volledige uitwerking van de principes dan kan dit in hoofdstuk 4 van de Ontwikkelvisie Entree (bijlage II). Voor de volledigheid, de ontwikkelingen binnen Entree worden niet alleen aan de beleidsregels uit dit Omgevingsprogramma Entree getoetst, de Ontwikkelvisie Entree als geheel geldt onverkort ook als toetsingskader.
Voor het gebied Entree Midden gelden beleidsregels over de volgende onderwerpen:
Het beoogde doel van deze beleidsregel is er aan bij te dragen dat er doorlopende straatwanden worden gecreëerd, die in een prettige verhouding staan tot de aangrenzende openbare ruimte. Hierdoor werken deze straatwanden als heldere begeleiding en tevens worden de buitenruimtes en omliggende bebouwing niet substantieel overschaduwd. De menselijke maat en de beleving van de voetganger op straat is hierbij van groot belang.
De essentie van de beleidsregel is dat de basishoogte van het stedelijk blok per blokzijde verschilt en in verhouding staat tot de context: de hoogte is bepaald mede op basis van de aangrenzende openbare ruimte. Zo is in de basishoogte de straatwand maximaal 1 meter hoger dan de breedte van de straat. Ook is bij het bepalen van de basishoogte rekening gehouden met de maat en schaal van de omliggende bebouwing.
Om de effecten met betrekking tot windhinder en bezonning goed mee te kunnen wegen, zal de ontwikkelende partij bij de aanvraag omgevingsvergunning een windhinderonderzoek op basis van NEN norm 8100 en een bezonningsonderzoek op basis van de lichte TNO norm moeten overleggen. Deze bepaling geldt in elk geval voor gebouwen (en hoogteaccenten) vanaf 30 meter hoogte.
Samengevat wordt dit in de volgende beleidsregel vertaald. |
De maximale bouwhoogte van een gebouw mag niet meer bedragen dan is aangegeven
Bij het meten van de bouwhoogte geldt de bepaling dat:
In het kader van een goede beoordeling van de gebouwen op bezonning en windhinder wordt:
|
Het doel is dat langs de stadsstraat Afrikaweg, de Centrumstraat en aan het Stationsplein een levendige doorlopende plint wordt gecreëerd. Door uitgangspunten vast te leggen voor deze plint wordt flexibiliteit gecreëerd voor verschillende programmatische invullingen door de jaren heen. Door ook zorg te dragen voor een zorgvuldig vormgegeven overgangszone tussen binnen & buiten middels de Zoetermeerse stoep, worden de optimale condities gecreëerd voor een stedelijk interactiemilieu op straatniveau. Het optimaal functioneren van het programma op de begane grond rondom het stedelijk blok is bepalend voor de maximale afmetingen van de parkeerlaag.

Met de plint worden de onderste lagen van het stedelijk blok bedoeld. Het zijn de bouwlagen waar de meeste interactie tussen binnen en buiten plaatsvindt en waar het niet-woonprogramma zich voornamelijk concentreert. In Entree zijn bepaalde plinten onderscheidend van de rest van het blok qua programma, formaat en uitstraling. In Entree wordt de verhoogde ligging van de stadsstraat benut door een éénlaagse parkeergarage te creëren waarvan het dak aansluit op het straatniveau van de stadsstraat.
Samengevat wordt dit in de volgende beleidsregel vertaald. |
Met betrekking tot de plint en parkeerlaag is het volgende bepaald:
|
Het doel is te komen tot een zorgvuldige compositie van hoogteaccenten die de skyline van Entree en Zoetermeer als geheel versterken. Daarnaast is het doel te zorgen voor een zorgvuldige inpassing van het beoogde gebiedsprogramma, gebruikmakend van de verdichtingsmogelijkheid die een toren biedt op een daarvoor geschikte locatie. Een zorgvuldige inpassing van het volume draagt bij aan een prettige beleving van het accent vanaf straatniveau en in de directe omgeving.
In Entree vormen de accenten toevoegingen aan de basishoogte van het stedelijk blok die specifieke plekken en routes tussen de stedelijke blokken binnen de Entree benadrukken. Tevens dragen zij bij aan de intensivering van het programma op een daarvoor geschikte locatie en zorgen ze voor een bijzondere woonvorm die afwijkt van de bebouwing in de basishoogte.
De beleidsregels met betrekking tot de hoogteaccenten zien toe op:
In de navolgende afbeeldingen zijn de ontwerpprincipes m.b.t. de hoogteaccenten weergegeven. De paragraven 4.4.1.3.1, 4.4.1.3.2 en 4.4.1.3.3 bevatten de bijbehorende beleidsregels.



4.4.1.3.1 Positie en bouwhoogte hoogteaccent
De positie van de hoogteaccenten is middels een ster indicatief aangegeven op de spelregelkaart. De exacte positie is onderdeel van nadere uitwerking. De ster is in de beleidsregel vertaald naar een zoekgebied voor het hoogteaccent, met bijbehorende bouwhoogte daarbij aangegeven.
Samengevat wordt dit in de volgende beleidsregel vertaald. |
Een hoogteaccent is mogelijk ter plaatse van:
Bij de bepaling van de positie van het hoogteaccent binnen het zoekgebied wordt:
Bij het meten van de bouwhoogte van een hoogteaccent geldt de bepaling dat de bouwhoogte van een hoogteaccent: |
4.4.1.3.2 Sokkel en setback hoogteaccent
Om te komen tot een prettige inpassing van de hoogteaccenten worden deze terugliggend geplaatst vanaf de rooilijn van het stedelijk blok en op een zogenaamde sokkel geplaatst. De sokkel is het onderste gedeelte van het volume. De sokkel staat in de rooilijn van het stedelijk blok en vormt daarmee in de beleving vanaf de straat een voorzetting van de basislaag van het stedelijk blok. De accenten steken daar bovenuit, en dragen bij aan de beleving op grotere afstand en het markeren van de stedelijke structuren.
Samengevat wordt dit in de volgende beleidsregel vertaald. |
Hoogteaccenten worden op een sokkel geplaats waarbij sprake is van een setback, zoals is aangegeven binnen de locatie 'Sokkel en Setback Entree Midden' gelden de volgende regels:
|
4.4.1.3.3 Footprint van het hoogteaccent
De positie van een hoogteaccent is onderdeel van nadere uitwerking. Ongeacht waarbinnen het zoekgebied (zie de beleidsregel m.b.t. de positie en bouwhoogte hoogteaccent) is de footprint van een hoogteaccent gebonden aan een aantal regels.
Samengevat wordt dit in de volgende beleidsregel vertaald. |
De footprint van hoogteaccent dat wordt gerealiseerd binnen de locatie 'Footprint hoogteaccent Entree Midden', voldoet aan de volgende regels: |
Door de stedelijke blokken binnen Entree op te delen in individuele, kleinere panden ontstaat een schaal die in de beleving vanaf de straat en in de omgeving, maar ook in de gebouwen prettig en herkenbaar is door de menselijke maat en afwisseling. De onderverdeling in meerdere panden zorgt daarnaast voor een goede spreiding van de levendigheid aan alle zijden van het samengestelde stedelijke blok.
De onderstaande afbeeldingen geven de ontwerpprincipes met betrekking tot de panden in het stedelijk blok weer. In de navolgende paragraven 4.4.1.4.1, 4.4.1.4.2 en 4.4.1.4.3 zijn de bijhorende beleidsregels opgenomen.

4.4.1.4.1 Positie van de panden
De verschillende stedelijke blokken staan in vaste rooilijnen. Hierdoor ontstaat een heldere begeleiding van de openbare ruimte en wegen.
Samengevat wordt dit in de volgende beleidsregel vertaald. |
De panden binnen Entree worden binnen de locatie 'Rooilijn vast' gerealiseerd en liggen in die rooilijn, daarbij gelden de volgende regels:
|
Om te zorgen dat er voldoende panden per stedelijk blok gemaakt worden is het aantal panden berekend dat per gevelwand van een stedelijk blok mag worden gerealiseerd. Voor de achterliggende berekening wordt verwezen naar paragraaf 4.3 van de Ontwikkelvisie Entree.
Samengevat wordt dit in de volgende beleidsregel vertaald. |
Het aantal panden binnen een blok in Entree is als volgt bepaald:
|
Door een zorgvuldige positionering van de entree van een stedelijk blok wordt maximale levendigheid op straat bereikt. Alle zijden van het stedelijk blok worden zo goed geactiveerd en een te hoge concentratie of conflict tussen verschillende functies of verkeersbewegingen in, uit of rondom het stedelijk blok wordt voorkomen.
De in- en uitgangen rondom het stedelijk blok vormen bronpunten en bestemmingen voor activiteiten in het gebied en zijn vanwege de herkenbaarheid en stimuleren van een levendige buitenruimte naar de openbare ruimte toe gericht. Dit kan een winkelpui of kantoorentree zijn van niet-woonprogramma in de plint, een gezamenlijke entreehal van een appartementencomplex en toegangen tot nuts- of parkeerprogramma. Ook kan een entree de directe voordeur van een woning zijn die op de begane grond altijd aan de openbare ruimte gelegen is.
Samengevat wordt dit in de volgende beleidsregel vertaald. |
Binnen de locatie 'Entree voordeuren' worden de entrees en voordeuren van functies binnen Entree beoordeeld op een zorgvuldige positionering in het blok, daarbij gelden de volgende regels:
|
4.4.1.5.1 Pleinruimte verbijzondering
Rondom de stedelijke blokken West 4, West 7.2, Oost 1 en Oost 4.2 (zie voor de positie van deze stedelijke blokken de Spelregelkaart) zijn verbijzonderingen met betrekking tot de vaste rooilijn aangegeven. Op deze plekken is een uitsparing in de vaste rooilijn voorgeschreven. Die uitsparing, of anders genoemd: pleinruimte verbijzondering, is bedoeld om extra ruimte te bieden in de openbare ruimte aan bijvoorbeeld extra groen, beweegruimte of ruimte voor verblijven.

Samengevat wordt dit in de volgende beleidsregel vertaald. |
Ten behoeve van extra oppervlakte voor de openbare ruimte ligt de rooilijn van het stedelijk terug, ter plaatse van:
De exacte maat waarin de rooilijn van het stedelijk blok terug ligt, is onderdeel van nadere uitwerking van het ontwerp van de stedelijke blokken, waarbij geldt dat bij het terugleggen van de rooilijn:
|
4.4.1.5.2 Centrumstraat en West 6 & West 7
Op de spelregelkaart is de ligging van de stedelijke blokken ter plaatse van West 6 en 7 bepaald en daarmee ook de ligging van de Centrumstraat. In de volgende afbeelding is dit tevens weergegeven.

Voor deze plots en ligging van de Centrumstraatzijn andere uitwerkingen denkbaar als alternatief, om een betere verbinding met de wijk Meerzicht via de Meerzichtlaan te maken. Daarbij is het denkbaar dat bij de uitwerking van de stedelijke blokken 6 en 7 een verschuiving van de Centrumstraat plaatsvindt. De stadsnis wordt in dat geval ook anders vormgegeven.

Samengevat wordt dit in de volgende beleidsregel vertaald. |
Binnen de locatie aangewezen als 'Centrumstraat en West 6 & West 7' zijn alternatieve uitwerkingen van de stedelijke blokken, de ligging van de Centrumstraat en de stedelijke blokken mogelijk. Een alternatieve ligging dient te passen binnen essenties en doelen van de Ontwikkelvisie Entree. |
Per blok worden ontwikkelaars uitgenodigd tot het introduceren van een (maatschappelijk gemotiveerd) experiment (zoals bijvoorbeeld een bijzondere typologie, collectiviteit, doelgroepen, duurzaamheid, etc). Het experiment kan als middel worden gebruikt om het blok eigenheid te geven. De plek van het experiment binnen het blok is niet vastgelegd.
Het doel is te komen tot een zorgvuldige en kwalitatief hoogwaardige inpassing van het totale programma, zodat ook in het stedelijk blok de juiste condities worden gecreëerd om het bijzondere programma, dat niet altijd standaard in de plint of ontwerpprincipes past, in te passen.
De stedelijke blokken van Entree bestaan uit een gemengd programma van wonen, werken en diverse voorzieningen. Bij dit programma komt een breed scala aan activiteiten kijken die passen bij een gemengde stadswijk. Een groot deel van dit niet-woonprogramma zal ingepast worden in de plinten. Enkele bijzondere functies vragen om een specifieke inpassing.
De toekomstige bebouwing van Entreepoort bestaat in essentie uit een langwerpig plintgebouw dat evenwijdig loopt aan de verkeersstromen van de randstadrail, de A12 en het spoor. Op dit plintgebouw staat een serie hoogteaccenten die een duidelijke zichtlocatie vormt en bijdraagt aan de beleving van Zoetermeer vanuit de voorbijrijdende trein, auto, tram of bus. Tegelijkertijd maken ze onderdeel uit van de beleving vanaf de stadsstraat, als markering van de stedelijke bebouwing van Entree, komend vanuit het noorden over de Afrikaweg. Deze accenten zorgen voor een compositie van aparte volumes, als een verwijzing naar de panden van het stedelijk blok in Entree Midden. De serie volumes heeft eveneens een afschermende werking van spoor- en snelweggeluid richting Entree Midden.
Met de Ontwikkelvisie Entree wordt een aantal belangrijke ontwerpprincipes op niveau van het deelgebied vastgesteld. Deze principes geven helderheid over de globale stedenbouwkundige opzet in relatie tot de omliggende bebouwing, van Entree Midden en de omliggende buurten. Het gaat er daarbij om helderheid te creëren over de maximale hoogtes, de vaste rooilijnen en de principes van de ontsluiting de Entreepoort. Deze ontwerpprincipes vormen het vertrekpunt voor een verdere planuitwerking in afstemming met de verschillende kaveleigenaren in het gebied. De opgedane inzichten kunnen leiden tot een verdere aanscherping van uitgangspunten.
Voor Entreepoort gelden de volgende beleidsregels


De toekomstige bebouwing van Entreepoort bestaat in essentie uit een langwerpig plintgebouw. Op dit plintgebouw staat een serie hoogteaccenten die een duidelijke zichtlocatie vormt en bijdraagt aan de beleving van Zoetermeer. Het plintgebouw is onderdeel van de nadere uitwerking van Entreepoort. Bij die nadere uitwerking van het plintgebouw wordt in elk geval de onderstaande beleidsregel in acht genomen.
Samengevat wordt dit in de volgende beleidsregel vertaald. |
Binnen de locatie 'Plintgebouw Entreepoort' wordt een plintgebouw gerealiseerd: |
Het beoogde doel van deze beleidsregel is om, in aanvulling op de beleidsregel beschreven in paragraaf 4.4.2.1 'Het plintgebouw', helderheid te scheppen over de bouwhoogtes van het plintgebouw.
Samengevat wordt dit in de volgende beleidsregel vertaald. |
De maximale bouwhoogte van een gebouw mag niet meer bedragen dan is aangegeven:
|
4.4.2.2.1 Positie en bouwhoogte van het hoogteaccent.
De positie van de hoogteaccenten is middels een ster indicatief aangegeven op de spelregelkaart. De exacte positie is onderdeel van nadere uitwerking. De ster is in de beleidsregel vertaald naar een zoekgebied voor het hoogteaccent, met bijbehorende maximale bouwhoogte daarbij aangegeven. Bij de nadere uitwerking gelden de maximale bouwhoogten die in deze beleidsregel zijn aangegeven.
Samengevat wordt dit in de volgende beleidsregel vertaald. |
Binnen het gebied Entreepoort kunnen hoogteaccenten worden gerealiseerd. Daarbij gelden de volgende regels:
|
4.4.2.2.2 Compositie van de hoogteaccenten
De hoogteaccenten binnen het deelgebied Entreepoort zorgen voor een compositie van losstaande volumes, als een verwijzing naar de panden van het stedelijk blok in Entree Midden. Bij de nadere uitwerking van het deelgebied Entreepoort wordt daar middels onderstaande beleidsregels invulling aan gegeven.
Samengevat wordt dit in de volgende beleidsregel vertaald. |
Binnen de locatie 'Compositie van de hoogteaccenten' is sprake van een zorgvuldige compositie van losstaande volumes door in de uitwerking het volgende in acht te nemen:
|
4.4.2.2.3 Footprint van het hoogteaccent
De positie van een hoogteaccent is onderdeel van nadere uitwerking. De hoogteaccenten hebben een ranke opzet. Ongeacht waarbinnen het zoekgebied (zie de beleidsregel m.b.t. de positie en bouwhoogte hoogteaccent) wordt bij de uitwerking van het deelgebied Entreepoort de onderstaande beleidsregel in acht genomen.
Samengevat wordt dit in de volgende beleidsregel vertaald. |
De footprint van hoogteaccent dat wordt gerealiseerd binnen de locatie 'Footprint hoogteaccent Entreepoort', voldoet aan de volgende regels: |
Het doel is te komen tot een robuuste groene inrichting van de binnentuinen. De overgangen tussen privé en collectief zijn zorgvuldig vormgegeven, zodat ze uitnodigen tot gebruik en het collectieve karakter van de tuin versterken en tegelijk de privacy van de eigen woonruimte garanderen. Daarnaast is de binnentuin uitnodigend voor bezoekers die de tuin via enkele doorsteken of poorten kunnen bereiken.
De stedelijke blokken van Entree zijn gesloten blokken met gebouwd programma rondom een binnentuin met een collectief karakter, en nodigen uit tot gebruik door de direct omwonenden in het blok. Diverse toegangen rondom maken het echter ook mogelijk om als bezoeker te gast de binnentuin te bezoeken. De tuinen vormen een oase van rust ten opzichte van de reuring en ruis aan de buitenzijde van het stedelijk blok.
Door de aaneenschakeling van doorsteken ontstaat de mogelijkheid om via de collectieve binnentuinen Entree op een bijzondere manier te voet te verkennen. Deze binnentuinenroute vormt een aanvulling op het formele netwerk van voetgangersroutes in de openbare ruimte en maakt het netwerk fijnmaziger

Samengevat wordt dit in de volgende beleidsregel vertaald. |
Daar waar een locatie 'Binnentuinenroute' is opgenomen, wordt binnen de blokken in Entree een route als onderdeel van de binnentuinenroute Entree gerealiseerd. Daarbij gelden de volgende regels.
|
Entree is een ambitieuze en duurzame gebiedsontwikkeling, gericht op een gezonde, groene leefomgeving. Hiertoe is een mobiliteitsstrategie Entree opgesteld.
De focus ligt op mobiliteit met lage milieubelasting, zoals lopen, fietsen, en het gebruik van openbaar vervoer, met de volgende uitgangspunten:
Aantrekken van bewoners en ondernemers die kiezen voor gezondheid en de nabijheid van openbaar vervoer.
Vermijden van onnodige verplaatsingen door thuiswerken en voorzieningen dichtbij huis.
Mobiliteit met prioriteit voor voetgangers, fietsers, en openbaar vervoer, terwijl autoverkeer minder ruimte krijgt.
Stimuleren van gedragsverandering om gezond verplaatsingsgedrag te bevorderen.
De openbare ruimte in Entree is gericht op gezond bewegen en leefbaarheid. De wijk is inclusief, met voorzieningen voor verschillende doelgroepen, zoals senioren en mensen met een beperking. Door voldoende voorzieningen op loop- of fietsafstand, werkruimtes aan huis en goed georganiseerde vervoersvoorzieningen wordt de behoefte aan (auto-) mobiliteit verminderd. Maar ook marketing om de juiste huishoudens aan te spreken die onder deze specifieke omstandigheden zich in Entree willen vestigingen. Voor bijzondere verkeersbehoeften, zoals hulpdiensten en bezorgdiensten, zijn speciale voorzieningen en logistieke oplossingen, zoals ‘bezorghubs’, in de plannen opgenomen.
Het voetgangersnetwerk is gebaseerd op een fijnmazig stelsel van paden en trottoirs, met brede trottoirs langs de Afrikaweg en gelijkvloerse voetgangersoversteekplaatsen. Het netwerk zorgt voor veilige en comfortabele verbindingen voor voetgangers. Het fietsnetwerk wordt geoptimaliseerd, zowel voor doorgaand fietsverkeer als fietsverkeer naar en van bestemmingen in Entree. Fietspaden worden breed en vrijliggend aangelegd, met stallingsmogelijkheden in de openbare ruimte voor bezoekers die voetgangers niet hinderen. Bewoners kunnen inpandig hun fiets veilig parkeren.
Er wordt ingezet op het verminderen van het autobezit door deelautosystemen, met de ontwikkeling van Mobility Hubs en MaaS-diensten (Mobility as a Service). Hiermee worden duurzamere mobiliteitskeuzes, zoals het delen van auto’s en fietsen, en het gebruik van MaaS-diensten gestimuleerd. Dit draagt bij aan het verminderen van de parkeervraag en het gebruik van de auto in het gebied.
Er wordt gestreefd naar het verminderen van het autobezit en autogebruik in en door Entree. De Afrikaweg blijft wel als belangrijke verbindingsroute voor autoverkeer bestaan, maar wordt onderdeel van Entree als stadsstraat. Door een rem op het autogebruik te zetten ontstaat er op deze weg capaciteit om gelijkvloers over te steken waarmee de leefbaarheid in Entree wordt versterkt.
Door de infrastructuur voor autoverkeer te beperken wordt ruimte gemaakt voor fietser en voetganger, maar ook voor andere functies als groen, water en spelen. De Afrikaweg blijft een belangrijke verkeersader.
Parkeren wordt in die mate gefaciliteerd, dat de ruimtelijke en programmatische ambitie kan worden gerealiseerd. Het auto parkeren voor bewoners en bezoekers dient opgelost te worden binnen de stedelijke blokken. Dit geldt ook voor het fietsparkeren van bewoners. Het fietsparkeren voor bezoekers zal wel grotendeels plaatsvinden in de openbare ruimte. Daartoe zijn specifiek voor Entree parkeernormen benoemd, wordt maximaal ingezet op deelmobiliteit en marketing gericht op deze doelgroepen. Hierdoor wordt voorkomen dat de openbare ruimte wordt overbelast met parkeerplaatsen. Er wordt een balans gevonden tussen de ruimte die nodig is voor het parkeren van privéauto’s in combinatie met het stimuleren van andere vormen van mobiliteit.
In Entree is de bevoorrading, afvalinzameling en onderhoud efficiënt geregeld, waardoor logistiek autoverkeer in de voetgangerszone rondom het stedelijk blok zo veel mogelijk wordt beperkt en hinder op de omgeving wordt voorkomen. Inpandige voorzieningen ten behoeve van de logistiek zijn vanaf de openbare ruimte goed toegankelijk, en zorgvuldig ingepast in de gevel. De logistiek wordt zo om de stedelijke blokken gepositioneerd dat de voorzieningen en het wonen in de stedelijke blokken goed kunnen functioneren en waarbij de hinder hiervan in de buitenruimte wordt beperkt.
In hoofdstuk 5 van de Ontwikkelvisie Entree zijn deze principes meer in detail uitgewerkt en in paragraaf 3.1 onder het kopje: Mobiliteit en parkeren.
Samengevat wordt dit in de volgende beleidsregel vertaald. |
Het gebied wordt zodanig ontwikkeld dat invulling wordt gegeven aan de ambities m.b.t. duurzaam gebiedsgerichte mobiliteit, met daarbij de focus op mobiliteit met lage milieubelasting, zoals lopen, fietsen, en het gebruik van openbaar vervoer, met de volgende uitgangspunten:
|
De hoge bebouwingsdichtheid van Entree, met veel activiteit, veel voorzieningen, beweging en reuring, vraagt om een inrichting van de buitenruimte waar ook voldoende groen aanwezig is en ruimte voor ontspanning. De inzet voor de buitenruimte van Entree is een prettige woonomgeving, die qua ambitie past bij de uitstraling van de gebouwen, en bij het hoogstedelijk karakter van Entree. Veel mensen maken gebruik van de buitenruimte, om te verblijven, te ontmoeten, om te sporten en buiten te spelen. In de stadsstraat is reuring, rustiger zijn de groene binnentuinen van de stedelijke blokken, de woonerven in de tussenstraten en de nabij gelegen parken.
De essentie van de openbare ruimte in Entree wordt gevormd door:
Een robuust groen-blauw raamwerk in verbinding met omgeving.
Levendige en verbindende stedelijke openbare ruimte/ verblijf en ontmoeting altijd dichtbij.
Het robuuste raamwerk bestaat uit de groen-blauwe kraag rondom Entree en de sterke bomenstructuur van de stadsstraat. Binnen Entree worden stedelijke groenvakken op de Afrikaweg en in de tussenstraten verbonden met de nieuw aan te leggen groene binnenterreinen, de daktuinen en de groene gevels. De groen-blauwe kraag wordt aangesloten op bestaande groengebieden als het Prinses Arianepark, het Westerpark, het Bossenpark en het plantsoen in de kop Waterbuurt. De uitbreiding van de waterstructuur in de groen-blauwe kraag sluit aan op bestaande waterlopen en er worden nieuwe verbindingen gemaakt. De groen-blauwe kraag is belangrijk voor de compensatie van het toevoegen van verhardingen, het opvangen van de gevolgen van klimaatverandering (hitte, droogte, wateroverlast) in natuurlijke systemen (zie ook ‘intrinsieke duurzame wijk’).
Entree is een woonwijk met adressen en voorzieningen aan een centrale stadsstraat, die het stationsgebied met Centrum West en de Binnenstad verbindt. De verschillende plekken en pleinen met de stedelijke blokken worden verbonden door een aaneengesloten voetgangersgebied met eenduidige materialisatie. De openbare ruimte aan de Afrikaweg, waar de voetganger het primaat heeft, ademt kwaliteit uit met een vriendelijk ogende elementenverharding. De eenduidige uitstraling van de bestrating is rondom heel Entree te herkennen. De trottoirs zijn breed, zodat er ruimte is voor groen, verblijf en ontmoeting en zijn in verhouding met de bebouwingshoogte. De buitenruimte is toegankelijk en gebruiksvriendelijk, onder meer door de niveauverschillen goed op te lossen.
Groen op loopafstand is kenmerkend voor de Zoetermeerse wijken. Zo ook in Entree: groen is om de hoek, evenals plekken voor ontmoeting, verblijf, sporten en spelen binnen de nieuwe wijk. Verschillende typen en groottes van plekken bevinden zich op korte afstand van de woning. Naast een eigen plekje binnen private buitenruimtes, de collectieve daken en de Zoetermeerse Stoep, is iedere bewoner zo in de semi-openbare, groene binnentuin. Kinderen hebben hier de mogelijkheid om veilig te spelen zonder een straat over te steken.
De groen-blauwe kraag kan opgedeeld worden in verschillende zones, met elk een ander sfeer, beplanting, doelsoorten en inrichtingsprincipes. De verschillende overgangen zorgen voor grotere leefgebieden van planten en dieren en meer biodiversiteit. Waar mogelijk blijven bestaande groenstructuren behouden en worden zij ingepast in de nieuwe ontwikkeling. Dat zal vooral langs de randen van Entree zijn, langs de Boerhaavelaan en het Bredewater. Delen van die bestaande structuren bestaan uit grote oude bomen die in hoge mate het groene aanzicht van het kenmerkende straatbeeld bepalen. Veel van deze bomen zijn dermate oud dat behoud op de lange termijn niet verantwoord is. Deze bomen blijven in Entree behouden zolang dit verantwoord is terwijl jonge nieuw aangeplante bomen in die tijd steeds meer in volume toenemen. Dit zorgt ervoor dat tijdens de realisatie van de nieuwe ontwikkelingen blijft het totale volume van boomkronen zo groot als mogelijk is.
Er zijn ook deelgebieden die een nieuwe inrichting krijgen. Doordat de wijk in het nieuwe plan aan twee zijden (oost en west) geleidelijk oploopt naar de Afrikaweg wordt er veel veranderd in de hoogtepeilen en de infrastructuur van het gebied. Dat zorgt voor beperkingen bij het inpassen van het bestaande groen, waardoor niet veel van het bestaande groen behouden kan worden.
Een groot deel van de wateropgave zal worden gerealiseerd op de kavels door middel van maatregelen in de kelder, in de binnentuinen en ook deels op de daken. Het overige deel van de wateropgave wordt in de openbare ruimte opgelost in de vorm van extra oppervlaktewater. Het water draagt bij aan de natuurlijke beleving en past bij de identiteit van Zoetermeer. Ook levert het een bijdrage aan het ecologische systeem.
De plantvakken in de Afrikaweg zijn deels verhoogd, zodat de randen ervan ook zitelementen zijn. In de bakken staat vaste beplanting van diverse groottes, bomen en meerstammige struiken. Sierwaarde en seizoensbeleving zijn het uitgangspunten.
Het gevelgroen wordt bij voorkeur geplant in de volle grond, waardoor het levensvatbaar is. Deze beplantingen dragen bij aan verkoeling en aan vergroening. De binnentuinen zetten de beplantingen en bomen/ meerstammige struiken van de plantvakken in de tussenstraten door.
In Entree wordt vol ingezet op gezondheid; actief bewegen en natuurlijk spelen dragen hieraan bij. Een natuurspeelplek, sportveldjes en -voorzieningen bevinden zich in deels in de groene kraag, zodat deze vanaf iedere woning goed te bereiken zijn. De realisatie van speelvoorzieningen voor de leeftijd 0-12 jaar vindt plaats binnen de stedelijk blokken en ligt bij de ontwikkelaar van de kavels. Een aantal speelvoorzieningen voor oudere kinderen (12+) wordt in de openbare ruimte van Entree gerealiseerd.
De openbare ruimte van de stadsstraat Afrikaweg wordt gedefinieerd door de bebouwing aan weerszijden. De gebouwen staan in principe in een vaste rooilijn, waardoor het profiel van de stadsstraat herkenbaar wordt. Op specifieke plekken, daar waar de stadsstraat wordt gekruist door oversteken, vindt er een uitzondering plaats door middel van een sterke verspringing in de rooilijn, waardoor er pleinruimtes worden gevormd.
De stadsstraat zal voor voetgangers een fijne plek zijn. Een aangenaam verblijfsklimaat is voor een geslaagde stadsstraat een essentiële kwaliteit. De hoeveelheid verkeer op de Afrikaweg blijft groot, maar het profiel krijgt een andere indeling waarbij er minder ruimte voor de auto is. Basiseisen voor de inrichting van de Afrikaweg zijn: verblijfsplekken waar je in de luwte van het verkeer kunt zitten, een afwisseling van schaduw en zon, veel groen, bescherming tegen windhinder en obstakelvrije looproutes.
De gebouwen langs de stadsstraat worden allen voorzien van een plint. Deze biedt ruimte aan voorzieningen die levendigheid brengen op de straat en binnen de gebouwen. Er vindt een duidelijke uitwisseling plaats tussen gebouw en openbare ruimte. Dit is de ruimte bij uitstek waar ontmoeting en verblijven plaatsvinden.
De dwarsstraten zijn de verbindende straten tussen de blokken in, die dwars op de Afrikaweg uitkomen. Meer over de Dwarsstraten in paragraaf 4.6.4.
De Centrumstaat is een bijzondere dwarsstraat en met 20 meter breedte, breder dan de overige dwarsstraten. De straat vormt de belangrijkste oost-west verbinding die de wijken Meerzicht en Driemanspolder met elkaar en met Entree verbindt. De straat vormt ook belangrijke plek voor niet- woonprogramma op de begane grond.
De veilige en comfortabele oversteek van de Afrikaweg geeft betekenis aan de stadsstraat, terwijl deze ook nog een druk bereden autoverbinding zal blijven. Daarom is een bijzondere vormgeving van deze plek essentieel. Dat vraagt om een integraal stedenbouwkundig ontwerp van de bebouwing, de inrichting van het maaiveld, het programma en het verkeersontwerp. Bij de bebouwing gaat het dan over de stadsnissen, de plinten, de pleinwanden inclusief de juiste plaatsing van de hoogteaccenten.
De inrichting van het maaiveld betreft de bestratingen, beplantingen (inclusief bomen), verlichting en overig straatmeubilair zodat alle functies die op een stadsplein thuishoren er een plek kunnen vinden. Het verkeersontwerp levert in eerste instantie een veilige oversteek op die qua vormgeving en technische voorzieningen duidelijk maakt dat in dit gebied het autoverkeer zich dient te richten naar de veiligheid en het comfort van de voetganger.
De kruising tussen de Centrumstaat en Afrikaweg wordt vormgegeven door een stadsnis. Hier ligt de rooilijn flink terug en wordt er een verblijfsplein gevormd. Dit is de plek voor groen en zitelementen, om horeca met terrassen en speciaal programma in de plint te programmeren, dat zorgt voor levendigheid en reuring.
De dwarsstraten zijn de verbindende straten tussen de blokken in, die dwars op de Afrikaweg uitkomen. In basis een hellende straat, die het hoogteverschil tussen het Bredewater/ Boerhaavelaan en de Afrikaweg overbrugt. Door de flauwe hellingen blijft de wijk op deze manier toegankelijk voor mindervaliden.
Een klein aantal dwarsstraten zal een deel hellend en een deel vlak worden uitgevoerd en op hoogte van de Afrikaweg worden aangelegd. Dit heeft als voordeel dat een eventuele parkeervoorziening onder de straat kan worden doorgetrokken. In dit geval zal de bereikbaarheid middels trappen en dwarsliggende hellingbaan verlopen. Ter plaatse van de pleinruimte is het mogelijk dat deze onderbouwd wordt t.b.v. de parkeervoorziening bij het bouwblok.
De dwarsstraten die gekoppeld worden aan oversteken over de Afrikaweg en die op het schaalniveau tussen de wijken een rol vervullen, zullen altijd hellend worden uitgevoerd, waardoor er ook fietsers gebruik kunnen maken om de Afrikaweg te kunnen bereiken vanuit de omliggende wijken.
De dwarsstraat is 16 meter breed, is voetganger vriendelijk en biedt toegangen tot de binnentuinen van de woonblokken, waar grotere, groene speel- en verblijfsplekken zijn voor de buurt. Ze zijn toegankelijk voor hulpdiensten en andere voertuigen die incidenteel van de straat gebruik maken. Deze straten worden ingericht als 15 km/u-gebied/ woonerf, waardoor er geen verhoogde stoepen nodig te zijn. De straten hebben voor het grootste gedeelte een woonfunctie; ze bieden toegang tot de voordeuren van woningen, en tot de binnenterreinen. De Zoetermeerse stoep, met geveltuinen en bankjes voor de gevel zorgen voor eigenaarschap op deze woonerven. De straat oogt groen en vriendelijk, met groenvakken en bomen.

In Entree wordt stedelijkheid gebouwd in een voor Zoetermeer flink hogere dichtheid. De tijd van functiescheiding is voorbij, de levendige stad wordt juist door functiemenging gekarakteriseerd. De programmering in Entree is een van de belangrijkste onderdelen van de gebiedsontwikkeling om te komen tot een nieuw en levendig stadsgebied.
De doelstellingen voor de programmering:
Creëren van een aantrekkelijke mix met stedelijke allure van hoogwaardige, (betaalbare) woningen, voorzieningen en bedrijfsruimten.
Het invullen van een groot deel van de woningopgave van Zoetermeer en de regio
Ruimte bieden voor de groeiende behoefte aan bedrijfsruimte in de regio en schuifruimte voor de huidige bedrijventerreinen.
De programmering van Entree is afgestemd met de programma’s Ruimtelijke Strategie 2040 en Woningbouw als Aanjager om zodoende voor wonen en andere functies de juiste vertaling te maken op de schaalniveaus regio, Zoetermeer, Entree en overige wijken. Ter ondersteuning van het totale programma van Entree is een behoefte-onderzoek (Laddertoets) opgesteld door onderzoeksbureau Stec, deze is in te zien op de website Entree Zoetermeer.
Onder begeleiding van woningonderzoekbureau Companen is een Visie op Wonen opgesteld, deze is in te zien op de website Entree Zoetermeer. Deze visie bevat onder andere een doelgroepenanalyse met vertaling naar een woonbibliotheek. Deze is gebruikt tijdens de participatie en heeft uiteindelijk geresulteerd in de woonbibliotheek, zoals opgenomen in de Ontwikkelvisie. Entree biedt een grote verscheidenheid aan huisvesting voor diverse doelgroepen, en er zal veel aandacht gaan naar specifiek drie doelgroepen: jongeren, stedelijke huishoudens en senioren. Dit alles heeft geresulteerd in de volgende programmering op hoofdlijnen voor Entree:

De totale woningopgave binnen de totale gebiedsontwikkeling is verdeeld in 3 hoofdsegmenten met voor elk een bandbreedte:
Goedkope huur/Sociale huur: 27% - 30%
Middeldure-huur woonruimten/ Betaalbare koop: 25% - 35%
Vrij voor overig woonprogramma: 35% - 48%
Om een levendige stadsstraat en een goede leefbare stadswijk te maken is een goede basis van voorzieningen nodig voor de woningen. Qua voorzieningen is een mix van verschillende functies nodig die op verschillende tijden (’s ochtends tot ’s avonds) activiteit laten zien. Entree alleen in de buitenruimte maar ook door de positionering van woningen ten opzichte van de andere functies.
Een levendige plint ontstaat niet vanzelf, maar is wel cruciaal voor het slagen van de stadsstraat. Hiervoor is een plintenstrategie opgesteld, deze is in te zien op de website Entree Zoetermeer. De plintenstrategie richt zich op de positionering, de programma-mix in de plint, plintenkaart en proces om ambitie en doelstellingen te bereiken. Ruimtelijk gezien zijn de plinten die voor interactie zorgen met de openbare ruimte – en dus adequaat ontworpen en gevuld met toepasselijk programma - vooral belangrijk langs beide zijden van de Afrikaweg, langs de Centrumstraat en aan het Stationsplein. Commerciële functies zoals detailhandel en horeca vormen ‘brandpunten’ bij de kruising Afrikaweg-Centrumstraat en nabij het station.
Om de biodiversiteit te behouden en versterken in Zoetermeer wordt Entree natuurinclusief ontwikkeld. Daarbij wordt ingezet op het behoud en de versterking van natuur, het verbinden van groen-blauwe structuren, habitatrealisatie, en het realiseren van voldoende ruimte voor natuur in het plangebied. De duurzaamheidsthema’s staan niet op zichzelf en kunnen elkaar versterken, de som is meer dan de losse delen. Het integreren en combineren van deze duurzaamheidsthema’s in het stedenbouwkundig ontwerp biedt de kans om van Entree een intrinsieke duurzame wijk te maken.
De doelen van de duurzaamheidsthema’s zijn samen te vatten in een hoofddoel namelijk: ‘Groen tenzij’. Deze maatregel draagt bij aan meerdere facetten van duurzame ontwikkeling. Het toevoegen van groen draagt bij aan klimaatadaptatie, aan biodiversiteit en natuurinclusief, aan de gezondheid (stressreductie, eerder herstel na ziekte). Daarnaast draagt groen ook bij aan de energieopgave. Door de verkoelende werking van groen wordt het rendement van zonnepanelen verhoogd. Vanuit circulair oogpunt zorgt groen voor een langere levensduur van de dakbedekking. Tenslotte heeft groen ook een positief effect op de vastgoedwaarde.
Met Entree wil de gemeente Zoetermeer een intrinsieke duurzame wijk realiseren. Hierbij zijn – in navolging van het convenant Toekomstbestendig bouwen van de Provincie Zuid Holland - zes verschillende thema’s nader uitgewerkt:
klimaatadaptatie;
natuurinclusiviteit en biodiversiteit;
duurzame mobiliteit (zie ‘duurzaam gericht mobiliteitsbeleid’);
energie;
circulariteit;
gezonde leefomgeving.
Hierna zijn per thema beknopt de doelstellingen en essenties weergegeven. Deze zijn in de ontwikkelvisie nader uitgewerkt in principes. Daar waar eisen gelden die een opgave zijn voor de gemeente (openbaar gebied) of ontwikkelaars (private gronden) is dit in een beleidsregel vertaalt. Een deel van de principes zijn ambities die in de toekomst mogelijk verder kunnen uitgewerkt en opgepakt. Daarom is een algemene beleidsregel opgenomen dat per bouwplan – in samenspraak met ontwikkelaar – wordt bekeken of een verdere invulling van deze ambities mogelijk is. In de Ontwikkelvisie is dit ook verwoord door het streven om geleidelijk een hogere prestatieniveaus te bereiken.
Het gebied wordt klimaatadaptief ontwikkeld, wat betekent dat het droogtebestendig, hitte-proof en waterrobuust is, zodat het gebied zowel leefbaar als veilig blijft voor bewoners, ook tijdens extreme weersomstandigheden. Het doel is enerzijds om de stad weerbaar te maken tegen de negatieve effecten van watertekorten en hitte, maar ook te zorgen voor een veerkrachtige waterhuishouding. Ook is het streven om het drinkwater verbruik te verminderen zonder in te boeten op de kwaliteit van leven of de gezondheid van de bewoners. Voor een veerkrachtige waterhuishouding die die het vermogen van de stad versterkt om met extreme weersomstandigheden om te gaan.
Naast de al wettelijke eisen van het waterschap en rijksregels voor duurzaamheid (BENG-eisen en bouweisen uit het Besluit bouwwerken leefomgeving) wordt in Entree ingezet op voldoende schaduw, koele (inpandige) verblijfsplaatsen, robuuste groenvoorzieningen en een waterrobuuste inrichting.
De ontwikkeling van de wijk Entree heeft als doel een robuuste ecologische structuur te creëren die de biodiversiteit bevordert, natuur en stedelijkheid met elkaar verbindt en de ecologische hoofdstructuren van Zoetermeer versterkt. Het gebied is belangrijk voor zowel flora als fauna en speelt een cruciale rol in de ecologische verbinding tussen natuurgebieden buiten de stad en stedelijke parken. Door natuurinclusief bouwen en het versterken van bestaande ecologische kwaliteiten, wordt het gebied een aantrekkelijke en gezonde leefomgeving voor zowel mensen als dieren.
Het gebied wordt zodanig ontwikkeld dat de ecologische hoofdstructuur wordt versterkt en de natuur in de wijk wordt behouden en versterkt. Hier wordt onder verstaan:
Rondom Entree wordt een nieuwe blauw-groene kraag gerealiseerd die een ecologische verbindingszone vormt tussen de wijk en omliggende natuurgebieden. Binnen Entree vormen de binnentuinen als ecologisch kralen. Zowel de blauw-groene kraag als de ecologische kralen worden aangelegd volgens het inrichtingsplan.
Ecologische lijnen en bestaande natuurwaarden worden zoveel als mogelijk behouden. Als dat niet mogelijk is, zal de nieuwe inrichting moeten voldoen aan het (nog op te stellen) inrichtingsplan.
Menselijke verstoringen in de ecologische structuren wordt zoveel als mogelijk voorkomen. Aanleg vindt plaats volgens het (nog op te stellen) inrichtingsplan.
De inrichting van het gebied richt zich op het creëren van habitats voor vijf belangrijke doelsoorten, waaronder struik-broedende vogels, vleermuizen, egel, watergebonden soorten en wilde bijen. Aanleg van deze habitats vindt plaats volgens het (nog op te stellen) inrichtingsplan.
Samengevat wordt dit in de volgende beleidsregel vertaald. |
Het gebied wordt zodanig ontwikkeld dat de ecologische hoofdstructuur wordt versterkt, de natuur in de wijk wordt behouden en versterkt waardoor de biodiversiteit wordt versterkt. Hiervoor wordt een (ecologische) gebiedsaanpak en inrichtingsplan opgesteld waaraan de aanleg van de openbare ruimte en de binnentuinen en het instandhouden daarvan aan moet voldoen. |
De wijk Entree wordt ontworpen met een sterke focus op duurzame energie, waarbij hernieuwbare bronnen zoals zonnepanelen en bodemenergie (WKO) de basis vormen voor het energieverbruik. De wijk is aardgasvrij met een optimaal en gezond binnenklimaat met aandacht voor koeling en ventilatie en dat wordt gevoed door duurzame energie. De ontwikkeling speelt in op innovaties zoals zonnepanelen in gevels, bodemwarmte en mogelijk aquathermie en buurtbatterijen.
Circulair bouwen betekent het ontwerpen en realiseren van bouwwerken die aan het einde van hun levensduur eenvoudig gedemonteerd, hergebruikt of gerecycled kunnen worden. Dit vraagt om innovatieve en toekomstgerichte bouwpraktijken die aansluiten op wet- en regelgeving en maatschappelijke ambities. Het doel is het realiseren van een stadswijk die duurzaam omgaat met grondstoffen door waar mogelijk materialen te hergebruiken, CO₂-uitstoot te minimaliseren en afval te voorkomen.
De ontwerpprincipes zijn overgenomen uit Het Nieuwe Normaal, dat ook is opgenomen in Convenant Toekomstbestendig Bouwen 2.0 (4‑10‑2024) en dient als inspiratie voor verdere uitwerking van de plannen.
Het gebied Entree ondergaat een transformatie van een verouderd kantoren- en parkeerterrein naar een levendige stadswijk. Vanwege de aanwezigheid van verschillende geluidbronnen ((snel)weg(en), spoorwegen en milieubelastende activiteiten) die het gebied omringen, is de waarde van geluid in delen van het plangebied hoog. Dit vereist een zorgvuldige aanpak om de geluidsimpact zoveel mogelijk te beperken en een zo goed mogelijk woon- en leefklimaat te realiseren.
Het geluidbeleid is vastgelegd in het 'Afwegingskader geluid[1] en het Geluidskader Entree (bijlage V) om ervoor te zorgen dat de ontwikkeling voldoet aan het wettelijk kader en gezondheidsoverwegingen. In paragraaf 3.1 wordt verder ingegaan op het thema ‘geluid’. Het doel is om geluidsoverlast te beheersen en zo veel mogelijk te beperken bij de ontwikkeling van het gebied Entree.
Vanwege de aanwezigheid van verschillende lokale bronnen zoals (snel)wegen en de heersende achtergrondconcentraties is de luchtkwaliteit in het plangebied een belangrijk aandachtspunt. Dit vereist een zorgvuldige aanpak om de luchtkwaliteit in het gebied zo goed mogelijk te krijgen en een goed woon- en leefklimaat te realiseren.
Voor enkele activiteiten moet de overheid de luchtkwaliteit altijd beoordelen. Dit volgt uit de taak tot het evenwichtig toedelen van functies aan locaties (ETFAL). Het gaat hierbij onder andere om een aanvraag voor een omgevingsvergunning voor een milieubelastende activiteit. De gemeente moet beoordelen of de luchtkwaliteit aanvaardbaar is. Voor nieuwe ontwikkelingen, zoals nieuwe woningen, toetst de gemeente in het kader van ETFAL aan de rijksomgevingswaarden uit het Besluit kwaliteit leefomgeving (Bkl). Hierbij moet toetsing plaatsvinden op locaties waar zich mensen voor langere tijd bevinden (blootstellingscriterium).
Een belangrijke ambitie van Entree is het realiseren van een leefomgeving die mensen stimuleert om actief te bewegen, elkaar te ontmoeten, en te genieten van een gezond en aangenaam klimaat. Het is belangrijk dat de openbare ruimte zodanig wordt ingericht dat die daartoe uitnodigt en toegankelijk voor is.
Naast de Ontwikkelvisie Entree is het Beeldkwaliteitsplan Entree (bijlage III) opgesteld. Dit beeldkwaliteitsplan gaat in op de gewenste ruimtelijke en architectonische kwaliteit van de bebouwing in Entree en legt de beoogde kwaliteit vast. Het beeldkwaliteitsplan wordt door de gemeenteraad vastgesteld en wijzigt daarmee de Welstandsnota Zoetermeer 2012, voor zover het de gronden van het plangebied Entree betreft.
Op grond van de Welstandsnota Zoetermeer 2012 geldt ter plaatse van Entree het volgende:
Intensief welstandsniveau.
Welstandsgebied Snelweg Hoofdwegenstuctuur.
Beeldkwaliteitsplan Boerhaavelaan.
In de volgende figuur is dit weergegeven: links de gronden van Entree, midden de gebieden Snelweg-Hoofdwegenstructuur’ (blauw), ‘Meerzicht’ (lichtgeel) en een klein deel van het gebied ‘Historische Linten’ (oranje) en rechts Beeldkwaliteitsplan Boerhaavelaan (blauw) en Beeldkwaliteitsplan Voorweg (oranje).

In essentie blijft het intensieve welstandsniveau gelden. Volgens de welstandsnota betreft dit: 'In welstandsintensieve gebieden is behoud of zelfs herstel van de structuur en het bebouwingsbeeld uitgangspunt. Er worden hogere eisen gesteld aan het ontwerp en de relatie met de omgeving. Er dient te worden voortgebouwd op de oorspronkelijke context; dit kan traditioneel of vernieuwend, met gebruikmaking van nieuwe interpretaties'.
Met de vaststelling van het Beeldkwaliteitsplan Entree (bijlage III) wordt een nieuwe invulling van het toetsingskader voor welstand voor het gehele gebied vastgesteld. Met andere woorden toekomstige ontwikkelingen en plannen binnen Entree worden voor wat betreft beeldkwaliteit en openbare ruimte getoetst aan het Beeldkwaliteitsplan Entree. Dat heeft als gevolg dat het Beeldkwaliteitsplan Boerhaavelaan wordt ingetrokken. En dat ter plaatse van de gronden binnen Entree waar geen beeldkwaliteitsplan voor was vastgesteld, deze gronden vallen onder het Beeldkwaliteitsplan Entree.
Onder de Omgevingswet loopt het welstandstoezicht via het omgevingsplan. In het omgevingsplan kunnen regels worden opgenomen over het uiterlijk en de plaatsing van bouwwerken. Hebben deze regels over het uiterlijk van bouwwerken uitleg nodig, dan is de gemeenteraad verplicht om op grond van artikel 4.19 van de Omgevingswet beleidsregels vast te stellen. Indien daar sprak van is, dan strekt de beleidsregel over het uiterlijk van bouwwerken zich tot materialisering, kleurgebruik, maatvoering en vormgeving.
De plaatsing van de bouwwerken is ook onder de Omgevingswet nog steeds onderdeel van de welstandsbeoordeling (artikel 22.29 Bruidsschat - binnenplanse omgevingsvergunning). In het nieuwe deel van het omgevingsplan kunnen regels over de plaatsing van bouwwerken zoveel met de ruimtelijke planregels worden geïntegreerd. De specifieke invulling van de regels voor plaatsing kan dan in een aanvullende beleidsregels staan.
Ter plaatse van Entree geldt het tijdelijke Omgevingsplan. Er zijn ten tijde van het opstellen van het Omgevingsprogramma Entree geen regels in het omgevingsplan opgenomen omtrent het uiterlijk van bouwwerken (behoudens de bruidsschatregels) en de regels met betrekking tot de plaatsing van bouwwerken zijn niet toegesneden op de actuele ontwikkeling.
Om die reden zal Entree mogelijk worden gemaakt middels omgevingsvergunningen voor een Buitenplanse Omgevingsplan Activiteit (BOPA, zie ook hoofdstuk 10 Vervolg). In die gevallen kan het college van Burgemeester en wethouders de Commissie Ruimtelijke Kwaliteit (CRK) om advies vragen. De CRK gebruikt het Beeldkwaliteitsplan Entree dan als toetsingskader.
Naast de voorgenoemde toets in het formele traject van een aanvraag omgevingsvergunning, is het ook de bedoeld dat het Beeldkwaliteitsplan Entree als inspiratie- en toetsingskader wordt gebruikt in de fase van idee tot planvorming (zie ook hoofdstuk 10). Daarom wordt er een beleidsregel opgenomen die er zorg voor draagt dat het Beeldkwaliteitsplan Entree als zodanig wordt toegepast.
Samengevat wordt dit als volgt in de beleidsregel vertaald. |
Met oog op het bereiken en in stand houden van een goede omgevingskwaliteit, en het behalen van de na te streven beeldkwaliteit van de gebouwen en openbare ruimte binnen Entree, wordt het Beeldkwaliteitsplan Entree betrokken bij zowel de ontwerpfase als de toetsingsfase van de omgevingsvergunning. Daarmee is het Beeldkwaliteitsplan Entree (bijlage III) voor de initiatiefnemer, de gemeente, de CRK en het Q team Entree het inspiratie- en toetsingskader. |
Met Entree voegt Zoetermeer een nieuwe wijk aan de stad toe. In lijn met de Zoetermeerse traditie krijgt ze een eigen karakter en onderscheidende beeldkwaliteit, waar bewoners en gebruikers zich mee kunnen identificeren. In Entree wordt gestuurd op samenhang vanuit familiaire kenmerken. Daarmee overstijgt de identiteit van het gebied de identiteit van een individueel stedelijk blok, pand, object of plek.
In het Beeldkwaliteitsplan Entree (bijlage III) zijn deze zeven planessenties uit de Ontwikkelvisie vertaald in ruimtelijke (architectonische) essenties en ontwerpprincipes voor de beeldkwaliteit in Entree Midden. De essenties geven voldoende richting voor een kwalitatieve ontwikkeling van Entree, maar laten vanwege de langjarige ontwikkeling, bewust ruimte voor interpretatie en nieuwe inzichten.
Zoals ook al is aangegeven in paragraaf 4.3.2 volgt het gebied Entreepoort een andere ontwikkelpad in tijd dan Entree Midden. In het Beeldkwaliteitsplan Entree zijn dan voor Entreepoort dan ook nog geen essenties en ontwerpprincipes opgenomen. De essenties voor Entree Midden vormen later het vertrekpunt en leggen de basis voor de beeldkwaliteit in de omgeving Entreepoort. In een later stadium worden de essenties voor de omgeving geschreven en aan het Beeldkwaliteitsplan Entree toegevoegd
In de navolgende alinea's volgt een samenvatting van de essenties voor de gewenste beeldkwaliteit voor Entree. Deze essenties vormen de criteria op basis waarvan ontwerpen worden beoordeeld. Voor een uitgebreidere toelichting op de essenties en de bijbehorende ontwerpprincipes wordt verwezen naar het Beeldkwaliteitsplan Entree in de bijlage III bij dit Omgevingsprogramma Entree.
De 18 essenties zijn als volgt
Ontwerp integraal en in samenhang: Door te sturen op de samenhang tussen het stedelijk blok, de panden, de buitenruimte, het landschap en de programmering, krijgt de identiteit van het gebied meer betekenis dan die van een individueel object, gebouw of plek. De bebouwing en buitenruimte worden in Entree gelijktijdig als één geheel ontworpen en zijn onlosmakelijk met elkaar verbonden. Als een driedimensionaal stadslandschap is de buitenruimte verweven met de gelaagde opbouw van de panden en de stedelijke blokken. Familiaire kenmerken in architectuur, materiaalgebruik, kleur en volumetrische gelaagdheid creëren samenhang binnen het ensemble van panden met een afwisselende korrel.
Afrikaweg als levendige stadsstraat: Entree Midden wordt een nieuwe stadsentree, met de levendige Afrikaweg als centrale stadsstraat. Deze straat krijgt een groen karakter en biedt een hoge verblijfskwaliteit. De straatwanden, geaccentueerd door hoogteaccenten, hebben een levendige en actieve plint, met een mix van voorzieningen, kantoren en woningen. Er is veel aandacht voor de menselijke maat en schaal. Kenmerkend voor Entree Midden zijn de ruime entrees en poorten die toegang geven tot de binnentuinen, waarbij de interactie tussen binnen en buiten centraal staat.
De stedelijke blokken zijn samengesteld en divers: Entree Midden wordt gekenmerkt door stedelijke blokken met verrassende, collectieve binnentuinen. Deze blokken verschillen in vorm en grootte, maar vertonen een gelijke diversiteit in de samenstelling van panden. De panden in de stedelijke blokken variëren bijvoorbeeld in hoogte, korrel en architecturale uitstraling, zonder dat het contrast wordt opgevoerd. Dit draagt niet alleen bij aan een menselijke maat, maar geeft de wijk ook een unieke uitstraling.
Een goede stad op ooghoogte: De Zoetermeerse laag is bepalend voor de menselijke schaal en maat, zowel van de bebouwing als van de openbare ruimte. De stedelijke laag (sokkel) wordt ontworpen in relatie tot de straat, waarbij de interactie tussen binnen en buiten en de schaalverkleining in de gevel een leidende rol spelen op ooghoogte.
Bijzondere entrees, openingen en poorten: De openingen in de gevelwanden worden vormgegeven als bijzondere entrees, stegen, poorten of paden, die duidelijk markeren dat je een informeel binnengebied betreedt. Deze entrees zijn opvallende en beeldbepalende elementen in Entree en verbinden het interieur met het exterieur, zowel op de schaal van het stedelijk blok als van het individuele pand. Ze zorgen voor levendigheid en interactie en nodigen bewoners, ondernemers en bezoekers uit. Langs de dwarsstraten bevinden zich voordeuren.
Groene, collectieve en toegankelijke binnentuinen: De binnentuinen van de stedelijke blokken zijn groene, collectieve ruimtes die uitnodigen tot ontmoeting en spel voor de direct omwonenden. Deze binnenhoven zijn overdag openbaar toegankelijk en maken deel uit van een netwerk van straten, pleinen en parken, wat leidt tot de ontwikkeling van een secundair, informeel routenetwerk: de binnentuinenroute. De openingen in de gevelwanden - vormgegeven als poort, steeg of pad - markeren duidelijk de overgang naar deze informele binnenruimtes, die als een verbindende schakel fungeren tussen de openbare ruimte en de beslotenheid van de tuinen.
Natuurinclusief en onderdeel van het stedelijk ecosysteem: In Entree Midden wordt natuurinclusief gebouwd. Elke ruimte – van dak en gevel tot de collectieve binnentuin – draagt zoveel mogelijk bij aan de biodiversiteit en de beleving van stadsnatuur. Samen creëren deze ruimtes een goed functionerend ecosysteem, bestaande uit verschillende biotopen en habitats, die niet alleen gunstig zijn voor planten en dieren, maar ook voor het leefklimaat van de mens.
Een multifunctioneel dakenlandschap: Entree beschikt over een multifunctioneel, divers en zorgvuldig vormgegeven daklandschap, waarbij bijzondere aandacht uitgaat naar daken die in het zicht zijn. Er wordt zoveel mogelijk ingezet op principes als ‘de vijfde gevel’ en ‘bruikbare buitenruimte’. Het daklandschap is niet alleen een ontmoetingsplek voor mensen, maar ook een plek waar planten en dieren zich kunnen vestigen, waar water kan worden opgevangen, en waar energie of warmte kan worden opgewekt.
Hoogwaardig vormgegeven panden: De gebouwen in Entree Midden hebben een heldere en functionele hoofdvorm, staan met de voeten op de grond en stralen een zekere robuustheid en stevigheid uit.
Panden hebben één hoofdmateriaal en hoofdkleur: Het stedelijk blok bestaand uit panden met een familie van kleuren (variaties van dezelfde kleur in verschillende tinten). Elk pand binnen het blok wordt gekenmerkt door één hoofdmateriaal en een bijbehorende hoofdkleur. De continuïteit in materialisatie en kleurgebruik draagt bij aan een samenhangende en harmonieuze uitstraling van de stedelijke blokken.
Panden hebben een herkenbare plastiek: Er wordt gestreefd naar panden met hoogwaardige materialen die zich onderscheiden door plasticiteit, tactiliteiten zorgvuldige detaillering. In Entree Midden zijn de panden niet overdreven sculpturaal of spectaculair vormgegeven, maar wordt de eenvoud van de hoofdvorm versterkt door de nadruk op materialiteit en detaillering. De sokkel, en vooral de plint, wordt beschouwd als het meest cruciale onderdeel van het pand.
Speciale panden verrassen: Elk stedelijk blok verrast in de vorm van een bijzondere entree, poort of steeg, of een bijzonder gebouw dat net contrasteert, qua maat, qua hoogte of qua materiaal. De verrassing kan ook liggen in een gebouw met vernieuwende typologieën en bijzondere collectieve ruimtes die niet alleen functioneel, maar ook sociaal en ecologisch verantwoorde experimenten zijn. Deze elementen van ‘verwondering’ bieden oriëntatie en leesbaarheid.
Balkon, erker, loggia en dakbeëindiging integraal mee ontwerpen: Individuele, gebouw gebonden buitenruimtes ondersteunende geleding en verschijningsvorm van gebouwen en het bijbehorend materiaalconcept. De buitenruimtes, zowel verglaasd als open, zijn ondergeschikt aan, of versterken de compositie in de gevel.
Panden worden locatie specifiek ontworpen: Verschillende locatie-specifieke kenmerken in en rondom Entree Midden zijn van invloed op het ontwerp van de panden. Deze kenmerken worden integraal en in een vroeg ontwerpstadium meegenomen.
Reclame is ondergeschikt aan de architectuur en de omgeving: Gevelreclame op gebouwen dient representatief, hoogwaardig en terughoudend te zijn in vormgeving.
Parkeerpanden: Waar noodzakelijk worden (tijdelijke) parkeerpanden gerealiseerd in Entree. De parkeerpanden voegen zich in de stedelijke laag van Entree. Ze krijgen een volwaardige gevel en bij voorkeur een levendige plint, die bijdragen aan de activatie van de openbare ruimte.
Zorgvuldige inpassing van bestaande gebouwen: Bestaande gebouwen worden zorgvuldig ingepast, waarbij bij transformaties nadrukkelijk aansluiting wordt gezocht bij de karakteristiek en van het gebouw. Er wordt gestreefd naar een balans tussen architectuurhistorische waarden ende impact van ingrepen. Historische gebouwen kunnen een nieuwe functie krijgen in een eigentijdse omgeving zonder verlies van (erfgoed)waarde, mits de transformatie zorgvuldig wordt uitgevoerd. Zo biedt bestaand erfgoed de kans om een historische laag te behouden binnen een overwegend nieuw te bouwen wijk.
Buitenruimte nodigt uit tot gebruik: Omdat er veel mensen gebruik van maken vraagt een hoogstedelijke wijk als Entree om een hoge kwaliteit van de openbare ruimte. Daarnaast is de ambitie om zoveel mensen op een gezonde manier in de openbare ruimte te laten bewegen leidend voor een inrichting die daar ook toe uitdaagt, waar ruimte is voor persoonlijke ontplooiing, ontmoeting en beweging. Dit leidt tot de opgave van het maken van:
Een robuust raamwerk dat de noodzakelijke verbinding maakt met structuren op stadniveau, zowel op het gebied van een netwerk voor voetgangers, fietsers, maar ook op het gebied van groen en water
Waar voorlopig de doorstroming van de auto wordt gewaarborgd, welke in de loop van de tijd kan transformeren naar meer verblijven
Een duurzame en stijlvolle openbare ruimte
Een inrichting die functioneel en ruimtelijk is afgestemd opeen hoogstedelijk gebied
Een openbare ruimte die klimaatbestendig en natuurinclusief wordt aangelegd, met voldoende ruimte voor ecologische verbindingen.
Bij bepaalde plannen en/ of besluiten met mogelijke grote milieugevolgen is op grond van de Omgevingswet verplicht om informatie te verzamelen over de als gevolg van de activiteit optredende milieugevolgen. Dit vindt plaats met een mer-procedure. Of dit nodig is, is mede afhankelijk van de aard en omvang van de activiteit en het soort besluit. De ontwikkeling van Entree valt onder categorie J11 ‘Stedelijk ontwikkelingsproject’ uit de bijlage bij het Omgevingsbesluit. Daarbij is er geen directe mer-plicht (kolom 2), maar wel een mer-beoordelingsplicht (kolom 3) bij de aanleg, wijziging of uitbreiding van een stedelijk ontwikkelingsproject.
In zijn algemeenheid geldt een MER-plicht voor plannen of programma’s als die kaderstellend zijn voor MER-plichtige of MER-beoordelingsplichtige projecten. Het Omgevingsprogramma Entree stelt kaders voor de verdere ontwikkeling en latere uitwerking via buitenplanse omgevingsplanactiviteiten. Een MER-plicht is daarom aan de orde. Van de uitzondering voor kleine gebieden op lokaal niveau en kleine wijzigingen wordt geen gebruik gemaakt.
Eerder heeft de commissie mer een voorlopig toetsingsadvies uitgebracht op het Plan-MER dat als bijlage bij het ontwerp-bestemmingsplan was opgenomen. Dit advies is betrokken bij het opstellen van dit Omgevingsprogramma en bijbehorende stukken. Ook is dit advies in de Plan-MER behorend bij dit Omgevingsprogramma betrokken. In bijlage 2 van het Plan-MER (in te zien op de website Entree Zoetermeer) is een analyse opgenomen van het voorlopig toetsingsadvies en de manier waarop dit verwerkt is.
Het Plan-MER maakt onderscheid tussen plangebied en studiegebied. Het plangebied is het gebied waarin de ontwikkeling (voorgenomen activiteit) plaatsvindt. Milieueffecten hoeven zich niet te beperken tot het plangebied. Effecten kunnen ook daarbuiten optreden. In het Plan-MER wordt dat studiegebied genoemd. Het MER geeft per thema aan of het gaat om effecten in het plangebied of in het studiegebied.
Het Plan-MER vergelijkt de milieueffecten van de ontwikkeling van Entree met de referentiesituatie. De referentiesituatie is de huidige situatie van het plangebied en de omgeving daarvan zonder de ontwikkeling van Entree. Dat is de toekomstige situatie als Entree niet doorgaat maar ander vastgestelde ontwikkelingen wel. Per thema zijn de effecten in het Plan-MER in beeld gebracht. Hiervoor is gebruik gemaakt van een vijfpunt-schaal:

Aan de hand van thema’s en verschillende indicatoren van deze thema’s zijn de milieuaspecten in beeld gebracht. In paragraaf 6.2 wordt per thema de conclusie weergegeven. Een samenvatting van het MER is opgenomen in bijlage IV van dit omgevingsprogramma.
Een overzicht van de beoordeling van de effecten minimum- en maximumalternatief is in het Plan-MER opgenomen in Tabel 4 van het Plan-MER, zie paragraaf 4.2. Per thema zijn die hier navolgend uitgewerkt. In paragraaf 6.4 Algehele conclusie MER is een overzichtstabel opgenomen waarin per thema is aangegeven hoe deze in het Plan-MEr zijn beoordeeld.
Het thema verkeer is een belangrijk thema voor de ontwikkeling van Entree. Effecten op de verkeersstudie en –doorstroming zijn daarom zorgvuldig onderzocht. In verschillende iteraties zijn ten behoeve van het raadsbesluit Herprogrammering (d.d. 8 juli 2024) aantallen woningen en aantallen vierkante meters aan voorzieningen doorgerekend met het verkeersmodel. Het ontwerpen van het wegprofiel en inrichting van de Afrikaweg verliep parallel hieraan. De resultaten van de iteraties van het verkeersmodel leverden beperkte verschillen op wat betreft verkeersgeneratie, zelfs te gering om op relevante onderdelen onderscheidend te zijn. Dit is de basis geweest voor de keuze om een afwijkend minimumalternatief te onderzoeken voor verkeer. Voor verkeer wordt het realistische alternatief het ‘Plan Min alternatief’ genoemd. Het maximumalternatief is onveranderd.
Doorstroming wegvakken
In deze analyse wordt (kwantitatief) gekeken naar de intensiteit/capaciteitsverhouding (I/C-verhouding) in de spitsen van de wegvakken binnen Entree (plangebied) alsmede van een aantal andere wegen in Zoetermeer (samen het studiegebied). Concreet is in deze analyse gekeken naar de I/C-verhouding op de A12, op de hoofdstructuur, op Entree en op omliggende wijken. Beide alternatieven worden qua doorstroming van de verkeersvakken als neutraal (0, geen verandering van klasse I/C-verhouding) beoordeeld.
Doorstroming kruispunten
Van alle afslagbewegingen in het VISSIM (Verkeer in steden simulatiemodel)-netwerk zijn gemiddelde voertuigverliesuren (VVU) bepaald in de twee-uurs ochtend- en avondspitssimulaties. De VVU’s zijn het product van de gemiddelde verliestijden per traject (in seconden) en het aantal voertuigen dat dit traject heeft gereden, gedeeld door 3600 seconden. De sommatie van de VVU van alle trajecten geeft het totaal aantal VVU in het gehele netwerk gedurende de 2-uurs spitsperiodes. In de resultaten wordt onderscheid gemaakt in motorvoertuigen (personen- en vrachtauto’s), bussen, fietsers en voetgangers. De doorstroming van de individuele kruispunten laten zien dat door de plansituaties de doorstroming bij de aansluiting A12 erop vooruitgaat. In de ochtendspits neemt de verkeersdruk op de rotonde Bredewater-Meerzichtlaan wel toe. Verder wordt door de komst van Entree een toename van de voertuigverliesuren (VVU) verwacht door introductie van een meer stedelijk omgeving met de twee gelijkvloerse oversteken. Om deze reden wordt het aspect ‘doorstroming kruispunten’ als ‘negatief’ beoordeeld. Om de doorstroming te verbeteren is daarom gekeken om de fietsoversteek weg te halen en de fietsoversteken verder terug te leggen, zodat ook ruimte komt om een by-pass vanaf het Bredewater in te passen. Fietsers en voetgangers houden voorrang. Door het terugleggen blijft de verkeersveiligheid gewaarborgd, omdat maar één rijstrook hoeft te worden overgestoken (voorbeeld Schiedam Nieuwlandplein). De maatregel heeft een groot positief effect op de doorstroming en een positief effect op de doorstroming van het netwerk. De totale beoordeling van de doorstroming van de kruispunten kan dankzij deze maatregel worden veranderd van negatief naar neutraal.
Kwaliteit openbaar vervoer
In de huidige situatie rijden bussen over een vrije busstrook met hoge prioriteit bij kruispunten. In het ontwerp voor de aangepaste Afrikaweg worden deze busstroken vervangen door aparte busbanen, waarbij de bussen ook bij verkeerslichten hoge prioriteit behouden. De drie haltes op de Afrikaweg worden vervangen door één centrale halte nabij de noordelijke oversteek, wat gunstig is voor regiolijnen, aangezien er minder haltes zijn die qua loopafstanden overlappen. Hierdoor verbetert de concurrentiepositie van het openbaar vervoer (OV) ten opzichte van de auto, wat leidt tot een hoger gebruik van het OV in Zoetermeer, hoewel sommige passagiers verder moeten lopen. De langere loopafstanden worden goed gemaakt door betere toegankelijkheid naar de haltes aan de Afrikaweg. De hogere snelheden voor het busverkeer en flankerende maatregelen (bijv. ambitiescenario parkeren) zorgen voor een forse groei van het OV gebruik. Per saldo wordt de kwaliteit van het openbaar vervoer in beide plansituaties als positief ten opzichte van de referentiesituatie beschouwd.
Kwaliteit langzaam-verkeersverbindingen
Door het aanleggen van de stadsstraat ontstaan aan beide zijden langs de Afrikaweg fietspaden. Het oostelijk fietspad wordt verlengd over de A12 naar Rokkeveen als alternatief voor de huidige route met weinig kwaliteit via de Nelson Mandelabrug (roltrap/lift). Naast fietspaden krijgt de stadsstraat aan beide zijden brede trottoirs, waarmee een logische en nieuwe aantrekkelijke verbinding voor langzaam verkeer tussen station Zoetermeer en het centrum ontstaat. Naast de drie bestaande onderdoorgangen worden twee gelijkvloerse oversteken gerealiseerd. De maaswijdte van het netwerk voor langzaam verkeer kent daardoor een verbetering; er hoeft minder ver omgelopen of met de fiets omgereden te worden om de Afrikaweg te kruisen. De Boerhaavelaan krijgt in plaats van aan beide zijden tweerichting fietspaden nog maar aan één zijde een fietspad. Dat geldt ook voor het Bredewater. De fietspaden worden echter wel breder, minimaal 4,00 meter waardoor de hoge fietsintensiteiten in Entree kunnen worden opgevangen. Ten opzichte van de referentiesituatie verbetert de fijnmazigheid van het netwerk voor langzaam verkeer.
Verkeersveiligheid
In de beoordeling van verkeersveiligheid is de snelheid van autoverkeer in relatie tot de oversteekbaarheid op de belangrijkste wegen in Entree, namelijk de Afrikaweg, Boerhaavelaan en Bredewater, geanalyseerd. De lagere snelheden op de Afrikaweg en de parallelwegen verbeteren de verkeersveiligheid, maar de toename van oversteekbewegingen door langzaam verkeer leidt tot een negatieve beoordeling van de verkeersveiligheid als geheel. Voor het oversteken van de Afrikaweg is bij een verlaging van de intensiteit van het verkeer oversteken in 1x voor voetgangers in de spits mogelijk. Dit is als mitigerende maatregel beschreven.
Kwaliteit parkeren
Voor de kwaliteit van het parkeren is gekeken naar de bereikbaarheid en functioneren van parkeren alsmede de omvang van parkeren. Zowel in de referentiesituatie als beide plansituaties geldt dat het parkeren wordt opgelost op de eigen ontwikkelkavel. Beide plansituaties scoren ‘neutraal’ op bereikbaarheid en functioneren van het parkeren. Qua omvang van parkeren laten eerste verkenningen van de parkeerbalans voor de Plan Min alternatief zien dat met het vigerende parkeerbeleid één-laags parkeren niet alle autoparkeerplaatsen gemaakt kunnen worden in de voetprint van de gebouwen. Bij het maximumalternatief neemt het tekort verder toe. Wat betreft de omvang is er sprake van een negatieve score voor de Plan Min alternatief en voor het maximumalternatief is deze op basis van expert judgement zeer negatief. Hiermee is de eindscore voor het onderdeel ’kwaliteit parkeren’ dus ook negatief tot zeer negatief. Voor Entree is daarom een specifieke “Nota maatwerk Parkeernormen en Uitvoeringsregels Entree” gemaakt, waarbij de parkeernormen meer specifiek zijn. Parkeren wordt in die mate gefaciliteerd, dat de ruimtelijke en programmatische ambitie kan worden gerealiseerd. Naast specifiek voor Entree parkeernormen, wordt maximaal ingezet op deelmobiliteit en marketing gericht op doelgroepen die in Entree gaan wonen. Daarnaast zullen aanvullende flexwerkplekken en HUB’s worden toegepast. Met deze aanvullende maatregelen moet het mogelijk zijn op het autoparkeren oplosbaar te maken binnen één laag op de kavels. Dit ambitiescenario past ook in de strategie voor de mobiliteitstransitie om verplaatsingen met de auto te vervangen door verplaatsingen met fiets, OV en te voet. Uit een quick-scan blijkt dat door het toepassen van een ambitiescenario het parkeren binnen de voetprint van de kavels worden opgelost. Hierdoor is de beoordeling neutraal na het nemen van mitigerende/ compenserende maatregelen.
Er is akoestisch onderzoek uitgevoerd. Dat onderzoek heeft betrekking op de volgende aspecten:
Uit het onderzoek blijkt dat sprake is van een (deels) hoge waarde van geluid situatie. Bij een groot deel van de nieuw te realiseren woningen worden de wettelijke standaardwaarden van het geluid vanwege weg- en railverkeer overschreden. Vanwege gemeentelijke wegen en de spoorwegen worden de grenswaarden wel gerespecteerd. Vanwege de A12 worden op de eerste en tweedelijns gebouwen de grenswaarden niet gerespecteerd. Woningbouw nabij de A12 vormt daarom een uitdagende ontwerpopgave. Wanneer ook rekening wordt gehouden met het gemeentelijke geluidbeleid wordt de opgave nog groter. Dan zal bijvoorbeeld ook moeten worden voorzien in geluidluwe zijden.
Er is al voorzien in geluidbeperkende maatregelen in de vorm van bijvoorbeeld het gebruiken van een stiller wegdek en snelheidsverlaging op de Afrikaweg en enkele omliggende wegen. Maatregelen aan/bij de A12 zijn ook verkend. Uit de verkenning blijkt dat ook met de maatregelen sprake blijft van overschrijdingen van de grenswaarde vanwege de A12. Omdat er bovendien geen duidelijkheid is in hoeverre de wegbeheerder wil meewerken aan deze maatregelen en de meest effectieve maatregelen (luifel en tunnel) zeer kostbaar zijn, zijn deze maatregelen in overleg met de gemeente Zoetermeer niet verder onderzocht. De uiteindelijke afweging daarvoor ligt bij de gemeente Zoetermeer.
Vanwege het geluid van de A12 zal naar verwachting redelijkerwijs geen gebouwontwerp kunnen worden gemaakt waarmee de grenswaarden kunnen worden gerespecteerd. Afwijking van de grenswaarden is mogelijk als sprake is van zwaarwegende belangen. Daarvan is hier sprake. De gemeente Zoetermeer heeft dit gemotiveerd in de notitie zwaarwegende belangen die op de website Entree Zoetermeer is terug te vinden.
Ook zal redelijkerwijs niet overal aan de beleidsvoorwaarden uit het Afwegingskader geluid Zoetermeer kunnen worden voldaan. Om toch de woningen te kunnen realiseren en gelijktijdig een aanvaardbaar woon- en leefklimaat te waarborgen zijn aanvullende voorwaarden opgenomen in het Geluidkader Entree. Bij de verdere uitwerking van de plannen (via een BOPA omgevingsvergunning) zal, indien niet kan worden voldaan aan het Afwegingskader geluid Zoetermeer, in ieder geval moeten worden voldaan aan het Geluidskader Entree. Hiermee is zowel het Afwegingskader geluid Zoetermeer en het Geluidskader Entree onderdeel van het planvoornemen.
De beoordeling voor het wegverkeer lawaai is negatief. Hoewel de beoordeling varieert van zeer negatief en negatief voor de nieuwe woningen geldt dit voor een deel van het plangebied. De overige delen van het plangebied vallen binnen de klassen geen effect, positief en zeer positief. Voor de bestaande woningen is sprake van geen effect. Uit het onderzoek blijkt dat de geluidsituatie bij de bestaande woningen, op een enkele uitzondering na, niet wezenlijk wijzigt. Over het algemeen blijft de geluidsituatie gelijk of is sprake van een minimale wijziging. Alleen bij het getransformeerde pand “De Baron” (Bredewater 18) is, door het vervallen van de huidige wal langs de Afrikaweg, sprake van een wezenlijke toename van het geluid. Daar zal aanvullend onderzoek uitgevoerd moeten worden naar de geluidwering van de gevels. Waar nodig zal de geluidwering moeten worden verbeterd, als onderdeel van het planvoornemen. Voor het railverkeer en het geluid van het transformaterstation is de beoordeling neutraal.
Mitigatie en compensatie
Bij de uitwerking van de plandelen zal nadrukkelijk rekening gehouden moeten worden gehouden met het geluid van de verschillende bronsoorten (wegverkeer, railverkeer, bedrijvigheid). Vanuit de maatregelalternatieven zijn diverse maatregelen denkbaar die de waarde van geluid verminderen.
Verlagen snelheid
Uit de verkenning blijkt dat het verlagen van de snelheid en het toepassen van een stiller wegdek, leidt tot minder geluid. Er blijft echter op zowel de eerste als de tweedelijns bebouwing sprake van een overschrijding van de grenswaarde van 60 dB. Het geluid vanwege de A12 bedraagt ten hoogste 70 dB.
Geluidsscherm
Uit het onderzoek blijkt dat een geluidscherm effectief is ter plaatse van de onderste bouwlagen. Op hogere bouwlagen heeft het scherm geen effect. Er blijft op zowel de eerste als de tweedelijns bebouwing sprake van een overschrijding van de grenswaarde van 60 dB. Het geluid vanwege de A12 bedraagt ten hoogste 72 dB.
Luifel
Uit de verkenning blijkt dat een luifel effectief is ter plaatse van het oostelijke plandeel. Bij het westelijke deel van het plan blijft sprake van overschrijdingen als gevolg van het verkeer op de toerit naar de A12. Het geluid vanwege de A12 bedraagt ten hoogste 68 dB.
Tunnel
Uit de verkenning blijkt dat een tunnel effectief is ter plaatse van het oostelijke plandeel. Bij het westelijke deel van het plan blijft sprake van overschrijdingen als gevolg van het verkeer op de toerit naar de A12. Het geluid vanwege de A12 bedraagt ten hoogste 68 dB. Door deze maatregelen te nemen zal het effect verminderen, maar of dit tot een neutraal effect leidt hangt af van de uiteindelijk te nemen maatregelen. Aankomende periode zal verder in overleg worden getreden met Rijkswaterstaat om te onderzoeken of bron- of overdrachtsmaatregelen (met een planhorizon van na 2040) mogelijk zijn.
In deze paragraaf zijn stikstofdioxide (NO2) en fijnstof (PM10 en PM2,5) beoordeeld. Stikstofdioxide (NO2).
In het onderzoek is het aantal blootgestelden per concentratieklasse voor de beschouwde stof opgenomen. Om de toetspunten met elkaar te kunnen vergelijken is ervoor gekozen om voor beide alternatieven met dezelfde toetspunten te rekenen. Hierdoor moet de set toetspunten in het éne alternatief representatief zijn voor 6.250 woningen en in het andere alternatief voor 7.250 woningen. Om per alternatief op het correcte aantal woningen uit te komen is een factor gehanteerd om van het aantal toetspunten te komen tot het aantal bestemmingen.
Voor beide alternatieven geldt dat er sprake is van meer dan 5% van de blootgestelden in de klasse met een toename van meer dan 1,2 µg/m3. Hieruit volgt dat de beoordeling voor stikstofdioxide (NO2) neerkomt op zeer negatief voor beide alternatieven.
Uit de effectbeoordeling blijkt dat beide alternatieven een zeer negatief behalen op de indicator NO2. Er zijn diverse bronnen die zorgen voor stikstofdioxide-emissies. De bronnen met de grootste emissies zijn:
Verkeersbewegingen vormen de grootste bron van NO2-emissies. Bij een gemiddelde grondgebonden woning wordt uitgegaan van meerdere verkeersbewegingen per dag.
Sfeerverwarming is een andere belangrijke bron van NO2-emissies. Het gaat dan onder meer om houtkachels, kaarsen, pelletkachels, olielampen, gasgestookte terrasverwarming, barbecueën en zelfs vuurwerk. Deze bronnen vatten we samen onder de term ‘sfeerverwarming’.
Er zijn diverse overige bronnen die een rol spelen bij de NO2-emissie van woonwijken. Zo ontstaat er ook emissie door roken en bijvoorbeeld brommergebruik
Voor bovenstaande bronnen zijn vele maatregelen denkbaar, maar de belangrijkste maatregelen zijn het instellen van een milieuzone binnen de woonwijk (diverse vormen denkbaar). Omdat verkeer de grootste bron van NO2-emissies is.
Volgens verschillende onderzoeken zijn grote reducties mogelijk wanneer geen verbrandingsmotoren worden toegestaan. Met minder vergaande maatregelen is ook nog een behoorlijke reductie haalbaar (minimaal EURO-6 voertuigen). Voor beide scenario’s geldt dat de beoordeling dan zeer waarschijnlijk neutraal zou worden.
Fijnstof (PM10 en PM2,5)
In het onderzoek is het aantal blootgestelden per concentratieklasse voor de beschouwde stoffen opgenomen. Om de toetspunten met elkaar te kunnen vergelijken is ervoor gekozen om voor beide alternatieven met dezelfde toetspunten te rekenen. Hierdoor moet de set toetspunten in het éne alternatief representatief zijn voor 6.250 woningen en in het andere alternatief voor 7.250 woningen. Om per alternatief op het correcte aantal woningen uit te komen is een factor gehanteerd om van het aantal toetspunten te komen tot het aantal bestemmingen. Voor beide alternatieven geldt dat er sprake is van meer dan 95% van de blootgestelden in de klasse tussen de -0,4 en 0,4 µg/m3. Hieruit volgt dat de beoordeling voor stikstofdioxide (PM10 en PM2,5) neerkomt op ‘neutraal’ voor beide alternatieven.
In geen van beide planalternatieven wordt voldaan aan de WHO-advieswaarden. Dit is ook logisch omdat enkel al de achtergrondconcentraties hier niet aan voldoen. Hierin willen voldoen vraagt maatregelen op rijksniveau en is niet zozeer afhankelijk van de ontwikkeling.
Plaatsgevonden risico
Als gevolg van de voorgenomen planontwikkeling komt er in het plangebied ruimte voor extra woningen en komen er verschillende publieksfuncties. Voor de toekomstige situatie moet de voorgenomen planontwikkeling buiten de PR 10-6 -contour van het tankstation en de A12 blijven (respectievelijk maximaal 35 en 0 meter) en buiten de veiligheidsafstand van schietvereniging (acht meter). Net als in de referentiesituatie (waarbij is geconcludeerd dat de PR 10-6 -contouren en veiligheidsafstanden niet tot het plangebied reiken) liggen er geen (beperkt) kwetsbare gebouwen en locaties in de betreffende contouren van de verschillende risicobronnen. De ontwikkeling van Entree heeft geen effect (beoordeling: 0) c.q. kent geen aandachtspunten voor het plaatsgebonden risico vanuit de bestaande risicobronnen. Er worden geen nieuwe risicobronnen binnen de ontwikkeling van Entree toegevoegd. De alternatieven zijn hierin niet onderscheidend.
Groepsrisico
Onder huidige situatie en autonome ontwikkeling is geconcludeerd dat het invloedsgebied van de A12 binnen het plangebied is gelegen. Van het LPG-tankstation en de overige risicobronnen reikt het invloedsgebied niet tot het plangebied en hebben de planontwikkelingen derhalve geen invloed op de hoogte van het groepsrisico.Net als in de referentiesituatie bedraagt het groepsrisico van de A12 in het minimale en maximale alternatief tussen 0,1 en 0,5 keer de oriëntatiewaarde en is daarmee neutraal (0) beoordeeld (‘Kwantitatieve risicoanalyse Rijksweg A12’ - Antea Group, november, 2024). Het groepsrisico wordt niet negatief beoordeeld vanwege nieuwe risicobronnen (met een relevant groepsrisico), maar vanwege de aanwezigheid van meer personen in het invloedsgebied. Het is vervolgens aan de gemeenteraad te bepalen in hoeverre dit extra risico toelaatbaar wordt geacht.
Aandachtsgebieden
In de toekomstige situatie zal het aantal woningen en andere functies in Entree toenemen. In beide alternatieven (minimaal en maximaal) zal er binnen de aandachtsgebieden van de Rijksweg A12 en het LPG-tankstation sprake zijn van een toename in woningen en andere functies. Hoewel het nog onduidelijk is hoe de programmering definitief wordt ingevuld, kan wel van deze toename uitgegaan worden. Dit leidt ertoe dat de toekomstige situatie zal verslechteren ten opzichte van de huidige situatie. Op basis van deze uitgangspunten wordt het minimumalternatief beoordeeld met negatief (-) en het maximumalternatief als zeer negatief (- -).
Zelfredzaamheid en bereikbaarheid bij calamiteiten
Door het beoogde programma zal de bebouwingsdichtheid en het aantal personen in het gebied toenemen, wat de verkeersdrukte kan verhogen en de bereikbaarheid voor hulpverleningsdiensten kan belemmeren. Echter, uit verkeersonderzoek in het kader van het Plan-MER Entree blijkt dat de doorstroming bijna gelijk blijft ten opzichte van de referentiesituatie. De bereikbaarheid van de Afrikaweg verbetert in de alternatieven, wat cruciaal is voor snelle en effectieve hulpverlening. In de referentiesituatie was de Afrikaweg moeilijk bereikbaar door ondoordringbaar struweel en een hoogteverschil.
De Veiligheidsregio Haaglanden benadrukt het belang van een omgeving die een snelle hulpverlening mogelijk maakt. De alternatieven verbeteren de bereikbaarheid voor verschillende verkeersdeelnemers, wat leidt tot een neutrale score (0), zonder onderscheid tussen de alternatieven. Bij calamiteiten is naast bereikbaarheid ook de mogelijkheid voor mensen om te vluchten van belang.
De Veiligheidsregio Haaglanden heeft het belang van voldoende ontvluchtingscapaciteit benadrukt. Door verschillende ontsluitingsroutes en verbeterde bereikbaarheid van de Afrikaweg in de alternatieven, worden extra vluchtroutes toegevoegd. In tegenstelling tot de referentiesituatie, waar vluchten via het centrum moest, worden er directe verbindingen tussen oost en west mogelijk. Ook voor mindervaliden zijn er meer vluchtmogelijkheden.
De Afrikaweg blijft hooggelegen, wat vluchten bij hoog water mogelijk maakt en zorgt voor blijvende ontsluiting voor hulpdiensten bij overstromingen. Gebouwen met vloeren op het niveau van de Boerhaavelaan of het Bredewater zullen minimaal twee verdiepingen hebben, zodat evacuatie naar hogere verdiepingen mogelijk is. Dit alles leidt tot een licht positieve effectbeoordeling voor vluchtmogelijkheden (+), met geen onderscheid tussen de alternatieven.
De commissie MER had in haar advies opmerkingen ten aanzien van overstromingsgevaar. Het commentaar was dat niet expliciet wordt gemaakt dat er meer dan 10.000 nieuwe mensen worden blootgesteld aan het bestaande overstromingsrisico.
In zowel de effectstudie Omgevingsveiligheid en de effectstudie Klimaat wordt ingegaan op overstroming. De daarin getoonde resultaten bieden voldoende informatie in het kader van de besluitvorming. Uit de studies blijkt dat de Afrikaweg door zijn hogere ligging dan het maaiveld, een goede vluchtroute biedt voor hoog water en ook voor de toegankelijkheid voor hulpdiensten. Ook blijkt dat door de stedenbouwkundige opzet deze weg veel bereikbaarder wordt voor een ieder in en om het plangebied heen. Mensen kunnen ook de verdiepingen van de gebouwen kunnen opzoeken, veel van deze gebouwen zullen dermate hoog zodat aan het water kan worden ontkomen. Er worden dus weliswaar geen expliciete maatregelen getroffen maar impliciet zijn er en komen er voldoende vluchtmogelijkheden tegen overstroming.
In de Ontwikkelvisie wordt niet expliciet ingegaan op de toegankelijkheid van de Afrikaweg t.b.v. vluchten voor overstromingen. Echter, staat op pagina 81 dat: ‘De dwarsstraten zijn de verbindende straten tussen de blokken in, die dwars op de Afrikaweg uitkomen. In basis een hellende straat, die het hoogteverschil tussen het Bredewater/ Boerhaavelaan en de Afrikaweg overbrugt. Door de flauwe hellingen blijft de wijk op deze manier toegankelijk voor mindervaliden.
Het absolute aantal mensen dat mogelijk voor een overstroming moet vluchten is hoger dan in de feitelijke situatie (met de kanttekening dat het juridisch – planologisch gezien mogelijk is kantoren in dit gebied te realiseren die ook een potentieel groot aantal mensen kan herbergen, waarbij geen aanpassingen plaatsvinden in relatie tot de toegankelijkheid van de Afrikaweg). Gezien het feit dat deze mensen voldoende goed kunnen vluchten, is de motivatie in het MER en de onderliggende effectstudies voldoende en is het niet noodzakelijk de expliciete aantallen mensen te benoemen. Waar het in essentie om gaat is of er voldoende vluchtmogelijkheden zijn.
Een nieuw aandachtspunt is de aanwezigheid van moderne energiedragers zoals elektrische auto’s, waarvoor de Veiligheidsregio heeft gewezen op de risico’s in de openbare ruimte en parkeergarages. Het is aan te raden om deze risico’s expliciet in het ontwerp van toekomstige bebouwing en openbare ruimte mee te nemen.
Bij de uitwerking van het ontwerp zijn verschillende mogelijkheden om de veiligheid te optimaliseren. De meest effectieve maatregel voor omgevingsveiligheid is het afstand houden van risicobronnen in de omgeving van het plangebied. Voor het plangebied betekent dit het beperken van hoge concentraties bebouwing (en daarmee personen) direct langs de A12. Het beperken van hoge concentraties bebouwing langs de Afrikaweg heeft ook een positief effect, maar dit is minder significant gezien het beperkte vervoer van gevaarlijke stoffen over deze weg.
De effectiviteit van maatregelen tegen het gevaar van een gifwolk hangt af van de toxiciteit van de stof en de blootstellingsduur. Blootstelling aan giftige stoffen kan optreden bij een vrijgekomen gifwolk, bijvoorbeeld door een incident met een tankwagen. Een effectieve maatregel in geval van een toxisch scenario is het uitvoeren van bebouwing met een (centraal) afschakelbare ventilatievoorziening. Onder de Omgevingswet is het verplicht dat mechanische ventilatie bij een externe calamiteit handmatig kan worden uitgeschakeld.
Het is hierbij belangrijk dat bewoners en beheerders van het gebouw op de hoogte zijn van deze voorziening en weten hoe ze deze correct moeten gebruiken. Het is aan te raden om instructies (handelingsperspectief) bij een incident met gevaarlijke stoffen aan de gebouwen toe te voegen. De Veiligheidsregio Haaglanden heeft ook aangegeven dat het wenselijk is om te oefenen met dergelijke scenario’s, bijvoorbeeld binnen de bedrijfshulpverlening.
Onder de Omgevingswet kunnen verschillende veiligheidsmaatregelen worden getroffen binnen aandachtsgebieden, waaronder het aanwijzen van voorschriftengebieden met aanvullende bouweisen via het omgevingsplan. Het treffen van deze maatregelen is een lokale afwegingsbevoegdheid en vereist een locatiespecifieke evaluatie. Voor zeer kwetsbare gebouwen, waar mensen aanwezig zijn die zichzelf niet tijdig in veiligheid kunnen brengen, gelden echter strikte maatregelen. Dit omvat extra eisen aan brandwerendheid en brandklasse, die van toepassing zijn op nieuwbouw.
Op basis van de resultaten van dit onderzoek wordt geconcludeerd dat gebouwen met een onderwijs- of kantoorfunctie overal in het plangebied gerealiseerd kunnen worden, zonder aandacht te hoeven besteden aan trillingen van weg- of spoorverkeer. In de meeste gebouwen kan, zonder nader onderzoek, bebouwing met een trillingsgevoelige functie (hier vooral wonen) worden gerealiseerd. Voor gebouwen met een woonfunctie binnen 14 meter van klinkerwegen, 25 meter van drempels/plateaus of binnen 8 meter van geasfalteerde wegen geldt dat overschrijdingen van de streefwaarden voor trillingshinder niet kunnen worden uitgesloten. Hetzelfde geldt voor gebouwen in de zone direct tegen Randstadrail aan. Er is geen onderscheidend vermogen tussen de alternatieven.
Op basis van de resultaten is onderstaande geadviseerd voor de verdere uitwerking van de plannen:
Bij de erfontsluitingswegen van de ontwikkelkavels:
Zorg voor een zo vlak mogelijke wegopbouw als de wegen op korte afstand van de bebouwing komen te liggen. Liever asfalt (of streetprint asfalt) dan klinkers, en geen drempels. Zorg bij klinkers voor een goede, stabiele ondergrond.
Zorg voor wat zwaarder geconstrueerde gebouwen op korte afstand van de erfontsluitingswegen. Denk aan gebouwen in tunnelbouw (in het werk gestort beton) of kalkzandsteen en betonnen vloeren, of eventueel met een verzwaarde fundering (parkeerkelder, plaatfundering of palenfundering). Dit is met name nodig voor gebouwen met een bouwhoogte lager dan 25 meter, hogere gebouwen hebben vaak voldoende massa waardoor de trillingen naar verwachting niet hinderlijk zullen zijn.
Voor de gebouwen op korte afstand van wegen met elementenverharding:
Voor gebouwen met een woonfunctie binnen 14 meter van klinkerwegen, 25 meter van drempels/plateaus of binnen 8 meter van geasfalteerde wegen geldt dat overschrijdingen van de streefwaarden voor trillingshinder niet kunnen worden uitgesloten. Hetzelfde geldt voor gebouwen in de zone direct tegen Randstadrail aan. Voor deze locaties wordt geadviseerd om:
Zware en dure trillingsmaatregelen zijn in het hele plangebied onnodig.
Windhinder
In de geplande bebouwingssituatie is binnen en rond het plangebied op veel plaatsen sprake van een goed windklimaat. Daarbij kan opgemerkt worden dat het windklimaat aan de noord- en oostzijde van het plangebied in de geplande bebouwingssituatie significant gunstiger is als in de huidige bebouwingssituatie. Hier mag nu overal een goed windklimaat verwacht worden, zelfs voor de activiteitenklasse slenteren. Deze verbetering is het gevolg van de afschermde werking van de nieuwbouw bij wind uit de overheersende, zuidwestelijke richting.
Door de belemmering van de windafvoer verbetert het windklimaat bij het Binnenwater licht, maar er blijft hier lokaal nog wel sprake van een matig windklimaat voor doorlopen.
Evenals in de huidige bebouwingssituatie is het belangrijkste aandachtsgebied gelegen aan de zuidzijde van het plangebied. Bij de oostelijke beëindiging van de bebouwing langs de A12 ontstaat door omstroming van de bebouwing een nieuw gebied met een matig windklimaat voor doorlopen. Op het dek van de bebouwing aan de zuidwestzijde is het windklimaat in de opening tussen de gebouwen en aan de zijde van de Afrikaweg matig voor doorlopen. Hierbij is aan de zijde van de Afrikaweg lokaal sprake van een beperkt risico op windgevaar.
Het gebied met een slecht windklimaat voor doorlopen naast het gebouw aan de noordzijde van de Nelson Mandelabrug wordt iets groter, waarbij er nu een zeer klein gebiedje met een beperkt risico op windgevaar wordt verwacht. Het windklimaat is hier echter niet wezenlijk anders dan in de huidige bebouwingssituatie.
De gebieden waar er hogere kansen op windhinder zijn zullen per saldo kleiner worden, zeker in de gebieden waar veel mensen te verwachten zijn. De verbetering is daarbij met name te vinden in de directe omgeving van het plangebied. Doordat ook in de huidige bebouwingssituatie het windklimaat veelal goed is, is er sprake van een beperkt positief effect op het aspect windhinder.
Windgevaar
Aan de zijde van de Afrikaweg is lokaal net sprake van een beperkt risico op windgevaar. Aan de noordzijde van de Nelson Mandelabrug wordt nu een zeer klein gebiedje met een beperkt risico op windgevaar wordt verwacht. Het windklimaat is hier echter niet wezenlijk anders dan in de huidige bebouwingssituatie. Hierbij kan opgemerkt worden dat een beperkt risico op windgevaar in doorloopgebieden mag worden geaccepteerd. Evenals in de huidige bebouwingssituatie is er nergens sprake van een gevaarlijk windklimaat.
Door de plannen ontstaan er lokaal een tweetal kleine gebieden waar er naar verwachting sprake is van een beperkt risico op windgevaar. Doordat de gebieden lokaal en beperkt zijn en er bij één van de gebieden door eenvoudige maatregelen het windgevaarvoorkomen kan worden, is er sprake van een beperkt negatief effect op het aspectwindgevaar
Ondanks het feit dat het windklimaat op de meeste plekken gunstig is, is er een aantal locaties waar een optimalisatie gewenst zou kunnen zijn. Het betreft hier met name de doorgangen aan de zuidzijde van het plangebied. Het windklimaat op het dek aan de oostzijde van het zuidwestelijke bouwblok binnen het plangebied (matig voor doorlopen in de geplande situatie) kan verbeterd worden door het plaatsen van een scherm aan de rand van het dek. Dit zou ook het beperkte risico op windgevaar dat hier verwacht wordt effectief mitigeren.
Door de aan de westkant van het Poortgebouw windremmende maatregelen te nemen, kan mogelijk ook hier het beperkt risico worden voorkomen. Bij de oostelijke beëindiging van de bebouwing langs de A12 ontstaat door omstroming van de bebouwing een nieuw gebied met een matig windklimaat voor doorlopen. Als er belangrijke looproutes door dit gebied komen te lopen wordt geadviseerd deze zo mogelijk buiten het gebied met een matig windklimaat te houden of deze te voorzien van een afscherming in de vorm van bijvoorbeeld groenblijvende begroeiing. Binnen het plangebied zou lokaal een verdere verbetering van het windklimaat mogelijk zijn door het plaatsen van begroeiing, maar dat zou alleen nodig zijn op plekken waar er windgevoelige functies (entrees, winkels) gerealiseerd worden op plekken waar het windklimaat matig is voor slenteren.
Bij het toepassen van begroeiing dient er wel rekening mee gehouden te worden dat deze pas een afschermende werking heeft op het moment dat de begroeiing groot genoeg is. Bij aanplant van jong groen kan het dus enkele jaren duren voordat er een significant effect op het windklimaat merkbaar is.
De bovengenoemde maatregelen hebben geen invloed op de beoordeling van het windklimaat (dat al positief was). Door het nemen van maatregelen ter voorkoming van het beperkt risico op windgevaar, kan de beoordeling op dat aspect worden verbeterd naar neutraal.
Bezonning omgeving
Voor een overzicht van de bezonningsduur en afname is op verschillende toetsingsdata (21 juni, 21 augustus en 21 oktober) de bezonningsduur op de gevels gevisualiseerd op een schaal van 0 tot 8 uur en de afname van de bezonningsduur op een schaal van 0 tot 6 uur (zie bijlagen van het onderzoek naar bezonning, Bijlage 10 het Plan-MER, in te zien op de website Entree Zoetermeer).
Ten westen van het plangebied zijn geen woningen die tengevolge van de geplande nieuwbouw niet meer voldoen aan de lichte TNO-norm. Ook zijn er geen woningen ten westen van het plangebied die niet voldeden en verder achteruitgaan. Wel is er lokaal een significante afname van de mogelijke bezonningsduur (ca. 2.5 uur). Op deze gevels blijft echter nog steeds ca. 3 uur zon of meer mogelijk.
Bij de galerijflats ten oosten van het plangebied (Dumandstraat en Stadhoudersring) zijn er een aantal geveldelen die ten gevolge van de geplande bebouwing onder de twee mogelijke bezonningsuren komen, of waar in de referentiesituatie al sprake is van minder dan twee uur zon en er sprake is van een verdere achteruitgang. De afname van de mogelijke bezonningsduur is hier lokaal ca. een uur en een kwartier. De andere zijde van deze gebouwen ontvangen ook zon, waardoor de woning als geheel wel boven de twee uur zon uitkomt. Bij een deel van de woningen betreft het mogelijk wel de zijde waar de woonkamer zit die getroffen wordt door de schaduw van de nieuwbouw. Als de TNO-norm strikt wordt toegepast voor de bezonning van de woonkamer, zouden deze woningen niet meer voldoen aan de lichte TNO-norm. Bij een beoordeling van de woning als geheel (zoals bijvoorbeeld gedaan wordt door de gemeente in het centrumgebied) voldoen de woningen nog wel aan de norm.
Binnen het plangebied zijn er een aantal bestaande panden waar de bezonning op een deel van de gevels niet meer voldoet aan de lichte TNO-norm ten gevolge van de nieuwbouw.
Het betreft hierbij de volgende panden (voor afbeelding wordt verwezen naar het Plan-MER, in te zien op de website Entree Zoetermeer):
een gedeelte van de gevels van De Baron (Bredewater 16-19, nu reeds in gebruik als woningen);
een gedeelte van de gevels van Boerhavelaan 1-5 (nu nog geen woningbouw);
een gedeelte van de woningen aan het Kinderen van Versteegplein;
het Golden Tulip Zoetermeer Den Haag.
Hierbij is met name bij verschillende zuidgevels de afname van de mogelijke bezonningsduur lokaal groot (ca. 6 uur).Gezien het feit dat in het merendeel van het plangebied de bezonning positief blijft maar er lokaal wel een significante invloed is en er een aantal woningen zijn die niet meer voldoen aan de lichte TNO norm, is er gemiddeld genomen sprake van een lichte achteruitgang van de bezonning (-).
Bezonning plan
Uit de resultaten blijkt dat het merendeel van de zuid- west- en oostgevels voldoet aan de lichte TNO-norm. De noordgevels voldoen per definitie niet aan de norm. Dit is geenprobleem als éénzijdig georiënteerde, noordgerichte woningen worden voorkomen. Ook voldoen een gedeelte van de gevels van de binnenhoven niet. Dit is inherent aan het bouwen in de vorm van een carré. Er kan gesteld worden dat op het merendeel van de gevels van de nieuwbouw sprake is van een voldoende bezonning.
Het verbeteren van de bezonning van de omgeving is mogelijk door het verkleinen van de geplande bouwvolumes. Om alle bestaande woningen te laten voldoen, zou dat echter opeen aantal plaatsen zeer grote consequenties hebben voor de geplande bouwvolumes. Voor de geplande woningen kunnen de resultaten van het onderzoek gebruikt worden voor de planning van de locatie van woningen binnen het plan of de locatie van woonkamers binnen de woning. Als compenserende maatregel is het mogelijk om de bewoners toegang te gevel tot centrale ruimtes met een goede bezonning. Er is geen onderscheidend vermogen tussen de alternatieven doordat de alternatieven worden gerealiseerd binnen dezelfde volumes.
In deze paragaaf worden sociale veiligheid, gezondheid/ gezonde openbare ruimte, hinder tijdens de aanleg en lichthinder beoordeeld.
Sociale veiligheid
Met Entree wordt door flexibele ruimtelijke oplossingen, een slimme programmering en een hoogwaardige openbare ruimte ingespeeld op de condities om op vele manieren de sociale samenhang te stimuleren. Door rondom het stedelijk blok zoveel mogelijk functies en voordeuren op straatniveau te ontwikkelen wordt de levendigheid in het gebied vergroot, maar ook de sociale controle en daarmee de veiligheid. Het netwerk van de openbare ruimte wordt gebruikt voor ontmoeting, ruimte voor maatschappelijke voorzieningen en levendigheid van het gebied. De toevoeging van plekken om elkaar te ontmoeten en samen te zijn, bevordert daarnaast de sociale cohesie van het gebied. De binnentuinen en de informele verbindingen dragen hier in belangrijke mate aan bij. Diverse toegangen rondom maken het echter ook mogelijk om ook als bezoeker te gast de binnentuinen te bezoeken. De binnentuinen zijn afsluitbaar voor in de avond en nacht. Hiermee wordt een sociaal onveilig gevoel voorkomen.
De initiatieven zullen zorgen voor reuring in het gebied, passend bij de kernwaarden van Entree. Door de toevoeging van woningen wordt ook de sociale veiligheid rond de bestaande tunnels verbeterd en er worden gelijkvloerse oversteken toegevoegd. Om de hierboven beschreven redenen is het criterium ‘sociale veiligheid’ als zeer positief beoordeeld voor beide alternatieven. De alternatieven zijn niet onderscheidend op deze criteria omdat de bebouwde footprint en het openbaar gebied en inrichting daarvan, hetzelfde zijn.
Gezondheid/ gezonde openbare ruimte
De openbare ruimte in Entree zal aanzienlijke veranderingen ondergaan om de nieuwe plannen te accommoderen. De ruimtelijke opzet transformeert de huidige situatie door de Afrikaweg om te vormen tot een stadsstraat, wat de barrières doorbreekt en verbindingen creëert tussen verschillende delen van Entree en omliggende wijken. Een belangrijke voorwaarde om de gewenste levendigheid en diversiteit te bereiken is een hoge dichtheid van bebouwing, met veel interactie tussen bewoners, bezoekers en passanten. Een goede balans tussen stedelijkheid en groene, beschutte buitenruimtes voor ontmoeting maken Entree voor toekomstige bewoners een aangename en onderscheidende plek in de regio. Verblijfsplekken zullen op korte afstand van woningen worden gecreëerd, en er zal een robuust groen-blauw raamwerk ontstaan dat de bestaande groenstructuren verbindt. Dit omvat de Groene Kraag, die een parkzone vormt en langzaamverkeersroutes verbindt met omliggende wijken.
Het water in Entree zal bijdragen aan de ecologische waarde en de identiteit van Zoetermeer versterken. Wadistructuren en verlaagde groenstructuren zullen ook worden geïntegreerd om een positieve impact op het ecosysteem te waarborgen. Beide alternatieven voor de ontwikkeling van Entree zijn op het gebied van gezondheid en gezonde openbare ruimte zeer positief beoordeeld, omdat ze dezelfde footprint en openbaar gebied behouden.
Hinder tijdens de aanleg
Gedurende een lange periode zullen in verschillende fasen grote aanpassingen in het plangebied plaatsvinden. Sloop en nieuwbouw kan tot bouwhinder leiden. Met name het transport van materialen zal naar verwachting een aanzienlijk akoestisch effect op de omgeving hebben, waarbij de akoestische hinder ook verder reikt dan enkel het plangebied zelf. Ter plaatse van het plangebied kan er extra bouwlawaai ontstaan door heiwerkzaamheden, graafwerkzaamheden en allerhande ander werkmaterieel en/of apparaten die bij de bouw van o.a. woningen wordt gebruikt. De aard en duur van de hinder kan per locatie verschillen, echter zal door de aannemer(s) getracht moeten worden de hinder voor de woonomgeving minimaal te houden, bijvoorbeeld door inzet van stil materieel of afscherming door middel van bijvoorbeeld opgestapelde containers. De mate dat hinder ondervonden wordt, is verder erg afhankelijk van situering, locatie en duur. Om deze reden is het criterium ‘mate van hinder tijdens de bouwwerkzaamheden als negatief beoordeeld voor beide alternatieven.
In het kader van deze indicator zijn de volgende mitigerende maatregelen voorstelbaar:
Goede routering aan- en afvoer van grond, bouwmaterialen langs routes met zo min mogelijk geluidsgevoelige bestemmingen.
Goede inrichting en beheer van laad- en losvoorzieningen.
Veilige tijdelijke verkeersmaatregelen.
De regulering van toegankelijkheid van de bouwterreinen.
De regulering van de tijdstippen van aan- en afvoer en bouwwerkzaamheden
Het nemen van deze maatregelen zou ertoe kunnen leiden dat er minder overlast optreedt tijdens de aanleg van Entree. Tegelijkertijd is het volledig wegnemen van hinder tijdens de aanleg niet realistisch. Daarom blijft de effectbeoordeling gelijk. Wat niet wegneemt dat bij de aanleg wel zoveel als mogelijk maatregelen getroffen moeten worden om hinder zoveel mogelijk te beperken.
Lichthinder
In Entree zorgen vooral de plinten voor interactie met de openbare ruimte. Dit geldt voor beide zijden van de Afrikaweg, langs de Centrumstraat en aan het Stationsplein. Commerciële functies zoals detailhandel en horeca vormen 'brandpunten' bij de kruising Afrikaweg-Centrumstraat en nabij het station. Ook de openbare ruimte zelf dient voldoende verlicht te zijn vanuit de oogpunten sociale veiligheid en zichtbaarheid (veilige oversteken). Ten opzichte van de huidige situatie zal sprake zijn van meer licht. Om deze reden is het criterium ‘mate van lichthinder’ als negatief beoordeeld (-) voor beide alternatieven.
Hinder van licht kan vaak worden voorkomen door een juiste plaatsing en adequate afscherming van armaturen. Bij het ontwerpen van de gebouwen en de openbare ruimte zal daar aandacht aan moeten worden besteed. Hierbij kan in het kader gedacht worden aan
Voorkom uitstraling van licht naar boven, alleen gebruik van aan bovenzijde dichte armaturen.
Voorkom het aanlichten van panden.
Voorkom uitstraling van verlichting van gebouwen.
Voorkom het naar binnen schijnen in woningen van straatverlichting.
Gebruik functioneel licht alleen daar waar noodzakelijk.
Parken zijn donker, behalve doorgaande routes voor fiets en voetganger.
Moderne (straat)verlichting is vaak led, verbruikt daardoor minder energie en is, als daarvoor gekozen wordt, dimbaar.
Kies voor warme ledverlichting 2700 kelvin of lager en laat deze niet onnodig branden. Blauw licht is schadelijk voor de aanmaak van Melatonine.
Ongeacht de mate van aandacht voor verlichting in het ontwerp blijft sprake van een toename van licht, en daarmee mogelijk hinder, ten opzichte van de huidige situatie. De effectbeoordeling blijft dan ook gelijk.
Entree zal zich gaan ontwikkelen tot een levendige stadswijk, die zich kenmerkt door diversiteit, een levendige stadsstraat, aantrekkelijk groen en een aantrekkelijke openbare ruimte. De ambities zijn hoog in Entree. In de planontwikkeling van Entree is een hoogwaardige groenstructuur voorzien, met een hoge kwaliteit en diversiteit. Groen wordt niet alleen kijkgroen, maar ook groen om te beleven. Het groen wordt aantrekkelijk en ecologisch hoogwaardig.
De alternatieven zijn niet onderscheidend op deze criteria omdat de bebouwde footprint en het openbaar gebied en inrichting daarvan, hetzelfde zijn.
Om de hierboven beschreven redenen is het criterium ‘Recreatieve betekenis’ als positief beoordeeld voor beide alternatieven.
De effecten zijn beoordeeld op bodemopbouw, bodemkwaliteit en ondergronds gebruik.
Bodemopbouw
De gronden die binnen het plangebied voorkomen zijn algemeen voorkomend en hebben geen bijzondere status. De aan te leggen infrastructuur ligt veelal in de bovenste meter opgebrachte en geroerde grond. Daarnaast is door het realiseren van de huidige funderingen voor gebouwen en cunetten voor de parkeerterreinen en wegen de bodem reeds veelvuldig geroerd. Grote negatieve effecten worden daarom door de planontwikkeling niet verwacht. Beide alternatieven hebben daardoor een neutraal effect.
Bodemkwaliteit
De voorgenomen ontwikkelingen van woningen, lichte bedrijvigheid, voorzieningen en kantoren zijn geen bodembedreigende activiteiten. Deze functies mogen alleen worden gebouwd op daartoe geschikte gronden. In het gebied zijn nog diverse gebieden aanwezig waar nog geen bodemkwaliteitsgegevens bekend zijn. Daarnaast rust op enkele gebieden nog een saneringsopgave bij wijziging van gebruik naar meer kwetsbare functies dan de huidige functies. Hierdoor worden door de geplande ontwikkeling nog (on)bekende verontreinigingen in beeld gebracht en wordt de benodigde saneringsnoodzaak vastgesteld. Dit betekent voor beide alternatieven dat de eventuele bekende en nog onbekende (niet toelaatbare) bodemverontreinigingen bij transformatie worden gesaneerd, wat positief is voor de bodemkwaliteit.
Ondergronds gebruik
Vanwege de ruim bemeten infrastructuur is voldoende ruimte, nu en in de toekomst, aanwezig voor ondergrondse infrastructuur. Mede doordat zuinig omgesprongen wordt met ondergrondse ruimte. Waar mogelijk wordt ondergrondse infra zoveel mogelijk gebundeld. Doordat de kabel en leidingeigenaren in een vroeg stadium worden meegenomen in de planvorming, is verdere detailafstemming mogelijk. Dit leidt tot een sterk positief effect.
Waterkwantiteit oppervlaktewater westzijde
In een deel van het plangebied zijn na de ontwikkeling onvoldoende maatregelen aanwezig om water te bergen en af te voeren. In het aspect Klimaatadaptatie komt naar voren dat de westzijde van het plangebied zeer gevoelig is voor wateroverlast als gevolg van water op straat en water tegen panden. Dit risico blijft dan ook aanwezig. Op basis van de bovenstaande informatie wordt een negatief effect verwacht voor beide alternatieven.
Als de plannen worden uitgewerkt in overeenstemming met het beleid en de eisen van het hoogheemraadschap en de gemeente, en er maatregelen worden getroffen om zowel de waterkwantiteit als de waterkwaliteit van het oppervlaktewater aan de westzijde te verbeteren, dan verandert de effectbeoordeling voor deze aspecten van negatief naar positief. Dit houdt in dat aanvullende maatregelen om waterkwantiteit en waterkwaliteit in het gebied genomen worden.
Waterkwantiteit oppervlaktewater oostzijde
In het aspect Klimaatadaptatie komt naar voren dat de oostzijde van het plangebied ook gevoelig is voor wateroverlast als gevolg van water op straat en water tegen panden. Door het toepassen van waterbergingssystemen om hemelwater te bergen aan weerszijden van de Afrikaweg en op de ontwikkelkavels en het groen te voorzien van voldoende water en daarnaast ook hier het oppervlaktewater te dempen en de aanwezigheid van lange duikers die het watersysteem in het gebied verbinden, wordt verwacht dat de gevoeligheid voor wateroverlast afneemt. Op basis hiervan wordt een positief effect verwacht op zowel het minimale als maximale alternatief.
Waterkwantiteit grondwater
Ten opzichte van de huidige situatie neemt het groen oppervlak af. In principe neemt daardoor ook de natuurlijke infiltratie van neerslag in de bodem af, maar binnen het plangebied worden waterbergingssystemen toegepast waar hemelwater wordt vastgehouden. Een deel van de neerslag wordt hergebruikt en of kan infiltreren in de bodem. Grondwaterstanden in het gebied worden voornamelijk bepaald door het oppervlaktewaterstreefpeil en de interactie tussen neerslag en verdamping. Lokaal kunnen hierin wat verschillen ontstaan, want ter plaatse van bergings- en infiltratievoorzieningen kan de grondwaterstand lokaal wat hoger worden door de gerichte infiltratie. Op plekken waar meer verharding wordt toegepast kan lokaal de grondwaterstand iets dalen door een afname van de grondwateraanvulling. Doordat het oppervlaktewaterpeil zeer bepalend in het geheel is, en ongewijzigd blijft, is de verwachting dat voor beide alternatieven geen onderscheid te maken valt en ook een marginale verandering (neutraal effect) optreedt ten opzichte van de huidige situatie.
Als de plannen worden uitgewerkt in overeenstemming met het beleid en de eisen van het hoogheemraadschap en de gemeente, en er maatregelen worden getroffen om zowel de waterkwantiteit als de waterkwaliteit van het oppervlaktewater aan de westzijde te verbeteren, dan verandert de effectbeoordeling voor deze aspecten van neutraal naar positief. Dit houdt in dat aanvullende maatregelen om waterkwantiteit en waterkwaliteit in het gebied genomen worden.
Waterkwaliteit westzijde
Aan de westzijde van het plangebied Entree wordt een klein oppervlak aan nieuw oppervlaktewater gegraven bij het stationsgebied. De beperkte ingrepen aan de oostkant hebben een gering effect op de vispasseerbaarheid in het gebied (aanwezigheid lange duikers) en de waterkwaliteit van het oppervlaktewater. Er wordt geen significante verslechtering of verbetering van de oppervlaktewaterkwaliteit verwacht aan de westzijde ten opzichte van de referentiesituatie. Voor zowel het minimale als het maximale alternatief zijn de effecten gelijk aan de referentiesituatie. Geconcludeerd wordt dat door de voorgenomen activiteit zowel voor het minimale als maximale alternatief een neutraal (0) effect wordt voorzien.
Als de plannen worden uitgewerkt in overeenstemming met het beleid en de eisen van het hoogheemraadschap en de gemeente, en er maatregelen worden getroffen om zowel de waterkwantiteit als de waterkwaliteit van het oppervlaktewater aan de westzijde te verbeteren, dan verandert de effectbeoordeling voor deze aspecten van neutraal naar positief. Dit houdt in dat aanvullende maatregelen om waterkwantiteit en waterkwaliteit in het gebied genomen worden.
Waterkwaliteit oostzijde
Door de aanleg van oppervlaktewater met een natuurvriendelijke inrichting langs een groot deel van de oostgrens van het plangebied wordt een verbetering van de oppervlaktewaterkwaliteit verwacht ten opzichte van de referentiesituatie. Voor zowel het minimale als het maximale alternatief zijn de effecten gelijk aan de referentiesituatie. Geconcludeerd wordt dat door de voorgenomen activiteit zowel voor het minimale als maximale alternatief een positief effect wordt voorzien.
Stedelijk landschap
Ruimtelijke structuur
De ruimtelijke structuur krijgt in beide alternatieven een enorme kwaliteitsimpuls, van barrière, leegte en naar binnen gekeerd gebied verandert Entree in een doorwaadbaar en verbindend gebied, een gebied bovendien dat naast doorgangsgebied ook bestemming is met woningen, werkgelegenheid en voorzieningen. Er is voor beide alternatieven sprake van een zeer positief effect.
Ruimtelijke beeld
De beleving en het ruimtelijke beeld verbeteren sterk door de ontwikkeling van Entree, waardoor het gebied een modern, aantrekkelijk en representatief stedelijk karakter krijgt, met een positief effect.
Cultuurhistorie
Er is sprake van verstoring van de historisch stedenbouwkundige structuur, de H-structuur. Daarnaast wordt de zichtbaarheid, herinnerbaarheid en de gaafheid van de stedenbouwkundige opzet van de stad en H-structuur, het hoofdwegenstelsel van de Groeikernperiode, door het aanleggen van een stadsstraat aangetast. Het effect van Entree op de cultuurhistorie is zeer negatief, zowel op de stedenbouwkundige structuur als op de historische gebouwen van de groeikernperiode van Zoetermeer.
Archeologie
Aangezien er zich in het plangebied van Entree geen archeologische monumenten of terreinen bevinden, is er geen sprake van een eventuele verstoring of doorsnijding en is dus sprake van een neutraal effect.
Soortenbescherming
Indien een soort(groep) niet wordt benoemd in deze paragraaf blijkt uit het uitgevoerde onderzoek en literatuurstudie dat de soort (hoogstwaarschijnlijk) niet in het plangebied voorkomt. Er komen geen beschermde reptielen, libellen en vissen voor en geen beschermde grondgebonden zoogdieren voor. Het voorkomen van konijn is wel vastgesteld in het plangebied. Bij ontwikkelingen binnen perceel Oost 2 kunnen groeiplaatsen van dreps en glad biggenkruid vernietigd worden. Binnen perceel Oost 3 is mogelijk voortplantingshabitat en overwinteringshabitat van de rugstreeppad aanwezig. Er worden in het plangebied meerdere bomen en dichte begroeiing verwijderd. Deze bieden mogelijk nestplaatsen voor algemene broedvogels en mogelijk nestplaatsen voor boomvalk, sperwer en/of ransuil met jaarrond beschermde nesten en nestplaatsen van spreeuw.
Door de voorgenomen sloop en renovatie van bebouwing en bomenkap kunnen verblijfplaatsen van gewone dwergvleermuis, kleine dwergvleermuis, laatvlieger, meervleermuis, rosse vleermuis, ruige dwergvleermuis en tweekleurige vleermuis worden vernietigd of verstoord. Verder kunnen essentiële vliegroutes van vleermuizen verloren gaan bij het verwijderen van rechtlijnige groenstructuren zoals bomenrijen. De aanwezige iepen, zoete kersen en wilgen ook als voortplantingsplaats van grote vos benut worden.
Voor beide alternatieven geldt dat het aanvragen van een omgevingsvergunning noodzakelijk is vanwege effecten op de soortgroepen broedvogels, flora, vleermuizen, amfibieën en/of vlinders. Beide alternatieven worden dus als zeer negatief (- -) beoordeeld. De indicator soortenbescherming is niet onderscheidend.
Stikstofdepositie op Natura 2000-gebieden
In het stikstof-onderzoek van Entree dat is uitgevoerd voor het ontwerp Plan-MER zijn (relatief kleine) bijdragen in het maximale planalternatief van 0,02 - 0,03 mol (meeteenheid voor stikstof) berekend op 6 Natura 2000-gebieden. Deze stikstofberekeningen gaan uit van worst-case 2027. Tijdens de terinzagelegging is een onderzoek uitgevoerd met aangescherpte uitgangspunten, zijn de onderzoeksresultaten van stikstof van de RSZ betrokken en is de samenloop van de procedure van het Omgevingsprogramma Entree en de bescherming van de Natura 2000-gebieden beter in beeld gebracht. Uit het nieuwe onderzoek dat is verwerkt in het Plan-MER en de vertaling daarvan in het Omgevingsprogramma blijkt dat de aangescherpte uitgangspunten nog steeds leiden tot een bijdrage in zowel het minimale als het maximale planalternatief op de 6 Natura-2000 gebieden in de gebruiksfase maar dat de bijdragen lager zijn en in het maximale planalternatief 0,01 - 0,02 mol (meeteenheid voor stikstof) bedragen. Uit het rapport blijkt verder dat de eerder berekende stikstof bijdrage in de realisatiefase met de aangescherpte uitgangspunten niet tot een stikstofdepositie leidt.
Binnen Zoetermeer wordt er gewerkt aan de Ruimtelijke Strategie Zoetermeer (RSZ), die zorg draagt voor een fors pakket aan omvangrijke maatregelen dat effect heeft op de mobiliteit in Zoetermeer als geheel en daarmee de modal split positief beïnvloedt naar verplaatsingen zonder auto (met name richting het OV en de fiets). De maatregelen die in de RSZ staan, zijn (nog) niet meegenomen in de (stikstof)berekeningen van Entree, omdat deze maatregelen nog niet zijn vastgesteld. Maatregelen die hieruit voortvloeien en die de stikstofberekening kunnen beïnvloeden zijn bijvoorbeeld het instellen van een parkeerplafond en het verlagen van de snelheid; dit type maatregelen zorgt ervoor dat de modal split wijzigt. Met het nemen van de maatregelen uit de RSZ, blijkt dat bij een toename van 16.000 woningen Zoetermeer breed er geen sprake is van stikstofdepositie in de Natura2000-gebieden.
Hieruit blijkt dat het met het nemen van maatregelen de mogelijke stikstofdepositie in positieve zin wordt beïnvloed tot het niveau dat er geen sprake is van stikstofdepositie boven de 0,00 mol. De toets of een project uitgevoerd kan worden, vindt plaats op projectniveau, dus bij de verlening van de bopa’s. Hierbij geldt dat een eerder uitgevoerde plantoets geen zekerheid geeft dat op projectniveau geen sprake is van stikstofdepositie (dit ook vanwege de verschillende uitgangspunten bij de toets).Ook is er geen verplichting om eerder een plan-toets uit te voeren. Op projectniveau zullen namelijk –ongeacht eerdere uitkomsten van de passende beoordeling op planniveau – de effecten op Natura2000-gebieden nog altijd moeten worden onderzocht.
Vanwege de beoogde fasering in tijd van de ontwikkelingen in Entree en het feit dat uit het stikstofonderzoek bij de RSZ blijkt dat met het nemen van maatregelen bij een fors groter woningbouwprogramma geen sprake is van stikstofdepositie is nogmaals beoordeeld of een passende beoordeling noodzakelijk is om het Omgevingsprogramma vast te stellen. Passend beoordelen betekent dat er een ecologische beschouwing plaatsvindt op wat het effect is van de stikstofdepositie op de instandhoudingsdoelstellingen voor natuur. In het kader van het ontwerp van het Omgevingsprogramma is dat in hoofdlijnen reeds inzichtelijk gemaakt.
Of een passende beoordeling verplicht is, hangt af of het Omgevingsprogramma kan worden beschouwd als een plan op grond van de Habitatrichtlijn. Over deze vraag is nog geen jurisprudentie. Maar vanwege het karakter van het Omgevingsprogramma, een beleidsmatig en bovendien vrijwillig document, is tot de conclusie gekomen dat een dergelijk omgevingsprogramma geen plan is in de zin van Habitatrichtlijn en dat het gelet daarop niet verplicht is om een passende beoordeling op te stellen. Wel zal in samenwerking met de grondeigenaren aankomende periode invulling gegeven aan het verder onderzoeken van stikstofdepositie en het verder beoordelen van mogelijke maatregelen die invloed hebben op de stikstofdepositie in relatie tot de keuzes die in het kader van de RSZ worden gemaakt.
Kansen voor verhoging natuurwaarden
Er zijn kansen voor verhoging van natuurwaarden als hier bewust op ingezet wordt bij de ontwikkeling van het gebied. Zo ligt er een ambitie voor de realisatie van verschillende soorten habitats waarmee biodiversiteit in het plangebied vergroot kan worden. Daarnaast worden groen-blauwe structuren gerealiseerd die ook in verbinding komen met omliggende parken en groen. Verder zal ook in de nieuwbouw natuurinclusief bouwen worden toegepast. Kansen voor verhoging van natuurwaarden worden in beide varianten op deze wijze benut. De gemeente Zoetermeer heeft in beide varianten hoge ambities voor de ontwikkeling van natuurwaarden, maar ook voor andere onderwerpen zoals duurzaamheid en energie. Hierin dient in het uiteindelijke ontwerp een afweging gemaakt te worden. Een dak kan bijvoorbeeld gebruikt worden voor zowel groen als zonnepanelen, maar niet beiden op precies dezelfde plek. In beide alternatieven zal door de maatregelen sprake zijn van een toename aan groen oppervlak en natuur inclusief bouwen wat tot een positief effect leidt. In beide alternatieven er dus mogelijk sprake zijn van een toename van natuurwaarden, afhankelijk van de daadwerkelijke mate van verstoring. Deze alternatieven scoren daarom licht positief (+).
Broedvogel
Bij voorkeur worden werkzaamheden niet in het broedseizoen (maart tot en met augustus) uitgevoerd. Wanneer dit niet mogelijk is zullen maatregelen getroffen moeten worden om de aanwezigheid van broedende vogels te voorkomen. Effecten op broedvogels wordt voorkomen door voorafgaand aan het broedseizoen het plangebied ongeschikt (korte vegetatie en bomen gekapt) te maken. Komen vogels alsnog tot broeden op de bebouwing, dan dienen maatregelen getroffen te worden om verstoring van het broedgeval te voorkomen.
Vogels met jaarrond beschermde nesten (inclusief spreeuw)
Voorafgaand aan de werkzaamheden en buiten het broedseizoen worden alternatieve soortspecifieke nestlocaties aangeboden. Daarnaast wordt leefgebied van deze soorten waar nodig geoptimaliseerd om aantasting in foerageergebied te mitigeren. Dit is na afronding van het plan in de vorm van groenstructuren en groene daken. Er wordt aanbevolen uitsluitend overdag te werken en het gebruik van kunstlicht gedurende de werkzaamheden zo veel mogelijk te beperken.
Vleermuizen
Verblijfplaatsen in gebouwen en in bomen dienen voorafgaand aan de werkzaamheden gecompenseerd te worden. Hiervoor kunnen tijdelijke vleermuiskasten ingezet worden. Bij gefaseerde bouwwerkzaamheden kunnen inbouwkasten mogelijk ook gerekend worden bij (tijdelijk) aangeboden verblijfplaatsen. Voorafgaand aan het verwijderen van essentiële vliegroute(s) dient een tijdelijke vliegroute gerealiseerd te zijn. In de permanente situatie dienen robuuste vliegroute(s) in de directe omgeving van de oorspronkelijke vliegroute te worden teruggeplaatst. Door de werkzaamheden overdag uit te voeren worden negatieve effecten door kunstlicht voorkomen. De vliegroute(s) dienen daarnaast niet direct belicht worden tussen zonsondergang en zonsopgang.
Amfibieën
Voordat er werkzaamheden starten op perceel Oost 3 dient de locatie afgezet te worden door middel van amfibieschermen. Er moet gezorgd worden dat rugstreeppadden de locatie wel kunnen verlaten, maar niet kunnen koloniseren. Dit is alleen mogelijk indien er geschikt leefgebied voor rugstreeppad in de directe omgeving voorkomt. Als dit niet zo blijkt te zijn dienen individuen afgevangen te worden en op een geschikte locatie uitgeplaatst te worden. Pas na vrijgave van de werklocatie kunnen de werkzaamheden starten.
Vlinders
Voorafgaand aan het verwijderen van iepen, zoete kersen of wilgenbomen dienen deze boomsoorten op geschikte locaties geplant te zijn.
Flora
Voorafgaand aan de werkzaamheden op perceel Oost 2 dient zaad van dreps en glad biggenkruid verzameld te worden. Door de bovenste grondlaag af te graven zal tevens de zaadbank in de bodem verzameld worden. De zaden en afgegraven bodem dient op een nieuwe geschikte locatie met een open en zandige onbewerkte grondlaag, teruggeplaatst te worden.
(Specifieke) zorgplicht
Voor algemene en rode lijst soorten is het noodzakelijk om invulling te geven aan de (specifieke) zorgplicht. Er moeten maatregelen worden geformuleerd die ertoe leiden dat tijdens de werkzaamheden negatieve effecten op planten en dieren zoveel mogelijk wordt voorkomen. Hierbij dient tevens bij de inrichting van het plangebied aandacht te worden besteed aan de realisatie van algemeen geschikt habitat voor plant en dier.
Binnen de percelen Oost 4 en 5 komt konijn voor. Tijdens de werkzaamheden moet voorkomen worden dat konijnen worden gedood. Maatregelen om dit te voorkomen dienen voorafgaand aan de werkzaamheden te worden geformuleerd. Eén van de te nemen maatregelen is om de werkzaamheden richting één kant uit te voeren.
Algemeen
De te nemen mitigerende en compenserende maatregelen in het kader van de omgevingsvergunning moeten in een activiteitenplan worden uitgewerkt. De uitvoering van de maatregelen in het kader van de omgevingsvergunning en de (specifieke) zorgplicht moeten in een ecologisch werkprotocol worden uitgewerkt. Dit protocol moet aanwezig zijn op de werklocatie en het aanwezig personeel moet op de hoogte zijn van de inhoud van dit ecologisch werkprotocol. Het protocol dient te worden opgesteld door een ter zake kundige op het gebied van flora en fauna. Eventuele ecologische begeleiding dient eveneens te worden uitgevoerd door een ter zake kundige op het gebied van flora en fauna. Indien de mitigerende en compenserende maatregelen naar voldoening opgevolgd worden, is het effect op beschermde soorten neutraal (0).
Mitigatie en compensatie stikstofdepositie op Natura 2000-gebieden
Als gevolg van de twee alternatieven is in de gebruiksfase sprake van een toename van stikstofdepositie op overbelaste Natura 2000-gebieden. Om die reden zijn (significant) negatieve effecten op Natura 2000-gebieden niet op voorhand uit te sluiten. Dit betekent niet dat het plan per definitie niet uitvoerbaar is. Voor mitigerende maatregelen kan gedacht worden aan smart mobility, inzet op openbaar vervoer om emissies van verkeer te beperken en/of extern salderen. In de aanlegfase is - afhankelijk van het bouwtempo - geen sprake van een toename van stikstofdepositie. Om die reden zijn er geen wettelijk verplichte mitigerende of compenserende maatregelen van toepassing. Wel zijn mitigerende maatregelen mogelijk om het realiseren van meer programma per jaar mogelijk te maken. Op basis van de berekeningen ligt dat punt op 500 appartementen, 100 woningen en niet wonen voorzieningen.
Het verhogen van natuurwaarden is geen wettelijke verplichting maar betreft een bovenwettelijk kader.
Als aanvullende maatregelen kan gedacht worden aan
Duurzaamheid en energie
In deze paragaaf worden het opwekken van thermische- en de elektrische energie ten opzichte van energieopwekking beoordeeld. Het aspect energie in het plangebied wordt beoordeeld aan de hand van de gebouwgebonden energievraag ten opzichte van energieopwekking in het plangebied. Het aspect wordt kwantitatief beoordeeld. Bij de beoordeling wordt de benodigde en beschikbare hoeveelheid energie bekeken aan de hand van de thermische- en de elektrische energie. Hierbij wordt onderscheid gemaakt tussen het minimale en het maximale alternatief, waarin het aantal woningen en utiliteiten verschilt. Bij thermische energie gaat het om het verwarmen van ruimten en tapwater. Elektrische energie is de stroom die nodig is voor de werking van warmtepompen en andere apparaten.
Thermische energie
De beschikbare thermische energie uit omgevingswarmtebronnen overstijgt de benodigde hoeveelheid in het projectgebied. In vervolgonderzoek dient onderzocht te worden welke omgevingswarmtebron het beste kan worden ingezet, aangezien meerdere omgevingswarmtebronnen in de volledige vraag naar thermische energie kunnen voorzien. Het aspect opwekking gebouwgebonden thermische energievraag wordt beoordeeld als zeer positief.
Elektrische energie
Om de berekende energievraag in te vullen zijn veel zonnepanelen nodig. Het is niet realistisch dat dit in de praktijk gehaald wordt binnen het plangebied zelf. De verwachting is dat een gedeelte van de gebouwgebonden energievraag in het projectgebied opgewekt kan worden. Het aspect opwekking gebouwgebonden elektrische energievraag wordt daarom beoordeeld als negatief.
Om dit te beperken kan gezocht worden naar mogelijkheden om meer elektriciteit op te wekken in dan wel nabij het projectgebied. Een voorbeeld is te onderzoeken wat de mogelijkheden zijn voor de aanleg van zonneparken. Wat het effect van deze maatregelen is, kan met de huidige gegevens niet in kaart worden gebracht. Naast het onderzoeken van meer bronnen van energie is het ook mogelijk om het energieverbruik te verminderen. Zo kan de toepassing van warmteterugwinning op de douches in woningen de vermogens- en energievraag voor tapwater verminderen. Voor goed geïsoleerde woningen geldt dat douchewater een relatief groot deel van de energievraag invult, door dit te minimaliseren wordt relatief veel energie bespaard.
Wateroverlast
De ontwikkeling is gebonden aan de Waterschapsverordening en op grond daarvan geldt de plicht om een eventuele toename van verharding te compenseren. Voor de planontwikkeling (op het niveau van de Ontwikkelvisie) is een globale waterbalans opgesteld door gemeente Zoetermeer. Hieruit volgt dat de ontwikkeling van Entree voldoet aan de compensatie-eis van zowel het hoogheemraadschap en de gemeente. Dit heeft als gevolg dat wateroverlast in het plangebied zal afnemen. Ondanks dat het oppervlak groen in het plangebied afneemt ten opzichte van de huidige situatie. Hier wordt ook nader op ingegaan in het deelonderzoek water.
Het hoogheemraadschap stelt vanuit haar klimaatregels de volgende regels:
Het gebied dient een regenbui van 90 mm in 24 uur op te vangen om extreme neerslag aan te kunnen.
Het gebied dient een bui van 20 mm in 24 uur in de bodem op te nemen en vasthouden om droge periodes aan te kunnen.
Voor de ontwikkeling Entree gelden de volgende ambities:
In de openbare ruimte wordt waterberging in open water en boven- en ondergrondse voorzieningen toegepast.
Ontwikkelende partijen zijn verantwoordelijk voor het realiseren van eigen waterberging op de eigen plots.
Het water draagt bij aan de natuurlijke beleving van het gebied.
Voorkeur voor groen-blauwe maatregelen zoals oppervlaktewater, wadi’s en verlaagde groenstructuren, boven kunstmatige, ondergrondse oplossingen.
De ambities zijn doorvertaald naar de volgende maatregelen:
Oppervlaktewater aan de oostzijde Boerhaavelaan toevoegen.
Wadi aan de westzijde van Bredewater toevoegen.
Groen-blauw kader in het ontwerp benutten voor waterberging.
Waterbergingssysteem toevoegen op de Afrikaweg.
Op de kavels water vasthouden op het dak, binnentuin en/of parkeerkelder.
De uitwerking van de plannen bepaalt in hoeverre er sprake is van meerwaarde op het thema wateroverlast. Op basis van de watercompensatieverplichting is de beoordeling van de minimale en maximale alternatieven positief (+) omdat met de watercompensatieverplichting wordt uitgegaan dat voldoende maatregelen genomen worden en wateroverlast in het gebied afneemt. Echter is het noemenswaardig dat in het plangebied een groot verschil is tussen het gebied ten westen en ten oosten van de Afrikaweg als gekeken wordt naar het toekomstige watersysteem. Het watersysteem van de oostkant is groot in oppervlak en aaneengesloten. Het watersysteem aan de westkant is versnipperd aanwezig en klein in oppervlak. De effecten op gebied van wateroverlast zal daarom ook verschillend zijn. Zie deelonderzoek water in het Plan-MER voor verdere toelichting.
Hittestress
Hittestress is een van de klimaatadaptatieopgaven in de ontwikkeling.
In de Ontwikkelvisie Entree zijn verschillende ambities voor hitte vastgesteld (zie bijlage II):
30% schaduw in de openbare ruimte en binnenterreinen van het plangebied, bij verblijfsplekken en op fiets- en looproutes richting koele plekken.
Op maximaal 300 meter loopafstand is een openbaar toegankelijk, in de buitenruimte of inpandig koele, schaduwrijke verblijfsplek.
Groenvoorzieningen in de openbare ruimte moeten zo veel als mogelijk bestand zijn tegen de hitte.
Bij de materiaalkeuze is er aandacht voor kleur en dichtheid in verband met opwarming en warmteafgifte en weerkaatsing.
Nieuwe woningen worden hittebestendig ontworpen.
Hittebestendige woningen zorgen voor een voldoende koel binnenklimaat. Dit is sinds 2021 in het ontwerpcriterium TOjuli (temperatuur-overschrijding) in de BENG-eisen geborgd.
Het is mogelijk om de hittestress in het plangebied via het ontwerp te beperken door basismaatregelen:
De Stadsstraat: het creëren van een robuust groenstructuur langs de Afrikaweg.
De Groene Kraag: het groen-blauwe raamwerk aan de buitenranden van het plangebied versterken.
Verkoelende waterelementen realiseren in de openbare ruimte.
De gebouwen zorgen voor extra schaduwwerking.
De maatregelen zullen bijdragen aan het verlagen van de impact van hittestress in de nieuwe ontwikkeling. De hogere bebouwing leidt ook tot meer schaduwwerking en lagere temperaturen buiten. De keerzijde van deze schaduwwerking is dat er minder zon beschikbaar is voor de groei van bomen en ander groen. Daarnaast neemt het percentage groen in het gebied af met de ontwikkeling. Daarom wordt een neutraal (0) effect verwacht voor beide alternatieven. Uitgangspunt is hierbij dat de gebouwen voldoen aan de BENG-eisen en bij de inrichting van de openbare ruimte en daken minimaal de basismaatregelen uit de BENG worden meegenomen. De bebouwing leidt ook tot meer schaduwwerking en lagere temperaturen buiten.
Droogte
Omdat de ontwikkeling van Entree op een bodem met kleiige karakteristieken in de toplaag plaatsvindt, is droogte een minder grote opgave.
In de Ontwikkelvisie Entree (zie bijlage II) zijn verschillende ambities en maatregelen benoemd om de droogte-impact niet te vergroten:
Hemelwater wordt vertraagd en langdurig vastgehouden. Dit kan op de daken en ondergronds onder de Afrikaweg.
De beplanting wordt afgestemd op het toekomstige klimaat.
Daarnaast is in de waterschapverordening de 20 millimeter-regel opgenomen. Om ervoor te zorgen dat een gebied droogte aankan, moet de bodem in een gebied een normale bui van 20 mm in 24 uur op kunnen nemen en kunnen vasthouden voor droge periodes.
In de huidige situatie zijn delen van het plangebied (enigszins) gevoelig voor bodemdaling. Afhankelijk van de toename in verhard oppervlak en bouwhoogtes op uitgeefbaar terrein bij de ontwikkeling van Entree kan een toename in belasting/gewicht leiden tot (verschil)zettingen. Door dit mee te nemen in het ontwerp en bouwrijp maken van de gebieden kunnen zettingen worden beperkt of zelfs worden voorkomen. Omdat de ontwikkeling van Entree op een bodem van waterrijke klei plaatsvindt is droogte een minder grote opgave. In beide het minimale en maximale alternatief zal binnen het plangebied het verhard oppervlak toenemen en het groen oppervlak afnemen. Echter worden in de Ontwikkelvisie Entree maatregelen benoemd om de droogte-impact niet te vergroten. Hemelwater wordt vertraagd en langdurig vastgehouden. Dit kan op de daken en ondergronds onder de Afrikaweg en de beplanting wordt afgestemd op het toekomstige klimaat. Op basis hiervan wordt een neutraal (0) effect verwacht op beiden het minimale en maximale alternatief.
Overstroming
De ontwikkeling biedt kansen om voor meerlaags (water)veiligheid te zorgen. De Afrikaweg kan als vlucht- en evacuatieroute worden gebruikt. Omdat de Afrikaweg hoog ligt en de gebouwen de begane grond aan de weg krijgen, ontstaat een grote vluchtlocatie voor de nieuwe ontwikkeling en de omgeving. Er is veel extra ruimte beschikbaar. Echter worden in de Ontwikkelvisie Entree geen maatregelen benoemd ten behoeve van waterveiligheid. Op basis hiervan wordt een neutraal (0) effect verwacht op beiden het minimale en maximale alternatief.
Mitigatie en compensatie
Als bij de uitwerking van de plannen aanvullende maatregelen genomen worden, verbetert de effectbeoordeling voor wateroverlast, droogte en overstroming.
Voor wateroverlast zijn aanvullende maatregelen als volgt:
Waterberging toevoegen aan de noordwestzijde van het plangebied.
Oppervlaktewater aan de oostzijde toevoegen.
Bovengrondse waterstructuur in oost-westrichting creëren om zo lengte van duikers te beperken.
Knelpunten voor wateroverlast bij tunnels verhelpen.
Als de bovengenoemde maatregelen worden doorgevoerd verbetert de effectbeoordeling van positief (+) naar zeer positief (++). Voorwaarde is wel dat de bovenstaande maatregelen worden meegenomen en het stedenbouwkundig model gehandhaafd blijft. Als de verharding bij verandering in het stedenbouwkundigmodel extra toeneemt zijn extra maatregelen nodig.
Voor hitte zijn aanvullende maatregelen als volgt:
Het bieden van voldoende koele, schaduwrijke, toegankelijke openbare ruimte, buitenruimte en daken voor alle nieuwe bewoners.
Het overgrote deel van de bestaande bomen vervangen met nieuwe bomen, zodat het effect voor mensen en milieu zo optimaal mogelijk is. Voorbeelden hiervan zijn het toepassen van bomen rondom poelen ter voorkomen van verdamping en het planten van bomen met een kortere levensduur tussen bomen met een lange levensduur om op korte termijn voldoende schaduw in het plangebied te realiseren.
Als de bovengenoemde maatregelen worden doorgevoerd verbetert de effectbeoordeling van neutraal (0) naar positief (+).
Makkelijk inpasbare maatregelen treffen ten behoeve van waterveiligheid zijn als volgt:
Gevoelige nutsvoorzieningen boven peilhoogte.
Evacuatiemogelijkheden bij eengezinswoningen via de eerste verdieping creëren.
In kaart brengen van de assets die een ontwrichtende werking hebben als ze uitvallen door wateroverlast en overstroming. Voorbeelden zijn trafo’s van het elektriciteitsnetwerk en schakelkasten van een rioolgemaal en waar nodig deze hoger aanleggen.
Grondgebonden woningen altijd met twee verdiepingen bouwen, zodat vluchten binnen de woning mogelijk is.
Voor overstroming is momenteel geen aandacht besteed aan maatregelen ten behoeve van gevolgbeperkingen overstroming. Door hier aandacht aan te besteden en het opnemen van maatregelen wordt verwacht dat de effectbeoordeling zal veranderen.
Als de bovengenoemde maatregelen worden doorgevoerd verbetert de effectbeoordeling van neutraal (0) naar positief (+).
Op 13 mei 2025 heeft de Commissie mer het Toetsingsadvies voor de milieueffectrapportage bij het Omgevingsprogramma van Entree Zoetermeer uitgebracht. De Commissie waardeert de inspanningen en zorgvuldigheid waarmee de gemeente streeft naar een optimale inrichting van de wijk Entree. De Commissie vindt dat het MER veel goede informatie bevat en uitgebreid, toegankelijk en goed leesbaar is. Desondanks mist de Commissie belangrijke informatie in het MER. Zo zijn de milieugevolgen voor de nieuwe bewoners in een gebied als Entree, met hoge geluidbelasting en weinig groen, niet goed uitgelicht. Daarnaast zijn de keuze voor het huidige stedenbouwkundige ontwerp van Entree en de consequenties voor de leefomgeving niet helder. Er zijn verschillende doelstellingen voor de wijk, maar het is onduidelijk hoe deze zijn meegewogen in de keuze voor dit ontwerp. Verder merkt de Commissie op dat er een alternatief ontbreekt waarbij de gezonde leefomgeving als uitgangspunt wordt genomen en dat de onderzochte alternatieven alleen verschillen in aantallen mensen en voorzieningen. Tot slot zijn de stikstof effecten van het plan nog niet voldoende in beeld gebracht. De Commissie adviseert om deze informatie aan te vullen in het MER voordat er een besluit over het programma wordt genomen.
Op een aantal onderdelen is het MER aangevuld. Dat betreffen geluid, stikstof, de onderbouwing bij de sloop-nieuwbouw van de panden Bredewater 4-14 en Bredewater 16 en de totstandkoming van het stedenbouwkundig model. Waar de gemeente aanvulling nodig achtte op de andere onderdelen van het advies, is dat in het navolgende beschreven.
Bomen
Delen van de bestaande structuren bestaan uit grote oude bomen die in hoge mate het groene aanzicht van het kenmerkende straatbeeld bepalen. Veel van deze bomen zijn dermate oud dat behoud op de lange termijn niet verantwoord is. Deze bomen blijven in Entree behouden zolang dit verantwoord is terwijl jonge nieuw aangeplante bomen in die tijd steeds meer in volume toenemen. Dit zorgt ervoor dat tijdens de gefaseerde realisatie van Entree het totale volume van boomkronen zo groot als mogelijk is.
Er zijn ook deelgebieden die een nieuwe inrichting krijgen. Doordat de wijk in het nieuwe plan aan twee zijden (oost en west) geleidelijk oploopt naar de Afrikaweg wordt er veel veranderd in de hoogtepeilen en de infrastructuur van het gebied. Dat zorgt voor beperkingen bij het inpassen van het bestaande groen, waardoor niet veel van het bestaande groen behouden kan worden.
Overstroming
De commissie MER constateert in haar advies dat niet expliciet wordt gemaakt dat er meer dan 10.000 nieuwe mensen worden blootgesteld aan het bestaande overstromingsrisico.
In zowel de effectstudie Omgevingsveiligheid en de effectstudie Klimaat wordt ingegaan op overstroming. Hierbij is inderdaad niet expliciet benoemd dat de nieuwe bewoners worden blootgesteld aan een bestaand overstromingsrisico. Uit de studies blijkt echter dat de Afrikaweg door zijn hogere ligging dan het maaiveld, een goede vluchtroute biedt voor hoog water en ook voor de toegankelijkheid voor hulpdiensten. Ook blijkt dat door de stedenbouwkundige opzet deze weg veel bereikbaarder wordt voor een ieder in en om het plangebied heen, dan nu het geval is. En belangrijk is te constateren dat mensen ook de verdiepingen van de gebouwen kunnen opzoeken. Er worden dus weliswaar geen nieuwe expliciete maatregelen getroffen, maar impliciet zijn er en komen er voldoende vluchtmogelijkheden tegen overstroming.
Passende beoordeling
Vanwege de beoogde fasering in tijd van de ontwikkelingen in Entree en het feit dat uit het stikstofonderzoek bij de RSZ blijkt dat met het nemen van maatregelen bij een fors groter woningbouwprogramma geen sprake is van stikstofdepositie (zie ook paragraaf 6.2.13) is nogmaals beoordeeld of een passende beoordeling noodzakelijk is om het Omgevingsprogramma vast testellen. Passend beoordelen betekent dat er een ecologische beschouwing plaatsvindt op wat het effect is van de stikstofdepositie op de instandhoudingsdoelstellingen voor natuur. In het kader van het ontwerp van het Omgevingsprogramma is dat in hoofdlijnen reeds inzichtelijk gemaakt.
Of een passende beoordeling verplicht is, hangt af of het Omgevingsprogramma kan worden beschouwd als een plan op grond van de Habitatrichtlijn. Over deze vraag is nog geen jurisprudentie. Maar vanwege het karakter van het Omgevingsprogramma, een beleidsmatig en bovendien vrijwillig document, is tot de conclusie gekomen dat een dergelijk omgevingsprogramma geen plan in de zin van de Habitatrichtlijn is en dat het gelet daarop niet verplicht is om een passende beoordeling op te stellen. Wel zal in samenwerking met de grondeigenaren aankomende periode invulling gegeven aan het verder onderzoeken van stikstofdepositie en het verder beoordelen van mogelijke maatregelen die invloed hebben op de stikstofdepositie in relatie tot de keuzes die in het kader van de RSZ worden gemaakt.
Cultuurhistorie
In het Masterplan wordt voor de ontwikkeling van Entree (al) uitgegaan van sloop- & nieuwbouw van alle bestaande kantoren. Nadat het Masterplan in 2019 is vastgesteld zijn er door de raad twee relevante moties aangenomen. Met de indiening van de motie “Cultuurhistorische panden inventariseren” en de motie “Cultuurhistorische waardenkaart” is het verzoek gedaan om een inventarisatie uit te voeren naar gebouwen in Zoetermeer met een mogelijk cultuurhistorische betekenis of waarde uit de periode van de groeikern. Dit heeft geresulteerd in het onderzoeksproject ‘Inventarisatie Post 45’ dat zich richt op het erfgoed uit de periode 1945 – 1990. Daarnaast is in 2019 een cultuurhistorische inventarisatie- en waardenstelling uitgevoerd door een extern bureau vanwege de transformatieopgave in Entree. Uit beide onderzoeken is naar voren gekomen dat een aantal gebouwen binnen Entree een cultuurhistorische waarde hebben. Het gaat daarbij concreet om de "Mammoet” (Bredewater 16) en "De Kristalkantoren” (Bredewater 2 t/m 14). Deze gebouwen komen in aanmerking voor de selectie van nieuwe gemeentelijke monumenten. Vooruitlopend op het selectieproces van het Post 45-project, dit vanwege de planning en voortgang in de ontwikkeling van Entree, is ontwerpend onderzoek gedaan naar de (on-)mogelijkheden van het behoud van de kantoren en de gevolgen voor het aantal woningen, het parkeren, de betekenis voor de stadsstraat, centrumstraat en belangrijkste principes van Entree en de financiële gevolgen in relatie tot de gebiedsbusinesscase. Ook de eigenaar van de locatie is gevraagd naar zijn visie en de ontwikkelbaarheid van de betreffende kavels.
Dit is verwerkt in een afwegingsmatrix en afgezet tegen het vigerende sloop- en vervolgens nieuwbouw scenario en bijbehorende businesscase. Het college heeft op 14 januari 2025 – het geheeloverwegende – herbevestigd om voor het deelgebied Entree- West 6 en 7 uit te gaan van sloop- en nieuwbouw. Dit besluit is als zodanig ook verwerkt in de stukken behorende bij het Omgevingsprogramma en ter inzage gelegd.
Parallel aan het besluitvormingsproces over het Omgevingsprogramma loopt een selectieproces van de Rijksdienst voor het Cultureel erfgoed (RCE) voor de aanwijzing van Rijksmonumenten. De Mammoet zal worden voorgedragen aan de Minister van Cultuur om te worden aangewezen als Rijksmonument. Het besluit hierover is echter nog niet genomen. De minister zal voorafgaande het college om advies vragen en ook de eigenaar wordt in de procedure betrokken. Mocht uiteindelijk het besluit worden genomen om de Mammoet aan te wijzen als Rijksmonument dan zal de gemeente zich daartoe verhouden.
In bijlage IV is een samenvatting van het MER, met daarin een uitgebreide conclusie van de resultaten opgenomen. Om dubbellingen te voorkomen, wordt in deze paragraaf enkel de overzichtstabel opgenomen. Voor een tekstuele toelichting op deze tabel wordt verwezen naar de samenvatting van het MER.







Milieueffecten
In het Plan-MER is onderzoek uitgevoerd naar de milieueffecten als gevolg van de ontwikkeling van Entree. Deze milieueffecten zijn zowel in het plangebied zelf in beeld gebracht als voor de gebieden daarom heen als de te verwachten milieueffecten groter zijn dan enkel het plangebied. Bij de toetsing van de Plan-MER heeft de Commissie mer geconstateerd dat eventuele milieugevolgen voor de nieuwe bewoners niet duidelijk genoeg blijken. Om die reden zijn voor de belangrijkste thema’s de gevolgen hieronder opgenomen.
Ten aanzien van de milieugevolgen voor nieuwe bewoners is in het MER op alle relevante thema’s in beeld gebracht wat de gevolgen van de ontwikkeling zijn. Voor de nieuwe bewoners zijn met name de thema’s geluid, groen, overstromingsrisico en luchtkwaliteit van direct belang.
Met betrekking tot geluid is geconstateerd dat sprake is van een hoog geluid belast gebied. Voor een deel van de woningen zal sprake zijn van een overschrijding van de grenswaarden van geluid. Dit betekent dat extra maatregelen moeten worden getroffen aan de woning voor het verkrijgen van een aanvaardbaar woon- en leefklimaat. Ook kan het zijn dat maatregelen zijn getroffen aan de(gezamenlijke) buitenruimte. Desondanks kan sprake zijn van meer geluidhinder dan in een rustig woongebied valt te verwachten.
Entree wordt ingericht als een hoogstedelijk woon- en werkgebied. Dit betekent dat in vergelijking met andere gebieden in Zoetermeer er sprake zal van een meer versteende openbare ruimte. De realisatie van binnentuinen per blok, de versterking en uitbreiding van de Groene Kraag rondom Entree en het aanleggen van logische routes naar grotere groengebieden zorgen er wel voor dat groen altijd binnenloopafstand bereikbaar is.
Delen van Entree liggen in een gebied met risico tot overstroming. Dit is een bestaand risico. Doordat de Afrikaweg hoger ligt dan het maaiveld zal deze niet overstromen. Hierdoor biedt deze weg een goede vluchtroute en blijft deze route toegankelijk voor hulpdiensten. Ook binnen de gebouwen is het mogelijk om hogere hoogten op te zoeken. Hierdoor is sprake van een aanvaardbaar risico.
Centraal door het plangebied is de Afrikaweg gelegen en aan de zuidkant de A12. Onderzoek is gedaan naar de luchtkwaliteit in de nieuwe situatie. Door de toename van het aantal woningen zal sprake zijn van een toename van verkeer, dat ten opzichte van de huidige situatie ook zich anders zal verdelen over de omliggende ontsluitingswegen. Dit zal leiden tot een afname van de luchtkwaliteit. Wel wordt nog steeds voldaan aan de wettelijke grenswaarden.
Mitigerende maatregelen
Zoals uit de overzichtstabel en de conclusie uit de Plan-MER blijkt, hebben beide alternatieven op de verschillende indicatoren effecten uiteenlopend van zeer negatief (- -) tot aan zeer positief (++). Voor verschillende indicatoren zijn de negatieve effecten echter na mitigatie of compensatie neutraal (0). Een belangrijke algemene opmerking bij de mitigerende maatregelen is dat voor een aantal maatregelen op dit moment al duidelijk is dat deze worden toegepast. Voor andere maatregelen zal deze afweging later in het planproces plaatsvinden. Daar waar op dit moment al duidelijkheid over is, is dat nadrukkelijk hierna aangegeven. Als dat later in het planproces aan de orde kan komen, is aangegeven dat op dit moment geen rekening is gehouden met invulling van deze mitigerende maatregel. Voor mitigerende maatregelen waarvan nu op voorhand al zekerheid is dat deze niet worden toegepast, is dat ook aangegeven. Toekomstige (nieuwe) beleidskeuzes kunnen daarnaast leiden tot een positieve aanpassing van de uitkomsten van de effectstudies.
Verkeer - Mitigerende maatregelen
Om de doorstroming van de kruispunten te verbeteren, wordt het aanpassen van de rotonde Bredewater – Meerzichtlaan als mitigerende maatregel voorgesteld, worden aanvullende maatregelen voor de gelijkvloerse oversteken over de Afrikaweg in beeld gebracht en wordt de uitvoering van het ambitiescenario voor het parkeren als mitigerende maatregel voorgesteld. Na het nemen van deze maatregelen worden beide alternatieven als neutraal beoordeeld (0) voor doorstroming kruispunten, verkeersveiligheid en parkeren.
Toepassing van de mitigerende maatregel
Het aanpassen van de maatregel aanpassen rotonde Bredewater – Meerzichtlaan is opgenomen in het schetsontwerp van de openbare ruimte. Deze mitigerende maatregel zal derhalve worden uitgevoerd. Bij de verdere uitwerking van schetsontwerp naar voorlopig ontwerp worden de aanbevelingen uit de verkeersveiligheidsaudits, mede ten behoeve van de oversteken Afrikaweg, overgenomen. Een deel van deze maatregel (afname van verkeer) is echter afhankelijk van mobiliteitskeuzes die op een groter schaalniveau genomen worden van Entree. Er is derhalve op dit moment geen rekening gehouden met invulling van deze mitigerende maatregel. Ten aanzien van de maatregel ‘uitvoering van het ambitiescenario parkeren’ geldt dat het toepassen en uitvoeren daarvan facultatief is, maar dat de verwachting is dat de grondeigenaren hier gebruik van zullen maken. Er is dus een gerede kans dat het effect uiteindelijk neutraal (0) zal zijn.
Leefbaarheid/gezondheid
Geluid - Mitigerende maatregelen
Bij de uitwerking van de plandelen zal nadrukkelijk rekening gehouden moeten worden gehouden met het geluid van de verschillende bronsoorten (wegverkeer, railverkeer, bedrijvigheid). Vanuit de maatregelvarianten zijn diverse maatregelen denkbaar die de waarde van geluid verminderen (verlagen snelheid, geluidsscherm, luifel of tunnel).
Toepassing van de mitigerende maatregelen
Op dit moment is er in de periode tot 2040 niet de verwachting dat deze maatregelen zullen worden toegepast. Wel zal de gemeente, ook gelet op de doelstellingen in de Ruimtelijke Strategie Zoetermeer voor de langere termijn, in overleg treden met Rijkswaterstaat om te onderzoeken of bron- of overdrachtsmaatregelen (met een planhorizon van na 2040) mogelijk zijn. Er is derhalve op dit moment geen rekening gehouden met invulling van deze mitigerende maatregel.
Luchtkwaliteit - Mitigerende maatregelen
De negatieve effecten op de indicator NO2 worden met name veroorzaakt door grote NO2- emissies: verkeersbewegingen, sfeerverwarming en overige bronnen zoals roken en bijvoorbeeld brommergebruik. De belangrijkste mitigerende maatregelen is het instellen van een milieuzone binnen de woonwijk (diverse vormen denkbaar). Na het nemen van deze maatregel worden beide alternatieven als neutraal beoordeeld (0) voor NO2.
Toepassing van de mitigerende maatregel
Het instellen van een milieuzone binnen Entree is niet aan de orde. Er is derhalve geen rekening gehouden met invulling van deze mitigerende maatregelen.
Omgevingsveiligheid – Mitigerende maatregelen
Bij de uitwerking van het ontwerp zijn verschillende mogelijkheden om de omgevingsveiligheid te optimaliseren. De meest effectieve maatregel voor omgevingsveiligheid is het afstand houden van risicobronnen in de omgeving van het plangebied. Voor het plangebied betekent dit het beperken van hoge concentraties bebouwing (en daarmee personen) direct langs de A12.
Een effectieve maatregel in geval van een toxisch scenario is het uitvoeren van bebouwing met een(centraal) afschakelbare ventilatievoorziening. Het is hierbij belangrijk dat bewoners en beheerders van het gebouw op de hoogte zijn van deze voorziening en weten hoe ze deze correct moeten gebruiken. Het is aan te raden om instructies (handelingsperspectief) bij een incident met gevaarlijke stoffen aan de gebouwen toe te voegen. De Veiligheidsregio Haaglanden heeft ook aangegeven dat het wenselijk is om te oefenen met dergelijke scenario’s, bijvoorbeeld binnen de bedrijfshulpverlening.
Onder de Omgevingswet kunnen verschillende veiligheidsmaatregelen worden getroffen binnen aandachtsgebieden, waaronder het aanwijzen van voorschriftengebieden met aanvullende bouweis en via het omgevingsplan. Voor zeer kwetsbare gebouwen, waar mensen aanwezig zijn die zichzelf niet tijdig in veiligheid kunnen brengen, gelden echter strikte maatregelen. Dit omvat extra eisen aan brandwerendheid en brandklasse, die van toepassing zijn op nieuwbouw. Na het nemen van deze maatregelen worden beide alternatieven als neutraal beoordeeld (0) voor plaatsgebonden risico en groepsrisico. Voor aandachtsgebieden verandert de beoordeling van negatief (-) naar neutraal (0) voor het minimumalternatief. Voor het maximumalternatief is dit een verandering van zeer negatief (- -) naar negatief (-).
Toepassing van de mitigerende maatregelen
Het beperken van hoge concentraties gebouwen langs de A12 is een maatregel die ten gunste kan staan van het aspect omgevingsveiligheid, maar niet in verhouding staat tot de ambities en doelstellingen (op hoofdlijnen het realiseren van tussen de 6.250 en 7.250 woningen met voorzieningen in een stedelijk woonmilieu) die de gemeente Zoetermeer met Entree heeft vastgesteld. Er is derhalve geen rekening gehouden met invulling van deze mitigerende maatregel.
De maatregel afschakelbare ventilatievoorziening is een potentieel te realiseren maatregel en onderdeel van de verdere uitwerking en ontwerpen van de gebouwen. In het ontwerpproces zal hier aandacht voor worden gevraagd. Vanzelfsprekend worden de extra eisen gevolgd bij zeer kwetsbare gebouwen omdat dit een wettelijke verplichting is. Extra maatregelen in aandachtsgebieden zijn wettelijk niet verplicht. Er is derhalve geen rekening gehouden met invulling van deze mitigerende maatregel.
Trillingen - Mitigerende maatregel
Om trillingseffecten te voorkomen zijn verschillende maatregelen te nemen zoals het realiseren van een zo vlak mogelijke wegopbouw, toepassing van asfalt in plaats van klinkers, minimaliseren van drempels, zwaarder geconstrueerde gebouwen op korte afstand van de erfontsluitingswegen, het vermijden van putten in de rijlijnen en het eventueel verzwaren van de fundering of het toepassen van stijvere bouwmethode. Zware en dure trillingsmaatregelen zijn in het hele plangebied onnodig.
Toepassing van de mitigerende maatregel
De maatregelen die voorgesteld worden zijn voor een groot deel onderdeel van de uitwerking van de openbare ruimte en zullen bij de verdere uitwerking van het ontwerp van de openbare ruimte worden betrokken. Er is derhalve op dit moment geen rekening gehouden met invulling van deze mitigerende maatregel.
Windklimaat - Mitigerende maatregel
Ondanks het feit dat het windklimaat op de meeste plekken gunstig is, is er een aantal locaties waar een optimalisatie gewenst zou kunnen zijn:
Het windklimaat op het dek aan de oostzijde van het zuidwestelijke bouwblok plangebied (matig voor doorlopen in de geplande situatie) kan verbeterd worden door het plaatsen van een scherm aan de rand van het dek.
Door aan de westkant van het Poortgebouw windremmende maatregelen te nemen kan mogelijk ook hier het beperkt risico worden voorkomen.
Het windklimaat bij de zuidoostelijk beëindiging van het plangebied kan verbeterd worden door het plaatsen van groen in het gebied met een matig windklimaat. Als er belangrijke looproutes door dit gebied komen te lopen wordt geadviseerd deze zo mogelijk buiten het gebied met een matig windklimaat te houden of deze te voorzien van een afscherming in de vorm van bijvoorbeeld groen blijvende begroeiing.
Binnen het plangebied zou lokaal een verdere verbetering van het windklimaat mogelijk zijn door het plaatsen van begroeiing, maar dat zou alleen nodig zijn op plekken waar er windgevoelige functies (entrees, winkels) gerealiseerd worden op plekken waar het windklimaat matig is voor slenteren.
Door het nemen van maatregelen ter voorkoming van het beperkt risico op windgevaar, kan de beoordeling op dat aspect worden verbeterd naar neutraal (0).
Toepassing van de mitigerende maatregel
De mogelijke maatregelen die kunnen leiden tot een neutraal effect, zijn onderdeel van nadere uitwerking van het ontwerp van de gebouwen. Op het abstractieniveau van het Omgevingsprogramma zijn deze maatregelen te gedetailleerd en is op pandniveau niet onderzocht wat de effecten zijn. Daarom wordt in het omgevingsprogramma een beleidsregel opgenomen die stelt dat windhinderonderzoek verplicht moet worden uitgevoerd bij gebouwen hoger dan 30 meter. Op grond van die meer gedetailleerde onderzoeken kan beter worden bepaald of een mitigerende maatregel nodig is, en welke de beste resultaten opleveren. Er is derhalve op dit moment geen rekening gehouden met invulling van deze mitigerende maatregel.
Bezonning - Mitigerende maatregel
Het verbeteren van de bezonning van de omgeving is mogelijk door het verkleinen van de geplande bouwvolumes. Door deze verkleining kan de beoordeling voor bezonning van de omgeving verbeteren naar neutraal (0). Voor de geplande woningen kunnen de resultaten van het onderzoek gebruikt worden voor de planning van de locatie van woningen binnen het plan of de locatie van woonkamers binnen de woning. Bij een goed ontwerp is het daarbij mogelijk om op vrijwel alle woning gevels van de nieuwbouw een voldoende bezonning te realiseren. Door deze verkleining kan de beoordeling voor bezonning plan verbeteren naar zeer positief (++).
Toepassing van de mitigerende maatregel
Het verkleinen van de bouwvolumes is een maatregel die niet realistisch is, gezien de ambities in aantallen woningen (en de opgave binnen Zoetermeer om woningen te realiseren) die binnen Entree gerealiseerd kunnen worden. Zouden de bouwvolumes worden verkleind, dan kan dit leiden tot minder woningen, kleinere woningen, minder ruimte voor voorzieningen en kan de businesscase onder druk komen te staan. Deze maatregel zal dan ook niet worden getroffen. Daarbij is ook in overweging genomen dat het aantal woningen dat als gevolg van Entree onder de lichte TNO norm qua bezonning scoort, beperkt is. De resultaten van het bezonningsonderzoek zullen gebruikt worden bij de verdere uitwerking van de plannen. In het kader van het Omgevingsprogramma Entree is het nog niet mogelijk aan te geven of en hoe de woningen/ plattegronden daarvan eruit komen te zien. Er is derhalve op dit moment geen rekening gehouden met invulling van deze mitigerende maatregel.
Gezondheidsbevordering – Mitigerende maatregel
Reducerende maatregelen om hinder tijdens de aanlegfase te beperken kunnen zijn:
Goede routering aan- en afvoer van grond, bouwmaterialen langs routes met zo min mogelijk geluids gevoelige bestemmingen.
Goede inrichting en beheer van laad- en losvoorzieningen.
Veilige tijdelijke verkeersmaatregelen.
De regulering van toegankelijkheid van de bouwterreinen.
De regulering van de tijdstippen van aan- en afvoer en bouwwerkzaamheden.
Het nemen van deze maatregelen zou er toe kunnen leiden dat er minder overlast optreedt tijdens de aanleg van Entree. Tegelijkertijd is het volledig wegnemen van hinder tijdens de aanleg niet realistisch. Daarom blijft de effectbeoordeling gelijk (0). Hinder van licht kan vaak worden voorkomen door een juiste plaatsing en adequate afscherming van armaturen. Bij het ontwerpen van de gebouwen en de openbare ruimte zal daar aandacht aan moeten worden besteed. Ongeacht de mate van aandacht voor verlichting in het ontwerp blijft sprake van een toename van licht, en daarmee mogelijk hinder, ten opzichte van de huidige situatie. De effectbeoordeling blijft dan ook gelijk.
Toepassing van de mitigerende maatregel
Wat betreft hinder tijdens de aanlegfase zal gebruik worden gemaakt van BLVC (bereikbaarheid, leefbaarheid, veiligheid en communicatie) plannen. In zo’n plan staat beschreven hoe de overlast op de omgeving kan worden beperkt en wie het aanspreekpunt bij eventuele overlast is. Hierbij zal worden gestreefd naar het zo goed als mogelijk voorkomen van overlast, desondanks kan enige mate van hinder niet voorkomen worden. Er is derhalve op dit moment geen rekening gehouden met invulling van deze mitigerende maatregel. Ook wat betreft hinder van licht geldt dat dit onderdeel zal zijn van de verdere uitwerking van de openbare ruimte en gebouwontwerpen. Waar mogelijk zal invulling aan deze maatregel worden gegeven. Er is derhalve op dit moment geen rekening gehouden met invulling van deze mitigerende maatregel.
Water - Mitigerende maatregel
Ten aanzien van waterkwantiteit en waterkwaliteit is het van belang dat in overeenstemming met het beleid en de eisen van het hoogheemraadschap en de gemeente, er maatregelen worden getroffen om zowel de waterkwantiteit als de waterkwaliteit van het oppervlaktewater aan de westzijde te verbeteren. Denk hierbij aan het voorzien van extra oppervlaktewater dan nu is voorzien, en dat minstens een van de lange duikers die de Afrikaweg kruist, vervangen wordt door oppervlaktewater en kortere duikers. In de Ontwikkelvisie Entree zijn geen uitspraken gedaan over het beperken van negatieve effecten op grondwaterstanden als gevolg van de ontwikkeling. Door aan te geven hoe de ontwikkeling omgaat met grondwater, met name hoe negatieve effecten op grondwaterstanden beperkt worden en/of voorkomen worden, en hoe mogelijke grondwateroverlast in het gebied beperkt wordt en/of voorkomen wordt, is de verwachting dat de effectbeoordeling verbeterd. Na het nemen van deze maatregelen worden beide alternatieven als positief beoordeeld (+) voor indicatoren waterkwaliteit en waterkwantiteit.
Toepassing van de mitigerende maatregel
De negatieve beoordeling van grondwater is enkel aan het westelijke gedeelte van het plangebied. Het oostelijke deel scoort daar wel positief (+). Een eventuele mitigerende maatregel zou dan enkel voor het westelijke deel nodig zijn. Het realiseren van extra oppervlakte water en het vervangen van minstens één van de lange duikers door oppervlakte water en kortere duikers, is een aspect dat in de verdere uitwerking van het plan c.q. ontwerp openbare ruimte onderzocht kan worden. In overleg met Rijnland zijn een aantal van deze maatregelen ook ingepast in het uiteindelijk ontwerp. Na realisatie hiervan is een neutraal effect redelijkerwijs te verwachten.
Ruimtelijke kwaliteit - Mitigerende maatregel
Op de onderwerpen Stedelijk Landschap en Archeologie zijn mitigerende en/ of compenserende maatregelen niet aan de orde. Immers, op Stedelijk Landschap is het effect van Entree zeer positief(++) beoordeeld en bij Archeologie is het effect neutraal (0).
Op de indicator Cultuurhistorie is het effect van Entree voor beide alternatieven zeer negatief (- -) door o.a. de sloop van de cultuurhistorisch waardevolle panden Bredewater 4-14 en Bredewater 16. De gemeente Zoetermeer ziet hiervoor geen realistische mitigerende maatregelen, aangezien het planvoornemen uitgaat van sloop-nieuwbouw op deze plek.
Soortenbescherming - Mitigerende maatregel
Voor soorten zijn wettelijk verplichte maatregelen aangedragen per soort. Dit kunnen maatregelen zijn die invloed hebben op de fasering van de werkzaamheden of bijvoorbeeld het plaatsen van vleermuiskasten. Na het nemen van deze maatregelen worden beide alternatieven als neutraal (0) beoordeeld.
Toepassing van de mitigerende maatregel
Voor zover de maatregelen wettelijk verplicht zijn, worden deze vanzelfsprekend opgevolgd. Met betrekking tot vleermuizen, wordt in het kader van de benodigde vergunningentrajecten in beeld gebracht welke mitigerende maatregelen worden getroffen. Dit gebeurt voordat met de werkzaamheden kan worden begonnen. Eventuele maatregelen kunnen vleermuiskasten zijn, maar ook een tijdelijke vliegroute of een robuuste vliegroute(s) in de directe omgeving van de oorspronkelijke vliegroute teruggeplaatst worden.
Stikstofdepositie - Mitigerende maatregel
Er zijn vele mitigerende maatregelen denkbaar, maar de belangrijkste het instellen van een milieuzone binnen de woonwijk, aangezien verkeer de grootste bron van NOX-emissies is. Grote reducties zijn mogelijk indien geen verbrandingsmotoren worden toegestaan. Met minder vergaande maatregelen is ook nog een behoorlijke reductie haalbaar, bijvoorbeeld minimaal EURO- 6 voertuigen. Voor emissieloze scenario’s geldt dat de beoordeling dan zeer waarschijnlijk neutraal zou worden. Borging van een milieuzone kan via bepalingen in het omgevingsplan en een verkeersbesluit. Handhaving kan via een camerasysteem of BOA’s. Na het nemen van maatregelen worden beide alternatieven als neutraal (0) beoordeeld. In de aanlegfase is - afhankelijk van het bouwtempo - geen sprake van een toename van stikstofdepositie. Om die reden zijn er geen wettelijk verplichte mitigerende of compenserende maatregelen van toepassing.
Toepassing van de mitigerende maatregel
Uit het stikstofonderzoek bij de Ruimtelijke Strategie Zoetermeer blijkt dat met het nemen van mobiliteitsmaatregelen geen sprake is van stikstofdepositie. De beoordeling van stikstof vindt plaats op projectniveau. Er is derhalve op dit moment geen rekening gehouden met invulling van deze mitigerende maatregel.
Elektrische energie - Mitigerende maatregel
Uit de analyse komt naar voren dat de elektriciteitsopwekking in het gebied onvoldoende is om de in vraag te voorzien. Om dit te beperken kan gezocht worden naar mogelijkheden om meer elektriciteit op te wekken in dan wel nabij het projectgebied. Onderzoek de mogelijkheid voor de aanleg van zonneparken. Wat het effect van deze maatregelen is kan met de huidige gegevens niet in kaart worden gebracht. Naast het onderzoeken van meer bronnen van energie is het ook mogelijk om het energieverbruik te verminderen. Zo kan de toepassing van warmteterugwinning op de douches in woningen de vermogens- en energievraag voor tapwater verminderen. Voor goed geïsoleerde woningen geldt dat douchewater een relatief groot deel van de energievraag invult, door dit te minimaliseren wordt relatief veel energie bespaard.
Toepassing van de mitigerende maatregel
De effectbeoordeling op dit onderwerp is voor wat betreft de gebouwgebonden energievraag al positief (++). Het beperken van het energieverbruik door eventuele toepassing van bijvoorbeeld een warmteterugwinningsysteem of andere maatregelen zal onderdeel gaan uitmaken van de uitwerking van de bouwplannen. Er is derhalve op dit moment geen rekening gehouden met invulling van deze mitigerende maatregel. Ten aanzien van de elektriciteitsopwekking wordt geen concrete mitigerende of compenserende maatregel voorgesteld. De afweging of binnen het projectgebied meer energie kan worden opgewekt dan volgens de plannen mogelijk is, kan op gespannen voet komen te staan met de ruimtelijke kwaliteit (groen-blauw) en de toegankelijkheid van de openbare ruimte. Buiten het plangebied naar extra mogelijkheden zoeken ligt buiten het bereik van het Omgevingsprogramma Entree. Er is derhalve op dit moment geen rekening gehouden met invulling van deze mitigerende maatregel.
Klimaatadaptatie – mitigerende maatregel
Voor wateroverlast zijn aanvullende maatregelen als volgt:
Waterberging toevoegen aan de noordwestzijde van het plangebied.
Oppervlaktewater aan de westzijde toevoegen.
Bovengrondse waterstructuur in oost-westrichting creëren om zo lengte van duikers te beperken.
Knelpunten voor wateroverlast bij tunnels verhelpen.
Voor hitte zijn aanvullende maatregelen als volgt:
Het bieden van voldoende koele, schaduwrijke, toegankelijke openbare ruimte, buitenruimte en daken voor alle nieuwe bewoners.
Het overgrote deel van de bestaande bomen vervangen met nieuwe bomen, zodat het effect voor mensen en milieu zo optimaal mogelijk is. Voorbeelden hiervan zijn het toepassen van bomen rondom poelen ter voorkomen van verdamping en het planten van bomen met een kortere levensduur tussen bomen met een lange levensduur om op korte termijn voldoende schaduw in het plangebied te realiseren.
Makkelijk inpasbare maatregelen treffen ten behoeve van waterveiligheid zijn als volgt:
Gevoelige nutsvoorzieningen boven peilhoogte.
Evacuatiemogelijkheden bij eengezinswoningen via de eerste verdieping creëren.
In kaart brengen van de assets die een ontwrichtende werking hebben als ze uitvallen doorwateroverlast en overstroming. Voorbeelden zijn trafo’s van het elektriciteitsnetwerk en schakelkasten van een rioolgemaal en waar nodig deze hoger aanleggen.
Grondgebonden woningen altijd met twee verdiepingen bouwen, zodat vluchten binnen de woning mogelijk is.
Na het nemen van deze maatregelen worden beide alternatieven als positief beoordeeld (+) voor indicatoren hittestress, droogte en overstroming. Voor wateroverlast is dat zeer positief (++).
Toepassing van de mitigerende maatregel
Ten aanzien van de voorgestelde maatregelen geldt dat deze voor een belangrijk deel onderdeel vormen van de nadere uitwerking van zowel de openbare ruimte als de gebouw ontwerpen en binnentuinen die daarbij horen. Om die reden is het in deze fase van planvorming nog niet mogelijk te bepalen of te meten in hoeverre die maatregel de effectbeoordeling beïnvloed. Er is derhalve op dit moment geen rekening gehouden met invulling van deze mitigerende maatregel.
Gemeenten zijn verplicht de kosten die zij maken om bouwactiviteiten mogelijk te maken, te verhalen op de partij die daar profijt van heeft. Deze verplichting houdt in dat de gemeente binnen het wettelijk kader (afdeling 13.6 Omgevingswet) ervoor zorgt dat deze kosten worden verhaald op de initiatiefnemer. Dit kan via het vrijwillige, privaatrechtelijke spoor (anterieure overeenkomst) of het dwingende, publiekrechtelijke spoor (kostenverhaalsregels in het omgevingsplan of kostenverhaalsvoorschriften in de omgevingsvergunning).
Artikel 13.14 van de Omgevingswet bepaalt bij welke planologische besluiten kostenverhaal aan de orde is. Deze besluiten zijn:
Wijziging van het omgevingsplan;
Omgevingsvergunning voor een buitenplanse omgevingsplanactiviteit.
Indien dergelijke besluiten niet noodzakelijk zijn om een bouwactiviteit mogelijk te maken, is kostenverhaal niet aan de orde. In dat geval valt de behandeling van de aanvraag voor een omgevingsvergunning volledig onder het regime van de legesverordening.
Is er wel sprake van één van bovengenoemde besluiten, dan moet worden beoordeeld of het een bouwactiviteit betreft in de zin van artikel 8.13 van het Omgevingsbesluit. Wanneer dit het geval is, is de gemeente verplicht de kosten te verhalen. De gemeente mag hierbij uitsluitend de kosten verhalen die vermeld staan op de kostensoortenlijst (artikel 8.15 Omgevingsbesluit).
Wanneer de gemeente zelf eigenaar is van een ontwikkellocatie, is het kostenverhaal verzekerd via gronduitgifte. Indien een eigenaar van een ontwikkellocatie zelf gaat ontwikkelen, is de gemeente verplicht de door haar gemaakte kosten te verhalen als deze kosten bijdragen aan de betreffende ontwikkeling. Kostenverhaal kan plaatsvinden via een privaatrechtelijk (anterieure of posterieure overeenkomst) of publiekrechtelijk spoor. Zowel de wetgever als de gemeente geeft hierbij de voorkeur aan het privaatrechtelijke spoor.
De gemeente is, onder andere in het kader van het kostenverhaal, voornemens anterieure overeenkomsten (AOK) te sluiten met de grondeigenaren in Entree. In deze anterieure overeenkomsten worden afspraken gemaakt over de verdeling van kosten. Uitgangspunt van het kostenverhaal is dat bouwactiviteiten bijdragen aan de investeringen die nodig zijn voor de ontwikkeling van Entree.
De investeringen van de gemeente in Entree zijn gericht op het faciliteren van de herontwikkeling van het gebied. Deze investeringen omvatten:
Herinrichting openbare ruimte: de herinrichting is essentieel voor de transformatie van een gebied met grootschalige kantoren naar een levendig stadsgebied met gemengd wonen en werken. Door de herinrichting van de openbare ruimte wordt voldaan aan de gestelde geluidsnormen, mobiliteitseisen en watercompensatie. Om het beoogde programma uit het Omgevingsprogramma te realiseren is de herinrichting van de openbare randvoorwaardelijk.
Algemene plankosten: deze kosten zijn nodig om het Omgevingsprogramma en werkzaamheden voortkomend uit het Omgevingsprogramma voor te bereiden, te begeleiden en te realiseren. De algemene plankosten bestaan voornamelijk uit de kosten voor de verschillende uitgevoerde onderzoeken en de ambtelijke inzet.
Kavelspecifieke plankosten: dit zijn kosten die de gemeente maakt voor het voorbereiden en begeleiden van de bouwactiviteiten van de ontwikkelende partijen in Entree.
Bouwactiviteiten leveren op twee manieren een bijdrage aan de benodigde investeringen:
Bijdrage aan de herinrichting van de openbare ruimte en algemene plankosten: deze bijdrage wordt berekend op basis van de oppervlakte van de bouwactiviteit, uitgedrukt in vierkante meters bruto vloeroppervlak (BVO).
Bijdrage aan kavelspecifieke plankosten: dit is een vast bedrag, vooraf bepaald.
De hoogte van de bijdrage aan de herinrichting van de openbare ruimte en de algemene plankosten wordt gebaseerd op een basiswaarde. Deze basiswaarde is €153 per vierkante meter BVO. Deze basiswaarde is berekend door de totale kosten en investeringen, exclusief kavelspecifieke plankosten, te verdelen over de bestaande en te ontwikkelen vierkante meters BVO in het plangebied. De berekening hiervan is in te zien op de website Entree Zoetermeer. Naast de basiswaarde worden ook kavelspecifieke plankosten in rekening gebracht. Deze kavelspecifieke plankosten worden afzonderlijk berekend voor de te ontwikkelen kavels, op basis van de benodigde ambtelijke inzet voor de desbetreffende kavel. De basiswaarde en de kavelspecifieke plankosten vormen samen de grondslag voor de uiteindelijke bijdrage per bouwactiviteit.
Samengevat wordt dit in de volgende beleidsregel vertaald. |
Entree wordt ontwikkeld volgens en binnen de kaders van de uitgangspunten van het kostenverhaal. Bouwactiviteiten leveren op twee manieren een bijdrage aan de benodigde investeringen:
De hoogte van de bijdrage aan de herinrichting van de openbare ruimte en algemene plankosten wordt gebaseerd op een basiswaarde. De berekening is bijlage VII bij het Omgevingsprogramma. De kavelspecifieke plankosten worden afzonderlijk berekend voor de te ontwikkelen kavels. De basiswaarde en de kavelspecifieke plankosten vormen samen de grondslag voor de uiteindelijke bijdrage per bouwactiviteit. |
Voor de nog te sluiten anterieure overeenkomsten wordt de uiteindelijke bijdrage per bouwactiviteit vastgesteld als de som van de bijdrage berekend uit de basiswaarde en de kavelspecifieke plankosten. De basiswaarde wordt voor het afsluiten van de anterieure overeenkomst vermenigvuldigd met een gewichtsfactor, die afhankelijk is van de categorie waartoe de bouwactiviteit behoort. De gewichtsfactoren verschillen per type ontwikkeling en worden bepaald op basis van de veronderstelde opbrengstcapaciteit. Voor woningen en commercieel vastgoed wordt deze opbrengstcapaciteit berekend aan de hand van de residuele grondwaarde, terwijl voor maatschappelijke voorzieningen en sociale huurwoningen de vaste grondwaarden, zoals opgenomen in de nota grondprijzen van de gemeente Zoetermeer, als uitgangspunt worden genomen. Op deze manier wordt rekening gehouden met de specifieke kenmerken en financiële mogelijkheden van verschillende typen ontwikkelingen.
Wanneer er geen anterieure overeenkomst wordt gesloten met een ontwikkelende partij, bepaalt de gemeente de hoogte van het kostenverhaal op basis van drie kernprincipes: profijt, proportionaliteit en toerekenbaarheid. Profijt wordt vastgesteld door te kijken naar de mate waarin bewoners of gebruikers van een bouwkavel gebruik maken van de openbare ruimte in Entree. Proportionaliteit wordt bepaald door het bouwvolume dat op een kavel is voorzien, en toerekenbaarheid wordt gebaseerd op het gebruik van specifieke delen van de openbare ruimte. Deze principes zorgen ervoor dat ook in gevallen zonder overeenkomst een eerlijke en evenwichtige verdeling van de kosten wordt gewaarborgd. De voorkeur van de gemeente gaat uit naar het anterieure kostenverhaal. Hierbij is het mogelijk om op vrijwillige basis afspraken te maken. Dat maakt het proces flexibeler en zorgt voor meer wederzijds begrip en samenwerking tussen de gemeente en ontwikkelende partijen.
De ontwikkeling van de verschillende deelgebieden hebben hun eigen planning binnen het grotere geheel. Op sommige kavels kan min of meer direct gebouwd worden als het ontwerp klaar is, afnemer(s) van het vastgoed is gecontracteerd en het plan vergund, op andere kavels is dat complexer, bijvoorbeeld omdat er eerst gesloopt moet worden. Dat betekent dat Entree gefaseerd tot stand zal komen, zodat de nieuwe woningen verspreid over een aantal jaren op de markt zullen komen. Hierbij is de verwachting dat in het begin er meer woningen tegelijk op de markt zullen komen om het woningtekort te kunnen inlopen. Later zal dit tempo waarschijnlijk lager zijn.
In welke volgorde de verschillende kavels zullen worden bebouwd is niet van tevoren precies te zeggen. De doorlooptijd van het geheel wordt geschat op tenminste 10 tot 15 jaar. In deze periode zullen er steeds meer mensen komen te wonen (en werken). Daarom wordt ervoor gezorgd dat ook binnen die periode de wijk leefbaar is, onder andere door de openbare ruimte goed bruikbaar te maken, indien nodig met tijdelijke voorzieningen. Ook de (commerciële) plint en de ontsluiting moet vanaf het eerste blok functioneren. Bij eerder opvolgende ontwikkeling van een bouwblok zal worden bekeken welk programma het beste past op deze locatie en binnen de dan gelden marktomstandigheden.
Onder de Omgevingswet dient bij de vaststelling van een programma het bevoegd gezag aan te geven hoe burgers, bedrijven, maatschappelijke organisaties en bestuursorganen bij de voorbereiding zijn betrokken en wat de resultaten daarvan zijn. Participatie is hier een onderdeel van. Het participatiebeleid van Zoetermeer is opgenomen in de Participatieverordening Zoetermeer 2022.
In het kader van de bestemmingsplanprocedure Entree Midden heeft van april tot en met september 2019 een uitgebreid participatietraject volgens de methode Publiek Private Buurt Samenwerking (PPBS) plaatsgehad. Dit heeft geresulteerd in het Inspiratieboek De Entree. Het college heeft op 29 oktober 2019 het eindverslag van dit deel van de participatie vastgesteld. Dit verslag is op de website Entree Zoetermeer in te zien.
Vanwege de wezenlijke aanpassingen is op een aantal onderdelen opnieuw participatie gevoerd. Dit zijn:
de herprogrammering van de gebiedsontwikkeling, voor zover dit betrekking heeft op de extra woningen boven de bandbreedte van de PUK zijnde 4.500-5.700 woningen;
de inrichting van de openbare ruimte voor zover het gaat om de wezenlijke wijzigingen ten opzichte van het SOR, zoals het schrappen van de ventwegen om tegemoet te komen aan het voorlopig advies van de commissie mer;
het toevoegen van deelgebied West 8.Voor elk van deze onderdelen is een procesvoorstel participatie vastgesteld. Van de participatie over deze onderwerpen is een Eindverslag Participatie Omgevingsprogramma Entree opgesteld dat op 4 februari 2025 is vastgesteld door het college. Het eindverslag van deze participatie is op de website Entree Zoetermeer in te zien
In het participatieproces is veel opgehaald over hoe mensen aankijken tegen de herprogrammering. De “grootste” verschuiving in de herprogrammering; namelijk minder kantoren en meer wonen wordt breed gedragen. Bij de tosticaravan bij de winkelcentra in Meerzicht en Driemanspolder zijn met name veel jongeren gesproken, de toekomstige doelgroep op de woningmarkt over 4-8 jaar. Naast jongeren heeft de gemeente ook senioren en ook een aantal gezinnen gesproken. Sociale cohesie vormen en creëren van ontmoetingen is naast meer wonen één van de belangrijkste aanbevelingen. Dit zodat het een gezellige en levendige wijk wordt, en het risico op anonimiteit en eenzaamheid wordt tegengegaan. Ook is er waardevolle input geleverd op de woonsegmenten.
De bewoners rondom het Abdissenbos kijken positief aan tegen een ontwikkeling op West 8 van woningen in combinatie met (maatschappelijke) voorzieningen. Met een ontwikkeling op West 8 kan er veel kwaliteit worden toegevoegd in het gebied en kunnen de (speel)voorzieningen en ontmoetingsplekken verbeterd worden. Bij de ontwikkeling moet wel voldoende aandacht zijn voor het bestaande groen, het parkeren in de omgeving en de aansluiting op het openbare gebied. De zeer nuttige uitkomsten van dit participatietraject zullen verwerkt worden en een vervolg krijgen. Er waren verder weinig tot geen reacties op de specifieke onderwerpen van participatie van de Openbare Ruimte (vervallen ventwegen in de stadsstraat, wijzigingen situering water en aanpassen van verkeersstructuren van kruispunten en doorgaande wegen). Er zijn wel suggesties gedaan voor het behoud en uitbreiden van stadsgroen. En de kansen die Entree biedt voor meer en goede verbindingen tussen Driemanspolder en Meerzicht. Ten aanzien van parkeren, maken mensen zich zorgen dat er niet genoeg parkeerplekken zullen zijn en dat parkeerdrukte toeneemt in de omliggende wijken. Ook het goed toegankelijk maken van het Entree-gebied voor mindervaliden, fietsers, voetgangers en het openbaar vervoer vinden mensen belangrijk. Aandachtspunten zijn ook een betere verbinding over de A12 voor fietsers en voetgangers en een veilige manier om als fietser of voetganger de Afrikaweg over te steken. Ook de verbinding met, en doorstroom naar de rest van Zoetermeer moet goed geregeld worden.
Zienswijzen ontwerp-bestemmingsplan Entree Midden
In de eerdere bestemmingsplanprocedure voor de ontwikkeling van Entree zijn op het ontwerpbestemmingsplan Entree-Midden veel zienswijzen ingediend. Vanwege het stoppen van de bestemmingsplanprocedure zijn deze zienswijzen niet eerder beantwoord. De afspraak tussen het college en de gemeenteraad is dat deze zienswijzen alsnog beantwoord worden. De Nota van beantwoording zienswijzen ontwerp-bestemmingsplan Entree Midden is op de website Entree Zoetermeer in te zien. De beantwoording van de zienswijzen is gebaseerd op het Omgevingsprogramma en bijbehorende stukken.
Zienswijzen Notitie Reikwijdte en Detailniveau
De Notitie Reikwijdte en Detailniveau voor het Omgevingsprogramma heeft van 6 september tot en met 17 oktober 2024 ter inzage gelegen. Zie voor meer informatie paragraaf 6.1. De beantwoording van de zienswijzenop de NRD zijn bij de Plan-MER betrokken. De Nota van beantwoording zienswijzen NRD is op de website Entree Zoetermeer in te zien.
Het ontwerp-Omgevingsprogramma Entree en het ontwerp van de plan-MER hebben van 28 maart 2025 tot en met 10 april 2025 ter inzage gelegen. Zowel op de website Entree Zoetermeer als op het de website Omgevingsloket – Regels op de Kaart waren de documenten te raadplegen. Er zijn in totaal 25 zienswijzen ingediend, waarvan 1 buiten de termijn.
Deze zienswijzen zijn samengevat en van een antwoord voorzien in een Nota Beantwoording Zienswijzen.
Deze Nota Beantwoording Zienswijzen maakt deel uit van de documenten die aan het college en de gemeenteraad zijn aangeboden in het kader van de besluitvorming.
Vaststellingsproces
De bevoegdheid tot het vaststellen van een Programma ligt op grond van de Omgevingswet bij het college van Burgemeester en Wethouders. Aanvullend is in de gemeente Zoetermeer afgesproken dat de gemeenteraad instemt met een programma voordat het college overgaat tot vaststelling.
Algemeen
Omdat de nieuwe woningbouwplannen voor Entree niet passen in het geldige omgevingsplan, moeten de grondeigenaren c.q. ontwikkelaars omgevingsvergunningen aanvragen bij de gemeente. Dit is een vergunning voor een omgevingsplanactiviteit. Omdat de beoogde ontwikkelingen niet passen in het geldige omgevingsplan is sprake van een buitenplanse omgevingsplanactiviteit (BOPA). Het Omgevingsprogramma vormt daarvoor het toetsingskader.
Tot 1 januari 2032 is het mogelijk om een omgevingsvergunning voor een BOPA gefaseerd, met afzonderlijke aanvragen, aan te vragen. Hierdoor is het mogelijk om bij een woningbouwontwikkeling eerst een aanvraag in te dienen een deel van de wijzigingen (zoals de wijziging van de functie kantoren naar wonen), het bouwrijp maken en aanbrengen van verhardingen. Daarna kan in de volgende fase(s) de andere activiteiten, zoals het bouwen, aangevraagd worden. Het is aan de grondeigenaren c.q. de ontwikkelende partijen om te bepalen of wel of niet gebruik wordt gemaakt van deze mogelijkheid.
Procedure
In principe geldt voor een omgevingsvergunning voor een BOPA de zogenaamde reguliere procedure. Dit betekent dat er sprake is van een beslistermijn voor het college van B&W van maximaal 8 weken, met een mogelijkheid tot het verlengen van deze termijn met éénmaal 6 weken. Nadat besluitvorming heeft plaatsgevonden bestaat de mogelijkheid tot bezwaar, beroep en hoger beroep.
In de volgende gevallen kan bij een omgevingsvergunning voor een BOPA de uitgebreide procedure worden toegepast:
als dit is aangewezen in de Omgevingswet en/of het Omgevingsbesluit. Dit is in elk geval niet van toepassing op Entree;
op verzoek van de aanvrager;
als het bevoegd gezag (college van B&W) deze van toepassing verklaart. Deze beslissing dient het bevoegd gezag per aanvraag te nemen en kan enkel als (a) het gaat om een activiteit die aanzienlijke gevolgen heeft of kan hebben voor de fysieke leefomgeving, en (b) waartegen naar verwachting verschillende belanghebbenden bedenkingen zullen hebben. De initiatiefnemer kan zijn zienswijze uitbrengen over het voornemen van deze beslissing.
Indien de uitgebreide procedure wordt toegepast moet het bevoegd gezag (het college van Burgemeester en wethouders) binnen zes maanden na ontvangst van de aanvraag beslissen. Ook hier is de mogelijkheid tot éénmalige verlenging met 6 weken. Het verschil met de reguliere procedure is dat bij deze uitgebreide procedure eerst een zienswijze termijn doorlopen wordt van 6 weken waarin een ieder zienswijzen kan indienen op de ontwerp-omgevingsvergunning en de onderbouwing daarvan. Na beoordeling van de zienswijzen wordt een besluit genomen over de aanvraag. Daarna is er de mogelijkheid tot alleen beroep en hoger beroep tegen de verleende omgevingsvergunning.
Bindend advies gemeenteraad
Op grond van het 'Besluit van de gemeenteraad van de gemeente Zoetermeer houdende regels omtrent de lijst buitenplanse omgevingsplanactiviteiten waarvoor advies met instemming van de raad benodigd is' (2020) dienen aanvragen voor een BOPA (voor meer dan 25 woningen) ter advies te worden voorgelegd aan de gemeenteraad. Het advies van de gemeenteraad is bindend.
Uitgangspunt voor Entree is de inzet op een efficiënt (en daar waar mogelijk versnelling van het) proces. Het tijdspad van de reguliere procedure is beperkt en biedt weinig ruimte voor het binnen deze termijn behalen van een bindend advies. Daarnaast zijn bij instemming van de raad met het Omgevingsprogramma en de daarbij behorende stukken de kaders al vastgelegd. Alle BOPA's worden hieraan getoetst.
De Omgevingswet beoogt een efficiëntere en snellere besluitvorming. Dit komt tot uiting om de uitvoering van beleid (zoals vergunningverlening) aan het college toe te kennen, net zoals het geval was onder de oude wetgeving, en de raad enkel in bepaalde – door de raad zelf vastgestelde categorie van gevallen – via het instrument van bindend advies te betrekken. Dat is een logische stap als wordt afgeweken van het omgevingsplan en daarvoor geen kaders zijn vastgesteld. Dat is anders in Entree door de vaststelling van het Omgevingsprogramma met daarin de vastgestelde kaders.
Vanuit de geest van de wet gedacht zou het dan ook tegenstrijdig zijn om een bouwplan dat geheel voldoet aan de door de raad vastgestelde uitgangspunten van het Omgevingsprogramma, nogmaals voor te leggen aan de raad. Bij vaststelling van het Omgevingsprogramma wordt daarom voorgesteld om het bindend adviesrecht voor de BOPA’s die passen binnen de kaders van het Omgevingsprogramma Entree te laten vervallen. Dit geldt niet voor Bopa’s die afwijken van het Omgevingsprogramma. Deze zullen nog steeds worden voorgelegd aan de raad.
Om de hoge kwaliteitsambities voor Entree van plan tot realisatie te kunnen waarborgen heeft de gemeente Zoetermeer een proces ontworpen dat de kwaliteit moet bewaken. Binnen dat proces zijn verschillende organen met elk hun eigen rol in een bepaalde fase van het planproces. Dat planproces wordt opgedeeld in de fase begeleiding en de fase toetsing. Dit is in onderstaande afbeelding weergegeven.

Speciaal voor Entree is het Q-team (kwaliteitsteam) ingesteld. Het Q-team vormt de spil in de kwaliteitsborging en zorgt voor continuïteit in de advisering richting de Commissie Ruimtelijke Kwaliteit (CRK). Daarnaast heeft het Q-team een coachende rol en adviseert het ontwikkelaars en ontwerpers proactief bij het oplossen van dilemma’s. Het is de CRK die het advies van het Q-team uiteindelijk bekrachtigt als een advies aan het college van burgemeesters en wethouders.
Gedurende het planproces van de ontwikkeling van de plots binnen Entree vindt in verschillende stadia overleg plaats. In eerste instantie door een startgesprek met het Q-team over de ambitie, de kwaliteit, de betekenis van de opgave en de inzet van ontwerpers. Het is van groot belang dat dit startgesprek tot een goed vertrekpunt leidt voor alle partijen. Dit om later teleurstellingen of verkeerde verwachtingen te voorkomen. Waarschijnlijk zijn er meerdere overleggen nodig om tot een goede start te komen. Deze fase wordt afgesloten met een startdocument.
De ontwikkelende partijen doorlopen vervolgens een planproces van een schetsontwerp (SO) naar een voorlopig ontwerp (VO) tot een definitief ontwerp (DO). Dit doen zij samen met de toetsende instanties van de gemeente (o.a. stedenbouw). Elk van de stadia moet worden afgerond met een advies van het Q-team. Dit advies (voorlopig en definitief) zal worden voorgelegd aan de CRK, die haar wettelijke advies richting het college zal geven.
Het Q-team zorgt voor een ‘warme’ overdracht aan de CRK, waarbij zij het advies toelicht door aan te geven hoe de aanvraag past binnen de regels van de Ontwikkelvisie en het Beeldkwaliteitsplan. Het Q-team heeft de taak om verbinding te houden met de CRK en bij zwaarwegende dilemma’s of tegenstrijdigheden bij het behalen van bepaalde doelstellingen, eerder (informeel) te overleggen met de CRK, zodat de juiste richting kan worden meegegeven.
De Stadsbouwmeester heeft een adviserende rol, met name over de grotere ontwikkelingen in Zoetermeer.
Geluid-haalbaarheidsbeoordeling
Hierboven wordt ingegaan op de kwaliteitsbewaking van Entree en is beschreven dat in de fases SO,VO en DO de ontwikkelaars samen met de gemeente dit planproces doorlopen. In het Geluidkader Entree (zie ook paragraaf 3.1) is opgenomen dat reeds in de fase van het SO (of indien gewenst eerder) een zogenaamde geluidhaalbaarheidsbeoordeling kan plaatsvinden. Hierbij dient de ontwikkelaar inzicht te geven in de motivatie en onderbouwing van de toepassing van het Geluidkader Entree. Dit wordt door de gemeente getoetst. Bij het uitwerken van het SO naar VO en DO toetst de gemeente (vervolgens) terughoudend op motivatie en gebruik van afwijkingsmogelijkheden volgens het Geluidkader Entree. Als het bouwplan in de fase van het Voorlopig Ontwerp en het Definitief Ontwerp inhoudelijk wijzigt en afwijkt, is een aanvulling op de motivatie en onderbouwing wel benodigd.
De ontwikkeling van Entree kent een lange looptijd van tenminste 10-15 jaar. Gedurende deze jaren is het belangrijk om te kijken of de ambities en doelen voor Entree gehaald worden of dat (tussentijdse) bijsturing nodig is. Ook kunnen nieuwe omstandigheden (bijvoorbeeld wijzigingen in wet & regelgeving) aanleiding zijn om bij te sturen. Hiervoor is monitoring nodig. De gemeente heeft met een milieueffectrapportage (verder genoemd: Plan-MER) onderzocht dat de gebiedsontwikkeling binnen de bandbreedtes en uitgangspunten opgenomen in het Omgevingsprogramma tot uitvoering kan worden gebracht, maar houdt wel nadrukkelijk een vinger aan de pols. De gemeente wil daarom de voortgang van de plannen en de daadwerkelijke effecten integraal volgen en bewaken. Op die manier houdt de gemeente grip op de ontwikkeling en is het mogelijk tijdig maatregelen te treffen om bij te sturen indien dat nodig is.
Om goede beslissingen te kunnen nemen, moeten de gemeente (en grondeigenaren c.q. ontwikkelaars) beschikken over betrouwbare informatie over hoe het ervoor staat. Meten is immers weten. Hiervoor is dus monitoring nodig. Bij monitoring verzamelt de gemeente gedurende langere tijd op systematische wijze gegevens over bijvoorbeeld de staat van de fysieke leefomgeving, aantallen en type woningen, aantallen parkeerplaatsen enzovoort. Op deze manier is inzichtelijk hoe de ontwikkeling van Entree verloopt en hoe dit verhoudt tot de ambities en doelstellingen opgenomen in het Omgevingsprogramma.
Zowel uit het Plan-MER als het Omgevingsprogramma volgen monitoringsmaatregelen. Waar de monitoring uit het Plan-MER onder meer is gericht op (milieu-)effecten en de effecten van mitigerende maatregelen is de monitoring vanuit het Omgevingsprogramma ook gericht op ambities, concrete uitwerking van beleid en meer gemeente bredere samenhang. Deze ‘dynamische monitoring’ loopt via een aantal sporen en brengt de komende jaren de ontwikkelingen en de gevolgen van Entree in beeld.
Bijsturing kan op verschillende manieren: bijsturing op de plannen, bijsturing via het nemen maatregelen en bijsturing door het aanpassen van de eerder geformuleerde doelstellingen. Er zal hierbij altijd eerst worden gezocht naar maatregelen om de situatie te verbeteren, voordat bijsturing van plannen of ambities wordt voorgesteld.
Bij elk ruimtelijk plan (BOPA’s of te zijner tijd de wijziging van het omgevingsplan) wordt beschouwd of de uitgangspunten overeenkomen met het Omgevingsprogramma en de daarin onderzochte milieueffecten. Kleine afwijkingen zijn niet erg, maar bij grotere afwijkingen kan het noodzakelijk zijn om nader onderzoek uit te voeren. Dit kan voor een specifiek thema nodig zijn of meerdere thema’s bevatten als het een grotere afwijking betreft. Dit staat overigens los van de onderbouwing en onderzoeken die door de grondeigenaren c.q. ontwikkelaars moet worden aangeleverd voor de BOPA.
Hieronder in de ‘Kaders Aanpak Monitoring’ wordt op hoofdlijnen beschreven wat de kaders zijn voor hoe de gemeente de monitoring wil organiseren: Hoe wordt data verzameld, welke data wordt verzameld en hoe wordt deze gerapporteerd? Insteek is om zo objectief en ‘lean’ mogelijk informatie te verzamelen en te delen over de effecten van de gebiedsontwikkeling.
Kaders Aanpak Monitoring
Binnen de gemeente Zoetermeer wordt datagedreven (beleids-)ontwikkeling als volgt aangepakt. Begonnen wordt bij de ambities van het programma. Zo is de opgave van het programma leidend voor de monitor en niet de data.
Basis voor de monitoring zijn de 5 doelen uit de Ontwikkelvisie:
vergroten woningaanbod;
toekomstbestendige leefomgeving;
gezonde leefomgeving;
sociale cohesie; en
stimuleren lokale economie.
Om deze doelen te volgen, worden meerdere monitors ontwikkeld. Doelen zijn namelijk niet direct te meten. Bijvoorbeeld de gezonde leefomgeving kunnen we niet direct meten. Maar als we het over gezonde leefomgeving hebben dan bedoelen we een betere luchtkwaliteit, minder geluid, minder hittestress enzovoort. En deze effecten kunnen we meten en dat doen we in een effectenmonitor. De tweede monitor is de prestatiemonitor, hierin laten we zien welke prestaties er geleverd wordt door het programma. Als er bijvoorbeeld afspraken zijn gemaakt over de afstand die een woning mag hebben tot een koelteplek dan kunnen we die meten. De laatste monitor is de interventiemonitor, hiermee wordt de geleverde inzet gemonitord. Hier zal dan worden bijgehouden hoeveel koelteplekken gecreëerd zijn. Onderstaand figuur laat de samenhang tussen deze monitoren zien.

Hoe ziet dit er dan uit in de praktijk. Als voorbeeld kijken we naar sociale cohesie. Als de interventie is dat als programma een welkomsactiviteit per opgeleverd project (of bij elke fase) wordt georganiseerd, dan is de prestatie dat inwoners elkaar leren kennen (we meten dan het aantal mensen dat naar de barbecue is gekomen). Het effect dat wordt beoogd is dat inwoners bij elkaar terecht kunnen als ze hulp nodig hebben. Het effect kan dan bijvoorbeeld worden gemeten met enquêtes. Op deze wijze meten we of het doel van sociale cohesie wordt gehaald of dat extra inspanningen nodig zijn.

Onderstaand is een eerste overzicht opgenomen van doelen, indicatoren en welke data zal worden gebruikt voor de monitoring. Dit overzicht wordt in het monitoringsplan verder uitgewerkt.
Doelen | Indicatoren | Databron monitoring | Databron monitoring |
Bestaande databron | Aanvullend Entree | ||
Vergroten woningaanbod | Aantal en typen woningen binnen de diverse segmenten | Woningbouwmonitor | Programma in diverse fasen SO, VO, DO en aanvraag BOPA (prognose) Bij oplevering (voor definitieve toevoeging aan woningvoorraad harde plancapaciteit) |
Toekomstbestendige leefomgeving | Duurzame mobiliteit | Provinciale data (in en uitstappen OV-haltes) MRDH-verkeersmodel (periodieke updates) | Parkeertellingen van de nieuwe parkeergarages Parkeerdrukmetingen in de wijken om Entree |
Gezonde leefomgeving | Geluid Luchtkwaliteit Stikstof Aandeel groen | Luchtkwaliteit: het Centraal Instrument Monitoring Luchtkwaliteit (CIMLK) Geluid: De Centrale Voorziening Geluidgegevens (CVGG) -Stikstof: Aerius calculator | Aantal keren en locatie toepassing Geluidkader Entree |
Sociale cohesie | Algemene verbondenheid met de wijk Entree Verbondenheid met andere personen in de wijk Sociale participatie (vrijwilligerswerk en verenigingen) | Door middel van een enquête onder de bewoners/ondernemers/gebruikers van Entree | |
Stimuleren lokale economie | Realisatie van m2 B.V.O voor de functies: kantoren, bedrijven en maatschappelijk | Programma in diverse fasen SO, VO, DO en aanvraag BOPA (prognose) Bij oplevering (voor definitieve toevoeging aan harde plancapaciteit) |
De hierboven beschreven kaders moeten nog worden uitgewerkt in een monitoringsplan. Hierbij kunnen onderdelen op een specifiek thema heel concreet worden uitgewerkt en ‘eigen’ monitoring kennen, zoals parkeren.
Het college van B&W legt periodiek verantwoording af aan de gemeenteraad met een monitorings-rapportage over de ontwikkeling in (en rond) Entree. Voornemen is om de monitoringsrapportage te koppelen aan de gemeentelijke cyclus van de Voortgangsrapportages (VGR’s). De frequentie van monitoring en verslaglegging aan de gemeenteraad en communicatie naar de omgeving moet nog verder worden uitgewerkt.
De output van alle relevante monitoringinformatie kan worden gebruikt voor bijsturing en communicatie (naar raad en burgers). Als (een voornemen tot) bijsturing consequenties heeft voor de in de Anterieure overeenkomst vastgelegde afspraken tussen gemeente en marktpartijen dan moeten deze consequenties op voorhand goed in beeld zijn en ook zijn afgestemd tussen gemeente en marktpartijen.
Op grond van de Omgevingswet moet op 1 januari 2032 het gehele grondgebied van de gemeente zijn opgenomen in het Omgevingsplan en moeten de omgevingsplanregels in overeenstemming zijn met de vereisten van de Omgevingswet. Dit betekent dat tussen vaststelling van het Omgevingsprogramma en 1 januari 2032 het Omgevingsprogramma Entree wordt opgenomen in het omgevingsplan.
Dit betekent dat de Ontwikkelvisie Entree, de beleidsregels uit het Omgevingsprogramma Entree en het Beeldkwaliteitsplan Entree een doorvertaling krijgen in het Omgevingsplan (voor zover het gaat om regels die toezien op de fysieke leefomgeving). Zolang dit nog niet heeft plaatsgevonden blijft het tijdelijke deel van het Omgevingsplan het juridisch - planologische toetsingskader voor aanvragen omgevingsvergunning. Ter plaatse van het projectgebied betekent dit in essentie dat de bestemmingsplannen 'Ontwikkeling Boerhaavelaan', 'Afrikaweg e.o.' en 'Parapluherziening Parkeren en Geluidsgevoelige objecten' het juridisch- planologisch kader vormen.
Geo-informatieobjecten
/join/id/regdata/gm0637/2025/Beeldkwaliteitsplan_Entree/nld@2025‑07‑24;2
/join/id/regdata/gm0637/2025/Bijlage_Berekening_Basiswaarde_kostenverhaal_DEF/nld@2025‑07‑24;2
/join/id/regdata/gm0637/2025/gebiedsaanwijzing_cbfd4d9b738c499f879fb7493854ea2d/nld@2025‑07‑21;1
/join/id/regdata/gm0637/2025/gebiedsaanwijzing_a3e48a1af4e847f48bad14c06902f94e/nld@2025‑07‑21;1
/join/id/regdata/gm0637/2025/gebiedsaanwijzing_f2a58cc551ee4d3d9bc7e59eb93a65c5/nld@2025‑07‑21;1
/join/id/regdata/gm0637/2025/gebiedsaanwijzing_ceb54900e9824e3c915d67942a3f955a/nld@2025‑07‑21;1
/join/id/regdata/gm0637/2025/gebiedsaanwijzing_b89acdae84fe4fcc880b7cedb0b61603/nld@2025‑07‑21;1
/join/id/regdata/gm0637/2025/gebiedsaanwijzing_7c249de41cb840bba9152c66d7d5d899/nld@2025‑07‑21;1
/join/id/regdata/gm0637/2025/gebiedsaanwijzing_764ae43afdf3426c9cf6ec88f03e8029/nld@2025‑07‑21;1
/join/id/regdata/gm0637/2025/gebiedsaanwijzing_e3dfb0e4ab724b2bbc97b93d4c375865/nld@2025‑07‑21;1
/join/id/regdata/gm0637/2025/gebiedsaanwijzing_1c708ecbb35b46faa679f6ebe6f2c27b/nld@2025‑07‑21;1
/join/id/regdata/gm0637/2025/gebiedsaanwijzing_dcda7d464de244ec8796257cc4c7e27d/nld@2025‑07‑21;1
/join/id/regdata/gm0637/2025/gebiedsaanwijzing_48d3548fab3440eebe49e1dd4607a160/nld@2025‑07‑21;1
/join/id/regdata/gm0637/2025/gebiedsaanwijzing_5c38ccbcd6114ff7a5e2723e86798d46/nld@2025‑07‑21;1
/join/id/regdata/gm0637/2025/gebiedsaanwijzing_a2dcca711d454b44bcbd35e621a93ec5/nld@2025‑07‑21;1
/join/id/regdata/gm0637/2025/ontwerp_geluidkader_entree/nld@2025‑07‑24;2
/join/id/regdata/gm0637/2025/gebiedsaanwijzing_5c140f2bcab3446bb7ae6f6bb8e9e1d4/nld@2025‑07‑21;1
/join/id/regdata/gm0637/2025/gebiedsaanwijzing_64175487703c4b5eaac20e3a4855297c/nld@2025‑07‑21;1
/join/id/regdata/gm0637/2025/gebiedsaanwijzing_247901fa75b7401d9ac6a5ed1fb9a157/nld@2025‑07‑21;1
/join/id/regdata/gm0637/2025/gebiedsaanwijzing_571b9a1dcb264b3a89eaab5077fc3010/nld@2025‑07‑21;1
/join/id/regdata/gm0637/2025/gebiedsaanwijzing_dbfc04a1df954b63a1d92537bd1bf7b7/nld@2025‑07‑21;1
/join/id/regdata/gm0637/2025/gebiedsaanwijzing_ddbac14ada0b4bac877704d785e86020/nld@2025‑07‑21;1
/join/id/regdata/gm0637/2025/gebiedsaanwijzing_94b5461384cf45f9968354860d29a733/nld@2025‑07‑21;1
/join/id/regdata/gm0637/2025/gebiedsaanwijzing_c37f443f38d54a0d9ef0768b82982eb4/nld@2025‑07‑21;1
/join/id/regdata/gm0637/2025/locatiegroep_4aadd6beaffd48859713a0058386ce47/nld@2025‑07‑21;1
/join/id/regdata/gm0637/2025/Bijlage_III_Ontwikkelvisie_Entree/nld@2025‑07‑24;2
/join/id/regdata/gm0637/2025/gebiedsaanwijzing_2666377d110d41d984d150b71aab58ce/nld@2025‑07‑21;1
/join/id/regdata/gm0637/2025/gebiedsaanwijzing_dd2078e19dcc4cbb980499a1a251a379/nld@2025‑07‑21;1
/join/id/regdata/gm0637/2025/gebiedsaanwijzing_915795e10bcc4c63a01c9287f3b1be08/nld@2025‑07‑21;1
/join/id/regdata/gm0637/2025/gebiedsaanwijzing_ad356b88e1df469b80436d1bee6f2eda/nld@2025‑07‑21;1
/join/id/regdata/gm0637/2025/gebiedsaanwijzing_f6d4b3149a5b4aa5ad77eacb1b148ecf/nld@2025‑07‑21;1
/join/id/regdata/gm0637/2025/gebiedsaanwijzing_efea2171f95e410d83b5ded48e7273ff/nld@2025‑07‑21;1
/join/id/regdata/gm0637/2025/gebiedsaanwijzing_e3ee50b75b3343f5b06310d43949b23a/nld@2025‑07‑21;1
/join/id/regdata/gm0637/2025/gebiedsaanwijzing_4af0f2509a0a4d199a84f0ce19fdc37f/nld@2025‑07‑21;1
/join/id/regdata/gm0637/2025/Bijlage_IV_Samenvatting_PLanMER_Entree/nld@2025‑07‑24;2
/join/id/regdata/gm0637/2025/gebiedsaanwijzing_dc2e9b3b1cd24fb5bf3a3c6cfd7c7869/nld@2025‑07‑21;1
/join/id/regdata/gm0637/2025/gebiedsaanwijzing_87f6dc7543cf48e6ab2a89543398d38f/nld@2025‑07‑21;1
/join/id/regdata/gm0637/2025/gebiedsaanwijzing_77242f8f71a74db4ac503b38fefdcd9a/nld@2025‑07‑21;1
/join/id/regdata/gm0637/2025/gebiedsaanwijzing_291b137877524fc28c76dd8d196775a9/nld@2025‑07‑21;1
/join/id/regdata/gm0637/2025/gebiedsaanwijzing_75622f5d1e7b4958b4f6f9e29356c364/nld@2025‑07‑21;1
/join/id/regdata/gm0637/2025/gebiedsaanwijzing_068b934d52b94df497c2815ba9cff0b8/nld@2025‑07‑21;1
/join/id/regdata/gm0637/2025/gebiedsaanwijzing_a84d34d4bb52496bbce46b9a40d95ffd/nld@2025‑07‑21;1
/join/id/regdata/gm0637/2025/gebiedsaanwijzing_08b45dd4138e49d989939a3b211cfa32/nld@2025‑07‑21;1
/join/id/regdata/gm0637/2025/gebiedsaanwijzing_3f45db91072e46c4b253a77fceff2c3a/nld@2025‑07‑21;1
/join/id/regdata/gm0637/2025/gebiedsaanwijzing_c53e989cf4eb4ff98baec78e22c00f96/nld@2025‑07‑21;1
Kopieer de link naar uw clipboard
https://zoek.officielebekendmakingen.nl/gmb-2025-324729.html
De hier aangeboden pdf-bestanden van het Staatsblad, Staatscourant, Tractatenblad, provinciaal blad, gemeenteblad, waterschapsblad en blad gemeenschappelijke regeling vormen de formele bekendmakingen in de zin van de Bekendmakingswet en de Rijkswet goedkeuring en bekendmaking verdragen voor zover ze na 1 juli 2009 zijn uitgegeven. Voor pdf-publicaties van vóór deze datum geldt dat alleen de in papieren vorm uitgegeven bladen formele status hebben; de hier aangeboden elektronische versies daarvan worden bij wijze van service aangeboden.