Rectificatie: Verkeersbesluit voor het (gedeeltelijk) afsluiten van de Grote Markt, Zusterstraat, Singelstraat, Koepoort en Oostwal te Goes

Burgemeester en wethouders van Goes;

Gelet op:

  • artikel 18, lid 1, onder d van de Wegenverkeerswet 1994 (WVW 1994) ingevolge verkeersbesluiten worden genomen door burgemeester en wethouders voor zover zij betreffen het verkeer op wegen, welke niet in beheer zijn bij het Rijk, de provincie of een waterschap;

  • artikel 15, lid 1 van de WVW 1994, ingevolge de plaatsing of verwijdering van de bij algemene maatregel van bestuur aangewezen verkeerstekens, verkeersborden en onderborden, voor zover daardoor een gebod of verbod ontstaat, geschiedt krachtens een verkeersbesluit;

  • artikel 24 van het Besluit administratieve bepalingen inzake het wegverkeer (BABW), ingevolge verkeersbesluiten worden genomen na overleg met de korpschef van het betrokken regionale politiekorps;

Overwegende dat:

  • Van vrijdag 8 augustus 2025 tot en met donderdag 14 augustus 2025 in de binnenstad van Goes kermisactiviteiten zullen plaatsvinden;

  • De kermis geplaatst zal zijn op de locaties: Grote Markt, Zusterstraat, Singelstraat en Koepoort;

  • De weekmarkt 2 dagen verplaatst zal moeten worden van de Grote Markt naar het parkeerterrein op de Oostwal;

  • De locaties (Grote Markt, Zusterstraat, Singelstraat, Koepoort en Oostwal) tijdig vrij moeten zijn voor het plaatsen van de kermisattracties en/of de weekmarkt;

  • Op grond van artikel 15, lid 1 van de Wegenverkeerswet 1994 moet een verkeersbesluit worden genomen voor de plaatsing of verwijdering van de in artikel 12 van het Besluit administratieve bepalingen inzake het wegverkeer genoemde verkeerstekens, alsmede voor onderborden voor zover daardoor een gebod of verbod ontstaat of wordt gewijzigd.

Motivatie:

  • Uit het oogpunt van het verzekeren van de veiligheid op de weg, zoals bedoeld in artikel 2, lid 1, onder a., van de Wegenverkeerswet 1994, is het gewenst om gedurende het evenement de kermis de Grote Markt, Zusterstraat, Singelstraat en Koepoort inclusief het parkeerterrein af te sluiten door het tijdelijk plaatsen van de borden C01:

    • o

      De afsluiting van de Grote Markt vindt plaats van dinsdag 5 augustus 2025 19:00 uur tot vrijdag 15 augustus 2025 18:00 uur;

    • o

      De afsluiting van de Zusterstraat, Singelstraat en Koepoort vindt plaats van dinsdag 5 augustus 2025 07:00 uur tot vrijdag 15 augustus 2025 18:00 uur. De marktkooplieden mogen op dinsdag 5 augustus 2025 wel door de Zusterstraat en Singelstraat vanwege de weekmarkt op de Grote Markt;

  • Uit het oogpunt van het verzekeren van de veiligheid op de weg, zoals bedoeld in artikel 2, lid 1, onder a., van de Wegenverkeerswet 1994, is het gewenst om gedurende het evenement de kermis het parkeerterrein Oostwal af te sluiten conform de inrichting tijdelijke verplaatsing weekmarkt door het tijdelijk plaatsen van de borden C01 voor de zaterdag 9 augustus 2025 en dinsdag 12 augustus 2025:

    • o

      Vanwege zaterdag 9 augustus 2025 vindt er een afsluiting plaats van vrijdag 8 augustus 2025 18:00 uur tot zaterdag 9 augustus 2025 19:00 uur van een gedeelte van het parkeerterrein aan de Oostwal. Het parkeerterrein voor vergunninghouders Agnietenhof is bereikbaar via de uitrit van het parkeerterrein aan de Oostwal;

    • o

      Vanwege dinsdag 12 augustus 2025 vindt er een afsluiting plaats van maandag 11 augustus 2025 18:00 uur tot dinsdag 12 augustus 2025 19:00 uur van het gehele parkeerterrein aan de Oostwal. Hierdoor is ook het parkeerterrein voor vergunninghouders Agnietenhof niet bereikbaar;

  • De afsluitingen worden tijdig aangekondigd door het plaatsen van vooraankondigingsborden. De routes voor hulpdiensten blijven bereikbaar;

  • Er is overleg gepleegd met de verkeersadviseur van de regiopolitie, welke positief heeft geadviseerd.

Besluit:

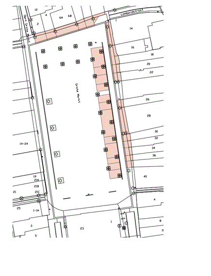
Op grond van de hierboven genoemde overwegingen besluiten burgemeester en wethouders tot het (gedeeltelijk) afsluiten van de Grote Markt, Zusterstraat, Singelstraat en Koepoort inclusief het parkeerterrein door het plaatsen van het verkeersteken C01 van de bijlage 1 van het Regelement Verkeersregels en Verkeerstekens, zoals weergegeven op de bij dit besluit horende tekening (bijlage 1).

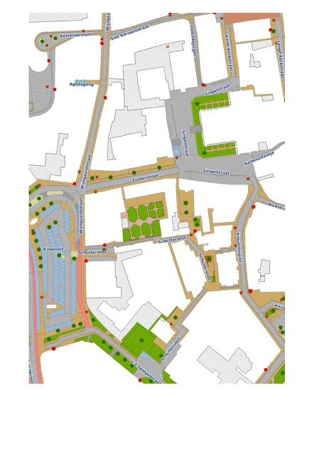
Op grond van de hierboven genoemde overwegingen besluiten burgemeester en wethouders tot het (gedeeltelijk) afsluiten van het parkeerterrein Oostwal – hierdoor gedeeltelijk het parkeerterrein voor vergunninghouders Agnietenhof – door het plaatsen van het verkeersteken C01 van de bijlage 1 van het Regelement Verkeersregels en Verkeerstekens, zoals weergegeven op de bij dit besluit horende tekening (bijlage 2 en 3).

Goes, 10 juli 2025

Burgemeester en wethouders van Goes, namens hen,

W. Lievense

hoofd afdeling Dienstverlening

Bezwaar

Indien u het niet eens bent met bovenvermeld besluit kunt u op grond van de artikelen 8:1 en 7:1 van de Algemene wet bestuursrecht binnen 6 weken na de datum van verzending van het besluit een gemotiveerd bezwaarschrift indienen.

Het bezwaarschrift moet ondertekend zijn en dient tenminste te bevatten:

  • a.

    de naam en het adres van de indiener;

  • b.

    een dagtekening;

  • c.

    een omschrijving van het besluit waartegen het bezwaar is gericht;

  • d.

    de gronden van het bezwaar;

  • e.

    in de linkerbovenhoek dient te worden vermeld: Awb-bezwaarschrift.

Het bezwaarschrift dient te worden gericht aan burgemeester en wethouders van de gemeente Goes, Postbus 2118, 4460 MC Goes. Het indienen van een bezwaarschrift schorst niet de werking van dit besluit.

Voorlopige voorziening

U kunt tegelijkertijd met het indienen van een bezwaar een verzoek indienen tot het treffen van een voorlopige voorziening bij de Voorzieningenrechter van de Rechtbank Zeeland-West-Brabant, Postbus 90006, 4800 PA Breda. De rechtbank bekijkt dan of er voldoende reden is een speciale regeling te treffen voor de periode dat uw bezwaarschrift nog in behandeling is. U moet in dat geval een recht betalen.

Bijlage 1: tekeningen Grote Markt (naast terrassen) en Zusterstraat, Singelstraat en Koepoort inclusief het parkeerterrein

Bijlage 2: tekening Oostwal weekmarkt zaterdag

Bijlage 3: tekening Oostwal weekmarkt dinsdag

Naar boven