Kennisgeving voornemen tot uitgifte in erfpacht van perceel grond (perceeluitbreiding) Benit 30 te Amsterdam
Voornemen tot uitgifte in erfpacht van een perceel grond ten behoeve van de uitbreiding van een bestaand erfpachtrecht
Adres: Benit 30 te Amsterdam
Perceel bestaand erfpachtrecht: gemeente Sloten (N.H.), sectie A, nummer 1843
Uit te geven perceel: gemeente Sloten (N.H.), sectie A, nummer 1843 (gedeeltelijk) (eerder bekend als gemeente Sloten (N.H.), sectie A, nummer 1746 (gedeeltelijk))
Perceelgrootte uitbreiding: circa 14 m2
Dossiernummer: E11204/1
Kenmerk: 2025-5091
De gemeente Amsterdam is voornemens voormeld perceel grond in erfpacht uit te geven ten behoeve van de uitbreiding van een bestaand erfpachtrecht.
Vermelde uitbreiding van het erfpachtperceel mag alleen worden gebruikt in overeenstemming met de bestemming van het erfpachtrecht waaraan het toegevoegd wordt, te weten bedrijfsruimte van 4.038 m² bruto vloeroppervlak (bvo), welke slechts als zodanig mag worden gebruikt; maximaal dertig procent (30%) van het gebouwde bruto vloeroppervlak (bvo) mag als kantoorvloer worden gebruikt en/of gerealiseerd uitsluitend ten behoeve van het op het erfpachtrecht gevestigde bedrijf alsmede vier (4) parkeerplaatsen op maaiveld.
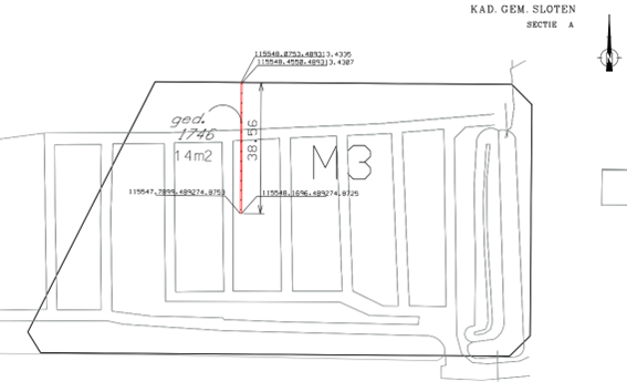
Het in erfpacht uit te geven perceel staat op onderstaande kaart aangegeven met streeparcering.
De gemeente is van mening dat voor voormelde uitgifte in erfpacht slechts één serieuze gegadigde in aanmerking komt, op grond van de navolgende objectieve, toetsbare en redelijke criteria:
-
het in erfpacht uit te geven perceel grenst aan het erfpachtperceel waarvoor uitbreiding wordt gevraagd en waarop de herontwikkeling wordt gerealiseerd;
-
het in erfpacht uit te geven perceel zal met het bestaande erfpachtperceel worden samengevoegd;
-
het in erfpacht uit te geven perceel kan niet door derden separaat worden ontwikkeld;
-
het betreft een uitbreiding van een bestaand erfpachtrecht, waarbij de beoogde uitbreiding aantoonbaar een optimalisatie oplevert van de gehele kavel binnen het bestaande erfpachtrecht
Kort geding en vervaltermijn
Eenieder, die van mening is, dat hij of zij ook voor de uitgifte van vermeld perceel in aanmerking komt, dient uiterlijk 20 kalenderdagen na de publicatiedatum van het voornemen tot uitgifte in het Gemeenteblad een gerechtelijke procedure in kort geding aanhangig te hebben gemaakt met betrekking tot de voorgenomen uitgifte in erfpacht bij de afdeling privaatrecht van de rechtbank Amsterdam.
De termijn van 20 kalenderdagen is een vervaltermijn. Indien niet binnen deze termijn een kort geding aanhangig is gemaakt kunnen er geen aanspraken jegens de gemeente Amsterdam ter zake van de uitgifte in erfpacht van vermeld perceel worden gemaakt.
De hier aangeboden pdf-bestanden van het Staatsblad, Staatscourant, Tractatenblad, provinciaal blad, gemeenteblad, waterschapsblad en blad gemeenschappelijke regeling vormen de formele bekendmakingen in de zin van de Bekendmakingswet en de Rijkswet goedkeuring en bekendmaking verdragen voor zover ze na 1 juli 2009 zijn uitgegeven. Voor pdf-publicaties van vóór deze datum geldt dat alleen de in papieren vorm uitgegeven bladen formele status hebben; de hier aangeboden elektronische versies daarvan worden bij wijze van service aangeboden.