Rectificatie: Straatnaamgeving Sûreweg e.a.

[Deze publicatie betreft een rectificatie omdat het accent circonflexe bij de straatnaam Sûreweg niet was opgenomen. De oorspronkelijke publicatie is op 18 juni 2025 bekendgemaakt, beschikbaar via Gemeenteblad 2025, 258541.]

 

Het college van burgemeester en wethouders van de gemeente Rotterdam,

 

Gelezen het voorstel van de directie Wijken, Participatie en Stadsarchief, Cluster Dienstverlening van 1 mei 2025 (str.n.cie. nummer D2506-10016);

 

gelet op het ter zake ingekomen advies van de Commissie van advies inzake straatnamen en gedenktekens, na kennisgeving aan de wijkraad, ten aanzien van de punten I., II. en III., alsmede op de bepalingen van de Straatnamenverordening 2014;

 

besluit:

  • I.

    Te wijzigen:

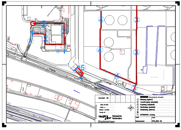
    De verbindingen die op de bij dit besluit behorende tekening STR_2024-09 V2 zijn aangeduid met de cijfers 1 t/m 5, worden als volgt gewijzigd:

    • 1.

      De Sûreweg (1) dient te worden verkort.

    • 2.

      Door een herinrichting is er slechts één weg in dit gebied. De Straatnamencommissie adviseert deze weg de naam Luxemburgweg (2) te geven, die daarmee wordt verlengd. Door deze verlenging vervallen de straatnamen Rupelweg (3) en Sambreweg (4).

    • 3.

      Omdat de naam Rupelweg (3) vervalt door de verlenging van de Luxemburgweg, kan deze naam ten oosten van de Luxemburgweg worden hergebruikt voor een van de twee nieuwe verbindingen die daar worden aangelegd.

    • 4.

      Hetzelfde geldt voor de naam Sambreweg (4), die ook aan de oostkant van de Luxemburgweg kan worden hergebruikt voor de tweede nieuwe verbinding.

    • 5.

      De Scheldeweg dient te worden verkort.

  • II.

    In te trekken:

    • 7.

      De straatnaam Leieweg wordt ingetrokken.

  • III.

    Te bepalen dat dit besluit met ingang van heden van kracht wordt.

Aldus vastgesteld namens het college van burgemeester en wethouders van Rotterdam op 26 mei 2025.

De wethouder Werk & Inkomen, Nationaal Programma Rotterdam Zuid, EU-arbeidsmigranten, Stadsbrug en Dierenwelzijn,

De heer Tim Versnel MSc

Toelichting:  

Dit jaar wordt de verkeerssituatie gewijzigd en daarbij sterk vereenvoudigd. Dit betekent dat wegen komen te vervallen of worden verlegd. Tevens worden twee percelen ontsloten door nieuwe wegen.

Bijlage STR_2024-09 V2

 

 

Dit gemeenteblad ligt ook ter inzage bij het Concern Informatiecentrum Rotterdam (CIC): 010-267 2514 of bir@rotterdam.nl

Naar boven