Besluit van de gemeenteraad van de gemeente Den Helder, houdende een wijziging van de Welstandsnota Den Helder 2015- Herziening 2020: toevoeging van een beeldkwaliteitsplan

De raad van de gemeente Den Helder;

 

gelezen het raadsvoorstel van het college van burgemeester en wethouders van 27 mei 2025;

 

kennis genomen hebbende van de voorbereidende commissievergadering commissie Stadsontwikkeling en -beheer van 23 juni 2025;

 

 

besluit:

 

 

het Beeldkwaliteitsplan Marsdiepstraat Oostzijde voor de gevel- en dak verbetering, d.d. 13-05-2025, als onderdeel van de vigerende welstandsnota (zie bijlage) vast te stellen.

 

 

 

Aldus besloten in de vergadering van 7 juli 2025.

 

 

J.A. de Boer MSc.

voorzitter

 

 

mr. drs. M. Huisman

griffier

 

 

 

 

 

 

Beeldkwaliteitsplan Marsdiepstraat Oostzijde Den Helder

 

 

 

I n h o u d s o p g a v e

 

 

Inhoudsopgave – bladzijde 2

Voorwoord – bladzijde 3

 

Planbeschrijving

Inleiding – bladzijde 4

Begrenzing plangebied – bladzijde 4

Uitgangspunten ontwerp – bladzijde 4

Uitwerking blok deel 1 – bladzijde 5

Uitwerking blok deel 2 – bladzijde 5

 

Regels beeldkwaliteitsplan

Materialisering buitenzijde – bladzijde 6

Kleuren-materialenpalet blok deel 1 noord – bladzijde 8

Kleuren-materialenpalet blok deel 2 zuid – bladzijde 9

Regels reclameuitingen – bladzijde 10

Impressies – bladzijde 13

 

 

opdrachtgever: Gemeente Den Helder

Postbus 36, 1780 AA Den Helder

uitgevoerd door:

KJK Architecten B.V.

Kerkgracht 4, 1782 GJ Den Helder

 

 

 

 

Voorwoord

 

 

Voor u ligt het Beeldkwaliteitsplan Marsdiepstraat oostzijde. Dit beeldkwaliteitsplan is opgesteld aan de hand van het structuurontwerp voor de gevelrenovatie van de Marsdiepstraat 349 – 407 en heeft als doel de gewenste ruimtelijke kwaliteit van dit deel van de Marsdiepstraat vast te leggen.

 

Het beeldkwaliteitsplan biedt architectonische richtlijnen voor de bebouwde omgeving. Deze richtlijnen vormen een kader voor de ontwikkelaar, gemeente, eigenaren en gebruikers, architecten en andere ontwerpers bij de verdere uitwerking. Ze zorgen ervoor dat de samenhang, ambities en uitgangspunten van de voorgenomen gevelrenovatie behouden blijven en hopelijk worden versterkt.

In sommige gevallen houdt dit in dat er gedetailleerde richtlijnen worden gegeven. In andere gevallen betreft het een meer algemene beschrijving die het plan richting geeft, maar tegelijkertijd ruimte biedt voor creativiteit en voortschrijdend inzicht. Het doel is om gezamenlijk de beste manier te vinden om de beoogde doelstellingen te realiseren.

 

Daarnaast fungeert het beeldkwaliteitsplan als inspiratiebron, met een duidelijk beeld van de gewenste sfeer en kwaliteiten voor dit deel van de Marsdiepstraat. Met de kaders en richtlijnen wordt niet alleen de kwaliteit van individuele gebouwen gewaarborgd, maar ook de samenhang binnen het plan gegarandeerd. In het beeldkwaliteitsplan worden de vele mogelijkheden in architectuur en verbeelding, die voortkomen uit de toe te passen techniek en materialisering, ingeperkt tot een overzichtelijk palet. Het is van essentieel belang om een balans te vinden tussen variatie en harmonie in de architectuur, die op een goede wijze aansluit bij de stedenbouwkundige context. Het waarborgen van de ruimtelijke kwaliteit van het plan is cruciaal bij de realisatie , maar het is even belangrijk om deze kwaliteit ook voor de toekomst te kunnen behouden.

 

Plangebied beeldkwaliteitsplan: blok deel 1 noord en blok deel 2 zuid incl. zijgevel Scheldestraat

 

 

P l a n b e s c h r i j v i n g

 

Inleiding

In de aanpak van de gevelrenovatie winkels en bovenwoningen Marsdiepstraat 349 – 407 wordt geprobeerd te komen tot een aantrekkelijke, haalbare, betaalbare, pragmatische en succesvolle verbetering van het gevel- en straatbeeld. Om dit te realiseren en duurzaam in stand te houden, zijn een aantal uitgangspunten geformuleerd die we kunnen vatten onder de term beeldkwaliteitsplan: een set aan uitgangspunten en regels, die ervoor moeten zorgen dat het gewenste gevelbeeld tot stand komt, als ook dat dit op de langere termijn in stand blijft.

 

 

Begrenzing plangebied

Het beeldkwaliteitsplan omvat een set aan uitgangspunten en regels die van toepassing zijn op de voorgevels van de panden aan de Marsdiepstraat 349-407. Het plangebied is opgedeeld in twee delen middels de twee aparte bouwblokken Marsdiepstraat 349-385 en Marsdiepstraat 387-407.

Marsdiepstraat 349-385 omvat de noordelijke rij panden die we in het proces “blok deel 1” zijn gaan noemen. Marsdiepstraat 387-407 omvat de zuidelijke rij panden die we in het proces “blok deel 2” zijn gaan noemen, inclusief de zijgevel zuidzijde van het blok deel 2 aan de Scheldestraat.

 

Begrenzing plangebied: Vanaf Marsdiepstraat 349 t/m 407, inclusief zijgevel a/d Scheldestraat

 

 

 

Uitgangspunten ontwerp

Het noordelijke blok deel 1 en het zuidelijke blok deel 2 hebben vanuit de oorspronkelijke nieuwbouw een verschillend karakter. Het concept gaat uit van behoud van de oorspronkelijke structurerende elementen in het gevelontwerp, zonder ingrijpende wijzigingen in het gevelbeeld – maar wel voorzien van een goed geïsoleerde gevel.

De aanpak gevelrenovatie is zo opgezet dat ook als niet alle winkeleigenaren meedoen, de renovatie toch mogelijk blijft voor diegenen die wél meedoen. Daar waar de wel aangepakte gevelvlakken grenzen aan de niet aangepakte, zal dit nog steeds zal resulteren in een aanvaardbaar en verbeterd gevelbeeld.

Kortom een opzet die individueel keuzevrij is en niet afhankelijk wordt van een deelname van allen. Ook bij gedeeltelijke of gefaseerde uitvoering – met een minimale ondergrens aan participatie van in ieder geval 5 aaneengesloten panden – blijft de renovatie pandsgewijs mogelijk. Dit is alleen mogelijk doordat we de het oorspronkelijke gevelontwerp accepteren als basis, deze adopteren en daarop een goede renovatie-ingreep toepassen. Om deze reden blijven de afmetingen van de bestaande gevelopeningen, de geveldragende constructies zoals balken, kolommen en lateien behouden, zij het wel voorzien van een moderne goede isolatie.

Ook blijft een scheiding tussen winkelplint en bovenwoning zoals deze in het oorspronkelijke gevelbeeld is ontworpen behouden: deel 1 de lage horizontale luifelrand tussen plint en bovenwoningen, deel 2 de terugliggende winkelplint ten opzichte van de voorliggende bovenwoningen.

 

 

 

Blok deel 1

  • -

    Blok deel 1 heeft een voornamelijk horizontaal gevelbeeld, dit moet behouden blijven

  • -

    gevat in omsluitende betonnen portalen en horizontale bandramen per pand

  • -

    de bovenwoningen blokbreed in dezelfde opzet, winkels meer pandsgewijs karakter

  • -

    tussen winkelplint en bovenwoningen een doorlopende kort uitstekende luifel

  • -

    oorspronkelijke loggia's vrijwel verdwenen maar blijven mogelijk, hetzij als open loggia hetzij als gesloten serre met te openen beglazing

  • -

    bandramen bovenwoningen blokbreed op dezelfde manier gerenoveerd, identiek gevelbeeld

  • -

    winkelplint pandsgewijze opzet: positie puien kunnen individueel afwijken/variëren, maar wel blokbreed dezelfde opbouw van glaspuien op een plint in dezelfde kleurenopzet en materialisering

  • -

    de winkelpuien kunnen zoals nu aanwezig zowel verdiept of vlak in de voorgevel liggen

  • -

    de winkelpuien kunnen voorzien zijn van een enkele of een dubbele deuropening

  • -

    de winkelramen worden altijd voorzien van een steenachtige plint

  • -

    entrees bovenwoningen ongewijzigd, deze kunnen zich bevinden in het zijvlak van de entree of in het voorvlak, mits de kleuren en materialen blokbreed hetzelfde blijven

  • -

    reclames van de winkels bevinden zich in een specifiek omschreven positie, zie uitwerking reclame-uitingen.

 

 

Blok deel 2

  • -

    Blok deel 2 heeft een voornamelijk verticaal gevelbeeld, dit moet behouden blijven

  • -

    gekarakteriseerd door een reeks slanke kolommen die elk pand in twee beuken verdeelt

  • -

    bovenwoningen blokbreed dezelfde opzet, de winkelplint meer pandsgewijs karakter

  • -

    de overdekte gang / gaanderij onder de bovenwoningen blijft behouden, daarmee blijft de positie van de winkelpuien en woningentrees ook ongewijzigd

  • -

    winkelplint pandsgewijze opzet: winkel- en woningentreepuien kunnen individueel afwijken/variëren, maar wel blokbreed dezelfde opbouw van glaspuien op een plint in dezelfde kleurenopzet en materialisering

  • -

    de winkelpuien kunnen voorzien zijn van een enkele of een dubbele deuropening

  • -

    de winkelramen worden altijd voorzien van een steenachtige plint

  • -

    de bovenwoningen hebben afwisselend een vak met beukbreed bandraam en een vak met een door metselwerk omsloten bloemkozijn. Dit open/dicht ritme dient blokbreed behouden te blijven

  • -

    het verticale ritme van kolommen en vakvullingen strekt zich ook uit over de zijgevel aan de Scheldestraat

  • -

    als accent wordt bij renovatie de overgang gevel naar dak voorzien van een uitstekende dakrand, in dezelfde kleuren en materialisering als de lage luifel van blok deel 1

  • -

    deze dakrand strekt zich uit tot over de zijgevel aan de Scheldestraat.

 

 

Voor beide blokken is de opzet zo gekozen dat de gevelrenovatie van de aangrenzende panden ook mogelijk blijft, zelfs als een enkele eigenaar besluit niet deel te nemen. Dit garandeert een consistent en verbeterd gevelbeeld, ook voor de toekomst. Mocht een eigenaar wel de gevel gaan renoveren / aanpakken, zijn de regels van dit beeldkwaliteitsplan de leidraad.

 

 

 

R e g e l s b e e l d k w a l i t e i t s p l a n

 

 

Materialisering buitenzijde

Hoewel de twee blokken qua karakter verschillend blijven, wordt voor de kleuren- en materialenkeuze een uniform palet toegepast voor beide blokken, en dus voor de gehele west- en zuidgevel. Dit palet bepaalt de gevelcompositie en zal worden toegepast op alle gevelonderdelen.

 

De keuze van kleuren en materialen is geïnspireerd door de omgeving en de oorspronkelijke materialisatie van de gevelwand van de blokken. Het palet is zo samengesteld dat het zowel een verwijzing is naar de oorspronkelijke jaren ’60- architectuur, alsook de gevel een eigentijdse, tijdloze en duurzame uitstraling geeft.

 

De overeenkomstigheid in kleur, textuur, metselverbanden en voegtypes speelt hierin een cruciale rol. Uniformiteit in deze elementen zorgt voor een visueel samenhangend gevelbeeld, waarin de verschillende panden een harmonieuze eenheid vormen, ondanks hun individuele kenmerken. Daarnaast is het belangrijk dat de gebruikte materialen duurzaam en onderhoudsvriendelijk zijn. Door het toepassen van goede en duurzame materialen die bestand zijn tegen de tand des tijds, wordt niet alleen het esthetische resultaat gewaarborgd, maar ook het onderhoud en behoud van de gevel op de lange termijn. Goed onderhoud is essentieel om de gevels in hun oorspronkelijke staat te behouden, waardoor de investering in de renovatie zich op de lange termijn blijft uitbetalen.

 

 

 

 

 

 

Regel 1. Vaststelling toe te passen kleuren en materialen, uitleg palet

Zoals gesteld is het palet gekozen om rust en eenheid in het gevelbeeld te brengen, daarnaast is het palet zo gekozen dat het goed aansluit op het bestaande kleurenpalet. Het palet geldt voor het gehele blok, maar er worden wel subtiel verschillende accenten gelegd per blokdeel. Het is van belang dat alle toe te passen kleuren en materialen passen binnen dit palet. De voorgestelde kleuren en materialen zijn te vinden zijn op pagina 8 en 9 van dit document.

 

Blok deel 1

Hoofdopzet is voor blok deel 1 is het accentueren van het betonnen portaal, waarin opgenomen een horizontale opzet met bandraamkozijnen in kleuren conform het palet en vakvullingen/borstweringen in keramiek in aardekleuren (zoals terracotta). Het is de bedoeling dat de bovenwoningen alle in een gelijke kleurenopzet uniform worden uitgevoerd.

 

De winkelplint wordt gescheiden van de bovenwoningen door middel van de bestaande doorgaande luifelrand die in een metaalafwerking wordt uitgevoerd. In de winkelplint is er meer vormvrijheid en individualiteit per pand, zoals variatie in de positionering van de winkelpuien in de gevel en plaatsing van de entreedeuren. De winkelramen dienen voorzien te worden van een kunst- of natuurstenen lage plint.

 

Voor de kleuren is juist wel gekozen voor een overeenkomstig continu gevelbeeld, dus een gelijke opzet in kleur van de puien, entreedeuren, plinten en metselwerk vakvullingen.

 

 

Blok deel 2

Hoofdopzet voor blok deel 2 is het accentueren van de verticaliteit van de stalen kolommen, die door een isolatiepakket van stalen H-profielen evolueren naar rechthoekige kolommen in dezelfde betonlook als de portalen van het blok deel 1. In plaats van een luifel zoals bij blok deel 1 wordt hier boven de kolommenrij een afsluitende dakrand geïntroduceerd in dezelfde zinken afwerking.

 

De vakken tussen de kolommen worden gevuld met bandramen zoals bestaand, in lichte schilderkleuren. De vakvullingen worden zoals bestaand uitgevoerd in keramische baksteenstrips in twee tinten uit het palet. Het is de bedoeling dat de bovenwoningen alle in een gelijke kleurenopzet uniform worden uitgevoerd.

 

De winkelplint wordt gescheiden van de bovenwoningen door middel van de te handhaven overdekte gang. In de winkelplint is er meer vormvrijheid en individualiteit per pand, zoals variatie in de positionering van de winkelpuien in de gevel en plaatsing van de entreedeuren. De winkelramen dienen voorzien te worden van een kunst- of natuurstenen lage plint.

 

Voor de kleuren is gekozen voor een overeenkomstig rustig continu gevelbeeld, dus een gelijke opzet in kleur van de puien, entreedeuren, plinten en metselwerk vakvullingen.

 

De kolommen en portalen worden op het niveau van de plint duurzaam en schadebestendig uitgevoerd in kunststeen, natuursteen, composietbeton of gelijkwaardig in een gelijke kleur als de hoger gelegen delen die in betonstuc worden uitgevoerd.

 

Deze opzet is voor blok deel 1 en 2 uitgewerkt in het gevelschema op de navolgende pagina’s.

 

 

 

 

Kleuren/materialenpalet – Blok deel 1 noord

 

 

Metselwerk plint

Keramische steenstrips of baksteen

Lichtgrijs / zandkleur

Gevelbekleding tussen bandramen

Keramische tegels

Terracotta

Betonnen portaal kolom en dakrand

Stucwerk betonlook boven de luifel, composiet/kunstbeton eronder

Licht warmgrijs – onder en boven de luifel dezelfde kleurtint

Kozijnen, ramen en deuren

Kozijnen, ramen en deuren metaal of hout raamdorpels metaal in kozijnkleur, hardsteen onder winkeldeuren

Winkels kozijnen ivoor, winkeldeuren terracotta, woningdeuren beige. Bovenwoningen kozijnen blauwgrijs, ramen antracietgrijs

Gevelbekleding onder winkelramen

Plint composietbeton of hardsteen

Naturel warmgrijs, vlak of licht gefrijnd

Luifel

Metaal zetwerk, onderzijde luifel beplating hout of metaal

Zink naturel / zinkgrijs, onderzijde luifel lichtgrijs

Dakranden

Metaal zetwerk

Zink naturel / zinkgrijs

Hemelwaterafvoeren

Metaal

Zink naturel / zinkgrijs

Zonweringen

Metaal / doek screens bovenwoningen, uitvalscherm winkels

Woningen blauwgrijs, winkels beige/ivoor

Reclames

Losse doosletters metaal, afmetingen zie reclame paragraaf

In bedrijfskleur of naturel aluminium

 

 

 

Kleuren/materialenpalet – Blok deel 2 zuid

 

 

Metselwerk bovenwoningen

Keramische steenstrips of baksteen

Lichtgrijs / zandkleur – rood / terracotta genuanceerd

Portaal kolommen

Stucwerk betonlook boven overdekte gang, composiet / kunstbeton eronder

Licht warmgrijs – onder en boven de overdekte gang dezelfde kleurtint

Kozijnen, ramen en deuren

Kozijnen, ramen en deuren metaal of hout raamdorpels metaal in kozijnkleur, hardsteen onder winkeldeuren

Winkels kozijnen ivoor, winkeldeuren terracotta, woningdeuren beige. Bovenwoningen kozijnen blauwgrijs, ramen antracietgrijs

Gevelbekleding onder winkelramen

Plint composietbeton of hardsteen

Naturel warmgrijs, vlak of licht gefrijnd

Overdekte gang / gaanderij

Onderzijde overdekte gang / plafond beplating hout of metaal

lichtgrijs

Dakranden

Metaal zetwerk

Zink naturel / zinkgrijs

Hemelwaterafvoeren

Metaal

Zink naturel / zinkgrijs

Zonweringen

Metaal / doek screens bovenwoningen.

Woningen blauwgrijs

Reclames

Losse doosletters metaal, afmetingen zie reclame paragraaf

In bedrijfskleur of in naturel aluminium. Metalen frame antracietgrijs

 

 

 

Regel 2. Reclames

 

a. algemene regels uit de reclameparagraaf van de welstandsnota of diens rechtsopvolger zijn van toepassing

 

b. positionering en afmetingen reclames

Voor beide blokken is in samenhang met de architectuur van deze blokken de toegestane positie en afmetingen van de gevelreclames bepaald. Om een goede beeldkwaliteit te behouden is het van belang dat alle reclame-uitingen zich aanpassen aan deze regels voor de positie en afmetingen. Deze regels gelden ten eerste, en zijn aanvullend op de algemeen geldende regels voor reclames (a). Daar waar tegenstrijdigheden zijn, gelden de regels in dit beeldkwaliteitsplan.

 

blok deel 1 noord:

Bovenop de luifel losse intern verlichte metalen of kunststof doosletters; onder de luifel desgewenst een metalen frame met bedrijfslogo of losse letters. reclame-uitingen achter het glas van de winkelpuien vrij mits de gevelpuien niet geblindeerd worden of het zicht naar binnen afneemt.

Positie: toegestaan in de reclame zone (groen) en niet in de reclamevrije zone.

Afmetingen: zie schema. Boven de luifel max. h x b = 500 x 4200 mm. Onder de luifel het glasvlak boven de winkeldeuren en één uithangbord max. h x b = 300 x 800 mm.

 

 

 

 

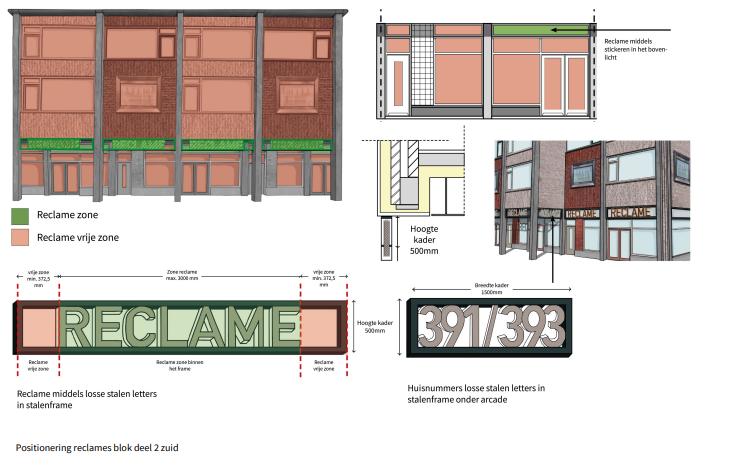
Blokdeel 2 zuid

 

Bovenaan de overdekte gang / gaanderij in het voorgevelvlak losse eventueel intern verlichte metalen of kunststof doosletters, gevat in een metalen frame.

Onder de overdekte gang / gaanderij in het vlak van de winkelpuien in het kozijnvak boven de winkeldeuren desgewenst reclame bedrijfslogo of losse letters. Reclame-uitingen achter het glas van de winkelpuien vrij mits de gevelpuien niet worden geblindeerd of het zicht naar binnen afneemt.

Positie: toegestaan in de reclame zone (groen) en niet in de reclamevrije zone.

Afmetingen: zie schema. Bovenaan de overdekte gang / gaanderij maximaal h x b = 500 x 3000 mm. Onder de overdekte gang / gaanderij het glasvlak boven de winkeldeuren (groen).

 

 

 

 

 

 

 

Regel 3. overige onderdelen aan de gevels: vlaggen, losse onderdelen, zonwering, verlichting, huisnummers en naar aard daarmee gelijk te stellen objecten/bouwwerken etc.

 

Ook voor deze losse onderdelen is van belang dat er één consequente lijn getrokken wordt om te voorkomen dat de gevels opnieuw verrommelen. Volledigheidshalve dan ook onderstaande punten:

 

  • -

    De samenhang en de ritmiek van de straatwand mag niet worden verstoord door reclames of overige niet tot het gebouw of gevel behorende onderdelen.

  • -

    Kleuren dienen terughouden gekozen te worden en passend zijn in het kleurenpalet van de gevels.

  • -

    Het per bedrijf plaatsen van vlaggenmasten is niet toegestaan.

  • -

    Lichtbakken en verwijsborden zijn niet toegestaan;

  • -

    Reclamezuilen die losstaan van de gevel zijn niet toegestaan;

  • -

    Geen reclame voor diensten of producten die niet in het pand plaatsvinden of daar niet worden verkocht;

  • -

    huisnummers worden nabij de entreedeur van winkel of bovenwoning aangebracht.

  • -

    Toegelaten zonweringen staan beschreven in het kleuren-materialenpalet voor blok deel 1 en blok deel 2.

  • -

    Indien de toegelaten zonwering bij een winkel wordt toegepast, is het onder voorwaarde en ter goedkeuring welstand toegestaan op het doek een bedrijfsnaam of logo te voeren, passend in het kleurenpalet van zowel de gevel als het zonweringsdoek.

 

 

 

Impressies

 

Naar boven