Gemeente Emmen – Verkeersbesluit tot het instellen van een éénrichtingsverkeer ter hoogte van de K+R strook bij het Kindcentrum aan de Horizon te Klazienaveen.
Burgemeester en Wethouders van Emmen,
Zaaknummer: 159828-2025
Gelet op:
•
de bepalingen in de Wegenverkeerswet 1994, het Reglement Verkeersregels en Verkeerstekens 1990 (RVV1990), het Besluit Administratieve Bepalingen inzake het Wegverkeer (BABW) en de Algemene wet bestuursrecht;
•
het Mandaatverzamelbesluit van de gemeente Emmen 2025.
Overwegende:
•
een verkeersbesluit moet worden genomen voor de plaatsing of verwijdering van de in artikel 12 van het BABW genoemde verkeerstekens (artikel 15, eerste lid, van de Wegenverkeerswet 1994);
•
het verkeersbesluit wordt bekend gemaakt in het Gemeenteblad (volgens artikel 26 BABW);
•
de weg is in beheer en onderhoud van de school, de gemeente Emmen neemt dit besluit op basis van artikel 18 van de Wegenverkeerswet.
Uit het oogpunt van:
•
het verzekeren van de veiligheid op de weg.
•
het beschermen van weggebruikers en passagiers.
•
het in stand houden van de weg en het waarborgen van de bruikbaarheid daarvan.
•
het zoveel mogelijk waarborgen van de vrijheid van verkeer.
Is het gewenst om
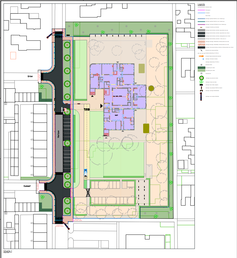
Een éénrichtingsverkeer in te stellen ter ondersteuning van de Kiss+Ride strook ter hoogte van het nieuwe Kindcentrum aan de Horizon te Klazienaveen.
Motivering:
In de Horizon wordt ten behoeve van het nieuwe Kindcentrum een Kiss+Ride strook gerealiseerd. Om te zorgen dat de Kiss+Ride strook optimaal wordt gebruikt, wordt op dit gedeelte van de Horizon (eigen terrein van de school) éénrichtingsverkeer (uitgezonderd fietsers) ingesteld. Het instellen van een éénrichtingsverkeer reguleert de verkeerssituatie rondom de school op de momenten dat leerlingen worden gebracht en gehaald. Het uitgaan van de school is het drukste moment van de dag. De kinderen verlaten de school dan gelijktijdig, waarbij bij aanvang van de school de komst van leerlingen meer verspreid plaatsvindt.
Belangenafweging
Het instellen van éénrichtingsverkeer ter hoogte van de Kiss+Ride strook zorgt voor een vlotte doorstroming van het verkeer en dat kinderen veilig kunnen in- en uitstappen. Hiermee wordt het verkeersbeeld overzichtelijker, doordat gemotoriseerd verkeer nog slechts uit één richting komt. De Horizon is in een 30 zone gelegen, waarbij alle kruispunten gelijkwaardig zijn. Ter verduidelijking van de schoolomgeving wordt, ter hoogte van de school, attentieverhogend straatmeubilair geplaatst en wordt op het wegdek de markering “schoolzone” aangebracht.
Het herinrichtingsplan is op 16 oktober 2023 gepresenteerd tijdens een inloopbijeenkomst aan omwonenden binnen het projectgebied, schoolbestuur en de Erkende Overlegpartner. Binnengekomen reacties zijn beoordeeld op haalbaarheid en waar mogelijk meegenomen in het plan.
Niet is gebleken dat belanghebbenden onevenredig worden benadeeld dan wel dat door de te nemen maatregel een onduidelijke verkeerssituatie zou ontstaan.
Gehoord
Overeenkomstig artikel 24 van het BABW is overleg gepleegd met de politiechef van de nationale politie van de regionale eenheid Noord-Nederland.
Besluiten
Het instellen van een verplichte rijrichting (uitgezonderd fietsers), ter ondersteuning van de Kiss+Ride strook, ter hoogte van het nieuwe Kindcentrum aan de Horizon te Klazienaveen. Door plaatsing van het verkeerbord C3 (éénrichtingsweg) met onderbord OB52 en verkeersbord C2 (geslotenverklaring) met onderbord OB52, conform bijgevoegde tekening.
Emmen, 15 juli 2025
Burgemeester en wethouders van Emmen,
namens dezen,
de teamleider van team Projecten Openbare Ruimte
V. Fennis
Ter inzage
Het verkeersbesluit is voor iedereen in te zien bij het Klant Contact Centrum van de gemeente Emmen voor een periode van zes weken na bekendmaking. Voor meer informatie over het besluit kunt u contact opnemen met de heer F. Bijker via telefoonnummer 14 0591.
Bezwaar
Belanghebbenden kunnen binnen zes weken na de datum van publicatie tegen dit besluit bezwaar maken. Het bezwaarschrift dient gemotiveerd te zijn en moet worden gericht aan het college van burgemeester en wethouders van Emmen, t.a.v. de team Projecten Openbare Ruimte, Postbus 30.001, 7800 RA Emmen. Via het formulier op https://gemeente.emmen.nl/bezwaar kan ook digitaal een bezwaarschrift worden ingediend.
Als u het bezwaarschrift te laat indient, kan het niet ontvankelijk worden verklaard. Dit betekent dat er niet wordt gekeken naar de inhoud van uw bezwaar.
Ondanks een ingediend bezwaar mag de gemeente het besluit uitvoeren. Wilt u dit voorkomen? Vraag dan om een voorlopige voorziening bij de bestuursrechter van de rechtbank Noord-Nederland in Groningen. Voor meer informatie zie www.rechtspraak.nl of bel 088 - 361 13 37.
De hier aangeboden pdf-bestanden van het Staatsblad, Staatscourant, Tractatenblad, provinciaal blad, gemeenteblad, waterschapsblad en blad gemeenschappelijke regeling vormen de formele bekendmakingen in de zin van de Bekendmakingswet en de Rijkswet goedkeuring en bekendmaking verdragen voor zover ze na 1 juli 2009 zijn uitgegeven. Voor pdf-publicaties van vóór deze datum geldt dat alleen de in papieren vorm uitgegeven bladen formele status hebben; de hier aangeboden elektronische versies daarvan worden bij wijze van service aangeboden.