Verkeersbesluit, inrichten van 2 algemene gehandicaptenparkeerplaatsen met venstertijden nabij de Maasstraat 3, Heemskerk.

Burgemeester en wethouders hebben op 3 juli 2025 besloten om:

 

Overwegende:

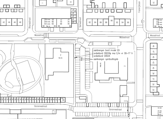
  • dat de gemeente Heemskerk van het ontmoetingscentrum De Stut, Maasstraat 3 te Heemskerk een verzoek heeft ontvangen om twee extra algemene gehandicaptenparkeerplaatsen met venstertijden aan te brengen naast de huidige twee algemene gehandicaptenparkeerplaatsen.

  • de reden is dat er steeds meer senioren naar De Stut gaan die slecht ter been zijn, het is voor hun belangrijk dat ze vlakbij de ingang van het ontmoetingscentrum kunnen parkeren.

  • de parkeerdruk is zodanig hoog dat de bezoekers hun voertuig regelmatig niet binnen de directe omgeving van het ontmoetingscentrum kunnen parkeren.

  • dat aanwijzing van de betreffende algemene gehandicaptenparkeerplaats is geschied in overleg met de beheerder van het ontmoetingscentrum.

  • dat wij in 2017 beleidsregels hebben vastgesteld die van toepassing zijn op aanvragen, toekennen en inrichten van een algemene gehandicaptenparkeerplaats;

  • dat wij voor de exacte inhoud van deze beleidsregels dan ook naar ons bovenvermeld besluit verwijzen;

  • dat aanwijzing van de betreffende gehandicaptenparkeerplaats is geschied in overleg met de aanvra(a)g(st)er;

  • over dit besluit is overleg gevoerd met de door de korpschef van de Nationale Politie daartoe gemandateerde van de politie;

  • dat de parkeerplaats wordt voorzien van een symbooltegel in het parkeervak;

  • gelet op de Wegenverkeerswet 1994, het Reglement verkeersregels en verkeerstekens 1990

  • (RVV 1990) en het Besluit administratieve bepalingen inzake het wegverkeer;

 

BESLUITEN

  • 1.

    tot het aanduiden van twee algemene gehandicaptenparkeerplaatsen in de Maasstraat ter hoogte van huisnummer 3 in Heemskerk door het plaatsen van een symbooltegels, bord E6 RVV 1990, onderbord OB504 en onderbord OB201p met daarop de venstertijden aangegeven: “ma t/m vr 8:00-17:00 h”.

  • 2.

    dat bekendmaking van het verkeersbesluit geschiedt door toezending van dit besluit aan de aanvrager en door publicatie van dit besluit in het digitale gemeenteblad;

 

Laat het ons op tijd weten als u het met dit besluit niet eens bent.

Als u als belanghebbende het niet eens bent met dit besluit kunt u een brief schrijven aan burgemeester en wethouders. Dit noemen wij een bezwaarschrift. Dit bezwaarschrift moet u binnen zes weken na verzending van dit besluit indienen. Noem in het bezwaarschrift in ieder geval:

  • Uw naam, adres en telefoonnummer;

  • De datum waarop u het bezwaarschrift schrijft;

  • Een omschrijving van het besluit waar het niet mee eens bent. U kunt ook een kopie van het besluit meesturen;

  • De redenen waarom u bezwaar maakt;

  • Uw handtekening.

Het bezwaarschrift stuurt u naar Postbus 1, 1960 AA Heemskerk.

Heeft u een DigiD-inlogcode? Maak dan online bezwaar. Dit doet u via www.heemskerk.nl. U kunt uw bezwaar niet mailen.

Als u niet kunt wachten tot uw bezwaarschrift is behandeld omdat uw zaak spoedeisend is, kunt u een voorlopige voorziening aanvragen bij de voorzieningenrechter van de Rechtbank Noord-Holland, locatie Haarlem, Postbus 1621, 2003 BR Haarlem.

Heeft u een DigiD-inlogcode dan kan het ook online via http://loket.rechtspraak.nl/bestuursrecht.

 

Nadere inlichtingen: telefoonnummer 14 0251.

Naar boven