Omgevingsplan gemeente Middelburg Aanwijzingsbesluit opslag en parkeren, terrein De Roode Leeuw - te Nieuw en Sint Joosland

 

 

Aanwijzingsbesluit opslag en parkeren, terrein De Roode Leeuw - te Nieuw en Sint Joosland

 

Aanwijzingsbesluit van:

  • een plaats waar de opslag van voertuigen, vaartuigen, kampeermiddelen, mest, afvalstoffen e.d. verboden is ingevolge artikel 4.10 van de Algemene Plaatselijke Verordening Middelburg 2025 (hierna: APV).

  • een plaats waar het parkeren van een woonwagen, kampeerwagen, caravan, camper, magazijnwagen, aanhangwagen, keetwagen of een ander dergelijk voertuig dat voor recreatie of anderszins voor andere dan verkeersdoeleinden wordt gebruikt verboden is ingevolge artikel 9.51 aanhef en onder b Omgevingsplan gemeente Middelburg.

 

Het college van burgemeester en wethouders van de gemeente Middelburg;

overwegende, dat:

  • ingevolge artikel 4.10, eerste lid van de APV het college plaatsen kan aanwijzen waar het in het belang van het uiterlijk aanzien van de gemeente, ter voorkoming of opheffing van overlast of ter voorkoming van schade aan de openbare gezondheid verboden is onbruikbare of aan hun oorspronkelijke bestemming onttrokken voer- of vaartuigen, bromfietsen en motorvoertuigen of onderdelen daarvan, kampeermiddelen als bedoeld in artikel 5.21 APV of onderdelen daarvan (voor een commercieel doel), mest, ingekuild gras, loof of pulp of ingekuilde landbouwproducten, afbraakmaterialen en oude metalen of afvalstoffen op onderhavig terrein op te slaan, te plaatsen of aanwezig te hebben;

  • ingevolge artikel 9.51 aanhef en onder b Omgevingsplan gemeente Middelburg het college plaatsen kan aanwijzen waar het in het belang van het uiterlijk aanzien van de gemeente verboden is een woonwagen, kampeerwagen, caravan, camper, magazijnwagen, aanhangwagen, keetwagen of een ander dergelijk voertuig dat voor recreatie of anderszins voor andere dan verkeersdoeleinden wordt gebruikt, te parkeren.

 

b e s l u i t :

  • I.

    Aanwijzing gebied

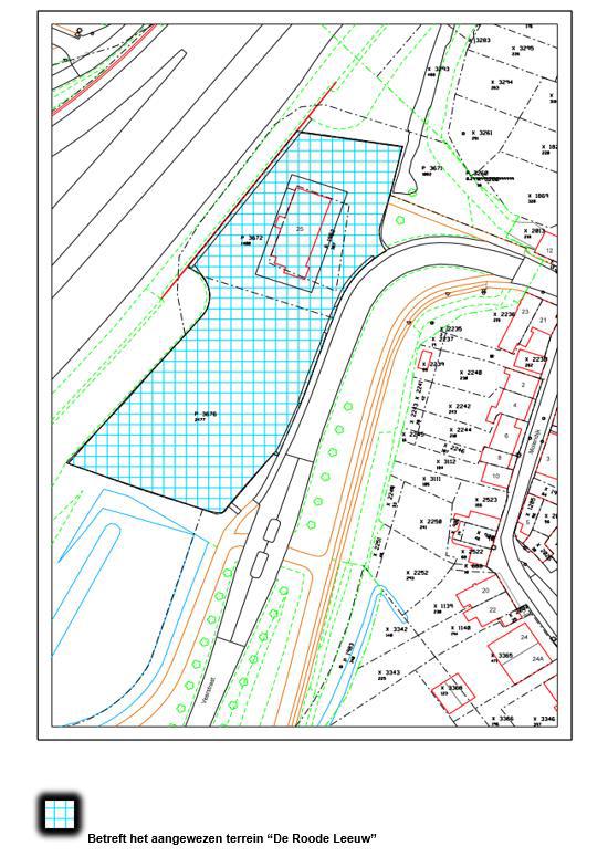
  • voor de toepassing van artikel 4.10, eerste lid en artikel 9.51 aanhef en onder b Omgevingsplan gemeente Middelburg aan te wijzen het gebied ter plaatse bekend als terrein De Roode Leeuw, Veerstraat 25 te Nieuw- en Sint Joosland, zoals aangegeven op de bij dit besluit behorende kaart;

  • II.

    Inwerkingtreding

  • dit besluit in werking te laten treden de dag na die van de bekendmaking. Op dat tijdstip komt het Aanwijzingsbesluit opslag en parkeren, terrein De Roode Leeuw - te Nieuw en Sint Joosland, zoals vastgesteld op 29 oktober 2024 te vervallen.

  • III.

    Citeertitel

  • Dit aanwijzingsbesluit wordt aangehaald als: Aanwijzingsbesluit terrein De Roode Leeuw.

Aldus vastgesteld door burgemeester en wethouders van Middelburg in hun vergadering van 1 juli 2025

de secretaris, mr. A. van den Brink

de burgemeester, mr. Y.P. van Mastrigt

 

In de bijlage wordt het gebied/ de locatie aangegeven waarvoor het verbod dan wel beperking van het gebruik geldt en tevens ter informatie een luchtfoto van onderhavige locatie.

 

 

 

Bijlage bij “Aanwijzingsbesluit terrein De Roode Leeuw”

Naar boven