Aanwijzingsbesluit ondergrondse verzamelcontainer Loondonk

 

Het college van Waalwijk;

gelet op:

 

  • 1.

    Het bepaalde in artikel 10.26 van de Wet Milieubeheer inhoudende dat gemeenten, in het belang van de doelmatigheid, huishoudelijke afvalstoffen mogen inzamelen nabij elk perceel;

  • 2.

    Het bepaalde in artikel 5 van de Afvalstoffenverordening Waalwijk 2024 op grond waarvan het college kan aanwijzen via inzamelmiddel of via welke inzamelvoorziening de inzameling van een bepaalde categorie huishoudelijke afvalstoffen plaatsvindt;

  • 3.

    Het bepaalde in artikel C van het Aanwijzingsbesluit Afvalstoffenverordening Waalwijk 2025 inhoudende de aanwijzing van de dichtst bijgelegen (boven/ondergrondse) verzamelcontainer of groep verzamelcontainers als inzamelvoorziening voor de inzameling van huishoudelijk restafval en groente, fruit- en tuinafval(GFT) voor hoogbouw- en stapelbouwwoningen;

 

overwegende dat:

 

  • 1.

    Aan de Loondonk in Waalwijk een nieuw appartementencomplex is gerealiseerd;

  • 2.

    De inzamelvoorziening voor de toekomstige bewoners van het appartementencomplex op de genoemde locatie een ondergrondse verzamelcontainer betreft;

  • 3.

    Er in de directe omgeving van de genoemde locatie onvoldoende ondergrondse verzamelcontainers aanwezig zijn;

  • 4.

    De locatie waar deze ondergrondse verzamelcontainer geplaatst wordt, voldoet aan de criteria van de Beleidsregels ondergrondse inzamelmiddelen 2024;

     

Besluit:

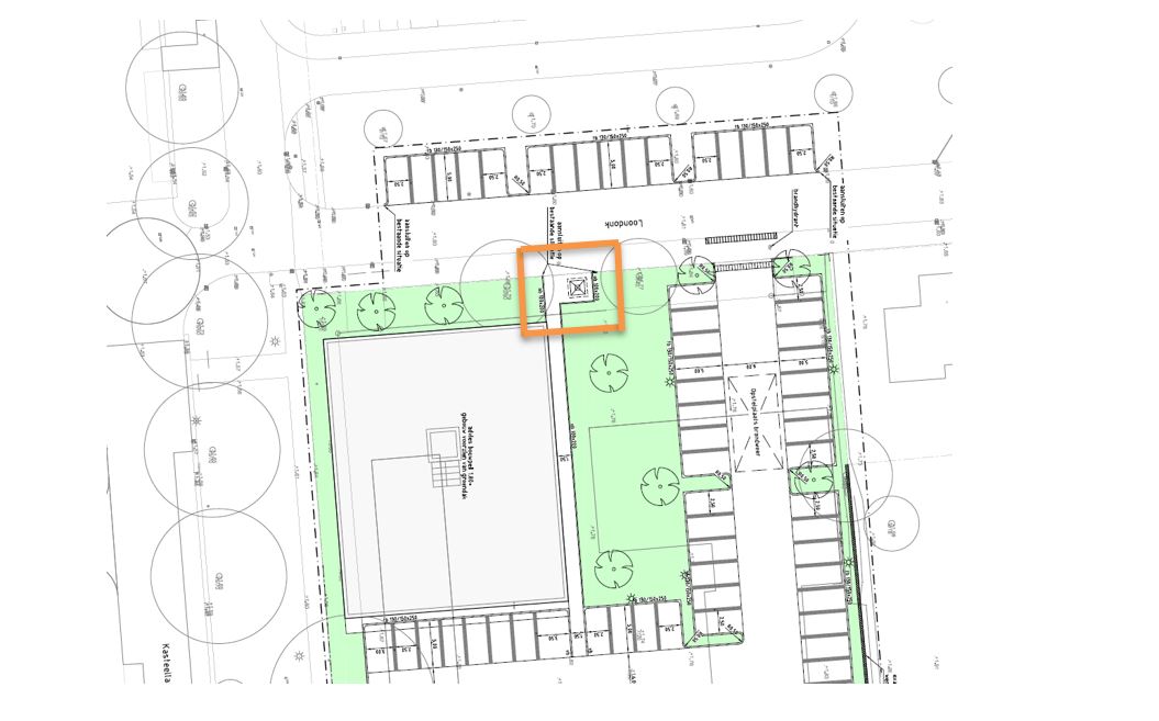
De in de onderstaande kaart, oranje omkadert, aangeduide locatie aan te wijzen voor het plaatsen van een ondergrondse verzamelcontainer.

 

 

Dit besluit treedt in werking de dag na bekendmaking.

Aldus vastgesteld in de collegevergadering van 16 juni 2025.

 

Het College van Waalwijk,

De secretaris, de burgemeester,

Michel Tromp, Sacha Ausems

Naar boven