Verkeersbesluit voor het realiseren van een voetgangersoversteekplaats nabij de kruising van de Gounodstraat en Spaans Neerbeek te Geleen

Z/25/738411

Burgemeester en wethouders van Sittard-Geleen:

1. Besluiten:

voor het realiseren van een voetgangersoversteekplaats nabij de kruising met de Gounodstraat en Spaans Neerbeek en de onderstaande verkeersmaatregelen te nemen:

  • 1.

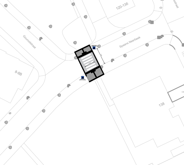
    het aanbrengen van het volgende verkeersteken op het wegdek ‘Voetgangersoversteekplaats’, op Spaans Neerbeek te Geleen nabij de kruising met de Gounodstraat.

Zoals aangegeven op de foto(’s) en/of tekening(en), behorende bij dit besluit.

2. Overwegingen

Op de Lienaertsstraat te Geleen bevindt zich een school. Ten behoeve van de verkeersveiligheid en de verkeersdoorstroming van het schoolverkeer, is het noodzakelijk om een voetgangersoversteekplaats te realiseren op Spaans Neerbeek te Geleen nabij de kruising met de Gounodstraat.

3. Wettelijke grondslag

Verkeersbesluiten worden genomen op basis van artikel 15 lid 1 van de Wegenverkeerswet 1994 en artikel 12 van het Besluit Administratieve Bepalingen inzake het Wegverkeer.

Uit het oogpunt van de veiligheid, het beschermen van weggebruikers en passagiers, de doorstroming en de bruikbaarheid van de weg, wordt het noodzakelijk geacht de verkeersmaatregelen te nemen. Van toepassing zijn hier artikel 2, lid 1, sub a, b en c, van de Wegenverkeerswet 1994.

Spaans Neerbeek te Geleen is in beheer en onderhoud bij de gemeente Sittard-Geleen en ligt binnen de bebouwde kom, zoals bedoeld in artikel 18 lid 1 sub d van de Wegenverkeerswet 1994.

4. Advies

Verkeerskundigen en de regiopolitie hebben op 04-02-2025 positief geadviseerd over de voorgestelde verkeersmaatregel.

5. Ondertekening

Sittard-Geleen, 12-06-2025

Namens het college van burgemeester en wethouders van Sittard-Geleen,

Juridisch Medewerker Verkeer

R. Dobrick

6. Publicatie

Op basis van artikel 26 van het Besluit administratieve bepalingen inzake het wegverkeer, wordt na besluitvorming dit verkeersbesluit gepubliceerd in het Gemeenteblad (officielebekendmakingen.nl).

7. Bezwaar

Bent u het niet eens met onze beslissing? Dan kunt u binnen zes weken na de dag waarop dit besluit gepubliceerd is een bezwaarschrift bij ons indienen. Dat kan op meerdere manieren:

  • 1.

    U kunt uw bezwaarschrift opsturen naar: Burgemeester en Wethouders van Sittard-Geleen, Postbus 18, 6130 AA Sittard.

  • 2.

    U kunt uw bezwaarschrift persoonlijk afgeven bij de Stadswinkel, Markt 1, Geleen.

  • 3.

    U kunt uw bezwaarschrift faxen via telefoonnummer (046) 400 00 39.

  • 4.

    U kunt ook digitaal bezwaar maken. Daarvoor heeft u wel een elektronische handtekening (DigiD) nodig.

Kijk op https://www.sittard-geleen.nl/Inwoners/Klacht_bezwaar_en_beroep/Bezwaar_bezwaarschrift_indienen voor meer informatie. Bijvoorbeeld om te lezen wat u in uw bezwaarschrift moet vermelden.

8. Voorlopige voorziening

Als u bezwaar maakt, treedt het besluit toch in werking. Om dat te voorkomen, kunt u bij de rechter om een tijdelijke maatregel vragen. Dat heet een ‘voorlopige voorziening’. Dit kan alleen als er spoedeisende belangen zijn die dat nodig maken. Alle informatie hierover kunt u krijgen via de griffie van de rechtbank Limburg. Of kijk op www.rechtspraak.nl.

Locatie

Namens het college van burgemeester en wethouders van Sittard-Geleen,

Juridisch Medewerker Verkeer

R. DobrickSittard-Geleen, 12-06-2025

Naar boven