Kennisgeving voornemen tot uitgifte van onroerende zaken (gronden en/of opstallen) gemeente Breda

 

publicatiedatum: 16 juni 2025 (reageren binnen 20 kalenderdagen)

 

Ingevolge de algemene beginselen van behoorlijk bestuur, moeten overheidslichamen kennisgeven van het voornemen om te besluiten tot het aangaan van een overeenkomst waarbij sprake is van de uitgifte van onroerende zaken en zakelijke rechten.

 

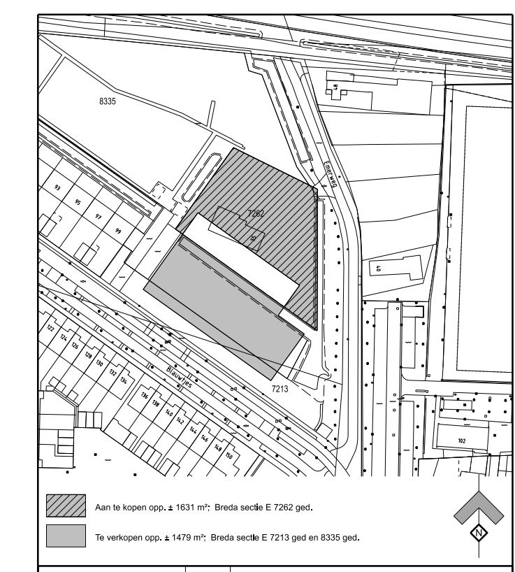
Gemeente Breda (‘de gemeente’) geeft in dat kader te kennen dat zij voornemens is om gronden (zoals aangegeven op bijgaande tekening), gelegen aan de Blauwtjes te Breda, onderhands te verkopen. Naar het oordeel van de gemeente is de beoogde koper de enige serieuze gegadigde die in aanmerking komt voor de hiervoor vermelde verkoop.

 

Motivering

Voorgenomen verkoop/uitgifte komt tot stand in het kader van een zogenaamde anterieure overeenkomst over kostenverhaal. Deze verkoop/uitgifte heeft tot doel het ruimtelijk op een juiste manier afmaken/inpassen van de ontwikkeling op de locatie Emerweg 55-56/Blauwtjes te Breda, kadastraal bekend gemeente Breda sectie E nummers 7213 ged. en 8335 ged. gezamenlijk groot circa 1.480 m². Met deze verkoop wordt derhalve een ruimtelijk gewenste ontwikkeling gefaciliteerd en wordt de ruimtelijke kwaliteit daarvan verhoogd. Over die beoogde integrale ontwikkeling is op 9 april 2024 tussen de ontwikkelaar en de gemeente een intentieovereenkomst gesloten waarop de onderhavige grondverkoop nu voortbouwt.

 

Daar komt bij dat de beoogde koper zelf het grootste deel van de te ontwikkelen gronden – te weten Emerweg 55, het perceel kadastraal bekend gemeente Breda, sectie E, nummer 7262 groot circa 2.100 m² – reeds in eigendom heeft. De door de gemeente te verkopen gronden . kunnen niet zelfstandig tot ontwikkeling worden gebracht, althans niet met dezelfde ruimtelijke kwaliteit die ontstaat in geval van een integrale ontwikkeling van de betreffende grondposities. Om de ontwikkeling op de locatie Emerweg 55-56/Blauwtjes te Breda mogelijk te maken zullen over en weer gronden worden verkocht en zullen de aanwezige volkstuinen binnen het plangebied worden verplaatst.

 

Uitsluitend met het oog op de meeromvattende planontwikkeling wordt het grondperceel verkocht. Niet voor andere doeleinden. Het door de gemeente te verkopen grondperceel is niet vatbaar voor zelfstandige ontwikkeling, zonder het aangrenzende perceel dat reeds in eigendom is bij de beoogde koper.

 

Gelet op het voorgaande is de gemeente van oordeel dat op grond van objectieve, redelijke en toetsbare criteria alleen beoogde koper als serieuze gegadigde in aanmerking komt voor gronduitgifte die aangemerkt kan worden als wezenlijk onderdeel van een anterieure overeenkomst die een vanuit ruimtelijke ordeningsperspectief gewenste ruimtelijke ontwikkeling mogelijk maakt. 

 

Vervaltermijn

Indien u zich niet kunt verenigen met deze voorgenomen onderhandse uitgifte door de gemeente, omdat u meent daarvoor zelf als gegadigde in aanmerking te komen en u bovendien daadwerkelijk in staat en bereid bent om het betreffende object onder marktconforme condities af te nemen van de gemeente, dan kunt u dat binnen 20 dagen na de datum van de onderhavige publicatie kenbaar maken. Dat kunt u alsdan doen door een kort geding procedure aanhangig maken bij de daartoe bevoegde voorzieningenrechter van de rechtbank Breda. In dat geval dient u de gemeente hiervan onverwijld in kennis te stellen middels betekening van de dagvaarding op het adres van de gemeente, bij gebreke waarvan het recht vervalt om tegen al het voornoemde in rechte op te komen en/of daarop enige aanspraak in welke vorm of hoedanigheid dan ook te baseren, althans zijn uw rechten daarop uitgewerkt. Een digitaal afschrift van de dagvaarding dient u tevens per e-mail aan contact@breda.nl te verzenden.

 

Naar boven