Beleidsregel gebiedsontzegging Gemeente Coevorden 2025

De burgemeester van de gemeente Coevorden;

Overwegende dat:

  • -

    in de gemeente Coevorden overlast plaatsvindt van personen die de openbare orde verstoren en/of zich schuldig maken aan strafbare feiten;

  • -

    op grond van artikel 2:78 van de Algemene Plaatselijke Verordening gemeente Coevorden (APV) aan een persoon een tijdelijk verbod kan worden gegeven om zich op te houden op een openbare plaats in één of meer bepaalde gebieden van de gemeente Coevorden in het belang van de openbare orde;

  • -

    het voor de uitoefening van deze bevoegdheid voor de hiervoor genoemde gebiedsontzeggingen wenselijk is een beleidsregel vast te stellen;

  • -

    in deze beleidsregel wordt aangegeven hoe de burgemeester, of een door of namens hem gemandateerde politiefunctionaris, van deze bevoegdheid gebruik zal maken;

Gelet op de artikelen 4:81, eerste lid, 4:83 en 1:3, vierde lid van de Algemene wet bestuursrecht (hierna: Awb), artikel 2:78 van de APV en artikel 172a en 172b van de Gemeentewet;

 

Besluit

 

  • 1.

    De ‘Beleidsregel gebiedsontzegging Coevorden 2020’ vastgesteld op 3 november 2020 in te trekken.

  • 2.

    De ‘Beleidsregel gebiedsontzegging gemeente Coevorden 2025’ vast te stellen.

Artikel 1 Toepassingsbereik

  • 1.

    De gedragingen waarvoor een gebiedsontzegging kan worden opgelegd, zijn opgenomen in de bij dit besluit behorende Bijlage 1.

  • 2.

    Een gebiedsontzegging geldt:

    • -

      voor een gebied of meerdere gebieden van de gemeente Coevorden waarbinnen het strafbare feit en/of openbare orde verstorende handeling heeft plaatsgevonden. Dit gebied wordt in het besluit tot het opleggen van de gebiedsontzegging genoemd/ nader omschreven en als een kaart(en) als bijlage toegevoegd of

    • -

      voor één of bij uitzondering meerdere gebied(en) zoals opgenomen in de bij dit besluit behorende Bijlage 2.

  • 3.

    Het toepassen van de beleidsregel past binnen de doelstelling tot het creëren van een veilige woon-, werk- en leefomgeving.

  • 4.

    Als een strafbaar feit en/of openbare orde verstorende handeling plaatsvindt tijdens een A, B of C evenement wordt een gebiedsontzegging opgelegd, waarbij voor het gebied aansluiting wordt gezocht bij het evenemententerrein dan wel het gebied waar het evenement plaatsvindt. Een ruimer gebied is mogelijk indien noodzakelijk.

Artikel 2 Mandatering bevoegdheid

  • 1.

    De burgemeester mandateert de uitoefening van zijn bevoegdheid tot het opleggen en uitreiken van een waarschuwing en/of een gebiedsontzegging tot maximaal 48 uur aan:

    • -

      aan de Politiechef van de Eenheid Noord-Nederland met de mogelijkheid om ondermandaat te verlenen aan de ambtenaren van het Basisteam Zuidoost-Drenthe en de hulpofficieren van justitie van de Eenheid Noord-Nederland;

  • 2.

    De uitwerking van het mandaat aan de politie is geregeld in het ‘Mandaatbesluit gebiedsontzegging Coevorden’.

Artikel 3 Voorwaarden voor het geven van een waarschuwing en het opleggen van een gebiedsontzegging

  • 1.

    Een waarschuwing en/of een gebiedsontzegging van maximaal 48 uur kan worden opgelegd nadat de politie een betrokkene staande houdt en/of een betrokkene door de politie is geverbaliseerd voor overtreding van één of meer van de in de bijlage 1 genoemde wettelijke bepalingen.

  • 2.

    De waarschuwing geldt voor een periode van zes maanden, na de dag van de uitreiking. In deze waarschuwing staat het beleid ten aanzien van de gebiedsontzegging uitgelegd. De waarschuwing geldt binnen de gehele gemeente Coevorden en wordt één keer gegeven. Het uitreiken van de waarschuwing wordt door de politie schriftelijk vastgelegd.

  • 3.

    Wanneer een betrokkene overlastgevend gedrag vertoont en er vrees bestaat dat de persoon dit gedrag pleegt in meerdere gebieden en/of een persoon al een schriftelijke waarschuwing of een gebiedsverbod heeft ontvangen, dan kan de gebiedsontzegging worden opgelegd voor meerdere gebieden.

  • 4.

    Voordat een waarschuwing door de gemandateerde functionarissen van de politie voor een gebiedsontzegging wordt opgelegd, wordt de betrokkene in de gelegenheid gesteld om zijn/haar zienswijze overeenkomstig artikel 4:8 van de Awb kenbaar te maken. Van de gelegenheid tot het geven van zienswijzen wordt afgezien als de vereiste spoed zich daartegen verzet (artikel 4:11 van de Awb).

  • 5.

    Indien sprake is van een minderjarige worden tenminste de ouder(s)/voogd van de minderjarige met spoed uitgenodigd voor een zienswijzegesprek.

  • 6.

    De zienswijze wordt schriftelijk vastgelegd, ook wanneer de betrokkene expliciet aangeeft geen gebruik te willen maken van het geven van zijn zienswijze. Van een mondelinge waarschuwing wordt een verslag gemaakt in een proces-verbaal, in een dag/nachtrapport of andere registratie. Het verslag wordt toegevoegd aan het proces-verbaal dossier.

  • 7.

    Uit het proces-verbaal dossier dient duidelijk te zijn- dat de betrokkene- door de waarschuwing had kunnen weten, dat bij het continueren van zijn overlastgevend gedrag, de burgemeester over kan gaan tot het opleggen van een gebiedsontzegging.

  • 8.

    Als de betrokkene kan aantonen dat hij/zij een zwaarwegend belang heeft om zich op een bepaalde plaats in het gebied op te houden, dan wordt in het besluit tot oplegging van een gebiedsontzegging een looproute opgenomen. Het is de betrokkene in dat geval slechts toegestaan om de desbetreffende locatie via de aangegeven looproute te bereiken.

  • 9.

    Of iemand een zwaarwegend belang heeft om zich in het gebied op te houden, zal door betrokkene zelf moeten worden aangetoond. Doorgaans zal het daarbij gaan om belangen in de persoonlijke sfeer, zoals wonen, werken, naar school moeten gaan, het bezoek aan een huisarts, advocaat of hulpverleningsinstantie.

Artikel 4. Gebiedsontzegging zonder een waarschuwing en tijdvak

  • 1.

    Gebiedsverbod bij een evenement (maximaal 48 uur)

    Tijdens een evenement kan namens de burgemeester de gemandateerde een gebiedsverbod van maximaal 48 uur, zonder waarschuwing vooraf, opleggen als er sprake is van een vrees voor een verdere verstoring van de openbare orde tijdens dit evenement.

  • 2.

    Gebiedsontzegging bij eerste overtreding feiten categorie 3 (maximaal 48 uur)

    • 1.

      In voorkomende gevallen kan namens de burgemeester de gemandateerde persoon zonder waarschuwing vooraf bij de eerste orde verstorende gedraging, zoals genoemd in de bijlage 1, overgaan tot het opleggen van een gebiedsverbod van maximaal 48 uur om een herhaling van het orde verstorend gedrag te voorkomen. Dit zal het geval zijn bij gedragingen die zodanig ernstig en ingrijpend voor de openbare orde zijn dat dit het direct opleggen van een gebiedsverbod rechtvaardigt. Zonder uitputtend te zijn zal dit aan de orde zijn:

      • a.

        als de ordeverstoring bijzonder gewelddadig was of direct dan wel indirect aanleiding gaf tot grootschalige vechtpartijen;

      • b.

        bij geweld tegen hulpverleners of andere ambtenaren in functie (zoals bedoeld in art. 304 Sr);

      • c.

        bij harddrugshandel of bij softdrugshandel in een kwetsbare omgeving zoals rondom gedoogde coffeeshops/ scholen;

      • d.

        als er bij de ordeverstoring wapens zijn gebruikt of als een persoon in een risicovolle omgeving zoals bijvoorbeeld het uitgaanscentrum wapens bij zich had;

      • e.

        als betreffende een collectief horecaontzegging opgelegd krijgt door een horeca-exploitant.

    • 2.

      De burgemeester blijft te allen tijde zelf bevoegd gebiedsverboden bij eerste overtreding feiten categorie 3 op te leggen.

  • 3.

    Gebiedsontzegging bij eerste overtreding feiten categorie 2 (maximaal 6 weken)

    In geval van ernstige vrees van voorzetting van overlastgevend gedrag van een betrokkene voor overtreding van één of meer van de in de bijlage 1 genoemde wettelijke bepalingen kan de burgemeester zonder waarschuwing, een gebiedsontzegging van ten hoogste zes weken opleggen.

  • 4.

    Gebiedsontzegging na de eerste overtreding (maximaal 12 weken)

    • a.

      Als aan betrokkene al een waarschuwing gebiedsontzegging is uitgereikt (feiten categorie 1) en/of een gebiedsontzegging is opgelegd en betrokkene binnen zes maanden wederom een overtreding van één of meer van de in de bijlage 1 genoemde wettelijke bepalingen pleegt zal de burgemeester in verband met recidive zonder een waarschuwing een gebiedsontzegging van ten hoogste twaalf weken opleggen.

    • b.

      Als een gebiedsontzegging wordt opgelegd terwijl er al een gebiedsontzegging geldt, gaat de nieuwe gebiedsontzegging voor hetzelfde gebied in na afloop van de eerder opgelegde gebiedsontzegging.

Artikel 5 Besluit gebiedsontzegging

Motivering besluit

  • 1.

    Het besluit tot het opleggen van een gebiedsontzegging dient te worden gemotiveerd en bevat de volgende informatie:

    • a.

      bevoegdheid tot het opleggen van een gebiedsontzegging;

    • b.

      op welke gedragingen en feiten de gebiedsontzegging is gebaseerd;

    • c.

      eventuele eerdere waarschuwingen of gebiedsontzegging(en);

    • d.

      eventueel kenbaar gemaakte zienswijze(n) en de reactie(s) daarop;

    • e.

      verzenddatum en/of datum van uitreiking waarschuwing gebiedsontzegging;

    • f.

      voor welk gebied(en) en voor welk tijdvak de gebiedsontzegging geldt;

    • g.

      rechtsbescherming clausule (bezwaar/voorlopige voorziening/beroep/hoger beroep);

    • h.

      kaart(en) van het betreffende gebied(en) als bijlage toevoegen;

    • i.

      overige feiten en omstandigheden die van belang kunnen zijn.

Uitreiking besluit

  • 2.

    Het besluit tot het opleggen van een gebiedsontzegging wordt in persoon door de politie of een toezichthouder van de gemeente aan de betrokkene uitgereikt en (indien mogelijk) per aangetekende post verstuurd.

  • 3.

    Als de betrokkene minderjarig is, worden de ouder(s)/voogd via een brief in kennis gesteld van de gebiedsontzegging.

Inwerkingtreding besluit

  • 4.

    Het besluit tot het opleggen van een gebiedsontzegging treedt in werking op de dag dat het verbod aan de betrokkene wordt uitgereikt. Als een gebiedsverbod wordt uitgereikt terwijl er al een verbod geldt dan gaat de termijn van het nieuwe verbod in na afloop van het eerdere gebiedsverbod.

Rechtsbescherming

  • 5.

    De betrokkene aan wie een besluit tot gebiedsontzegging is uitgereikt, kan binnen zes weken na uitreiking van het besluit, bezwaar tegen dit besluit bij de burgemeester maken en/of bij de rechtbank Noord-Nederland een verzoek om voorlopige voorziening indienen.

Artikel 6 Uitzonderingen gebiedsontzegging

De burgemeester kan in afwijking van de gebiedsontzegging uit artikel 2:78 van de APV rechtstreeks toepassing geven aan artikel 172a en 172b van de Gemeentewet.

 

  • 1.

    Op grond van artikel 172a van de Gemeentewet kan de burgemeester een bevel geven aan een persoon die individueel of in groepsverband de openbare orde ernstig heeft verstoord of bij ernstige vrees voor verdere verstoring van de openbare. De burgemeester mag een bevel geven voor de maximale duur van 90 dagen.

  • 2.

    Bij ernstige vrees voor verstoring van de openbare orde kan de burgemeester, op grond van artikel 172b Gemeentewet, aan de ouder(s) of voogd van een persoon die de leeftijd van 12 jaar nog niet heeft bereikt een bevel geven. Het bevel geldt voor een door de burgemeester vast te stellen periode van ten hoogste drie maanden.

  • 3.

    De burgemeester is bevoegd de opgelegde maatregel aan te passen als er nieuwe feiten of omstandigheden zijn. Dit kan zowel in het voordeel als in het nadeel zijn van de persoon/personen aan wie de maatregel wordt opgelegd.

  • 4.

    Mandateren van deze bevoegdheid is niet toegestaan.

Artikel 7 Dossiervorming en verslaglegging

Voor het opleggen van een gebiedsontzegging levert de politie een dossier aan bij de burgemeester via het team Economie & Leefbaarheid/ cluster Veiligheid van de gemeente Coevorden.

  • 1.

    Het dossier bevat in ieder geval de volgende gegevens:

    • a.

      contactgegevens van de politiefunctionarissen als bedoeld in artikel 2 van deze beleidsregel;

    • b.

      het verzoek tot het opleggen van een gebiedsontzegging;

    • c.

      de beschrijving van het gebied/gebieden met een kaart/kaarten waarvoor een gebiedsontzegging dient te worden opgelegd;

    • d.

      de waarschuwing/ het besluit gebiedsontzegging;

    • e.

      een kopie van het proces-verbaal, in de vorm van een bestuurlijke rapportage, dat aanleiding heeft gegeven voor een gebiedsontzegging dan wel de in het proces-verbaal alle overige (strafrechtelijke) achtergrondgegevens met betrekking tot eerdere openbare orde verstoringen (bijvoorbeeld eerdere processen-verbaal, meldingen, mutaties, etc.);

    • f.

      de schriftelijke verslagen van de gegeven zienswijzen;

    • g.

      als de betrokkene door omstandigheden niet in staat is het besluit over de gebiedsontzegging te tekenen voor ontvangst, vermeldt de politiefunctionaris dit in een proces-verbaal van bevindingen.

  • 2.

    Een dossier dat eventueel bij de Bezwaarschriftencommissie van de gemeente Coevorden en/of bij de rechtbank Noord - Nederland te Groningen wordt aangeleverd bevat naast de in de in tweede lid genoemde documenten, een afschrift van deze beleidsregel, de bekendmaking van de APV, de publicatie van het mandaat- en ondermandaat besluit gebiedsontzegging gemeente Coevorden.

Artikel 8 Informatieplicht

  • 1.

    De burgemeester en het Openbaar Ministerie informeren elkaar en de politie over en weer als een bevel of verbod wordt voorbereid en opgelegd.

  • 2.

    De beleidsadviseur Openbare Orde en Veiligheid van de gemeente Coevorden informeert de Politiechef van de eenheid Noord-Nederland over een ingediend bezwaar en/of een verzoek om een ‘voorlopige voorziening’ bij de rechtbank tegen een gebiedsontzegging en over de beslissing op bezwaar en/of de uitspraak van de rechtbank.

Artikel 9 Afwijkingsmogelijkheid

  • 1.

    De burgemeester kan van deze beleidsregel gemotiveerd afwijken als dat voor één (1) of meer belanghebbenden gevolgen zou hebben die wegens bijzondere omstandigheden onevenredig zijn in verhouding tot de met de beleidsregels te dienen doelen.

  • 2.

    Een gebiedsontzegging is niet van toepassing op personen die zich binnen het aangewezen gebied bevinden in een openbaar middel van vervoer om naar werk en/of naar huis te komen.

Artikel 10 Toezicht en handhaving

  • 1.

    Het is verboden zich te gedragen in strijd met een door de burgemeester opgelegd verbod.

  • 2.

    Het opzettelijk negeren van een bevel, gegeven door een politiefunctionaris met de uitoefening van enig toezicht belast of belast met het opsporen of onderzoeken van strafbare feiten, is een strafbaar feit (artikel 184 Wetboek van Strafrecht) waardoor de overtreder van het bevel kan worden vervolgd door het Openbaar Ministerie.

  • 3.

    De politie houdt toezicht op de naleving van opgelegde gebiedsontzeggingen.

    Ook kunnen buitengewoon opsporingsambtenaren in dienst van de gemeente toezien op de naleving. Overtreding van de gebiedsontzegging is een strafbaar feit volgens artikel 184 van het Wetboek van Strafrecht.

Artikel 11 Overgangsregeling

  • 1.

    Verwijderingsbevelen en gebiedsontzeggingen die zijn opgelegd voor de ingangsdatum van deze beleidsregel blijven ook na inwerkingtreding van deze beleidsregel van toepassing.

  • 2.

    Het Aanwijzingsbesluit Kibbelkoele met de bijgevoegde kaart genomen door de burgemeester op 11 juli 2016 wordt ingetrokken.

  • 3.

    Het Aanwijzingsbesluit van 3 november 2020 (‘Gebiedsaanwijzing centrum Coevorden 2020’) wordt ingetrokken.

Artikel 12 Inwerkingtreding

Deze beleidsregel treedt in werking op de dag na bekendmaking.

Artikel 13 Citeertitel

Deze beleidsregel wordt aangehaald als: “Beleidsregel gebiedsontzegging gemeente Coevorden 2025”.

Coevorden, 26 mei 2025

De Burgemeester van de gemeente Coevorden,

R. Bergsma

Bijlage 1  

 

Een niet uitputtende lijst van strafbare feiten of openbare orde verstorende handelingen zijn opgenomen in bijlage 1. In deze bijlage is aangegeven voor welke feiten een gebiedsontzegging kan worden opgelegd.

 

Bij het opleggen van gebiedsontzeggingen wordt een onderscheid gemaakt tussen lichte en zware feiten. Lichte feiten hebben een (relatief) geringere impact op de openbare orde dan zware feiten. Voor zware feiten geldt geen waarschuwing en geldt dan ook sneller een langere gebiedsontzegging.

 

Hieronder genoemde feiten hoeven niet op straat plaats te vinden, maar er moet wel een relatie zijn met de openbare orde. Zo zullen bedreigingen in een winkel of een horeca-inrichting wel degelijk relevant zijn voor de openbare orde en ten grondslag kunnen liggen aan een gebiedsontzegging. Ook kunnen strafbare feiten die zich afspelen in een voor het publiek toegankelijke inrichting (zoals een café of discotheek) de basis zijn voor een gebiedsontzegging.

 

Feiten

categorie

Artikel

wetsbepaling

Beschrijving wetsbepaling

Tijdvak

Categorie 1

2 weken

2:1 eerste lid APV

Samenscholing en ongeregeldheden

2:26 APV

Ordeverstoring bij evenementen

2:31 APV

Ordeverstoring in een openbare inrichting (horeca)

2:47 eerste lid APV

Hinderlijk gedrag op openbare plaatsen

2:48 eerste lid APV

Verboden drankgebruik op de openbare weg

2:49 APV

Verboden gedrag bij of in gebouwen

2:50 APV

Hinderlijk gedrag in voor publiek toegankelijke ruimten

2:50a APV

Messen en andere voorwerpen als steekwapen gebruiken

2:74 APV

Drugshandel op straat

4:8 APV

Natuurlijke behoefte doen op openbare plaatsen

5:15 eerste lid APV

Ventverbod

5:30 APV

Veiligheid op het water

5:32 APV

Crossterreinen

 

350 Wetboek van Strafrecht (WvSr)

Vernieling of beschadiging

424 WvSr

Baldadigheid

426 WvSr, 453 WvSr

Openbare dronkenschap

461 WvSr

Betreden van plaatsen waarvan de toegang is ontzegd

 

Categorie 2

6 weken

2:78 APV

Het overtreden van de opgelegde gebiedsontzegging

2.74 en 2.74a APV

Drugshandel op straat en Openlijk gebruik van soft- en harddrugs

176 Gemeentewet

Overtreden ge- of verbod noodverordening

131 WvSr

Misdrijven tegen de openbare orde

180 WvSr

Wederspannigheid (zich met geweld verzetten tegen een ambtenaar in functie)

182 WvSr

Wederspannigheid in vereniging

184 WvSr

Belemmeren ambtsbediening

254b en 251 lid 1 onder b, WvSr

Schennis van de eerbaarheid

151 d en 151e WvSr

Afbeelding of voorwerp aanstotelijk voor de eerbaarheid

266 jo. 267 WvSr

Belediging ambtenaar in functie

285 WvSr

Bedreiging

285b WvSr

Stalking

300 WvSr

Eenvoudige mishandeling of vechten

429 WvSr

Afsteken vuurwerk nabij gebouwen met brandgevaar

Categorie 3

12 weken

2:78

Overtreding gebiedsontzegging

172 tweede en derde lid Gemeentewet

Negeren (licht) burgemeestersbevel

175 Gemeentewet

Negeren noodbevel burgemeester

2 en 3 Opiumwet

Hard/soft-drugs in strijd met de Opiumwet en de daarbij behorende lijst kopen, verkopen of aanwezig hebben.

13 eerste lid Wet

Wapens en munitie

Verbodsbepalingen voor categorie I

26 en 27 Wet wapens en munitie

Verbodsbepalingen voorhanden hebben en dragen van wapens en munitie van de categorieën II, III en IV

138 en 138a WvSr

(Poging tot) wederrechtelijk binnendringen/ lokaalvredebreuk/kraken

141 WvSr

Openlijke geweldpleging

242, 243, 247 en 248, 249, 250 WvSr

Zedendelicten

285 WvSr

Bedreiging dan wel openlijke geweldpleging

285b WvSr

Belaging

287 WvSr

(Poging tot) doodslag

300, 301,302 en 303 WvSr

Poging tot) zware mishandeling

306 WvSr

Deelnemen aan aanval

310, 312 WvSr

Diefstal

317, 318 WvSr

Afpersing en afdreiging

321 WvSr

Verduistering

 

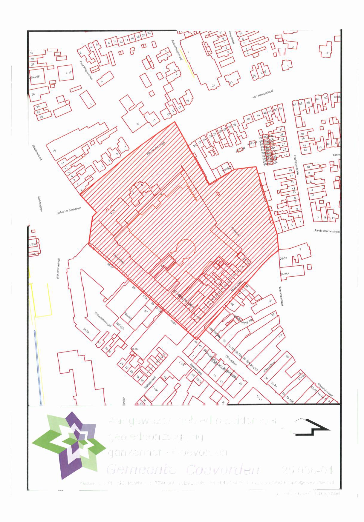
Bijlage 2  

 

DE BURGEMEESTER VAN COEVORDEN

Beleidsregel toepassing gebiedsontzegging

 

Locaties waarvoor een gebiedsontzegging kan gelden:

 

  • A.

    Gebied rondom CBS de Slagkrooie Ringstraat 22 te Schoonoord;

  • B.

    Gebied rondom OBS Burgemeester S.J. van Royen, Sportparklaan 20 te Schoonoord;

  • C.

    Recreatieterrein Kibbelkoele te Noord-Sleen;

  • D.

    Gebied rondom de openbare basisschool ‘Parkschool’;

  • E.

    Centrum Coevorden;

  • F.

    Gebied rondom de middelbare school ‘De Nieuwe Veste’;

  • G.

    Gebied rondom het parkeerterrein ‘Pampert’;

  • H.

    Gebied voor het houden van ‘Ganzenmarkt Coevorden’ die elk jaar plaatsvindt in de periode van 7 t/m 10 november;

  • I.

    Gebied in de wijk Poppenhare;

  • J.

    Gebied rondom het stadspark ‘Van Heutszpark’

  • K.

    Gebied rondom Klinkenvlierseplas

 

 

 

 

 

 

 

 

 

 

Naar boven