Verkeersbesluit, tot inrichten van gehandicaptenparkeerplaats op kenteken nabij Poelenburgplantsoen 11, Heemskerk.

Burgemeester en wethouders hebben op 5 juni 2025 besloten om:

 

Overwegende:

  • dat het Poelenburgplantsoen een voor het openbaar verkeer openstaande weg is die bij de gemeente in beheer is;

  • dat een bewoner van het poelenburgplantsoen 11 te Heemskerk, bij ons een aanvraag heeft ingediend voor een gehandicaptenparkeerplaats;

  • dat wij op 3 september 2019 beleidsregels hebben vastgesteld die van toepassing zijn op aanvragen voor een gehandicaptenparkeerplaats en dat deze beleidsregels op 12 september 2019 in nieuwsblad “De Kennemer” zijn gepubliceerd;

  • dat wij voor de exacte inhoud van deze beleidsregels dan ook naar ons bovenvermeld besluit verwijzen;

  • dat in ons besluit van 3 september 2019 is bepaald dat iemand voor een gehandicaptenparkeerplaats als bestuurder in aanmerking komt als de aanvrager in het bezit is van een geldige gehandicaptenparkeerkaart als bestuurder die voor een termijn van vijf jaar is verleend;

  • dat deze bewoner in het bezit is van een geldige gehandicaptenparkeerkaart als bestuurder die voor een termijn van vijf jaar is verleend zodat voor deze bewoner een gehandicaptenparkeerplaats kan worden gereserveerd;

  • dat aanwijzing van de betreffende gehandicaptenparkeerplaats is geschied in overleg met de aanvra(a)g(st)er;

  • Over dit besluit is overleg gevoerd met de door de korpschef van de Nationale Politie daartoe gemandateerde van de politie;

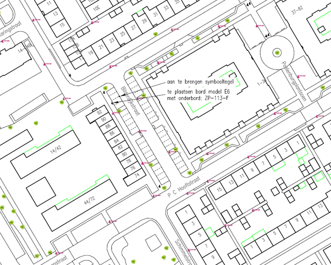
  • dat de parkeerplaats wordt voorzien van een symbooltegel in het parkeervak;

  • gelet op de Wegenverkeerswet 1994, het Reglement verkeersregels en verkeerstekens 1990

  • (RVV 1990) en het Besluit administratieve bepalingen inzake het wegverkeer.

 

BESLUITEN

  • 1.

    door het plaatsen van een bord volgens model E6 van bijlage 1 van het RVV 1990, met onderbord met kentekenaanduiding voor het daarbij behorende voertuig van de aanvrager, voor de woning aan het Poelenburgplantsoen, zoals is aangegeven op de bijbehorende tekening, ten behoeve van de aanvra(a)g(st)er, nabij Poelenburgplantsoen 11, een gehandicaptenparkeerplaats in te richten;

  • 2.

    dat bekendmaking van het verkeersbesluit geschiedt door toezending van dit besluit aan de aanvrager en door publicatie van dit besluit in het digitale gemeenteblad;

 

Laat het ons op tijd weten als u het met dit besluit niet eens bent.

Als u als belanghebbende het niet eens bent met dit besluit kunt u een brief schrijven aan burgemeester en wethouders. Dit noemen wij een bezwaarschrift. Dit bezwaarschrift moet u binnen zes weken na verzending van dit besluit indienen. Noem in het bezwaarschrift in ieder geval:

  • Uw naam, adres en telefoonnummer;

  • De datum waarop u het bezwaarschrift schrijft;

  • Een omschrijving van het besluit waar het niet mee eens bent. U kunt ook een kopie van het besluit meesturen;

  • De redenen waarom u bezwaar maakt;

  • Uw handtekening.

Het bezwaarschrift stuurt u naar Postbus 1, 1960 AA Heemskerk.

Heeft u een DigiD-inlogcode? Maak dan online bezwaar. Dit doet u via www.heemskerk.nl. U kunt uw bezwaar niet mailen.

Als u niet kunt wachten tot uw bezwaarschrift is behandeld omdat uw zaak spoedeisend is, kunt u een voorlopige voorziening aanvragen bij de voorzieningenrechter van de Rechtbank Noord-Holland, locatie Haarlem, Postbus 1621, 2003 BR Haarlem.

Heeft u een DigiD-inlogcode dan kan het ook online via http://loket.rechtspraak.nl/bestuursrecht.

 

Nadere inlichtingen: telefoonnummer 14 0251.

Naar boven