Besluit van de projectmanager van het team projectmanagement houdende de wijziging van de vaststelling Inrittenkaart Warande, Deelgebied 1, Deelplan 3, De Elzen (vaststelling inrittenkaarten Warande)

De projectmanager

 

Overwegende

 

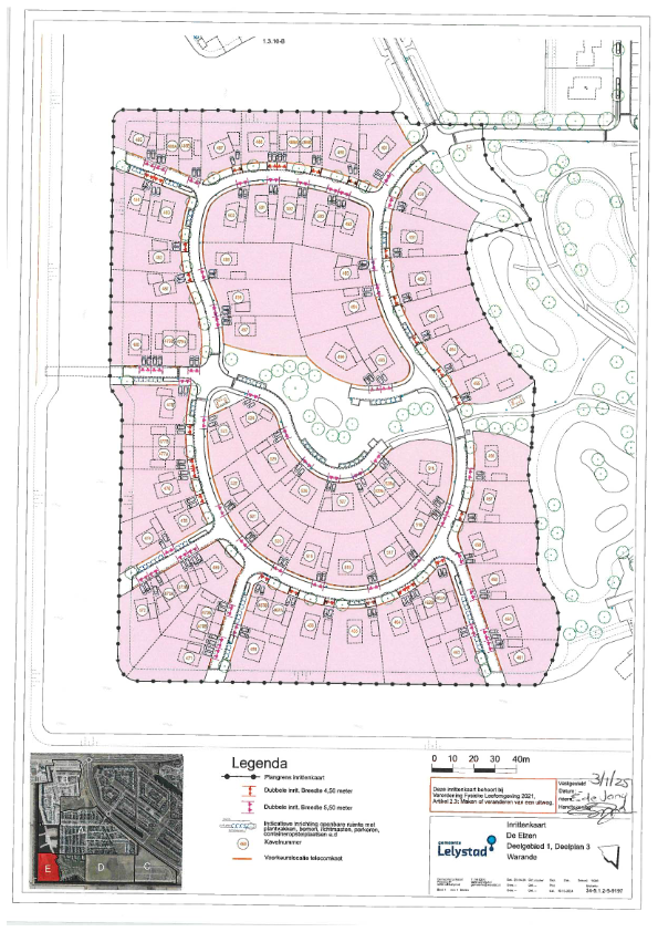
De inrittenkaart voor het 1e deelgebied van Warande zijn gemaakt dan wel aangepast n.a.v. de gerealiseerde inritten en vastgestelde terreininrichtingstekeningen in het gebied en de woonomgevingsplannen voor de gebieden waar deels nog niet gebouwd is, zoals De Elzen, en de inrittenkaarten zijn daarmee tevens het toetsingskader voor nieuwe inritten.

 

Bij nieuwbouwplannen is het de praktijk dat de plaats van de uitwegen op privaatrechtelijke wijze wordt vastgesteld via de bij gronduitgifte overeenkomst behorende inrittenkaart. De kopers leggen hiermee vast dat ze akkoord gaan met de plaats van de uitweg(en). Vervolgens legt de gemeente op grond van de inrittenkaart de uitweg(en) op het openbaar gebied na de bouw c.q. realisatie van het plan aan.

 

De plek van een uitweg wordt vooraf vastgelegd om te voorkomen dat de openbare inrichting (bomen, verlichting) hierop aangepast hoeft te worden. Bij het indienen van een vergunningsaanvraag voor de woning wordt de plek van de uitweg op de situatietekening aangegeven. Als de uitweg voldoet aan de vastgestelde inrittenkaart hoeft hiervoor geen aparte melding meer gedaan te worden.

 

Op 8 juli 2021 is de gewijzigde APV en de Verordening voor de Fysieke Leefomgeving in werking getreden. Op grond van de Verordening fysieke leefomgeving heeft het college mandaat gekregen om inrittenkaarten vast te stellen. Deze bevoegdheid is tevens gemandateerd aan de projectmanager, team projectmanagement. Daarmee kan er bij de vergunningverlening aan de aangepaste inrittenkaarten getoetst worden voor de uitweg.

 

Op grond van de APV heeft de gemeente een inrittenstelsel en op grond hiervan is een inrit vergunningsvrij als aan de vastgestelde inrittenkaart wordt voldaan.

 

BESLUIT:

 

Gelet op de mandaatregeling gemeente Lelystad 2022 nummer 57 en artikel 2.3 lid 7 en lid 8 Verordening fysieke leefomgeving Lelystad 2021

 

De navolgende inrittenkaart Warande, Deelgebied 1, Deelplan 3, De Elzen met datum 10 december 2024 vast te stellen en eerdere versies hiermee te vervangen.

Artikel 1 inrittenkaarten

De navolgende inrittenkaart wordt vastgesteld:

Inrittenkaart Deelgebied 1, Deelplan 3, De Elzen van 10 december 2024.

Artikel 2 Inwerkingtreding

  • 1.

    Inrittenkaart Deelgebied 1, Deelplan 3, De Elzen van 10 december 2024 treedt in werking op de dag nadat deze bekend is gemaakt.

  • 2.

    Inrittenkaart Deelgebied 1, Deelplan 3, De Elzen van eerdere datum worden ingetrokken met ingang van de datum van inwerkingtreding van de nieuwe inrittenkaart.

  • 3.

    Aanvragen die voorafgaand aan de inwerkingtreding van deze inrittenkaart zijn ingediend worden beoordeeld op grond van de inrittenkaarten die daarvoor waren vastgesteld.

Lelystad, 3 januari 2025

Projectmanager Warande, team projectmanagement

Programmamanager gebiedsontwikkeling Zuiderhage, team RSO

Ellen de Jong

Naar boven