Gemeenteblad van Hilversum
| Datum publicatie | Organisatie | Jaargang en nummer | Rubriek | Datum ondertekening |
|---|---|---|---|---|
| Hilversum | Gemeenteblad 2025, 224516 | ruimtelijk plan of omgevingsdocument |
Zoals vergunningen, bouwplannen en lokale regelgeving.
Adressen en contactpersonen van overheidsorganisaties.
U bent hier:
| Datum publicatie | Organisatie | Jaargang en nummer | Rubriek | Datum ondertekening |
|---|---|---|---|---|
| Hilversum | Gemeenteblad 2025, 224516 | ruimtelijk plan of omgevingsdocument |
Deze publicatie bevat verschilmarkering t.o.v. eerdere regelingtekst. Tekst en afbeeldingen die worden toegevoegd zijn onderstreept en groen gemarkeerd, of van een groen kader voorzien. Tekst en afbeeldingen die worden verwijderd zijn doorgestreept en rood gemarkeerd, of van een rood kader voorzien.
De publicatie wordt standaard getoond met verschilmarkering. Door te kiezen voor ‘Was’ of ‘Wordt’ kunt u de voormalige of vernieuwde tekst op zichzelf bekijken.
Toon versie van document
Dit document bevat verschilmarkering t.o.v. eerdere regelingtekst.
Tekst en afbeeldingen die worden toegevoegd zijn onderstreept en groen gemarkeerd, of van een groen kader voorzien. Tekst en afbeeldingen die worden verwijderd zijn doorgestreept en rood gemarkeerd, of van een rood kader voorzien.
De gemeenteraad van Gemeente Hilversum
gelezen de tekstinhoud van ”Omgevingsplan gemeente Hilversum” d.d. 25 maart 2025 met zaaknummer 1716074
Besluit;
de wijziging van "Omgevingsplan gemeente Hilversum" voor project Bruisend Hart opgenomen in Bijlage A vast te stellen en bekend te maken;
de Nota van beantwoording zienswijzen vast te stellen en de indieners van zienswijzen hierover in kennis te stellen;
Met dit besluit vervallen onderliggende planbepalingen als bedoeld in artikel 4.6 van de Invoeringswet Omgevingswet uit het tijdelijke omgevingsplan binnen de hierna volgende 'pons': /join/id/regdata/gm0402/2025/164852e2f4a54bda88e55157bef8d267/nld@2025‑05‑20;07431160
Dit besluit treedt in werking met ingang van de dag waarop vier weken zijn verstreken sinds de dag waarop het besluit bekend gemaakt is.
A
Het Lichaam wordt op de aangegeven wijze gewijzigd:
[Red: Artikel 1.1 verplaatst van hoofdstuk 1 naar hoofdstuk 1. ]
Begripsbepalingen die, op de dag van de inwerkingtreding van de Omgevingswet, zijn opgenomen in de bijlage bij de Omgevingswet en in bijlage I bij het Besluit activiteiten leefomgeving, bijlage I bij het Besluit bouwwerken leefomgeving, bijlage I bij het Besluit kwaliteit leefomgeving, bijlage I bij het Omgevingsbesluit en bijlage I bij de Omgevingsregeling, zijn van toepassing op hoofdstuk 6 en 22 van dit omgevingsplan.
Bijlage III bij dit omgevingsplan bevat begripsbepalingen voor de toepassing van hoofdstuk 6 en 22 van dit omgevingsplan.
Dit hoofdstuk is van toepassing binnen de locatie ontwikkelgebieden.
Deze titel gaat over de algemene bepalingen voor hoofdstuk 6.
De begripsbepalingen van de Omgevingswet, artikel 1.1 van het Omgevingsbesluit, artikel 1.1 van het Besluit kwaliteit leefomgeving, artikel 1.1 van het Besluit activiteiten leefomgeving, artikel 1.1 van het Besluit bouwwerken leefomgeving en artikel 1.1 van de Omgevingsregeling, zijn van overeenkomstige toepassing op dit hoofdstuk, tenzij een begrip in bijlage II afwijkend is gedefinieerd.
In aanvulling op artikel 6.2 bevat bijlage II begripsbepalingen voor de toepassing van dit hoofdstuk van het omgevingsplan.
Bij het bouwen van bouwwerken wordt voor dit hoofdstuk op de volgende wijze gemeten, tenzij anders bepaald elders in dit hoofdstuk:
dakhelling: langs het dakvlak ten opzichte van het horizontale vlak;
goothoogte van een bouwwerk: vanaf het peil tot aan de bovenkant van de goot, c.q. de druiplijn, het boeibord, of een daarmee gelijk te stellen constructiedeel;
inhoud van een bouwwerk: tussen de onderzijde van de begane grondvloer, de buitenzijde van de gevel (en/of het hart van de scheidingsmuren) en de buitenzijde van daken en dakkapellen;
breedte van een bouwwerk: tussen de buitenwerkse gevelvlakken van de zijgevels en/of de harten van zijdelingse gemeenschappelijke scheidsmuren;
bouwhoogte van een bouwwerk: vanaf het peil tot aan het hoogste punt van een gebouw of een bouwwerk, geen gebouw zijnde, met uitzondering van ondergeschikte bouwonderdelen, zoals schoorstenen, liftschachten, glazenwasinstallaties en naar de aard daarmee gelijk te stellen bouwonderdelen;
oppervlakte van een bouwwerk: tussen de buitenwerkse gevelvlakken en/of het hart van de scheidingsmuren, neerwaarts geprojecteerd op het gemiddelde niveau van het afgewerkte bouwterrein ter plaatse van het bouwwerk;
peil:
voor gebouwen, waarvan de hoofdtoegang onmiddellijk aan een weg, langzaamverkeersroute of voetpad grenst: de hoogte van die weg, langzaamverkeersroute of voetpad ter plaatse van de hoofdtoegang;
in alle andere gevallen en bij bouwwerken, geen gebouwen zijnde: de gemiddelde hoogte van het aangrenzende maaiveld.
verticale diepte van een gebouw: vanaf het peil tot aan het laagste punt van het gebouw;
horizontale diepte van een gebouw: tussen de buitenwerkse gevelvlakken van de voor- en achtergevel van een gebouw.
Deze titel gaat over activiteiten binnen het werkingsgebied Bruisend Hart.
De regels in deze titel zijn gesteld met het oog op:
het beschermen van landschappelijke, archeologische en stedenbouwkundige waarden;
het beschermen van de architectonische kwaliteit van bouwwerken;
het beschermen van het woon- en leefklimaat;
het beschermen van de gezondheid;
het waarborgen van de veiligheid;
het waar mogelijk voorkomen van hinder en overlast.
Artikel 6.7 Relatie bruidsschat hoofdstuk 22
De artikelen uit hoofdstuk 22 zijn van overeenkomstige toepassing binnen het werkingsgebied Bruisend Hart, tenzij:
In ieder geval geldt dat artikel 22.27 en artikel 22.36 niet van toepassing zijn binnen het werkingsgebied Bruisend Hart.
Deze subparagraaf is van toepassing op het bouwen van een gebouw of wijzigen van het gebruik waarvoor op grond van deze titel een omgevingsvergunning is vereist.
Artikel 6.9 Voldoende parkeergelegenheid
Bij een gebouw wordt in de juiste mate ruimte aangebracht in, op of onder dat gebouw dan wel op of onder het onbebouwde terrein dat bij dat gebouw behoort ten behoeve van het parkeren en stallen van auto’s.
Een omgevingsvergunning voor het bouwen van een gebouw of wijzigen van het gebruik waarvoor op grond van dit omgevingsplan een omgevingsvergunning is vereist wordt uitsluitend verleend, mits wordt voldaan aan het eerste lid, met dien verstande dat de in het eerste lid bedoelde ruimten voor het parkeren van auto’s afmetingen hebben die zijn afgestemd op gangbare personenauto’s.
Bij de toets of voldaan wordt aan het eerste lid wordt nadere invulling gegeven op basis van de beleidsregel 'Parkeerbeleid Hilversum 2023 Hilversum' of de rechtsopvolgers daarvan, met dien verstande dat indien voornoemde beleidsregel wordt gewijzigd, rekening wordt gehouden met die wijziging.
Het bevoegd gezag past het beleid als bedoeld in het derde lid toe zoals deze geldt op het moment van indiening van de aanvraag om omgevingsvergunning.
Artikel 6.10 Toepassingsbereik
Deze subparagraaf is van toepassing op het aanvangen, wijzigen of intensiveren van een activiteit waarvoor op grond van deze titel een omgevingsvergunning is vereist.
Bij een gebouw wordt voorzien in voldoende ruimte voor laden en lossen van goederen aan, in of onder dat gebouw, dan wel op of onder het onbebouwde terrein dat bij dat gebouw hoort.
Een omgevingsvergunning voor het aanvangen, wijzigen of intensiveren van een activiteit wordt uitsluitend verleend, mits wordt voldaan aan het eerste lid.
Artikel 6.12 Toepassingsbereik
De locatie interferentiegebied Bruisend Hart wordt aangewezen als interferentiegebied zoals bedoeld in artikel 22.260.
Artikel 6.13 Aanvullende beoordelingsregel
Een omgevingsvergunning zoals bedoeld in 22.260 wordt binnen de locatie interferentiegebied Bruisend Hart alleen verleend als in aanvulling op 22.260 derde lid sprake is van een evenwichtige bodemenergiesituatie.
Of sprake is van een evenwichtige bodemenergiesituatie wordt beoordeeld met behulp van de beleidsregel 'Bodemenergieplan Hilversum Centrum en Oost' of de rechtsopvolgers daarvan, met dien verstande dat indien voornoemde beleidsregel wordt gewijzigd, rekening wordt gehouden met die wijziging.
Artikel 6.14 Toepassingsbereik
Deze paragraaf is van toepassing op de sociale huurwoningen, middenhuurwoningen en sociale koopwoningen en de doelgroepen hiervan.
Artikel 6.15 Woningbouwcategorieën
Voor de woningbouwcategorieën gelden de volgende huur- en koopprijsgrenzen:
sociale huurwoningen: sociale huurwoningen conform artikel 5.161c eerste lid sub a van het Besluit kwaliteit leefomgeving;
middenhuurwoningen: middenhuurwoningen conform artikel 5.161c eerste lid sub c van het Besluit kwaliteit leefomgeving;
sociale koopwoningen: koopwoningen conform artikel 5.161c eerste lid sub b van het Besluit kwaliteit leefomgeving.
Als doelgroep voor sociale huurwoningen als bedoeld in art. 6.15, eerste lid, sub a, worden aangemerkt, huishoudens met een maximaal inkomen tot de toelatingsgrens voor sociale huurwoningen (DAEB-norm).
Als doelgroep voor middenhuurwoningen en voor sociale koopwoningen, als bedoeld in art. 6.15 sub b en c, worden aangemerkt huishoudens met een maximaal inkomen als genoemd in artikel 10 vierde lid van de Huisvestingswet 2014;
In aanvulling op de definiëring van de doelgroepen naar inkomen kan het college in overleg met de ontwikkelaar/belegger bepalen dat de woningen in een bepaald project bij voorrang worden aangeboden aan huishoudens met (lokale en/of regionale) binding en/of bij voorrang aan huishoudens met maatschappelijke beroepen (zoals zorg en onderwijs) en/of aan ouderen met een AOW-gerechtigde leeftijd en/of een sociale huurwoning achterlaten.
Artikel 6.17 Instandhoudingstermijn
De sociale huurwoningen, zoals bedoeld in artikel 6.15, sub a, dienen gedurende een termijn van tenminste 25 jaar na de eerste ingebruikname voor de doelgroep zoals bedoeld in artikel 6.16 beschikbaar te blijven.
De middenhuurwoningen, zoals bedoeld in artikel 6.15, sub b, dienen gedurende een termijn van tenminste 25 jaar na de eerste ingebruikname voor de doelgroep zoals bedoeld in artikel 6.16 beschikbaar te blijven.
De sociale koopwoningen, zoals bedoeld in artikel 6.15, sub c, dienen gedurende een termijn van minimaal 3 jaar na de eerste ingebruikname voor de doelgroep zoals bedoeld in artikel 6.16 beschikbaar te blijven.
De regels in deze afdeling zijn gesteld met het oog op:
het beschermen van een goed woon- en leefklimaat;
het beschermen van de gezondheid;
het beschermen van het milieu;
het bieden van voldoende en gevarieerd aanbod aan woonruimte;
het beschermen, behoud, herstel en ontwikkelen van stedenbouwkundige waarden;
het beschermen, behoud, herstel en ontwikkelen van de architectonische kwaliteit van bouwwerken;
het tot stand brengen en beschermen van een duurzame leefomgeving;
het waarborgen van de veiligheid.
Artikel 6.20 Afwijkende bepaling wijze van meten
In afwijking van het bepaalde in artikel 6.4 onder g. wordt in deze Afdeling het volgende onder peil verstaan: de kruin van de aanliggende weg.
Artikel 6.21 Antidubbeltelbepaling
Bij het beoordelen van een nieuw bouwplan wordt grond waarop eerder een bouwplan is toegestaan waar wel of nog geen uitvoering aan is gegeven niet meegenomen in de overweging.
Artikel 6.22 Overgangsrecht bouwwerken
Een bouwwerk dat op het tijdstip van inwerkingtreding van het vaststellingsbesluit van de wijziging van het omgevingsplan ten behoeve van deze titel aanwezig of in uitvoering is, dan wel gebouwd kan worden krachtens een omgevingsvergunning voor het bouwen, en afwijkt van het bepaalde in dit hoofdstuk van het omgevingsplan, mag, mits deze afwijking naar aard en omvang niet wordt vergroot:
Het eerste lid is niet van toepassing op bouwwerken die weliswaar bestaan op het tijdstip van inwerkingtreding van het vaststellingsbesluit van de wijziging van het omgevingsplan ten behoeve van de titel, maar zijn gebouwd zonder vergunning en in strijd met de regels die op grond van dit omgevingsplan golden direct voorafgaand aan de inwerkingtreding van deze titel, daaronder begrepen de op dat moment geldende overgangsbepalingen.
Artikel 6.23 Voorrangsbepaling vergunningplicht bouwactiviteit
In afwijking van het bepaalde in artikel 22.26 gelden voor bouwactiviteiten op de locatie Bruisend Hart de vergunningplichten zoals opgenomen in deze afdeling.
Artikel 6.24 Toepassingsbereik
Deze subparagraaf gaat over het bouwen van een ondergronds gebouw ten behoeve van een ondergrondse verbinding bij het spoor.
Artikel 6.25 Aanwijzing vergunningplichtige gevallen
Het is verboden zonder omgevingsvergunning een ondergronds gebouw te bouwen.
Artikel 6.26 Beoordelingsregels
De omgevingsvergunning voor een ondergronds gebouw bouwen wordt alleen verleend als aan alle voorwaarden wordt voldaan van dit artikel.
Het ondergrondse gebouw bestaat uit maximaal één ondergrondse bouwlaag.
Het ondergrondse gebouw, als bedoeld in het tweede lid, dient als ondergrondse fietsverbinding voor het spoor.
Er ontstaan geen onevenredige nadelige effecten voor de gebruiksmogelijkheden van de aangrenzende gronden en bouwwerken.
Artikel 6.27 Toepassingsbereik
Deze subparagraaf gaat over het bouwen van een gebouw binnen de locatie bebouwingsgebied Bruisend Hart.
Artikel 6.28 Aanwijzing vergunningplichtige gevallen - gebouw bouwen
Het is verboden zonder omgevingsvergunning:
Artikel 6.29 Beoordelingsregels gebouw bouwen - verbinding
De omgevingsvergunning voor gebouwen in de vorm van een verbinding als bedoeld in artikel 6.28 wordt alleen verleend als aan de voorwaarden uit alle leden van dit artikel wordt voldaan.
Binnen de locatie verbinding Bruisend Hart is uitsluitend een bovengronds gebouw toegestaan.
De bouwhoogte is niet hoger dan de maximale bouwhoogte zoals aangegeven op de locatie maximale bouwhoogte.
Dit gebouw dient enkel als verbinding van en naar het stationsgebouw.
Artikel 6.30 Beoordelingsregels gebouw bouwen - parkeergarage
De omgevingsvergunning voor een gebouw in de vorm van een parkeergarage bouwen als bedoeld in artikel 6.28 wordt alleen verleend als aan de voorwaarden uit alle leden van dit artikel wordt voldaan.
Een parkeergarage binnen de locatie parkeergarage Bruisend Hart is uitsluitend ondergronds toegestaan, waarbij een maximum van 2.200 m² bvo geldt.
Artikel 6.31 Beoordelingsregels gebouw bouwen – overige gebouwen
De omgevingsvergunning voor overige gebouwen als bedoeld in artikel 6.28 wordt alleen verleend als aan de voorwaarden uit alle leden van dit artikel wordt voldaan.
Binnen de locatie Blok C binnenterrein mag maximaal 1.000 m2 bovengronds worden bebouwd.
De bouwhoogte is niet lager dan de minimale bouwhoogte zoals aangegeven op de locatie minimale bouwhoogte.
De bouwhoogte is niet hoger dan de maximale bouwhoogte zoals aangegeven op de locatie maximale bouwhoogte.
De goothoogte is niet hoger dan de maximale goothoogte zoals aangegeven op de locatie maximale goothoogte.
In afwijking van het derde en vierde lid geldt op de locatie Blok A voor een oppervlak van minimaal 300 m2 tot maximaal 600 m2 een maximale bouwhoogte van 6 m.
In afwijking van het vierde en vijfde lid geldt op de locatie hoogteaccent Bruisend Hart voor een oppervlak van maximaal 400 m2 een maximale bouw- en goothoogte van 25 m.
In afwijking van het vierde en vijfde lid geldt op de locatie Blok A torentje voor een oppervlak van maximaal 4 m2 een maximale bouw- en goothoogte van 24 m.
In afwijking van het vierde en vijfde lid geldt op de locatie Blok C straatgevel voor een oppervlak van maximaal 40 m2 een maximale bouw- en goothoogte van 14 m.
Het aantal bouwlagen, gemeten vanaf het peil, bedraagt niet meer dan aangegeven op de locatie maximum aantal bouwlagen.
Binnen de locatie ondergronds bouwen Bruisend Hart zijn ondergrondse gebouwen alleen toegestaan tot maximaal één ondergrondse bouwlaag.
Artikel 6.32 Aanvullende beoordelingsregels - woningen
In aanvulling op de beoordelingsregels uit artikel 6.31 geldt voor de locatie Blok A en B een maximum van 80 nieuwe woningen met een gezamenlijke omvang van maximaal 5.930 m² bvo.
In aanvulling op de beoordelingsregels uit artikel 6.31 geldt voor de locatie Blok C een maximum van 70 nieuwe woningen worden gebouwd met een gezamenlijke omvang van maximaal 5.520 m² bvo.
In aanvulling op de beoordelingsregels uit artikel 6.31 geldt voor de locatie woning bestaand Bruisend Hart dat het eerste en tweede lid niet van toepassing is en dat de omvang van deze woning gelijk is aan de bestaande omvang.
In aanvulling op de beoordelingsregels uit artikel 6.31 geldt dat:
van het totaal aantal woningen, zoals genoemd in het eerste en tweede lid tezamen dient niet minder dan 33% te worden gebouwd als sociale huurwoningen;
van het totaal aantal woningen, zoals genoemd in het eerste en tweede lid tezamen dient niet minder dan 50% te worden gebouwd als middenhuurwoningen en sociale koopwoningen.
van het genoemde percentage onder sub b. mag maximaal de helft als sociale koopwoningen worden gerealiseerd.
Artikel 6.33 Aanvullende beoordelingsregels - geluidgevoelig gebouw bouwen
Een omgevingsvergunning voor het bouwen van een geluidgevoelig gebouw wordt verleend als de standaardwaarde, zoals bedoeld in artikel 5.78t van het Besluit kwaliteit leefomgeving niet wordt overschreden.
Een omgevingsvergunning voor het bouwen van een geluidgevoelig gebouw wordt, in afwijking van het bepaalde in het eerste lid, ook verleend als:
Geluidbeperkende maatregelen als bedoeld in het tweede lid worden in onderstaande volgorde afgewogen:
Geluidbeperkende maatregelen als bedoeld in het tweede lid worden in aanmerking genomen als die financieel doelmatig zijn en daartegen geen overwegende bezwaren van stedenbouwkundige, verkeerskundige, vervoerskundige, landschappelijke of technische aard bestaan.
Als de standaardwaarde zoals bedoeld in artikel 5.78t van het Besluit kwaliteit leefomgeving, al dan niet na het treffen van geluidbeperkende maatregelen, wordt overschreden, wordt een omgevingsvergunning voor het bouwen van een geluidgevoelig gebouw alleen verleend als het geluidgevoelig gebouw beschikt over:
ten minste één geluidluwe zijde;
buitenruimten niet mogen worden gesitueerd aan de zijde met de hoogste geluidbelasting, tenzij deze zijde ook een geluidluwe zijde betreft;
indien er sprake is van een of meer buitenruimten bij een gestapeld geluidgevoelig gebouw mogen buitenruimten aan de hoogst geluidbelaste gevel worden gesitueerd mits aan de gevel aanvullende bouwkundige maatregelen zijn getroffen zoals een (deels) afsluitbare buitenruimte in de vorm van bijvoorbeeld een loggia of een afsluitbaar balkon en de geluidbelasting op de thermische schil voldoet aan de standaardwaarden.
In afwijking van het vijfde lid wordt een omgevingsvergunning ook verleend als het geluidgevoelig gebouw niet beschikt over ten minste één geluidluwe zijde , indien:
gemotiveerd kan worden dat het redelijkerwijs niet mogelijk is om maatregelen te treffen om de geluidbelasting te verlagen, vanwege overwegende bezwaren van stedenbouwkundige, verkeerskundige, vervoerskundige, landschappelijke of technische aard;
de geluidbelasting op één zijde van het gebouw de standaardwaarde zoals bedoeld in artikel 5.78t van het Besluit kwaliteit leefomgeving met maximaal 5 dB overschrijdt;
er ondanks het ontbreken van een geluidluwe zijde sprake is van een aanvaardbaar woon- en leefklimaat, waarbij ten minste dient te worden betrokken of in de omgeving van het geluidgevoelig object sprake is van een geluidluwe buitenruimte, een stil park, ander groen op loopafstand of andere kwaliteiten van de woning en/of de nabije woonomgeving;
indien er sprake is van een of meer buitenruimten bij grondgebonden woningen dient minimaal één buitenruimte aan de zijde met de laagste geluidbelasting te worden gesitueerd; en
in aanvulling op sub d. geldt dat overige buitenruimten niet mogen worden gesitueerd aan de zijde met de hoogste geluidbelasting;
indien er sprake is van een of meer buitenruimten bij een gestapeld geluidgevoelig gebouw mogen buitenruimten aan de hoogst geluidbelaste gevel worden gesitueerd mits aan de gevel aanvullende bouwkundige maatregelen zijn getroffen zoals een (deels) afsluitbare buitenruimte in de vorm van bijvoorbeeld een loggia of een afsluitbaar balkon en de geluidbelasting op de thermische schil voldoet aan de standaardwaarden.
Artikel 6.34 Aanvullende beoordelingsregels - natuurinclusief bouwen
In aanvulling op het bepaalde in artikel 6.29 tot en met 6.32 wordt de omgevingsvergunning voor bouwen met een omvang vanaf 30 m³ alleen verleend als tenminste het aantal ecopunten in de bebouwing wordt gerealiseerd en in stand gehouden zoals opgenomen in de beleidsregel 'Leidraad Natuurinclusief Bouwen, Hilversum 2021' of de rechtsopvolgers daarvan, met dien verstande dat indien voornoemde beleidsregel wordt gewijzigd, rekening wordt gehouden met die wijziging.
De omgevingsvergunning voor bouwen met een omvang van tenminste 1.500 m³, kan in afwijking lid 1, worden verleend als een 'Realisatieplan Natuurinclusief bouwen en inrichten' wordt ingediend conform de eisen uit de beleidsregel 'Leidraad Natuurinclusief Bouwen, Hilversum 2021' of de rechtsopvolgers daarvan, met dien verstande dat indien voornoemde beleidsregel wordt gewijzigd, rekening wordt gehouden met die wijziging. Uit dit 'Realisatieplan natuurinclusief bouwen en inrichten' moet blijken welke maatregelen in het kader van het natuurinclusief bouwen en inrichten worden genomen, hoe wordt geborgd dat deze maatregelen uiterlijk binnen 2 jaar na de start van de bouw zijn gerealiseerd en hoe deze maatregelen duurzaam, ten minste 30 jaar, in stand worden gehouden en beheerd een en ander ter beoordeling aan het bevoegd gezag.
Artikel 6.35 Aanvullende beoordelingsregels - ruimtelijke kwaliteit
In aanvulling op het bepaalde in artikel 6.29 tot en met 6.31 wordt de omgevingsvergunning voor bouwen van een bouwwerk alleen verleend indien aan alle leden van dit artikel wordt voldaan.
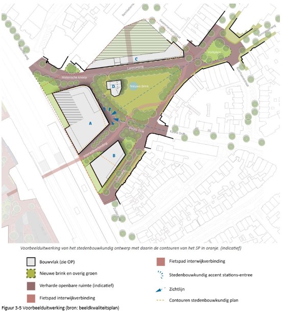
Het gebouw voldoet aan de eisen van ruimtelijke kwaliteit voor het Bruisend Hart, zoals opgenomen in de beleidsregel 'Beeldkwaliteitsplan Bruisend Hart'.
Het bepaalde in het tweede lid geldt niet voor tijdelijke bouwwerken.
Het bevoegd gezag wint voorafgaand aan het verlenen van de omgevingsvergunning voor het bouwen van een bouwwerk schriftelijk advies in bij de Commissie Ruimtelijke Kwaliteit en Monumenten.
Artikel 6.36 Aanvullende beoordelingsregels - hemelwaterinfiltratie
In aanvulling op het bepaalde in artikel 6.29 tot en met 6.31 wordt de omgevingsvergunning voor bouwen van een bouwwerk alleen verleend indien aan alle leden van dit artikel wordt voldaan.
Het bouwen van gebouwen is alleen toegestaan indien dit hydrologisch neutraal geschiedt doordat er wordt voorzien in afdoende (infiltratie)voorzieningen en waterberging om regenwater op te vangen.
Of wordt voldaan aan de eisen van hydrologisch neutraal bouwen, als bedoeld in het tweede lid, wordt beoordeeld aan de hand van de beleidsregel 'Gemeentelijk Watermanagementplan 2021-2026' of de rechtsopvolgers daarvan, met dien verstande dat indien voornoemde beleidsregel wordt gewijzigd, rekening wordt gehouden met die wijziging.
Artikel 6.37 Aanvullende beoordelingsregels - voorzieningen
In aanvulling op het bepaalde in artikel 6.29 tot en met 6.31 wordt de omgevingsvergunning voor bouwen van een bouwwerk alleen verleend indien aan alle leden van dit artikel wordt voldaan.
Voorzieningen ten behoeve van het gebruik van het te bouwen bouwwerk dienen uitsluitend inpandig te worden gerealiseerd.
Onder voorzieningen als bedoeld in het tweede lid wordt in ieder geval verstaan:
Artikel 6.38 Afwijkende beoordelingsregels - gebouw bouwen
In afwijking van artikelen 6.29 tot en met 6.31 wordt de omgevingsvergunning ook verleend voor het bouwen van een gebouw ten behoeve van de overschrijding van grenzen van de locatie bebouwingsgebied Bruisend Hart door balkons of daarmee gelijk gestelde bouwdelen indien:
de overschrijding maximaal 1,2 m bedraagt;
het stedenbouwkundig beeld niet onevenredig wordt aangetast;
de verkeersveiligheid niet wordt aangetast;
er sprake is van een goed woon- en leefklimaat; en
er geen onevenredige nadelige effecten ontstaan voor de gebruiksmogelijkheden van de aangrenzende gronden en bouwwerken.
Artikel 6.39 Vergunningvoorschriften - gebouw bouwen
Aan de omgevingsvergunning kunnen voorschriften worden verbonden in verband met de werkelijke toestand van het terrein of uit een oogpunt van doelmatig gebruik van gronden en/of bebouwing mits:
Artikel 6.40 Vergunningvoorschriften - geluidgevoelig gebouw bouwen
Aan de omgevingsvergunning voor het bouwen van een geluidgevoelig gebouw wordt ten behoeve van de toetsing op grond van artikel 4.103 van het Besluit bouwwerken leefomgeving, een voorschrift verbonden waarin het gezamenlijke geluid is bepaald.
Artikel 6.41 Aanvullende aanvraagvereisten
Bij een aanvraag van een omgevingsvergunning waarbij sprake is van het bouwen van een geluidgevoelig gebouw zoals bedoeld in artikel 6.33 dient aanvullend de volgende gegevens en bescheiden te worden verstrekt:
een akoestisch onderzoek naar het gezamenlijk geluid op de gevel(s) van het geluidgevoelig gebouw;
een akoestisch onderzoek naar de geluidbelasting van wegverkeerslawaai en spoorweglawaai; en
als blijkt dat de standaardwaarde zoals bedoeld in artikel 5.78t van het Besluit kwaliteit leefomgeving wordt overschreden, ook een onderzoek naar geluidbeperkende maatregelen.
Bij de aanvraag van een omgevingsvergunning, waarbij sprake is van het bouwen met een omvang zoals genoemd in artikel 6.34 dient aanvullend een realisatieplan 'Natuurinclusief bouwen en inrichten' te worden ingediend.
Artikel 6.42 Toepassingsbereik
Deze subparagraaf gaat over het bouwen of verbouwen van een gebouw binnen de locatie bebouwingsgebied bestaand Bruisend Hart.
Artikel 6.43 Aanwijzing vergunningplichtige gevallen gebouw bouwen - bestaand gebouw
Het is verboden zonder omgevingsvergunning een nieuw gebouw te bouwen of het bestaande gebouw te veranderen of te vergroten.
Artikel 6.44 Beoordelingsregels gebouw bouwen - bestaand gebouw
De omgevingsvergunning voor gebouwen, zijnde bestaande gebouwen, als bedoeld in artikel 6.43, wordt alleen verleend als wordt voldaan aan het tweede lid.
Binnen de locatie bebouwingsgebied bestaand Bruisend Hart mag het bestaande gebouw qua omvang en afmetingen niet worden veranderd of vergroot. De bestaande maten en oppervlakten zijn de minimale en maximale maten.
Artikel 6.45 Aanvullende beoordelingsregels - ruimtelijke kwaliteit
In aanvulling op het bepaalde in artikel 6.44 wordt de omgevingsvergunning voor bouwen van een bouwwerk alleen verleend indien aan alle leden van dit artikel wordt voldaan.
Het gebouw voldoet aan de eisen van ruimtelijke kwaliteit voor het Bruisend Hart, zoals opgenomen in de beleidsregel 'Beeldkwaliteitsplan Bruisend Hart'.
Het derde lid geldt niet voor tijdelijke bouwwerken.
Het bevoegd gezag wint voorafgaand aan het verlenen van de omgevingsvergunning schriftelijk advies in bij de Commissie Ruimtelijke Kwaliteit en Monumenten.
Artikel 6.46 Toepassingsbereik
Deze subparagraaf is van toepassing op het bouwen van een gebouw binnen de locatie openbare ruimte Bruisend Hart.
Artikel 6.48 Aanwijzing vergunningplichtige gevallen
Het is verboden zonder omgevingsvergunning een gebouw te bouwen binnen de locatie openbare ruimte Bruisend Hart als niet wordt voldaan aan artikel 6.47.
Artikel 6.49 Beoordelingsregels
De omgevingsvergunning voor gebouwen binnen de locatie openbare ruimte Bruisend Hart ruimte wordt alleen verleend als aan de voorwaarden van dit artikel.
De bouw- en gebruiksmogelijkheden van omliggende gebouwen en locaties worden niet onevenredig aangetast.
Het gebouw voldoet aan de eisen van ruimtelijke kwaliteit voor het Bruisend Hart, zoals opgenomen in de beleidsregel 'Beeldkwaliteitsplan Bruisend Hart'.
Het bevoegd gezag wint voorafgaand aan het verlenen van de omgevingsvergunning schriftelijk advies in bij de Commissie Ruimtelijke Kwaliteit en Monumenten.
Artikel 6.50 Toepassingsbereik
Deze paragraaf is van toepassing op het bouwen van een bouwwerk, geen gebouw zijnde.
Een erf- of perceelafscheiding is alleen toegestaan als:
de bouwhoogte hoger is dan 1 m, maar niet hoger is dan 2 m;
de erf- of perceelafscheiding op een erf of perceel staat waarop al een hoofdgebouw staat waarmee de afscheiding in functionele relatie staat; en
de erf- of perceelafscheiding achter de lijn die langs de voorkant van dat hoofdgebouw loopt, loopt vanaf daar evenwijdig met het aangrenzend openbaar toegankelijk gebied zonder het hoofdgebouw te doorkruisen of in het gebouwerf achter het hoofdgebouw te komen.
De volgende overige bouwwerken, geen gebouw zijnde, zijn alleen toegestaan als:
Artikel 6.52 Aanwijzing vergunningplichtige gevallen
Het is verboden zonder omgevingsvergunning een bouwwerk, geen gebouw zijnde, te bouwen als niet wordt voldaan aan de algemene regels in de artikelen 6.51.
Artikel 6.53 Beoordelingsregels
De omgevingsvergunning voor bouwwerken, geen gebouwen zijnde, wordt alleen verleend als aan de voorwaarden uit relevante overige leden van dit artikel wordt voldaan.
De bouwhoogte voor een bouwwerk, geen gebouw zijnde, niet zijnde een erfafscheiding, bedraagt maximaal 12 m.
Een ondergronds bouwwerk geen gebouw zijnde is uitsluitend toegestaan ten behoeve van ondergrondse afvalinzameling.
De bouw- en gebruiksmogelijkheden van omliggende gebouwen en locaties worden niet onevenredig aangetast.
Het bouwwerk geen gebouw zijnde voldoet aan de eisen van ruimtelijke kwaliteit voor het Bruisend Hart, zoals opgenomen in de beleidsregel 'Beeldkwaliteitsplan Bruisend Hart'.
Het bevoegd gezag wint voorafgaand aan het verlenen van de omgevingsvergunning schriftelijk advies in bij de Commissie Ruimtelijke Kwaliteit en Monumenten.
Artikel 6.54 Toepassingsbereik
Deze afdeling gaat over het verrichten van gebruiksactiviteiten en het gebruik van gronden en bouwwerken.
De regels in deze afdeling zijn gesteld met het oog op:
Artikel 6.56 Toedeling van gebruiksactiviteiten
Gebruiksactiviteiten worden alleen verricht als die zijn toegelaten op een locatie op grond van deze afdeling en voldaan wordt aan de gestelde regels voor gebruiksactiviteiten zoals in deze afdeling is opgenomen.
Artikel 6.57 Overgangsrecht bestaande gebruiksactiviteiten
Het gebruik van grond en bouwwerken dat bestond op het tijdstip van inwerkingtreding van het vaststellingsbesluit van de wijziging van het omgevingsplan ten behoeve van de vaststelling van deze titel en hiermee in strijd is, mag worden voortgezet.
Het in het eerste lid genoemde strijdige gebruik mag niet worden veranderd in een andere vorm van strijdig gebruik of worden vergroot.
Indien het gebruik, bedoeld in het eerste lid, na het tijdstip van inwerkingtreding van het vaststellingsbesluit van de wijziging van het omgevingsplan ten behoeve van de vaststelling van deze titel langer dan een jaar wordt onderbroken, is het verboden dit gebruik daarna te hervatten of te laten hervatten.
Het eerste lid is niet van toepassing op het gebruik dat reeds in strijd was met het voorheen geldende bestemmingsplan (tijdelijk deel van het omgevingsplan), daaronder begrepen de overgangsbepalingen van dat plan.
Artikel 6.58 Verbod exploiteren darkstores
Het is verboden om een darkstore te exploiteren binnen de locatie Bruisend Hart.
Artikel 6.59 Toepassingsbereik
Deze paragraaf is van toepassing op bedrijfsactiviteiten binnen de locatie bedrijf Bruisend Hart.
Binnen de locatie bedrijf Bruisend Hart zijn bedrijfsactiviteiten toegestaan.
De oppervlakte van bedrijven en kantoren tezamen bedraagt niet meer dan 3.800 m² bvo.
Alleen bedrijven behorende tot ten hoogste milieucategorie 2 zoals opgenomen in Staat van bedrijfsactiviteiten Bruisend Hart zijn toegestaan.
Binnen de locatie Blok A zijn bedrijven alleen op bouwlaag 1 tot en met 7 toegestaan.
Binnen de locatie Blok B bedrijf en kantoor vanaf tweede bouwlaag zijn bedrijfsactiviteiten niet toegestaan op de begane grond en de eerste bouwlaag.
Artikel 6.61 Aanwijzing vergunningplicht
Het is verboden om zonder omgevingsvergunning bedrijfsactiviteiten te verrichten, indien niet wordt voldaan aan het bepaalde in 6.60.
Artikel 6.62 Beoordelingsregels
De omgevingsvergunning als bedoeld in artikel 6.61 wordt alleen verleend als wordt voldaan aan de voorwaarden uit dit artikel.
De oppervlakte van bedrijven en kantoren tezamen bedraagt niet meer dan 6.000 m² bvo.
Het bedrijf behoort tot ten hoogste milieucategorie 2 zoals opgenomen in Staat van bedrijfsactiviteiten Bruisend Hart.
Binnen de locatie Blok A zijn bedrijven alleen op bouwlaag 1 tot en met 7 toegestaan.
Binnen de locatie Blok B bedrijf en kantoor vanaf tweede bouwlaag zijn bedrijven niet toegestaan op de begane grond en de eerste bouwlaag.
Er is naar oordeel van het bevoegd gezag geen sprake van nadelige invloed op de afwikkeling van verkeer ten opzichte van hetgeen op basis van artikel 6.60 is toegestaan.
Er is naar oordeel van het bevoegd gezag geen onevenredige toename van de parkeerbehoefte ten opzichte van hetgeen op basis van artikel 6.60 is toegestaan.
Artikel 6.63 Toepassingsbereik
Deze paragraaf is van toepassing op detailhandelsactiviteiten binnen de locatie detailhandel Bruisend Hart.
Binnen de locatie detailhandel Bruisend Hart zijn detailhandelsactiviteiten toegestaan.
Binnen de locatie Blok A zijn detailhandelsactiviteiten alleen op bouwlaag -1 en de begane grond toegestaan.
Binnen de locatie Blok C zijn detailhandelsactiviteiten alleen op de begane grond en de eerste bouwlaag toegestaan.
De oppervlakte van dienstverleningsactiviteiten met detailhandelsactiviteiten tezamen bedraagt niet meer dan de bvo zoals aangegeven op de locatie maximum bvo detailhandel en dienstverlening.
Het is verboden om detailhandelsactiviteiten te verrichten, indien niet wordt voldaan aan het bepaalde in artikel 6.64.
Artikel 6.66 Toepassingsbereik
Deze paragraaf is van toepassing op dienstverleningsactiviteiten binnen de locatie dienstverlening Bruisend Hart.
Binnen de locatie dienstverlening Bruisend Hart zijn dienstverleningsactiviteiten toegestaan.
Binnen de locatie Blok A zijn dienstverleningsactiviteiten alleen op bouwlaag -1 en de begane grond toegestaan.
Binnen de locatie Blok C zijn dienstverleningsactiviteiten alleen op de begane grond en de eerste bouwlaag toegestaan.
De oppervlakte van dienstverleningsactiviteiten met detailhandelsactiviteiten tezamen bedraagt niet meer dan de bvo zoals aangegeven op de locatie maximum bvo detailhandel en dienstverlening.
Het is verboden om dienstverleningsactiviteiten te verrichten, indien niet wordt voldaan aan het bepaalde in artikel 6.67.
Artikel 6.69 Toepassingsbereik
Deze paragraaf gaat over de volgende gebruiksactiviteiten binnen de locatie openbare ruimte Bruisend Hart:
Artikel 6.70 Gebodsbepaling - groenvoorzieningen
Er dient minimaal 3.000 m² aan openbare groenvoorzieningen, waarvan minimaal 1.400 m² aaneengesloten groene ruimte, te worden gerealiseerd.
Artikel 6.71 Algemene regels - activiteiten die betrekking hebben op groenvoorzieningen
Artikel 6.72 Algemene regels – activiteiten die betrekking hebben op watervoorzieningen
Artikel 6.73 Algemene regels - activiteiten die betrekking hebben op parkeer- en verkeersvoorzieningen
Artikel 6.74 Algemene regels - activiteiten die betrekking hebben op stationsvoorzieningen
Het is verboden om gebruiksactiviteiten in de openbare ruimte te verrichten indien niet wordt voldaan aan het bepaalde in artikel 6.71 tot en met 6.74.
Artikel 6.76 Toepassingsbereik
Deze paragraaf is van toepassing op gebruiksactiviteiten in het stationsgebouw binnen de locatie Blok A.
Activiteiten die betrekking hebben op het gebruik van gronden voor stationsvoorzieningen zijn toegestaan.
Binnen de locatie Blok A is een stationsgebouw met bijbehorende voorzieningen alleen toegestaan op de begane grond en in de ondergrondse bouwlaag.
Onder bijbehorende voorzieningen, als bedoeld in het tweede lid, worden verstaan:
Voor de bijbehorende voorzieningen, als bedoeld in het eerste lid, geldt een maximum oppervlak van 2.900m2 bvo.
Het is verboden om een stationsgebouw met bijbehorende voorzieningen binnen de locatie Blok A te realiseren, indien niet wordt voldaan aan het bepaalde in artikel 6.77.
Artikel 6.79 Toepassingsbereik
Deze paragraaf is van toepassing op gebruiksactiviteiten binnen de locatie spoorreserveringszone Bruisend Hart.
Binnen de locatie spoorreserveringszone Bruisend Hart is uitsluitend het gebruik van gronden ten behoeve van railverkeer en bijbehorende voorzieningen toegestaan.
Het is verboden om gebruiksactiviteiten binnen de locatie spoorreserveringszone Bruisend Hart te verrichten, indien niet wordt voldaan aan het bepaalde in artikel 6.80.
Artikel 6.82 Toepassingsbereik
Deze paragraaf is van toepassing op horeca-activiteiten binnen de locatie horeca Bruisend Hart.
Binnen de locatie horeca Bruisend Hart zijn horeca-activiteiten toegestaan.
Binnen de locatie horeca Blok C is horeca alleen toegestaan op de begane grond en de eerste bouwlaag.
De gezamenlijke bruto vloeroppervlakte van horeca-activiteiten is niet hoger dan de bvo zoals aangegeven op de locatie maximum bvo horeca.
Alleen horeca-activiteiten behorende tot de exploitatiecategorieën A, B of C zoals opgenomen in de Module horeca Bruisend Hart zijn toegestaan.
Het is verboden om horeca-activiteiten te verrichten, indien niet wordt voldaan aan het bepaalde in artikel 6.83.
Artikel 6.85 Toepassingsbereik
Deze paragraaf is van toepassing op kantooractiviteiten binnen de locatie kantoor Bruisend Hart.
Binnen de locatie kantoor Bruisend Hart zijn kantooractiviteiten toegestaan.
De oppervlakte van kantooractiviteiten en bedrijven tot ten hoogste milieucategorie 2 tezamen bedraagt niet meer dan 3.800 m² bvo.
Binnen de locatie Blok A zijn kantooractiviteiten alleen op bouwlaag 1 tot en met 7 toegestaan.
Binnen de locatie Blok B bedrijf en kantoor vanaf tweede bouwlaag zijn kantooractiviteiten niet toegestaan op de begane grond en de eerste bouwlaag.
Artikel 6.87 Aanwijzing vergunningplicht
Het is verboden om zonder omgevingsvergunning kantooractiviteiten te verrichten, indien niet wordt voldaan aan het bepaalde in 6.86.
Artikel 6.88 Beoordelingsregels
De omgevingsvergunning als bedoeld in artikel 6.87 wordt alleen verleend als wordt voldaan aan de voorwaarden uit dit artikel.
De oppervlakte van bedrijven en kantoren tezamen bedraagt niet meer dan 6.000 m² bvo.
Het bedrijf behoort tot ten hoogste milieucategorie 2 zoals opgenomen in Staat van bedrijfsactiviteiten Bruisend Hart.
Binnen de locatie Blok A zijn kantooractiviteiten alleen op bouwlaag 1 tot en met 7 toegestaan.
Binnen de locatie Blok B bedrijf en kantoor vanaf tweede bouwlaag zijn kantooractiviteiten niet toegestaan op de begane grond en de eerste bouwlaag.
Er is naar oordeel van het bevoegd gezag geen sprake van nadelige invloed op de afwikkeling van verkeer ten opzichte van hetgeen op basis van artikel 6.86 is toegestaan.
Er is naar oordeel van het bevoegd gezag geen onevenredige toename van de parkeerbehoefte ten opzichte van hetgeen op basis van artikel 6.86 is toegestaan.
Artikel 6.89 Toepassingsbereik
Deze paragraaf is van toepassing op maatschappelijke activiteiten binnen locatie maatschappelijk Bruisend Hart.
Binnen de locatie maatschappelijk Bruisend Hart zijn maatschappelijke activiteiten toegestaan.
Maatschappelijke activiteiten zijn alleen op de begane grond en de eerste bouwlaag toegestaan.
De oppervlakte van maatschappelijke activiteiten bedraagt maximaal 720 m² bvo.
Het is verboden om maatschappelijke activiteiten te verrichten, indien niet wordt voldaan aan het bepaalde in artikel 6.90.
Artikel 6.92 Toepassingsbereik
De regels in deze paragraaf zijn van toepassing op ondergeschikt gebruik bij een gebruiksactiviteit dat is toegestaan op een locatie, zoals bedoeld in deze afdeling met uitzondering van de gebruiksactiviteiten in de openbare ruimte, in blok A en bij de gebruiksactiviteit wonen.
Alleen de in deze paragraaf genoemde onderschikte gebruiksactiviteiten zijn toegestaan.
Artikel 6.93 Algemene regels - ondergeschikte horeca-activiteit
Een ondergeschikte horeca-activiteit moet voldoen aan de volgende regels:
de horeca-activiteit is ondergeschikt aan en samenhangend met de hoofdactiviteit;
de oppervlakte van de horeca-activiteit is niet groter dan 30 % van de oppervlakte van de hoofdactiviteit;
de openingstijden van de horeca-activiteit zijn gebonden aan de openingstijden van de hoofdactiviteit; en
de uitstraling van de hoofdactiviteit blijft behouden.
Artikel 6.94 Algemene regels - ondergeschikte detailhandelsactiviteit
Ondergeschikte detailhandel moet voldoen aan de volgende regels:
Artikel 6.95 Algemene regels - ondergeschikte kantooractiviteit
Een ondergeschikte kantooractiviteit moet voldoen aan de volgende regels:
Het is verboden om ondergeschikte gebruiksactiviteiten te verrichten, indien niet wordt voldaan aan het bepaalde in artikel 6.92 tot en met 6.95.
Artikel 6.97 Toepassingsbereik
Deze subparagraaf is van toepassing op wonen in een woning, waaronder ook inwoning wordt verstaan, binnen de locatie wonen Bruisend Hart.
Artikel 6.98 Algemene regels - wonen
Wonen in een woning is alleen toegestaan binnen de locatie wonen Bruisend Hart.
In afwijking van het eerste lid geldt dat wonen binnen de locatie Blok A alleen is toegestaan vanaf de eerste bouwlaag en hoger.
In afwijking van het eerste lid geldt dat wonen binnen de locatie Blok B wonen vanaf eerste bouwlaag alleen is toegestaan vanaf de eerste bouwlaag en hoger.
In afwijking van het eerste lid geldt dat wonen binnen de locatie Blok C minus binnenterrein alleen is toegestaan vanaf de eerste bouwlaag en hoger.
Voor de toepassing van de regels uit deze subparagraaf geldt als één huishouden ook een huishouden dat mantelzorg verleent, waarbij de ontvanger van mantelzorg in de woning of onzelfstandige woonruimte woont of in een gebouw dat bij de woning of onzelfstandige woonruimte hoort.
In een woning of onzelfstandige woonruimte woont slechts één huishouden.
Een woning of onzelfstandige woonruimte wordt niet bewoond door meer dan één persoon per 12 m2 gebruiksoppervlakte.
Het is verboden om te wonen in een woning indien niet wordt voldaan aan het bepaalde in artikelen 6.98 en 6.99.
Artikel 6.101 Toepassingsbereik
Deze subparagraaf is van toepassing op het uitoefenen van een beroep of bedrijf aan huis.
Een beroep of bedrijf aan huis wordt door de hoofdbewoner van de woning of onzelfstandige woonruimte zelf uitgeoefend.
De oppervlakte waarop het beroep of bedrijf aan huis wordt uitgeoefend is ten hoogste 50 m² met een maximum van 33% van het vloeroppervlak van het hoofdgebouw en bijbehorende bouwwerken.
Bij het uitoefenen van een beroep of bedrijf aan huis worden geen horeca-activiteiten of detailhandelsactiviteiten verricht.
Het is verboden om een beroep of bedrijf aan huis uit te oefenen als niet wordt voldaan aan de het bepaalde in artikel 6.102.
Artikel 6.104 Aanwijzing vergunningplichtige gevallen
Het is verboden zonder omgevingsvergunning een beroep of bedrijf aan huis uit te oefenen met een extra medewerker naast de hoofdbewoner.
Artikel 6.105 Beoordelingsregels
De omgevingsvergunning voor het laten uitoefenen van beroep of bedrijf aan huis door een extra medewerker naast de hoofdbewoner als bedoeld in artikel 6.104 wordt alleen verleend als:
Artikel 6.106 Toepassingsbereik
Deze subparagraaf is van toepassing op woningsplitsing.
Artikel 6.107 Aanwijzing vergunningplichtige gevallen
Het is verboden zonder omgevingsvergunning een woning te splitsen.
Artikel 6.108 Beoordelingsregels
De omgevingsvergunning, als bedoeld in artikel 6.107, wordt verleend als het voormalig samengevoegde woningen betreft.
In afwijking van het eerste lid wordt een omgevingsvergunning ook verleend als:
Geen afbreuk wordt gedaan aan:
voldaan wordt aan de parkeernormen zoals verwoord in de beleidsregel 'Parkeernormen Hilversum 2023' of de rechtsopvolgers daarvan, met dien verstande dat indien voornoemde beleidsregel wordt gewijzigd, rekening wordt gehouden met die wijziging;
de splitsing voldoet aan de regels over het maximum aantal toegestane woningen op de betreffende locatie elders geregeld in dit omgevingsplan;
het geen bedrijfswoning betreft.
Bij de toets of wordt voldaan aan het tweede lid, aanhef en onder a, wordt nader invulling gegeven op basis van beleidsregel 'Woningsplitsing, verkamering en transformatie 2023' of de rechtsopvolgers daarvan, met dien verstande dat indien voornoemde beleidsregel wordt gewijzigd, rekening wordt gehouden met die wijziging.
Artikel 6.109 Toepassingsbereik
Deze subparagraaf is van toepassing op het samenvoegen van bestaande woningen.
Artikel 6.110 Aanwijzing vergunningplichtige gevallen
Het is verboden zonder omgevingsvergunning bestaande woningen samen te voegen.
Artikel 6.111 Beoordelingsregels
De omgevingsvergunning voor het samenvoegen van bestaande woningen wordt alleen verleend als aan de voorwaarden uit alle leden van dit artikel wordt voldaan.
Het betreft voormalig gesplitste woningen.
De samenvoeging komt ten goede aan de kwaliteit van de uiteindelijke woning.
De samenvoeging betreft geen sociale huur- of koopwoningen of middenhuur woningen.
Artikel 6.112 Toepassingsbereik
Deze subparagraaf is van toepassing op het wijzigen van woonruimte voor verkamering.
Artikel 6.113 Aanwijzing vergunningplichtige gevallen
Het is verboden zonder omgevingsvergunning een woning te verkameren.
Artikel 6.114 Beoordelingsregels
De omgevingsvergunning voor het wijzigen van woonruimte voor verkamering wordt alleen verleend als aan de voorwaarden uit alle leden van dit artikel wordt voldaan.
Geen afbreuk wordt gedaan aan:
Het betreft geen bedrijfswoning.
De verkamering voldoet aan de regels over het maximum aantal toegestane woningen op de betreffende locatie zoals geregeld in artikel 6.32 eerste t/m derde lid.
Bij de toets of wordt voldaan aan het tweede lid, aanhef en onder a wordt nader invulling gegeven op basis van beleidsregel 'Woningsplitsing, verkamering en transformatie 2023' of de rechtsopvolgers daarvan, met dien verstande dat indien voornoemde beleidsregel worden gewijzigd, rekening wordt gehouden met die wijziging.
De regels in deze afdeling zijn gesteld met het oog op:
Artikel 6.116 Toepassingsbereik
Deze paragraaf is van toepassing op de volgende grondwerkzaamheden en bouwactiviteiten binnen het beperkingengebied archeologische waarden 1:
het bouwen van bouwwerken waarvoor werkzaamheden beneden het maaiveld plaatsvinden, dan wel beneden de waterbodem;
het aanleggen van wegen, paden, banen en andere oppervlakteverhardingen;
het uitvoeren van grondbewerkingen;
het aanbrengen van diepwortelende beplantingen en/of bomen of het rooien van diepwortelende beplantingen en/of bomen waarbij de stobben worden verwijderd;
het aanleggen van watergangen of het vergraven, verruimen of dempen van reeds bestaande watergangen;
het verlagen en verhogen van het waterpeil; en
het slopen van bouwwerken, waaronder werkzaamheden beneden het maaiveld plaatsvinden, dan wel beneden de waterbodem.
Artikel 6.117 Aanwijzing vergunningplichtige gevallen
Het is verboden om zonder omgevingsvergunning de activiteiten als bedoeld in artikel 6.116 te verrichten indien de activiteiten uitgevoerd worden op een plangebied dat groter is dan 25 m² en de activiteit die verricht wordt dieper reikt dan 30 cm beneden het maaiveld.
Het verbod in het eerste lid geldt niet:
voor activiteiten die betrekking hebben op normaal beheer en onderhoud;
op activiteiten die uit het oogpunt van bescherming van de archeologische waarde van niet ingrijpende betekenis zijn;
in het kader van archeologisch onderzoek en het doen van opgravingen, mits verricht door een daartoe bevoegde instantie; of
als uit eerder uitgevoerd archeologisch onderzoek naar het oordeel van het bevoegd gezag is komen vast te staan dat er geen sprake is van te beschermen archeologische waarden.
Artikel 6.118 Aanvullende aanvraagvereisten
Bij een aanvraag voor een omgevingsvergunning worden een vroegtijdig inventariserend en de nadere aanvullende onderzoeksrapporten die daaruit volgen overlegd.
Artikel 6.119 Beoordelingsregels
De omgevingsvergunning als bedoeld in artikel 6.117 wordt verleend als:
er op de plaats van de uit te voeren activiteiten geen archeologische waarden aanwezig zijn;
het belang van de archeologische waarden hierdoor niet of niet onevenredig worden geschaad; of
de archeologische waarden kunnen worden behouden door voorschriften te verbinden aan de omgevingsvergunning.
Artikel 6.120 Advies deskundige archeologie
Het bevoegd gezag wint voorafgaand het verlenen van de omgevingsvergunning schriftelijk advies in bij de deskundige inzake archeologie of voldaan wordt aan de beoordelingsregels in artikel 6.119.
Artikel 6.121 Vergunningvoorschriften
Aan de omgevingsvergunning kunnen de volgende voorschriften worden verbonden:
de verplichting tot het treffen van technische maatregelen, waardoor archeologische resten in de bodem kunnen worden behouden;
de verplichting tot het doen van opgravingen;
de verplichting de uitvoering van de activiteiten te laten begeleiden door een deskundige op het gebied van de archeologische monumentenzorg die voldoet aan door het bevoegd gezag bij de omgevingsvergunning te stellen kwalificaties.
Artikel 6.122 Toepassingsbereik
Deze paragraaf is van toepassing op het bouwen van zeer kwetsbare of kwetsbare gebouwen danwel het als zodanig gebruiken van gebouwen binnen het beperkingengebied vervoer gevaarlijke stoffen Bruisend Hart.
Artikel 6.123 Aanwijzing vergunningplichtige gevallen
Eventueel in afwijking van het overige bepaalde in deze titel is het binnen het beperkingengebied vervoer gevaarlijke stoffen Bruisend Hart niet toegestaan om zonder omgevingsvergunning nieuwe zeer kwetsbare en kwetsbare gebouwen te bouwen danwel het gebruik binnen bestaande gebouwen te wijzigen naar zeer kwetsbare en kwetsbare gebouwen.
Artikel 6.124 Beoordelingsregels
De omgevingsvergunning voor het bouwen of gebruiken van zeer kwetsbare of kwetsbare gebouwen als bedoeld in artikel 6.123 wordt alleen verleend als aan de voorwaarden uit alle leden van dit artikel wordt voldaan.
De veiligheid van personen en goederen is in voldoende mate geborgd.
Indien het uit een onderzoek blijkt dat maatregelen noodzakelijk zijn, dienen deze maatregelen te worden getroffen en in stand te worden gehouden.
Artikel 6.125 Aanvullende aanvraagvereisten
Bij een aanvraag om een omgevingsvergunning als bedoeld in artikel 6.123 worden de volgende aanvullende gegevens en bescheiden verstrekt:
Artikel 6.126 Vergunningvoorschriften
Aan de omgevingsvergunning kunnen voorschriften worden verbonden:
Artikel 6.127 Toepassingsbereik
Deze paragraaf is van toepassing op het toelaten van een trillinggevoelig gebouw binnen het beperkingengebied trillingen Bruisend Hart.
In afwijking van het eerste lid is deze afdeling niet van toepassing op een trillinggevoelige ruimte in een trillinggevoelig gebouw dat op grond van het omgevingsplan of een omgevingsvergunning is toegelaten voor een duur van niet meer dan tien jaar.
Artikel 6.128 Aanwijzing vergunningplichtige gevallen
In afwijking van het overige bepaalde in deze titel is het binnen het beperkingengebied trillingen Bruisend Hart niet toegestaan om zonder omgevingsvergunning nieuwe trillinggevoelige gebouwen toe te voegen.
Artikel 6.129 Beoordelingsregels
De omgevingsvergunning voor het toevoegen van trillinggevoelige gebouwen als bedoeld in artikel 6.128 wordt alleen verleend als aan de voorwaarden uit alle leden van dit artikel wordt voldaan.
Trillingen door spoorverkeer in trillinggevoelige ruimten van trillinggevoelige gebouwen dienen aanvaardbaar te zijn.
Er is sprake van een aanvaardbaar trillingenniveau als voldaan wordt aan de standaardwaarden voor herhaald voorkomende trillingen, zoals bedoeld in de Richtlijn deel B "Hinder voor personen in gebouwen door trillingen, Meet- en beoordelingsrichtlijn" van de Stichting Bouwresearch (SBR) van augustus 2006.
Als aanvaardbare waarden voor de toelaatbare herhaald voorkomende trillingen door spoorverkeer in trillinggevoelige ruimten gelden de waarden genoemd onder A2 (Vmax) en A3 (Vper) in onderstaande tabel:
Op het bepalen van de trillingen zijn de bij ministeriële regeling gestelde regels van toepassing.
Indien uit onderzoek blijkt dat maatregelen noodzakelijk zijn, dienen deze maatregelen te worden getroffen en in stand te worden gehouden.
Artikel 6.130 Aanvullende beoordelingsregels
In afwijking van het bepaalde in artikel 6.129, vierde lid zijn alleen hogere waarden toegestaan als:
Op het bepalen van de trillingen zijn de bij ministeriële regeling gestelde regels van toepassing.
Indien uit onderzoek blijkt dat maatregelen noodzakelijk zijn, dienen deze maatregelen te worden getroffen en in stand te worden gehouden.
Artikel 6.131 Aanvullende aanvraagvereisten
Bij een aanvraag om een omgevingsvergunning als bedoeld in artikel 6.128 worden de volgende gegevens en bescheiden verstrekt:
Artikel 6.132 Vergunningvoorschriften
Aan de omgevingsvergunning kunnen voorschriften worden verbonden:
Artikel 6.133 Toepassingsbereik
De regels in deze afdeling gaan over het verhalen van kosten in relatie tot investeringen in de publieke voorzieningen.
Artikel 6.134 Kostenverhaalsgebied
De regels in deze afdeling zijn van toepassing op de locatie Bruisend Hart.
Artikel 6.135 Specifieke aanvraagvereisten kostenverhaalsbeschikking
Bij de aanvraag voor een kostenverhaalsbeschikking worden de volgende gegevens en bescheiden verstrekt:
een lijst met soort en aantal kostenverhaalsplichtige activiteiten die zullen worden uitgevoerd;
de locatie waar deze activiteiten worden uitgevoerd;
een opgave van de kosten van zelf verrichte werkzaamheden blijkend uit facturen. De opgave wordt ingedeeld volgens de voor het kostenverhaalsgebied vastgestelde lijst met werken, werkzaamheden en maatregelen.
Artikel 6.136 Aanspraak op vergoeding kosten inrichting openbare ruimte
Degene die in het omgevingsplan als openbaar gebied aangewezen locaties inricht als openbare ruimte kan verzoeken om een vergoeding voor de kosten van die inrichting voor zover die kosten niet reeds in mindering zijn gebracht op de kostenverhaalsbijdrage in de kostenverhaalsbeschikking.
De vergoeding als bedoeld in het eerste lid wordt geweigerd als:
Artikel 6.137 Methode raming inbrengwaarden
Bij de raming van de kosten per kostenverhaalsgebied wordt in dit omgevingsplan voor de inbrengwaarde toepassing gegeven aan:
Artikel 6.138 Behandeltermijn en tijdstip indiening verzoek om eindafrekening
Burgemeester en wethouders stellen eindafrekeningen op verzoek, als bedoeld in artikel 13.20, vierde lid, van de Omgevingswet, eenmaal per jaar vast uiterlijk op 15 december. Verzoeken om een eindafrekening dienen tenminste 8 weken voor die datum te worden ingediend.
Binnen 12 weken na uitvoering van voor de in het kostenverhaalsgebied voorziene werken, werkzaamheden en maatregelen stellen burgemeester en wethouders bij beschikking een eindafrekening van het kostenverhaal in het kostenverhaalsgebied vast.
De kostenverhaalsregel blijft van kracht totdat deze is ingetrokken. Wanneer na het moment van eindafrekening nog niet voor alle bouwactiviteiten kostenverhaalsbeschikkingen zijn aangevraagd, maar daarna worden aangevraagd, wordt de verschuldigde geldsom geacht samen te vallen met het bedrag van de in het derde lid bedoelde herberekening op het in het eerste lid bedoelde moment. Het besluit tot eindafrekening houdt in die gevallen in dat er geen sprake is van een terugbetaling.
Bij de eindafrekening wordt de kostenverhaalsbijdrage, zoals betaald op basis van de kostenverhaalsbeschikking, herberekend op grond van de totale werkelijk gerealiseerde kosten na uitvoering van de voorziene werken, werkzaamheden en maatregelen. Ingeval van terugbetaling wordt 1,2% rente gerekend over het terug te betalen bedrag.
Bij de eindafrekening wordt uitgegaan van de eenheden en relatieve gewichten die zijn gehanteerd bij de kostenverhaalsbeschikking.
Bij de eindafrekening wordt een vergelijking gemaakt tussen enerzijds het programma aan bouwactiviteiten zoals dat in het omgevingsplan was opgenomen ten tijde van de eindafrekening en anderzijds het programma aan bouwactiviteiten zoals dat gehanteerd is bij het verlenen van de kostenverhaalsbeschikking.
Artikel 6.140 Aanvraagvereisten verzoek om eindafrekening
Bij het verzoek worden de volgende gegevens en bescheiden verstrekt:
een kopie van de kostenverhaalsbeschikking;
een opgave van de kosten van zelf verrichte werkzaamheden blijkend uit facturen;
de opgave wordt ingedeeld volgens de voor het kostenverhaalsgebied vastgestelde lijst met werken, werkzaamheden en maatregelen;
een bewijs dat verzoeker recht heeft op de terugbetaling, als een ander dan degene namens wie betaald is, het verzoek doet;
naam, adres, telefoonnummer en rekeningnummer van verzoeker.
Artikel 6.141 Tijdvak voor het kostenverhaal
Voor het kostenverhaalsgebied geldt een tijdvak van een periode van elf jaren, welk tijdvak ingaat op de prijspeildatum van 1 januari 2024.
Artikel 6.143 Inbrengwaarde van gronden en te slopen opstallen
De inbrengwaarden van de gronden met de daarop eventueel te slopen opstallen in het kostenverhaalsgebied zijn geraamd op de bedragen zoals opgenomen de tabel in het tweede lid in de onderdelen:
waarde van gronden en te slopen opstallen;
kosten vrijmaken van rechten, etc.;
kosten van sloop en verwijdering/verplaatsing opstallen, obstakel.


Onderdeel d, als bedoeld in de definitie van inbrengwaarde is verdisconteerd in de raming zoals opgenomen in dit artikel.
Artikel 6.145 Parameters voor rente, discontering en indexering van kosten en opbrengsten
Voor het toerekenen van rente, discontering en indexering van de kosten en opbrengsten zijn de parameters gehanteerd, uitgaande van een prijspeil van 1 januari 2024 en een einde van het in artikel 6.141 bedoelde tijdvak op 31 december 2034, alles conform de tabel in het tweede lid.
Artikel 6.146 Fasering, parameters en contante kosten en opbrengsten
Met toepassing van de kosten- en opbrengstenparameters als bedoeld in 6.145 zijn de kosten en opbrengsten in de tijd uitgezet en contant gemaakt. De kostenverhaalsbijdrage wordt berekend aan de hand van de contant gemaakte kosten en opbrengsten zoals opgenomen in de tabellen in het tweede lid.




Artikel 6.147 Verhaalbare kosten na toepassing macro-aftoppingstoets
Het bedrag aan totaal te verhalen kosten na toepassing van de macro-aftopping bedraagt € 9.794.892,00 berekend door het totale niveau van de contant gemaakte kosten te nemen na aftrek van subsidie, als overige opbrengstpost, en het totale niveau van de contant gemaakte kosten, alles conform de tabel in het tweede lid.

Artikel 6.148 Verdeling van de verhaalbare kosten over de activiteiten
De bruto kostenverhaalsbijdrage in de kostenverhaalsbeschikking wordt berekend volgens de tabel in het tweede lid, voor de daarin genoemde categorieën van de linker kolom, op het bedrag per eenheid (woning als m²), zoals in de rechter kolom 'Bruto kostenbijdrage per eenheid’ is weergeven.

Artikel 6.149 Financiële bijdrage
Voor dit kostenverhaalsgebied is sprake van macro-aftopping. Hierdoor kunnen er voor dit kostenverhaalsgebied geen financiële bijdrage worden geëffectueerd.
De regels in afdeling 22.2, met uitzondering van paragraaf 22.2.7.3, en afdeling 22.3 zijn niet van toepassing voor zover die regels in strijd zijn met regels in het tijdelijke deel van dit omgevingsplan, bedoeld in artikel 22.1, onder a, van de Omgevingswet.
De regels in afdeling 22.3 zijn niet van toepassing op een milieubelastende activiteit die als vergunningplichtig is aangewezen in hoofdstuk 3 van het Besluit activiteiten leefomgeving, voor zover voorschriften zijn verbonden aan:
een voor de inwerkingtreding van de Omgevingswet onherroepelijke omgevingsvergunning voor een milieubelastende activiteit;
een omgevingsvergunning voor een milieubelastende activiteit die is aangevraagd voor de inwerkingtreding van de Omgevingswet en na de inwerkingtreding van die wet onherroepelijk wordt.
Voor de toepassing van de artikelen 22.28, eerste en tweede lid, 22.38, 22.287, 22.288, 22.290 tot en met 22.293 en 22.295 wordt onder gemeentelijk monument respectievelijk voorbeschermd gemeentelijk monument ook verstaan een monument of archeologisch monument dat op grond van een gemeentelijke verordening is aangewezen respectievelijk waarop, voordat het is aangewezen, die verordening van overeenkomstige toepassing is.
Het eerste lid is van toepassing:
als het gaat om een aangewezen monument of archeologisch monument: zolang in dit omgevingsplan daaraan nog niet de functie-aanduiding gemeentelijk monument is gegeven; en
als het gaat om een monument of archeologisch monument waarop voordat het is aangewezen de verordening van overeenkomstige toepassing is: zolang in dit omgevingsplan daaraan nog niet de functie-aanduiding gemeentelijk monument is gegeven of dit omgevingsplan geen voorbeschermingsregel bevat vanwege het voornemen om die functie-aanduiding te geven.
De artikelen 22.28, derde lid, en 22.38, aanhef en onder b, zijn van overeenkomstige toepassing op een activiteit als bedoeld in die artikelonderdelen die wordt verricht op een locatie waarvoor een op grond van artikel 4.35, eerste lid, van de Invoeringswet Omgevingswet als instructie geldende aanwijzing als beschermd stads- of dorpsgezicht als bedoeld in artikel 35, eerste lid, van de Monumentenwet 1988 zoals die wet luidde voor de inwerkingtreding van de Erfgoedwet van kracht is, zolang in dit omgevingsplan aan die locatie nog niet de functie-aanduiding rijksbeschermd stads- of dorpsgezicht is gegeven.
Met het bouwen van een bouwwerk waarvoor een omgevingsvergunning voor een bouwactiviteit of een omgevingsplanactiviteit is verleend wordt, onverminderd de aan de vergunning verbonden voorschriften, niet begonnen voordat voor zover nodig:
Het uiterlijk van de volgende bouwwerken mag niet in ernstige mate in strijd zijn met redelijke eisen van welstand, beoordeeld volgens de criteria van de welstandsnota, bedoeld in artikel 12a, eerste lid, van de Woningwet, zoals dat artikel tot de inwerkingtreding van de Omgevingswet gold:
Het eerste lid is niet van toepassing als het gaat om een in het tijdelijke deel van dit omgevingsplan, bedoeld in artikel 22.1, onder a, van de Omgevingswet, aangewezen gebied of bouwwerk waarvoor geen redelijke eisen van welstand van toepassing zijn.
Met het oog op het waarborgen van de veiligheid is een voorziening voor het afnemen en gebruiken van elektriciteit in een bouwwerk aangesloten op het distributienet voor elektriciteit als de aansluitafstand niet groter is dan 100 m of groter is dan 100 m en de aansluitkosten niet hoger zijn dan bij een aansluitafstand van 100 m.
Het eerste lid is niet van toepassing op het bouwen van een woonfunctie voor particulier eigendom of een drijvend bouwwerk.
Met het oog op het waarborgen van de veiligheid en de energiezuinigheid en de bescherming van het milieu is een te bouwen bouwwerk met een of meer verblijfsgebieden aangesloten op het in het warmteplan bedoelde distributienet voor warmte als:
het in het warmteplan geplande aantal aansluitingen op het distributienet op het moment van de indiening van de aanvraag om een omgevingsvergunning voor een omgevingsplanactiviteit met betrekking tot een bouwwerk nog niet is bereikt; en
de aansluitafstand niet groter is dan 40 m of groter is dan 40 m en de aansluitkosten niet hoger zijn dan bij een aansluitafstand van 40 m.
Een gelijkwaardige maatregel voor een aansluiting op het distributienet voor warmte heeft ten minste dezelfde mate van energiezuinigheid en bescherming van het milieu als wordt bereikt met de in het warmteplan voor die aansluiting opgenomen mate van energiezuinigheid en bescherming van het milieu.
Onverminderd het vierde lid, zijn het eerste en tweede lid niet van toepassing op het bouwen van een woonfunctie voor particulier eigendom of een drijvend bouwwerk.
Als voor de inwerkingtreding van de Omgevingswet op grond van artikel 9.2, tiende lid, van het Bouwbesluit 2012 voor een gebied een aansluitplicht op het distributienet voor warmte geldt, blijft die aansluitplicht voor dat gebied van toepassing.
Met het oog op het beschermen van de gezondheid is een voorziening voor het afnemen en gebruiken van drinkwater in een bouwwerk aangesloten op het distributienet voor drinkwater als de aansluitafstand niet groter is dan 40 m of groter is dan 40 m en de aansluitkosten niet hoger zijn dan bij een aansluitafstand van 40 m.
Met het oog op het beschermen van de gezondheid ligt een ondergrondse doorvoer van een voorziening voor de afvoer van huishoudelijk afvalwater en hemelwater door een uitwendige scheidingsconstructie van een bouwwerk zoveel mogelijk haaks op de scheidingsconstructie.
De gebouwaansluiting van een voorziening voor de afvoer van huishoudelijk afvalwater en hemelwater op de op het eigen erf of terrein gelegen riolering of een andere voorziening voor afvoer van afvalwater is zodanig dat bij zetting de dichtheid van de aansluiting en de afvoer gehandhaafd blijft.
Een terreinleiding waardoor huishoudelijk afvalwater wordt geleid:
Bij maatwerkvoorschrift als bedoeld in artikel 22.4 kan in ieder geval worden bepaald:
als voor de afvoer van huishoudelijk afvalwater een openbaar vuilwaterriool of een ander passend systeem als bedoeld in artikel 2.16, derde lid, van de Omgevingswet aanwezig is waarop kan worden aangesloten: op welke plaats, op welke hoogte en met welke inwendige middellijn de voor aansluiting van een voorziening voor de afvoer van huishoudelijk afvalwater op dat riool of systeem noodzakelijke perceelaansluitleiding bij de gevel van het bouwwerk of de grens van het erf of terrein wordt aangelegd;
als voor de afvoer van hemelwater een openbaar hemelwaterstelsel of een openbaar vuilwaterriool aanwezig is waarop kan worden aangesloten, en hemelwater op dat stelsel of riool mag worden gebracht: op welke plaats, op welke hoogte en met welke inwendige middellijn de voor aansluiting van een voorziening voor de afvoer van hemelwater op dat stelsel of riool noodzakelijke perceelaansluitleiding bij de gevel van het bouwwerk of de grens van het erf of terrein wordt aangelegd; en
of, en zo ja welke voorzieningen in de afvoervoorziening of de op het erf of terrein gelegen riolering moeten worden aangebracht om het functioneren van de afvoervoorzieningen, naburige aansluitingen en de openbare voorzieningen voor de inzameling en het transport van afvalwater te waarborgen.
Met het oog op het waarborgen van de veiligheid heeft een bouwwerk een toereikende bluswatervoorziening, tenzij de aard, de ligging of het gebruik van het bouwwerk dat niet vereist.
De afstand tussen de bluswatervoorziening en een brandweeringang als bedoeld in artikel 3.129 of 4.226 van het Besluit bouwwerken leefomgeving of, als deze niet aanwezig is, een toegang van het bouwwerk is ten hoogste 40 m.
De bluswatervoorziening is onbeperkt toegankelijk voor bluswerkzaamheden.
Met het oog op het waarborgen van de veiligheid ligt tussen de openbare weg en ten minste een toegang van een gebouw of ander bouwwerk voor het verblijven van personen een verbindingsweg die geschikt is voor voertuigen van de brandweer en andere hulpverleningsdiensten.
Het eerste lid is niet van toepassing:
op een gebruiksfunctie met een gebruiksoppervlakte van niet meer dan 1.000 m2 en een vuurbelasting van ten hoogste 500 MJ/m2, bepaald volgens NEN 6090;
op een bouwwerk met een gebruiksoppervlakte van niet meer dan 50 m2;
op een lichte industriefunctie alleen voor het bedrijfsmatig telen, kweken of opslaan van gewassen of daarmee vergelijkbare producten, met een permanente vuurbelasting van ten hoogste 150 MJ/m2, bepaald volgens NEN 6090;
als de toegang van het bouwwerk op ten hoogste 10 m van een openbare weg ligt; of
als de aard, de ligging of het gebruik van het bouwwerk geen verbindingsweg vereist.
Tenzij elders in dit omgevingsplan of een gemeentelijke verordening anders bepaald, heeft een verbindingsweg:
Een verbindingsweg is over de voorgeschreven hoogte en breedte, bedoeld in het derde lid, vrijgehouden voor voertuigen van de brandweer en andere hulpverleningsdiensten.
Hekwerken die een verbindingsweg afsluiten, kunnen door hulpdiensten snel en gemakkelijk worden geopend of worden ontsloten met een systeem dat in overleg met het bevoegd gezag is bepaald.
Met het oog op het waarborgen van de veiligheid zijn bij een bouwwerk voor het verblijven van personen zodanige opstelplaatsen voor brandweervoertuigen dat een doeltreffende verbinding tussen die voertuigen en de bluswatervoorziening kan worden gelegd.
Het eerste lid is niet van toepassing:
op een gebruiksfunctie met een gebruiksoppervlakte van niet meer dan 1.000 m2 en een vuurbelasting van ten hoogste 500 MJ/m2, bepaald volgens NEN 6090;
op een bouwwerk met een gebruiksoppervlakte van niet meer dan 50 m2;
op een lichte industriefunctie alleen voor het bedrijfsmatig telen, kweken of opslaan van gewassen of daarmee vergelijkbare producten, met een permanente vuurbelasting van ten hoogste 150 MJ/m2, bepaald volgens NEN 6090; of
als de aard, de ligging of het gebruik van het bouwwerk geen opstelplaatsen vereist.
De afstand tussen een opstelplaats en een brandweeringang als bedoeld in artikel 3.129 of 4.226 van het Besluit bouwwerken leefomgeving of, als deze niet aanwezig is, een toegang van het bouwwerk is ten hoogste 40 m.
Een opstelplaats voor brandweervoertuigen is over de hoogte en breedte, bedoeld in artikel 22.14, derde lid, vrijgehouden voor brandweervoertuigen.
Hekwerken die een opstelplaats afsluiten, kunnen door hulpdiensten snel en gemakkelijk worden geopend of worden ontsloten met een systeem dat in overleg met het bevoegd gezag is bepaald.
Met het oog op het waarborgen van de veiligheid wordt een bouwwerk niet gebruikt als door of namens het bevoegd gezag is medegedeeld dat het gebruik in verband met bouwvalligheid van een in de nabijheid gelegen bouwwerk gevaarlijk is.
Degene die een bouwwerk gebruikt en weet of redelijkerwijs kan vermoeden dat dit gebruik tot gevaar voor de gezondheid of veiligheid kan leiden, is verplicht alle maatregelen te treffen die redelijkerwijs van diegene kunnen worden gevraagd om dat gevaar te voorkomen of niet te laten voortduren.
Degene die weet of redelijkerwijs kan vermoeden dat zijn handelen of nalaten in, op of aan een bouwwerk overlast of hinder veroorzaakt of kan veroorzaken voor de omgeving, is verplicht alle maatregelen te treffen die redelijkerwijs van diegene kunnen worden gevraagd om die overlast of hinder te voorkomen of niet te laten voortduren. Het gaat daarbij in elk geval om overlast of hinder door:
Het eerste lid is niet van toepassing op het gebruik van bouwwerken, bedoeld in afdeling 6.2 van het Besluit bouwwerken leefomgeving.
Op een open erf of terrein nabij een bouwwerk is geen brandgevaarlijke stof als bedoeld in tabel 22.2.1 aanwezig.
Het eerste lid is niet van toepassing als:
de in tabel 22.2.1 aangegeven toegestane hoeveelheid per stof niet wordt overschreden, waarbij de totale toegestane hoeveelheid stoffen 100 kilogram of liter is;
de stof deugdelijk is verpakt, waarbij:
de stof wordt gebruikt met inachtneming van de op de verpakking aangegeven gevaarsaanduidingen.
Het eerste lid is niet van toepassing op:
brandstof in het reservoir van een verbrandingsmotor;
brandstof in een verlichtings-, verwarmings- of ander warmteontwikkelend toestel;
voor consumptie bestemde alcoholhoudende dranken;
gasflessen tot een totale waterinhoud van 115 liter;
dieselolie, gasolie of lichte stookolie met een vlampunt tussen de 61 °C en 100 °C tot een totale hoeveelheid van 1.000 liter; en
brandgevaarlijke stoffen voor zover de aanwezigheid daarvan op grond van het Besluit activiteiten leefomgeving of een omgevingsvergunning voor een milieubelastende activiteit is toegestaan.
Bij het berekenen van de toegestane hoeveelheid, bedoeld in het tweede lid, onder a, wordt een aangebroken verpakking als een volle meegerekend.
In afwijking van het derde lid, aanhef en onder e, is de aanwezigheid van meer dan 1.000 liter van een oliesoort als bedoeld in dat onderdeel toegestaan als die oliesoort op zodanige wijze wordt opgeslagen en gebruikt dat het ontstaan van een brandgevaarlijke situatie en de ontwikkeling van brand voldoende worden voorkomen.
ADR-klasse1 | Omschrijving | Verpakkingsgroep | Toegestane maximum hoeveelheid |
2 UN 1950 spuitbussen & UN 2037 houders, klein, gas | Gassen zoals propaan, zuurstof, acetyleen, aerosolen (spuitbussen) | n.v.t. | 50 kg |
3 | Brandbare vloeistoffen zoals bepaalde oplosmiddelen en aceton | II | 25 liter |
3 excl. dieselolie, gasolie of lichte stookolie met een vlampunt tussen 61°C en 100°C | Brandbare vloeistoffen zoals terpentine en bepaalde inkten | III | 50 liter |
4.1, 4.2, 4.3 | 4.1: brandbare vaste stoffen, zelfontledende vaste stoffen en vaste ontplofbare stoffen in niet-explosieve toestand zoals wrijvingslucifers, zwavel en metaalpoeders 4.2: voor zelfontbranding vatbare stoffen zoals fosfor (wit of geel) en diethylzink 4.3: stoffen die in contact met water brandbare gassen ontwikkelen zoals magnesiumpoeder, natrium en calciumcarbide | II en III | 50 kg |
5.1 | Brandbevorderende stoffen zoals waterstofperoxide | II en III | 50 liter |
5.2 | Organische peroxiden zoals dicumyl peroxide en di-propionyl peroxide | n.v.t. | 1 liter |
1 Classificatie volgens de Europese overeenkomst van 30 september 1957 betreffende het internationaal vervoer van gevaarlijke stoffen over de weg (Trb. 1959, 171).
De eigenaar of degene die uit anderen hoofde bevoegd is tot het treffen van voorzieningen aan het open erf of terrein en weet of redelijkerwijs kan vermoeden dat de staat van het open erf of terrein tot gevaar voor de gezondheid of de veiligheid kan leiden, is verplicht alle maatregelen te treffen die redelijkerwijs van diegene kunnen worden gevraagd om dat gevaar te voorkomen of niet te laten voortduren.
Degene die een open erf of terrein gebruikt en weet of redelijkerwijs kan vermoeden dat dit gebruik tot gevaar voor de gezondheid of de veiligheid kan leiden, is verplicht alle maatregelen te treffen die redelijkerwijs van diegene kunnen worden gevraagd om dat gevaar te voorkomen of niet te laten voortduren.
Degene die weet of redelijkerwijs kan vermoeden dat zijn handelen of nalaten op een open erf of terrein overlast of hinder veroorzaakt of kan veroorzaken voor de omgeving, is verplicht alle maatregelen te treffen die redelijkerwijs van diegene kunnen worden gevraagd om die overlast of hinder te voorkomen of niet te laten voortduren. Het gaat daarbij in elk geval om overlast of hinder door:
het op hinderlijke wijze verspreiden van rook, roet, walm, stof, stank, vocht of irriterend materiaal;
het veroorzaken van overlast door geluid, trilling, dieren of verontreiniging; en
het nalaten van het normale onderhoud waardoor het open erf of terrein zich niet in een zindelijke staat bevindt.
Met het oog op het waarborgen van de veiligheid wordt een open erf of terrein niet gebruikt als door of namens het bevoegd gezag is medegedeeld dat dit in verband met bouwvalligheid van een in de nabijheid gelegen bouwwerk gevaarlijk is.
Als er in het tijdelijke deel van dit omgevingsplan, bedoeld in artikel 22.1, onder a, van de Omgevingswet, regels worden gesteld over het verrichten van archeologisch onderzoek in het kader van een aanvraag om een omgevingsvergunning voor een bouwactiviteit of het uitvoeren van een werk, geen bouwwerk zijnde, of een werkzaamheid, zijn die regels niet van toepassing als die activiteit betrekking heeft op een oppervlakte van minder dan 100 m2.
Het eerste lid is van overeenkomstige toepassing voor zover er met betrekking tot die regels in het tijdelijke deel van dit omgevingsplan, bedoeld in artikel 22.1, onder a, van de Omgevingswet, een andere oppervlakte dan 100 m2 geldt. In dat geval geldt die afwijkende andere oppervlakte.
Artikel 22.23 Algemene afbakeningseisen
De artikelen 22.27 en 22.36 zijn niet van toepassing op een activiteit die wordt verricht in, aan, op of bij een bouwwerk dat is gebouwd of in stand wordt gehouden of wordt gebruikt zonder de daarvoor vereiste omgevingsvergunning.
Bij de toepassing van de artikelen 22.27 en 22.36 blijft het aantal woningen gelijk, tenzij het bij een bijbehorend bouwwerk of een uitbreiding daarvan als bedoeld in artikel 22.27, onder a, of 22.36, onder a, of een bestaand bouwwerk als bedoeld in artikel 22.36, onder c, gaat om huisvesting in verband met mantelzorg.
Voor de toepassing van de paragrafen 22.2.7.2 en 22.2.7.3 worden de waarden die daarin in m of m2 zijn uitgedrukt op de volgende wijze gemeten:
afstanden loodrecht;
hoogten vanaf het aansluitend afgewerkt terrein, waarbij plaatselijke, niet bij het verdere verloop van het terrein passende, ophogingen of verdiepingen aan de voet van het bouwwerk, anders dan noodzakelijk voor de bouw daarvan, buiten beschouwing blijven; en
maten buitenwerks, waarbij uitstekende delen van ondergeschikte aard tot ten hoogste 0,5 m buiten beschouwing blijven.
Voor de toepassing van het eerste lid, aanhef en onder b, wordt een bouwwerk, voor zover dit zich bevindt op een erf- of perceelgrens, gemeten aan de kant waar het aansluitend afgewerkt terrein het hoogst is.
Voor de toepassing van de paragrafen 22.2.7.2 en 22.2.7.3 wordt huisvesting in verband met mantelzorg aangemerkt als functioneel verbonden met het hoofdgebouw.
Artikel 22.26 Binnenplanse vergunning omgevingsplanactiviteit bouwwerken
Het is verboden zonder omgevingsvergunning een bouwactiviteit te verrichten en het te bouwen bouwwerk in stand te houden en te gebruiken.
Artikel 22.27 Uitzonderingen op vergunningplicht artikel 22.26 – omgevingsplan onverminderd van toepassing
Het verbod, bedoeld in artikel 22.26, geldt niet voor de activiteiten, bedoeld in dat artikel, als die betrekking hebben op een van de volgende bouwwerken:
een bijbehorend bouwwerk of een uitbreiding daarvan, als wordt voldaan aan de volgende eisen:
op de grond staand;
gelegen in achtererfgebied;
op een afstand van meer dan 1 m vanaf openbaar toegankelijk gebied;
niet hoger dan 5 m;
de ligging van een verblijfsgebied, bij meer dan een bouwlaag, alleen op de eerste bouwlaag; en
niet voorzien van een dakterras, balkon of andere niet op de grond gelegen buitenruimte;
een bouwwerk voor recreatief nachtverblijf, als wordt voldaan aan de volgende eisen:
een dakkapel in het voordakvlak of een naar openbaar toegankelijk gebied gekeerd zijdakvlak, als wordt voldaan aan de volgende eisen:
gelegen in een gebied dat of een bouwwerk dat in het tijdelijke deel van dit omgevingsplan, bedoeld in artikel 22.1, onder a, van de Omgevingswet, is aangewezen als gebied of bouwwerk waarvoor geen redelijke eisen van welstand van toepassing zijn;
voorzien van een plat dak;
gemeten vanaf de voet van de dakkapel niet hoger dan 1,75 m;
onderzijde meer dan 0,5 m en minder dan 1 m boven de dakvoet;
bovenzijde meer dan 0,5 m onder de daknok; en
zijkanten meer dan 0,5 m van de zijkanten van het dakvlak;
een sport- of speeltoestel anders dan voor alleen particulier gebruik, als wordt voldaan aan de volgende eisen:
een zwembad, bubbelbad of soortgelijke voorziening of een vijver op het gebouwerf bij een woning of woongebouw, als deze niet van een overkapping is voorzien;
een erf- of perceelafscheiding, als wordt voldaan aan de volgende eisen:
een bouwwerk, geen gebouw zijnde, in achtererfgebied voor agrarische bedrijfsvoering, voor zover het gaat om:
een buisleiding anders dan een buisleiding waarop artikel 2.29, onder p, aanhef en onder 4°, van het Besluit bouwwerken leefomgeving van toepassing is; of
een te veranderen bouwwerk, als wordt voldaan aan de volgende eisen:
Artikel 22.28 Inperkingen artikel 22.27 vanwege cultureel erfgoed
Op een activiteit die wordt verricht in, aan of op een gemeentelijk monument, voorbeschermd gemeentelijk monument, provinciaal monument, voorbeschermd provinciaal monument, rijksmonument of voorbeschermd rijksmonument is artikel 22.27 niet van toepassing.
Op een activiteit die wordt verricht bij een gemeentelijk monument, voorbeschermd gemeentelijk monument, provinciaal monument, voorbeschermd provinciaal monument, rijksmonument of voorbeschermd rijksmonument is alleen artikel 22.27, aanhef en onder d tot en met i, van toepassing.
Op een activiteit die wordt verricht op een locatie waaraan in dit omgevingsplan de functie-aanduiding rijksbeschermd stads- of dorpsgezicht is gegeven, is artikel 22.27 alleen van toepassing voor zover het gaat om:
inpandige wijzigingen;
een wijziging van een achtergevel of achterdakvlak, als die gevel of dat dakvlak niet naar openbaar toegankelijk gebied is gekeerd;
een bouwwerk op een gebouwerf aan de achterkant van een hoofdgebouw, als dat gebouwerf niet ook deel uitmaakt van het gebouwerf aan de zijkant van dat gebouw en niet naar openbaar toegankelijk gebied is gekeerd; of
een bouwwerk op een locatie die onderdeel is van openbaar toegankelijk gebied.
Artikel 22.27, aanhef en onder a en b, is ook niet van toepassing als in het tijdelijke deel van dit omgevingsplan, bedoeld in artikel 22.1, onder a, van de Omgevingswet, voor de locatie waarop de bouwactiviteit wordt verricht, regels zijn gesteld als bedoeld in artikel 22.22 over het verrichten van archeologisch onderzoek in het kader van een aanvraag om een omgevingsvergunning voor een bouwactiviteit, tenzij:
het bouwwerk waarop de activiteit betrekking heeft een oppervlakte heeft van minder dan 50 m2; of
het tijdelijke deel van dit omgevingsplan, bedoeld in artikel 22.1, onder a, van de Omgevingswet, een verbod bevat om grondwerkzaamheden die nodig zijn voor het verrichten van de bouwactiviteit zonder omgevingsvergunning te verrichten waarop regels als bedoeld in artikel 22.22 over het verrichten van archeologisch onderzoek in het kader van een aanvraag om een omgevingsvergunning voor het uitvoeren van een werk, geen bouwwerk zijnde, of een werkzaamheid, van toepassing zijn.
Artikel 22.29 Beoordelingsregels aanvraag binnenplanse omgevingsvergunning omgevingsplanactiviteit bouwwerken algemeen
Voor zover een aanvraag om een omgevingsvergunning betrekking heeft op een bouwactiviteit en het in stand houden en gebruiken van het te bouwen bouwwerk, wordt de omgevingsvergunning alleen verleend als:
de activiteit niet in strijd is met de in dit omgevingsplan gestelde regels over het bouwen, in stand houden en gebruiken van bouwwerken, met uitzondering van paragraaf 22.2.4;
het uiterlijk of de plaatsing van het bouwwerk, met uitzondering van een tijdelijk bouwwerk dat geen seizoensgebonden bouwwerk is, zowel op zichzelf beschouwd als in verband met de omgeving of de te verwachten ontwikkeling daarvan, niet in strijd is met redelijke eisen van welstand, beoordeeld volgens de criteria van de welstandsnota, bedoeld in artikel 12a, eerste lid, van de Woningwet, zoals dat artikel luidde voor de inwerkingtreding van de Omgevingswet; en
de activiteit betrekking heeft op een bodemgevoelig gebouw op een bodemgevoelige locatie en:
de toelaatbare kwaliteit van de bodem niet wordt overschreden; of
bij overschrijding van de toelaatbare kwaliteit van de bodem: als aannemelijk is dat een sanerende of andere beschermende maatregelen wordt getroffen. Een sanerende of andere beschermende maatregel is in ieder geval een sanering overeenkomstig paragraaf 4.121 van het Besluit activiteiten leefomgeving.
Het eerste lid, aanhef en onder b, is niet van toepassing als:
het gaat om een in het tijdelijke deel van dit omgevingsplan, bedoeld in artikel 22.1, onder a, van de Omgevingswet, aangewezen gebied of bouwwerk waarvoor geen redelijke eisen van welstand van toepassing zijn; of
het bevoegd gezag van oordeel is dat de omgevingsvergunning in afwijking van het eerste lid, aanhef en onder b, toch moet worden verleend.
Artikel 22.30 Nadere invulling beoordelingsregel omgevingsplanactiviteit bouwwerken bodemgevoelig gebouw op bodemgevoelige locatie
De toelaatbare kwaliteit van de bodem, bedoeld in artikel 22.29, eerste lid, onder c, is de interventiewaarde bodemkwaliteit, bedoeld in bijlage IIA bij het Besluit activiteiten leefomgeving.
Er is sprake van overschrijding van de toelaatbare kwaliteit als voor ten minste één stof de gemiddelde gemeten concentratie in meer dan 25 m3 bodemvolume hoger is dan de interventiewaarde bodemkwaliteit.
Het zinsdeel «in meer dan 25 m3 bodemvolume» in het tweede lid is niet van toepassing voor zover het gaat om aanwezigheid van asbest.
Artikel 22.31 Voorschrift omgevingsvergunning omgevingsplanactiviteit bouwwerken bodemgevoelig gebouw op bodemgevoelige locatie: na einde activiteit
Aan een omgevingsvergunning voor een bodemgevoelig gebouw op een bodemgevoelige locatie die is verleend met toepassing van artikel 22.29, eerste lid, aanhef en onder c, onder 2, wordt in ieder geval het voorschrift verbonden dat het gebouw, of een gedeelte daarvan, alleen in gebruik wordt genomen nadat het college van burgemeester en wethouders is geïnformeerd over de wijze waarop er een of meer sanerende of andere beschermende maatregelen zijn getroffen als bedoeld in artikel 22.29.
Artikel 22.32 Specifieke beoordelingsregel aanvraag binnenplanse omgevingsvergunning omgevingsplanactiviteit bouwwerken bij regels over een wijzigingsbevoegdheid of uitwerkingsplicht
In afwijking van artikel 22.29, eerste lid, aanhef en onder a, kan de omgevingsvergunning voor een activiteit die in strijd is met de in dat onderdeel bedoelde regels toch worden verleend als de activiteit niet in strijd is met regels voor de toepassing van een wijzigingsbevoegdheid of het voldoen aan een uitwerkingsplicht in het tijdelijke deel van dit omgevingsplan, bedoeld in artikel 22.1, onder a, van de Omgevingswet.
Op de beslissing of een omgevingsvergunning met toepassing van het eerste lid kan worden verleend, zijn van overeenkomstige toepassing:
artikel 8.0b, eerste lid, en tweede lid, aanhef en onder a, van het Besluit kwaliteit leefomgeving;
artikel 8.0c, eerste lid, en tweede lid, aanhef en onder a, van het Besluit kwaliteit leefomgeving; en
artikel 8.0d, eerste lid, en tweede lid, aanhef en onder a, van het Besluit kwaliteit leefomgeving.
Artikel 22.33 Specifieke beoordelingsregels aanvraag binnenplanse omgevingsvergunning omgevingsplanactiviteit bouwwerken bij voorbereidingsbesluit of aanwijzing als beschermd stads- of dorpsgezicht
In afwijking van artikel 22.29 wordt de omgevingsvergunning geweigerd, als voor de locatie waarop de aanvraag betrekking heeft van kracht is:
een voorbereidingsbesluit als bedoeld in artikel 4.103 of 4.104 van de Invoeringswet Omgevingswet, een als voorbereidingsbesluit geldend tracébesluit als bedoeld in artikel 4.49 van de Invoeringswet Omgevingswet of een als voorbereidingsbesluit geldend besluit krachtens de Wet luchtvaart als bedoeld in artikel 4.104a van de Invoeringswet Omgevingswet; of
een aanwijzing als beschermd stads- of dorpsgezicht als bedoeld in artikel 4.35 van de Invoeringswet Omgevingswet waarvoor het omgevingsplan dat voorziet in de bescherming van het stads- of dorpsgezicht nog niet in werking is getreden.
In afwijking van het eerste lid kan de omgevingsvergunning toch worden verleend als de activiteit niet in strijd is met het in voorbereiding zijnde omgevingsplan respectievelijk het in voorbereiding zijnde omgevingsplan dat voorziet in de bescherming van het stads- of dorpsgezicht.
Artikel 22.34 Voorschriften over archeologische monumentenzorg binnenplanse omgevingsvergunning omgevingsplanactiviteit bouwwerken
Als dat in het tijdelijke deel van dit omgevingsplan, bedoeld in artikel 22.1, onder a, van de Omgevingswet, is bepaald, kunnen aan een omgevingsvergunning voor een bouwactiviteit in het belang van de archeologische monumentenzorg voorschriften worden verbonden.
Artikel 22.303, eerste lid, is op het verbinden van die voorschriften van overeenkomstige toepassing.
Artikel 22.35 Aanvraagvereisten binnenplanse omgevingsvergunning omgevingsplanactiviteit bouwwerken
Bij een aanvraag om een omgevingsvergunning voor een omgevingsplanactiviteit met betrekking tot een bouwwerk worden voor de toetsing aan dit omgevingsplan in ieder geval de volgende gegevens en bescheiden verstrekt:
een opgave van de bouwkosten;
het beoogde en het huidige gebruik van het bouwwerk en de bijbehorende gronden waarop de aanvraag betrekking heeft;
een opgave van de bruto inhoud in m3 en de bruto vloeroppervlakte in m2 van het deel van het bouwwerk waarop de aanvraag betrekking heeft;
een situatietekening van de bestaande toestand en een situatietekening van de nieuwe toestand met daarop:
de afmetingen van het perceel en bebouwd oppervlak;
de situering van het bouwwerk ten opzichte van de perceelsgrenzen en de wegzijde;
de wijze waarop de locatie wordt ontsloten;
de aangrenzende locaties en de daarop voorkomende bebouwing; en
het beoogd gebruik van de gronden behorende bij het voorgenomen bouwwerk;
de hoogte van het bouwwerk ten opzichte van het straatpeil en het aantal bouwlagen;
de inrichting van parkeervoorzieningen op het eigen terrein;
gegevens en bescheiden die samenhangen met een uit te brengen advies van de Agrarische Adviescommissie in geval van een aanvraag voor een bouwactiviteit op een locatie waaraan een agrarische functie is toegedeeld;
voor zover dat in het tijdelijke deel van dit omgevingsplan, bedoeld in artikel 22.1, onder a, van de Omgevingswet, is bepaald: een rapport waarin de archeologische waarde van de locatie in voldoende mate is vastgesteld;
de volgende gegevens en bescheiden voor de toetsing aan de regels over redelijke eisen van welstand, beoordeeld volgens de criteria van de welstandsnota, bedoeld in artikel 12a, eerste lid, van de Woningwet, zoals dat artikel luidde voor de inwerkingtreding van de Omgevingswet:
tekeningen van alle gevels van het bouwwerk, inclusief de gevels van belendende bebouwing, waaruit blijkt hoe het geplande bouwwerk in de directe omgeving past;
principedetails van gezichtsbepalende delen van het bouwwerk;
kleurenfoto's van de bestaande situatie en de omliggende bebouwing; en
een opgave van de toe te passen bouwmaterialen in de uitwendige scheidingsconstructie en de kleur daarvan, waaronder in ieder geval het materiaal en de kleur van de gevels, het voegwerk, kozijnen, ramen en deuren, balkonhekken, dakgoten, boeidelen en de dakbedekking;
als de aanvraag betrekking heeft op een bodemgevoelig gebouw op een bodemgevoelige locatie:
de onderzoeken, bedoeld in paragraaf 5.2.2 van het Besluit activiteiten leefomgeving, tenzij het gaat om een locatie die is aangewezen in dit omgevingsplan waar een overschrijding van de toelaatbare kwaliteit, bedoeld in artikel 22.30, redelijkerwijs is uit te sluiten; en
als de toelaatbare kwaliteit, bedoeld in artikel 22.30, wordt overschreden: gegevens en bescheiden die aannemelijk maken dat een sanerende of andere beschermende maatregel wordt getroffen, tenzij het gaat om een locatie die is aangewezen in dit omgevingsplan waar een overschrijding van de toelaatbare kwaliteit, bedoeld in artikel 22.30, redelijkerwijs is uit te sluiten; en
overige gegevens en bescheiden die samenhangen met een eventueel benodigde toetsing aan dit omgevingsplan.
Artikel 22.36 Binnenplanse vergunningvrije activiteiten van rechtswege in overeenstemming met dit omgevingsplan
Onverminderd de overige bepalingen van deze afdeling en de bepalingen van afdeling 22.3 zijn in ieder geval in overeenstemming met dit omgevingsplan:
het bouwen, in stand houden en gebruiken van een bijbehorend bouwwerk of een uitbreiding daarvan als bedoeld in artikel 22.27, onder a, als in aanvulling op de in dat onderdeel gestelde eisen ook wordt voldaan aan de volgende eisen:
voor zover op een afstand van niet meer dan 4 m van het oorspronkelijk hoofdgebouw, niet hoger dan:
voor zover op een afstand van meer dan 4 m van het oorspronkelijk hoofdgebouw:
als het bijbehorend bouwwerk of de uitbreiding daarvan hoger is dan 3 m: voorzien van een schuin dak, de dakvoet niet hoger dan 3 m, de daknok gevormd door twee of meer schuine dakvlakken, met een hellingshoek van niet meer dan 55°, en waarbij de hoogte van de daknok niet meer is dan 5 m en verder wordt begrensd door de volgende formule: maximale daknokhoogte [m] = (afstand daknok tot de perceelsgrens [m] x 0,47) + 3; en
functioneel ondergeschikt aan het hoofdgebouw, tenzij het gaat om huisvesting in verband met mantelzorg;
de oppervlakte van bijbehorende bouwwerken in het bebouwingsgebied niet meer dan:
bij een bebouwingsgebied kleiner dan of gelijk aan 100 m2: 50% van dat bebouwingsgebied;
bij een bebouwingsgebied groter dan 100 m2 en kleiner dan of gelijk aan 300 m2: 50 m2, vermeerderd met 20% van het deel van het bebouwingsgebied dat groter is dan 100 m2; en
bij een bebouwingsgebied groter dan 300 m2: 90 m2, vermeerderd met 10% van het deel van het bebouwingsgebied dat groter is dan 300 m2, tot een maximum van in totaal 150 m2; en
uitbreiding van of gelegen aan of bij een hoofdgebouw, anders dan:
een woonwagen;
een hoofdgebouw waarvoor in de omgevingsvergunning voor de bouwactiviteit of de omgevingsplanactiviteit bestaande uit een bouwactiviteit is bepaald dat de vergunninghouder na het verstrijken van een bij die vergunning gestelde termijn verplicht is de voor de verlening van de vergunning bestaande toestand te hebben hersteld; of
een bouwwerk voor recreatief nachtverblijf door één huishouden;
het bouwen, in stand houden en gebruiken van een erf- of perceelafscheiding als bedoeld in artikel 22.27, onder f; en
het gebruiken van een bestaand bouwwerk voor huisvesting in verband met mantelzorg.
Artikel 22.37 Bijbehorend bouwwerk in bijzondere gevallen
Als een bijbehorend bouwwerk als bedoeld in artikel 22.36, onder a, bestaat uit een deel dat op meer, en een deel dat op minder dan 4 m van het oorspronkelijk hoofdgebouw is gelegen zonder een inwendige scheidingsconstructie tussen beide delen, is op het deel dat op minder dan 4 m van het oorspronkelijk hoofdgebouw is gelegen artikel 22.36, onder a, onder 2, onder ii, van overeenkomstige toepassing.
Als een bijbehorend bouwwerk als bedoeld in artikel 22.36, onder a, wordt gebruikt voor huisvesting in verband met mantelzorg, gelden in plaats van de in artikel 22.36, onder a, onder 3, gestelde eisen de volgende eisen:
Artikel 22.38 Inperkingen artikel 22.36 vanwege cultureel erfgoed
Artikel 22.36 is niet van toepassing op een activiteit die wordt verricht:
in, aan, op of bij een gemeentelijk monument, voorbeschermd gemeentelijk monument, provinciaal monument, voorbeschermd provinciaal monument, rijksmonument of voorbeschermd rijksmonument; of
op een locatie waaraan in dit omgevingsplan de functie-aanduiding rijksbeschermd stads- of dorpsgezicht is gegeven.
Artikel 22.39 Inperkingen artikel 22.36 vanwege externe veiligheid
Artikel 22.36, aanhef en onder a en c, is niet van toepassing op een activiteit die wordt verricht:
op een locatie in een in het tijdelijke deel van dit omgevingsplan, bedoeld in artikel 22.1, onder a, van de Omgevingswet, opgenomen veiligheidszone, getypeerd als A-zone of B-zone, rondom een munitieopslag of een locatie voor activiteiten met ontplofbare stoffen;
op een locatie waarop de activiteit op grond van het tijdelijke deel van dit omgevingsplan, bedoeld in artikel 22.1, onder a, van de Omgevingswet, niet is toegestaan vanwege het overschrijden van het plaatsgebonden risico van 10-6 per jaar als gevolg van de aanwezigheid van een locatie voor een vergunningplichtige milieubelastende activiteit, transportroute of buisleiding of vanwege de ligging in een belemmeringenstrook voor het onderhoud van een buisleiding; of
op een locatie binnen een afstand als bedoeld in:
artikel 4.421, eerste lid, onder b, of tweede lid, van het Besluit activiteiten leefomgeving, voor zover het eerste lid, aanhef en onder b, van dat artikel van toepassing is;
artikel 4.472c, eerste lid, van het Besluit activiteiten leefomgeving, voor zover het tweede lid van dat artikel van toepassing is;
artikel 4.484, eerste lid, van het Besluit activiteiten leefomgeving, voor zover het tweede lid van dat artikel van toepassing is;
artikel 4.524, eerste of tweede lid, van het Besluit activiteiten leefomgeving, voor zover het derde lid van dat artikel van toepassing is;
artikel 4.532, eerste lid, van het Besluit activiteiten leefomgeving, voor zover het tweede lid van dat artikel van toepassing is;
artikel 4.542, eerste lid, van het Besluit activiteiten leefomgeving, voor zover het tweede lid van dat artikel van toepassing is;
artikel 4.866, eerste of tweede lid, van het Besluit activiteiten leefomgeving, voor zover het derde lid van dat artikel van toepassing is;
artikel 4.899, eerste lid, onder b, of derde lid, van het Besluit activiteiten leefomgeving, voor zover het eerste lid, aanhef en onder b, of het tweede lid van dat artikel van toepassing is;
artikel 4.905, eerste lid, onder b, of tweede lid, van het Besluit activiteiten leefomgeving, voor zover het eerste lid, aanhef en onder b, of het derde lid van dat artikel van toepassing is;
artikel 4.914, eerste lid, onder b, van het Besluit activiteiten leefomgeving, voor zover het eerste lid, aanhef en onder b, of het tweede lid van dat artikel van toepassing is;
artikel 4.962, eerste lid, onder b, van het Besluit activiteiten leefomgeving, voor zover het eerste lid, aanhef en onder b, of het tweede lid van dat artikel van toepassing is;
artikel 4.1008, eerste lid, onder b, of tweede lid, onder b, van het Besluit activiteiten leefomgeving, voor zover het eerste lid, aanhef en onder b, het tweede lid, aanhef en onder b, of het derde lid van dat artikel van toepassing is; of
artikel 4.1101, eerste lid, onder b, van het Besluit activiteiten leefomgeving, voor zover het eerste lid, aanhef en onder b, of het tweede lid van dat artikel van toepassing is.
Een bouwwerk waarop het overgangsrecht voor bestaande bouwwerken in het tijdelijke deel van dit omgevingsplan, bedoeld in artikel 22.1, eerste lid, onder a, van de Omgevingswet, van toepassing is, mag in stand worden gehouden.
Deze afdeling is van toepassing op een milieubelastende activiteit als bedoeld in de bijlage bij de Omgevingswet.
Deze afdeling is niet van toepassing op:
wonen;
het feitelijk verrichten van bouw- en sloopwerkzaamheden aan bouwwerken of het feitelijk verrichten van onderhoudswerkzaamheden aan een bouwwerk of van een terrein;
een milieubelastende activiteit die in hoofdzaak in de openbare buitenruimte wordt verricht;
doorgaand verkeer op wegen, vaarwegen en spoorwegen;
een evenement:
het verrichten van werkzaamheden met een mobiele installatie op een weiland, akker of bos die geen verplaatsbaar mijnbouwwerk als bedoeld in artikel 4.1116 van het Besluit activiteiten leefomgeving is; en
bruggen, viaducten, verkeerstunnels en andere ondergronds gelegen bouwwerken voor het vervoer van personen of goederen en beweegbare waterkeringen.
Het tweede lid geldt niet voor milieubelastende activiteiten die bestaan uit het lozen op of in de bodem of op de riolering, voor zover het gaat om de gevolgen van het lozen voor de bodem, voor de voorzieningen voor de inzameling en het transport van afvalwater of voor het zuiveringtechnisch werk.
Het tweede lid geldt niet voor de activiteiten, bedoeld in paragraaf 22.3.7.
De regels in deze afdeling zijn gesteld met het oog op:
Aan deze afdeling wordt voldaan door degene die de activiteit verricht. Diegene draagt zorg voor de naleving van de regels over de activiteit.
Degene die een activiteit verricht en weet of redelijkerwijs kan vermoeden dat die activiteit nadelige gevolgen kan hebben voor de belangen, bedoeld in artikel 22.42, is verplicht:
alle maatregelen te treffen die redelijkerwijs van diegene kunnen worden gevraagd om die gevolgen te voorkomen;
voor zover die gevolgen niet kunnen worden voorkomen: die gevolgen zoveel mogelijk te beperken of ongedaan te maken; en
als die gevolgen onvoldoende kunnen worden beperkt: die activiteit achterwege te laten voor zover dat redelijkerwijs van diegene kan worden gevraagd.
Deze plicht houdt in ieder geval in dat:
alle passende preventieve maatregelen tegen milieuverontreiniging worden getroffen;
alle passende preventieve maatregelen ter bescherming van de gezondheid worden getroffen;
de beste beschikbare technieken worden toegepast;
geen significante milieuverontreiniging wordt veroorzaakt;
alle passende maatregelen worden getroffen voor het voorkomen van ongewone voorvallen en de nadelige gevolgen daarvan, bedoeld in artikel 19.1, eerste lid, van de Omgevingswet;
afvalwater dat wordt geloosd en gekanaliseerde emissies van stoffen in de lucht doelmatig kunnen worden bemonsterd;
metingen representatief zijn en monsters niet worden verdund;
meetresultaten op geschikte wijze worden geregistreerd, verwerkt, en gepresenteerd;
voor zover verontreiniging van de bodem ontstaat, herstel van de bodem redelijkerwijs mogelijk blijft; en
afvalstoffen worden afgevoerd na beëindiging van een activiteit.
De plicht, bedoeld in het eerste lid, houdt in ieder geval ook in dat:
Het eerste lid, voor zover het ziet op het tweede lid, en het tweede lid, zijn niet van toepassing op een milieubelastende activiteit die is aangewezen in hoofdstuk 3 van het Besluit activiteiten leefomgeving.
Een maatwerkvoorschrift kan worden gesteld over de artikelen 22.44, 22.49 en 22.50 en de paragrafen 22.3.2 tot en met 22.3.26.
Met een maatwerkvoorschrift kan worden afgeweken van de artikelen 22.49 en 22.50 en de paragrafen 22.3.2 tot en met 22.3.26.
Een maatwerkvoorschrift wordt gesteld met het oog op de belangen, bedoeld in artikel 22.42.
Op het stellen van een maatwerkvoorschrift over een milieubelastende activiteit zijn de instructieregels in paragraaf 5.1.4 en artikel 5.165 van het Besluit kwaliteit leefomgeving, van overeenkomstige toepassing.
Als gegevens en bescheiden worden verstrekt aan het college van burgemeester en wethouders, worden die ondertekend en voorzien van:
Voordat de naam of het adres, bedoeld in artikel 22.46, wijzigen, worden de daardoor gewijzigde gegevens verstrekt aan het college van burgemeester en wethouders.
Ten minste vier weken voordat de activiteit door een ander zal gaan worden verricht, worden de daardoor gewijzigde gegevens verstrekt aan het college van burgemeester en wethouders.
Op verzoek van het college van burgemeester en wethouders worden de gegevens en bescheiden verstrekt die nodig zijn om te bezien of de algemene regels uit dit omgevingsplan en maatwerkvoorschriften op grond van dit omgevingsplan voor de activiteit toereikend zijn gezien de ontwikkelingen van de technische mogelijkheden tot het beschermen van het milieu en de ontwikkelingen met betrekking tot de kwaliteit van het milieu.
Gegevens en bescheiden worden verstrekt voor zover degene die de activiteit verricht er redelijkerwijs de beschikking over kan krijgen.
Zodra de volgende gegevens en bescheiden bekend zijn, worden ze verstrekt aan het college van burgemeester en wethouders:
informatie over de oorzaken van het ongewoon voorval en de omstandigheden waaronder het ongewoon voorval zich heeft voorgedaan;
informatie over de vrijgekomen stoffen en hun eigenschappen;
andere gegevens die nodig zijn om de aard en de ernst van de gevolgen voor de fysieke leefomgeving te kunnen inschatten; en
informatie over de maatregelen die zijn getroffen of worden overwogen om de nadelige gevolgen van het ongewoon voorval te voorkomen als bedoeld in artikel 19.1, eerste lid, van de Omgevingswet.
Het eerste lid geldt niet voor:
Deze paragraaf is niet van toepassing op een milieubelastende activiteit die is aangewezen in de afdelingen 3.3 tot en met 3.11 van het Besluit activiteiten leefomgeving.
Alle energiebesparende maatregelen met een terugverdientijd van ten hoogste vijf jaar worden getroffen.
Het eerste lid is niet van toepassing:
als het energieverbruik van de activiteit en andere milieubelastende activiteiten die worden verricht op dezelfde locatie en die de activiteit functioneel ondersteunen, in het voorafgaande jaar kleiner is dan 50.000 kWh aan elektriciteit en 25.000 m3 aardgasequivalenten aan brandstoffen;
als artikel 15.51 of 16.5 van de Wet milieubeheer van toepassing is; of
op energiebesparende maatregelen aan een gebouw of gedeelte daarvan als bedoeld in artikel 3.84 van het Besluit bouwwerken leefomgeving.
Aan het eerste lid wordt in ieder geval voldaan door het treffen van de maatregelen die zijn opgenomen in bijlage VII, onderdeel 16, bij de Omgevingsregeling.
Dit artikel is van toepassing tot 1 december 2023.
Als voor de inwerkingtreding van de Omgevingswet op grond van artikel 2.15, tweede, tiende of elfde lid, van het Activiteitenbesluit milieubeheer gegevens en bescheiden zijn verstrekt of hadden moeten worden verstrekt, blijven de uit artikel 2.15 van het Activiteitenbesluit milieubeheer, zoals dat artikel luidde voor de inwerkingtreding van de Omgevingswet, volgende verplichtingen en de verplichtingen volgend uit de regels die bij of krachtens dat artikel in samenhang met artikel 1.7, eerste lid, van het Activiteitenbesluit milieubeheer, zoals dat artikel luidde voor de inwerkingtreding van de Omgevingswet, zijn gesteld, tot 1 december 2023 van toepassing.
Op een activiteit waarop het eerste lid van toepassing is, is gedurende de periode, bedoeld in dat lid, artikel 22.52 niet van toepassing.
Met het oog op het doelmatig beheer van afvalstoffen worden binnen een straal van 25 m rond de begrenzing van de locatie waarop de activiteit wordt verricht, zo vaak als nodig etenswaren, verpakkingen, sport- of spelmaterialen, of andere materialen verwijderd die van de activiteit afkomstig zijn.
Artikel 22.54 Toepassingsbereik
Paragraaf 22.3.4 is van toepassing op het geluid door een activiteit op of in een geluidgevoelig gebouw dat is toegelaten op grond van een omgevingsplan of een omgevingsvergunning voor een omgevingsplanactiviteit
In afwijking van het eerste lid is deze paragraaf niet van toepassing op geluid door een activiteit:
op of in een geluidgevoelig gebouw, dat geheel of gedeeltelijk ligt op een gezoneerd industrieterrein of op een industrieterrein waarvoor geluidproductieplafonds als omgevingswaarden zijn vastgesteld;
op of in een geluidgevoelig gebouw, dat is toegelaten op grond van een omgevingsplan of een omgevingsvergunning voor een omgevingsplanactiviteit voor een duur van niet meer dan tien jaar; en
op een niet-geluidgevoelige gevel.
Deze paragraaf is niet van toepassing op het geluid van:
Deze paragraaf is alleen van toepassing op het geluid door activiteiten bij detailhandel als:
Artikel 22.55 Toepassingsbereik: eerbiedigende werking
In afwijking van artikel 22.54, tweede lid, onder b, is deze paragraaf ook van toepassing op het geluid door een activiteit op of in een geluidgevoelig gebouw, dat is toegelaten voor een duur van niet meer dan tien jaar:
In afwijking van artikel 22.54 is deze paragraaf niet van toepassing op het geluid door een activiteit op of in een geluidgevoelig gebouw dat nog niet aanwezig is als:
Artikel 22.56 Geluid: meerdere activiteiten beschouwen als één activiteit
Onverminderd artikel 22.41 worden voor de toepassing van paragraaf 22.3.4 als één activiteit beschouwd, meerdere activiteiten die worden verricht op dezelfde locatie en die:
Artikel 22.57 Geluid: waar waarden gelden
De waarden voor het geluid door een activiteit gelden:
als het gaat om een geluidgevoelig gebouw: op de gevel;
als het gaat om een nieuw te bouwen geluidgevoelig gebouw: op de locatie waar een gevel mag komen;
in afwijking van onder a en b, als het gaat om een woonschip of woonwagen: op de begrenzing van de locatie voor het plaatsen van dat woonschip of die woonwagen; en
als het gaat om een geluidgevoelige ruimte: in een geluidgevoelige ruimte.
Artikel 22.58 Geluid: functionele binding
De waarden voor geluid zijn niet van toepassing op het geluid door een activiteit op of in een geluidgevoelig gebouw dat een functionele binding heeft met die activiteit.
Artikel 22.59 Geluid: voormalige functionele binding
Bij een agrarische activiteit zijn de waarden voor geluid niet van toepassing op of in een geluidgevoelig gebouw dat:
op grond van het tijdelijke deel van dit omgevingsplan, bedoeld in artikel 22.1, onder a, van de Omgevingswet of een voor de inwerkingtreding van de Omgevingswet aangevraagde omgevingsvergunning, behoort of heeft behoord tot die agrarische activiteit en door een derde bewoond mag worden; of
eerder functioneel verbonden was met die agrarische activiteit en waarvoor op grond van artikel 5.62 van het Besluit kwaliteit leefomgeving in dit omgevingsplan of een omgevingsvergunning voor een buitenplanse omgevingsplanactiviteit is bepaald dat de waarden voor geluid niet van toepassing zijn.
Artikel 22.60 Geluid: onderzoek
In de volgende gevallen wordt er een geluidonderzoek verricht:
als tussen 19.00 en 7.00 uur per dag gemiddeld meer dan vier transportbewegingen plaatsvinden met motorvoertuigen waarvan de massa van het ledig voertuig vermeerderd met het laadvermogen meer is dan 3.500 kg en binnen een afstand van 50 m van de begrenzing van de locatie waarop de activiteit wordt verricht geluidgevoelige gebouwen aanwezig zijn, tenzij het gaat om het bieden van gelegenheid voor het tanken van motorvoertuigen van derden of een activiteit waarvan horeca-activiteiten de kern vormen;
bij het opwekken van elektriciteit met een windturbine met een rotordiameter van meer dan 2 m, bedoeld in artikel 3.11 van het Besluit activiteiten leefomgeving;
als in de buitenlucht metalen in bulk worden overgeslagen of in de buitenlucht metalen mechanisch worden bewerkt;
bij het reinigen van afvalwater door waterstraal- of oppervlaktebeluchters met een capaciteit van 120.000 of meer vervuilingseenheden;
bij het neutraliseren van airbags of gordelspanners door deze te ontsteken;
bij het vervaardigen van betonmortel of betonwaren;
bij een binnenschietbaan als de afstand van de binnenschietbaan tot het dichtstbijzijnde geluidgevoelige gebouw kleiner is dan 50 m;
bij een buitenschietbaan als bedoeld in artikel 22.79; en
als het op basis van de aard van de activiteit aannemelijk is dat:
Het gemiddelde aantal transportbewegingen is een gemiddelde gemeten over de periode van een jaar.
Voor een activiteit waarvan agrarische activiteiten de kern vormen, geldt in afwijking van het eerste lid, onder a, het aantal transportbewegingen tussen 19.00 en 6.00 uur.
Uit het rapport van een geluidonderzoek, bedoeld in het eerste lid, blijkt op grond van verrichte geluidsmetingen of geluidsberekeningen of wordt voldaan aan:
de waarden, bedoeld in de paragrafen 22.3.4.2, 22.3.4.3 en 22.3.4.4; of
de van toepassing zijnde geluidswaarden van de omgevingsvergunning of een maatwerkvoorschrift. In het rapport wordt aangegeven welke voorzieningen worden getroffen om te voorkomen dat de waarden, bedoeld onder a en b, worden overschreden.
Artikel 22.61 Gegevens en bescheiden: rapport geluidonderzoek
Ten minste vier weken voor het begin van de activiteit wordt het rapport van het geluidonderzoek, bedoeld in artikel 22.60, verstrekt aan het college van burgemeester en wethouders.
Ten minste vier weken voordat de activiteit op een andere manier wordt verricht dan op grond van de gegevens in het rapport van het geluidonderzoek, worden de gewijzigde gegevens verstrekt aan het college van burgemeester en wethouders.
Dit artikel is van toepassing op een activiteit op een gezoneerd industrieterrein.
Dit artikel is niet van toepassing op een activiteit waar:
tussen 19.00 en 7.00 uur gemiddeld niet meer dan vier transportbewegingen per dag plaatsvinden met motorvoertuigen waarvan de massa van het ledig voertuig vermeerderd met het laadvermogen meer is dan 3.500 kg en binnen een afstand van 50 m van de begrenzing van de locatie waarop de activiteit wordt verricht geluidgevoelige gebouwen aanwezig zijn;
het mede op basis van de aard van de activiteit, niet aannemelijk is dat in enige ruimte op de locatie waarop de activiteit wordt verricht het equivalente geluidsniveau (LAeq) veroorzaakt door de ten gehore gebrachte muziek in de representatieve bedrijfssituatie, meer bedraagt dan:
in de buitenlucht of op een open terrein geen muziek ten gehore wordt gebracht;
in de buitenlucht geen oefenterrein voor motorvoertuigen aanwezig is;
geen koelinstallatie aanwezig is die volgens de gebruiksaanwijzing behoort te zijn gevuld met meer dan 30 kg synthetisch koudemiddel;
geen gemotoriseerde modelvliegtuigen, modelvaartuigen of modelvoertuigen in de open lucht worden gebruikt;
geen parkeergelegenheid wordt geboden in een parkeergarage voor meer dan 30 personenauto’s;
geen noodstroomaggregaat aanwezig is dat meer dan 50 uren per jaar in werking is; en
geen transformatoren met een maximaal gelijktijdig in te schakelen elektrisch vermogen van 200 MVA of meer, die zijn ondergebracht in een gesloten gebouw, worden gebruikt;
Dit artikel is ook niet van toepassing op een activiteit waarvoor op grond van hoofdstuk 2, 3, 4 of 5 van het Besluit activiteiten leefomgeving, artikel 22.61 of een ander artikel in deze afdeling een verplichting geldt om gegevens en bescheiden te verstrekken of een omgevingsvergunning aan te vragen voor het beginnen of wijzigen van die activiteit.
Ten minste vier weken voor het begin van een activiteit worden aan het college van burgemeester en wethouders de volgende gegevens en bescheiden verstrekt:
informatie over de aard en omvang van de activiteit en de aard en omvang van de daarbij behorende processen;
gegevens over de indeling van de locatie waarop de activiteit wordt verricht, waarbij het volgende wordt aangegeven:
een situatietekening met een schaal van ten minste 1:10.000 waarop de activiteit is aangegeven en die is voorzien van een noordpijl; en
gegevens over de verwachte datum van het begin van de activiteit.
Ten minste vier weken voordat de activiteit wijzigt, worden de gewijzigde gegevens verstrekt aan het college van burgemeester en wethouders.
Artikel 22.62 Toepassingsbereik
Deze paragraaf is van toepassing op het geluid door een activiteit op of in een geluidgevoelig gebouw, met uitzondering van een activiteit als bedoeld in de paragrafen 22.3.4.3 en 22.3.4.4.
Deze paragraaf is niet van toepassing op het geluid waarvoor bij maatwerkvoorschrift of maatwerkregel is bepaald dat het niet representatief is voor een activiteit.
Deze paragraaf is niet van toepassing op een windpark met 3 of meer windturbines.
Artikel 22.63 Geluid: waarden voor geluidgevoelige gebouwen
Met het oog op het voorkomen of het beperken van geluidhinder is het geluid door een activiteit op een geluidgevoelig gebouw, niet hoger dan de waarde, bedoeld in tabel 22.3.1.
Met het oog op het voorkomen of het beperken van geluidhinder is, in afwijking van het eerste lid, het geluid van een activiteit die wordt verricht op een Activiteitenbesluit-bedrijventerrein, op een geluidgevoelig gebouw op dat terrein, niet hoger dan de waarde, bedoeld in tabel 22.3.2.
07.00 – 19.00 uur | 19.00 – 23.00 uur | 23.00 – 07.00 uur | |
Langtijdgemiddelde beoordelingsniveau LAr,LT als gevolg van activiteiten | 55 dB(A) | 50 dB(A) | 45 dB(A |
Maximaal geluidniveau LAmax als gevolg van activiteiten | 75 dB(A) | 70 dB(A) | 65 dB(A) |
Met het oog op het voorkomen of het beperken van geluidhinder is het geluid door een activiteit, in een geluidgevoelige ruimte binnen een in- of aanpandig geluidgevoelig gebouw, niet hoger dan de waarde, bedoeld in tabel 22.3.3.
07.00 – 19.00 uur | 19.00 – 23.00 uur | 23.00 – 07.00 uur | |
Langtijdgemiddelde beoordelingsniveau LAr,LT als gevolg van activiteiten | 35 dB(A) | 30 dB(A) | 25 dB(A) |
Maximaal geluidniveau LAmax als gevolg van activiteiten | 55 dB(A) | 50 dB(A) | 45 dB(A) |
De in het eerste tot en met derde lid opgenomen maximale geluidniveaus LAmax zijn niet van toepassing op het laden en lossen in de periode tussen 07.00 en 19.00 uur.
Artikel 22.64 Geluid: waarden voor geluidgevoelige gebouwen: tankstation
Met het oog op het voorkomen of het beperken van geluidhinder is, in afwijking van artikel 22.63, eerste, derde en vierde lid, het geluid door het bieden van gelegenheid voor het tanken van motorvoertuigen van derden, op een geluidgevoelig gebouw, niet hoger dan de waarde, bedoeld in tabel 22.3.4.
07.00 – 21.00 uur | 21.00 – 07.00 uur | |
Langtijdgemiddelde beoordelingsniveau LAr,LT als gevolg van activiteiten | 50 dB(A) | 40 dB(A |
Maximaal geluidniveau LAmax als gevolg van activiteiten | 70 dB(A) | 60 dB(A) |
De in het eerste lid opgenomen maximale geluidniveaus LAmax zijn niet van toepassing op laden en lossen in de periode tussen 07.00 en 21.00 uur.
Artikel 22.65 Geluid: waarden voor geluidgevoelige gebouwen: agrarische activiteit, niet zijnde een glastuinbouwbedrijf dat is gelegen in een glastuinbouwgebied
Met het oog op het voorkomen of het beperken van geluidhinder is, in afwijking van artikel 22.63, eerste lid, het geluid door een activiteit waarvan agrarische activiteiten de kern vormen, maar dat geen glastuinbouwbedrijf is dat is gelegen in een glastuinbouwgebied, op een geluidgevoelig gebouw, niet hoger dan de waarde, bedoeld in tabel 22.3.5.
06.00 – 19.00 uur | 19.00 – 22.00 uur | 22.00 – 06.00 uur | |
Langtijdgemiddelde beoordelingsniveau LAr,LT veroorzaakt door de vast opgestelde installaties en toestellen | 45 dB(A) | 40 dB(A) | 35 dB(A |
Maximaal geluidniveau LAmax als gevolg van activiteiten | 70 dB(A) | 65 dB(A) | 60 dB(A) |
Met het oog op het voorkomen of het beperken van geluidhinder is, in afwijking van artikel 22.63, derde lid, het geluid door een activiteit waarvan agrarische activiteiten de kern vormen, maar dat geen glastuinbouwbedrijf is dat is gelegen in een glastuinbouwgebied, in geluidgevoelige ruimten binnen een in- of aanpandig geluidgevoelig gebouw, niet hoger dan de waarde, bedoeld in tabel 22.3.6.
06.00 – 19.00 uur | 19.00 – 22.00 uur | 22.00 – 06.00 uur | |
Langtijdgemiddelde beoordelingsniveau LAr,LT veroorzaakt door de vast opgestelde installaties en toestellen | 35 dB(A) | 30 dB(A) | 25 dB(A) |
Maximaal geluidniveau LAmax als gevolg van activiteiten | 55 dB(A) | 50 dB(A) | 45 dB(A) |
Bij het bepalen van het maximaal geluidniveau (LAmax), bedoeld in het eerste en tweede lid, blijft buiten beschouwing het geluid als gevolg van:
laden en lossen en het in- en uitrijden van landbouwtractoren of motorvoertuigen met beperkte snelheid, in de periode tussen 06.00 uur en 19.00 uur;
laden en lossen in de periode tussen 19.00 uur en 06.00 uur, voor zover dat ten hoogste één keer in die periode plaatsvindt; en
het wassen van kasdekken in de periode tussen 19.00 uur en 6.00 uur.
Artikel 22.66 Geluid: waarde voor geluidgevoelige gebouwen: glastuinbouwbedrijf binnen een glastuinbouwgebied
Met het oog op het voorkomen of het beperken van geluidhinder is, in afwijking van artikel 22.63, eerste lid, het geluid door een glastuinbouwbedrijf dat is gelegen in een glastuinbouwgebied, op een geluidgevoelig gebouw, niet hoger dan de waarde, bedoeld in tabel 22.3.7.
06.00 – 19.00 uur | 19.00 – 22.00 uur | 22.00 – 06.00 uur | |
Langtijdgemiddelde beoordelingsniveau LAr,LT als gevolg van activiteiten | 50 dB(A) | 45 dB(A) | 40 dB(A |
Maximaal geluidniveau LAmax als gevolg van activiteiten | 70 dB(A) | 65 dB(A) | 60 dB(A) |
Met het oog op het voorkomen of het beperken van geluidhinder is in afwijking van artikel 22.63, derde lid, het geluid door een glastuinbouwbedrijf dat is gelegen in een glastuinbouwgebied, in geluidgevoelige ruimten binnen een in- of aanpandig geluidgevoelig gebouw, niet hoger dan de waarde, bedoeld in tabel 22.3.8.
06.00 – 19.00 uur | 19.00 – 22.00 uur | 22.00 – 06.00 uur | |
Langtijdgemiddelde beoordelingsniveau LAr,LT als gevolg van activiteiten | 35 dB(A) | 30 dB(A) | 25 dB(A) |
Maximaal geluidniveau LAmax als gevolg van activiteiten | 55 dB(A) | 50 dB(A) | 45 dB(A) |
Bij het bepalen van het maximaal geluidniveau (LAmax), bedoeld in het eerste en tweede lid, blijft buiten beschouwing het geluid als gevolg van:
Artikel 22.67 Geluid: waarden bij of krachtens een voor inwerkingtreding van de Omgevingswet vastgestelde gemeentelijke verordening
Als een activiteit wordt verricht in een concentratiegebied voor horecabedrijven of in een concentratiegebied voor detailhandel en ambachtsbedrijven dat bij of krachtens een voor de inwerkingtreding van de Omgevingswet vastgestelde gemeentelijke verordening als zodanig is aangewezen en waarin andere waarden zijn opgenomen dan de waarden, bedoeld in artikel 22.63, gelden de waarden die zijn opgenomen in die verordening.
Als een agrarische activiteit wordt verricht in een gebied waarvoor bij of krachtens een voor de inwerkingtreding van de Omgevingswet vastgestelde gemeentelijke verordening andere waarden gelden voor het langtijdgemiddelde beoordelingsniveau (LAr,LT) op geluidgevoelige gebouwen, bedoeld in de artikelen 22.65, eerste lid, en 22.66, eerste lid, gelden de waarden die zijn opgenomen in die verordening.
Artikel 22.68 Geluid: waarden op drijvende woonfunctie voor 1 juli 2012
Voor een drijvende woonfunctie is de waarde 5 dB(A) hoger dan de waarden, bedoeld in de artikelen 22.63, eerste lid, 22.64, eerste lid, 22.65, eerste lid en 22.66, eerste lid, als de locatie van de drijvende woonfunctie voor 1 juli 2012:
Artikel 22.69 Geluid: eerbiedigende werking
Voor een activiteit waarop artikel 2.17a, derde lid, van het Activiteitenbesluit milieubeheer, zoals dat besluit luidde voor de inwerkingtreding van de Omgevingswet, van toepassing was, blijven het eerste en tweede lid van dat artikel gelden.
Voor een activiteit waarop artikel 2.17a, zesde lid, van het Activiteitenbesluit milieubeheer, zoals dat besluit luidde voor de inwerkingtreding van de Omgevingswet, van toepassing was, blijft dat lid gelden.
Artikel 22.70 Geluid: buiten beschouwing laten van geluidbronnen
Bij het bepalen van de geluidniveaus, bedoeld in de artikelen 22.63 tot en met 22.69 en 22.71, blijft buiten beschouwing:
het geluid door de inzet van motorvoertuigen of helikopters voor spoedeisende medische hulpverlening, ongevallenbestrijding, brandbestrijding, gladheidbestrijding en het vrijmaken van de weg na een ongeval;
het stemgeluid van personen op een onverwarmd en onoverdekt terrein, tenzij dit terrein kan worden aangemerkt als een binnenterrein;
het stemgeluid van bezoekers op het open terrein bij sport- of recreatieactiviteiten;
het stemgeluid van kinderen op een onverwarmd of onoverdekt terrein dat onderdeel is van een instelling voor het primair onderwijs, in de periode vanaf een uur voor aanvang van het onderwijs tot een uur na beëindiging van het onderwijs;
het stemgeluid van kinderen op een onverwarmd of onoverdekt terrein dat onderdeel is van een instelling voor kinderopvang;
het geluid voor het oproepen tot het belijden van godsdienst of levensovertuiging of het bijwonen van godsdienstige of levensbeschouwelijke bijeenkomsten en lijkplechtigheden, en ook het geluid in verband met het houden van deze bijeenkomsten of plechtigheden;
het geluid van het traditioneel ten gehore brengen van muziek tijdens het hijsen en strijken van de nationale vlag bij zonsopkomst en zonsondergang op militaire terreinen;
het ten gehore brengen van muziek wegens het oefenen door militaire muziekkorpsen in de buitenlucht gedurende de dagperiode met een maximum van twee uur per week op militaire terreinen;
het ten gehore brengen van onversterkte muziek, behalve voor zover daarvoor bij gemeentelijke verordening regels zijn gesteld; en
het traditioneel schieten, bedoeld in paragraaf 22.3.21, behalve voor zover daarvoor bij gemeentelijke verordening regels zijn gesteld.
Bij het bepalen van het maximale geluidniveau (LAmax), bedoeld in de artikelen 22.63 tot en met 22.67 en 22.69, blijft buiten beschouwing het geluid als gevolg van:
De maximale geluidniveaus (LAmax), bedoeld in de artikelen 22.63 tot en met 22.69, zijn tussen 23.00 en 7.00 uur niet van toepassing op aandrijfgeluid van motorvoertuigen bij het laden en lossen als:
Artikel 22.71 Geluid: waar waarden gelden voor een activiteit op een gezoneerd industrieterrein
Als de activiteit wordt verricht op een gezoneerd industrieterrein of op een industrieterrein waarvoor geluidproductieplafonds als omgevingswaarden zijn vastgesteld, gelden de waarden van het langtijdgemiddelde beoordelingsniveau (LAr,LT), bedoeld in de artikelen 22.63, eerste lid, en 22.64, eerste lid ook op een afstand van 50 m vanaf de begrenzing van de locatie waarop de activiteit wordt verricht.
Artikel 22.72 Geluid: maatregelen of voorzieningen bij stomen van grond
Bij het bepalen van de geluidniveaus, bedoeld in de artikelen 22.63 tot en met 22.69, blijft het geluid veroorzaakt door het stomen van grond met een installatie van derden, buiten beschouwing.
Bij het stomen van grond met een installatie van derden worden maatregelen of voorzieningen getroffen die betrekking hebben op:
Artikel 22.73 Geluid: festiviteiten
De waarden, bedoeld in de in artikelen 22.63 tot en met 22.71, zijn voor zover de naleving van deze normen redelijkerwijs niet kan worden gevergd, niet van toepassing op dagen of dagdelen in verband met de viering van:
festiviteiten die bij of krachtens gemeentelijke verordening zijn aangewezen, in de gebieden in de gemeente waarvoor die verordening geldt; en
andere festiviteiten die plaatsvinden op de locatie waarop de activiteit wordt verricht, waarbij het aantal bij of krachtens die verordening aan te wijzen dagen of dagdelen per gebied of categorie van bedrijfssector kan verschillen en niet meer bedraagt dan twaalf per kalenderjaar.
Een festiviteit die ten hoogste een etmaal duurt, maar die zowel voor als na 00.00 uur plaatsvindt, wordt beschouwd als plaatshebbende op één dag.
Artikel 22.74 Geluid: meet- en rekenbepalingen
Op het bepalen van het langtijdgemiddelde beoordelingsniveau (LAr,LT) of het maximaal geluidniveau (LAmax), bedoeld in deze paragraaf, zijn de artikelen 6.6 en 6.7 van de Omgevingsregeling van toepassing.
Artikel 22.75 Toepassingsbereik
Deze paragraaf is van toepassing op het geluid door het opwekken van elektriciteit met een windturbine met een rotordiameter van meer dan 2 m, bedoeld in artikel 3.11 van het Besluit activiteiten leefomgeving, op een geluidgevoelig gebouw.
Deze paragraaf is ook niet van toepassing voor zover het gaat om een windpark met 3 of meer windturbines.
Artikel 22.76 Geluid: waarden windturbines
Met het oog op het voorkomen of het beperken van geluidhinder is het geluid door het opwekken van elektriciteit met een windturbine of windpark op een geluidgevoelig gebouw, ten hoogste 47 Lden en 41 Lnight.
Artikel 22.77 Registratie gegevens windturbines
De volgende gegevens worden geregistreerd:
de emissieterm LE, bedoeld in onderdeel 3.1 van bijlage XXV bij de Omgevingsregeling, gebaseerd op de effectieve werking gedurende het afgelopen kalenderjaar; en
de voor de duur van een handhavingsmeting benodigde gegevens ter bepaling van de windsnelheid op ashoogte, bedoeld in paragraaf 1.6 van bijlage XXV bij de Omgevingsregeling.
De gegevens worden gedurende vijf jaar bewaard.
Artikel 22.78 Geluid: meet- en rekenbepalingen
Op het bepalen van het geluid Lden of Lnight, bedoeld in artikel 22.76, is artikel 6.8 van de Omgevingsregeling van toepassing.
Artikel 22.79 Toepassingsbereik
Deze paragraaf is van toepassing op het geluid op een geluidgevoelig gebouw door het exploiteren van een in de buitenlucht of in een gebouw zonder gesloten afdekking of een gebouw met een open zijde gelegen:
Deze paragraaf is niet van toepassing op het traditioneel schieten door schutterijen of schuttersgilden.
Artikel 22.80 Geluid: waarden buitenschietbanen
Met het oog op het voorkomen of het beperken van geluidhinder is het geluid door een activiteit als bedoeld in artikel 22.79 op een geluidgevoelig gebouw ten hoogste 50 Bs,dan.
Artikel 22.82 Geluid: meet- en rekenbepalingen
Op het bepalen van het geluid Bs,dan, bedoeld in artikel 22.80, is artikel 6.9 van de Omgevingsregeling van toepassing.
Deze paragraaf is van toepassing op de trillingen in een frequentie van 1 tot 80 Hz door een activiteit in een trillinggevoelige ruimte van een trillinggevoelig gebouw dat is toegelaten op grond van een omgevingsplan of een omgevingsvergunning voor een omgevingsplanactiviteit.
Deze paragraaf is niet van toepassing op trillingen door een activiteit:
in een trillinggevoelige ruimte van een trillinggevoelig gebouw dat geheel of gedeeltelijk ligt op een gezoneerd industrieterrein of op een industrieterrein waarvoor geluidproductieplafonds als omgevingswaarden zijn vastgesteld; en
in een trillinggevoelige ruimte van een trillinggevoelig gebouw, dat is toegelaten op grond van een omgevingsplan of een omgevingsvergunning voor een omgevingsplanactiviteit voor een duur van niet meer dan tien jaar.
In afwijking van artikel 22.83, tweede lid, onder b, is deze paragraaf ook van toepassing op trillingen in een frequentie van 1 tot 80 Hz door een activiteit in een trillinggevoelige ruimte van een trillinggevoelig gebouw dat is toegelaten voor een duur van niet meer dan tien jaar:
Onverminderd artikel 22.41 worden voor de toepassing van deze paragraaf als één activiteit beschouwd, meerdere activiteiten die worden verricht op dezelfde locatie en die:
De waarden voor trillingen zijn niet van toepassing op trillingen door een activiteit in trillinggevoelige ruimten van een trillinggevoelig gebouw dat een functionele binding heeft met die activiteit.
Bij een agrarische activiteit zijn de waarden voor trillingen niet van toepassing in een trillinggevoelige ruimte van een trillinggevoelig gebouw dat:
op grond van het tijdelijke deel van dit omgevingsplan, bedoeld in artikel 22.1, onder a, van de Omgevingswet, of op grond van een voor de inwerkingtreding van de Omgevingswet aangevraagde omgevingsvergunning, behoort of heeft behoord tot die agrarische activiteit en door een derde bewoond mag worden; of
eerder functioneel verbonden was met die agrarische activiteit en waarvoor op grond van artikel 5.85 van het Besluit kwaliteit leefomgeving in dit omgevingsplan of een omgevingsvergunning voor een buitenplanse omgevingsplanactiviteit is bepaald dat de waarden voor trillingen niet van toepassing zijn.
Met het oog op het voorkomen of het beperken van trillinghinder zijn de continue trillingen door een activiteit in trillinggevoelige ruimten, niet hoger dan de waarde A1 trillingssterkte Vmax, bedoeld in tabel 22.3.9.
Als niet voldaan wordt aan de waarde, bedoeld in het eerste lid, is de waarde van continue trillingen door een activiteit in trillinggevoelige ruimten, niet hoger dan de waarden onder A2 trillingssterkte Vmax en A3 trillingssterkte Vper, bedoeld in tabel 22.3.9.
Op het bepalen van de continue trillingen, bedoeld in deze paragraaf, is artikel 6.11 van de Omgevingsregeling van toepassing.
Artikel 22.90 Toepassingsbereik
Deze paragraaf is van toepassing op de geur door een activiteit op een geurgevoelig object.
In afwijking van het eerste lid zijn de waarden, bedoeld in de paragrafen 22.3.6.2 en 22.3.6.5, en de afstanden, bedoeld in de paragrafen 22.3.6.2 en 22.3.6.4 en artikel 22.245, niet van toepassing op de geur door een activiteit op een geurgevoelig object dat is toegelaten op grond van een omgevingsplan of een omgevingsvergunning voor een omgevingsplanactiviteit voor een duur van niet meer dan tien jaar.
Artikel 22.91 Toepassingsbereik: eerbiedigende werking
In afwijking van artikel 22.90, tweede lid, zijn de waarden, bedoeld in de paragrafen 22.3.6.2 en 22.3.6.5, en de afstanden, bedoeld in de paragrafen 22.3.6.2 en 22.3.6.4 en artikel 22.245, ook van toepassing op de geur door een activiteit op een geurgevoelig object dat voor een duur van niet meer dan tien jaar is toegelaten:
In afwijking van artikel 22.90, eerste lid, zijn de waarden, bedoeld in de paragrafen 22.3.6.2 en 22.3.6.5, en de afstanden, bedoeld in de paragrafen 22.3.6.2 en 22.3.6.4 en artikel 22.245, niet van toepassing op de geur door een activiteit op een geurgevoelig gebouw dat nog niet aanwezig is maar mag worden gebouwd op grond van:
Artikel 22.92 Geur: waar waarden en tot waar afstanden gelden
De waarden, bedoeld in de paragrafen 22.3.6.2 en 22.3.6.5, en de afstanden, bedoeld in de paragrafen 22.3.6.2 en 22.3.6.4 en artikel 22.245, voor de geur door een activiteit op een geurgevoelig object gelden:
als het gaat om een geurgevoelig object: op of tot de gevel;
als het gaat om een nieuw te bouwen geurgevoelig gebouw: op of tot de locatie waar een gevel mag komen; en
in afwijking van de onderdelen a en b, als het gaat om een woonschip of woonwagen: op of tot de begrenzing van de locatie voor het plaatsen van het woonschip of de woonwagen.
Artikel 22.93 Geur: functionele binding
De waarden, bedoeld in de paragrafen 22.3.6.2 en 22.3.6.5, en de afstanden, bedoeld in de paragrafen 22.3.6.2 en 22.3.6.4 en artikel 22.245, zijn niet van toepassing als het geurgevoelig object een functionele binding heeft met de activiteit.
Artikel 22.94 Geur: voormalige functionele binding
Bij een activiteit zijn de waarden, bedoeld in paragraaf 22.3.6.2, en de afstanden, bedoeld in de paragrafen 22.3.6.2 en 22.3.6.4 en artikel 22.245, niet van toepassing op een geurgevoelig object dat:
op grond van het tijdelijke deel van dit omgevingsplan, bedoeld in artikel 22.1, onder a, van de Omgevingswet, of een omgevingsvergunning voor een omgevingsplanactiviteit die is aangevraagd voor de inwerkingtreding van de Omgevingswet, behoort of heeft behoord tot die activiteit en door een derde bewoond mag worden; of
eerder functioneel verbonden was met die activiteit en waarvoor op grond van artikel 5.96 van het Besluit kwaliteit leefomgeving in dit omgevingsplan of een omgevingsvergunning voor een buitenplanse omgevingsplanactiviteit is bepaald dat de waarden en afstanden voor geur niet van toepassing zijn.
Bij de waarden, bedoeld in de paragrafen 22.3.6.2 en 22.3.6.5, en de afstanden, bedoeld in de paragrafen 22.3.6.2 en 22.3.6.4 en artikel 22.245, is geen rekening gehouden met de cumulatie van geur door activiteiten op geurgevoelige gebouwen.
Artikel 22.96 Toepassingsbereik
Deze paragraaf is van toepassing op het beginnen met of het wijzigen of uitbreiden van het in een dierenverblijf houden van:
Deze paragraaf is niet van toepassing op het houden van minder dan 10 schapen, 5 paarden en pony’s, 10 geiten, 25 stuks pluimvee, 25 konijnen en 10 overige landbouwhuisdieren.
Artikel 22.97 Geur vanaf waar afstanden gelden
Een afstand als bedoeld in deze paragraaf geldt vanaf het emissiepunt van een dierenverblijf, bedoeld in artikel 4.806, tweede lid, van het Besluit activiteiten leefomgeving.
Artikel 22.98 Geur landbouwhuisdieren met geuremissiefactor: waarden
Met het oog op het voorkomen of het beperken van geurhinder is bij het houden van landbouwhuisdieren met geuremissiefactor de geur op een geurgevoelig object door de activiteit niet hoger dan de waarde, bedoeld in tabel 22.3.10.
Geurgevoelig object | Waarde |
Gelegen binnen de bebouwde kom en buiten een concentratiegebied geurhinder en veehouderij | 2,0 ouE/m3 |
Gelegen binnen de bebouwde kom en binnen een concentratiegebied geurhinder en veehouderij | 3,0 ouE/m3 |
Gelegen buiten de bebouwde kom en buiten een concentratiegebied geurhinder en veehouderij | 8,0 ouE/m3 |
Gelegen buiten de bebouwde kom en binnen een concentratiegebied geurhinder en veehouderij | 14,0 ouE/m3 |
Op het berekenen van de geur, bedoeld in het eerste lid, is artikel 6.14 van de Omgevingsregeling van toepassing.
Artikel 22.99 Geur landbouwhuisdieren met geuremissiefactor: eerbiedigende werking bij waarden
Als onmiddellijk voor de inwerkingtreding van de Omgevingswet de geur op een locatie rechtmatig meer bedraagt dan de waarde, bedoeld in artikel 22.98, eerste lid, mag, in afwijking van artikel 22.98, bij het houden van landbouwhuisdieren met geuremissiefactor:
Voor gevallen als bedoeld in het eerste lid mag het aantal landbouwhuisdieren van een of meer diercategorieën met geuremissiefactor alleen toenemen als:
een geurbelastingreducerende maatregel wordt getroffen; en
de totale geur na het uitbreiden niet meer bedraagt dan het gemiddelde van de waarde, bedoeld in artikel 22.96, en de waarde van de geur die de activiteit onmiddellijk voorafgaand aan het treffen van de maatregel rechtmatig mocht veroorzaken.
Artikel 22.100 Geur landbouwhuisdieren met geuremissiefactor: afstand tot bijzondere geurgevoelige objecten
Artikel 22.98, eerste lid, is niet van toepassing bij het houden van landbouwhuisdieren met geuremissiefactor, als de afstand op een locatie gelijk of groter is dan de afstand, bedoeld in tabel 22.3.11, tot de volgende geurgevoelige objecten:
een geurgevoelig object dat een functionele binding heeft met een dierenverblijf in de directe omgeving daarvan;
een geurgevoelig object dat op of na 19 maart 2000 heeft opgehouden een functionele binding te hebben met een dierenverblijf in de directe omgeving daarvan;
een geurgevoelig object met een woonfunctie dat op of na 19 maart 2000 is gebouwd:
op een locatie die op dat tijdstip werd gebruikt voor het houden van landbouwhuisdieren in een dierenverblijf;
in samenhang met het geheel of gedeeltelijk buiten werking stellen van het dierenverblijf; en
in samenhang met de sloop van een dierenverblijf of bedrijfsgebouw dat onderdeel heeft uitgemaakt van een gebouw voor het houden van landbouwhuisdieren of voor functioneel ondersteunende activiteiten; en
een geurgevoelig object dat aanwezig is op een locatie waar een geurgevoelig object met een woonfunctie als bedoeld onder c is gebouwd.
Geurgevoelig object met functionele binding of functionele binding tot 19 maart 2000 | Afstand |
Gelegen binnen de bebouwde kom | 100 m |
Gelegen buiten de bebouwde kom | 50 m |
Artikel 22.101 Geur landbouwhuisdieren zonder geuremissiefactor of paarden en pony’s voor het berijden: afstand
Met het oog op het voorkomen of het beperken van geurhinder is bij het houden van landbouwhuisdieren zonder geuremissiefactor of paarden en pony’s die gehouden worden voor het berijden, de afstand tot een geurgevoelig object, niet kleiner dan de afstand, bedoeld in tabel 22.3.12.
Artikel 22.102 Geur landbouwhuisdieren zonder geuremissiefactor of paarden en pony’s voor het berijden: eerbiedigende werking voor afstand
Artikel 22.101 is niet van toepassing als op een locatie waarop onmiddellijk voor de inwerkingtreding van de Omgevingswet rechtmatig niet wordt voldaan aan de afstand, bedoeld in dat artikel.
In een geval als bedoeld in het eerste lid mag het aantal landbouwhuisdieren per diercategorie zonder geuremissiefactor of het aantal paarden en pony’s die gehouden worden voor het berijden, niet toenemen en de afstand tot een geurgevoelig object niet afnemen.
Artikel 22.103 Geur landbouwhuisdieren en paarden of pony’s voor het berijden: afstand vanaf de gevel dierenverblijf
Onverminderd de artikelen 22.98 tot en met 22.102 is bij het houden van landbouwhuisdieren met geuremissiefactor of zonder geuremissiefactor of paarden en pony’s die gehouden worden voor het berijden, de afstand niet kleiner dan de afstand, bedoeld in tabel 22.3.13.
In afwijking van artikel 22.97 geldt de afstand, bedoeld in het eerste lid, vanaf de gevel van een dierenverblijf.
Artikel 22.104 Geur landbouwhuisdieren met geuremissiefactor: eerbiedigende werking voor afstand vanaf gevel dierenverblijf
Als voor de inwerkingtreding van de Omgevingswet voor het houden van landbouwhuisdieren met geuremissiefactor op een locatie rechtmatig niet wordt voldaan aan de afstand, bedoeld in artikel 22.103, mag, in afwijking van dat artikel, bij het houden van landbouwhuisdieren met geuremissiefactor:
Artikel 22.105 Geur landbouwhuisdieren zonder geuremissiefactor en paarden en pony’s voor het berijden: eerbiedigende werking voor afstand vanaf gevel dierenverblijf
Als voor de inwerkingtreding van de Omgevingswet voor het houden van landbouwhuisdieren zonder geuremissiefactor of paarden of pony’s die gehouden worden voor het berijden, op een locatie rechtmatig niet wordt voldaan aan de afstand, bedoeld in artikel 22.103, eerste lid, mag, in afwijking van dat artikel, bij het houden van landbouwhuisdieren zonder geuremissiefactor of paarden en pony’s die gehouden worden voor het berijden:
Artikel 22.114 Geur opslaan van vaste mest, champost of dikke fractie: afstand
Dit artikel is van toepassing op het opslaan van:
Dit artikel is niet van toepassing op:
Met het oog op het voorkomen of het beperken van geurhinder is de afstand voor geur door het opslaan van vaste mest, champost of dikke fractie vanaf het dichtstbijzijnde punt van de opslagplaats tot een geurgevoelig object niet kleiner dan de afstand, bedoeld in tabel 22.3.17.
Artikel 22.115 Geur opslaan van gebruikt substraatmateriaal van plantaardige oorsprong: afstand
Dit artikel is van toepassing op het opslaan van gebruikt substraatmateriaal van plantaardige oorsprong met een totaal volume van meer dan 3 m3.
Met het oog op het voorkomen of het beperken van geurhinder is de afstand voor geur door het opslaan van gebruikt substraatmateriaal van plantaardige oorsprong vanaf het dichtstbijzijnde punt van de opslagplaats tot een geurgevoelig object niet kleiner dan de afstand, bedoeld in tabel 22.3.18.
Opslaan van gebruikt substraatmateriaal van plantaardige oorsprong | Afstand |
Geurgevoelig object gelegen binnen de bebouwde kom | 100 m |
Geurgevoelig object gelegen buiten de bebouwde kom | 50 m |
Artikel 22.116 Geur opslaan kuilvoer of vaste bijvoedermiddelen: afstand
Dit artikel is van toepassing op het opslaan van:
Dit artikel is niet van toepassing op in plasticfolie verpakte veevoederbalen.
Met het oog op het voorkomen of het beperken van geurhinder is de afstand voor geur door het opslaan van kuilvoer en vaste bijvoedermiddelen vanaf het dichtstbijzijnde punt van de opslagplaats tot een geurgevoelig object, niet kleiner dan de afstand, bedoeld in tabel 22.3.19.
Artikel 22.117 Geur opslaan drijfmest, digestaat en dunne fractie: afstand
Dit artikel is van toepassing op het opslaan van drijfmest, digestaat of dunne fractie in een of meer mestbassins met een gezamenlijke oppervlakte van ten hoogste 750 m2 of een gezamenlijke inhoud van ten hoogste 2.500 m3.
Met het oog op het voorkomen of het beperken van geurhinder is de afstand voor geur door het opslaan van drijfmest, digestaat of dunne fractie in een mestbassin vanaf het dichtstbijzijnde punt van het mestbassin tot een geurgevoelig object niet kleiner dan de afstand, bedoeld in tabel 22.3.20.
Opslaan van drijfmest, digestaat of dunne fractie in een mestbassin | Afstand tot geurgevoelig gevoelig object | |
Zonder functionele binding met dierenverblijf in directe omgeving | Met functionele binding met dierenverblijf in directe omgeving | |
Gezamenlijke oppervlakte minder dan 350 m2 | 50 m | 25 m |
Gezamenlijke oppervlakte 350 m2 tot en met 750 m2 | 100 m | 50 m |
Artikel 22.118 Geur voorziening biologisch behandelen dierlijke meststoffen voor of na vergisten: afstand
Dit artikel is van toepassing op het exploiteren van een voorziening voor het biologisch behandelen van dierlijke meststoffen voor of na het vergisten van dierlijke meststoffen, bedoeld in artikel 4.864 van het Besluit activiteiten leefomgeving.
Dit artikel is niet van toepassing op een milieubelastende activiteit die als vergunningplichtig is aangewezen in hoofdstuk 3 van het Besluit activiteiten leefomgeving.
Met het oog op het voorkomen of het beperken van geurhinder is de afstand vanaf het dichtstbijzijnde punt van de voorziening voor het biologisch behandelen van dierlijke meststoffen voor of na het vergisten tot een geurgevoelig object niet kleiner dan de afstand, bedoeld in tabel 22.3.21.
Voorziening voor het biologisch behandelen van dierlijke meststoffen voor of na het vergisten | Afstand |
Geurgevoelig object, gelegen binnen de bebouwde kom | 100 m |
Geurgevoelig object, gelegen buiten de bebouwde kom | 50 m |
Artikel 22.119 Geur composteren of opslaan van groenafval: afstand
Dit artikel is van toepassing op het composteren of opslaan van groenafval met een volume van 3 m3 tot en met 600 m3.
Dit artikel is niet van toepassing op groenafval dat een gevaarlijke afvalstof of gebruikt substraatmateriaal is.
Met het oog op het voorkomen of het beperken van geurhinder is de afstand vanaf het dichtstbijzijnde punt van de composteringshoop of de opslagplaats voor groenafval tot een geurgevoelig object niet kleiner dan de afstand, bedoeld in tabel 22.3.22.
Artikel 22.120 Geur overige agrarische activiteiten: eerbiedigende werking
Dit artikel is van toepassing op het opslaan van vaste mest, champost of dikke fractie, bedoeld in artikel 22.114, het opslaan van substraatmateriaal van plantaardige oorsprong, bedoeld in artikel 22.113, het opslaan van kuilvoer of vaste bijvoedermiddelen, bedoeld in artikel 22.116, en het composteren of opslaan van groenafval, bedoeld in artikel 22.119, als:
het opslaan al voor 1 januari 2013 plaatsvond;
de afstand tussen een activiteit en een geurgevoelig object op 1 januari 2013 rechtmatig kleiner was dan de afstand, bedoeld in artikel 22.114, derde lid, 22.115, tweede lid, 22.116, derde lid, of 22.119, derde lid; en
verplaatsing van de opslagplaats of composteringshoop redelijkerwijs niet kan worden gevergd.
Dit artikel is ook van toepassing op het opslaan van drijfmest, digestaat of dunne fractie in een of meer mestbassins, bedoeld in artikel 22.117, eerste lid, als:
de afstand tussen de activiteit, bedoeld in artikel 22.117, eerste lid, en een geurgevoelig object op 1 januari 2013 rechtmatig kleiner was dan de afstand, bedoeld in artikel 22.117, tweede lid;
het mestbassin voor 1 januari 2013 is opgericht; en
verplaatsing van het mestbassin redelijkerwijs niet kan worden gevergd.
In een geval als bedoeld in het eerste of tweede lid is artikel 22.114, derde lid, 22.115, tweede lid, 22.116, derde lid, 22.117, tweede lid, of 22.119, derde lid, niet van toepassing en neemt de afstand tot een geurgevoelig object niet af.
Artikel 22.121 Toepassingsbereik
Deze paragraaf is van toepassing op het exploiteren van een zuiveringtechnisch werk, bedoeld in artikel 3.173 van het Besluit activiteiten leefomgeving.
Artikel 22.122 Geur zuiveringtechnisch werk: waarde
Met het oog op het voorkomen of het beperken van geurhinder is de geur op een geurgevoelig object niet hoger dan de waarde, bedoeld in tabel 22.3.23.
Activiteit | Geurgevoelig object | Grenswaarde |
Het exploiteren van een zuiveringtechnisch werk | Gelegen binnen de bebouwde kom, anders dan op een gezoneerd industrieterrein, een industrieterrein waarvoor geluidproductieplafonds als omgevingswaarden zijn vastgesteld of een Activiteitenbesluit-bedrijventerrein | 0,5 ouE/m3 |
Gelegen: – op een gezoneerd industrieterrein; – op een industrieterrein waarvoor geluidproductieplafonds als omgevingswaarden zijn vastgesteld; – op een Activiteitenbesluit-bedrijventerrein, of – buiten de bebouwde kom | 1 ouE/m3 |
In afwijking van het eerste lid is de geur op een geurgevoelig object door het exploiteren van een zuiveringtechnisch werk dat is opgericht voor 1 februari 1996 en waarvoor op 1 februari 1996 een vergunning op grond van artikel 8.1 van de Wet milieubeheer in werking en onherroepelijk was, niet hoger dan de waarde, bedoeld in tabel 22.3.24.
Activiteit | Geurgevoelig object | Grenswaarde |
Het exploiteren van een zuiveringtechnisch werk, opgericht voor 1 februari 1996 | Gelegen binnen de bebouwde kom, anders dan op een gezoneerd industrieterrein, een industrieterrein waarvoor geluidproductieplafonds als omgevingswaarden zijn vastgesteld of een Activiteitenbesluit-bedrijventerrein | 1,5 ouE/m3 |
Gelegen: – op een gezoneerd industrieterrein; – op een industrieterrein waarvoor geluidproductieplafonds als omgevingswaarden zijn vastgesteld; – op een Activiteitenbesluit- bedrijventerrein, of – buiten de bebouwde kom | 3,5 ouE/m3 |
Op het berekenen van de geur is artikel 6.13 van de Omgevingsregeling van toepassing.
Artikel 22.123 Geur zuiveringtechnisch werk: geen waarde bij specifieke geurgevoelige objecten
De waarden, bedoeld in artikel 22.122, eerste lid, zijn niet van toepassing op de geur door het exploiteren van een zuiveringtechnisch werk waarvoor tot 1 januari 2011 een omgevingsvergunning op grond van artikel 2.1, eerste lid, aanhef en onder e, van de Wet algemene bepalingen omgevingsrecht in werking en onherroepelijk was, op geurgevoelige objecten die:
Artikel 22.124 Geur zuiveringtechnisch werk: eerbiedigende werking
Bij het wijzigen van een zuiveringtechnisch werk als bedoeld in de artikelen 22.122, tweede lid, en 22.123, is de waarde van de geur op een geurgevoelig object als gevolg van dat zuiveringtechnisch werk niet hoger dan de waarde voor geur op een geurgevoelig object, voorafgaand aan de verandering, tenzij de waarden, bedoeld in artikel 22.122, eerste lid, niet worden overschreden.
Artikel 22.125 Toepassingsbereik
Deze paragraaf is van toepassing op het verrichten van nazorg als saneren van de bodem heeft plaatsgevonden op grond van het Besluit activiteiten leefomgeving, dit omgevingsplan, een omgevingsvergunning of een maatwerkvoorschrift.
Artikel 22.126 Nazorg na afloop van saneren van de bodem
De eigenaar, erfpachter of gebruiker van een locatie treft de noodzakelijke maatregelen gericht op het voor onbepaalde tijd in stand houden en onderhouden of vervangen van een afdeklaag.
Het eerste lid is van overeenkomstige toepassing voor tijdelijke beschermingsmaatregelen die de bron van verontreiniging niet wegnemen maar blootstelling aan de verontreiniging voorkomen in verband met een toevalsvondst als bedoeld in artikel 19.9a van de Omgevingswet.
Artikel 22.127 Toepassingsbereik
Deze paragraaf is van toepassing op het graven in de bodem waarbij het bodemvolume waarin wordt gegraven kleiner dan of gelijk is aan 25 m3 en sprake is van:
locaties waarvoor voorafgaand aan de inwerkingtreding van de Omgevingswet een beschikking is verleend als bedoeld in artikel 29 in samenhang met artikel 37, eerste lid, van de Wet bodembescherming, zoals die wet luidde voor de inwerkingtreding van de Omgevingswet, waarin is vastgesteld dat bij het huidige dan wel voorgenomen gebruik van de bodem of de mogelijke verspreiding van de verontreiniging geen sprake is van zodanige risico's voor mens, plant of dier dat spoedige sanering noodzakelijk is; of
locaties of gebieden waar de bodem diffuus is verontreinigd tot boven de interventiewaarde bodemkwaliteit zoals dat blijkt uit:
Graven in de bodem als bedoeld in het eerste lid omvat ook:
Het eerste lid is niet van toepassing op het graven in de waterbodem.
Artikel 22.128 Gegevens en bescheiden: voor het begin van de activiteit
Ten minste een week voor het begin van de activiteit, bedoeld in artikel 22.127, worden aan het college van burgemeester en wethouders gegevens en bescheiden verstrekt over:
Onverwijld na het wijzigen van de begrenzing of de verwachte datum van het begin van de activiteit worden de gewijzigde gegevens verstrekt aan het college van burgemeester en wethouders.
Het eerste lid is niet van toepassing:
Artikel 22.129 Bodem en afval: tijdelijke opslag van vrijkomende grond
Met het oog op het beschermen van de gezondheid, het beschermen van de kwaliteit van de bodem en het doelmatig beheer van afvalstoffen wordt grond die bij het graven is vrijgekomen niet langer dan acht weken na beëindiging van het graven in de directe nabijheid van de ontgravingslocatie opgeslagen.
Artikel 22.130 Bodem en afval: milieukundige begeleiding bij kleinschalig graven
Met het oog op het beschermen van de gezondheid, het beschermen van de kwaliteit van de bodem en het doelmatig beheer van afvalstoffen, wordt de activiteit milieukundig begeleid volgens BRL SIKB 6000 als het graven plaatsvindt op een locatie waar een afdeklaag is aangebracht als saneringsaanpak en de ontgraving dieper reikt dan deze afdeklaag.
Artikel 22.131 Toepassingsbereik
Deze paragraaf is van toepassing op een activiteit op een locatie waarvoor voorafgaand aan de inwerkingtreding van de Omgevingswet een beschikking is vastgesteld krachtens artikel 29 in samenhang met artikel 37, eerste lid, van de Wet bodembescherming, zoals die wet luidde voor de inwerkingtreding van de Omgevingswet, waarin is vastgesteld dat bij het huidige dan wel voorgenomen gebruik van de bodem of de mogelijke verspreiding van de verontreiniging geen sprake is van zodanige risico's voor mens, plant of dier dat spoedige sanering noodzakelijk is.
Artikel 22.132 Bodem: mitigerende maatregelen
Degene die een activiteit als bedoeld in artikel 22.131, verricht, neemt in het belang van bescherming van de bodem maatregelen die redelijkerwijs van hem kunnen worden verlangd om verdere verontreiniging van de bodem te voorkomen of te beperken of, als dat redelijkerwijs mogelijk is in samenhang met de activiteit die wordt verricht, ongedaan te maken.
Artikel 22.137 Toepassingsbereik
Deze paragraaf is van toepassing op het lozen van grondwater afkomstig van:
Artikel 22.138 Gegevens en bescheiden
Ten minste vier weken voor het begin van de activiteit, bedoeld in artikel 22.137, worden aan het college van burgemeester en wethouders gegevens en bescheiden verstrekt over:
Ten minste vier weken voordat de activiteit wijzigt, worden de gewijzigde gegevens verstrekt aan het college van burgemeester en wethouders.
Het eerste en tweede lid gelden niet voor het lozen van grondwater afkomstig van ontwatering, als:
In afwijking van het eerste en tweede lid worden de gegevens en bescheiden ten minste vijf werkdagen voor het begin van het lozen van grondwater afkomstig van ontwatering verstrekt, als het lozen langer duurt dan 48 uur maar niet langer dan 8 weken.
Artikel 22.139 Lozen van grondwater bij saneringen
Met het oog op het doelmatig beheer van afvalwater kan grondwater afkomstig van een bodemsanering of grondwatersanering of een onderzoek voorafgaand aan een grondwatersanering, worden geloosd op of in de bodem of in een schoonwaterriool.
Voor het lozen van dat grondwater op of in de bodem zijn de emissiegrenswaarden de waarden, bedoeld in bijlage XIX bij het Besluit kwaliteit leefomgeving, gemeten in een steekmonster.
Voor het lozen van dat grondwater in een schoonwaterriool zijn de emissiegrenswaarden de waarden, bedoeld in tabel 22.3.26, gemeten in een steekmonster.
Dat grondwater wordt niet geloosd in een vuilwaterriool.
Stof | Emissiegrenswaarden in μg/l of mg/l |
Naftaleen | 0,2 μg/l |
PAK’s | 1 μg/l |
BTEX | 50 μg/l |
Vluchtige organohalogeen-verbindingen uitgedrukt als chloor | 20 μg/l |
Aromatische organohalogeen-verbindingen | 20 μg/l |
Minerale olie | 500 μg/l |
Cadmium | 4 μg/l |
Kwik | 1 μg/l |
Koper | 11 μg/l |
Nikkel | 41 μg/l |
Lood | 53 μg/l |
Zink | 120 μg/l |
Chroom | 24 μg/l |
Onopgeloste stoffen | 50 mg/l |
Artikel 22.140 Lozen van grondwater bij ontwatering
Met het oog op het doelmatig beheer van afvalwater kan grondwater bij ontwatering, dat niet afkomstig is van een bodemsanering, een grondwatersanering of een onderzoek voorafgaand aan een bodemsanering of grondwatersanering en dat geen drainagewater als bedoeld in paragraaf 4.77 van het Besluit activiteiten leefomgeving is, worden geloosd op of in de bodem of in een voorziening voor de inzameling en het transport van afvalwater.
Voor het lozen van dat grondwater in een schoonwaterriool is de emissiegrenswaarde voor onopgeloste stoffen 50 mg/l en voor ijzer 5 mg/l, gemeten in een steekmonster.
Voor het lozen van dat grondwater in een vuilwaterriool is de emissiegrenswaarde voor onopgeloste stoffen 300 mg/l.
Het lozen van dat grondwater in een vuilwaterriool duurt niet langer dan 8 weken en de geloosde hoeveelheid is ten hoogste 5 m3/u.
Het tweede tot en met vierde lid zijn niet van toepassing op het lozen van grondwater afkomstig van ontwatering bij wonen.
Artikel 22.141 Meet- en rekenbepalingen
Op het bemonsteren van afvalwater is NEN 6600-1 van toepassing, en een monster is niet gefiltreerd.
Op het conserveren van een monster is NEN-EN-ISO 5667-3 van toepassing.
Bij het analyseren van een monster worden onopgeloste stoffen meegenomen, en op het analyseren is van toepassing:
voor BTEX: NEN-EN-ISO 15680;
voor polycyclische aromatische koolwaterstoffen: NEN-EN-ISO 17993;
voor tetrachlooretheen, trichlooretheen, 1,2-dichlooretheen, 1,1,1-trichloorethaan, vinylchloride, de som van de vijf hiervoor genoemde stoffen, monochloorbenzeen, dichloorbenzeen, trichloorbenzenen: NEN-EN-ISO 10301 of NEN-EN-ISO 15680, waarbij voor vinylchloride enkel NEN-EN-ISO 15680 gebruikt kan worden;
voor minerale olie: NEN-EN-ISO 9377-2;
voor cadmium, koper, nikkel, lood, zink en chroom: NEN 6966 of NEN-EN-ISO 17294-2 of NEN-EN-ISO 11885, waarbij de elementen worden ontsloten volgens NEN-EN-ISO 15587-1 of NEN-EN-ISO 15587-2;
voor kwik: NEN-EN-ISO 17294-2 of NEN-EN-ISO 12846 of NEN-EN-ISO 17852, waarbij kwik wordt ontsloten volgens NEN-EN-ISO 15587-1 of NEN-EN-ISO 15587-2;
voor onopgeloste stoffen: NEN-EN 872;
voor chloride: NEN-EN-ISO 15682;
voor cyaniden totaal: NEN-EN-ISO 14403-1 en NEN-EN-ISO 14403-2;
voor ammonium, nitraat, totaal-fosfaat en sulfaat: NEN-ISO 15923-1;
voor fluoride: NEN 6589 of NEN 6578;
voor endosulfan, α-HCH, y-HCH (lindaan), DDT (incl. DDD en DDE), aldrin, dieldrin, endrin, hexachloorbutadieen en hexachloorbenzeen: NEN-EN 16693;
voor dichloorpropeen: NEN-EN-ISO 15680;
voor mecoprop: NEN-EN-ISO 15913;
voor trichloorfenolen, tetrachloorfenol, dichloorfenolen en pentachloorfenol: NEN-EN 12673;
voor minerale olie: NEN-EN-ISO 9377-2;
voor anthraceen, fenanthreen, chryseen, fluorantheen, benzo(a)anthraceen, benzo(k)fluorantheen, benzo(a)pyreen, benzo(ghi)peryleen en indeno(l23cd)pyreen: NEN-EN-ISO 17993;
voor trihalomethanen (THM): ISO 11423-1;
voor adsorbeerbare organische halogeenverbindingen (AOX): NEN-EN-ISO 9562;
voor de zuurgraad (pH): NEN-EN-ISO 10523; en
voor ijzerverbindingen: NEN-EN-ISO 17294-2.
Artikel 22.142 Toepassingsbereik
Deze paragraaf is van toepassing op het lozen van afvloeiend hemelwater dat:
Artikel 22.143 Gegevens en bescheiden
Ten minste zes maanden voor de voorgenomen aanleg van buiten de bebouwde kom gelegen rijkswegen en provinciale wegen en daarbij behorende bruggen, viaducten en andere kunstwerken, worden aan het college van burgemeester en wethouders gegevens en bescheiden verstrekt over:
Ten minste zes maanden voor het veranderen van het lozen door een reconstructie of ingrijpende wijziging van die wegen of daarbij behorende bruggen, viaducten en andere kunstwerken, worden de gewijzigde gegevens verstrekt aan het college van burgemeester en wethouders.
Artikel 22.144 Lozen van afvloeiend hemelwater
Met het oog op het doelmatig beheer van afvalwater kan afvloeiend hemelwater worden geloosd op of in de bodem of in een schoonwaterriool.
Afvloeiend hemelwater wordt alleen in een vuilwaterriool geloosd als het lozen op of in de bodem, in een schoonwaterriool of op een oppervlaktewaterlichaam redelijkerwijs niet mogelijk is.
Het tweede lid is niet van toepassing op het lozen van afvloeiend hemelwater dat:
In afwijking van het eerste lid wordt afvloeiend hemelwater afkomstig van buiten de bebouwde kom gelegen rijkswegen en provinciale wegen, alleen in een schoonwaterriool geloosd als lozen op of in de bodem redelijkerwijs niet mogelijk is.
Bij het lozen vanuit een pompkelder van een tunnel of een verdiept weggedeelte is, als dat redelijkerwijs mogelijk is, een voorziening aanwezig om, in afwijking van het vierde lid, het meest vervuilde hemelwater in een vuilwaterriool te lozen.
Artikel 22.145 Toepassingsbereik
Deze paragraaf is van toepassing op het lozen van huishoudelijk afvalwater.
Artikel 22.146 Gegevens en bescheiden
Ten minste vier weken voor het begin van de activiteit, bedoeld in artikel 22.148, worden aan het college van burgemeester en wethouders gegevens en bescheiden verstrekt over:
Ten minste vier weken voordat de activiteit wijzigt, worden de gewijzigde gegevens verstrekt aan het college van burgemeester en wethouders.
Het eerste en tweede lid gelden niet voor het lozen van huishoudelijk afvalwater:
Artikel 22.147 Geen voedselvermaling
Huishoudelijk afvalwater afkomstig van het bereiden van voedingsmiddelen in een huishouden en daarmee samenhangende activiteiten, dat afvalstoffen bevat die door versnijdende of vermalende apparatuur zijn versneden of vermalen, wordt niet geloosd.
Artikel 22.148 Lozen van huishoudelijk afvalwater
Met het oog op het voorkomen van verontreiniging van de bodem wordt huishoudelijk afvalwater alleen op of in de bodem geloosd als het lozen plaatsvindt buiten een bebouwde kom of binnen een bebouwde kom van waaruit stedelijk afvalwater wordt geloosd met een vervuilingswaarde van minder dan 2000 inwonerequivalenten, en de afstand tot het dichtstbijzijnde vuilwaterriool of een zuiveringtechnisch werk waarop kan worden aangesloten meer bedraagt dan:
40 m bij niet meer dan 10 inwonerequivalenten;
100 m bij meer dan 10 maar minder dan 25 inwonerequivalenten;
600 m bij 25 of meer inwonerequivalenten maar minder dan 50 inwonerequivalenten;
1.500 m bij 50 of meer inwonerequivalenten maar minder dan 100 inwonerequivalenten; en
3.000 m bij 100 of meer inwonerequivalenten.
De afstand, bedoeld in het eerste lid, wordt berekend:
In afwijking van het tweede lid, aanhef en onder a, wordt de afstand tot het dichtstbijzijnde vuilwaterriool of zuiveringtechnisch werk bij voortzetting van het lozen van huishoudelijk afvalwater op of in de bodem dat voor 1 juli 1990 al plaatsvond, berekend vanaf het gedeelte van het gebouw dat zich het dichtst bij een vuilwaterriool of een zuiveringtechnisch werk bevindt.
In afwijking van het eerste lid kan huishoudelijk afvalwater in de bodem worden geloosd:
Artikel 22.149 Zuiveringsvoorziening huishoudelijk afvalwater
Met het oog op het voorkomen van verontreiniging van de bodem wordt huishoudelijk afvalwater dat wordt geloosd op of in de bodem, geleid via een zuiveringsvoorziening.
Voor dat afvalwater zijn de emissiegrenswaarden de waarden, bedoeld in tabel 22.3.27.
Als het huishoudelijk afvalwater minder dan zes inwonerequivalenten bevat kan het, in afwijking van het tweede lid, voor vermenging met ander afvalwater worden geleid door een septictank:
Het eerste en tweede lid gelden niet voor het lozen van huishoudelijk afvalwater:
Artikel 22.151 Toepassingsbereik
Deze paragraaf is van toepassing op het lozen van koelwater dat niet afkomstig is van een milieubelastende activiteit die is aangewezen in hoofdstuk 3 van het Besluit activiteiten leefomgeving.
Artikel 22.152 Gegevens en bescheiden
Ten minste vier weken voor het begin van de activiteit, bedoeld in artikel 22.151, worden aan het college van burgemeester en wethouders gegevens en bescheiden verstrekt over:
Ten minste vier weken voordat de activiteit wijzigt, worden de gewijzigde gegevens verstrekt aan het college van burgemeester en wethouders.
Met het oog op het doelmatig beheer van afvalwater kan koelwater worden geloosd in schoonwaterriool.
Koelwater wordt alleen in een vuilwaterriool geloosd als het lozen in een schoonwaterriool of op een oppervlaktewaterlichaam redelijkerwijs niet mogelijk is.
Aan het te lozen koelwater worden geen chemicaliën toegevoegd.
Artikel 22.154 Toepassingsbereik
Deze paragraaf is van toepassing op het lozen van afvalwater afkomstig van reinigingswerkzaamheden, conserveringswerkzaamheden of andere onderhoudswerkzaamheden aan bouwwerken.
Artikel 22.155 Periodiek reinigen
Met het oog op het doelmatig beheer van afvalwater wordt afvalwater afkomstig van reinigingswerkzaamheden, conserveringswerkzaamheden of andere onderhoudswerkzaamheden aan bouwwerken niet in een voorziening voor de inzameling en het transport van afvalwater of op of in de bodem geloosd, tenzij het gaat om afvalwater afkomstig van reinigingswerkzaamheden die periodiek worden uitgevoerd en waarbij alleen vuilafzetting wordt verwijderd.
Artikel 22.156 Toepassingsbereik
Deze paragraaf is van toepassing op het lozen van afvalwater afkomstig van het opslaan en overslaan van goederen.
Artikel 22.157 Inerte goederen
Voor de toepassing van deze paragraaf worden in ieder geval de volgende goederen als inerte goederen beschouwd, voor zover deze niet verontreinigd zijn:
bouwstoffen als bedoeld in paragraaf 4.123 van het Besluit activiteiten leefomgeving;
grond en baggerspecie als bedoeld in paragraaf 4.124 van het Besluit activiteiten leefomgeving;
A-hout en ongeshredderd B-hout;
snoeihout;
banden van voertuigen;
autowrakken bij een autodemontagebedrijf waaruit alle vloeistoffen zijn afgetapt en wrakken van tweewielige motorvoertuigen bij een demontagebedrijf voor tweewielige motorvoertuigen waaruit alle vloeistoffen zijn afgetapt;
straatmeubilair;
tuinmeubilair;
aluminium, ijzer en roestvrij staal;
kunststof anders dan lege, ongereinigde verpakkingen van voedingsmiddelen, smeerolie, verf, lak of drukinkt, gewasbeschermingsmiddelen, biociden of gevaarlijke stoffen;
kunststofgeïsoleerde kabels anders dan oliedrukkabels, gepantserde papier-loodkabels en papiergeïsoleerde grondkabels;
papier en karton;
textiel en tapijt; en
vlakglas.
Artikel 22.158 Gegevens en bescheiden
Ten minste vier weken voor het begin van de activiteit, bedoeld in artikel 22.156, worden aan het college van burgemeester en wethouders gegevens en bescheiden verstrekt over:
Ten minste vier weken voordat de activiteit wijzigt, worden de gewijzigde gegevens verstrekt aan het college van burgemeester en wethouders.
Dit artikel is niet van toepassing op het lozen van afvalwater afkomstig van wonen.
Artikel 22.159 Lozen bij opslaan van inerte goederen
Met het oog op het doelmatig beheer van afvalwater kan afvalwater dat in contact is geweest met opgeslagen inerte goederen, worden geloosd op of in de bodem of in een voorziening voor de inzameling en het transport van afvalwater.
Dat afvalwater wordt alleen in een vuilwaterriool geloosd, als het lozen op of in de bodem, op een oppervlaktewaterlichaam of in een schoonwaterriool redelijkerwijs niet mogelijk is.
Voor het lozen van dat afvalwater in een voorziening voor de inzameling en het transport van afvalwater is de emissiegrenswaarde voor onopgeloste stoffen 300 mg/l, gemeten in een steekmonster.
Als de opgeslagen inerte goederen worden bevochtigd, wordt afvalwater dat met opgeslagen goederen in contact is geweest, zoveel mogelijk voor dit bevochtigen gebruikt.
Het tweede tot en met vierde lid zijn niet van toepassing op het lozen van afvalwater afkomstig van wonen.
Artikel 22.161 Uitzondering voorgeschreven lozingsroute bij opslaan van lekkende, uitlogende en vermestende goederen
Als in de waterschapsverordening een andere lozingsroute is toegestaan, wordt, in afwijking van artikel 4.1057, eerste lid, van het Besluit activiteiten leefomgeving, het te lozen afvalwater, bedoeld in dat artikel, geloosd in een vuilwaterriool of via die andere route.
Artikel 22.162 Toepassingsbereik
Deze paragraaf is van toepassing op het lozen van afvalwater afkomstig uit:
Artikel 22.163 Lozen vanuit openbaar hemelwaterstelsel en openbaar ontwateringsstelsel
Met het oog op het doelmatig beheer van afvalwater kan het afvalwater afkomstig uit een openbaar hemelwaterstelsel of een openbaar ontwateringsstelsel worden geloosd op of in de bodem, als dat stelsel voorkomt op het in het gemeentelijk rioleringsplan of een gemeentelijk rioleringsprogramma opgenomen overzicht van voorzieningen en maatregelen als bedoeld in artikel 2.16, eerste lid, onder a, onder 1° en 2°, van de Omgevingswet, en dat stelsel volgens dat plan of programma is uitgevoerd en wordt beheerd.
Artikel 22.164 Lozen van huishoudelijk afvalwater vanuit andere systemen
Met het oog op het doelmatig beheer van afvalwater kan huishoudelijk afvalwater afkomstig uit een systeem als bedoeld in artikel 2.16, derde lid, van de Omgevingswet, worden geloosd op of in de bodem, als dat systeem voorkomt op het in het gemeentelijk rioleringsplan of een gemeentelijk rioleringsprogramma opgenomen overzicht van die systemen en volgens dat plan of programma is uitgevoerd en wordt beheerd.
Artikel 22.165 Toepassingsbereik
Deze paragraaf is van toepassing op het lozen van afvalwater afkomstig van het schoonmaken en in gebruik nemen van middelen voor het opslaan, transporteren en distribueren van drinkwater of warm tapwater als bedoeld in artikel 1 van de Drinkwaterwet of van huishoudwater als bedoeld in artikel 1 van het Drinkwaterbesluit.
Artikel 22.166 Schoonmaken drinkwaterleidingen
Met het oog op het doelmatig beheer van afvalwater kan afvalwater dat vrijkomt bij het schoonmaken en in gebruik nemen van de middelen voor opslag, transport en distributie van drinkwater of warm tapwater, worden geloosd op of in de bodem of in een schoonwaterriool.
Dat afvalwater wordt alleen in een vuilwaterriool geloosd als het lozen op of in de bodem, op een oppervlaktewaterlichaam of in een schoonwaterriool redelijkerwijs niet mogelijk is.
Bij het lozen op of in de bodem ontstaat geen wateroverlast.
Aan het water dat wordt gebruikt voor het schoonmaken en dat wordt geloosd op of in de bodem of in een schoonwaterriool worden geen chemicaliën toegevoegd.
Artikel 22.167 Toepassingsbereik
Deze paragraaf is van toepassing op het lozen van afvalwater dat vrijkomt bij een calamiteitenoefening.
Het eerste lid geldt niet voor het lozen van afvalwater afkomstig van een permanente voorziening voor het oefenen van brandbestrijdingstechnieken, bedoeld in artikel 3.259 van het Besluit activiteiten leefomgeving.
Artikel 22.168 Gegevens en bescheiden
Ten minste vier weken voor het begin van de activiteit, bedoeld in artikel 22.167, worden aan het college van burgemeester en wethouders gegevens en bescheiden verstrekt over:
Ten minste vier weken voordat de activiteit wijzigt, worden de gewijzigde gegevens verstrekt aan het college van burgemeester en wethouders.
Artikel 22.169 Lozen bij calamiteitenoefeningen
Met het oog op het doelmatig beheer van afvalwater kan afvalwater dat vrijkomt bij een calamiteitenoefening worden geloosd op of in de bodem of in een voorziening voor de inzameling en het transport van afvalwater.
Deze paragraaf is van toepassing op het lozen van afvalwater afkomstig van het telen, kweken, spoelen of sorteren van gewassen, als een milieubelastende activiteit die is aangewezen in hoofdstuk 3 van het Besluit activiteiten leefomgeving de activiteit omvat.
Ten minste vier weken voor het begin van het lozen, bedoeld in de artikelen 22.174 en 22.175, worden aan het college van burgemeester en wethouders gegevens en bescheiden verstrekt over:
Ten minste vier weken voordat de activiteit wijzigt, worden de gewijzigde gegevens verstrekt aan het college van burgemeester en wethouders.
In afwijking van artikel 4.791l van het Besluit activiteiten leefomgeving hoeft bij het lozen van drainagewater afkomstig van het telen van gewassen in een kas die op materiaal groeien dat in verbinding staat met de ondergrond geen recirculatiesysteem aanwezig en in gebruik te zijn, als hergebruik van drainagewater niet doelmatig is en het lozen is aangevangen voor de inwerkingtreding van de Omgevingswet.
In afwijking van artikel 4.761, eerste lid, van het Besluit activiteiten leefomgeving, wordt te lozen afvalwater afkomstig van het spoelen van biologisch geteelde gewassen, gelijkmatig verspreid over landbouwgronden of geloosd in een vuilwaterriool.
Voor het lozen van dat afvalwater in een vuilwaterriool is de emissiegrenswaarde voor onopgeloste stoffen 300 mg/l, gemeten in een steekmonster.
Als in de waterschapsverordening een andere lozingsroute is toegestaan, wordt het te lozen afvalwater, bedoeld in het eerste lid, gelijkmatig verspreid over landbouwgronden, geloosd in een vuilwaterriool of geloosd via die andere route.
In afwijking van artikel 4.773, eerste lid, van het Besluit activiteiten leefomgeving wordt te lozen afvalwater afkomstig van het sorteren van biologisch geteeld fruit, gelijkmatig verspreid over landbouwgronden of geloosd in een vuilwaterriool.
Voor het lozen van dat afvalwater in een vuilwaterriool is de emissiegrenswaarde voor onopgeloste stoffen 300 mg/l, gemeten in een steekmonster.
Als in de waterschapsverordening een andere lozingsroute is toegestaan, wordt het te lozen afvalwater, bedoeld in het eerste lid, gelijkmatig verspreid over landbouwgronden, geloosd in een vuilwaterriool of geloosd via die andere lozingsroute.
Als in de waterschapsverordening een andere lozingsroute is toegestaan, wordt, in afwijking van artikel 4.795, eerste lid, van het Besluit activiteiten leefomgeving, het te lozen afvalwater, bedoeld in dat artikel, gelijkmatig verspreid over landbouwgronden of geloosd in een vuilwaterriool of via die andere route.
Deze paragraaf is van toepassing op het lozen van afvalwater afkomstig van het reinigen van installaties en voorzieningen voor het maken van betonmortel en het inwendig reinigen van voertuigen waarin betonmortel is vervoerd, als een milieubelastende activiteit die is aangewezen in hoofdstuk 3 van het Besluit activiteiten leefomgeving de activiteit omvat.
Ten minste vier weken voor het begin van een activiteit als bedoeld in artikel 22.177 worden aan het college van burgemeester en wethouders gegevens en bescheiden verstrekt over:
Ten minste vier weken voordat de activiteit wijzigt, worden de gewijzigde gegevens verstrekt aan het college van burgemeester en wethouders.
In aanvulling op artikel 4.140, eerste lid, van het Besluit activiteiten leefomgeving kan te lozen afvalwater afkomstig van het reinigen van installaties en voorzieningen voor het maken van betonmortel en het inwendig reinigen van voertuigen waarin betonmortel is vervoerd, ook worden geloosd in een voorziening voor de inzameling en het transport van afvalwater.
Voor het lozen van dat afvalwater in een schoonwaterriool zijn de emissiegrenswaarden de waarden, bedoeld in tabel 22.3.28, gemeten in een steekmonster.
Voor het lozen van dat afvalwater in een vuilwaterriool is de emissiegrenswaarde voor onopgeloste stoffen 300 mg/l, gemeten in een steekmonster.
Deze paragraaf is van toepassing op het uitwassen van beton, als een milieubelastende activiteit die is aangewezen in hoofdstuk 3 van het Besluit activiteiten leefomgeving de activiteit omvat.
Ten minste vier weken voor het begin van een activiteit als bedoeld in artikel 22.181 worden aan het college van burgemeester en wethouders gegevens en bescheiden verstrekt over:
Ten minste vier weken voordat de activiteit wijzigt, worden de gewijzigde gegevens verstrekt aan het college van burgemeester en wethouders.
In aanvulling op artikel 4.158, eerste lid, van het Besluit activiteiten leefomgeving, kan te lozen afvalwater afkomstig van het uitwassen van beton ook worden geloosd in een vuilwaterriool.
Voor het lozen van dat afvalwater is de emissiegrenswaarde voor onopgeloste stoffen 300 mg/l, gemeten in een steekmonster.
Deze paragraaf is van toepassing op het exploiteren van een recreatieve visvijver.
Ten minste vier weken voor het begin van een activiteit als bedoeld in artikel 22.185 worden aan het college van burgemeester en wethouders de volgende gegevens en bescheiden verstrekt:
informatie over de aard en omvang van de activiteit en de aard en omvang van de daarbij behorende processen;
gegevens over de indeling van de locatie waarop de activiteit wordt verricht, waarbij het volgende wordt aangegeven:
een situatietekening met een schaal van ten minste 1:10.000 waarop de activiteit is aangegeven en die is voorzien van een noordpijl; en
gegevens over de verwachte datum van het begin van de activiteit.
Ten minste vier weken voordat de activiteit wijzigt, worden de gewijzigde gegevens verstrekt aan het college van burgemeester en wethouders.
Met het oog op het doelmatig beheer van afvalwater kan spuiwater uit recreatieve visvijvers worden geloosd op of in de bodem of in een schoonwaterriool. Het spuiwater wordt niet geloosd in een vuilwaterriool.
Ten minste vier weken voor het begin van een activiteit als bedoeld in artikel 22.188 worden aan het college van burgemeester en wethouders de volgende gegevens en bescheiden verstrekt:
informatie over de aard en omvang van de activiteit en de aard en omvang van de daarbij behorende processen;
gegevens over de indeling van de locatie waarop de activiteit wordt verricht, waarbij het volgende wordt aangegeven:
een situatietekening met een schaal van ten minste 1:10.000 waarop de activiteit is aangegeven en die is voorzien van een noordpijl; en
gegevens over de verwachte datum van het begin van de activiteit.
Ten minste vier weken voordat de activiteit wijzigt, worden de gewijzigde gegevens verstrekt aan het college van burgemeester en wethouders.
Met het oog op het doelmatig beheer van afvalwater kan afvalwater afkomstig van het ontwikkelen of afdrukken van fotografisch materiaal worden geloosd in een vuilwaterriool. Het afvalwater wordt niet geloosd op of in de bodem of in een schoonwaterriool.
Er worden in goede staat verkerende afkwetsrollen gebruikt en er wordt een doelmatige zilverterugwininstallatie toegepast.
In afwijking van het tweede lid hoeft geen zilverterugwininstallatie te worden toegepast als per jaar minder dan 700 liter aan gebruiksklare fixeer wordt gebruikt en er gedragsvoorschriften zijn opgesteld en worden nageleefd gericht op het beperken van de emissie van zilver.
Voor het afvalwater is de emissiegrenswaarde voor zilver 4 milligram per liter, gemeten in een steekmonster.
Op het bemonsteren van afvalwater is NEN 6600-1 van toepassing, en een monster is niet gefiltreerd.
Op het conserveren van een monster is NEN-EN-ISO 5667-3 van toepassing.
Op het analyseren van zilver is NEN 6966, NEN-EN-ISO 17294-2, NEN-EN-ISO 11885 of NEN 6965 van toepassing, waarbij onopgeloste stoffen worden meegenomen in de analyse en elementen worden ontsloten volgens NEN-EN-ISO 15587-1 of NEN-EN-ISO 15587-2.
Met het oog op het voorkomen van verontreiniging van de bodem met oliën, vetten en koelvloeistof wordt gewassen boven een vloeistofdichte bodemvoorziening.
Motorvoertuigen kunnen ook worden gewassen op een mobiele wasinstallatie die zodanig is uitgevoerd dat vloeistoffen niet in de bodem kunnen geraken, als die mobiele wasinstallatie niet langer dan zes maanden aaneengesloten op eenzelfde locatie is geplaatst.
Het eerste lid is niet van toepassing, als per week ten hoogste één motorvoertuig waarmee geen gewasbeschermingsmiddelen zijn toegepast, uitwendig wordt gewassen.
Met het oog op het doelmatig beheer van afvalwater kan afvalwater afkomstig van het wassen van motorvoertuigen worden geloosd in een vuilwaterriool. Het afvalwater wordt niet geloosd in een schoonwaterriool.
Het lozen op of in de bodem is toegestaan, als per week ten hoogste één motorvoertuig waarmee geen gewasbeschermingsmiddelen zijn toegepast, uitwendig wordt gewassen.
Voor het afvalwater dat wordt geloosd in een vuilwaterriool is de emissiegrenswaarde voor olie 20 mg/l, gemeten in een steekmonster, of dat afvalwater wordt voor vermenging met ander afvalwater geleid door een slibvangput en olieafscheider:
Op het bemonsteren van afvalwater is NEN 6600-1 van toepassing, en een monster is niet gefiltreerd.
Op het conserveren van een monster is NEN-EN-ISO 5667-3 van toepassing.
Bij het analyseren van een monster worden onopgeloste stoffen meegenomen, en op het analyseren is voor olie NEN-EN-ISO 9377-2 van toepassing.
Deze paragraaf is van toepassing op het bereiden van voedingsmiddelen met:
Deze paragraaf is niet van toepassing als een activiteit als bedoeld in artikel 3.128 van het Besluit activiteiten leefomgeving de activiteit omvat, met uitzondering van het bereiden van voedingsmiddelen voor personen die werken op de locatie waarop de activiteit wordt verricht.
Ten minste vier weken voor het begin van een activiteit als bedoeld in artikel 22.196 worden aan het college van burgemeester en wethouders de volgende gegevens en bescheiden verstrekt:
informatie over de aard en omvang van de activiteit en de aard en omvang van de daarbij behorende processen;
gegevens over de indeling van de locatie waarop de activiteit wordt verricht, waarbij het volgende wordt aangegeven:
een situatietekening met een schaal van ten minste 1:10.000 waarop de activiteit is aangegeven en die is voorzien van een noordpijl; en
gegevens over de verwachte datum van het begin van de activiteit.
Ten minste vier weken voordat de activiteit wijzigt, worden de gewijzigde gegevens verstrekt aan het college van burgemeester en wethouders.
Het eerste en tweede lid zijn niet van toepassing op het bereiden van voedingsmiddelen voor personen die wonen of werken op de locatie waarop de activiteit wordt verricht.
Met het oog op het doelmatig beheer van afvalwater kan afvalwater afkomstig van het bereiden van voedingsmiddelen worden geloosd in een vuilwaterriool. Het afvalwater wordt niet geloosd in een schoonwaterriool.
Als niet in een vuilwaterriool kan worden geloosd, kan het afvalwater op de bodem worden geloosd, als het afvalwater gezamenlijk met huishoudelijk afvalwater wordt geloosd en de voorzieningen voor het zuiveren van huishoudelijk afvalwater zijn berekend op het zuiveren van het afvalwater afkomstig van het bereiden van voedingsmiddelen.
Afvalwater dat afvalstoffen bevat, die door versnijdende of vermalende apparatuur zijn versneden of vermalen, wordt niet geloosd.
Vethoudend afvalwater dat wordt geloosd, wordt voor vermenging met ander afvalwater geleid door:
In afwijking van NEN-EN 1825-1 en NEN-EN 1825-2 kan met een lagere frequentie van het legen en reinigen dan daar vermeld worden volstaan als dit geen nadelige gevolgen heeft voor het doelmatig functioneren van de afscheider.
Met het oog op het voorkomen of het beperken van geurhinder worden afgezogen dampen en gassen die naar de buitenlucht worden geëmitteerd:
Dampen die vrijkomen bij het bereiden van voedingsmiddelen met grootkeukenapparatuur door frituren, bakken in olie of vet of grillen, anders dan met houtskool, worden afgezogen en geleid door een vetvangend filter.
Het eerste en tweede lid zijn niet van toepassing:
op het bereiden van voedingsmiddelen met keukenapparatuur; en
als het mogelijke effect van de geuremissie van de uittredende lucht van een afzuiginstallatie beperkt blijft tot een gezoneerd industrieterrein, op een industrieterrein waarvoor geluidproductieplafonds als omgevingswaarden zijn vastgesteld of een Activiteitenbesluit-bedrijventerrein met minder dan één geurgevoelig gebouw per hectare.
Voor zover er geen verandering van de activiteit plaatsvindt die leidt tot een toename van de geurbelasting op een geurgevoelig gebouw, is het eerste lid niet van toepassing als voor 1 januari 2008 voor die activiteit:
Deze paragraaf is van toepassing op een milieubelastende activiteit als bedoeld in artikel 3.128 van het Besluit activiteiten leefomgeving.
Deze paragraaf is niet van toepassing op een milieubelastende activiteit die als vergunningplichtig is aangewezen in artikel 3.129, eerste lid, 3.130 of 3.131 van het Besluit activiteiten leefomgeving.
Het beginnen of uitbreiden in capaciteit van een activiteit als bedoeld in artikel 22.200 is alleen toegestaan als nieuwe geurhinder op een geurgevoelig gebouw wordt voorkomen.
Het eerste lid is ook van toepassing op het wijzigen van de activiteit, als die wijziging leidt tot een grotere of andere geurbelasting ter plaatse van een geurgevoelig gebouw.
Ten minste vier weken voor het begin van een activiteit als bedoeld in artikel 22.202 worden aan het college van burgemeester en wethouders de volgende gegevens en bescheiden verstrekt:
informatie over de aard en omvang van de activiteit en de aard en omvang van de daarbij behorende processen;
gegevens over de indeling van de locatie waarop de activiteit wordt verricht, waarbij het volgende wordt aangegeven:
een situatietekening met een schaal van ten minste 1:10.000 waarop de activiteit is aangegeven en die is voorzien van een noordpijl; en
gegevens over de verwachte datum van het begin van de activiteit.
Ten minste vier weken voordat de activiteit wijzigt, worden de gewijzigde gegevens verstrekt aan het college van burgemeester en wethouders.
Met het oog op het doelmatig beheer van afvalwater vindt het slachten van dieren en het broeien, koken of pekelen van daarbij vrijkomende dierlijke bijproducten inpandig plaats.
Te lozen afvalwater kan worden geloosd in een vuilwaterriool, als dat afvalwater afkomstig is van:
het bewerken van dierlijke bijproducten; of
het reinigen en desinfecteren van ruimtes waar een activiteit als bedoeld in artikel 22.202 is uitgevoerd.
Het afvalwater wordt niet geloosd op of in de bodem of in een schoonwaterriool.
Vethoudend afvalwater dat wordt geloosd, wordt voor vermenging met ander afvalwater geleid door:
een vetafscheider en slibvangput volgens NEN-EN 1825-1 en NEN-EN 1825-2;
een vetafscheider en slibvangput die zijn geplaatst voor 14 september 2004 en zijn afgestemd op de hoeveelheid afvalwater dat wordt geloosd; of
een flocculatieafscheider die is geplaatst voor 1 januari 2013 en is afgestemd op de hoeveelheid afvalwater dat wordt geloosd.
In afwijking van NEN-EN 1825-1 en NEN-EN 1825-2 kan met een lagere frequentie van het legen en reinigen dan in die normen vermeld worden volstaan als dit geen nadelige gevolgen heeft voor het doelmatig functioneren van de afscheider.
Het afvalwater wordt niet door een biologische zuivering geleid.
Dit artikel is niet van toepassing op afvalwater afkomstig van wonen.
Met het oog op het voorkomen of het beperken van geurhinder:
Voor zover er geen verandering van de activiteit plaatsvindt die leidt tot een toename van de geurbelasting op een geurgevoelig gebouw, is het eerste lid, onder b, niet van toepassing als voor 1 januari 2008 voor die activiteit:
Met het oog op het voorkomen van verontreiniging van de bodem vindt het pekelen van dierlijke bijproducten en organen plaats boven een aaneengesloten bodemvoorziening.
Er wordt een logboek bijgehouden waarin voor bodembeschermende voorzieningen gegevens worden vastgelegd over controles, beoordelingen, onderhoud en reparaties.
Bij het beëindigen van het pekelen van dierlijke bijproducten of organen wordt een eindonderzoek bodem verricht om de kwaliteit van de bodem vast te stellen.
Het bodemonderzoek gaat over de bodembedreigende stoffen die zijn gebruikt, geproduceerd of uitgestoten op het gedeelte van de locatie waar het pekelen van dierlijke bijproducten of organen is verricht.
Het bodemonderzoek voldoet aan NEN 5725 en NEN 5740 en het veldwerk wordt verricht door een onderneming met een erkenning bodemkwaliteit voor BRL SIKB 2000 of een certificatie-instantie of inspectie-instantie met een erkenning bodemkwaliteit voor AS SIKB 2000.
Het rapport van het eindonderzoek bodem bevat:
de naam en het adres van degene die het onderzoek heeft verricht;
de wijze waarop het onderzoek is verricht;
de aard en de mate van de aangetroffen verontreinigde stoffen en de herkomst daarvan;
informatie over het huidige en eerdere gebruik van het terrein;
bestaande informatie over bodemmetingen en grondwatermetingen die de toestand van de bodem en het grondwater weergeven op het tijdstip van opstelling van het rapport, of anders nieuwe bodemmetingen en grondwatermetingen voor het constateren van eventuele verontreiniging van de bodem door de bodemverontreinigende stoffen die bij de activiteit zijn gebruikt, zijn geproduceerd of zijn vrijgekomen; en
als de kwaliteit van de bodem wordt hersteld: de wijze waarop en de mate waarin dit gebeurt.
Ten hoogste zes maanden na het beëindigen van het pekelen van dierlijke bijproducten of organen wordt een rapport van het eindonderzoek bodem verstrekt aan het college van burgemeester en wethouders.
Als de bodem is verontreinigd, wordt uiterlijk zes maanden na het toezenden van het rapport van het eindonderzoek bodem de bodemkwaliteit hersteld tot:
de bodemkwaliteit en grondwaterkwaliteit, die is vastgesteld in een rapport volgens NEN 5740 dat is opgesteld voor het begin van de het pekelen van dierlijke bijproducten of organen;
de bodemkwaliteit van de locatie waarop de activiteit is verricht, zoals die is vastgelegd op een bodemkwaliteitskaart als bedoeld in artikel 47, onder a, of 57, tweede lid, van het Besluit bodemkwaliteit; of
de achtergrondwaarden, vastgesteld op grond van artikel 1 van het Besluit bodemkwaliteit.
Het herstel wordt verricht door een onderneming met een erkenning bodemkwaliteit voor BRL SIKB 7000.
Met het oog op het doelmatig beheer van afvalwater worden bij het pekelen van dierlijke bijproducten en organen de gemorste of gelekte stoffen zoveel mogelijk zonder verder toevoegen van water opgeruimd en afgevoerd als afvalstof en wordt zoveel mogelijk voorkomen dat deze stoffen in het afvalwater terecht kunnen komen.
Dit artikel is niet van toepassing op afvalwater afkomstig van wonen.
Deze paragraaf is van toepassing op het opwekken van elektriciteit met een windturbine, bedoeld in artikel 3.11 van het Besluit activiteiten leefomgeving als:
Deze paragraaf is niet van toepassing op slagschaduw door een windturbine, in een verblijfsruimte van een slagschaduwgevoelig gebouw dat op een locatie is toegelaten op grond van een omgevingsplan of een omgevingsvergunning voor een omgevingsplanactiviteit voor een duur van niet meer dan tien jaar.
Deze paragraaf is ook niet van toepassing voor zover het gaat om een windpark met 3 of meer windturbines.
In afwijking van artikel 22.214, tweede lid, is deze paragraaf ook van toepassing op slagschaduw door een windturbine in een verblijfsruimte van een slagschaduwgevoelig gebouw, dat is toegelaten voor een duur van niet meer dan tien jaar:
In afwijking van artikel 22.214, eerste lid, is deze paragraaf niet van toepassing op slagschaduw door een windturbine in een verblijfsruimte van een slagschaduwgevoelig gebouw dat nog niet aanwezig is maar mag worden gebouwd op grond van:
Met het oog op het voorkomen of beperken van slagschaduw is de windturbine voorzien van een automatische stilstandvoorziening die de windturbine afschakelt als gemiddeld meer dan zeventien dagen per jaar gedurende meer dan twintig minuten per dag slagschaduw kan optreden in een verblijfsruimte van een slagschaduwgevoelig gebouw en voor zover de afstand tussen de windturbine en een slagschaduwgevoelig gebouw minder dan twaalf maal de rotordiameter bedraagt.
De afstand wordt gemeten van een punt op ashoogte van de windturbine:
Artikel 22.216 is niet van toepassing op slagschaduw door een windturbine in een slagschaduwgevoelig gebouw dat een functionele binding heeft met de windturbine.
Bij een agrarische activiteit is artikel 22.216 niet van toepassing op slagschaduw door een windturbine in een verblijfsruimte van een slagschaduwgevoelig gebouw dat:
op grond van het tijdelijke deel van dit omgevingsplan, bedoeld in artikel 22.1, onder a, van de Omgevingswet of een voor de inwerkingtreding van de Omgevingswet aangevraagde omgevingsvergunning behoort of heeft behoord tot die agrarische activiteit en door een derde bewoond mag worden; of
eerder functioneel verbonden was met die agrarische activiteit en waarvoor op grond van artikel 5.62 van het Besluit kwaliteit leefomgeving in dit omgevingsplan of een omgevingsvergunning voor een omgevingsplanactiviteit is bepaald dat regels voor slagschaduw niet van toepassing zijn.
Lichtschittering wordt bij het opwekken van elektriciteit met een windturbine voorkomen of zoveel mogelijk beperkt door toepassing van niet reflecterende materialen of coatinglagen op de betrokken onderdelen.
Op het uitvoeren van een meting van reflectiewaarden is NEN-EN-ISO 2813 van toepassing.
Deze paragraaf is van toepassing op het met een acculader laden van een natte accu die vloeibare bodembedreigende stoffen bevat.
Met het oog op het voorkomen van verontreiniging van de bodem vindt het laden van een accu plaats boven een aaneengesloten bodemvoorziening.
Er wordt een logboek bijgehouden waarin voor bodembeschermende voorzieningen gegevens worden vastgelegd over controles, beoordelingen, onderhoud en reparaties.
Deze paragraaf is van toepassing op het bieden van parkeergelegenheid in een parkeergarage met meer dan 20 parkeerplaatsen die voorzien is van mechanische ventilatie.
Ten minste vier weken voor het begin van het bieden van parkeergelegenheid in een parkeergarage met meer dan 30 parkeerplaatsen worden aan het college van burgemeester en wethouders de volgende gegevens en bescheiden verstrekt:
informatie over de aard en omvang van de activiteit en de aard en omvang van de daarbij behorende processen;
gegevens over de indeling van de locatie waarop de activiteit wordt verricht, waarbij het volgende wordt aangegeven:
een situatietekening met een schaal van ten minste 1:10.000 waarop de activiteit is aangegeven en die is voorzien van een noordpijl; en
gegevens over de verwachte datum van het begin van de activiteit.
Ten minste vier weken voordat de activiteit wijzigt, worden de gewijzigde gegevens verstrekt aan het college van burgemeester en wethouders.
Met het oog op het beschermen van de kwaliteit van de lucht en het voorkomen of beperken van geurhinder:
worden de aanzuigopeningen voor de ventilatie van de parkeergarage in een verkeersluwe omgeving, of, als dat niet mogelijk is, op ten minste 5 m boven het straatniveau en buiten de beïnvloeding van de uitblaasopeningen aangebracht;
wordt de uit de parkeergarage afgezogen lucht verticaal uitgeblazen op ten minste 5 m boven het straatniveau of, als binnen 25 m van de uitblaasopening een gebouw is gelegen met een hoogste daklijn die meer dan vijf meter boven het straatniveau is gelegen, ten minste één meter boven de hoogste daklijn van dat gebouw; en
bedraagt de snelheid van de uitgeblazen lucht, gemeten bij de rand van de uitblaasopening, ten minste tien meter per seconde.
Voor zover er geen verandering van de activiteit plaatsvindt die leidt tot een toename van de geurbelasting op een geurgevoelig gebouw, is het eerste lid niet van toepassing als voor 1 januari 2008 voor die activiteit:
Deze paragraaf is van toepassing op het traditioneel schieten door schutterijen of schuttersgilden met buksen of geweren vanaf een vaste standplaats op een stilstaand doel in de buitenlucht.
Ten minste vier weken voor het begin van een activiteit als bedoeld in artikel 22.227 worden aan het college van burgemeester en wethouders de volgende gegevens en bescheiden verstrekt:
informatie over de aard en omvang van de activiteit en de aard en omvang van de daarbij behorende processen;
gegevens over de indeling van de locatie waarop de activiteit wordt verricht, waarbij het volgende wordt aangegeven:
een situatietekening met een schaal van ten minste 1:10.000 waarop de activiteit is aangegeven en die is voorzien van een noordpijl; en
gegevens over de verwachte datum van het begin van de activiteit.
Ten minste vier weken voordat de activiteit wijzigt, worden de gewijzigde gegevens verstrekt aan het college van burgemeester en wethouders.
Met het oog op het waarborgen van de veiligheid en het beperken van verontreiniging van de bodem vindt het schieten op zodanige wijze plaats dat alle afgeschoten kogels worden opgevangen in een voorziening.
Met het oog op het beperken van verontreiniging van de bodem, vindt traditioneel schieten plaats boven een bodembeschermende voorziening, als bij het schieten hulzen van verschoten munitie vrijkomen.
De voorziening voor het opvangen van afgeschoten kogels, bedoeld in artikel 22.229, is opgesteld boven een bodembeschermende voorziening.
Er wordt een logboek bijgehouden waarin voor bodembeschermende voorzieningen gegevens worden vastgelegd over controles, beoordelingen, onderhoud en reparaties.
Bij het beëindigen van het traditioneel schieten wordt een eindonderzoek bodem verricht om de kwaliteit van de bodem vast te stellen.
Het eindonderzoek bodem gaat over de bodembedreigende stoffen die zijn gebruikt op het gedeelte van de locatie waar het traditioneel schieten heeft plaatsgevonden.
Het bodemonderzoek voldoet aan NEN 5725 en NEN 5740 en het veldwerk wordt verricht door een onderneming met een erkenning bodemkwaliteit voor BRL SIKB 2000 of een certificatie-instantie of inspectie-instantie met een erkenning bodemkwaliteit voor AS SIKB 2000.
Het rapport van het eindonderzoek bodem bevat:
de naam en het adres van degene die het onderzoek heeft verricht;
de wijze waarop het onderzoek is verricht;
de aard en de mate van de aangetroffen verontreinigde stoffen en de herkomst daarvan;
informatie over het huidige en eerdere gebruik van het terrein;
bestaande informatie over bodemmetingen en grondwatermetingen die de toestand van de bodem en het grondwater weergeven op het tijdstip van opstelling van het rapport, of anders nieuwe bodemmetingen en grondwatermetingen voor het constateren van eventuele verontreiniging van de bodem door de bodemverontreinigende stoffen die bij de activiteit zijn gebruikt, zijn geproduceerd of zijn vrijgekomen; en
als de kwaliteit van de bodem wordt hersteld, de wijze waarop en de mate waarin dit gebeurt.
Ten hoogste zes maanden na het beëindigen van het traditioneel schieten wordt een rapport van het eindonderzoek bodem verstrekt aan het college van burgemeester en wethouders.
Als de bodem is verontreinigd, wordt uiterlijk zes maanden na het toezenden van het rapport van het eindonderzoek bodem, de bodemkwaliteit hersteld tot:
de bodemkwaliteit en grondwaterkwaliteit, die is vastgesteld in een rapport volgens NEN 5740 dat is opgesteld voor het begin van de activiteit;
de bodemkwaliteit van de locatie waarop de activiteit is verricht, zoals die is vastgelegd op een bodemkwaliteitskaart als bedoeld in artikel 47, onder a, of artikel 57, tweede lid, van het Besluit bodemkwaliteit; of
de achtergrondwaarden, vastgesteld op grond van artikel 1 van het Besluit bodemkwaliteit.
Het herstel wordt verricht door een onderneming met een erkenning bodemkwaliteit voor BRL SIKB 7000.
Het college van burgemeester en wethouders wordt ten minste vijf dagen voor het begin van de herstelwerkzaamheden, bedoeld in artikel 22.235 geïnformeerd over de begindatum.
Het college van burgemeester en wethouders wordt ten hoogste vijf dagen na beëindiging van de herstelwerkzaamheden, bedoeld in artikel 22.235 geïnformeerd over de einddatum.
Deze paragraaf is van toepassing op het bieden van gelegenheid voor het beoefenen van sport in de buitenlucht waarbij terreinverlichting wordt toegepast.
Ten minste vier weken voor het begin van een activiteit als bedoeld in artikel 22.237 worden aan het college van burgemeester en wethouders de volgende gegevens en bescheiden verstrekt:
informatie over de aard en omvang van de activiteit en de aard en omvang van de daarbij behorende processen;
gegevens over de indeling van de locatie waarop de activiteit wordt verricht, waarbij het volgende wordt aangegeven:
een situatietekening met een schaal van ten minste 1:10.000 waarop de activiteit is aangegeven en die is voorzien van een noordpijl; en
gegevens over de verwachte datum van het begin van de activiteit.
Ten minste vier weken voordat de activiteit wijzigt, worden de gewijzigde gegevens verstrekt aan het college van burgemeester en wethouders.
Met het oog op het beperken van lichthinder is de verlichting die hoort bij een gelegenheid voor het beoefenen van sport in de buitenlucht uitgeschakeld:
Het eerste lid is niet van toepassing op dagen of dagdelen in verband met:
de viering van festiviteiten die bij of krachtens een gemeentelijke verordening zijn aangewezen in de gebieden in de gemeente waarvoor de verordening geldt;
de viering van andere festiviteiten die plaatsvinden op de locatie waarop de activiteit wordt verricht, waarbij het aantal bij of krachtens een gemeentelijke verordening aan te wijzen dagen of dagdelen niet meer mag bedragen dan twaalf per kalenderjaar; of
door het college van burgemeester en wethouders aangewezen activiteiten, anders dan festiviteiten als bedoeld onder b, waarbij het aantal aan te wijzen dagen of dagdelen gebaseerd op dit artikel samen niet meer bedraagt dan twaalf dagen per kalenderjaar.
Een festiviteit of activiteit als bedoeld in het tweede lid die ten hoogste een etmaal duurt, maar die zowel voor als na 00.00 uur plaatsvindt, wordt hierbij beschouwd als plaatshebbende op één dag.
Ten minste vier weken voor het begin van een activiteit als bedoeld in artikel 22.240 worden aan het college van burgemeester en wethouders de volgende gegevens en bescheiden verstrekt:
informatie over de aard en omvang van de activiteit en de aard en omvang van de daarbij behorende processen;
gegevens over de indeling van de locatie waarop de activiteit wordt verricht, waarbij het volgende wordt aangegeven:
de grenzen van het terrein;
de ligging en de indeling van de gebouwen;
het gebruik van de te onderscheiden ruimten;
de ligging van de bedrijfsriolering;
op welke punten welk afvalwater wordt geloosd;
of de punten waarop afvalwater wordt geloosd, zijn aangesloten op het eigen vuilwaterriool of een schoonwaterriool; en
op welke lozingsroutes het eigen vuilwaterriool en een schoonwaterriool uitkomen;
een situatietekening met een schaal van ten minste 1:10.000 waarop de activiteit is aangegeven en die is voorzien van een noordpijl; en
gegevens over de verwachte datum van het begin van de activiteit.
Ten minste vier weken voordat de activiteit wijzigt, worden de gewijzigde gegevens verstrekt aan het college van burgemeester en wethouders.
Met het oog op het voorkomen van verontreiniging van de bodem wordt vaste mest, met uitzondering van gedroogde pluimveemest, opgeslagen:
Gedroogde pluimveemest wordt opgeslagen:
in een gebouw met een aaneengesloten bodemvoorziening waar de pluimveemest wordt beschermd tegen weersinvloeden en waar voldoende ventilatie is om condensvorming te voorkomen;
in een afgedekte container als de pluimveemest ten minste elke twee weken wordt afgevoerd; of
op een voldoende dikke absorberende laag als de opslag niet meer dan zes maanden duurt en tegen inregenen is beschermd.
Er wordt een logboek bijgehouden waarin voor bodembeschermende voorzieningen gegevens worden vastgelegd over controles, beoordelingen, onderhoud en reparaties.
Ten minste vier weken voor het begin van een activiteit als bedoeld in artikel 22.246 worden aan het college van burgemeester en wethouders de volgende gegevens en bescheiden verstrekt:
informatie over de aard en omvang van de activiteit en de aard en omvang van de daarbij behorende processen;
gegevens over de indeling van de locatie waarop de activiteit wordt verricht, waarbij het volgende wordt aangegeven:
de grenzen van het terrein;
de ligging en de indeling van de gebouwen;
het gebruik van de te onderscheiden ruimten;
de ligging van de bedrijfsriolering;
op welke punten welk afvalwater wordt geloosd;
of de punten waarop afvalwater wordt geloosd, zijn aangesloten op het eigen vuilwaterriool of een schoonwaterriool; en
op welke lozingsroutes het eigen vuilwaterriool en een schoonwaterriool uitkomen;
een situatietekening met een schaal van ten minste 1:10.000 waarop de activiteit is aangegeven en die is voorzien van een noordpijl;
gegevens over de lozingsroutes; en
gegevens over de verwachte datum van het begin van de activiteit.
Ten minste vier weken voordat de activiteit wijzigt, worden de gewijzigde gegevens verstrekt aan het college van burgemeester en wethouders.
Met het oog op het voorkomen van verontreiniging van de bodem worden kuilvoer of vaste bijvoedermiddelen opgeslagen op een elementenbodemvoorziening, waarbij de vloeistoffen die vrijkomen worden opgevangen.
Het eerste lid is niet van toepassing als kuilvoer of vaste bijvoedermiddelen als veevoederbalen in plastic folie zijn verpakt.
Er wordt een logboek bijgehouden waarin voor bodembeschermende voorzieningen gegevens worden vastgelegd over controles, beoordelingen, onderhoud en reparaties.
Met het oog op het doelmatig beheer van afvalwater kunnen vrijkomende vloeistoffen afkomstig van de opslag van kuilvoer of vaste bijvoedermiddelen gelijkmatig worden verspreid over onverharde bodem.
De vrijkomende vloeistoffen worden niet geloosd in een voorziening voor de inzameling en het transport van afvalwater.
Dit artikel is niet van toepassing op afvalwater afkomstig van wonen.
Met het oog op het doelmatig beheer van afvalwater kan afvalwater afkomstig van de bodembeschermende voorziening voor opslag van kuilvoer of vaste bijvoedermiddelen worden geloosd op of in de bodem als:
Het afvalwater wordt niet geloosd in een voorziening voor de inzameling en het transport van afvalwater.
Dit artikel is niet van toepassing op afvalwater afkomstig van wonen.
Ten minste vier weken voor het begin van een activiteit als bedoeld in artikel 22.252 worden aan het college van burgemeester en wethouders de volgende gegevens en bescheiden verstrekt:
informatie over de aard en omvang van de activiteit en de aard en omvang van de daarbij behorende processen;
gegevens over de indeling van de locatie waarop de activiteit wordt verricht, waarbij het volgende wordt aangegeven:
een situatietekening met een schaal van ten minste 1:10.000 waarop de activiteit is aangegeven en die is voorzien van een noordpijl;
per dierenverblijf voor het houden van landbouwhuisdieren:
per dierenverblijf waar landbouwhuisdieren met geuremissiefactor worden gehouden,:
gegevens over de verwachte datum van het begin van de activiteit.
Ten minste vier weken voordat de activiteit wijzigt, worden de gewijzigde gegevens verstrekt aan het college van burgemeester en wethouders.
Met het oog op het voorkomen van verontreiniging van de bodem vindt het fokken, houden of trainen van vogels of zoogdieren plaats boven een aaneengesloten bodemvoorziening.
Het eerste lid is niet van toepassing op het fokken, houden of trainen van vogels of zoogdieren in de buitenlucht als uitwerpselen en voedselresten regelmatig worden verwijderd.
Er wordt een logboek bijgehouden waarin voor bodembeschermende voorzieningen gegevens worden vastgelegd over controles, beoordelingen, onderhoud en reparaties.
Met het oog op het doelmatig beheer van afvalwater kan afvalwater afkomstig van het reinigen en ontsmetten van een dierenverblijf waarin landbouwhuisdieren of paarden of pony’s voor het berijden worden gehouden, worden geloosd in een vuilwaterriool als meer dan 10 schapen, 5 paarden of pony’s, 10 geiten, 25 stuks pluimvee, 25 konijnen of 10 overige landbouwhuisdieren worden gehouden. Het afvalwater wordt niet geloosd in een schoonwaterriool of op of in de bodem.
Het te lozen afvalwater bevat niet meer dan 300 milligram onopgeloste stoffen per liter.
Dit artikel is niet van toepassing op afvalwater afkomstig van wonen.
Deze paragraaf is niet van toepassing op een milieubelastende activiteit die als vergunningplichtig is aangewezen in hoofdstuk 3 van het Besluit activiteiten leefomgeving.
Het is verboden zonder omgevingsvergunning het verwerken van polyesterhars waarbij 1 kg of meer organische peroxiden van ADR klasse 5.2 aanwezig is, te beginnen of te veranderen.
Bij een aanvraag om een omgevingsvergunning wordt een beschrijving verstrekt van de maatregelen die worden getroffen om de emissie van styreen te beperken.
De omgevingsvergunning wordt alleen verleend als geurhinder wordt voorkomen of tot een aanvaardbaar niveau wordt beperkt.
Het is verboden zonder omgevingsvergunning een gesloten bodemenergiesysteem aan te leggen of te gebruiken:
Bij een aanvraag om een omgevingsvergunning worden de volgende gegevens en bescheiden verstrekt:
een plattegrondtekening en situatietekening met daarop de ligging van de lussen van het gesloten bodemenergiesysteem, het middelpunt van het systeem en de einddiepte waarop het systeem zal worden aangelegd;
de coördinaten van het middelpunt van het gesloten bodemenergiesysteem en de einddiepte van het systeem in meters onder het maaiveld;
gegevens waaruit blijkt dat het gebruiken van het gesloten bodemenergiesysteem niet leidt tot negatieve interferentie met bodemenergiesystemen in de omgeving waarvoor een melding is gedaan of een omgevingsvergunning is verleend;
een verklaring van degene die het gesloten bodemenergiesysteem installeert over het energierendement, uitgedrukt als de SPF, dat het systeem zal behalen;
informatie over het bodemzijdig vermogen van het gesloten bodemenergiesysteem en de omvang van de behoefte aan warmte en koude waarin het systeem zal voorzien; en
de naam en het adres van degene die het gesloten bodemenergiesysteem zal ontwerpen, installeren en van degene die de boringen zal verrichten.
De omgevingsvergunning wordt alleen verleend als:
Het is verboden zonder omgevingsvergunning propaan of propeen op te slaan in meer dan twee opslagtanks met een inhoud van meer dan 150 l.
Bij een aanvraag om een omgevingsvergunning worden de volgende gegevens en bescheiden verstrekt:
het aantal opslagtanks, met voor iedere opslagtank:
als het gaat om het opslaan van ten hoogste 50 m3 propaan of propeen met een jaarlijkse doorzet van ten hoogste 600 m3:
de jaarlijkse doorzet in kubieke meters;
als het gaat om een bovengrondse opslagtank: de coördinaten van het vulpunt en de opslagtank;
als het gaat om een ondergrondse opslagtank: de coördinaten van het vulpunt, de bovengrondse vloeistofvoerende leiding en de aansluitpunten van die leiding en pomp; en
een beschrijving van de ongewone voorvallen en de nadelige gevolgen daarvan, bedoeld in artikel 19.1, eerste lid, van de Omgevingswet, die zich kunnen voordoen en de passende maatregelen die worden getroffen voor het voorkomen daarvan; en
als het gaat om het opslaan van ten hoogste 50 m3 propaan of propeen met een jaarlijkse doorzet van meer dan 600 m3 of meer dan 50 m3 propaan of propeen:
de gegevens en bescheiden, genoemd onder b;
de berekende afstand in meters tot waar het plaatsgebonden risico ten hoogste 1 op de 1.000.000, 1 op de 10.000.000 en 1 op de 100.000.000 per jaar is en de aan de berekening ten grondslag liggende rekenbestanden; en
de berekende afstand in meters voor de aandachtsgebieden, bedoeld in artikel 5.12 van het Besluit kwaliteit leefomgeving, en de aan de berekening ten grondslag liggende rekenbestanden.
Het is verboden zonder omgevingsvergunning voertuigen of werktuigen te tanken met LPG.
Bij een aanvraag om een omgevingsvergunning worden de volgende gegevens en bescheiden verstrekt:
Het is verboden zonder omgevingsvergunning een installatie in werking te hebben waarin gassen worden gemengd en tot ontbranding worden gebracht met als doel het opwekken van een schokgolf.
Bij een aanvraag om een omgevingsvergunning voor het in werking hebben van een installatie waarin gassen worden gemengd en tot ontbranding gebracht, worden de volgende gegevens verstrekt:
Het is verboden zonder omgevingsvergunning een praktijkruimte of laboratorium in werking te hebben waar gericht wordt gewerkt met biologische agens, met uitzondering van biologische agens die ingedeeld zijn of worden in groep 1 of groep 2 als gevolg van de indeling van risicogroepen van de richtlijn 2000/54/EG van het Europees Parlement en de Raad van 18 september 2000 betreffende de bescherming van de werknemers tegen de risico’s van blootstelling aan biologische agentia op het werk (zevende bijzondere richtlijn in de zin van artikel 16, lid 1, van Richtlijn 83/391/EEG) (PbEG 2000, L 262).
Bij een aanvraag om een omgevingsvergunning worden de volgende gegevens en bescheiden verstrekt:
informatie over de groep waarin het biologisch agens is of wordt ingedeeld als gevolg van de indeling in risicogroepen van de richtlijn biologische agentia;
informatie over de op grond van artikel 2.22, tweede lid, van de Wet dieren aangewezen ziekteverwekkers; en
een aanduiding van de ligging van de ruimten waar gewerkt wordt met het biologisch agens.
Het is verboden zonder omgevingsvergunning ingeperkt gebruik als bedoeld in het Besluit genetisch gemodificeerde organismen milieubeheer 2013 te verrichten.
Het eerste lid is niet van toepassing op:
ingeperkt gebruik van genetisch gemodificeerde organismen als bedoeld in artikel 2.1 van het Besluit genetisch gemodificeerde organismen milieubeheer 2013; of
ingeperkt gebruik van genetisch gemodificeerde organismen die door Onze Minister van Infrastructuur en Waterstaat op grond van artikel 2.2 of 2.8 van het Besluit genetisch gemodificeerde organismen milieubeheer 2013 zijn ingeschaald in de categorie van fysische inperking S-I.
Bij een aanvraag om een omgevingsvergunning worden de volgende gegevens en bescheiden verstrekt:
Het is verboden zonder omgevingsvergunning afvalwater op of in de bodem te lozen, tenzij het lozen op grond van deze afdeling is toegestaan.
Het eerste lid is niet van toepassing op:
wonen;
een milieubelastende activiteit die is aangewezen in hoofdstuk 3 van het Besluit activiteiten leefomgeving; of
het lozen op of in de bodem waaraan in een omgevingsvergunning voor een wateronttrekkingsactiviteit op grond van artikel 16.4 van het Besluit activiteiten leefomgeving of een omgevingsvergunning voor een wateronttrekkingsactiviteit op grond van de waterschapsverordening voorschriften zijn gesteld.
Bij een aanvraag om een omgevingsvergunning voor het lozen van afvalwater op of in de bodem worden de volgende gegevens en bescheiden verstrekt:
Het is verboden zonder omgevingsvergunning afvalwater of andere afvalstoffen te lozen in een schoonwaterriool, tenzij het lozen op grond van deze afdeling is toegestaan.
Het eerste lid is niet van toepassing op:
Bij een aanvraag om een omgevingsvergunning voor het lozen van afvalwater in die voorziening worden de volgende gegevens en bescheiden verstrekt:
Op het verlenen van een omgevingsvergunning voor de activiteiten, bedoeld in de artikelen 22.261 tot en met 22.269, zijn de beoordelingsregels, bedoeld in de artikelen 8.9 tot en met 8.11 van het Besluit kwaliteit leefomgeving, van overeenkomstige toepassing.
Deze afdeling is van toepassing op het aanleggen of wijzigen van een weg of spoorweg, tenzij:
Het is verboden zonder omgevingsvergunning een weg of spoorweg aan te leggen of te wijzigen als op grond van een omgevingsplan of bij omgevingsvergunning voor een omgevingsplanactiviteit een geluidgevoelig gebouw is toegelaten binnen het aandachtsgebied van die weg of spoorweg.
Het eerste lid is niet van toepassing op een weg als:
deze is gelegen binnen een als woonerf aangeduid gebied;
een maximumsnelheid van 30 km per uur geldt;
de snelheid wordt verlaagd;
een wegdeklaag wordt vervangen door een wegdeklaag met dezelfde of een grotere geluidsreducerende werking;
de snelheid wordt verhoogd tot ten hoogste de maximumsnelheid, zoals die gold voor een tijdelijke snelheidsverlaging die als maatregel is opgenomen in een programma als bedoeld in artikel 5.12 van de Wet milieubeheer, zoals dat luidde voor inwerkingtreding van de Omgevingswet; of
het wijzigen, gerekend zonder het treffen van maatregelen, leidt tot:
niet meer dan 50 dB op de gevel van een geluidgevoelig gebouw;
als een hogere waarde is vastgesteld op grond van de Wet geluidhinder, de Experimentenwet Stad en Milieu, de Interimwet stad-en-milieubenadering of de Spoedwet wegverbreding: niet meer dan 2 dB meer geluid op de gevel van een geluidgevoelig gebouw dan die hogere waarde of, als de heersende waarde lager is, de heersende waarde; of
als de weg en het geluidgevoelige gebouw op 1 januari 2007 waren toegelaten, niet eerder een hogere waarde is vastgesteld dan 48 dB en de heersende waarde hoger is dan 48 dB: niet meer dan 2 dB meer dan de heersende waarde.
Het eerste lid is niet van toepassing op een spoorweg als:
de intensiteit, de verkeerssnelheid of een combinatie van beide wordt gewijzigd waardoor het geluid onafgerond niet meer dan 1,0 dB toeneemt ten opzichte van het geluid gedurende de drie jaren voorafgaand aan de wijziging;
spoorstaven horizontaal worden verplaatst over een afstand van minder dan 2 m;
spoorstaven verticaal worden verplaatst over een afstand van minder dan 1 m;
de baanconstructie wordt vervangen door een baanconstructie die niet meer geluid emitteert dan de te vervangen constructie; of
het wijzigen, gerekend zonder het treffen van maatregelen, leidt tot:
Het aandachtsgebied van een weg, met inbegrip van een spoorweg die is verweven of gebundeld met delen van die weg, bedoeld in artikel 22.272, eerste lid, strekt zich aan weerszijden van de as van de weg uit tot de volgende afstand, gemeten vanaf de buitenste rijstrook of spoorstaaf:
Het aandachtsgebied van een spoorweg die niet is verweven of gebundeld met delen van een weg, bedoeld in artikel 22.272, eerste lid, strekt zich aan weerszijden van de as van de spoorweg uit tot de volgende afstand, gemeten vanaf de buitenste spoorstaaf:
Als zich langs een weg of spoorweg een aandachtsgebied bevindt dat bestaat uit delen met een onderling verschillende breedte, geldt voor de aansluiting van de verschillende delen dat het breedste deel over een afstand gelijk aan een derde van de breedte van dat deel, gemeten vanaf het punt van versmalling van de breedte, nog langs de as van de weg of spoorweg doorloopt en met een loodlijn aansluit op het smalste aandachtsgebied.
Aan de uiteinden van een weg of spoorweg loopt het aandachtsgebied door over een afstand gelijk aan de breedte van dat gebied ter hoogte van dat uiteinde. Het aandachtsgebied loopt door langs een lijn die is gelegen in het verlengde van de as van de weg of spoorweg en behoudt de breedte die het had ter hoogte van het uiteinde.
Bij een aanvraag om een omgevingsvergunning voor een activiteit als bedoeld in artikel 22.272, eerste lid, worden de volgende gegevens en bescheiden verstrekt:
een akoestisch onderzoek naar:
het geluid dat geluidgevoelige gebouwen binnen het aandachtsgebied onmiddellijk voorafgaand aan de wijziging of aanleg van de weg of spoorweg ondervinden;
het geluid dat geluidgevoelige gebouwen binnen het aandachtsgebied in de toekomst door de weg of spoorweg zouden ondervinden zonder de invloed van maatregelen die de geluidsbelasting beperken;
het geluid door andere wegen of niet te wijzigen delen van de weg, als redelijkerwijs kan worden aangenomen dat de wijziging van een weg zal leiden tot een toename van meer dan 2 dB van het geluid op geluidgevoelige gebouwen door die wegen of delen;
de doeltreffendheid van de in aanmerking komende verkeersmaatregelen en andere maatregelen om te voorkomen dat het in de toekomst door de weg optredende geluid op de gebouwen, bedoeld onder 1, de standaardwaarde, zijnde 53 Lden voor een weg en 55 Lden voor een spoorweg, te boven zou gaan of om te voorkomen dat het geluid op geluidgevoelige gebouwen toeneemt ten opzichte van het geluid onmiddellijk voorafgaand aan de wijziging;
een beschrijving van de voorgenomen maatregelen, bedoeld onder a, onder 4; en
een beschrijving van te treffen geluidwerende maatregelen aan gevels van gebouwen waarvoor het toekomstige geluid hoger wordt dan de standaardwaarde en toeneemt ten opzichte van de situatie voor de wijziging of aanleg, voor zover nodig om te voldoen aan de grenswaarde, bedoeld in tabel 3.53 van het Besluit kwaliteit leefomgeving.
Een omgevingsvergunning als bedoeld in artikel 22.272, eerste lid, wordt alleen verleend als de activiteit er niet toe leidt dat de grenswaarde 70 Lden wordt overschreden.
Aan een omgevingsvergunning als bedoeld in artikel 22.272, eerste lid, worden voorschriften verbonden die ertoe strekken dat:
Deze paragraaf is van toepassing op een regel in het tijdelijke deel van dit omgevingsplan, bedoeld in artikel 22.1, eerste lid, onder a, van de Omgevingswet, op grond waarvan:
het is verboden zonder omgevingsvergunning werken, geen bouwwerken zijnde, of werkzaamheden uit te voeren;
het is verboden zonder omgevingsvergunning een sloopactiviteit te verrichten; of
bij een omgevingsvergunning kan worden afgeweken van daarbij aangegeven regels in dat tijdelijke deel van dit omgevingsplan.
Voor zover een aanvraag om een omgevingsvergunning betrekking heeft op het uitvoeren van een werk, niet zijnde een bouwwerk, of werkzaamheid waarvoor op grond van het tijdelijke deel van dit omgevingsplan, bedoeld in artikel 22.1, onder a, van de Omgevingswet, een omgevingsvergunning is vereist, wordt, als die activiteit niet in strijd is met de in dat tijdelijke deel gestelde regels over het verlenen van de vergunning voor die activiteit, in afwijking van die regels de omgevingsvergunning voor die activiteit geweigerd, als voor de locatie waarop de aanvraag betrekking heeft van kracht is:
een voorbereidingsbesluit als bedoeld in artikel 4.103 of 4.104 van de Invoeringswet Omgevingswet, een als voorbereidingsbesluit geldend tracébesluit als bedoeld in artikel 4.49 van de Invoeringswet Omgevingswet of een als voorbereidingsbesluit geldend besluit krachtens de Wet luchtvaart als bedoeld in artikel 4.104a van de Invoeringswet Omgevingswet; of
een aanwijzing als beschermd stads- of dorpsgezicht als bedoeld in artikel 4.35 van de Invoeringswet Omgevingswet waarvoor het omgevingsplan dat voorziet in de bescherming van het stads- of dorpsgezicht nog niet in werking is getreden.
In afwijking van het eerste lid kan de omgevingsvergunning toch worden verleend als de activiteit niet in strijd is met het in voorbereiding zijnde omgevingsplan respectievelijk het in voorbereiding zijnde omgevingsplan dat voorziet in de bescherming van het stads- of dorpsgezicht
Voor zover in het tijdelijke deel van dit omgevingsplan, bedoeld in artikel 22.1, onder a, van de Omgevingswet, is bepaald dat het is verboden zonder omgevingsvergunning een sloopactiviteit te verrichten, kan de omgevingsvergunning in ieder geval worden verleend als het naar het oordeel van het bevoegd gezag aannemelijk is dat op de locatie van het te slopen bouwwerk een ander bouwwerk kan of zal worden gebouwd.
Voor zover voor een activiteit in het tijdelijke deel van dit omgevingsplan, bedoeld in artikel 22.1, onder a, van de Omgevingswet, is bepaald dat bij omgevingsvergunning kan worden afgeweken van daarbij aangegeven regels, geldt deze bepaling als verbod om de activiteit zonder omgevingsvergunning te verrichten.
Voor zover de in het tijdelijke deel van dit omgevingsplan, bedoeld in artikel 22.1, eerste lid, onder a, van de Omgevingswet gestelde regels over het voor een activiteit als bedoeld in artikel 22.280 bij omgevingsvergunning afwijken van regels in dat tijdelijke deel de verplichting bevatten om als de activiteit niet in strijd is met die regels de omgevingsvergunning te verlenen, wordt deze verplichting gelezen als een bevoegdheid.
Voor zover een aanvraag om een omgevingsvergunning betrekking heeft op een activiteit als bedoeld in artikel 22.280 die in strijd is met de in het tijdelijke deel van dit omgevingsplan, bedoeld in artikel 22.1, eerste lid, onder a, van de Omgevingswet, gestelde regels over afwijking, kan de omgevingsvergunning toch worden verleend als de activiteit niet in strijd is met regels voor de toepassing van een wijzigingsbevoegdheid of het voldoen aan een uitwerkingsplicht in dat tijdelijke deel.
Op de beslissing of een omgevingsvergunning met toepassing van het eerste lid kan worden verleend, zijn van overeenkomstige toepassing:
artikel 8.0b, eerste lid, en tweede lid, aanhef en onder a, van het Besluit kwaliteit leefomgeving;
artikel 8.0c, eerste lid, en tweede lid, aanhef en onder a, van het Besluit kwaliteit leefomgeving; en
artikel 8.0d, eerste lid, en tweede lid, aanhef en onder a, van het Besluit kwaliteit leefomgeving.
Artikel 22.283 Toepassingsbereik
Deze paragraaf is van toepassing op het verstrekken van gegevens en bescheiden bij een aanvraag om een omgevingsvergunning die is vereist op grond van:
het tijdelijke deel van dit omgevingsplan, bedoeld in artikel 22.1, onder a, van de Omgevingswet;
artikel 22.280 van dit omgevingsplan;
een andere gemeentelijke regeling dan dit omgevingsplan in samenhang met artikel 22.8 van de Omgevingswet; of
artikel 4.35, tweede lid, van de Invoeringswet Omgevingswet.
Artikel 22.284 Omgevingsplanactiviteit: uitvoeren van een werk, niet zijnde bouwwerk, of werkzaamheid
Bij een aanvraag om een omgevingsvergunning voor het uitvoeren van een werk, niet zijnde een bouwwerk, of een werkzaamheid worden gegevens en bescheiden verstrekt over:
Voor zover dat in het tijdelijke deel van dit omgevingsplan, bedoeld in artikel 22.1, onder a, van de Omgevingswet, is bepaald: een rapport waarin de archeologische waarde van de locatie in voldoende mate is vastgesteld
Artikel 22.285 Omgevingsplanactiviteit: slopen van een bouwwerk
Bij een aanvraag om een omgevingsvergunning voor een sloopactiviteit wordt aannemelijk gemaakt dat op de locatie van het te slopen bouwwerk een ander bouwwerk kan of zal worden gebouwd.
Artikel 22.286 Omgevingsplanactiviteit: afwijking van regels van het tijdelijke deel van dit omgevingsplan, bedoeld in artikel 22.1, eerste lid, onder a, van de Omgevingswet
Bij een aanvraag om een omgevingsvergunning voor een activiteit als bedoeld in artikel 22.280 worden de volgende gegevens en bescheiden verstrekt:
het beoogde en het huidige gebruik van de locaties en bouwwerken waarop de aanvraag betrekking heeft;
een situatietekening van de bestaande toestand en een situatietekening van de nieuwe toestand met daarop:
de afmetingen van het perceel en bebouwd oppervlak;
de situering van bouwwerken ten opzichte van de perceelsgrenzen en de wegzijde;
de wijze waarop de locatie wordt ontsloten;
de aangrenzende locaties en de daarop voorkomende bebouwing; en
het beoogd gebruik van de locatie behorende bij het voorgenomen bouwwerk.
Zo nodig wordt een rapport verstrekt waarin de archeologische waarde van de locatie in voldoende mate is vastgesteld.
Artikel 22.287 Omgevingsplanactiviteit gemeentelijk monument: algemeen
Bij een aanvraag om een omgevingsvergunning voor een activiteit die betrekking heeft op een gemeentelijk monument worden de volgende gegevens en bescheiden verstrekt:
het monumentnummer en, voor zover van toepassing, de naam van het monument of de plaatselijke aanduiding van het archeologisch monument;
de opgave van het huidige gebruik van het gemeentelijk monument en het voorgenomen gebruik, als dat afwijkt van het huidige gebruik; en
de motivering voor het verrichten van de activiteit en een omschrijving van de gevolgen ervan voor het gemeentelijk monument.
Artikel 22.288 Omgevingsplanactiviteit gemeentelijk monument voor zover het gaat om een archeologisch monument
Bij een aanvraag als bedoeld in artikel 22.287, worden, voor zover het gaat om een archeologisch monument, de volgende gegevens en bescheiden verstrekt:
een omschrijving van de aard van de activiteit, met vermelding van:
een topografische kaart voorzien van een noordpijl en minimaal twee coördinatieparen, met de exacte locatie en omvang van de activiteit;
doorsnedetekeningen met de exacte locatie, omvang en diepte van de afzonderlijke ingrepen ten opzichte van het maaiveld;
als sprake is van een opgraving, ook als deze alleen bestaat uit een proefsleuvenonderzoek of een proefputtenonderzoek: een programma van eisen voor de opgraving;
als sprake is van een booronderzoek met boren met een diameter groter dan 10 cm: een plan van aanpak voor een booronderzoek;
als sprake is van een zichtbaar archeologisch monument: overzichtsfoto’s van de bestaande situatie en plantekeningen van de nieuwe toestand; en
voor zover de activiteit bestaat uit een bouwactiviteit: funderingstekeningen.
Zo nodig worden de volgende gegevens en bescheiden verstrekt:
een rapport waarin de archeologische waarde van dat deel van het archeologisch monument waarop de activiteit van invloed is, in voldoende mate nader is vastgesteld;
een rapport waarin de gevolgen van de activiteit op de archeologische waarden in voldoende mate inzichtelijk zijn gemaakt;
detailtekeningen met van de afzonderlijke ingrepen:
voor zover de activiteit bestaat uit aanlegwerkzaamheden of een ontgrondingsactiviteit:
als sprake is van een sloopactiviteit: bestaande funderingstekeningen; of
als sprake is van een archeologisch monument onder water: een vlakdekkende hoge resolutie sonaropname van de waterbodem en ultrahoge resolutie sonaropnamen van details.
Artikel 22.289 Eisen aan tekeningen als bedoeld in artikel 22.288
Tekeningen als bedoeld in artikel 22.288 hebben een schaal die niet kleiner is dan:
Artikel 22.290 Omgevingsplanactiviteit: slopen van een gemeentelijk monument voor zover het gaat om een monument
Bij de aanvraag, bedoeld in artikel 22.287, worden, voor zover het gaat om het slopen van een monument, de volgende gegevens en bescheiden verstrekt:
de volgende kleurenfoto’s die een duidelijke indruk geven van het monument in relatie tot de voorgenomen sloop:
de volgende tekeningen:
een omschrijving van de sloopmethode en de aard van en bestemming voor het vrijkomend materiaal.
Zo nodig worden de volgende gegevens en bescheiden verstrekt:
een nadere bepaling van de monumentale waarde van het monument aan de hand van cultuurhistorische rapporten, met inbegrip van rapporten over architectuurhistorie, bouwhistorie, interieurhistorie, kleurhistorie of tuinhistorie;
als sprake is van verstoring van de bodem: een rapport waarin de archeologische waarde van de bodem onder het te slopen bouwwerk in voldoende mate is vastgesteld;
een beschrijving van de technische staat van het monument of het onderdeel van het monument waarop de voorgenomen activiteit betrekking heeft; of
een onderbouwing van de beschrijving van de technische staat aan de hand van technische rapporten, met inbegrip van rapporten over bouwfysische en constructieve aspecten.
Artikel 22.291 Omgevingsplanactiviteit: verplaatsen van een gemeentelijk monument voor zover het gaat om een monument
Bij de aanvraag, bedoeld in artikel 22.287, worden, voor zover het gaat om het gedeeltelijk of volledig verplaatsen van een monument, de volgende gegevens en bescheiden verstrekt:
een beschrijving van de technische staat van het monument of het onderdeel van het monument waarop de voorgenomen activiteit betrekking heeft;
de volgende kleurenfoto’s die een duidelijke indruk geven van het monument in relatie tot de voorgenomen verplaatsing:
de volgende tekeningen:
een bestek of werkomschrijving van de wijze van demonteren, van het verplaatsen naar de nieuwe locatie en de herbouw; en
als de activiteit bestaat uit het verplaatsen van een molen; een rapport over de molenbiotoop van de bestaande en de nieuwe situatie.
Zo nodig worden de volgende gegevens en bescheiden verstrekt:
een nadere bepaling van de monumentale waarde van het monument aan de hand van cultuurhistorische rapporten, met inbegrip van rapporten over architectuurhistorie, bouwhistorie, interieurhistorie, kleurhistorie, tuinhistorie of over de relatie van het monument tot zijn historische omgeving;
als op de bestaande of op de nieuwe locatie sprake is van verstoring van de bodem: een rapport waarin de archeologische waarde van het terrein dat volgens de aanvraag door de activiteit zal worden verstoord in voldoende mate is vastgesteld;
een onderbouwing van de beschrijving van de technische staat aan de hand van technische rapporten, met inbegrip van rapporten over bouwfysische, constructieve, materiaaltechnische of preventieve aspecten;
aanvullende tekeningen van de bestaande en nieuwe toestand, met inbegrip van detailtekeningen; of
een opgave van de bij de voorbereiding en het verrichten van de activiteit te hanteren uitvoeringsrichtlijnen.
Artikel 22.292 Omgevingsplanactiviteit gemeentelijk monument: wijzigen van een monument of monument door herstel ontsieren of in gevaar brengen
Bij de aanvraag, bedoeld in artikel 22.287, worden, voor zover het gaat om het wijzigen van een monument of het herstellen daarvan waardoor het kan worden ontsierd of in gevaar kan worden gebracht, de volgende gegevens en bescheiden verstrekt:
de volgende kleurenfoto’s die een duidelijke indruk geven van het monument in relatie tot de voorgenomen activiteit:
de volgende tekeningen:
een situatietekening van de bestaande situatie, en als de nieuwe situatie daarvan afwijkt: een situatietekening van de nieuwe situatie;
opnametekeningen van de bestaande toestand met voor zover noodzakelijk voor de beoordeling van de aanvraag:
als er gebreken worden hersteld: gebrekentekeningen;
plantekeningen van de nieuwe toestand en van de voorgenomen werkzaamheden, met inbegrip van de te vervangen of te veranderen onderdelen en de te verhelpen gebreken, met, voor zover noodzakelijk voor de beoordeling van de aanvraag:
als sprake is van verwijdering van materiaal: slooptekeningen; en
een omschrijving van de aard en omvang van de activiteit in de vorm van een bestek of werkomschrijving, met:
Zo nodig worden de volgende gegevens en bescheiden verstrekt:
een nadere bepaling van de monumentale waarde van het monument aan de hand van cultuurhistorische rapporten, met inbegrip van rapporten over architectuurhistorie, bouwhistorie, interieurhistorie, kleurhistorie of tuinhistorie;
als sprake is van verstoring van de bodem: een rapport waarin de archeologische waarde van de locatie in voldoende mate is vastgesteld;
een beschrijving van de technische staat van het monument of het onderdeel van het monument waarop de voorgenomen activiteit betrekking heeft;
een onderbouwing van de beschrijving van de technische staat aan de hand van technische rapporten, met inbegrip van rapporten over bouwfysische, constructieve, materiaaltechnische of preventieve aspecten;
aanvullende tekeningen van de bestaande en nieuwe toestand, met inbegrip van detailtekeningen;
voor zover er algemene kwaliteitsnormen of uitvoeringsrichtlijnen voor de instandhouding van monumenten op de activiteit van toepassing zijn: een opgave of de voorgenomen activiteit hierop is afgestemd; of
als de activiteit een monument betreft dat een tuinaanleg, parkaanleg of andere groenaanleg is: een beheervisie.
Artikel 22.293 Omgevingsplanactiviteit gemeentelijk monument: monument door gebruik ontsieren of in gevaar brengen
Bij een aanvraag als bedoeld in artikel 22.287 wordt, voor zover het gaat om het gebruiken van een monument waardoor het kan worden ontsierd of in gevaar gebracht, een opgave verstrekt van de maatregelen die worden getroffen om deze nadelige gevolgen te voorkomen of zoveel mogelijk te beperken.
Artikel 22.294 Eisen aan tekeningen als bedoeld in de artikelen 22.290 tot en met 22.292
Bij een aanvraag als bedoeld in de artikelen 22.290 tot en met 22.292 hebben tekeningen een schaal die niet kleiner is dan:
Een detailtekening heeft een schaal van 1:1, 1:2 of 1:5 en is voorzien van een omschrijving van de materiaaltoepassing en de maatvoering.
Uit een situatietekening die is voorzien van een noordpijl blijkt de oriëntatie van het monument op het perceel en ten opzichte van omliggende bebouwing en wegen.
Een plattegrondtekening en een doorsnedetekening bevatten de volgende historische gegevens:
balklagen:
geornamenteerde plafonds, gestippeld aangegeven in plattegronden van de ruimten waar deze zich bevinden;
houtafmeting, balklagen en kapconstructie, aangegeven in doorsneden van de bestaande en van de nieuwe toestand; en
bijzondere ruimten of bouwdelen, direct of indirect betrokken bij de activiteit, aangegeven in plattegronden en doorsneden.
Artikel 22.295 Overeenkomstige toepassing voorbeschermd gemeentelijk monument
De artikelen 22.287 tot en met 22.294 zijn van overeenkomstige toepassing op een aanvraag om een omgevingsvergunning die betrekking heeft op een voorbeschermd gemeentelijk monument.
Artikel 22.296 Omgevingsplanactiviteit: slopen van een bouwwerk in een gemeentelijk beschermd stads- of dorpsgezicht
Bij een aanvraag om een omgevingsvergunning voor een sloopactiviteit in een gemeentelijk beschermd stads- of dorpsgezicht wordt aannemelijk gemaakt dat op de locatie van het te slopen bouwwerk een ander bouwwerk kan of zal worden gebouwd.
Zo nodig wordt een rapport verstrekt waarin de archeologische waarde van de bodem onder het te slopen bouwwerk in voldoende mate is vastgesteld.
Artikel 22.297 Omgevingsplanactiviteit: uitweg
Bij een aanvraag om een omgevingsvergunning voor het maken, hebben of veranderen van een uitweg of het gebruik daarvan worden de volgende gegevens en bescheiden verstrekt:
de locatie van de uitweg aan het voor-, zij- of achtererf;
de afmeting van de nieuwe uitweg of de te veranderen bestaande uitweg en de beoogde verandering daarvan;
de te gebruiken materialen; en
de aanwezigheid van obstakels die in de weg staan voor het aanleggen of het gebruik van de uitweg, zoals bomen, lantaarnpalen en nutsvoorzieningen.
Artikel 22.298 Omgevingsplanactiviteit: alarminstallatie
Bij een aanvraag om een omgevingsvergunning voor het hebben van een alarminstallatie in, op of aan een onroerende zaak die een voor de omgeving opvallend geluid of lichtsignaal kan produceren, bedoeld in een gemeentelijke verordening, worden de volgende gegevens en bescheiden verstrekt:
Artikel 22.299 Omgevingsplanactiviteit: vellen van houtopstand
Bij een aanvraag om een omgevingsvergunning voor het vellen van een houtopstand, identificeert de aanvrager op de aanduiding, bedoeld in artikel 7.3, onder d, van de Omgevingsregeling, iedere houtopstand waarop de aanvraag betrekking heeft met een nummer.
Per genummerde houtopstand worden de volgende gegevens en bescheiden verstrekt:
de soort houtopstand;
de locatie van de houtopstand op het voor-, zij-, of achtererf;
de diameter in centimeters, gemeten op 1,30 meter vanaf het maaiveld; en
de mogelijkheid tot herbeplanten of het voornemen om op een daarbij te vermelden locatie tot herbeplanten van een daarbij te vermelden aantal soorten over te gaan.
Artikel 22.300 Omgevingsplanactiviteit: handelsreclame
Bij een aanvraag om een omgevingsvergunning voor het maken of voeren van handelsreclame op of aan een onroerende zaak met behulp van een opschrift, aankondiging of afbeelding in welke vorm dan ook, die zichtbaar is vanaf een voor het publiek toegankelijke plaats, worden de volgende gegevens en bescheiden verstrekt:
Als een andere dan de eigenaar, beperkt zakelijk gerechtigde of gebruiker van de onroerende zaak met diens toestemming handelsreclame maakt of voert, vermeldt de aanvrager in de aanvraag de naam, het adres en de woonplaats van die ander.
Artikel 22.301 Omgevingsplanactiviteit: opslaan roerende zaken
Bij een aanvraag om een omgevingsvergunning voor het opslaan van roerende zaken in een daarbij aangewezen gedeelte van de gemeente worden de volgende gegevens en bescheiden verstrekt:
Als een ander dan de eigenaar, beperkt zakelijk gerechtigde of gebruiker van de onroerende zaak met diens toestemming roerende zaken opslaat, vermeldt de aanvrager in de aanvraag de naam, het adres, en de woonplaats van die ander.
Artikel 22.302 Omgevingsplanactiviteit: slopen van een bouwwerk in een rijksbeschermd stads- of dorpsgezicht
Bij een aanvraag om een omgevingsvergunning voor een sloopactiviteit in een rijksbeschermd stads- of dorpsgezicht wordt aannemelijk gemaakt dat op de locatie van het te slopen bouwwerk een ander bouwwerk kan of zal worden gebouwd.
Zo nodig wordt een rapport verstrekt waarin de archeologische waarde van de bodem onder het te slopen bouwwerk in voldoende mate is vastgesteld.
Aan een omgevingsvergunning voor het uitvoeren van een werk, niet zijnde een bouwwerk, of een werkzaamheid als bedoeld in artikel 22.284, eerste lid, die van invloed is op een archeologisch monument kunnen in het belang van de archeologische monumentenzorg in ieder geval voorschriften worden verbonden, die inhouden een plicht tot:
het treffen van technische maatregelen waardoor archeologische monumenten in situ kunnen worden behouden;
het verrichten van opgravingen als bedoeld in artikel 1.1 van de Erfgoedwet;
het laten begeleiden van een activiteit die tot bodemverstoring leidt door een deskundige op het terrein van de archeologische monumentenzorg die voldoet aan bij die voorschriften te stellen kwalificaties; en
het verrichten van een opgraving of een archeologische begeleiding op een bepaalde wijze, als die wijze in overeenstemming is met artikel 5.4, eerste en tweede lid, van de Erfgoedwet.
Aan een omgevingsvergunning voor een sloopactiviteit op of in een archeologisch monument in een beschermd stads- of dorpsgezicht kunnen in het belang van de archeologische monumentenzorg voorschriften over de wijze van slopen worden verbonden.
B
Het opschrift van bijlage II wordt op de aangegeven wijze gewijzigd:
C
Na bijlage II worden drie bijlagen ingevoegd, luidende:
de huurprijs bij de start van de huurovereenkomst.
een gebouw, zoals aanwezig op het tijdstip van de ter inzage legging van het ontwerp van het plan en gebouwd conform een vergunning, dan wel een gebouw zoals die mag worden gebouwd krachtens een voor dat tijdstip verleende vergunning.
het gebruik, zoals aanwezig op het tijdstip van de ter inzage legging van het ontwerp van het plan en in gebruik is genomen conform de geldende bestemmingsomschrijving, gebruiksregels of een verleende omgevingsvergunning.
een doorlopend gedeelte van een gebouw dat door op gelijke of bij benadering gelijke hoogte liggende vloeren of balklagen is begrensd. In geval van bovengrondse bebouwing zulks met inbegrip van de begane grond en met uitsluiting van onderbouw en zolder. Een bouwlaag kan verwijzen naar de verdiepingen van een gebouw (bouwlaag 1 en hoger), waarbij de begane grond wordt geteld als bouwlaag 0. Er kunnen ook ondergrondse verdiepingen zijn (bouwlaag -1 en lager).
Inkomensnorm op grond van de diensten van algemeen economisch belang conform de Woningwet.
een constructie ter vergroting van een gebouw die zich tussen de dakvoet en de daknok van een dakvlak bevindt, waarbij deze constructie onder de daknok is gelegen en de onderzijde van de constructie in het dakvlak is geplaatst.
voor publiek beperkt toegankelijke bedrijfsmatige activiteit met overwegend opslagruimte/distributieruimte ten behoeve van flitsbezorging met overwegend consumentenartikelen (waaronder dagelijkse goederen) die op internet (of via een app) kunnen worden besteld en betaald, al dan niet met een afhaalloket of afhaalbalie.
het bedrijfsmatig te koop aanbieden, waaronder begrepen de uitstalling ten verkoop, het verkopen en/of leveren van goederen aan personen die die goederen kopen voor gebruik, verbruik of aanwending anders dan in de uitoefening van een beroeps- of bedrijfsactiviteit.
instelling gericht op het verlenen van diensten, waarbij het publiek rechtstreeks (al dan niet via een balie) te woord wordt gestaan en geholpen, waaronder belwinkel, reis- en uitzendbureaus, kapsalons, pedicures, wasserettes, makelaarskantoren, internetwinkels en bankfilialen, maar met uitzondering van een garagebedrijf en een seksinrichting.
diegene die bevoegd is tot het in gebruik geven van - dan wel het treffen van voorzieningen aan een gebouw of gedeelte daarvan.
bezorgdiensten van online bestelde consumentenproducten, met de bedoeling deze binnen zeer korte termijn vanuit een darkstore te bezorgen, bij de besteller.
gebruiksoppervlakte als bedoeld in NEN 2580, hierna te noemen gbo, is de bruikbare vloeroppervlakte, geschikt voor beoogd gebruik.
persoon of groep personen die een huishouden voert waarbij sprake is van een onderlinge verbondenheid en continuïteit in de samenstelling ervan, die binnen een woning gebruik maakt van dezelfde voorzieningen.
de prijs die bij huur per maand is verschuldigd voor het enkele gebruik van een woonruimte inclusief het gebruik van een bij de woning behorende parkeerplaats.
de waarde zoals bedoeld in artikel 8.17 van het Omgevingsbesluit onderscheiden in:
de waarde van de gronden en de te slopen opstallen in de toestand voorafgaand aan het vaststellen van het omgevingsplan;
de kosten om de gronden, bedoeld onder a, vrij te maken van persoonlijke rechten en lasten, eigendom, bezit en beperkte rechten of zakelijke lasten;
de kosten van het slopen, verwijderen en verplaatsen van opstallen, obstakels, funderingen, kabels en leidingen op de gronden bedoeld onder a;
de kosten van bodemsaneringswerkzaamheden, het dempen van oppervlaktewateren en het verrichten van grondwerken op de gronden bedoeld onder a;
rekeninkomen als bedoeld in artikel 1, aanhef en onder i van de Wet op de huurtoeslag.
aanleg of aanpassing van straten, wegen, fietspaden, trottoirs, verlichtingen, nutsvoorzieningen, groenvoorzieningen, waterbergende en -afvoerende voorzieningen, waterpartijen, speelvoorzieningen, straatmeubilair, het plaatsen van brandkranen, verkeers- en straatnaamborden, artistieke, sierende en overige inrichtingselementen;
bewoning door niet meer dan één huishouden van een woonruimte die onderdeel uitmaakt van een woonruimte die door de eigenaar als hoofdbewoner in gebruik is genomen en die niet groter is dan 25% van het gebruiksoppervlak van de woonruimte van die hoofdbewoner zonder inwoning (de beperking in vloeroppervlak geldt niet voor huisvesting in verband met mantelzorg).
beschikking als bedoeld in artikel 13.18 van de Omgevingswet.
geldsom die verschuldigd is op grond van een beschikking als bedoeld in artikel 13.18 van de Omgevingswet.
gebied als bedoeld in artikel 13.14, eerste lid, onder a, van de Omgevingswet.
activiteiten als bedoeld in artikel 8.13 van het Omgevingsbesluit.
het uitoefenen van activiteiten gericht op de sociale, maatschappelijke, educatieve en openbare dienstverlening, waaronder begrepen: gezondheidszorg en/of, zorg- en welzijn en/of, jeugd/kinderopvang en/of, onderwijs en/of, religie en/of, bibliotheken en/of, openbare dienstverlening en/of, verenigingsleven.
het principe dat kosten slechts verhaald kunnen worden tot ten hoogste het bedrag van de opbrengstem, zoals vastgelegd in artikel 13.14, tweede lid, van de Omgevingswet;
zowel middeldure koopwoningen als middeldure huurwoningen.
woonruimte die geen eigen toegang heeft en die niet door één huishouden kan worden bewoond zonder daarbij afhankelijk te zijn van wezenlijke woonvoorzieningen buiten de woonruimte zoals badkamer, toilet en keuken, en waarvan de wezenlijke woonvoorzieningen niet voor eigen, maar voor gemeenschappelijk gebruik zijn.
een gebouw of een gedeelte van een gebouw, niet zijnde een woonschip of een woonwagen, met een:
een verblijfsruimte of verblijfsgebied van een:
het omzetten van een woning (of een gebouw waar de activiteit wonen conform het omgevingsplan is toegestaan, niet zijnde een bedrijfswoning) naar meerdere onzelfstandige woonruimtes (o.a. voor kamergewijze verhuur).
activiteit inhoudende de bewoning van een woonruimte.
een ruimte of complex van ruimten, bedoeld voor de huisvesting van één afzonderlijk huishouden.
het bouwkundig en/of functioneel toevoegen van één (of meer) woning(-en) binnen een bestaande woning(inclusief bijbehorende bouwwerken) of binnen een bestaand gebouw waarin wonen is toegestaan conform het omgevingsplan (niet zijnde een bedrijfswoning);
besloten ruimte die, al dan niet tezamen met een of meer andere ruimten, bestemd of geschikt is voor bewoning door een huishouden.
door de initiatiefnemer van een kostenverhaalsplichtige activiteit uitgevoerde werken, werkzaamheden en maatregelen waarvan de kosten worden verrekend met toepassing van artikel 13.18, tweede lid, onder b, van de Omgevingswet.
woonruimte die een eigen toegang heeft en welke door één huishouden kan worden bewoond zonder daarbij afhankelijk te zijn van wezenlijke woonvoorzieningen buiten de woonruimte.
/join/id/regdata/gm0402/2024/d71d2445057a44b5924a8f05dad79e3f/nld@2025‑05‑20;07431160
/join/id/regdata/gm0402/2024/7efb3a3aba6c4019b6dc419dbc256a70/nld@2025‑05‑20;07431160
/join/id/regdata/gm0402/2024/1f2551e1fb714f458f24e83f7c9fed04/nld@2025‑05‑20;07431160
/join/id/regdata/gm0402/2024/3b4e9cda305544e38415108dfffa0775/nld@2025‑05‑20;07431160
/join/id/regdata/gm0402/2024/f3bd608e47b64657a7e8c96dfab3ba93/nld@2025‑05‑20;07431160
/join/id/regdata/gm0402/2024/3105abf867dd4468b1fe3e19c784cd5a/nld@2025‑05‑20;07431160
/join/id/regdata/gm0402/2025/b6ffee3a101b4279afb5c2ff8e97ba07/nld@2025‑05‑20;07431160
/join/id/regdata/gm0402/2025/33a22e420b4f45b09d1832f53a4c7087/nld@2025‑05‑20;07431160
/join/id/regdata/gm0402/2025/83635e5a27314bcd85e225507e753e59/nld@2025‑05‑20;07431160
/join/id/regdata/gm0402/2024/6d67fc2b37f34a598735ad3869c62703/nld@2025‑05‑20;07431160
/join/id/regdata/gm0402/2025/b16a0511a61b48848a8c020605290c0a/nld@2025‑05‑20;07431160
/join/id/regdata/gm0402/2025/b415f08855af426ab3ea6edf09a48d42/nld@2025‑05‑20;07431160
/join/id/regdata/gm0402/2025/178fc5ecccd94ed786ec79e5ebedcc7d/nld@2025‑05‑20;07431160
/join/id/regdata/gm0402/2024/5cd5edbfe2d84ad8b798438144d294be/nld@2025‑05‑20;07431160
/join/id/regdata/gm0402/2024/ab5f67ec45dd45079e1dc286b8a9bd7f/nld@2025‑05‑20;07431160
/join/id/regdata/gm0402/2024/a8ccd7028f4542968f8c47d790e8177f/nld@2025‑05‑20;07431160
/join/id/regdata/gm0402/2025/fe5558693cf54a9289c7a38199d46284/nld@2025‑05‑20;07431160
/join/id/regdata/gm0402/2024/cc8788b3734a4a8bba7590928d8f6dbe/nld@2025‑05‑20;07431160
/join/id/regdata/gm0402/2024/e869501d92384dac87a1e1d2bf200257/nld@2025‑05‑20;07431160
/join/id/regdata/gm0402/2025/f9f477ff7f4647c7ac49a91f0ced2601/nld@2025‑05‑20;07431160
/join/id/regdata/gm0402/2024/aaa5c5c6a78c488b99a8eefeb1820f4b/nld@2025‑05‑20;07431160
/join/id/regdata/gm0402/2024/b54c71a268d54f25a942b473dfb65091/nld@2025‑05‑20;07431160
/join/id/regdata/gm0402/2024/2af9f67782724a53b80d129b3627bec1/nld@2025‑05‑20;07431160
/join/id/regdata/gm0402/2024/cb7ea6e341f449608c4b762c806558c1/nld@2025‑05‑20;07431160
/join/id/regdata/gm0402/2025/0260a089e7a64bbabcfbf207fa1d8b8c/nld@2025‑05‑20;07431160
/join/id/regdata/gm0402/2024/67877d44daa0460e943001f07f5d4f39/nld@2025‑05‑20;07431160
/join/id/regdata/gm0402/2024/e3f5f7045b1f44c1b37ca1fc43ce2cd4/nld@2025‑05‑20;07431160
/join/id/regdata/gm0402/2025/06f889ae2b1b4b4c97a4679243e94054/nld@2025‑05‑20;07431160
/join/id/regdata/gm0402/2025/3337bb2140a94e6d975fb2802926c31f/nld@2025‑05‑20;07431160
/join/id/regdata/gm0402/2024/25cc79f12f964fc68e9230d84c1b639c/nld@2025‑05‑20;07431160
/join/id/regdata/gm0402/2024/16916d59908541a385d8d862b41d51f2/nld@2025‑05‑20;07431160
/join/id/regdata/gm0402/2024/a12a6f5b9e3141efb39dccf2dbc1b049/nld@2025‑05‑20;07431160
/join/id/regdata/gm0402/2024/e397d670b67741f7b15fbf0cd88d8187/nld@2025‑05‑20;07431160
/join/id/regdata/gm0402/2024/405a4d7546c249dca53bacf56e5c752c/nld@2025‑05‑20;07431160
/join/id/regdata/gm0402/2024/4f0dff1e47da46b4956a327d228a3f00/nld@2025‑05‑20;07431160
/join/id/regdata/gm0402/2024/1e7f2b86c007458ca8b7d0f5cf41f2a3/nld@2025‑05‑20;07431160
/join/id/regdata/gm0402/2024/50fee0dcaefa45b79f32d74fc7a68d56/nld@2025‑05‑20;07431160
/join/id/regdata/gm0402/2024/34c285bbf7b543d1a553694bcaff7465/nld@2025‑05‑20;07431160
/join/id/regdata/gm0402/2024/a668c7d6f59f4f6ca95af029a5e964a2/nld@2025‑05‑20;07431160
/join/id/regdata/gm0402/2024/8fdf46410a16484a8688a385804132a3/nld@2025‑05‑20;07431160
D
De volgende sectie wordt op de aangegeven wijze gewijzigd:
In het eerste lid van dit artikel zijn de begripsbepalingen van de Omgevingswet en het Omgevingsbesluit, het Besluit kwaliteit leefomgeving (Bkl), het Besluit bouwwerken leefomgeving (Bbl), het Besluit activiteiten leefomgeving (Bal) en de Omgevingsregeling van toepassing verklaard op hoofdstuk 6 en 22 van dit omgevingsplan. Het gaat om een zogenaamde statische verwijzing. Dat betekent dat latere wijzigingen van de begrippen in de Omgevingswet of de AMvB’s geen invloed hebben op de betekenis van de begrippen in hoofdstuk 6 en 22.
Bijlage III bij dit omgevingsplan bevat de overige begripsbepalingen die voor hoofdstuk 22 6 en 22 nog nodig zijn in aanvulling op de begrippen van de wet, de AMvB’s en de Omgevingsregeling.
E
Na sectie ' Begripsbepalingen' worden 84 secties ingevoegd, luidende:
Primair wordt aangesloten bij de begripsbepalingen die in de Omgevingswet en AmvB's zijn opgenomen.
Omdat, voor de helderheid en leesbaarheid van de regels toch meer begrippen noodzakelijk zijn dan die in de Omgevingswet en AmbvB's zijn opgenomen is een aparte bijlage aan het omgevingsplan toegevoegd die van toepassing zijn op ontwikkelings- en transformatiegebieden.
In dit artikel wordt beschreven op welke wijze de in de regels voorschreven maatvoeringen gemeten moeten worden.
Voor ontwikkel- of transformatiegebieden waarvoor het omgevingsplan gewijzigd moet worden heeft de gemeente bepaald dat deze regels in hoofdstuk 6 worden opgenomen. Elk gebied/ontwikkeling krijgt een aparte titel. Dit hoofdstuk bevat in titel 6.1 algemene bepalingen die van toepassing zijn op elke volgende titel. Alle regels voor het gebied Bruisend Hart staan in titel 6.2. Een titel bestaat uit afdelingen en afdelingen kunnen bestaan uit paragrafen en subparagrafen.
Gekozen is om de regels voor activiteiten voor bouwen, slopen en gebruik in aparte afdelingen te plaatsen. Daarnaast is er nog een afdeling voor algemene en activiteitoverstijgende regels en regels voor beperkingengebieden. Alle kostenverhaalsregels zijn ook overzichtelijk in één afdeling geplaatst.
Omdat de bruidsschat nog niet verwerkt is in het definitieve omgevingsplan en nog steeds van toepassing moet zijn op het tijdelijk deel van het omgevingsplan (oa. alle bestemmingsplannen) is het noodzakelijk om aan te geven dat de bruidsschat in hoofdstuk 22 van het omgevingsplan van toepassing is binnen Bruisend Hart tenzij de regels in deze titel in strijd zijn met de regels uit hoofdstuk 22, danwel anders in deze titel is bepaald. In ieder geval zijn de regels uit de bruidsschat met betrekking tot het vergunningvrij bouwen expliciet uitgezonderd.
Indien er binnen dit hoofdstuk een vergunningplicht geldt voor het bouwen van een gebouw of het wijzigen van het gebruik, dient tevens getoetst te worden aan deze paragraaf, die gaat over het zorgen voor voldoende parkeergelegenheid.
Er dient altijd voldaan te worden aan voldoende parkeerplaatsen op eigen terrein. Of er voldaan wordt aan die regel wordt beoordeeld aan de hand van de op het moment van indiening geldende beleidsregel.
Indien er binnen dit hoofdstuk een vergunningplicht geldt voor het bouwen van een gebouw of het wijzigen van het gebruik, dient tevens getoetst te worden aan deze paragraaf die gaat over het laden en lossen.
Er dient voldoende ruimte voor het laden en lossen op eigen terrein te worden gerealiseerd.
De regels voor een gesloten bodemenergiesysteem staan in artikel 22.260. In dat artikel wordt verwezen naar een 'aangewezen intereferentiegebied in het omgevingsplan'. Binnen Bruisend Hart is dit gebied ook aangewezen.
Aanvullend op de regels in artikel 22.260 gelden specifieke regels voor de wijze waarop gesloten bodemenergiesystemen mogen worden toegepast binnen het interferentiegebied. Er wordt een dynamische verwijzing gelegd met een 'bodemenergieplan'.
Dit artikel regelt de prijzen voor huur en sociale koop conform artikel 5.161c van het Besluit kwaliteit leefomgeving. Indexering gebeurt op basis van dit besluit.
Dit artikel omschrijft de doelgroepen voor nieuw te bouwen sociale huurwoningen, sociale koopwoningen en middenhuurwoningen. De afbakening van de doelgroepen vindt plaats door middel van maximale inkomensgrenzen.
Een verhuurder moet de woning gedurende de in dit artikel bepaalde termijn in stand houden en beschikbaar houden voor de genoemde doelgroep. Mocht er binnen de gestelde termijn toch een woning onttrokken worden aan de opgelegde categorie, dan kan er handhavend worden opgetreden.
In afwijking van de wijze van meten zoals opgenomen in artikel 6.4 geldt binnen Bruisend Hart een ander peil. Dit wordt mede veroorzaakt door het glooiende karakter van het plangebied.
Deze regel voorkomt dat als er elders in dit hoofdstuk geregeld is dat er bijvoorbeeld maximaal 20% mag worden bebouwd, het overige open gebleven terrein opnieuw meetelt bij een ander gebouw.
Binnen het werkingsgebied Bruisend Hart zijn nog diverse bestaande bouwwerken aanwezig. Voor die bouwwerken die in het verleden legaal zijn opgericht of die nog legaal mogen worden opgericht, maar die in strijd zijn met de regels uit dit hoofstuk geldt dat deze bouwwerken mogen blijven staan, gedeeltelijk mogen worden vernieuwd of veranderd of na een calamiteit opnieuw in zijn geheel mogen worden opgericht. Dit artikel geldt niet voor bouwwerken die zonder vergunning zijn opgericht.
Binnen Bruisend Hart is het toegestaan om een ondergrondse fietsverbinding voor het spoor te realiseren. In dit artikel staan de beoordelingsregels.
Dit artikel bepaalt de vergunningplicht voor het bouwen van gebouwen. Omdat er in de beoordelingsregels aparte regels voor twee specifieke gebouwen ( een verbinding en een parkeergarage) zijn opgenomen, worden die gebouwen expliciet in dit artikel benoemd. Voor alle andere soorten gebouwen (inclusief de beoogde aanbouw aan het monument in Blok D) zijn ook beoordelingsregels opgenomen.
Binnen de locatie 'verbinding' is uitsluitend een verbinding toegestaan. Daarvoor gelden de in dit artikel opgenomen beoordelingsregels.
Een ondergrondse parkeergarage is alleen toegestaan binnen de locatie 'parkeergarage' met een omvang van maximaal 2.200 m2 bvo en maximaal één bouwlaag.
In artikel 6.29 t/m 6.30 zijn beoordelingsregels opgenomen voor specifieke gebouwen (verbinding en parkeergarage). Dit artikel bevat beoordelingsregels voor alle andere typen gebouwen. Een onderscheid tussen een hoofdgebouw of bijbehorend bouwwerk wordt niet gemaakt.
Het is de bedoeling om binnen deze locatie op flexibele wijze te garanderen dat voldoende open ruimte ontstaat.
Door deze hoogtebeperking in deze locatie ontstaat ruimte in het ontwerp en wordt boven de laag met stationsfuncties een 'binnentuin' mogelijk. De hoogtebeperking van 6 meter heeft een minimaal grondoppervlak van 300 m2 en maximaal 600 m2.
Binnen deze locatie mag bij een grondoppervlakte van maximaal 400 m2 een hoogteaccent worden gerealiseerd van maximaal 25 meter hoogte.
Binnen deze locatie mag een 'torentje' worden gerealiseerd als architectonisch accent voor het stationsgebouw voor bijvoorbeeld een klokkentoren. Het grondoppervlak hiervan is maximaal 4 m2 en de hoogte is maximaal 24 meter.
In aanvulling op het bepaalde in artikel 6.31 gelden de regels in dit artikel ook, indien er sprake is van de bouw van woningen.
De bepalingen met betrekking tot woningcategorieën zoals benoemd onder paragraaf 6.2.1.4 zijn van toepassing op dit artikel. De genoemde percentages worden toegepast voor het totaal aantal nieuw te bouwen woningen in Bruisend Hart.
Ten behoeve van de bouw van geluidgevoelige gebouwen zijn regels opgenomen om een goed woon- en leefklimaat te kunnen garanderen in het kader van geluid. Indien niet voldaan kan worden aan de standaardwaarde uit het Bkl, is de grenswaarde ook toegestaan als geluidbeperkende maatregelen om te kunnen voldoen aan de standaardwaarde worden afgewogen. Indien de standaardwaarde wordt overschreden (al dan niet na het treffen van geluidbeperkende maatregelen) dient een geluidgevoelig gebouw wel te beschikken over minimaal één geluidluwe zijde, mogen buitenruimten niet aan de zijde met de hoogste geluidbelasting worden gerealiseerd, tenzij er sprake is aanvullende bouwkundige maatregelen. Een buitenruimte kan onder voorwaarden toch aan de zijde met de hoogste geluidbelasting worden gerealiseerd.
Er geldt een verplichting om natuurinclusief te bouwen bij bouwwerken van een bepaalde omvang. Of en op welke wijze er sprake is van voldoende maatregelen wordt beoordeeld aan de hand van een beleidsregel. De maatregelen dienen tevens duurzaam in stand te worden gehouden nadat ze zijn getroffen.
Indien er elders in deze subparagraaf een vergunningplicht geldt voor een bouwwerk, dient dat bouwwerk ook te voldoen aan de eisen van ruimtelijke kwaliteit. Dit wordt beoordeeld aan de hand van de beleidsregel 'Beeldkwaliteitsplan Bruisend Hart'. Voordat de vergunning voor een bouwwerk wordt verleend dient de Commissie Ruimtelijke Kwaliteit en Monumenten eerst een schriftelijk advies uit te brengen.
Het bouwen van een gebouw is alleen toegestaan als dit hydrologisch neutraal geschiedt conform de eisen uit het Gemeentelijk Watermanagementplan 2021-2026, of de opvolgers hiervan.
Nutsvoorzieningen voor het te bouwen bouwwerk dienen inpandig te worden opgelost. Dit geldt dus niet voor openbare voorzieningen.
Deze locatiegrenzen mogen met inachtname van de eisen in dit artikel worden overschreden door balkons of daarmee gelijk gestelde bouwdelen.
Het bevoegd gezag kan middels een vergunningvoorschrift afwijken van de beoordelingsregels vanwege de werkelijke toestand van een terrein of vanuit een oogpunt van het doelmatig gebruik van de gronden/bebouwing. Daarbij is het van belang dat de belangen van eigenaren/gebruikers van betrokken en nabijgelegen gronden niet onevenredig worden geschaad. Daarnaast moet het passen binnen het straat/bebouwingsbeeld en mag het niet tot een verkeeronveilige situatie leiden.
Om te kunnen beoordelen of en in welke mate er natuurinclusief wordt gebouwd dient een realisatieplan te worden overlegd bij het bouwplan zoals bedoeld onder 6.34.
Deze subparagraaf is van toepassing op twee bestaande gebouwen binnen Bruisend Hart. Deze gebouwen zijn aangewezen als gemeentelijk monument en worden dan ook voor de monumentenactiviteit via de bepalingen in hoofdstuk 22 bruidsschat beschermd.
In dit artikel is een vergunningplicht voor de omgevingsplanactiviteit bouwen opgenomen.
Ter plaatse van de locatie 'bebouwingsgebied bestaand' is een bestaand gebouw aanwezig. De omvang en afmetingen mogen niet worden veranderd of vergroot en de bestaande maten en oppervlakten zijn de minimale en maximale maten.
Bij een verandering aan gebouwen binnen dit werkingsgebied wordt tevens getoetst aan de beleidsregel 'Beeldkwaliteitsplan Bruisend Hart'.
In dit artikel zijn de gebouwen opgenomen die niet onder een vergunningplicht vallen. Deze gebouwen zijn, mits aan deze voorwaarden wordt voldaan, vergunningvrij.
De verwachting is dat de meeste gebouwen in de openbare ruimte vergunningvrij gebouwd kunnen worden. Alle gebouwen die daar niet aan kunnen voldoen zijn vergunningplichtig. Óf de vergunning ook zal worden verleend hangt af van het feit dat het gebouw moet passen binnen het beeldkwaliteitsplan Bruisend Hart en dat omliggende gebouwen/locaties niet onevenredig in hun bouw- en gebruiksmogelijkheden worden aangetast.
Deze regel is onder andere overgenomen uit artikel 22.27 van de bruidsschat. In het toepassingsbereik van dit hoofdstuk is in artikel 6.7. bepaald dat artikel 22.27 van de bruidsschat niet van toepassing is. Dit artikel uit de bruidsschat maakt bepaalde bouwwerken vergunningvrij mits ze voldoen aan andere regels uit het (tijdelijk deel van het) omgevingsplan. Omdat dit hoofdstuk onderdeel uitmaakt van het definitieve deel van het omgevingsplan én het niet voor alle typen bouwwerken zoals genoemd in artikel 22.27 gewenst is dat deze vergunningvrij gebouwd mogen worden, is het noodzakelijk om die bouwwerken die in dat artikel genoemd zijn en die ook nu zonder vergunning mogen worden opgericht, te noemen in de algemene regels.
Indien niet voldaan kan worden aan de algemene regels, wordt aan de hand van deze regels beoordeeld of een vergunning zal worden verleend.
Een gebruiksactiviteit is alleen toegestaan als die in de regels op een locatie is toegestaan. Dit betekent dat als een gebruiksactiviteit niet genoemd wordt of expliciet is uitgesloten in de regels, deze activiteit niet is toegestaan.
Dit artikel is opgenomen om te borgen dat bestaande functies binnen het werkingsgebied Bruisend Hart die in strijd zijn met de regels in dit hoofdstuk kunnen blijven voortbestaan onder de nieuwe regels. De met dit hoofdstuk strijdige functies mogen niet worden veranderd naar een andere vorm van strijdig gebruik en de omvang van niet worden vergroot. Als het strijdige gebruik langer dan een jaar wordt onderbroken, kan dat gebruik niet meer (opnieuw) worden hervat.
Darkstores zijn binnen geheel Bruisend Hart verboden.
Binnen Bruisend Hart is op een specifiek aangewezen locatie lichte bedrijvigheid toegestaan. Vooralsnog wordt gewerkt met de VNG bedrijvenlijsten en zijn bedrijven tot en met categorie 2 toegestaan. Er geldt wel een maximum oppervlak bvo voor bedrijven en kantoren tezamen binnen Bruisend Hart. Daarnaast mag binnen het stationsgebouw alleen bedrijvigheid plaatsvinden op bouwlaag 1 tot en met 7.
Binnen Bruisend Hart is detailhandel op een specifiek aangewezen locatie onder voorwaarden toegestaan. Op sommige locaties geldt dat er een maximering in bvo's van toepassing is of dat detailhandel alleen in bepaalde bouwlagen en/of de begane grond mag plaatsvinden. De maximering aan bvo's is tezamen met de gebruiksactiviteit dienstverlening.
Indien de activiteit niet voldoet aan de algemene regels dan is de activiteit niet toegestaan.
Binnen Bruisend Hart is dienstverlening op een specifiek aangewezen locatie onder voorwaarden toegestaan. Op sommige locaties geldt dat er een maximering in bvo's van toepassing is of dat dienstverlening alleen in bepaalde bouwlagen en/of de begane grond mag plaatsvinden. De maximering aan bvo's is tezamen met de gebruiksactiviteit detailhandel.
Indien de activiteit niet voldoet aan de algemene regels dan is de activiteit niet toegestaan.
Binnen heel het gebied Bruisend Hart zijn activiteiten in de openbare ruimte toegestaan. Wegen, groenvoorzieningen en/of water worden niet middels een specifieke nadere locatie vastgelegd.
Binnen Bruisend Hart staat tevens het groene karakter centraal. Om dit te benadrukken en vast te leggen dat de gemeente ook daadwerkelijk openbare groenvoorzieningen zal aanleggen is een gebodsbepaling opgenomen. In deze regel staat de minimale omvang genoemd. Daarnaast moet binnen Bruisend Hart minimaal 1.400 m2 aaneengesloten groen worden gerealiseerd. Dit is inclusief (half)verharding behorende bij groenvoorzieningen, zoals voetpaden, terrassen en dergelijke.
Om te verduidelijken wat in ieder geval onder het gebruik van gronden voor groenvoorzieningen bedoeld wordt is dit nader geduid in lid 2. van dit artikel. Deze lijst is niet limitatief.
Om te verduidelijken wat in ieder geval onder het gebruik van gronden voor watervoorzieningen bedoeld wordt is dit nader geduid in lid 2. van dit artikel. Deze lijst is niet limitatief.
Om te verduidelijken wat in ieder geval onder het gebruik van gronden voor parkeer- en verkeersvoorzieningen bedoeld wordt is dit nader geduid in lid 2. van dit artikel. Deze lijst is niet limitatief.
Binnen het stationsgebouw zijn naast bijbehorende voorzieningen ook detailhandel en horeca toegestaan. Deze gebruiksactiviteiten zijn weliswaar zelfstandig, maar ondersteunen het gebruik en de beleving van het station. Over het algemeen zullen vooral reizigers gebruik maken van deze voorzieningen. Onder bijbehorende voorzieningen bij het stationsgebouw wordt in ieder geval een fietsenstalling verstaan. De totale omvang van het stationsgebouw bedraagt maximaal 2.900 m2 bvo.
Binnen Bruisend Hart is horeca op een specifieke locatie onder voorwaarden toegestaan. Op sommige locaties geldt dat er een maximering in bvo's van toepassing is of dat horeca alleen in bepaalde bouwlagen en/of de begane grond mag plaatsvinden. Welke horecatypen toegestaan zijn wordt nader bepaald in Module horeca Bruisend Hart.
Binnen Bruisend Hart zijn kantoren op een specifieke locatie onder voorwaarden toegestaan. De maximering aan bvo's is tezamen met de gebruiksactiviteit bedrijven. Tevens is bepaald dat kantooractiviteiten alleen zijn toegestaan in een gebouw op bouwlaag 1 tot en met 7.
Binnen Bruisend Hart zijn maatschappelijke activiteiten op een specifieke locatie onder voorwaarden toegestaan.
Bij een hoofdactiviteit is een ondergeschikte horeca-activiteit onder voorwaarden toegestaan. Het is denkbaar dat bijvoorbeeld bij detailhandel een vorm van horeca gewenst is. Dit is onder voorwaarden dan ook rechtstreeks zonder omgevingsvergunning toegestaan.
Bij een hoofdactiviteit is een ondergeschikte detailhandelsactiviteit onder voorwaarden toegestaan. Het is denkbaar dat bijvoorbeeld bij een bedrijf een vorm van detailhandel gewenst is. Dit is onder voorwaarden dan ook rechtstreeks zonder omgevingsvergunning toegestaan.
Bij een hoofdactiviteit is een ondergeschikte kantooractiviteit onder voorwaarden toegestaan. Het is denkbaar dat bij een hoofdactiviteit kantoorruimte gewenst is. Dit is onder voorwaarden dan ook rechtstreeks zonder omgevingsvergunning toegestaan.
Wonen is onder voorwaarden rechtstreeks, zonder omgevingsvergunning toegestaan. In een woning of onzelfstandige woonruimte mag slechts één huishouden wonen. Onder één huishouden wordt ook de ontvanger van mantelzorg gerekend. Wonen is niet niet alle lagen van de bebouwing toegestaan. In deze regels wordt aangegeven waar wonen mag.
Inwoning is onder voorwaarden rechtstreeks toegestaan.
Een aan huis gebonden beroep of bedrijf is passend binnen de woonfunctie. Daarbij geldt wel dat de hoofdfunctie wonen nog steeds herkenbaar blijft. De toegestane oppervlakte voor een aan huis gebonden beroep of bedrijf is dan ook gemaximeerd.
Uitgangspunt is dat de hoofdbewoner het beroep of bedrijf uitoefent. Echter het is middels een omgevingsvergunning toegestaan dat er één extra medewerker naast de hoofdbewoner werkzaam is, indien aan de gestelde voorwaarden in dit artikel wordt voldaan.
Verkameren van woningen is uitsluitend toegestaan middels een verleende omgevingsvergunning. Daarbij zijn de beleidsregels 'Woningsplitsing, verkamering en transformatie 2023' (of een opvolger ervan) van toepassing om te beoordelen of het verkameren van een woning gewenst is.
In deze paragraaf zijn regels gesteld die als doel hebben de archeologische waarden binnen Bruisend Hart te beschermen. Er geldt een vergunningplicht voor bepaalde grondwerkzaamheden en bouwactiviteiten. Indien naar aanleiding van archeologisch onderzoek blijkt dat er geen archeologische waarden aanwezig zijn of dat deze niet onevenredig worden geschaad (al dan niet middels voorschriften) zal de omgevingsvergunning worden verleend.
Indien er binnen het beperkingengebied vervoer gevaarlijke stoffen zeer kwetsbare of kwetsbare gebouwen beoogd zijn, gelden aanvullende beoordelingsregels. De veiligheid van personen en goederen moet in voldoende mate geborgd zijn en als er uit onderzoek blijkt dat er maatregelen noodzakelijk zijn, dan dienen die maatregelen te worden getroffen en in stand te worden gehouden. Het bevoegd gezag kan daarvoor voorschriften aan de omgevingsvergunning opnemen.
Binnen het aandachtsgebied 'trillingen' is het niet toegestaan om zonder omgevingsvergunning een nieuw trillinggevoelig gebouw toe te voegen. Indien elders een omgevingsvergunningplicht geldt voor een gebouw dat tevens een trillinggevoelig gebouw is, gelden de beoordelingsregels in deze paragraaf als aanvullende beoordelingsregels.
Er dient aangetoond te worden dat de streefwaarden in dit artikel niet worden overschreden. Als daarvoor maatregelen noodzakelijk zijn, dan dienen deze maatregelen te worden getroffen en als zodanig ook in stand worden gehouden.
Degene die wil (ver)bouwen op een plek die in de kostenverhaalsregel van het betreffende kostenverhaalsgebied is aangewezen als een kostenverhaalsplichtige activiteit, dient voordat hij start met de uitvoering de kostenverhaalsbijdrage (anders gezegd: de verschuldigde geldsom) betaald te hebben aan de gemeente. Daartoe moet hij, volgens artikel 13.18 lid 1 Omgevingswet, een kostenverhaalsbeschikking aanvragen, als hij geen kostenverhaalsovereenkomst met de gemeente heeft.
Om die beschikkingsaanvraag te kunnen behandelen heeft de gemeente tenminste de gegevens nodig die genoemd zijn in dit artikel:
Ad a: een lijst met soort en aantal van de kostenverhaalsplichtige activiteiten is nodig opdat de gemeente kan bijhouden hoeveel van de aantallen er benut zijn die het omgevingsplan mogelijk maakt. Dit is voor de gemeente nodig om te kunnen nagaan of de kostenverhaalsregel voor het betreffende kostenverhaalsgebied nog actueel is. Nu de gemeente voor het betreffende kostenverhaalsgebied ervoor kiest om een bedrag per activiteit in rekening te brengen zijn deze gegevens ook nodig om de kostenverhaalsbijdrage voor de beschikkingslocatie te kunnen berekenen.
Ad b: de gemeente moet weten welke locatie het betreft. Nu de gemeente voor het betreffende kostenverhaalsgebied ervoor kiest om een bedrag per activiteit in rekening te brengen zijn deze gegevens nodig om de kostenverhaalsbijdrage voor de beschikkingslocatie te kunnen berekenen.
Ad c: op grond van artikel 13.18 lid 2 sub b Omgevingswet berekent de gemeente een bruto-kostenverhaalsbijdrage. Op het bedrag daarvan worden de kosten in mindering gebracht die de aanvrager van de kostenverhaalsbeschikking heeft gemaakt. Het gaat om de kosten die zijn gemaakt tot het moment van de aanvraag van de beschikking. En het kan alleen gaan om kosten voor werkzaamheden die de aanvrager zelf heeft verricht in aansluiting met de werken, werkzaamheden en maatregelen die in de kostenverhaalsregel van het betreffende kostenverhaalsgebied zijn opgenomen voor de raming van de kosten. Het bedrag dat in mindering wordt gebracht kan niet hoger zijn dan de bedoelde raming ervan. Om te bepalen of dat het geval is, en om te bepalen of er niet teveel kosten in mindering worden gebracht, dient de aanvrager de facturen ervan te overleggen bij de aanvraag.
Zoals uit de toelichting op het artikel 6.135 blijkt, worden kosten, die een aanvrager zelf heeft gemaakt voor de voorziene werken, werkzaamheden en maatregelen, afgetrokken van de bruto-kostenverhaalsbijdrage. Veelal zullen dat kosten zijn die gemaakt zijn om de uitgeefbare gebieden, anders gezegd de kavel(s) waarvoor de kostenverhaalsbeschikking wordt aangevraagd bouwrijp te maken. Het is ook mogelijk dat een aanvrager daarnaast kosten maakt voor de inrichting van (delen van) de openbare ruimte. De praktijk laat zien dat het inrichten van de openbare ruimte meestal plaatsvindt nadat de kavels bouwrijp zijn gemaakt en bebouwd worden. Op dat moment bestaat er geen recht meer op aftrek van de bruto-kostenverhaalsbijdrage. Want die beschikking is dan al verleend. De kosten van de inrichting van de openbare ruimte zijn echter wel geraamd in de kostenverhaalsregel en daarmee verdisconteerd in de kostenverhaalsbijdrage. Als er geen mogelijkheid van vergoeding zou worden geboden, zou de aanvrager dergelijke inrichtingskosten tweemaal betalen, eenmaal via de kostenverhaalsbijdrage en eenmaal als opdrachtgever. Dat is niet de bedoeling. Daarom is in dit artikel een regeling opgenomen voor vergoeding van die kosten.
De vergoeding hoeft overigens niet beperkt te zijn tot kosten van inrichting van de openbare ruimte. Het kan ook gaan om kosten die de aanvrager maakt op de kavel(s) waarvoor hij een kostenverhaalsbeschikking maakt. De situatie kan zich immers voordoen dat hij vroeg wil beschikken over zo’n beschikking en zijn uitgeefbare gronden nog niet bouwrijp heeft gemaakt. Dan kan hij aanspraak maken op de vergoeding daarvan. De kosten ervan zijn immers mee betrokken in de raming ervan in de kostenverhaalsregel.
Artikel 15.5 van het Omgevingsbesluit geeft aan dat de inbrengwaarde in het geval van kostenverhaal kan zijn gebaseerd op een taxatie of op de WOZ-waarde. In lijn met het Programma Kostenverhaal en Financiële bijdrage van de gemeente Hilversum is uitgegaan van de WOZ-methodiek. Deze keuze is gemaakt om dure en tijdrovende taxaties te voorkomen en daarnaast geven de WOZ-waarden een meer accuraat beeld van de waarde die gebaseerd zijn op onteigeningsprincipes.
De betekenis van dit artikel is dat, als de gemeente verzoeken om een tussentijdse eindafrekening verspreid over een kalenderjaar ontvangt, zij niet steeds per verzoek de herberekeningen hoeft te maken. De gemeente bundelt deze verzoeken en behandelt ze op één gezamenlijk moment in het jaar. Om dat goed te kunnen doen is vereist dat de verzoeken binnen 8 weken voor dat behandelmoment zijn ingediend. Worden ze later ingediend dan schuift de behandeling ervan dus door naar het volgende jaar.
In lid 1 wordt de termijn bepaald waarop de gemeente de eindafrekening vaststelt. Dit betreft een andere kwestie dan de behandeling van verzoeken om tussentijdse afrekening als bedoeld in artikel 6.136 en 6.138. In onderhavig artikel gaat het om een ambtshalve eindafrekening, dus niet op een (tussentijds) verzoek van de houders van kostenverhaalsbeschikkingen. Omdat zij reeds een eindafrekenbesluit (op hun verzoek) hebben gekregen, wordt voor hen niet opnieuw een eindafrekenbesluit in het kader van het artikel genomen.
Het opstellen van een eindafrekening is bedoeld om vast te stellen of de ontvanger van een kostenverhaalsbeschikking niet teveel heeft betaald. Hij betaalt in een stadium dat niet alle werken, werkzaamheden en maatregelen zijn uitgevoerd en de kosten dus nog een raming betreffen. Als de werken, werkzaamheden en maatregelen zijn uitgevoerd kan zich de situatie voordoen dat sommige ervan goedkoper blijken te zijn uitgevallen en andere duurder. De Omgevingswet bepaalt dat, als het saldo van de totale werkelijk kosten lager is, de ontvanger van de kostenverhaalsbeschikking recht op terugbetaling als het herberekende bedrag meer dan 5% lager blijkt te zijn dan het betaalde bedrag. Hij krijgt dan het meerdere boven die 5%-meevaller terugbetaald met rente. De gemeente werkt daarvoor met de rekenrente die zij voor de eigen grondexploitaties hanteert in 2024. Met andere woorden: als er in totaalopzicht een meevaller is komt die met een marge van 5% ten gunste van de gemeente. Blijken de werkelijke kosten hoger te zijn dan hoeft, ook volgens de Omgevingswet, de houder van de kostenverhaalsbeschikking geen bedrag bij te betalen.
Om een herberekening te kunnen maken vanuit de werkelijke kosten kiest de gemeente ervoor om de eindafrekening op te stellen als alle werken, werkzaamheden en maatregelen zijn voltooid. Vervolgens is rekening gehouden met een bepaalde periode voor ontvangst en verzameling van de facturen.
De situatie kan zich voordoen dat weliswaar alle werken, werkzaamheden en maatregelen zijn voltooid, maar dat nog niet voor alle bouwactiviteiten kostenverhaalsbeschikkingen zijn aangevraagd. Dan doet zich de vraag voor hoe kan worden omgegaan met een eindafrekening voor degenen die na het moment van eindafrekening een kostenverhaalsbeschikking vragen. Omdat de gemeente er met lid 1 van dit artikel van uit gaat dat deze eindafrekening plaatsvindt als alle voorziene werken, werkzaamheden en maatregelen voltooid zijn, worden de werkelijke kosten dan geacht bekend te zijn. Dat betekent dat er geen verschil meer kan zijn tussen geraamde en werkelijke kosten. De kostenverhaalsbeschikkingen van degenen die deze aanvragen na de eindafrekening gaan per definitie uit van de werkelijke kosten. Omdat er geen verschil kan zijn, kan een recht op terugbetaling ook niet aan de orde zijn. Om die reden is in dit artikel tweede lid op voorhand duidelijk gemaakt dat er geen sprake kan zijn van zo’n terugbetaling.
Voor het kostenverhaalsgebied gaat de gemeente, ten tijde van het eerste besluit tot vaststelling van de kostenverhaalsregel in het omgevingsplan voor het kostenverhaalsgebied uit van een periode van elf jaren tot afronding. De gemeente is reeds enige tijd bezig geweest met de voorbereiding van deze bouwontwikkeling. Deze jaren zijn niet meegerekend bij de vaststelling van het tijdvak van de ontwikkeling. Gerekend is met een peildatum die is vastgesteld op 1 januari van het jaar waarin het besluit is genomen tot wijziging van het omgevingsplan met het oog op dit kostenverhaalsgebied. Daarmee wordt gedoeld op het eerste besluit tot wijziging van het omgevingsplan waardoor een kostenverhaalsregel voor dit kostenverhaalsgebied in het omgevingsplan is opgenomen.
Voor de looptijd en de fasering is gerekend met het volgende:
• Prijspeil 1‑1‑2024, waarbij 2024 een voorbereidingsjaar is;
• Bovenwijkse voorzieningen in 2025;
• Inbreng van gronden in 2026;
• Sloop in 2027 en sanering in 2028;
• Overig bouwrijp maken in 2029;
• Inrichten (tijdelijk) park in 2029 en 2030;
• Woonrijp maken & uitgifte 2030 tot 2035.
Met de aanduiding ‘eerste besluit’ wordt gedoeld op de mogelijkheid dat de gemeente de kostenverhaalsregel kan herzien door een besluit tot wijziging van het omgevingsplan op dit punt. Grondexploitatie is een dynamisch geheel. De raming van kosten kan veranderen (bijvoorbeeld door stijging of daling van arbeidsloon of prijzen van grondstoffen). Ook de periode kan veranderen. Veranderingen in de markt kunnen ertoe leiden dat de ontwikkeling sneller of juist langzamer verloopt. Het is daarom denkbaar dat het tijdvak onderhevig is aan aanpassing. Om een meetmoment te hebben moet duidelijk zijn wanneer de gemeente voor het eerst heeft besloten voor dit gebied een kostenverhaalsregel in het omgevingsplan op te nemen. Het werken met een prijspeildatum werkt door in de hoogte van de kostenverhaalbijdrage. De reden daarvan is dat de kosten en opbrengsten in de tijd worden uitgezet en er over die tijd rekening wordt gehouden met rente (over kosten en opbrengsten die al gerealiseerd zijn) en indexeringen (over kosten en opbrengsten waarvan de realisering nog verwacht wordt). Door de prijspeildatum te koppelen aan het jaar waarin dat eerste besluit wordt genomen ontstaat er een meetmoment dat doorwerkt in de eindafrekening.
In de begripsbepalingen is het begrip inbrengwaarde gedefinieerd. In artikel 8.17 Omgevingsbesluit is opgenomen dat gemeenten nog steeds de onteigeningsprincipes mogen hanteren om de inbrengwaarde te berekenen (middels taxaties), maar dat gemeenten ook de WOZ-waarde mogen hanteren in het publiekrechtelijk kostenverhaal. Voor dit kostenverhaalsgebied is de inbrengwaarde van grond gebaseerd op de WOZ-waarde.
In artikel 8.17 Omgevingsbesluit worden onder inbrengwaarden verstaan de onderdelen B1 tot en met B4. Deze zijn in dit artikel kort aangeduid met de termen:
a. Waarde van gronden en te slopen opstallen;
b. Kosten vrijmaken van rechten, etc.;
c. Kosten van sloop en verwijdering/verplaatsing opstallen, obstakels;
d. Saneringskosten en kosten van grondwerk.
Onderdeel d als bedoeld in de definitie van inbrengwaarden, is verdisconteerd in de raming zoals opgenomen in dit artikel en is daarom niet in de tabel opgenomen.
In de tabel worden de diverse werken, werkzaamheden en maatregelen grotendeels toegerekend aan het kostenverhaalsgebied. Enkel twee kostenposten die vallen onder Woonrijp maken worden voor 50% toegerekend aan het kostenverhaalsgebied. De overige werken, werkzaamheden en maatregelen worden alleen ten behoeve van het kostenverhaalsgebied verricht en leveren geen profijt op voor andere gebieden. Dat is anders voor het onderdeel bovenwijkse voorzieningen. Deze voorzieningen hebben een bovenwijks karakter; ze hebben een breder profijt dan alleen voor de gronden in het kostenverhaalsgebied. Voor dat bredere profijt is het niet vereist dat die investeringen buiten het kostenverhaalsgebied worden gedaan. Het kan ook investeringen binnen het kostenverhaalsgebied betreffen.
Voor dit kostenverhaalsgebied zijn de NS-fietsenstalling aan de centrumzijde, het busstation van de NS, het omleggen van de centrumring en natuurinclusieve maatregelen aangemerkt als bovenwijkse voorziening. De twee kostenposten die voor 50% worden toegerekend aan het kostenverhaalsgebied zijn de fietsenstalling Oosterspoorplein en het Park Bruisend Hart.
Bovenwijkse voorzieningen
Aanleg fietsenstalling centrumzijde NS Hilversum
De fietsenstalling aan de centrumzijde van de NS heeft ook een functie voor bewoners en het verkeer vanuit het Bruisend Hart. De aanleg van de fietsenstalling verbetert de bereikbaarheid per fiets van het NS-station vanuit de rest van de stad. De gehele gemeente profiteert dus van deze ontwikkeling. Deze ontwikkeling wordt gedaan vanwege de bestaande en toekomstige behoefte aan deze voorziening vanuit geheel Hilversum. Het gaat deels om de bestaande vraag, alsook om de verwachte toe te nemen vraag van bestaande bewoners en gebruikers. Anderzijds gaat het ook deels om de verwachte toekomstige vraag van de nieuwe bewoners en gebruikers de in Hilversum gaan komen vanwege de nieuwbouwplannen overal in de stad, zo ook voor het Bruisend Hart.
Aanleg busstation NS Hilversum
De aanleg van het busstation van de NS heeft ook een functie voor bewoners en het verkeer vanuit het Bruisend Hart. Het busstation verbeterd de bereikbaarheid per OV van het NS-station en de rest van het Centrumgebied vanuit de rest van de stad en de regio. De gehele gemeente profiteert dus van deze ontwikkeling. Deze ontwikkeling wordt gedaan vanwege de bestaande en toekomstige behoefte aan deze voorziening vanuit geheel Hilversum. Het gaat deels om de bestaande vraag, alsook om de verwachte toe te nemen vraag van bestaande bewoners en gebruikers. Anderzijds gaat het ook deels om de verwachte toekomstige vraag van de nieuwe bewoners en gebruikers de in Hilversum gaan komen vanwege de nieuwbouwplannen overal in de stad, zo ook voor het Bruisend Hart.
Omleggen centrumring
Het omleggen van de centrumring heeft ook een functie voor het verkeer vanuit het Bruisend Hart. Met deze ontwikkeling wordt de leefbaarheid van de historische binnenstad verbeterd, en tevens de auto en OV-bereikbaarheid van het Centrumgebied vanuit de rest van de stad. De hele gemeente profiteert dus van deze ontwikkeling. Deze ontwikkeling wordt gedaan vanwege de bestaande en toekomstige behoefte aan deze voorziening vanuit geheel Hilversum. Het gaat deels om de bestaande vraag, alsook om de verwachte toe te nemen vraag van bestaande bewoners en gebruikers. Anderzijds gaat het ook deels om de verwachte toekomstige vraag van de nieuwe bewoners en gebruikers de in Hilversum gaan komen vanwege de nieuwbouwplannen overal in de stad, zo ook voor het Bruisend Hart.
Natuurinclusieve maatregelen (I & II)
Natuurinclusieve maatregelen dragen bij aan de biodiversiteit in de hele gemeente Hilversum, dus zowel de bestaande stad als nieuwbouwplannen hebben hier profijt van. Het nemen van natuurinclusieve maatregelen is nodig om een ontheffing te krijgen van de Wet Natuurbescherming, en dus nodig om te kunnen bouwen. Deze ontheffing wordt nu per project aangevraagd, maar wordt in de komende jaren door de gemeente voor gehele gebied (gebiedsontheffing) aangevraagd. Daarmee zullen nieuwbouwplannen niet meer zelf een ontheffing moeten krijgen. Daarom hebben de natuurinclusieve maatregelen ook invloed op de ontwikkeling in het Bruisend Hart.
De opgetelde bedragen van alle bovenwijkse voorzieningen zijn als totaal opgenomen in tabel 4-5 in de rij Bovenwijkse voorzieningen.
Om rekening te houden met invloeden van rente en kosten- en opbrengstenstijgingen (indexering) zijn de kosten en opbrengsten in de tijd uitgezet. Er is gedurende de tijdsduur van het gekozen tijdvak (artikel 6.141) rekening gehouden met rente (over kosten en opbrengsten die al gerealiseerd zijn) en indexeringen (over kosten en opbrengsten waarvan de realisering nog verwacht wordt). De parameters voor rente en indexering zijn opgenomen in de tabel 5. Door rekening te houden met invloeden van rente en indexering ontstaan geraamde bedragen op eindwaarde. Aan de hand van de aangehouden disconteringsvoet zijn deze bedragen teruggerekend naar een waarde op de prijspeildatum (de netto contante waarde).
Dit artikel is ervoor bedoeld om duidelijk te maken wat het totaal aan geraamde kosten is. Artikel 13.14 lid 2 van de Omgevingswet verwoordt het zogenaamde principe van macro-aftopping: “Als de te verhalen kosten, verminderd met de door het bestuursorgaan ontvangen of te ontvangen bijdragen en subsidies van derden, hoger zijn dan de opbrengsten van de gronden binnen het kostenverhaalsgebied, kan het bestuursorgaan die kosten slechts verhalen tot ten hoogste het bedrag van de opbrengsten.”
Om te kunnen bepalen of alle kosten opwegen tegen de opbrengsten moeten ze met elkaar in verband worden gebracht. Voor dat doel is in dit artikel het totaal weergegeven van de geraamde (contant gemaakte) kosten die in principe verhaalbaar zijn. Dit grijpt terug op de geraamde opbrengsten, zoals opgenomen in artikel 6.142 maar dan contant gemaakt, en vergelijkt die met de totale contant gemaakte kosten, zoals opgenomen in artikel 6.143 en 6.144. Ook subsidies en bijdragen van derden worden in deze vergelijking betrokken, namelijk door ze in mindering te brengen op het totaal aan contant gemaakte kosten. Door deze vergelijking wordt duidelijk tot welk niveau de kosten te verhalen vallen.
In tabel 10 is opgenomen met welk bedrag (welke kostenverhaalsbijdrage) per activiteit is
gerekend.
Met het bedrag per activiteit is hier bedoeld het bedrag per prijscategorie woning. Onderscheiden worden de volgende prijscategorieën:
• Appartement (sociaal – Larenseweg)
• Appartement (huur – Larenseweg)
• Appartement (koop – Larenseweg)
• Appartement (vrij – Larenseweg)
• Appartement (huur – Oosterspoorplein Noord)
• Appartement (koop – Oosterspoorplein Noord)
• Appartement (vrij – Oosterspoorplein Noord)
• Winkels (Larenseweg)
• Ki-Bar
• Kantoren (Oosterspoorplein Zuid)
• Kantoren (Oosterspoorplein Noord)
• Winkels (Oosterspoorplein Noord)
• Parkeren (Larenseweg)
• Zorg (Larenseweg)
• Fiets parkeren (Oosterspoorplein Noord)
Voor deze activiteiten is gerekend met de residuele grondwaardes zoals die ontleend zijn aan de opstalexploitatie van de gemeente Hilversum. Door deze bij elkaar op te tellen ontstaat een totaal aan grondopbrengsten. Vervolgens is voor elke activiteit een aandeel per eenheid van de betreffende activiteit bepaald.
Deze prijzen zijn vertaald naar een aandeel in de totale grondopbrengsten. Dat is gedaan omdat niet alle kosten verhaalbaar zijn, zoals blijkt uit artikel 6.147. De verhaalbare kosten zijn daar ‘afgetopt’ op het niveau van de geraamde grondopbrengsten. In tabel 10 is dat aandeel vertaald naar aantallen gewogen eenheden. Dat is in diezelfde tabel 10 vertaald naar maximaal te verhalen kosten voor het totaal aantal woningen per prijscategorie. Door het totaalbedrag aan te verhalen kosten per prijscategorie te delen op het aantal woningen in die categorie, wordt het bedrag van één woning in de betreffende categorie verkregen. Dit wordt op dezelfde manier gedaan voor de overige activiteiten. Echter wordt hier niet gerekend met het totaal aantal woningen. De contante opbrengst per eenheid wordt berekend door de totale contante opbrengsten te delen door de vierkante meters BVO van de betreffende activiteit.
Om dit te verduidelijken worden twee voorbeelden gebruikt. Het eerste voorbeeld betreft de aanvraag van een kostenverhaalsbeschikking voor 49 appartementen in de sociale huursector. In die beschikking wordt de kostenverhaalsbijdrage bepaald door de contante opbrengst per eenheid (€ 77.698 /st.) te delen door het totaal aan contante opbrengsten (€ 10.226.877). Vervolgens dient er rekening te worden gehouden met de macro-aftopping van € 9.794.892. Dat komt neer op een bruto kostenbijdrage per eenheid van € 74.416.
Het tweede voorbeeld betreft de aanvraag van een kostenverhaalsbeschikking voor een kantoor op het Oosterspoorplein Zuid. In die beschikking wordt de kostenverhaalsbijdrage bepaald door de contante opbrengst per eenheid (€ 133) te delen door het totaal aan contante opbrengsten (€ 10.226.877). Vervolgens dient er rekening te worden gehouden met de macro-aftopping van € 9.794.892. Dat komt neer op een bruto kostenbijdrage per eenheid (m² BVO) van € 127.
Het betreft bedragen die netto contant berekend zijn op de peildatum van 1 januari 2024. De kostenverhaalsbeschikkingen worden later aangevraagd, namelijk voordat de eigenaar de activiteit wil gaan uitvoeren. Dan behoort op het berekende bedrag een vermeerdering plaats te vinden met de rente. Daarmee wordt het rentepercentage bedoeld zoals dat in de rekenparameters is betrokken. Deze rente is opgenomen in artikel 6.145 met de bij dat artikel behorende tabel 5.
Deze bedragen vormen dan de bruto-kostenverhaalsbijdrage. Vervolgens wordt, op basis van artikel 13.18 lid 2 Omgevingswet, de inbrengwaarde in aftrek gebracht van de gronden waarvoor deze beschikking wordt aangevraagd en, als de aanvrager kosten heeft gemaakt die zijn opgenomen in tabel 4 van artikel 6.144, dan worden deze ook in aftrek gebracht. Zie voor de te volgen handelwijze hierbij de toelichting op artikel 6.135 sub c.
F
De volgende sectie wordt op de aangegeven wijze gewijzigd:
Voor landbouwhuisdieren waarvoor geen geuremissiefactor is vastgesteld gelden geen waarden, maar is het uitgangspunt dat afstanden worden aangehouden. Deze afstanden zijn in dit artikel opgenomen. Het gaat hierbij om vaste afstanden: de afstand is niet gekoppeld aan het aantal landbouwdieren.
In dit omgevingsplan wordt onder landbouwhuisdieren zonder geuremissiefactor verstaan: landbouwhuisdieren waarvoor in de Omgevingsregeling geen emissiefactor voor geur is vastgesteld met uitzondering van pelsdieren. Deze begripsbepaling staat opgenomen in Bijlage III bij dit omgevingsplan.
Dit artikel is een voortzetting van artikel 4, eerste lid, van de voormalige Wet geurhinder en veehouderij en artikel 3.117, eerste lid, van het voormalige Activiteitenbesluit milieubeheer.
Voor dit artikel geldt dat als in een geurverordening op grond van artikel 6 van de voormalige Wet geurhinder en veehouderij een andere afstand is vastgesteld dan de afstand in dit artikel, die andere afstand uit de geurverordening voorrang heeft op de afstand zoals opgenomen in dit artikel. Dit is geregeld in artikel 22.1 van dit omgevingsplan. Deze voorrang werkt ook door in de volgende artikelen van deze paragraaf over de eerbiedigende werking.
G
De volgende sectie wordt op de aangegeven wijze gewijzigd:
In dit artikel wordt aangegeven welke normen gehanteerd worden voor het meten van emissiegrenswaarden. Artikelen met normbladen voor het bemonsteren van afvalwater schrijven niet voor dat het afvalwater moet worden bemonsterd, maar wel wat er moet gebeuren áls er wordt bemonsterd. Er zijn normen opgenomen voor het bemonsteren, conserveren en ontsluiten. Ook zijn de analysemethoden die moeten worden gebruikt voor de stoffen waaraan in deze paragraaf emissiegrenswaarden worden gesteld voorgeschreven. De versies van de NEN-EN-normen zijn opgenomen in de begripsbepalingen van bijlage III.
Als er wordt bemonsterd, moeten de monsters volgens NEN 6600-1 worden geconserveerd om te voorkomen dat in de monsters verandering optreedt voor de te analyseren parameter tussen het moment van bemonstering en het moment van analyse. Omdat de emissiegrenswaarden die zijn gesteld betrekking hebben op het totaal van opgeloste en niet opgeloste stoffen in het afvalwater, is het van belang dat het monster niet gefilterd wordt en dat de stoffen die zich onopgelost in het afvalwater bevinden meegenomen worden in de analyse.
H
Het volgende opschrift wordt op de aangegeven wijze gewijzigd:
Deze omgevingsplanwijziging betreft de ontwikkeling van het centrum aan de oostkant van het spoor (zie figuur 1-1). De herontwikkeling ‘Bruisend Hart’ heeft als doel om van het gebied een aantrekkelijke, bruisende, groene en veilige plek te maken met oog op de toekomst. De gemeente Hilversum wil met dit plan enkele nieuwe gebouwen mogelijk maken met diverse functies, waaronder een nieuwe oostelijke entree van het station. Daarnaast wordt er een ondergrondse parkeergarage mogelijk gemaakt en worden een aantal gebouwen verwijderd ten behoeve van een nieuw groen plein.
In samenspraak met de buurt is in de Gebiedsagenda 1221 (vastgesteld door de gemeenteraad op 27 januari 2021) opgenomen dat het wenselijk is om het Oosterspoorplein en omgeving te ontwikkelen tot een duidelijk hart van de buurt en aantrekkelijk entreegebied van Hilversum-Oost.
In de Structuurvisie Bruisend Hart is de ontwikkeling van het gebied verder uitgewerkt. Deze benoemt de belangrijkste opgaven voor deze locatie:
• Verbeteren sociale veiligheid
• Verbeteren verkeersveiligheid
• Vergroenen
• Voorkomen wateroverlast bij hevige neerslag
• Verbeteren verbinding met de buurt en het centrum
• Realiseren van een ‘Bruisend Hart’ voor de wijk en een levendige plek voor de stad.
Op onderstaande afbeelding is het plangebied globaal aangeduid met een rode cirkel. In figuur 1-3 is het precieze plangebied weergegeven.
Het geldend ruimtelijk kader is per 1 januari 2024 vastgelegd in het ‘Omgevingsplan gemeente Hilversum’. Dit omgevingsplan bestaat op dit moment nog uit het tijdelijk deel. Het tijdelijk deel van het omgevingsplan bestaat uit (ruimtelijke) regels uit verschillende vervallen instrumenten, zoals bestemmingsplannen en de bruidsschat (voorheen rijksregels over activiteiten).
Het Omgevingsplan wordt ter plaatse van het Oosterspoorplein en omgeving gewijzigd. Als gevolg daarvan komt een aantal ruimtelijke plannen, die zijn gelegen binnen het plangebied Bruisend Hart, geheel of gedeeltelijk te vervallen na vaststelling van het omgevingsplan. Deze plannen staan in onderstaande tabel.
Het planvoornemen past niet binnen het huidige omgevingsplan. Voor de ontwikkelingen binnen het plangebied Bruisend Hart is een nieuw juridisch planologisch kader noodzakelijk. De gemeente Hilversum kiest ervoor dit met een wijziging van het omgevingsplan te realiseren.
Op grond van artikel 20.26 lid 2 Omgevingswet worden besluiten en andere rechtsfiguren op grond van die wet die bij ministeriële regeling zijn aangeduid als omgevingsdocument, ontsloten via DSO-LV. De bedoelde ministeriële regeling is de Regeling standaarden publicaties Omgevingswet . Deze regeling wijst besluiten en andere rechtsfiguren aan als omgevingsdocument en stelt het verplicht om die omgevingsdocumenten elektronisch vorm te geven conform de Standaard voor Officiële Publicaties, het Informatie Model Omgevingswet en het voor het betreffende omgevingsdocument voorgeschreven toepassingsprofiel. De Standaard voor Officiële Publicaties (verder: STOP) beschrijft hoe officiële publicaties moeten worden opgesteld en aangeleverd om te kunnen worden bekendgemaakt of gepubliceerd en om te kunnen worden geconsolideerd. STOP gaat daarbij niet over de inhoud van officiële bekendmakingen, maar beschrijft wel de mechanismen en bouwstenen om die inhoud digitaal vast te leggen.
Per domein kan een specificatie van STOP gemaakt worden. Voor het domein van de Omgevingswet is die specificatie gegeven in het ToepassingsProfiel voor OmgevingsDocumenten (TPOD). Daarbij behoort het InformatieModel Omgevingswet (verder: IMOW). IMOW is het logische model dat is toegespitst op de keten ‘Van plan tot publicatie’. IMOW bepaalt hoe omgevingsdocumenten aan DSO-LV moeten worden aangeleverd. IMOW omvat implementatierichtlijnen en implementatie-afspraken voor de omgevingsdocumenten. IMOW is bedoeld voor bouwers van plansoftware en voor technisch ingestelde medewerkers van bevoegde gezagen en adviesbureaus.
Naast IMOW is er, als serviceproduct, het Conceptueel InformatieModel Omgevingswet (verder: CIMOW). CIMOW is het informatiemodel voor informatie-uitwisseling binnen DSO-LV. CIMOW is bedoeld voor de DSO-keten. Per omgevingsdocument is in een Toepassingsprofiel beschreven op welke wijze STOP en IMOW moeten worden toegepast. Een Toepassingsprofiel is een nadere invulling c.q. beperking van STOP en bevat domein- en omgevingsdocument-specifieke afspraken. De toepassingsprofielen geven de informatiekundige specificaties conform STOP en IMOW voor de (inhoudelijke) onderwerpen, de regels en richtlijnen die gelden voor het betreffende omgevingsdocument. Het is in feite de schakel tussen de juridisch(-inhoudelijke) bepalingen in de Omgevingswet en de technische specificaties voor het opstellen van de afzonderlijke omgevingsdocumenten en de data die daarin wordt vastgelegd en het ontwikkelen van software daarvoor. Het TPOD is primair bedoeld voor beleidsmedewerkers en juristen van de bevoegde gezagen, die de omgevingsdocumenten volgens de standaard inhoud en vorm zullen geven.
De STOP/TPOD-standaard legt vast hoe tekst moet worden ingedeeld en geannoteerd, hoe tekst aan locaties moet worden gekoppeld, welke waarde lijsten van toepassing zijn en hoe het resultaat vervolgens uitgewisseld moet worden. Het is aan de bevoegde gezagen om de inhoud te bepalen.
Het Omgevingsplan moet leiden tot een evenwichtige toedeling van functies aan locaties (ETFAL) (art. 4.2 lid 1 Ow).
Om te komen tot een evenwichtige toedeling van functies aan locaties, zijn enkele algemene doelen geformuleerd in artikel 1.3 Ow. Hierin staat dat de bepalingen in de wet gericht zijn op het volgende:
• Het bereiken en in stand houden van een veilige en gezonde fysieke leefomgeving en een goede omgevingskwaliteit, ook vanwege de intrinsieke waarde van de natuur.
• Het doelmatig beheren, gebruiken en ontwikkelen van de fysieke leefomgeving ter vervulling van maatschappelijke behoeften.
Deze doelen zijn algemeen geformuleerd. Per stad of regio moet worden beoordeeld op welke manier de doelen van de wet kunnen worden vertaald naar een concrete regeling, zo ook voor Hilversum. In de voorliggende motivering is een verantwoording gegeven, waaruit blijkt dat er met de ontwikkeling ‘Bruisend Hart’ sprake is van een ETFAL.
De motivering ‘Bruisend Hart Hilversum’ is opgebouwd uit 8 hoofdstukken. In hoofdstuk 2 wordt de bestaande situatie van het plangebied omschreven. In hoofdstuk 3 komt de beoogde ontwikkeling (toekomstig gebruik) aan bod. In hoofdstuk 4 wordt de beoogde ontwikkeling getoetst aan het (tijdelijke) omgevingsplan. Hierop volgend worden in hoofdstuk 5 de relevante beleidskaders geschetst. Hoofdstuk 6 bevat alle betreffende milieu hygiënische en planologische aspecten. In hoofdstuk 7 wordt de haalbaarheid van de gebiedsontwikkeling beschreven, bestaande uit de financiële en maatschappelijke haalbaarheid. Hoofdstuk 8.1 bevat de conclusie.
Geschiedenis tot heden
De ontwikkelingsgeschiedenis van het gebied rond het huidige Oosterspoorplein is nauw verbonden met de spoorwegen. Terugkerende thema’s zijn de barrièrewerking van het spoor en het onderscheid tussen ‘voorzijde’ en ‘achterzijde’.
Het gebied was bij de aanleg van de spoorwegen nog voor het grootste deel onbebouwd. Daardoor kreeg industrie en andere bedrijvigheid hier veel ruimte. Rondom de spoorwegovergang, de kruising van uitvalswegen en het kopstation van de Gooische Stoomtram, ontstond een levendige buurt. Hilversum groeide aan deze kant van het spoor en er ontstond een volwaardig stadsdeel.
Rond het jaar 1900 had het station aan de centrumzijde een publieksentree en was de oostzijde aanvullend op de centrumzijde. Er was een locomotiefwerkplaats en huisvesting voor spoorwegpersoneel. In de jaren 1960 werd de locomotiefwerkplaats vervangen voor een parkeerplaats en een kleine stationshal. In 2007 werd de fiets- en voetgangerstunnel onder het station geopend en werd de kleine stationshal gesloopt. Het station had toen geen voorkant meer naar de wijk 1221. Vanaf dat moment gingen de voorzieningen, winkels en horeca rond het Oosterspoorplein en de verblijfskwaliteit van het gebied langzaam achteruit. Gebouwen werden slechter onderhouden en de leegstand nam toe.
Het Bruisend Hart ligt aan het centraal station van Hilversum. Het is het stationshart van de stad waar de hele dag veel verschillende mensen naartoe komen. Er komen reizigers, bewoners en mensen die er werken. Het Bruisend Hart is goed bereikbaar, vanuit de stad en vanuit de regio. Het plangebied is een belangrijk knooppunt in de structuur van oost.
Dit hoofdstuk gaat dieper in op de planontwikkeling. In dit hoofdstuk is gebruik gemaakt van het stedenbouwkundig plan Bruisend Hart. Dit document is te vinden in bijlage 1 van voorliggende motivering. Daarnaast is gebruik gemaakt van het beeldkwaliteitsplan Bruisend Hart. Deze is te vinden via de landelijke voorziening (www.officielebekendmakingen.nl).
Het gebied wordt een fijne plek waar mensen kunnen wonen, werken, verblijven en elkaar ontmoeten. Ontmoetingsplekken in de buurt zijn belangrijk, ze dragen namelijk bij aan welzijn en welvaart. Daarvoor gelden de volgende opgaven:
• Realiseren van een ‘Bruisend Hart’ voor de wijk en een levendige plek voor de stad
• Vergroten van leefbaarheid en sociale veiligheid
• Meer ruimte maken voor groen, versterken en verbinden van groene structuren (klein en groot) en versterken van biodiversiteit
• Voorkomen van wateroverlast en hittestress (onder meer door waterberging en vergroening)
• Verbeteren van de verbinding met het centrum en andere delen van Hilversum
• Verbeteren van de verbindingen tussen buurten voor voetgangers en fietsers, en verbeteren van de verkeersveiligheid
• Verduurzaming van (gedrag in) mobiliteit en nieuwe mobiliteitsvormen.
Deze opgaven hangen nauw met elkaar samen en geven gezamenlijk invulling aan de ambitie.
De opgave en ambitie voor Bruisend Hart, de randvoorwaarden, en de wensen en ideeën die uit de participatierondes naar voren zijn gekomen, zijn samengevoegd in de structuurvisie. Daarbij horen de volgende uitgangspunten voor Bruisend Hart:
1. De centrale publieke plek is qua omvang vergelijkbaar met het huidige Oosterspoorplein. Het terrein moet vlak zijn.
2. De centrale plek krijgt een parkachtig karakter.
3. Bebouwing heeft op de begane grond een mix van functies met voorkanten gericht op de openbare ruimte.
4. Het gebied wordt duidelijk herkenbaar als stationsomgeving.
5. De bebouwing sluit qua architectonische uitstraling en hoogte aan op de omliggende buurten.
6. Fietsen en wandelen heeft prioriteit boven het gebruik van de auto. De huidige noord-zuid verbinding (Kleine Drift) dwars door het plein verdwijnt. In plaats daarvan wordt langs het plein een verbinding Larenseweg-Zuiderweg ingericht in de vorm van een auto-te-gast-verbinding.
7. Voor de bepaling van het aantal parkeerplaatsen geldt de norm in de ‘beleidsnotitie parkeernormering OV-Knooppunten’.
8. Voor de verdeling van wonen en overige functies wordt (op dit moment) een verhouding van 70/30 gehanteerd.
Op basis van de benoemde opgaven en uitgangspunten uit de structuurvisie zijn in het stedenbouwkundig plan voor het gebied vier principes vastgesteld (zie volgende paragraaf).
Het Bruisend Hart wordt een prettige en levendig gebied voor iedereen. Een plek om te wonen, te werken en te ontmoeten. Een plek die uitnodigt om naartoe te gaan voor een bezoek aan de buurtwinkel of om een drankje te drinken. Een plek die wandelend of fietsend goed bereikbaar is. Maar ook de plek om als bewoner op de trein of bus te stappen. Dit plan is gebaseerd op vier principes:
1. Een bruisende buurt
2. Een gezonde en veilige plek voor iedereen
3. Een nieuwe plek met oog voor de historie
4. Een toekomstgerichte buurt
Een bruisende buurt
Het Bruisend Hart ligt centraal in Hilversum, vlak bij het winkelgebied en horecagelegenheden. Die ligging maakt dat het een plek is waar veel Hilversummers komen. Het Bruisend Hart is een plek voor de stad én buurt. Door het realiseren van verschillende functies in het plangebied wordt het gebied bruisend op verschillende tijden van de dag.
Een bruisende buurt wordt gerealiseerd door:
• Een mix van werkruimtes, dienstverlening, buurtgerichte detailhandel en woningen
• Werkruimtes gericht op de openbare ruimte
• De stations-entree op straatniveau
• Centrale ontmoetingsplekken
Een gezonde en veilige plek voor iedereen
Het Bruisend Hart krijgt veel groen. Dit is goed verbonden met het toekomstige groene netwerk van de buurt, de ‘Groene Loper’. Deze groene inrichting van de openbare ruimte is belangrijk en leidt tot een gezondere buurt. Een groene plek om te bewegen, te spelen en elkaar te ontmoeten. De buitenlucht draagt bij aan een lagere hartslag, bloeddruk en spierspanning en heeft dus een positieve werking op de gezondheid.
De tuinen en het stationsplein zijn goed en veilig bereikbaar voor iedereen. De helling van de tunnel wordt minder steil. De openbare ruimte wordt goed toegankelijk gemaakt voor mindervaliden. De inrichting van de straten zorgt voor een veilige oversteek. Er zijn directe wandel- en fietsroutes naar het station en mensen lopen makkelijk vanuit de straten de stads- en buurttuin in. De routes vanuit de omliggende buurten en de toekomstige doorfietsroute Hilversum-Amersfoort sluiten veilig aan op de doorgaande fietsroute in het gebied. De opzet van de plannen – waarbij voetgangers en fietsers volop de ruimte krijgen – geeft de gelegenheid aan mensen om veilig en met plezier in beweging te komen.
Een gezonde en veilige plek wordt behaald met:
• Gebouwen gericht op de buitenruimte voor de sociale controle
• Groene openbare ruimte
• Ruimte om elkaar te ontmoeten
• Voetganger op 1, fietser op 2 en gericht op OV (30km/u gebied voor de auto)
Een nieuwe plek met oog voor de historie
De bijzondere ontwikkelingsgeschiedenis van het plangebied is nauw verbonden met de spoorwegen. Dit wordt leesbaar in de toekomstige inrichting. De bebouwing, routes en groenstructuur sluiten aan bij bestaande gebouwen en straten in de directe omgeving. Zo worden de historische structuren zichtbaar. De verschillende monumenten in het gebied komen goed tot hun recht en krijgen een functie als ontmoetingsplek voor de buurt of de stad. Het voormalige tramstation, de voormalige uitspanning aan de Larenseweg 2 en het pand van het huidige Café Dudok zijn gegroepeerd in het noordelijke deel van het gebied. De vernieuwde en groenere inrichting van de openbare ruimte zal deze monumenten verfraaien en ze verbinden met de nieuwe stationshal. De uitspanning en de voormalige politiepost aan de Kleine Drift krijgen een centrale ligging in en aan de nieuwe openbare Buurttuin. In het noordelijke bouwblok (Larenseweg-Swammerdamstraat) komt een verbinding tussen de centrale openbare plek, de tramremise en de Geuzenbuurt. Zo wordt het verhaal van de Gooische Stoomtram beter zichtbaar. Nieuwe gebouwen in het plangebied zijn geïnspireerd op verschillende bestaande elementen in de omgeving, zonder deze te kopiëren. Dit kan in een traditionele maar ook in een meer hedendaagse architectuur. Het motto bij de nieuwbouw is vernieuwing op basis van historisch besef en een zorgvuldige inpassing in de directe omgeving.
Een nieuwe plek met oog voor de historie wordt behaald door:
• Nieuwe structuren aan te sluiten op bestaande structuren
• Goede inpassing van monumenten
• Historie van het gebied zichtbaar maken
• Architectuur passend bij de omgeving
Een toekomstgerichte buurt
Verdichting bij een ov-knooppunt is op zichzelf toekomstgericht. Door te bouwen binnen de stad wordt de natuur en het landschap rondom de stad ontzien. Voorzieningen en woningen die bij elkaar liggen zijn goed bereikbaar te voet en met de fiets. Met de aanwezigheid van het station is het aantal (auto)verkeersbewegingen beperkt. Dit zorgt voor minder uitstoot van schadelijke stoffen. Het maakt ook dat er minder autowegen nodig zijn. Er komt meer groen en zo min mogelijk verharding. De inrichting van de buitenruimte met meer groen is beter bestand tegen klimaatveranderingen: regenwater kan de bodem indringen en groen zorgt voor koelte.
Gebouwen in het gebied voldoen aan de duurzaamheidseisen. Het is de bedoeling om in het gebied een collectief bodemenergiesysteem aan te leggen dat zowel warmte als kou levert. Er vinden op dit moment verschillende transities plaats, waaronder een mobiliteits- en energietransitie. Dat heeft gevolgen voor de leefomgeving. Het plan biedt ruimte om eventuele toekomstige veranderingen in het gebied op te kunnen vangen. Een voorbeeld hiervan is de zes meter brede zone langs het spoor, die wordt vrijgehouden voor mogelijke aanpassingen aan het station en de ruime fietsenstalling met 2.500 plaatsen. Dit is nodig voor de verwachte groei van het aantal treinreizigers. Daarbij hebben gebouwen een hoge begane grondverdieping en zijn ze eenvoudig aan te passen zodat ze in de toekomst ook geschikt zijn voor andere gebruikers.
Een toekomstgerichte buurt wordt behaald door:
• Een toekomstgericht energiesysteem met warmte- en koudeopslag in de bodem
• Ruimte voor infiltratie van regenwater en groene ruimte tegen hittestress
• Diverse beplanting en maatregelen in en aan gebouwen voor verschillende diersoorten
• Duurzame maatregelen aan gebouwen
In de structuurvisie was het uitgangspunt dat 70% van de nieuwe bebouwing de functie wonen zou krijgen en 30% andere functies. Dit is in het stedenbouwkundig plan aangepast naar een verhouding van 60% wonen en 40% andere functies (stationsvoorzieningen, kantoren, bedrijvigheid, detailhandel, dienstverlening, maatschappelijke voorziening en horeca). De reden is dat hiermee een gewenste mix van functies, voordelen voor dubbelgebruik van parkeerplaatsen en een beperkter aantal woningen aan de spoorzijde mogelijk zijn.
Wonen
Er zijn minder woningen mogelijk dan de 180 woningen die in de structuurvisie genoemd staan. Dat komt doordat er rekening gehouden moet worden met een vrije zone van zes meter langs het spoor. In het gebied worden 146 nieuwe woningen toegevoegd. In de huidige situatie zijn 39 woningen in het plangebied aanwezig. Eén hiervan, de woning boven Café Dudok, blijft behouden. De andere bestaande 38 woningen zullen verdwijnen. Per saldo worden er 108 woningen toegevoegd. In het stationsgebouw (blok A) komen naast werkruimtes en commerciële ruimtes op de verdiepingen ook woningen.
In aansluiting op de Woonvisie 2021 tot 2030 wordt minimaal 33% van alle nieuwe woningen sociale huurwoningen. Ten minste 50% van het totaal zal in het middeldure segment vallen en maximaal 17% van het totale woningaantal bestaat uit woningen in het dure segment. Meer richting de wijk is ruimte voor grotere woningen. In het Bruisend Hart komen (met uitzondering van blok B) vooral appartementen en bovenwoningen, met een gebruiksoppervlak tussen de 35 m2 en 75 m2. Daarmee komen er voor verschillende doelgroepen nieuwe woningen bij: voor een-en tweepersoonshuishoudens, en voor kleine gezinnen. Ook is er aandacht voor huisvesting van ouderen. Geclusterde woonvormen en levensloopbestendige woningen in het gebied (buiten de externe veiligheidscontour) leveren een bijdrage aan het langer zelfstandig thuis wonen, met zorg in de buurt.
Werken
Met de ligging direct aan het station en als zichtlocatie, is het Bruisend Hart een goede locatie voor inspirerende werkplekken en (creatieve) bedrijvigheid. Bruisende plekken ontstaan alleen bij een mix van functies. De wijk 1221 is van oudsher altijd een gebied geweest waar mensen wonen en werken. Ook nu nog is het Bruisend Hart de poort naar andere werklocaties in de buurt. Het Bruisend Hart concurreert niet met het centrum, doordat de ruimte voor detailhandel (ca. 900 m2) en horeca (ca. 500 m2) beperkt is, en vooral gericht op de buurt en op passanten in het gebied. Het plan besloeg in eerste instantie ongeveer 3.800 m2 bedrijfs- en kantoorruimte verdeeld over blok A en B. Naar aanleiding van zienswijzen van NS en ProRail is dit aangepast naar maximaal 6.000 m2 zodat meer flexibiliteit mogelijk is en er beter op marktomstandigheden en (geluids-)technische oplossingen gestuurd kan worden in de gebouwindelingen.
Voorzieningen
Het station is een belangrijke voorziening voor de stad en een herkenbaar gebouw in het Bruisend Hart. Samen met de fietsenstalling voor onder andere ov-reizigers zorgt het station een groot deel van de dag voor levendigheid. De stationsomgeving is dynamisch en verandert doorlopend. Daarom is er rond het station ruimte gehouden om de mogelijke toekomstige groei van het aantal reizigers en de bijbehorende voorzieningen in te kunnen passen. In de gebouwen ten noorden van de Larenseweg (blok C) komen enkele buurtwinkels en een maatschappelijke functie (ca. 700 m2) zoals mogelijk een gezondheidscentrum. In het park is de Uitspanning (blok D) een horecagelegenheid voor de buurt. Dit verbetert het voorzieningenniveau van de buurt.
Programma (per bouwblok)
Het programma van voorliggend plan bestaat uit wonen, werken en voorzieningen. Om een goed beeld te krijgen van het programma is hieronder het indicatieve toe te voegen programma (m2 bvo) weergegeven per bouwblok naast de aanwezige horecavoorziening Dudok (170 m2) en de woning daarboven die beiden behouden blijven. Naar aanleiding van zienswijzen van NS en ProRail zal het totaal van kantoor en bedrijvigheid in blok A en B dus worden aangepast naar in totaal 6000 m2.
Het programma wordt verdeeld over verschillende bouwlagen van de bouwblokken. Het Stationsgebouw heeft 7 bouwlagen (verdiepingen) en een ondergrondse laag, met ieder zijn eigen functies. In de volgende tabel staan de functies per laag weergegeven. Daarnaast laten de figuren 3-2, 3-3 en 3-4 (nog op grond van het stedenbouwkundig plan, dat inmiddels anders is vormgegeven) een weergave van het programma zien op de bouwlagen -1, 0 en 1 zien.
Het Bruisend Hart bestaat uit bouwblokken die rond een centrale openbare ruimte staan. De gebouwen vormen samenhangende wanden en richten zich tot die centrale ruimte. Op de begane grond zijn levendige functies, waardoor de gebouwen verbonden zijn met de openbare ruimte. Voor de nieuwe gebouwen is er voor gekozen om architectuur uit het interbellum te gebruiken als inspiratiebron voor vormentaal, materiaal en de kleur van de nieuwbouw. Dit kan met een traditionele en met een meer hedendaagse architectuur. Hetgeen in het Beeldkwaliteitsplan Bruisend Hart verder is uitgewerkt.
Dit beeldkwaliteitsplan komt in grote lijnen overeen met het vastgestelde stedenbouwkundig plan maar er zijn ook enkele verschillen.
Waar het stedenbouwkundig plan nog sprak over het samenkomen van verschillende stedenbouwkundige structuren, het stations-ensemble en de bebouwing van de wijk 1221. Nieuwe gebouwen bestaan niet meer uit meerdere verschillende eenheden of panden maar vormen één geheel. De wens om de verschillende gebouwen rondom de nieuwe Brink één kernidentiteit uit te laten dragen weegt zwaarder dan het verschil tussen het ‘stationsensemble’ en het ‘weefsel van de buurt’ zoals eerder in het stedenbouwkundig plan verwoord.
Om de nieuwe Brink op een duidelijke manier te omringen met gebouwen is de rooilijn iets anders dan voorgesteld in het stedenbouwkundig plan. Het zuidelijke gebouw komt naar voren richting het plein en de nieuwbouw aan de Larenseweg wordt niet meer opgebroken door een steeg of straatje, maar krijgt een poort. De rooilijn van het stationsblok is iets gewijzigd om de relatie tussen de monumenten aan de historische Kleine Drift te verbeteren. Ook gaat de inrichting van de openbare ruimte meer uit van één concept, zodat er meer rust en eenheid ontstaat in het beeld. En als laatst maakt het gebied Bruisend Hart functioneel deel uit van het stationsgebied, maar heeft nadrukkelijk wel een ander karakter dan het stationsgebied aan de centrumzijde. Het stationsgebied aan de centrumzijde heeft een meer hoogstedelijk karakter, terwijl de oostzijde veel meer aansluiting zoekt bij de tuinwijken van Hilversum-Oost.
Een stationsomgeving is bij uitstek een dynamische omgeving. Er gebeurt veel en de behoeften en omstandigheden veranderen. Dat betekent dat bij de inrichting van een stationsgebied rekening moet worden gehouden met mogelijke aanpassingen en wijzigingen. Dat gebeurt door ruimte te bieden voor flexibiliteit en toekomstige ontwikkelingen bij het station. Ook is er ruimte om uit te breiden wanneer het aantal reizigers in de toekomst groeit. De nieuwe stationshal houdt rekening met een mogelijke toekomstige verbreding van de reizigerstunnel. Onder toekomstgericht vallen ook klimaatadaptatie, natuurinclusiviteit, duurzaamheid en gezondheid. Deze aspecten worden nader toegelicht in hoofdstuk 6 van voorliggende motivering.
Het Bruisend Hart is straks goed bereikbaar. De nieuwe paden in het gebied sluiten aan op de bestaande paden- en wegenstructuur in de omgeving. Er komt een fietsenstalling die in directe verbinding staat met de stationshal. De stalling is verdeeld over de begane grond en de kelder van het stationsgebouw. Het stationsgebouw en de ingang van de fietsenstalling zijn goed herkenbaar. Er komen zowel aan de Larenseweg als de Zuiderweg Kiss & Ride-plekken. De hoofdentree van de stationshal komt centraal in het gebied te liggen. Daarnaast is er eventueel ruimte voor een tweede entree aan de zuidzijde, die voor verbinding met het zuidelijk deel van de wijk zorgt. De nieuwe stationshal komt in het verlengde van het reizigersdeel, waardoor een logische en snelle verbinding in het station ontstaat. Tot slot is er ruimte voor een commerciële voorziening en voor de beheerder van de fietsenstalling.
Gebouwen
Gebouw A en B vormen gezamenlijk de westelijke pleinwand van de nieuwe brink en huisvesten de stationshal en de fietsenstalling. Vanwege deze publieke functies hebben de gebouwen een meer monumentale uitstraling dan de nieuwbouw aan de Larenseweg (Gebouw C). Gebouw C vormt samen met gebouw A en B pleinwanden rondom de nieuwe Brink. Het programma bestaat hoofdzakelijk uit woningen, buurtwinkels en een maatschappelijke voorziening. De architectuur is geïnspireerd door de tuinwijken van Oost en is iets minder monumentaal en hoogstedelijk dan het nieuwe stationsgebouw. Beeldkwaliteitscriteria voor ge
De Uitspanning (huidig gebouw aan de Larenseweg 2) is een monument wat een belangrijke plek in de buurttuin heeft. Mogelijk krijgt dit gebouw een nieuwe uitbouw langs de Larenseweg, verwijzend naar de rij waarvan het deel uitmaakte.
Inrichting, gebruik en sfeer van openbare ruimte
In navolging van de Omgevingsvisie Hilversum 2040 is in dit gebied het zogenoemde STOMP-principe van toepassing op de inrichting van de openbare ruimte. De voetganger (Stappen) staat voorop, gevolgd door de fietser (Trappen), het Openbaar vervoer en Mobility as a service (bijvoorbeeld deelauto’s). De Privéauto vormt het sluitstuk in de inrichting. Door de openbare ruimte in te richten volgens dit principe, verbetert de verkeersveiligheid én ontstaat er meer ruimte voor bewegen, spelen en ontmoeting.
Een nieuwe Brink
Bruisend Hart maakt deel uit van het stationsgebied. Echter zal Bruisend hart anders voelen dan de centrumzijde. Het zal qua sfeer en beleving meer aansluiten bij het historische karakter van de plek en de tuinwijken van Oost. Al sinds de aanleg van het spoor en de Gooische Stoomtram is dit een levendige plek geweest waar veel looproutes en verkeersstromen bij elkaar kwamen. In het nieuwe ontwerp kijken we terug naar het verleden en halen we inspiratie uit de tijd dat boeren zich met hun vee over de Kleine Drift van Hilversum bewogen Met een nieuwe Brink komt er een ontmoetingsruimte en koele plek voor de wijk en de stad. Ook haalt Bruisend Hart inspiratie uit het straatbeeld van rond 1900, dat bepaald werd door laanbeplanting. In het interbellum en tijdens de naoorlogse periode is veel groen verdwenen, met name aan de Larenseweg. In de nieuwe situatie wordt de wijk weer groener. Zo wordt de groenopgave aan de historische identiteit van deze plek.
De nieuwe Brink is een belangrijke ontmoetingsplek voor de buurt. In het parkje ligt de Uitspanning. Deze horecafunctie zorgt voor levendigheid. Centraal in het park ligt een opvallend waterelement met ruimte om te spelen. Hieromheen ligt het terras van de Uitspanning en trapvormige plateaus waar mensen kunnen picknicken en van de zon kunnen genieten. In de tuin worden rustige plekken gemaakt waar mensen elkaar kunnen ontmoeten en kunnen zitten. Het beeld van de nieuwe Brink wordt bepaald door een afwisseling van boomgroepen, open ruimten en solitaire bomen. Hierdoor ontstaan zowel zonnige als schaduwrijke plekken.
Langs het stationsgebouw komt het stationsplein. Dit plein biedt ruimte aan de verschillende voetgangers- en fietsersstromen die hier samenkomen. Door bomen – alleen en in groepjes – te planten, strekt het schaduwrijke karakter van de tuinen zich uit tot het stationsplein. Het plein is van alle zijden goed toegankelijk voor voetgangers en fietsers en vormt een levendige plek.
Hoofdfietsroute en herkenbare toegangen
Het Bruisend Hart vormt een samenhangend gebied met een groene uitstraling. Tussen de Larenseweg-Noorderweg, de Kleine Drift en Zuiderweg komt een gebied dat als één geheel wordt ervaren. De buitenruimte bij de stationsomgeving vormt één plateau, waarop verschillende plekken, zoals de twee tuinen, met elkaar worden verbonden. De entrees van het gebied worden duidelijk vormgegeven, zodat voor mensen zichtbaar wordt dat ze een bijzondere verblijfsplek betreden. De hoogteverschillen zijn minimaal waardoor een vrijwel aaneengesloten en goed toegankelijk gebied ontstaat.
De hoofdfietsroute vormt een aantrekkelijke verbinding tussen het centrum en het oostelijk deel van Hilversum. De continuïteit van de route komt tot uiting in de vormgeving en materialisering. De route vormt een licht gebogen tracé door het gebied. Hij wordt begeleid door groenelementen die de continuïteit en beleving ervan versterken.
Door markante groene plekken te maken, worden de toegangen tot het Bruisend Hart herkenbaar. Deze plekken zijn gekoppeld aan nieuwe en bestaande winkels en ondernemingen. Bij de toegang vanaf de Larenseweg en de Eemnesserweg wordt een klein verblijfsplein ingericht. De toegangsplekken worden ingericht als ontmoetingsplekken met zitgelegenheden.
Groen en water
De boombeplanting is bepalend voor de sfeer van het Bruisend Hart. De boomgroepen bepalen de doorzichten en vormen afwisselend schaduwrijke en zonnige plekken. Hiermee worden koele plekken toegevoegd aan de buurt en wordt hittestress tegengegaan. Daarnaast is er ruimte om in de zon te zitten. De bomen leveren ook een belangrijke bijdrage aan de biodiversiteit en hebben een ecologische functie voor diverse dieren. De bomen worden zo geplaatst dat er altijd voldoende doorzichten zijn op belangrijke reisdoelen en zodat een sociaal en verkeersveilige omgeving ontstaat.
Langs de randen van het Bruisend Hart komen geveltuinen, voorstoepjes en tuinmuurtjes om de stenige wanden te verzachten. Hiermee ontstaat een groene omlijsting, die de samenhang versterkt en zorgt voor eenheid in beeld en uitstraling.
De waterbergingsopgave wordt zichtbaar gemaakt in de openbare ruimte. In de nieuwe Brink worden, in combinatie met het waterelement bij de Uitspanning, voorzieningen voor het infiltreren van regenwater aangebracht. Het kleine plein bij de toegang van het Bruisend Hart vanaf de Larenseweg, wordt vormgegeven als ‘waterplein’. De mogelijkheden voor een waterelement aan weerzijden van de fietstunnel worden in samenhang met de centrumzijde onderzocht.
Wandel- en fietsroutes (en verkeer)
De wandel- en fietsroutes sluiten aan op de bestaande wandel- en fietsroutes in de omgeving, met het station als belangrijk reisdoel. De routes zijn aangenaam en veilig in gebruik en verbinden de verschillende plekken op een logische en herkenbare manier met elkaar. Kruisingen worden eenvoudig en overzichtelijk vormgegeven. Doorgaande routes krijgen een herkenbare inrichting en vormgeving. Verblijfsplekken zijn duidelijk te onderscheiden van deze doorgaande routes. De karakteristieken van het gebied bepalen het beeld en de beleving van de verschillende routes. Zo ontstaat een herkenbare plek voor mensen die er doorheen bewegen en er verblijven.
Om sluipverkeer door het plangebied te voorkomen wordt er een knip op de Eemnesserweg, vóór de aansluiting met de Larenseweg uitgevoerd (zie ook 6.1.1). Hierdoor krijgen de wandelaar en de fietser voorrang in het plangebied. Daarnaast wordt de autoweg tussen de Larenseweg en de Zuiderweg een auto- te- gastverbinding. Dit is hieronder weergegeven, nog op basis van het stedenbouwkundig plan.
In het plangebied geldt het bestemmingsplan ‘Over t Spoor’, vastgesteld op 12 januari 2011. Er bevinden zich verschillende enkelbestemmingen in het plangebied:
• Verkeer (railverkeer)
• Horeca
• Gemengd – 1
Daarnaast ligt er een dubbelbestemming ‘Waarde – Archeologie’ over het plangebied heen en heeft het gehele plangebied de functieaanduiding ‘archeologische waarden’. Ook geldt er de functieaanduiding ‘detailhandel’ op bijna alle bebouwing in de huidige situatie en is er binnen Gemengd-1 ook de functieaanduiding ‘horeca’ opgenomen.
Daarnaast is er een voorbereidingsbesluit van kracht om te voorkomen dat de gronden op basis van het geldend bestemmingsplan ‘Over ’t Spoor’ worden ontwikkeld en gelden de bestemmingsplannen Chw paraplubestemmingsplan Woningsplitsing en verkamering en Flitsbezorging met darkstores zoals opgenomen in paragraaf 1.3. Het Chw paraplubestemmingsplan Woningsplitsing en verkamering geeft voor heel Hilversum een regeling voor het gebruik en verbouwen van gebouwen voor meervoudige bewoning. Het bestemmingsplan Flitsbezorging met darkstores geeft een regeling voor het nader reguleren van vestigingslocaties van darkstores met flitsbezorging en het stellen van voorwaarden voor vestiging van darkstores met flitsbezorging met het oog op het borgen van behoud van een aangenaam woon- en leefklimaat en vestigingsklimaat.
Rondom het plangebied geldt het ‘Chw- bestemmingplan 1221’. Dit bestemmingsplan is vastgesteld op 11 mei 2023.
In de nabije omgeving zijn verschillende bestaande gebruiksactiviteiten van kracht:
• Wonen
• Gemengde activiteiten
• Exploiteren van bedrijf t/m categorie 2
• Railverkeer
De strijdigheden van de beoogde ontwikkeling worden hieronder weergegeven voor gebruik en bouw.
Gebruik
Bouw
De nieuwbouw wordt veelal gerealiseerd op plekken waar bebouwing niet is toegestaan. Bouwblok A (het stationsgebouw) en bouwblok B (aan de Zuiderweg) worden gerealiseerd op een verkeersbestemming. Hierin zijn de beoogde gebouwen niet toegestaan. Daarnaast zijn de bouwhoogtes door vrijwel het hele plangebied niet toegestaan volgens het tijdelijke omgevingsplan. In figuur 4-2 zijn de beoogde bouwhoogtes te zien van de ontwikkeling. Bouwblok C (Larenseweg) wordt gerealiseerd op een plek waar nu al bebouwing staat. Het bouwvlak wordt verschoven ten opzichte van de huidige situatie. Bouwblok D (in het park) wordt behouden en met een bouwvlak wordt vergroten mogelijk gemaakt.

Op 1 januari 2024 is de Omgevingswet in werking getreden. Deze nieuwe wet bundelt en vereenvoudigt de regels voor alles wat buiten te zien, te horen en te ruiken is. De wet geldt voor alle Nederlandse inwoners, organisaties en bedrijven. Om ervoor te zorgen dat de leefomgeving een gezonde, veilige en prettig leefbare plek is, zijn in Nederland regels gemaakt. Zowel voor inwoners als bedrijven. Die regels gaan onder andere over hoe we omgaan met natuur, milieu, bouwen en wonen.
Tot 1 januari 2024 golden in de gemeente meerdere bestemmingsplannen waarmee ontwikkelingen mogelijk werden gemaakt. Vanaf 1 januari 2024 heeft de gemeente één omgevingsplan. Dit omgevingsplan bestaat onder andere uit alle voor 1 januari 2024 geldende bestemmingsplannen. Elke gemeente heeft nu dus maar één omgevingsplan voor het gehele grondgebied. De bestemmingsplannen moeten op termijn worden omgezet naar het nieuw deel van het omgevingsplan.
Het omgevingsplan stelt regels over de fysieke leefomgeving. In het omgevingsplan stelt zij welke activiteiten wel of niet worden toegestaan en welke regels gelden voor de activiteiten. Het omgevingsplan van de gemeente is digitaal raadpleegbaar via het Omgevingsloket.
Na de inwerkingtreding van de Omgevingswet vervallen een aantal regels op rijksniveau. Deze regels worden overgeheveld naar het tijdelijk deel van het omgevingsplan. Deze zogeheten bruidsschat is opgenomen in hoofdstuk 22 van het omgevingsplan. Gemeenten kunnen deze regels (gewijzigd) overnemen in het nieuw deel van het omgevingsplan.
Het omgevingsplan kan gewijzigd worden. Vanaf de inwerkingtreding van de Omgevingswet dient een wijziging van het omgevingsplan te voldoen aan de eisen van de Omgevingswet en deze dient te worden gedaan via STOP-TPOD. STOP-TPOD is de afkorting van de Standaard voor officiële publicaties (STOP) en Toepassingsprofielen omgevingsdocumenten (TPOD).
Deze wijziging van het omgevingsplan voldoet aan deze technische vereisten.
Op dit moment heeft de gemeente de beschikking over een (tijdelijk deel van het) omgevingsplan in STOP-TPOD, waar in hoofdstuk 22 de bruidsschat is opgenomen. In hoofdstuk 1 staan de voor hoofdstuk 22 noodzakelijke begripsbepalingen. Alle overige hoofdstukken van het omgevingsplan zijn nog leeg.
Voor ontwikkel- of transformatiegebieden waarvoor het omgevingsplan gewijzigd moet worden heeft de gemeente bepaald dat deze regels in hoofdstuk 6 worden opgenomen. Elk gebied/ontwikkeling krijgt een aparte titel. Dit hoofdstuk bevat in titel 6.1 algemene bepalingen die van toepassing zijn op elke volgende titel. Alle regels voor het gebied Bruisend Hart staan in titel 6.2. Een titel bestaat uit afdelingen en afdelingen kunnen bestaan uit paragrafen en subparagrafen.
Gekozen is om de regels voor verschillende activiteiten (bijvoorbeeld bouwen en gebruik) in aparte afdelingen te plaatsen. Daarnaast is er nog een afdeling voor algemene en activiteitoverstijgende regels en regels voor beperkingengebieden. Alle kostenverhaalsregels zijn ook overzichtelijk in één afdeling geplaatst. De indeling van titel 6.2 Bruisend Hart is als volgt:
• Afdeling 6.2.1 Algemene bepalingen en activiteitoverstijgende regels
• Afdeling 6.2.2 Thematische activiteiten (Bouwen)
• Afdeling 6.2.3 Gebiedsgerichte activiteiten met gebruiksruimte (Gebruiksactiviteiten)
• Afdeling 6.2.4 Beperkingengebieden en beschermingsgebieden
• Afdeling 6.2.5 Financiële bepalingen
In de volgende paragrafen volgt na een toelichting op titel 6.1 ook een korte toelichting per afdeling binnen titel 6.2. Bruisend Hart.
Deze afdeling bevat algemene bepalingen die van toepassing zijn op alle regels binnen hoofdstuk 6. In deze afdeling is het oogmerk opgenomen (waarom zijn er regels in hoofdstuk 6 opgenomen), welke begripsbepalingen van toepassing zijn en de wijze van meten.
In deze afdeling zijn algemene regels opgenomen en regels die niet direct aan bouwen of gebruiken zijn gerelateerd, danwel voor beide activiteiten van toepassing zijn.
Algemene bepalingen
In de algemene regels is opgenomen dat deze titel 6.2 alleen regels bevat die gelden binnen het werkingsgebied Bruisend Hart. Daarnaast is de relatie met de bruidsschat opgenomen. De bruidsschat is in beginsel ook van toepassing binnen Bruisend Hart, tenzij die regels in strijd zijn met de regels zoals bepaald in deze titel. Artikel 22.27 en artikel 22.36 (vergunningvrij bouwen in de bruidsschat) zijn in ieder geval niet van toepassing. Binnen Bruisend Hart is bepaald dat er voor het bouwen van gebouwen geen vergunningvrije mogelijkheden zijn. Voor zover er in de genoemde artikelen van de bruidsschat gewenste vergunningvrije bouwmogelijkheden waren voor bouwwerken geen gebouwen zijnde, zijn die overgenomen in deze titel.
Parkeren en laden en lossen
Daarnaast is de algemene parkeerregeling opgenomen. Bij het bouwen of het wijzigen van gebruik, waarvoor een vergunning is vereist dient voldaan te worden aan de beleidsregels parkeren. Ook voor laden en lossen is een algemene regeling opgenomen.
Gesloten bodemenergiesysteem aanleggen of gebruiken
Voor het aanleggen of gebruiken van een gesloten bodemenergiesysteem is een regeling opgenomen. Binnen het interferentiegebied Bruisend Hart is het niet toegestaan om een gesloten bodemenergiesysteem zonder omgevingsvergunning aan te leggen of te gebruiken. Hiervoor zijn aparte aanvraagvereisten opgenomen. Het interferentiegebied is van toepassing op de regeling voor een gesloten bodemenergiesysteem, zoals opgenomen in 22.260 lid 1 onder a van het omgevingsplan.
Doelgroepen
De huidige doelgroepenverordening is samen met de Wet betaalbare huur en artikel 5.161c van het Besluit kwaliteit leefomgeving vertaald in deze titel en bedoeld om te komen tot een goede benutting van de woningvoorraad. Deze regeling waarborgt dat de betreffende woningbouwcategorie een bepaalde periode blijft behouden voor de specifieke doelgroep. Elders in de regels wordt naar deze categorieën verwezen met een opgave naar rato van het totaal aantal woningen.
Deze afdeling bevat de bouwregels die gelden binnen Bruisend Hart.
Algemene bepalingen
In de algemene bepalingen Is het oogmerk van deze afdeling bepaald. Er geldt een afwijkend begrip voor ‘peil’ ten opzichte van de begripsbepalingen en de wijze van meten die algemeen binnen hoofdstuk 6 van toepassing zijn. Ook het overgangsrecht voor bouwwerken is van toepassing binnen Bruisend Hart.
Ondergronds gebouw bouwen ten behoeve van fietsverbinding
Binnen Bruisend Hart is het toegestaan om een fietsverbinding onder het spoor door te bouwen, van maximaal één ondergrondse bouwlaag.
Gebouw bouwen binnen het bebouwingsgebied Bruisend Hart
Er is niet expliciet een onderscheid gemaakt tussen regels voor hoofdgebouwen en bijbehorende bouwwerken. Alle (type) gebouwen zijn vergunningplichtig. Voor twee typen gebouwen gelden geheel eigen beoordelingsregels, namelijk voor de ‘verbinding’ en voor de ‘parkeergarage’. Deze typen gebouwen mogen enkel op een daarvoor aangewezen locatie worden gerealiseerd. Alle andere gebouwen moeten aan de beoordelingsregels voor ‘overige gebouwen’ voldoen. Onder ‘overige gebouwen’ valt ook een gewenste aanbouw aan het monumentale pand.
Voor de bouw van woningen is aanvullend bepaald dat alleen gestapelde woningen en soms binnen bepaalde bouwlagen zijn toegestaan met een maximum bvo.
Ten behoeve van het bouwen van geluidgevoelige gebouwen zijn ook aanvullende beoordelingsregels opgenomen om zo een goed woon- en leefklimaat te kunnen garanderen.
Indien er geluidgevoelige gebouwen worden gebouwd gelden er ook aanvullende beoordelingsregels. Het uitgangspunt is dat de standaardwaarde uit artikel 5.78t van het Bkl niet wordt overschreden. Echter een overschrijding tot aan de grenswaarde is onder de gestelde voorwaarden ook toegestaan. Het beoordelingskader is in de planregels opgenomen.
Aanvullend op de beoordelingsregels geldt ook dat de ‘Leidraad Natuurinclusief Bouwen Hilversum 2021’ van toepassing is. Bij de ontwikkelingen met een omvang vanaf 30 m³ is natuurinclusief bouwen als randvoorwaarde opgenomen. De sturing van natuurinclusief bouwen vindt plaats door deze regels waarin de verplichting is opgenomen tot het realiseren van voldoende maatregelen in het kader van natuurinclusief bouwen. Bij het stellen van de randvoorwaarden wordt gebruik gemaakt van de beleidsregel 'Leidraad natuurinclusief bouwen' of de opvolger van deze leidraad.
Voor ontwikkelingen met een omvang vanaf 1.500m³ kan door middel van een 'Realisatieplan natuurinclusief bouwen en inrichten' worden voldaan aan de verplichting. Uit het realisatieplan, dat bij de aanvraag van de omgevingsvergunning voor het bouwen moet worden ingediend, moet blijken welke maatregelen in het kader van het natuurinclusief bouwen en inrichten worden genomen, hoe wordt geborgd dat deze maatregelen uiterlijk binnen 2 jaar na de start van de bouw zijn gerealiseerd en hoe deze maatregelen duurzaam, ten minste 30 jaar, in stand worden gehouden en beheerd.
Voor de uitleg wanneer sprake is van voldoende maatregelen is gebruik gemaakt van bovengenoemde beleidsregel.
Voor Bruisend Hart is een beeldkwaliteitsplan opgesteld. Bij het bouwen dient er worden voldaan aan de eisen uit dat beeldkwaliteitsplan.
Tot slot zijn er aanvullende beoordelingsregels opgenomen voor de hemelwaterinfiltratie.
Omdat de locaties rigide bouwgrenzen kennen, is een afwijkende beoordelingsregel opgenomen om deze grenzen te overschrijden met balkons of daarmee gelijk te stellen delen. Daarmee wordt bewerkstelligd dat het hoofdvolume van een gebouw altijd binnen de aangegeven grenzen wordt gerealiseerd, maar dat balkons wel deze grenzen (onder voorwaarden) mogen overschrijden.
Tot slot is de mogelijkheid opgenomen om vergunningvoorschriften op te nemen indien die noodzakelijk zijn in verband met de werkelijke toestand van het terrein of uit het oogpunt van een doelmatig gebruik. Wel mogen aangrenzende gronden niet onevenredig in het gebruik worden beperkt en het straat- en bebouwingsbeeld en de verkeersveiligheid niet onevenredig worden geschaad. Door vergunningvoorschriften op te nemen kan er afgeweken worden van de beoordelingsregels, zoals opgenomen in deze afdeling.
Gebouw bouwen binnen bebouwingsgebied bestaand Bruisend Hart
Binnen dit bebouwingsgebied zijn de afmetingen van het bestaande hoofdgebouwen de minimale en maximale afmetingen. Ook binnen dit gebied geldt dat er voldaan moet worden aan de eisen van ruimtelijke kwaliteit, zoals vastgelegd in het beeldkwaliteitsplan Bruisend Hart.
Gebouwen bouwen in de openbare ruimte Bruisend Hart
In de openbare ruimte zijn enkel gebouwen als nutsvoorziening, ten behoeve van de waterhuishouding of ten behoeve van verkeer toegestaan. Deze gebouwen zijn onder voorwaarden vergunningvrij. Alle overige gebouwen zijn vergunningplichtig.
Bouwwerken geen gebouwen zijnde bouwen
Voor het bouwen van geen gebouwen zijnde is geen onderscheid gemaakt tussen bouwen in de openbare ruimte of bouwen op privaat terrein. Erfafscheidingen zijn onder voorwaarden vergunningvrij. Dat geldt ook voor enkele andere specifieke bouwwerken geen gebouwen zijnde. Hierbij is aangesloten bij het bepaalde in artikel 22.27.
Alle bouwwerken geen gebouwen zijnde die niet voldoen aan de algemene regels zijn vergunningplichtig.
Deze afdeling bevat de regels voor de verschillende toegestane gebruiksactiviteiten binnen Bruisend Hart.
Algemene bepalingen
Deze bepalingen zijn op alle gebruiksactiviteiten van toepassing. Een activiteit mag alleen worden verricht op een locatie als die activiteit is toegestaan op basis van de regels in deze afdeling.
Daarnaast is het overgangsrecht voor gebruik opgenomen.
Darkstores zijn verboden binnen Bruisend Hart.
Bedrijfsactiviteiten, detailhandelsactiviteiten, dienstverleningsactiviteiten, horeca-activiteiten, kantooractiviteiten, maatschappelijke activiteiten
De regels zijn opgebouwd per specifieke gebruiksactiviteit. Elke specifieke gebruiksactiviteit wordt in een aparte paragraaf geregeld en kent een eigen regelset. Alle genoemde activiteiten zijn onder de gestelde voorwaarden zonder omgevingsvergunning toegestaan.
Gebruiksactiviteiten in de openbare ruimte Bruisend Hart
Omdat er meerdere activiteiten in de openbare ruimte zijn toegestaan, is er een aparte regelset voor gebruik in de openbare ruimte opgenomen. Groen, water en verkeersvoorzieningen zijn zonder omgevingsvergunning toegestaan. Binnen de openbare ruimte is het gebruik van de gronden voor stationsvoorzieningen zoals kaartverkoop, informatievoorzieningen en reizigersvoorzieningen ook toegestaan.
Wel is er een gebodsbepaling opgenomen. Binnen Bruisend Hart dient minimaal 3.000 m² aan openbare groenvoorzieningen, waarvan minimaal 1.400 m² aaneengesloten, te worden gerealiseerd.
Gebruiksactiviteiten in het stationsgebied Bruisend Hart
Gebruiksactiviteiten in het stationsgebouw Blok A
Omdat in het stationsgebouw meerdere gebruiksactiviteiten zijn toegestaan, is er een aparte regelset voor het gebruik in het stationsgebouw opgenomen. Bijbehorende voorzieningen, zoals een fietsenstalling, ondersteunende horeca en detailhandel zijn toegestaan tot een maximum van 2.900 m² bvo. Het stationsgebouw met bijbehorende voorzieningen mag alleen op de begane grondlaag en ondergrondse bouwlaag/lagen plaatsvinden.
Gebruiksactiviteiten in de spoorreserveringszone Bruisend Hart
Tussen het spoor en de bebouwingsgebieden is een zone opgenomen waarbinnen het gebruik ten behoeve van railverkeer en bijbehorende voorzieningen zijn toegestaan. Binnen deze zone is het, conform de bouwregels ook toegestaan om een verbinding te bouwen.
Ondergeschikte gebruiksactiviteiten
Naast een hoofdactiviteit zijn onder voorwaarden ondergeschikte activiteiten in de vorm van horeca, detailhandel of kantoor toegestaan. Dit geldt overigens niet in de openbare ruimte, in het stationsgebouw en bij de gebruiksactiviteit wonen. De hoofdactiviteit moet altijd als hoofdactiviteit herkenbaar blijven en de ondergeschikte activiteit moet wel samenhangen mét die hoofdactiviteit.
Wonen
Binnen deze paragraaf zijn alle regels met betrekking tot wonen opgenomen. Er is een beroep of bedrijf aan huis-regeling opgenomen, en een regeling voor inwoning, woningsplitsing, woningsamenvoeging en verkamering.
Algemene bepalingen
In de algemene bepalingen is het oogmerk van deze afdeling benoemd.
Archeologische waarden 1 (Oude Dorpskern – Hoog)
Alle regels voor verschillende activiteiten binnen dit beperkingsgebied zijn bij elkaar gezet. Het betreft zowel het bouwen als het uitvoeren van bepaalde werkzaamheden. Indien het plangebied groter is dan 25 m² en er dieper dan 30 cm geroerd wordt geldt in principe een vergunningplicht. Bij de aanvraag dient een inventariserend en nader aanvullend onderzoek te worden overlegd die aantoont dat ofwel er geen archeologische waarden aanwezig zijn, de archeologische waarden niet worden geschaad, dan wel dat de archeologische waarden kunnen worden behouden. Het bevoegd gezag kan ook ter bescherming van archeologische waarden voorschriften verbinden aan de omgevingsvergunning. Voorafgaand aan de verlening van de vergunning wordt advies gevraagd aan een deskundige inzake archeologie.
Vervoer gevaarlijke stoffen
Binnen een zone rond het spoor waarover gevaarlijke stoffen worden vervoerd is niet toegestaan om zonder omgevingsvergunning zeer kwetsbare of kwetsbare gebouwen te bouwen of bestaande gebouwen als zodanig te gebruiken. Bij de aanvraag dient een rapport te worden bijgevoegd van een (externe veiligheids-)deskundige waaruit blijkt dat de veiligheid van personen en goederen in voldoende mate (al dan niet door het treffen van veiligheidsmaatregelen) is geborgd. Het bevoegd gezag kan omwille van het waarborgen van die veiligheid voorschriften verbinden aan de omgevingsvergunning.
Trillinggevoelig gebouw toevoegen
Binnen de locatie ‘trillingen’ is het bouwen van een trillinggevoelig gebouw aan regels verbonden. Er zijn beoordelingsregels opgenomen in deze paragraaf. Deze beoordelingsregels werken aanvullend op de beoordelingsregels in paragraaf 6.2.2. indien er sprake is van het bouwen van een trillinggevoelig gebouw. Indien er geen sprake is van het bouwen van een trillinggevoelig gebouw, maar alleen sprake van het toevoegen van een trillinggevoelig gebouw (gebruik), geldt ook de vergunningplicht de bijbehorende beoordelingsregels.
Algemene kostenverhaalregels
Kostenverhaalsgebied
Voor de ontwikkeling van het Bruisend Hart is in het omgevingsplan het kostenverhaalsgebied opgenomen. Dit kostenverhaalgebied bevindt zich in het werkingsgebied Bruisend Hart. De kostenverhaalsregels voor dit gebied zijn opgenomen in afdeling 6.2.5 van de regels.
Het kostenverhaalsgebied volgt de afbakening van het gebied van deze locatie waarvoor het omgevingsplan wordt gewijzigd.
Specifieke aanvraagvereisten kostenverhaalbeschikking
Degene die wil (ver)bouwen op een plek die in de kostenverhaalsregel van het betreffende kostenverhaalsgebied is aangewezen als een kostenverhaalsplichtige activiteit, dient voordat hij start met de uitvoering de kostenverhaalsbijdrage (anders gezegd: de verschuldigde geldsom) betaald te hebben aan de gemeente. Daartoe moet hij, volgens artikel 13.18 lid 1 Omgevingswet, een kostenverhaalsbeschikking aanvragen, als hij geen kostenverhaalsovereenkomst met de gemeente heeft.
Om die beschikkingsaanvraag te kunnen behandelen heeft de gemeente tenminste de gegevens nodig die genoemd zijn in dit artikel:
Ad a: een lijst met soort en aantal van de kostenverhaalsplichtige activiteiten is nodig opdat de gemeente kan bijhouden hoeveel van de aantallen er benut zijn die het omgevingsplan mogelijk maakt. Dit is voor de gemeente nodig om te kunnen nagaan of de kostenverhaalsregel voor het betreffende kostenverhaalsgebied nog actueel is. Nu de gemeente voor het betreffende kostenverhaalsgebied ervoor kiest om een bedrag per activiteit in rekening te brengen zijn deze gegevens ook nodig om de kostenverhaalsbijdrage voor de beschikkingslocatie te kunnen berekenen.
Ad b: de gemeente moet weten welke locatie het betreft. Nu de gemeente voor het betreffende kostenverhaalsgebied ervoor kiest om een bedrag per activiteit in rekening te brengen zijn deze gegevens nodig om de kostenverhaalsbijdrage voor de beschikkingslocatie te kunnen berekenen.
Ad c: op grond van artikel 13.18 lid 2 sub b Omgevingswet berekent de gemeente een bruto-kostenverhaalsbijdrage. Op het bedrag daarvan worden de kosten in mindering gebracht die de aanvrager van de kostenverhaalsbeschikking heeft gemaakt. Het gaat om de kosten die zijn gemaakt tot het moment van de aanvraag van de beschikking. En het kan alleen gaan om kosten voor werkzaamheden die de aanvrager zelf heeft verricht in aansluiting met de werken, werkzaamheden en maatregelen die in de kostenverhaalsregel van het betreffende kostenverhaalsgebied zijn opgenomen voor de raming van de kosten. Het bedrag dat in mindering wordt gebracht kan niet hoger zijn dan de bedoelde raming ervan. Om te bepalen of dat het geval is, en om te bepalen of er niet teveel kosten in mindering worden gebracht, dient de aanvrager de facturen ervan te overleggen bij de aanvraag.
Aanspraak op vergoeding kosten inrichting openbare ruimte
Zoals uit de toelichting op het artikel blijkt, worden kosten, die een aanvrager zelf heeft gemaakt voor de voorziene werken, werkzaamheden en maatregelen, afgetrokken van de bruto-kostenverhaalsbijdrage. Veelal zullen dat kosten zijn die gemaakt zijn om de uitgeefbare gebieden, anders gezegd de kavel(s) waarvoor de kostenverhaalsbeschikking wordt aangevraagd bouwrijp te maken. Het is ook mogelijk dat een aanvrager daarnaast kosten maakt voor de inrichting van (delen van) de openbare ruimte. De praktijk laat zien dat het inrichten van de openbare ruimte meestal plaatsvindt nadat de kavels bouwrijp zijn gemaakt en bebouwd worden. Op dat moment bestaat er geen recht meer op aftrek van de bruto-kostenverhaalsbijdrage. Want die beschikking is dan al verleend. De kosten van de inrichting van de openbare ruimte zijn echter wel geraamd in de kostenverhaalsregel en daarmee verdisconteerd in de kostenverhaalsbijdrage. Als er geen mogelijkheid van vergoeding zou worden geboden, zou de aanvrager dergelijke inrichtingskosten tweemaal betalen, eenmaal via de kostenverhaalsbijdrage en eenmaal als opdrachtgever. Dat is niet de bedoeling. Daarom is in dit artikel een regeling opgenomen voor vergoeding van die kosten.
De vergoeding hoeft overigens niet beperkt te zijn tot kosten van inrichting van de openbare ruimte. Het kan ook gaan om kosten die de aanvrager maakt op de kavel(s) waarvoor hij een kostenverhaalsbeschikking maakt. De situatie kan zich immers voordoen dat hij vroeg wil beschikken over zo’n beschikking en zijn uitgeefbare gronden nog niet bouwrijp heeft gemaakt. Dan kan hij aanspraak maken op de vergoeding daarvan. De kosten ervan zijn immers mee betrokken in de raming ervan in de kostenverhaalsregel.
Methode raming inbrengwaarden
Artikel 15.5 van het Omgevingsbesluit geeft aan dat de inbrengwaarde in het geval van kostenverhaal kan zijn gebaseerd op een taxatie of op de WOZ-waarde. In lijn met het Programma Kostenverhaal en Financiële bijdrage van de gemeente Hilversum is uitgegaan van de WOZ-methodiek. Deze keuze is gemaakt om dure en tijdrovende taxaties te voorkomen en daarnaast geven de WOZ-waarden een meer accuraat beeld van de waarde die gebaseerd zijn op onteigeningsprincipes.
Behandeltermijn en tijdstip indiening verzoek om eindafrekening
De betekenis van dit artikel is dat, als de gemeente verzoeken om een tussentijdse eindafrekening verspreid over een kalenderjaar ontvangt, zij niet steeds per verzoek de herberekeningen hoeft te maken. De gemeente bundelt deze verzoeken en behandelt ze op één gezamenlijk moment in het jaar. Om dat goed te kunnen doen is vereist dat de verzoeken binnen 8 weken voor dat behandelmoment zijn ingediend. Worden ze later ingediend dan schuift de behandeling ervan dus door naar het volgende jaar.
Eindafrekening
In sublid 1 van het artikel over de eindafrekening wordt de termijn bepaald waarop de gemeente de eindafrekening vaststelt. Dit betreft een andere kwestie dan de behandeling van verzoeken om tussentijdse afrekening. In het artikel over de eindafrekening gaat het om een ambtshalve eindafrekening, dus niet op een (tussentijds) verzoek van de houders van kostenverhaalsbeschikkingen. Omdat zij reeds een eindafrekenbesluit (op hun verzoek) hebben gekregen, wordt voor hen niet opnieuw een eindafrekenbesluit in het kader van artikel over eindafrekening genomen.
Het opstellen van een eindafrekening is bedoeld om vast te stellen of de ontvanger van een kostenverhaalsbeschikking niet teveel heeft betaald. Hij betaalt in een stadium dat niet alle werken, werkzaamheden en maatregelen zijn uitgevoerd en de kosten dus nog een raming betreffen. Als de werken, werkzaamheden en maatregelen zijn uitgevoerd kan zich de situatie voordoen dat sommige ervan goedkoper blijken te zijn uitgevallen en andere duurder. De Omgevingswet bepaalt dat, als het saldo van de totale werkelijk kosten lager is, de ontvanger van de kostenverhaalsbeschikking recht op terugbetaling als het herberekende bedrag meer dan 5% lager blijkt te zijn dan het betaalde bedrag. Hij krijgt dan het meerdere boven die 5%-meevaller terugbetaald met rente. De gemeente werkt daarvoor met de rekenrente die zij voor de eigen grondexploitaties hanteert in 2024. Met andere woorden: als er in totaalopzicht een meevaller is komt die met een marge van 5% ten gunste van de gemeente. Blijken de werkelijke kosten hoger te zijn dan hoeft, ook volgens de Omgevingswet, de houder van de kostenverhaalsbeschikking geen bedrag bij te betalen.
Om een herberekening te kunnen maken vanuit de werkelijke kosten kiest de gemeente ervoor om de eindafrekening op te stellen als alle werken, werkzaamheden en maatregelen zijn voltooid. Vervolgens is rekening gehouden met een bepaalde periode voor ontvangst en verzameling van de facturen.
De situatie kan zich voordoen dat weliswaar alle werken, werkzaamheden en maatregelen zijn voltooid, maar dat nog niet voor alle bouwactiviteiten kostenverhaalsbeschikkingen zijn aangevraagd. Dan doet zich de vraag voor hoe kan worden omgegaan met een eindafrekening voor degenen die na het moment van eindafrekening een kostenverhaalsbeschikking vragen. Omdat de gemeente er met sublid 1 van dit artikel van uit gaat dat deze eindafrekening plaatsvindt als alle voorziene werken, werkzaamheden en maatregelen voltooid zijn, worden de werkelijke kosten dan geacht bekend te zijn. Dat betekent dat er geen verschil meer kan zijn tussen geraamde en werkelijke kosten. De kostenverhaalsbeschikkingen van degenen die deze aanvragen na de eindafrekening gaan per definitie uit van de werkelijke kosten. Omdat er geen verschil kan zijn, kan een recht op terugbetaling ook niet aan de orde zijn. Om die reden is in het artikel over eindafrekening in lid 2 op voorhand duidelijk gemaakt dat er geen sprake kan zijn van zo’n terugbetaling.
Aanvraagvereisten verzoek om eindafrekening
Om het verzoek te kunnen behandelen heeft de gemeente de in dit artikel genoemde gegevens en bescheiden
nodig.
Tijdvak voor het kostenverhaal
Voor het kostenverhaalsgebied gaat de gemeente, ten tijde van het eerste besluit tot vaststelling van de kostenverhaalsregel in het omgevingsplan voor het kostenverhaalsgebied uit van een periode van elf jaren tot afronding. De gemeente is reeds enige tijd bezig geweest met de voorbereiding van deze bouwontwikkeling. Deze jaren zijn niet meegerekend bij de vaststelling van het tijdvak van de ontwikkeling. Gerekend is met een peildatum die is vastgesteld op 1 januari van het jaar waarin het besluit is genomen tot wijziging van het omgevingsplan met het oog op dit kostenverhaalsgebied. Daarmee wordt gedoeld op het eerste besluit tot wijziging van het omgevingsplan waardoor een kostenverhaalsregel voor dit kostenverhaalsgebied in het omgevingsplan is opgenomen.
Voor de looptijd en de fasering is gerekend met het volgende:
• Prijspeil 1‑1‑2024, waarbij 2024 een voorbereidingsjaar is;
• Bovenwijkse voorzieningen in 2025;
• Inbreng van gronden in 2026;
• Sloop in 2027 en sanering in 2028;
• Overig bouwrijp maken in 2029;
• Inrichten (tijdelijk) park in 2029 en 2030;
• Woonrijp maken & uitgifte 2030 tot 2035.
Met de aanduiding ‘eerste besluit’ wordt gedoeld op de mogelijkheid dat de gemeente de kostenverhaalsregel kan herzien door een besluit tot wijziging van het omgevingsplan op dit punt. Grondexploitatie is een dynamisch geheel. De raming van kosten kan veranderen (bijvoorbeeld door stijging of daling van arbeidsloon of prijzen van grondstoffen). Ook de periode kan veranderen. Veranderingen in de markt kunnen ertoe leiden dat de ontwikkeling sneller of juist langzamer verloopt. Het is daarom denkbaar dat het tijdvak onderhevig is aan aanpassing. Om een meetmoment te hebben moet duidelijk zijn wanneer de gemeente voor het eerst heeft besloten voor dit gebied een kostenverhaalsregel in het omgevingsplan op te nemen. Het werken met een prijspeildatum werkt door in de hoogte van de kostenverhaalbijdrage. De reden daarvan is dat de kosten en opbrengsten in de tijd worden uitgezet en er over die tijd rekening wordt gehouden met rente (over kosten en opbrengsten die al gerealiseerd zijn) en indexeringen (over kosten en opbrengsten waarvan de realisering nog verwacht wordt). Door de prijspeildatum te koppelen aan het jaar waarin dat eerste besluit wordt genomen ontstaat er een meetmoment dat doorwerkt in de eindafrekening.
Opbrengsten
De opbrengsten voor woningen, commerciële functies, maatschappelijke functies en parkeerfuncties zijn geraamd op de bedragen van onderstaande tabel:
Per eigendom zijn de opbrengsten verdeeld conform de hierna opgenomen tabel:
Deze prijzen zijn ontleend aan de kostenraming van de gemeente Hilversum.
Inbrengwaarde van gronden en te slopen opstallen
In de begripsbepalingen is het begrip inbrengwaarde gedefinieerd. In artikel 8.17 Omgevingsbesluit is opgenomen dat gemeenten nog steeds de onteigeningsprincipes mogen hanteren om de inbrengwaarde te berekenen (middels taxaties), maar dat gemeenten ook de WOZ-waarde mogen hanteren in het publiekrechtelijk kostenverhaal. Voor dit kostenverhaalsgebied is de inbrengwaarde van grond gebaseerd op de WOZ-waarde.
In artikel 8.17 Omgevingsbesluit worden onder inbrengwaarden verstaan de onderdelen B1 tot en met B4. Deze zijn in dit artikel kort aangeduid met de termen:
a. Waarde van gronden en te slopen opstallen;
b. Kosten vrijmaken van rechten, etc.;
c. Kosten van sloop en verwijdering/verplaatsing opstallen, obstakels;
d. Saneringskosten en kosten van grondwerk.
Onderdeel d als bedoeld in de definitie van inbrengwaarden, is verdisconteerd in de raming zoals opgenomen in het artikel en is daarom niet in de navolgende tabel opgenomen.
Overige kosten inclusief bovenwijkse kosten
De volgende tabel geeft het overzicht van alle geraamde kosten.
In de tabel worden de diverse werken, werkzaamheden en maatregelen grotendeels toegerekend aan het kostenverhaalsgebied. Enkel twee kostenposten die vallen onder Woonrijp maken worden voor 50% toegerekend aan het kostenverhaalsgebied. De overige werken, werkzaamheden en maatregelen worden alleen ten behoeve van het kostenverhaalsgebied verricht en leveren geen profijt op voor andere gebieden. Dat is anders voor het onderdeel bovenwijkse voorzieningen. Deze voorzieningen hebben een bovenwijks karakter; ze hebben een breder profijt dan alleen voor de gronden in het kostenverhaalsgebied. Voor dat bredere profijt is het niet vereist dat die investeringen buiten het kostenverhaalsgebied worden gedaan. Het kan ook investeringen binnen het kostenverhaalsgebied betreffen.
Voor dit kostenverhaalsgebied zijn de NS-fietsenstalling aan de centrumzijde, het busstation van de NS, het omleggen van de centrumring en natuurinclusieve maatregelen aangemerkt als bovenwijkse voorziening. De twee kostenposten die voor 50% worden toegerekend aan het kostenverhaalsgebied zijn de fietsenstalling Oosterspoorplein en het Park Bruisend Hart.
Bovenwijkse voorzieningen
Aanleg fietsenstalling centrumzijde NS Hilversum
De fietsenstalling aan de centrumzijde van de NS heeft ook een functie voor bewoners en het verkeer vanuit het Bruisend Hart. De aanleg van de fietsenstalling verbetert de bereikbaarheid per fiets van het NS-station vanuit de rest van de stad. De gehele gemeente profiteert dus van deze ontwikkeling. Deze ontwikkeling wordt gedaan vanwege de bestaande en toekomstige behoefte aan deze voorziening vanuit geheel Hilversum. Het gaat deels om de bestaande vraag, alsook om de verwachte toe te nemen vraag van bestaande bewoners en gebruikers. Anderzijds gaat het ook deels om de verwachte toekomstige vraag van de nieuwe bewoners en gebruikers de in Hilversum gaan komen vanwege de nieuwbouwplannen overal in de stad, zo ook voor het Bruisend Hart.
Aanleg busstation NS Hilversum
De aanleg van het busstation van de NS heeft ook een functie voor bewoners en het verkeer vanuit het Bruisend Hart. Het busstation verbeterd de bereikbaarheid per OV van het NS-station en de rest van het Centrumgebied vanuit de rest van de stad en de regio. De gehele gemeente profiteert dus van deze ontwikkeling. Deze ontwikkeling wordt gedaan vanwege de bestaande en toekomstige behoefte aan deze voorziening vanuit geheel Hilversum. Het gaat deels om de bestaande vraag, alsook om de verwachte toe te nemen vraag van bestaande bewoners en gebruikers. Anderzijds gaat het ook deels om de verwachte toekomstige vraag van de nieuwe bewoners en gebruikers de in Hilversum gaan komen vanwege de nieuwbouwplannen overal in de stad, zo ook voor het Bruisend Hart.
Omleggen centrumring
Het omleggen van de centrumring heeft ook een functie voor het verkeer vanuit het Bruisend Hart. Met deze ontwikkeling wordt de leefbaarheid van de historische binnenstad verbeterd, en tevens de auto en OV-bereikbaarheid van het Centrumgebied vanuit de rest van de stad. De hele gemeente profiteert dus van deze ontwikkeling. Deze ontwikkeling wordt gedaan vanwege de bestaande en toekomstige behoefte aan deze voorziening vanuit geheel Hilversum. Het gaat deels om de bestaande vraag, alsook om de verwachte toe te nemen vraag van bestaande bewoners en gebruikers. Anderzijds gaat het ook deels om de verwachte toekomstige vraag van de nieuwe bewoners en gebruikers de in Hilversum gaan komen vanwege de nieuwbouwplannen overal in de stad, zo ook voor het Bruisend Hart.
Natuurinclusieve maatregelen (I & II)
Natuurinclusieve maatregelen dragen bij aan de biodiversiteit in de hele gemeente Hilversum, dus zowel de bestaande stad als nieuwbouwplannen hebben hier profijt van. Het nemen van natuurinclusieve maatregelen is nodig om een ontheffing te krijgen van de Wet Natuurbescherming, en dus nodig om te kunnen bouwen. Deze ontheffing wordt nu per project aangevraagd, maar wordt in de komende jaren door de gemeente voor gehele gebied (gebiedsontheffing) aangevraagd. Daarmee zullen nieuwbouwplannen niet meer zelf een ontheffing moeten krijgen. Daarom hebben de natuurinclusieve maatregelen ook invloed op de ontwikkeling in het Bruisend Hart.
De opgetelde bedragen van alle bovenwijkse voorzieningen zijn als totaal opgenomen in tabel 4-5 in de rij Bovenwijkse voorzieningen.
Fietsenstalling Oosterspoorplein & Park Bruisend Hart
De fietsenstalling op het Oosterspoorplein en het park Bruisend Hart zijn onderdeel van het Programma Kostenverhaal. Deze kosten worden niet als bovenwijkse voorzieningen gezien omdat ze vallen in het Bruisend Hart. De huidige fietsenstalling in het Bruisend Hart wordt verplaatst en het huidige plein met openbare ruimte wordt bebouwd. Door de nieuwbouwplannen is er behoefte aan een fietsenstalling en nieuwe openbare ruimte/groen. Deze ontwikkelingen zijn profijtelijk voor zowel het Bruisend Hart als de rest van 1221. Het Programma Kostenverhaal benoemt dat alleen de helft van de kosten worden doorberekend aan de rest van 1221 als bovenwijkse voorzieningen. De andere helft wordt rechtstreeks aan de nieuwbouw in Bruisend Hart doorberekend, buiten het Programma Kostenverhaal om. Daarom landen de kosten voor de fietsenstalling en het park 50% in woonrijp maken voor het kostenverhaalsgebied.
Planontwikkelingskosten
De plankosten worden bepaald voor de voorbereiding en ontwikkeling van het gehele kostenverhaalsgebied zoals dat in het Omgevingsplan is aangewezen. Het ministerie van Binnenlandse Zaken en Koninkrijksrelaties heeft een rekenmodel beschikbaar gesteld (versie 2024-2) waarin op basis van projectinformatie een raming wordt gemaakt van de te verwachten plankosten. Dit rekenmodel kan worden toegepast bij omgevingsplannen, projectbesluiten en omgevingsvergunningen voor buitenplanse omgevingsplanactiviteiten.
Rekenparameters, fasering en contante kosten en opbrengsten
Om rekening te houden met invloeden van rente en kosten- en opbrengstenstijgingen (indexering) zijn de kosten en opbrengsten in de tijd uitgezet. Er is gedurende de tijdsduur van het gekozen tijdvak rekening gehouden met rente (over kosten en opbrengsten die al gerealiseerd zijn) en indexeringen (over kosten en opbrengsten waarvan de realisering nog verwacht wordt). De parameters voor rente en indexering zijn opgenomen in de tabel 4-6. Door rekening te houden met invloeden van rente en indexering ontstaan geraamde bedragen op eindwaarde. Aan de hand van de aangehouden disconteringsvoet zijn deze bedragen teruggerekend naar een waarde op de prijspeildatum (de netto contante waarde).
In het artikel wordt vervolgens de contante waarden van de kosten en opbrengsten gegeven door toepassing van deze parameters. Bij het contant maken is uitgegaan van tijdvak en fasering zoals toegelicht.
In tabel 4-7 met contante kosten is een post inbrengwaarde opgenomen. Zoals toegelicht in het artikel is de inbrengwaarde van de grond gebaseerd op de WOZ-waarde. Voor het totaal is er een bedrag van € 12.582.353 aan inbrengwaarden.
Verhaalbare kosten en te verhalen kosten na macro-aftopping
Dit artikel is ervoor bedoeld om duidelijk te maken wat het totaal aan geraamde kosten is. Artikel 13.14 lid 2 van de Omgevingswet verwoordt het zogenaamde principe van macro-aftopping: “Als de te verhalen kosten, verminderd met de door het bestuursorgaan ontvangen of te ontvangen bijdragen en subsidies van derden, hoger zijn dan de opbrengsten van de gronden binnen het kostenverhaalsgebied, kan het bestuursorgaan die kosten slechts verhalen tot ten hoogste het bedrag van de opbrengsten.”
Om te kunnen bepalen of alle kosten opwegen tegen de opbrengsten moeten ze met elkaar in verband worden gebracht. Voor dat doel is in dit artikel het totaal weergegeven van de geraamde (contant gemaakte) kosten die in principe verhaalbaar zijn. Dit grijpt terug op de geraamde opbrengsten, maar dan contant gemaakt, en vergelijkt die met de totale contant gemaakte kosten. Ook subsidies en bijdragen van derden worden in deze vergelijking betrokken, namelijk door ze in mindering te brengen op het totaal aan contant gemaakte kosten. Door deze vergelijking wordt duidelijk tot welk niveau de kosten te verhalen vallen.
Verdeling van de verhaalbare kosten over de activiteiten
In tabel 4-11 is opgenomen met welk bedrag (welke kostenverhaalsbijdrage) per activiteit is
gerekend.
Met het bedrag per activiteit is hier bedoeld het bedrag per prijscategorie woning. Onderscheiden worden de volgende prijscategorieën:
• Appartement (sociaal – Larenseweg)
• Appartement (huur – Larenseweg)
• Appartement (koop – Larenseweg)
• Appartement (vrij – Larenseweg)
• Appartement (huur – Oosterspoorplein Noord)
• Appartement (koop – Oosterspoorplein Noord)
• Appartement (vrij – Oosterspoorplein Noord)
• Winkels (Larenseweg)
• Ki-Bar
• Kantoren (Oosterspoorplein Zuid)
• Kantoren (Oosterspoorplein Noord)
• Winkels (Oosterspoorplein Noord)
• Parkeren (Larenseweg)
• Zorg (Larenseweg)
• Fiets parkeren (Oosterspoorplein Noord)
Voor deze activiteiten is gerekend met de residuele grondwaardes zoals die ontleend zijn aan de opstalexploitatie van de gemeente Hilversum. Door deze bij elkaar op te tellen ontstaat een totaal aan grondopbrengsten. Vervolgens is voor elke activiteit een aandeel per eenheid van de betreffende activiteit bepaald.
Deze prijzen zijn vertaald naar een aandeel in de totale grondopbrengsten. Dat is gedaan omdat niet alle kosten verhaalbaar zijn. De verhaalbare kosten zijn daar ‘afgetopt’ op het niveau van de geraamde grondopbrengsten. In tabel 4-11 is dat aandeel vertaald naar aantallen gewogen eenheden. Dat is in diezelfde tabel 4-11 vertaald naar maximaal te verhalen kosten voor het totaal aantal woningen per prijscategorie. Door het totaalbedrag aan te verhalen kosten per prijscategorie te delen op het aantal woningen in die categorie, wordt het bedrag van één woning in de betreffende categorie verkregen. Dit wordt op dezelfde manier gedaan voor de overige activiteiten. Echter wordt hier niet gerekend met het totaal aantal woningen. De contante opbrengst per eenheid wordt berekend door de totale contante opbrengsten te delen door de vierkante meters BVO van de betreffende activiteit.
Om dit te verduidelijken worden twee voorbeelden gebruikt. Het eerste voorbeeld betreft de aanvraag van een kostenverhaalsbeschikking voor 49 appartementen in de sociale huursector. In die beschikking wordt de kostenverhaalsbijdrage bepaald door de contante opbrengst per eenheid (€ 77.698 /st.) te delen door het totaal aan contante opbrengsten (€ 10.226.877). Vervolgens dient er rekening te worden gehouden met de macro-aftopping van € 9.794.892. Dat komt neer op een bruto kostenbijdrage per eenheid van € 74.416.
Het tweede voorbeeld betreft de aanvraag van een kostenverhaalsbeschikking voor een kantoor op het Oosterspoorplein Zuid. In die beschikking wordt de kostenverhaalsbijdrage bepaald door de contante opbrengst per eenheid (€ 133) te delen door het totaal aan contante opbrengsten (€ 10.226.877). Vervolgens dient er rekening te worden gehouden met de macro-aftopping van € 9.794.892. Dat komt neer op een bruto kostenbijdrage per eenheid (m² BVO) van € 127.
Het betreft bedragen die netto contant berekend zijn op de peildatum van 1 januari 2024. De kostenverhaalsbeschikkingen worden later aangevraagd, namelijk voordat de eigenaar de activiteit wil gaan uitvoeren. Dan behoort op het berekende bedrag een vermeerdering plaats te vinden met de rente. Daarmee wordt het rentepercentage bedoeld zoals dat in de rekenparameters is betrokken. Deze rente is opgenomen met de bij dat artikel behorende tabel 3-5.
Deze bedragen vormen dan de bruto-kostenverhaalsbijdrage. Vervolgens wordt, op basis van artikel 13.18 lid 2 Omgevingswet, de inbrengwaarde in aftrek gebracht van de gronden waarvoor deze beschikking wordt aangevraagd en, als de aanvrager kosten heeft gemaakt die zijn opgenomen in tabel 4, dan worden deze ook in aftrek gebracht. Zie voor de te volgen handelwijze hierbij de toelichting op het artikel.
Financiële bijdragen voor kostenverhaalsgebied Bruisend Hart
Financiële bijdragen
Voor dit kostenverhaalsgebied is sprake van macro-aftopping. Hierdoor kunnen er voor dit kostenverhaalsgebied geen financiële bijdrage worden geëffectueerd.
Kader
De Nationale Omgevingsvisie (hierna: NOVI) is de langetermijnvisie van het Rijk op de toekomstige inrichting en ontwikkeling van onze leefomgeving. Hiermee wil het Rijk inspelen op de grote uitdagingen zoals klimaatverandering, energietransitie, circulaire economie, bereikbaarheid en woningbouw. De NOVI geeft weer wat bij deze grote uitdagingen de nationale belangen zijn, welke keuzes het Rijk maakt en welke richting het Rijk meegeeft aan decentrale keuzes. Deze keuzes hangen samen met de toekomstbeelden van de fysieke leefomgeving, de maatschappelijke opgaven en economische kansen die daarbij horen. In de NOVI zijn deze maatschappelijke opgaven samengevat in vier prioriteiten:
1. Ruimte voor klimaatadaptatie en energietransitie;
2. Duurzaam economisch groeipotentieel;
3. Sterke en gezonde steden en regio’s;
4. Toekomstbestendige ontwikkeling over het landelijk gebied.
Aan de hand van de NOVI wil het Rijk samen met de regio’s samenwerkingsafspraken maken en deze opnemen in Gebiedsagenda’s. De NOVI wordt aangescherpt met de Nota Ruimte die op termijn zal worden vastgesteld. In die nota worden keuzes over het gebruik van de ruimte uit de NOVI gemaakt op basis van de principes dat ruimte schaars is en dat keuzes niet mogen leiden tot het afschuiven van problemen. Keuzes moeten daarnaast de eigenheid van regio’s respecteren.
Beoordeling en conclusie
Het Bruisend Hart omgevingsplan sluit goed aan op de prioriteiten die zijn genoemd in de NOVI, met name inzetten op sterke en gezonde steden en ruimte voor klimaatadaptatie.
Kader
In het Besluit kwaliteit leefomgeving (Bkl) staan de Rijksinstructieregels. De hoofdonderwerpen van deze regels zijn:
• Waarborgen van de veiligheid (paragraaf 5.1.2 Bkl);
• Beschermen van de waterbelangen (paragraaf 5.1.3 Bkl);
• Beschermen van de gezondheid en milieu (paragraaf 5.1.4 Bkl), waaronder instructieregels voor de kwaliteit van de buitenlucht, trillingen, geluid en geur en bodemkwaliteit;
• Beschermen van landschappelijke of stedenbouwkundige waarden en cultureel erfgoed (paragraaf 5.1.5), waaronder de ladder voor duurzame verstedelijking (artikel 5.129g Bkl);
• Het behoud van ruimte voor toekomstige functies (paragraaf 5.1.6 Bkl) voor autowegen, buisleidingen, natuur- en recreatiegebieden;
• Het behoeden van de staat en werking van infrastructuur of voorzieningen voor nadelige gevolgen van activiteiten (paragraaf 5.1.7 Bkl), waaronder landsverdediging en nationale veiligheid, elektriciteitsvoorziening, Rijksvaarwegen en luchtvaart, fiets- en wandelroutes, aanwijzing van woningbouwcategorieën;
• Het bevorderen van de toegankelijkheid van de openbare buitenruimte voor personen (paragraaf 5.1.8 Bkl).
Uit het tweede lid van artikel 8.0b van het Bkl volgt dat de omgevingsvergunning voor een buitenplanse omgevingsplanactiviteit geweigerd wordt als:
• De activiteit zou leiden tot een situatie die niet is toegelaten op grond van de instructieregels;
• De omgevingsplanactiviteit betrekking heeft op een voorbeschermingsregel in het omgevingsplan (opvolger van het voorbereidingsbesluit);
• De omgevingsplanactiviteit het uitvoeren van een project waarvoor een projectbesluit is vastgesteld door provincie of rijk, belemmert.
Beoordeling en conclusie
In hoofdstuk 6 wordt de voorgenomen ontwikkeling getoetst aan een evenwichtige toedeling van functies aan locaties. In dit hoofdstuk wordt per omgevingsaspect ingegaan op de relevante instructieregels.
Op basis van het bovenstaande kan worden geconcludeerd dat het onderhavige planvoornemen in lijn is met de instructieregels uit het Bkl.
Kader
In paragraaf 5.1.5.4 artikel 5.129g van het Bkl staat de ladder voor duurzame verstedelijking. Dit artikel is van toepassing op een stedelijke ontwikkeling die bestaat uit de ontwikkeling of uitbreiding van een bedrijventerrein, een zeehaventerrein, een woningbouwlocatie, kantoren, een detailhandelvoorziening of een andere stedelijke voorziening en die voldoende substantieel is. Met de toevoeging van dit artikel in het Bkl is beoogd vanuit een oogpunt van ongewenste leegstand te vermijden en zorgvuldig ruimtegebruik te stimuleren. Er wordt daarom rekening gehouden met:
• De behoefte aan die stedelijke ontwikkeling; en
• Als die stedelijke ontwikkeling is voorzien buiten het stedelijk gebied of buiten het stedelijk groen aan de rand van de bebouwing van stedelijk gebied: de mogelijkheden om binnen dat stedelijk gebied of binnen dat stedelijk groen aan de rand van de bebouwing van stedelijk gebied in die behoefte te voorzien.
De definiëring van enkele van de in het artikel genoemde begrippen in art. 1.1 Bkl laat onverlet dat de ‘ladder voor duurzame verstedelijking’ als een ‘open norm’ is te kwalificeren. Dit houdt in dat de norm inhoudelijk open is en onder verschillende omstandigheden nader ingevuld moet worden. Sinds de inwerkingtreding van het artikel heeft de Afdeling bestuursrechtspraak Raad van State (ABRvS) in haar jurisprudentie de norm veelvuldig ingevuld en daardoor verder begrensd. Op 28 juni 2017 heeft de ABRvS een zogenoemde ‘overzichtsuitspraak’ gedaan (ECLI:NL:RVS:2017:1724, r.o. 2 t/m 12.8), waarin de dan geldende en op basis van de voornoemde wijziging te behouden jurisprudentielijnen nader uiteen worden gezet. Op basis van deze jurisprudentielijnen kan de ‘ladder voor duurzame verstedelijking’ concreet worden toegepast.
Beoordeling
De Ladder is alleen van toepassing op een nieuwe stedelijke ontwikkeling. Daarvan is in beginsel sprake als het nieuwe bestemmingsplan meer bebouwing mogelijk maakt, of dat er een functiewijziging van zodanige aard en omvang plaats vindt dat om die reden sprake is van een nieuwe stedelijke ontwikkeling. In het Bkl is geen ondergrens voor de minimale omvang van een nieuwe stedelijke ontwikkeling vastgelegd. Of er sprake is van een stedelijke ontwikkeling wordt bepaald door de aard en omvang van de ontwikkeling in relatie tot de omgeving. Het gaat hierbij zowel om fysiek ruimtebeslag als de wijziging of toevoeging van functies. Onder de Omgevingswet blijft een toetsing van woningbouw en overige ontwikkelingen aan de ladder voor duurzame verstedelijking nodig (artikel 5.129g van het Besluit kwaliteit leefomgeving).
Wonen
Er worden 38 bestaande woningen verwijderd en één woning behouden. Er worden 146 woningen toegevoegd. Per saldo betekent dit een toename van 108 woningen. Dit is een stedelijke ontwikkeling waar de ladder op van toepassing is.
Detailhandel en dienstverlening
In het onderzoekgebied is in de bestaande situatie op verschillende plaatsen detailhandel en dienstverlening toegestaan. Naar schatting is dit circa 4.500m2. In de toekomstige situatie is 1.440 m2 aan detailhandel en dienstverlening toegestaan, inclusief het commerciële programma op het station. Er is hiermee geen sprake van een toename van wat maximaal planologisch is toegestaan. Daarom is de voorgenomen ontwikkeling met betrekking tot detailhandel en dienstverlening niet ladderplichtig.
Horeca
Horeca bevindt zich in de bestaande situatie op verschillende locaties. Naar schatting is dit circa 500m2. Er is in het plan naast het behoud van café Dudok (170 m2) en de Ki-bar (260 m2) sprake van een beperkte uitbreidingsruimte voor horeca: van 70 m² bvo. Daarmee is er geen sprake van uitbreiding van horeca binnen het plangebied. In de bestaande situatie is alleen horeca toegestaan van ten hoogste categorie B. Hiermee wordt nachthoreca, zoals bar/dancings en discotheken, uitgesloten. In de nieuwe situatie is dat ook zo. Omdat er geen toename is van wat maximaal planologisch is toegestaan, is de voorgenomen ontwikkeling met betrekking tot horeca niet ladderplichtig.
Kantoren en bedrijvigheid
Kantoren zijn momenteel niet toegestaan binnen het plangebied. Dit betekent dat er een toename is van het maximaal planologische toegestane van circa 3.800 m². Hiermee is de uitbreiding van deze functie ‘ladderplichtig’. Onder bedrijvigheid worden in de bestaande situatie onder andere bijvoorbeeld kleine opnamestudio’s en bedrijvigheid in een lichte milieucategorie toegestaan. Dit is onder Gemengd - 1 in vrijwel het hele plangebied toegestaan, waardoor er voor dit deel geen toename van het planologisch maximaal toegestane is. Bedrijvigheid is daarmee niet ladderplichtig.
Maatschappelijke voorzieningen
Er wordt in totaal 720 m² aan maatschappelijke voorzieningen mogelijk gemaakt. Deze functie is momenteel toegestaan binnen de bestemming Gemengd-1 welke dienstverlening mogelijk maakt. De definitie van dienstverlening conform de begrippenlijst luidt: “het verlenen van (bedrijfsmatige) diensten en/of leveren van commerciële en/of maatschappelijke diensten aan personen zoals reisbureaus, kapsalons, wasserettes en instellingen inzake welzijn en gezondheidszorg, evenwel met uitzondering van een garagebedrijf en een seksinrichting”. Het totale gebied met de bestemming Gemengd-1 is binnen het plangebied circa 4.400 m2 en daarmee aanzienlijk groter dan het maximaal planologisch toegestane in de voorgenomen ontwikkeling. Hiermee is de functie niet ladderplichtig.
Station
De stationsvoorzieningen nemen beperkt toe. Het gaat om een nieuw stationsgebouw, en ondersteunende commerciële activiteiten, die binnen het plangebied op de begane grond al zijn toegestaan. Er is daarom voor de functie station en commerciële functie geen sprake van een nieuwe stedelijke ontwikkeling. Daarom is deze functie niet ladderplichtig.
Fietsenstalling en parkeergarage
De functies parkeren en fietsenstalling worden gezien als infrastructuur, ondersteunend aan de andere ontwikkelingen. Zij vormen op zichzelf geen nieuwe stedelijke ontwikkeling, maar zijn een logisch gevolg van de overige ontwikkelingen. Daarom worden zij niet apart onderbouwd.
Conclusie
De beoogde ontwikkeling betreft een stedelijke ontwikkeling. De ladder voor duurzame verstedelijking is doorlopen (bijlage 2). De ontwikkeling sluit aan op de ladder voor duurzame verstedelijking.
Kader
De Europese dienstenrichtlijn (richtlijn 2006/123/EG) heeft tot doel handelsbelemmeringen voor dienstverleners binnen de EU weg te nemen en een gelijk speelveld te creëren binnen en tussen landen door de toegankelijkheid van de markten gelijk te stellen voor alle deelnemers.
De definitie van diensten in het kader van de dienstenrichtlijn is breed. Het betreft vrijwel alle economische activiteiten anders dan loondienst. Enkele niet-economische, of maatschappelijke, diensten zijn uitgezonderd. Daarnaast heeft de dienstenrichtlijn betrekking op iedere voorwaarde die aan de toegang tot het uitvoeren van een dienstenactiviteit wordt gesteld in beleid, wet- en regelgeving, zoals bijvoorbeeld:
• Vestigingseisen;
• Brancheringsregeling;
• Beperkingen m.b.t. nevenactiviteiten;
• Beperkingen m.b.t. nevenassortiment.
Beoordeling en conclusie
Binnen de voorgenomen ontwikkeling worden enkele keuzes gemaakt die in beginsel strijdig zijn met de dienstenrichtlijn. Het gaat hierbij om:
• Het beperken van de toegang tot de markt van bedrijven middels de “Staat van Bedrijfsactiviteiten”;
• Het beperken van de toegang tot de markt van horeca middels de “Staat van Horecabedrijven”;
• Het uitzonderen van garagebedrijven en seksinrichtingen bij dienstverlening;
• Het uitzonderen van horecagelegenheden met een erotisch getinte vermaaksfunctie.
Afwijkingsmogelijkheden
Beperkingen in de toegang tot de markt dienen conform de dienstenrichtlijn onderbouwd te worden. Hierbij wordt op een drietal zaken getoetst:
1. Discriminatieverbod: de eis mag geen onderscheid maken naar nationaliteit;
2. Noodzakelijkheid: de eis moet gerechtvaardigd zijn volgens een dwingende reden van algemeen belang;
3. Evenredigheid: de eis moet geschikt zijn, niet verder gaan dan nodig om het doel te bereiken. En het doel kan niet met minder vergaande maatregelen worden bereikt .
Discriminatieverbod
Het discriminatieverbod dicteert dat er geen direct of indirect onderscheid naar nationaliteit of, voor vennootschappen, naar de plaats van hun statutaire zetel gemaakt mag worden. Hier wordt praktisch altijd aan voldaan. Wel valt bijvoorbeeld ook de vestiging van arbeidsmigranten hier onder.
Noodzakelijkheid
De eis dat de beperking noodzakelijk moet zijn, houdt in dat voor die beperking een ‘dwingende reden van algemeen belang’ bestaat. Puur economische belangen zijn hierbij niet voldoende. Voorbeeld van dwingende redenen van algemeen belang zijn bijvoorbeeld:
• Woon- en leefklimaat: leefbare steden en dorpen, vitale centra voor consumenten, ondernemers en eigenaren, uitgebreid en divers voorzieningenniveau, combinatiebezoeken, tegengaan leegstand en verloedering.
• Duurzaam ruimtegebruik: flexibiliteit van ruimtegebruik, intensief ruimtegebruik, functiemenging, dubbelgebruik, behoud van open ruimte, landschappelijke kwaliteit.
• Ruimtelijke kwaliteit: stedenbouwkundige verschijningsvorm, investeringsniveau, behoud en versterking cultuurhistorische structuur, openbare ruimte
• Mobiliteit: bereikbaarheid, voorzieningen in de nabijheid van de woonomgeving, centrale goed ontsloten locaties, beperken van het aantal en de lengte van verkeersbewegingen, parkeren, knooppunt openbaar vervoer, bevoorrading.
• Behoefte: actuele en toekomstige programmatische behoefte, aansluiting bij verzorgingsfunctie van stad of dorp, benodigd draagvlak t.o.v. aanwezig draagvlak.
• Veiligheid en overlast: brand- of explosiegevaarlijke stoffen, verkeersveiligheid, geur- en geluidsoverlast.
Evenredigheid
Om te bepalen of een beperking tot de toegang van de markt voor bepaalde bedrijven evenredig is hangt af van twee vragen:
• Is de (territoriale of kwantitatieve) beperking geschikt om het daarmee beoogde doel te bereiken?
o Is de regeling coherent en systematisch toegepast (hypocrisietest)?
o Is de regeling effectief en wordt het beoogde doel bereikt?
• Gaat de beperking niet verder dan nodig?
Het doel van de eis omtrent evenredigheid is om te borgen dat de voorgenomen afwijking op de dienstenrichtlijn passend is en niet verder gaat dan strikt noodzakelijk. Hiermee wordt voorkomen dat ook andere bedrijvigheid geraakt wordt waar geen dwingende reden van algemeen belang mee gemoeid is.
Effectiviteit:
Het onderzoek naar de effectiviteit van een beperking kan worden vormgegeven door de volgende twee stappen uit te werken aan de hand van een analyse met specifieke gegevens. Deze stappen zijn:
• Het opstellen van een onderbouwing gebaseerd op onderzoek naar de effectiviteit van in ruimtelijke voorschriften opgenomen brancheringsregelingen in het algemeen: op landelijk, provinciaal of lokaal niveau. Een voorbeeld hiervan is een koopstromenonderzoek. Op basis daarvan kan de regulerende overheid, bijvoorbeeld de gemeenteraad in het geval van de vaststelling van een omgevingsplan, concluderen dat een beperking in het algemeen effectief is voor het bereiken van de nagestreefde doelen.
• De tweede stap bestaat uit het aantonen dat de algemene onderzoeken toepasbaar zijn op de specifieke, lokale situatie. De regulerende overheid onderbouwt dan, eventueel met nader onderzoek, dat de specifieke situatie niet zo bijzonder of afwijkend is dat die onderzoeken niet van toepassing zijn.
Een beperking kan en mag een onderdeel zijn van een breder pakket aan maatregelen. De analyse met specifieke gegevens mag zich richten op de bijdrage die de beperking levert aan het bereiken van de doelen van het totale pakket aan maatregelen. Niet voldoende is dat de beperking aan de doelen kán bijdragen. Aannemelijk moet zijn dat de beperking een zinvolle bijdrage levert, dat er voldoende verband bestaat tussen de beperking en het brede pakket van andere maatregelen.
Analyse
De Europese dienstenrichtlijn is van toepassing op het Nederlands recht en heeft als doel een vrije toegang tot de Europese markt garanderen voor zo veel mogelijk bedrijvigheid. In de basis mogen er geen beperkingen aan de toegang worden opgelegd.
Binnen de voorgenomen ontwikkeling worden wel enkele vormen van bedrijvigheid uitgesloten. In dit kader is het voor deze vormen van bedrijvigheid nodig dat de noodzakelijkheid, evenredigheid en effectiviteit van de uitsluiting/brancheringsregeling aangetoond wordt. Het gaat hierbij om onderstaande vormen van bedrijvigheid:
• Het beperken van de toegang tot de markt van bedrijven middels de “Staat van Bedrijfsactiviteiten”;
• Het beperken van de toegang tot de markt van horeca middels de “Staat van Horecabedrijven”;
• Het uitzonderen van garagebedrijven en seksinrichtingen bij dienstverlening;
• Het uitzonderen van horecagelegenheden met een erotisch getinte vermaaksfunctie.
De omgevingsvisie NH2050 is op 19 november 2018 vastgesteld door Provinciale Staten. De leidende hoofdambitie in de Omgevingsvisie NH2050 is de balans tussen economische groei en leefbaarheid. Een gezonde en veilige leefomgeving, die goed is voor mens, plant én dier, is een voorwaarde voor een goed economisch vestigingsklimaat. Tegelijkertijd is duurzame economische ontwikkeling een voorwaarde voor het kunnen investeren in een prettige leefomgeving. De hoofdambitie is opgedeeld in de volgende aspecten met bijbehorende ambities.
Leefomgeving
• Klimaatverandering: een klimaat bestendig en waterrobuust Noord-Holland. Stad, land en infrastructuur worden klimaatbestendig en waterrobuust ingericht.
• Gezondheid en veiligheid: het behouden en waar mogelijk verbeteren van de kwaliteit van de fysieke leefomgeving.
• Biodiversiteit en natuur: de biodiversiteit in Noord-Holland vergroten, ook omdat daarmee andere ambities/doelen kunnen worden bereikt.
Gebruik van de leefomgeving
• Economische transitie: een duurzame economie met innovatie als belangrijke motor. De provincie biedt ruimte aan ontwikkeling van circulaire economie, duurzame landbouw, energietransitie en experimenten.
• Wonen en werken: woon- en werklocaties dienen beter met elkaar in overeenstemming te zijn. Woningbouw wordt vooral in en aansluitend op de bestaande verstedelijkte gebieden gepland, in overeenstemming met de kwalitatieve behoeften en trends.
• Mobiliteit: inwoners en bedrijven van Noord-Holland kunnen zichzelf of producten effectief, veilig en efficiënt verplaatsen.
• Landschap: het benoemen, behouden en versterken van de unieke kwaliteiten van de diverse landschappen en de cultuurhistorie.
Energietransitie
De ambitie van de Provincie is dat Noord-Holland als samenleving in 2050 volledig klimaatneutraal en gebaseerd is op hernieuwbare energie. Daarnaast wordt er met de Omgevingsvisie NH2050 geprobeerd om een richting uit te zetten om houvast te bieden naar de onzekere toekomst. Daarvoor wordt een aantal bewegingen naar de toekomst toe benoemd:
• Noord-Holland in beweging: op weg naar een economisch duurzame toekomst.
• Dynamisch schiereiland: benutten van een unieke ligging.
• Metropool in ontwikkeling: vergroten agglomeratiekracht door het ontwikkelen van een samenhangend internationaal concurrerend metropolitaans systeem.
• Sterke kernen, sterke regio’s: sterke kernen houden regio’s vitaal.
• Nieuwe energie: economische kansen benutten van energietransitie.
• Natuurlijk en vitaal landelijke omgeving: vergroten van biodiversiteit en ontwikkelen van een economisch duurzame agrifoodsector.
Er wordt in de Omgevingsvisie NH2050 uitgegaan van het principe ‘lokaal wat kan, regionaal wat moet’. Hierbij wordt gelet op de diversiteit aan regio’s en wordt ruimte geboden aan maatwerk en ruimte om vorm te kunnen geven aan een wendbare samenleving.
Beoordeling
Voorliggend planvoornemen sluit aan bij vrijwel alle uitgangspunten van de Omgevingsvisie NH2050. De beoogde ontwikkeling zorgt voor woningbouw in stedelijk gebied. De beoogde ontwikkeling zorgt voor een gemengd programma met wonen, weken, horeca, detailhandel en maatschappelijke voorzieningen. Bij de ontwikkeling wordt rekening gehouden met groen, klimaatadaptatie en de energietransitie.
Conclusie
Voorliggend omgevingsplan is in lijn met de Omgevingsvisie NH2050.
Kader
Bij de Omgevingsvisie hoort een Provinciale Omgevingsverordening. Op 11 januari 2024 is de omgevingsverordening NH2022 in werking gegaan en vervangt alle bestaande verordeningen die betrekking hebben op de leefomgeving, zoals de Provinciale Ruimtelijke Verordening, de Provinciale Milieuverordening, de Waterverordeningen en de Wegenverordening. In de Omgevingsverordening zijn de regels vastgelegd waaraan het Omgevingsloket in Noord-Holland moeten voldoen. De Omgevingsverordening stelt algemene regels aan (tijdelijke) omgevingsplannen met als doel het veiligstellen van de provinciale belangen.
Beoordeling
Het Bruisend Hart is opgesteld met inachtneming van de instructieregels uit de Omgevingsverordening NH2022. Zo wordt het programma binnenstedelijk gebouwd, afgestemd op de lokale en regionale vraag (zie laddertoets in paragraaf 5.1.3) en wordt actief ingezet op klimaatadaptatie (paragraaf 6.13). Specifiek voor het Bruisend Hart gelden er verder hoogtebeperkingen vanuit de luchthaven Hilversum (artikel 4.88) en gelden er regels t.a.v. eventueel watertekort middels de regionale verdringingsreeks Amstel, Gooi en Vecht (artikel 6.83).
Conclusie
Het beoogde planvoornemen is in lijn met de Omgevingsverordening Noord-Holland 2022.
Kader
Het woonakkoord is een beleidsinstrument van de provincie Noord-Holland met als hoofddoel om meer woningen te realiseren. In een woonakkoord staan maatwerkafspraken over woningbouw, programmering en fasering die de provincie maakt met regiogemeenten. De provincie wil ook stimuleren dat de regio Gooi en Vechtstreek inzet op het verduurzamen van de woningvoorraad en rekening houdt met het veranderende klimaat. De regio Gooi en Vechtstreek ziet een woonakkoord als een goede kans om vorm en inhoud te geven aan de regionale wensen voor extra ambities ten aanzien van bouwen en betaalbaarheid. Mede om die reden heeft de regio Gooi en Vechtstreek ervoor gekozen een akkoord te sluiten tussen provincie, regiogemeenten én woningcorporaties.
De woningbouw-, verstedelijkings- en transformatieopgave zijn verbonden met de opgaven voor klimaatadaptatie, leefbaarheid en leefomgeving. Deze verstrengeling en stapeling van opgaven vraagt om een hecht en effectief regionaal samenspel. Regio Gooi en Vechtstreek wil waarmaken dat er voldoende, betaalbare, duurzame en toekomstbestendige woningen komen, zodat haar huidige en toekomstige inwoners een fijne woonplek hebben in de regio Gooi en Vechtstreek.
Om de gestelde doelen te behalen heeft de regio Gooi en Vechtstreek vier ambities opgesteld:
1. De vitale en toegankelijke regio: meer (betaalbare) woningen bouwen en de kloof tussen huur en koop dichten.
2. De juiste woning op de juiste plek: in relatie tot de integrale opgave (o.a. milieu, werkgelegenheid, leefbaarheid en landschap).
3. Integraliteit en stapeling van opgaven: keuzes maken, consequenties afwegen & leren door experimenteren.
4. Waarmaken: het regionale samenspel.
Beoordeling
Het omgevingsplan voor het Bruisend Hart maakt in totaal 146 nieuw woningen mogelijk tot 2030. In de huidige situatie zijn er in totaal 39 woningen in het plangebied aanwezig. Eén hiervan blijft behouden. Dit houdt in dat er per saldo 108 woningen worden toegevoegd. De toevoeging van deze woningen past binnen de provinciale en regionale woonbehoefte.
Kader
De Woonagenda is de uitvoeringsagenda van het woonbeleid van de provincie Noord-Holland voor de komende vijf jaar. Vanuit het provinciaal én regionaal belang dat de woningmarkt goed functioneert en het wonen optimaal bijdraagt aan het versterken van de kwaliteiten van Noord-Holland, maakt de Woonagenda de inzet en bijdrage van de provincie daaraan concreet.
De woonagenda heeft acht actiepunten die jaarlijks bijgewerkt kunnen worden om de ambities van de provincie te realiseren:
1. Maatwerkafspraken in regionale woonakkoorden
2. Aanbieden van kennis, meedenkkracht en hulp
3. Versnellen woningbouwproductie
4. Samenwerken stimuleren
5. Gezond, duurzaam en toekomstbestendig wonen
6. Meer flexibiliteit in de woningmarkt
7. Stimuleren circulair bouwen
8. Leveren van informatie en monitoring
Beoordeling
Voorliggend planvoornemen voegt tot 2030 maximaal 108 woningen toe aan het plangebied. Voorliggende motivering sluit aan bij de actiepunten van de woonagenda van de provincie, omdat het plan inzet op woningbouwontwikkeling, het woningbouwprogramma aansluit bij de afspraken vanuit het woonakkoord en het Regionale Actieprogramma Gooi en Vechtstreek en wordt ingezet op gezond, natuurinclusief, klimaatadaptief, duurzaam en circulair bouwen.
Conclusie
Onderhavig planvoornemen is in lijn met de Woonagenda Noord-Holland 2025
Kader
De visie op de ontwikkeling van de Regio Gooi en Vechtstreek is vastgelegd in de regionale woonvisie. De regio Gooi en Vechtstreek wil een complete regio zijn, met een passend woningaanbod voor jong en oud, rijk en arm, kleine of grote huishoudens en goed of slecht ter been. De regio ontleent haar identiteit voor een groot deel aan de diversiteit aan landschappen en woonmilieus en is daardoor een aantrekkelijk vestigingsgebied voor al deze groepen. Het behouden en, waar mogelijk, versterken van deze diversiteit aan woonmilieus waarborgt de vitaliteit van de regio ook in de toekomst.
Zeker tot 2040 wordt nog een groei van de bevolking voorzien. Het passend faciliteren van deze groei, in combinatie met het behoud van de natuur- en cultuurhistorische waarden, vormt de komende jaren één van de belangrijkste uitdagingen voor de regio. Nieuwbouw zal nodig blijven en voorziet niet alleen in een directe woningbehoefte, maar wordt ook ingezet als strategisch instrument om de doorstroming in wijken op gang te brengen. De focus zal daarbij moeten liggen op binnenstedelijk bouwen en transformatie. Het behoud van de hoge ruimtelijke kwaliteit in de bebouwde omgeving is daarbij kaderstellend.
In een woningmarkt onder druk kunnen ook groepen in de knel te komen. De regio zet zich daarom in om jongeren, jonge gezinnen en mensen met een zorgvraag meer kansen te bieden. Ook is het van groot belang meer beweging te krijgen in de woningmarkt. Eén van de instrumenten hiervoor is het creëren van meer passend aanbod in het lage middensegment, waardoor het mogelijk wordt om vanuit de sociale huursector door te stromen.
Beoordeling
Er worden in totaal maximaal 146 woningen gerealiseerd met onderhavig planvoornemen. In totaal worden er 38 woningen in de huidige situatie gesloopt. Dit houdt in dat er 108 woningen worden toegevoegd. De woningen die worden toegevoegd passen binnen de provinciale en regionale woonbehoefte. De focus in het Bruisend Hart ligt op binnenstedelijk bouwen en transformatie en er wordt ingezet op differentiatie en investeringen rondom het spoor. Tot slot worden door binnenstedelijk te bouwen natuurwaarden in stand gehouden en wordt rekening gehouden met de cultuurhistorische waarden van enkele monumenten en waardevolle panden binnen het Bruisend Hart en wordt gebouwd volgens de identiteit van de buurt.
Conclusie
Het onderhavig planvoornemen is in lijn met de Regionale woonvisie Gooi en Vechtstreek.
Kader
In de Regionale Energiestrategie (RES) 1.0 van Energieregio Noord-Holland Zuid staan de plannen ten aanzien van grootschalige wind- en zonne-energie die overheden, netbeheerders, maatschappelijke organisaties, ondernemers en inwoners hiervoor hebben gemaakt. Daarnaast worden er mogelijkheden verkend om met behulp van duurzame warmtebronnen en -technieken gebouwen te verwarmen in plaats van met aardgas.
De ambitie van Gooi en Vechtstreek is een energieneutrale regio. Alle in de regio benodigde energie wordt dan duurzaam opgewekt. Het is de stip op de horizon waarbij de gemeente zich in eerste instantie richt op de gebouwde omgeving. Een enorme en complexe opgave: het betekent dat de gehele gebouwde omgeving, inclusief ondergrond, moet worden getransformeerd. Het gaat hierbij om duizenden woningen per jaar.
Beoordeling
Omgevingsplan Bruisend Hart draagt bij aan de ambitie van Gooi en Vechtstreek om een energieneutrale regio te zijn/worden. Alle gebouwen in het Bruisend Hart voldoen aan de duurzaamheidseisen. Er wordt een collectief bodemenergiesysteem aangelegd dat zowel warmte als kou levert. Daarnaast worden er zonnedaken gerealiseerd in het plangebied.
Conclusie
De beoogde ontwikkeling is in lijn met de Regionale energiestrategie.
Kader
De Omgevingswet vraagt aan gemeenten om een toekomstvisie te maken die over alle onderdelen van de leefomgeving gaat: een omgevingsvisie. De vraagstukken die spelen in de leefomgeving stoppen niet bij gemeentegrenzen. Ook inwoners van gemeenten in Gooi en Vechtstreek bewegen zich voor werk, voorzieningen en ontspanning door de hele regio. Wat er op regionaal niveau speelt is ook belangrijk voor de regiogemeenten, want in de lokale omgevingsvisies geven de gemeenten ook een visie over de toekomst van de regio.
Dit is aanleiding waarom de gemeenten Blaricum, Gooise Meren, Hilversum, Huizen, Laren, Weesp en Wijdemeren en Regio Gooi en Vechtstreek in 2018 een samenwerking op de omgevingsvisie zijn gestart. Het eindresultaat van deze samenwerking is het Koersdocument Gooi en Vechtstreek. Het project kende drie fasen: verkenningsfase, analysefase en koersfase. In de verkenningsfase en analysefase zijn de regionale opgaven benoemd.
In de koersfase zijn regionale ambities voor de lange termijn over de regionale opgaven benoemd en principes voor oplossingen beschreven. Dit biedt de gemeente inzicht in de regionale context bij het formuleren van de eigen omgevingsvisie. Het resultaat hiervan is het Koersdocument Gooi en Vechtstreek.
Het koersdocument is in een aantal stappen tot stand gekomen. Er zijn drie tussenstanden geweest, waar gebiedspartijen en gemeenteraden op konden reflecteren en reageren. Bij de derde tussenstand zijn alle gemeenteraden in de gelegenheid gesteld om wensen en bedenkingen te uiten. In het regionale portefeuillehoudersoverleg van 4 maart 2021 is het koersdocument vastgesteld. Tijdens de raadsvergadering van 21 april 2021 is in Hilversum besloten om kennis te nemen van het aangepaste koersdocument van de regio Gooi en Vechtstreek en hier, in het kader van de Omgevingsvisie, geen specifieke betekenis aan te ontlenen.
In de analysefase van het Koersdocument is regionaal onderzoek gedaan naar de volgende onderwerpen:
• Water
• Bodem en ondergrond
• Ruimtebehoefte wonen en werken
• Biodiversiteit, veenoxidatie en bodemdaling
• Openbaar vervoer en knooppunten en
• Energiewinning en cultuurhistorie
Beoordeling
Met name het onderzoek naar wonen en werken en het onderzoek openbaar vervoer en knooppunten bevatten elementen die ook van belang zijn voor voorliggend omgevingsplan. Het gaat daarbij om de onderbouwing van de behoefte aan voldoende kwalitatief goede woningen, voldoende werkgelegenheid en ontwikkeling van OV-knooppunten en inzet op andere vormen van vervoer. Daarnaast zijn de andere onderzoeken ook van belang voor onderhavig planvoornemen. Zo krijgt water en klimaatadaptatie een grote rol in het plangebied en wordt er natuurinclusief gebouwd. Daarnaast is er in de vorige paragraaf al beschreven wat het plan doet met energiewinning.
Conclusie
Onderhavig planvoornemen is in lijn met het Koersdocument regio Gooi en Vechtstreek.
Kader
De gemeenten in Gooi en Vechtstreek en provincie Noord-Holland werken samen om het fietsgebruik te stimuleren. Hiervoor heeft ook de fietsinfrastructuur aandacht nodig. De gemeenten in de regio en provincie werken samen aan een verbeterplan voor het fietsnetwerk. Belangrijke routes die woonkernen, werk- en winkelgebieden, onderwijslocaties, OV-knooppunten en recreatiegebieden met elkaar verbinden moeten zó verbeterd worden dat fietsen voor meer inwoners aantrekkelijk en veilig wordt.
Fietsroutes
De verschillende routes worden zo uitgewerkt dat ze goed aansluiten bij het landschap. Er kan bijvoorbeeld worden gekozen om geen fiets-asfalt aan te leggen in beschermde stadsgezichten of door een natuurgebied. Investeringen in verbreding en verbetering van deze routes zijn dan ook nodig. De afgelopen jaren is het fietsgebruik in Nederland flink toegenomen. Ook in Gooi en Vechtstreek groeit het fietsverkeer. Grenzen worden verlegd: we fietsen steeds vaker en verder. Ruim een kwart van alle dagelijkse verplaatsingen gaat per fiets. Om het fietsen te stimuleren wordt in Gooi en Vechtstreek gewerkt aan een hoogwaardig fietsnetwerk dat het wegennet ontlast (zie figuur 5-1). Het stimuleren van de fiets wordt ook gezien als een middel om opgaven als de energietransitie, luchtkwaliteit, gezondheid, sociale inclusie en economische ontwikkeling invulling te geven.
Intentieverklaring
Op 27 september 2019 ondertekenden provincie Noord-Holland, de regiogemeenten en regio Gooi en Vechtstreek een intentieverklaring waarin zij zich sterk maken om het fietsnetwerk verder te ontwikkelen. De komende jaren moeten diverse projecten worden uitgevoerd.
Beoordeling
Onderhavig planvoornemen zorgt voor een fietsroute door het plangebied. De wandel- en fietsroutes sluiten aan op de bestaande wandel- en fietsroutes in de omgeving, met het station als belangrijk reisdoel. De routes zijn aangenaam en veilig in gebruik en verbinden de verschillende plekken op een logische en herkenbare manier met elkaar. Kruisingen worden eenvoudig en overzichtelijk vormgegeven. Doorgaande routes krijgen een herkenbare inrichting en vormgeving.
Conclusie
Fietsen en wandelen heeft prioriteit boven het gebruik van de auto in het Bruisend Hart. Hiermee is het planvoornemen in lijn met de Doorfietsroutes Gooi en Vechtstreek.
Kader
De Omgevingsvisie Hilversum 2040 beschrijft een toekomstbeeld voor de gemeente Hilversum. Op 15 mei 2024 heeft de gemeenteraad de Omgevingsvisie Hilversum 2040 vastgesteld. De Omgevingsvisie Hilversum 2040 vervangt de structuurvisie Hilversum 2030 als ‘toekomstvisie’ voor Hilversum.
In Hilversum is een vrij eensgezind toekomstbeeld van toepassing: een gezonde, luchtige, mooie en afwisselende leefomgeving, waar het voor iedereen goed wonen en werken is, op een schaal die het sociale leven stimuleert.
Hilversum mag nog groener, met behoud van het dorpse karakter (rustig wonen en sterke sociale netwerken) en stadse voorzieningen (gezondheid, sport, cultuur, centrum). Met een goed evenwicht tussen rust en reuring, afgestemd op de verschillende (woon)behoeften en met respect voor Dudok. Een ruimtelijke opzet met plek voor spelen, ontmoeten, lopen en fietsen. Een stad die goed bereikbaar is. Waar veel aandacht is voor gezondheid en duurzaamheid, ingericht op het veranderende klimaat en waar verbinding in de buurt belangrijk is: bij elkaar betrokken zijn en kunnen meedoen.
De 6 belangrijkste ruimtelijke hoofdkeuzes van de Omgevingsvisie zijn op dat toekomstbeeld gebaseerd:
1. Het beste van twee werelden (dorp en stad)
2. Vooral binnen de bestaande stad ontwikkelen
3. Gematigd groeien om sterk te blijven
4. Gebiedsgericht werken met de samenleving
5. De ruimte in de stad vaker meervoudig gebruiken
6. Een gezonde leefomgeving als basis
De hoofdkeuzes zijn langs 3 invalshoeken uitgewerkt in opgaven, normen, doelen en de belangrijkste maatregelen:
1. Duurzaam: verbeteren van de kwaliteit van de leefomgeving. Het gaat om de grote ontwikkelingen op het gebied van energie, klimaat, mobiliteit en grondstoffen: verbeteringen voor de volgende generatie.
2. Meedoen: zorgen dat mensen grip hebben op het leven en omgeving en kunnen meedoen. Het gaat om bestaanszekerheid, passende woningen en gezonde, sterke buurten met voorzieningen om elkaar te ontmoeten.
3. Actief: een toekomstbestendige economie. Het gaat om een veelzijdige en weerbare economie, zonder negatieve effecten voor de leefomgeving. We spelen in op de veranderende demografie.
Beoordeling
Voorliggend omgevingsplanwijziging sluit nauw aan op de opgaven, normen, doelen en maatregelen van de Omgevingsvisie Hilversum 2040. Daarmee sluit het automatisch ook aan bij de belangrijkste ruimtelijke hoofdkeuzes.
Het Bruisend Hart geeft een kwaliteitsimpuls aan het plangebied (ten oosten van het station). De beoogde ontwikkeling zal resulteren in een gemengd sterke buurt waar wonen, werken en recreëren een plek krijgen. Het plangebied wordt ingericht met veel begroeiing (groen en bomen) en infiltratiegebieden. In de openbare ruimte worden twee (stads)tuinen gerealiseerd die fungeren als de ‘groene longen’ van het Bruisend Hart. Hier kunnen mensen elkaar ontmoeten en ontspannen. Ook wordt er gedacht aan duurzaamheid. De gebouwen voldoen aan de wettelijke Milieuprestatie Gebouwen (MPG) en bij de aanleg van de openbare ruimte wordt minimaal 50% hergebruikte materialen toegepast. Daarnaast is uitgegaan van één Warmte Koude Opslag (WKO) voor gebouwverwarming en koeling in de nieuwbouw. Ook worden begroeide daken en gevels ingezet voor isolatie en koeling van gebouwen en buitenruimtes.
Conclusie
Het onderhavige planvoornemen is in lijn met de Omgevingsvisie Hilversum 2040.
Kader
De structuurvisie Bruisend Hart is vastgesteld (d.d. 9 juni 2022) en geeft op hoofdlijnen een richting aan de gewenste ontwikkelingen die de komende 10 jaar op en rondom het Oosterspoorplein plaatsvinden. Van het Oosterspoorplein en omgeving wil de gemeente een fijne, levendige en veilige plek maken: het Bruisend Hart van Hilversum-Oost. Hierbij is het belangrijk om Hilversum Oost beter te verbinden met de Stationsomgeving, het centrum en andere Hilversumse wijken. Ontmoeting, groen en veiligheid; daar is de structuurvisie Bruisend Hart op gericht. Het Oosterspoorplein en de directe omgeving transformeren uiteindelijk tot een prettige en groene verblijfsplek met de volgende kernkwaliteiten:
• Een mix van wonen, werken en voorzieningen, met ontmoetingsplekken om de levendigheid te vergroten.
• Het gebied wordt duidelijk herkenbaar als stationsomgeving, met stationsvoorzieningen en krijgt een volwaardige stationsentree.
• Afwisselende bebouwing met een menselijke maat die aansluit bij de omgeving.
• Ruimte voor iedereen, plekken voor ontspanning, beweging, spelen en ontmoeting.
• Open en toegankelijk, lopen en fietsen heeft prioriteit. Rustige straten, minder ruimte voor de auto en lage snelheden.
• Oog voor cultuurhistorie en erfgoed, zoals monumentale en gezichtsbepalende panden.
Beoordeling
Voorliggend planvoornemen is voortgekomen uit de structuurvisie Bruisend Hart. De structuurvisie is onderschreven in de Omgevingsvisie Hilversum 2040 en wordt hierin gezien als programma onder de Omgevingswet. De kernkwaliteiten van de structuurvisie zijn in het stedenbouwkundig plan verder uitgewerkt. Dit houdt in dat alle kernkwaliteiten een plek hebben gekregen in het plan. Zie hoofdstuk 3 voor een uitgebreide uiteenzetting van de ontwikkeling.
Conclusie
Met de beoogde ontwikkeling worden de kernkwaliteiten van de structuurvisie gerealiseerd. Hiermee is de ontwikkeling in lijn met de structuurvisie Bruisend Hart.
Kader
Een groener, gezonder en klimaatbestendiger Hilversum: dat is het doel van het Programma Groen Hilversum 2040 (vastgesteld d.d. 7 december 2022).
Ook in Hilversum worden de effecten van klimaatverandering gevoeld: hevigere buien, warmer weer en minder verschillende soorten planten en dieren. Het behouden, versterken en verbeteren van ons groen is dus hard nodig. Programma Groen Hilversum 2040 laat zien hoe de gemeente de komende jaren werken aan een groener en gezonder Hilversum, dat beter om kan gaan met het veranderende klimaat. Voor Programma Groen Hilversum 2040 en alle groene projecten en acties zijn er drie doelen opgesteld. Deze doelen dragen alle drie bij aan het maken van een groene, gezonde en klimaatbestendige stad.
1. Biodiversiteit: dit is de basis van het leven en ook van de stad. De biodiversiteit in Hilversum moet gestimuleerd en vergroot worden: zorgen voor meer en verschillende planten, bloemen, bomen en dieren.
2. Klimaatbestendigheid: het ontwikkelingen van een klimaatbestendige stad, met een prettig leefklimaat dat bestand is tegen toekomstige veranderingen. Bijvoorbeeld meer hitte en droogte.
3. Vitaliteit: gezond, beweging, ontspanning, Geluk, ontmoeten en samendoen groen moet beter bijdragen aan de vitaliteit van de mens.
Beoordeling
Voorliggend planvoornemen draagt bij aan alle drie de doelen van Programma Groen Hilversum. De openbare ruimte van het Bruisend Hart wordt ingericht met veel begroeiing (groen en bomen), dit zorgt voor verkoeling en gaat wateroverlast tegen. Daarnaast worden er 2 groene (stads)tuinen gerealiseerd. Deze tuinen zorgen niet alleen voor ontspanning en sociale interactie, maar dragen ook bij aan de biodiversiteit, het verminderen van hittestress en wateroverlast en de verbetering van de luchtkwaliteit. Deze groene tuinen in de stad fungeren als vitale ‘groene longen’.
Conclusie
Onderhavig planvoornemen is in lijn met Programma Groen Hilversum 2040.
Kader
De Gebiedsagenda (vastgesteld d.d. 27 januari 2021), is het resultaat van een bijzonder gebiedsproces. Een intensief proces waarin bewoners, ontwikkelende partijen, ondernemers, maatschappelijke organisaties én gemeente open en transparant de dialoog met elkaar zijn aangegaan, op basis van gelijkwaardigheid. De agenda verbindt het hier en nu met de verdere toekomst en sociale met fysieke thema's. Doel is het versterken van het woon-, werk- en leefklimaat in de Geuzenbuurt, Electrobuurt en Kleine Driftbuurt.
De opgaven voor het postcodegebied zijn het resultaat van dit bijzondere proces en die zijn wezenlijk van belang voor de wijk. Deze opgaven zijn verschillend van aard. De opgave identiteit is de grondslag voor de agenda. Er wordt voortgebouwd op de ontwikkelgeschiedenis van de wijk en op de gewenste kwaliteiten van de drie buurten. De identiteit is het vertrekpunt voor de ambities op de vier andere inhoudelijke opgaven:
1. Wonen en werken
2. Leefbaarheid, ontmoeten en spelen
3. Groen en duurzaamheid
4. Verkeer, verbinding en parkeren
Naast deze inhoudelijke opgaven gaat de Gebiedsagenda ook over het proces. Over de wijze van samenwerken. Over hoe we de samenwerking tussen bewoners, ondernemers, ontwikkelende partijen, maatschappelijke organisaties en gemeente verder kunnen versterken. Wat hiervoor nodig is in termen van organisatie, instrumenten en uitvoering. In de agenda wordt aangegeven welke keuzes er te maken zijn en welke principes richting geven aan de verdere uitwerking. De Gebiedsagenda heeft een horizon tot 2030.
Zowel op het niveau van afzonderlijke ontwikkellocaties als op het niveau van de hele wijk wordt gewerkt aan de ambities uit de Gebiedsagenda. De agenda schetst de vervolgstappen voor de ontwikkellocaties en doet suggesties voor sleutelprojecten (langere termijn) met bijbehorende pilots (korte termijn). Sleutelprojecten dragen bij aan verschillende opgaven in het gebied en verbinden de verschillende buurten. Pilots geven op kleine schaal concreet invulling aan deze sleutelprojecten. In de Gebiedsagenda worden suggesties gedaan voor enkele sleutelprojecten; Bruisend Hart, Groene Loper en Ontmoeten & Spelen.
Beoordeling
Het Bruisend Hart bevindt zich in de Kleine Driftbuurt van Hilversum. Met de beoogde ontwikkeling wordt ingespeeld op alle vier de inhoudelijke opgaven van de Gebiedsagenda. Er worden verschillende woningen gerealiseerd. Daarnaast krijgt de activiteit werken in het plangebied een grote rol. Met de toevoeging van kantoren en creatieve bedrijvigheid wordt daar richting aan gegeven. De leefbaarheid van het plangebied krijgt een kwaliteitsimpuls door het toevoegen van groen (stadstuinen) en ontmoetingsplekken. Daarnaast is voorliggend planvoornemen een natuurinclusieve ontwikkeling. Alle gebouwen in het gebied voldoen aan de duurzaamheidseisen. Aan de hand van zonnedaken en een collectief bodemenergiesysteem wordt duurzaamheid verder vormgegeven.
Verkeer, verbinding en parkeren
In het plangebied wordt gebruik gemaakt van de STOMP-principe. De voetganger (Stappen) staat voorop, gevolgd door de fietser (Trappen), het Openbaar vervoer en Mobility as a service (bijvoorbeeld deelauto’s). De Privéauto vormt het sluitstuk in de inrichting. Door de openbare ruimte in te richten volgens dit principe, verbetert de verkeersveiligheid én ontstaat er meer ruimte voor bewegen, spelen en ontmoeting.
Per auto is het gebied bereikbaar voor hulp- en nooddiensten, storingsdiensten en logistiek vervoer. Ander autoverkeer is alleen mogelijk langs de randen van het gebied: de Larenseweg/Noorderweg en de Zuiderweg. Hierdoor is er meer ruimte voor fietsers en voetgangers. Dit komt de aantrekkelijkheid en veiligheid van het gebied ten goede. Bewoners van de nieuwe woningen parkeren in de inpandige garage onder het gebouw aan de Larenseweg met circa 70 plaatsen.
De hoofdfietsroute vormt een aantrekkelijke verbinding tussen het centrum en het oostelijk deel van Hilversum.
Conclusie
Het onderhavige planvoornemen is in lijn met de Gebiedsagenda 1221.
Kader
Wet betaalbare huur
Op 1 juli 2024 is de Wet betaalbare huur in werking getreden. Met deze wetgeving is de middenhuur gereguleerd. Hierdoor gelden ook maximale huurprijzen voor middenhuur. Huurcontracten die op of na 1 januari 2025 beginnen, vallen onder de middenhuur als de huurprijs hoger is €900,07 (minstens 144 punten) én niet hoger is dan €1.184,82 (maximaal 186 punten). In de sociale sector (t/m 143 punten) is vanaf januari de maximale grens voor de aanvangshuur €900, 07. In de vrije sector (187 punten en meer) ligt de aanvangshuur boven €1.182,82. De regeling voor middenhuur geldt alleen voor nieuwe huurcontracten, afgesloten op of na 1 juli 2024. De regulering van de middenhuur heeft gevolgen voor de woningbouwprogrammering die in de Woonvisie is vastgelegd.
Woningbouwprogramma Woonvisie
In de Woonvisie is het woningbouwprogramma voor nieuwbouwontwikkelingen opgenomen. Hierin staat dat 33% van de sociale huurwoningen een sociale huurwoning van een woningcorporatie moet zijn. Daarnaast is opgenomen dat 50% van de nieuwbouwwoningen moet in het middeldure segment vallen, waarvan minimaal de helft in het lage middeldure huursegment (tot €900,- prijspeil 2021): koop tot de NHG-grens (€324.500,-, prijspeil 2021) en middenhuur (€752,- tot €1100,-).
Beoordeling
Wijziging woningbouwprogramma Woonvisie
De Wet betaalbare huur is van invloed op het woningbouwprogramma dat in de Woonvisie staat. De Wet betaalbare huur is landelijke wetgeving die boven de lokale Woonvisie gaat. Dit betekent dat het woningbouwprogramma met 25% lage middenhuur niet langer meer kan worden gevraagd aan ontwikkelaars, want deze lage midden categorie is landelijk niet benoemd.
Het woningbouwprogramma voor het middeldure segment wordt daarom als volgt: 50% van de nieuwbouwwoningen moet in het middeldure segment vallen. Het middeldure segment bestaat uit middenhuur conform het woningwaarderingsstelsel en maximaal de helft van het segment bestaat uit sociale koop tot de NHG-grens (€450.000,-, prijspeil 2025).
Inkomensgrenzen
In artikel 10 van de Huisvestingswet zijn de inkomensgrenzen vastgelegd voor huishoudens met een middeninkomen. Voor een eenpersoonshuishouden is dit €67.366,- (prijspeil 2025) en voor een meerpersoonshuishouden is dit €89.821 (prijspeil 2025).
Conclusie
Bij de planvorming van nieuwbouwwoningen geeft Hilversum vanaf nu het nieuwe woonprogramma mee. In nieuwe op te stellen anterieure overeenkomsten wordt rekening gehouden met de Wet betaalbare huur. Daarnaast kan een groot deel van de Doelgroepenverordening Hilversum niet meer worden toegepast. Bij nieuwe ontwikkelingen worden regels over doelgroepen opgenomen in het omgevingsplan, zoals hier bij Bruisend Hart. Ook wordt gewerkt aan een algemene regeling voor het uiteindelijke omgevingsplan.
Kader
Voor voorliggende omgevingsplanwijziging zijn de volgende verkeersonderzoeken uitgevoerd:
1. Nader onderzoek verkeer bij ontwikkeling Bruisend Hart in Hilversum, datum 13 mei 2022;
2. Extra verkeersonderzoek Bruisend Hart in Hilversum, 20 september 2023 (bijlage 3)
a. Memo verkeersonderzoeken Bruisend Hart (bijlage 4)
Knip
In het eerste verkeersonderzoek van 13 mei 2022 was, ter voorkoming van sluipverkeer door de wijk, naast de knip in de Kleine Drift ook een knip voorgesteld in de Eemnesserweg, terwijl in het Ontwerp Structuurvisie Bruisend Hart (januari 2022) een knip was aangebracht aan het einde van de Boerhaavestraat bij de Eemnesweg. Het lijkt een kleine aanpassing maar voor het verkeer in de wijk kan het grote gevolgen hebben. Daarom is een nieuw onderzoek uitgevoerd om in beeld te brengen wat de effecten zijn van deze aangepaste knip en de wijzigingen die dit geeft ten aanzien van het bestaande verkeersonderzoek uit mei 2022. De laatste rapportage is een actualisatie van het eerste verkeersonderzoek, gegeven de aangepaste uitgangspunten.
Varianten (autoverbinding)
In het onderzoek van 20 september 2023 zijn ten opzichte van de referentiesituatie 2040 twee varianten uitgewerkt.
A. Zonder autoverbinding (Larenseweg-Zuiderweg);
B. Met autoverbinding (Larenseweg-Zuiderweg).
Beoordeling
Knip Kleine Drift
Het Bruisend Hart ligt direct aan het spoor. Dit brengt spoorweglawaai met zich mee. Daarbij zijn er in het gebied enkele doorgaande verkeerswegen die ook voor een geluidsbelasting zorgen. De ‘knip’ in de Kleine Drift tussen de Larenseweg en de Zuiderweg en de sluiting van de Kleine Spoorbomen zorgt dat er minder doorgaand autoverkeer in het gebied komt. Dit verbetert de luchtkwaliteit en vermindert geluidoverlast.
Knip Boerhaavestraat - Eemnesserweg
Situering van de knip op de Boerhaavestraat geeft reële risico’s op sluipverkeer door de wijk van verkeer dat via de Bakkerstraat, Galvanistraat of Ampèrestraat en de Eemnesserweg een alternatieve route vindt om naar de Larenseweg te rijden. Dit risico kan vermeden worden door de knip niet in de Boerhaavestraat te situeren, maar in het verlengde, op de Eemnesserweg, juist voor de aansluiting met de Larenseweg. Uit het eerste verkeersonderzoek bleek dat dit risico op sluipverkeer door de wijk in dat geval niet aanwezig was. Aanbeveling is daarom de aanvullende knip niet op de Boerhaavestraat, maar op de Eemnesserweg te situeren. Deze aanbeveling wordt overgenomen in het stedenbouwkundig plan.
Varianten A en B (1 en 3)
In beide varianten zal het verkeer op andere hoofdwegen zoals Jan van der Heijdenstraat en de buitenring in meer en mindere mate toenemen ten opzichte van de Referentiesituatie 2040. De vraag is echter wat de verschillen zijn ten opzichte van elkaar. In tabel 6-1 zijn de verschillen tussen beide varianten uitgewerkt.
De vraag is of het verkeer met bijbehorende problematiek nu niet overmatig wordt afgewenteld naar de hoofdwegen. Voor zowel de buitenring Noord als Oost hebben beide varianten weinig invloed op de verkeersintensiteiten. Het grootste verschil zit op de Jan van der Heijdenstraat. In beide varianten zal de verkeersintensiteit op de Jan van der Heijdenstraat gaan toenemen. In variant A (zonder autoverbinding) is de verkeerstoename het grootst.
In beide varianten zal dit op meetpunt 10 (ter hoogte van Seinhorst) zorgen voor oversteekproblemen en een verhoging van de risico’s in de verkeersveiligheid. Dit komt omdat hier de Jan van der Heijdenstraat een 30 km per uur zone is en fietsers zich mengen met het gemotoriseerd verkeer. Aanvullende maatregelen op dit deel van de Jan van der Heijdenstraat zijn aan te bevelen. Op de andere hoofdwegen is het fietsverkeer gescheiden van het gemotoriseerd verkeer en daarom zal dat niet tot verkeersveiligheidsproblemen gaan leiden.
Omdat het niet wenselijk is om de verkeersstromen in het Bruisend Hart overmatig af te wentelen richting de Jan van Heijdenstraat is gekozen voor de variant met de minste impact op de omgeving. Dit is variant B (3 in de memo), waarin een auto-te-gastverbinding tussen de Larenseweg en de Zuiderweg wordt gerealiseerd (zie figuur 6-2).
Conclusie
Naar aanleiding van het verkeersonderzoek is door de gemeenteraad een keuze gemaakt voor variant B (3 in de memo), waarin een auto-te-gastverbinding tussen de Larenseweg en de Zuiderweg wordt gerealiseerd. Daarnaast wordt sluipverkeer tegengegaan door de knip tussen de Larenseweg en de Eemnesserweg te realiseren. Dit is overgenomen in het stedenbouwkundig plan.
Kader
Voor het berekenen van de parkeerbehoefte is gebruik gemaakt van de Nota parkeernormen gemeente Hilversum (2023). Er is net als bij de verkeersgeneratie uitgegaan van ‘Sterk stedelijk’ in het ‘centrum (OV-knooppunten)’. De parkeernorm voor het centrum in Hilversum en de OV-knooppunten is 50% van de gemiddelde CROW-norm voor het centrum.
Beoordeling
Als gevolg van dit plan zullen vier parkeerplaatsen langs de Zuiderweg en vijftien parkeerplaatsen ten zuiden van de Swammerdamstraat vervallen. Deze ruimte is benodigd om de nieuwbouw langs de Larenseweg te realiseren en een veilige autoverbinding via de Zuiderweg te kunnen maken. De verwachting is dat het opheffen van deze parkeerplaatsen niet ten koste gaat van de bereikbaarheid van de verschillende functies in het gebied. Dit is gebaseerd op een parkeerdrukmeting.
Ondanks de volledige herinrichting van het openbaar gebied blijft het parkeren voor een aantal functies in de openbare ruimte gehandhaafd. De Kiss & Ride voorziening komt terug aan de Zuiderweg en de Larenseweg/Noorderweg, net als parkeren voor mindervaliden, deelauto’s en laad- en losruimte. Mogelijk worden deze huidige parkeerplaatsen verplaatst naar een andere plek binnen het gebied. De parkeerplaatsen langs de Zuiderweg, tussen de Kleine Drift en het spoor, blijven in aantal ongewijzigd. Er worden drie parkeerplaatsen aangelegd voor storingsmonteurs van ProRail nabij de stationsentree.
In de volgende tabel is de toekomstige toegevoegde situatie beschreven voor de parkeerbehoefte.
Op basis van de gestelde uitgangspunten in CROW-publicatie 381 “Toekomstbestendig parkeren” en de Nota parkeernormen Hilversum bedraagt de parkeerbehoefte 124 parkeerplaatsen (zonder aanwezigheidspercentages).
Bovenstaande gegevens zijn verwerkt met de aanwezigheidspercentages uit de Nota parkeernormen van de gemeente Hilversum. Dit resulteert in een parkeerbalans van tabel 6-4.
De parkeerbalans in tabel 6-4 toont aan dat de ontwikkeling in deze vorm een totale parkeereis kent van afgerond 75 parkeerplaatsen tijdens de koopavond.
In het stedenbouwkundig plan van Bruisend Hart bijgevoegd als bijlage 1 bij deze ruimtelijke motivering, is de wijze waarop de parkeeropgave van de ontwikkeling wordt georganiseerd beschreven. Het auto parkeeraanbod voor het Bruisend Hart wordt gerealiseerd in:
• parkeergarage (ca. 70 plaatsen) in bouwblok C aan de Larenseweg en
• in de openbare ruimte.
Gezien de centrale plek van het station in het gebied, is het uitgangspunt dat bewoners en gebruikers van het gebied met het OV reizen. Daarom zal naar verwachting een deel van de vereiste parkeerplaatsen worden afgekocht, zodat er minder parkeerplaatsen nodig zijn. Hierdoor blijft er meer ruimte over voor fiets- en wandelvoorzieningen in het gebied.
Conclusie
Op basis van bovenstaande vormt het aspect parkeren geen belemmering voor de ontwikkeling. De parkeernormen worden geborgd in de regels van het omgevingsplan.
Kader
Milieuzonering is een instrument dat helpt bij het afwegen en verantwoorden van keuzes aangaande nieuwe woningbouw- en bedrijvenlocaties en beperkt zich tot milieuaspecten met een ruimtelijke dimensie. Het gaat hierbij om de milieuaspecten 'geluid', 'geur', 'stof' en 'gevaar', waarbij de belasting afneemt naarmate de afstand tot de bron toeneemt. Om ervoor te zorgen dat nieuwe woningen op een verantwoorde afstand van bedrijven gesitueerd worden en dat nieuwe bedrijven een passende locatie in de nabijheid van woningen krijgen, is de VNG-handreiking 'Bedrijven en milieuzonering' opgesteld. Door toepassing te geven aan deze handreiking wordt zoveel mogelijk voorkomen dat woningen hinder en gevaar ondervinden van bedrijven en dat die bedrijven in hun milieugebruiksruimte worden beperkt. In de handreiking zijn richtafstanden opgenomen voor een scala aan milieubelastende activiteiten, opslagen en installaties. De richtafstand geldt vanaf de grens van de inrichting tot de bestemmingsgrens van omliggende woningen en betreft nadrukkelijk een leidraad en geen norm. Indien goed gemotiveerd en onderbouwd door middel van relevant milieutechnisch onderzoek, kan ervoor worden gekozen van de richtafstand af te wijken.
Het plangebied in Hilversum bevindt zich in gemengd gebied vanwege de verschillende gemengde activiteiten (bestemmingen) die zich in de omgeving van het plangebied bevinden.
Beoordeling
De beoogde ontwikkeling betreft de realisatie van een gemengd programma met wonen, werken (kantoren en bedrijvigheid), detailhandel (winkels), horeca (cafés) en maatschappelijk (gezondheidscentrum). De gevoelige functies in voorliggende ontwikkeling betreft wonen en het gezondheidscentrum.
Toetsing gevoelige functie ten opzicht van bedrijven in omgeving
Wonen wordt gerealiseerd aan de noordkant van de Larenseweg (bouwblok C) en in het stationsgebouw (bouwblok A). Het gezondheidscentrum komt op de rechterhoek van bouwblok C. Zie de volgende afbeelding voor de locatie van de woningen en het gezondheidscentrum.
In de omgeving van deze gevoelige functies zijn er enkele bedrijven aanwezig met een milieucategorie. Aan de noordkant van bouwblok C (Larenseweg) bevindt zich een gebied met de gebruiksactiviteit ‘Exploiteren van bedrijf t/m categorie 2’ (zie figuur 6-5). Hier zijn bedrijven tot ten hoogste categorie 2 mogelijk. In een gemengd gebied betekent dit dat er ten minste 10 meter afstand gehouden dient te worden tussen een bedrijf van categorie 2 tot aan een woning of een gezondheidscentrum. De tuinen van de woningen aan de Geuzenweg grenzen direct aan het gebied met genoemde gebruiksactiviteit. De bebouwing van bouwblok C aan de Larenseweg lijkt voor een groot deel de 10 meter afstand te houden. In figuur 6-4 is de indicatieve bouwblok indeling te zien. Binnen de richtafstand van 10 meter is daar de bouw van woningen mogelijk. Op dit moment wordt onderzocht of op basis van de al aanwezige woningen aan de Geuzenweg ook aan deze zijde binnen de 10 meter zone woningbouw te realiseren is. Mogelijk wordt er een onderzoeksverplichting opgenomen gekoppeld aan de omgevingsvergunning voor het bouwen van de woningen.
Toetsing bedrijven (in plangebied) ten opzicht van gevoelige functies in omgeving
De enige bedrijven (kantoren) die gerealiseerd worden met onderliggend planvoornemen bevinden zich in het Stationsgebouw (bouwblok A, vooral kantooractiviteiten) en het blok aan de Zuiderweg (bouwblok B). Dit is het kleine blok aan het spoor. Hier worden kantoren en bedrijvigheid gerealiseerd. De bedrijvigheid in bouwblok B zijn inspirerende werkplekken/kantoren. Het kunnen opnamestudio’s zijn of kleine “maak” bedrijfjes in een lichte milieucategorie. Bouwblok B staat op voldoende afstand van gevoelige functie in de omgeving.
Detailhandel
Detailhandel is op basis van de bedrijvenlijst in de VNG-brochure ingedeeld als categorie A. Dit betekent dat de functie zodanig weinig milieubelastend is dat deze aanpandig aan woningen kan worden uitgevoerd. Er hoeft dus geen ‘vrije’ afstand in acht te worden genomen tussen het perceel van een detailhandelsvoorziening en een nabijgelegen woning. In de praktijk wordt dit ook al in de omgeving toegestaan. Boven detailhandel voorzieningen zijn nu ook al woningen gesitueerd. Op grond van de VNG-brochure kan worden geconcludeerd dat er uit oogpunt van milieuhinder geen bezwaren zijn om de beoogde detailhandelsvoorzieningen te vestigen binnen het besluitgebied.
Conclusie
Binnen en rondom het plangebied is met betrekking tot milieuzonering een acceptabel woon- en leefklimaat verzekerd. Onderhavig initiatief belemmert daarnaast omliggende inrichtingen niet in hun bedrijfsvoering. Ten aanzien van milieuzonering is met het bouwplan geen belemmering voor onderhavig planvoornemen.
Kader
De maatschappelijk doelen van de Omgevingswet zijn het beschermen en benutten van de fysieke leefomgeving. Omgevingsveiligheid gaat daarbij over de risico's die ontstaan als gevolg van opslag of handelingen met gevaarlijke stoffen bij een milieubelastende activiteit (mba). Het Besluit kwaliteit leefomgeving (Bkl), een uitvoeringsbesluit van de Omgevingswet, geeft de hoofdlijnen voor de beoordeling voor de omgang met omgevingsveiligheid.
Binnen de omgevingsveiligheid staan twee kernbegrippen centraal: het plaatsgebonden risico en het groepsrisico. Hoewel beide begrippen onderlinge samenhang vertonen zijn er belangrijke verschillen. Hieronder worden beide begrippen verder uitgewerkt. Aansluitend worden andere belangrijke begrippen toegelicht.
Plaatsgebonden Risico (PR)
Het plaatsgebonden risico (PR) geeft de kans, op een bepaalde plaats, om te overlijden ten gevolge van een ongeval bij een risicovolle activiteit. De kans heeft betrekking op een fictief persoon die 24 uur per dag op die plaats aanwezig is. Het PR kan op de kaart van het gebied worden weergeven met zogeheten risicocontouren: lijnen die punten verbinden met eenzelfde PR. De bescherming die binnen deze contouren geboden moet worden is afhankelijk van de kwetsbaarheid van de functies in de gebouwen en locaties. Bijlage VI van het Besluit kwaliteit leefomgeving maakt onderscheidt in zeer kwetsbare functies zoals ziekenhuizen en kinderdagverblijven, kwetsbare functies zoals woningen, en beperkt kwetsbare functies zoals kleine kantoren en werkplaatsen.
Binnen de 10-6/jaar-contour (welke als grenswaarde fungeert) mogen geen nieuwe (zeer) kwetsbare gebouwen gerealiseerd worden. Voor beperkt kwetsbare gebouwen geldt de 10-6/jaar-contour niet als grenswaarde, maar als een richtwaarde. Dat betekent dat die functies in principe niet zijn toegestaan, maar dat het bevoegd gezag met een goede motivatie mogelijk kan afwijken.
Aandachtsgebieden en groepsrisico (GR)
Vanaf het van kracht worden van de Omgevingswet bestaan er, voor toen bestaande risicovolle mba’s, van rechtswege aandachtsgebieden langs of rondom een risicovolle mba. In bijlage VII van het Besluit kwaliteit leefomgeving wordt – voor de daarin aangewezen risicobronnen – een vaste afstand voor deze aandachtsgebieden gegeven, of is aangegeven dat deze aandachtsgebieden berekend moeten worden. Een aandachtsgebied is een gebied waarbinnen personen in een gebouw onvoldoende beschermd kunnen zijn tegen de gevolgen van een incident met gevaarlijke stoffen. De Omgevingswet kent drie soorten aandachtsgebieden:
• Een brandaandachtsgebied (bijvoorbeeld voor een plasbrand langs het spoor of fakkelbrand bij een hogedruk aardgastransportleiding);
• Een explosieaandachtsgebied (bijvoorbeeld voor een BLEVE langs het spoor of bij een LPG-tankstation);
• Een gifwolkaandachtsgebied (bijvoorbeeld rondom chemische bedrijven).
Binnen een aandachtsgebied moet de gemeente in het omgevingsplan beschouwen hoe groepen mensen beschermd worden en of deze bescherming afdoende is (artikel 5.15 Bkl). Een gemeente kan daarbij gebruik maken van een groepsrisicoberekening om de rekenkundige hoogte van het groepsrisico te bepalen.
Kans en effect
Een aandachtsgebied markeert het gebied waarbinnen het effect van een incident met gevaarlijke stoffen het meest nadrukkelijk optreedt. De omvang van een aandachtsgebied zegt niets over de kans op een incident. Het aandachtsgebied langs de Betuweroute is bijvoorbeeld even breed als het aandachtsgebied langs een spoorlijn waarover maar weinig gevaarlijke stoffen worden vervoerd. De plaatsgebonden risicocontour, de contour die de kans op een incident ruimtelijk weergeeft, is langs de Betuweroute echter vele meters breder dan bij een spoorlijn met weinig vervoer van gevaarlijke stoffen.
Voorschriftengebieden
Aandachtsgebieden zijn geïntroduceerd om een betere communicatie over de ruimtelijke impact van incidenten met gevaarlijke stoffen mogelijk te maken. Binnen een brand- en explosieaandachtsgebied moet een gemeentevoorschriftengebieden aanwijzen als het omgevingsplan zeer kwetsbare functies toestaat . Als het omgevingsplan geen zeer kwetsbare functies toestaat, maar enkel kwetsbare of beperkt kwetsbare functies, kán een gemeente een voorschriftengebied aanwijzen. Binnen een voorschriftengebieden gelden er bij nieuwbouw aanvullende bouwkundige eisen, conform artikel 4.90 tot en met 4.96 van het Besluit bouwwerken leefomgeving (Bbl). Deze bouwkundige eisen gelden niet voor de bestaande bebouwing of bij verbouw.
Attentiegebieden
Aandachtsgebieden zijn gebieden waar personen binnenshuis onvoldoende bescherming kunnen hebben in geval van een incident met gevaarlijke stoffen. Omdat personen niet enkel binnen verblijven hanteren Veiligheidsregio’s deze zogenaamde attentiegebieden, met als doel om binnen deze gebieden te toetsen hoe de veiligheid voor personen in de open lucht geoptimaliseerd kan worden.
Brzo-bedrijven zijn Seveso-bedrijven geworden
De zwaardere risicovolle bedrijven zijn in lijn met de Europese regelgeving aangewezen als Seveso-bedrijven (voorheen was de Nederlandse benaming: Brzo-bedrijf). Op onderdelen verschilt het wettelijk kader van Seveso-bedrijven van dat van andere milieubelastende activiteiten (mba). Voor Seveso-bedrijven geldt eenzelfde normering van het plaatsgebonden risico en gelden ook aandachtsgebieden.
Beoordeling
Antea Group heeft een omgevingsveiligheid analyse uitgevoerd en deze afgestemd met de regionale brandweer. Voor de volledige analyse wordt verwezen naar bijlage 5 van voorliggende motivering. De spoorlijn Weesp-Hilversum (route 30) is vanuit omgevingsveiligheid de enige relevante risicobron in de omgeving van het plangebied.
• De spoorlijn heeft ter hoogte van het plangebied een 10-6 per jaar plaatsgebonden risicocontour van 1 meter. Het plangebied ligt ruim buiten deze risicocontour. Er wordt voldaan aan de grens- en richtwaarde ten aanzien van het plaatsgebonden risico;
• Het plangebied ligt binnen het brand-, explosie- en gifwolkaandachtsgebied van de spoorlijn. Conform artikel 5.15 van het Bkl dient het bevoegd gezag in het omgevingsplan te beschouwen hoe groepen mensen beschermd worden en of deze bescherming afdoende is. Elementen van deze beschouwing zijn aangedragen in hoofdstuk 4.
• Het plangebied ligt binnen het verplichte brandvoorschriftengebied van de spoorlijn. Binnen dit gebied (30 meter) gelden de bouwkundige maatregelen conform artikel 4.90 t/m 4.95 van het Bbl.
• Binnen het plangebied worden zeer kwetsbare gebouwen toegestaan. De gemeente dient het explosieaandachtsgebied van de spoorlijn route 30 binnen het plangebied (gedeeltelijk) aan te wijzen als explosievoorschriftengebied. Binnen dit gebied (200 meter) gelden de bouwkundige maatregelen conform artikel 4.96 van het Bbl.
Conclusie
Het beoogde voornemen houdt zich aan de regels/ maatregelen die van toepassing zijn op het plangebied met betrekking tot het Bbl. Hiermee vormt omgevingsveiligheid geen belemmering voor de ontwikkeling.
Kader
Ingevolge de Omgevingswet dient voor het opstellen van een omgevingsplan of in het kader van de beoordeling van een aanvraag voor een buitenplanse omgevingsplanactiviteit (BOPA) rekening te worden gehouden met onder andere het geluid door wegen op (bestaande en/of beoogde) geluidgevoelige gebouwen, waarbij wordt beoordeeld in hoeverre het geluideffect aanvaardbaar is en daarmee, vanuit optiek van geluid, sprake is van een evenwichtige toedeling van functies aan locaties. In dit hoofdstuk wordt dit nader uitgewerkt. Als basis voor beoordeling worden de instructieregels ingevolge het Besluit kwaliteit leefomgeving (Bkl) gehanteerd in samenhang met de regels die volgen uit hoofdstuk 22 van het omgevingsplan (Bruidsschat).
Geluid op geluidgevoelige objecten door omliggende wegen
In het tijdelijke omgevingsplan van de gemeente Hilversum zijn geen regels opgenomen voor geluid als gevolg van wegen.
Beoordelen aanvaardbaarheid/evenwichtige toedeling van functies aan locaties (Bkl)
Artikel 5.78t. (hoofdregel toelaten van geluidgevoelig gebouw)
1. Een omgevingsplan dat een nieuw geluidgevoelig gebouw toelaat, voorziet erin dat het geluid op dat gebouw niet hoger is dan de standaardwaarde, bedoeld in tabel 5.78t van het Besluit kwaliteit leefomgeving.
Artikel 5.78u. (overschrijding standaardwaarde)
1. Een omgevingsplan dat een nieuw geluidgevoelig gebouw toelaat, kan erin voorzien dat het geluid op dat gebouw hoger is dan de standaardwaarde, bedoeld in tabel 5.78t Bkl; als:
a. Geen geluidbeperkende maatregelen kunnen worden getroffen om aan de standaardwaarde te voldoen;
b. De overschrijding van de standaardwaarde door het treffen van geluidbeperkende maatregelen zoveel mogelijk wordt beperkt; en
c. Het geluid op geluidgevoelige gebouwen niet hoger is dan de grenswaarde, bedoeld in tabel 5.78u Bkl.
2. Als toepassing is gegeven aan artikel 3.27, tweede lid, geldt voor het geluid door de gemeenteweg en de lokale spoorweg gezamenlijk de grenswaarde voor gemeentewegen, bedoeld in tabel 5.78u.
3. Geluidbeperkende maatregelen als bedoeld in het eerste lid worden in aanmerking genomen als die financieel doelmatig zijn en daartegen geen overwegende bezwaren van stedenbouwkundige, verkeerskundige, vervoerskundige, landschappelijke of technische aard bestaan.
Artikel 5.78ab. (belang van een geluidluwe gevel)
1. Bij de toepassing van artikel 5.78u wordt het belang van het beschermen van de gezondheid door een geluidluwe gevel betrokken.
2. Bij de toepassing van de artikelen 5.78v, 5.78w, 5.78x, 5.78y en 5.78aa wordt rekening gehouden met het belang van het beschermen van de gezondheid door een geluidluwe gevel.
Artikel 5.78ac. (beoordelen aanvaardbaarheid gecumuleerd geluid)
Bij de toepassing van de artikelen 5.78u, 5.78v, 5.78w, 5.78x, 5.78y en 5.78aa wordt de aanvaardbaarheid van het gecumuleerde geluid op het geluidgevoelige gebouw beoordeeld.
Artikel 5.78ad. (bepalen van gezamenlijk geluid)
Bij de toepassing van de artikelen 5.78u, 5.78v, 5.78w, 5.78x, 5.78y en 5.78aa wordt het gezamenlijke geluid op de gevel van geluidgevoelige gebouwen bepaald en in het omgevingsplan vastgelegd.
Geluidaandachtsgebied
Een geluidaandachtsgebied is het gebied langs een weg, spoorweg of rond industrieterrein waar het geluid hoger kan zijn dan de standaardwaarde (artikel 3.20 Bkl).
Omgevingsregeling
Artikel 17.5. (overgangsrecht geluidaandachtsgebied voor gemeentewegen, lokale spoorwegen en waterschapswegen)
1. Tot een bij koninklijk besluit te bepalen tijdstip waarop de gegevens voor de basisgeluidemissie uiterlijk worden verzameld, bestaat het geluidaandachtsgebied uit het gebied dat zich aan weerszijden van de as van de weg uitstrekt tot de volgende afstand, gemeten vanaf de rand van de weg of de buitenste spoorstaaf van de spoorweg:
a. voor een weg, bestaande uit een of twee rijstroken, waarvoor een maximumsnelheid van 30 km/u of minder geldt: 100 m;
b. voor een weg, bestaande uit een of twee rijstroken, waarvoor een onbekende maximumsnelheid of een maximumsnelheid van meer dan 30 km/u geldt, en een spoorweg, bestaande uit een of twee sporen: 200 m; en
c. voor een weg, bestaande uit drie of meer rijstroken, en een spoorweg, bestaande uit drie of meer sporen: 350 m.
2. Als een lokale spoorweg grotendeels is verweven of gebundeld met een gemeenteweg wordt bij de toepassing van het eerste lid het totaal van het aantal sporen of rijstroken beschouwd.
Geluid op geluidgevoelige objecten door activiteiten
Regels tijdelijke omgevingsplan gemeente Hilversum
Omgevingsplan gemeente Hilversum
Artikel 22.64 Geluid: waarden voor geluidgevoelige gebouwen
1. Met het oog op het voorkomen of het beperken van geluidhinder is het geluid door een activiteit op een geluidgevoelig gebouw, niet hoger dan de waarde, bedoeld in tabel 22.3.1. van het omgevingsplan gemeente Hilversum.
2. Met het oog op het voorkomen of het beperken van geluidhinder is, in afwijking van het eerste lid, het geluid van een activiteit die wordt verricht op een Activiteitenbesluit-bedrijventerrein, op een geluidgevoelig gebouw op dat terrein, niet hoger dan de waarde, bedoeld in tabel 22.3.2.
3. Met het oog op het voorkomen of het beperken van geluidhinder is het geluid door een activiteit, in een geluidgevoelige ruimte binnen een in- of aanpandig geluidgevoelig gebouw, niet hoger dan de waarde, bedoeld in tabel 22.3.3.
4. De in het eerste lid opgenomen maximale geluidniveaus LAmax zijn niet van toepassing op laden en lossen in de periode tussen 07.00 en 19.00 uur.
Beoordelen aanvaardbaarheid/ evenwichtige toedeling van functies aan locaties
Besluit kwaliteit leefomgeving
Artikel 5.65. (standaardwaarden en grenswaarden voor geluidgevoelige ruimten binnen in- en aanpandige geluidgevoelige gebouwen)
1. Een omgevingsplan bevat:
a. Als waarden de standaardwaarden, bedoeld in tabel 5.65.1, voor het toelaatbare geluid door een activiteit op een geluidgevoelig gebouw; en
b. Als waarden de grenswaarden, bedoeld in tabel 5.65.2, voor het toelaatbare geluid in geluidgevoelige ruimten binnen in- en aanpandige geluidgevoelige gebouwen.
2. Als een omgevingsplan een activiteit toelaat op een in het omgevingsplan aangewezen bedrijventerrein, kan het omgevingsplan, in afwijking van het eerste lid, aanhef en onder a, voor het langtijdgemiddelde beoordelingsniveau LAr,LT van geluid en het maximaal geluidniveau LAmax door die activiteit op geluidgevoelige gebouwen op dat bedrijventerrein als waarden de standaardwaarden, bedoeld in tabel 5.65.1, verhoogd met 5 dB(A), bevatten.
3. Als een omgevingsplan een activiteit toelaat in een in het omgevingsplan aangewezen agrarisch gebied kan het omgevingsplan, in afwijking van het eerste lid, aanhef en onder a, in samenhang met tabel 5.65.1, eerste rij, voor het langtijdgemiddelde beoordelingsniveau LAr,LT van geluid door die activiteit op geluidgevoelige gebouwen binnen dat agrarische gebied als waarden de standaardwaarden, bedoeld in tabel 5.65.1, eerste rij, verlaagd met 5 dB(A), bevatten.
4. Als het omgevingsplan een woonschip toelaat, kan het omgevingsplan, in afwijking van het eerste lid, aanhef en onder a, en het derde lid, voor het langtijdgemiddelde beoordelingsniveau LAr,LT van geluid en het maximaal geluidniveau LAmax door de activiteit op dat woonschip als waarden de standaardwaarde, bedoeld in tabel 5.65.1, verhoogd met 5 dB(A), bevatten:
1°. als de locatie voor 1 juli 2012 voor een woonschip was bestemd; of
2°.als de locatie voor 1 juli 2012 in een gemeentelijke verordening is aangewezen om door een drijvende woonfunctie te worden ingenomen en voor 1 juli 2022 voor een woonschip is bestemd, of als de aanwezigheid van een woonschip voor 1 juli 2022 in het omgevingsplan is toegelaten.
5. Op het bepalen van het geluid waarvoor een omgevingsplan een waarde als bedoeld in het eerste lid, aanhef en onder b, bevat, zijn de bij ministeriële regeling gestelde regels van toepassing.
VNG-publicatie ‘Servicedocument Activiteiten en milieuzonering Omgevingswet
Als eerste maat voor het bepalen of sprake is van een goede ruimtelijke ordening wordt de VNG-publicatie ‘Servicedocument Activiteiten en milieuzonering Omgevingswet (Milieuzonering Nieuwe Stijl)’ gehanteerd. In deze publicatie is een aanbevolen beoordelingswijze opgenomen.
In de VNG-publicatie worden drie mogelijkheden beschreven om in te schatten of een bepaalde activiteit past binnen de toepasselijke zone voor geluid en of akoestisch onderzoek nodig is:
1. Optie 1 is een inschatting aan de hand van concrete criteria voor geluid;
2. Optie 2 is het aanvullend op optie 1 verkrijgen van een indicatie aan de hand van de getransponeerde VNG-tabel 2009;
3. Optie 3 is het verkrijgen van duidelijkheid door het zo nodig uitvoeren van gericht onderzoek.
Optie 1: Inschatting maken aan de hand van concrete criteria voor geluid
Voor het aspect geluid (anders dan menselijk stemgeluid) zijn een aantal, meest ‘maatgevende’ variabelen geselecteerd, die geformuleerd zijn als afwegingsvraag. Afhankelijk van het antwoord op de afwegingsvragen is een activiteit op een bepaalde locatie naar verwachting wel of niet passend.
Optie 2: Een indicatie verkrijgen aan de hand van de getransponeerde VNG-tabel 2009 (richtafstanden)
Aanvullend op optie 1 kan de Lijst van bedrijfsactiviteiten in bijlage 1 van de VNG-uitgave Bedrijven en milieuzonering 2009 een goed aanknopingspunt bieden voor een indicatie van de inpasbaarheid van een activiteit met betrekking tot geluid.
Optie 3: Geluidonderzoek
Voor bepaalde activiteiten geldt dat in het omgevingsplan is aangegeven dat toelating alleen mogelijk is als er een geluidonderzoek is uitgevoerd. Bijvoorbeeld op basis van het (bruidsschat) artikel 22.60. Het uitvoeren van een geluidonderzoek geeft uiteraard het beste beeld van de inpasbaarheid van een activiteit binnen een bepaalde zone voor geluid of in een gebied met functiemenging.
Beoordeling
Als basis voor beoordeling in hoeverre in deze situatie sprake is van een evenwichtige toedeling van functies aan locaties, worden de instructieregels ingevolge het Besluit kwaliteit leefomgeving gehanteerd in samenhang met de regels die volgen uit het vigerende omgevingsplan (Bruidsschat).
Op dit moment is er nog geen informatie over de geluidaandachtsgebieden van de gemeentewegen in de omgeving van het plangebied. Om deze reden wordt het overgangsrecht uit artikel 17.5 van de Omgevingsregeling (Or) aangehouden. Hieruit volgt dat de nieuwe ontwikkeling in het geluidaandachtsgebied liggen van:
• Spoorlijn,
• Zuiderweg,
• Kleine Drift,
• Larenseweg,
• Swammerdamstraat,
• Noorderweg,
• Eemnesserweg,
• Geuzenweg,
• Boerhaavestraat, en
• Oude Eemnesserstraat.
In de onderhavige situatie is sprake van nieuw te bouwen woningen.
Voor de geluidgevoelige objecten zijn derhalve de volgende waarden van toepassing:
Antea Group heeft een akoestisch onderzoek uitgevoerd. Voor het volledige onderzoek wordt verwezen naar bijlage 6 van voorliggende motivering.
Rekenresultaten
Gemeentewegen
Uit de resultaten blijkt dat de geluidbelasting ten gevolge van gemeentewegen op E Bouwblok aan de Larenseweg hoogstens 55 dB bedraagt op geluidgevoelige functies. Dit is hoger dan de standaardwaarde van 53 dB Lden, maar lager dan de grenswaarde van 70 dB. De maatgevende geluidbron is de Larenseweg.
Daarnaast blijkt uit de resultaten dat de geluidbelasting ten gevolge van gemeentewegen op D Noordelijk stationsblok hoogstens 53 dB bedraagt. Er wordt voldaan aan de standaardwaarde.
Railverkeer
De standaardwaarde wordt overschreden aan het westelijke deel van het bouwblok Larenseweg. De geluidbelasting op het bouwblok Larenseweg voldoet met hoogstens 57 dB wel aan de grenswaarde.
Uit de resultaten blijkt dat de geluidbelasting ten gevolge van railverkeer op het noordelijk stationsblok hoogstens 69 dB bedraagt. Dit is hoger dan de grenswaarde van 65 dB.
Gecumuleerd/gezamenlijk geluid
Uit de berekening blijkt dat de gezamenlijke geluidbelasting ten gevolge van railverkeer + wegverkeer op het noordelijk stationsblok hoogstens 69 dB bedraagt. Daarnaast is de gecumuleerde geluidbelasting ten gevolge van railverkeer + wegverkeer hoogstens 62 dB. Het spoorlawaai is hierbij maatgevend.
De gezamenlijke geluidbelasting op het bouwblok aan de Larenseweg bedraagt hoogstens 57 dB ten gevolge van railverkeer + wegverkeer. Wegverkeerslawaai is hierbij maatgevend. Daarnaast is de gecumuleerde geluidbelasting ten gevolge van railverkeer + wegverkeer hoogstens 58 dB. Spoorlawaai is hierbij maatgevend.
Geluid door activiteiten
De busremise bevindt zich direct naast de woningen van het bouwblok Larenseweg waardoor de busremise zal leiden tot geluidhinder voor de toekomstige bewoners. Plannen om in de toekomst (vanaf 2030) een andere locatie voor de busremise te vinden wordt aangeraden om een evenwichtige toedeling van functies aan locaties te waarborgen. In het geval de busremise op deze locatie blijft is alleen een evenwichtige toedeling van functies aan locaties te borgen indien in het ontwerp van de woningbouw rekening wordt gehouden met de busremise, door bijvoorbeeld rekening te houden met de indeling van de woningen, het toepassen van goed isolerende (dove) gevels of door het plaatsen van afscherming.
Maatregelen
Bron- en overdrachtsmaatregelen
Voor deze opzichzelfstaande ontwikkeling achten wij bron- en overdrachtsmaatregelen niet doelmatig.
Ontvangersmaatregelen
Er wordt geadviseerd om de gevelwering met een hogere geluidreductie uit te voeren om de toekomstige bewoners te beschermen voor het geluid van buitenaf. Daarnaast bestaat er de mogelijkheid om aan de westzijde van het noordelijk stationsblok te kiezen voor geen geluidgevoelige bestemmingen, zoals werken in plaats van wonen, of het toepassen van niet-geluidgevoelige gevels.
Argumentatie voor gemeentelijke afweging
Voor wat betreft de gemeentelijke afweging in hoeverre het geluideffect aanvaardbaar is en in hoeverre er daarmee, vanuit optiek van geluid, sprake is van een evenwichtige toedeling van functies aan locaties kan bij de beoordeling worden aangesloten bij het Besluit bouwwerken leefomgeving.
Besluit bouwwerken leefomgeving (Bbl)
Uit artikel 4.103 Bbl volgt dat, als gevolg van weg-, spoorweg- of industriegeluid of geluid door activiteiten, de geluidwering niet kleiner mag zijn dan het verschil tussen het bepaalde gezamenlijke geluid en 33 dB. Uit artikel 4.102 Bbl volgt dat de minimaal toe te passen geluidwering 20 dB moet bedragen.
In achtneming van bovenstaande kan de minimale gevelwering worden bepaald. Het gezamenlijk geluid bedraagt ten hoogste 69 dB. Om het binnenniveau van 33 dB te behalen, dient de gevelwering minstens 36 dB te bedragen voor de westzijde van het noordelijk stationsblok.
Daarnaast bedraagt het gezamenlijk geluid ten hoogste 57 dB op het bouwblok Larenseweg. Om het binnenniveau van 33 dB te behalen, dient de gevelwering minstens 24 dB te bedragen voor de westzijde van dit bouwblok aan de Larenseweg.
Indien deze gevelwering wordt toegepast, achten wij het daarmee aannemelijk dat sprake is van een aanvaardbaar effect van geluid op het plan. Het uiteindelijke oordeel met betrekking tot de aanvaardbaarheid van geluid is aan de gemeente.
Conclusie
Op basis van het bovenstaande kan er geconcludeerd worden dat het aspect geluid geen belemmering vormt voor het planvoornemen.
Kader
Omgevingswet
Spoorwegen zijn een van de belangrijkste bronnen van trillingen. Om trillingshinder te voorkomen, is bij nieuwbouw van woningen langs het spoor onderzoek nodig naar trillingen door voorbij rijdende treinen. In de Omgevingswet zijn er geen instructieregels voor het bouwen van woningen langs het spoor opgenomen. De beoordeling moet plaatsvinden binnen de taak van 'een evenwichtige toedeling van functies aan locaties' (artikel 4.2 van de Omgevingswet). Hiervoor wordt de Meet- en Beoordelingsrichtlijn, deel B, 'Hinder voor personen in gebouwen 2006' van de Stichting Bouwresearch Rotterdam (SBR-richtlijn) toegepast.
Artikel 4.2, eerste lid van de Omgevingswet bepaalt dat gemeenten moeten zorgen voor een evenwichtige toedeling van functies aan locaties. Daarbij moet rekening worden gehouden met alle betrokken belangen.
SBR-richtlijn
De afwegingen met betrekking tot het onderzoeksgebied staan in de Handreiking Nieuwbouw en Spoortrillingen. In het algemeen moet binnen een afstand van 100 m van het spoor het risico op trillinghinder worden beoordeeld. In sommige gevallen is het zelfs nodig om het onderzoeksgebied uit te breiden tot 250 m aan weerszijden van het spoor. Het onderzoek kan plaatsvinden in de vorm van een QuickScan, maar als er sprake is van mogelijke trillinghinder dan is een uitgebreider onderzoek nodig op basis van trillingsmetingen. Deze moeten voor een langere periode uitgevoerd worden.
De meet- en beoordelingsrichtlijn B, "Hinder voor personen in gebouwen" bevat richtlijnen voor het meten en beoordelen van hinder voor personen. De richtlijn maakt onderscheid in de functie van het gebouw, aard van de trillingsbron en in bestaande, gewijzigde en nieuwe situaties.
In de richtlijn vindt de beoordeling plaats door middel van A1, A2 en A3:
• A1 is de onderste streefwaarde voor de trillingssterkte Vmax;
• A2 is de bovenste streefwaarde voor de trillingssterkte Vmax;
• A3 is de streefwaarde voor de trillingssterkte Vper.
Voor de hoogte van de streefwaarden geldt in algemene zin dat A3<A1<A2. Er wordt voldaan aan de streefwaarden als:
1. De waarde van de maximale trillingssterkte in een ruimte (Vmax) kleiner is dan A1 of;
2. De waarde van de maximale trillingssterkte van een ruimte (Vmax) kleiner is dan A2 waarbij de trillingssterkte over de beoordelingsperiode voor de ruimte (Vper) kleiner is dan 0,3.
In de richtlijn zijn de streefwaarden onder andere gebaseerd op de functie van het gebouw waar de trillingen beoordeeld moeten worden en de aard van de trillingsbron. In de onderhavige situatie worden de optredende trillingen beschouwd als herhaald voorkomende trillingen gedurende lange tijd. In onderstaande tabel zijn de streefwaarden opgenomen.
Binnen het plangebied gelden normen voor nieuwe situaties.
Toelaatbaarheid van trillingssterkte
In SBR-richtlijn B en DIN 4150, deel 2 zijn de volgende relaties opgenomen, waarbij op basis van de correlatie tussen dosis en effect, de aanvaardbaarheid van trillingen is aangegeven. Deze kwalificatie kan gebruikt worden voor de afweging van de toelaatbaarheid van de trillingssterkte door railverkeer gedurende langere tijd bij overschrijding van de streefwaarden.
Het accepteren van (matige) trillingshinder door overschrijding van de streefwaarden kan onder meer afhankelijk zijn van de mate waarin de trillingssterkte voorkomt en de aanwezigheid van andere trillingsbronnen (de achtergrondtrillingen). Ook de mogelijkheid tot het treffen van trillingsreducerende maatregelen binnen redelijke termijn kan bijdrage aan (tijdelijke) acceptatie.
Beoordeling
Voor het beoogde planvoornemen is er een trillingsonderzoek uitgevoerd door N4O. Hieronder is een korte samenvatting opgenomen, voor het volledige onderzoek wordt verwezen naar bijlage 7.
Op basis van het onderzoek concluderen wij dat binnen het plangebied sprake is van trillingen afkomstig van langsrijdende treinen. Er wordt niet voldaan aan de na te streven waarden zoals aangegeven in de Richtlijn deel B “Hinder voor personen in gebouwen door trillingen, Meet- en beoordelingsrichtlijn” van de Stichting Bouwresearch (SBR) van augustus 2006.
Op basis van stedenbouwkundig plan kan echter worden geconstateerd dat binnen het plangebied gebouwen met relatief groot omvang gerealiseerd worden. Bij dergelijke gebouwen is effect van trillingen kleiner dan bij kleine gebouwen. Omdat de trillingen relatief hoog zijn zouden echter aanvullende maatregelen nodig zijn. Deze maatregelen kunnen bepaald worden als duidelijk wordt welke functies in gebouwen worden gerealiseerd en welke bouwkundige constructie wordt gekozen. Omdat de uiteindelijke constructieve opzet van de gebouwen nog niet bekend is, wordt geadviseerd dit opnieuw te beoordelen bij de aanvraag omgevingsvergunning bouwen.
Met aanvullende maatregelen kan trillingsniveau in de gebouwen verlaagd worden tot de normen uit de SBR-richtlijn. In het omgevingsplan moeten de voorwaarden met betrekking tot de gewenste woonkwaliteit.
Conclusie
Het aspect trillingen staat het planvoornemen niet in de weg.
Kader
Ter bescherming van de natuur zijn in het Bkl diverse regels opgenomen. Deze regels komen grotendeels overeen met de regels die zijn opgenomen in de huidige Wet natuurbescherming. Het gaat hierbij in de eerste plaats om regels voor de gebiedsbescherming van aangewezen Natura 2000-gebieden, regels voor de soortenbescherming van te beschermen planten diersoorten (waaronder vogels) en regels ter bescherming van houtopstanden. Het gebieds- en soortenbeschermingsregime vloeit voor een belangrijk deel voort uit twee Europese richtlijnen, te weten de Vogelrichtlijn (79/409/EEG) en de Habitatrichtlijn (92/43/EEG).
Ontwikkelingen mogen niet zonder meer plaatsvinden indien deze negatieve gevolgen hebben op beschermde natuurwaarden (soorten, gebieden en/of houtopstanden). Er is daarom inzicht gewenst in de aanwezige beschermde natuurwaarden en de mogelijke effecten die op deze beschermde natuurwaarden kunnen optreden door de ontwikkeling.
Voor de beoordeling van ecologie is er door Antea Group een natuurtoets uitgevoerd, bijgevoegd als bijlage 8 bij deze motivering.
Beoordeling gebiedsbescherming
Natuurnetwerk Nederland
Het plangebied is niet gelegen in een NNN-gebied. Het dichtstbijzijnde NNN-gebied is gelegen op ca. 1.500 meter afstand van het plangebied af. Gezien de afstand kunnen negatieve effecten door de werkzaamheden op NNN-gebieden uitgesloten worden. Daarnaast is er geen sprake van aantasting van de wezenlijke kenmerken en waarden, aangezien de provincie Zuid-Holland geen externe werking kent.
Natura 2000-gebieden
Het plangebied ligt niet in een Natura 2000-gebied. Het dichtstbijzijnde Natura 2000-gebied is de Oostelijke Vechtplassen en ligt op circa 4,5 kilometer afstand ten westen van het plangebied. Binnen een straal van 15 km liggen nog vier andere Natura 2000-gebieden. Het betreft het Naardermeer (circa 7km), het Markermeer & IJmeer (circa 12km), Het Eemmeer & Gooimeer Zuidoever (circa 10km) en Arkemheen (circa 15km). Alleen het Naardermeer en de Oostelijke Vechtplassen zijn stikstofgevoelige gebieden.
Natura 2000-gebieden kunnen schade ondervinden wegens diverse aspecten, zoals verdroging, oppervlakteverlies, verontreiniging, versnippering, optische verstoring, verzuring en vermesting. Daar het besluitgebied niet grenst aan een Natura 2000-gebied, is van directe schade geen sprake. Mogelijk kan depositie van stikstof vanwege het planvoornemen wel negatieve gevolgen hebben voor omliggende Natura 2000-gebieden. Daarom is ten behoeve van het planvoornemen een stikstofdepositie onderzoek uitgevoerd, bijgevoegd als bijlage 9 bij deze motivering.
Met behulp van het rekenprogramma AERIUS Calculator 2023.2 zijn de effecten m.b.t. stikstofdepositie als gevolg van de voorliggende ontwikkeling in beeld gebracht. Er zijn twee berekeningen uitgevoerd, van de realisatiefase en de gebruiksfase. De woningen worden gasloos opgeleverd. De uitgangspunten van het stikstofonderzoek zijn:
• In de realisatiefase
o De emissies van werktuigen;
o De emissies van de vervoersbewegingen van en naar het projectgebied ten behoeve van de realisatiefase.
• In de gebruiksfase
o Emissies die plaatsvinden door het gebruik van voertuigen van en naar het plangebied ten behoeve van de gebruiksfase.
Voor de voorgenomen ontwikkeling toont AERIUS Calculator voor de realisatiefase en de gebruiksfase geen stikstofdepositie hoger dan 0,00 mol/ha/jaar. Zie voor de resultaten ook bijlage 9.
Beoordeling flora en fauna
Binnen het plangebied is geschikt biotoop aangetroffen voor beschermde soorten (Ow) waarvoor geen algemene vrijstelling geldt. Het gaat om soorten uit de volgende soortgroepen: vogels en vleermuizen. Er is nader onderzoek nodig voor boombroedende vogelsoorten met een jaarrond beschermd nest, huismus, gierzwaluw en gebouw bewonende vleermuizen. In onderstaande tabel zijn de nadere onderzoeken beschreven.
Voor algemene broedvogels geldt dat er gewerkt moet worden buiten het broedseizoen (globaal maart tot en met juli). Indien dit niet mogelijk is; het plangebied voor aanvang van het broedseizoen ongeschikt maken of het plangebied vooraf aan de werkzaamheden laten controleren door een deskundige ecoloog.
Voor de overige soort(groep)en is beoordeeld dat vervolgstappen niet aan de orde zijn. Voor deze soorten en vrijgestelde soorten geldt wel de zorgplicht.
Bijzonder provinciaal landschap
Het plangebied ligt geheel binnen de bebouwde omgeving van centraal Hilversum en niet binnen de begrenzing van een van de bijzonder provinciale landschappen. Als gevolg van het planvoornemen ontstaan ook geen negatieve effecten op een van de bijzonder provinciale landschappen. Hierdoor zijn geen vervolgstappen noodzakelijk met betrekking op de bijzonder provinciale landschappen.
Houtopstanden
In (de directe omgeving van) het plangebied zijn bomen aanwezig. Als gevolg van de voorgenomen werkzaamheden worden mogelijk bomen gekapt binnen het plangebied. Een nadere toetsing beschermde houtopstanden is daarom noodzakelijk. In deze nadere toetsing wordt in eerste instantie bepaald of de houtopstanden beschermd zijn, en zo ja onder welk beschermingsregime (buiten de bebouwingscontour houtkap en/of Omgevingsplan). Daarnaast wordt in de nadere toetsing houtopstanden bepaald of eventuele vervolgstappen noodzakelijk zijn. Mogelijke vervolgstappen bij kap van bomen zijn: een melding houtkap (op basis van Bal – Omgevingswet) of een omgevingsvergunning houtkap (gemeentelijke beleid). Ook kan het noodzakelijk zijn een Boom Effect Analyse (BEA) op te stellen, waarbij wordt getoetst in hoeverre bomen in de invloedssfeer daadwerkelijk negatieve effecten als gevolg van de voorgenomen werkzaamheden ondervinden.
Conclusie
Er zijn nadere onderzoeken nodig voor zowel flora en fauna als voor houtopstanden. Deze aanvullende onderzoeken moeten worden uitgevoerd bij vergunningverlening en zijn als aanvraagvereisten opgenomen in de regels behorende bij voorliggend omgevingsplan . Hiermee vormen ecologie en stikstof geen belemmering voor onderhavig planvoornemen.
Kader
De hoofdlijnen voor regelgeving rondom luchtkwaliteitseisen staan beschreven in de instructieregels opgenomen in het Bkl. Ter bescherming van de gezondheid zijn voor het aspect luchtkwaliteit instructieregels opgenomen in paragraaf 5.1.4.1 Bkl. Volgens deze regels gelden zogeheten omgevingswaarden voor onder andere de in de buitenlucht voorkomende stikstofdioxide (NO2) en fijnstof (PM10).
Een activiteit is toelaatbaar als aan één van de volgende voorwaarden wordt voldaan:
- Er is geen sprake van een feitelijke of dreigende overschrijding van een grenswaarde;
- Het project leidt per saldo niet tot een verslechtering van de luchtkwaliteit;
- Het project draagt alleen niet in betekenende mate bij aan de luchtverontreiniging.
Mede door het Nationaal Samenwerkingsprogramma Luchtkwaliteit (NSL) is in de afgelopen jaren in Nederland de luchtkwaliteit aanzienlijk verbeterd. Vanwege deze verbetering is het NSL na de inwerkingtreding van de Omgevingswet komen te vervallen.
De beoordeling van de luchtkwaliteit vindt niet overal plaats. Voor een activiteit die ‘niet in betekende mate’ (NIBM) bijdraagt aan de luchtverontreiniging, is geen toetsing aan de Rijksomgevingswaarden voor stikstofdioxide en fijnstof nodig. Uit de artikelen 5.53 en 5.54 Bkl volgt dat een project ‘niet in betekende mate bijdraagt’ aan de luchtkwaliteit als de toename van de concentratie NO2 en PM10 niet hoger is dan 1,2 ug/m3. Dat is 3% van de omgevingswaarde voor de jaargemiddelde concentraties. Er zijn twee mogelijkheden om aannemelijk te maken dat een project binnen de NIBM-grens blijft:
1. Motiveren dat het project binnen de getalsmatige grenzen van een aangewezen categorie blijft. Onder deze ‘standaardgevallen NIBM’ vallen kantoren, woonwijken en het telen van gewassen. Dit moet wel onder een bepaalde omvang blijven conform artikel 5.54 Bkl. Valt een project binnen de genoemde categorie, maar niet binnen de gestelde grenzen? Het is dan mogelijk om alsnog via detailberekeningen aannemelijk te maken dat de 3%-grens niet wordt overschreden.
2. Op een andere manier aannemelijk maken dat een project de 3%-grens niet overschrijdt. Soms kan een kwalitatieve berekening met behulp van de NIBM-tool voldoende zijn. Het kan ook zijn dat detailberekeningen als aanvulling op de NIBM-tool nodig zijn.
Aandachtsgebieden
Aandachtsgebieden zijn locaties met hogere concentraties stikstofdioxide (NO2) en fijnstof (PM10). De aandachtsgebieden staan in artikel 5.51, lid 2 Bkl. Gemeenten die onder agglomeraties vallen staan in artikel 2.38 Omgevingsregeling. In enkele situaties moet de luchtkwaliteit altijd worden beoordeeld:
- bij een omgevingsvergunning voor een milieubelastende activiteit;
- bij de aanleg van een tunnel langer dan 100 meter of als een tunnel gewijzigd wordt en daarbij minimaal 100 meter toeneemt;
- bij de aanleg van een autoweg of autosnelweg.
Beoordeling
Onderhavige ontwikkeling betreft de realisatie van in totaal 146 woningen, 3.800 m2 kantoren en bedrijvigheid, commerciële voorzieningen en een gezondheidscentrum. Gesteld kan worden dat dit plan in verhouding tot de wettelijke ondergrens voor onderzoek, gelegen op bouw van 1.500 woningen (één ontsluitingsweg), niet in betekende mate (NIBM) bijdraagt aan het verslechteren van de luchtkwaliteit.
Luchtkwaliteit in omgeving
De luchtkwaliteit ter plaatse van het plangebied dient getoetst te worden aan de grenswaarde voor stikstofdioxide en fijnstof. De waarden zijn bepaald aan de hand van de Atlas leefomgeving.
De huidige concentraties fijnstof en stikstofdioxide vallen onder de grenswaardes uit het Bkl. De Wereldgezondheidsorganisatie (WHO) en de GGD hanteren voor N02, PM10 en voor PM2,5 lagere waarden dan de grenswaardes in het Bkl, namelijk 10 µg/m3, 15 µg/m3 en 5 µg/m3.
Het plan resulteert ook in een betere luchtkwaliteit door het plangebied groen in te richten en verschillende knippen uit te voeren om bijvoorbeeld sluipverkeer tegen te gaan.
Conclusie
Het aspect luchtkwaliteit vormt geen belemmering voor het onderhavige planvoornemen.
Kader
Het bodembeleid gaat over het voorkomen en wegnemen van bodemverontreiniging. Waar het bodembeleid eerder sterk gericht was op het saneren van bodemverontreiniging legt de Omgevingswet meer nadruk op het voorkomen van verontreinigingen en het beheren van bestaande verontreinigingen. Bij wijzigingen van activiteiten geldt dat de bodem geschikt moet zijn voor het beoogde gebruik. Dit kan betekenen dat een onderzoek moet worden verricht naar de bodem- en grondwaterkwaliteit.
Waarden voor de toelaatbare kwaliteit van de bodem voor het bouwen van een bodemgevoelig gebouw op een bodemgevoelige locatie worden opgenomen in het definitieve omgevingsplan (artikel 5.89i Bkl). Deze waarden kunnen per gebied of per gebruiksfunctie verschillen. Bij een overschrijding van een vastgestelde waarde is het bouwen van een bodemgevoelig gebouw alleen toegelaten als de in het omgevingsplan voorgeschreven sanerende of andere beschermende maatregelen worden getroffen (artikel 5.89K Bkl, artikel IIIa onder 2 Aanvullingsbesluit Bodem).
Daarnaast zijn er specifieke regels over bodem opgenomen in het Aanvullingsbesluit Bodem en de activiteiten zijn opgenomen in het Besluit activiteiten leefomgeving (hierna: Bal):
- regels over nazorg van de bodem na saneren op grond van het Besluit activiteiten leefomgeving, het omgevingsplan, een omgevingsvergunning of een maatwerkvoorschrift (artikel IIIa, paragraaf 2.3.6a.2);
- regels over graven in de bodem (paragraaf 3.2.21 en 3.2.22);
- regels over activiteiten op een locatie met historische bodemverontreiniging zonder onaanvaardbaar risico (paragraaf 2.3.6a.4).
Beoordeling
Binnen de postcode 1221 komen diverse bodemverontreinigingen voor. Op basis van de beschikbare informatie van de gemeente Hilversum (bodemkwaliteitskaart) blijkt dat een deel van de bodem in 1221 verontreinigd is met minerale olie, zware metalen, asbest, PAK en VOCL/PCB/OCB. Daarnaast is sprake van een aantal bodemverontreinigingen met overige stoffen.
Voor het plangebied ‘Bruisend Hart’ zijn er in totaal 2 gebieden bekend waarbij het grondwater is verontreinigd (zie onderstaand figuur). Beide gebieden betreft een verontreiniging van het grondwater. In het noorden van het plangebied bestaat de verontreiniging uit de volgende stoffen:
• Minerale olie, BETX, overige verontreinigingen (volume 3.000 m3)
In het zuiden van het plangebied bestaat de verontreiniging uit de volgende stoffen:
• Minerale olie (volume 110 m3)
De noordelijke verontreiniging bevindt zich boven het gezondheidscentrum.
Voor het gehele gebied wordt actualiserend onderzoek uitgevoerd, op het moment dat de gronden beschikbaar zijn. Verontreinigingen in de bodem leveren over het algemeen geen belemmeringen op voor een ontwikkeling, omdat sanering mogelijk is. Er wordt rekening gehouden met functiegericht saneren van de verontreinigingen.
Bij de aanleg van kelders of woningen boven verontreinigingen moet worden getoetst of er voor het nieuwe gebruik geen risico’s worden verwacht door uitdamping. Als dit wel het geval is, dan is het nodig maatregelen in de bebouwing te treffen, zoals een dampdichte vloer en actieve ventilatie.
Conclusie
Met inachtneming met hetgeen dat voortvloeit uit de onderzoeken vormt bodemkwaliteit geen belemmering voor het planvoornemen.
Kader
In bijlage A (begrippen) van de Omgevingswet is de definitie van cultureel erfgoed opgenomen. Dit omvat monumenten, archeologische vindplaatsen, historische stads- en dorpsgezichten, cultuurlandschappen, en ander cultureel erfgoed zoals beschreven in artikel 1.1 van de Erfgoedwet. De Erfgoedwet regelt het behoud en beheer van cultureel erfgoed en archeologie in Nederland. Het is verplicht om bij de belangenafweging de aspecten van historische (steden)bouwkunde en historische geografie te betrekken, zowel voor beschermde als niet formeel beschermde objecten en structuren.
De gemeente kan lokale regels stellen over archeologisch onderzoek (artikel 5.130 lid 3, 4 en 5 Bkl). Dit kan de gemeente doen om archeologische monumenten in de bodem te beschermen of om ze deskundig te laten opgraven. Het archeologisch onderzoek kan verschillende vormen aannemen.
Het plangebied valt in (voormalig) bestemmingsplan ‘Over ’t Spoor’, onherroepelijk vastgesteld 2011‑01‑12. Er geldt voor het gehele plangebied een dubbelbestemming waarde – archeologie. Dit houdt in dat voor alle grondroerende werkzaamheden met een oppervlakte groter dan 100 m2 en dieper dan 0,4 m-mv een archeologisch vooronderzoek noodzakelijk is.
Provinciale waardenkaart
Op de provinciale waardenkaart ligt het plangebied binnen één van de tien gebieden van archeologisch belang. De volgende omschrijving is aanwezig:
“De Gooise stuwwal vormt de oostelijke hoge rand van Noord-Holland en bestaat uit hogere zandgronden met afwisselend bos en heide. Het Gooi is een van de weinige reliëfrijke gebieden in de provincie en is daardoor van oudsher een aantrekkelijk woongebied. Naast Texel en Wieringen zijn in Het Gooi de oudste bewoningssporen van Noord-Holland aangetroffen. Zo zijn op de heideterreinen prehistorische bewoningssporen bekend, waaronder talrijke grafheuvels. Een bekend grafveld is Westerveld. Het is een van de grootste grafvelden van Nederland en dateert uit de Late Bronstijd en Vroege IJzertijd. In de middeleeuwen werden de voedselarme, hoge zandgronden van Het Gooi ontgonnen en ontstonden zogenoemde brinkdorpen, vergelijkbaar met de Drentse esdorpen. Deze middeleeuwse nederzettingen- en ontginnings-structuur is deels nog herkenbaar in het landschap, maar ook aanwezig in de ondergrond.”
Gemeentelijke verwachtingskaart
Op de gemeentelijke verwachtingskaart ligt het plangebied binnen een terrein van hoge archeologische waarde overeenkomend met het AMK-terrein (figuur 6-7). Daarnaast ligt het in een gebied met een middelhoge archeologische verwachting.
Beoordeling
Antea Group heeft een archeologisch bureauonderzoek uitgevoerd. Voor het volledige archeologische onderzoek wordt verwezen naar bijlage 10 van voorliggende motivering.
Er kunnen binnen het plangebied archeologische resten worden aangetroffen uit alle perioden, afhankelijk van de bodemopbouw in het plangebied. Het plangebied bevindt zich nabij een stuwwal, waardoor het vrij hooggelegen is. Op basis van omliggend onderzoek kunnen er in het plangebied sporen en resten aanwezig zijn vanaf het paleolithicum tot en met de nieuwe tijd. Het plangebied ligt op een stuwwal of in een droog dal. Er kunnen op basis van de aangrenzende onderzoeken enkeerdgronden worden verwacht die resten tot en met de vroege middeleeuwen zullen hebben afgedekt. Er kunnen op basis van de omliggende onderzoeken geen uitspraken worden gedaan over de intactheid van de bodem binnen het plangebied.
Daarnaast bevindt het plangebied zich binnen de historische kern van Hilversum (AMK-terrein 12733).
(Selectie)advies
Er geldt een middelhoge verwachting op sporen en resten uit alle perioden in het plangebied. Daarnaast ligt het in een zone van archeologische waarde. Naar verwachting is echter het westelijke deel van het plangebied reeds verstoord geraakt.
Omdat er een middelhoge kans is op het aantreffen van archeologische resten binnen het plangebied, adviseert Antea Group om binnen het plangebied een inventariserend veldonderzoek d.m.v. boringen, verkennende fase, uit te voeren op de locaties waar graafwerkzaamheden dieper dan 30cm -mv gepland zijn. Uitzondering hierop zijn de delen in het plangebied waar al ontgraving ten behoeven van de stationstunnel heeft plaatsgevonden. Er wordt verwacht dat eventuele archeologische sporen en resten hier reeds vergraven zijn.
De methode – een verkennend booronderzoek bestaande uit 6 boringen per hectare of 1 boring per 50 strekkende meter in het geval van tracés - is er niet primair op gericht om archeologische resten aan te treffen (hiervoor is de gehanteerde boordichtheid en –intensiteit te gering), maar is wel uitermate geschikt om:
1) de aard van bodemopbouw en
2) de mate van intactheid van de oorspronkelijke bodemopbouw inclusief de archeologische sporendragende niveaus te bepalen.
Indien uit het archeologisch booronderzoek blijkt dat de niveaus niet intact zijn dan kan vrijgave voor het plangebied volgen. Mocht blijken dat dit niet met zekerheid kan worden vastgesteld, dan kan een vervolgonderzoek noodzakelijk zijn op die locaties waar deze niveaus bereikt worden. In overleg met de opdrachtgever kan dan worden gekeken naar de meest praktische vorm van vervolgonderzoek, zijn proefsleuven of een archeologische begeleiding van de uit te voeren graafwerkzaamheden.
Voor de zone met een hoge waarde/ middelhoge verwachting worden circa 6 boringen geadviseerd.
Dit is een advies. Het nemen van een selectiebesluit is voorbehouden aan het bevoegd gezag, in deze de gemeente Hilversum. Op 8 juli 2024 heeft de adviseur van het bevoegd gezag aangegeven dat de bestaande bebouwing tot het maaiveld gesloopt mag worden. Hierna dient het archeologisch onderzoek uitgevoerd te worden.
Antea Group adviseert op basis van de reactie van het bevoegd gezag om 4 boringen langs het stationsplein te zetten om de bodemopbouw in kaart te brengen, met 2 controle boringen op het stationsplein. Betreffende de sloop van de bebouwing stelt Antea Group twee opties voor:
1. De gebouwen worden gesloopt tot het maaiveld, waar vervolgens een archeologisch booronderzoek wordt uitgevoerd om de bodemopbouw en mate van intactheid te bepalen. Op basis hiervan kan nogmaals vervolgonderzoek noodzakelijk zijn.
2. Om sneller inzicht te krijgen in de bodemopbouw en eventuele archeologische lagen wordt de tweede optie voorgesteld. De gebouwen worden gesloopt tot het maaiveld, waarna de ondergrondse sloop onder archeologische begeleiding wordt uitgevoerd. Op deze manier kan de bodemopbouw worden vastgesteld, en zullen eventuele sporen en resten kunnen worden gedocumenteerd. In feite wordt hiermee het waarderend proefsleuven onderzoek uitgevoerd ten tijden van de sloop van de bebouwing.
Ook voor vrijgegeven (delen van) plangebieden bestaat altijd de mogelijkheid dat er tijdens graafwerkzaamheden toch losse sporen en vondsten worden aangetroffen. Het betreft dan vaak kleine sporen of resten die niet door middel van een booronderzoek kunnen worden opgespoord. Op grond van artikel 5.10 van de Erfgoedwet dient zo spoedig mogelijk melding te worden gemaakt van de vondst bij de Minister (de Rijksdienst voor het Cultureel Erfgoed). Een vondstmelding bij de gemeentelijk of provinciaal archeoloog kan ook.
Conclusie
Het aspect archeologie vormt geen belemmering voor het planvoornemen.
Kader
Onder erfgoed vallen cultureel erfgoed en werelderfgoed. Cultureel erfgoed bestaat uit rijksmonumenten, gemeentelijke- en provinciale monumenten en archeologische monumenten. De bescherming van erfgoed wordt geregeld in het Bal, de provinciale omgevingsverordening en het omgevingsplan.
Het Bal stelt onder andere regels aan rijksmonumenten. De provinciale omgevingsverordening stelt regels aan provinciale monumenten (zoals provinciale monumenten, molenbiotopen en landgoed- en kasteelbiotopen). In het omgevingsplan legt de gemeente de te beschermen gemeentelijke en provinciale monumenten vast. Bij het opstellen van het omgevingsplan moet de gemeente voldoen aan de instructieregels van het Rijk (paragraaf 5.1.5.5 van het Bkl).
Beoordeling
Op basis van de instructieregels uit het Bkl dient in een omgevingsplan of een motivering bij een buitenplanse omgevingsplanactiviteit voldoende rekening te worden gehouden met het behouden en het beschermen van cultureel erfgoed.
De informatiekaart Landschap en Cultuurhistorie van de provincie Noord-Holland laat zien dat er geen enkele kaartlaag met betrekking tot cultuurhistorie het plangebied raakt.
De Uitspanning (gemeentelijk monument)
Op de Larenseweg 2-2A is een half vrijstaand pand uit vermoedelijk 1880-1900, dat op de kop van een wigvormig perceel staat, direct aan het spoor. In het pand was al voor 1926 een woonhuis met café gevestigd. Vermoedelijk had het van meet af aan de functie als ‘uitspanning’, gezien de ligging aan de voormalige spoorwegovergang Stationsstraat – Larenseweg en de forse groei van Hilversum na de komst van de spoorlijn in 1874, waarbij het station midden in de bebouwing kwam te liggen en er woonbuurten en bedrijven aan deze zijde van het spoor ontstonden.
Het waarschijnlijk als café/ Uitspanning gebouwde pand Larenseweg 2-2A uit 1880-1990 met schuur uit 1905 en verbouwd tot het huidige aanzicht in 1934-1943 voor J. Heinis door J. Helmond, is van algemeen belang voor de gemeente Hilversum vanwege cultuurhistorische-, architectuurhistorische-, situationele- en ensemblewaarden:
• Als restant van éénlaags bebouwing uit de dorpse periode van Hilversum;
• Als van oudsher café/ uitspanning beeldbepalend gelegen op de kop van een wigvormig perceel, ter plaatse van de voormalige spoorwegovergang Stationstraat-Larenseweg;
• Als representant van de ontwikkeling van het gebied aan de oostzijde van het spoor na de aanleg van de spoorlijn in 1874;
• Vanwege de afleesbare gelaagdheid met verschillende bouwperioden;
• Vanwege de gaaf bewaarde schuur uit 1905;
• Vanwege de verbouwing uit 1934 met sobere kenmerken van interbellum-architectuur zoals de baksteentoepassing van de gevel, de omlijsting van de entree, de bloembak en de serre met glas in lood die in 1943 is uitgebreid in dezelfde stijl;
• Vanwege de sinds 1943 niet noemenswaardig gewijzigde en als café herkenbare hoofdvorm, gevelindeling, materialisering en detaillering.
Met onderhavig planvoornemen voor het Bruisend Hart wordt de bebouwing tussen de Kleine Drift en de Larenseweg gesloopt met uitzondering van het gemeentelijk monument de Uitspanning. De uitspanning blijft bestaan en is in het stedenbouwkundig plan bouwblok D. De Uitspanning blijft in de toekomstige situatie een horecafunctie behouden. Hiermee wordt voldoende rekening gehouden met dit gemeentelijk monument.
Café Dudok (in voorbescherming)
Café Dudok is op dit moment in voorbescherming genomen, omdat er een verzoek is gedaan aan de gemeenteraad en college van burgemeesters en wethouders, door het bestuur van de Hilversumse Historische Kring om dit café als gemeentelijk monument te categoriseren. Daarmee zou sloop niet onmogelijk worden, maar wel een stuk ingewikkelder.
Met voorliggend planvoornemen wordt café Dudok behouden. Daarmee wordt voldoende rekening gehouden met dit in voorbescherming genomen object.
Conclusie
Cultuurhistorie en erfgoed vormt geen belemmering voor onderhavig planvoornemen.
Kader
Kabels en leidingen vervullen verschillende functies. De omvang en inhoud, en daarmee het risico bij beschadiging, verschilt hierdoor ook. Daarnaast kunnen kabels en leidingen in zowel openbare als gronden gelegen zijn, waardoor verschillende belangen geraakt worden. In het tijdelijk deel van het omgevingsplan zijn de bestaande regels met betrekking tot de bescherming van kabels en leidingen opgenomen.
In het tijdelijk deel van het omgevingsplan staan regels voor buisleidingen met gevaarlijke stoffen. Deze regels richten zich op de ligging en het type leiding (aard van de stof en bij gas, de maximale druk). In het tijdelijk deel van het omgevingsplan kunnen ook regels over ondergrondse hoogspanningsverbindingen staan. Deze regels richten zich op de afstand van bepaalde gebouwen tot magneetvelden. Daarnaast kunnen ook voor andere kabels en leidingen regels staan in de ruimtelijke regels van het tijdelijk deel, omdat ze naar het oordeel van het bevoegd gezag ruimtelijk relevant zijn.
De hiernavolgende leidingen zijn planologisch relevant:
a. Hoogspanningsverbindingen van 50 kV en hoger (art. 22a Elektriciteitswet 1998);
b. Buisleidingen voor transport van aardgas met een uitwendige diameter van meer dan 50 mm en een druk van meer dan 16 bar (art. 5.18 en 5.135 Bkl, tevens art. 3.101 Bal);
c. Buisleidingen voor transport van aardolieproducten met een uitwendige diameter van meer dan 70 mm en een druk van meer dan 16 bar (art. 3.101 Bal);
d. Buisleidingen met een diameter van 400 mm of meer buiten de bebouwde kom (art. 3.135 en art. 3.101 Bkl);
e. Buisleidingen voor transport van andere stoffen dan aardgas en aardolieproducten, die risico's met zich meebrengen voor mens en/of leefomgeving wanneer deze leidingen beschadigd raken (art. 3.101 Bal).
Beoordeling
Binnen het plangebied ligt een hoofdriool. Dit loopt nu gedeeltelijk onder het Oostspoorplein door. Om het nieuwe stationsgebouw mogelijk te maken, is het noodzakelijk dit hoofdriool gedeeltelijk te verleggen tussen de Noorderweg en de Kleine Drift. Ook is er een hogedrukgasleiding. Deze loopt vanaf de westkant van het spoor richting de Larenseweg. De gasleiding blijft behouden. De nieuwe bebouwing wordt op voldoende afstand geplaatst zodat de gasleiding bereikbaar blijft voor onderhoud.
Het infiltratieriool, dat begint bij de Kleine Spoorbomen en onder de Noorderweg doorloopt, wordt doorgetrokken onder de Larenseweg-Kleine Drift.
Onder de fietstunnel onder het station ligt aan de Oosterspoorpleinzijde een waterbergingskelder met pompen. De afvoer hiervan gaat door middel van een persleiding via de centrumzijde van het station. Bij verdere uitwerking van het stationsgebied aan de centrumzijde en het Bruisend Hart wordt een nieuwe afvoersituatie gekozen. Daarbij wordt rekening gehouden met de nieuwe leiding naar het riool in de Zuiderweg, aan de kant van het Bruisend Hart.
Het gebied krijgt wadi’s in het groen voor het tijdelijk bufferen en laten infiltreren van regenwater. Voor de nieuwe gebouwen is het uitgangspunt dat ze alleen een droogweerafvoeraansluiting krijgen en geen hemelwaterafvoeraansluiting.
Mogelijk wordt er een WKO systeem onder de grond gerealiseerd voor Bruisend Hart. Hierdoor is er extra ruimte nodig onder de grond. Er moet wel rekening worden gehouden met de fietskelder en de parkeergarage onder de bouwblokken.
Conclusie
Er wordt rekening gehouden met kabels en leidingen in het plangebied. Daarmee vormt het aspect kabels en leidingen geen belemmering voor het planvoornemen.
Kader
Niet gesprongen explosieven kunnen een gevaar vormen wanneer er trillingen worden veroorzaakt in de grond door bijvoorbeeld heiwerkzaamheden. Deze niet gesprongen explosieven kunnen dan alsnog afgaan. De initiatiefnemer zal degene zijn die het onderzoek naar niet gesprongen explosieven zal uitvoeren. Dit gelet op de verplichting tot het doen van een risico-inventarisatie en -evaluatie ex artikel 5 Arbeidsomstandighedenwet. De burgemeester kan voor het handhaven van de openbare orde of voor het beperken van eventueel gevaar bevelen of algemeen verbindende voorschriften opstellen voor de locatie(s) waar een niet gesprongen explosief is aangetroffen (artikel 172, 175 en 176 Gemeentewet). Daarbij valt onder andere het vervaardigen, verhandelen, vervoeren, voorhanden hebben en dragen van niet gesprongen explosieven onder de Wet Wapens en Munitie. Deze opsporing dient te worden gedaan door een bedrijf die gecertificeerd is op grond van de Beoordelingsrichtlijn voor het Procescertificaat “Opsporen Conventionele Explosieven (OCE)” zoals bedoeld in artikel 4.10 Arbobesluit. Sommige gemeenten hebben een explosievenkaart waarop verdachte gebieden kunnen worden weergegeven. Indicatoren voor verdachte gebieden kunnen daarnaast worden afgeleid uit historische gegevens, militaire archieven en eerdere vondsten.
Vanwege de nadruk op openbare orde en veiligheid worden regels over niet gesprongen explosieven niet opgenomen in het omgevingsplan. De omgang met niet gesprongen explosieven wordt ook niet gereguleerd door de Omgevingswet omdat de wet- en regelgeving op het gebied van arbeidsomstandigheden voorziet in regulering.
Beoordeling
Saricon B.V. heeft 11 juli 2022 een vooronderzoek ontplofbare oorlogsresten conflictperiode voor de gemeente Hilversum uitgevoerd. Uit dit onderzoek is naar voren gekomen dat het plangebied Bruisend Hart niet in verdacht gebied valt met betrekking tot ontplofbare oorlogsresten, zoals de volgende figuur toont.
Conclusie
Geconcludeerd kan worden dat het aspect ontplofbare oorlogsresten geen belemmering vormt voor de ontwikkeling.
Kader
Bij elke ruimtelijke ontwikkeling is de opstelling van een waterparagraaf verplicht. In deze paragraaf wordt inzicht verkregen in de gevolgen voor de waterhuishouding die samenhangen met de ruimtelijke ontwikkeling die mogelijk wordt gemaakt. Het wettelijk kader is afhankelijk van zowel gemeentelijk, provinciaal en rijksbeleid als het beleid van het waterschap. De beschrijving van de wateraspecten bestaat uit een beschrijving gegeven van de bestaande situatie, de relevante wet- en regelgeving en de voorgenomen ontwikkeling, met daarbij de mogelijke maatregelen. In het kader van de weging van het waterbelang wordt over het plan advies gevraagd bij de betrokken waterbeheerder(s).
Beoordeling
Voor het aspect weging van waterbelang heeft Antea Group een onderzoek uitgevoerd. Voor het volledige onderzoek wordt verwezen naar bijlage 11 van voorliggende motivering.
Huidige situatie
De maaiveldhoogte ter plaatse van het plangebied bevindt zich tussen NAP +5,5 m en NAP +1,5 m. De bodemopbouw bestaat uit verschillende zandlagen met variërende doorlatendheden afkomstig van diverse formaties en afzettingen. Opvallend is dat het geohydrologisch profiel weergeeft dat er een laag aan gestuwde afzettingen met complexe eenheid ligt. Deze reikt tot een diepte van NAP -44 m. Het bovenste deel van deze laag is bevestigd te bestaan uit zand op basis van de grondboring uit het DINOloket.
Op basis van twee peilbuizen uit Grondwatertools zijn de GHG (gemiddelde hoogste grondwaterstand) en GLG (gemiddelde laagste grondwaterstand) bepaald. Er zijn uit de database van Grondwatertools twee peilbuizen bij het plangebied gevonden. Dit zijn B32A1758 en B32A0128. De geschatte GHG is nabij het plangebied 4,9 tot 4,5 m-mv en de GLG 5,8 tot 4,9 m-mv.
Er bevinden zich binnen het plangebied geen grondwateronttrekkingen, open of gesloten bodemenergiesystemen volgens de WKO-tool van de Rijksdienst voor Ondernemend Nederland. Er zijn echter wel grondwateronttrekkingen gelegen zeer dicht bij het plangebied. Onbekend is wat de reden van de onttrekkingen zijn en of deze nog in gebruik zijn.
In het plangebied is een gemengd rioolstelsel gelegen. De afschrijftermijn van het stelsel is nog ca. 40 jaar. Door het plangebied ligt ook een belangrijk hoofdtransportriool voor afvalwater van o.a. de wijken Boomberg en Centrum. Dit stelsel voert het vuilwater af naar de rioolwaterzuiveringsinstallatie Hilversum-Oost. De locatie van dit hoofdtransportriool is van de Noorderweg naar de Kleine Drift, de leiding is rond en heeft een diameter van 1250 mm. Deze leiding gaat volgens de gemeente in gebruik blijven gedurende de bouwactiviteiten en in de toekomstige situatie. De ligging van het riool is een aandachtspunt voor de verdere planuitwerking.
Voor de afvoer van hemelwater uit de fietstunnel onder het station is naast het fietspad, onder het spoor een bergingskelder met een pomp aanwezig. Deze voert met een persleiding hemelwater af naar het rioolsysteem.
Het plangebied bevindt zich niet nabij een primaire of regionale waterkering. Hierdoor valt het plangebied ook niet binnen de beschermings- of kernzone van een waterkering. Het plangebied ligt ook niet in en overstroombaar gebied (atlasleefomgeving). Er hoeft geen rekening te worden gehouden met een kans op overstroming.
In de klimaateffectatlas is onder andere de stedelijke wateroverlast in beeld gebracht op basis van een extreme bui van 70 mm in 2 uur en 140 mm in 2 uur. Uit de klimaateffectatlas blijkt dat er bij hevige regenval (140 millimeter in 2 uur) water op straat optreed in het plangebied. Het water kan op straat een waterdiepte van >30 cm bereiken.
Toekomstige situatie
Het volledig terrein heeft een oppervlakte van ca. 15.875 m2. Het totaal oppervlak bestaat in de huidige situatie uit 890 m2 onverhard oppervlak en 14.985 m2 verhard oppervlak. De nieuwe ontwikkeling bestaat uit 5.460 m2 onverhard oppervlak en 10.415 m2 verhard oppervlak. Daarnaast is er een waterelement opgenomen in het ontwerp. Dit gaat als verhard oppervlak functioneren en heeft een oppervlakte van ca. 60 m2. De precieze uitwerking van het waterelement volgt later, de functie gaat sier- of speelwater worden.
Zie figuur 6-12, figuur 6-13 en tabel 6-17 voor de oppervlakteverdeling.
De plandelen worden naar aanleiding van overleg met de gemeente voor een afwijkende bergingseis over privaat en openbaar terrein opgedeeld in drie verschillende delen, zie figuur 6-11. Dit zijn openbare ruimte, perceel Oosterspoorplein en perceel Larenseweg. De berekening dient volgens de gemeente te worden verdeeld in deze delen doordat de perceeleigenaar verantwoordelijk is voor de realisatie van waterberging. De percelen langs het Oosterspoorplein hebben dezelfde eigenaar, daardoor rekent de gemeente deze gezamenlijk. In tabel 6-18 zijn de oppervlakten van de verschillende plandelen opgenomen.
Waterberging
Om de waterbergingsopgave te bepalen, is gekeken naar de opgaves vanuit het beleid van het waterschap Amstel, Gooi en Vecht en de gemeente Hilversum. Op basis hiervan is bepaald welk beleid voor deze planontwikkeling maatgevend is.
Waterschap Amstel, Gooi en Vecht
Volgens de Waterschapsverordening van Waterschap Amstel, Gooi en Vecht is er verplicht om bij een toename aan verhardingen van meer dan 1.000 m2, 10% aan oppervlaktewater te realiseren. De hoeveelheid oppervlaktewater mag ook worden ingericht door bergings- en infiltratievoorzieningen met minimaal dezelfde berging als de verplichte hoeveelheid oppervlaktewater. In het huidig voornemen is sprake van een afname in verhard oppervlak. Hierdoor heeft het waterschap geen wateropgave.
Gemeente Hilversum
Volgens het Gemeentelijk Watermanagementplan 2021-2026 zijn er diverse eisen voor waterberging bij nieuwbouw en gebiedsontwikkeling. De Gemeente Hilversum maakt onderscheid tussen privaat en openbaar terrein. De waterbergingsopgave is afhankelijk van het type terrein. In het plan staat verwerkt dat het verplicht is om op privaat terrein voor het gehele plangebied of perceel 80 mm per m2 verhard oppervlak te kunnen bergen. Hiervan wordt 20 mm in 1 uur op het maaiveld vastgehouden en geïnfiltreerd. De overige 60 mm dient te worden vastgehouden in een bergings- of infiltratievoorziening.
In de openbare ruimte is er voor het voorkomen van wateroverlast een eis om 70 mm te bergen, hiervan wordt 30 mm van verhard afgevoerd naar het riool en 30 mm van het onverhard op het maaiveld geborgen. De overige 40 mm (geheel perceel) dient te worden geborgen in een bergings- of infiltratievoorziening.
Privaat perceel Oosterspoorplein
3.150 * 0,06 = 189 m3
Privaat perceel Larenseweg
2.700 * 0,06 = 162 m3
Openbare ruimte
10.025 * 0,04 = 401 m3
De waterbergingsopgave vanuit de Gemeente Hilversum is maatgevend. Doordat het plangebied niet te maken heeft met een verhoging in de verhardingsgraad, heeft het Waterschap Amstel, Gooi en Vecht geen bijkomende waterbergingseisen. De totale benodigde waterbergingsopgave voor privaat terrein is 189 m3 en 162 m3. De totale benodigde waterberging in de openbare ruimte is 401 m3.
Binnen het ontwerp is ruimte voor waterberging opgenomen, waaronder wadi’s en groene daken. De wadi’s bevinden zich in de openbare ruimte en hebben een oppervlak van ca. 100 m2, de overige dimensionering is onbekend. Vervolgens zijn in het ontwerp twee sedum daken opgenomen, deze bevinden zich op het perceel Oosterspoorplein. De sedum daken hebben een oppervlak van ca. 510 m2. De wadi en groene daken zijn opgenomen in de berekening, zie tabel 6-19.
In het plan is ook een bestaande waterkelder opgenomen. Deze waterkelder bevindt zich bij de ingang van een fietstunnel onder het spoor. De spooronderdoorgang loopt af. Om te garanderen dat de tunnel niet volloopt tijdens hevige buien vangt de waterkelder oppervlakkig afvloeiend hemelwater op. Dit hemelwater wordt vervolgens gepompt naar het gemeentelijk gemengd rioolstelsel. De kelder wordt in de toekomstige situatie niet gewijzigd. De afmetingen en afvoercapaciteit daarvan is onbekend. Doordat deze functioneert als noodmaatregelen voor het drooghouden van de fietstunnel wordt deze voor de invulling van de waterbergingsopgave niet meegenomen als hemelwaterberging.
Door het grote dakoppervlak van ca. 5.800 m2 hebben de daken potentie voor de aanleg van meer waterbergende of sedum daken. De vorm van de daken lijkt hier grotendeels geschikt voor te zijn. Daarvandaan kan het hemelwater geleidelijk worden geïnfiltreerd door af te voeren op een infiltratiezone of opgeslagen voor hergebruik.
De bodem bestaat hoofdzakelijk uit goed waterdoorlatend zand, hierdoor is infiltratie een mogelijkheid. De meest ruimtelijk inpasbare infiltratievoorziening is de aanleg van wadi’s. In het plan staan reeds infiltratiezones ingetekend, deze dienen als geschikte locatie hiervoor, zie figuur 6-14. Het totaal oppervlak wat is aangemerkt als infiltratiezone binnen het plangebied is ca. 3.900 m2. De toepasbare maatregelen zijn in onderstaande tabel uitgewerkt.
In de openbare ruimte is het plaatsen van grotere wadi’s in de infiltratiezones mogelijk. In de percelen Oosterspoorweg staan sedum daken ingetekend, daarnaast kunnen wadi’s worden aangelegd om de opgave op te lossen. Deze wadi’s kunnen op het onverhard oppervlak binnen de perceelsgrenzen worden aangelegd. In perceel Larenseweg wordt het aanleggen van sedum daken op de bebouwing geadviseerd. Daarnaast is door de aanleg van de ondergrondse parkeergarage de mogelijkheid tot het realiseren van infiltratievoorzieningen beperkt. Daarom wordt geadviseerd infiltratiekratten aan te leggen aan de noordoostzijde van het perceel. Dit deel bevindt zich niet boven de parkeergarage en hier komt volgens het stedenbouwkundig ontwerp verharding te liggen. Onder deze verharding kan door de goede infiltratiecapaciteit van de bodem gebruik worden gemaakt van infiltratiekratten voor de waterafvoer.
Naast het treffen van de bovengenoemde klimaatadaptieve maatregelen is er vanuit Ambient vraag naar de mogelijkheden voor het realiseren van een terrassenstructuur ter infiltratie van afvloeiend hemelwater in de groenzones. Een dergelijk systeem functioneert als infiltrerende wadi. Door aanpassingen aan te brengen in het talud van de wadi is het mogelijk om een terrassenstructuur te ontwikkelen. Doordat de bodem volledig bestaat uit zand, gaat zonder versteviging het talud afvlakken. Om de terrassenstructuur te behouden is het hierbij benodigd om verstevigende constructies aan te leggen. Hierbij kan worden gedacht aan houten beschoeiing of een variant daarop. De diepte en het talud van de wadi speelt een grote rol in de inpassing van de terrassenstructuur. Indien de wadi niet diep genoeg is biedt dit geen toegevoegde waterberging. Daarnaast is het aanbrengen van een terrassenstructuur relevant bij een talud steiler van 1:1,5.
Belangrijk aandachtspunt is de wijze van afstroom van water richting de locaties die zijn voorzien voor waterberging. Centraal in het plangebied is de aansluiting van de spooronderdoorgang gelegen. De afstromingsrichting via het maaiveld zal daarom in de richting van de spooronderdoorgang lopen. Bij de nadere uitwerking dient voldoende aandacht te zijn dat overtollig water niet allemaal naar de spooronderdoorgang stroomt.
De bergings- en/of infiltratievoorzieningen dienen door gebrek aan een hemelwaterstelsel of oppervlaktewater oppervlakkig richting de wadi’s en groenzones af te stromen. Deze dienen lager te worden aangelegd dan het omliggend verhard oppervlak. Hiermee moet voorkomen worden dat dit naar het gemend rioolsysteem afstroomt en/of schade veroorzaakt aan bebouwing. Daarnaast dient ook de ingang van de ondergrondse parkeergarage verhoogd te worden aangelegd. Dit voorkomt de overstroming daarvan tijdens het optreden van een zeer intense neerslaggebeurtenis.
De dimensionering van de ingetekende wadi’s, ingetekende groene daken en gekozen maatregelen om te voldoen aan de bergingsopgave dient nader te worden onderbouwd ten behoeve van de omgevingsvergunning voor een wateractiviteit.
In het stedenbouwkundig ontwerp is ook verwerkt dat hemelwater van naastgelegen bebouwing langs de oostzijde van het plangebied wordt afgekoppeld. Het afvloeiend hemelwater van het afgekoppelde dakoppervlak wordt volgens figuur 6-14 geloosd in de infiltratiezones/wadi’s waar het infiltreert in de bodem. Het resultaat hiervan is een zwaarder belast systeem. De capaciteit van de infiltratievoorzieningen dient hierop te zijn ingericht.
Het gemeentelijk beleid schrijft voor de nieuwe ontwikkeling omtrent hemelwaterafvoer voor, om het regenwater afkomstig van verhard oppervlakte (daken, opritten en wegen) gescheiden af te voeren. Tevens is door de gemeente verplicht hemelwater van percelen op eigen terrein te verwerken. Wanneer tijdens een zeer intense neerslaggebeurtenis de bergings- en infiltratievoorzieningen op het eigen terrein de maximale capaciteit hebben bereikt, mag het overige hemelwater worden afgevoerd naar de openbare ruimte. Nieuwe ontwikkelingen op privaat terrein krijgen geen hemelwateraansluiting van de gemeente.
Voor ruimtelijke inpassing in de openbare ruimte, is het raadzaam de groenzones op een lagere maaiveldhoogte aan te leggen dan het omliggende verhard oppervlak. Hierdoor wordt bij extreme neerslaggebeurtenissen voorkomen dat wateroverlast op ongewenste locaties optreedt en schade veroorzaakt aan bebouwing en infrastructuur.
Conclusie wateropgave
Door de goede waterdoorlatende eigenschappen van de bodem, een lage grondwaterstand en de mogelijkheden voor de ruimtelijke inpassing van infiltratievoorzieningen is het mogelijk om de vereiste hoeveelheid hemelwaterberging te realiseren.
Grondwaterstand
De maaiveldhoogte ter plaatse van het plangebied bevindt zich tussen ca. NAP +5,5 en +1,5 m. De GHG is afgeleid op ca. NAP +0,7 tot +0,8 m. De ontwateringsdiepte bij handhaving van de huidige maaiveldhoogte is daarmee ca. 4,8 m. Plaatselijk aan de zuidwestelijke kant van het plangebied is bij de spoorwegonderdoorgang een laagte gelegen (NAP +1,5 m). Hier is de ontwateringsdiepte kleiner. Deze bevindt zich hier op het laagste punt op 0,7 m. De benodigde ontwateringsdiepte bij verbouw en nieuwbouw met kruipruimte is volgens de Gemeente Hilversum 0,7 m-mv.
Door een GHG van NAP +1,4 m te hanteren gaat een deel van de ontwikkeling niet meer voldoen. Op een laagte binnen het plangebied (voor de ingang van het station) is de maaiveldhoogte NAP +1,5 m. Door vervolgens de ontwateringsdiepte te bepalen, wordt zichtbaar dat de ontwikkeling voor dit deel met 0,1 m als ontwateringsdiepte niet voldoet. De vlakken met een maaiveldhoogte hoger of gelijk aan NAP +2,1 m voldoen.
Een aandachtspunt binnen het ontwerp is de ondergrondse parkeergarage. Binnen het huidig ontwerp is ingetekend dat deze op -1 verdieping komt te liggen. De exacte diepte is niet gespecificeerd. Door de lage GHG ter plaatse van het plangebied, is het aannemelijk dat deze voldoende diep zal worden geplaatst waardoor deze binnen de GHG gaat liggen. Hierdoor is het risico op grondwateroverlast aanwezig. Het advies is deze waterdicht aan te leggen om grondwateroverlast te voorkomen.
Watersysteem
In het planvoornemen is een ‘waterelement’ opgenomen. Naar verwachting zal dit element niet gaan functioneren als oppervlaktewater, maar meer als sier- of speelwater. Dit waterelement zal volledig kunstmatig worden beheerd en onderhouden. Door gebrek aan oppervlaktewater of HWA-riolering kan de fontein daarop niet worden aangesloten ter overloop. Hierdoor zal het element moeten overlopen in de aan te leggen infiltratievoorzieningen.
Het bestaande watersysteem wordt niet door dit waterelement beïnvloed. In de nabije omgeving is ook geen oppervlaktewater gelegen. Hierdoor worden door de ontwikkeling geen effecten verwacht op het bestaande oppervlaktewatersysteem.
Vuilwater
Het vuilwater en hemelwater dienen apart te worden afgevoerd conform het beleid van de gemeente. Het vuilwater kan op het reeds aanwezige gemengde stelsel van de gemeente worden afgevoerd, dit dient met de gemeente te worden afgestemd.
De realisatie van het planvoornemen leidt tot een toename aan vuilwaterbelasting. Voor het aansluiten van de toekomstige ontwikkeling op het bestaande rioolstelsel moet een rioleringsplan/technisch ontwerp worden opgesteld. Bij de realisatie van het technisch ontwerp dient te worden aangetoond dat het toekomstige vuilwateraanbod geen negatieve effecten veroorzaakt in het bestaande systeem of dat het rioolsysteem hier voldoende op is aangepast. De verwachting is dat door de afkoppeling van het hemelwater voldoende ruimte wordt gecreëerd in het rioolstelsel voor de toename aan vuilwaterbelasting.
Waterkwaliteit
Het plangebied bevindt zich niet nabij een primaire of regionale waterkering. Hierdoor valt het plangebied ook niet binnen de beschermings- of kernzone van een waterkering. De ontwikkeling heeft hierdoor geen effecten op de waterveiligheid in de omgeving. Er hoeft ook geen rekening te worden gehouden met een overstromingsdiepte omdat de locatie niet is gelegen in overstroombaar gebied.
Waterveiligheid
Het plangebied bevindt zich niet nabij een primaire of regionale waterkering. Hierdoor valt het plangebied ook niet binnen de beschermings- of kernzone van een waterkering. De ontwikkeling heeft hierdoor geen effecten op de waterveiligheid in de omgeving. Er hoeft ook geen rekening te worden gehouden met een overstromingsdiepte omdat de locatie niet is gelegen in overstroombaar gebied.
Conclusie
De voorgenomen ontwikkeling kan worden toegestaan. De ontwikkeling bevat voldoende ruimte voor waterbergingsvoorzieningen voor het oplossen van de bergingsopgave van de Gemeente Hilversum. Er zijn wel diverse aandachtspunten voor de waterhuishouding binnen het huidige ontwerp. Ten eerste is het belangrijk dat er geen schade door wateroverlast op kan treden. Dit kan worden voorkomen door de ingetekende groenzones lager aan te leggen dan de omliggende verhardingen. Ten tweede dient nader te worden gekeken naar de aanleg van de ondergrondse parkeergarage. Deze dient waterdicht te worden aangelegd en een verhoogde ingang te hebben, zodat grondwateroverlast en overstroming wordt voorkomen. Ten derde is het van belang dat het ‘waterelement’ uit het huidige ontwerp niet zorgt voor wateroverlast en kan afwateren op een infiltratievoorziening of hemelwaterriool.
Belangrijk aandachtspunt is de wijze van afstroom van water richting de locaties die zijn voorzien voor waterberging. Centraal in het plangebied is de aansluiting van de spooronderdoorgang gelegen. De afstromingsrichting via het maaiveld zal daarom in de richting van de spooronderdoorgang lopen. Bij de nadere uitwerking dient voldoende aandacht te zijn dat overtollig water niet allemaal naar de spooronderdoorgang stroomt. Hoewel er voldoende plaatsen zijn aangewezen als potentiële waterbergende locaties is de verdeling tussen het aangesloten verhard oppervlak en de omvang van de bergingslocaties goed op elkaar afgestemd te worden.
De nadere uitwerking van de verschillende bergings- en infiltratievoorzieningen dient nader te worden onderbouwd ten behoeve van de omgevingsvergunning voor een wateractiviteit.
Op basis van bovenstaande kan geconcludeerd worden dat het aspect weging van waterbelang geen belemmering vormt voor het planvoornemen.
Kader
Het klimaat verandert: het wordt warmer er natter. Ook zijn er vaker lange periodes van droogte en neemt de kans op overstromingen toe. Inspelen op de gevolgen van klimaatverandering wordt klimaatadaptatie genoemd. Klimaatadaptatie is een opgave voor én door iedereen. De gevolgen van klimaatverandering zijn de 4 thema’s: hitte, droogte, wateroverlast en overstromingen. Rijk, gemeenten, waterschappen, provincies en veiligheidsregio’s zijn met dit onderwerp bezig met als doel in 2050 klaar te zijn voor extremere weersomstandigheden en de stijgende zeespiegel.
Klimaatverandering heeft grote impact op de bebouwde omgeving. Om schade en overlast door weersextremen te beperken, moet de manier waarop steden worden gebouwd en ingericht worden aangepast. Tot 2040 worden in Noord-Holland ongeveer 230.000 woningen gebouwd. Het is belangrijk om deze nieuwbouw duurzaam en dus klimaatadaptief te ontwikkelen om toekomstige extra investeringen te voorkomen. Het uitgangspunt is om gebouwen (nieuwe ontwikkelingen) klimaatadaptief in te richten.
Hittestress, wateroverlast en droogtestress
Het Bruisend Hart is in de huidige situatie kwetsbaar voor hittestress, wateroverlast en droogtestress. Hieronder is de huidige situatie geschetst aan de hand van de Klimaateffectatlas.
Hittestress
In de onderstaande afbeelding is de hittekaart gevoelstemperatuur (huidig) gevisualiseerd. In het Bruisend Hart is te zien dat de gevoelstemperatuur ver kan oplopen tot rond de 45 graden.
Wateroverlast
In figuur 6-16 is te zien dat bij een hevige regenbui in de huidige situatie problemen ontstaan in het Bruisend Hart. De waterdiepte kan oplopen tot meer dan 30 cm.
Droogtestress
In de afbeelding hieronder is de gemiddelde laagste grondwaterstand in de huidige situatie afgebeeld. In het plangebied (en omgeving) ligt de gemiddelde laagste grondwaterstand onder de 2 meter.
Beoordeling
Groen
Het Bruisend Hart is een natuurinclusieve ontwikkeling. Het plangebied is in groene verbinding met de omgeving. Zo wordt de bestaande bomenstructuur buiten het plangebied aangevuld in het Bruisend Hart. Samen met de boomgroepen in het Bruisend Hart wordt gezorgd voor schaduw en koelte in het plangebied.
Het beeld van het Bruisend Hart wordt bepaald door een variatie aan boomgroepen, kleinschalige open ruimten, alleenstaande bomen en groepen van opgaande beplanting. De boomsoorten die worden aangeplant zijn inheems en gevarieerd. De ruimte wordt omgeven door kleinschalig groen van geveltuinen, voorstoepjes en terrassen. Doorlopende hagen zorgen voor een samenhangend landschappelijke beeld en leveren een belangrijke bijdrage aan de biodiversiteit. De hagen schermen de luwe verblijfsplekken af van de doorgaande routes en begeleiden verschillende routes door het gebied. De hagen en opgaande beplanting creëren besloten verblijfsruimten. Bij de belangrijkste toegangen tot het gebied, vanaf de Larenseweg, de Kleine Drift en de Noorderweg, worden grote beeldbepalende bomen aangeplant. De bomen onderscheiden zich van de omgeving door hun bladkleur, bloei of groeiwijze en vormen zo herkenningspunten langs de routes.
Buurttuin
De beplanting in de Buurtuin biedt een afwisselend beeld, wat het hele jaar aantrekkelijk is. De tuin wordt omzoomd door hagen en vormt een fijne beschutte plek. In de tuin wordt het regenwater geïnfiltreerd en geborgen. Dit wordt zichtbaar gemaakt door kleine hoogteverschillen in het maaiveld, waardoor water in wadi’s blijf staan.
Stadstuin
In de Stadstuin wordt het hoogteverschil tussen de tunnel en de Zuiderweg, de Larenseweg en de Buurtuin opgelost in een samenhangend groenbeeld. Het beeld en de sfeer van de Stadstuin sluit aan bij de inrichting van het stationsgebied aan de centrumzijde.
Water
Water uit het Centrum, Noord, Trompenberg, Boomberg en Oost wordt via het hoofdriool in de Minckelersstraat vervoerd naar de bufferbakken en rioolwaterzuivering bij Anna’s hoeve. Uit metingen blijkt dat vernauwingen en drempels in het hoofdriool leiden tot een beperkte waterafvoer, het werkt als een fessenhals. Met het voorgenomen besluit om een overdekte gracht aan te leggen wordt het hoofdriool veel groter, waardoor het probleem van de fessenhals wordt opgelost en extra berging wordt aangelegd. Het nieuwe hoofdriool is een rechthoekige buis van 2x3 meter over 1 kilometer lang. Naast het verruimen van de hoofdafvoer van gemengd rioolwater uit Hilversum Oost, is het belangrijk om bij ontwikkelingen te zorgen dat er zo min mogelijk regenwater wordt afgevoerd via gemengd riool naar de zuivering. Dat is niet alleen voor het beperken van overlast door water op straat, zeker ook voor duurzaam waterbeheer.
In het Bruisend Hart wordt regenwater zichtbaar opgevangen en geïnfiltreerd in de bodem. In de Buurttuin komen wadi’s om tijdelijk water te bergen. Ook wordt ruimte gezocht om de daken van omliggende bebouwing af te koppelen. Voor de openbare ruimte geldt de norm dat de eerste 70mm die valt tijdens een intensieve bui binnen het plangebied wordt opgevangen en geïnfiltreerd. In droge perioden wordt het opgeslagen regenwater gebruikt voor de besproeiing van het groen.
Op privéterreinen tref de eigenaar maatregelen om de eerste 60 mm neerslag in een uur op eigen terrein te infiltreren. Dit gebeurt binnen de (toekomstige) perceelgrenzen en zonder dat water op straat komt te staan. De beplanting in het gebied houdt met zijn bladeren ook regenwater vast. Dit kan bij een volgroeide boom wel 20% zijn van wat er valt. Hoe meer beplanting en onverhard terrein, hoe meer water in het gebied wordt vastgehouden of verdampt. In het Bruisend Hart wordt veel onverhard infiltratieoppervlak toegepast, maar op een aantal plaatsen ontbreekt dit door parkeergarages, ondergrondse voorzieningen en dakconstructies. De precieze waterberging voor het gebied en de benodigde capaciteiten en voorzieningen worden in de uitwerking van het ontwerp openbare ruimte uitgewerkt.
Zie volgend figuur voor alle infiltratiegebieden/zones, groene gevels en andere klimaatadaptieve (m.b.t. wateroverlast) aspecten van het plangebied.
Conclusie
Klimaatadaptatie is goed geborgd in het plan, waardoor dit aspect geen belemmering vormt voor de ontwikkeling.
Kader
Onder huidig recht stellen de Omgevingswet en het Besluit kwaliteit leefomgeving geen eisen aan duurzaamheid die bij een bestemmingsplanprocedure in acht genomen moeten worden. Als er sprake is van dergelijke eisen vloeien die meestal voort uit gemeentelijk beleid. Wel stelt artikel 1.3 van de Omgevingswet dat de doelen van de wet gesteld zijn met het oog op duurzame ontwikkeling. Deze bepaling kan duurzaamheid een prominente positie in planvorming geven. Vooralsnog is dat niet het geval omdat omgevingsplannen in de eerste fase na inwerkingtreding van de wet vooral beleidsneutrale omzettingen van bestaande regels zijn. Om die reden wordt gesteld dat in die fase de onderzoekslasten voor duurzaamheid niet veranderen.
Beoordeling
Het gebruik en de verschillende functies bij een station veranderen met de tijd door ontwikkelingen in transport en techniek. Het gebied en de gebouwen zijn flexibel om de veranderende wensen in gebruik te kunnen inpassen. De gebruikte materialen zijn herbruikbaar. Energie wordt zo veel mogelijk binnen het gebied opgewekt en opgeslagen.
Circulair
Het ontwerpen van gebouwen gebeurt op basis van de huidige wensen, bijvoorbeeld voor wonen. Ze zijn voorbereid op een mogelijke verandering van functie in de toekomst. Gebouwen aan de centrale openbare ruimte hebben een begane grond met een hoogte van minimaal 3,6 meter en voor de kelders een vrije verdiepingshoogte van 3 meter. Daarbij hebben de begane grond en de kelder een constructie die bestaat uit kolommen, waardoor ze vrij in te delen zijn. De gebouwen voldoen aan de wettelijke Milieuprestatie Gebouwen (MPG).
Ook de inrichting van de buitenruimte is bewust ontworpen voor meerdere soorten van gebruik en is niet specifiek voor één gebruik of groep ingericht. De materialen in de buitenruimte zijn zo goed als allemaal herbruikbaar en bij de aanleg wordt minimaal 50% hergebruikt materiaal toegepast.
Energietransitie
Hilversum staat, net als de rest van Nederland, voor een belangrijke opgave. In 2050 is er geen gebruik meer van fossiele brandstoffen. Dit betekent dat alle nieuwe gebouwen in het Bruisend Hart aardgasvrij zullen zijn. Ook alle bestaande gebouwen rondom het gebied moeten duurzame manieren vinden om te verwarmen, te koelen en te koken. Een eerste verkenning maakt duidelijk dat er kansen liggen voor zonnepanelen en dat een collectief bodemenergiesysteem voor de opslag van warmte en kou het meest efficiënt is. Op een slim warmte- en koudenet kunnen alle gebouwen in het gebied worden aangesloten.
De collectieve warmte- en koudevoorziening die hier mogelijk is, is een 5e generatie warmtenet. Dit is een lage temperatuur-warmtenet (ZLT) waarmee de aangesloten gebouwen kunnen verwarmen en koelen. Het warmtenet bestaat uit een dubbele ringleiding, waarop de gebouwen, het bodemenergiesysteem (opslag) en de warmte- en koudebronnen zijn aangesloten. Een 5e generatie warmtenet heef een centrale technische ruimte. De gebouwen hebben een eigen techniekruimte om de temperatuur uit het warmtenet te verhogen naar circa 35 graden voor ruimteverwarming, en 60 graden voor warm tapwater. De koude- en warmtebron liggen zo’n 100 meter uit elkaar. De bronpunten bevinden zich in de openbare ruimte, ze nemen alleen ondergrondse ruimte in en hebben een putdeksel.
Conclusie
Het aspect duurzaamheid vormt geen belemmering voor onderhavig planvoornemen.
Kader
Gezondheid is een thema waar de Omgevingswet geen inhoudelijke eisen over stelt, ondanks dat het bieden van een veilige en gezonde fysieke leefomgeving tot de maatschappelijke doelen van de wet behoort (art. 1.3) en wordt vereist dat bij de een evenwichtige toedeling van functies rekening gehouden dient te worden met het beschermen van de gezondheid (art. 2.4 lid 4). Omdat de Omgevingswet het begrip gezondheid niet inkadert, kan het veel verschillende onderwerpen raken. Zo zijn milieunormen vastgelegd om de volksgezondheid te beschermen (zoals besproken in voorgaande paragrafen), maar kunnen overheden ook eigen gezondheidsambities uitwerken en vastleggen.
Omgevingsvisie Hilversum 2040
Gezondheid is een thema dat in Omgevingsvisies als leidraad wordt gekozen. Het Planbureau voor de leefomgeving adviseert in zijn tweejaarlijkse rapportage vier belangrijke thema’s op te nemen: gezondheidsbescherming, gezondheidsbevordering, gezondheidsachterstanden en vergrijzing. Hilversum kiest in de Omgevingsvisie voor het koppelen van gezondheid aan andere thema’s, zoals het investeren in ontmoetingsplekken en veilige routes, klimaatadaptatie, biodiversiteit, beweegvriendelijke openbare ruimte, sport- en cultuurparticipatie in de wijk, groen in en om de stad en de mobiliteitsopgave. Dit zijn meekoppelkansen voor het gezondheidsdomein: ‘Health In and for All Policies’.
Hilversum wil daarnaast de sociale veiligheid (verder) versterken. In het integraal veiligheidsplan (IVP) zet Hilversum in op een integrale aanpak van criminaliteit, overlast en onveilige situaties. Samen met inwoners en veiligheidspartners wilt Hilversum ervoor zorgen dat het veiligheidsgevoel toeneemt en de overlast afneemt.
De fysieke leefomgeving van Hilversum wordt volgens de ontwerpprincipes voor een veilige leefomgeving ingericht:
• Voorkomen of beperken van risico’s vergroot de veiligheid;
• De afstand tot risico’s vergroot de veiligheid;
• Bouwwerken en omgeving bieden de bescherming;
• De omgeving bevordert snel en effectief optreden van hulpdiensten
• Iedereen is bekend met risico’s en weet hoe te handelen.
Hilversum maakt deel uit van veiligheidsregio Gooi en Vechtstreek. De veiligheidsregio werkt vanuit de volgende kernwaarden:
1. De veilige leefomgeving bepaalt mede de leefomgevingskwaliteit;
2. Voor een veilige leefomgeving is samenwerking noodzakelijk.
Als belangrijkste ontwikkelingen met betrekking tot veiligheid en gezondheid ziet de veiligheidsregio daarbij:
• Verrijzing, leidend tot toename van het aantal verminderd zelfredzamen dat nog thuis woont, meer slachtoffers bij brand en ongevallen in huis en een toenemende hulpvraag.
• Verdichting van de bebouwde omgeving. Bij plannen tot verdichting rond OV-knooppunten, zoals de stationsgebieden in Hilversum moet rekening worden gehouden met transport van gevaarlijke stoffen over het spoor.
• Energietransitie en klimaatverandering. Hiervan zijn veel risico’s nog niet volledig in beeld. Bijvoorbeeld de kans en impact van weer gerelateerde risico’s toenemen (clusterbuien, droogte) en de invloed op hittestress, wateroverlast en vitale infrastructuur. Dat geldt ook voor de ontwikkeling in de energie-infrastructuur en de circulariteit.
Beoordeling
Gezondheidsbescherming
Om een gezonde leefomgeving te creëren en behouden dient de gezondheid van bewoners in de eerste plaats beschermd te worden. De wettelijke grenswaarden waaraan de verschillende milieuaspecten worden getoetst zijn echter niet altijd voldoende om de menselijke gezondheid optimaal te beschermen. Hieronder wordt een deel van de milieuaspecten daarom nogmaals beschouwd, ditmaal vanuit het oogpunt van de menselijke gezondheid.
Geluid
In paragraaf 6.4 wordt ingegaan op het effect van geluid op het planvoornemen. Op twee punten wordt de standaardwaarde voor gemeentewegen overschreden, maar het geluid blijft ver onder de grenswaarde. Voor railverkeer wordt de grenswaarde overschreden bij het Noordelijk stationsblok. Daarnaast wordt bij het bouwblok aan de Larenseweg de standaardwaarde overschreden voor railverkeer.
De woningen aan de Larenseweg bevinden zich naast de busremise. Hier kan geluidhinder ontstaan voor de toekomstige bewoners. Plannen om in de toekomst (2030) een andere locatie voor de busremise te vinden wordt aangeraden.
Geluidwering is een maatregel die genomen moet worden om het planvoornemen te laten doorgaan. De toekomstige woningen moeten een maximale binnen niveau van 33 dB hebben. De geluidreductie van deze geluidwering moeten hoog zijn voor de toekomstige woningen.
Trillingen
In paragraaf 6.5 wordt ingegaan op het effect van trillingen op het planvoornemen. Op basis van het onderzoek wordt geconcludeerd dat binnen het plangebied sprake is van trillingen van langsrijdende treinen. Er wordt niet voldaan aan de na te streven waarden zoals aangegeven in de Richtlijn deel B “Hinder voor personen in gebouwen door trillingen, meet- en beoordelingsrichtlijn” van de Stichting Bouwresearch (SBR). Met aanvullende maatregelen kan trillingsniveau in de gebouwen verlaagd worden tot de normen uit de SBR-richtlijn. In de regels van het omgevingsplan moeten de voorwaarden met betrekking tot de gewenste woonkwaliteit. Omdat de uiteindelijke constructieve opzet van de gebouwen nog niet bekend is, wordt geadviseerd dit opnieuw te beoordelen bij de aanvraag omgevingsvergunning bouwen.
Lucht
In paragraaf 6.7 wordt ingegaan op het effect van de ontwikkeling op de luchtkwaliteit. Er wordt voldaan aan de wettelijke normen. Opgemerkt wordt dat in de huidige situatie (voor een groot deel van Nederland en) in het plangebied en omgeving van het voornemen de achtergrondconcentraties voor PM10, PM2,5 en NO2 al hoger zijn dan de gezondheidskundige advieswaarde die het WHO en het GGD-omgevingsadvies hanteren. De ontwikkeling draagt hier in niet betekende mate aan bij en zorgt dus niet voor een substantiële verslechtering van de situatie.
Bodem
In paragraaf 6.8 wordt ingegaan op de bodemkwaliteit van het plangebied. De bodemkwaliteitskaart van de gemeente Hilversum laat 2 verontreinigingen zien in het grondwater. Verontreinigingen in de bodem leveren over het algemeen geen belemmeringen op voor een ontwikkeling, omdat sanering mogelijk is. Voor het gehele gebied wordt actualiserend onderzoek uitgevoerd, op het moment dat de gronden beschikbaar zijn.
Water
In paragraaf 6.13 wordt ingegaan op de weging van waterbelang. De huidige situatie van het plangebied heeft een oppervlakte van ca. 19.380 m2, waarvan 960 m2 bestaat uit onverhard oppervlak en 18.420 m2 uit verhard oppervlak. De nieuwe ontwikkeling bestaat uit 6.450 m2 onverhard oppervlak en 12.930 m2 verhard oppervlak.
Volgens het Gemeentelijk Watermanagementplan 2021-2026 zijn er diverse eisen voor waterberging bij nieuwbouw en gebiedsontwikkeling. De Gemeente Hilversum maakt onderscheid tussen privaat en openbaar terrein. De waterbergingsopgave is afhankelijk van het type terrein. In het plan staat verwerkt dat het verplicht is om op privaat terrein voor het gehele plangebied of perceel 80 mm per m2 verhard oppervlak te kunnen bergen. Hiervan wordt 20 mm in 1 uur op het maaiveld vastgehouden en geïnfiltreerd. De overige 60 mm dient te worden vastgehouden in een bergings- of infiltratievoorziening.
In de openbare ruimte is er voor het voorkomen van wateroverlast een eis om 70 mm te bergen, hiervan wordt 30 mm van verhard afgevoerd naar het riool en 30 mm van het onverhard op het maaiveld geborgen. De overige 40 mm (geheel perceel) dient te worden geborgen in een bergings- of infiltratievoorziening.
De totale benodigde waterbergingsopgave voor privaat terrein is 350 m3 en 157 m3. De totale benodigde waterberging in de openbare ruimte is 439 m3.
Binnen het ontwerp is ruimte voor waterberging opgenomen, waaronder wadi’s en groene daken. De wadi’s bevinden zich in de openbare ruimte en hebben een oppervlak van ca. 200 m2, de overige dimensionering is onbekend. Vervolgens zijn in het ontwerp twee sedum daken opgenomen, deze bevinden zich op het perceel Oosterspoorplein. De sedumdaken hebben een oppervlakte van ca. 400 m2.
In de openbare ruimte is het plaatsen van grotere wadi’s in de infiltratiezones mogelijk. In de percelen Oosterspoorweg staan sedum daken ingetekend, daarnaast kunnen wadi’s worden aangelegd om de opgave op te lossen. Deze wadi’s kunnen op het onverhard oppervlak binnen de perceelsgrenzen worden aangelegd. In perceel Larenseweg wordt het aanleggen van sedum daken op de bebouwing geadviseerd. Daarnaast is door de aanleg van de ondergrondse parkeergarage de mogelijkheid tot het realiseren van infiltratievoorzieningen beperkt. Daarom wordt geadviseerd infiltratiekratten aan te leggen aan de noordoostzijde van het perceel. Dit deel bevindt zich niet boven de parkeergarage en hier komt volgens het stedenbouwkundig ontwerp verharding te liggen. Onder deze verharding kan door de goede infiltratiecapaciteit van de bodem gebruik worden gemaakt van infiltratiekratten voor de waterafvoer.
Door de goede waterdoorlatende eigenschappen van de bodem, een lage grondwaterstand en de mogelijkheden voor de ruimtelijke inpassing van infiltratievoorzieningen is het mogelijk om de vereiste hoeveelheid hemelwaterberging te realiseren.
Veiligheid (omgevingsaspecten)
Een gezonde omgeving is ook een veilige omgeving. In paragraaf 6.3 zijn de veiligheidsrisico’s als gevolg van vervoer van gevaarlijke stoffen (over het spoor) beschouwd (de omgevingsveiligheid). Daarnaast is in paragraaf 6.14 de klimaatadaptieve kenmerken van het plan beschreven.
De spoorlijn Weesp-Hilversum (route 30) is vanuit omgevingsveiligheid de enige relevante risicobron in de omgeving van het plangebied. Nieuwbouw moet in de toekomstige situatie maatregelen treffen met betrekking tot de veiligheid.
Het plangebied heeft te maken met wateroverlast, hittestress en droogte. De beoogde ontwikkeling houdt voldoende rekening met deze drie aspecten van klimaatverandering. Zo wordt het Bruisend Hart groen ingericht met meerdere infiltratiegebieden.
Gezondheidsbevordering
In een gezonde leefomgeving is niet alleen sprake van gezondheidsbescherming, maar ook van gezondheidsbevordering. Dit betekent dat de omgeving uitnodigt tot gezond gedrag met invloed op zowel de fysieke als de mentale gezondheid. De volgende aspecten dragen bij aan onder andere ontspanning, beweging en ontmoeting.
Groen
Groen en water hebben een positief effect op de gezondheid, zowel fysiek als mentaal en zowel direct als indirect (bijvoorbeeld door klimaatadaptatie). Het plangebied ligt in het centrum van Hilversum waar een hoog verhardingspercentage is (Klimaateffectatlas, 2021).
Met de beoogde ontwikkeling wordt Bruisend Hart een natuurinclusief (en dus groen) gebied. In totaal wordt er ca. 4.000 m2 aan onverhard oppervlakte toegevoegd aan het gebied. Het beeld van het Bruisend Hart wordt bepaald door een variatie aan boomgroepen, kleinschalige open ruimten, alleenstaande bomen en groepen van opgaande beplanting. De boomsoorten die worden aangeplant zijn inheems en gevarieerd. De ruimte wordt omgeven door kleinschalig groen van geveltuinen, voorstoepjes en terrassen. Doorlopende hagen zorgen voor een samenhangend landschappelijke beeld en leveren een belangrijke bijdrage aan de biodiversiteit.
Sociale duurzame leefomgeving
Binnen het Bruisend Hart komt een Brink en een stationsplein. De Brink en het plein onderscheiden zich van elkaar door uitstraling en gebruik. Fietsers en voetgangers die gebruik maken van de tunnel bewegen door de Brink en beleven de sfeer ervan. In de Brink ligt de Uitspanning. Deze horecafunctie zorgt voor levendigheid in de tuin. Centraal in de Brink ligt een opvallend waterelement met ruimte om te spelen. Hieromheen ligt het terras van de Uitspanning en trapvormige plateaus waar mensen kunnen picknicken en van de zon kunnen genieten. In de tuin worden rustige plekken gemaakt waar mensen elkaar kunnen ontmoeten en kunnen zitten. Het beeld van de Brink wordt bepaald door een afwisseling van boomgroepen, open ruimten en solitaire bomen. Hierdoor ontstaan zowel zonnige als schaduwrijke plekken.
Langs het stationsgebouw komt het stationsplein. Dit plein biedt ruimte aan de verschillende voetgangers- en fietsersstromen die hier samenkomen. Door bomen – alleen en in groepjes – te planten, strekt het lommerrijke karakter van de tuinen zich uit tot het stationsplein. Het plein is van alle zijden goed toegankelijk voor voetgangers en fietsers en vormt een levendige plek.
Veiligheid (en verkeer)
De openbare ruimte wordt ingericht via de zogenoemde STOMP-principe. Hierin staat de voetgang voorop, gevolgd door de fietser, het openbaar vervoer en mobility as a service (bijvoorbeeld deelauto’s). De privéauto vormt het sluitstuk in de inrichting. Door de openbare ruimte in te richten volgens dit principe, verbeter de verkeersveiligheid én ontstaat er meer ruimte voor bewegen, spelen en ontmoeting.
In de structuurvisie is een knip voor autoverkeer voorgesteld op de Boerhaavestraat. Deze is bedoeld om sluipverkeer te voorkomen. Uit onderzoek van RHDHV van 20 september 2023 blijkt dat een knip op de Boerhaavestraat nog steeds risico’s geef op sluipverkeer door de wijk. Verkeer gaat dan waarschijnlijk via de Bakkerstraat, Galvanistraat of Ampèrestraat en de Eemnesserweg naar de Larenseweg. Om dit risico te vermijden wordt de knip niet in de Boerhaavestraat gelegd, maar op de Eemnesserweg, vóór de aansluiting met de Larenseweg. Met het uitsluiten van sluipverkeer verbetert de verkeersveiligheid, luchtkwaliteit en geluid.
Conclusie
Het aspect gezondheid vormt geen belemmering voor onderhavige wijzigingsbesluit.
Kader
Het instrument milieueffectrapportage (mer) is ontwikkeld om het milieubelang een volwaardige plaats in bepaalde plan- en besluitvormingsprocessen te geven. In het milieueffectrapport (MER) worden de effecten van een ontwikkeling voor alle relevante milieuaspecten systematisch in beeld gebracht. Tevens wordt nagegaan of er alternatieven of maatregelen zijn waarmee eventuele negatieve effecten kunnen worden verminderd of voorkomen. Enerzijds maakt het opstellen van een milieueffectrapport (MER) de initiatiefnemer bewust van de milieugevolgen en anderzijds kan de overheid diverse milieugevolgen in samenhang met elkaar en op een voor de burger transparante wijze bij de besluitvorming betrekken.
De verplichting een MER op te stellen is van kracht sinds 1 september 1987 en is verankerd in de Omgevingswet (en voorheen Wet Milieubeheer). Voor sommige plannen of projecten geldt direct de verplichting om een MER op te stellen, maar er zijn ook plannen waarvoor het bevoegd gezag moet beoordelen of zij het nodig vindt om ter voorbereiding van een besluit een MER te laten maken. In het Omgevingsbesluit is opgenomen voor welke activiteiten de mer-(beoordelings)plicht bestaat. Het gaat dan met name om activiteiten die aanzienlijke nadelige effecten kunnen hebben op het milieu.
Beoordeling
Voor de voorgenomen ontwikkeling is een mer-beoordeling uitgevoerd. Deze mer-beoordeling is opgenomen als bijlage 12 bij deze motivering. Hieronder wordt ingegaan op de conclusie van de beoordeling.
De beoogde ontwikkeling wordt in bijlage V van het Omgevingsbesluit aangemerkt als stedelijk ontwikkelingsproject met inbegrip van de bouw van winkelcentra en de aanleg van parkeerterreinen (categorie J11). Voor dit project geldt, op basis van kolom 2, geen mer-plicht. Op basis van kolom 3 geldt echter wel een mer-beoordelingsplicht. Gelet op de kenmerken van het project, de locatie die niet in of bij beschermde natuurgebieden ligt en het feit dat er geen sprake is van aanzienlijke milieueffecten, maakt dat kan worden volstaan met een mer-beoordeling.
Conclusie
Op basis van de aanmeldnotitie mer kan worden geconcludeerd dat de ontwikkeling van het plangebied niet leidt tot nadelige milieueffecten. Er is geen aanleiding voor het doorlopen van een mer-procedure of het opstellen van een MER. Daarmee vormt de mer-beoordeling geen belemmering voor het planvoornemen.
Het basisprincipe onder het economisch uitvoerbaar maken van de ontwikkeling van Bruisend Hart is dat de gronden, waar de ontwikkeling plaatsvindt, grotendeels in bezit zijn van de gemeente Hilversum. Voor gronden die niet in het bezit zijn van Hilversum dienen nadere afspraken te worden gemaakt. Die afspraken houden onder meer in dat alle kosten die gemaakt worden bij het ontwikkeling van Bruisend Hart voor rekening van de ontwikkelende partijen komen. Dit omvat ook het vergoeden van eventuele nadeelcompensatie. De gemeente draagt bij op de aankoop van de gronden en vanuit de sterretjespost komt een bijdrage. In de begroting van de gemeente Hilversum is rekening gehouden met deze ontwikkeling. Het initiatief is hiermee vanuit economisch oogpunt niet-evident onuitvoerbaar. Dit betekent dat het niet direct duidelijk of vanzelfsprekend onmogelijk is om het initiatief uit te voeren. De redenen dat de ontwikkeling van Bruisend Hart economisch niet-evident onuitvoerbaar is worden in de navolgende subparagrafen toegelicht.
Het toetsen van de financieel-economische uitvoerbaarheid vindt plaats om te bepalen of het voornemen niet leidt tot onevenredig nadelige gevolgen voor belanghebbenden omdat het voornemen op financieel-economisch gebied onuitvoerbaar blijkt. Onder het systeem van de Omgevingswet gaat het bij het toetsen van dit aspect vooral om een toets aan het evenredigheidsbeginsel (artikel 3:4, lid 2) uit de Algemene wet bestuursrecht.
In de memorie van toelichting bij het wetsvoorstel van de Omgevingswet over de uitvoerbaarheid van het omgevingsplan staat: ‘Alleen als evident is dat een functie onuitvoerbaar is, moet het toedelen daarvan achterwege blijven.’ Het gaat vooral om een onuitvoerbaarheid die aan het licht komt bij het beoordelen van de omgevingsplanwijziging en om belemmeringen die zich niet op redelijke termijn op laten lossen. Een omgevingsplanwijziging moet zekerheid geven over de toegestane ontwikkelingen. De omgevingsplanwijziging hoeft echter geen zekerheid te bieden over het moment waarop de ontwikkelingen plaats gaan vinden. Dit benadrukt de toets op de niet evidente onuitvoerbaarheid van ontwikkelingen die de Omgevingswet vraagt. Deze toets geldt voor zowel de financieel-economische aspecten, als milieuaspecten, als ruimtelijke aspecten van een ontwikkeling.
Het toelaten van de ontwikkeling van Bruisend Hart kan negatieve gevolgen hebben voor de waarde van onroerende zaken van derden. Omdat er bij dergelijke negatieve gevolgen mogelijkheden voor nadeelcompensatie bestaan, worden financieel-economische effecten voor derden voorkomen. Het bevoegd gezag en de ontwikkelende partij kunnen afspraken maken over de vergoeding van nadeelcompensatie en het kostenverhaal (zie 7.1.3 en 7.1.4) zodat negatieve financieel-economische gevolgen voor het bevoegd gezag ook voorkomen worden. Met de mogelijkheden tot nadeelcompensatie worden onevenredige financieel-economische effecten voor derden voorkomen. Met de afspraken over de vergoeding van nadeelcompensatie en kostenverhaal tussen bevoegd gezag en de ontwikkelende partij worden onevenredige financieel-economische gevolgen voor het bevoegd gezag voorkomen.
De gronden waar Bruisend Hart op ontwikkeld wordt zijn grotendeels in het bezit van de gemeente Hilversum. Na het sluiten van privaatrechtelijke overeenkomsten geeft de gemeente de gronden uit aan ontwikkelende partijen. In die privaatrechtelijke overeenkomsten worden onder meer afspraken gemaakt over kostenverhaal. Hiermee is het kostenverhaal anterieur verzekerd.
In de omgevingsplanwijziging zijn kostenverhaalregels opgenomen. Dit betekent dat het kostenverhaal ook publiekrechtelijk is geregeld .Voor zover geen privaatrechtelijke overeenkomsten zijn aangegaan, worden de kosten verhaald via deze kostenverhaalregels. De privaatrechtelijke overeenkomsten gaan echter vóór de regels over kostenverhaal in het omgevingsplan.
Deze omgevingsplanwijziging is bedoeld om in het omgevingsplan van de gemeente Hilversum toe te staan dat de ontwikkeling Bruisend Hart gebouwd en gebruikt kan worden zoals is beoogd. Op grond van artikel 15.1, lid 1, sub d van de Omgevingswet geldt de omgevingsplanwijziging als exclusieve schadeoorzaak voor de activiteiten die als gevolg van deze omgevingsplanwijziging uitgeoefend kunnen worden.
De omgevingsplanwijziging wijzigt de gebruiksmogelijkheden van gronden en staat de uitvoering van bijvoorbeeld aanleg- en bouwactiviteiten toe. Op grond hiervan kan op twee manieren financieel nadeel ontstaan:
1. Waardedaling van onroerend goed: dit is schade die kan ontstaan wanneer een wijziging van de regels invloed heeft op de waarde van onroerend goed.
2. Inkomensschade: dit is schade die kan ontstaan als een wijziging van regels invloed heeft op de inkomsten van een persoon of bedrijf.
Ten aanzien van de wijziging van de gebruiksmogelijkheden van gronden wordt opgemerkt dat de gronden, waar de ontwikkeling van Bruisend Hart voorzien is, grotendeels in het bezit zijn van de gemeente Hilversum. Financieel nadeel voor de gemeente als gevolg van de gebruikswijziging van deze gronden is niet te verwachten.
De omgevingsplanwijziging is zo opgesteld dat het ontstaan van financieel nadeel waar mogelijk voorkomen wordt. Evenwel kunnen risico’s op het ontstaan van dit nadeel niet volledig weggenomen worden. Om die reden kan een beroep worden gedaan om tegemoetkoming in geleden schade. Ten aanzien van die schade worden de twee vormen uit de navolgende paragrafen onderscheiden.
De onderstaande paragrafen hebben uitsluitend betrekking op schade die het gevolg is van rechtmatige benutting van de mogelijkheden die de omgevingsplanwijziging biedt. De Omgevingswet en Algemene wet bestuursrecht bevatten geen regeling voor het vergoeden van schade die ontstaan is door onrechtmatig handelen van de overheid. Dergelijke schade kan mogelijk wel op grond van het burgerlijk recht verhaald worden.
Schade 1: Nadeelcompensatie bij de waardedaling van onroerend goed
Waardedaling van onroerend goed is in dit geval het eerste element van compensatie. In het geval van dergelijke waardedaling kan een verzoek om tegemoetkoming in de geleden schade worden ingediend het college van burgemeester en wethouders van de gemeente Hilversum. Dit college neemt vervolgens een besluit over het verzoek. Het verzoek en de beraadslagingen daarover verlopen via de Verordening nadeelcompensatie Hilversum 2022.
Bij nadeelcompensatie als gevolg van een waardedaling van onroerend goed wordt de hoogte van de nadeelcompensatie bepaald op basis van een vergelijking van de feitelijke situatie voor en na het bieden van mogelijkheden tot uitoefening van de activiteit die de schade veroorzaakt. De eerste 4% van de waardedaling geldt als normaal maatschappelijk risico en wordt daarom niet vergoed. Op grond van artikel 15.1, lid 1 van de Omgevingswet in samenhang gelezen met artikel 4:126 van de Algemene wet bestuursrecht komt alleen schade die redelijkerwijs toe te rekenen is aan de schadeoorzaak voor vergoeding in aanmerking.
Schade 2: Schadevergoeding bij de uitvoering van werkzaamheden
Voor schade als gevolg van de uitvoering van werkzaamheden die toegestaan worden door deze omgevingsplanwijziging geldt ook dat er een verzoek om tegemoetkoming in de geleden schade kan worden gedaan. Dit verzoek verloopt op dezelfde manier en op basis van dezelfde regels als het verzoek om tegemoetkoming in gelden planschade in de vorm van de waardedaling van onroerend goed. Voor schadevergoeding bij de uitvoering van werkzaamheden geldt ook dat de hoogte van de compensatie bepaald wordt op basis van een vergelijking van de feitelijke situatie voor het na het bieden van de mogelijkheden tot uitoefening van de schadeveroorzakende activiteit. Eveneens is er sprake van een normaal maatschappelijk risico van 4% van de waardedaling die niet voor vergoeding in aanmerking komt. Schade moet ook in het geval van de uitvoering van werkzaamheden toe te rekenen zijn aan de schadeoorzaak.
In het kader van de herontwikkeling van het Oosterspoorplein en de omliggende straten hebben openheid en transparantie altijd centraal gestaan in de communicatie met betrokkenen. Deze kernwaarden zijn vanaf het begin van het proces leidend geweest, waarbij de voortgang (inclusief de positieve en minder positieve stappen) steeds helder is gecommuniceerd.
Ook de participatie heeft deze waarden weerspiegeld. Tijdens het opstellen van de structuurvisie en het stedenbouwkundig plan zijn belanghebbenden actief betrokken door hen te raadplegen op momenten waarop hun input waardevol was voor het planproces. Deze aanpak heeft geleid tot een verzameling waardevolle inzichten, die als bouwstenen hebben gediend voor de herinrichting van het gebied.
Het informeren van de betrokken partijen gebeurt via de gebruikelijke communicatiemiddelen, zoals de nieuwsbrief 1221, de website 1221 en het informatiepunt 1221. Daarnaast is op 3 december 2024 een informatieavond in wijkcentrum De Geus georganiseerd voor inwoners. In de bijlagen is een weergave gegeven van de participatie rond de planvorming van Bruisend Hart.
Het concept ontwerp van deze omgevingsplanwijziging is voor consultatie van ketenpartners en betrokken overheden op 20 september 2024 voorgelegd aan de volgende instanties:
- Provincie Noord-Holland
- Brandweer Gooi en Vecht
- Omgevingsdienst Gooi en Vecht (OFGV)
- PWN
- Waternet
- Liander
- Gasunie
- Rijksdienst voor Cultureel Erfgoed
- Rijkswaterstaat
- Gooisch Natuurreservaat (GNR)
- Regio Gooi en Vechtstreek
- Tennet
- Ministerie van Economische Zaken
- NS
- Prorail
Ook is het concept ontwerp op 25 september toegelicht aan Prorail en NS stations. Regio Gooi en Vechtstreek en Prorail en NS Stations hebben inhoudelijk gereageerd, Liander, OFGV en Rijkswaterstaat hebben aangegeven geen opmerkingen te hebben. De overige instanties hebben niet gereageerd. In bijlage 13 treft u een verslag van het vooroverleg aan in de beantwoording is beschreven of een reactie aanleiding geeft tot wijziging van het ontwerp.
Het ontwerp van deze omgevingsplanwijziging is op grond van afdeling 3.4 van de Algemene wet bestuursrecht voor een periode van zes weken ter inzage gelegd. Op grond van artikel 16.23, lid 1 van de Omgevingswet kon gedurende deze periode eenieder een zienswijze tegen het ontwerp van de omgevingsplanwijziging en onderliggende stukken indienen. Gedurende de ter inzagelegging zijn 6 zienswijzen ingediend. Deze zienswijzen hebben gedeeltelijk aanleiding gegeven voor wijzigingen in de voorgenomen wijziging van het omgevingsplan. Een geanonimiseerde samenvatting van de zienswijzen en de beantwoording is opgenomen in de bijlagen bij dit besluit.
Naast zienswijzen zijn er naar aanleiding van voortschrijdend inzicht ook ambtelijke wijzigingen aangebracht in de voorgestelde wijziging van het omgevingsplan. Een opsomming hiervan is weergegeven in de bijlagen.
Alle aanpassingen in het vastgestelde besluit voor wijziging van het omgevingsplan ten opzichte van het ontwerpbesluit, zijn daarnaast ook inzichtelijk gemaakt via een zogenaamde 'renvooi-weergave' op overheid.nl en bij 'regels op de kaart'.
Na vaststelling van de omgevingsplanwijziging kunnen belanghebbenden tijdens de periode dat het vaststellingsbesluit met bijbehorende stukken ter inzage is gelegd beroep tegen het vaststellingsbesluit instellen bij de Afdeling bestuursrechtspraak van de Raad van State. Tijdens die periode kan de Afdeling bestuursrechtspraak van de Raad van State ook gevraagd worden een voorlopige voorziening te treffen. Daarna zal een uitspraak op het beroep of verzoek om voorlopige voorziening volgen.
Deze omgevingsplanwijziging treedt in beginsel vier weken na de dag van de bekendmaking van het vaststellingsbesluit in werking.
De voorgenomen ontwikkeling betreft het realiseren van het Bruisend Hart in Hilversum. Het programma bevat woningen, kantoren/bedrijvigheid, station (incl. commerciële voorzieningen), maatschappelijke functie(s), detailhandel, parkeervoorzieningen en horeca. De beoogde ontwikkeling is in strijd met het tijdelijk omgevingsplan op gebruik en bouwen. Om de ontwikkeling mogelijk te maken is er een wijzigingsbesluit omgevingsplan (WOP) gerealiseerd. Om de wijziging te kunnen indienen diende er aangetoond te worden dat de voorgenomen ontwikkeling zorgt voor een evenwichtige toedeling van functies aan locaties.
Op basis van voorliggende motivering kan worden geconcludeerd dat de voorgenomen ontwikkeling zorgt voor een evenwichtige toedeling van functies aan locaties. Het voornemen heeft geen negatieve effecten op milieu-en/of omgevingsaspecten.
Kopieer de link naar uw clipboard
https://zoek.officielebekendmakingen.nl/gmb-2025-224516.html
De hier aangeboden pdf-bestanden van het Staatsblad, Staatscourant, Tractatenblad, provinciaal blad, gemeenteblad, waterschapsblad en blad gemeenschappelijke regeling vormen de formele bekendmakingen in de zin van de Bekendmakingswet en de Rijkswet goedkeuring en bekendmaking verdragen voor zover ze na 1 juli 2009 zijn uitgegeven. Voor pdf-publicaties van vóór deze datum geldt dat alleen de in papieren vorm uitgegeven bladen formele status hebben; de hier aangeboden elektronische versies daarvan worden bij wijze van service aangeboden.