Gemeenteblad van Stadskanaal
| Datum publicatie | Organisatie | Jaargang en nummer | Rubriek | Datum ondertekening |
|---|---|---|---|---|
| Stadskanaal | Gemeenteblad 2025, 212217 | ruimtelijk plan of omgevingsdocument |
Zoals vergunningen, bouwplannen en lokale regelgeving.
Adressen en contactpersonen van overheidsorganisaties.
U bent hier:
| Datum publicatie | Organisatie | Jaargang en nummer | Rubriek | Datum ondertekening |
|---|---|---|---|---|
| Stadskanaal | Gemeenteblad 2025, 212217 | ruimtelijk plan of omgevingsdocument |
Het college van burgemeester en wethouders van Gemeente Stadskanaal
gelezen de tekstinhoud van ”ontwerp-Omgevingsvisie gemeente Stadskanaal” d.d. 6 mei 2025
Besluit;
De "ontwerp-Omgevingsvisie gemeente Stadskanaal" vast te stellen zoals is aangegeven in in Bijlage A.
De ontwerp-omgevingsvisie gemeente Stadskanaal vanaf 15 mei 2025 zes weken ter inzage te leggening
Aldus uitgevoerd door Gemeente Stadskanaal, 14 mei 2025
Voorwoord
< voorwoord door verantwoordelijk wethouder>
Samenvatting: Stadskanaal, een thuis voor iedereen
Vertrekpunt voor onze omgevingsvisie zijn onze kernwaarden en -kwaliteiten. Daarnaast vormen de kaders uit het Structuurplan van 1998 een basis voor onze nieuwe omgevingsvisie. Kenmerkend zijn de openheid, rust en ruimte tussen de kernen en het agrarische karakter van het landelijk gebied. Ook het relatief goede voorzieningenniveau van Stadskanaal en de kleinere kernen, de karakteristieke Kanaalzone en de goede leefbaarheid en sociale cohesie in de dorpen is kenmerkend voor onze gemeente. Tot slot is de maakindustrie belangrijk voor ons: het ambacht om (innovatieve) producten te maken met onze handen. In 2040 en daarna willen wij een gemeente zijn waarin iedereen zich thuis kan voelen en oud kan worden. Ook nu al kenmerkt Stadskanaal zich door haar prettige woon- en leefomgeving met veel ruimte, groen en ontmoetingsplekken. We zien dat diverse grote opgaven en ontwikkelingen om ruimte vragen en dat duurzaamheid en klimaatverandering belangrijke thema’s zijn en blijven. In deze omgevingsvisie maken we daarom ruimtelijke keuzes die de kaders stellen voor hoe wij onze leefomgeving inrichten, want niet alles kan overal. We hebben een aantal duidelijke uitgangspunten over wat voor gemeente wij in 2040 willen zijn:
1) Voldoende en kwalitatief goed woningaanbod voor iedere doelgroep in een groene en gezonde leefomgeving: Vanuit onder meer Nij Begun[1]en Regio Deal Oost-Groningen willen het Rijk, provincie en de gemeente investeren om de regio toekomstbestendig te maken. Wij willen voor alle doelgroepen een aantrekkelijke woongemeente zijn, ook voor hen die meer aandacht nodig hebben. Hierbij zijn ruimtelijke kwaliteit, duurzaamheid en toegankelijke openbare voorzieningen belangrijk. Met een groene woon- en leefomgeving willen we onze inwoners stimuleren en uitnodigen om meer te bewegen en buurtgenoten te ontmoeten.
2) Optimaal ruimtegebruik en minimaliseren aantasting van het (open) landschap: Ons (open) landschap in de gemeente is kenmerkend en tekent onze geschiedenis: dit koesteren en versterken we. We zijn zuinig op onze landbouwsector en bieden ruimte voor innovatieve ontwikkelingen, passend bij de bodem, het watersysteem en het landschap. Bij alle ruimtelijke ingrepen zorgen we voor een zo minimaal mogelijke impact op het landschap. Energieopwekking vindt daarom alleen plaats in daarvoor al aangewezen gebieden en kleinschalig lokaal. Onze ruimte is schaars, dus we kijken ook naar herstructurering en herbestemming van gebieden en locaties die hun functie of aantrekkelijkheid hebben verloren.
3) Waardering voor landschap, natuur en cultuurhistorie: Onze inwoners en bezoekers moeten kunnen genieten van onze natuur en cultuurhistorisch erfgoed en monumenten. Hier zijn we trots op en dat willen we beschermen en benutten. We kijken goed naar de samenhang tussen wat onze natuur en het gehele watersysteem aankan en welke behoeften we hebben met recreatie en de vrijetijdseconomie. De kenmerkende landschappelijke structuur door veenontginning en het meer gesloten en bosrijke deel van onze gemeente op de zandgronden blijven goed zichtbaar.
4) Bereikbare kernen en stimuleren duurzame vormen van mobiliteit: Wij rekenen op de komst van de spoorlijn vanuit Groningen via Veendam naar Stadskanaal en in een later stadium de realisatie van de Nedersaksenlijn. Hierdoor gaat het toekomstige station Stadskanaal als regionale mobiliteitshub dienen op het Dideldomterrein. Daarnaast willen we dat al onze kernen goed bereikbaar blijven met het openbaar vervoer of andere vormen van duurzame (deel)mobiliteit. We investeren primair in goed onderhouden fiets- en wandelverbindingen en hebben oog voor kwetsbare verkeersdeelnemers. De auto blijft nodig voor de verbinding tussen kernen, maar de focus ligt op duurzamere alternatieven.
5)Samenwerkende kernen en regio, Stadskanaal als centrum voor maakindustrie: Wij blijven een gemeente waarin ruimte is voor duurzame innovaties, maakindustrie, detailhandel en MKB. Ook kijken wij over onze grenzen heen voor verdere samenwerking op toeristisch gebied, maar ook voor de bouw van woningen, bedrijvigheid en onderwijs. Wij sluiten ons aan bij de ontwikkelingen vanuit het Masterplan Oost-Groningen, Masterplan Regiocentra, het ruimtelijke-economische perspectief op de N366-regio[2] en de Toekomstagenda Groningen: Masterplan Campussen voor het kennis- en innovatie ecosysteem van de regio Groningen en ons regionale onderwijsaanbod voor jongeren.
6)Focus op leefbaarheid en toekomstbestendige (basis)voorzieningen: Wij zetten in op een aantrekkelijke en leefbare gemeente voor al onze inwoners, van jong tot oud. We sluiten hierbij aan op de ontwikkelingen vanuit het Masterplan Oost-Groningen. We vinden het belangrijk dat iedereen een actief en zelfstandig leven kan leiden, waarin we onze welvaart en ons welzijn verbeteren. De komst van de Nedersaksenlijn is hierin van groot belang. Wij streven naar toekomstbestendige en toegankelijke (basis)voorzieningen voor iedereen: bereikbare, toereikende en goede gezondheidszorg, onderwijs, supermarkten, sociale ontmoetingsplekken, cultuur-, sport- en welzijnsaanbod.
[1] Nij Begun is de kabinetsreactie naar aanleiding van de Parlementaire Enquête Aardgaswinning Groningen. Het bestaat uit een pakket van 50 maatregelen die perspectief bieden voor het vergroten van de leefbaarheid in de kernen van het aardbevingsgebied.
[2] In uitzondering op de ruimtelijk-economische visie N366 kiezen we op Tweede Boerendiep niet voor bedrijvigheid maar voor woningbouw.


In de omgevingsvisie leggen we als gemeente Stadskanaal onze ambities en beleidsdoelen vast voor de fysieke leefomgeving. Het is een visie voor de lange termijn: richting 2040 en verder. Ruimtelijke keuzes die we nu maken, hebben voor langere tijd invloed op de ruimtelijke inrichting van onze gemeente. Het is daarom belangrijk om te bepalen wat voor gemeente we willen zijn en alle keuzes daaraan te laten bijdragen. We hebben één omgevingsvisie voor de hele gemeente die de samenhang tussen openbare ruimte, wonen, bedrijvigheid, natuur, bereikbaarheid en gezondheid beschrijft. Een verdere uitwerking van de verschillende thema’s volgt de komende jaren in specifieke programma’s. De omgevingsvisie en de programma’s worden gereguleerd en gedetailleerd in het omgevingsplan. De omgevingsvisie bepaalt daarmee de richting van al het toekomstige beleid voor het ruimtelijk domein. Het maakt voor onze inwoners, ondernemers, maatschappelijke organisaties en andere belanghebbenden duidelijk wat we als gemeente Stadskanaal belangrijk vinden en waar we onze keuzes op baseren. Iedere gemeente in Nederland is vanuit de Omgevingswet verplicht om een omgevingsvisie vast te stellen. De omgevingsvisie is vormvrij, wat betekent dat de gemeenteraad het detailniveau bepaalt, de gebieden en de thema’s. Wel moet een omgevingsvisie in elk geval de volgende aspecten beschrijven:
De grootste kwaliteiten van de leefomgeving;
De plannen voor (ruimtelijke) ontwikkeling;
De hoofdlijnen van het bestaande beleid.
De omgevingsvisie Stadskanaal volgt op het structuurplan ‘De gemeente van straks: Stadskanaal in 2010’ uit 1998. Dit plan schetste de gewenste ruimtelijke ontwikkelingen richting 2010. Plannen vanuit het structuurplan die zijn gerealiseerd zijn onder meer:
Versterking van het centrum van Stadskanaal in de vorm van aanleg verkeersroute, Revitalisering Hoofdstraat 2012 en Centrumvernieuwing Stadskanaal 2008-2012;
Integrale gebiedsontwikkeling Musselkanaal;
Verdere ontwikkeling van toeristische voorzieningen in de vorm van Spoordok te Musselkanaal en steigervoorzieningen in Stadskanaal.
Participatie
De omgevingsvisie is in overeenstemming met de Omgevingswet, tot stand gekomen op basis van participatie. Als gemeente zijn we trots op de betrokkenheid van onze inwoners, ondernemers, maatschappelijke organisaties en andere belanghebbenden. Gedurende het participatietraject voor de totstandkoming van de omgevingsvisie hebben ongeveer 1.000 inwoners van de gemeente Stadskanaal hun input en visie geleverd via een enquête. Daarnaast zijn er diverse werkateliers geweest met verschillende belanghebbenden en gastlessen voor leerlingen van basisscholen (zie afbeelding 31 met de posters met resultaten van de gastlessen). Na de publicatie van het ontwerp omgevingsvisie, zullen diverse inloopavonden plaatsvinden met ruimte om zienswijzen in te dienen. Deze worden waar mogelijk verwerkt, waarna dit document definitief wordt gemaakt. Een verdere beschrijving van dit proces is te vinden in het participatieverslag (Bijlage 1).
Deze omgevingsvisie bestaat uit negen hoofdstukken met een duidelijke opbouw.
Hoofdstuk twee beschrijft het ontstaan van de gemeente Stadskanaal, hoe de gemeente nu is en wat de kernkwaliteiten zijn van het gebied;
In hoofdstuk drie wordt de relatie gelegd tussen maatschappelijke en ruimtelijke opgaven op landelijk niveau en de regionale en lokale opgaven in Stadskanaal. Deze opgaven bepalen wat ons de komende jaren te doen staat. In dit hoofdstuk staat ook onze stip op de horizon: onze ambities voor 2040 en daarna;
In de hoofdstukken vier tot en met acht wordt op verschillende thema;s ingezoomd. In hoofdstuk vier op wonen en bedrijvigheid;
Hoofdstuk vijf gaat over bereikbaarheid en mobiliteit;
Landbouw en landschap komt aan bod in hoofdstuk zes;
De visie op natuur, groen en recreatie staat in hoofdstuk zeven;
Hoofdstuk acht is het laatste themahoofdstuk en gaat over veiligheid en gezondheid;
Tot slot staat in hoofdstuk negen de totstandkoming van de visie beschreven, met daarin een overzicht van alle activiteiten en vooruitblik op het vervolg.
Dit hoofdstuk geeft in 2.2 de ontstaansgeschiedenis van onze gemeente weer. Paragraaf 2.3 beschrijft Stadskanaal van vandaag de dag. De kernkwaliteiten die het gebied uniek maken beschrijven we in 2.4.
De oorsprong van Knoal zoals we het vandaag de dag kennen gaat ver terug. In het westelijke deel van de gemeente kennen we de lintdorpen op de veengrond, meer oostelijk de esdorpen op de zand- en kleigrond. Onstwedde is het oudste dorp van onze gemeente: de naam van het esdorp komt voor het eerst voor in stukken uit het begin van de 9e eeuw. Het is het oudste kerspel (of: kerkdorp) van Westerwolde, een streek die eeuwenlang een soort eiland vormde tussen veengebieden door de ligging op een zandrug. De ontwikkeling van Onstwedde vormt ook de basis voor het ontstaan van bijvoorbeeld de buurtschappen Ter Wupping, Veenhuizen, Wessinghuizen en, waarschijnlijk de bekendste, Smeerling. Deze kernen vormen een contrast met andere delen in onze gemeente, die wél op veengrond lagen.
In de 16e eeuw werd begonnen met de ontginning van veen en het winnen van turf in het Boertangermoeras. Door de afgravingen ontstond een kenmerkend landschap dat tegenwoordig bekend staat als de Veenkoloniën. Doordat het veengebied zich bevond op zowel Gronings als Drents grondgebied, ontstonden grensconflicten tussen beide provincies. Uiteindelijk is gekozen voor een kaarsrechte grens tussen de twee provincies die tot op de dag van vandaag nog zichtbaar is: de Semslinie. Vanwege de toenemende handel in turf en agrarische producten, had de stad Groningen baat bij de aanleg van een kanaal om zo haar handelspositie te versterken en belasting te kunnen heffen over alle handelswaren. In de 18e eeuw begon de aanleg van het kanaal nagenoeg parallel aan de eerder getrokken Semslinie. Het kanaal werd voltooid in de 19e eeuw. Daarmee was het ontstaan van het Stadskanaal en het daaropvolgende Musselkanaal een feit. Begin 20e eeuw is vervolgens ook het Mussel-Aa-kanaal gegraven, omdat de wateraan- en afvoer door het afgraven van het Boertangermoeras wisselvallig werd en leidde tot wateroverlast. Ook heeft het nog gediend als transportverbinding van en naar Onstwedde, waar een haven lag voor landbouwproducten. Door de jaren heen groeide de handel en het aantal inwoners langs het Stadskanaal, wat heeft geleid tot de ontwikkeling van de kenmerkende lintdorpen Stadskanaal en Musselkanaal. De veenontginning is nog goed terug te zien in de landschappelijke structuur met daarin veel sloten, kanalen en lintdorpen.

Door Willem Foorthuis, lector Hanzehogeschool Groningen
In de jaren ’50 kwam er nieuwe werkgelegenheid naar Stadskanaal. Vanuit het Rijk waren subsidies beschikbaar voor werkgelegenheid in zogeheten randgebieden. Het waren de naoorlogse opbouwjaren en Philips wilde uitbreiden met nieuwe fabrieken en was op zoek naar personeel voor het productieproces. Hiervoor kwam Stadskanaal in beeld. Na een tijdelijke vestiging in de voormalige gemeentewerf, bouwde Philips de uiteindelijke productielocatie aan de Brugstraat (zie afbeelding 3). Zo ontstond het Philipsterrein, dat we vandaag de dag kennen als Dideldom en het Mercurius Businesspark (MBP). De komst van de fabriek bleek de aanjager van de latere ontwikkelingen in Stadskanaal, zoals onder meer het Refaja Ziekenhuis Stadskanaal, Theater Geert Teis en woningbouw.


Het inwoneraantal in onze gemeente is de afgelopen 25 jaar licht gedaald (zie bovenstaande afbeelding 4). Toch is de ruimte die bestemd is voor wonen toegenomen, mede doordat huishoudens steeds kleiner worden en mensen groter wonen. Ook de bedrijvigheid in onze gemeente is de laatste decennia in ruimtegebruik toegenomen door schaalvergroting. Beide ontwikkelingen zorgen ervoor dat de bebouwde omgeving sinds 1950 behoorlijk is gegroeid, zoals op de volgende afbeelding is te zien.

De gemeente Stadskanaal in de huidige vorm is in 1969 ontstaan uit een fusie tussen de gemeente Stadskanaal, de toenmalige gemeente Onstwedde en een deel van de toenmalige gemeente Wildervank. Onze gemeente kent twee grotere kernen: Stadskanaal en Musselkanaal. Tussen beide kernen in bevindt zich een groot bedrijventerrein. Naast de grote kernen, heeft onze gemeente nog een drietal kleinere dorpskernen: Alteveer, Mussel en Onstwedde. Daaromheen ligt het landelijke gebied met meerdere gehuchten, buurtschappen en losse bebouwing. Stadskanaal heeft als grootste plaats van de gemeente veel voorzieningen en een centrumfunctie voor de regio. De dorpskernen en het landelijk gebied worden doorkruist door diverse (water)wegen. De belangrijkste wegen zijn de N365, N366, N374, N378, N974 en de N975 en de bekendste waterverbindingen zijn het Stads- en A.G. Wildervanckkanaal, het Pagediep, de Mussel Aa en de Ruiten Aa. Ook is een deel van het tracé van de voormalige spoorlijn Stadskanaal-Zuidbroek nog in gebruik als Museumspoorlijn STAR, wat mogelijk onderdeel wordt van de Nedersaksenlijn.
Onze gemeente wordt ervaren als een prettige woongemeente met veel openheid, groen en een hoog voorzieningenniveau. Dit blijkt onder meer uit de enquête. Daaruit komt naar voren dat inwoners trots zijn op de identiteit en historie van de regio. De openheid van het groene landschap en het dorpse karakter zijn belangrijk om te behouden. Daarentegen wordt het aanbod aan sport- en beweegvoorzieningen als verbeterpunt genoemd, net als de verkeersveiligheid en wandel- en fietspaden. Zorgen zijn er over de betaalbaarheid van wonen, zowel over de huizenprijzen als de woonlasten.

De kernkwaliteiten van de gemeente Stadskanaal vormen de unieke eigenschappen van de gemeente vandaag de dag. Het zijn kwaliteiten waar inwoners trots op zijn, die gekoesterd en benut moeten worden. Het is een verantwoordelijkheid van de gehele gemeente, met het bestuur voorop, deze kwaliteiten te behouden en waar mogelijk te versterken. Sommige opgaven en ontwikkelingen op lokaal, regionaal en landelijk niveau kunnen op gespannen voet staan met de kernkwaliteiten. De kernkwaliteiten van Stadskanaal staan in afbeelding 6 weergegeven en het behoud of versterken van deze kwaliteiten is het uitgangspunt voor de keuzes in deze omgevingsvisie.

De kernen Stadskanaal, Musselkanaal, Onstwedde, Alteveer en Mussel kennen elk voor hun eigen omvang een hoog voorzieningenniveau. Naast de rust en openheid die de gemeente kenmerken, zijn veel inwoners erg tevreden over het aanbod aan voorzieningen, zoals het zorgaanbod en het kunnen doen van de meeste boodschappen in de buurt. Het voorzieningenniveau is belangrijk voor de leefbaarheid en de aantrekkelijkheid van Stadskanaal als woongemeente.
Elke inwoner in onze gemeente kent de slogan “nait soezen, moar doun”. Inwoners van het gebied kenmerken zich door hard werken, noaberschap en zorgen voor elkaar. Sociale cohesie wordt belangrijk gevonden met onder meer het verenigingsleven, de kerk en de school als ontmoetingsplek.
Landschappelijk zijn de volgende vijf eigenschappen kenmerkend voor onze gemeente:
1) Besloten (zand)landschap: Het noordoostelijke deel van de gemeente ligt grotendeels op zandgrond. Dit landschap is gesloten en bosrijk, gekenmerkt door essen en esdorpen. Hier is het grondgebruik een combinatie van landbouw en natuur. In dit gebied zijn recreatieve routes en kleine dorpen en streken waarvan Smeerling een beschermd dorpsgezicht heeft.
2) Productieve (veen)landschap: De veenkoloniën zijn een uniek landschap; open met rechte lijnen en primair gebruikt voor de landbouw. Je kunt nog kilometers ver kijken, wat steeds uitzonderlijker is in Nederland. Kenmerkend is het patroon van kanalen, wijken en sloten waar ook de wegen grotendeels langs zijn gelegd.
3) Industrieel verleden langs het kanaal: De aanleg van het Stadskanaal en de maakindustrie die langs het kanaal ontstond, kenmerken het rijke industriële verleden van Stadskanaal. Veel ondernemers zijn al eeuwenlang gevestigd in de Kanaalzone, waar veel ruimte was voor pionieren, MKB en inmiddels ook grotere bedrijven. De maakindustrie blijft belangrijk en richt zich steeds meer op (duurzame) innovaties. De cultuur-historische objecten vertellen het verhaal van het rijke verleden aan toekomstige generaties.
4) Historische lintbebouwing: De lijnstructuur in het landschap is ook terug te zien in de lintbebouwing in de Kanaalzone. Het kenmerkt de dorpen Stadskanaal en Musselkanaal en overgang tussen beide plaatsen. Veel straten liggen parallel langs het Stadskanaal en bestaat in de basis uit een langgerechte rij van woningen, één of twee percelen breed en soms kilometerslang. In de loop der jaren zijn deze kernen verder uitgebreid buiten het oorspronkelijke lint.
5) Beeklandschap: De gemeente heeft een unieke ligging tussen enerzijds de Hondsrug en het Hunzedal en anderzijds Westerwolde. Naast het beekdal van de Hunze, liggen in de gemeente beeklandschappen rondom het Pagediep, de Mussel Aa en de Ruiten Aa. Deze (gekanaliseerde) beken zorgden oorspronkelijk voor de afvoer van overtollig water richting de Westerwoldse Aa en de Dollard en dragen bij aan de ecologie, natuur en biodiversiteit. Ook zijn de wateren populair om op of langs te recreëren. Verder kent de gemeente diverse natuurgebieden met ecologische waarden, zoals het Eiken- en Vledderbos in Stadskanaal, het Horstenerbos in Musselkanaal en het bos ten oosten van Onstwedde bij Ter Wupping.
Dit hoofdstuk geeft in 3.2 de belangrijkste landelijke ontwikkelingen weer die van invloed zijn op Stadskanaal. In paragraaf 3.3 staan de uitdagingen en opgaven waar we als gemeente voor staan. 3.4 beschrijft onze visie en ambities voor 2040 en verder.
In Nederland staan we voor meerdere grote opgaven die effect gaan hebben op het ruimtegebruik en de inrichting van ons land. Deze opgaven vragen om duidelijke keuzes, omdat niet alles overal kan en de gevolgen van ruimtelijke keuzes nog decennia merkbaar en/of zichtbaar zijn. Op het moment van opstellen van deze omgevingsvisie wordt op zowel landelijk als provinciaal niveau gewerkt aan deze opgaven via verschillende programma’s en plannen. Als gemeente zijn we nauw betrokken bij deze processen en geven we richting aan deze opgaven voor onze gemeente in de voorliggende omgevingsvisie. Het Rijk heeft op landelijk niveau haar prioriteiten beschreven in de Nationale Omgevingsvisie en gebiedsgerichte programma’s.

Voor onze gemeente onderscheiden wij een aantal ontwikkelingen die een grote impact gaan hebben op het ruimtegebruik en de inrichting van de fysieke leefomgeving in onze gemeente. Het gaat om de volgende ontwikkelingen:
Ten eerste de toekomstbestendige ontwikkeling van het landelijk gebied. in het landelijk gebied zijn blijvende oplossingen nodig voor (wettelijke) opgaven als natuur (waaronder stikstof), waterkwaliteit en klimaat. In de zogenoemde gebiedsgerichte aanpak was het een kabinetsplan om stikstofmaatregelen slim te combineren met andere maatregelen om de natuur, de bodem en de waterkwaliteit te verbeteren en de klimaatopgave te halen. De provincies hebben dit verder uitgewerkt met de agrarische sector, natuurorganisaties en andere gebiedspartners. in het Provinciaal Programma Landelijk Gebied Groningen (PPLG) is de provincie op basis van landschappelijke kenmerken opgedeeld in zeven gebieden, waarbij onze gemeente in twee gebieden valt: Veenkoloniën en Westerwolde. Op het moment van schrijven is het NPLG stopgezet en is nog onduidelijk hoe vanuit de rijksoverheid verder invulling wordt gegeven aan de genoemde opgaven in het landelijk gebied.
Toekomstbestendige regio’s hangen sterk samen met de leefbaarheid. De afgelopen decennia is een tendens zichtbaar naar steeds meer schaalvergroting en verstedelijking. Dit heeft impact op de leefbaarheid. Voorzieningen met name in landelijke regio’s staan onder druk en zijn al deels verdwenen. Er zijn tal van initiatieven en ontwikkelingen vanuit de samenleving om dit het hoofd te bieden en de leefbaarheid te vergroten. Daarnaast zijn er landelijke en regionale programma’s gericht op het versterken van de regio.
Door een groeiende bevolking en steeds kleinere huishoudens is er in Nederland is een tekort aanwoningen. De komende jaren is de landelijke opgave 100.000 woningen per jaar te bouwen waarbij onder andere rekening moet worden gehouden met water en bodem sturend en stikstofrestricties.
Water en bodem sturend wil zeggen dat het water- en bodemsysteem een doorslaggevende rol speelt bij de inrichting van Nederland. Dit komt voort uit een kamerbrief[3] over het belang van duurzaam water- en bodembeheer voor diverse aspecten van het milieu. Het document wijst op de noodzaak van een evenwichtige waterhuishouding. Er moet meer aandacht komen voor de complexe samenhang tussen neerslag, bodemgesteldheid, ruimtegebruik en waterkwaliteit en de impact hiervan op ecosystemen en de landbouw. Het is cruciaal dat we ons niet richten op losse onderdelen van de systemen, maar onze water- en bodemsystemen in samenhang bekijken. Daarom is inzicht in het water- en bodemsysteem nodig met een helder afwegingskader voor ruimtelijke keuzes.
[3] Kamerbrief van minister Harbers van 25 november 2022
De kernkwaliteiten zoals benoemd in hoofdstuk 2 willen we behouden en waar mogelijk versterken. We staan als gemeente ook voor een aantal uitdagingen. Landelijke opgaven die ook hier spelen (3.2), maar ook op lokale schaal staan we als gemeente samen met onze inwoners, ondernemers en maatschappelijke organisaties voor een aantal uitdagingen de komende jaren. In de provincie Groningen en daarmee ook de gemeente Stadskanaal staan wonen, leefbaarheid, welvaart, landschap en biodiversiteit onder druk. Op het gebied van gezondheid, en op sociaal en economisch vlak spelen hier verschillende problemen. Investeringen zijn nodig en er is behoefte aan een duidelijk perspectief. Inwoners moeten trots kunnen zijn en blijven op hun gemeente.
Door de vergrijzing, ontgroening, hoge zorgvraag, arbeidsmarktproblematiek, schaalvergroting en de gevolgen van de gaswinning staat de leefbaarheid in veel kernen in de provincie Groningen en Noord-Drenthe onder druk. Dit zie je doordat het voorzieningenniveau dreigt af te nemen, verminderd (economisch) perspectief en achterstanden ten aanzien van gezondheid. Dit speelt ook in onze gemeente. Vanuit het Rijk, de provincie Groningen en diverse gemeenten wordt geld vrijgemaakt om de leefbaarheid te vergroten. Ondanks dat de leefbaarheid onder druk staat, wordt het voorzieningenniveau in onze gemeente als goed ervaren en vervult Stadskanaal een regionale centrumfunctie. Veel voorzieningen, zoals dorpshuizen en sportaccommodaties, worden door de gemeente betaald of gesubsidieerd. Deze voorzieningen moeten voldoende worden gebruikt om de toenemende kosten voor bijvoorbeeld energie en onderhoud te rechtvaardigen.
Op andere voorzieningen, zoals het winkelaanbod en de gezondheidszorg, hebben we als gemeente niet direct sturing, maar ze zijn wel belangrijk voor de leefbaarheid en aantrekkelijkheid van onze gemeente. Daarbij speelt ook het veranderende consumptiepatroon en nieuwe dienstverlening een rol. Steeds meer aankopen worden bijvoorbeeld online gedaan en niet meer in de winkel. Voor de gezondheidszorg geldt dat steeds meer behandeling op afstand plaatsvindt. Door schaalvergroting van onder meer detailhandel en (ziekenhuis)zorg worden deze voorzieningen vaak geconcentreerd en verdwijnen ze op bepaalde plekken. De zorgvraag neemt toe door de vergrijzing, terwijl het zorgaanbod naar verhouding afneemt. Mede doordat ouderen langer thuis blijven wonen, worden eerstelijnszorgvoorzieningen, zoals de huisarts, steeds belangrijker. De bereikbaarheid van onze basisvoorzieningen is een belangrijk aandachtspunt.
Basisonderwijs is van groot belang voor de leefbaarheid en de saamhorigheid in een dorp en ook een belangrijke voorwaarde voor gezinnen om zich te vestigen. De demografische ontwikkeling is bepalend voor het leerlingenaantal en het in stand kunnen houden van een basisschool.
De uitdaging in onze gemeente is om een toekomstbestendig voorzieningsniveau te garanderen als basis voor de leefbaarheid in de kernen en de regio.
Zowel landelijk als ook in onze provincie en gemeente is de vraag hoe de toekomst van de landbouw eruit komt te zien. Ook in onze gemeente zitten veel agrariërs in onzekerheid over de toekomst van hun bedrijf. We werken samen met verschillende overheden, natuurorganisaties en maatschappelijke partners om onze landbouw en natuur toekomstbestendig en natuurinclusief te maken. Zo kijken we naar oplossingen voor de urgente opgaven rond stikstof, zoetwater- en drinkwaterbeschikbaarheid, waterkwaliteit, bodemkwaliteit en klimaat. Als gemeente zijn we nauw betrokken bij de plannen voor het landelijke gebied. De toekomst van de landbouw is primair een taak van de sector zelf, de Europese Unie, het Rijk en de provincie. Als gemeente hebben we wel een taak om de gewenste transitie mogelijk te maken.
De natuur in Nederland staat onder druk en planten- en diersoorten verdwijnen door versnippering van leefgebieden, vervuiling en klimaatverandering. Met de druk op de natuur enerzijds en ruimtevraag voor wonen en bedrijvigheid anderzijds, is het zoeken naar de juiste balans. De behoefte van onze inwoners en bezoekers om te recreëren in de natuur neemt toe. Dit vraagt om verdere ontwikkeling van onze vrijetijdseconomie. Wandelen, fietsen of sporten in de natuur zorgt voor ontspanning en draagt bij aan fysieke en mentale gezondheid, dit kan wel opgespannen voet staan met de natuurwaarden.
In onze gemeente spelen er uitdagingen ten aanzien van de bouwkundige en visuele kwaliteit, de kwantiteit en de betaalbaarheid van de bestaande woningen. In lijn met de landelijke trend zijn de huizenprijzen in Stadskanaal fors gestegen de afgelopen decennia. Hierdoor is een eigen woning voor steeds minder starters op de woningmarkt haalbaar.
De woningvoorraad in onze gemeente is relatief oud en de onderhoudsstaat in sommige gevallen problematisch. Oudere woningen zijn vaak slechter geïsoleerd dan nieuwere woningen, waardoor onze inwoners extra last hebben van de stijgende energiekosten. Ten opzichte van het landelijk gemiddeld hebben we in de gemeente Stadskanaal lagere inkomens, waardoor er minder budget is om te investeren in het verduurzamen van de eigen woning. Dit leidt tot een neerwaartse spiraal van hogere energiekosten en steeds minder investeringsruimte voor besparingsmaatregelen.
Tot voor kort was het idee dat in Stadskanaal geen substantiële uitbreiding van de woningvoorraad nodig was. Onder andere de komst van de spoorlijn vanuit Groningen en in een later stadium de realisatie van de volledige Nedersaksenlijn maakt Stadskanaal beter bereikbaar met het openbaar vervoer en daarmee aantrekkelijker als woongemeente. Dat betekent voor de toekomst dat wij een opgave hebben om planmatig nieuwe woningen te realiseren, naast de ambitie om ongeveer 800 woningen te realiseren tot 2030.

Onze doelstelling is om energieneutraal te zijn in 2050. De vraag is daarbij hoe we dit gaan realiseren en wat haalbaar is qua duurzame opwek met zon en wind. De doelen uit het klimaatakkoord vertalen we naar onze gemeente met de bijbehorende doelstellingen:
55% reductie van broeikasgassen in 2030 ten opzichte van 1990;
In 2050 is onze uitstoot van broeikasgassen netto-nul. Netto nul betekent dat de totale uitstoot van broeikasgassen in onze gemeente gelijk is aan, of lager is dan de hoeveelheid die zij uit de atmosfeer verwijdert.
Een forse reductie ten opzichte van 1990 is de afgelopen jaren al gerealiseerd, 52% in 2021. Het verder terugdringen van de uitstoot wordt wel steeds complexer. Duurzaamheid is breder dan klimaat en energie. Het gaat bijvoorbeeld ook over circulariteit, minder afval en minder gebruik van (primaire) grondstoffen. We volgen op het gebied van afval(scheiding) de landelijke ontwikkelingen voor de doelen en normen op dit thema. Dit is vraagt om grote veranderingen, zowel in de samenleving als binnen de gemeentelijke taakuitoefening.
Het doortrekken van de spoorlijn van Veendam tot Stadskanaal en in een later stadium de realisatie van de Nedersaksenlijn zien wij als een gegeven. Hierdoor worden de verbindingen met de stad Groningen en Emmen verbeterd, wat voor een impuls zorgt voor de bereikbaarheid van onze gemeente. In een gemeente met een groot landelijk gebied is bereikbaarheid een belangrijk vraagstuk. De onderlinge verbindingen tussen de kernen is cruciaal voor de leefbaarheid. De kwaliteit van het huidige fiets- en wandelnetwerk is onvoldoende door bijvoorbeeld boomwortels, zo stellen onze inwoners. Daarnaast ontbreken er schakels in het fietsnetwerk en is het gevoel van sociale veiligheid op een aantal fietspaden onvoldoende door onder meer het gebrek aan straatverlichting. Ook wordt het openbaar vervoersnetwerk op veel plekken als onvoldoende ervaren, doordat bussen sommige kernen maar beperkt of helemaal niet meer aandoen. Daarom staan we als gemeente voor de opgave om ervoor te zorgen dat ook de kleinere kernen profijt hebben van de komst van de spoorlijn. De bereikbaarheid met de auto is redelijk goed al zijn er wel een aantal knelpunten.
We liggen als gemeente in een regio waarin de levensverwachting lager ligt dan het landelijk gemiddelde en waarin we minder gezonde jaren hebben dan de gemiddelde Nederlander. Ongezonde voeding, weinig beweging, roken en alcoholgebruik leiden tot gezondheidsproblemen en overgewicht. Ook op het gebied van mentale gezondheid scoort onze gemeente slechter dan het landelijk gemiddelde. De bevolking vergrijst en moet steeds langer thuis blijven wonen ook als de kwetsbaarheid toeneemt. Het zorgaanbod wordt door verminderende arbeidspotentieel schaarser en overbelasting van de zorg dreigt. Om de zorg in de toekomst beschikbaar te houden voor hen die het echt nodig hebben zal een groter beroep worden gedaan op de samenleving. De zorg gaat als gevolg hiervan anders georganiseerd worden, steeds meer in de thuissituatie en in samenhang met informele zorg, en voorliggende (gemeentelijke) voorzieningen in de wijken en buurten. Zo staat de jeugd- en ouderenzorg in onze gemeente al langere tijd onder druk. Steeds meer specialistische medische zorg wordt centraal aangeboden en verdwijnt uit kleinere kernen of de gemeente, zoals de sluiting van bepaalde afdelingen in het Refaja Ziekenhuis Stadskanaal. Dit vraagt om goed georganiseerde (thuis)zorg en wijkverpleging. Als gemeente hebben we de opgave om het zorgaanbod in de gemeente op peil en nabij te houden, de gezondheidsverschillen te verkleinen, de mentale gezondheid te bevorderen en de zorgvraag te beperken, zodat de zorg beschikbaar blijft voor zij die het echt nodig hebben.
Onze gemeente staat bekend om het industriële verleden en de pioniersgeest. MKB, detailhandel en de maakindustrie zijn belangrijk in de regio, maar concurreert voor de ruimtevraag met andere opgaven en kan op gespannen voet staan met het open landschap. Jongeren trekken weg uit onze gemeente door het woningentekort, ontbreken van HBO en WO-instellingen en aanbod van een bepaald type werk. Ze trekken bijvoorbeeld naar grotere plaatsen als Emmen en Groningen of andere delen van het land. Ook neemt de beschikbaarheid van gekwalificeerd personeel af door de toenemende vergrijzing en een kleiner wordend aanbod van vakmensen.
In 2040 is Stadskanaal een gemeente waar het voor iedereen fijn en gezond wonen is. Het open Veenkoloniale landschap en het meer gesloten landschap op de zandgronden zijn goed te zien en te beleven. De cultuurhistorie zie je terug in zowel de kernen als het buitengebied en vertelt daarmee de geschiedenis van onze streek. Er is een gevarieerd woningaanbod voor elke doelgroep waarbij de straten, wijken en dorpen groen en klimaatbestendig zijn ingericht. Door nieuwbouw van woningen hebben we voldoende inwoners om ons voorzieningenniveau in stand te houden, waar onze inwoners tevreden over zijn. Noaberschap en sociale cohesie worden hierdoor gestimuleerd en blijven van groot belang. De oude spoorlijn vanuit Groningen naar Stadskanaal is in ere hersteld (zie afbeelding 9) en maakt deel uit van de Nedersaksenlijn. Dit geeft een impuls aan de aantrekkingskracht en bereikbaarheid van onze gemeente, in het bijzonder voor onze (vrijetijds)economie en jongeren. De gezondheid van onze inwoners is verbeterd en de achterstanden zijn aanzienlijk verminderd. In het landelijk gebied is de landbouw omgeschakeld naar een bedrijfsvoering die in balans is met het natuurlijke systeem en ook economisch interessant is voor agrarische ondernemers. Natuurgebieden zijn met elkaar verbonden en het groen loopt door in de kernen. Bij de realisatie van projecten is het gebruik van circulaire en duurzame materialen de norm. We zijn een heel eind op weg om in 2050 volledig klimaatneutraal te zijn.

De gemeente Stadskanaal is en blijft een woongemeente, voor iedere doelgroep. Wonen bleek voor velen het belangrijkste thema voor in de omgevingsvisie, want we hebben voldoende woningen nodig en wonen moet betaalbaar blijven. daarnaast moet onze leefomgeving aantrekkelijk blijven met groen en voorzieningen. bedrijvigheid hoort bij onze gemeente, hier is en blijft ook in de toekomst ruimte voor. Dit hoofdstuk beschrijft onze ambities en uitgangspunten voor wonen en bedrijvigheid en welke keuzes we hierin maken .Wonen wordt in 4.2 uitgewerkt en bedrijvigheid in 4.3.


Wij willen een aantrekkelijke woongemeente zijn met oog voor de ruimtelijke kwaliteit, duurzaamheid, voorzieningen en een goede balans in vraag en aanbod van woningen. In de gemeente Stadskanaal staan ongeveer 15.000 woningen die voor 32.000 inwoners een thuis bieden. Tot 2030 zetten we in op de realisatie van ongeveer 800 woningen. Na 2030 is de verwachting dat de vraag naar woningen verder toeneemt door de komst van de Nedersaksenlijn: het ontwikkelperspectief voorziet een toename van nog eens 1.200 woningen. Voor deze nieuwbouw bieden we de ruimte. Maar, wonen gaat over meer dan alleen de woningen zelf. De gehele woon- en leefomgeving is bepalend voor het ervaren woongenot. Het gaat ook om de voorzieningen waar men dagelijks gebruik van maakt, de openbare ruimte en de hoeveelheid groen daarin, buurtgenoten, andere gebouwen en het landschap.
Bestaande wijken en woningen: aantrekkelijk, duurzaam en toekomstbestendig
Naast plek voor ongeveer 15.000 woningen zijn er in de gemeente ongeveer 2.500 andere gebouwen. Bij elkaar verbruikten we in 2021 in de gemeente 32 miljoen kubieke meter aardgas, waarvan 92% werd gebruikt om gebouwen te verwarmen. Wij moeten in 2050 volledig aardgasvrij zijn. Om dit te bereiken willen we dat alle woningen in de gemeente Stadskanaal uiterlijk in 2035 geïsoleerd zijn tot de nationale isolatiestandaard. Wij willen betaalbaar wonen en het verduurzamen van woningen stimuleren door onder meer rijkssubsidies bij onze inwoners te krijgen. De focus ligt dus eerst op het isoleren van woningen en andere gebouwen om zo de warmtevraag en de energiekosten te beperken. Daarna richten we ons op het stapsgewijs aardgasvrij maken. Deze warmtetransitie is nu niet voor iedere huiseigenaar toegankelijk en financieel mogelijk. Daarom faciliteren en stimuleren wij dit als gemeente, waarbij er extra aandacht is voor goedkopere koopwoningen en particuliere huur. Inwoners kunnen advies krijgen over de beste besparingsmaatregelen en we helpen ze om gebruik te kunnen maken van beschikbare subsidies. Met de woningbouwcorporaties maken we prestatieafspraken over het verduurzamen van hun huurwoningen.
De energietransitie wordt ook op een andere manier merkbaar in onze leefomgeving. Het elektriciteitsnet moet worden verzwaard om de beschikbaarheid en betrouwbaarheid ook in de toekomst te garanderen. Er zijn meerdere ingrepen voor nodig om het elektriciteitsnetwerk te verbeteren en te verzwaren. Dat betekent dat op veel plekken de straat open moet en het aantal transformatorhuisjes in de openbare ruimte ongeveer verdubbeld dient te worden. Dat geeft een extra ruimtevraag van ongeveer 7.000m2. Naast de kleinere trafo’s moeten ook drie grotere schakelstations (ongeveer 2.500 m2) gebouwd worden in de omgeving van Stadskanaal-Noord, Bedrijventerrein Stadskanaal en Musselkanaal-centrum. Wij kijken samen met de netbeheerder naar de beste plekken om deze voorzieningen te realiseren. Zo zorgen we ervoor dat alle (nieuwbouw)woningen en (nieuwe) bedrijvigheid verzekerd zijn van voldoende elektriciteit.
Niet alle wijken, buurten en woningen voldoen aan de eisen van deze tijd en/of de behoefte van de inwoners. Wij gaan wijken en buurten integraal verbeteren door middel van een gebiedsgerichte aanpak. Deze aanpak bestaat uit isolatie van woningen en gebouwen, verbeteren van de woningkwaliteit, de herinrichting van de openbare ruimte en het aanpakken van sociaal-maatschappelijke problemen. Wijken worden hiervoor geselecteerd op basis van een integrale afweging waarbij naast de kwaliteit van de woningen en de openbare ruimte, ook wordt gekeken naar de sociaaleconomische context.
Bij herstructurering, herinrichting en reconstructies van de openbare ruimte kijken we naar de opgaven die daar spelen rond klimaatadaptatie en nemen indien nodig maatregelen. Wij zetten hierbij in op kwalitatieve inrichting van de openbare ruimte met groen en voldoende aandacht voor biodiversiteit, hittestress en wateropslag. Daarmee wordt de openbare ruimte klimaatadaptief ingericht. Wij willen meer water opvangen en vasthouden in natte perioden en meer schaduwplekken realiseren om hittestress te voorkomen. Op die manier zijn we steeds beter bestand tegen bijvoorbeeld intensievere regenbuien en perioden van extreme hitte en droogte als gevolg van de klimaatverandering. Vanuit de gemeente stimuleren we onze inwoners om hun tuinen klimaatadaptief in te richten met meer groen en minder verharding door bijvoorbeeld informatievoorziening en het faciliteren van het ontharden van tuinen. Regionaal wordt gewerkt aan een subsidieregeling voor kleinschalige klimaatmaatregelen voor particulier bezit.
Onze inwoners zijn tevreden over het groene karakter van de gemeente. De openbare ruimte moet, waar dat nog niet het geval is, uitnodigen om hierin elkaar te ontmoeten en te bewegen. Dit doen we bijvoorbeeld door beweeg- en speelparken en wandel- en fietspaden door het groen te voorzien van goede verlichting. Bij revitalisering brengen we, waar nodig, groen terug of verbeteren we de groenstructuren in de wijk.
Waar mogelijk stimuleren we onze inwoners en corporaties om hun woning levensloopbestendig te maken door een volwaardig woonprogramma op de begane grond te realiseren. Elke vijf jaar wordt het beleid uitgeschreven in het woonprogramma, waarin alle woningopgaven terugkomen. Hierbij kijken we ook naar kamerverhuur, tiny houses, woonwagenstandplaatsen, flexwonen, ligplaatsen voor woonschepen en de mogelijkheid om niet-wonen bestemmingen om te zetten in wonen. Zo kunnen we goed inspelen op de toenemende vraag naar flexibele en kleinere woningen en problematiek rondom bijvoorbeeld kamerverhuur.
In de bestaande wijken, dorpen en het buitengebied beheren we als gemeente een groot areaal aan wegen, bruggen, speeltuinen, sportaccommodaties, openbare ruimte et cetera. Bij het beheer en onderhoud, reconstructies en realisatie hiervan stimuleren we aannemers via de aanbestedingen om grondstoffen en producten te hergebruiken. Zo dragen we bij aan het doel om in 2050 volledig circulair te zijn. Bij de realisatie van projecten wordt het gebruik van circulaire en duurzame materialen de norm.
Nieuwe Woningen
In de gemeente Stadskanaal willen we tot 2030 ongeveer 800 woningen bouwen. Om het open karakter van het landschap te behouden, bouwen wij zo min mogelijk in het buitengebied. Daarnaast hebben we in veel bestaande kernen en wijken een openbare ruimte met veel groen en die willen we niet volbouwen. Voor woningbouw hanteren we daarom de ladder voor woningbouw. Deze ladder geeft aan welke voorkeursvolgorde we hanteren met betrekking tot de locatie van woningbouw:
1. Hergebruik of herbestemmen van bestaande panden door onder meer functieverandering (bijv. scholen, kantoorpanden);
2. Sloop en nieuwbouw op locaties of panden die geen (maatschappelijke) functie meer hebben;
3. Nieuwbouw binnen de bebouwde kom en kleinschalig aansluitend op de bebouwde kom (straatje extra);
4. Uitbreiding langs of in het bestaande lint;
4. Uitbreiding bij bestaande kernen (nieuwe wijk).

In Alteveer, Mussel en Onstwedde willen we de komende jaren vooral kleinschalige woningbouw realiseren passend naar de aard en karakter van het dorp en het gebied. Deze nieuwbouw staan we toe binnen de eerste vier treden van de woningbouwladder. Voor Stadskanaal en Musselkanaal is de woningbouwopgave groter. Om dit te realiseren kijken we naast inbreidingsmogelijkheden ook naar woningbouwlocaties in trede vijf, dus buiten de huidige contouren van de bestaande kernen. Deze planmatige woningbouw voorzien we onder meer bij het Tweede Boerendiep, de omgeving Floralaan te Musselkanaal en rondom het toekomstige treinstation in Stadskanaal nabij Dideldom. Gezien de centrale ligging van dit treinstation beperkt planmatige woningbouw zich niet enkel tot onze gemeentegrens en kijken we ook in de richting van Nieuw-Buinen. Wij treden in overleg met onder meer de gemeente Borger-Odoorn om tot een regionale gebiedsontwikkeling te komen. Een nieuwe wijk moet passen bij de kernkwaliteiten van Stadskanaal en toekomstige locaties zullen hieraan getoetst worden. De inrichting van nieuwe wijken moet aansluiten op de structuur van wijken en sloten zoals kenmerkend is voor de Veenkoloniën.
Buiten de bestaande kernen in het landelijk gebied, kennen we een Ruimte-voor-Ruimte regeling. Deze regeling is erop gericht om het slopen van landschapontsierende bebouwing te stimuleren. Dit kan onder de voorwaarde dat er één of maximaal twee compensatiewoningen gebouwd worden op de slooplocatie, of na goed overleg met gemeente en provincie op een andere passende locatie.
Een plek voor alle doelgroepen
Wij willen voor al onze inwoners zo inclusief en toegankelijk mogelijk zijn als gemeente, ook voor de mensen die een fysieke en/of mentale beperking hebben. Wij houden hier rekening mee bij de gehele inrichting van onze openbare ruimte. Onze voorzieningen en de openbare ruimte zijn toegankelijk en veilig voor iedereen, zodat iedereen volwaardig deel kan nemen aan de maatschappij. In onze gemeente is behoefte aan diverse woonzorgvoorzieningen voor mensen die niet zelfstandig kunnen wonen zoals psychisch kwetsbaren, inwoners met een verstandelijke beperking en zorgbehoevende ouderen. Er is vraag naar (kleinschalige) woongroepen. Ook zijn er initiatieven vanuit proactieve senioren voor het ontwikkelen van nieuwe woonvormen, zoals knarrenhofjes. Vanuit onder meer (alleenstaande) jongeren is vraag naar meer betaalbare éénpersoonswoningen, zoals tiny houses.
Wij willen als gemeente sturing op de woningbouw als het gaat om type en prijsklasse. Uit de participatie onder onze inwoners komt duidelijk naar voren dat zij zorgen hebben over het woningaanbod en de betaalbaarheid. Vraag en aanbod van woningen sluiten nu niet goed genoeg op elkaar aan, zowel qua type woningen als de huizenprijzen.
Wij monitoren de woonbehoeften in onze gemeente en werken aan een toereikend aanbod voor onze inwoners. Wij sturen op een goede verhouding tussen sociale huur, midden huur en huurwoningen in de vrije sector. De sociale huurvoorraad moet de komende jaren groeien om voldoende woningaanbod te hebben voor lagere inkomens. Wij stemmen vraag en aanbod van onze woningen af in regionaal en provinciaal verband en we werken nauw samen met de woningbouwcorporaties.
Leefbaarheid en voorzieningen
Inwoners waarderen het hoge voorzieningenniveau in onze gemeente. Als gemeente gaan we voor kwalitatief goede en toekomstbestendige voorzieningen, passend bij de omvang van kern of wijk. Een groei van het aantal woningen en inwoners kan daarnaast bijdragen aan een toename van voorzieningen of tenminste de toekomstbestendigheid van de voorzieningen in kernen. Per kern streven we naar het behoud van de volgende al bestaande basisvoorzieningen:

De aanwezigheid van onderwijs en opvang is cruciaal om een aantrekkelijke woonplaats te zijn voor gezinnen. Daarnaast zijn dit plekken waar inwoners elkaar ontmoeten, vriendschappen ontstaan en van waaruit activiteiten worden georganiseerd. Een winkel om je dagelijkse boodschappen te kunnen doen is voor elke inwoner gemakkelijk maar extra belangrijk voor mensen die minder mobiel zijn of geen beschikking hebben over een auto. Hierbij moet wel worden opgemerkt dat dit kan veranderen doordat steeds meer supermarkten boodschappen bezorgen. Ook zorg in de buurt is van belang, zeker voor de meer kwetsbare doelgroepen.

Voor de leefbaarheid is ook bereikbaarheid en toegankelijkheid van onze voorzieningen van groot belang. De bereikbaarheid wordt uitgewerkt in hoofdstuk 5 ‘Bereikbaarheid en mobiliteit’. Wij streven naar het in stand houden van de basisvoorzieningen, maar dat kunnen we niet garanderen. Bepaalde voorzieningen, zoals winkels of zorginstellingen, zijn privaat. Voor collectieve voorzieningen, zoals sporthallen en scholen, geldt dat we als gemeente moeten kijken naar de hoeveelheid gebruikers versus de maatschappelijk kosten.
Waar dit nog niet het geval is willen we de concentratie van de aanwezige eerstelijnszorg (zoals een huisarts, apotheek, wijkverpleging, paramedici en eventueel sociaal domein) faciliteren in gezondheidscentra op locaties die centraal gelegen zijn en goed bereikbaar zijn met het openbaar vervoer. Zo is alle zorg voor inwoners onder één dak en is de afstemming tussen zorgverleners eenvoudiger.
Veel inwoners en bezoekers genieten van evenementen en festivals die worden georganiseerd in de gemeente. Wij willen initiatiefnemers de ruimte blijven bieden om dit te organiseren. Echter, festivals veroorzaken ook overlast aan omwonenden als het gaat om geluid, geur en verkeerstromen et cetera. Als gemeente willen wij de balans bewaken tussen het faciliteren van evenementen en festivals voor al onze inwoners enerzijds en het reguleren ervan en het beperken van de overlast anderzijds. Dit betekent dat we inzetten op evenementen op locaties die daarvoor geschikt zijn. Hierbij houden we rekening met de kernkwaliteiten van onze gemeente en het karakter van het gebied waar een evenement plaatsvindt. Toekomstig beleid over evenementen wordt nog opgesteld.

Bedrijventerreinen, onderwijs en MKB
Wij hebben als gemeente een belangrijke opgave om voorwaarden te scheppen voor goed onderwijs en voor bedrijven in onze gemeente. Wij richten ons op het behoud van de arbeidsplaatsen in de arbeidsmarktregio. Daarbij zijn kennisinstellingen, bedrijven en bijbehorende bedrijventerreinen belangrijk voor inwoners uit onze gemeente en de regio om te kunnen leren, werken en ondernemen in de eigen regio. Duurzaamheid op de bedrijventerreinen en voor de bedrijven zelf is steeds belangrijker. Wij kijken hoe we bedrijven kunnen ondersteunen om hun bedrijfsgebouwen beter te kunnen isoleren. De openbare ruimte willen we verder vergroenen en platte daken benutten voor energieopwekking met zonnepanelen. Op Dideldom ondersteunen we de ontwikkeling van Makeport Mercurius: een initiatief van onderwijs en bedrijfsleven waar een mix van dienstensector, maakindustrie en onderwijs zorgt voor innovatieve ontwikkelingen en behoud van talent in onze regio. Deze locaties richten zich op start-ups en scale-up bedrijven. Dit sluit aan bij het Masterplan Campussen en het Masterplan Oost-Groningen. Door het volgen van het Masterplan Campussen zijn wij onderdeel van verdere ontwikkeling van het kennis en innovatie-ecosysteem van de provincie Groningen. Het onderwijsaanbod in onze gemeente willen we een impuls geven door de komst van het station. In de regio werken we samen met de provincies Groningen en Drenthe en onze buurgemeenten Borger-Odoorn, Pekela, Veendam en Westerwolde (N366-regio). Zo kunnen we bedrijven en kennisinstellingen met meerwaarde voor de regio goed huisvesten en faciliteren. Vanuit de N366-regio focussen we ons op onder meer de agrofood-sector en maakindustrie, zodat bestaande clusters worden versterkt.
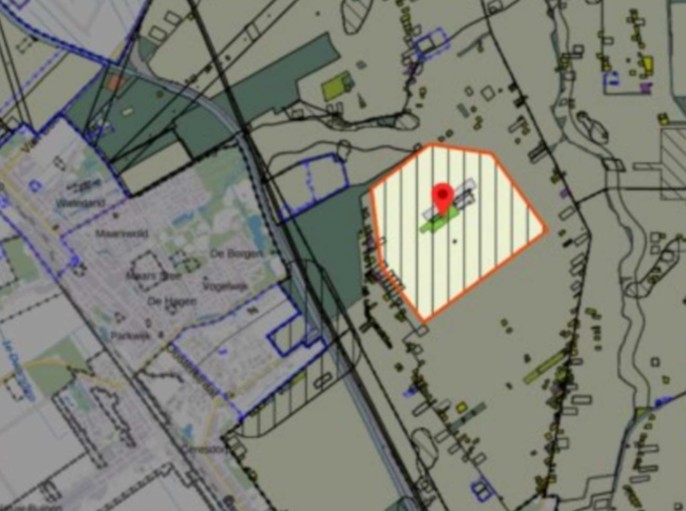
Wij zien een trend naar steeds grotere bedrijfshallen voor bijvoorbeeld transport- en distributiebedrijven. Dit staat op gespannen voet met de openheid van ons landschap. Op Bedrijvenpark Stadskanaal en het Dideldomterrein is ruimte voor diverse soorten bedrijven. Mogelijk wordt zwaardere industrie hier op lange termijn uitgefaseerd. Vanwege de centrale ligging en de bestaande woningbouw in de directe omgeving is woningbouw hier een optie, wanneer de vraag naar nieuwe woningen hier aanleiding toe geeft. Bestaande bedrijven worden dan bij uitbreiding gefaciliteerd op of nabij Bedrijvenpark Zuid-Groningen, zodat de werkgelegenheid in de regio behouden blijft. Ook de vestiging van nieuwe bedrijven met een groot oppervlak en/of zwaardere industrie agrofood en voedselverwerking worden bovenregionaal gefaciliteerd op Bedrijvenpark Zuid-Groningen. Vanuit onze gemeente verruimen we de contouren voor mogelijke uitbreidingen van Bedrijvenpark Zuid-Groningen.
In onze gemeente richten we ons op bestaande bedrijventerreinen en -locaties voor de MKB en maakindustrie. We laten geen (nieuwe) losse bedrijven toe in het buitengebied, tenzij het gaat om vrijkomende agrarische bebouwing (VAB) en mits passend in het landschap. Op het Bedrijvenpark Stadskanaal en Dideldom liggen nu nog twee zonneparken van elk 16 hectare groot. Op termijn vervallen deze zonneparken, waardoor op deze percelen ruimte vrijkomt voor nieuwe bedrijven.

Op bestaande bedrijventerreinen in Oost-Groningen is voor veel verschillende typen bedrijven tot 2040 voldoende ruimte om zich te vestigen op nog uit te geven kavels. Dit blijkt uit de omgevingseffectrapportage (zie afbeelding 13). Voor nieuwe bedrijfskavels kijken we eerst naar transformatie en revitalisering van bestaande bedrijvenparken. Vervolgens kijken we naar mogelijke ruimte op Bedrijvenpark Zuid-Groningen en tot slot naar locaties waar nu nog zonneparken op bedrijvenparken gevestigd zijn. Mocht op langere termijn de behoefte naar bedrijventerreinen verder toenemen, dan komt ook de zone rondom het Tweede Boerendiep in Musselkanaal in beeld als uitbreidingslocatie voor het midden- en kleinbedrijf. Dit gebied is daarnaast in beeld als mogelijke woningbouwlocatie en voor de opwek van zonne-energie. Uit nader onderzoek moet blijken welke functie(s) hier het meest passend zijn.
Van oudsher zit veel bedrijvigheid langs het lint in de Kanaalzone. Zo lang de bedrijfsactiviteiten niet op gespannen voet staan met de leefbaarheid langs het lint, blijft bedrijvigheid daar mogelijk. Om meer structuur te geven aan hoe wij als gemeente omgaan met de uitbreiding en nieuwvestiging van bedrijven, hanteren we onze ladder voor bedrijvigheid.
Ladder bedrijvigheid:
1. Inbreiding op bestaande bedrijventerreinen (nog uit te geven kavels);
2. Transformatie en revitalisering van bestaande bedrijventerreinen;
3. Uitbreiding van bestaande of ontwikkeling van nieuwe bedrijventerreinen.

Detailhandel
De regionale centrumfunctie die onze gemeente kent voor onder meer detailhandel willen we behouden en verder versterken. Waar mogelijk willen we onze dorpskernen en centra compact inrichten, waarbij we onze horeca, recreatie, winkels en het amusement clusteren. Daarvoor geldt ook dat nieuwe detailhandel in de kleinere kernen, zoals Alteveer en Mussel, binnen de bebouwde kom gevestigd dient te worden om het voorzieningenniveau te ondersteunen. De kernen moeten goed bereikbaar en toegankelijk zijn voor zowel consumenten als leveranciers. Ook zorgen we, net als in onze woonwijken, voor een aantrekkelijk, groen en uitnodigend karakter van onze centra. Zo versterken we de herkenbaarheid en levendigheid in de kernen. Dit is een stimulans voor onze MKB’ers in de detailhandel, horeca en recreatie.
De gemeente Stadskanaal moet voor iedereen op een goede manier bereikbaar zijn en blijven. Wij streven ten aanzien van bereikbaarheid en mobiliteit gemeentebreed naar een evenwicht tussen goede en duurzame bereikbaarheid, leefbaarheid, gezondheid en veiligheid. Enerzijds betekent dit het bevorderen van de ruimtelijk-economische dynamiek in de gemeente en anderzijds het versterken van de kwaliteit van de leefomgeving in de woonwijken en het buitengebied. Het verbeteren van de verkeersveiligheid voor iedere verkeersdeelnemer is daarbij een belangrijk doel, want elk verkeersslachtoffer is er één te veel. 5.2 gaat in op het stimuleren van wandelen, fietsen en varen. 5.3 op de toekomst van het openbaar vervoer en (deelmobiliteit). De visie op de autowegen staat in 5.4 en 5.5 gaat over de laadinfrastructuur.


Wandelen en fietsen zijn gezond en goed voor het milieu. Goede wandel- en fietspaden zijn daarom een belangrijke voorwaarde om meer te wandelen en fietsen. Ook dragen voorzieningen om mensen te laten bewegen bij aan de vrijetijdseconomie en het aantrekkelijker maken van de regio. Wij zien daarbij dat het gebruik van elektrische fietsen de afgelopen jaren sterk is toegenomen, voor een deel ter vervanging van de auto.
Aantrekkelijk en veilig wandelen en fietsen is voor ons als gemeente een focusthema. In de kernen, maar ook daartussen, richten we ons op het verbeteren van de bestaande fietsinfrastructuur. Ons hoofdfietsnetwerk is gericht op utilitair gebruik (woon – werk, woon – school) en het ontsluiten van belangrijke voorzieningen zoals winkelcentra, scholen, het ziekenhuis en werklocaties. Fietsen op het hoofdfietsnetwerk moet comfortabel, snel, direct en duidelijk herkenbaar zijn. De toename van het aantal fietsers en daarnaast de sterke toename van elektrische fietsen, leiden tot grotere snelheidsverschillen op fietspaden. Daarom is er vraag naar bredere fietspaden en fietsstroken. Routes van en naar voorzieningen, met name scholen, moeten aantrekkelijk en sociaal veilig zijn. Voornamelijk rondom scholen krijgen de fietser en voetganger voorrang ten opzichte van de autogebruiker. Bij de herinrichting van schoolomgevingen krijgen de fietsers en voetgangers zowel in parkeergelegenheid als bereikbaarheid de beste plek.
Op meerdere plekken zijn fietspaden niet goed onderhouden of zijn ze te smal voor het aantal gebruikers. Waar nodig verbreden we fietspaden en worden de mogelijkheden van doorfietsroutes onderzocht tussen Musselkanaal en Stadskanaal. Ook voetgangers en mindervaliden krijgen meer ruimte: voetpaden moeten vrij zijn van obstakels. Wij stellen randvoorwaarden voor kwetsbare verkeersdeelnemers, zodat zij veilig van a naar b kunnen in onze gemeente. Zeker voor oudere fietsers en wandelaars geeft slecht onderhoud een verhoogd risico op letsel. Daarom krijgen fiets- en voetpaden een hogere prioritering in onderhoudsbudgetten. Uit de Omgevingseffect rapportage blijkt dat rotondes in Stadskanaal door fietsers als erg onveilig worden ervaren. Wij onderzoeken of deze rotondes ook daadwerkelijk onveilig zijn voor fietsers en welke maatregelen er vervolgens nodig zijn om de veiligheid te vergroten.

De fiets- en wandelroutes zijn ook belangrijke verbindingen voor ons recreatieve netwerk. Zo kunnen onze inwoners genieten van onze natuurgebieden en recreatie op het water. De verschillende waterwegen in onze gemeente willen we aantrekkelijker maken voor recreatie. Daarin is de bereikbaarheid en toegankelijkheid ervan belangrijk: zowel lopend, op de fiets als met de auto moeten deze locaties goed bereikbaar zijn. Het stadskanaal wordt volop gebruikt voor de recreatievaart. Wij houden het kanaal toegankelijk voor gemotoriseerde recreatievaart door onderhoud van bruggen en sluizen. De zijtakken worden geschikt voor niet-gemotoriseerde vaartuigen, zoals kano’s en sups. Wij willen, naast de bestaande voorzieningen, extra ruimte bieden aan de ontwikkelling van Toeristische Overstappunten (TOP’s): activiteiten en voorzieningen bij kruisingen tussen land en water langs (vaar)wegen, bruggen en sluizen.
De toekomstige spoorverbindingen en het station Stadskanaal geven een enorme impuls aan de bereikbaarheid van Stadskanaal en alle andere kernen in de regio. In eerste instantie wordt de spoorverbinding vanuit Groningen via Veendam doorgetrokken tot aan Stadskanaal. In een later stadium wordt de Nedersaksenlijn gerealiseerd tot aan Almelo via onder meer Emmen. Op die manier wordt onze gemeente zowel richting het noorden als zuiden beter ontsloten. Het openbaar vervoersnetwerk van en naar onze gemeente is dan niet meer volledig afhankelijk van alleen busvervoer. Het treinstation bij Dideldom richten we in als een mobiliteitshub: een verkeersknooppunt waarbij de nadruk ligt op een goede aansluiting tussen verschillende vervoersmodaliteiten. Zo wordt de omgeving rondom het stationsgebied ingericht om snel en comfortabel over te stappen op de bus, fiets, auto, taxi of vormen van duurzame (deel)mobiliteit. Op deze manier zorgt station Stadskanaal voor een betere bereikbaarheid van de hele regio en profiteren alle omliggende kernen van de spoorlijn.
Het openbaar vervoer in onze gemeente is de afgelopen decennia versoberd. Hierdoor staat de bereikbaarheid met het openbaar vervoer van en naar sommige kernen onder druk.

Het is niet realistisch om te verwachten dat het openbaar vervoernetwerk (weer) zo uitgebreid wordt als dat het geweest is. Als gemeente zetten we in op minimaal behoud van het huidige aanbod van de lijnbussen van en naar onze kernen. Wij willen het gebruik van openbaar vervoerhaltes aantrekkelijker maken op de volgende manieren:
Bushaltes in de buurt van voorzieningen.
Veelgebruikte haltes inrichten als een aantrekkelijke en sociaal veilige verblijfplaats voor reizigers en voorzien van faciliteiten, zoals fietsenstallingen en laadpunten.
Busroutes zo comfortabel mogelijk en snel inrichten. Bij het toepassen van snelheidsbeperkende maatregelen wordt rekening gehouden met het openbaar vervoernetwerk.
Alle haltes zijn goed en veilig bereikbaar voor fietsers en voetgangers.
Bij grotere nieuwbouwlocaties wordt samen met het OV-bureau gekeken naar de mogelijkheden om deze zo goed mogelijk te ontsluiten met een buslijn.
De komst van de trein is een basis voor een toekomstige mobiliteitshub in Stadskanaal.
Op plekken waar de vraag naar openbaar vervoer laag is, onderzoeken we welke andere manieren er zijn om de bereikbaarheid te garanderen. Hierbij kan worden gedacht aan vormen van deelmobiliteit. Het doelgroepen- en leerlingenvervoer gaan we ook verduurzamen.
De N365, N366, N374 en N378 zijn de belangrijkste verkeersaders die van, naar en door onze gemeente lopen. Deze regionale verbindingen zijn voor onze gemeente van groot belang. De mogelijke verbreding van de N366 is onderwerp van gesprek als belangrijke verbinding voor forenzen en bedrijven tussen Groningen en Ter Apel. De verkeersdruk op deze weg neemt toe, al zijn de effecten van de komst van de Nedersaksenlijn hierop nog niet bekend. Samen met de provincie willen we kijken wat nodig is om een goede bereikbaarheid via de N366 ook op de lange termijn te borgen.

Uit de inventarisatie door middel van het verkeersmodel blijkt dat in de huidige verkeersstructuur in Stadskanaal drie verbindingen ontbreken. Dit zijn:
Op sommige plekken in Stadskanaal ontstaan hierdoor problemen op het gebied van leefbaarheid. Wij gaan onderzoeken of deze ontbrekende verbindingen kunnen worden gerealiseerd en waar.
In het Gemeentelijk Verkeers- en Vervoersplan (GVVP)[4]is een beleidslijn verkeerstructuur opgenomen. Hierin wordt onder meer ingegaan op de leefbaarheid in onze kernen en veiligheid in het verkeer voor iedere deelnemer. De belangrijkste punten daaruit op deze onderwerpen zijn:
Alle woonstraten (straten met luw verkeer) in de gemeente zijn gecategoriseerd als erftoegangsweg en worden (op termijn) ingericht als 30 km/uur weg (binnen komgrenzen) of 60 km/uur weg (buiten komgrenzen);
Wegen met een ontsluitende functie van wijken en centra (van en naar woonwijken, hiermee worden geen woonstraten bedoeld) worden gecategoriseerd als gebiedsontsluitingswegen en zijn/worden ingericht als 50 km/uur binnen de komgrenzen en 80 km/uur buiten de komgrenzen.
Voor het vracht- en landbouwverkeer hanteren we de volgende beleidslijnen:
Het beperken van vrachtverkeer in het centrum door middel van extra laad- en losvoorzieningen;
Doorgaand vrachtverkeer wordt afgewikkeld via het provinciale wegennet;
Landbouwverkeer wordt actief gescheiden van ander verkeer, zoals het fietsnetwerk;
Doorsnijdingen van bebouwde kommen door het hoofdroutenetwerk voor landbouwverkeer worden zoveel mogelijk voorkomen;
De gemeente besteedt aandacht aan verkeerseducatie voor zowel bestuurders van landbouwvoertuigen als overige kwetsbare verkeersdeelnemers (specifiek scholieren) die in conflict met landbouwvoertuigen kunnen komen.
[4] Het GVVP is een beleidsdocument met daarin al het verkeers- en vervoersbeleid van de gemeente
Wij voorzien een verdere groei van elektrische auto’s en daarmee een groeiende behoefte aan laadinfrastructuur. Hiervoor is onze laadvisie opgesteld. De laadvisie richt zich op het realiseren van een passende laadinfrastructuur voor elektrische voertuigen om de mobiliteit te verduurzamen en CO₂-uitstoot te verminderen. Er zijn verschillende typen laadinfrastructuur; publiek, semipubliek en privaat.
De gemeente volgt regionale en landelijke ontwikkelingen en herijkt de laadvisie regelmatig. Op dit thema werken we samen met andere gemeenten. Wij hanteren voor de laadinfra de “Ladder van Laden”:
We stimuleren het openstellen van laadpunten op private terreinen voor algemeen publiek en faciliteren alleen het regulier laden. Snelladen laten we aan marktpartijen over. In de laadvisie is bewust geen kwantitatieve doelstelling opgenomen, maar richten we ons op het faciliteren van de groeiende vraag en dus vraag gestuurd. De gemeente hanteert een strategie gebaseerd op plaatsen van laadpalen op basis van:
Aanvragen;
Strategische plaatsing op plekken waar veel vraag is;
Data-gestuurde plaatsing op plekken waar een grote vraag wordt verwacht;
Locaties om te komen tot een landelijk dekkend netwerk.
Verkeersveiligheid is een belangrijk thema in de gemeente, blijkt uit de enquête en tijdens de gastlessen op basisscholen. Naast het verbeteren van fiets- en wandelpaden, zetten we ons op meer manieren in om de verkeersveiligheid te vergroten:
1) Inrichting van wegen:
Wij hebben verschillende verkeersonveilige situaties in onze gemeente in beeld. Door een andere inrichting van de weg vergroten we de verkeersveiligheid. Het gaat dan bijvoorbeeld om:
Oversteken voor langzaam verkeer veiliger inrichten;
Fietspaden verbeteren en verbreden;
Op bepaalde plekken afschalen van 50 km/u naar 30 km/u, of van 80 km/u naar 60 km/u.
2) Educatie, voorlichting en handhaving:
Naast de inrichting van de wegen is het gedrag van de weggebruikers bepalend voor de verkeersveiligheid. Met campagnes en educatie willen we doelgroepgericht mensen wijzen op het belang van goede verlichting op de fiets, het gevaar van het gebruik van smartphones tijdens het rijden en gevaar van het rijden onder invloed. Daarnaast willen we meer handhaven (verkeerscontroles) om zo ook veiliger gedrag af te dwingen en de verkeersveiligheid voor andere weggebruikers te vergroten.
3) Veilige Woonwijken:
Onder zowel ouders als basisschoolleerlingen leeft de wens om veilig te kunnen spelen en bewegen in bepaalde plaatsen in hun woonwijk, zoals in (woon)straten. Als gemeente willen we, naast eerdergenoemde maatregelen, dat kinderen kunnen spelen en bewegen op straat in de bebouwde kom.
Bij de (her)inrichting van bushaltes en fietsroutes houden we rekening met sociale veiligheid. Dat betekent onder meer goede openbare verlichting. Dit moet bijdragen aan het verbeteren van het gevoel van veiligheid.
Stadskanaal is naast een gemeente die van oudsher bekend staat om de maakindustrie, ook een landbouwgemeente. De landbouw is voor een groot deel bepalend voor het landschap. Een goede balans tussen een toekomstbestendige en grootschalige landbouw, ecologie en economie is op dit moment een urgent en actueel thema. Vanuit de landbouw zelf zijn initiatieven genomen om aan deze opgaven te werken, hiervoor is de stichting Innovatie Veenkoloniën opgericht. Wij zien het als onze taak om agrariërs te faciliteren bij het omschakelen naar een toekomstbestendige bedrijfsvoering maar ook om oog te houden voor de kwaliteit van het landschap en de leefomgeving. Wij realiseren ons dat de landbouw ook naar de toekomst een belangrijke landschappelijke en economische pijler blijft in onze gemeente. Als gemeente zijn wij de integrale overheid en het eerste aanspreekpunt voor de inwoners. Wij zien het als onze rol in alle ontwikkelingen in de landbouw en het landelijke gebied om de integraliteit tussen de verschillende opgaven te bewaken en bij te dragen aan een zorgvuldige afweging van belangen. 6.2 beschrijft de toekomst van de landbouw in de Veenkoloniën en 6.3 voor de zandgronden. 6.4 gaat in op het boerenerf van de toekomst en 6.5 op het behoud en het versterken van het landschap.


De Veenkoloniën is en blijft een gebied voor grootschalige landbouw met de kenmerkende lange en rechte kavels. Wel spelen er opgaven op het gebied van water- en bodemkwaliteit en voldoende water. Maatregelen zijn nodig voor het herstel en het in balans houden van het natuurlijke water- en bodemsysteem. Als we het systeem overvragen dan ontstaan er knelpunten en werkt het niet meer optimaal. Dat heeft effect op de landbouw in de vorm van minder opbrengsten en dat leidt tot afname van de biodiversiteit.
De kwaliteit van de bodem en het grond-/oppervlaktewater worden beïnvloed door het gebruik van gewasbeschermingsmiddelen en meststoffen. De uitdagingen in het gebied liggen in het verminderen van deze hulpstoffen om af- en uitspoeling te voorkomen. Onder de noemer precisielandbouw lopen er in het gebied pilots om ervaring op te doen met het doel alleen de plant zelf te voorzien van de benodigde hulpstoffen en de omgeving niet te belasten. Een ander spoor waaraan gewerkt wordt is de rassenveredeling. Door de veredeling worden rassen resistenter gemaakt tegen ziekten maar vindt ook selectie plaats op droogtegevoeligheid waarbij ingespeeld wordt op klimaatverandering. Ook wordt gekeken naar de teelt van nieuwe gewassen die kunnen dienen als grondstof voor biobased bouwen, zoals hennep.
Een andere opgave is de hoeveelheid organische stof in de bodem. Deze parameter is belangrijk voor de waterdoorlatendheid van de bodem. Hierdoor kan neerslag gemakkelijk infiltreren (sponswerking), maar is ook een vereiste voor een rijk bodemleven (bodemfauna, schimmels en bacteriën). Vanuit gebiedsprocessen die door de provincie zijn gefaciliteerd zijn allerlei initiatieven naar voren gekomen om hier samen aan verder te werken. Wij willen als gemeente agrarische ondernemers faciliteren bij deze innovaties en een toekomstbestendige bedrijfsvoering. Dit betekent dat we meedenken over en voorwaarden scheppen voor de gewenste innovaties en toekomstbestendige ontwikkelingen en bezien of deze mogelijk zijn binnen de bestaande (ruimtelijke) kaders en wetgeving.
In onze gemeente vindt vooral akkerbouw en in mindere mate veeteelt plaats. Een goede balans tussen aanwezigheid van beide landbouwsectoren is belangrijk voor het sluiten van de (nutriënten)kringloop. Groei van de (intensieve) veehouderij op ons grondgebied vinden we maatschappelijk en landschappelijk niet wenselijk, vanwege het potentiële effect op milieu, gezondheid en ook natuurdoelen en woonfuncties. Daarom staan we in het open landschap buiten de bestaande agrarische bebouwing geen uitbreiding van schuren van in totaal groter dan 2 hectare toe. Wel is uitbreiding van stallen toegestaan om meer leefruimte voor dieren te realiseren. Op het gebied van mest is het streven om de opslag op eigen kavel te realiseren. Dat kan in de vorm van bijvoorbeeld een mestbassin, een mestsilo of mestplaten. Wanneer er op de eigen kavel geen ruimte is, kunnen we als gemeente afwijken van bestaande regelgeving. De opslag van mest op een veldkavel die niet aansluit op de eigen kavel, solitaire opslag genoemd, is op dit moment nog onwenselijk. Wij volgen hierbij de ontwikkelingen op landelijk en provinciaal niveau.
De teelt van gewassen met een grote negatieve invloed op bodem- en waterkwaliteit en/of volksgezondheid willen we tegengaan, zoals bollen- en lelieteelt waar veel gewasbeschermingsmiddelen bij worden gebruikt. Daarom staan we als gemeente onder meer bollenteelt waar veel gewasbeschermingsmiddelen bij worden gebruikt niet toe. Dit wordt nader uitgewerkt in plannen en regels.
Voor het op peil houden van het watersysteem in de Veenkoloniën vindt zomers aanvoer van oppervlaktewater plaats via het IJsselmeer. Dit gebeurt via een uitgebreid stelsel van waterwegen en gemalen. In droge zomers heeft maximale aanvoer plaatsgevonden en blijkt het IJsselmeer over voldoende water te beschikken. Naar de toekomst is dit geen garantie en zal er meer water in het gebied vastgehouden moeten worden. Adaptief peilbeheer is één van de mogelijke manieren om hier invulling aan te geven. Door het veranderen van de droogleggingsnorm en het waterpeil te verhogen, hebben in langere perioden van droogte de gewassen minder snel last van watertekort. In afbeelding 20 zijn drie typen van peilbeheer weergegeven en welke effecten deze hebben voor de landbouwgronden. Onderzoek naar deze mogelijkheden is noodzakelijk om een goed beeld te krijgen. Dit ligt in eerste instantie bij het waterschapwaterschap Hunze en Aa’s en de provincie Groningen.

Op de oude zandgronden in de Veenkoloniën en in Westerwolde zijn landbouwpercelen relatief klein en is de afwisseling groot. Dit willen we zo houden en we zien toe op wat we wel en niet toelaten aan ruimtelijke ontwikkelingen. Hier is ruimte voor toekomstbestendige en natuurinclusieve landbouw. De landschapsstructuur vertaalt zich ook naar de bouwmogelijkheden van agrarische bedrijven. Recreatie, landschaps- en natuurbeheer zijn daarmee kansrijke neventakken bij een agrarisch bedrijf. Door neventakken kan de agrarische bedrijfsvoering meer extensief zijn. Ook op zandgronden speelt de opgave om water vast te houden, omdat aanvoer van voldoende IJsselmeerwater niet gegarandeerd kan worden.
Onderdeel van toekomstbestendige bedrijven in de landbouw is een duurzame bedrijfsvoering. Wij willen ruimte bieden voor innovatie op het erf. De opwek en het opslaan van groene energie voor eigen bedrijfsvoering is hierbij belangrijk. Wij willen energieopslag faciliteren door middel van batterijen en (kleinschalige) waterstofproductie om het netwerk te ontlasten en ruimte te bieden voor zon op daken op bedrijfs- en schuurdaken en erfmolens tot een maximale hoogte van 20 meter, mits goed landschappelijk ingepast. Wij volgen hierin de ontwikkelingen vanuit de provincie en wegen dit indien nodig op een later moment opnieuw af. Veel agrariërs beschikken over veel vierkante meters onbenut dakoppervlak, wat in veel gevallen geschikt is voor zonnepanelen. Dit kan mogelijk in combinatie met bijvoorbeeld de opwek van energie uit wind door een erfmolen te plaatsen, waardoor agrariërs zelfvoorzienend worden. Om de opgewekte stroom te kunnen bewaren, kijken we onder welke voorwaarden batterijopslag mogelijk is. Vanwege de toegenomen druk op ons watersysteem en drinkwaterbeschikbaarheid, willen we samen met Waterschap Hunze en Aa’s en Drinkwaterbedrijf Groningen kijken naar mogelijkheden om regenwater op te vangen en te gebruiken voor bijvoorbeeld beregening van het areaal. Wij willen hiervoor een lokale adaptatiestrategie opstellen met daarin maatregelen om het drinkwaterverbruik te verminderen.
In het buitengebied en op het boerenerf staan we kleinschalige bedrijvigheid toe die past in het gebied, zoals agrarische bedrijven met eventueel boerderijwinkels of campings. Daarnaast willen we vrijkomende agrarische bebouwing (VAB) en kavels die hun functies verloren hebben in het landelijk gebied passend herbestemmen. Wij willen op die manier voorkomen dat leegstaande panden, boerderijen en bijbehorende erven in verval raken en hun aantrekkelijkheid verliezen, verpauperen of dat er ondermijnende activiteiten plaatsvinden. Het kan bijvoorbeeld gaan om wonen of kleinschalige bedrijvigheid. Tot slot willen we verkennen of verruiming van woonzorglocaties en/of recreatie hier mogelijk is.
Onze historie is nog zichtbaar in het landschap. Dit willen we nog beter laten zien en benadrukken in onze gemeente. Oude landschappelijke en cultuurhistorische erfgoedstructuren en monumenten willen we behouden, beschermen en waar mogelijk in ere herstellen. Voorbeelden hiervan zijn de lintstructuren in de Veenkoloniën, de natuur rond het beschermd dorpsgezicht Smeerling en de bossen en essen rondom Onstwedde. De groene lintstructuren dragen, ook bij nieuwe uitbreidingen, bij aan de karakterisering van het landschap. Als gemeente werken we aan nieuw beleid op erfgoed om dit verder vorm te geven en uit te dragen. Uit de enquête blijkt ook dat onze inwoners trots zijn op deze identiteit, het cultuurhistorisch erfgoed, de monumenten en het landschap in onze gemeente. Dit willen we beter benutten als recreatieve trekpleister, zodat het landschap en de voorzieningen onze inwoners uitnodigt om in te bewegen en toeristen om te verblijven in onze gemeente.

De Veenkoloniën zijn open, wat betekent dat we voorzichtig moeten zijn met het toestaan van nieuwe ontwikkelingen omdat ze van grote afstand te zien zijn en het landschap blijvend veranderen. Ontwikkelingen in het buitengebied moeten aansluiten bij de kernwaarden van onze gemeente en landschappelijk goed in te passen zijn, anders staan we ze in principe niet toe. Voor duurzame opwek van energie volgen we de afspraken uit de Regionale Energiestrategie (RES) Groningen. Dat betekent onder andere dat er geen ruimte is voor grote windmolens. De zandgronden kennen kleinschalige structuur waarin toekomstige ontwikkelingen moeten passen bij deze schaal en de kenmerken van het gebied.
De natuur in Nederland staat onder druk. Planten- en diersoorten verdwijnen, terwijl we natuur steeds belangrijker vinden. Onze gemeente wordt gewaardeerd om de hoeveelheid groen. Dit komt nadrukkelijk naar voren uit de enquête onder onze inwoners. Daarin geven zij aan dat een aantrekkelijke natuur en een groene omgeving uitnodigt om in te bewegen en te ontspannen. Natuur willen we net als het landschap en de cultuurhistorie zo goed mogelijk beleefbaar maken voor inwoners, bezoekers en toeristen. Als gemeente willen we de natuur, de biodiversiteit en het groen beschermen en versterken. In 7.2 is aangegeven hoe we omgaan met het groen in de openbare ruimte. Onze visie op de natuurontwikkeling binnen onze gemeentegrenzen staat weergegeven in 7.3. In 7.4 gaat in de vrijetijdseconomie en recreatie.


Een groene en uitnodigende openbare ruimte is belangrijk voor onze inwoners, van jong tot oud. Dit is nadrukkelijk naar voren gekomen in de enquête en de gastlessen die we op basisscholen gehouden hebben. Het uitgangspunt van ons als gemeente is dat groen bij elke ruimtelijke ontwikkeling een rol moet spelen vanaf het begin van elk planproces. Daarvoor maken we gebruik van vier bouwstenen:
Groen en identiteit – versterk het gemeentelijke karakter;
Groen en leefbaarheid – prettig wonen, recreëren en samenkomen, en een gezondere omgeving voor bewoners;
Groen en natuur – vergroot de biodiversiteit, verbinden en beschermen van groenzones (‘Groennetwerk Stadskanaal’), natuurvriendelijk groenbeheer en monitoring natuurlijke kwaliteit;
Groen en klimaat – verharding zoveel mogelijk vervangen voor groenelementen, water vasthouden in vijvers of op grasvelden, tijdens hete zomers zorgt groen voor verkoeling, groen voor verbetering van de luchtkwaliteit.
Groen krijgt een functie en waarde door hier in de openbare ruimte meer aandacht voor te hebben en te beheren aan de hand van de opgestelde bouwstenen. Door één of meerdere functies toe te kennen aan het groen worden de gebruiksmogelijkheden en -intensiteit vergroot en wordt de potentie van het groen meer benut.
Groenblauw: natuur voor iedereen
Wij willen als gemeente een actieve bijdrage leveren aan het vergroten van de ecologie en biodiversiteit en de verbinding tussen groen en blauw. Deze willen we versterken, omdat een gezond bodem- en watersysteem bijdraagt aan een aantrekkelijke natuur voor mensen, planten en dieren en nuttig is om water te bergen. Initiatieven door inwoners en bedrijven om groen aan te leggen in tuinen in plaats van tegels en het planten van inheemse bomen willen we meer gaan faciliteren. Meer groen en bomen draagt bij aan een betere biodiversiteit, zorgt voor meer schaduw en verkoeling, houdt water vast en slaat CO2 op.
Vanuit het Pagedal loopt een groenstructuur door het stedelijk gebied van Stadskanaal tot aan het centrum. Deze ‘groene long’ zorgt ervoor dat ook voor de inwoners die in het verstedelijkte gebied wonen openbaar groen altijd dichtbij is. De groene long houden we groen en daarin staan we geen uitbreiding van het bebouwd oppervlak toe, tenzij een uitbreiding op andere wijze kan worden gecompenseerd.
Uitgangspunten Groene Long en Groene Wig in Stadskanaal


Achteruitgang van de gebieden met natuur in onze gemeente willen we voorkomen. Daarom hebben we aandacht voor stilte- en donkertegebieden. Door gebieden met elkaar te verbinden willen we de natuurwaarden versterken. Onze gemeente heeft diverse natuurgebieden met ecologische waarden en een grote biodiversiteit, zoals het Eiken- en Vledderbos in Stadskanaal, het Horstenerbos in Musselkanaal, het voedselbos ten oosten van Onstwedde bij Ter Wupping, de Kanaalstreek (natuurgebied) en het beekdal van de Mussel Aa bij onder meer Ter Wupping. Wij kiezen hier bewust voor natuurbehoud: in deze gebieden staat de natuur op één en is geen extra ruimte voor woningbouw of bedrijvigheid. Dit is ook in lijn met provinciaal beleid. Voor het versterken en verbinden van het natuurnetwerk in de regio is in onze gemeente de Mussel Aa in beeld (zie afbeelding 22 met de visiekaart: Natuur, groen en recreatie):
Verbindingszone Mussel Aa:
Richting het zuiden zien we kansen voor het versterken en verbinden van onze natuur in het beekdal van de Mussel Aa met onder meer de Hondsrug. Een deel van dit beekdal is tussen Onstwedde en Sterenborg/Ter Wupping al ingericht, maar het riviertje loopt stroomopwaarts in gekanaliseerde vorm door vanaf de N366 tot aan Kopstukken bij Mussel. Een verbinding tussen de Mussel Aa en het kanaal, en eventueel oostelijker met het NNN-gebied, draagt bij aan de versterking van landschappelijke en natuurlijke waarden en de verbreding van het huidige NNN. Het hele NPLG-gebied Westerwolde (veel groter dan alleen het deel in Stadskanaal) is aangewezen als zoekgebied voor 280 hectare extra bos.
Het is in de eerste plaats een provinciale taak om de bovenstaande verbindingszone te realiseren. In ons ruimtelijke instrumentarium houden we hier rekening mee zodat er geen extra knelpunten ontstaan voor het realiseren van de verbindingszones. Als het actueel wordt, dan denken we als partner mee over de inrichting van de gebieden. Als gemeente zetten we ons in om deze verbinding te realiseren.
Natuurbegraven
Ook op andere manieren kijken we naar natuurontwikkeling met aandacht en waardering voor natuur en landschap. De toenemende vraag naar natuurbegraven is hier een voorbeeld van. Als gemeente willen we ruimte bieden aan de ontwikkeling van maximaal één natuurbegraafplaats door een privaatrechtelijk rechtspersoon. De groene verbindingszones aansluitend op de kernen zijn in beeld als mogelijke locatie. Naast de wettelijke eisen hebben we als gemeente een afwegingkader om overlast en conflicten met andere functies, zoals woningbouw en recreatie, zoveel mogelijk te voorkomen.
Biodiversiteit
Het ministerie van LNV heeft als doel gesteld dat het landelijk gebied 'groenblauw dooraderd' zal zijn in 2050. Dit betekent dat alle kleinere stukken bos, natuurvriendelijke oevers, kruidenrijke bermen, houtsingels en hagen en dergelijke tezamen 10% van het oppervlak van een gebied beslaan. In de Veenkoloniën ligt ook een opgave voor meer groenblauwe dooradering. De groenblauwe dooradering zorgt voor meer verbinding van natuurgebieden en versterking van de biodiversiteit. Voor de realisatie van deze opgave wordt eerst gekeken naar de gronden van de overheden en pas daarna naar realisatie op landbouwgrond.
Ook in de inrichting van openbaar groen binnen het bebouwde gebied verbinden we (natuurlijke) groenzones met elkaar door het aanplanten van bomen en laanbeplanting, zodat planten en dieren in verbinding staan en zich makkelijker kunnen verspreiden. In ons groenbeleid is opgenomen hoe we omgaan met maaien en snoeien van openbaar groen op een dusdanige manier dat dit geen negatieve impact heeft op de biodiversiteit. Ook maken we als gemeente geen gebruik van gewasbeschermingsmiddelen.
Zoals in 4.1 staat beschreven, richten we ons op het isoleren van woningen en andere gebouwen. Daarbij nemen we maatregelen om diersoorten te beschermen, zoals vleermuizen en gierzwaluwen. In samenwerking met de provincie stellen we een soortenmanagementplan (SMP) op. Hiermee krijgen we inzicht in welke soorten waar zitten en welke maatregelen nodig zijn om deze soorten te beschermen.
Klimaatadaptatie en water en bodem sturend
In 2018 zijn Nederlandse overheden in het Bestuursakkoord Klimaatadaptatie overeengekomen om zich voor te bereiden op de gevolgen van klimaatverandering. De ambitie is om Nederland tegen 2050 klimaatbestendig en water-robuust te maken. Dit akkoord is nationaal uitgewerkt in het Deltaprogramma Ruimtelijke Adaptatie (DPRA), een gezamenlijk initiatief van gemeenten, waterschappen, provincies en het Rijk. In de regio werken we samen met andere overheden aan de klimaatopgaven. De kwetsbaarheden zijn onderzocht via klimaatstresstesten en risicodialogen. Op basis hiervan zijn regionale ambities vastgesteld en wordt gewerkt aan een regionale uitvoeringsagenda. In hoofdstuk 4 staat meer beschreven over klimaat- adaptatie en in hoofdstuk 6 over het langer vasthouden van water.
De vrijetijdseconomie met recreatie en toerisme is van belang voor onze gemeente en de regio. Het levert werkgelegenheid op, zorgt er verder voor dat voorzieningen in stand blijven en draagt bij aan een positief imago. Wij zetten in op het realiseren, in stand houden en verbeteren van onze infrastructuur en routenetwerken. Hieronder vallen fiets- en wandelroutes door de natuur en vaarroutes over water met bijbehorende voorzieningen en faciliteiten. Zoals benoemd in hoofdstuk 5 willen we op dit thema meer ruimte bieden aan de ontwikkeling van Toeristische Overstappunten (TOP’s). Daarom willen we meer gaan samenwerken in en met de regio op onder meer het gebied van regiomarketing en willen wij als gemeente goede voorwaarden scheppen om samen met de markt het aantal overnachtingen en overnachtingslocaties te vergroten. Dit geeft een goede impuls aan onze horeca, cultuur, recreatie, winkels en verder amusement. Deze sectoren willen we clusteren, zodat deze elkaar kunnen versterken en we herkenbare en levendige centra hebben. Dit doen we onder meer door de centra van Stadskanaal en Musselkanaal te verbinden met het kanaal en spoordok in Musselkanaal. Theater Geert Teis is hierin belangrijk en blijft een belangrijke culturele trekpleister in onze gemeente.
In de regio willen we het aantal overnachtingen in 2030 verdubbelen ten opzichte van de periode 2015-2019. Op dit moment is er in de regio geen tekort aan overnachtingsmogelijkheden, maar bij verdere groei is ook een groei van het aantal bedden gewenst. Initiatief voor het realiseren van aanvullende overnachtingscapaciteit ligt bij de markt. Wij willen de mogelijkheden gaan verruimen voor het starten of uitbreiden van bijvoorbeeld bed & breakfasts, kleinere campings en hotels. Tegelijkertijd kiezen we ervoor om geen nieuwe grootschalige recreatie, zoals pretparken en bungalowparken, toe te laten buiten de bestaande planologische mogelijkheden voor grootschalige recreatie aan de Kettingwijk. Daar staan we ook geen andere ruimtelijke bestemmingen toe. Ons landelijk gebied is vooral geschikt voor kleinschalige recreatie en overnachting, wat goed aansluit bij de kernkwaliteiten en waarvoor we de mogelijkheden willen verruimen.

Onze natuur moet meer kunnen worden beleefd, zowel op land als water. Dit geldt ook voor bijvoorbeeld Smeerling, dat veel toeristen trekt. Vanuit zowel de enquête als de gastlessen op de basisscholen blijkt dat onder onze inwoners en bezoekers er behoefte is om te recreëren of bewegen in de natuur, maar ook met voldoende zitmogelijkheden langs routes en in de natuur. Dit moet voor iedereen aantrekkelijk en toegankelijk zijn. Dit zorgt voor ontspanning en draagt bij aan fysieke en mentale gezondheid. Beeklandschappen willen we aantrekkelijker maken, zodat we meer kleinschalige recreatiemogelijkheden hebben op en langs het water. Bij de voorzieningen voor fietsers, wandelaars en vaarrecreanten houden we rekening met de natuurwaarden, zodat deze geen (grote) negatieve gevolgen ondervinden van recreatie activiteiten en voorzieningen. In hoofdstuk 5 is al aangegeven dat fiets- en wandelpaden prioriteit krijgen in het onderhoud. Voor de langere termijn gaan we het fietsnetwerk nog uitbreiden met enkele ontbrekende schakels.
Tot slot is er in onze gemeente een vliegveld, Vliegveld Stadskanaal. Deze heeft nu en behoudt in de toekomst een recreatieve functie.
Het is één van onze kerntaken om veiligheidsrisico’s voor onze inwoners te beperken en onze leefomgeving veilig in te richten. Paragraaf 8.2 beschrijft hoe we als gemeente invulling geven aan onze rol ten aanzien van omgevingsveiligheid en sociale veiligheid. In 8.3 behandelen we de (milieu)aspecten voor een gezonde leefomgeving.
Op het gebied van gezondheid is ons streven: beter voorkomen, dan genezen. Ten aanzien van zowel fysieke als mentale gezondheid hebben we een opgave, omdat de gezondheidscijfers in Stadskanaal ver onder het landelijk gemiddelde scoren. In 8.4 beschrijven wij wat we de komende jaren preventief gaan doen om gezondheidsproblemen te verminderen en mensen te ondersteunen om zoveel mogelijk jaren in goede gezondheid te leven.


Omgevingsveiligheid
Omgevingsveiligheid (eerder bekend onder de naam externe veiligheid) gaat over de risico’s voor de leefomgeving als gevolg van een ongeval bij de opslag, het transport en de productie van gevaarlijke stoffen. Het beperken van mogelijke effecten van gevaarlijke activiteiten voor de omgeving staat hierbij centraal. Risicobronnen zijn onder andere autosnelwegen, spoorlijnen, vaarwegen en buisleidingen voor het transport van gevaarlijke stoffen. Ook bedrijven die grote hoeveelheden gevaarlijke stoffen gebruiken of produceren vallen hieronder. Voor inwoners is het bijna niet mogelijk om zichzelf tegen deze risico’s te beschermen en daarom is dit een belangrijke overheidstaak.
Bij omgevingsveiligheid wordt gesproken over aandachtsgebieden. Aandachtsgebieden zijn gebieden die zonder aanvullende maatregelen onvoldoende beschermd zijn tegen de gevaren die in de omgeving kunnen optreden. Dat betekent dat zich, bij een ongeval levensbedreigende situaties voor personen in gebouwen kunnen voordoen.
Een onderscheid wordt gemaakt tussen drie soorten gevaren voor de omgeving:
In het Omgevingsplan staan de aandachtsgebieden voor de omgevingsveiligheid weergegeven. voor maatregelen ten aanzien van de gevaren van brand en explosie kan de gemeente voorschriftengebieden aanwijzen. Voor nieuwe en bestaande zeer kwetsbare gebouwen is het aanwijzen van een voorschriftengebied verplicht.
In ons ruimtelijk instrumentarium houden we rekening met de aandachtsgebieden en gaan zorgvuldig om met eventueel nieuwe (kwetsbare) functies binnen de veiligheidcontouren.
Als gemeente willen we geen opslag of verwerking van kernafval binnen onze gemeentegrenzen.

Sociale veiligheid
Ontmoetingsplekken en omkijken naar elkaar zijn van belang, van jong tot oud en onderdeel van het noaberschap. Dit kwam ook naar voren tijdens de verschillende werksessies met stakeholders, uit de enquête en de gastlessen op basisscholen. Sociale veiligheid is essentieel voor een gemeente waarin iedereen zich thuis kan voelen. Onder de term sociale veiligheid verstaan wij de bescherming of het zich beschermd voelen tegen gevaar dat veroorzaakt wordt door of dreigt van de kant van menselijk handelen in de openbare ruimte. Over het algemeen kan worden gesteld dat onze gemeente ten aanzien van sociale veiligheid iets slechter scoort dan het provinciaal gemiddelde. Dit komt naar voren uit de jaarlijkse Veiligheidsmonitor van het CBS. Het veiligheidsgevoel onder inwoners wordt getoetst aan drie parameters:
1. Onveiligheidsgevoelens: meting van hoe onveilig mensen zich voelen in de buurt;
2. Onveiligheidsperceptie: meting van hoe de omvang van criminaliteit wordt ervaren;
3. Vermijdingsgedrag: meting van hoe vaak mensen het eigen gedrag aanpassen aan situaties in de buurt in verband met onveiligheid.
Door sociale ontmoetingsplekken in wijken te behouden, aanwezig te zijn in de wijken en op wijkniveau samen te werken met partnerorganisaties, krijgen we zicht op de plekken die als onveilig worden ervaren. In samenwerking kan dan worden bepaald of en welke maatregelen nodig zijn, zoals betere straatverlichting of handhavend optreden.
Ook in onze gemeente is ondermijning een serieus maatschappelijk probleem. Bij ondermijning maken criminelen gebruik van legale bedrijven en diensten. Hierdoor raken boven- en onderwereld met elkaar verweven, waardoor normen vervagen. De criminaliteit zorgt voor nadelige maatschappelijke effecten, zowel sociale, economische als morele effecten. Als gemeente werken we samen met partners om ondermijning tegen te gaan. De samenwerking spitst zich toe op een viertal aspecten:
Verder verbeteren van de informatiepositie zodat we beschikken over een actueel ondermijningsbeeld;
Vergroten van de weerbaarheid: bestuurlijk, ambtelijk en van inwoners en ondernemers;
Intensiveren van de lokale en regionale aanpak, omdat criminele activiteiten gemeentegrenzen overschrijden en uniforme regels en beleidskaders helpen bij de bestrijding;
Verminderen van georganiseerde criminaliteit met behulp van bestuurlijke, strafrechtelijke en fiscale instrumenten.
Vanuit de gemeente hebben we contact met eigenaren van vrijkomende agrarische bebouwing en (leegstaande) gebouwen in het buitengebied. Het doel is deze mensen weerbaar te maken tegen de verleidingen van criminele activiteiten, eventueel te horen wat er speelt en te laten zien dat de overheid oog heeft voor de situatie. Daarnaast faciliteren we, zoals in 6.3 beschreven, de transformatie van leegstaande en/of verpauperde panden en vrijkomende (agrarische) bebouwing. Leegstand leidt namelijk vaker tot het ontplooien van illegale activiteiten.
Luchtkwaliteit
De luchtkwaliteit voldoet overal aan de wettelijk grenswaarden voor fijnstof en stikstofdioxide. De verwachting is dat de wettelijke grenswaarden worden aangescherpt, maar ook na de aanscherping valt de luchtkwaliteit in Stadskanaal naar verwachting binnen de voorgestelde wettelijke kaders. Naast de wettelijke grenswaarden zijn er ook advieswaarden van de WHO ten aanzien van de luchtkwaliteit die uitgaan van wat er nodig is voor een gezonde leefomgeving. De bebouwde kern van Stadskanaal voldoet niet aan de WHO-grenswaarde ten aanzien van fijnstof. Op en direct langs de N366 is de hoeveelheid stikstofdioxide boven de grenswaarde van de WHO. Dit komt door de uitstoot van het verkeer op de weg.
De verwachting is dat door technologische ontwikkelingen de luchtkwaliteit richting 2040 verder verbetert. We zien toe op de geldende wet- en regelgeving, monitoren de luchtkwaliteit en onderzoeken bij achteruitgang van de luchtkwaliteit welke maatregelen effectief zijn om de luchtkwaliteit (op specifieke plaatsen) te verbeteren.
Geluidshinder
Geluiden in de omgeving kunnen een grote bijdrage leveren aan de beleving van de leefomgeving en het woonplezier. Te veel geluid is vaak onwenselijk of zelfs schadelijk. Gezondheidseffecten als slaapverstoring, gehoorschade, risico op hart- en vaatziekten of verminderd prestatievermogen en leerproblemen bij kinderen willen we uiteraard zoveel mogelijk voorkomen.
Een belangrijke basis voor de ruimtelijke afweging in het kader van het aspect geluid is vastgelegd in de Omgevingswet. Deze wet biedt geluidgevoelige gebouwen (zoals woningen) bescherming tegen geluidhinder van wegverkeerlawaai, spoorweglawaai en industrielawaai. Als het geluid bij nieuwe geluidgevoelige gebouwen lager is of gelijk aan de standaardwaarde, zijn er vanuit het aspect geluid bezien geen bezwaren. Als de standaardwaarde wordt overschreden, kan dat alleen als:
Het aantoonbaar niet mogelijk is om geluidbeperkende maatregelen te treffen, bijvoorbeeld vanwege technische bezwaren of te hoge kosten; en
De grenswaarde niet wordt overschreden; en
Gemotiveerd kan worden dat sprake is van een aanvaardbaar woon- en leefklimaat, bijvoorbeeld doordat de nieuwe woning ook beschikt over een geluidluwe gevel waar het geluid wél aan de standaardwaarde voldoet en aan die zijde waar de geluidgevoelige ruimtes (woon- en slaapkamer) zijn gesitueerd. Veel gemeenten hebben lokale regels waarin is opgenomen in welke situaties het woon- en leefklimaat als aanvaardbaar wordt beoordeeld. We werken nadere regels uit met onder andere geluidproductieplafonds (GPP’s), tot die tijd geldt de Wet geluidhinder.
Voor bestaande geluidgevoelige gebouwen of gebieden geldt dat het geluid in beginsel niet mag toenemen als gevolg van de wijziging van een weg of spoorweg. Daarnaast hebben gemeenten en provincies een monitoringsverplichting, waarmee ervoor wordt gezorgd dat het geluid niet zomaar hoger kan worden dan het nu al is. Onder meer Bedrijvenpark Stadskanaal heeft een geluidszone (zie afbeelding 27).

Belangrijke bronnen van geluidshinder zijn:
1. Gemeentelijke en provinciale wegen. In Stadskanaal zijn er nu geen structurele problemen ten aanzien van verkeerslawaai van deze wegen;
2. Railverkeer. Lawaai van spoor wordt actueel nu Stadskanaal een dagelijkse spoorverbinding krijgt met Groningen en later ook Emmen. We zetten ons in om de spoorlijn zover mogelijk van de bebouwing aan te leggen;
3. Bedrijvenpark Stadskanaal is een industrieterrein, waarvoor op grond van de Wet geluidhinder een geluidzone is vastgesteld. Deze zone en alle regels die daar onder de Wet geluidhinder bij hoorden, blijven gelden tot ons toekomstige beleid ten aanzien van geluid is vastgesteld.
In onze gemeente hebben we twee specifieke geluidsbronnen:
1. Een lawaaisportcentrum, met een bijbehorende geluidzone bestaande uit een motorcrossterrein en een kartbaan. Rondom het regionaal motorsportcentrum is een geluidzone aanwezig (zie afbeelding 28);
2. Vliegveld Stadskanaal, een zogeheten MLA-vliegveld (Micro Light Aircraft, 2-persoons vliegtuigen met een gewicht tot 450 kg).

Voor het lawaaisportcentrum en vliegveld Stadskanaal zijn geen aanvullend regels nodig.
Geurhinder
Er zijn een aantal (bekende) bronnen in de gemeente waar in meer of mindere mate sprake is van geurhinder. Dit zijn:
Een biovergister nabij de bebouwde kom aan de Van Boekerenweg. Deze biovergister is vanwege een warmteleiding naar het Refaja Ziekenhuis Stadskanaal op korte afstand gesitueerd van woonbebouwing. Hierdoor is een situatie ontstaan die aandacht behoeft voor wat betreft de geursituatie;
Op bedrijventerrein Dideldom is een grote broodfabriek gevestigd met een geuremissie. Door de aard van de geur worden er geen geurklachten ontvangen vanuit de omgeving;
Op het industrieterrein Vleddermond, onderdeel van Bedrijvenpark Stadskanaal, is sinds jaren een composteringsbedrijf gevestigd. De geuremissie van dit bedrijf is vergund en daarbij getoetst in overeenstemming met de bijzondere regeling van de Nederlandse emissie Richtlijn (versie 2009);
Verder staat er in Westerwolde op Bedrijventerrein Zuid-Groningen een grote fabriek waar aardappelzetmeel en aardappeleiwit geproduceerd wordt. De grote berekende geurcontouren blijken niet realistisch. Hetzelfde geldt voor Ten Kate Vetten, een fabrikant van natuurlijke vetten en proteïnes. Er zijn geen gevallen van ernstige geurhinder bekend;
Afvalverwerkers, hierover zijn meermaals klachten binnengekomen met betrekking tot geuroverlast;
In de gemeente Stadskanaal bevindt zich een aantal veehouderijen. Veehouderijen zijn mogelijke bronnen voor geurhinder en daarom gelden voor veehouderijen regels met betrekking tot aan te houden afstanden tot, voor geurhinder gevoelige, objecten zoals woningen. De gemeente Stadskanaal is gelegen binnen een niet-concentratiegebied zoals bedoeld in de wet geurhinder en veehouderij. Voor geurgevoelige objecten die onderdeel uitmaken van een andere veehouderij gelden niet de maximale geurbelastingen, maar de minimale afstanden van 100 meter binnen de bebouwde kom en 50 meter buiten de bebouwde ko
Aangezien er geen structurele problemen ten aanzien van geurhinder zijn, stellen we hiervoor geen gemeentelijk beleid op maar volgen landelijke en provinciale wet- en regelgeving. Wel gaan we verkennen welke maatregelen kunnen worden genomen om de geurhinder bij de biovergister terug te dringen.
Als gemeente Stadskanaal werken we toe naar een gezonde generatie in 2040. Daarom zetten wij actief in op een lokale aanpak voor de gezondheid van onze inwoners. Ook maken wij ons sterk voor het openhouden van het Refaja Ziekenhuis Stadskanaal, een nadrukkelijke wens van onze inwoners. We sluiten hierbij aan op twee landelijke akkoorden: het Integraal Zorgakkoord (IZA) en het Gezond en Actief Leven Akkoord (GALA). Beide akkoorden vormen de basis voor onze lokale aanpak op het gebied van fysieke en mentale gezondheid, preventie en een gezonde sport-, beweeg- en leefomgeving. Ook willen we dat de gezondheidszorg bereikbaar en toereikend is en blijft voor onze inwoners en voor de regio.
Gezondheidspreventie
In ons lokale aanpak zetten we in de eerste plaats in op preventie. We willen voorzien in een sterke basisinfrastructuur voor iedere inwoner om een gezond en gelukkig leven te kunnen leiden. Wij doen dit samen met onze inwoners, maatschappelijke partners en zorginstellingen.
Daaronder vallen diverse onderwerpen, zoals het terugdringen van gezondheidsachterstanden door het stimuleren van gezond gedrag, het realiseren van een gezonde fysieke leefomgeving die uitdaagt tot een gezonde levensstijl en uitnodigt tot bewegen en ontmoeten. Ook het versterken van de sociale basis in alle wijken, een goede samenwerking tussen professionele en informele zorg, het versterken van de mentale weerbaarheid, inzet op vitaal oud worden en op onderliggende determinanten van een slechte gezondheid, zoals armoede en laaggeletterdheid behoren hiertoe. Voor al deze opgaven werken we samen met partijen uit diverse domeinen en in een regionale preventie-infrastructuur.
Sport en bewegen
Wij willen onze inwoners een gezonde fysieke leefomgeving bieden die uitdaagt tot een gezonde levensstijl en uitnodigt tot bewegen en ontmoeten. Uit de enquête die we hebben gehouden onder onze inwoners blijkt ook dat zij dit een belangrijk thema vinden. Wij willen dit stimuleren door goede informatievoorziening over voeding en gezondheid en het faciliteren van sport en bewegen. Voldoende beweging verlaagt het risico op chronische ziekten als diabetes, hart- en vaatziekten, depressieve symptomen en, bij voornamelijk ouderen, botbreuken. In 2022 voldeed in Stadskanaal slechts 40% van de volwassenen aan de beweegrichtlijn en 16% van de jongeren. Als gemeente bieden we een breed sportaanbod en hebben speciale interventies om zoveel mogelijk mensen uit alle doelgroepen meer aan het bewegen te krijgen. In hoofdstuk 4 staat al dat we inzetten op een openbare ruimte die bewegen stimuleert: goede wandel- en fietspaden en beweegparken met rust- en watertappunten. Een beweegpark stimuleert diverse doelgroepen om te bewegen, waarmee het meer bevat dan alleen een speelplaats of sportfaciliteiten. Het aantal beweegparken willen we uitbreiden van twee naar drie en bij elke herinrichting nemen we een beweegpark voor diverse doelgroepen in overweging.

We zetten ons in het bijzonder in voor jongeren en ouderen. Kennismaken met verschillende sporten, voldoende beweging, goede motorische ontwikkeling en sociale interactie zijn belangrijk voor onze jongste inwoners. Dit begint al op jonge leeftijd, terwijl sporten voor jongeren op latere leeftijd ook belangrijk is voor de sociale contacten. Bij ouderen richten we ons op vitaal oud zijn, gecombineerd met een goed sociaal leven. Hierbij zetten we in op activiteiten die de zelfredzaamheid bevorderen, ontmoeten en bewegen. Als gemeente faciliteren we sport- en beweeglocaties en sportverenigingen door te zorgen voor goede accommodaties en verstrekken we subsidies voor breedtesport en sport voor specifieke doelgroepen.
Gezonde voeding
Naast voldoende ruimte tot bewegen, is gezonde voeding belangrijk om de kans op overgewicht en (chronische) ziekten te verminderen. In zowel de enquête onder onze inwoners als bij de basisschoolleerlingen kwam naar voren dat het aanbod van gezonde voeding belangrijk is. Met ketenpartners zetten we in op bewustwording en kennis van een gezonde leefstijl. Daarnaast willen we zorgen dat het aanbod van ongezonde voeding in de dagelijkse leefomgeving wordt verminderd. We zetten onder meer in op voorlichtingscampagnes over gezond leven, aanbod van goed en gezond voedsel in openbare gelegenheden en op (of in de buurt van) kinderopvang, scholen, (sport)verenigingen en bij werkgevers en onze voedselbank.
Mentale gezondheid
Een goede mentale gezondheid geeft meer kansen op succesvolle participatie in de samenleving en op de arbeidsmarkt. Als gemeente bieden we laagdrempelige openbare voorzieningen voor inloop en dagbesteding, zetten we in op voorlichting voor ouders en verzorgers, bieden we ontmoetingsplekken voor jongeren en stimuleren we activiteiten om eenzaamheid tegen te gaan. Vanuit het sociale domein werken we samen met huisartsen om onderliggende problemen (schulden, eenzaamheid, ongeletterdheid, armoede et cetera) aan te pakken.
Roken en vapen, (overmatig) alcohol- en drugsgebruik passen niet bij een gezonde leefstijl en verhogen de kans op tal van lichamelijke en geestelijke ziektes. We richten ons op het verminderen van de plaatsen waar alcohol wordt aangeboden. Openbare voorzieningen worden rookvrij en we kijken naar diverse locaties of hier maatregelen kunnen worden genomen om in eerste instantie jongeren weerbaar maken tegen de verleidingen.
Sociale basis
In de enquête kwam vanuit diverse doelgroepen naar voren dat sociale ontmoetingsplekken een belangrijk thema zijn voor onze inwoners. Inwoners van Stadskanaal hechten waarde aan het verenigingsleven en kijken naar elkaar om, maar ervaren ook een terugloop in activiteiten en toenemende kwetsbaarheid en eenzaamheid. Als gemeente vinden wij dit noaberschap ook belangrijk en gaan daarom inzetten op een sterke sociale basis voor iedereen: sociale samenhang bij en met elkaar en laagdrempelige toegankelijke voorzieningen waar mensen op elkaar kunnen terugvallen en meedoen in de samenleving. Daarom willen wij als gemeente kijken hoe we, samen met het verenigingsleven, kunnen bijdragen aan een “huis van de wijk” passend bij wat de wijk nodig heeft, een plek waar men elkaar kan ontmoeten, ondersteunen en activiteiten kan ondernemen.
Zorgaanbod
We zetten ons in om eerstelijns zorg (huisarts, apotheek, wijkverpleging, paramedici en eventueel sociale domein) zo veel als mogelijk te concentreren in multifunctionele gezondheidscentra op locaties die centraal gelegen zijn in het verzorgingsgebied van de huisartsen en goed bereikbaar zijn met het openbaar vervoer. Zo is deze zorg voor inwoners onder één dak en is de afstemming tussen zorgverleners beter en kan ook de samenwerking tussen het medisch en sociaal domein (de zogenaamde ketenafspraken) beter vorm krijgen. Daarnaast zetten we ons in voor het behoud van de bestaande ziekenhuiszorg in het Refaja Ziekenhuis Stadskanaal met een brede polikliniek voor de voor- en nazorg door alle specialismes, geplande laag risico-operaties, een basisspoedpost en een specialistisch centrum voor oogheelkunde.
Ouderenzorg
In de gemeente Stadskanaal is het aantal thuiswonende ouderen ouder dan 65 jaar dat kwetsbaar is 22%. Landelijk ligt dit percentage lager: 17%. Als gevolg van de vergrijzing en het langer thuis wonen van ouderen zal het beroep op de eerste lijns-medische zorg (huisarts, wijkverpleging), Welzijn, Wmo en informele zorg verder toenemen. Dit vereist een goed samenspel tussen alle partijen. We zetten in op het bereikbaar houden van de zorg, op het realiseren van zorgzame wijken, het versterken van mantelzorgondersteuning en een toereikend aantal zorggeschikte woningen.
Het opstellen van deze omgevingsvisie is gebeurd na een uitgebreid traject bestaande uit vijf verschillende fasen:
1) Voorbereiding en projectstart;
2) Kernkwaliteiten en opgaven richting 2040;
3) Ruimtelijke scenario’s;
4) Ruimtelijke dilemma’s;
5) Ruimtelijke keuzes en opstellen van de omgevingsvisie.

Per fase zijn verschillende activiteiten uitgevoerd die de basis hebben gevormd voor de daaropvolgende fase en uiteindelijk tot de omgevingsvisie, zoals die nu voorligt. De tabel in hoofdstuk 9.2 geeft weer welke activiteiten hebben plaatsgevonden. In het participatieplan (bijlage 1) staat een uitgebreide beschrijving van het hele participatieproces. In paragraaf 9.3 en 9.4 kijken we door naar het vervolg en het werken met deze omgevingsvisie. 9.5 beschrijft de beleidscyclus die we volgen om de visie periodiek aan te scherpen.


In elke projectfase hebben diverse activiteiten plaatsgevonden met het projectteam, het college van B&W, de gemeenteraad en professionele en maatschappelijke stakeholders. In onderstaand overzicht is per activiteit weergegeven wat de inhoud van iedere activiteit was, welke betrokkenen hierbij aanwezig waren en welke rol zij vervulden en wanneer dit plaatsvond.



Waarom een OER voor Stadskanaal?
Deze omgevingsvisie beschrijft onze ambities richting 2040 met duidelijke ruimtelijke keuzes. De Omgevingswet schrijft voor in welke gevallen voor een plan of programma de procedure voor de milieueffectrapportage (mer) doorlopen moet worden. Hiervoor gelden twee sporen:
Het plan of programma is kaderstellend;
Voor het plan of programma is een passende beoordeling nodig.
De wet beschrijft wanneer een plan of programma kaderstellend is, dit is het geval wanneer:
Het plan of programma voldoende gedetailleerde regels bevat over de inhoud, voorbereiding en (praktische) uitvoering van projecten;
Het plan of programma regels bevat die handelen over ligging, aard, omvang en gebruiksvoorwaarden van projecten; die regels moeten van belang zijn voor mogelijk optredende milieugevolgen.
Voor puur indicatieve plannen geldt dat deze niet als kaderstellend gezien wordt. Omdat deze omgevingsvisie kaderstellend is, is voor Stadskanaal de mer-procedure doorlopen. Het eindproduct van deze procedure is in het geval van een omgevingsvisie en omgevingseffectrapportage (OER)
Significante negatieve effecten op instandhoudingsdoelen van Natura-2000-gebieden kunnen op voorhand niet worden uitgesloten en daarom is er een ‘passende beoordeling’ opgesteld en verwerkt in de OER.
In het OER worden, naast de traditionele milieuthema’s, ook economische en sociale thema’s beoordeeld voor de beleidsuitspraken in de omgevingsvisie. Op basis van de effectbeoordeling van de beleidsuitspraken is de omgevingsvisie aangescherpt en zijn aanbevelingen gedaan voor vervolgbesluiten. Het OER (zie bijlage 2) wordt tegelijk met de Ontwerp Omgevingsvisie ter inzage gelegd.
Doorlopen stappen in de mer-procedure
Opstellen en delen kennisgeving voornemen:[5]het kennisgeving voornemen is opgesteld met daarin de stappen van een OER, het onderzoek en relatie met de omgevingsvisie. Deze is gedeeld met meerdere stakeholders;
Opstellen beoordelingskader: het beoordelingskader vormt de basis voor de foto van de leefomgeving en de effectbeoordeling. De beoordelingsaspecten in het beoordelingskader zijn de belangrijkste graadmeters voor de kwaliteit van de gemeente Stadskanaal;
Foto van de leefomgeving: met behulp van het beoordelingskader is een ‘foto’ van Stadskanaal gemaakt waarin de huidige situatie en autonome ontwikkelingen (vastgesteld) voor elk beoordelingsaspect in beeld zijn gebracht;
Effectbeoordeling: de effectbeoordeling van de omgevingsvisie is gedaan op basis van de beleidsuitspraken die in de visie staan. Voor elk beoordelingsaspect is aangegeven of er kansen zijn op positieve effecten of risico’s op negatieve effecten;
Passende beoordeling: dit is beschrijving van het effect van de beleidsuitspraken in de visie op de omliggende Natura 2000-gebieden;
Het OER: in het OER worden alle stappen die zijn gezet in het kader van de mer-procedure bijeen gevoegd. Er is ook een analyse gedaan of alle plannen in de ruimte passen en of de beleidsuitspraken bijdragen aan het halen van de ambities in de omgevingsvisie.
Deze stappen hebben geholpen de visie aan te scherpen. De uitwerking hiervan staat in bijlage 2
[5] Normaliter vormt de Notitie Reikwijdte en Detailniveau (NRD) het officiële startpunt van de mer-procedure. Omdat de gemeente Stadskanaal al een eind op weg was met het uitwerken van de Omgevingsvisie toe het OER-proces begon, bleek het opstellen van de NRD achterhaald.
Onze omgevingsvisie legt de toekomstplannen voor 2040 van onze gemeente vast. De visie vertelt de hoofdlijnen van het beleid en de ontwikkelingen. De omgevingsvisie biedt houvast voor het koesteren van onze kernkwaliteiten en beschrijft hoe we omgaan met onze opgaven. De ontwikkelrichtingen uit de omgevingsvisie helpt ons om de balans te vinden tussen het gebruiken en beschermen van de leefomgeving.
Omdat de omgevingsvisie een hoog schaalniveau heeft, kunnen we de kernkwaliteiten, opgaven en ambities goed met elkaar combineren. Maar, als we de ambities uit de omgevingsvisie concreter gaan uitwerken, dan kan het duidelijk worden op welke plekken het oplossen van opgaven met elkaar schuurt. Hierbij is het leidende principe dat nieuwe initiatieven en projecten niet ten kosten mogen gaan van onze huidige, gemeentelijke kernkwaliteiten. Een kleine plaatselijke afname van een kernkwaliteit kan geoorloofd zijn als we hiermee bijdragen aan een zwaarwegend maatschappelijk belang. Deze afweging is in elke situatie anders en zullen we dus per geval beoordelen.
Het ontwikkelen van onze leefomgeving gaat dus verder dan deze omgevingsvisie. Het is daarom goed om te kijken hoe de omgevingsvisie straks doorwerkt in ander beleid. Hoe kan een initiatief straks tot stand komen? Wie waarborgt de kwaliteit? Hoe werken we aan onze ontwikkelrichtingen? De Omgevingswet biedt verschillende instrumenten om uitvoering aan de omgevingsvisie te geven. Voor de juiste inzet van de instrumenten is het van belang stil te staan bij de rol die we als gemeente hierin willen en kunnen vervullen, dit noemen we de ‘rolverdeling’ of ‘sturingsfilosofie’.
Rolverdeling en sturingsfilosofie
De sturingsfilosofie gaat over de rolverdeling tussen de gemeente en de samenleving. Deze is de afgelopen jaren veranderd. In onze complexe en snel veranderende samenleving zijn inwoners steeds vaker goed geïnformeerd en betrokken. Visies en plannen zijn niet langer een mededeling, maar ook een uitnodiging om samen te werken en mee te denken. Als gemeente zoeken we naar de juiste balans tussen hoe we initiatieven kunnen ondersteunen en hoe we de kwaliteit van onze leefomgeving waarborgen.

In het schema in afbeelding 32 benoemen we vier rollen die we als gemeente kunnen aannemen. In elke rol gaan we anders om met de wijze waarop we initiatieven sturen of ondersteunen. Wij kunnen de nadruk leggen op het behalen van resultaten of op het creëren van randvoorwaarden. Ook maken we onderscheid in de betrokkenheid van de samenleving en de ambities van de gemeente.
Gemeente voert uit: Dit gaat bijvoorbeeld over de aanleg van fietspaden en het veilig inrichten van gemeentelijke wegen. Het realiseren van kwalitatief goed en voldoende openbaar groen en het nemen van klimaat adaptieve maatregelen in de openbare ruimte zijn ook voorbeelden van gemeente voert uit.
Gemeente leidt vanuit regels: Dit gaat om regels die worden opgenomen om bepaalde functies mogelijk te maken of te verbieden. Voorbeelden zijn op te stellen regels over geluid, maar ook het aanwijzen van woningbouwlocaties en het beschermen van de groene long van Stadskanaal. Regels worden uitgewerkt in het Omgevingsplan en verordeningen.
Gemeente werkt samen: Op tal van terreinen werken we als gemeente samen met andere overheden, bedrijven, organisaties en individuele inwoners. Voor het landelijk gebied zijn wij bijvoorbeeld op bepaalde aspecten zoals grondwaterstanden en herinrichting een stakeholder. Ten aanzien van de ontwikkelingen rond station Stadskanaal en de campus werken we samen met tal van andere partijen om deze ontwikkelingen te realiseren.
Gemeente ondersteunt en faciliteert: Wij ondersteunen en faciliteren onze inwoners bijvoorbeeld bij het verduurzamen van hun woningen en tuinen. Dit kan met geld maar vaak ook met advies en ondersteuning bij subsidieaanvragen. Verder faciliteren we het toepassen van regels en denken mee om gewenste ontwikkelingen mogelijk te maken.
De Omgevingswet bestaat uit zes instrumenten:
Omgevingsvisie;
Omgevingsprogramma;
Omgevingsplan;
Algemene Rijksregels;
Omgevingsvergunningen;
Projectbesluit.
Hieronder vertellen we meer over het omgevingsprogramma. Informatie over de andere instrumenten is te lezen op Informatiepunt Leefomgeving.
De omgevingsvisie omvat alle thema’s die te maken hebben met de fysieke leefomgeving en is gericht op de lange termijn. Voor de uitvoering op korte en middellange termijn maken we omgevingsprogramma’s. Een omgevingsprogramma helpt bij het realiseren van de ontwikkelrichtingen uit de omgevingsvisie.
Wanneer maken we een omgevingsprogramma?
Wij maken een omgevingsprogramma als dit wettelijk verplicht is, of bij een meerjarige, belangrijke en/of ingewikkelde opgave. Bijvoorbeeld wanneer er vanuit de politiek prioriteit wordt gegeven aan een bepaald onderwerp, als er meerdere (type) maatregelen nodig zijn, of als de opgave een grote invloed heeft op de samenleving of onze fysieke leefomgeving.
Uitgangspunten
In aanvulling op de wettelijke vereisten worden de volgende uitgangspunten gehanteerd voor nieuwe omgevingsprogramma’s:
De omgevingsprogramma’s moeten aansluiten bij de omgevingsvisie. Dat houdt in dat het programma inhoud geeft aan de opgaven of ontwikkelrichtingen uit de omgevingsvisie en rekening houdt met de kernkwaliteiten van de gemeente;
De omgevingsprogramma’s maken de ontwikkelrichtingen uit de omgevingsvisie meer concreet door het stellen van (meetbare) doelen voor de korte- en middellange termijn. Door middel van monitoring van het programma controleren we of de doelen worden behaald;
De omgevingsprogramma’s kunnen verdieping en detaillering aanbrengen op een bepaald thema of gebied, maar moeten wel bijdragen aan de onderlinge afstemming met andere thema’s of gebieden;
De omgevingsprogramma’s worden gemaakt met behulp van participatie. Dit betekent dat het omgevingsprogramma een kans biedt aan de samenleving, andere overheden en marktpartijen om betrokken te zijn bij het maken van het programma en om vervolgens bij te dragen aan de doelenstellingen van het programma;
De omgevingsprogramma’s beschrijven wat de rolverdeling (sturingsfilosofie) is en wie het programma vaststelt (het college van burgemeesters en wethouders of de gemeenteraad).
Omgevingsprogramma’s gemeente Stadskanaal
De komende jaren werken aan programma’s waarbij we nu denken aan de volgende thema’s: Wonen, Landschap en Erfgoed (recreatie), Gezondheid, Warmteprogramma, Leefbaarheid en voorzieningen, Energie en duurzaamheid, Economie en bedrijvigheid en op termijn programma (duurzame) mobiliteit.
Beleidscyclus
De Omgevingswet maakt het verplicht om beleid te monitoren en te evalueren. Hiermee wordt duidelijk of de uitwerking van het beleid ook daadwerkelijk bijdraagt aan het verbeteren van de kwaliteit van de leefomgeving. Hiervoor maken we gebruik van een beleidscyclus:

Monitoring
In stap 4 van de beleidscyclus (Terugkoppeling) gebruiken we monitoring. Wij letten op of de ambities en doelen uit de omgevingsvisie worden behaald, dat noemen we monitoring. Dit helpt ons om goede en snelle besluiten te nemen. Monitoring doen we aan de hand van onze omgevingseffectrapportage (OER) en check op nieuw beleid. Ook de omgevingsprogramma’s helpen bij de monitoring. Een voorbeeld hiervan is een programma wonen. Hiermee monitoren we elk jaar hoeveel woningen en wat voor woningen er in elk dorp gerealiseerd zijn. Wij gebruiken zoveel mogelijk informatie die openbaar toegankelijk is. Een voorbeeld hiervan is de informatie die de GGD beschikbaar stelt. De GGD meet regelmatig de mening van inwoners op onderwerpen zoals gezondheid en veiligheid.
Actualisering van de omgevingsvisie
De omgevingsvisie is gericht op de lange termijn, met een stip op de horizon in 2040. Doordat de omgevingsvisie voornamelijk op hoofdlijnen een toekomstvisie schetst, zal deze niet snel verouderen. Wel is het mogelijk dat de monitoring of nieuwe ontwikkelingen vragen om een aanpassing van de omgevingsvisie.
Omdat we nu nog niet weten hoe de situatie in onze leefomgeving er over een enkele jaren uit ziet, kiezen we er als gemeente voor om onze omgevingsvisie zo actueel mogelijk te houden. Wij gaan uit van bijstelling van de omgevingsvisie eens per vier jaar, gelijktijdig met de instelling van een nieuwe gemeenteraad. Het actualiseren van de omgevingsvisie kan door bijvoorbeeld het toevoegen van een nieuwe ambitie of door het geven van duidelijkere kaders op een bepaald onderwerp. Hieruit kan ook volgen dat een programma moet worden aangepast. Of dat een nieuw programma moet worden opgestart.
Kopieer de link naar uw clipboard
https://zoek.officielebekendmakingen.nl/gmb-2025-212217.html
De hier aangeboden pdf-bestanden van het Staatsblad, Staatscourant, Tractatenblad, provinciaal blad, gemeenteblad, waterschapsblad en blad gemeenschappelijke regeling vormen de formele bekendmakingen in de zin van de Bekendmakingswet en de Rijkswet goedkeuring en bekendmaking verdragen voor zover ze na 1 juli 2009 zijn uitgegeven. Voor pdf-publicaties van vóór deze datum geldt dat alleen de in papieren vorm uitgegeven bladen formele status hebben; de hier aangeboden elektronische versies daarvan worden bij wijze van service aangeboden.