Grondprijsbrief 2025

 

 

Inleiding

In de raadsvergadering van 28 juni 2021 heeft de raad van de gemeente Noordenveld de Kadernota Grondprijzen 2022-2025 vastgesteld. In deze Kadernota is het beleidskader rondom de totstandkoming van grondprijzen opgenomen. De voorliggende grondprijsbrief is gebaseerd op de kadernota. Hierin worden zowel uitgangspunten voor het bepalen van grondprijzen en eventuele (grond)prijzen zelf opgenomen die voor dat jaar gelden. Deze prijzen en berekeningsmethodieken ervan komen voort uit marktontwikkelingen en het beleid in de kadernota. Het gaat om de volgende type grondprijzen:

  • Sociale woningbouw (huur/koop, grondgebonden/gestapeld)

  • Vrije sector woningbouw

  • Bedrijfskavels

  • Kantoren

  • Snippergroen

  • Nutsvoorzieningen

De verkoop van gronden in de overige categorieën (o.a. recreatie, winkels, horeca, grootschalige detailhandelsvestigingen, huisartsen, fysiotherapeuten, commerciële zorgeenheden, etc.) geldt dat dit te weinig voorkomt om een grondprijs voor vast te stellen. De grondprijzen worden in deze situaties bepaald door een onafhankelijke, deskundige en gecertificeerde taxateur in te schakelen.

Voor de grondprijzenbrief is dit jaar geen extern advies ingewonnen over de ontwikkeling van de woningmarkt en prijzen. Zoals vorig jaar al aangegeven gaan we bij het vaststellen van kavelprijzen bij nieuwe woningbouwprojecten opnieuw de grondprijzen berekenen. Hiermee spelen we beter in op de snel veranderende markt en kunnen we actuele grondprijzen vragen. Als we deze prijzen nu al zouden vastleggen lopen we minimaal een half jaar tot maximaal anderhalf jaar in marktontwikkeling. Een advies voor deze grondprijsbrief alleen zou daarmee dubbelop zijn. Wel hanteren we net als vorig jaar een vanaf-prijs voor individuele kavels in de vrije sector. Deze zal net als nieuwe projecten altijd geactualiseerd worden naar marktwaarde.

 

Actueel

  • De markt voor bestaande woningen trekt weer aan. Na een stabiel jaar met zelfs enige daling zijn de prijzen in 2024 weer hard aan het stijgen met in 2e kwartaal een stijging van 7,2%. Op de woningmarkt wordt nog steeds krapte ervaren en zou het aanbod bijna drie keer zo groot moeten zijn om van een “gezonde” markt te kunnen spreken. Ondanks deze krapte is in de nieuwbouwsector nog geen sterke stijging, maar het trekt wel aan. Waar op jaarbasis er nog een daling is van 0,2% te zien is, zijn de prijzen afgelopen kwartaal met 1,2% gestegen.

  • Naast de gestegen huizenprijzen zijn ook de bouwkosten gestegen. Waar dat voorgaande jaren vooral naar bouwmateriaal te herleiden was komt het nu vooral door hogere loonkosten. Sinds 1 januari is er een nieuwe CAO in de bouw van ruim 7% wat direct effect heeft op de bouwkosten.

  • De combinatie van licht stijgende verkoopprijzen en stijgende kosten heeft als effect dat de residuele waarde van grond nauwelijks toegenomen is. Hierbij is het wel belangrijk om te melden dat het hierbij gaat over landelijke gemiddelde van verschillende woningtypen. Bij dit gemiddelde is er sprake van dalende prijzen bij appartementen. Gezien in Noordenveld vooral grondgebonden woningen gerealiseerd worden zal de gemiddelde grondwaarde hier waarschijnlijk wel meer stijgen in tegenstelling tot het landelijk gemiddelde.

  • Hoopvol voor de nieuwbouwmarkt is dat het aantal nieuwbouwtransacties t.o.v. 2023 landelijk met 70% is gestegen. Ook het aantal verleende vergunningen is met 21% toegenomen. We zijn daarmee nog niet op het landelijk gewenste niveau van 100.000 nieuwe woningen per jaar, maar in combinatie met andere vormen van woningtoename (transformaties en woningsplitsing) komt dat doel in zicht.

  • Ten tijde van het opstellen van deze grondprijsbrief 2025 zijn alle beschikbare woningbouwkavels in de actuele projecten (Oosterveld fase 2 en 3 in Norg) verkocht of liggen ze ter ondertekening bij de notaris. Hierdoor zijn nu alle inkomsten van het project bekend.

  • Voor nieuwe projecten met kavels voor o.a. vrije sector woningbouw, projectbouw als particulier opdrachtgeverschap, wordt per project, op basis van de residuele methode , de grondprijs opnieuw bepaald. Dit leidt bij elk project tot een lijst met kavelprijzen die apart wordt vastgesteld.

 

Voorwaarden

  • Alle in deze oplegnotitie genoemde prijzen kennen prijspeil 01-1-2025 en zijn exclusief BTW en kosten koper, tenzij anders vermeld.

  • Genoemde (grond)prijzen zijn aangegeven in “vanaf” prijzen. Uitzondering hierop vormen de uitgifteprijzen voor sociale woningbouw, snippergroen en nutsvoorzieningen.

  • Deze Grondprijsbrief 2025 treedt in werking per 01-01-2025.

 

Grondprijzen woningbouw

De grondprijzen zijn met inachtneming van de kadernota grondprijzen 2022-2025 als volgt vastgesteld. Voor zover bedragen genoemd worden betreft het hier “vanaf”-prijzen:

 

1. Sociale woningbouw

Sociale huur-woning

factor

Grondprijs/ woning

Toelichting type

Max. kavel grootte

Meerprijs per m², boven genoemde kavelgrootte

Grondgebonden

100%

€ 20.000

 

180 m²

€ 105,00

Gestapeld

85%

€ 17.000

zonder gebouwd parkeren

 

 

Gestapeld

60%

€ 12.000

met gebouwd parkeren

 

 

Tabel 1: grondprijzen sociale woningbouw

 

2. Vrije sector woningbouw – Projectbouw

De gemeente hanteert marktconforme prijzen voor vrije sector-woningbouw. Voor projectgebonden bouw komen grondprijzen op basis van een residuele berekening tot stand.

 

3. Vrije sector woningbouw – Particulier opdrachtgeverschap

De gemeente hanteert marktconforme prijzen voor vrije sector-woningbouw.

Voor de projecten waar op dit moment nog geen kavels in de verkoop zijn, zullen de kavelprijzen pas bepaald worden als de kavels in de verkoop worden genomen. Voor Oosterveld zijn de marktprijzen van de kavels, conform de contractuele afspraken die gelden in het kader van de samenwerkingsovereenkomst en faseovereenkomst met de ontwikkelende partij, vastgesteld. De basis voor de prijsbepaling is echter marktconformiteit welke eventueel met behulp van een toets op staatsteun door een taxateur gecontroleerd wordt (contractueel overeengekomen).

De vrij op naam (V.O.N.) grondprijzen voor het lopende project Oosterveld fase 2 en 3 blijven gelijk aan de prijzen van 2024, omdat alle kavels inmiddels zijn verkocht of onder optie zijn.

 

4. Prijzen particulier opdrachtgeverschap

Voor 2025 is de volgende minimale prijzen voor vrije sectorkavels – particulier opdrachtgeverschap van toepassing:

Vanaf €179,- per m² excl. BTW

Er is in navolging op vorig jaar vastgehouden aan een vanaf-prijs. Om te kunnen blijven meebewegen met de toekomstige economische ontwikkelingen is het belangrijk de prijzen te kunnen actualiseren. De genoemde prijs wordt momenteel gezien als de onderkant van de markt. De woningmarkt lijkt weer stijgende en de gehanteerde prijzen om tot een residuele waarde te komen zijn slechts een momentopname. Daarom benadrukken we hierbij nogmaals de stelregel dat de gemeente Noordenveld marktconforme prijzen hanteert, welke per project afzonderlijk worden bepaald. Het kan daarom voorkomen dat deze prijzen buiten een eerder verwacht bandbreedte vallen. Om dit te voorkomen en bij te kunnen sturen hanteren we een vanaf-prijs en geen bandbreedte meer. Het college van burgemeester en wethouders is bevoegd om de grondprijzen vast te stellen, mits passend in het door de gemeenteraad vastgesteld kader. Bij vaststelling van deze grondprijsbrief wordt voorgesteld aan de gemeenteraad om het college de bevoegdheid te geven om marktconforme grondprijzen te hanteren, mits deze geen negatieve gevolgen heeft voor de vastgestelde grondexploitatie(s). Bij negatieve gevolgen voor de (vast te stellen) grondexploitatie worden de grondprijzen opnieuw ter vaststelling aangeboden aan de gemeenteraad, al dan niet in combinatie met een (geactualiseerde) grondexploitatie. Bij positieve gevolgen voor de grondexploitatie, worden deze achteraf, bij actualisatie van de grondexploitatie bij de jaarrekening, verantwoord.

 

5. Staffeling kavelprijzen particuliere kavels

Voor kavels met een groot oppervlak (vanaf 500 m²) wordt gewaardeerd met behulp van een staffeling. De reden hiervoor is dat bij grote kavels de bebouwingsmogelijkheden niet evenredig toenemen naarmate de kavel groter wordt. Er vindt dus een verlaging van de prijs per vierkante meter plaats, voor elke vierkante meter boven de 500 m². Dit vertaalt zich in de marktwaarde van de kavel, want de gemiddelde prijs per vierkante meter daalt.

De staffeling die voor de grondprijsbepaling wordt gehanteerd is als volgt:

Basisprijs in € / m²

Kavelprijs per m²

Kavelprijs per m²

Kavel ≤ 500m²

500m² > m² < 1000 m²

In % van de Basisprijs

≥ 1000 m²

In % van de basisprijs

100 %

50 %

25%

Tabel 2: staffeling grondprijzen particuliere kavels

 

6. Vrij op naam prijs

Om transparanter richting de inwoners te kunnen aangeven met welke koopsom men nu rekening moet houden bij de koop van de kavel en om onduidelijkheden rondom kosten koper opslagen te voorkomen, werkt de gemeente met een vrij op naam prijs voor de woningbouwkavels. Deze vrij op naam prijs is een prijs inclusief BTW. Deze informatie wordt opgenomen op de gemeentelijke website en in de verkoopbrochures van de verschillende plannen.

 

Grondprijzen niet-woningbouw

 

1. Genormeerde grondprijs bedrijfskavels

De gemeenten in de Regio Groningen- Assen hebben afgesproken om de grondprijzen voor (boven)regionale bedrijventerreinen op een uniforme wijze te berekenen. En wel door middel van een residuele berekening. Daarbij is tevens afgesproken om hier voor lokale bedrijventerreinen zoveel mogelijk bij aan te sluiten. Deze berekening heeft geleidt tot een te hanteren m²-prijs die nog steeds passend is in de markt. De grondprijzen betreffen functies voor gemengd bedrijf. Als er andere functies op een bedrijventerrein worden gerealiseerd, gelden mogelijk andere tarieven.

 

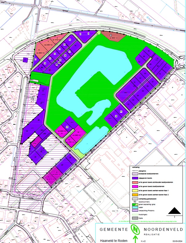
Bedrijventerrein Haarveld

Het nieuwe bestemmingsplan van Haarveld is vastgesteld en in werking getreden. Dit zorgt ervoor dat er op meer kavels de mogelijkheid is om een bedrijfswoning te bouwen.

Op grond van de hiervoor genoemde methodiek zijn voor Haarveld de volgende grondprijzen vastgesteld:

 

Tabel 3: grondprijzen Haarveld

Functie

Binnenterrein

Zichtlocatie

Opslag voor woning

Opslag voor woning

 

Prijs/ m² (ex BTW)

Prijs/ m² (ex BTW)

per woning

(niet inpandig)*

per woning (inpandig)

Werken/wonen

(wonen is ondergeschikt)

€ 75,00

n.v.t.

€ 32.000,00

€ 25.000,00

Bedrijven

€ 75,00

€ 90,00

n.v.t.

n.v.t.

* Hierbij wordt uitgegaan van een oppervlakte ten behoeve van de bedrijfswoningfunctie van ca. 300 m².

 

Op basis van vergelijkend onderzoek bij omliggende gemeenten wordt voorgesteld de grondprijzen op Haarveld niet te wijzigen ten opzichte van vorig jaar.

 

Bedrijventerrein Westeres Roden

Op de Westeres is de grondprijs enkele jaren geleden residueel bepaald. Hierbij spelen, naast de aard van de bedrijfsactiviteit, ook de ligging van de kavel en de parkeereisen een rol. De gemeente Noordenveld streeft ernaar minimaal marktconforme prijzen te hanteren en beschouwt daarbij de prijzen op het bedrijventerrein Haarveld als ondergrens. In de grondexploitatie wordt daarom uitgegaan van een minimale prijs van € 75,- per m² (binnenterrein) en een maximale prijs van € 90,- per m² (zichtlocatie), exclusief BTW.

 

Grondprijs nieuw te ontwikkelen bedrijventerreinen

 

Bij de vaststelling van de grondprijsbrief 2025 bevindt de gemeente Noordenveld zich momenteel in een fase van besluitvorming met betrekking tot de bedrijventerreinenvisie tot en met 2040. Volgens deze visie is het noodzakelijk om tot het jaar 2040 circa 6 hectare additionele grond beschikbaar te stellen om aan de groeiende vraag van bedrijven te kunnen voldoen. Deze behoefte kan worden opgevangen door middel van inbreiding op de bestaande terreinen. Om een actief grondbeleid te kunnen voeren, zullen gronden moeten worden aangekocht en vervolgens tegen aankoopprijs en onkostenvergoeding worden doorverkocht. De vastgestelde prijs ligt in lijn met de marktconforme tarieven die gehanteerd worden door aangrenzende gemeenten.

 

2. Inritten t.b.v. ontsluiting bedrijfskavels

Op bedrijventerreinen komt het voor dat er inritten moeten worden aangelegd ten behoeve van kavels die niet direct aan de openbare weg liggen. Deze inritten hebben de bestemming ‘bedrijfsdoeleinden’, maar er kan niet op worden gebouwd vanwege de inrichting als inrit. Voor deze specifieke gevallen wordt een grondprijs van € 25,- per m² (excl. BTW) gehanteerd.

 

3. Snippergroen

  • De verkoopprijs van snippergroen bedraagt € 40,- per m² k.k. (kosten koper) conform het prijspeil 2024 .

  • Als er snippergroen wordt aangekocht waarop conform het huidige bestemmingsplan uitbreiding van het hoofdgebouw mogelijk is (meestal de woning), dan wordt de grondprijs voor vrije sector woningbouw in deze grondprijsbrief gehanteerd.

  • Als de mogelijke aankoop afhangt van de wijziging van de bestemmingsplan waardoor uitbreiding van het hoofdgebouw eveneens mogelijk wordt, dan geldt eveneens de grondprijs voor vrije sector woningbouw in deze grondprijsbrief.

  • De huurprijs van snippergroen (bij percelen groter dan 50 m²) geldt € 2,50 per m² per jaar.

  • Bij de huur van snippergroen voor percelen kleiner dan 50 m² wordt er een bruikleenovereenkomst afgesloten, hiervoor wordt eenmalig administratieve kosten in rekening gebracht van € 75,-.

 

4. Nutsvoorzieningen

Voor transformatorhuisjes geldt een prijs van € 100,- per m². Omdat bij de verkoop van grond ten behoeve van transformatorhuisjes meestal sprake is van verkoop van een klein perceel hanteert de gemeente Noordenveld een minimumprijs per transactie van € 1.000,- ex BTW ter dekking van de vaste kosten.

 

5. Hardheidsclausule

Art 4:84 van de Algemene wet bestuursrecht is van toepassing.

 

Roden, september 2024

 

 

BIJLAGEN

Bijlage 1: Kavelprijzen d.d. 16-7-2024

 

Oosterveld fase 2

Kavel adres

Woningtype

Kavelopp. ( m²)

Status

Oosterveldweg 15

Vrijstaande woning

590

Verkocht

Oosterveldweg 17

Vrijstaande woning

655

Verkocht

Middelwand 30

Vrijstaande woning

780

Verkocht

Middelwand 32

Vrijstaande woning

612

Verkocht

Middelwand 34

Vrijstaande woning

663

Verkocht

Middelwand 36

Vrijstaande woning

678

Verkocht

Middelwand 38

Vrijstaande woning

699

Verkocht

Middelwand 40

Vrijstaande woning

699

Verkocht

Middelwand 42

Vrijstaande woning

641

Verkocht

Middelwand 44

Vrijstaande woning

638

Verkocht

Middelwand 46

Vrijstaande woning

693

Verkocht

 

Oosterveld Fase 3

Adres

Woningtype

Kavelopp. (m2)

Status

Groepakker 1

Vrijstaand

847

Verkocht

Groepakker 2

Vrijstaand

724

Optie

Groepakker 3

Vrijstaand

705

Verkocht

Groepakker 7

Vrijstaand

615

Verkocht

Groepakker 9

Vrijstaand

703

Verkocht

Groepakker 11 (b.o. Lange Akker 38)

Vrijstaand

664

Verkocht

Lange Akker 20

Vrijstaand

738

Verkocht

Lange Akker 35

Vrijstaand

631

Optie

Lange Akker 37

Vrijstaand

549

Verkocht

Lange Akker 39

Vrijstaand

600

Verkocht

Oosterveldweg 1

Vrijstaand

643

Optie

 

 

 

 

Oosterveldweg 3

(b.o. Lange Akker 2)

Vrijstaand

599

Verkocht

Oosterveldweg 5

(b.o. Lange Akker 1)

Vrijstaand

623

Verkocht

Oosterveldweg 9

(b.o. Lange Akker 67)

Vrijstaand

618

Verkocht

 

Bijlage 2: Tarievenkaart Haarveld 09-09-2024

 

Naar boven