Gemeenteblad van Barneveld
| Datum publicatie | Organisatie | Jaargang en nummer | Rubriek |
|---|---|---|---|
| Barneveld | Gemeenteblad 2025, 20020 | verkeersbesluit of -mededeling |
Zoals vergunningen, bouwplannen en lokale regelgeving.
Adressen en contactpersonen van overheidsorganisaties.
U bent hier:
| Datum publicatie | Organisatie | Jaargang en nummer | Rubriek |
|---|---|---|---|
| Barneveld | Gemeenteblad 2025, 20020 | verkeersbesluit of -mededeling |
VERKEERSBESLUIT | Het instellen van 30 km/uur op weggedeelten Mr. Troelstralaan / Wethouder Rebellaan door middel van diverse maatregelen
Gelet op het bepaalde in de Wegenverkeerswet 1994 (hierna: WVW 1994), het Reglement Verkeersregels en Verkeerstekens 1990 (hierna: RVV 1990) en het Besluit Administratieve Bepalingen inzake het Wegverkeer (hierna: BABW).
Overwegingen ten aanzien van het besluit
De teamleider van team Beheer op grond van de Mandaatregeling gemeente Barneveld van het college van burgemeester en wethouders van Barneveld van 21.06.2024, gemandateerd is voor het nemen van verkeersbesluiten voor de plaatsing en verwijdering van verkeerstekens en/of maatregelen op of aan de weg;
Volgens artikel 15, eerste lid van de WVW1994 een verkeersbesluit wordt genomen voor de plaatsing of verwijdering van verkeerstekens voor zover daardoor een verbod of gebod ontstaat;
De Mr. Troelstralaan en de Wethouder Rebellaan wegen zijn zoals bedoeld in artikel 18 lid 1 onder d van de WVW 1994;
De Mr. Troelstralaan en de Wethouder Rebellaan in beheer zijn bij de gemeente Barneveld;
De maximumsnelheid van 30 km/uur wordt ingesteld om de verkeersveiligheid te verbeteren. De wegen worden zo ingericht dat ze geloofwaardig aansluiten bij de lagere maximumsnelheid. Dit is een gevolg van meldingen van onveiligheid en participatie met omwonenden en belanghebbenden;
Al jaren de wens bestaat vanuit Wijkplatform Barneveld Noord-Oost (De Vaarst) om 30 km/u op dit weggedeelte in te stellen;
De nieuwe inrichting(en) een positieve ontwikkeling zal zijn voor het nieuwe fietspad dat langs de Oosterboshal gerealiseerd zal worden (komend vanuit Bloemendal) en aan zal sluiten op de parkeerplaats van de Oosterboshal. Waardoor dit fietspad op een verkeersveilige manier doorgetrokken kan worden tot de Wethouder Rebellaan en daar kan aansluiten op het te realiseren 30 km/u kruispuntplateau;
Er participatie heeft plaatsgevonden met stakeholders rond het betreffende weggedeelte in de vorm van een werksessie waarin de belangrijkste aandachtspunten zoveel mogelijk zijn verwerkt;
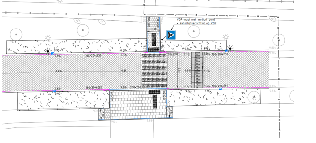
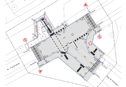
De weggedeeltes van de Mr. Troelstralaan en de Wethouder Rebellaan geloofwaardig ingericht zullen worden tot een 30 km/u inrichting door drie kruispuntplateau’s te realiseren ter hoogte van de aansluitingen met de Hugo de Grootlaan, de Oostlaan en in de bocht met de aansluiting van het parkeerterrein van de Oosterboshal;
Het instellen van voorrang op de drie nieuw aan te leggen kruispunten bij draagt aan de overzichtelijkheid en verkeersveiligheid van de weg;
De middengeleiders zorgen voor een duidelijke scheiding van rijrichtingen en dat dit de weggebruikers dwingt om snelheid te matigen. Dit bevordert de verkeersveiligheid op de Oostlaan;
Een verplicht fietspad hier de veiligheid voor fietsers verbetert door een duidelijke scheiding van gemotoriseerd verkeer en fietsverkeer;
Het aanwijzen van parkeergelegenheid bij het Oosterbos voorziet in het parkeeraanbod van de omliggende bedrijven en scholen en daarmee overlast in de omliggende straten voorkomt;
Het realiseren van een voetgangersoversteekplaats bij het JFC de verkeersveiligheid van overstekende voetgangers verhoogt, waaronder schoolgaande kinderen. Dit is in lijn met signalen over verkeersonveiligheid in deze omgeving;
Het plaatsen van de verkeerstekens model A1-30, A2-30, B03, B4, B5, B6, D2, G11, E4 en L2 van bijlage 1 van het RVV 1990 conform artikel 12 van het BABW geschiedt krachtens een verkeersbesluit;
Gelet op artikel 2 van de WVW 1994 de bovengenoemde verkeersmaatregelen bijdraagt aan het,
- Het verzekeren van de veiligheid op de weg (lid 1, sub a);
- Het beschermen van weggebruikers en passagiers (lid 1, sub b);
- Het in stand houden van de weg en het waarborgen van de bruikbaarheid (lid 1, sub c);
Ingevolge artikel 24 van het BABW heeft overleg plaatsgevonden met een door de Korpschef van politie gemandateerde verkeersadviseur van de eenheid Oost-Nederland leidend tot een positief advies;
Het handhaven van de maximumsnelheid van 30 km/u heeft geen prioriteit bij de lokale politie. Bij klachten over de snelheid zal eerst gekeken moeten worden naar andere infrastructurele maatregelen.
1. 30 km/u binnen de bebouwde kom op de weggedeelten Mr. Troelstralaan / Wethouder Rebellaan middels het plaatsen van de borden modellen A1-30, A2-30 van bijlage 1 van het RVV 1990;
2. Voorrangskruispunten op het kruispunt Hugo de Grootlaan, Oostlaan en Oosterbos middels het plaatsen van de borden modellen B3, B4, B5 en B6 van bijlage 1 van het RVV 1990;
3. Voorrangssituaties op de fietspaden van de Oostlaan en het fietspad ter hoogte van de sporthal Oosterbos middels het aanbrengen van haaientanden markering en het plaatsen van borden B6 van bijlage 1 van het RVV 1990;
4. Verplichte passeerzijdes bij de middengeleiders ter hoogte van de Oostlaan middels het plaatsen van de borden model D2 van bijlage 1 van het RVV 1990;
5. Een verplicht fietspad tegenover de Oostlaan en bij Oosterbos middels het plaatsen van de borden model G11 van bijlage 1 van het RVV 1990;
6. Parkeergelegenheid bij het Oosterbos middels het plaatsen van de borden model E4 van bijlage 1 van het RVV 1990;
7. Een voetgangersoversteekplaats (zebrapad) tussen het JFC en IKC middels het plaatsen van de borden model L2 van bijlage 1 van het RVV 1990.
Belanghebbenden die het besluit om bepaalde redenen onjuist vinden, kunnen binnen zes weken na de datum van bekendmaking van dit besluit in het digitaal Gemeenteblad een gemotiveerd bezwaarschrift indienen bij het college van burgemeester en wethouders. Dit kan schriftelijk via Postbus 63, 3770 AB Barneveld of digitaal op https://www.barneveld.nl/over-barneveld/bezwaar-maken-tegen-een-besluit/ Hiervoor heeft u wel uw DigiD of eHerkenning nodig.
Belanghebbenden die een bezwaarschrift hebben ingediend kunnen tevens de Voorzieningenrechter van de Rechtbank in Arnhem verzoeken een voorlopige voorziening te treffen indien onverwijlde spoed dit vereist. Dit verzoek kan in tweevoud gericht worden aan: Rechtbank Gelderland, Locatie Arnhem, Team Bestuursrecht, Postbus 9030, 6800 EM Arnhem. Het verzoek om een voorlopige voorziening kan ook digitaal worden ingediend bij genoemde rechtbank via Voorlopige voorziening aanvragen | Rechtspraak. Kijk op genoemde website voor de precieze voorwaarden. Voor het behandelen van een verzoek om een voorlopige voorziening wordt griffierecht geheven.
Kopieer de link naar uw clipboard
https://zoek.officielebekendmakingen.nl/gmb-2025-20020.html
De hier aangeboden pdf-bestanden van het Staatsblad, Staatscourant, Tractatenblad, provinciaal blad, gemeenteblad, waterschapsblad en blad gemeenschappelijke regeling vormen de formele bekendmakingen in de zin van de Bekendmakingswet en de Rijkswet goedkeuring en bekendmaking verdragen voor zover ze na 1 juli 2009 zijn uitgegeven. Voor pdf-publicaties van vóór deze datum geldt dat alleen de in papieren vorm uitgegeven bladen formele status hebben; de hier aangeboden elektronische versies daarvan worden bij wijze van service aangeboden.