Besluit van het college van burgemeester en wethouders van Westland betreffende het inrichten van warenmarkten

Het college van burgemeester en wethouders van Westland;

 

gelezen het voorstel aan het college van B&W van 25 maart 2025, nr. 25-0009846;

 

gelet op artikel 160, lid 1, aanhef en onder h van de Gemeentewet, juncto artikel 3, lid 1 van de Marktverordening Westland 2025;

 

Overwegende:

  • -

    dat er na vaststelling van de geactualiseerde Marktverordening Westland 2025 wijzigingen zijn doorgevoerd voor de warenmarkten in Westland;

  • -

    dat het noodzakelijk is deze wijzigingen in een nieuw inrichtingsplan vast te leggen.

besluit:

  • 1.

    De volgende warenmarkten in te stellen:

     

    • a.

      ’s-Gravenzande:

      De warenmarkt vindt plaats op vrijdag van 9.00 uur tot 17.00 uur op het Marktplein te ’s-Gravenzande, overeenkomstig de plattegronden van de opstelling en indeling warenmarkt ’s-Gravenzande ex artikel 3, lid 1, onder c. van de Marktverordening Westland 2025, Corsanummer 24-0207059;

       

    • b.

      Monster:

      De warenmarkt vindt plaats op dinsdag van 10.00 uur tot 16.00 uur in de Molenstraat te Monster, overeenkomstig de plattegronden van de opstelling en indeling warenmarkt Monster ex artikel 3, lid 1, onder c. van de Marktverordening Westland 2025, Corsanummer 24-0207010.

       

    • c.

      Naaldwijk:

      De warenmarkt vindt plaats op woensdag van 9.00 uur tot 17.00 uur op het Wilhelminaplein te Naaldwijk, overeenkomstig de plattegronden van de opstellingen en indelingen warenmarkt Naaldwijk ex artikel 3, lid 1, onder c. van de Marktverordening Westland 2025, Corsanummers: 24-0207060 voor de zomeropstelling en 24-0207063 voor de winteropstelling. De zomeropstelling is geldend van 1 april tot 1 oktober en de winteropstelling van 1 oktober tot 1 april;

       

    • d.

      Wateringen:

      De warenmarkt vindt plaats op woensdag van 9.30 uur tot 16.00 uur aan de Vliethof te Wateringen, overeenkomstig de plattegronden van de opstelling en indeling warenmarkt Wateringen ex artikel 3, lid 1, onder c. van de Marktverordening Westland 2025, Corsanummer 24-0207056.

       

  • 2.

    Als gevolg van deze wijzigingen worden de vergunningen voor de warenmarkten door de gemeente aangepast en opnieuw verleend aan de marktkooplieden.

     

  • 3.

    Dit besluit treedt in werking op de eerste dag na die van de bekendmaking.

     

  • 4.

    Het besluit tot het instellen van warenmarkten 2024 d.d. 10 december 2024 in te trekken.

Naaldwijk, 25 maart 2025

Burgemeester en wethouders van Westland

de secretaris,

M.L.M. Weerts

de burgemeester,

B.R. Arends

Indienen bezwaarschrift

Een belanghebbende die het niet eens is met dit besluit kan een bezwaarschrift schrijven naar het college van burgemeester en wethouders van Westland. Het bezwaarschrift moet zijn ingediend binnen zes weken na de dag waarop dit besluit is gepubliceerd. Het bezwaarschrift moet in ieder geval bevatten:

  • a.

    de naam en adres van de indiener;

  • b.

    de dagtekening;

  • c.

    een omschrijving van het besluit waartegen het bezwaarschrift is gericht;

  • d.

    de argumenten voor het bezwaar;

  • e.

    de handtekening van de indiener.

Om het bezwaarschrift zo snel mogelijk af te kunnen handelen, verzoeken wij u ook uw telefoonnummer te vermelden en een kopie van het besluit mee te sturen.

 

Voorlopige voorziening

Bij spoedeisend belang is het mogelijk een voorlopige voorziening te vragen bij de Voorzieningenrechter van de Sector Bestuursrecht van de Arrondissementsrechtbank ’s-Gravenhage, Postbus 20302, 2500 EH ’s-Gravenhage, telefoon (070) 381 1492/1317. In dat geval moet u griffierechten betalen. U moet wel eerst een bezwaarschrift hebben ingediend.

 

Informatie

Voor nadere informatie over de bezwaarschriftenprocedure verwijzen wij u naar de website www.gemeentewestland.nl, daar kunt u de folder “bezwaar maken” downloaden. U kunt ook een bezoek brengen aan het gemeentehuis daar kunt u de folder afhalen bij de receptie.

 

Digitaal indienen verzoek om voorlopige voorziening.

Het is ook mogelijk om een verzoek om voorlopige voorziening digitaal bij de rechtbank in de dienen via het Digitaal loket bestuursrecht (http:/loket.rechtspraak.nl/bestuursrecht.aspx). Voor het digitaal verzenden van het verzoek om voorlopige voorziening dient u te beschikken over DigiD.

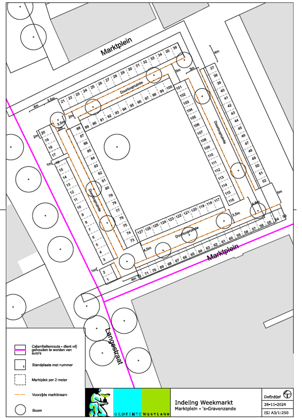
Bijlage 1: plattegrond warenmarkt ‘s-Gravenzande (Corsanummer: 24-0207059)

 

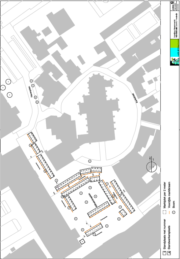
Bijlage 2: plattegrond warenmarkt Monster (Corsanummer: 24-0207010)

 

Bijlage 3: plattegrond warenmarkt Naaldwijk, zomeropstelling (Corsanummer: 24-0207060)

 

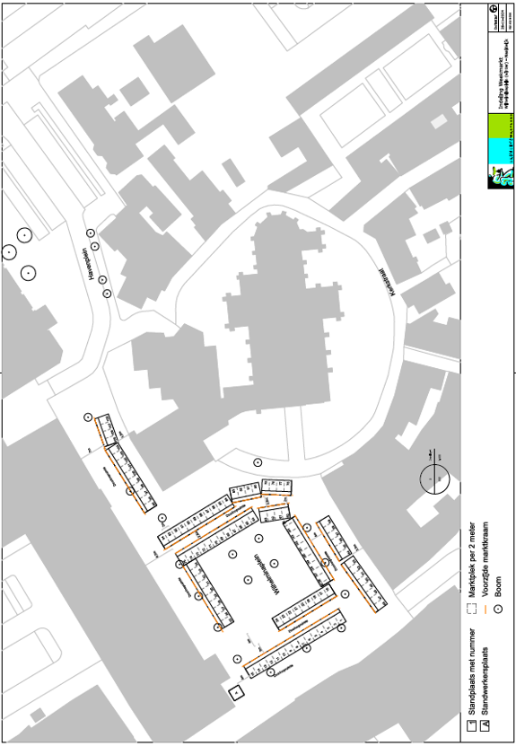
Bijlage 4: plattegrond warenmarkt Naaldwijk, winteropstelling (Corsanummer: 24-0207063)

 

Bijlage 5: plattegrond warenmarkt Wateringen (Corsanummer: 24-0207056)

 

Naar boven