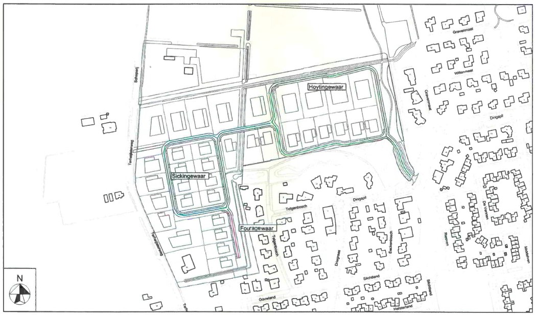
Vaststelling straatnaamgeving Zuidpoort Terheijl in Roden

Het college van burgemeester en wethouders van de gemeente Noordenveld heeft op 22 april 2025 de volgende straatnamen vastgesteld:

  • Hoytingewaar

  • Sickingewaar

  • Fouragewaar

 

Ten behoeve van een nieuw te bouwen project Zuidpoort Terheijl nabij de wijk 5de verloting in Roden werd op 22 april 2025 deze straatnamen vastgesteld.

De Historisch Vereniging Roon en de grondeigenaar/ projectontwikkelaar hebben deze straatnamen voorgedragen.

Besluit inzien

Het straatnaambesluit ligt met ingang van 23 april 2025 t/m 4 juni 2025 ter inzage in het gemeentehuis aan de Raadhuisstraat 1 te Roden.

Zienswijze

Tijdens de termijn van ter inzage legging kan iedereen schriftelijk bezwaar maken tegen dit besluit. Uw schriftelijke kunt u richten aan burgemeester en wethouders, Postbus 109, 9300 AC Roden onder vermelding van bezwaar straatnaamgeving Zuidpoort Terheijl in Roden.

Naar boven