Besluit van het college van burgemeester en wethouders van de gemeente Den Helder, houdende aanwijzing gevaarlijke voorwerpen (Aanwijzingsbesluit gevaarlijke voorwerpen)

Het college van burgemeester en wethouders van de gemeente Den Helder;

 

gelet op artikel 2:19 van de Algemene plaatselijke verordening Den Helder 2021;

 

 

overwegende dat:

  • in artikel 2:19 van de Algemene plaatselijke verordening Den Helder 2021 is opgenomen dat het college wegen en daaraan gelegen voor het publiek toegankelijke gebouwen en terreinen aan kan wijzen waar het verboden is messen, knuppels, slagwapens of andere voorwerpen die als wapen kunnen worden gebruikt, openlijk bij zich te hebben;

 

  • uit het aangeleverde overzicht van Politie Noord-Holland, district: Den Helder, blijkt dat er vanaf januari 2021 tot en met november 2023, 25 geregistreerde wapenincidenten hebben plaatsgevonden door de hele gemeente Den Helder;

 

  • uit het aangeleverde overzicht van Politie Noord-Holland, district: Den Helder, blijkt dat er vanaf januari 2024 tot en met december 2024, 12 geregistreerde wapenincidenten hebben plaatsgevonden door de hele gemeente Den Helder;

 

  • uit het aangeleverde overzicht van Politie Noord-Holland, district: Den Helder, blijkt dat er vanaf januari 2021 tot en met november 2023, 114 keer is geregistreerd dat sprake was van verboden wapenbezit in de hele gemeente Den Helder;

 

  • uit het aangeleverde overzicht van Politie Noord-Holland, district: Den Helder, blijkt dat er vanaf januari 2024 tot en met december 2024, 36 keer is geregistreerd dat sprake was van verboden wapenbezit in de hele gemeente Den Helder;

 

  • het hebben van voorwerpen zoals messen, knuppels, slagwapens of andere voorwerpen onacceptabel is en effectief aangepakt moet kunnen worden om de openbare orde en veiligheid in de gemeente te kunnen handhaven;

 

  • het wenselijk is voorwerpen die niet onder Wet Wapens en Munitie vallen maar wel als steekwapen gebruikt te kunnen worden, te verbieden;

 

  • de belangen van de openbare orde en veiligheid en het voorkomen van wanordelijkheden en het bevorderen van de veiligheid in het onderhavige geval zwaarder wegen dan het individuele belang van de eventuele inperking op persoonsniveau (bescherming van de persoonlijke levenssfeer).

 

  • met dit aanwijzingsbesluit het college uitvoering geeft aan deze bevoegdheid;

 

besluit:

 

de volgende aanwijzing vast te stellen.

 

(Aanwijzingsbesluit gevaarlijke voorwerpen)

 

Hoofdstuk 1 Aanwijzing

Artikel 1 Aanwijzing

  • 1.

    Als wegen en daaraan gelegen voor het publiek toegankelijke gebouwen en terreinen waar het op grond van artikel 2:19 van de Algemene plaatselijke verordening Den Helder 2021 verboden is om messen, knuppels, slagwapens of andere voorwerpen die als wapen kunnen worden gebruikt, openlijk bij zich te dragen worden aangewezen:

    • a.

      Centrumgebied Binnenstad; en het gebied gelegen binnen een afstand van 100 meter gerekend vanaf dit winkelcentrum;

    • b.

      Centrumgebied Willemsoord; en het gebied gelegen binnen een afstand van 100 meter gerekend vanaf dit winkelcentrum;

    • c.

      Winkelcentrum Marsdiepstraat; en het gebied gelegen binnen een afstand van 100 meter gerekend vanaf dit winkelcentrum;

    • d.

      Winkelcentrum “Duinpassage" en het gebied gelegen binnen een afstand van 100 meter gerekend vanaf dit winkelcentrum;

    • e.

      Winkelcentrum "Schooten Plaza" en het gebied gelegen binnen een afstand van 100 meter gerekend vanaf dit winkelcentrum;

    • f.

      Winkelcentrum "De Riepel"; en het gebied gelegen binnen een afstand van 100 meter gerekend vanaf dit winkelcentrum;

    • g.

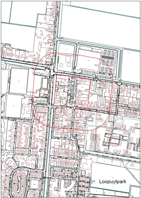
      Loopuytpark en het gebied gelegen binnen een afstand van 100 meter gerekend vanaf dit winkelcentrum;

    • h.

      Winkelcentrum "Dorperweerth" en het gebied gelegen binnen een straal van 100 meter gerekend vanaf dit winkelcentrum;

    • i.

      Winkelcentrum “Ravelijncenter” en het gebied gelegen binnen een straal van 100 meter gerekend vanaf dit winkelcentrum;

    • j.

      Timorpark en het gebied gelegen binnen een afstand van 100 meter gerekend vanaf dit winkelcentrum;

    • k.

      Stationslocatie Centrum;

    • l.

      Stationslocatie Den Helder Zuid;

    • m.

      Jongeren ontmoetingsplekken in woonbuurten, zoals speelweiden, buurtsportvoorzieningen, schoolpleinen, skatebanen.

    • n.

      Gebieden waar evenementen worden gehouden

  • 2.

    Bovengenoemde gebieden a tot en met l zijn aangegeven op de bij dit besluit behorende tekeningen als bijlage.

 

 

Hoofdstuk 2 Slotbepalingen

Artikel 2 Inwerkingtreding

Aanwijzingsbesluit gevaarlijke voorwerpen treedt in werking op de derde dag na die waarop zij bekend is gemaakt.

Artikel 3 Citeertitel

De aanwijzing wordt aangehaald als “Aanwijzingsbesluit gevaarlijke voorwerpen”.

Aldus besloten in de collegevergadering van 22-04-2025.

J.A. (Jan) de Boer MSc.

burgemeester

K. (Koen) van Veen

secretaris

Bijlage 1 (behorende bij artikel 1)

 

 

 

 

 

 

 

Toelichting bij Aanwijzingsbesluit gevaarlijke voorwerpen

 

Algemeen

 

Het dragen van gevaarlijke voorwerpen kan uiteengezet worden in twee verschillende feiten:

  • 1.

    Voorwerpen die geen wapen zijn in de zin van de Wet Wapens en munitie, maar als zodanig wel kunnen worden gebruikt. Denk aan een keukenmes of een fietsketting.

  • 2.

    Wapens behorende tot de categorieën I, II, III,en IV Wet wapens en munitie.

 

Invoering van artikel 2:19 regelt geen verbod op wapens behorende tot de categorieën I, II, III,en IV. Een hogere wettelijke regeling regelt dit namelijk.

 

Op grond van een ander motief, zoals het openbare orde belang, mogen wél regels worden gesteld aan het gebruik van voorwerpen die als wapen gebruikt kunnen worden. Dit is gedaan in artikel 2:19 van de Algemene plaatselijke verordening Den Helder 2021 (APV). Het APV-verbod dient een ander belang dan de WWM, namelijk het voorkomen van aantasting van de openbare orde en het bevorderen van de veiligheid.

 

Dit artikel is met name bedoeld om het meedragen voorwerpen die op zich geen wapens zijn in de zin van de Wet Wapens en munitie maar als zodanig wel kunnen worden gebruikt, te verbieden. Hierbij moet men denken aan fietskettingen etc. Zie ook artikel 2:74 Bestuurlijke ophouding.

 

De aangewezen gebieden zijn centrum gebieden, uitgaansgebieden en plaatsen waar veel jongeren samenkomen. Het is de verantwoordelijkheid van het gemeente bestuur om het algemeen belang te beschermen. Door het aanwijzen van deze wegen en daaraan gelegen voor het publiek toegankelijke gebouwen en terreinen is er de mogelijkheid gemaakt om daadwerkelijk te kunnen optreden bij gevaarlijke situaties en om deze te kunnen voorkomen.

 

Bij de jongeren ontmoetingsplekken zal bij toepassing van de bevoegdheid goed gemotiveerd moeten worden of sprake is van een jongeren ontmoetingsplek. We willen deze mogelijkheid wel geven aan toezicht en handhaving omdat het gebruikelijk is voor (groepen) jongeren om te wisselen met locaties waar zij elkaar ontmoeten. Wanneer gezien wordt dat zij zich herhaaldelijk ophouden op locaties en daar overlast gevend gedrag vertonen is het door deze aanwijzing mogelijk ze aan te spreken op voorwerpen die als gevaarlijk kunnen worden bestempeld in de omstandigheden.

Naar boven