Uitvoeringsbesluit bij artikel 5.2 Verordening fysieke leefomgeving het maken of verbranden van een uitweg

 

1.Inleiding

Een uitweg, ook wel uitrit, inrit of oprit genoemd, is een aansluiting vanuit een perceel op de openbare weg. Voor de leesbaarheid noemen we deze termen in de rest van dit beleid een ‘uitweg’. In dit beleidsstuk notitie worden enkel uitwegen naar ‘bestemmingen’ (bijvoorbeeld woningen, bedrijven) behandeld.

 

1.1 Aanleiding

In de gemeente Meerssen is het verboden zonder vergunning een uitweg te maken of te veranderen. Op grond van de Omgevingswet (de Wabo is hier in opgenomen per 1 januari 2024) in combinatie met VFL (Verordening Fysieke Leefomgeving), kan hiervoor een omgevingsvergunning worden aangevraagd. In de VFL zijn voor deze vergunning diverse weigeringsgronden opgenomen. Bovendien kan de gemeente, ter bescherming van het belang waarvoor de vergunning is vereist, voorschriften en beperkingen verbinden aan de vergunning. Er bestaat binnen de gemeente behoefte aan een kader op basis waarvan vergunningsaanvragen voor uitwegen worden getoetst. Dit beleids- en toetsingskader is in dit document vastgelegd. Dit beleid bevordert eenduidige besluitvorming (consistentie) en biedt de aanvrager vooraf inzicht in de toetsingscriteria (transparantie).

 

Vanuit stedenbouwkundige- en welstandsmotieven is het niet toegestaan om in de voortuin te parkeren en wij verlenen hiervoor geen vergunning. Het bedoelde ruimtelijk effect van de voortuin gaat namelijk teniet op het moment dat bewoners hun tuin qua sfeer en/of qua gebruik laten aansluiten bij het openbaar gebied.

 

Het eerste gebeurt door de voortuin te verharden, het tweede door de voortuin te gebruiken als parkeer- en/of stallingsplaats voor de auto. Het onderscheid tussen openbaar en privé vervaagt en doordat de verharding van de voortuin naadloos aansluit op die van de straat, gaat de beoogde bufferwerking van de voortuin geheel teniet. Dit leidt volgens ons college tot een onaanvaardbare verarming van het straatbeeld en vandaar dat er geen (omgevings)vergunning voor een uitweg voor dit doel wordt verstrekt.

 

1.2 Doelstelling

De doelstelling van onderhavig beleid is een helder en formeel kader te scheppen, waarin onder andere de voorwaarden en het beheer en onderhoud met betrekking tot de aanleg van uitwegen naar gemeentelijke wegen zijn vastgelegd.

 

Het is verboden om zonder omgevingsvergunning:

 

  • een uitweg te maken vanaf de weg

  • de weg te veranderen (door bijvoorbeeld de stoep te verlagen)

  • een bestaande uitweg te veranderen

1.3 Leeswijzer

Hoofdstuk 2 gaat in op het wettelijk kader voor dit uitvoeringsbesluit. In hoofdstuk 3 is het uitvoeringsbesluit nader geformuleerd. Hoofdstuk 4 beschrijft de uitvoeringsaspecten en tenslotte in hoofdstuk 5 zijn de overgangs- en slotbepalingen opgenomen.

2. De wettelijke basis

Met betrekking tot het maken of veranderen van een uitweg is diverse wet- en regelgeving van belang. Hieronder wordt kort op deze wet- en regelgeving ingegaan.

 

2.1 Omgevingswet

Bevoegd gezag:

 

Het college van burgemeester en wethouders is het bevoegd gezag voor de aanleg of verandering van een uitweg naar een weg die in beheer is van de gemeente. Op grond van artikel 5.8 van de Omgevingswet: het college van burgemeester en wethouders beslist op de aanvraag om een omgevingsvergunning die betrekking heeft op één activiteit, tenzij op grond van artikel(en) 5.9, 5.9a, 5.10, 5.11 of 5.13 een ander bestuursorgaan is aangewezen.

 

Indieningsvereisten:

 

Artikel 22.297 Bruidsschat Omgevingsplan (Omgevingsplanactiviteit: uitweg)

 

Bij een aanvraag om een omgevingsvergunning voor het maken, hebben of veranderen van een uitweg of het gebruik daarvan worden de volgende gegevens en bescheiden verstrekt:

  • a.

    de locatie van de uitweg aan het voor-, zij- of achtererf;

  • b.

    de afmeting van de nieuwe uitweg of de te veranderen bestaande uitweg en de beoogde verandering daarvan;

  • c.

    de te gebruiken materialen; en

  • d.

    de aanwezigheid van obstakels die in de weg staan voor het aanleggen of het gebruik van de uitweg, zoals bomen, lantaarnpalen en nutsvoorzieningen.

Regels voor de activiteit:

 

Artikel 22.8 Omgevingswet (omgevingsvergunning gemeentelijke verordening)

 

Voor zover op grond van een bepaling in een gemeentelijke verordening een vergunning of ontheffing is vereist voor een geval waarin regels over de fysieke leefomgeving op grond van artikel 2.7 eerste lid alleen in het omgevingsplan mogen worden opgenomen, geldt een zodanige bepaling als een verbod om zonder omgevingsvergunning een activiteit te verrichten als bedoeld in artikel 5.1 eerste lid aanhef en onder a van de Omgevingswet.

 

Dit betekent concreet het volgende. Een uitwegactiviteit is een omgevingsactiviteit die bij volledige werking van de Omgevingswet wordt geregeld in het nieuwe omgevingsplan (artikel 5.1 Omgevingswet). Zolang er geen omgevingsplan is opgesteld waarin deze activiteit is geregeld, blijven de lokale regels, zoals opgenomen in de Verordening Fysieke Leefomgeving, van kracht.

 

Artikel 5.1 eerste lid aanhef en onder a Omgevingswet (omgevingsvergunningplichtige activiteiten wet)

Het is verboden zonder omgevingsvergunning de volgende activiteiten te verrichten:

 

  • a.

    Een omgevingsplanactiviteit

Artikel 12.25. (uitweg kavel)

Bij de kavelindeling wordt elke kavel zo gevormd dat deze uitweg heeft op een openbare weg en zo mogelijk daaraan grenst.

 

2.2 Wegenwet

Op grond van artikel 14 van de Wegenwet moet de eigenaar van een weg, een uitweg hierop in beginsel gedogen. Ten einde de bruikbaarheid van de weg te waarborgen is het toegestaan een vergunning te eisen en via voorschriften de wijze waarop wordt aangesloten te regelen.

 

Deze regeling is opgenomen in artikel 5.2 van de Verordening Fysieke Leefomgeving. “Het maken of veranderen van een uitweg” en vormt daarmee de wettelijke basis voor dit inrittenbeleid.

 

Het college kan aan de vergunning voorschriften en beperkingen verbinden met betrekking tot het gebruik en de uitvoering van de uitweg. Dit kan bijvoorbeeld ook voor de duur waarin een uitweg in stand gehouden of gebruikt mag worden bij een tijdelijke (bouw)uitweg.

 

2.3 Verordening Fysieke Leefomgeving

In de Verordening Fysieke Leefomgeving (VFL) wordt in artikel 5.2 lid 1 bepaald dat het verboden is om zonder omgevingsvergunning van het college een uitweg naar de openbare weg te maken of te veranderen.

 

In artikel 5.2 lid 2 staan criteria waarop een vergunning kan worden geweigerd.

 

Artikel 5.2 Maken en veranderen van een uitweg luidt als volgt:

 

  • 1.

    Het is verboden zonder of in afwijking van een omgevingsvergunning:

     

    • a.

      een uitweg te maken naar een weg;

    • b.

      van de weg gebruik te maken voor het hebben van een uitweg;

    • c.

      verandering te brengen in een bestaande uitweg naar of uit de weg; of

    • d.

      het gebruik van een uitweg te veranderen.

  • 2.

    De vergunning kan worden geweigerd in het belang van:

     

    • a.

      ter voorkoming van gevaar voor het verkeer op de weg;

    • b.

      als de uitweg zonder noodzaak ten koste gaat van een openbare parkeerplaats;

    • c.

      als door de uitweg het openbaar groen op onaanvaardbare wijze wordt aangetast; of

    • d.

      als er sprake is van een uitweg van een perceel dat al door een andere uitweg wordt ontsloten;

    • e.

      als door de uitweg wateroverlast of hinder van hemelwater op onaanvaardbare wijze ontstaat; of

    • f.

      In het belang van de bescherming van het uiterlijk aanzien van de omgeving.

  • 3.

    Het verbod is niet van toepassing op situaties waarin wordt voorzien door de Wet beheer rijkswaterstaatswerken, de Keur Waterschap Limburg of de Wegenverordening van de provincie Limburg.

De meest recente Verordening Fysieke Leefomgeving is terug te vinden op overheid.nl.

 

2.4 Bestemmingsplannen

Aanvragen worden altijd getoetst aan het geldende bestemmingsplan.

In sommige bestemmingsplannen zijn voorwaarden opgenomen voor een uitweg.

3. Nadere uitwerking weigeringsgronden voor uitwegen

Voor iedere uitweg, binnen of buiten de bebouwde kom, moet een vergunning worden aangevraagd. Iedere aanvraag voor een uitwegvergunning wordt getoetst aan de weigeringsgronden.

 

Dit hoofdstuk beschrijft de uitleg die het college van burgemeester en wethouders aan deze weigeringsgronden geeft. Ook als er geen aanpassing nodig is, heb je een vergunning nodig om op de gewenste plaats je perceel in of uit te mogen rijden.

 

Afwijking van de beleidsregels is altijd mogelijk op grond van artikel 4:84 van de Algemene wet bestuursrecht in samenhang met artikel 9.6 van de Verordening Fysieke Leefomgeving 2024.

 

Bij iedere aanvraag wordt een belangenafweging gemaakt waarbij onderstaande bepalingen worden meegenomen.

 

3.1 Ter voorkoming van gevaar voor verkeer op de weg

Een uitweg wordt geweigerd indien de uitweg komt te liggen:

 

  • a.

    op een plaats waar door de uitweg de verkeersveiligheid in gevaar komt;

  • b.

    aan een gebiedsontsluitingsweg (tenzij de wegbeheerder hiermee instemt);

  • c.

    op of nabij een rotonde, kruising of splitsing van wegen;

  • d.

    op of nabij een voetgangersoversteekplaats;

  • e.

    op of nabij een bushalte;

  • f.

    op een plaats waar belemmeringen ontstaan voor het in- en uitrijden met een personenauto van één of meer bestaande garages;

  • g.

    op een plaats waar de uitweg op een fiets- en/of voetpad uitkomt en dat pad moet worden bereden om vanaf de openbare weg het perceel te bereiken;

  • h.

    op een plaats waar verlichting of bebording is aangebracht en deze uit oogpunt van veilig gebruik van de weg niet verplaatst kan worden;

  • i.

    op een plaats waar het zicht vanaf de uitweg op de weg/voetpad/fietspad onvoldoende is voor verkeer en er alternatieven zijn;

  • j.

    de aanvraag een 2e uitweg betreft;

  • k.

    de uitweg tot gevolg heeft dat straatmeubilair of een nutsvoorziening en/of ander obstakel dienen te worden verplaatst, terwijl er in de nabije omgeving geen geschikte alternatieve locatie voor genoemde objecten voorhanden is en/of er geen overeenstemming tot verplaatsing van het obstakel is met de eigenaar.

3.2 Indien de uitweg zonder noodzaak ten koste gaat van een openbare parkeerplaats

Dit criterium heeft betrekking op de functie die de betrokken weg heeft, de inrichting van de weg en de gevolgen die de uitweg kan hebben op de functie van de weg.

 

Een uitweg wordt geweigerd indien:

 

  • a.

    het aanleggen van een uitweg ten koste gaat van één of meerdere openbare parkeerplaatsen;

3.3 Indien door de uitweg het openbaar groen op onaanvaardbare wijze wordt aangetast

Een uitweg wordt geweigerd indien:

 

  • a.

    schade aan een monumentale boom of aan de groeiplaats van een monumentale boom wordt toegebracht, tenzij deze boom onveilig is en kap onvermijdelijk is;

  • b.

    schade aan een kapvergunningplichtige boom of aan de groeiplaats van een kapvergunningplichtige boom wordt toegebracht, tenzij deze boom onveilig is en kap onvermijdelijk is;

  • c.

    de uitweg dichter dan 2 meter van de buitenzijde van de stam van een boom ligt;

  • d.

    de uitweg reststukken haag (<5 m1) of reststukken groen (< 5 m2) veroorzaakt.

Als het perceel nog niet ontsloten wordt door een uitweg en er is geen alternatief voorhanden, dan kan de vergunning onder voorwaarden verleend worden, bijvoorbeeld een smallere uitweg of een uitweg met technische aanpassingen, compensatie van groen binnen het plan of elders in de openbare ruimte. De kosten worden dan doorberekend aan de aanvrager.

3.4 Indien er sprake is van een uitweg van een perceel dat al door een andere uitweg wordt ontsloten

Uitgangspunt is dat ieder perceel door slechts één uitweg ontsloten wordt.

 

3.5 Indien door de uitweg wateroverlast of hinder van hemelwater op onaanvaardbare wijze ontstaat

Een uitweg wordt geweigerd indien:

 

  • a.

    er wateroverlast of hinder van hemelwater kan ontstaan door de aanleg van de uitweg;

  • b.

    er lager gelegen gebieden wateroverlast kunnen ondervinden door de aanleg van de uitweg.

3.6 Bescherming van het uiterlijk aanzien van de omgeving

Een uitweg van een woning wordt geweigerd indien:

 

  • a.

    aansluitend aan de uitweg op eigen terrein geen minimale ruimte van 5 meter lang en/of 2,5 meter breed beschikbaar is naast de woning;

  • b.

    men wilt parkeren in de voortuin;

  • c.

    er minder dan 2,5 meter ruimte is op eigen terrein naast de woning zodat het leidt tot parkeren in de voortuin van de woning;

  • d.

    een uitweg afwijkt van de volgende maximale breedtes (zie ook par. 4.2);

    • a.

      voor een enkele particuliere uitweg: 3 meter, figuur A ;

    • b.

      voor een dubbele particuliere uitweg t.b.v. twee woningen: 6 meter, figuur B ;

    • c.

      voor een enkele particuliere uitweg buiten bebouwde kom: 3 meter ;

  • e.

    de uitweg in strijd is met het geldende inrichtings-, bestemmings- en/of definitief beeldkwaliteitsplan;

  • f.

    naar het oordeel van het college van burgemeester en wethouders sterk afbreuk wordt gedaan aan de ruimtelijke belevingswaarde van het desbetreffende gebied;

  • g.

    op een kruisingsvlak en 5 meter vanuit de eerste rechte trottoirband na de bochtstraal.

Voor een uitweg naar een landbouwperceel gelden dezelfde regels als voor een enkele particuliere uitweg buiten de bebouwde kom. (maximale breedte 3 meter)

 

Een uitweg van een bedrijf wordt geweigerd indien:

 

  • a.

    een uitweg bij bedrijf afwijkt van de maximale breedte van 5 meter.

  • b.

    de aanvraag betrekking heeft op meerdere uitwegen.

    • Bij bedrijven met een kavelbreedte van het perceel van minder dan 32 meter wordt maximaal 1 uitweg toegestaan.

    • Twee uitwegen, welke samen een maximale breedte van 8 meter hebben wordt toegestaan, indien dit voor de bedrijfsvoering noodzakelijk is. Er moet dan minimaal 8 meter tussen beide uitwegen aanwezig zijn en de kavelbreedte van het perceel bedraagt tenminste 16 meter.

Er geldt dat buiten de bedrijventerreinen alleen uitwegen voor bedrijven worden aangelegd als de vestiging van het bedrijf is toegestaan binnen het vigerende bestemmingsplan en de parkeerdruk op straat hiermee wordt verlicht.

 

Bij uitwegen buiten bedrijventerreinen wordt een onderscheid gemaakt tussen de zogenaamde aan-huis gebonden beroepen en de overige bedrijven. Voor aan-huis gebonden beroepen gelden dezelfde regels als voor een woning.

4. Uitvoeringsaspecten

Bij het aanleggen van uitwegen hanteert de gemeente een aantal algemene en specifieke uitgangspunten. Daarbij wordt onderscheid gemaakt in uitwegen binnen de bebouwde kom onderverdeeld naar particulier, nieuwbouw en bedrijfsmatig en uitwegen buiten de bebouwde kom.

 

Een uitweg gaat vaak samen met een aanpassing van de openbare ruimte, bijvoorbeeld het verlagen van de stoep. Ook als er geen aanpassing nodig is, heb je een vergunning nodig om op de gewenste plaats je perceel in of uit te mogen rijden.

 

4.1 Algemeen

Algemene uitgangspunten bij de aanleg van uitwegen:

 

  • a.

    Voor iedere uitweg dient een omgevingsvergunning te worden aangevraagd. Indien mogelijk dient de vergunning gelijktijdig met de omgevingsvergunning activiteit bouwen te worden aangevraagd;

  • b.

    Legeskosten ten behoeve van de vergunning komen voor rekening van de aanvrager;

  • c.

    De aanvrager betaalt de kosten ten behoeve van de aanleg van de uitweg (inclusief eventuele extra maatregelen zoals verplaatsen van een lichtmast, kolken, straatmeubilair, groenvoorziening en kabels en leidingen).

  • d.

    De aanleg van een uitweg op gemeentegrond wordt door of namens de gemeente uitgevoerd, in verband met uniformiteit en aansprakelijkheid. Er mag dus niet zelf overgegaan worden tot het aanleggen van een uitweg.

  • e.

    Onderhoud aan uitwegen op gemeentegrond geschiedt door de gemeente.

4.2 Binnen de bebouwde kom

Voor uitwegen binnen de bebouwde kom gelden een aantal specifieke uitgangspunten, onderverdeeld in particulier bestaand, particulier nieuwbouw en bedrijfsmatige uitwegen.

 

Particuliere uitwegen op nieuwbouwlocaties:

 

  • a.

    In de fase woonrijp maken legt de gemeente of projectontwikkelaar uit eigen beweging en op eigen kosten een standaard uitweg aan voor woningen met een garage of carport;

  • b.

    De exacte locatie van de uitweg wordt door de gemeente bepaald aan de hand van het door de gemeente vastgestelde matenplan;

  • c.

    Indien een wijziging (tweede uitweg of verbreden) van de standaard uitweg na de fase woonrijp maken wordt aangevraagd, geldt dat de kosten voor de aanleg van de wijziging in rekening worden gebracht bij de aanvrager. Hiervoor is dan een nieuwe uitwegvergunning nodig.

4.3 Buiten de bebouwde kom (uitsluitend voor gemeentelijke wegen)

Voor uitwegen buiten de bebouwde kom gelden een aantal specifieke uitgangspunten, onderverdeeld in particulier bestaand, particulier nieuwbouw en bedrijfsmatige uitwegen.

 

Een uitweg ten behoeve van een woning buiten de bebouwde kom is maximaal 5 meter breed tenzij aangetoond kan worden dat deze ook voor agrarische doeleinden gebruikt wordt.

 

Bij wegen van andere wegbeheerders zoals bijvoorbeeld provincie Limburg of het Waterschap wordt doorverwezen naar hun eisen.

 

4.4 Verplaatsen uitweg

Ook hiervoor geldt dat er een vergunning moet worden aangevraagd. De aanvraag wordt getoetst aan de weigeringsgronden, alsmede aan de uitgangspunten van dit hoofdstuk, waarbij de volgende aanvullende bepalingen tevens in acht worden genomen:

 

  • a.

    de te vervallen uitweg moet worden verwijderd door of in opdracht van de gemeente Meerssen;

  • b.

    de kosten voor het verplaatsen van de uitweg zijn dan voor de aanvrager;

  • c.

    de vrijgekomen ruimte van de vervallen uitweg dient te worden hersteld naar de omgevingssituatie door of in opdracht van de gemeente Meerssen. Deze kosten zijn voor de aanvrager en worden per geval bepaald.

4.5 Kosten

Als iemand een omgevingsvergunning aanvraagt, dan betaalt de aanvrager meestal niet alleen de kosten voor de omgevingsvergunning. Vaak brengt de gemeente ook plankosten in rekening. Dit zijn kosten voor voorbereiding van en toezicht op de aanleg van voorzieningen. Bijvoorbeeld groenvoorzieningen, nieuwe wegen of het dempen van sloten.

 

De kosten die de aanvrager moet betalen, zijn afhankelijk van de soort uitweg en van de plaatselijke omstandigheden. Het verlagen van bestaande trottoirbanden (een eenvoudige uitweg) is goedkoper dan het gebruiken van speciale inritbanden (een standaard uitweg).

 

Bij maatwerk en bij het verplaatsen van obstakels zoals verkeersborden en straatlantaarns worden de werkelijke kosten daarvan in rekening gebracht.

 

Wij raden de aanvrager aan altijd vooraf met de gemeente te overleggen wat de mogelijkheden en de kosten zijn in het desbetreffende geval.

 

Na betaling van de kosten geeft de gemeente opdracht aan een aannemer voor het aanleggen van de uitweg.

5. Overgangs- en slotbepalingen

5.1. Citeertitel

Dit uitvoeringsbesluit wordt aangehaald als: “Uitvoeringsbesluit bij artikel 5.2 Verordening Fysieke Leefomgeving, het maken of veranderen van een uitweg”.

 

5.2 Inwerkingtreding

Dit uitvoeringsbesluit treedt na publicatie gelijktijdig in werking met de Verordening Fysieke Leefomgeving 2025.

 

5.3 Overgangsbepaling

Vanaf de datum inwerkingtreding van dit uitvoeringsbesluit geldt het volgende:

 

  • Op bestaande legale (vergunde) uitwegen is dit besluit niet van toepassing, voor zover deze uitwegen ongewijzigd blijven ten opzichte van de verleende vergunning;

  • Bestaande uitwegen die, zonder omgevingsvergunning, gerealiseerd zijn vóór datum inwerkingtreding van dit uitvoeringsbesluit, worden op basis van dit uitvoeringsbesluit gedoogd;

  • Voor alle overige gevallen, die aangevraagd worden vanaf datum inwerkingtreding, geldt dat dit uitvoeringsbesluit van toepassing is.

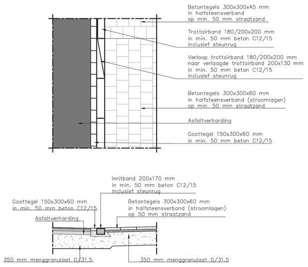
Bijlage 1 Vormgeving

 

Een uitweg moet voldoen aan de vormgeving zoals is aangegeven in de ASVV 2021 of publicatie 228 (Uitritten en uitritconstructies) van het CROW. De uitwegen die binnen de gemeente Meerssen worden aangelegd zijn in beginsel allemaal constructief gelijk.

 

1 Binnen de bebouwde kom

Verbreden uitweg op bestaande locaties:

 

De constructie wordt bepaald door de gemeente en bestaat in principe uit:

 

Bij uitwegen maken we onderscheid naar verschillende typen:

 

1a Particulier

 

o Inritconstructie

 

  • Fundering 350mm dik van menggranulaat

  • Straatlaag onder betontegels van zand max. 50mm

  • Streklagen betonstraatstenen DF in betonspecie

  • Betontegels 60mm dik in halfsteensverband achter de inritconstructie

  • Optioneel opsluitbanden 80x200mm voorzien van steunrug

o Verlaagde band(alleen indien inritconstructie niet mogelijk)

  • Fundering 200mm dik van menggranulaat

  • Straatlaag van zand max. 50mm

  • Betontegels 60mm dik over verlaagde stuk + weerszijdes 1m1 extra

  • Optioneel opsluitbanden 80x200mm voorzien van steunrug

 

  • Voor de standaard inritconstructies voor particulieren zie bijlage 2.

Inritbreedte

 

1b Industrieel

 

  • Fundering 350mm dik van menggranulaat

  • Straatlaag van zand van max. 50mm

  • Verlaagde band in betonspecie zowel langs asfalt als langs industrieterrein

  • Betonstraatstenen keiformaat

  • Opsluitbanden min. 100x200mm voorzien van steunrug

  • Maximaal 6 meter breed

  • Constructie afhankelijk van locatie en type vrachtverkeer.

2 Buiten de bebouwde kom

De constructie bestaat in principe uit:

 

  • Fundering 250mm dik van menggranulaat

  • Straatlaag van zand van max. 50mm

  • Betonstraatstenen keiformaat

  • Opsluitbanden min. 100x200mm voorzien van steunrug

  • Er mag geen gesloten verharding (asfalt en of beton) worden aangebracht.

  • De uitweg moet voldoende breed aangelegd worden om zo schade aan de verhardingen, bermen en groenstroken te voorkomen, maximale breedte van 5 meter;

  • Ingeval de uitweg over een sloot/watergang gaat, dient er tevens een duiker (rond 250mm minimaal, in overleg met cluster water of Waterschap) aangelegd te worden.

Bij zaksloot geen duiker aanleggen. Het kan zijn dat hiervoor een watervergunning aangevraagd moet worden of een melding gedaan moet worden bij waterschap.

 

Bijlage 2 Situatietekeningen

 

  • Voor een enkele particuliere standaard uitweg: 3 meter, figuur A

     

    Figuur A

     

  • Voor een oplossing met groenvoorziening i.c.m. dubbele particuliere uitweg t.b.v. twee woningen: 6 meter, figuur B

     

    Figuur B

     

  • Parkeren in de voortuin van de woning is niet toegestaan, figuur C

     

    Figuur C

     

  • De constructie bestaat uit verlaagde trottoirbanden, figuur D.

     

     

    Figuur D

Afkortingen

 

Aan huis gebonden beroepen

Beroepen voor onder andere assurantiekantoortjes, thuiskappers, huisartsen, fysiotherapeuten en ontwerpbureautjes die veelal aan huis gevestigd zijn.

 

VFL

Verordening Fysieke leefomgeving

 

ASVV 2021

Aanbevelingen voor verkeersvoorzieningen binnen de bebouwde kom

 

CROW

Centrum voor Regelgeving en Onderzoek in de Grond-, Water- en Wegenbouw

 

KCC

Klant Contact Centrum

 

KLIC

Kabels en Leidingen Informatiecentrum

 

Wabo

Wet algemene bepalingen omgevingsrecht

 

Begrippen

 

Binnen de bebouwde kom ( BiBeKo )

Alle percelen binnen de komgrenzen van de Wegenverkeerswet.

 

Buiten de bebouwde kom ( BuBeKo )

Alle percelen buiten de komgrenzen van de bebouwde kom van de Wegenverkeerswet.

 

Erftoegangsweg

Wegen die zijn gericht op het ontsluiten van erven, woningen en bedrijven. Kenmerkend voor een erftoegangsweg is dat in principe alle verkeerscategorieën van dezelfde rijbaan gebruik maken. Het gaat hier om alle manoeuvres die nodig zijn voor het bereiken van particuliere en openbare percelen, het in en uitstappen en het laden en lossen van goederen. Op deze wegen is sprake van uitwisseling zowel op de wegvakken als op de kruispunten.

 

Gebiedsontsluitingsweg

Deze wegen faciliteren zowel het stromen als het uitwisselen van verkeer. Deze twee functies worden naar plaats gescheiden. Het stromen vindt plaats op wegvakken tussen de kruispunten, het uitwisselen op kruispunten. Voor gebiedsontsluitingswegen geldt een maximale snelheid van 50 km/h binnen de bebouwde kom, buiten de bebouwde kom geldt een maximale snelheid van 80 km/h.

 

Groeiplaats

De ondergrondse (wortelpakket) en bovengrondse ruimte (stam en kroon) van een boom, die deze in neemt bij het volledig uitgroeien van de boom.

 

KLIC melding

Melding die ervoor zorgt dat leidingbeheerders op de hoogte zijn van de geplande werkzaamheden in de ondergrond, dit ter voorkoming van graafschade.

 

Nieuwbouwlocatie

Locatie waar nieuwe bouwwerken worden opgericht en waar in opdracht van de gemeente nieuw openbare gebied wordt aangelegd.

 

Schade groen

  • -

    van de stam in de bast;

  • -

    beschadiging/snoei van wortels dikker dan 5 cm;

  • -

    beschadiging/snoei van takken dikker dan 5 cm.

Uitweg

De uitweg als bedoeld in artikel 14, lid 3 onder ІІІ van de Wegenwet, te weten iedere rechtstreekse ontsluitingsmogelijkheid van een perceel naar de openbare weg, waaronder we verstaan de begrippen uitweg, oprit, inrit en uitrit.

 

Weg

Alle voor het openbaar verkeer openstaande wegen of paden met inbegrip van de daarin liggende bruggen en duikers en de tot die wegen behorende paden en bermen of zijkanten.

(Zie artikel 1, eerste lid, onder b, van de Wegenverkeerswet 1994).

 

Openbare parkeerplaats

Plaats op straat (openbaar) waar je een auto kunt/mag parkeren (dit kunnen aangegeven vakken zijn maar ook stroken gelegen aan de linker- of rechter kant van de rijweg in lengterichting langs een trottoirband).

 

Woonrijp maken

Het afwerken van openbare delen van een bouwterrein voor uiteindelijk gebruik. Het betreft het aanbrengen van voorzieningen op of in het maaiveld. Woonrijp maken vindt plaats aan het einde of na afronding van de bouwactiviteiten.

Naar boven