Kennisgeving huisnummerbesluit Hoogstraat 2, Westersteeg 11A en Westersteeg 11B Purmerend
Burgemeester en wethouders van de gemeente Purmerend,
gelet op artikel 6 van de Wet basisregistratie adressen en gebouwen, artikel 149 van de Gemeentewet en de Verordening naamgeving en nummering (adressen) Purmerend,
hebben op 3 april 2025 met besluitnummer 1608072 het volgende besloten:
1.
Betreffende het project het toevoegen van een extra woning over te gaan tot vaststelling en intrekking van de volgende nummeraanduidingen:
Vaststellen:
•
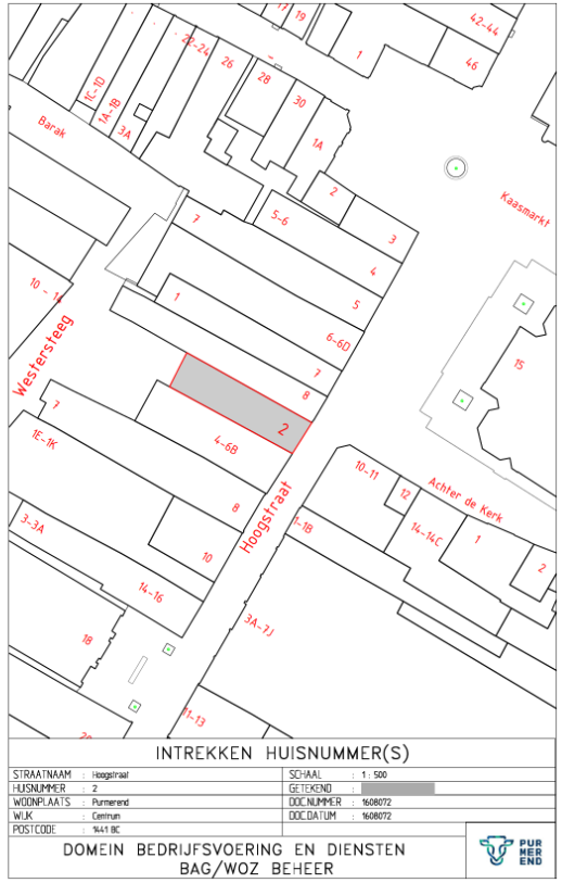
Hoogstraat 2 te Purmerend
•
Westersteeg 11A en 11B te Purmerend
Intrekken
•
Hoogstraat 2 te Purmerend
•
Het intrekken van de nummeraanduiding met NRA ID 0439200000032745 gaat pas in op het moment dat de melding verbouwing gereed is.
Aldus vastgesteld op 3 april 2025,
de teammanager GEO
Bent u het niet eens met dit besluit?
Dan kunt u bezwaar maken. Als u dat van plan bent, neemt u dan eerst telefonisch contact met ons op. Misschien komen we samen tot een oplossing. Komen we er niet uit, dan kunt u binnen zes weken na de dag waarop het besluit is verzonden een bezwaarschrift indienen.
U kunt dat digitaal doen, dan heeft u een DigiD nodig. Of u schrijft een brief naar het team Juridische en Veiligheidszaken, Postbus 15, 1440 AA te Purmerend. Voor meer informatie zie: www.purmerend.nl/bezwaar.
In uw bezwaarschrift moet het volgende staan:
-
uw naam, adres, telefoonnummer en/of e-mailadres;
-
een duidelijke omschrijving van dit besluit;
-
de reden waarom u bezwaar maakt;
-
de datum en uw handtekening.
Dient iemand anders namens u een bezwaarschrift in? Stuurt u dan een volmacht mee. Op www.purmerend.nl/bezwaar vindt u een voorbeeld.
De hier aangeboden pdf-bestanden van het Staatsblad, Staatscourant, Tractatenblad, provinciaal blad, gemeenteblad, waterschapsblad en blad gemeenschappelijke regeling vormen de formele bekendmakingen in de zin van de Bekendmakingswet en de Rijkswet goedkeuring en bekendmaking verdragen voor zover ze na 1 juli 2009 zijn uitgegeven. Voor pdf-publicaties van vóór deze datum geldt dat alleen de in papieren vorm uitgegeven bladen formele status hebben; de hier aangeboden elektronische versies daarvan worden bij wijze van service aangeboden.