Besluit openbare ruimten (Straatnamenbesluit)

 

Het college van burgemeester en wethouders van de gemeente Dronten,

 

gelet op:

  • artikel 6 van de Wet basisregistratie adressen en gebouwen (BAG), waarin gemeenten wordt opgedragen de namen van op haar grondgebied gelegen openbare ruimten vast te stellen;

  • artikel 2 van de Verordening naamgeving en nummering (adressen) gemeente Dronten 2019;

  • de Regeling commissie naamgeving openbare ruimten gemeente Dronten 2019;

 

gezien het advies van de commissie naamgeving openbare ruimten van 17 februari 2025;

 

Besluit:

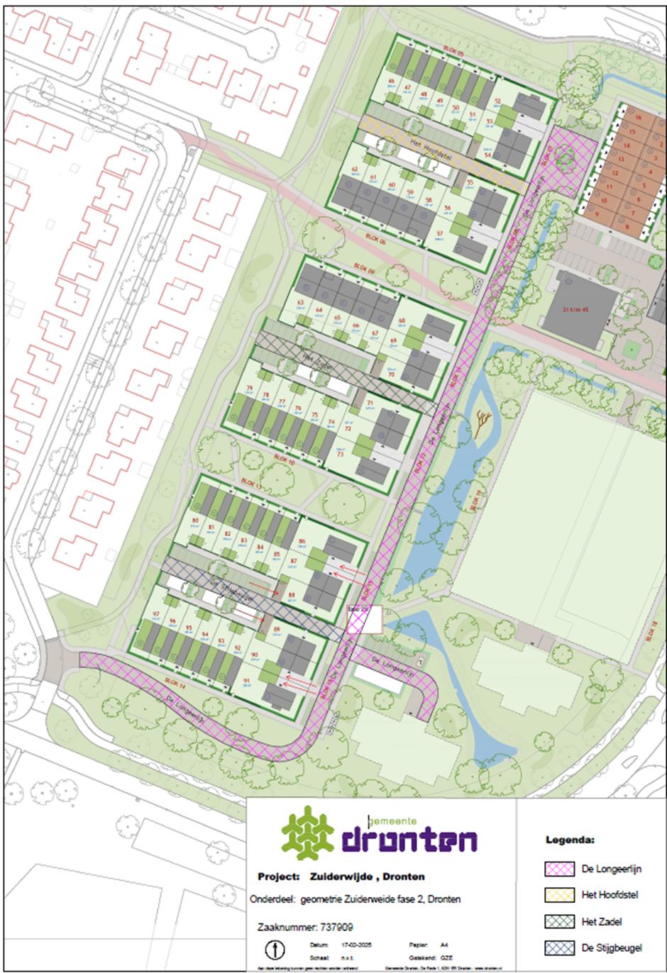
Het Hoofdstel te Dronten;

 

Het Zadel te Dronten;

 

De Stijgbeugel te Dronten;

 

De Longeerlijn te Dronten

 

vast te stellen zoals aangegeven op de bij dit besluit behorende kaart (bijlage 1).

 

 

Dronten, 25 februari 2025.

R. Hammenga MMA

secretaris

drs. J.P. Gebben

burgemeester

Bijlage 1 Kaart

Naar boven