Tijdelijk besluit van de burgemeester van de gemeente Roosendaal houdende regels omtrent cameratoezicht ‘Aanwijzingsbesluit flexibel cameratoezicht Rembrandtgalerij 2025’

De burgemeester van de gemeente Roosendaal;

 

gelet op:

  • -

    de artikelen 2:77 van de Algemene plaatselijke verordening en 151c van de Gemeentewet;

  • -

    zoals besproken in de lokale driehoek op 26 maart 2025;

 

overwegende dat:

 

  • -

    de burgemeester, indien dat in het belang van de handhaving van de openbare orde noodzakelijk is, bevoegd is om op basis van artikel 2:77 van de APV en artikel 151c van de Gemeentewet voor een bepaalde duur cameratoezicht in te zetten ten behoeve van het toezicht op een openbare plaats;

 

  • -

    de belangen van openbare veiligheid, het voorkomen van wanordelijkheden en strafbare feiten en de openbare veiligheid in het onderhavige geval zwaarder wegen dan het individuele belang van de burgers;

 

  • -

    uit politieanalyse blijkt dat er rondom de Rembrandtgalerij in de wijk Westrand sprake is van een bovenmatig en ten opzichte van 2024 stijgend aantal meldingen en strafbare feiten zoals ernstige overlast van alcohol/drugsgebruik, winkeldiefstallen en vechtpartijen;

 

  • -

    uit politieanalyse blijkt dat op 1 november 2024 een steekpartij heeft plaatsgevonden op de Rembrandtgalerij;

 

  • -

    op basis van uitgebreide analyses de wijk Westrand is toegewezen aan het focusgebied in het kader van het Nationaal Programma Roosendaal, hetgeen betekent dat de veiligheid en leefbaarheid in de gehele wijk ernstig onder druk staat;

 

  • -

    74% van de bewoners van de buurt Ettingen in de wijk Westrand (waartoe het aan te wijzen gebied behoort) zich onveilig voelt in de eigen buurt, ten opzichte van 41% in 2021;

 

  • -

    de ervaren overlast door omwonenden en groepen jongeren is verdubbeld ten opzichte van 2021;

 

  • -

    diverse professionals van de gemeente alsmede de coördinator van het buurtpreventieteam in het aan te wijzen gebied laten weten dat bewoners en ondernemers zich regelmatig melden met gevoelens van onveiligheid in het gebied Rembrandtgalerij;

 

  • -

    bewoners vooral overlast melden van (dakloze) personen met verward gedrag en personen die onder invloed zijn van alcohol, welke problematiek wordt bevestigd door gemeentelijke toezichthouders;

 

  • -

    de tot nu toe genomen maatregelen waaronder het eerder ingestelde cameratoezicht, veelvuldige controles en handhaving door politie en gemeentelijke toezichthouders, aanpassingen in de openbare ruimte en een ingesteld verbod tot het nuttigen van alcohol in de openbare ruimte niet het gewenste effect hebben gehad;

 

  • -

    een extra maatregel zoals de langdurige inzet van particulier toezicht niet het gewenste effect heeft gehad;

 

  • -

    het cameratoezicht onderdeel uitmaakt van een breder pakket aan maatregelen te weten dat de wijk Westrand onderdeel uitmaakt van het focusgebied in het Nationaal Programma Roosendaal waarbij voor de duur van 20 jaar intensief ingezet zal worden op het verbeteren van de leefbaarheid en veiligheid van dit focusgebied;

 

  • -

    de inzet van cameratoezicht de handhaving van de openbare orde en veiligheid en gerichte aansturing vanuit het actief bekijken van beelden bevordert, en daarmee zal bijdragen aan het de-escaleren van overlast en het gericht optreden tegen bovengenoemde overlast en incidenten;

 

  • -

    het cameratoezicht in het hierna genoemde gebied gelet op het voorgaande voldoet aan de eisen die artikel 151c van de Gemeentewet stelt aan het inzetten van cameratoezicht waaronder proportionaliteit, subsidiariteit en kenbaarheid.

 

BESLUIT

 

 

Artikel 1 Gebieden en gebruik camera’s

  • 1.

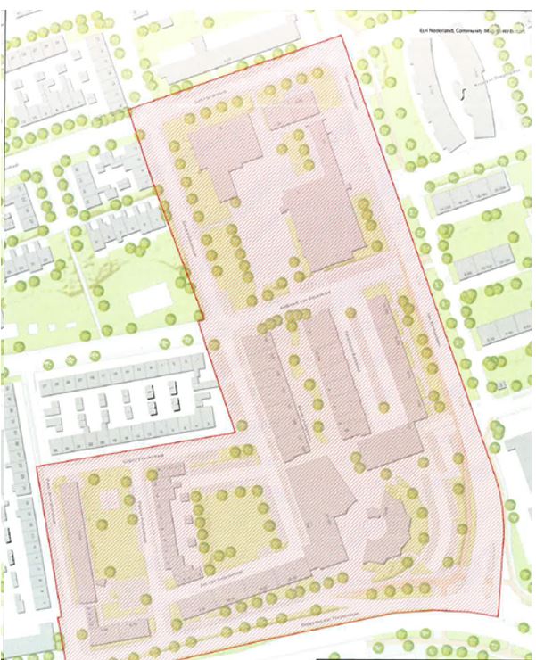
    In het gebied Rembrandtgalerij, zoals aangegeven op de als bijlage 1 bijgevoegde kaart, flexibel cameratoezicht in te zetten;

  • 2.

    Dat het genoemde probleem niet met minder vergaande maatregelen dan cameratoezicht opgelost/beheerst kan worden en dat deze maatregel in verhouding staat tot de geconstateerde overlast/criminaliteit;

  • 3.

    Dat beelden die zijn opgenomen worden bekeken als er calamiteiten en/of incidenten hebben plaatsgevonden;

  • 4.

    Dat de beelden worden bekeken door daarvoor bevoegde personen;

  • 5.

    Dat de beelden 24 uur per dag opgenomen worden en maximaal 28 dagen bewaard blijven;

  • 6.

    Dat de beelden in elk geval vrijdagavond en zaterdagavond live uitgekeken worden en indien nodig ook op andere momenten zoals na signalen.

 

Artikel 2. Slotbepalingen

  • 1.

    Dit aanwijzingsbesluit treedt in werking op 4 april 2025 en vervalt op 4 april 2026.

  • 2.

    Dit besluit kan worden aangehaald als ‘Aanwijzingsbesluit flexibel cameratoezicht Rembrandtgalerij 2025’’

 

 

 

Aldus besloten door de burgemeester van Roosendaal op 31 maart 2025,

De burgemeester van Roosendaal,

M. Buijs

Bezwaar

Op grond van de Algemene wet bestuursrecht kunnen belanghebbenden gedurende zes weken na de datum van de bekendmaking van dit besluit schriftelijk bezwaar maken bij de burgemeester. Hiervoor dient een bezwaarschrift te worden ingediend dat naam en adres, dagtekening, kenmerk of omschrijving van het besluit en de gronden van het bezwaar moet bevatten. Het bezwaarschrift kan worden gestuurd naar: postbus 5000, 4700 KA Roosendaal. Als tijdig bezwaar is gemaakt, kan aan de voorzieningenrechter van de rechtbank Zeeland West-Brabant te Breda, postbus 90006, 4800 PA BREDA, worden verzocht om, met betrekking tot dit besluit, een voorlopige voorziening te treffen.

Bijlage 1: Aan te wijzen gebied cameratoezicht Rembrandtgalerij 2025

 

Naar boven