Gewijzigde locatieprofielen centrumlocaties Oss, maart 2025

Het college van burgemeester en wethouders van de gemeente Oss;

 

gezien het voorstel met registratienummer 530;

 

overwegende dat het omgevingsplan evenementen toestaat op verschillende locaties;

 

overwegende dat het gewenst is om duidelijkheid te geven over de aard en omvang van evenementen op die locaties;

 

afgewogen de resultaten van een beschouwing van de verschillende locaties tegen andere betrokken belangen;

 

gelet op de artikelen 4:81, eerste lid, 4:83 en 1:3, vierde lid, van de Algemene wet bestuursrecht, en artikel 22.1 van de Omgevingswet

 

b e s l u i t

 

vast te stellen de gewijzigde locatieprofielen centrumlocaties Oss, maart 2025.

 

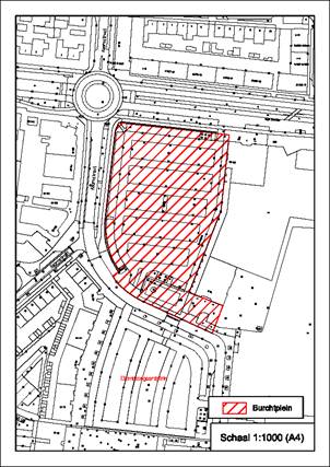
1. Burchtplein

1.1 Ambitie

Mensen komen graag naar het centrum van Oss om te winkelen, elkaar te ontmoeten en zich te vermaken. Evenementen dragen bij aan een aantrekkelijk centrum, doordat ze ervoor zorgen dat er genoeg te doen is. Zo kunnen bewoners culturele festivals bezoeken en aan sportevenementen meedoen. Bovendien is er een goede wisselwerking tussen de evenementen en horeca in ons centrum. Daarom zijn wij trots op ons bestaande brede evenementenaanbod en willen we dit behouden. Wel willen wij de muziekevenementen en de hoeveelheid geluid beter over het centrum spreiden.

Het Burchtplein is een parkeerterrein aan de noordrand van het centrum. Gezien het belang van de kermis voor de stad, inwoners en ondernemers willen wij de kermis op het Burchtplein behouden. Op deze locatie staan wij alleen de kermis en geen andere (muziek)evenementen toe.

 

 

1.2 Maximaal gebruik en geluid

BURCHTPLEIN

EVENEMENTENCATEGORIEËN*

1

2

3

Maximumaantal personen tegelijk aanwezig

250

n.v.t.

3.000

Maximumaantal evenementen per jaar

vrij

0

1

Maximumaantal evenementdagen per jaar

vrij

0

7

Maximale duur van een evenement in dagen (exclusief op- en afbouw) 1)

1

0

7

Muziekgeluid toegestaan tussen07:00 en 23:00uur 2)

nee

nee

80 dB(A)

Maximaal aantalgeluidsdagen per jaar

0

0

7

Maximaal aantal geluidsdagen per evenement

0

0

7

*Evenementen categorieën zijn op basis van geluid, zie pagina 32 van het evenementenbeleid Oss.

 

  • 1)

    De omvang van een evenement en de locatie bepalen de duur van de opbouw- en afbouwperiode. De aanvrager dient de benodigde opbouw- en afbouwperiode bij de aanvraag van de evenementenvergunning te motiveren door onder andere aan te geven hoe deze periode tot een minimum wordt beperkt.

  • 2)

    Betreft muziekgeluid op de gevel van een woning.

    Op zondag staan wij alleen muziekgeluid na 13:00 uur toe.

    Op dagen waarop een vrije of feestdag volgt, kunnen wij de eindtijd verlengen tot 01:00 uur. Op zondag, maandag, dinsdag, woensdag en donderdag gelden verlengde eindtijden tot 24.00 uur uitsluitend voorbehouden aan de kermis en kermisfeesten.

2. Eikenboomgaardplein

2.1 Ambitie

Mensen komen graag naar het centrum van Oss om te winkelen, elkaar te ontmoeten en zich te vermaken. Evenementen dragen bij aan een aantrekkelijk centrum, doordat ze ervoor zorgen dat er genoeg te doen is. Zo kunnen bewoners culturele festivals bezoeken en aan sportevenementen meedoen. Bovendien is er een goede wisselwerking tussen de evenementen en horeca in ons centrum. Daarom zijn wij trots op ons bestaande brede evenementenaanbod en willen we dit behouden. Wel willen wij de muziekevenementen en de hoeveelheid geluid beter over het centrum spreiden.

 

Het Eikenboomgaardplein is een geschikte plek voor het organiseren van evenementen. Het plein is normaal in gebruik als parkeerterrein en ligt op korte afstand van het winkel- en horecagebied. Het is ruim van opzet, waardoor voldoende afstand tot omliggende woningen kan worden aangehouden. Hierdoor kunnen organisatoren goed rekening houden met de gestelde geluidsnormen en de overlast voor omwonenden beperken. De ruime opzet van het evenemententerrein maakt het ook mogelijk om meer bezoekers te ontvangen, terwijl de veiligheidsrisico’s juist verminderen. Door het dagelijks gebruik als parkeerterrein zijn er weinig fysieke obstakels aanwezig. Het plein is op dinsdagen en zaterdagen in gebruik ten behoeve van de warenmarkt. Op evenementendagen moet een alternatief voor bezoekersparkeren (en markt) worden geboden.

 

De ruime opzet en de weinige fysieke obstakels maken het Eikenboomgaardplein een geschikte evenementenlocatie. We zien op dit plein ruimte om meer evenementen toe te staan. Daarom willen wij een aantal evenementen van de Heuvel naar het Eikenboomgaardplein verplaatsen.

 

 

2.2 Maximaal gebruik en geluid

EIKENBOOMGAARDPLEIN

EVENEMENTENCATEGORIEËN*

1

2

3

Maximaal aantal personen tegelijk aanwezig

250

5.000

5.000

Maximum aantalevenementen per jaar

vrij

1

9

Maximum aantal evenementdagen per jaar

vrij

28

21

Maximale duur van een evenement in dagen (exclusief op- en afbouw) 1)

1

28

7

Muziekgeluid toegestaan tussen07:00 en 23:00uur 2)

nee

65

dB(A)

70

dB(A)

80

dB(A)

Maximaal aantalgeluidsdagen per jaar

0

22

6

21

Maximaal aantal geluidsdagen per evenement

0

22

6

7

*Evenementen categorieën zijn op basis van geluid, zie pagina 32 van het evenementenbeleid Oss.

 

  • 1)

    De omvang van een evenement en de locatie bepalen de duur van de opbouw- en afbouwperiode. De aanvrager dient de benodigde opbouw- en afbouwperiode bij de aanvraag van de evenementenvergunning te motiveren door onder andere aan te geven hoe deze periode tot een minimum wordt beperkt.

  • 2)

    Betreft muziekgeluid op de gevel van een woning

    Op zondag staan wij alleen muziekgeluid na 13:00 uur toe.

    Op dagen waarop een vrije of feestdag volgt, kunnen wij de eindtijd verlengen tot 01:00 uur. Op zondag, maandag, dinsdag, woensdag en donderdag gelden verlengde eindtijden tot 24.00 uur uitsluitend voorbehouden aan de kermis en kermisfeesten.

Let op: Op deze locatie mogen geen evenementen plaatsvinden: 2 weken vóór kerst en 1 week vóór Pasen. Dus ook geen categorie 1 of 2 evenementen, behalve als er geen gebruik hoeft te worden gemaakt van parkeerplaatsen.

3. Eikenboomgaard I

3.1 Ambitie

Mensen komen graag naar het centrum van Oss om te winkelen, elkaar te ontmoeten en zich te vermaken. Evenementen dragen bij aan een aantrekkelijk centrum, doordat ze ervoor zorgen dat er genoeg te doen is. Zo kunnen bewoners culturele festivals bezoeken en aan sportevenementen meedoen. Bovendien is er een goede wisselwerking tussen de evenementen en horeca in ons centrum. Daarom zijn wij trots op ons bestaande brede evenementenaanbod en willen we dit behouden. Wel willen wij de muziekevenementen en de hoeveelheid geluid beter over het centrum spreiden.

 

De Eikenboomgaard is lang in gebruik geweest als horecastraat, met meerdere uitgaansgelegenheden gevestigd aan beide zijden. Inmiddels zijn aan de westzijde nog een aantal (dag)horecazaken, maar is andere zijde vrijwel volledig verkleurd naar woningen. De straat is niet ruim opgezet en komt daardoor niet in aanmerking als losse evenementenlocatie.

 

De Eikenboomgaard is wel een belangrijke locatie voor de evenementen die meerdere plaatsen in het centrum beslaan, zoals carnaval en kermis. De straat dient bij deze evenementen als verbindingsstraat tussen de Heuvel en het Eikenboomgaardplein. Daarom staan wij in de Eikenboomgaard alleen activiteiten toe die onderdeel zijn deze categorie evenementen. In deze straat willen wij de hoeveelheid geluid voor de bewoners verminderen. Hierbij zetten wij in op minder evenementdagen, en het verlagen van het maximum geluidsniveau. Op deze locatie staat de gemeente geen kermisfeesten meer toe. Uit de omgevingsdialoog komt naar voren dat het toestaan van kermisattracties als positief wordt ervaren. Door bovendien bij de indeling van de kermisattracties rekening te houden met het type attracties, kan de hoeveelheid geluid beperkt worden. We denken aan kleine attracties die minder afhankelijk zijn van geluid, zoals kinderattracties en behendigheidsspelletjes.

Dit past ook bij de functie van verbindingsstraat.

 

 

3.2 Maximaal gebruik en geluid

EIKENBOOMGAARD I

EVENEMENTENCATEGORIEËN*

1

2

3

Maximaal aantal personen tegelijk aanwezig

250

1.500

1.500

Maximum aantalevenementen per jaar

vrij

0

1

Maximum aantal evenementdagen per jaar

vrij

0

7

Maximale duur van een evenement in dagen (exclusief op- en afbouw) 1)

1

0

7

Muziekgeluid toegestaan tussen07:00 en 23:00uur 2)

nee

nee

80 dB(A)

Maximaal aantalgeluidsdagen per jaar

0

0

7

Maximaal aantal geluidsdagen per evenement

0

0

7

*Evenementen categorieën zijn op basis van geluid, zie pagina 32 van het evenementenbeleid Oss.

 

  • 1)

    De omvang van een evenement en de locatie bepalen de duur van de opbouw- en afbouwperiode. De aanvrager dient de benodigde opbouw- en afbouwperiode bij de aanvraag van de evenementenvergunning te motiveren door onder andere aan te geven hoe deze periode tot een minimum wordt beperkt.

  • 2)

    Betreft muziekgeluid op de gevel van een woning

    Op zondag staan wij alleen muziekgeluid na 13:00 uur toe.

    Op dagen waarop een vrije of feestdag volgt, kunnen wij de eindtijd verlengen tot 01:00 uur. Op zondag, maandag, dinsdag, woensdag en donderdag gelden verlengde eindtijden tot 24.00 uur uitsluitend voorbehouden aan de kermis en kermisfeesten.

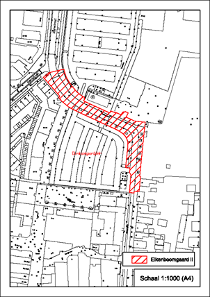
4. Eikenboomgaard II

4.1 Ambitie

Mensen komen graag naar het centrum van Oss om te winkelen, elkaar te ontmoeten en zich te vermaken. Evenementen dragen bij aan een aantrekkelijk centrum, doordat ze ervoor zorgen dat er genoeg te doen is. Zo kunnen bewoners culturele festivals bezoeken en aan sportevenementen meedoen. Bovendien is er een goede wisselwerking tussen de evenementen en horeca in ons centrum. Daarom zijn wij trots op ons bestaande brede evenementenaanbod en willen we dit behouden. Wel willen wij de muziekevenementen en de hoeveelheid geluid beter over het centrum spreiden.

 

De kermis heeft een lange traditie in onze gemeente en inwoners vinden de kermis een (heel) belangrijk evenement. Kermisfeesten vinden wij (en veel inwoners) een onlosmakelijk onderdeel van de kermis. De kermis met de feesten bieden de mogelijkheid dat alle inwoners samen kunnen ontspannen, feesten en ontmoeten. Gebleken is dat onder de inwoners en andere bezoekers verschillende doelgroepen zijn met verschillende behoeften. De feesten dragen bij aan de reuring en aantrekkelijkheid van de kermis en zijn belangrijk voor een toekomstbestendige kermis. De combinatie van de kermis en de kermisfeesten in elkaars nabijheid versterkt elkaar, biedt een completer aanbod voor de diverse doelgroepen en dit draagt bij aan de beleving van het totale evenement. Door buiten te feesten is dit losgekoppeld van een specifieke horecagelegenheid wat het geheel laagdrempeliger en toegankelijker maakt.

Juist door de kermisfeesten buiten te organiseren, versterkt dit de samenhang tussen kermis en feesten. De kermis vindt immers ook buiten plaats. Bovendien biedt het buiten meer mogelijkheden qua programmering waardoor het voor een breder publiek aantrekkelijk is.

 

Deze feesten werden voorheen op Eikenboomgaard I gehouden. Die locatie is ongeschikt voor de feesten. Daarom hebben wij op basis van de omgevingsdialoog en het akoestisch onderzoek besloten de kermisfeesten in het vervolg op Eikenboomgaard II toe te staan. Deze locatie ligt aansluitend op het kermisterrein en is vanuit geluid bezien de meest passende locatie. Op deze locatie staan wij alleen de kermisfeesten en geen andere (muziek)evenementen toe.

 

 

4.2 Maximaal gebruik en geluid

EIKENBOOMGAARD II

EVENEMENTENCATEGORIEËN*

1

2

3

Maximaal aantal personen tegelijk aanwezig

250

n.v.t.

1.500

Maximum aantalevenementen per jaar

vrij

0

1

Maximum aantal evenementdagen per jaar

vrij

0

7

Maximale duur van een evenement in dagen (exclusief op- en afbouw) 1)

1

0

7

Muziekgeluid toegestaan tussen07:00 en 23:00uur 2)

nee

nee

85 dB(A)

Maximaal aantalgeluidsdagen per jaar

0

0

7

Maximaal aantal geluidsdagen per evenement

0

0

7

*Evenementen categorieën zijn op basis van geluid, zie pagina 32 van het evenementenbeleid Oss.

 

  • 1)

    De omvang van een evenement en de locatie bepalen de duur van de opbouw- en afbouwperiode. De aanvrager dient de benodigde opbouw- en afbouwperiode bij de aanvraag van de evenementenvergunning te motiveren door onder andere aan te geven hoe deze periode tot een minimum wordt beperkt.

  • 2)

    Betreft muziekgeluid op de gevel van een woning

    Op zondag staan wij alleen muziekgeluid na 13:00 uur toe.

    Op dagen waarop een vrije of feestdag volgt, kunnen wij de eindtijd verlengen tot 01:00 uur. Op zondag, maandag, dinsdag, woensdag en donderdag gelden verlengde eindtijden tot 24.00 uur voorbehouden aan de kermis en kermisfeesten.

5. Heuvel

5.1 Ambitie

Mensen komen graag naar het centrum van Oss om te winkelen, elkaar te ontmoeten en zich te vermaken. Evenementen dragen bij aan een aantrekkelijk centrum, doordat ze ervoor zorgen dat er genoeg te doen is. Zo kunnen bewoners culturele festivals bezoeken en aan sportevenementen meedoen. Bovendien is er een goede wisselwerking tussen de evenementen en horeca in ons centrum. Daarom zijn wij trots op ons bestaande brede evenementenaanbod en willen we dit behouden. Wel willen wij de muziekevenementen en de hoeveelheid geluid beter over het centrum spreiden.

 

De Heuvel is het centrale plein in het centrum en wordt gezien als de huiskamer van de stad. Door de centrale ligging en de vele horecagelegenheden aan het plein, is dit de sfeervolle plek waar mensen elkaar ontmoeten. Een aanzienlijk deel van het plein wordt dagelijks gebruikt als terrasvoorziening voor de aangrenzende horeca. Evenementen hier dragen bij aan het belevingsaspect van het centrum en maken het bezoeken van winkels en horeca aantrekkelijker. Daarom willen wij dat hier een breed evenementenaanbod blijft.

 

Op het plein staat een ijssalon en een ‘watertafel’. De ruimte voor evenementen is klein. Daarom moet de grootte van een evenement goed aansluiten op de mogelijkheden van het plein. Het aantal muziekevenementen op de Heuvel willen we verminderen. Zo houden we rekening met de omgeving.

 

 

5.2 Maximaal gebruik en geluid

HEUVEL

EVENEMENTENCATEGORIEËN* 

1

2

3a

3b

3c

Maximaal aantalpersonen tegelijk aanwezig

250

3.000

3.000

3.000

3.000

Maximum aantal evenementen per jaar

vrij

2

6

3

3

Maximum aantalevenementdagen per jaar

vrij

29

6

12

3

Maximale duurvan een evenement in

dagen (exclusief op- en afbouw)1)

1

28

1

7

1

Muziekgeluid toegestaan tussen 07:00 en

23:00 uur 2)

nee

65

dB(A)

70

dB(A)

75

dB(A)

80

dB(A)

85

dB(A)

Maximaal aantalgeluidsdagen per jaar

0

22

7

6

12

3

Maximaal aantalgeluidsdagen per evenement

0

22

6

1

7

1

*Evenementen categorieën zijn op basis van geluid, zie pagina 32 van het evenementenbeleid Oss.

 

  • 1)

    De omvang van een evenement en de locatie bepalen de duur van de opbouw- en afbouwperiode. De aanvrager dient de benodigde opbouw- en afbouwperiode bij de aanvraag van de evenementenvergunning te motiveren door onder andere aan te geven hoe deze periode tot een minimum wordt beperkt.

  • 2)

    Betreft muziekgeluid op de gevel van een woning

    Op zondag staan wij alleen muziekgeluid na 13:00 uur toe.

    Op dagen waarop een vrije of feestdag volgt, kunnen wij de eindtijd verlengen tot 01:00 uur. Op zondag, maandag, dinsdag, woensdag en donderdag gelden verlengde eindtijden tot 24.00 uur voorbehouden aan de kermis en kermisfeesten.

  • 3)

    Voor categorie 3 evenementen zijn subcategorieën (in de vorm van 3a, 3b of 3c) aangebracht, omdat niet alle evenementen hetzelfde muziekgeluid nodig hebben als maatgevend evenement.

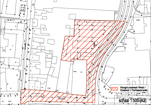
6. Oostwal (inclusief Hooghuisstraat)

6.1 Ambitie

Mensen komen graag naar het centrum van Oss om te winkelen, elkaar te ontmoeten en zich te vermaken. Evenementen dragen bij aan een aantrekkelijk centrum, doordat ze ervoor zorgen dat er genoeg te doen is. Zo kunnen bewoners culturele festivals bezoeken en aan sportevenementen meedoen. Bovendien is er een goede wisselwerking tussen de evenementen en horeca in ons centrum. Daarom zijn wij trots op ons bestaande brede evenementenaanbod en willen we dit behouden. Wel willen wij de muziekevenementen en de hoeveelheid geluid beter over het centrum spreiden.

 

Vanwege de ontwikkeling van het Walkwartier, is De Wal niet meer beschikbaar als locatie voor de kermis. Gezien het belang van de kermis voor de stad, inwoners en ondernemers willen wij de omvang van de kermis niet beperken. Daarom zijn Hooghuisstraat, een gedeelte van de Oostwal en het parkeerterrein Oostwal-West als alternatieve locaties voor de kermis aangewezen. Deze straten en plein grenzen direct aan de overige kermislocaties (Heuvel, Eikenboomgaard I), zodat een aaneengesloten kermisterrein kan worden gerealiseerd. De kermislocaties De Wal en Burgwal vervallen. Op de nieuwe locaties staan wij alleen de kermis toe en geen andere (muziek)evenementen toe.

 

 

6.2 Maximaal gebruik en geluid

OOSTWAL, HOOGHUISSTRAAT

EVENEMENTENCATEGORIEËN*

1

2

3

Maximaal aantal personen tegelijk aanwezig

250

n.v.t.

3.000

Maximum aantalevenementen per jaar

vrij

0

1

Maximum aantal evenementdagen per jaar

vrij

0

7

Maximale duur van een evenement in dagen(exclusief op- en afbouw)1)

1

0

7

Muziekgeluid toegestaan tussen07:00 en 23:00uur 2)

nee

nee

80 dB(A)

Maximaal aantalgeluidsdagen per jaar

0

0

7

Maximaal aantal geluidsdagen per evenement

0

0

7

*Evenementen categorieën zijn op basis van geluid, zie pagina 32 van het evenementenbeleid Oss.

 

  • 1)

    De omvang van een evenement en de locatie bepalen de duur van de opbouw- en afbouwperiode. De aanvrager dient de benodigde opbouw- en afbouwperiode bij de aanvraag van de evenementenvergunning te motiveren door onder andere aan te geven hoe deze periode tot een minimum wordt beperkt.

  • 2)

    Betreft muziekgeluid op de gevel van een woning.

    Op zondag staan wij alleen muziekgeluid na 13:00 uur toe.

    Op dagen waarop een vrije of feestdag volgt, kunnen wij de eindtijd verlengen tot 01:00 uur. Op zondag, maandag, dinsdag, woensdag en donderdag gelden verlengde eindtijden tot 24.00 uur voorbehouden aan de kermis en kermisfeesten.

Aldus vastgesteld in de vergadering van 18 maart 2025

Het college voornoemd,

De secretaris, H. Reints De burgemeester,

Drs. W.J.L. Buijs-Glaudemans

Naar boven